¿Qué rol juega el arquitecto (diseñador urbano)?
PARQUE   EQUIPADO  COMO SOPORTE DEL DESARROLLO URBANO EN EXTENSIÓN Rodrigo Araya, Arquitecto PUC 2006
Título Aula temática:  “ En las patas de los Caballos:  Desarrollo de un barrio mixto en el nuevo contexto de las  ZDUC ” ZDUC  - Zonas de desarrollo urbano condicionado Alumno: Rodrigo Araya   Profesores:  Pablo Allard S. & Orlando Mingo M. Ayudante: Maria Jose Balmaceda
gestionar.(De  gestión ). 1.Hacer diligencias conducentes al logro de un negocio o de un deseo cualquiera .
¿Cuál es el negocio? (PRIVADO) ¿Cuál es el deseo cualquiera? (ESTADO)
 
0,05 UF/m2 Las ZODUC o Zonas de Desarrollo Urbano Condicionado son determinadas por una modificación al PRMS en 1997. En estas zonas se permite el desarrollo urbano fuera del límite fijado en 1994 pero con condiciones de desarrollo que permitan internalizar y compensar costos que se producen debido a la extensión de la ciudad que estos mismos generan.   1994
0,25 UF/m2 Las ZODUC o Zonas de Desarrollo Urbano Condicionado son determinadas por una modificación al PRMS en 1997. En estas zonas se permite el desarrollo urbano fuera del límite fijado en 1994 pero con condiciones de desarrollo que permitan internalizar y compensar costos que se producen debido a la extensión de la ciudad que estos mismos generan.   1997
0,25 UF/m2 Las ZODUC o Zonas de Desarrollo Urbano Condicionado son determinadas por una modificación al PRMS en 1997. En estas zonas se permite el desarrollo urbano fuera del límite fijado en 1994 pero con condiciones de desarrollo que permitan internalizar y compensar costos que se producen debido a la extensión de la ciudad que estos mismos generan.
Las ZODUC o Zonas de Desarrollo Urbano Condicionado son determinadas por una modificación al PRMS en 1997. En estas zonas se permite el desarrollo urbano fuera del límite fijado en 1994 pero con condiciones de desarrollo que permitan internalizar y compensar costos que se producen debido a la extensión de la ciudad que estos mismos generan.
Las ZODUC o Zonas de Desarrollo Urbano Condicionado son determinadas por una modificación al PRMS en 1997. En estas zonas se permite el desarrollo urbano fuera del límite fijado en 1994 pero con condiciones de desarrollo que permitan internalizar y compensar costos que se producen debido a la extensión de la ciudad que estos mismos generan.
¿Cuáles son mis nuevas condiciones?
* Contar con un terreno no inferior a 300 Hás  (UNA MASA CRITICA MINIMA PARA SER AUTOSUSTENTABLE) * Contar con informe favorable de la SEREMI al Estudio de Impacto Urbano (EIU) _  factibilidad de mitigación de riesgos  (COLECTORES DE AGUAS LLUVIAS) _  factibilidad de sistema de transporte y capacidad vial  (NUDOS VIALES, NUEVA VIALIDAD) _  factibilidad de eficiencia de equipamiento  (EQUIPAMIENTO CONSTRUIDO, COLEGIOS, COMERCIO…) _  factibilidad de dotación o ampliación del sistema de agua potable  (SANITARIAS) _  factibilidad de servicio o ampliación el sistema de alcantarillado _  factibilidad de la zonificación propuesta
LAS NUEVAS EXIGENCIAS GENERAN NUEVAS  OPORTUNIDADES  PARA EL DESARROLLO DE ESTOS NUEVOS TERRITORIOS * Tener una densidad promedio 85 hab./ha (entre 75 hab./ha y 100 hab./ha)  (UNA DENSIDAD ACEPTABLE) * Destinar al menos el 2% de la superficie total a viviendas con densidad bruta de 300 a 400 Hab/Há y al menos el 3%  entre 401 y 500 Hab/Há.  (CON EL OBJETIVO DE GENERAR VIVIENDA SOCIAL) * Destinar un 5% de la superficie total para actividades productivas y de servicios, calificadas como inofensivas y generadoras de empleo.   (GENERAR EMPLEO DENTRO DEL MISMO DESARROLLO)
A+B =  C A+C+E =  ? B+F+H+I =  ?
EL DESAFIO: UNA REVISION CRITICA A UNA PRODUCCION INMOBILIARIA QUE SE MANIFIESTA EN  FORMULAR PROBADAS  O  DISEÑOS IMPORTADOS
LUGAR Y ESCALA
 
UBICACIÓN, ACCESIBILIDAD Y CONECTIVIDAD
ESCALA
CARACTERISTICAS FISICAS Y AMBIENTALES
CARACTERISTICAS FISICAS Y AMBIENTALES
CARACTERISTICAS FISICAS Y AMBIENTALES
CARACTERISTICAS FISICAS Y AMBIENTALES   ¿427 ha?
 
 
PROPUESTA TERRITORIO
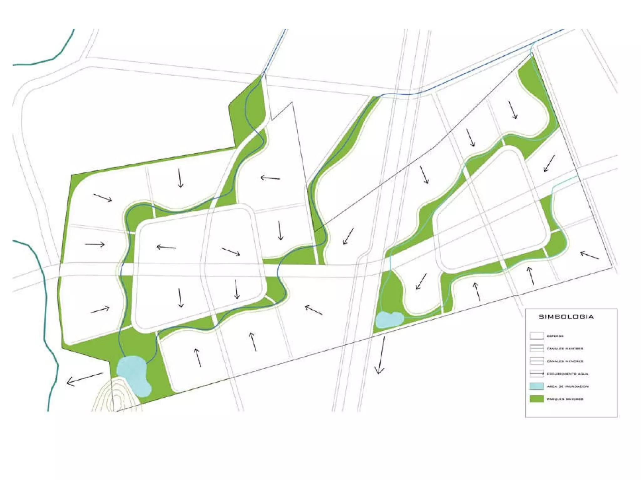
LOGICAS DE INTERVENCION   LOS CANALES PERMITEN GENERAR CONTINUIDAD Y PERMEABILIDAD A NUEVAS AREAS URBANAS
LOGICAS DE INTERVENCION   LOS CANALES PERMITEN GENERAR CONTINUIDAD Y PERMEABILIDAD A NUEVAS AREAS URBANAS
 
LOGICAS DE INTERVENCION
DE   LA SOLUCION DE INFRAESTRUCTURA   AL  ATRIBUTO URBANO
LOGICAS DE INTERVENCION   SOLUCION DE  INFRAESTRUCTURA
LOGICAS DE INTERVENCION   LOS CANALES PERMITEN GENERAR CONTINUIDAD Y PERMEABILIDAD A NUEVAS AREAS URBANAS ATRIBUTO URBANO
 
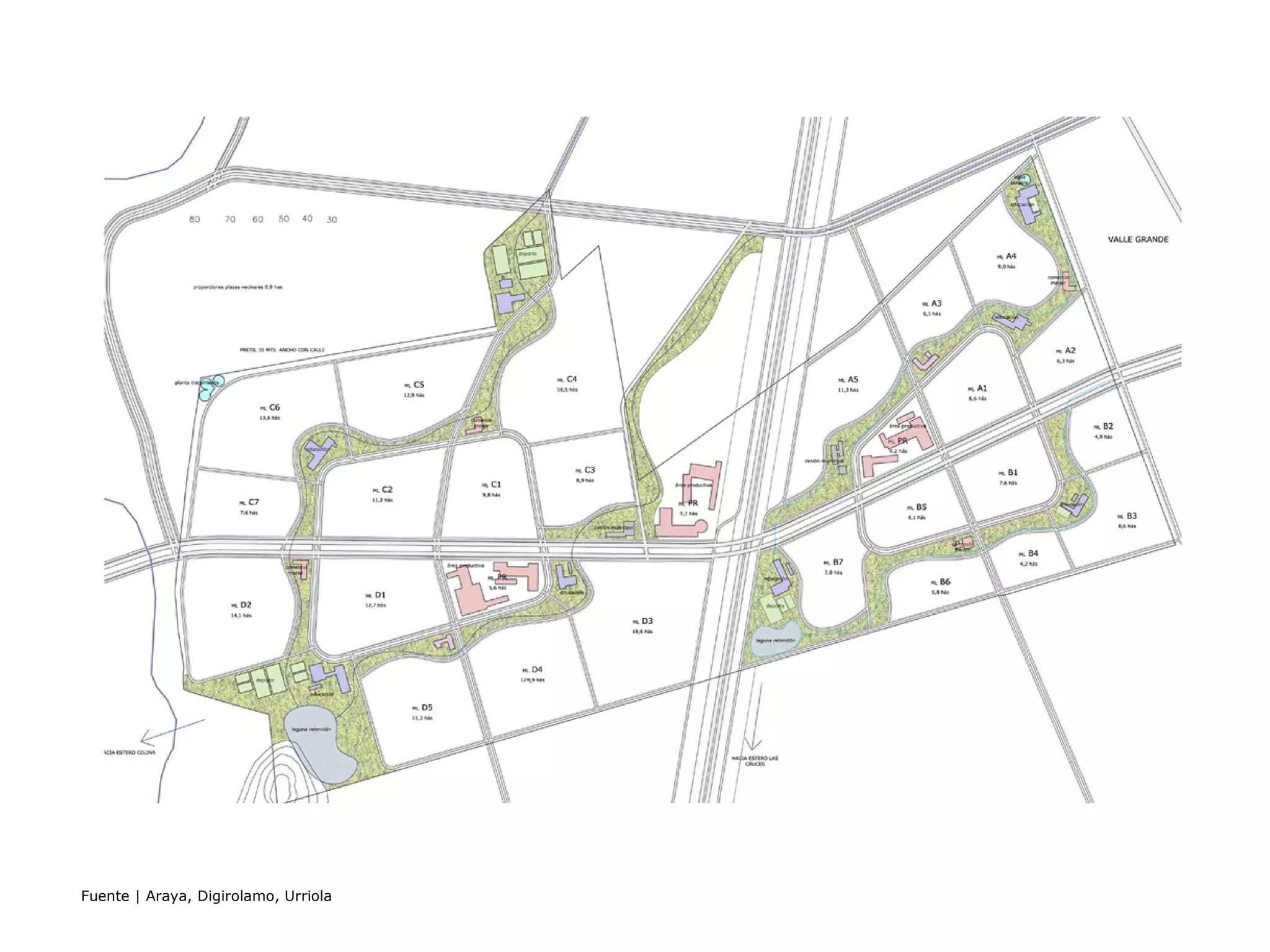
MASTER PLAN
RESTRICCIONES
 
 
 
 
Fuente | Araya, Digirolamo, Urriola
Fuente | Araya, Digirolamo, Urriola
DESARROLLO SISTEMA
 
 
Fuente | Araya, Digirolamo, Urriola
 
 
 
 
 
 
 
 
 
 
 
DESARROLLO ESPECIFICO
 
 
 
 
 
 
 
 
 
 
 
 
 
 
 
 
 
 
En venta En aprobación Potencial En estudio Factible

Parque equipado como soporte del Desarrollo Urbano en extensión

  • 1.
    ¿Qué rol juegael arquitecto (diseñador urbano)?
  • 2.
    PARQUE EQUIPADO COMO SOPORTE DEL DESARROLLO URBANO EN EXTENSIÓN Rodrigo Araya, Arquitecto PUC 2006
  • 3.
    Título Aula temática: “ En las patas de los Caballos: Desarrollo de un barrio mixto en el nuevo contexto de las ZDUC ” ZDUC - Zonas de desarrollo urbano condicionado Alumno: Rodrigo Araya Profesores: Pablo Allard S. & Orlando Mingo M. Ayudante: Maria Jose Balmaceda
  • 4.
    gestionar.(De gestión). 1.Hacer diligencias conducentes al logro de un negocio o de un deseo cualquiera .
  • 5.
    ¿Cuál es elnegocio? (PRIVADO) ¿Cuál es el deseo cualquiera? (ESTADO)
  • 6.
  • 7.
    0,05 UF/m2 LasZODUC o Zonas de Desarrollo Urbano Condicionado son determinadas por una modificación al PRMS en 1997. En estas zonas se permite el desarrollo urbano fuera del límite fijado en 1994 pero con condiciones de desarrollo que permitan internalizar y compensar costos que se producen debido a la extensión de la ciudad que estos mismos generan. 1994
  • 8.
    0,25 UF/m2 LasZODUC o Zonas de Desarrollo Urbano Condicionado son determinadas por una modificación al PRMS en 1997. En estas zonas se permite el desarrollo urbano fuera del límite fijado en 1994 pero con condiciones de desarrollo que permitan internalizar y compensar costos que se producen debido a la extensión de la ciudad que estos mismos generan. 1997
  • 9.
    0,25 UF/m2 LasZODUC o Zonas de Desarrollo Urbano Condicionado son determinadas por una modificación al PRMS en 1997. En estas zonas se permite el desarrollo urbano fuera del límite fijado en 1994 pero con condiciones de desarrollo que permitan internalizar y compensar costos que se producen debido a la extensión de la ciudad que estos mismos generan.
  • 10.
    Las ZODUC oZonas de Desarrollo Urbano Condicionado son determinadas por una modificación al PRMS en 1997. En estas zonas se permite el desarrollo urbano fuera del límite fijado en 1994 pero con condiciones de desarrollo que permitan internalizar y compensar costos que se producen debido a la extensión de la ciudad que estos mismos generan.
  • 11.
    Las ZODUC oZonas de Desarrollo Urbano Condicionado son determinadas por una modificación al PRMS en 1997. En estas zonas se permite el desarrollo urbano fuera del límite fijado en 1994 pero con condiciones de desarrollo que permitan internalizar y compensar costos que se producen debido a la extensión de la ciudad que estos mismos generan.
  • 12.
    ¿Cuáles son misnuevas condiciones?
  • 13.
    * Contar conun terreno no inferior a 300 Hás (UNA MASA CRITICA MINIMA PARA SER AUTOSUSTENTABLE) * Contar con informe favorable de la SEREMI al Estudio de Impacto Urbano (EIU) _ factibilidad de mitigación de riesgos (COLECTORES DE AGUAS LLUVIAS) _ factibilidad de sistema de transporte y capacidad vial (NUDOS VIALES, NUEVA VIALIDAD) _ factibilidad de eficiencia de equipamiento (EQUIPAMIENTO CONSTRUIDO, COLEGIOS, COMERCIO…) _ factibilidad de dotación o ampliación del sistema de agua potable (SANITARIAS) _ factibilidad de servicio o ampliación el sistema de alcantarillado _ factibilidad de la zonificación propuesta
  • 14.
    LAS NUEVAS EXIGENCIASGENERAN NUEVAS OPORTUNIDADES PARA EL DESARROLLO DE ESTOS NUEVOS TERRITORIOS * Tener una densidad promedio 85 hab./ha (entre 75 hab./ha y 100 hab./ha) (UNA DENSIDAD ACEPTABLE) * Destinar al menos el 2% de la superficie total a viviendas con densidad bruta de 300 a 400 Hab/Há y al menos el 3% entre 401 y 500 Hab/Há. (CON EL OBJETIVO DE GENERAR VIVIENDA SOCIAL) * Destinar un 5% de la superficie total para actividades productivas y de servicios, calificadas como inofensivas y generadoras de empleo. (GENERAR EMPLEO DENTRO DEL MISMO DESARROLLO)
  • 15.
    A+B = C A+C+E = ? B+F+H+I = ?
  • 16.
    EL DESAFIO: UNAREVISION CRITICA A UNA PRODUCCION INMOBILIARIA QUE SE MANIFIESTA EN FORMULAR PROBADAS O DISEÑOS IMPORTADOS
  • 17.
  • 18.
  • 19.
  • 20.
  • 21.
  • 22.
  • 23.
  • 24.
    CARACTERISTICAS FISICAS YAMBIENTALES ¿427 ha?
  • 25.
  • 26.
  • 27.
  • 28.
    LOGICAS DE INTERVENCION LOS CANALES PERMITEN GENERAR CONTINUIDAD Y PERMEABILIDAD A NUEVAS AREAS URBANAS
  • 29.
    LOGICAS DE INTERVENCION LOS CANALES PERMITEN GENERAR CONTINUIDAD Y PERMEABILIDAD A NUEVAS AREAS URBANAS
  • 30.
  • 31.
  • 32.
    DE LA SOLUCION DE INFRAESTRUCTURA AL ATRIBUTO URBANO
  • 33.
    LOGICAS DE INTERVENCION SOLUCION DE INFRAESTRUCTURA
  • 34.
    LOGICAS DE INTERVENCION LOS CANALES PERMITEN GENERAR CONTINUIDAD Y PERMEABILIDAD A NUEVAS AREAS URBANAS ATRIBUTO URBANO
  • 35.
  • 36.
  • 37.
  • 38.
  • 39.
  • 40.
  • 41.
  • 42.
    Fuente | Araya,Digirolamo, Urriola
  • 43.
    Fuente | Araya,Digirolamo, Urriola
  • 44.
  • 45.
  • 46.
  • 47.
    Fuente | Araya,Digirolamo, Urriola
  • 48.
  • 49.
  • 50.
  • 51.
  • 52.
  • 53.
  • 54.
  • 55.
  • 56.
  • 57.
  • 58.
  • 59.
  • 60.
  • 61.
  • 62.
  • 63.
  • 64.
  • 65.
  • 66.
  • 67.
  • 68.
  • 69.
  • 70.
  • 71.
  • 72.
  • 73.
  • 74.
  • 75.
  • 76.
  • 77.
  • 78.
    En venta Enaprobación Potencial En estudio Factible