HECHO POR: SANDRO DANIEL VENERO SONCCO
M M
Diseño de zapatas aisladas con excentricidad variable (para una zapata cuadrada)
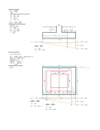
Datos ZAPATA= 40 x 40 o x
cm cm
kg/cm2
kg/cm2
m
γsuelo= ton/m3 m
2 ton/m2
solucion
1) combinacion de cargas
para la carga "P"
1.50PD+1.80PL= sin sismo
1.25(PD+PL+PS)= con sismo
1.25(PD+PL-PS)= con sismo
0.90PD+1.25PS= con sismo
0.90PD-1.25PS= con sismo
para momento positivo "M+"
1.50MD+1.80ML= sin sismo
1.25(MD+ML+MS)= con sismo
1.25(MD+ML-MS)= con sismo
0.90MD+1.25MS= con sismo
0.90MD-1.25MS= con sismo
para momento negativo "M-"
1.50MD-1.80ML= sin sismo
1.25(MD-ML+MS)= con sismo
1.25(MD-ML-MS)= con sismo
0.90MD+1.25MS= con sismo
0.90MD-1.25MS= con sismo
2) calculo de la excentricidad "e"
excentricidad con sismo positivo "+"
e=M/P
seleccionamos valor mayor de "M+" con sismo y "P" maximo con sismo
M+=
P=
e= m
excentricidad con sismo negativo "-"
e=M/P
seleccionamos valor mayor de "M-" con sismo y "P" maximo con sismo
M-=
P=
e= m
excentricidad sin sismo
e=M/P
M=
P=
e= m
seleccionamos el maor valor de las excentricidades
e M= m
por formula Bmin=6*e
Bmin= m
3) asumimos el valor de t= 62 cm= m
4) calculo de la capacidad efectiva de carga "qe"
qe= qa-γsuelo*hf-γconcreto*t asumido
qe= ton/m2
5) determinacion del area de zapata "B"
area=P/A
area=(PD+PL)/qe
area=
B*B=
B= m
B=
1.03
3.50
0.400.40 0.40
0.20 0.20
m m
ee
0.52
20
hf=
1.60
0.1
48 ton-m
75
30
-30
20
10
ton
ton-m
ton-m
m
ton-m
ton-m
cm=
-8
35
210
PD=
PL=
PS=
MD=
ML=
MS=
fc=
fy=
r=
MS=
ML=
PS=
P
ton-m
270 ton-m
kg/cm2=
2.40 ton/m3
B
ton
ton
ton
4200
10
1.50
-35
90
243.75 ton-m
168.75 ton-m
118.5
γconcreto=
qa=
ton-m
81.25 ton-m
43.5 ton-m
-6.25
61.75
-25.75
ton-m
ton-m
ton-m
0.18
243.75
ton-m
ton-m
ton-m
ton-m
15.60 ton-m
58.75
-28.75
61.75
ton
-0.12
48 ton-m
-25.75
0.33
ton
-28.75 ton-m
81.25 ton-m
243.75
270 ton
0.62
0.33
2
16.112
3.20
3.50
10.24 m2
10.24 m2
6) calculo de Las presiones
P/A+MC/I
P/A-MC/I
de las conbinaciones de carga tenemos los mayores valores
m
m
7) verificacion sin factores de mayoracion
qadm= 20
P/A+MC/I
m cm
ton/m2
m
h
h
8) calculo por corte flexion
Area= o qu
qu*Lu= ∅*0.53*√fc*b*d necesario
dnecesario=
calculamos t necesario
t necesario=
t asumido > t necesario
9) verificacion por punzonamiento
d=
m
h1
h2
d util Lu
0.40
0.40
d/2= 0.26
10.67 ton/m2
3.50
3.50
10.67 ton/m2
ton/m2
2.211.29
0.20 0.26 1.29
22.74 ton/m2
h2
26.72 ton/m2
33.41
0.52
22.74
2.21
3.50
0.20
3.50
ton/m210.67
d/2
d/2
0.200.26
h2= 14.36
25.03 ton/m2
22.74
2.47
3.50
h= 16.05 33.41 ton/m2
22.74 ton/m2
1.030.52
hf=
0.40m
52
2.47
3.50
C=
I=
1.75
12.51
81.25
270 ton
1.50
A= 12.25 m2
33.41 ton/m2
ton/m210.67
17.67
10.67 ton/m2
ton/m2
165P= ton
ton-m
3.09669 kg/cm2=
103 cm
48.86 cm
ton-m
NOTA
P=
M=
OK
M= 30
58.86 cm
62 cm 58.86 cm
cumple
30.9669 ton/m2
0.92
0.92
h1
22.74
1.29
3.50
h1= 8.38
19.05 ton/m2
0.20
10) verificacion por corte flexion
qu*A= ∅*1.10*√fc*b0*d necesario
area de zapata=
area punzonada=
qu*A= o
bo= o
d necesario=
t necesario=
t asumido > t necesario
h
momento "M"
M=
11) calculo de As principal
As= (Mu)/(∅*fy(d util-a/2)) asumomos "a"
cm
As=
a= As*fy/0.85*fc*b
a=
por lo tanto AS=
12) calculo de As minimo
Asmin= 0.80*√fc*b*d util/fy
Asmin=
Asmin < As
trabajamos con el As principal
As=
∅= Area=
NV=
Espasiamiento=
∅ @
momento "M"
M=
5/8 1.98 cm2
10
11 cm
10 5/8 11 cm
14.35 cm2
19.10 cm2
14.35 19.10
ok
19.10 cm2
19.10 cm2
4.49 cm
NOTA
a= 4
12.25
0.85
m2
m2
62 60.41 cmcm
ton 251344.65 kg
50.41
3.68 m2 368 cm
cm
251.34
cumple
0.52 1.03
Lud util
0.40
0.20 0.20
3.50
60.41 cm
1.95ton/m210.67 10.67 ton/m2
h
22.74
1.95
3.50
ton/m2
22.74 ton/m2
h= 12.67
23.34 ton/m2
ton/m223.34
23.34
1.55
0.40
1.55
22.04 ton/m2
26.48 ton/m2
36.10 ton-m
33.41
10.07
13) calculo de acero transversal Ast
Ast= (Mu)/(∅*fy(d util-a/2))
asumimos a=
Ast=
14) calculo de As minimo
Asmin= 0.80*√fc*b*d util/fy
Asmin=
Asmin > Ast
trabajamos con el mayor valor
Asmin=
∅= Area=
NV= varillas
Espaciamiento=
∅ @
12
9 cm
12 1/2 9 cm
14.35 cm2
14.35 13.87
14.35 cm2
1/2 1.27 cm2
3
13.87 cm2
a= 3.26 cm

Zapatas aisladas con exentricidad variable con sismo

  • 1.
    HECHO POR: SANDRODANIEL VENERO SONCCO M M Diseño de zapatas aisladas con excentricidad variable (para una zapata cuadrada) Datos ZAPATA= 40 x 40 o x cm cm kg/cm2 kg/cm2 m γsuelo= ton/m3 m 2 ton/m2 solucion 1) combinacion de cargas para la carga "P" 1.50PD+1.80PL= sin sismo 1.25(PD+PL+PS)= con sismo 1.25(PD+PL-PS)= con sismo 0.90PD+1.25PS= con sismo 0.90PD-1.25PS= con sismo para momento positivo "M+" 1.50MD+1.80ML= sin sismo 1.25(MD+ML+MS)= con sismo 1.25(MD+ML-MS)= con sismo 0.90MD+1.25MS= con sismo 0.90MD-1.25MS= con sismo para momento negativo "M-" 1.50MD-1.80ML= sin sismo 1.25(MD-ML+MS)= con sismo 1.25(MD-ML-MS)= con sismo 0.90MD+1.25MS= con sismo 0.90MD-1.25MS= con sismo 2) calculo de la excentricidad "e" excentricidad con sismo positivo "+" e=M/P seleccionamos valor mayor de "M+" con sismo y "P" maximo con sismo M+= P= e= m excentricidad con sismo negativo "-" e=M/P seleccionamos valor mayor de "M-" con sismo y "P" maximo con sismo M-= P= e= m excentricidad sin sismo e=M/P M= P= e= m seleccionamos el maor valor de las excentricidades e M= m por formula Bmin=6*e Bmin= m 3) asumimos el valor de t= 62 cm= m 4) calculo de la capacidad efectiva de carga "qe" qe= qa-γsuelo*hf-γconcreto*t asumido qe= ton/m2 5) determinacion del area de zapata "B" area=P/A area=(PD+PL)/qe area= B*B= B= m B= 1.03 3.50 0.400.40 0.40 0.20 0.20 m m ee 0.52 20 hf= 1.60 0.1 48 ton-m 75 30 -30 20 10 ton ton-m ton-m m ton-m ton-m cm= -8 35 210 PD= PL= PS= MD= ML= MS= fc= fy= r= MS= ML= PS= P ton-m 270 ton-m kg/cm2= 2.40 ton/m3 B ton ton ton 4200 10 1.50 -35 90 243.75 ton-m 168.75 ton-m 118.5 γconcreto= qa= ton-m 81.25 ton-m 43.5 ton-m -6.25 61.75 -25.75 ton-m ton-m ton-m 0.18 243.75 ton-m ton-m ton-m ton-m 15.60 ton-m 58.75 -28.75 61.75 ton -0.12 48 ton-m -25.75 0.33 ton -28.75 ton-m 81.25 ton-m 243.75 270 ton 0.62 0.33 2 16.112 3.20 3.50 10.24 m2 10.24 m2
  • 2.
    6) calculo deLas presiones P/A+MC/I P/A-MC/I de las conbinaciones de carga tenemos los mayores valores m m 7) verificacion sin factores de mayoracion qadm= 20 P/A+MC/I m cm ton/m2 m h h 8) calculo por corte flexion Area= o qu qu*Lu= ∅*0.53*√fc*b*d necesario dnecesario= calculamos t necesario t necesario= t asumido > t necesario 9) verificacion por punzonamiento d= m h1 h2 d util Lu 0.40 0.40 d/2= 0.26 10.67 ton/m2 3.50 3.50 10.67 ton/m2 ton/m2 2.211.29 0.20 0.26 1.29 22.74 ton/m2 h2 26.72 ton/m2 33.41 0.52 22.74 2.21 3.50 0.20 3.50 ton/m210.67 d/2 d/2 0.200.26 h2= 14.36 25.03 ton/m2 22.74 2.47 3.50 h= 16.05 33.41 ton/m2 22.74 ton/m2 1.030.52 hf= 0.40m 52 2.47 3.50 C= I= 1.75 12.51 81.25 270 ton 1.50 A= 12.25 m2 33.41 ton/m2 ton/m210.67 17.67 10.67 ton/m2 ton/m2 165P= ton ton-m 3.09669 kg/cm2= 103 cm 48.86 cm ton-m NOTA P= M= OK M= 30 58.86 cm 62 cm 58.86 cm cumple 30.9669 ton/m2 0.92 0.92 h1 22.74 1.29 3.50 h1= 8.38 19.05 ton/m2 0.20
  • 3.
    10) verificacion porcorte flexion qu*A= ∅*1.10*√fc*b0*d necesario area de zapata= area punzonada= qu*A= o bo= o d necesario= t necesario= t asumido > t necesario h momento "M" M= 11) calculo de As principal As= (Mu)/(∅*fy(d util-a/2)) asumomos "a" cm As= a= As*fy/0.85*fc*b a= por lo tanto AS= 12) calculo de As minimo Asmin= 0.80*√fc*b*d util/fy Asmin= Asmin < As trabajamos con el As principal As= ∅= Area= NV= Espasiamiento= ∅ @ momento "M" M= 5/8 1.98 cm2 10 11 cm 10 5/8 11 cm 14.35 cm2 19.10 cm2 14.35 19.10 ok 19.10 cm2 19.10 cm2 4.49 cm NOTA a= 4 12.25 0.85 m2 m2 62 60.41 cmcm ton 251344.65 kg 50.41 3.68 m2 368 cm cm 251.34 cumple 0.52 1.03 Lud util 0.40 0.20 0.20 3.50 60.41 cm 1.95ton/m210.67 10.67 ton/m2 h 22.74 1.95 3.50 ton/m2 22.74 ton/m2 h= 12.67 23.34 ton/m2 ton/m223.34 23.34 1.55 0.40 1.55 22.04 ton/m2 26.48 ton/m2 36.10 ton-m 33.41 10.07
  • 4.
    13) calculo deacero transversal Ast Ast= (Mu)/(∅*fy(d util-a/2)) asumimos a= Ast= 14) calculo de As minimo Asmin= 0.80*√fc*b*d util/fy Asmin= Asmin > Ast trabajamos con el mayor valor Asmin= ∅= Area= NV= varillas Espaciamiento= ∅ @ 12 9 cm 12 1/2 9 cm 14.35 cm2 14.35 13.87 14.35 cm2 1/2 1.27 cm2 3 13.87 cm2 a= 3.26 cm