BERTUNE FATGALA, M. LUCRECIA [ 3301 - 0017 ]
| Ampliación Biblioteca UM |
UM .11
Índice
1- Localización
2- Análisis del sitio
3- Propuesta urbana
4- Análisis manzana intervenida
5- Análisis Biblioteca Universidad de Morón
6- Investigación: la tecnología y su impacto en las bibliotecas
7- Propuesta de Ampliación: Mediateca Universidad de Morón
8- Propuesta de mobiliario
9- Planos proyecto
| Proyecto Final Integrador |
DR. L. N. ALEM
Pte. Domingo F. SARMIENTO
IntendenteGRANT
INDEPENDENCIA
PLAN DE DESARROLLO ESTRATÉGICO _ MORÓN
ANÁLISIS INTERNO DEL SITIO
debilidades
El lado norte de Morón se presenta como un área más cerrada en
su trama urbana, que no posee espacios verdes de uso público
alguno.
Se observa la carencia de espacios que articulen las importantes
actividades que se desarrollan en la zona.
Existe un movimiento peatonal permanente –durante los días de
semana– principalmente entre la estación ferroviaria y las 30 paradas
de transporte público que existen en el entorno, que se superpone al
flujo peatonal de estudiantes y profesores que concurren a las
distintas sedes de la UM.
Todo ese movimiento se desarrolla en un ámbito reducido, con
veredas estrechas, sin lugares abiertos que fomenten la permanencia.
La Escuela Municipal de Danzas “José Neglia” es una institución
municipal que funciona en un ámbito poco propicio para el desarrollo
de la actividad, y que con el crecimiento de la matricula de alumnos
que ha tenido a lo largo de estos años el edificio le resulta reducido.
El Cuartel de Bomberos que hoy ocupa la parte central de la misma
manzana está localizado en el corazón de un área central, con los
riesgos que ello trae en cuanto a las salidas de las autobombas y
equipos de emergencia.
El Dispensario de Vías Respiratorias es un equipamiento sanitario
provincial que si bien se encuentra localizado en un lugar estratégico
respecto a su uso, su situación edilicia no resulta adecuada y
físicamente le impide generar ampliación alguna.
PLAN DE DESARROLLO ESTRATÉGICO _ MORÓN
propuesta de traslado
La realización de la Escuela Municipal de Danzas “José Neglia” y del
dispensario, en nuevos edificios localizados en la manzana [1] que rodean las
calles Cueto, Independencia, Machado y Cabildo.
El traslado del cuartel hacia un lugar con mayor intercomunicación y facilidad
de salida con una vía de circulación rápida y segura sobre la Avenida Yrigoyen,
en un predio donde hoy funciona el abasto Municipal.
MORÓN NORTE
PROPUESTAS DE INTERVENCIÓN URBANO-AMBIENTAL
1
espacio público
Se propone Intervenir en el espacio público generando
“espacios de permanencia” y de desarrollo de actividades de
esparcimiento al aire libre; que promuevan el encuentro
socio-cultural durante todos los días de la semana.
Fomentar así, el sentido de pertenencia y de identidad
cultural, a través de la apropiación del mismo.
ESTRUCTURACIÓN URBANO – ARQUITECTÓNICA
UM
UM
UM
UM
UM
DR. L. N. ALEM
Pte. Domingo F. SARMIENTO
IntendenteGRANT
INDEPENDENCIA
LARRALDE
MAESTRA CUETO
MACHADO
MENDOZA
SALTA
CABILDO
Plaza Maestra Cueto
UM
14 m 14 m 14 m 14 m
14 m 14 m
14 m
14 m 14 m 14 m 14 m
Estructura de tejido
pb + 3 pisos
Se propone
establecer una unidad
funcional entre las
distintas sedes de la
UM, mediante un
sistema de
circulaciones elevadas.
Generar entonces,
una dinámica
circulatoria de puentes
y rampas en relación
con paisajes interiores o
exteriores, que enhebre
y de continuidad
funcional y espacial a
situaciones cambiantes.
Como así también,
buscar unidad en la
imagen del conjunto
edilicio.
BERTUNE FATGALA, M. LUCRECIA [ 3301 - 0017 ]
| m 6 7 |
[m67]
[m67]Fachada MENDOZA
[m67] Fachada Coronel MACHADO
[m67] Fachada Dr. Leandro N: ALEM
[m67]Fachada INTENDENTE GRANT
| biblioteca central Universidad de Morón |
Oscar A. Borrachia, Alejandro H. Borrachia, Arqs.
Fuente: Revista Summa +72 : 2005 abril
[ biblioteca central Universidad de Morón ]
Proyecto: Oscar A. Borrachia, Alejandro H. Borrachia, Arqs.
Foto: Desde el acceso hacia el interior
[ biblioteca central Universidad de Morón ]
Proyecto: Oscar A. Borrachia, Alejandro H. Borrachia, Arqs.
Fuente: Revista Summa +72 : 2005 abril
[ biblioteca central Universidad de Morón ]
Proyecto: Oscar A. Borrachia, Alejandro H. Borrachia, Arqs.
Fuente: Revista Summa +72 : 2005 abril
1.acceso,rampa,escaleras
2.áreaadministrativa
3.mostrador
4.terminalesinteractivas
5.áreadelectura
6.salasilenciosa
7.sectordelibros
8.sanitarios
[ biblioteca central Universidad de Morón ]
Proyecto: Oscar A. Borrachia, Alejandro H. Borrachia, Arqs.
“La elección de los materiales, la cubierta y estructura metálica, las losas pretensadas alivianadas
y los sistemas de panelería en seco utilizados en la obra permitieron montar el techo antes de
demoler la estructura existente y completar gran parte de la obra con la biblioteca vieja aún en
funcionamiento.”
Memoria de los Autores
“El edificio expresa su verdad constructiva mostrándolo todo: tornillos, pernos, estructuras principales y
secundarias, losetas de hormigón, montantes de las placas cementicias que cubren las medianeras, instalación
eléctrica y de sistemas, tubos de iluminación, canaletas y desagües pluviales, etc…
Entender a la arquitectura como una manifiesto de transparencia y lógica constructiva.”
Memoria de los Autores
[ biblioteca central Universidad de Morón ]
Proyecto: Oscar A. Borrachia, Alejandro H. Borrachia, Arqs.
“Como premisa de diseño ningún material se toca con otro, todo posee su nexo, su
anclaje, como un mecano: los entrepisos se separan de las columnas, de los muros, los
muros del techo y de las medianeras, de las estanterías que cuelgan, que no llegan al piso
ni se toman de los costados, como el piso flotante de madera, se separan delas columnas
y de los tabiques...” Memoria de los Autores
[ biblioteca central Universidad de Morón ]
Proyecto: Oscar A. Borrachia, Alejandro H. Borrachia, Arqs.
[ biblioteca central Universidad de Morón ]
Foto: Primer entrepiso.
“Todo el equipamiento que posee la biblioteca fue realizado a medida para el edificio, y
construido por el personal que integra el departamento de Planificación y Realización Edilicia
de la Universidad de Morón...”
Memoria de los Autores
Proyecto: Oscar A. Borrachia, Alejandro H. Borrachia, Arqs.
[ biblioteca central Universidad de Morón ]
Proyecto: Oscar A. Borrachia, Alejandro H. Borrachia, Arqs.
En la actualidad la biblioteca cuenta con un acervo bibliográfico de 59.000 volúmenes.
Se dispone de 4 PC para la consulta de bases de batos: Full Text de PROQUEST, Lexis-Nexis, Tarifario On Line, Boletín Oficial,
Biblioteca Electrónica de Ciencia y Tecnología Digital SECyT, Código Alimentario Argentino, IRAM y Trivia.
Imagen superior sala de lectura silenciosa
La Biblioteca Mariano Moreno es de carácter semipúblico: los usuarios externos pueden acceder al
acervo bibliográfico, a las salas de lectura, contra entrega del documento personal.
[ biblioteca virtual Universidad de Morón ]
En la página de la universidad www.unimoron.edu.ar se encuentra el catálogo on line, información general y biblioteca virtual, que permite acceder a
sitios referenciales de interés.
Propuesta de Ampliación Biblioteca UM
| mediateca um |
BERTUNE FATGALA, M. LUCRECIA [ 3301 - 0017 ]
Los avances tecnológicos
Estamos en la sociedad del conocimiento y de grandes avances, nuevos inventos y descubrimientos progresarán exponencialmente…
Los avances en las tecnologías de la información y de la comunicación han revolucionado a la sociedad de una manera sorprendente, en los
distintos ámbitos del quehacer cotidiano del ser humano…
“Los desarrollos tecnológicos han influido en el comportamiento de la información, en el volumen de producción, en el tiempo de proceso, en los
medios de transmisión de la misma y, en consecuencia, en las posibilidades de acceder a mayor cantidad de información en el menor tiempo posible;
sin importar el punto geográfico de ubicación”. (Morales Campos, Estela. “la Información en su ir y venir”)
La información procesada vuelve a generar información en cuestión de segundos….
¿De qué manera los avances tecnológicos han afectado a las bibliotecas?
Como resultado de los avances de la telemática (fusión de la telecomunicación y de la informática) la biblioteca adquiere nuevos tipos de materiales
y necesita de herramientas adecuadas para poder reproducirlos.
Requieren de espacios especiales, complementarios a la actividad bibliotecaria, que permitan brindar un servicio integral. Este nuevo espacio se
denominado MEDIATECA debido a sus características y a los servicios que puede otorgar.
¿Qué diferencia hay entre una biblioteca y una mediateca (o biblioteca de medios)?
Biblioteca
Se entiende por biblioteca cualquier conjunto organizado de
libros, publicaciones periódicas, grabados, mapas,
documentación gráfica y otros materiales bibliográficos,
manuscritos o impresos.
Tiene como finalidad permitir el acceso a la información para su
lectura en sala o mediante préstamo temporal.
Mediateca
El término mediateca desde sus orígenes fue concebido como
un espacio dentro de la misma biblioteca, donde se ofrecía a los
usuarios acceso a la información digital y a Internet.
La mediateca es un centro de consulta de información digital, de
exploración de medios de comunicación y de experimentación
de nuevas formas expresión ligadas con la informática.
Resulta imposible pensar que hoy día un estudiante no recurra a la
información digital para elaborar un trabajo, lo mismo podría decirse de la
mayoría de los investigadores.
Discos compactos (CD-ROM y DVD), microfichas, filmaciones
(videos, microfilm) y unidades de almacenamiento externas;
permiten contener grandes cantidades de información, incluso
ésta puede transitar por la mediateca a través de bases de
datos en línea (OPAC), sin estar alojada en su interior
físicamente.
Sólo se requieren: las terminales de consulta de los usuarios y
el área de máquinas de los servidores.
Catálogo en línea u OPAC (Online public access catalog) es un catálogo automatizado de acceso público en línea de los materiales de una biblioteca. Generalmente, tanto el
personal de la biblioteca como el público tienen acceso a él en varias terminales dentro de la biblioteca o desde el hogar vía Internet
La Primer Mediateca
El primer edificio construido bajo el nombre de Mediateca es el Carré d’ Art en la ciudad de Nîmes (Francia), erigido entre 1988 y
1993. Esta mediateca no se despojó en su totalidad de la biblioteca ya que incorporó un acervo impreso, salas de lectura, y un
museo de artes plásticas, convirtiéndose así en un edificio hibrido.
El Carré d’ Art se localiza en el tejido urbano antiguo del foro de la ciudad, justo a un costado del templo romano conocido como la
Maison Carre, edificado durante el siglo III d. C. La mediateca es una construcción tecnológica de forma cúbica soportada sobre un
robusto basamento de piedra blanca. La fachada principal, dispuesta hacia un costado del templo romano, está conformada por un
pórtico de doble altura con delgados pilares de acero que repiten el ritmo de las columnas del edificio histórico.
La transformación de los mecanismos de resguardo y de los medios de transmisión del conocimiento, con la aplicación de nuevas
herramientas pedagógicas apoyadas en la información digitalizada, inciden indudablemente en la definición de las peculiaridades
de este tipo de edificio.
Vista de la mediateca al fondo, en primer plano el templo romano de la Maisson
Carre
Mediateca de Nîmes, perspectiva exterior
Propuesta de ampliación Biblioteca Universidad de Morón: Mediateca UM:
Intenciones de proyecto
Lugar de encuentro de la
comunidad educativa para
intercambiar información y
difundir ideas.
Una infraestructura física y virtual
que une las nuevas tecnologías
con los recursos tradicionales de
la información.
Como respuesta al cambio en
las necesidades de los
usuarios: el acceso a los
documentos online.
Garantizar el acceso a la
información en un soporte
distinto del papel.
Facilitar a los usuarios los
medios adecuados para el
tratamiento de la información y
su transmisión a distancia.
•Fortalecer el uso del campus
virtual: Espacio telemático de
apoyo a la docencia tradicional,
destinado a la distribución de
documentación
complementaria, de
presentación de trabajos, (…) o
para estudiantes que realizan
sus estudios fuera del aula
(tutorías en red).
Foros de discusión
electrónicos para el
desarrollo de trabajos en
grupo con o sin necesidad
de presencia física.
Como valor añadido, contará con
personal especializado para el
asesoramiento y la formación de
sus usuarios en el manejo de las
herramientas de acceso y
tratamiento de la información:
Consulta a bases de datos,
edición y tratamiento de textos,
imagen, sonido y videos…
(tutorial)
Los usuarios del servicio son
los miembros de la
Comunidad Universitaria:
alumnos, docentes,
investigadores…
MEDIATECA UM
Trabajo colaborativo con
otras Bibliotecas
Esquema de funcionamiento de una mediateca
base de
datos
servidor
usuario 1
usuario 2
usuario 3
RED INTERNA
servidor
RED EXTERNA
base de
datos
RED INTERNA
usuario 1
usuario 2
usuario 3
MEDIATECA
1
MEDIATECA
2
Red – grupo de
ordenadores
conectados entre
si que permite que
la información sea
intercambiada
entre ellos.
Red – grupo de
ordenadores
conectados entre
si que permite que
la información sea
intercambiada
entre ellos.
1
1 Nodo – cualquier
elemento que esté
conectado a la red:
ordenador, router,
impresora…
2
3
Segmento –Es
una porción de la
red que está
separada por un
switch o un router,
de otras partes de
la red.
3
2
Switch de 24/48/64
puertos –
Dimensiones:
(440x180x44 mm)
4
4
RED
Red LAN – grupo de ordenadores que están en la misma localización física.
Consiste en varios elementos fundamentales: Los nodos (ordenadores), un medio de conexión (con cables o inalámbrica), y un equipamiento de red
especializado como pueden ser los routers.
Los switches son otra pieza fundamental de muchas redes porque hacen que la transferencia de datos vaya mucho más rápida.
Un switch permite a diferentes nodos (un punto de conexión de la red, normalmente un ordenador o servidor), comunicar directamente con otro
elemento en la red de una manera eficiente, rápida y transparente para los usuarios. Hay muchos tipos de switches y redes.
Switch
servicios
•TERMINALES DE CONSULTA EXCLUSIVA A BASES DE DATOS Online: Full Text de PROQUEST, Lexis-Nexis, Tarifario
On Line, Boletín Oficial, Biblioteca Electrónica de Ciencia y Tecnología Digital SECyT, Código Alimentario Argentino,
IRAM y Trivia.
•TERMINALES DE CONSULTA A LOS CATÁLOGOS Online.
•CONSULTAS de CD, DVD, libros electrónicos.
•ACCESO A INTERNET INALÁMBRICA.
•SALAS DE TRABAJOS EN RED USUARIOS CON NOTEBOOK.
•SALAS DE TRABAJO EN RED EQUIPADAS.
•SALA DE REUNIONES Y VIDEOCONFERENCIA. Individuales y/o colectivas. Mediante Web-Cam o a través de varias cámaras
monitorizadas.
•SALAS DE REPRODUCCIÓN MULTIMEDIAS: Videos (VHS), CD, DVD y canales nacionales e internacionales de TV, audición de
Casetes, Cd-Audio, DVD-Audio, MiniDisc, entre otros.
•EDICIÓN de video.
•DIGITALIZACIÓN de información, IMPRESIÓN y FOTOCOPIADO.
•POSIBLE EQUIPAMIENTO INFORMÁTICO: puestos equipados con computadoras “TouchSmart All-in-One” (con tan solo tocar la
pantalla, los usuarios podrán navegar por internet, reproducir música, ampliar o ver fotografías, entre otras.)
Propuesta de ampliación Biblioteca Universidad de Morón: Mediateca UM
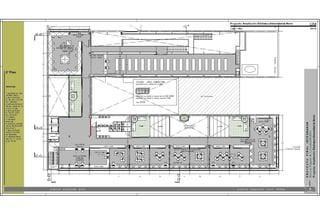
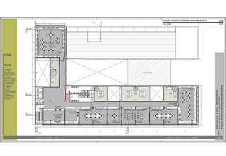
PROGRAMA FUNCIONAL
•PLANTA BAJA:
1-atrio de difusión (con equipamiento)
2-hall acceso ppal.
3-sala de lectura parlante
4-sala de lectura silenciosa
5-patios de lectura y exposición
6-sector administ. (acceso calle Mendoza)
• PRIMER NIVEL:
1-depósito de libros
2-sala de producción de copias impresas y digitales
3-sector administrativo
• SEGUNDO NIVEL:
1- depósito de libros
2- sala de trabajo en red para usuarios con notebook
3- (7) salas de trabajo en red equipadas con PC
4- sala de trabajo en red con tutor y equipamiento multimedia.
5- (2) patios de expansión
6- sala de trabajo personal del área de mediateca.
7- sanitarios
Propuesta de ampliación Biblioteca Universidad de Morón: Mediateca UM
• TERCER NIVEL:
1- (2) salas para reuniones y tele conferencias.
2- sala de proyección audiovisual y multimedia.
3- sala de trabajo en red con equipamiento multimedia.
4- sala de trabajo en red con tutor y equipamiento multimedia.
5- (3) patios de expansión
6- sala de trabajo del personal del área de mediateca
7- sanitarios
• CUARTO NIVEL:
1- sala de trabajo en red con equipamiento.
2- box de trabajo individual combinables.
3- (2) patios de expansión
4- sala de trabajo del personal del área de mediateca
5- sanitarios
• QUINTO NIVEL - terraza
1- cafetería
2- terrazas de expansión: lectura y exposición
01062011 pfi bertune
01062011 pfi bertune
01062011 pfi bertune
01062011 pfi bertune
01062011 pfi bertune
01062011 pfi bertune
01062011 pfi bertune
01062011 pfi bertune
01062011 pfi bertune
01062011 pfi bertune
01062011 pfi bertune
01062011 pfi bertune
01062011 pfi bertune
01062011 pfi bertune
01062011 pfi bertune
01062011 pfi bertune
01062011 pfi bertune
01062011 pfi bertune
01062011 pfi bertune
01062011 pfi bertune
01062011 pfi bertune
01062011 pfi bertune
01062011 pfi bertune
01062011 pfi bertune
01062011 pfi bertune
01062011 pfi bertune
01062011 pfi bertune
01062011 pfi bertune
01062011 pfi bertune
01062011 pfi bertune

01062011 pfi bertune

  • 1.
    BERTUNE FATGALA, M.LUCRECIA [ 3301 - 0017 ] | Ampliación Biblioteca UM | UM .11 Índice 1- Localización 2- Análisis del sitio 3- Propuesta urbana 4- Análisis manzana intervenida 5- Análisis Biblioteca Universidad de Morón 6- Investigación: la tecnología y su impacto en las bibliotecas 7- Propuesta de Ampliación: Mediateca Universidad de Morón 8- Propuesta de mobiliario 9- Planos proyecto | Proyecto Final Integrador |
  • 3.
    DR. L. N.ALEM Pte. Domingo F. SARMIENTO IntendenteGRANT INDEPENDENCIA
  • 4.
    PLAN DE DESARROLLOESTRATÉGICO _ MORÓN ANÁLISIS INTERNO DEL SITIO debilidades El lado norte de Morón se presenta como un área más cerrada en su trama urbana, que no posee espacios verdes de uso público alguno. Se observa la carencia de espacios que articulen las importantes actividades que se desarrollan en la zona. Existe un movimiento peatonal permanente –durante los días de semana– principalmente entre la estación ferroviaria y las 30 paradas de transporte público que existen en el entorno, que se superpone al flujo peatonal de estudiantes y profesores que concurren a las distintas sedes de la UM. Todo ese movimiento se desarrolla en un ámbito reducido, con veredas estrechas, sin lugares abiertos que fomenten la permanencia. La Escuela Municipal de Danzas “José Neglia” es una institución municipal que funciona en un ámbito poco propicio para el desarrollo de la actividad, y que con el crecimiento de la matricula de alumnos que ha tenido a lo largo de estos años el edificio le resulta reducido. El Cuartel de Bomberos que hoy ocupa la parte central de la misma manzana está localizado en el corazón de un área central, con los riesgos que ello trae en cuanto a las salidas de las autobombas y equipos de emergencia. El Dispensario de Vías Respiratorias es un equipamiento sanitario provincial que si bien se encuentra localizado en un lugar estratégico respecto a su uso, su situación edilicia no resulta adecuada y físicamente le impide generar ampliación alguna.
  • 5.
    PLAN DE DESARROLLOESTRATÉGICO _ MORÓN propuesta de traslado La realización de la Escuela Municipal de Danzas “José Neglia” y del dispensario, en nuevos edificios localizados en la manzana [1] que rodean las calles Cueto, Independencia, Machado y Cabildo. El traslado del cuartel hacia un lugar con mayor intercomunicación y facilidad de salida con una vía de circulación rápida y segura sobre la Avenida Yrigoyen, en un predio donde hoy funciona el abasto Municipal. MORÓN NORTE PROPUESTAS DE INTERVENCIÓN URBANO-AMBIENTAL 1 espacio público Se propone Intervenir en el espacio público generando “espacios de permanencia” y de desarrollo de actividades de esparcimiento al aire libre; que promuevan el encuentro socio-cultural durante todos los días de la semana. Fomentar así, el sentido de pertenencia y de identidad cultural, a través de la apropiación del mismo.
  • 7.
    ESTRUCTURACIÓN URBANO –ARQUITECTÓNICA UM UM UM UM UM DR. L. N. ALEM Pte. Domingo F. SARMIENTO IntendenteGRANT INDEPENDENCIA LARRALDE MAESTRA CUETO MACHADO MENDOZA SALTA CABILDO Plaza Maestra Cueto UM
  • 8.
    14 m 14m 14 m 14 m 14 m 14 m 14 m 14 m 14 m 14 m 14 m Estructura de tejido pb + 3 pisos
  • 12.
    Se propone establecer unaunidad funcional entre las distintas sedes de la UM, mediante un sistema de circulaciones elevadas. Generar entonces, una dinámica circulatoria de puentes y rampas en relación con paisajes interiores o exteriores, que enhebre y de continuidad funcional y espacial a situaciones cambiantes. Como así también, buscar unidad en la imagen del conjunto edilicio.
  • 13.
    BERTUNE FATGALA, M.LUCRECIA [ 3301 - 0017 ] | m 6 7 |
  • 14.
  • 16.
  • 17.
    [m67] Fachada CoronelMACHADO [m67] Fachada Dr. Leandro N: ALEM
  • 18.
  • 19.
    | biblioteca centralUniversidad de Morón | Oscar A. Borrachia, Alejandro H. Borrachia, Arqs. Fuente: Revista Summa +72 : 2005 abril
  • 20.
    [ biblioteca centralUniversidad de Morón ] Proyecto: Oscar A. Borrachia, Alejandro H. Borrachia, Arqs. Foto: Desde el acceso hacia el interior
  • 21.
    [ biblioteca centralUniversidad de Morón ] Proyecto: Oscar A. Borrachia, Alejandro H. Borrachia, Arqs. Fuente: Revista Summa +72 : 2005 abril
  • 22.
    [ biblioteca centralUniversidad de Morón ] Proyecto: Oscar A. Borrachia, Alejandro H. Borrachia, Arqs. Fuente: Revista Summa +72 : 2005 abril 1.acceso,rampa,escaleras 2.áreaadministrativa 3.mostrador 4.terminalesinteractivas 5.áreadelectura 6.salasilenciosa 7.sectordelibros 8.sanitarios
  • 23.
    [ biblioteca centralUniversidad de Morón ] Proyecto: Oscar A. Borrachia, Alejandro H. Borrachia, Arqs. “La elección de los materiales, la cubierta y estructura metálica, las losas pretensadas alivianadas y los sistemas de panelería en seco utilizados en la obra permitieron montar el techo antes de demoler la estructura existente y completar gran parte de la obra con la biblioteca vieja aún en funcionamiento.” Memoria de los Autores “El edificio expresa su verdad constructiva mostrándolo todo: tornillos, pernos, estructuras principales y secundarias, losetas de hormigón, montantes de las placas cementicias que cubren las medianeras, instalación eléctrica y de sistemas, tubos de iluminación, canaletas y desagües pluviales, etc… Entender a la arquitectura como una manifiesto de transparencia y lógica constructiva.” Memoria de los Autores
  • 24.
    [ biblioteca centralUniversidad de Morón ] Proyecto: Oscar A. Borrachia, Alejandro H. Borrachia, Arqs. “Como premisa de diseño ningún material se toca con otro, todo posee su nexo, su anclaje, como un mecano: los entrepisos se separan de las columnas, de los muros, los muros del techo y de las medianeras, de las estanterías que cuelgan, que no llegan al piso ni se toman de los costados, como el piso flotante de madera, se separan delas columnas y de los tabiques...” Memoria de los Autores
  • 25.
    [ biblioteca centralUniversidad de Morón ] Proyecto: Oscar A. Borrachia, Alejandro H. Borrachia, Arqs.
  • 26.
    [ biblioteca centralUniversidad de Morón ] Foto: Primer entrepiso. “Todo el equipamiento que posee la biblioteca fue realizado a medida para el edificio, y construido por el personal que integra el departamento de Planificación y Realización Edilicia de la Universidad de Morón...” Memoria de los Autores Proyecto: Oscar A. Borrachia, Alejandro H. Borrachia, Arqs.
  • 27.
    [ biblioteca centralUniversidad de Morón ] Proyecto: Oscar A. Borrachia, Alejandro H. Borrachia, Arqs. En la actualidad la biblioteca cuenta con un acervo bibliográfico de 59.000 volúmenes. Se dispone de 4 PC para la consulta de bases de batos: Full Text de PROQUEST, Lexis-Nexis, Tarifario On Line, Boletín Oficial, Biblioteca Electrónica de Ciencia y Tecnología Digital SECyT, Código Alimentario Argentino, IRAM y Trivia. Imagen superior sala de lectura silenciosa La Biblioteca Mariano Moreno es de carácter semipúblico: los usuarios externos pueden acceder al acervo bibliográfico, a las salas de lectura, contra entrega del documento personal.
  • 28.
    [ biblioteca virtualUniversidad de Morón ] En la página de la universidad www.unimoron.edu.ar se encuentra el catálogo on line, información general y biblioteca virtual, que permite acceder a sitios referenciales de interés.
  • 29.
    Propuesta de AmpliaciónBiblioteca UM | mediateca um | BERTUNE FATGALA, M. LUCRECIA [ 3301 - 0017 ]
  • 30.
    Los avances tecnológicos Estamosen la sociedad del conocimiento y de grandes avances, nuevos inventos y descubrimientos progresarán exponencialmente… Los avances en las tecnologías de la información y de la comunicación han revolucionado a la sociedad de una manera sorprendente, en los distintos ámbitos del quehacer cotidiano del ser humano… “Los desarrollos tecnológicos han influido en el comportamiento de la información, en el volumen de producción, en el tiempo de proceso, en los medios de transmisión de la misma y, en consecuencia, en las posibilidades de acceder a mayor cantidad de información en el menor tiempo posible; sin importar el punto geográfico de ubicación”. (Morales Campos, Estela. “la Información en su ir y venir”) La información procesada vuelve a generar información en cuestión de segundos…. ¿De qué manera los avances tecnológicos han afectado a las bibliotecas? Como resultado de los avances de la telemática (fusión de la telecomunicación y de la informática) la biblioteca adquiere nuevos tipos de materiales y necesita de herramientas adecuadas para poder reproducirlos. Requieren de espacios especiales, complementarios a la actividad bibliotecaria, que permitan brindar un servicio integral. Este nuevo espacio se denominado MEDIATECA debido a sus características y a los servicios que puede otorgar.
  • 31.
    ¿Qué diferencia hayentre una biblioteca y una mediateca (o biblioteca de medios)? Biblioteca Se entiende por biblioteca cualquier conjunto organizado de libros, publicaciones periódicas, grabados, mapas, documentación gráfica y otros materiales bibliográficos, manuscritos o impresos. Tiene como finalidad permitir el acceso a la información para su lectura en sala o mediante préstamo temporal. Mediateca El término mediateca desde sus orígenes fue concebido como un espacio dentro de la misma biblioteca, donde se ofrecía a los usuarios acceso a la información digital y a Internet. La mediateca es un centro de consulta de información digital, de exploración de medios de comunicación y de experimentación de nuevas formas expresión ligadas con la informática. Resulta imposible pensar que hoy día un estudiante no recurra a la información digital para elaborar un trabajo, lo mismo podría decirse de la mayoría de los investigadores. Discos compactos (CD-ROM y DVD), microfichas, filmaciones (videos, microfilm) y unidades de almacenamiento externas; permiten contener grandes cantidades de información, incluso ésta puede transitar por la mediateca a través de bases de datos en línea (OPAC), sin estar alojada en su interior físicamente. Sólo se requieren: las terminales de consulta de los usuarios y el área de máquinas de los servidores. Catálogo en línea u OPAC (Online public access catalog) es un catálogo automatizado de acceso público en línea de los materiales de una biblioteca. Generalmente, tanto el personal de la biblioteca como el público tienen acceso a él en varias terminales dentro de la biblioteca o desde el hogar vía Internet
  • 32.
    La Primer Mediateca Elprimer edificio construido bajo el nombre de Mediateca es el Carré d’ Art en la ciudad de Nîmes (Francia), erigido entre 1988 y 1993. Esta mediateca no se despojó en su totalidad de la biblioteca ya que incorporó un acervo impreso, salas de lectura, y un museo de artes plásticas, convirtiéndose así en un edificio hibrido. El Carré d’ Art se localiza en el tejido urbano antiguo del foro de la ciudad, justo a un costado del templo romano conocido como la Maison Carre, edificado durante el siglo III d. C. La mediateca es una construcción tecnológica de forma cúbica soportada sobre un robusto basamento de piedra blanca. La fachada principal, dispuesta hacia un costado del templo romano, está conformada por un pórtico de doble altura con delgados pilares de acero que repiten el ritmo de las columnas del edificio histórico. La transformación de los mecanismos de resguardo y de los medios de transmisión del conocimiento, con la aplicación de nuevas herramientas pedagógicas apoyadas en la información digitalizada, inciden indudablemente en la definición de las peculiaridades de este tipo de edificio. Vista de la mediateca al fondo, en primer plano el templo romano de la Maisson Carre Mediateca de Nîmes, perspectiva exterior
  • 33.
    Propuesta de ampliaciónBiblioteca Universidad de Morón: Mediateca UM: Intenciones de proyecto Lugar de encuentro de la comunidad educativa para intercambiar información y difundir ideas. Una infraestructura física y virtual que une las nuevas tecnologías con los recursos tradicionales de la información. Como respuesta al cambio en las necesidades de los usuarios: el acceso a los documentos online. Garantizar el acceso a la información en un soporte distinto del papel. Facilitar a los usuarios los medios adecuados para el tratamiento de la información y su transmisión a distancia. •Fortalecer el uso del campus virtual: Espacio telemático de apoyo a la docencia tradicional, destinado a la distribución de documentación complementaria, de presentación de trabajos, (…) o para estudiantes que realizan sus estudios fuera del aula (tutorías en red). Foros de discusión electrónicos para el desarrollo de trabajos en grupo con o sin necesidad de presencia física. Como valor añadido, contará con personal especializado para el asesoramiento y la formación de sus usuarios en el manejo de las herramientas de acceso y tratamiento de la información: Consulta a bases de datos, edición y tratamiento de textos, imagen, sonido y videos… (tutorial) Los usuarios del servicio son los miembros de la Comunidad Universitaria: alumnos, docentes, investigadores… MEDIATECA UM Trabajo colaborativo con otras Bibliotecas
  • 34.
    Esquema de funcionamientode una mediateca base de datos servidor usuario 1 usuario 2 usuario 3 RED INTERNA servidor RED EXTERNA base de datos RED INTERNA usuario 1 usuario 2 usuario 3 MEDIATECA 1 MEDIATECA 2 Red – grupo de ordenadores conectados entre si que permite que la información sea intercambiada entre ellos.
  • 35.
    Red – grupode ordenadores conectados entre si que permite que la información sea intercambiada entre ellos. 1 1 Nodo – cualquier elemento que esté conectado a la red: ordenador, router, impresora… 2 3 Segmento –Es una porción de la red que está separada por un switch o un router, de otras partes de la red. 3 2 Switch de 24/48/64 puertos – Dimensiones: (440x180x44 mm) 4 4 RED Red LAN – grupo de ordenadores que están en la misma localización física. Consiste en varios elementos fundamentales: Los nodos (ordenadores), un medio de conexión (con cables o inalámbrica), y un equipamiento de red especializado como pueden ser los routers.
  • 36.
    Los switches sonotra pieza fundamental de muchas redes porque hacen que la transferencia de datos vaya mucho más rápida. Un switch permite a diferentes nodos (un punto de conexión de la red, normalmente un ordenador o servidor), comunicar directamente con otro elemento en la red de una manera eficiente, rápida y transparente para los usuarios. Hay muchos tipos de switches y redes. Switch
  • 37.
    servicios •TERMINALES DE CONSULTAEXCLUSIVA A BASES DE DATOS Online: Full Text de PROQUEST, Lexis-Nexis, Tarifario On Line, Boletín Oficial, Biblioteca Electrónica de Ciencia y Tecnología Digital SECyT, Código Alimentario Argentino, IRAM y Trivia. •TERMINALES DE CONSULTA A LOS CATÁLOGOS Online. •CONSULTAS de CD, DVD, libros electrónicos. •ACCESO A INTERNET INALÁMBRICA. •SALAS DE TRABAJOS EN RED USUARIOS CON NOTEBOOK. •SALAS DE TRABAJO EN RED EQUIPADAS. •SALA DE REUNIONES Y VIDEOCONFERENCIA. Individuales y/o colectivas. Mediante Web-Cam o a través de varias cámaras monitorizadas. •SALAS DE REPRODUCCIÓN MULTIMEDIAS: Videos (VHS), CD, DVD y canales nacionales e internacionales de TV, audición de Casetes, Cd-Audio, DVD-Audio, MiniDisc, entre otros. •EDICIÓN de video. •DIGITALIZACIÓN de información, IMPRESIÓN y FOTOCOPIADO. •POSIBLE EQUIPAMIENTO INFORMÁTICO: puestos equipados con computadoras “TouchSmart All-in-One” (con tan solo tocar la pantalla, los usuarios podrán navegar por internet, reproducir música, ampliar o ver fotografías, entre otras.) Propuesta de ampliación Biblioteca Universidad de Morón: Mediateca UM
  • 38.
    PROGRAMA FUNCIONAL •PLANTA BAJA: 1-atriode difusión (con equipamiento) 2-hall acceso ppal. 3-sala de lectura parlante 4-sala de lectura silenciosa 5-patios de lectura y exposición 6-sector administ. (acceso calle Mendoza) • PRIMER NIVEL: 1-depósito de libros 2-sala de producción de copias impresas y digitales 3-sector administrativo • SEGUNDO NIVEL: 1- depósito de libros 2- sala de trabajo en red para usuarios con notebook 3- (7) salas de trabajo en red equipadas con PC 4- sala de trabajo en red con tutor y equipamiento multimedia. 5- (2) patios de expansión 6- sala de trabajo personal del área de mediateca. 7- sanitarios Propuesta de ampliación Biblioteca Universidad de Morón: Mediateca UM • TERCER NIVEL: 1- (2) salas para reuniones y tele conferencias. 2- sala de proyección audiovisual y multimedia. 3- sala de trabajo en red con equipamiento multimedia. 4- sala de trabajo en red con tutor y equipamiento multimedia. 5- (3) patios de expansión 6- sala de trabajo del personal del área de mediateca 7- sanitarios • CUARTO NIVEL: 1- sala de trabajo en red con equipamiento. 2- box de trabajo individual combinables. 3- (2) patios de expansión 4- sala de trabajo del personal del área de mediateca 5- sanitarios • QUINTO NIVEL - terraza 1- cafetería 2- terrazas de expansión: lectura y exposición