SAFETY.CAT.COM
EM026622-0
August 2016
Serial Number DR612199
MD6640 Blast Hole Drill
Operation and
Maintenance
Manual
MD6640 Perforadora Electrica Para Pozos De Tronadura
MD6640 Perforadora Electrica Para Pozos De Tronadura
MD6640 Perforadora Electrica Para Pozos De Tronadura
MD6640 Perforadora Electrica Para Pozos De Tronadura
MD6640 Perforadora Electrica Para Pozos De Tronadura
Manual de Operación y Mantenimiento
SN: DR612202
– Tabla de Contenidos –
Este manual esta dividido en secciones mayores que cubren los varios componentes que requieren
servicio y los sistemas de la Perforadora 49HR. Estas secciones y sus contenidos están
organizados de la siguiente forma:
Sección 1 - INTRODUCCIÓN
Sección 2 - OPERACIÓN
Sección 3 - LUBRICACIÓN
Sección 4 - MANUTENCIÓN PREVENTIVA
Sección 5 - PROCEDIMIENTOS DE SERVICIO
Sección 6 - FRENOS Y ACOPLAMIENTOS
Sección 7 - SISTEMADEAIRE COMPRIMIDO
Sección 8 - FILTRACIÓN DE AIRE
Seción 9 - ANTECEDENTES DE INGENIERÍA
Sección 10 - ESQUEMÁTICOS
MD6640 Perforadora Electrica Para Pozos De Tronadura
MD6640 Perforadora Electrica Para Pozos De Tronadura
PELIGRO
NO INTENTE MANTENCIONES MECÁNICAS O ELÉCTRICAS EN ÉSTA MAQUINA SIN UNA
TOTAL COMPRENSIÓN DE LA OPERACIÓN Y FUNCIÓN DE CADA COMPONENTE.
AQUELLOS COMPONENTES QUE UTILIZAN ENERGÍA ELÉCTRICA, PRESIÓN DE AIRE,
PRESIÓN HIDRÁULICA O RESORTES BAJO TENSIÓN O COMPRESIÓN PARA OPERAR, SE
DEBEN DESACTIVAR Y AISLAR ANTES DE DESARMARLOS.
PELIGRO
DEBIDO A LOS PELIGROS INHERENTES A LA OPERACIÓN DE LOS EQUIPOS DE ALTO
VOLTAJE, ES NECESARIO UN SISTEMA DE AISLAMIENTO QUE INCLUYA CONDUCTORES A
TIERRA EN EL CABLE, UNA RESISTENCIA NEUTRAL A TIERRA JUNTO A RELÉS Y
ACCIONAMIENTOS DE CONMUTACION RELACIONADOS. TAMBIÉN SE RECOMIENDA UN
SISTEMA DE CONTROL DE CONTINUIDAD A TIERRA.
El CABLE DEALIMENTACIÓN debe contener disposición para una conexión a tierra, especialmente
donde sea usado 2,300 volts o superior. En la subestación, la línea de energía debe terminar (vea
párrafo sobre circuitos a tierra) a tierra adecuada y permanente. En la máquina, la línea de
energía debe terminar asegurada mediante una conexión apernada a la estructura de la máquina.
Ésto proporciona tierra constante a la máquina y a su equipamiento eléctrico. La omisión de
proporcionar una adecuada puesta a tierra, pone en peligro a empleados y al equipo.
LA NECESIDAD DE UN CIRCUITO A TIERRA EN LA LÍNEA DE ENERGÍA, ADECUADO PARA
LA MÁQUINA, NO DEBE SER SUBESTIMADO. Sin un buen sistema a tierra, subsiste alto voltaje
entre la máquina y el terreno. El cable portátil de alimentación y las líneas de energía que
suministran energía eléctrica a la máquina deben tener cable a tierra, amplio en capacidad, que
corra paralelo a los cables principales en la longitud total desde el transformador a la máquina. Se
debe usar un sistema de tierra adecuado en el transformador. Consulte al proveedor local de
electricidad para más detalles.
PELIGRO
ESTE MANUAL ENTREGA INFORMACIÓN Y DATOS PARA LA MANTENCIÓN Y OPERACIÓN
DE ÉSTA MÁQUINA. TODO EQUIPO ELÉCTRICO DEBE SER ATENDIDO POR PERSONAL
CALIFICADO QUE HAYA SIDO DEBIDAMENTE ENTRENADO PARA TRABAJAR EN SISTEMAS
DE ALTO VOLTAJE, ACCIONAMIENTOS AC DE FRECUENCIA VARIABLE, Y/O EN CIRCUITOS
DC WARD LEONARD. OMITIR SU CUMPLIMIENTO PODRÍA RESULTAR EN LESIONES
PERSONALES O LA MUERTE.
MD6640 Perforadora Electrica Para Pozos De Tronadura
1-1
Introducción Sección
MD6640 Perforadora Electrica Para Pozos De Tronadura
Sección 1
Introducción
Siempre consulte la información de seguridad de esta sección del manual antes
de comenzar con cualquier procedimiento de mantenimiento en esta máquina.
Tabla de Contenidos
INFORMACIÓN GENERAL ...........................................................................................................3
SEGURIDAD ...........................................................................................................................4
PRECAUCIONES DE SEGURIDAD .......................................................................................5
CONSIDERACIONES PARA PREVENCIÓN DE INCENDIOS................................................9
SEÑALES MANUALES STANDARD PARA CONTROLAR LA OPERACIÓN DE GRÚAS ....10
SEÑALES DEADVERTENCIAY CALCOMANÍAS ......................................................................13
Etiquetas de Energía Almacenada .............................................................................................14
Vista General de la Máquina ......................................................................................................15
MAQUINARIA DE PROPULSIÓN ..........................................................................................16
Vista General de la Máquina De Propulsión................................................................................16
ESTRUCTURAPRINCIPALY PLATAFORMAS .....................................................................17
Vista General De La Estructura Principal ...................................................................................17
SALA DE MÁQUINAS ............................................................................................................18
SALA DE MÁQUINAS................................................................................................................18
SISTEMAS PRINCIPALES DEAIRE .....................................................................................19
COMPRESOR DE AIRE ............................................................................................................19
SISTEMA HIDRÁULICO.........................................................................................................20
CABINA DEL OPERADOR ....................................................................................................21
VISTA GENERAL DE LA CABINA DE LOS OPERADORES .....................................................21
MÁSTIL ..................................................................................................................................22
VISTA GENERAL DEL MÁSTIL Y SU MAQUINARIA ................................................................23
CAJADE ENGRANAJES ROTACIONAL ...............................................................................24
CAJA DE ENGRANAJES EMPUJE .......................................................................................25
ENSAMBLEAJE DE LA COMUNBA DE PERFORACIÓN .....................................................26
TUBERÍA DE PERFORACIÓN LLAVE (TIPO CADENA) ......................................................27
PORTACABLE ......................................................................................................................27
TÍPICAS ESPECÍFICACIONES DE LA MÁQUINA .......................................................................28
PESO GENERAL ESTIMADO DE COMPONENTES .................................................................30
1-2
Introducción Sección
MD6640 Perforadora Electrica Para Pozos De Tronadura
1-3
Introducción Sección
MD6640 Perforadora Electrica Para Pozos De Tronadura
Sección 1
Introducción
INFORMACIÓN GENERAL
Este manual está diseñado para ayudar al usuario en la operación y mantención preventiva de
ésta máquina. Siguiendo paso a paso estos procedimientos fáciles de entender, el operador y ell
personal de mantención pueden ejecutar todas las tareas de manera segura. Es importante recordar
que cuando se usa para ésta máquina un procedimiento sistemático y acabado de mantención y
servicio, se obtendrá un mínimo de detenciones inesperadas y una operación más confiable.
ESTE MANUAL NO ES EL LIBRO DE REPUESTOS y no se puede usar como material de referencia
para ordenar repuestos. Un detallado libro de repuestos se ha suministrado separadamente. Lea
cuidadosamente las instruccione en él. Todos los repuestos están listados por grupo y/o número de
código de producto, con el ítem/número de parte asociado para ÉSTA MÁQUINA ESPECÍFICA.
Ordene los repuestos en la cantidad exacta requerida. DERECHA e IZQUIERDA se refieren a
ubicaciones de la máquina según sean vistas por el operador sentado en el asiento de la cabina.
Establezca el correcto NÚMERO DE SERIE de la máquina cuando escriba o contacte a los
departamentos de servicio o de repuestos de la fábrica. Los registros de cada máquina se archivan
por número de serie y al proporcionar éste número, el diseño específico y equipamiento original de
su máquina es accesado rápidamente por el representante de repuestos de Caterpillar Global
Mining. Se pueden hacer adiciones o revisiones periódicas a éste manual. Si Ud. necesitara
información adicional o asistencia de servicio de la fábrica, contacte a su representante regional
de servicio o a:
Caterpillar Global Mining, LLC
Mining Products Division
3501 S FM 1417
Denison, TX 75020
Teléfono 903-786-9621
La compañía se reserva el derecho de hacer cambios o incorporar mejoras a sus máquinas en
cualquier momento. Esto se hará sin incurrir en obligaciones de instalar dichos cambios en
máquinas vendidas previamente. Debido a éste permanente programa de investigación y desarrolo
de producto, algunos procedimientos, especificaciones y repuestos pueden ser alterados, en un
constante esfuerzo por mejorar nuestras máquinas.
1-4
Introducción Sección
MD6640 Perforadora Electrica Para Pozos De Tronadura
SEGURIDAD
Los símbolos de alerta de seguridad mostrados aquí y a través del manual, se usan para llamar la
atención hacia instrucciones relativas a su seguridad personal. Lea y siga cuidadosamente éstas
instrucciones, y observe todos los gráficos de SEGURIDAD, PELIGRO y PRECAUCIÓN montados
en varias áreas de la máquina.
Cuide que cualquiera que atienda esta máquina se preocupe de éstos SÍMBOLOS DE SEGURIDAD
y sus definiciones. Si es imposible ejecutar en forma segura cualquiera de los procedimientos de
mantención y operación, contacte a su representante regional de Caterpillar Global Mining o a la
fábrica.
Lo siguiente define distinciones entre las instrucciones de seguridad. En todas éstas definiciones
se usa la señal de alerta de seguridad.
NOTA: Esta palabra de señal denota un ítem de información requerida con relación al equipo.
Si no se toma la acción apropiada, puede resultar en pérdidas de tiempo, patrimonio o
lesiones menores.
PRECAUCIÓN: Esta palabra de señal sirve para hacer presente las prácticas de
seguridad o atención directa a prácticas específicas de
seguridad que pueden prevenir posibles lesiones si no se
adhiere a las precauciones.
PELIGRO: Esta palabra de señal denota un inminente riesgo de peligro que
puede resultar en muerte, seria lesión personal, o serio daño al
equipo si no es reconocida o no se toma una acción apropiada.
PELIGRO: Esta palabra de señal denota un inminente riesgo de peligro
eléctrico que puede resultar en muerte, seria lesión personal, o
serio daño al equipo si no es reconocida o no se toma una acción
apropiada.
Operar, mantener o dar servicio a ésta máquina es peligroso si no se ejecuta en forma apropiada.
Cada persona debe convenserse a si misma y a su empleador, de que está alerta, tiene la destreza
necesaria, el conocimiento y las herramientas y los equipos necesarios a mano para la tarea. Es
crítico que todos los métodos usados sean seguros y correctos. Hay representantes y especialistas
de fábrica disponibles para entregar información adicional o asistencia técnica. El operador debe
estar alerta, físicamente sano y libre de la influencia del alcohol, drogas or cualquier medicamento
que pueda impedir su visión, audición o reacciones.
PRECAUCIÓN: ¡ENERGÍAALMACENADA! Los componentes sobre la
máquina son pesados y el retiro de alfileres sin la preparación
apropiada y la precaución puede causar daños corporales serios
y/o dañar al extremo delantero de la máquina.
¡La Seguridad debe ser siempre lo principal!
Consulte a su supervisor cuando la seguridad esté en duda.
1-5
Introducción Sección
MD6640 Perforadora Electrica Para Pozos De Tronadura
PRECAUCIONES DE SEGURIDAD
Precauciones Generales:
• El empleo de personal calificado de mantención, a través de programas de mantención
programada, es la mejor manera de minimizar las detenciones de la máquina y maximizar la
productividad del equipo.
• Mantenga las manos, pies y vestimenta, lejos de partes en rotación.
• Use todo el tiempo, casco, zapatos y lentes protectores de seguridad.
• Reponga todos y cada uno de los letreros de seguridad y advertencia cuando estén dañados
o hayan sido quitados de la máquina.
• Piense antes de actuar. La negligencia es un lujo que el hombre de servicio no se puede
permitir.
• El excesivo o repetido contacto con sellantes o solventes puede causar irritaciones de la piel.
En caso de contactos con la piel, refiérase a la Hoja de Datos de Materiales de Seguridad
(HDMS) del compuesto y el método sugerido de limpieza.
• Inspeccione los cerrojos de seguridad (fijadores) en todos los ganchos de levante No se
arriesgue, la carga puede deslizarse del gancho si no están funcionando apropiadamente.
• Si un ítem pesado comienza a caerse, déjelo caer, no trate de sujetarlo.
• Mantenga su área de trabajo organizada y limpia. Limpie inmediatamente el aceite o derrames
de todo tipo. Mantenga las herramientas y partes fuera del suelo. Elimine las posibilidades de
caída, resbalamiento o tropiezo.
• Los pisos, pasillos y escaleras deben estar limpios y secos. Después de operaciones de
drenaje, asegúrese de limpiar todos los derrames.
• Los cables eléctricos y los pisos metálicos mojados son una peligrosa combinación.
• Inspeccione regularmente si hay pernos o dispositivos de cierre sueltos y asegúrelos
apropiadamente.
• Adopte precauciones extremas cuando trabaje cerca de líneas o equipos eléctricos, sean
éstos de alto o bajo voltaje. Nunca intente hacer reparaciones eléctricas si Ud. no está
calificado.
1-6
Introducción Sección
MD6640 Perforadora Electrica Para Pozos De Tronadura
• Verifique la correcta operación de los switches de límite.
• Después de terminado el servicio, asegúrese de que todas las herramientas, componentes o
equipamiento de servicio sean retirados de la máquina y asegurados en un área de almacenaje
apropiada.
• Los Frenos Mecánicos están diseñados solamente para uso como frenaje estático de sujeción.
Úselos como frenos para movimiento (dinámicos), solo en situaciones de emergencia.
• Use apropiada iluminación interna y externa.
• Instale y mantenga una conexión a tierra correcta y sistemas apropiados de protección contra
fallas de conexión a tierra.
• Realice pruebas funcionales de todos los circuitos de seguridad.
• Permita que las inspecciones y mantenciones eléctricas sean ejecutadas solo por eléctricistas
calificados.
• Tenga una extrema precaución al trabajar alrededor de orificios que se hicieron.
Precauciones de Mantención:
• No use anillos, reloj de pulsera o prendas de vestir sueltas cuando trabaje en maquinarias.
Estos pueden quedar atrapadas en partes en movimiento causándole serias lesiones.
• Use siempre una correa de seguridad o arnés cuando exista el peligro de caídas.
• Cuente siempre con una segunda persona para vigilar la línea salvavidas cuando trabaje en
espacios confinados.
• No arranque un motor a puertas cerradas sin contar con adecuados ventiladores extractores
en operación.
• Nunca utilice las tuberías de aire o de sistemas hidráulicos del equipo como soporte cuando
trabaje en la máquina. Desactive o aísle el sistema completo antes de ejecutar mantenciones.
• La máquina debería ser estacionada en un terreno nivelado durante todos los servicios al
equipo y períodos de detención.
1-7
Introducción Sección
MD6640 Perforadora Electrica Para Pozos De Tronadura
• Las grúas y elevadores deben tener la capacidad suficiente para levantar los componentes
pesados (cajas de engranajes, balde, pluma, etc.).Siempre trabaje dentro de las limitaciones
del equipo que está utilizando.
• Asegúrese de que los ítems pesados están debidamente aparejados y soportados desde
grúas o elevadores antes de quitar miembros de soporte desde la máquina.
• Utilice líneas guía o cables para minimizar el giro de componentes pesados en suspensión.
• Disponga de suficiente personal de servicio cuando quite o instale ítems grandes y pesados,
para mantener el control en todo momento.
• Use siempre pedestales de seguridad en conjunto con gatos hidráulicos o elevadores. No se
confíe en los gatos o elevadores para manejar la carga; ellos podrían fallar.
• Al desarmar una maquinaria asegúrese de contar con pedestales de seguridad y entibación
adecuada para prevenir volcamiento o rodaje de los componentes.
• Al utilizar sopletes de oxiacetileno, use siempre gafas y guantes de soldador. Mantenga un
extinguidor de incendios “cargado” a mano. Asegúrese de que los cilindros de acetileno y
oxigeno estén separados por defensas metálicas y encadenados al carro.
• Donde sea aplicable, utilice extractores para quitar rodamientos, bujes, engranajes, camisas
de cilindros, etc. Use martillos, punzones y formones solo cuando sea absolutamente necesario.
Asegúrese de usar siempre anteojos de seguridad.
• Tenga extremo cuidado al usar aire comprimido para secar piezas. Use pistolas de aire
aprobadas, que no excedan 30 PSI (207 kPa), póngase anteojos o gafas de seguridad y
disponga defensas apropiadas para proteger a los demás en la zona de trabajo.
• Luego de ajustar y/o dar servicio a la máquina, asegúrese de reinstalar rápidamente los
dispositivos de seguridad, defensas o blindajes.
• Se debe usar todo el tiempo gafas protectoras para los ojos mientras trabaje en el sistema de
aire acondicionado. Trabaje en el sistema de aire acondicionado solo en áreas bien ventiladas.
• Limpie el exceso de lubricantes alrededor de rodamientos y engranajes. Nunca lubrique partes
en movimiento.
• Al manipular el cable de transmisión use guantes de goma aprobados y ganchos aislados.
1-8
Introducción Sección
MD6640 Perforadora Electrica Para Pozos De Tronadura
Precauciones de Operación:
• Use protectores de oído cuando se exponga a los siguientes niveles de ruido, en exceso a
los períodos que se indican:
8 horas a 90 dBa
4 horas a 95 dBa
2 horas a 100 dBa
1 hora a 105 dBa
30 minutos a 110 dBa
15 minutos a 115 dBa
• Cuando tenga dudas acerca de nivel de ruido, use protectores de oído.
• No intente subirse o bajarse de la máquina cuando esté en operación. Notifique al operador
de cualquier intento de abordar o abandonar la máquina.
• No mueva u opere la máquina sin conocer la ubicación y el propósito de todo el personal,
equipos de prueba o soporte, en o cerca de la máquina.
• No permita personal sin autorización a bordo de la máquina mientras esté en operacion.
• Use señales audibles para advertir los movimientos de la máquina. Un botón de bocina de
señales se suministra para éste propósito.
• No se desplace hasta que la ruta de trayecto haya sido limpiada de toda obstrucción.
• No impulse la máquina sobre una pendiente mayor que la especificada en los límites de
estabilidad mostrados en el CUADRO DE ESTABILIDAD al final de esta sección.
• No deje la caja de engranajes de rotación suspendida en el aire al dejar la máquina sin
supervisión.
• Prevenga que el cable de transmisión sea arrastrado en el piso por largas ditancias o a altas
velocidades.
• Limite la cantidad de cable que esté siendo tirado por la máquina. Tirar demasiado cable
dañará tanto al cable como a la máquina.
1-9
Introducción Sección
MD6640 Perforadora Electrica Para Pozos De Tronadura
CONSIDERACIONES PARA PREVENCIÓN DE INCENDIOS
Mantenga siempre a mano un extinguidor de incendios “cargado” y conozca cómo usarlo.
Inspeccione y hágale servicio al extinguidor tal cual como se indica en su placa de instrucciones.
NO FUME mientras manipule inflamables o estando cercano a baterías.
Inspeccione cuidadosamente todas las líneas, tuberías y mangueras.Apriete todas las conexiones
a las especificaciones de torque recomendado. Mire la Sección 4 de este manual por las
recomendaciones de Mantenimiento Programado y los procedimientos de Inspección Diaria.
Repare o reemplace las líneas, tuberías y mangueras sueltas o dañadas, tan pronto sea posible.
Asegúrese que todas las abrazaderas, protecciones y defensas queden correctamente reinstaladas
para prevenir vibraciones y el roce de partes durante la operación.
NO acaree fluidos inflamables, como gasolina o solventes, a bordo de la máquina.
NO doble en exceso ni golpee líneas presurizadas o mangueras. NO instale líneas, tuberías o
mangueras dobladas o dañadas. Reemplácelas inmediatamente.
NO arranque la máquina o mueva ninguno de los controles si una tarjeta de advertencia está fijada
a los controles o en al panel de arranque.
Mantenga todos los trapos de aseo apropiadamente almacenados. NO los deseche en un montón a
bordo de la máquina.
Mantenga todos los compartimentos de las armazones estructurales, pasillos y áreas de trabajo,
limpias y libres de residuos lubricantes.
NUNCA suelde, caliente o ejecute servicios en la máquina, estando solo.
1-10
Introducción Sección
MD6640 Perforadora Electrica Para Pozos De Tronadura
SEÑALES MANUALES STANDARD PARA CONTROLAR LA OPERACIÓN DE GRÚAS
Estas señales son provenientes de ANSI-B30.5-1868 y tienen el propósito de proporcionar
estandarización a las señalizaciones usadas en la comunicación entre el personal de mantención
y el operador de la grúa durante el ciclo de mantención.
LEVANTAR Extienda el antebrazo hacia arriba, manteniendo el dedo índice
extendido y apuntando arriba, haga pequeños movimientos circulares con
la mano.
BAJAR Extienda el brazo hacia abajo, manteniendo el dedo índice extendido
y apuntando abajo, haga pequeños movimientos circulares con la mano.
LEVANTE PRINCIPAL Golpee los nudillos sobre la cabeza hasta que el
operador reciba la señal, luego use las señales standard.
USE LÍNEA DE WINCHE (Levante Auxiliar) Golpee el codo con la mano
abierta hasta que el operador reciba la señal, luego use las señales standard.
1-11
Introducción Sección
MD6640 Perforadora Electrica Para Pozos De Tronadura
LEVANTAR LA PLUMA Extienda totalmente el brazo con los dedos cerrados
y el dedo pulgar apuntando hacia arriba.
PARAR Extienda totalmente el brazo con los dedos extendidos y la palma
de la mano hacia abajo.
PARAR EN EMERGENCIA Con el brazo extendido totalmente, con los dedos
extendidos y la palma de la mano hacia abajo, mueva rápidamente el brazo
a lo largo de un plano horizontal.
RECORRIDO Con el brazo extendido hacia delante, con la mano abierta y
la muñeca levantada, haga un movimiento de empujar en la dirección del
movimiento deseado.
ASEGURE TODO Cierre las manos juntas delante del cuerpo.
RECORRIDO (ambos carriles) Con ambos puños cerrados delante del
cuerpo, haga un movimiento circular en la dirección del movimiento deseado
(adelante o atrás), con los dos puños (solo las orugas de la grúa)
BAJAR LA PLUMA Extienda totalmente el brazo con los dedos cerrados
y el dedo pulgar apuntando hacia abajo.
MUEVA LENTAMENTE Mientras da cualquier señal de movimiento,
mantenga la otra mano sin moverse delante de la mano de la señal deseada.
(Levante lentamente es ejemplo que se muestra).
1-12
Introducción Sección
MD6640 Perforadora Electrica Para Pozos De Tronadura
LEVANTE LA PLUMAY BAJE LA CARGA Extienda el brazo en forma
horizontal con los dedos extendidos y el dedo pulgar apuntando hacia arriba,
alternadamente abra y cierre los dedos por la duración del movimiento
deseado.
BAJE LA PLUMAY LEVANTE LA CARGA Extienda el brazo en forma
horizontal con los dedos extendidos y el dedo pulgar apuntando hacia abajo,
alternadamente abra y cierre los dedos por la duración del movimiento
deseado.
GIRAR Extienda el brazo horizontalmente con el dedo índice extendidos en
la dirección de giro deseada.
RECORRIDO (Un solo carril) Use el puño levantado para el lado que
permanece inmóvil, haga un movimiento circular delante del pecho en la
dirección y lado del movimiento que desea (solo las orugas de la grúa).
EXTENDER LA PLUMA (Pluma Telescópica) Ponga ambas manos frente
al cuerpo con las palmas hacia arriba, los dedos cerrados y los pulgares
extendidos hacia fuera.
RECOGER LA PLUMA (Pluma Telescópica) Ponga ambas manos frente
al cuerpo con las palmas hacia arriba, los dedos cerrados y los pulgares
extendidos hacia dentro.
EXTENDER LA PLUMA (Pluma Telescópica) Con los dedos cerrados y el
pulgar extendido hacia el cuerpo, use el movimiento de una sola mano para
golpear el pecho con el pulgar de la mano.
RECOGER LA PLUMA (Pluma Telescópica) Con los dedos cerrados y el
pulgar extendido hacia fuera del cuerpo, use el movimiento de una sola
mano para golpear el pecho con el talón de la mano.
1-13
Introducción Sección
MD6640 Perforadora Electrica Para Pozos De Tronadura
SEÑALES DE ADVERTENCIA Y CALCOMANÍAS
Los letreros presentados mas abajo están montados en la máquina al ser entregada desde
Caterpillar Global Mining. Éstos letreros de advertencia de peligro dirigen información a los
operadores, personal de mantención o a cualquiera que esté en o cerca de la máquina. La
información esta diseñada para ayudar a prevenir situaciones las cuales pueden resultar en lesiones
al personal o daños a la máquina.
1-14
Introducción Sección
MD6640 Perforadora Electrica Para Pozos De Tronadura
Etiquetas de Energía Almacenada
1-15
Introducción Sección
MD6640 Perforadora Electrica Para Pozos De Tronadura
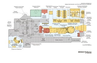
Vista General de la Máquina
1-16
Introducción Sección
MD6640 Perforadora Electrica Para Pozos De Tronadura
MAQUINARIA DE PROPULSIÓN
El sistema de propulsión de la MD6640 es un sistema de transmisión hidráulico sin cadenas, el
cual permite la contrarotación de las orugas por separado. Esta aptitud le proporciona a la máquina
la capacidad de girar completamente alrededor de su propia longitud. Cada oruga es manejada
por un motor hidráulico y una caja de engranajes planetarios, equipado con un freno de activación
por resortes y alivio hidráulico. La máquina tiene la aptitud de propulsarse en dos rangos de velocidad.
El rango de velocidad baja se utiliza para maniobras en espacios cerrados mientras que el rango
de la velocidad alta, se utiliza para recorridos en áreas abiertas en largas distancias.
Rodillo
inferior
Eje Ecualización
Eje Trasero
Rodillo
superior
Tambor
de Transmission
Tractor de orugas
Rueda de tensora
Vista General de la Máquina De Propulsión
1-17
Introducción Sección
MD6640 Perforadora Electrica Para Pozos De Tronadura
ESTRUCTURA PRINCIPAL Y PLATAFORMAS
La estructura principal de la MD6640 es una construcción del tipo caja soldada, con soportes para
el mástil y torres para las patas de extensión, situadas integralmente en una sola pieza.
Vista General De La Estructura Principal
1-18
Introducción Sección
MD6640 Perforadora Electrica Para Pozos De Tronadura
SALA DE MÁQUINAS
SALA DE MÁQUINAS
1-19
Introducción Sección
MD6640 Perforadora Electrica Para Pozos De Tronadura
SISTEMAS PRINCIPALES DE AIRE
El compresor de tornillos está ubicado dentro de la sala de máquinas justo delante de la caja de
engranajes de la bomba hidráulica. El compresor de tornillos rotativos es un compresor del tipo
hélice doble, de una sola etapa y bañado en aceite, con un rango nominal de 3.000 cfm (84.9 m3/
min, @ 65 psi y una presión máxima de operación de 65 psi.
COMPRESOR DE AIRE
1-20
Introducción Sección
MD6640 Perforadora Electrica Para Pozos De Tronadura
SISTEMA HIDRÁULICO
La presión hidráulica para la operación de la MD6640 es proporcionada por cuatro bombas
separadas. Estas bombas están accionadas por el motor eléctrico ubicado en la sala principal de
máquinas, delante del tanque y los filtros hidráulicos.
La maquina tiene dos sistemas hidráulicos separados, aunque no totalmente independientes, el
circuito CERRADO y el circuito ABIERTO. Ambos se abastecen de fluido desde un mismo tanque.
1-21
Introducción Sección
MD6640 Perforadora Electrica Para Pozos De Tronadura
CABINA DEL OPERADOR
La cabina aislada del operador de la MD6640, provee un cercado sellado, confortable del cual el
telefonista puede realizar las tareas implicadas con la operación de la máquina. La posición y
diseño de este compartimiento han sido estructurados para proveer los ángulos miradores óptimos
de accesibilidad inmediata. El asiento del operador es una unidad autosuficiente que incluye el
asiento, la suspensión del asiento y base de asamblea giratoria, los controles del operador primario
y la monitor de despliegue JLT. La consola auxiliar de control está al alcance para proveerle el
acceso a las funciones adicionales de la máquina. La cabina esta provisto de portales duales para
la cubierta principal.
VISTA GENERAL DE LA CABINA DE LOS OPERADORES
1-22
Introducción Sección
MD6640 Perforadora Electrica Para Pozos De Tronadura
MÁSTIL
El mástil es una estructura novelesca de tubos acerados y platos formados. La estructura principal
está compuesta de tubos verticales soldados conjuntamente con arriostramiento de atrás. El mástil
funciona para proveer el ascenso y el guía para el equipo le hizo falta manejar la función perforadora
de la máquina. El mástil es capaz de ser colocado en cualquier incremento de 5o dentro de este
alcance operativo de 65 grados a través de 90 grados (vertical). El mástil puede ser levantado y
bajado por 2 (dos) cilindros hidráulicos de 9.00 pulgadas (228mm).
1-23
Introducción Sección
MD6640 Perforadora Electrica Para Pozos De Tronadura
VISTA GENERAL DEL MÁSTIL Y SU MAQUINARIA
1-24
Introducción Sección
MD6640 Perforadora Electrica Para Pozos De Tronadura
CAJA DE ENGRANAJES ROTACIONAL
1-25
Introducción Sección
MD6640 Perforadora Electrica Para Pozos De Tronadura
CAJA DE ENGRANAJES EMPUJE
1-26
Introducción Sección
MD6640 Perforadora Electrica Para Pozos De Tronadura
ENSAMBLEAJE DE LA COMUNBA DE PERFORACIÓN
1-27
Introducción Sección
MD6640 Perforadora Electrica Para Pozos De Tronadura
TUBERÍA DE PERFORACIÓN LLAVE (TIPO CADENA)
PORTACABLE
1-28
Introducción Sección
MD6640 Perforadora Electrica Para Pozos De Tronadura
TÍPICAS ESPECÍFICACIONES DE LA MÁQUINA
Estas especificaciones describen las caracteristicas mecánicas principales de una Perforadora
de Barreno MD6640.
NOTA: Estas son especificaciones de la máquina típica
Diámetro del Pozo 12 ¼” 311 mm
Profundidad del Pozo (un solo paso – mástil de 66’) 65.6’ 20 m
A Altura Total con mástil de 66’, 20 m 102' 5” 31.22m
B Altura al Tope del pasamanos en la Cabina del Operador 18’6” 5.64
C Suelo al Tope de la Plataforma 6’4” 1.93 m
D Suelo a la Base de la Pata Extensible Trasera 2’0” 0.65 cm
E Suelo al Tope del Techo de la Sala de Máquinas 14’10” 4.52 m
F Ancho Total de la Máquina 23’9” 7.24 m
F1 Eje Central de la Máquina hasta L. Izquierdo 11’10” 3.61 m
F2 Eje Central de la Máquina hasta L. Derecho 11’11” 3.63 m
G Eje Central de la Máquina al extremo externo oruga 36” L.I. 10’5” 3.17 m
G1 Eje Central de la Máquina al extremo externo oruga 36” L.D. 9’7” 2.92 m
H Eje Central de la Máquina al eje Pata Nivelación Trasera L.I. 7’6” 2.29 m
H1 Eje Central de la Máquina al eje Pata Nivelación Trasera L.D. 7’3” 2.21 m
I Eje Central del Pozo al Eje Central del Eje de Igualación 0’5” 0.12 m
J Altura al Tope de Unidad de Presurización Sala de Máquinas 16’6” 5.03 m
K Altura al Tope del Portacable 10’1” 3.07 m
L Suelo a la Base de la Pata Extensible Delantera 2’1” 0.63 m
M Diámetro de las zapatas de las Patas Extensibles 3’8” 1.12 m
N Eje Central del Pozo al Eje Central Pata Extensible Trasera 15 ¾” 4.59 m
O Longitud Total de las Orugas 24’0” 7.24 m
P Eje Central del Pozo a parte Trasera Cabina del Operador 10’2” 3.10 cm
Q Distancia entre ejes Patas Extensibles Delantera y Trasera 36’2” 11.02 m
R Longitud Total de la Máquina 48’4” 14.73 m
S Longitud Total de la Máquina con Portacable 55’8” 16.97 m
T Longitud Total de la Máquina con Mástil de 20 m en Descanso 121’3” 36.95 m
U Altura Total de la Máquina con Mástil de 20 m en Descanso 31’3” 9.52 m
1-29
Introducción Sección
MD6640 Perforadora Electrica Para Pozos De Tronadura
B
C
D
N
A
T
S
R
Q
O MI
H H
1
G G
1
F1
F
F2
L
J
K
mdim49HR
1-30
Introducción Sección
MD6640 Perforadora Electrica Para Pozos De Tronadura
PESO GENERAL ESTIMADO DE COMPONENTES
PRECAUCIÓN: Estos son pesos estimados solamente. Contacte su representante
de Servicios Caterpillar Global Mining para obtener el peso exacto
de cada componente antes de que los apareje y levante.
Cantidad (Libras
de Peso C/U EE.UU.)
Partes Bajas
Bastidor Oruga Derecha ........................................................... 1 ................ 8,480
Bastidor Oruga Izquierda .......................................................... 1 ................ 8,480
Eje, Ecualizador Frontal Oruga ................................................. 1 ................ 3,370
Eje, Ecualizador Trasero Oruga................................................ 1 ................ 6,480
Tambor, Transmisión Oruga..................................................... 2 ................ 1,160
Caja de Engranajes, Planetaria Propulsión ............................. 2 ................ 2,750
Zapata, Oruga ........................................................................ 110 ................. 240
Motor, Ensamblaje .................................................................... 2 ................... 198
Bastidor/Estructura –A
Pata, Bastidor-A Frente ............................................................ 2 ................... 800
Pata, Bastidor-A Trasero .......................................................... 1 ................ 2,900
Cilindro, Cierre Mástil ............................................................... 2 ..................... 15
Pasador, Cierre Bastidor........................................................... 2 ..................... 15
Pasador, Pivote Mástil .............................................................. 2 ..................... 15
Pasador, Bastidor-A .................................................................. 2 ..................... 40
Escalera, Bastidor-A ................................................................. 1 ..................... 80
Estructura Principal
Estructura Principal .................................................................. 1 .............. 45,130
Ensamblaje Funda, Gato Trasero Izquierdo.............................. 1 ................ 2,260
Ensamblaje Funda, Gato Trasero Derecho .............................. 1 ................ 5,680
Cilindro, Gato Hidráulico Nivelación ..................................... 4 ................... 845
Pata Extensible ..................................................................... 4 ................... 660
Zapata Pata Extensible ......................................................... 4 ................... 505
Modulo, Unidad de Poder ......................................................... 1 .............. 13,600
Base, Unidad de Poder ............................................................ 1 ................ 1,550
Motor, Modulo Unidad de Poder ............................................ 1 ................ 6,100
Ensamblaje Bomba de Propulsión ....................................... 1 ................... 805
Soporte, Lado Derecho, Bomba Hidráulica ....................... 1 ................... 155
Soporte, Lado Izquierdo, Bomba Hidráulica ...................... 1 ................... 150
Bomba, Engranaje, Tandem, ............................................ 1 ..................... 45
Ensamblaje Bomba, 2 Bomba ......................................... 1 ................... 175
Filtro, Aceite c/ Bypass Válvula ............................................ 1 ................... 605
Terminal del Aire, Ensamblaje ............................................... 1 ................ 4,070
Separador, Ensamblaje Tubería ........................................... 1 ................ 4,275
Deposito, Hidráulica ................................................................. 1 ................... 705
Deposito, Lubricación ............................................................... 1 ................... 460
1-31
Introducción Sección
MD6640 Perforadora Electrica Para Pozos De Tronadura
Cantidad (Libras
de Peso C/U EE.UU.)
Enfriador aceite, Enfriado por Aire............................................ 1 ................... 570
Defensa, Enfriador Aceite......................................................... 1 ................... 185
Ensamblaje Enfriador............................................................... 1 ................ 4,200
Enfriador, Compresor............................................................... 1 ................ 3,000
MCC. Bajo Voltaje..................................................................... 1 ................... 900
MCC, Principal Compresor ....................................................... 1 ................ 1,080
Gabinete, Empuje ..................................................................... 1 ................ 1,030
Control Panel, Estática Motor DC ............................................. 1 ................... 210
Gabinete, Rotacional ................................................................ 1 ................... 600
Gabinete, PLC .......................................................................... 1 ................... 800
Gabinete, Giratorio-ZROC ........................................................ 1 ................ 1,035
Ensamblaje Pata Nivelación .................................................... 1 ................... 470
Válvula Ensamblaje Nivelación, 4-Carrete Monocuerpo ........... 1 ................... 160
Estructura Cabina Operador .................................................... 1 ................ 8,400
Acondicionador de Aire ............................................................. 1 ................... 930
Compuerta, Vista Broca ............................................................ 1 ................... 225
Cilindro, Compuerta Vista Broca ........................................... 1 ................... 115
Escalera,Acceso ...................................................................... 1 ................... 210
Carrete de Cable ...................................................................... 1 ................ 8,000
Sala de Máquinas
Pared, Lado Derecho Sala de Maquinas. ................................. 1 ................ 1,745
Pared, Lado Frontal Sala de Maquinas .................................... 1 ................ 1,040
Pared, Lado Izquierdo Sala de Maquinas ................................. 1 ................ 1,180
Ensamblaje Puerta, Lado Izquierdo .......................................... 1 ................... 135
Cubierta, Hidráulica .................................................................. 1 ................ 1,250
Panel, Techo Central ................................................................ 1 ................... 575
Panel, Techo Trasero ............................................................... 1 ................... 600
Soldadura, Lado Izquierdo Extensión Frontal............................ 1 ................ 8,925
Techo, Removible Sala de Maquinas........................................ 1 ................... 430
Sección Techo, Sala de Maquinas ........................................... 1 ................ 2,030
Compuerta, Techo Unidad Presurización .................................. 1 ................... 345
Recinto, Ventilador Purga Dynavane ........................................ 1 ................... 375
1-32
Introducción Sección
MD6640 Perforadora Electrica Para Pozos De Tronadura
Cantidad (Libras
de Peso C/U EE.UU.)
Conducto, Unidad Transición Presurización ............................. 1 ................... 275
Conducto, Purga Ventilador Descarga Superior ...................... 1 ..................... 90
Conducto, Purga Ventilador Descarga Inferior ........................ 1 ................... 100
Cubierta, Unidad Presurización ............................................... 1 ................... 120
Filtro, Purga/Aire conducto Aire ................................................ 1 ................ 1,000
Suporte, Ventilador ................................................................... 2 ................... 145
Compuerta, Techo .................................................................... 1 ................... 350
Ventilador y Motor Ventilador..................................................... 1 ................... 220
Tirantes Mástil
Tirantes, Mástil ......................................................................... 2 ................ 1,555
Camisa, Izquierdo Soporte ........................................................ 1 ................... 705
Camisa, Derecha Soporte ......................................................... 1 ................... 710
Soporte, Lado Derecha Tirantes Mástil..................................... 1 ................... 865
Soporte, Lado Izquierdo Tirantes Mástil.................................... 1 ................... 860
Brazo de Soporte, Lado Derecho Honda
de Seguridad (Inferior) .................................................................... 1 ................... 105
Perno de Argolla ....................................................................... 2 ................... 145
Pasador, de Cierre.................................................................... 2 ..................... 20
Cilindro, Cierre Tirantes ............................................................ 2 ..................... 20
Pasador, Pivote ........................................................................ 8 ..................... 40
Cilindro, Levante Hidráulico Mástil ........................................... 2 ................ 1,350
Ensambladura Mástil
Estructura Mástil ...................................................................... 1 .............. 26,000
Soporte, Piñón Empuje ........................................................... 42 .................. 100
Placa, Parte Inferior del Mástil .................................................. 1 ................ 1,995
Caja Engranajes, Empuje ......................................................... 1 ................ 1,170
Eje, Entrada Empuje ............................................................ 1 ..................... 72
Copla, Entrada Empuje ........................................................ 1 ..................... 50
Eje, Segundo Intermedio Empuje.......................................... 1 ................... 145
Engranaje, Segundo Intermedio Empuje............................... 1 ................... 390
Alojamiento, Codificador ....................................................... 1 ..................... 30
Piñón, Primer Intermedio....................................................... 1 ................... 155
Engranaje, Primer Intermedio ............................................... 1 ................... 465
Engranaje, Salida ................................................................. 1 ................... 690
Eje, Primer Intermedio & Expedidor Empuje........................ 1 ................... 710
Freno, Empuje...................................................................... 1 ................... 100
Motor, Levante y Empuje ...................................................... 1 ................ 1,900
Soporte, Caja Engranajes Empuje ........................................ 1 ................ 1,015
1-33
Introducción Sección
MD6640 Perforadora Electrica Para Pozos De Tronadura
Cantidad (Libras
de Peso C/U EE.UU.)
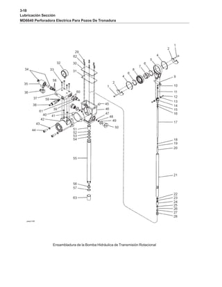
Caja Engranajes, Rotacional................................................... 1 ................ 2,950
Eje, Intermedio Rotacional .................................................... 1 ..................... 75
Engranaje, Intermedio Rotacional ......................................... 1 ................... 100
Engranaje, Transmisión Rotacional ..................................... 1 ................... 590
Eje Transmisión Rotacional .................................................. 1 ................... 355
Rodamiento, Eje Central ....................................................... 1 ................... 130
Portador, Rodamiento Inferior ............................................... 1 ................... 215
Reten, Rodamiento ............................................................... 1 ................... 210
Alojamiento, Sello Superior ................................................... 1 ..................... 35
Portador, Rodamiento Superior ............................................ 1 ..................... 30
Rodamiento, Eje Inferior ....................................................... 1 ..................... 35
Piñón, Motor Rotacional ....................................................... 1 ..................... 55
Motor, Rotacional.................................................................. 1 ................ 2,550
Acoplamiento, Amortiguador Giratorio Superior ....................... 1 ................. 2500
Estructura Guía (LH)................................................................. 1 ................ 1,130
Estructura Guía (RH) ............................................................... 1 ................ 1,130
Alojamiento, Lado Izquierdo Rodillos Guía Mástil ................. 1 ................... 415
Ensambladura Rodillos Guía, Superior ..................................... 2 ................... 150
Rodillos Guía, Superior......................................................... 4 ..................... 40
Rodillos Guía, Inferior ............................................................... 2 ..................... 45
Extensor, Barra Perforadora ..................................................... 1 ................... 620
Buje, Guía Barra Perforadora ................................................... 1 ................... 310
Llave, Broca, 12.25 .................................................................. 1 ................... 167
Llave, Broca, 10.628 ................................................................ 1 ................... 140
Llave de herramientas .............................................................. 2 ................. 2100
Winche, Transmisión Hidráulica .............................................. 1 ................... 415
Cilindro Hidráulico, Soporte Posición........................................ 2 ..................... 90
Escalera, Mástil ........................................................................ 5 ................... 100
Escalera, Inferior Mástil ............................................................ 1 ..................... 85
1-34
Introducción Sección
MD6640 Perforadora Electrica Para Pozos De Tronadura
2-1
Operación Sección
MD6640 Perforadora Electrica Para Pozos De Tronadural
Sección 2
Operación
Recurra siempre a la información de seguridad de la Sección 1 de éste
manual antes de iniciar todo proceso de mantención en esta máquina.
Tabla de Contenidos
INFORMACION GENERAL ...........................................................................................................5
CONTROLES - LOCALIZACIÓN Y FUNCIONES..............................................................6
CONSOLA DE CONTROL DE LOS OPERADORES ............................................................7
CONSOLA DE CONTROL DE LOS OPERADORES – VISTA GENERAL ................................... 7
CONSOLA CONTROL IZQUIERDO .......................................................................................8
CONSOLA CONTROL IZQUIERDO – VISTA GENERAL ............................................................ 8
BOTÓN PROGRAMADO DE CONTROL DE LA PERFORADORA - OPCIÓN......................9
INTERRUPTOR DEL SELECTOR DE MODO DE OPERACION ..........................................9
INTERRUPTOR SELECTOR DE ALCANCE DE VELOCIDAD DE IZADO / LEVANTE..........9
INTERRUPTOR DEL FRENO DE LEVANTE........................................................................10
INTERRUPTOR DE VALVULADEAIRE PRINCIPAL ............................................................10
BOTÓN DE PRESION DE REAJUSTE DEL INDICADOR DE PROFUNDIDAD ............ 11
DE BOTÓN DE PARADA DE EMERGENCIA ................................................................. 11
INTERRUPTOR DE LA ESCOTILLA MIRADOR DE LA BROCA .................................... 11
JOYSTICK IZQUIERDO (LA FUNCIÓN DUAL) -ORUGAS DE PROPULSION /WINCHE11
INTERRUPTOR SELECTOR DE VELOCIDAD DEL MANDO ROTATIVO ..........................12
REOSTATO DE LEVANTE/IZADO ..................................................................................12
INTERRUPTOR DE CONTROL DE POLVO - OPCIÓN.................................................13
INTERRUPTOR DE LA CORTINA DE POLVO - OPCIÓN..............................................13
CONTROL DE FLUJO DE CONTROL DE POLVO - OPCIÓNAL ..................................13
ATOMIZADORES DEBAJO DE CUBIERTA - OPCIÓNAL...............................................13
CONSOLA CONTROL DERECHA .............................................................................................14
CONSOLA CONTROL DERECHA – VISTA GENERAL..............................................................14
EL INTERRUPTOR DEL POSICIONADOR DE LA TUBERÍA .........................................15
JOYSTICK DERECHO (FUNCIÓN TRIPLE) - ORUGADE PROPULSIÓN /PORTABARRAS
/ MÁSTIL ..........................................................................................................................15
POTENCIÓMETRO DE VELOCIDAD ROTATIVA .................................................................16
INTERRUPTOR DEL DESLIZADOR DEL SELLO DE POLVO ............................................16
INTERRUPTOR SELECTOR DEL RANGO DE VELOCIODAD DE PROPULSION ............16
INTERRUPTOR DE BOTÓN DE BOCINA ...........................................................................16
INTERRUPTOR DE LALLAVE HERRAMIENTA....................................................................17
INTERRUPTOR DE LA LLAVE DE RUPTURA .....................................................................17
INTERRUPTOR SELECTOR DEL PORTABARRAS ...........................................................17
INTERRUPTOR DEL CARRUSEL DE BROCA ....................................................................17
INTERRUPTORES DE CONTROL DE GATAS DE NIVELACION ........................................18
INTERRUPTORAUTOMÁTICO DE NIVELACION ................................................................18
CONSOLA DE CONTROLAUXILIAR ....................................................................................19
CONSOLA DE CONTROL AUXILIAR ........................................................................................19
LUCES EXTERIORES ....................................................................................................19
2-2
Operación Sección
MD6640 Perforadora Electrica Para Pozos De Tronadura
BOTÓN DE PRESION DE FALLA DEL CABLE DE ARRASTRE....................................20
INTERRUPTOR DESCONGELADOR DEL PISO ..........................................................20
CONTROLES DE CALEFACTOR / VENTILACION / AIRE ACONDICIONADO ..............20
INTERRUPTOR DE ESCALAS DE ABORDAJE ............................................................20
RADIO /CASSETTE ........................................................................................................20
DESPLIEGUE DEL OPERADOR ...............................................................................................21
MONITOR DE DESPLIEGUE DEL OPERADOR ........................................................................21
EL ÁREA DE DESPLIEGUE Y LOS INDICADORES ............................................................21
PANTALLAS DE DESPLIEGUE.............................................................................................22
PANTALLA TITULAR ................................................................................................................22
PANTALLA NIVELADORA .........................................................................................................23
PANTALLA DE ESTADO ...........................................................................................................23
ALARMAS ACTIVAS .................................................................................................................24
PANTALLA DE ESTADO con cinta de Pop-up ...........................................................................24
HISTORIAL DE ALARMA ..........................................................................................................25
AYUDA DE NAVEGACION ........................................................................................................25
DIAGNOSTICOS DEL PLC ........................................................................................................26
CALIBRACIONES y LIMITES ....................................................................................................26
HORAS DE OPERACION ..........................................................................................................27
TESTEOS en TERRENO ...........................................................................................................27
CONTROLES EN LA SALA DE MÁQUINAS..........................................................................28
CENTRO ENCENDIDO ILUMINACIÓN ...........................................................................28
CENTRO ENCENDIDO ILUMINACIÓN ......................................................................................28
CONTROLES UBICADOS EN GABINETE DE ARRANQUE BAJO VOLTAJE......................29
CONTROLES UBICADOS EN GABINETE BAJO VOLTAJE...........................................29
CONTROL UBICADO GABINETE CONTROLADOR PROGRAMABLE...............................30
GABINETE CONTROLADOR PROGRAMABLE TÍPICO ............................................................30
GABINETES CONTROL DE ACCIONAMIENTO DE LEVANTE/EMPUJE Y ROTACIÓN ......30
GABINETES TÍPICOS DE CONTROL DE ACCIONAMIENTO LEVANTE/EMPUJE Y ROTACIÓN
30
CONTROLES MISCELÁNEOS .......................................................................................31
PANEL DE CONTROL LLENADO REMOTO DEPÓSITO HIDRÁULICO .............................31
PANEL DE CONTROL LLENADO REMOTO DEPÓSITO HIDRÁULICO. ...................................31
ESTACIÓN PORTÁTIL DE PROPULSIÓN REMOTA (OPCIONAL) ......................................31
ESTACIÓN PORTÁTIL DE PROPULSIÓN REMOTA. ................................................................31
VERIFICACIONESANTES DELARRANQUE .............................................................................32
INSPECCION EXTERIOR .....................................................................................................32
INSPECCIONES A BORDO ..................................................................................................34
LUBRICATIÓNANTES DE MEPEZAR ..................................................................................38
ARRANQUE ................................................................................................................................38
ARRANQUE DE LA MÁQUINA ..............................................................................................38
REVISIÓN DE MAQUINARIA .................................................................................................39
REINICIO EN COMPONENTES NUEVOS............................................................................39
REINICIO DE UNIDAD DE TRANSMISIÓN DE ROTACIÓN ...........................................40
REINICIO EN CAJADE ENGRANAJES LEVANTE/EMPUJE ..........................................40
REINICIO EN MOTORES ELÉCTRICOS .......................................................................40
OPERACIÓN...............................................................................................................................41
2-3
Operación Sección
MD6640 Perforadora Electrica Para Pozos De Tronadural
PROPULSANDO ..................................................................................................................41
DEFINICIONES ...............................................................................................................41
PROCEDIMIENTOS DE PROPULSIÓN ...............................................................................42
PROPULSIÓN RECTA ...............................................................................................................44
GIRO GRADUAL A LA DERECHA .............................................................................................44
GIRO GRADUAL A LA IZQUIERDA...........................................................................................45
GIRO CONTRARELOJ A LA IZQUIERDA..................................................................................45
ASEGÚRESE HACER GIROS GRADUALES EN INCREMENTOS DE 15º ................................46
PROCEDIMIENTO DE REMOLQUE ....................................................................................47
PROCEDIMIENTO DE REMOLQUE ..........................................................................................47
OPERACIÓN DEL PORTACABLE........................................................................................49
NIVELACIÓN .........................................................................................................................50
LEVANTANDO Y BAJANDO EL MÁSTIL................................................................................51
LEVANTANDO ELMÁSTIL ....................................................................................................52
PANTALLA DE ESTATUS DEL MASTIL ....................................................................................54
BAJANDO EL MÁSTIL ...........................................................................................................54
OPERACIÓN DE LA MAQUINARIA DE EMPUJE ..................................................................56
OPERACIÓN DEL WINCHEAUXILIAR .................................................................................57
OPERACIÓN DEL PORTABARRAS .....................................................................................58
OPERACIÓN DEL PORTABARRAS ..........................................................................................59
MANEJO DE HERRAMIENTAS .............................................................................................62
CARGA Y DESCARGA DE LAS BARRAS ............................................................................62
ENSAMBLAJE DE LA COLUMNA DE PERFORACIÓN ........................................................64
COLUMNADE HERRAMIENTAS ...............................................................................................64
INSTALACIÓN DEL ESTABILIZADOR.......................................................................................65
OPERACIÓN DE LA LLAVE DE DESCONEXIÓN ......................................................................69
DESARME DE LA COLUMNA DE PERFORACIÓN..............................................................71
AGREGANDO BARRA DE PERFORACIÓNADICIONAL ...............................................73
REMOCIÓN DE SECCIONES MÚLTIPLES DE BARRAS DE PERFORACIÓN ............75
PERFORACIÓN INCLINADA.................................................................................................76
EQUIPAMIENTO PARA PERFORACIÓN INCLINADA ...............................................................76
POSICIONADOR DE BARRAS..................................................................................................77
GRÚA GIRATORIA ....................................................................................................................78
OPERACIÓN SISTEMA DE SUPRESIÓN DE POLVO ...................................................79
SISTEMA DE INYECCIÓN DE AGUA .......................................................................................80
PERFORACIÓN ....................................................................................................................81
PERFORACIÓN VERTICAL............................................................................................81
INICIANDO EL POZO (ANILLANDO) ...............................................................................82
PERFORACIÓN NORMAL..........................................................................................................84
FINALIZANDO EL POZO .......................................................................................................85
FINALIZANDO EL HOYO (SECCIONES MÚLTIPLES DE BARRA).................................86
PERFORANDO FORMACIONES DIFÍCILES .......................................................................87
MATERIALES NO CONSOLIDADOS ..............................................................................87
FORMACIONES HÚMEDAS O PEGAJOSAS .......................................................................90
PERFORACIÓN INCLINADA...........................................................................................91
PERFORACIÓN CON CONTROL DE PERFORACIÓN PROGRAMADA. (C.P.P) ..............92
PREPARÁNDOSE PARAUN CAMBIO..................................................................................93
2-4
Operación Sección
MD6640 Perforadora Electrica Para Pozos De Tronadura
DETENCIÓN DE LA MÁQUINA ...................................................................................................95
PROCEDIMIENTOS DE DETENCIÓN .................................................................................95
ALMACENAJE POR CORTO TIEMPO .......................................................................................97
ALMACENAJE POR LARGO TIEMPO ..................................................................................98
ALMACENAJE POR LARGO TIEMPO, CON ASISTENCIA.............................................99
ALMACENAJE POR LARGO TIEMPO, SINASISTENCIA ...............................................99
RECUPERACIÓN DE HERRAMIENTAS .................................................................................. 101
CARTA DE ESTABILIDAD DE PERFORACIÓN ....................................................................... 103
Carta de Estabilidad de Perforación - Condiciones Especiales de Propulsion ........................103
Carta de Estabilidad de Perforación - Condiciones Tipicas de Propulsion ..............................104
2-5
Operación Sección
MD6640 Perforadora Electrica Para Pozos De Tronadural
Sección 2
Operación
INFORMACION GENERAL
Esta sección del Manual ayudará en la operación de ésta máquina. Proporciona al operador la
ubicación y explicación de los controles, instrucciones para la operación de la máquina y ciertas
técnicas de maniobras. En todo el contenido de esta sección y en el resto del Manual, el uso de los
términos “IZQUIERDA, DERECHA, ADELANTE yATRAS”, se refieren a ubicaciones de la máquina
vistas por el operador, sentado en la butaca del operador en la cabina.
La operación segura de la máquina minimiza retrasos de producción y daños costosos al equipo.
Estudie cuidadosamente y siga todos los procedimientos recomendados en este Manual. Las
pautas de seguridad están destinadas a prevenir la ocurrencia de accidentes y se entregan para el
interés de todo el personal de la mina. La seguridad total depende del uso del buen juicio y la
observancia por todo el grupo de la mina. Vea la Sección 1de éste manual, precauciones específicas
de seguridad.
OPERACION CERCANAALINEAS ELÉCTRICAS
PELIGRO: ¡ALTO VOLTAJE! Las siguientes precauciones deberán ser cumplidas
por cualquiera que opere alrededor o cercano a las líneas de
distribución eléctrica y líneas de transmisión.
Trabajar en la vecindad de líneas eléctricas representa un grave peligro y se debe tomar precauciones
especiales. Para los propósitos de este manual estamos considerando que la totalidad de la
máquina o su carga, en cualquier posición que pueda alcanzar, esta dentro de la distancia mínima
especificada por las regulaciones locales, estatales y federales.
Las prácticas de operación segura requieren que Ud. mantenga la máxima distancia posible de
los cables y nunca viole los espacios mínimos.
Antes de trabajar en la vecindad de líneas de energía, tome siempre las siguientes precauciones:
• Siempre contacte a los propietarios de las líneas de energía o el servicio de electricidad más
cercano, antes de comenzar a trabajar.
• Ud. y el representante del servicio eléctrico deben determinar en conjunto, qué precauciones
específicas deben ser tomadas para garantizar la seguridas.
• Es responsibilidad del usuario y del servicio eléctrico, velar para que se tomen todas las
precauciones necesarias.
2-6
Operación Sección
MD6640 Perforadora Electrica Para Pozos De Tronadura
• Considere a todas las líneas como líneas de energía y trátelas como si estuvieran energizadas,
aun cuando se sepa que la energía está cortada y el cable está visiblemente a tierra.
• Retarde el ciclo de operación. El tiempo de reacción puede ser demasiado lento y las distancias
pueden estar mal estimadas.
• Advierta a todo personal en tierra, que se mantenga todo el tiempo alejado de la máquina.
• Use a un señalero para que guíe la máquina en espacios estrechos. La única responsibilidad
de ésta persona es observar la aproximación de la máquina a las líneas de energía. El señalero
debe estar en comunicación directa con el operador y el operador debe prestar estrecha atención
a las señales.
PELIGRO: ¡ALTO VOLTAJE! Pueden ocurrir la muerte o lesiones si cualquier parte de
la máquina entra en la distancia mínima de una línea de potencia energizada,
especificada por las regulaciones locales, estatales y federales.
CONTROLES - LOCALIZACIÓN Y FUNCIONES
Aún cuando exista experiencia previa, el nuevo operador de cualquier máquina, debe familiarizarse
con la ubicación y funciones de todos los controles de operación antes de que pueda comenzar a
operar la máquina. Ya que en este manual se muestran todos los controles posibles que podrían
emplearse en la Perforadora Eléctrica para Pozos de Tronadura MD6640, el operador debería
familiarizarse tanto con este manual como con la máquina específica que va a operar.
Para el propósito de este manual, los controles de operación han sido divididos en tres grupos,
dependiendo de su localización.
PRECAUCIÓN: LEA Y FAMILIARÍCESE CON ESTE MANUAL ANTES DE INTENTAR
OPERAR CUALQUIER CONTROL DE LA MÁQUINA. PRESTE
PARTICULAR ATENCIÓN A LOS PÁRRAFOS DE PRECAUCIÓN Y
ADVERTENCIA, ASÍ COMO A LAS REGULACIONES FEDERALES,
ESTATALES Y LOCALES O LAS REGULACIONES DE SEGURIDAD
DE LA COMPAÑÍA RELATIVA A LA MÁQUINA. OMITIR TENER EL
CUIDADO Y EL CONOCIMIENTO DE LOS PELIGROS ASOCIADOS
CON LA OPERACIÓN DE LOS CONTROLES, PUEDE SER CAUSA
DE MUERTE, LESIONES PERSONALES O SEVEROS DAÑOS A LA
MÁQUINA.
2-7
Operación Sección
MD6640 Perforadora Electrica Para Pozos De Tronadural
CONSOLA DE CONTROL DE LOS OPERADORES
Las consolas de control del operador están montadas en cada lado del asiento del operador. El
monitor de despliegue es en el que fue montado en la consola izquierda, como se muestra. Una
consola auxiliar de control está ubicada a la derecha del operador.
NOTA: LOS CONTROLES DEL OPERADOR SON TODOS ELÉCTRICOS. LOS
INTERRUPTORES, LOS POTENCIÓMETROS Y JOYSTICKS MANEJAN
CONTROLES ELÉCTRICOS, CONTROLES ELECTROMECÁNICOS, O VÁLVULAS
ACCIONADAS ELECTROHIDRAULICAMENTE EN LA MÁQUINA.
CONSOLA DE CONTROL DE LOS OPERADORES – VISTA GENERAL
NOTA: LOS PANELES CON CONTROLES QUE SE MUESTRAN EN LAS PÁGINAS
SIGUIENTES, SON LOS TÍPICOS DE AQUELLOS QUE PODRÍAN SER INCLUIDOS
EN UNA CONSOLA.
2-8
Operación Sección
MD6640 Perforadora Electrica Para Pozos De Tronadura
CONSOLA CONTROL IZQUIERDO
CONSOLA CONTROL IZQUIERDO – VISTA GENERAL
2-9
Operación Sección
MD6640 Perforadora Electrica Para Pozos De Tronadural
BOTÓN PROGRAMADO DE CONTROL DE LA PERFORADORA - OPCIÓN
El botón programado de control de la perforadora se usa para activar o desactivar el sistema de
control programado del taladro en la máquina.
INTERRUPTOR DEL SELECTOR DE MODO DE OPERACION
Este interruptor de cuatro posiciones es usado para seleccionar uno de tres modos operativos de
perforación.
PROPULSION - Permite todas las funciones de propulsión al desactivar el winche, el mástil y todas
las funciones de izado/levante.
PERFORACION - Permite todas las funciones perforadoras al desactivar todas las funciones de
propulsión.
MASTIL/WINCHE - Habilita todas funciones de mástil y winche mientras que deshabilita todas las
funciones de propulsión.
REMOTO - Permite que todas las funciones de propulsión sean operadas desde la unidad de
control remoto y desactiva los controles de cabina del operador.
INTERRUPTOR SELECTOR DE ALCANCE DE VELOCIDAD DE IZADO / LEVANTE
Interruptor selector de alcance de velocidad izado/levante controla el alcance de modo operativo y
de velocidad del mando de izado/levante cuando se esta en modo de perforación. El interruptor
selector del modo operativo debe estar en la posición de PERFORACION para que este selector de
velocidad funcione.
El interruptor es un interruptor de cuatro posiciones con las siguientes designaciones: IZADO,
LEVANTE PUNTO BAJO, LEVANTEALTO, yACOPLAMIENTO/PORTABARRAS.
En el ajuste de IZADO, el cual es usado para perforación normal, la fuerza completa del izado es
disponible pero al alcance de velocidad para ambos izado y levante se le limita acerca de 25 FPM
(7.62 MPM).
Los ajustes de LEVANTE BAJO y LEVANTEALTO son usados para elevar la tubería en aceleraciones
de altas velocidades.
En la posición de LEVANTE BAJO una alta velocidad del cabezal es permitido, pero la velocidad es
a permitida a alcanzar un nivel más alto (típicamente acerca de 25 FPM [7.62 MPM]).
2-10
Operación Sección
MD6640 Perforadora Electrica Para Pozos De Tronadura
En la posición de LEVANTE ALTO que a la máxima capacidad principal de velocidad se le permite
para ambos levante y el rebajamiento. Típicamente acerca de 75 FPM (22.86 MPM).
Como resultado de obtener una velocidad más alta, la capacidad de fuerza de levante a toda
velocidad no es tan alta como la obtenible en la posición de LEVANTE BAJO.
En la posición del PORTABARRA/ACOPLAMIENTO, el límite de velocidad es reducido a 25 FPM
(7.62 MPM) la fuerza de bajada es limitada al cabezal y peso del acero del taladro. Ésta es la
posición del interruptor para cualquier operación del pipero.
NOTA: LAOPERACIÓN DELPORTABARRAS TAMBIÉN REQUIERE QUE LAASAMBLEA
ROTATIVADEL CABEZAL ESTÉ POR ENCIMADE LOS PORTABARRASANTES DE
QUE LA OPERACIÓN SEA PERMITIDA.
INTERRUPTOR DEL FRENO DE LEVANTE
El interruptor del freno de levante es un interruptor de dos posiciones usado para colocar o soltar el
freno de levante. Este interruptor debe estar en la posición de LIBERACIÓN antes de que el mando
de levante/izado sea permitido a mover la maquinaria del mástil. Colocando el interruptor dentro de
la posición DETERMINADA durante la operación de la máquina inmediatamente desactiva operación
de mando de levante/izado.
Bajo normales condiciones de operación, el reostato de velocidad de levante/izado debería estar
ajustada a " APAGADO" antes colocar el freno.
NOTA: Aplicarle el freno de levante es una acción de resorte. Después de que el interruptor del
FRENO de LEVANTE es revuelto para la posición DETERMINADA, el resorte del freno es des-
energizado permitiendo a los resortes el freno a aplicar fuerza a los discos del freno.
Al soltar el freno de levante, el resorte del freno es energizado; Condensando las primaveras, cuál
lanza al mercado presión en los discos del freno.
INTERRUPTOR DE VALVULA DE AIRE PRINCIPAL
Este interruptor de dos posiciones es usado para controlar la válvula de mariposa en la línea de
descarga del compresor de aire. El interruptor operativo de modo debe estar en la posición del
TALADRO (en otros modos se aborta a la posición cerrada).
ABRIR -Abre la válvula de mariposa.
CERRAR - Cierra la válvula de mariposa y causa que el compresor de aire corra descargado.
2-11
Operación Sección
MD6640 Perforadora Electrica Para Pozos De Tronadural
BOTÓN DE PRESION DE REAJUSTE DEL INDICADOR DE PROFUNDIDAD
El botón de presión de reajuste del indicador de profundidad es usado para poner el de profundidad
a cero, como se muestra en el monitor de despliegue del operador, cuándo un hoyo es completado
y otro debe ser comenzado.
DE BOTÓN DE PARADA DE EMERGENCIA
El interruptor de botón de parada de emergencia en la consola izquierda de control es un interruptor
de botón rojo grande tipo cabeza de hongo. Presionando el botón de parada de emergencia apagara
el compresor de aire, sistemas hidráulicos y desconectará todos los controles. También
simultáneamente proveerá frenado mecánico inmediato. Este botón sólo debería ser usado en
situaciones de emergencia.
PRECAUCION: PRESIONAR ESTE BOTÓN CUANDO CUALQUIER MANDO
ESTE EN FUNCIONAMIENTO PUEDE DAR COMO RESULTADO
DAÑOS COMPONENTES.
INTERRUPTOR DE LA ESCOTILLA MIRADOR DE LA BROCA
Este interruptor de dos posiciones es usado para mover la escotilla para mirar el cabezal del taladro
en el terreno. Mover el interruptor a la posición CERRAR, cerrará la escotilla. Revolver el interruptor
para la posición ABRIR, abrirá la escotilla.
JOYSTICK IZQUIERDO (LA FUNCIÓN DUAL) -ORUGAS DE PROPULSION /WINCHE
NOTA: UN CANDADO NEUTRALES PROVISTO PARAIMPEDIR MOVIMIENTOACCIDENTAL
DEL JOYSTICK. EL JOYSTICKAUTOMÁTICAMENTE REGRESAANEUTRAL Y EL
CANDADO ES ENGANCHADO EN CUALQUIER MOMENTO QUE EL JOYSTICK ES
SOLTADO. PARAHABILITAR EL MOVIMIENTO DEL JOYSTICK,ALZAR EN EL
CANDADO (LOCALIZADO DEBAJO DE LA PERILLA DEL JOYSTICK). LA VELOCIDAD
DE OPERACIÓNAUMENTAASI COMO LAPOSICIÓN DEL JOYSTICK ES MOVIDA
ALEJÁNDOLA DEL NEUTRAL.
ORUGA IZQUIERDA de PROPULSION - Usar para controlar la velocidad de propulsión y la
dirección de pista izquierda cuando el interruptor MODO DE OPERACION está en la posición
de PROPULSION.
NOTA: EL FRENO DE PROPULSIÓN DEBE SER SOLTADO, LAS GATAS COMPLETAMENTE
RETRACTADAS, LAS ESCALERAS DEABORDAJE ELEVADAS.
2-12
Operación Sección
MD6640 Perforadora Electrica Para Pozos De Tronadura
1. EMPUJAR el joystick alejándole de usted para propulsar la oruga izquierda hacia adelante.
2. JALAR el joystick hacia usted para propulsar la oruga izquierda en reversa.
WINCHE - Usado para controlar el levante/rebajamiento de la velocidad del winche,
junto con la dirección de viaje cuando en el MODO de OPERACION está en la posición
del MASTIL/WINCHE
1. EMPUJAR el joystick alejándole de usted para levantar o elevar el gancho del winche.
2. JALAR el joystick hacia usted para bajar el gancho del winche.
INTERRUPTOR SELECTOR DE VELOCIDAD DEL MANDO ROTATIVO
El interruptor selector de velocidad es un interruptor de tres posiciones se encuentra por sobre el
reostato rotativo. Este interruptor determina el alcance de velocidad/fuerza de torsión del motor
rotativo. En la posición BAJA, el motor tiene la capacidad más alta de fuerza de torsión pero está
limitado en la velocidad para acerca de 85-100 RPM en el cabezal. En la posición ALTA, el motor
tiene una capacidad más alta (alcance de 110-140 RPM) de velocidad pero la fuerza de torsión del
motor será menos (típicamente 68% a 74%). La posición MEDIA provee operaciones entre las
posicionesALTAS y BAJAS.
El interruptor debería ser ajustado al rango que mas acerca el rango de velocidad de broca deseado.
El ajuste BAJO es suficiente para la mayoría de condiciones. Si más velocidad es deseada, seleccione
el rango deseado según sea necesario.
REOSTATO DE LEVANTE/IZADO
El reostato de levante/izado controla la velocidad y dirección del motor de levante-izado para alzar o
bajar el mando de la unidad rotativa.
Girando el reostato en la dirección de izado desde la posición "0" disminuirá la unidad de mando
rotativa. La velocidad máxima está disponible en posición que gira en sentido del reloj completa.
Girando el reostato en la dirección del izado desde la posición de "0" aminorará la unidad de mando
rotativa. La velocidad máxima está disponible en la posición que giro contrario al reloj.
NOTA: El reostato utiliza una escala de referencia y puntero. Cuando el reostato girado, el
puntero indica, en la escala de referencia, el porcentaje relativo de velocidad completa
esta siendo ajustada.
2-13
Operación Sección
MD6640 Perforadora Electrica Para Pozos De Tronadural
Los paneles con controles como se muestra en las siguientes páginas son típicos de lo que
podrían ser incluidos en una consola.
INTERRUPTOR DE CONTROL DE POLVO - OPCIÓN
El interruptor de colector de polvo es un interruptor de dos posiciones para iniciar el ventilador en
la tolva de colector de polvo. Cuando el interruptor está en la posición de apagado, se apagará el
colector de polvo del motor del ventilador.
INTERRUPTOR DE LA CORTINA DE POLVO - OPCIÓN
El interruptor de la cortina de polvo es un interruptor de dos posiciones. Girando el interruptor a la
posición LEVANTADAalzará las cortinas de polvo. Girándolo a la posición BAJAbajará las cortinas
de polvo.
CONTROL DE FLUJO DE CONTROL DE POLVO - OPCIÓNAL
Este interruptor no es usado en esta aplicación.
ATOMIZADORES DEBAJO DE CUBIERTA - OPCIÓNAL
Este interruptor no es usado en esta aplicación.
2-14
Operación Sección
MD6640 Perforadora Electrica Para Pozos De Tronadura
CONSOLA CONTROL DERECHA
CONSOLA CONTROL DERECHA – VISTA GENERAL.
2-15
Operación Sección
MD6640 Perforadora Electrica Para Pozos De Tronadural
EL INTERRUPTOR DEL POSICIONADOR DE LA TUBERÍA
El interruptor del posicionador de la tubería es un interruptor de tres posiciones de retroceso por
muelle. Girar el interruptor a la posición SOBRE HOYO replegará los cilindros de alineación del
posicionador. Cuando este completamente replegado este entonces extenderá el posicionador de
la mandíbula del para sujetar la tubería del taladro. Girar el interruptor para la posición GUARDAR
replegará el cilindro de mandíbula, entonces extenderá los cilindros de alineación del posicionador
para la posición guardada.
JOYSTICK DERECHO (FUNCIÓN TRIPLE) - ORUGA DE PROPULSIÓN /PORTABARRAS /
MÁSTIL
NOTA: Un candado neutral es provisto para impedir movimiento accidental del joystick. El
candado neutral debe ser soltado para que este joystick de control pueda funcionar. El
joystick automáticamente regresa a neutral y el candado es enganchado en cualquier
momento que el joystick es soltado. Para permitir movimiento del joystick, elevar el
cerrojo localizado debajo de la manija del joystick. La velocidad de operación aumenta
cuando el joystick desplazado alejándole de la posición neutral (centro).
PROPULSION - Usar para asignar la velocidad y dirección de propulsión para la oruga
correcta cuando el interruptor MODO OPERATIVO está en la posición de PROPULSION.
NOTA: El freno de propulsión debe ser soltado, las gatas completamente retractadas, las
escaleras de abordaje elevadas.
1. EMPUJAR el joystick alijándole de usted para propulsar la oruga hacia adelante.
2. JALAR el joystick hacia usted para propulsar la pista correcta en reversa.
PORTABARRAS - Usado para controlar manualmente el sobre-hueco del portabarras y guarda
las funciones cuando el interruptor del MODO OPERATIVO está en posición de
PERFORACION.
1. EMPUJAR la palanca de mando de usted para extender el portabarras hacia la posición
del sobre-hueco.
2. JALAR la palanca de mando hacia usted para retractar el portabarras hacia la posición
guardada.
MÁSTIL - Usado controlar el izado del mástil y aminorando las funciones cuando el interruptor
de MODO OPERATIVO está en la posición del MÁSTIL/PORTABARAS.
1. EMPUJAR el joystick alejado de usted para alzar el mástil.
2. JALAR el joystick para bajar el mástil.
2-16
Operación Sección
MD6640 Perforadora Electrica Para Pozos De Tronadura
POTENCIÓMETRO DE VELOCIDAD ROTATIVA
El potenciómetro de velocidad rotativo es usado para controlar la velocidad y la dirección de los
mandos de motores rotativos. El interruptor MODO OPERATIVO debe estar en la posición del
PERFORACION que este control funcione.
NOTA: La velocidad de operación aumenta como la manija del potenciómetro es rotada desde
ENCENDIDO hacia MÁXIMUM en cualquier dirección. La máxima velocidad obtenible es
determinada por la posición del interruptor del MANDO DE VELOCIDAD ROTATIVA.
Girar la manija hacia la derecha desde APAGADO hacia MÁXIMUM para rotar la cuerda de la
herramienta hacia la derecha.
Girar la manija hacia la izquierda desde APAGADO hacia MÁXIMUM para rotar la cuerda de la
herramienta hacia la Izquierda.
INTERRUPTOR DEL DESLIZADOR DEL SELLO DE POLVO
Éste es un interruptor de tres posiciones de retroceso por muelle el cual es usado para iniciar
movimiento del sello de polvo de la cubierta de la perforadora. Girando el interruptor para la posición
TRASERA causará que el mecanismo del sello de polvo se mueva hacia la parte de atrás de la
máquina. Girando el interruptor para la posición DELANTERA causará que el mecanismo del sello
de polvo se mueva hacia el frente de la máquina. Este interruptor es funcional cada vez que las
bombas hidráulicas corren, y es sólo usado en máquinas con el paquete de perforación de hoyos
de ángulo.
INTERRUPTOR SELECTOR DEL RANGO DE VELOCIODAD DE PROPULSION
Este interruptor de dos posiciones es usado para ajustar la velocidad de propulsión. En la posición
BAJA, lo propulsa está en un alcance de baja velocidad (acerca de 35 % máximum). Esta posición
es usada al hacer maniobras en lugares estrechos y en perforaciones con patrones. La posición
NORMAL es usada al moverse de un sitio para otro.
INTERRUPTOR DE BOTÓN DE BOCINA
El interruptor de botón de bocina se usa para sonar la bocina de alarma de la máquina.
2-17
Operación Sección
MD6640 Perforadora Electrica Para Pozos De Tronadural
INTERRUPTOR DE LA LLAVE HERRAMIENTA
Este interruptor de tres posiciones, retroceso por muelle a centro -APAGADO se usa para controlar
las funciones de la llave herramienta.
Girando y sujetando el interruptor en la posición EXTENDIDA causará que la llave herramienta se
extienda enganche el tubo de perforación. Girando y sujetando el interruptor en la posición
RETRACTADAretractará la llave herramienta, soltando el tubo de perforación.
Permitir el interruptor se recoja a la posición del centro APAGADO detiene la moción de la llave
herramienta desde cualquier posición en su alcance normal de moción.
INTERRUPTOR DE LA LLAVE DE RUPTURA
Este interruptor de tres posiciones, retroceso por muelle a centro - APAGADO se usa para la llave
de ruptura. El portabarras debe estar en la posición guardada para que este interruptor funcione.
Girando y sujetando el interruptor en la posición EXTENDIDA causará que la llave de ruptura se
extienda para sujetar el tubo de perforación y rompa la juntura creada. Girando y sujetando el
interruptor en la posición de RETRACTADA causará que las mandíbulas de la herramienta abran,
suelten el tubo de perforación, y replieguen la llave mecánica.
Permitir que el interruptor de resorte regrese a la posición del centro APAGADO detiene la moción
de la llave de ruptura desde cualquier posición en su moción o alcance normal.
NOTA: La llave mecánica de ruptura debe estar en la posición completamente retractada antes
de elevar el tubo de maniobras del brazo.
INTERRUPTOR SELECTOR DEL PORTABARRAS
El interruptor selector del portabarras es un interruptor de cuatro posiciones usado para decidir cuál
portabarras será operada. Para máquinas sin portabarras o con sólo una portabarras, este interruptor
no es usado.
INTERRUPTOR DEL CARRUSEL DE BROCA
Este interruptor no es usado en esta aplicación.
2-18
Operación Sección
MD6640 Perforadora Electrica Para Pozos De Tronadura
INTERRUPTORES DE CONTROL DE GATAS DE NIVELACION
Los tres interruptores tensores son usados para manualmente alzar o bajar las gatas de nivelación.
INTERRUPTOR AUTOMÁTICO DE NIVELACION
El interruptor automático de nivelación es un interruptor de retroceso por muelle de tres posiciones.
Presionando el cambio a la posición EXTENDIDA extenderá los cilindros de la gata de nivelación y
elevará la máquina. Presionando el interruptor posición RETRACTADA replegará los cilindros y
bajará la máquina. Cuando este interruptor es usado, los interruptores tensores manuales de
nivelación no son funcionales.
NOTA: El interruptor automático de nivelación es un interruptor de retroceso por muelle. El
interruptor debe estar sujeto hasta que la acción deseada de las gatas de nivelación
haya sido lograda. Soltar el interruptor permitirá que regrese a la posición neutral pero
las gatas se quedarán en la posición a la cual fueron movidos.
2-19
Operación Sección
MD6640 Perforadora Electrica Para Pozos De Tronadural
CONSOLA DE CONTROLAUXILIAR
CONSOLADE CONTROLAUXILIAR
LUCES EXTERIORES
El interruptor de dos posiciones se usa ENCENDER y APAGAR las luces exteriores.
2-20
Operación Sección
MD6640 Perforadora Electrica Para Pozos De Tronadura
BOTÓN DE PRESION DE FALLA DEL CABLE DE ARRASTRE
El interruptor de botón grande tipo cabeza de hongo se usa para cortar completamente el poder
para la máquina completa. Presionando el botón de FALLADE CABLE DEARRASTRE desactivará
el poder para la perforadora desde su fuente.
PRECAUCION: PRESIONAR ESTE BOTÓN CUANDO CUALQUIER MANDO
ESTÁ EN MOVIMIENTO PUEDE DAR COMO RESULTADO
DAÑOS A COMPONENTES.
INTERRUPTOR DESCONGELADOR DEL PISO
El interruptor descongelador del piso es un interruptor de dos posiciones usado para ENCENDER o
APAGAR el calefactor.
CONTROLES DE CALEFACTOR / VENTILACION / AIRE ACONDICIONADO
Los controles acondicionadores de calefactor / ventilación / aire acondicionado (HVAC) consisten
en tres controles.
El interruptor de control de HVAC selecciona el modo que esta siendo usado y tiene las siguientes
posiciones: OFF (apagado) , FAN (ventilador), HEAT (calefactor), y COOL(enfriamiento) Un reostato
de temperatura es usado para ajustar temperatura de aire de la cabina.
Los controles del interruptor de velocidad del ventilador controlan la circulación de aire. Las tres
posiciones son:APAGADO, BAJO yALTO.
INTERRUPTOR DE ESCALAS DE ABORDAJE
El interruptor de las escalas de abordaje es un interruptor de dos posiciones. Un interruptor similar
está localizado en las escaleras. Dependiendo de la posición de las escaleras, el interruptor debe
ser movido de su posición presente para la posición opuesta que las escaleras cambien de posición.
RADIO /CD PLAYER
El radio de AM/FM incluye un toca-CD estéreo.
2-21
Operación Sección
MD6640 Perforadora Electrica Para Pozos De Tronadural
DESPLIEGUE DEL OPERADOR
El despliegue del operador provee al operador con interfaz a la máquina y sus áreas funcionales.
De este despliegue informativo, el operador puede hacer a los aportes que efectúan operación de
la máquina, puede monitorear a los sistemas y hacer ajustes del sistema. A través de esta terminal
de despliegue el operador recibirá datos pertinentes de falla para identificar problemas potenciales
e impedir daño de la máquina.
MONITOR DE DESPLIEGUE DEL OPERADOR
Refiérase a un manual separado para más métodos operacionales para el Despliegue del Operador.
El monitor de despliegue está montado en un pivote de inclinación en la consola izquierda de
control. Los operadores individuales pueden situar la pantalla en cualquier posición deseada.
EL ÁREA DE DESPLIEGUE Y LOS INDICADORES
El área de despliegue de la pantalla del monitor es el área grande en el centro de la pantalla. Este
área es de "toque sensitivo." Toda información será exhibida en esta área en un formato de texto o
en la forma de iconos visuales. Los botones e iconos que aparecen en la pantalla responderán a el
toque de la pantalla en el área apropiado del icono.
Estos iconos y estos botones reaccionarán activando la pantalla, intercambiarán activación o
mostrarán información pertinente para el icono. Los interruptores y los botones serán cubiertos de
las siguientes páginas debajo del tema de la pantalla en el cual aparecen.
2-22
Operación Sección
MD6640 Perforadora Electrica Para Pozos De Tronadura
Los indicadores en la porción más bajo del área de la pantalla son indicadores y sensores, cuál
indica funcionabilidad del despliegue del operador y su interfaz con el controlador PLC de la máquina.
No tienen efecto en el uso operacional de la máquina.
Todo los controles de la máquina pueden ser encontrados en la Pantalla de toque sensitivo del
Panel de Despliegue del Operador o las consolas izquierda y derecha de Control del asiento del
operador.
PANTALLAS DE DESPLIEGUE
La información prevista en el área central de la pantalla titular es especifica para la máquina y lista
el número de serie de la máquina y un aviso de derecho de autor referente al control y software de
despliegue.
PANTALLA TITULAR
Los Iconos Principales del Menú aparecen por el fondo de todas las pantallas permitiendo navegación
rápida.
2-23
Operación Sección
MD6640 Perforadora Electrica Para Pozos De Tronadural
PANTALLA NIVELADORA
La Pantalla de Nivelación provee detalle en el nivel de la máquina y el estado de la gata.
PANTALLA DE ESTADO
La Pantalla de Estado es la primaria herramienta de información operacional visible para el operador
durante el uso diario de esta máquina. Los controles disponibles en esta pantalla proveerán al
operador con la información necesitada mirar "a simple vista" el estatus de artículos requeridos
para perforar, y hacer cambios en los ajustes de control. La Pantalla de Estatus es más comúnmente
usada durante el proceso de perforación.
2-24
Operación Sección
MD6640 Perforadora Electrica Para Pozos De Tronadura
ALARMAS ACTIVAS
La pantalla de Alarma Activa proveerá una lista de todas las fallas y alarmas activas que han sido
iniciadas en la máquina y no han sido RESETEADAS. Una vez que una alarma o una falla ha sido
sentida, estos mensajes permanecerán visibles y NO SERÁN removidos desde esta pantalla hasta
que sea RESETEADA.
PANTALLA DE ESTADO con cinta de Pop-up
Cualquier alarmas nuevas saltarán a la vista automáticamente siempre que un sensor de la máquina
detecta una falla recién que ocurra o un mensaje de advertencia.
2-25
Operación Sección
MD6640 Perforadora Electrica Para Pozos De Tronadural
HISTORIAL DE ALARMA
La pantalla de Historia deAlarma retiene un registro cronológico de todas las alarmas. Esta pantalla
provee información pertinente; codigos de falla, fecha, hora y una descripción breve para cada
informe.
AYUDA DE NAVEGACION
2-26
Operación Sección
MD6640 Perforadora Electrica Para Pozos De Tronadura
DIAGNOSTICOS DEL PLC
Esta pantalla le provee el acceso a las pantallas de datos de localización de fallas del PLC. El
estatus de todas las entradas y salidas en cada una de las racas primarias remotas de Entrada/
Salida pueden ser sacadas de esta pantalla presionando los botones nodo en el lado izquierdo del
despliegue.
CALIBRACIONES y LIMITES
La pantalla de Calibración y Límites es usada para colocar la mayoría de límites de la máquina
requeridos para controlar los movimientos de la máquina.
ADVERTENCIA: Cuando esta pantalla es activa, los límites de la maquinaria
del mástil están deshabilitados. Un cuidado extremo debe ser
tomado para impedir daño mecánico a la perforadora.
2-27
Operación Sección
MD6640 Perforadora Electrica Para Pozos De Tronadural
HORAS DE OPERACION
La pantalla de Horas Operativas / Contador de Falla provee al operador con información sobre el
número de fallas que han ocurrido desde el último RESETEO. También provee el total de horas de
función.
TESTEOS en TERRENO
Esta pantalla es usada para testeo a terreno de los subsistemas eléctricos, hidráulicos, y mecánicos.
Los testeos en esta pantalla permiten ciertos circuitos protectores que sean circunvalados con
propósitos de testeo.
2-28
Operación Sección
MD6640 Perforadora Electrica Para Pozos De Tronadura
CONTROLES EN LA SALA DE MÁQUINAS
NOTA: LOS CONTROLES MOSTRADOS EN LAS SIGUIENTES ILUSTRACIONES SON LOS
TÍPICOS CONTROLES EN UNA MÁQUINA. DEBIDO A LA VARIEDAD DE
CONTROLES QUE PUEDEN SER SUMINISTRADOS PARA LAS NECESIDADES
DEL CLIENTE, ASEGÚRESE DE CONOCER BIEN LOS CONTROLES INCLUÍDOS
EN LOS GABINETES DE SU MÁQUINA. TODOS LOS CONTROLES SERÁN
IDENTIFICADOS CON PLACA DE DESIGNACIÓN.
CENTRO ENCENDIDO ILUMINACIÓN
La central de encendido de iluminación está ubicada al lado izquierdo de la pared frontal de la sala
de máquinas.
La central de encendido de iluminación contiene los interruptores para controlar las luces internas y
externas además de varias funciones auxiliares.
CENTRO ENCENDIDO ILUMINACIÓN
Cada interruptor tiene su rótulo para identificar la función particular en cualquier máquina en particular.
Los controles son interruptores de circuito operados con palancas de tres posiciones. Moviendo la
palanca en la dirección (ON) se cerrará el circuito mientras que moviéndolo en la dirección contraria
(OFF) abrirá el circuito. La posición central es la posición de disparo. El interruptor se puede
reinstalar moviendo la palanca hacia la posición OFF y luego volverla hacia la posición ON.
2-29
Operación Sección
MD6640 Perforadora Electrica Para Pozos De Tronadural
CONTROLES UBICADOS EN GABINETE DE ARRANQUE BAJO VOLTAJE
El gabinete de arranque de bajo voltaje contiene el
interruptor del compresor principal. Moviendo el
interruptor a la posición ON, se activará el circuito del
compresor, permitiendo que se pueda arrancar el
compresor.
CONTROLES UBICADOS EN GABINETE BAJO VOLTAJE
El gabinete de bajo voltaje contiene muchos de
los interruptores del equipo auxiliar en la
perforadora. Debido a la variedad de los equipos
suministrados en una perforadora en particular,
en la figura se muestra un listado de controles
típicos que pueden aparecer en el gabinete.
2-30
Operación Sección
MD6640 Perforadora Electrica Para Pozos De Tronadura
CONTROL UBICADO GABINETE CONTROLADOR PROGRAMABLE
El gabinete controlador programable típico contiene controles como los mostrados en la figura.
GABINETE CONTROLADOR PROGRAMABLE TÍPICO
GABINETES CONTROL DE ACCIONAMIENTO DE LEVANTE/EMPUJE Y ROTACIÓN
Los controles típicos en los gabinetes de accionamiento de levante/empuje y rotación son los
mostrados en la figura inferior.
GABINETES TÍPICOS DE CONTROL DE ACCIONAMIENTO LEVANTE/EMPUJE Y ROTACIÓN
2-31
Operación Sección
MD6640 Perforadora Electrica Para Pozos De Tronadural
CONTROLES MISCELÁNEOS
Localizados alrededor de la máquina hay varios controles misceláneos y monitores que deberían
usarse con equipo opcional o que no corresponden a los grupos descritos previamente.
PANEL DE CONTROL LLENADO REMOTO DEPÓSITO HIDRÁULICO
El panel de control de llenado remoto del depósito de aceite hidráulico se usa para monitorear el
depósito cuando está siendo llenado. Las instrucciones para el uso de estos controles están
impresas directamente bajo los controles.
PANEL DE CONTROL LLENADO REMOTO DEPÓSITO HIDRÁULICO.
ESTACIÓN PORTÁTIL DE PROPULSIÓN REMOTA (OPCIONAL)
La estación portátil de propulsión remota está ubicada en un recinto cerrado bajo la cabina del
operador, al lado derecho de la máquina. Además de almacenar la estación portátil, el recinto aloja
un cable de 40’ de longitud y un switch que permite energizar o desenergizar la estación. Otro
switch de accionamiento y receptáculo para enchufar, están ubicados en la esquina frontal derecha
de la estructura principal de la perforadora. La estación incluye dos joysticks, uno para cada oruga,
un botón de parada de emergencia, un selector de velocidad de propulsión y un indicador rojo que
se encenderá cuando la estación está energizada.
ESTACIÓN PORTÁTIL DE PROPULSIÓN REMOTA.
2-32
Operación Sección
MD6640 Perforadora Electrica Para Pozos De Tronadura
VERIFICACIONES ANTES DEL ARRANQUE
Antes de arrancar la perforadora, inspecciónela y asegúrese que está lista para entrar en operación.
La omisión de realizar esta revisión de rutina puede resultar en pérdidas de tiempo innecesarias
Por ejemplo, una pérdida de aceite inadvertida puede implicar una caja de engranajes seca, lo cual
resultaría eventualmente en un excesivo desgaste del engranaje o su destrucción, rodamientos
agripados u otros problemas mecánicos. Gastar unos pocos minutos inspeccionando la máquina
a menudo da como resultado considerables ahorros de tiempo y aumento en la eficiencia de la
máquina. Esta inspección debe realizarse antes de cada turno.
INSPECCION EXTERIOR
1. Revise las áreas alrededor y bajo la máquina por señales de pérdidas de agua o lubricante.
Si se ven gotas aisladas de agua o aceite, la pérdida es mínima. Determine el origen de la
filtración y anótelo en el registro diario. Si se ven manchas de agua o aceite, determine su
origen y tome medidas de reparación
16
9
11
10
23 8 54
10
8
16
6 1
7
9
14
13
12
15
2 3 6848
11
1
7 insp6640
DERECHAIZQUIDERA
Delante de
la maquina
Delante de
la maquina
2-33
Operación Sección
MD6640 Perforadora Electrica Para Pozos De Tronadural
2. Inspeccione las cadenas de las orugas por si hay zapatas rotas o con fisuras, retenes de
pasadores faltantes, pasadores sueltos, y la tensión apropiada de la cadena.
3. Revise si hay filtraciones en la caja de engranajes de las ruedas motrices, los motores
hidráulicos y en las mangueras. Revise el nivel de lubricante de la caja de engranajes de las
ruedas motrices.
4. Inspeccione si la estructura de las orugas presenta fisuras o acumulación de suciedad o
hielo. Revise si los rodillos y tambores están bien lubricados, operan libremente o tienen
acumulación de suciedad o hielo. Examine los pasadores y pernos de fijación de los ejes.
5. Revise si hay rasgaduras en las cortinas contra polvo. Asegúrese que no estén congeladas
al piso o cubiertas con desmonte.
6. Inspeccione que el cable eléctrico esté fuera de la trayectoria de la perforadora. Inspeccione
si su revestimiento tiene cortes o abrasiones. Asegúrese que se mantenga fuera del agua y
de rocas cortantes. Haga que un electricista inspeccione el dispositivo de alivio de esfuerzo
y la condición del cable en su entrada a la máquina.
PRECAUCIÓN: EL CABLE ELÉCTRICO DE LA MÁQUINA CONDUCE UN VOLTAJE
LETAL. MANEJE EL CABLE DE UNA MANERAAPROBADA, CON
GUANTES DE GOMA APROBADOS Y GANCHOS Y TENAZAS
CON AISLAMIENTO.
7. Inspeccione si la parte inferior de la máquina presenta fisuras, mangueras o cables sueltos,
acumulación de suciedad o hielo u otros deterioros o daños. Si nota cables sueltos, no los
toque y avise de inmediato a un electricista.
8. Inspeccione que el vástago de las patas de nivelación tenga una cubierta de lubricante
apropiada. Inspeccione si las zapatas de las patas tienen fisuras, pasadores rotos o faltantes
o excesiva acumulación de suciedad.
9. Inspeccione los tirantes del mástil y sus pasadores de cierre. Reemplace los componentes
faltantes o defectuosos en forma inmediata. Verifique que todos los pernos de ajuste estén
debidamente apretados. Revise todas las mangueras y cilindros por si tienen filtraciones.
PRECAUCIÓN: USE CINTURÓN DE SEGURIDAD CON UNA CUERDA DE FIJACIÓN
PARA EVITAR CAÍDAS CUANDO SUBAA LOS TIRANTES DEL
MÁSTIL O TRABAJE EN EL TECHO DE LA SALA DE MÁQUINAS.
10. Inspeccione si los pasadores de la articulación del mástil están sueltos o por fijaciones o
pernos faltantes. Reemplace las partes dañadas o faltantes inmediatamente. Revise la
lubricación de los pasadores y lubríquelos si es necesario.
2-34
Operación Sección
MD6640 Perforadora Electrica Para Pozos De Tronadura
11. Inspeccione los cilindros de elevación del mástil por pasadores sueltos o chavetas faltantes,
pérdidas de aceite, mangueras dañadas o daños estructurales. Repare o reemplace cualquier
componente faltante o dañado inmediatamente.
12. Inspeccione si la estructura del mástil tiene planchas, perfiles o travesaños rotos o doblados,
componentes quebrados o faltantes, las cremalleras con apropiada lubricación o excesivo
desgaste. Inspeccione escaleras, pasamanos y plataformas por quebraduras o partes
faltantes. Repárelas o reemplácelas inmediatamente.
13. Revise que la manguera flexible principal, líneas de lubricación y eléctricas que van del mástil
a la unidad de accionamiento de rotación/empuje no tenga interferencias en el mástil, excesivo
desgaste o filtraciones.
14. Revise la seguridad de los cables fijos del mástil. Asegúrese que los cables y soportes están
en buen estado y sin fisuras, herrajes sueltos o faltantes, o cualquier daño que pueda afectar
su efectividad.
15. Cada 160 horas, inspeccione las poleas superiores del winche auxiliar. Todos los pasadores,
chavetas y herrajes deben ser asegurados.
16. Revise que el ducto del ventilador de aire filtrado de la sala de máquinas esté libre de
obstrucciones.
17. Inspeccione mangueras del colector de polvo por integridad.
INSPECCIONES A BORDO
1. Inspeccione si las líneas de lubricación del compresor tienen filtraciones. Corrija cualquier
filtración inmediatamente.
2. Revise la condición del filtro de admisión del compresor. Reemplace el cartucho de filtro si
es visible la señal roja del indicador de servicio. Vacíe el depósito de polvo y limpie el elemento
de prefiltro. Inspeccione el alojamiento y ductos por si hay daños o filtraciones. Repare o
reemplace los componentes dañados.
3. Revise el nivel de aceite del tanque de aceite hidráulico. Rellene el depósito al nivel apropiado
tal cual se describe en la placa de instrucciones en el tanque.
4. Revise si hay filtraciones en el sistema hidráulico. Corrija todas las filtraciones inmediatamente
y limpie todos los derrames de aceite.
2-35
Operación Sección
MD6640 Perforadora Electrica Para Pozos De Tronadural
5. Si la máquina esta equipada con un lubricador de brocas en la línea de aire principal, revise
que el lubricador esté lleno.6. Inspeccione que las estaciones de bombeo de la central de
lubricación automática operen correctamente. Revise el suministro de lubricante y cambie o
rellene los tambores si es necesario.
6. Inspeccionar las estaciones de bombeo automático de lubricación central para la operación
correcta. Chequear el suministro de lubricante; Rellenar tanque como necesario.
7. Cierre y asegure todas las puertas de los gabinetes eléctricos.
PRECAUCIÓN: ASUMA QUE TODOS LOS COMPONENTES DENTRO DE LOS
GABINETES ELÉCTRICOS ESTÁN ENERGIZADOS. EL
SERVICIO DE ÉSTOS COMPONENTES ELÉCTRICOS DEBERÍA
SER REALIZADO SOLAMENTE POR PERSONAL ELÉCTRICO
CALIFICADO.
8. Inspeccione el radiador y el ventilador del compresor. Revise si hay signos de deterioro o
daños en las mangueras, válvulas, uniones, etc. Revise si hay fugas por las uniones. Revise
el panal del radiador por si hay bloqueos de polvo, suciedad, hojas, papel, etc., y limpie según
sea necesario.
9. Revise si la pantalla de exhibición del operador presenta cualquier falla.
10. Examine la limpieza de la sala de máquinas. Límpiela de toda suciedad o desechos.
2-36
Operación Sección
MD6640 Perforadora Electrica Para Pozos De Tronadura
NOTA: NO UTILICEAIRE COMPRIMIDO PARALIMPIAR LASALADE MÁQUINAS. ELAIRE
COMPRIMIDO SOLO MOVERÁ LA SUCIEDAD DE UN LADO A OTRO. USE UNA
ASPIRADORAPARAQUITAR LASUCIEDAD. LAFALTADE LIMPIEZAAL INTERIOR
DE LA SALA DE MÁQUINAS CAUSARÁ DAÑOS A MUCHOS DE LOS
COMPONENTESALLÍ LOCALIZADOS.
11. Inspeccione el winche auxiliar y el cable del winche.
12. Revise el nivel de aceite de la caja de engranajes de la bomba, Rellene con el aceite
recomendado a su correcto nivel.
13. Revise que todos los controles operen libremente. Retorne todos los controles a la posición
de OFF o INSTALADO.
14. Inspeccione que en la cabina del operador esté todo limpio y ordenado. Elimine toda suciedad
o desechos de la cabina. Limpie las ventanas para permitir máxima visibilidad para una
apropiada operación.
NOTA: NO UTILICEAIRE COMPRIMIDO PARALIMPIAR LACABINA DEL OPERADOR. EL
AIRE COMPRIMIDO SOLO MOVERÁ LA SUCIEDAD DE UN LADO A OTRO. USE
UNAASPIRADORAPARAQUITAR LASUCIEDAD.
15. Inspeccione si las llaves de herramientas operan libremente, si tiene partes quebradas o
faltantes, una apropiada lubricación, tienen pérdidas de lubricante o acumulación de polvo.
Repare o reemplace las partes dañadas y limpie la plataforma de perforación.
PRECAUCIÓN: ANTES DE TRABAJAR CERCA O BAJO LA UNIDAD DE
ACCIONAMIENTO DE ROTACIÓN/EMPUJE, ASEGÚRESE QUE
TODOS LOS CONTROLES DE OPERACIÓN ESTÉN
DESACTIVADOS Y ROTULADOS Y EL FRENO DE LEVANTE
INSTALADO PARA PREVENIR MOVIMIENTOS DE LA UNIDAD.
PODRÍAN RESULTAR LESIONES PERSONALES GRAVES O LA
MUERTE EN CASO QUE LA UNIDAD DE ACCIONAMIENTO DE
ROTACIÓN/EMPUJE CAYERA CUANDO EL PERSONAL ESTÉ
TRABAJANDO BAJO O CERCA DE ELLA.
16. Inspeccione si la llave de desconexión automática opera libremente, si tiene partes quebradas
o faltantes, una apropiada lubricación, tienen pérdidas de lubricante o exceso de suciedad
acumulada. Repare o reemplace las partes que sean necesarias. Asegúrese que la llave
está replegada.
17. Inspeccione si el portabarras tiene fisuras o partes faltantes, opera apropiadamente, tiene
acumulación de polvo o pérdidas de lubricante. Asegúrese que la compuerta superior esté
cerrada y que la unidad está en posición almacenada.
2-37
Operación Sección
MD6640 Perforadora Electrica Para Pozos De Tronadural
18. Inspeccione si el buje guía tiene desgaste excesivo o acumulación de polvo. Inspeccione
también que los ganchos de retención estén asegurados e intactos. No opere la máquina sin
que ambos ganchos de retención estén intactos y firmemente soldados a la plataforma.
19. Revise si la columna de perforación tiene excesivo desgaste, acumulación de polvo, barras
dobladas y las uniones apretadas. Los conos de la broca y sus rodamientos deberían estar
en buenas condiciones. Gire manualmente los conos para asegurarse que rotan libremente.
20. Inspeccione si la caja de engranajes de rotación tiene pérdidas de aceite, líneas dañadas,
acumulación de polvo y otros daños o partes faltantes. Revise el nivel de aceite de la caja de
engranajes. Rellene al nivel apropiado con el aceite recomendado. Revise si las entradas de
ventilación del motor de rotación, tienen hojas, papeles, trapos, etc., bloqueando el flujo de aire.
21. Inspeccione si la unidad de rotación tiene desgaste excesivo o acumulación de polvo.
Inspeccione si los rodillos guías están bien ajustados o tienen mucho desgaste. Revise si
hay pernos sueltos o faltantes o miembros estructurales agrietados o torcidos.
22. Inspeccione si la unidad de empuje tiene desgaste excesivo o acumulación de polvo.
Inspeccione si los piñones de cremallera están gastados, bien lubricados y con los pernos
de retención bien apretados. Inspeccione el apropiado ajuste de los rodillos guía y si tienen
excesivo desgaste.
23. Inspeccione si la caja de engranajes de empuje tiene pérdidas de aceite o acumulación de
polvo u otros daños o piezas faltantes. Revise el nivel de lubricante de la caja. Rellene al nivel
recomendado con un lubricante de engranajes aprobado. Revise las entradas de la ventilación
del motor de empuje por si hay hojas, papeles, trapos, etc., bloqueando el flujo de aire.
24. Revise la debida operación del freno de levante.
25. Revise si el deflector de polvo o partículas tiene piezas sueltas o faltantes, desgaste excesivo
o acumulación de polvo. El deflector debería estar sellando firmemente alrededor de la barra
de perforación.
26. Si la máquina está equipada con sistema de supresión de incendios, realice una inspección
o revisión tal cual lo describa el manual del fabricante.
27. Si la máquina está equipada con un sistema colector de polvo, inspeccione el color del filtro
deshidratante. Cambiar desecante si es necesario.
2-38
Operación Sección
MD6640 Perforadora Electrica Para Pozos De Tronadura
LUBRICATIÓN ANTES DE MEPEZAR
La Lubricación es un trabajo extremadamente importante. La mayoría de las Perforadoras vienen
equipadas con sistemas de lubricación automáticos, que lubrican la mayoría de los puntos
necesarios a intervalos regulares.
Estos sistemas, aunque sean automáticos, no son a prueba de fallas. Tuberías quebradas,
lubricante sucio, y una gran cantidad de otros problemas pueden causar que pierdan lubricación
los componentes de desgaste. Por esta razón, es importante que todos los puntos de lubricación
sean inspeccionados en cada turno, para ver que estén recibiendo lubricante. Al mismo tiempo,
existen varios puntos de lubricación que reciben infrecuentemente lubricación, o que en forma
automática esta no sea posible. Estos puntos deberán ser lubricados manualmente.
Las Tablas de Lubricación en la Sección 3 de este manual
proveen la ubicación y frecuencia de lubricación.
ARRANQUE
El arranque de la perforadora no es una operación difícil, pero sí muy importante. Una arranque
impropio podría causar varias dificultades en la operación y seguridad, así como daños a la máquina.
Siguiendo paso a paso el procedimiento de arranque que se muestra a continuación, ayudará a
reducir las posibilidades de lesiones accidentales o daños a la máquina.
ARRANQUE DE LA MÁQUINA
NOTA: LAMÁQUINADEBE SER PUESTAEN MARCHASOLO DESPUÉS QUE SE HAYA
COMPLETADO LA INSPECCIÓNANTES DELARRANQUE Y LA LUBRICACIÓN, TAL
CUAL SE DETALLAAL INICIO EN ESTA SECCIÓN.
1. Vaya a la cabina del operador y verifique que todos los controles de la consola del operador
están en la posición OFF o neutral. Asegúrese que el botón pulsador de PARADA DE
EMERGENCIA, esté en la posición levantada.
NOTA: EN ALGUNAS MÁQUINAS HAY DOS O MÁS BOTONES DE PARADA DE
EMERGENCIA. ASEGÚRESE QUE TODOS ESTOS BOTÓNES ESTÉN EN LA
POSICIÓN LEVANTADA.
2. Vaya a la sala de máquinas, al gabinete de arranque de bajo voltaje. Ponga el interruptor
principal del compresor en ON.
3. En el gabinete de bajo voltaje, ponga todos los interruptores en la posición ON.
2-39
Operación Sección
MD6640 Perforadora Electrica Para Pozos De Tronadural
4. En el gabinete controlador programable verifique que el botón de control de cierre esté en la
posición SOLTAR.
5. Presione el botón de arranque del compresor de aire en el gabinete controlador programable,
para arrancar el compresor principal.
NOTA: SI LATEMPERATURAAMBIENTE ES MENOR QUE 32ºF (0ºC), LAMÁQUINA
DEBERÁ USAR NORMALMENTE FLUÍDOS ESPECIALES EN EL SISTEMA
HIDRÁULICO Y/O CALEFACTORES PARA EL SISTEMA.
Cuando la máquina es detenida temporalmente o por un largo período de tiempo, se debería dejar
la máquina con energía para mantener la operación de los calefactores. Si se corta la energía al
parar la máquina, los fluidos de la máquina deberían calentarse al menos a 32ºf (0º C), antes de
intentar arrancar la máquina.
REVISIÓN DE MAQUINARIA
La siguiente es una lista de puntos y equipos que deberían ser revisados inmediatamente después
del arranque de la perforadora, para una debida operación Si no se encuentran dificultades
operacionales durante este procedimiento, probablemente ellos no serán advertidos sino hasta el
punto cuando algún sistema o componente deje de funcionar, causando serios daños a la máquina.
1. Revise si hay filtraciones en el sistema principal de aire.
2. Verifique que el ventilador del radiador del compresor de aire esté operando correctamente.
Revise si el sistema de enfriamiento tiene alguna filtración.
3. Revise si hay filtraciones en el sistema hidráulico.
REINICIO EN COMPONENTES NUEVOS
Cuando una máquina es nueva, ingresa a servicio después de un largo período de almacenaje o
reingresa a servicio después de reparaciones mayores, se deben tomar ciertas precauciones
durante el arranque inicial y por un tiempo después del período de arranque. Estas precauciones
son indispensables para asegurar que se cumpla la vida de servicio total de los componentes.
2-40
Operación Sección
MD6640 Perforadora Electrica Para Pozos De Tronadura
REINICIO DE UNIDAD DE TRANSMISIÓN DE ROTACIÓN
El reinicio de la caja de engranajes de rotación está limitada a trabajar con carga reducida durante
las primeras 100 horas de operación y a un cambio total del aceite luego de dicho período.
Este período de rodaje solo aplica en casos de cajas de engranajes nuevas o en aquellas cajas
donde se han instalado nuevos engranajes.
REINICIO EN CAJA DE ENGRANAJES LEVANTE/EMPUJE
El reinicio de la caja de engranajes de levante/empuje está limitada a trabajar con carga reducida
durante las primeras 100 horas de operación y a un cambio total del aceite luego de dicho período.
Este período de rodaje solo aplica en casos de cajas de engranajes nuevas o en aquellas cajas
donde se han instalado nuevos engranajes.
REINICIO EN MOTORES ELÉCTRICOS
El rodaje de los motores de rotación y levante/empuje se limita a trabajar con carga reducida e
inspección durante las primeras 8 horas de operación. Este período de rodaje tiene por objeto
detectar cualquier problema en los motores antes que se transformen en daños severos, al motor
o la máquina. La inspección debería incluir un monitoreo a la temperatura del motor y a escuchar
si hay ruidos inusuales que pudieran indicar algún problema. La inspección también debería incluir
la verificación de que todos los orificios de ventilación y aberturas de admisión estén limpios.
2-41
Operación Sección
MD6640 Perforadora Electrica Para Pozos De Tronadural
OPERACIÓN
La operación de la perforadora MD6640 es, en principio, igual que la operación de cualquiera otra
perforadora de pozos para tronadura. Pero por el solo hecho que la máquina opere igual en principio,
no significa que ella opere igual en todos sus aspectos. Por esta razón es importante que el
operador se familiarice con la máquina particular que está siendo operada.
El propósito de esta sección del Manual de los Operadores, es detallar los procedimientos
involucrados en la operación de muchos de los componentes mayores y en la preparación para
perforar un pozo. El procedimiento real es detallado a continuación en esta sección.
Familiarícese con los controles y aprenda a accionarlos a velocidades reducidas. En la medida
que la máquina y los ciclos de perforación se le hagan más familiares, incremente las velocidades
gradualmente hasta la máxima capacidad de operación de la máquina.
La principal razón de operar lentamente al principio, es la seguridad. Operando a toda velocidad
significa que las cosas suceden rápidamente, quizás más rápido de lo esperado. Esas operaciones
inesperadas de la máquina pueden fácilmente transformarse en un accidente.
Para los propósitos de este manual, asumiremos que la perforadora se ha dejado en la condición
apropiada de operación. Si este no fuera el caso, complete las revisiones antes del arranque y
arranque la máquina usando los procedimientos que se han reseñado.
PROPULSANDO
DEFINICIONES
“Desequilibrio” es una condición de la geometría de las máquinas, la cual puede ocurrir en
vehículos que tienen un eje pivotante y un eje fijo. Esta condición se cumple cuando la maquinaria
superior bascula sobre el eje pivotante, levantando un lado del eje fijo.
“Basculación” es definido como el punto de inminente vuelco. Una máquina puede bascular
hacia atrás sin desequilibrarse primero. Bajo toda otra condición, la máquina se desequilibrará
antes de bascularse.
“Inclinación de Maniobra” es la pendiente en la cual la máquina puede ser propulsada en cualquier
dirección, sin desequilibrarse o bascularse.
2-42
Operación Sección
MD6640 Perforadora Electrica Para Pozos De Tronadura
PROCEDIMIENTOS DE PROPULSIÓN
Antes de comenzar la operación de propulsión, el operador debería primero inspeccionar si en la
ruta de la trayectoria hay grandes piedras, surcos profundos o contornos irregulares. Cuando
trabaje en una pendiente, verifique la inclinación y compárela con los límites de la Inclinación de
Maniobra permitida (vea APÉNDICE 5).
PRECAUCIÓN: NO INTENTE MANIOBRAR O GIRAR LA MÁQUINA EN
PENDIENTES QUE EXCEDAN LA INCLINACIÓN DE MANIOBRA
PERMITIDA SIN CONSULTAR PRIMERO LA SECCIÓN ESPECIAL
DE PROPULSIÓN. LA OMISIÓN DE SEGUIR ESTAS
INSTRUCCIONES PODRÍA PROVOCAR EL VUELCO DE LA
MÁQUINA, DAÑANDO EL EQUIPO Y RESULTANDO CON
POSIBLES LESIONES SERIAS O LA MUERTE.
Se debe monitorear la pantalla nivelación/propulsión del terminal de exhibición del operador durante
la propulsión, para asegurarse que no sean excedidos los límites permitidos de estabilidad de la
máquina.
Cuando se ha verificado que la ruta de la trayectoria está en buenas condiciones, la máquina está
ahora lista para ser propulsada.
NOTA: ESTAMÁQUINASÓLO DEBERÍASER PROPULSADAPOR LARGOS TRECHOS CON
EL MÁSTIL CON COMPLETAMENTE BAJADO, COMPLETAMENTE LEVANTADO Y
CERRADO, O CERRADO EN UNA FIJACIÓN DE ÁNGULO DE HOYO.
Para desplazamientos largos de 1,000 pies (304.8 metros) o más, o si la máquina se va a propulsar
en pendientes que se aproximan a los límites de estabilidad permitidos, se debería desarmar la
columna de perforación, bajar la unidad de accionamiento de rotación y bajar el mástil. Esto permite
lograr la condición más ESTABLE para una máquina contra basculaciones y también reduce los
esfuerzos en la estructura del mástil.
Por propulsiones de 1,000 pies (304.8 metros) o mas, la temperatura de los componentes del
bastidor debe monitoreada. Los rodillos inferiores, rueda tensora y planetarios de propulsión deberían
funcionar debajo de los 95 grados C. El motor de propulsión debería funcionar debajo de 90 grados
C. Si estos límites de temperaturas son alcanzados, detener la máquina y dejar que los componentes
de la oruga a que se enfríen. Note que la propulsión en baja velocidad disminuye la acumulación de
calor en estos componentes.
Si durante la propulsión con el MASTIL ABAJO y el CABEZAL ABAJO la máquina comienza a
desequilibrarse, ésta continuará desequilibrándose hasta que la maquinaria superior contacte el
eje pivotante. La máquina alcanzará su equilibrio cuando la maquinaria superior contacte con el
eje pivotante y NO SE VOLCARÁ. Con el mástil y el cabezal abajo, el máximo desequilibrio NO
causará el volcamiento de la máquina. Para corregir esta situación, el operador debería intentar
propulsar la máquina hacia una área mas nivelada del banco.
2-43
Operación Sección
MD6640 Perforadora Electrica Para Pozos De Tronadural
Todos los valores de estabilidad mostrados, están basados en una máquina totalmente cargada
(es decir, tanque lleno de agua, cable en el portacable, dotación completa de barras de perforación
y con todos los lubricantes y fluidos para la operación) tal como fue originalmente especificada por
el Cliente y embarcadas por Caterpillar Global Mining.
La perforadora MD6640 es propulsada utilizando los controles de la consola de la cabina del
operador o radio controlada desde la estación de propulsión remota fuera de la máquina.
1. Verifique que el freno de levante esté instalado. Verifique que la columna de perforación esté
fijada con la llave de herramienta para prevenir que la tubería se mueva durante la operación
de propulsión.Además, verifique que la columna de perforación está elevada en una posición
que le impida tocar el suelo cuando se está moviendo la máquina. Verifique que las patas de
nivelación estén totalmente recogidas y las cortinas contra polvo estén totalmente levantadas.
Revise que la escalera de acceso esté levantada.
2. Mover el interruptor selector de modo operativo a PROPULSION o PROPULSION REMOTA.
La propulsión remota es radio controlado.
3. Presione el botón ON de control de perforación/propulsión. La pantalla automática nivelación/
propulsión aparecerá en el terminal de exhibición del operador. Si la propulsión se está
efectuando desde la estación de propulsión remota, gire la llave del switch de habilitación a la
posición HABILITACIÓN.
4. En la consola de control o estación de propulsión remota, gire el switch selector de propulsión
a la posición VELOCIDAD LENTA.
NOTA: HAY DOS VELOCIDADES DE PROPULSIÓN DISPONIBLES PARA EL OPERADOR,
VELOCIDAD LENTA (MAX = 0.44km/h; 0.27mph) Y NORMAL (MAX = 1.45 km/h; 0.9
mph). PARA LOS OPERADORES INEXPERTOS O PARA MANIOBRAR EN
LUGARES ESTRECHOS Y EN MALLAS DE PERFORACIÓN, LA INSTALACIÓN
VELOCIDAD LENTA PERMITE UN CONTROL MAS RELAJADO DE LA OPERACIÓN.
Cuando los operadores se tornan mas experimentados o cuando la máquina se desplaza de un
sitio a otro, se usa la velocidad más rápida o NORMAL.
5. Para avanzar recto hacia delante, levante ambos joysticks para destrabarlos y soltar los
frenos de propulsión, luego muévalos ambos lentamente hacia delante. La velocidad se
incrementa en la medida que las palancas se mueven hacia delante. Para avanzar recto en
retroceso, tire ambos joysticks lentamente hacia atrás. La velocidad se incrementa en la
medida que las palancas se bajan.
2-44
Operación Sección
MD6640 Perforadora Electrica Para Pozos De Tronadura
PROPULSIÓN RECTA
6. Para hacer un giro gradual a la derecha, deje el joystick de la derecha en neutro y opere el
joystick de la izquierda hacia delante.
GIRO GRADUAL A LA DERECHA
2-45
Operación Sección
MD6640 Perforadora Electrica Para Pozos De Tronadural
GIRO GRADUAL A LA IZQUIERDA
7. Para hacer un giro gradual a la izquierda, deje el joystick de la izquierda en neutro y opere el
joystick de la derecha hacia delante.
8. Los giros graduales se deben hacer en pasos de 15 grados cada uno. Después de girar la
máquina un máximo de 15º, se debe avanzar en línea recta cerca de la mitad de la longitud del
equipo para liberar las cadenas de oruga de polvo y rocas. Girando la perforadora en
incrementos de más de 15º, someterá a las cadenas de oruga a severos esfuerzos.
GIRO CONTRARELOJ A LA IZQUIERDA
2-46
Operación Sección
MD6640 Perforadora Electrica Para Pozos De Tronadura
9. Para hacer una vuelta bien definida de contra-rotación, empujar hacia adelante la izquierda
el joystick y jalar el joystick derecho hacia atrás. Para girar a la izquierda, empujar el joystick
derecho hacia adelante y jalar el joystick izquierdo hacia atrás.
ASEGÚRESE HACER GIROS GRADUALES EN INCREMENTOS DE 15º
PRECAUCIÓN: ASEGÚRESE DE QUE EL GIRO SE DETENGA CADA 15 GRADOS Y
QUE LA MÁQUINA SE IMPULSE HACIAADELANTE, O HACIA
ATRÁS, AL MENOS DIEZ PIES ANTES DE REANUDAR EL GIRO.
LOS GIROS GRADUALES EXTENDERÁN AMPLIAMENTE LA VIDA
ÚTIL DE SERVICIO DE LOS RIELES.
NOTA: AL USAR EL MÉTODO DE CONTRARELOJ PARAGIRAR, DISPONGADE UN
AYUDANTE, QUIEN DEBERÁ VIGILAR QUE EL CABLE ELÉCTRICO NO SE
ENREDE Y/O NO SE DESCONECTE DESDE EL ENCHUFE PRINCIPAL O DEL
PORTACABLE.
NOTA: LAHABILIDAD DE LAMÁQUINADE CONTRA-ROTACIÓN ES DEPENDIENTE EN LA
SUPERFICIE EN ELCUALLAMÁQUINASE SEDIMENTA. UNASUPERFICIE BLANDA
CAUSARÁ QUE LAS ORUGAS CAVEN Y MÁQUINASEATASQUE.
NOTA: LOS FRENOS DE PROPULSIÓN SE LIBERAN CADA VEZ QUE SE LEVANTA
CUALQUIER JOYSTICK DE SU POSICIÓN MECÁNICA NEUTRAL, LOS FRENOS SE
ACTIVAN CADA VEZ QUE LOS JOYSTICKS VUELVENALAPOSICIÓN NEUTRALY
SE SUELTAN.
2-47
Operación Sección
MD6640 Perforadora Electrica Para Pozos De Tronadural
PROCEDIMIENTO DE REMOLQUE
1. Asegure la máquina bloqueando las orugas.
2. Asegure la barra de tiro al vehículo de tiro.
PROCEDIMIENTO DE REMOLQUE
3. Amarre una cuerda de disparo a la palanca de la válvula de seguridad de remolque. La
válvula está montada en la parte delantera izquierda de la caja de la pata. Haga pasar la
cuerda por la caja hacia la barra de tiro y asegúrela en el vehículo de tiro. Si durante el
remolque se soltara la barra de tiro, o de la perforadora o del vehículo de tiro, la cuerda de
disparo soltará la válvula de seguridad accionando los frenos de propulsión de la perforadora.
4. Desconecte la caja de engranajes de la rueda motriz desde el motor de propulsión, de la
siguiente forma:
a. Asegúrese que los controles de la bomba de propulsión están en la posición neutral.
b. Suelte el tornillo de fijación de la palanca de cambio.
c. Tire hacia fuera la palanca de cambio para desenganchar el embrague.
d. Apriete el tornillo de fijación de la palanca de cambio.
2-48
Operación Sección
MD6640 Perforadora Electrica Para Pozos De Tronadura
5. Use la bomba manual montada en la caja de la pata delantera derecha. Bombee hasta que
el manómetro ubicado cerca de la bomba, indique 650 PSI (4,482 kPa).
NOTA: LA PRESIÓN NUNCA DEBE CAER BAJO 500 PSI (3,450 kPa), LOS FRENOS
PODRÍAN TRABARSE PRODUCIÉNDOSE FALLAS PREMATURAS EN LOS MISMOS.
NOTA: NO REMOLQUE A VELOCIDADES SUPERIORES A 1.45 KP/H (0.9 MPH). PUEDE
OCURRIR UN EXCESIVO CALENTAMIENTO EN LACAJA DE ENGRANAJES
PLANETARIOS.
6. Cuando se complete el remolque, invierta el proceso anterior. La presión de la bomba manual
se puede aliviar girando la válvula de alivio de la bomba.
2-49
Operación Sección
MD6640 Perforadora Electrica Para Pozos De Tronadural
OPERACIÓN DEL PORTACABLE
Cuando el switch del portacable está en la posición AUTO, está diseñado para recoger el cable
eléctrico en la medida que la perforadora se mueve hacia su fuente de potencia. No está diseñado
para arrastrar el cable sobre el suelo.
La tracción del cable es proporcional a la presión de operación. La tracción correcta se obtiene
cuando hay suficiente tracción en el cable para enrollarlo en el tambor, pero no demasiado grande
como para someter el cable a esfuerzos innecesarios.
La velocidad del cable es dependiente del volumen de aceite hidráulico circulando a través del
sistema. La velocidad correcta del cable es ligeramente más rápida que la velocidad de
desplazamiento de la perforadora.
Para operar manualmente el portacable, proceda de la siguiente manera:
1. Eche a andar el motor principal del compresor de aire.
2. Para enrollar el cable eléctrico en el tambor, gire el switch del portacable a la posición
ENROLLAR.
3. Para desenrollar el cable eléctrico desde el tambor, gire el switch del portacable a la posición
DESENROLLAR.
2-50
Operación Sección
MD6640 Perforadora Electrica Para Pozos De Tronadura
NIVELACIÓN
Para nivelar la perforadora, proceda como sigue:
1. Posicione la máquina en la ubicación
apropiada para perforar el pozo requerido.
Verifique que las zapatas de las patas de
nivelación reposarán en suelo sólido. Corte,
rellene o reposicionese según se requiera
para obtener una base sólida. El ángulo
máximo para las zapatas de las patas es de
17º.
2. La modalidad operativa del switch selector
debe estar en la posición PERFORAR y el
motor del compresor principal debe estar
energizado.
NOTA: NORMALMENTE, LA MÁQUINA SE
DEBERÁ NIVELAR USANDO EL SWITCH
DE NIVELACIÓNAUTOMÁTICA, PASO 3.
PARANIVELACIÓN MANUALUSE LOS
PASOS 4AL 7.
3. Para nivelar la máquina automáticamente
verifique que la modalidad operativa del switch
selector esté en el modo PERFORACIÓN, gire
luego el switch de nivelación automática a la
posición EXTENDER y manténgalo en dicha
posición. La Pantalla Automática Nivelación/
Propulsión aparecerá automáticamente en el
monitor de exhibición del operador. Use la
pantalla para monitorear que la perforadora
está siendo nivelada. Los cilindros de las patas
se extenderán, levantarán y nivelarán la
máquina. Cuando la máquina esté levantada
y nivelada, suelte el switch y éste retornará
mediante resorte a la posición OFF o
CENTRAL. Este procedimiento puede ser
realizado por el operador, sentado ante la
consola principal del operador.
2-51
Operación Sección
MD6640 Perforadora Electrica Para Pozos De Tronadural
4. Para nivelar la máquina manualmente, use los tres interruptores de la gata y la pantalla
automática de nivelación en la terminal de despliegue del operador. El operador usa
interruptores de control en la consola de mano derecha y observa la pantalla de despliegue
del operador.
5. Baje las cuatro patas de nivelación hasta que descansen en el suelo. Luego, comenzando
por el lado mas bajo (izquierdo o derecho) de la perforadora, baje lentamente las patas hasta
que el peso de la máquina descanse sobre ellas. Durante esta operación las patas de
nivelación deben operarse en pares. Esto evita la torsión de la estructura de la perforadora.
Cuando el peso de la máquina está descansando sobre las patas de nivelación del costado
mas bajo, baje lentamente las patas de nivelación del lado mas alto hasta que el peso de la
máquina descanse sobre ellas. La máquina no necesita ser levantada mucho durante esta
operación, ya que el propósito solo es hacer descansar el peso de la máquina sobre las
patas.
PRECAUCIÓN: DURANTE ÉSTE Y LOS SUBSIGUIENTES ROCEDIMIENTOS DE
NIVELACIÓN, ES IMPORTANTE QUE LA PERFORADORA QUEDE
LO MÁS CERCA POSIBLE DE SU NIVEL. SE DEBE TENER
ESPECIAL CUIDADO CUANDO SE TRABAJA EN PLANOS
INCLINADOS.
6. Cuando el peso de la máquina esté descansando sobre las patas de nivelación, la máquina
puede ser nivelada. Comenzando por el lado mas bajo de la máquina, baje las dos patas de
dicho lado para nivelarla en su eje lateral según se observa en el terminal de la pantalla de
exhibición del operador. A continuación, cuando la máquina esté nivelada en su eje lateral,
opere los controles de nivelación del extremo mas bajo de la máquina para nivelarla en su eje
transversal, según se observa en el terminal de la pantalla de exhibición del operador.
7. Cuando la máquina esté nivelada, asegúrese que el peso no descansa sobre las orugas. El
método preferido para hacer esto es levantar la máquina hasta que el punto más cercano de
los rodillos inferiores a las orugas sea de 2” a 7” (5.1 a 17.8 cm). Esto asegura que la
máquina descansa sobre las patas de nivelación mientras mantiene un bajo centro de gravedad.
LEVANTANDO Y BAJANDO EL MÁSTIL
El mástil en la perforadora MD6640 permanece normalmente en la posición elevada para la mayoría
de las situaciones, incluyendo el desplazamiento de un pozo a otro en una malla de perforación.
Bajar el mástil es necesario bajo tres condiciones:
1. Los trabajos de mantenimiento no son posibles o demasiado peligrosos para realizarlos con
el mástil arriba.
2. Traslados mayores a 1,000 pies (304 m), donde la perforadora será remolcada entre las
posiciones, propulsada a gran velocidad o ser cargada sobre un trailer.
2-52
Operación Sección
MD6640 Perforadora Electrica Para Pozos De Tronadura
3. Cualquier situación donde se encuentre pendientes pronunciadas. Contacte al Departamento
de Servicio de Caterpillar Global Mining si está inseguro sobre las limitaciones de propulsión
en pendientes.
LEVANTANDO EL MÁSTIL
PRECAUCIÓN: LEVANTAR O BAJAR EL MÁSTIL ES UNA TAREA PARA DOS
PERSONAS. NO INTENTE LEVANTAR O BAJAR EL MÁSTIL SIN
LA ASISTENCIA DE UN AYUDANTE FAMILIARIZADO CON LOS
PROCEDIMIENTOS INVOLUCRADOS.
PRECAUCIÓN: DURANTE EL PROCEDIMIENTO DE ELEVACIÓN DEL MÁSTIL, EL
PERSONAL SE DEBE MANTENER ALEJADO DE LA MÁQUINA Y
DEL ÁREA INMEDIATAALREDEDOR DE ELLA, ESPECIALMENTE
DE LA PARTE DELANTERA DE LA MÁQUINA. NO SE DEBERÁ
PERMITIR A NADIE SOBRE EL MÁSTIL, EL TECHO DE LA CABINA
DEL OPERADOR O DE LA SALA DE MÁQUINAS MIENTRAS EL
MÁSTIL ESTÁ EN EL AIRE. OMITIR LAADOPCIÓN DE ESTAS
MEDIDAS PUEDE SIGNIFICARLA MUERTE O SERIAS LESIONES
AL PERSONAL GOLPEADO POR EL MÁSTIL, SI SE CAYERA POR
ALGUNA RAZÓN.
PRECAUCIÓN: CUANDO SE LEVANTA O SE BAJA EL MÁSTIL, EXISTEN
LIMITACIONES DE LONGITUD, DIÁMETRO, ESPESOR DE
PARED Y NÚMERO DE BARRAS DE PERFORACIÓN QUE
PUEDEN SER ALMACENADAS EN LOS PORTABARRAS.
REFIÉRASE A LA CARTA DE LIMITACIONES DEL TAMAÑO DE
LAS BARRAS INDICADAS EN EL APÉNDICE ANTES DE
INTENTAR SUBIR O BAJAR EL MÁSTIL. LA OMISIÓN DE
CUMPLIR CON ESTAS LIMITACIONES, SOBRECARGARÁ EL
MÁSTIL, EL SOPORTE DEL MÁSTIL Y EL SISTEMA
HIDRÁULICO, CAUSANDO LA POSIBLE PÉRDIDA DE CONTROL
DEL MÁSTIL
1. Inspeccione el mástil y la maquinaria exterior para asegurarse que todos los cables, líneas
mangueras, etc., estén alejados de la máquina durante el proceso de levante, para prevenir
daños a la máquina o a los equipos. Revise que los pasadores de los cilindros del mástil, los
pasadores de la articulación, así como los pasadores de los tirantes del mástil, estén en su
lugar y asegurados.Asegúrese que en el monitor de pantalla de exhibición del operador no se
muestre referencias relacionadas con los pasadores de la estructura “A”. Verifique que la
modalidad operativa del switch selector esté en el modo PERFORAR.
2-53
Operación Sección
MD6640 Perforadora Electrica Para Pozos De Tronadural
2. El motor principal del compresor de aire debe ser energizado. Mover el interruptor selector
de operación a la posición del MASTIL/WINCHE. Lentamente alce el mástil alzando y
lentamente empujando la palanca de mando del mástil, localizada en la consola de control
derecha, hacia adelante. Cuando el mástil alcanza un ángulo de 70 grados comenzará a
pasar sobre el centro y comenzara a entrar en la posición vertical por sí mismo. Cautela
debería ser usada una vez que el mástil ha pasado sobre centro pues la velocidad del mástil
aumentará agudamente.
PRECAUCIÓN: EL JOYSTICK DEL MÁSTIL SE DEBE MOVER FUERA DE SU
POSICIÓN Y RETORNADO A LA POSICIÓN NEUTRAL MUY
LENTAMENTE. ARRANQUES Y PARADAS REPENTINAS PUEDEN
CAUSAR DAÑOS AL MÁSTIL Y AL SISTEMA HIDRÁULICO. SEA
EXTREMADAMENTE PRECAVIDO CUANDO EL MÁSTIL SE
ACERCA A LOS 70º, YA QUE CUANDO EL MÁSTIL SOBREPASE
SU CENTRO, SOLO UN LEVE MOVIMIENTO DEL JOYSTICK ES
NECESARIO PARA INDUCIR MOVIMIENTO EN EL MÁSTIL.
NOTA: PRESTE ESPECIALATENCIÓNALAS MANGUERAS, CABLES Y LÍNEAS QUE
CORREN ENTRE EL SOPORTE DEL MÁSTIL Y EL MÁSTIL, PARA PREVENIR
DAÑOSALAMÁQUINACUANDO ESTÉ SIENDO LEVANTANDO EL MÁSTIL.
DISPONGADE UN AYUDANTE MIRANDO DESDE UNA POSICIÓN SEGURAAL LADO
IZQUIERDO DE LAMÁQUINA, CUANDO EL MÁSTIL SE ESTÁ ELEVANDO.
3. Una vez que el mástil esté vertical, mover el interruptor de candado del mástil localizado en la
pantalla del mástil en el despliegue del operador a la posición del CANDADO para bloquear el
mástil en la posición vertical. La loz de los pernos del mástil cerrados en la pantalla de
despliegue del operador se iluminarán cuando el mástil está enllavado en posición correcta.
Revuelva el interruptor del cerrojo de la abrazadera del mástil para la posición CERRADA
para asegurar el mástil y la abrazadera en la posición vertical.
NOTA: ALMOVER ELMÁSTILPARAPERFORACIÓN INCLINADA, EN MÁQUINAS CON
MÁSTIL DE 65’ DE LONGITUD (19.8 MTS) O MÁS, LA BARRA DE PERFORACIÓN
DEBE SER ALMACENADA EN LOS PORTABARRAS Y EL CABEZAL DE ROTACIÓN
BAJADO ASU POSICIÓN MÁS BAJA.
4. Si el mástil debe ser establecido para perforación angular mover el interruptor de bloqueo A-
Frame a la posición de DESBLOQUEO para soltar el perno del cerrojo de la pierna de la
parte delantera de A-Frame y los pernos de la abrazadera de bloqueo. La lectura (Pernos de
A-Frame Desenllavados y el Alfiler de la Abrazadera del Mástil Se Desenllavado) aparecerá
en la pantalla de estatus del mástil en pantalla de despliegue del operador.
2-54
Operación Sección
MD6640 Perforadora Electrica Para Pozos De Tronadura
PANTALLA DE ESTATUS DEL MASTIL
5. Comprobar que el interruptor selector de modo de operación está todavía en la posición del
mástil /winche, entonces alce y jale la palanca de mando del mástil lentamente hacia atrás.
Lentamente baje el mástil para el ángulo deseado de perforación, entonces girar el interruptor
de candado de la abrazadera del mástil para la posición CERRADA para asegurar el mástil y
la abrazadera en la posición deseada.
BAJANDO EL MÁSTIL
NOTA: REFIÉRASEALAS PRECAUCIONES
INDICADASALCOMIENZO DE ELEVACIÓN
DEL MÁSTIL.
Para bajar el mástil:
1. Anivelar la máquina.
2. Saque las barras de perforación de la unidad de accionamiento de rotación y almacénelas en
el portabarras. Saque la broca y el estabilizador desde la máquina. Limpie la plataforma de
perforación de toda herramienta y materiales que pudieran caerse durante el procedimiento
de bajada del mástil.Asegure el gancho del winche auxiliar.Asegúrese que el cable del winche
auxiliar esté asegurado al mástil. Levante las cortinas contra polvo. Baje la unidad rotación/
empuje a su posición más baja.
2-55
Operación Sección
MD6640 Perforadora Electrica Para Pozos De Tronadural
3. Revise la condición de los pasadores de la articulación del mástil, las orejas y los pasadores
de los cilindros.
4. Si la máquina está instalada para perforación inclinada y el mástil está en un ángulo, proceda
según el punto 4. Si la máquina está instalada para perforar vertical, proceda según el punto 5.
5. Girar el interruptor del cerrojo de la abrazadera del mástil para la posición de DESBLOQUEO
para soltar los alfileres del cerrojo del mástil, entonces alzar el mástil a la posición vertical.
Girar el interruptor del cerrojo deA-Frame a la posición del BLOQUEO para bloquear la pierna
frontal delA-Frame. La lectura (Pernos Bloqueados delA-Frame) en el despliegue del operador
aparecerá cuándo los pernos del A-Frame están en la posición FIJADA. Ahora proceder al
paso 5 para bajar el mástil.
6. Si el perno de fijación del mástil y / o el interruptor de la abrazadera de fijación del mástil no ha
sido soltado, girarlos interruptores a la posición de DESBLOQUEO para soltar los pernos. La
lectura (Pernos de Mástil Desbloqueados y los Pernos de la Abrazadera del Mástil
Desbloqueados) será mostrado en el despliegue del operador cuando los pernos son soltados.
7. Lentamente baje el mástil alzando al levantar y después jalar el joystick hacia atrás.Al alejarse
el mástil de la posición vertical, su velocidad aumentará. Suavemente reduzca la velocidad de
rebajamiento moviendo el joystick hacia neutral.
PRECAUCIÓN: EL JOYSTICK SE DEBE MOVER FUERA DE SU POSICIÓN Y
RETORNADO A LA POSICIÓN NEUTRAL MUY LENTAMENTE.
ARRANQUES Y PARADAS REPENTINAS PUEDEN CAUSAR
DAÑOS AL SISTEMA HIDRÁULICO DEL MÁSTIL. SEA
EXTREMADAMENTE PRECAVIDO CUANDO EL MÁSTIL SE
APROXIME A SUS DESCANSOS, YA QUE SOLO UN LEVE
MOVIMIENTO DE LOS CONTROLES ES NECESARIO PARA
CAUSAR MOVIMIENTO EN EL MÁSTIL. POSICIONE EL MÁSTIL
SUAVEMENTE EN SUS DESCANSOS PARA PREVENIR DAÑOS AL
MÁSTIL O A LA SALA DE MÁQUINAS.
NOTA: PRESTE ESPECIALATENCIÓNALAS MANGUERAS, LÍNEAS Y CABLES QUE
CORREN ENTRE EL SOPORTE DEL MÁSTILY EL MÁSTIL, PARAPREVENIR DAÑOS
A LA MÁQUINA CUANDO SE ESTÁ BAJANDO EL MÁSTIL. DISPONGA DE UN
AYUDANTE MIRANDO DESDE UNAPOSICIÓN SEGURAALLADO IZQUIERDO DE LA
MÁQUINA, CUANDO EL MÁSTIL ESTÁ DESCENDIENDO.
NOTA: NO PERMITA QUE EL MÁSTIL, ESPECIALMENTE SI ESTÁ CERCADE LA
HORIZONTAL, DESCIENDAMUY RÁPIDAMENTE. SE PUEDEN OCASIONAR DAÑOS
SI EL MÁSTIL GOLPEA MUY FUERTE EN SUS DESCANSOS.
8. Cuando el mástil esté descansando en sus descansos, inspeccione el mástil y el soporte del
mástil, para verificar que ninguna manguera, líneas o cable, esté enredado o dañado. Repare
en forma inmediata cualquier daño encontrado.
2-56
Operación Sección
MD6640 Perforadora Electrica Para Pozos De Tronadura
OPERACIÓN DE LA MAQUINARIA DE EMPUJE
El uso de la maquinaria de empuje es necesario durante el manejo de las herramientas y los
procedimientos de perforación. La maquinaria de empuje suministra potencia tanto para levantar
como para bajar la unidad de rotación/empuje. La energía es proporcionada a la caja de engranajes
de empuje mediante un motor eléctrico.
Para operar la maquinaria de levante/empuje, proceda de la siguiente manera:
1. Mueva la modalidad operativa del switch
selector a la posición PERFORAR.
2. Gire el switch selector de levante/empuje o
a: EMPUJE, LEVANTE RÁPIDO, LEVANTE
LENTO, o a PORTABARRAS/UNION DE
BARRAS.
Para este procedimiento ponga el switch en la
posición EMPUJE.
Para una revisión de cada posición del switch, refiérase al SWITCH SELECTOR DE VELOCIDAD
LEVANTE/EMPUJE.
3. Presionar el botón de control de perforación/propulsión a ENCENDIDO. El indicador de
control Habilitado saldrá a la vista en la pantalla de despliegue del operador.
4. Girar el interruptor de frenos de levante a la posición de SOLTADO. El indicador del freno del
cabezal habilitado aparecerá en pantalla de despliegue del operador.
5. Gire el reóstato levante/empuje en la dirección levante, para elevar la unidad de rotación/
empuje. Cuanto más hacia la derecha se gire el reóstato, más rápido se elevará la unidad.
6. Gire el reóstato de fuerza de empuje en la dirección empuje, para bajar la unidad rotación/
empuje. Cuánto más hacia la izquierda se gire el reóstato, más rápido bajará la unidad.
7. Cuando las operaciones del izado/levante son completas, coloque el reostato de velocidad
de levante/izado a la posición APAGADA y entonces gire el interruptor del freno levante para
la posición DETERMINADA.
PRECAUCIÓN: CADA VEZ QUE EL REOSTATO DE LA VELOCIDAD LEVANTE/
IZADO/ ESTÁ EN LA POSICIÓN APAGADO, EL INTERRUPTOR DEL
FRENO DE LEVANTE DEBE ESTAR EN LA POSICIÓN
DETERMINADA PARA IMPEDIR LA UNIDAD ROTATIVA/IZADO DE
AVANZAR A RASTRAS HACIAABAJO DEBIDO AL PESO DE LA
UNIDAD.
2-57
Operación Sección
MD6640 Perforadora Electrica Para Pozos De Tronadural
OPERACIÓN DEL WINCHE AUXILIAR
Para operar el winche auxiliar proceda de la manera siguiente:
1. Poner el interruptor selector del modo de operación en la
posición de MASTIL/WINCHE.
2. Para alzar la línea auxiliar del winche, alzar y el joystick del
winche, localizado en la consola derecha, hacia adelante.
Para detener la línea, devolver el joystick a la posición
NEUTRAL.
3. Para bajar la línea del winche auxiliar, levante y mueva el
joystick hacia atrás. Para detener la línea, regrese el joystick
a la posición NEUTRAL.
2-58
Operación Sección
MD6640 Perforadora Electrica Para Pozos De Tronadura
OPERACIÓN DEL PORTABARRAS
La máquina puede ser equipada con uno y hasta cuatro portabarras y, dependiendo del número de
portabarras instalados, la configuración y la operación de los portabarras será diferente.
En máquinas con un portabarras, el soporte estará en un brazo oscilante ubicado en la posición # 1.
En máquinas con dos portabarras, los soportes estarán en brazos oscilantes y se ubicarán en las
posiciones # 1 y # 4.
En máquinas con tres portabarras, dos de ellos quedarán localizados en un carrusel que oscila
hacia fuera y luego se rota. Este carrusel aloja los portabarras en las posiciones # 1 y # 2 como se
muestran. El tercer portabarras es un soporte oscilante que quedará en la posición # 4.
En máquinas con cuatro portabarras, hay dos carruseles giratorios con dos portabarras cada uno.
Los carruseles rotan para poder disponer el uso de cada portabarras. El carrusel izquierdo aloja
los portabarras # 1 y # 2 y el carrusel derecho los portabarras # 3 y # 4.
El método general de operación de los portabarras es el siguiente:
1. Ponga la modalidad operativa del switch selector en la posición PERFORAR. El compresor
de aire principal debe ser energizado.
2. Verifique que la modalidad operativa del switch selector esté en la posición PERFORAR y
que el switch selector de velocidad de levante/empuje esté en la posición PORTABARRAS/
UNIÓN DE BARRAS.
3. Seleccione el portabarras deseado.
4. Levantar y mover el joystick del portabarras, localizado en la consola izquierda, fuera de
neutral para realizar la operación deseada.
2-59
Operación Sección
MD6640 Perforadora Electrica Para Pozos De Tronadural
OPERACIÓN DEL PORTABARRAS
2-60
Operación Sección
MD6640 Perforadora Electrica Para Pozos De Tronadura
La siguiente secuencia especial es requerida para cada configuración de portabarras:
1. Configuración para un portabarras.
a. Gire el switch selector de portabarras a la posición #1.
b. Opere el portabarras como se describe bajo los procedimientos generales.
2. Configuración para dos portabarras.
a. Si se va a operar el primer portabarras, ponga el switch selector en la posición #1 y
opere el portabarras como se describe bajo los procedimientos generales.
b. Si se va a operar el segundo portabarras, ponga el switch selector en la posición #4 y
opere el portabarras como se describe bajo los procedimientos generales.
NOTA: TENGA EXTREMO CUIDADO DE ASEGURARSE QUE UN PORTABARRAS ESTÉ
FUERA DE LA TRAYECTORIA Y ASEGURADO EN SU LUGAR ANTES DE OPERAR
UN SEGUNDO PORTABARRAS.
3. Configuración para tres portabarras.
a. El primer y segundo portabarras son parte de un carrusel y requieren de una secuencia
especial de operación. El tercer portabarras es un brazo giratorio standard.
Para operar el tercer portabarras, ponga el switch selector en la posición #4 y opere el portabarras
como se describe bajo los procedimientos generales.
b. La configuración de carrusel de los portabarras uno y dos, requiere de una secuencia
especial. La posición #1 del switch selector permitirá que cuando el joystick sea tirado
hacia atrás, el carrusel con los portabarras sea girado fuera, sobre el orificio del buje
guía.
Uno de los portabarras quedará sobre el orificio. La posición # 2 del switch selector permitirá que
cuando el joystick sea tirado hacia atrás o empujado adelante, el carrusel rote para poder usar el
otro portabarras sobre el orificio. Retornando el switch selector a la posición # 1 y moviendo el
joystick hacia delante, retornará el carrusel a la posición de almacenaje.
c. Debido a la secuencia de operación, las barras deben sacarse primero del portabarras
#1 y luego las del portabarras #2. Cuando se retornen las barras a los portabarras,
primero retorne la barra al portabarras #2 y luego al portabarras #1.
NOTA: TENGA EXTREMO CUIDADO DE ASEGURARSE QUE UN PORTABARRAS ESTÉ
FUERA DE LA TRAYECTORIA Y ASEGURADO EN SU LUGAR ANTES DE OPERAR
UN SEGUNDO PORTABARRAS.
2-61
Operación Sección
MD6640 Perforadora Electrica Para Pozos De Tronadural
4. Configuración para cuatro portabarras.
a. La configuración para cuatro portabarras consiste en dos carruseles giratorios con
dos portabarras en cada carrusel. Los portabarras #1 y #2 en el carrusel izquierdo y
los portabarras #3 y #4 en el carrusel derecho trabajan y son secuenciales igual que
en el carrusel de la configuración para tres portabarras. Para el portabarras #3 y #4, la
posición #4 del switch selector controla la oscilación hacia fuera del carrusel derecho
y en la posición #3 controla la rotación del carrusel.
b. Debido a la secuencia de operación, las barras deben ser sacadas primero del
portabarras #4, luego del portabarras #3. Cuando se retornan las barras a los
portabarras, primero se retorna la barra al portabarras #3 y luego al portabarras #4.
2-62
Operación Sección
MD6640 Perforadora Electrica Para Pozos De Tronadura
MANEJO DE HERRAMIENTAS
Esta sección en el Manual del Operador de la MD6640, describe los procedimientos necesarios
para cargar, descargar, manejar, armar y desarmar las herramientas de perforación.
Los procedimientos detallados en esta sección entienden ser tan universalmente aplicables como
sea posible. Es imposible, sin embargo, preparar un procedimiento que tome en cuenta cada uno
de los posibles opcionales en las máquinas o las herramientas de los vendedores de productos.
Por esta razón es importante que el operador no solo se familiarice con estos procedimientos,
sino también con ésta máquina y las herramientas particulares que se estén manejando.
CARGA Y DESCARGA DE LAS BARRAS
Cargar barras en la perforadora se hace necesario cuando la máquina es nueva y aún no las tiene
instaladas o cuando las barras han sido sacadas para recambio o para mantenimiento del mástil.
El procedimiento en este manual, diferente a otros procedimientos comúnmente usados, requiere
que el mástil esté en posición horizontal o hacia abajo para cargar las barras de perforación. Esto
es necesario por razones de seguridad.
Este procedimiento, que no es él más conveniente en máquinas donde el cambio de barras debe
hacerse con el mástil en posición de perforación, es el más eficiente cuando el mástil está en
posición de almacenaje. Una apropiada planificación de mantención y requerimientos de producción
versus la vida de las barras, permitirá que usando este procedimiento se reducirán las pérdidas de
tiempo de la máquina.
Para cargar barras en el mástil, proceda de la manera siguiente:
1. Si el mástil está en posición vertical o de perforación, baje el mástil y almacénelo en los
descansos del mástil. Refiérase a los párrafos apropiados en este manual, para ver los
procedimientos exactos de operación.
2. Obtenga una grúa con capacidad y alcance suficientes para colocar las barras de perforación
en los portabarras con el mástil en la posición de almacenaje. La ubicación normal y apropiada
de la grúa es en el lado izquierdo de la perforadora, ya que esto permitirá el alcance más
cercano y el mayor ángulo de pluma.
PRECAUCIÓN: SIGA TODAS LAS MEDIDAS DE SEGURIDAD APLICABLES
CUANDO SE TRABAJA CON GRÚAS Y SUS APAREJOS. DEJAR
DE CUMPLIR LOS PROCEDIMIENTOS SEGUROS DE TRABAJO
PUEDE CAUSAR UN ACCIDENTE Y CONDUCIR A LA POSIBLE
MUERTE O LESION DEL PERSONAL
2-63
Operación Sección
MD6640 Perforadora Electrica Para Pozos De Tronadural
3. Posicione la barra a ser instalada de forma tal que sea accesible para la grúa. La posición
normal de la barra de perforación es al lado izquierdo de la máquina, yaciendo en ángulo
recto a la máquina. Esto permite que la grúa levante la barra y gire sin excesivos levantes ni
descensos de la pluma. La barra puede estar almacenada sobre bloques en el suelo, o
sobre un camión o trailer.
PRECAUCIÓN: ASEGÚRESE QUE LA BARRA DE PERFORACIÓN ESTÉ BIEN
ASEGURADA CONTRA MOVIMIENTOS INDESEADOS O
IMPREVISTOS. NO FIJARLAS APROPIADAMENTE PUEDE
CAUSAR DESLIZAMIENTOS DE LAS BARRAS Y CAUSAR LA
MUERTE O LESIONES GRAVES AL PERSONAL EN EL ÁREA.
4. La compuerta superior permanece abierta cuando el portabarras está vacío,. Esta función
está controlada por un switch de límite, ubicado en el bolsillo inferior del portabarras.
5. Usando estrobos apropiados, fije la grúa a la barra de perforación. La barra debería estar
estrobada de tal manera que permanezca horizontal mientras se levanta. Amarre cuerdas
guías a la barra. Quite los protectores de los hilos, limpie y lubrique los hilos y las pestañas
de cada extremo de la barra. Instale una campana de levante en el extremo macho (superior)
de la barra de perforación. Levante la barra hacia su posición sobre el mástil.
6. Usando la cuerda guía, guíe la barra hacia el portabarras deseado. Ponga cuñas de bloque
entre las barras para permitir retirar los estrobos de la barra.
PRECAUCIÓN: ASEGURE LAS BARRAS FIRMEMENTE PARA PREVENIR QUE SE
MUEVAN INESPERADAMENTE
7. Saque los estrobos de la barra. Fije un estrobo a la campana de levante en el extremo
macho de la barra y levante la barra lo suficiente para retirar los bloques.
8. Deslice la barra hacia la parte baja del portabarras hasta hacerla descansar en el fondo del
bolsillo. Deje la barra en el portabarras y retire los estrobos y la campana de levante.
9. Cuando la barra descanse en el fondo del bolsillo, ésta gatillará el switch límite y cerrará la
compuerta superior.
10. Repita el mismo procedimiento para las siguientes barras de perforación.
11. Descargar las barras es el procedimiento inverso al usado para cargarlas.
2-64
Operación Sección
MD6640 Perforadora Electrica Para Pozos De Tronadura
ENSAMBLAJE DE LA COLUMNA DE PERFORACIÓN
La herramienta de perforación consiste en una o más secciones de barras de perforación, un
estabilizador (collar de perforación) y una broca. Al ensamblar la herramienta de perforación, el
estabilizador es el primer componente instalado, luego una sección de barras de perforación y por
último la broca.
Para instalar el estabilizador proceda como sigue:
1. Ponga el estabilizador a ser instalado en una
posición que sea accesible a la línea del winche
auxiliar. Limpie y lubrique los hilos y las pestañas
de cada uno de los extremos del estabilizador.
Instale una campana de levante en el extremo
macho (superior) del estabilizador y levántelo hasta
la plataforma de perforación con la línea del winche
auxiliar.Asegure el estabilizador en forma horizontal
sobre bloques suficientes para dejarlo a una altura
no mayor de 8 a 10 pulgadas sobre la plataforma
de perforación. Retire la línea del winche auxiliar.
2. Quite el buje guía desde el orificio de la plataforma
de perforación. Ponga el buje guía en el extremo
superior del estabilizador con el lado cónico del buje
hacia el extremo inferior (caja) del estabilizador.
Reenganche la línea del winche auxiliar a la
campana de levante.
3. Instale el estabilizador y el buje guía en el orificio de
la plataforma de perforación. Asegúrese de que el
buje guía quede correctamente asentado. Baje el
estabilizador hasta que las ranuras en el
estabilizador queden alineadas con la llave de
herramientas. Extienda la llave de herramientas
para sostener el estabilizador en posición.
4. Retire la línea del winche auxiliar del estabilizador y
asegúrela donde no moleste. Saque la campana
de levante y guárdela.
COLUMNADE HERRAMIENTAS
2-65
Operación Sección
MD6640 Perforadora Electrica Para Pozos De Tronadural
NOTA: EL USO DE ESTABILIZADORES QUE HAYAN SIDO MODIFICADOS O QUE NO
PERMITAN QUE SE APLIQUE ESTE PROCEDIMIENTO, DEBEN SER EVITADOS. EL
USO DE ESTABILIZADORES FUERA DE ESTÁNDAR HARÁN QUE EL MONTAJE Y
DESMONTAJE DE LACOLUMNADE HERRAMIENTAS SEA DIFICIL Y PELIGROSA.
INSTALACIÓN DEL ESTABILIZADOR
2-66
Operación Sección
MD6640 Perforadora Electrica Para Pozos De Tronadura
Para instalar una sección simple de barra de perforación, proceda como sigue:
1. Baje la unidad de rotación/empuje hasta que el acoplamiento de barras de la unidad pueda
ser alcanzado desde la plataforma de perforación. Instale el freno de levante y oprima el
botón OFF de control perforar/propulsión. Limpie los hilos internos del acoplamiento, para
remover cualquier suciedad o lubricante viejo. Aplique una capa de compuesto para hilos de
barras a los hilos y pestañas del acoplamiento.
NOTA: USE SOLO COMPUESTO ESPECIAL
PARA HILOS EN LAS BARRAS DE
PERFORACIÓN. ESTE COMPUESTO
CONTIENE MATERIALES QUE EVITAN
ELAGRIPAMIENTO Y DESGASTE DE
LOS HILOS BAJO LAS SEVERAS
PRESIONES QUE SE PRODUCEN EN
DICHO SECTOR.
2. Presione el botón de control HABILITAR y
suelte el freno levante. Alce la unidad
rotativa / izado a una posición de mástil
para despejar el portabarras al venir esta
a su posición.
3. Verifique que el motor del compresor principal/ bombas hidráulicas esté operando, el switch
selector de la velocidad de levante/empuje esté en la posición PORTABARRAS/UNIÓN DE
BARRAS, la modalidad operativa del switch selector en la posición PERFORAR, y que en el
terminal de exhibición del operador se indique que el cabezal está alejado del portabarras.
Ponga el switch selector del portabarras en la posición # 1. El joystick del portabarras controlará
ahora solo el portabarras #1.
4. Levantar y mover el joystick hacia adelante (sobre la POSICION del HOYO) para mover el
portabarras sobre el hoyo. Una vez que el portabarras este sobre el hoyo, regresar el joystick
a su posición NEUTRAL.
5. Suelte el freno de levante y baje la unidad de rotación/empuje hasta aproximadamente 1 pie
(30 cm), sobre el extremo superior de la barra de perforación. Reinstale el freno de levante.
6. Gire el reóstato de rotación hacia la derecha, hasta que el acoplamiento de la unidad de
rotación comience a girar a aproximadamente 5 R.P.M., según se muestra en el terminal de
la pantalla de exhibición del operador. Suelte el freno de levante y baje cuidadosamente la
unidad de accionamiento de rotación hasta que el acoplamiento contacte la barra de
perforación. Permita que la unidad de rotación/empuje baje por gravedad, mientras el
acoplamiento se enrosca a la barra.
2-67
Operación Sección
MD6640 Perforadora Electrica Para Pozos De Tronadural
7. Cuando la barra de perforación comience a girar con el acoplamiento giratorio, detenga el
movimiento de rotación y revise la unión entre el acoplamiento y la barra. Las pestañas de la
barra de perforación y del acoplamiento deben estar unidas. Si hay un espacio entre las
pestañas, será necesario apretar la unión un poco más antes de sacar la barra del portabarras.
Si las pestañas de la barra y el acoplamiento están en contacto, la unión está acabada.
PRECAUCIÓN: LOS HILOS EN LA BARRA DE PERFORACIÓN SON CÓNICOS
PARA HACER MÁS FÁCIL EL ARMADO Y DESARMADO DE LAS
BARRAS. LOS HILOS ESTÁN DISEÑADOS PARA SOLTARSE
DESPUÉS DE UNOS POCOS GIROS DE LA BARRA. LA OMISIÓN
DE OBTENER EL CONTACTO ENTRE LAS PESTAÑAS PUEDE
RESULTAR EN EL DESACOPLAMIENTO DE LA UNIÓN Y QUE LA
BARRA SE CAIGA DE LA UNIDAD DE ROTACIÓN/EMPUJE.
No se han tomado medidas para mantener la barra fija en el portabarras mientras la unión se está
apretando. Si la unión no se aprieta usando el procedimiento descrito, puede ser necesario aplicar
una ligera fuerza de levante a la unidad de rotación/empuje para subirla levemente y quitar la
presión desde los hilos de la barra.
PRECAUCIÓN: NO LEVANTE LA BARRA DE PERFORACIÓN. LEVANTE LA
UNIDAD DE ROTACIÓN/EMPUJE SOLO LO SUFICIENTE COMO
PARA ALIVIAR LA PRESIÓN SOBRE LOS HILOS. LEVANTANDO
LA UNIDAD LO SUFICIENTE COMO PARA LEVANTAR LA BARRA,
NO SOLO APLICARÁ PRESIÓN EN EL OTRO LADO DE LOS
HILOS SINO QUE ADEMÁS PUEDE PERMITIR QUE SE ABRA LA
PUERTA SUPERIOR DEL PORTABARRAS. SI LA UNIÓN SE
DESACOPLARA EN ESE MOMENTO, LA BARRA PUEDE CAERSE
DESDE EL PORTABARRAS, CAUSANDO MUERTE, SEVERAS
LESIONES O SERIOS DAÑOS A LA MÁQUINA.
Si la unión de las barras no se completa aliviando el peso de la unidad de accionamiento sobre los
hilos, será necesario inspeccionar y/o reparar los hilos del acoplamiento de rotación y de la barra
de perforación. Inspeccione si los hilos tienen superficies ásperas o rebabas y aplíqueles una
abundante capa de compuesto para hilos. Los hilos deberían tener una superficie suave, sin rebabas
o suciedad que pongan obstáculo al acoplamiento, Las pestañas también deberían estar limpias y
suaves y deberían tener compuesto aplicado.
Después de limpiar y reparar los hilos trate de realizar nuevamente el acoplamiento. Si no se
puede realizar la unión, tanto las barras como el acoplamiento están defectuosos. Reemplace la
barra o el acoplamiento según sea necesario.
8. Cuando se haga la unión de la barra con el acoplamiento, la barra queda lista para ser
levantada fuera del bolsillo del portabarras. Levante la barra aproximadamente un pié sobre
el borde del bolsillo para permitir que el portabarras oscile hacia fuera. Instale el freno de
levante.
2-68
Operación Sección
MD6640 Perforadora Electrica Para Pozos De Tronadura
9. Cuando la barra ha sido levantada fuera del portabarras, gire el portabarras a la posición
ALMACENAR al levantar y empujar el joystick hacia delante a la posiciónALMACENAR.
NOTA: VERIFIQUE QUE LA COMPUERTA SUPERIOR DEL PORTABARRAS ESTÉ ABIERTA
ANTES DE RETRAER EL PORTABARRAS. AL RETRAER EL PORTABARRAS CON
LA PUERTA CERRADA CAUSARÁ DAÑOS AL PORTABARRAS.
10. Una vez que el portabarras ha sido almacenado, la barra se debería limpiar usando el aire de
barrido. Retire a todo el personal del área y aplique aire de barrido por un instante. Después
de limpiar la barra, limpie y lubrique los hilos y las pestañas del extremo inferior de la barra de
perforación y del extremo superior del estabilizador.
PRECAUCIÓN: ANTES DE TRABAJAR AL REDEDOR DE LA CUERDA DE LA
HERRAMIENTA,AJUSTAR EL FRENO DE LEVANTE. PRESIONAR
EL BOTÓN DE CONTROL HABILITAR.
11. Suelte el freno de levante y baje la unidad de rotación/empuje hasta que la barra de perforación
queda aproximadamente a 30 cm. sobre el extremo superior del estabilizador. Reinstale el
freno de levante.
12. Gire el reóstato de rotación hacia la derecha, hasta que la barra de perforación comience a
girar a aproximadamente 5 R.P.M. según se muestra en el terminal de la pantalla de exhibición
del operador. Suelte el freno de levante y baje cuidadosamente la unidad de rotación hasta
que el acoplamiento contacte el estabilizador. Permita que la unidad de rotación continúe
bajando por gravedad, mientras la barra de perforación se enrosca al estabilizador.
13. Cuando el estabilizador comience a girar con la barra de perforación, revise la unión entre el
estabilizador y la barra. Las pestañas de la barra de perforación y del estabilizador deben
estar unidas. Si hay un espacio entre las pestañas, será necesario apretar la unión un poco
más antes de soltar el estabilizador. Si las pestañas de la barra y el estabilizador están en
contacto, la unión ha sido acabada.
La instalación de la broca de perforación es el último paso en la preparación de la columna de
perforación.
Para instalar la broca, proceda como sigue:
1. Levante el conjunto completo barra de perforación/estabilizador unos 2 a 3 pies (60 a 90
cm.) desde la plataforma de perforación. Ponga el canasto de la broca (proporcionado con la
máquina) dentro del orificio que dejó el buje guía en la plataforma de perforación. Retire a
todo el personal de la plataforma de perforación y del área inmediata. Active el flujo principal
de aire comprimido para eliminar cualquier contaminante de la barra de perforación y del
estabilizador.
2-69
Operación Sección
MD6640 Perforadora Electrica Para Pozos De Tronadural
2. Ponga la broca dentro del canasto de la broca. Cubra los hilos y las pestañas de la broca y
del estabilizador con compuesto de hilos de barra de perforación.
3. Gire el reóstato de rotación hacia la derecha, hasta que la columna de herramientas comience
a girar a aproximadamente 5 R.P.M. según se muestra en el terminal de la pantalla de
exhibición del operador. Suelte el freno de levante y baje lentamente la unidad de rotación/
empuje y la columna de herramientas sobre la broca Baje la unidad de accionamiento en
pequeños incrementos hasta que los hilos encastren y el estabilizador comience a enroscarse
solo en la broca. Tan pronto como los hilos comiencen a unirse, instale el freno de levante y
deje que el estabilizador se atornille solo en la broca.
4. Cuando la unión está apretada, la unidad de rotación se detendrá lentamente y el manómetro
de carga de rotación indicará un aumento de carga. En ese momento, gire el reóstato de
rotación a la posición NEUTRAL.
5. Después de realizar la unión de la broca con el estabilizador, levante la unidad de rotación
para permitir sacar el canasto de broca. Retire el canasto de broca y guárdelo en un lugar
seguro.
6. Baje la cadena de herramienta completada para que el buje guía sea asentado en el hoyo de
la cubierta de la perforadora. Ajustar el freno de levante y presionar el botón de control de
HABILITACION. La cadena de herramienta esta ahora completa para perforación de paso
simple o para la primera de múltiples pasadas de perforación.
OPERACIÓN DE LA LLAVE DE DESCONEXIÓN
PRECAUCIÓN: AL TRABAJAR CON LA LLAVE DE RUPTURA QUE ES
IMPORTANTE QUE EL FRENO LEVANTE ESTÉ ENGANCHADO,
EL BOTÓN DE CONTROL HABILITADO ES APAGADO PARA
PREVENIR OPERACIONES DE CONTROLES DE LEVANTE O
ROTACIÓN. EL FRACASADO PARA SEGUIR ESTA PRECAUCIÓN
PUEDE CONDUCIR A LOS CONTROLES SIENDO ENERGIZADO
MIENTRAS QUE PERSONAL ESTÉ EN EL ÁREA,
CONDUCIENDO A LA MUERTE O LESIÓN SERIA DEL
PERSONAL.
La operación de la llave de desenroscar se aplica cada vez que una unión de barras, excepto en la
unión con el acoplamiento giratorio, deba ser abierta. Esto incluye sacar la broca, el estabilizador
o separar dos secciones de barras de perforación.
2-70
Operación Sección
MD6640 Perforadora Electrica Para Pozos De Tronadura
Para abrir una unión con la llave de desenroscar, proceda como sigue:
1. Si una acoplador de tubo entre secciones de tubería o entre el estabilizador y la tubería debe
ser quebrada, alinear las ranuras en la tubería inferior para ser quebrado con las mandíbulas
de la llave de herramienta. Cerrar la llave de herramienta al girar el interruptor de control de la
llave de herramienta a la posición de ENGANCE.Asegurar que la herramienta inferior este
firmemente asegurada por la llave de herramienta y que las ranuras o planas de la herramienta
estén alineadas con la llave de herramienta.
PRECAUCIÓN: TODO EL PERSONAL DEBE SER RETIRADO DE LA
PLATAFORMA DE PERFORACIÓN CUANDO SE OPERA CON LA
LLAVE DE DESENROSCAR.
2. Para abrir la unión, gire y mantenga el switch de la llave de desenroscar en la posición
EXTENDER. Las mandíbulas de la llave de desenroscar deberían amordazar la herramienta
superior y girarla, mientras la herramienta inferior se mantiene fija con la llave de herramientas.
Suelte el switch de la llave de desenroscar.
3. Cuando la unión ha sido abierta, repita el ciclo 2 o 3 veces para soltar suficientemente la
unión y para que se le permita a la unidad de rotación terminar el desarmado.
4. Gire y mantenga el switch de la llave de desenroscar en la posición RECOGER, hasta que
la llave de desenroscar suelte la parte superior de la barra y se mueva fuera de ella.
5. Utilizando la unidad de rotación, continúe con el desmontaje de la unión. Refiérase a los
tópicos apropiados para el exacto procedimiento de operación.
PRECAUCIÓN: LA UNIÓN DEBE DESACOPLARSE LIBREMENTE AL USAR LA
UNIDAD DE ROTACIÓN. SI LA UNIÓN NO SE SUELTA
LIBREMENTE, REPITA EL PROCEDIMIENTO USANDO LA LLAVE
DE DESENROSCAR HASTA REALIZARLA. OBSERVE
CONSTANTEMENTE LA UNIÓN ENTRE EL ACOPLAMIENTO
GIRATORIO Y LA PRIMERA SECCIÓN DE LA BARRA CUANDO
TRABAJE EL MOVIMIENTO DE ROTACIÓN EN REVERSA. SI LA
UNIÓN COMIENZA A DESACOPLARSE, PARE INMEDIATAMENTE
EL MOVIMIENTO DE ROTACIÓN Y REAPRETE LA UNIÓN. SI LA
UNIÓN SE DESACOPLA, LA BARRA SE CAERÁ, CAUSANDO
POSIBLEMENTE LA MUERTE O SEVERAS LESIONES AL
PERSONAL.
6. Si la herramienta inferior es la broca, asegure la broca con el canasto de la broca, tal cual se
describe en el párrafo SACAR LA BROCA. Opere la llave de desenroscar como se describe
mas arriba, excepto por el hecho que la herramienta inferior (broca) está asegurada por el
canasto de broca, no por la llave de herramientas.
2-71
Operación Sección
MD6640 Perforadora Electrica Para Pozos De Tronadural
DESARME DE LA COLUMNA DE PERFORACIÓN
La columna de herramientas se desarma en la forma opuesta al ensamble, es decir, se saca
primero la broca, luego las barras de perforación y por último el estabilizador.
Para sacar la broca de la columna de herramientas, proceda como sigue:
1. Levante la columna de herramientas 2 o 3 pies (60 o 90 cm.) sobre la plataforma de
perforación. Instale el canasto de la broca en el orificio de la plataforma de perforación.
2. Usando la llave de desenroscar, abra la unión entre el estabilizador y la broca. Después de
abrir la unión, use fuerza de rotación para desarmar la unión. Use una pequeña fuerza de
levante para elevar la columna de herramientas fuera de la broca, para facilitar el desarmado.
3. Levante la columna de herramientas 2 o 3 pies (60 o 90 cm.) sobre la plataforma de
perforación. Asegure la unidad de rotación/empuje y los controles. Fije una campana de
levante a la broca. Fije la línea del winche auxiliar a la campana de levante y saque la broca
del canasto de la broca.
4. Después de remover la broca, se puede instalar una nueva broca o retirar el canasto de
broca para permitir sacar las barras de perforación.
Para sacar las barras de perforación de la unidad de rotación, proceda como sigue:
1. Bajar la cuerda de la herramienta hasta las ranuras o planas en el lado superior del estabilizador
estén alineados con la llave de herramienta. Asegurar con abrazaderas el estabilizador en la
llave de herramienta. Usar la llave de ruptura para quebrar los acoplamientos entre el
estabilizador y el tubo de perforación.Después de romper la juntura, use la unidad rotativa
para desensamblar completamente el acoplamiento.Alce la unidad rotativa / izado y la tubería
del perforación de 2 a 3 ft (0.6 a 0.9 m).
2. Presione el botón de control HABILITADO a la posición APAGADA y determinar el freno de
levante. Vaya a la cubierta de la perforadora y limpie la cavidad del portabarras que sera
usado de cualquier suciedad, recortes o cualquier material que interferirá con la entrada de la
tubería o la operación de controles del portal del portabarras. Compruebe que los controles
del portón están intactos.
3. Limpie y lubrique los hilos y pestañas de la parte inferior de la barra. Esto es para prevenir la
corrosión cuando esté alojada en el portabarras. Después de realizar esta función, regrese
los controles a condiciones de operación.
4. Después de seleccionar el portabarras a ser usado girando el switch selector de portabarras
a #1 o #4, gire el portabarras sobre el orificio central. Luego retorne el joystick a la posición
NEUTRAL.
2-72
Operación Sección
MD6640 Perforadora Electrica Para Pozos De Tronadura
5. Baje lentamente la unidad de rotación/empuje y ponga el extremo inferior de la barra dentro
del bolsillo del portabarras. Asegúrese que la barra quede firmemente asentada en el fondo
del bolsillo.
6. Gire rápidamente el reóstato de rotación hacia la izquierda (contrareloj) hasta aproximadamente
la mitad de la velocidad total. La unión debería abrirse en el acoplamiento giratorio.
NOTA: SI LAUNIÓN NO SE ABRE INMEDIATAMENTE, RETORNE EL REÓSTATO DE
ROTACIÓN A LA POSICIÓN CERO, PARA REDUCIR LA POSIBILIDAD DE DAÑOS AL
MOTOR POR ATASCAMIENTO.
7. Si la unión no se abre, será necesario graduar las ranuras sobre la barra de perforación de
forma de permitir que la unidad de rotación tome velocidad antes de detener la barra de
perforación. Esto se hace girando la barra de perforación en la dirección adelante hasta que
las ranuras de la barra queden casi alineadas con las uñas en el manguito. Esto permite que
la barra gire casi media vuelta antes de ser frenado por las uñas.
Si la juntura no se quiebra en un segundo intento, la cuerda del taladro necesitará ser reensamblado,
un hueco taladrado hacia abajo y entonces usar la llave de ruptura para romper la juntura.
8. Cuando se abra la unión, suba levemente la unidad de rotación/empuje a medida que la unión
se va desenroscando.
9. Cuando la unión se desenrosque completamente, la barra caerá en el fondo del bolsillo del
portabarras. La puerta superior se cerrará automáticamente alrededor de la barra de
perforación. Cuando la unión es completamente desenroscada, levante la unidad de rotación/
empuje hasta una posición que no interfiera con el movimiento del portabarras. Instale el
freno de levante.
10. Oscile el portabarras hasta la posición de almacenaje.
Para quitar el estabilizador, proceda de la siguiente manera:
1. Con el estabilizador aún amordazado en las llaves de herramientas, instale una campana de
levante en la parte superior del estabilizador. Fije la línea del winche auxiliar a la campana de
levante y levante el estabilizador y el buje guía desde el orificio de la plataforma de perforación.
Bloquee este ensamblaje en posición vertical.
2. Retire la línea del winche auxiliar del estabilizador. Saque el buje guía del estabilizador y
reinstale la línea del winche auxiliar al estabilizador.
3. Usando la línea del winche auxiliar, retire el estabilizador desde la perforadora. Reinstale el
buje guía en el orificio de la plataforma de perforación.
2-73
Operación Sección
MD6640 Perforadora Electrica Para Pozos De Tronadural
AGREGANDO BARRA DE PERFORACIÓN ADICIONAL
La instalación de secciones adicionales de barras de perforación se hace necesario cuando la
profundidad del pozo va a ser más grande que el largo total de una sección de barra. La instalación
de una segunda o tercera sección de barra, es básicamente el mismo proceso que la instalación
de la primera. Se levanta la unidad de rotación/empuje sobree el portabarras, se desplaza un
portabarras con barra hasta el centro del orificio, se enrosca el acoplamiento giratorio a la barra,
se saca la barra del portabarras y se almacena el portabarras.
Para instalar una sección adicional de barra de perforación, proceda de la siguiente manera:
1. Se debería perforar la primera parte del pozo tan profundo como sea posible con la primera
sección de barra. El pozo debería ser perforado suficientemente profundo para colocar la
unión entre la unidad de rotación y la parte superior de la primera sección de barra de
perforación a nivel con las llaves de herramienta. Después de completar esta sección del
pozo, apague el caudal de aire principal.
2. Alce la cuerda de la herramienta hasta que las ranuras o planas en la parte superior de la
primera sección de tubería estén alineadas con la llave herramienta. Sujete la llave herramienta
firmemente alrededor de la tubería de perforacion.
3. Gire rápidamente el reóstato de rotación hacia la izquierda (contrareloj) aproximadamente
hasta la mitad de la velocidad total. El acoplamiento giratorio debería girar, abriendo la unión
entre la barra y el acoplamiento.
NOTA: SI LA UNIÓN NO SE ABRE INMEDIATAMENTE, DEVUELVA EL REÓSTATO DE
ROTACIÓN A LA POSICIÓN CERO, PARA REDUCIR LA POSIBILIDAD DE DAÑOS AL
MOTOR POR ATASCAMIENTO.
4. Si la juntura no se quiebra, use la llave de ruptura para romper la juntura.
5. Cuando se abra la unión, aplique suficiente potencia de levante para elevar la unidad de
rotación/empuje a medida que la unión se va desenroscando. No demasiada potencia como
para levantar la llave de herramientas y provocar que ésta pierda su agarre sobre la barra.
Cuando la unión está totalmente desacoplada, levante la unidad de rotación/empuje hasta
una posición que haga accesibles el acoplamiento desde la plataforma de perforación. Instale
el freno de levante, empuje el botón OFF de control de perforar/propulsión para prevenir
operaciones. Limpie y lubrique los hilos y pestaña del acoplamiento giratorio. Use un
compuesto aprobado para hilos de perforación en los hilos y pestaña. Después de limpiar y
lubricar el acoplamiento, levante la unidad de rotación a una posición sobre los portabarras
de forma tal que no sea chocado por las barras o el portabarras cuando este oscile para
posicionarse sobre el buje central.
6. Posicione el portabarras e instale la nueva sección de barra a la unidad de rotación.
2-74
Operación Sección
MD6640 Perforadora Electrica Para Pozos De Tronadura
7. Cuando la nueva sección de la barra se fije a la unidad de rotación y el portabarras almacenado,
baje la barra hasta que quede cerca de tres pies (90 cm.) sobre la plataforma de perforación.
Instale el freno de levante. Ponga una cubierta sobre los hilos de la barra que está sujeta por
la llave de herramientas. Retire a todo el personal del área y active el caudal de aire principal
para soplar cualquier suciedad desde el interior de la barra acoplada a la unidad de rotación.
Después de apagar el caudal de aire, saque la cubierta de la barra inferior, limpie y lubrique
los hilos y pestañas, tanto el extremo macho de la barra inferior como los hilos del extremo
hembra de la barra superior.
8. Después de limpiar y lubricar los hilos, mueva el reóstato de rotación hasta que la columna
gire a aproximadamente 5 R.P.M., como se muestra en el terminal de la pantalla de exhibición
del operador. Baje lentamente la unidad de rotación/empuje por gravedad hasta que los hilos
lleguen a contactarse. Cuando los hilos comiencen a enroscar las dos barras, intente aminorar
la presión sobre los hilos, permitiendo que la unión se cierre de forma suave, mientras sujeta
la barra superior en posición con el freno de levante, permita luego que la barra superior
descienda ligeramente pero sin que la llave de herramientas pierda el agarre que tiene sobre
la barra inferior. Cuando la unión está apretada, detenga el movimiento de rotación.
NOTA: ASEGÚRESE DE QUE LAUNIÓN SE HAGAAPROPIADAMENTEANTES DE INTENTAR
SOLTAR LAS MORDAZAS DE LA BARRA INFERIOR. SI LA UNIÓN NO ESTUVIERA
HECHA APROPIADAMENTE Y FALLA, LA BARRA INFERIOR CAERÁ DENTRO DEL
POZO Y SERÁ DIFÍCIL DE RECUPERAR.
9. Desembrague la llave herramienta y repliéguela completamente. La segunda sección de tubería
está ahora instalado.
Para instalar la tercera sección de barra, siga las instrucciones usadas para instalar la segunda
sección, excepto por el hecho que la tercera sección quedará instalada entre el acoplamiento
giratorio y la segunda sección de barra.
2-75
Operación Sección
MD6640 Perforadora Electrica Para Pozos De Tronadural
REMOCIÓN DE SECCIONES MÚLTIPLES DE BARRAS DE PERFORACIÓN
El desarme de secciones múltiples de columna de perforación es esencialmente lo mismo que
desarmar una sección simple. La diferencia está en que en vez de sujetar el estabilizador con la
llave de herramientas, será la primera o segunda sección de barra.
La columna de herramientas se desarma en el orden opuesto al ensamblaje. Primero, la última
sección de barra instalada, seguida por la segunda sección de barra instalada y luego la primera.
En cada caso, la sección inferior de la barra es sujetada por la llave de herramientas, mientras la
unión es abierta por la llave de desenroscar. La unión es entonces desacoplada por el movimiento
de la unidad de rotación y la barra es alojada en el portabarras. El procedimiento se repite tantas
veces como se necesite para desarmar todo o parte de la columna de herramientas.
NOTA: PARALAOPERACIÓN NORMAL NO ES NECESARIO DESARMAR COMPLETAMENTE
LA COLUMNA DE HERRAMIENTAS CUANDO SE PASA DE UN HOYO A OTRO DE LA
MALLADE PERFORACIÓN, SIEMPRE QUE NO SEAN EXCEDIDAS LAS LIMITACIONES
DE ESTABILIDAD. NO DESARME LA COLUMNA DE HERRAMIENTAS MÁS DE LO
NECESARIO.
2-76
Operación Sección
MD6640 Perforadora Electrica Para Pozos De Tronadura
PERFORACIÓN INCLINADA
EQUIPAMIENTO PARA PERFORACIÓN INCLINADA
2-77
Operación Sección
MD6640 Perforadora Electrica Para Pozos De Tronadural
Todos los procedimientos de manejo de herramientas se hacen de la misma forma tanto en
perforación inclinada como en perforación standard vertical. La única adición al procedimiento es
el uso de un posicionador de barras para sujetar la barra de perforación que se va a enroscar en
su posición y una estructura “A” con piernas frontales ajustables. También incluye un sello ajustable
para las barras, el cual puede se puede mover para alinearse con las barras de perforación.
POSICIONADOR DE BARRAS
Durante la perforación inclinada la plataforma permanece horizontal proporcionando una superficie
horizontal desde donde trabajar, en cambio, la barra de perforación permanece en el ángulo del
mástil. Para hacer una unión en la plataforma de perforación, tal como agregar el estabilizador, la
broca o barra de perforación o cuando se quitan éstos componentes, es necesario sujetar la barra
de perforación en posición para alinearla con otra barra de perforación o con el componente que
se está sujetando en la plataforma de perforación. Esa es la función del posicionador de barras.
El posicionador de barras se mueve a su posición mediante cilindros hidráulicos. Las mandíbulas
del posicionador se abren con un solo cilindro hidráulico.
2-78
Operación Sección
MD6640 Perforadora Electrica Para Pozos De Tronadura
NOTA: NO OPERE LAMAQUINARIADE ROTACIÓN SINOA BAJA VELOCIDAD PARAABRIR
O CERRAR UNIONES, MIENTRAS LAS MANDÍBULAS ESTÉN CERRADAS
ALREDEDOR DE LA BARRA. OPERANDO LAMAQUINARIA DE ROTACIÓN AALTA
VELOCIDAD O PERFORANDO MIENTRAS LAS MANDÍBULAS DEL POSICIONADOR
ESTÁN CERRADAS ALREDEDOR DE LA BARRA, DAÑARÁ LAS MANDÍBULAS Y
LAS ESTRUCTURAS DEL POSICIONADOR.
Para hacer una unión con el posicionador de barras, proceda como en el ensamble de unión
normal. Cuando el portabarras ha sido movido a su posición, retraiga el posicionador a su lugar y
cierre las mandíbulas alrededor de la barra. Proceda normalmente para hacer la unión. Una vez
realizada la unión, abra las mandíbulas del posicionador y luego extiéndalo a la posición de
almacenaje.
Para abrir una unión, se utiliza tanto el posicionador de barras como la llave de desenroscar. El
posicionador de barras se usa para sujetar la barra en posición para ser cargada dentro del
portabarras. La llave de desenroscar se usa para abrir la unión.
Para abrir una unión, proceda igual que para desacoplar una unión.Antes de separar completamente
la unión, amordace la barra con el posicionador de barras. Después de desacoplar la unión, levante
la barra de perforación y baje el portabarras, suelte las mandíbulas y extienda el posicionador.
Proceda normalmente con el procedimiento para desacoplar una unión.
NOTA: EN LOS CASOS DONDE LAMÁQUINAES EQUIPADACON UNAPINZADE CUBIERTA
EN LUGAR DE LALLAVE DE RUPTURA, LAGRUADE PLUMADE PINZADE CUBIERA
ES DISEÑADAAFIN DE PUEDASER EXTENDIDADESDE 4A7 PIES. PARALA
PERFORACIÓN VERTICAL, LAGRÚADEBERÍAESTAR EXTENDIDAALAPOSICIÓN
DE 5 PIES. PARAUN ÁNGULO LAPERFORACIÓN DE 25 GRADOS LAGRULLA
DEBERÍAESTAR EXTENDIDAPARALAPOSICIÓN DE 6.5 PIES.
GRÚA GIRATORIA
2-79
Operación Sección
MD6640 Perforadora Electrica Para Pozos De Tronadural
OPERACIÓN SISTEMA DE SUPRESIÓN DE POLVO
La mayoría de las perforadoras MD6640 están equipadas con alguna clase de sistema de supresión
de polvo. Este sistema puede ser un filtro tipo seco o un sistema de inyección de agua. El control
de polvo se necesita para impedir que el polvo generado por la perforación se escape al medio
ambiente. Como equipo standard, todas las máquinas están equipadas con cortinas contra polvo
y sello de polvo para barras, para contener el polvo alrededor del hoyo de perforación. El sello de
polvo para barras se debe ajustar a la inclinación de la barra cuando se perfore inclinado.
Hay dos maneras de suprimir la generación de polvo o prevenir el escape de polvo a la atmósfera.
Los dos métodos no se pueden usar al mismo tiempo, ya que no son compatibles entre sí. Un
método para suprimir la generación de polvo, es inyectar agua al caudal de aire principal cuando
pasa hacia la broca.
El agua sirve para aglomerar las partículas de polvo en partículas más grandes, que puedan ser
tratadas como detritus. El otro método para suprimir el polvo, es contenerlo en el recinto de las
cortinas contra polvo, luego quitarle las partículas más pequeñas y filtrarlas del aire antes que éste
retorne a la atmósfera. El filtrado se hace por una unidad de filtro, la que fuerza el aire saturado de
polvo a través de filtros donde el polvo es removido. En el sistema de filtros, el polvo debe permanecer
seco ya que el material húmedo obstruirá los filtros.
NOTA: CUANDO LA MÁQUINA ESTÁ EQUIPADA CON UN SISTEMA DE FILTROS DE POLVO
TIPO SECO, ELAIRE PARA LA LIMPIEZA DE LOS FILTROS PROVIENE DEL
SISTEMA DE AIRE DE BARRIDO. LA PRESIÓN DELAIRE HACIA EL FILTRO DE
POLVO TIPO SECO, DEBE SER MANTENIDO A 40 PSI (276 kPa), PARAASEGURAR
UNAAPROPIADALIMPIEZADE LOS ELEMENTOS DE FILTRO.
2-80
Operación Sección
MD6640 Perforadora Electrica Para Pozos De Tronadura
SISTEMA DE INYECCIÓN DE AGUA
2-81
Operación Sección
MD6640 Perforadora Electrica Para Pozos De Tronadural
PERFORACIÓN
PERFORACIÓN VERTICAL
Cuando una perforadora ha sido inspeccionada y puesta en marcha, posicionada, nivelada y la
columna de herramientas ensamblada, está lista para comenzar a perforar. Hay dos métodos de
perforación, perforación vertical y perforación inclinada. La perforación vertical es, como lo dice su
nombre, perforar un pozo vertical. La perforación inclinada, es perforar el pozo en algún ángulo
sobre la vertical (hasta 25 grados). Esta sección del Manual del Operador, detalla los procedimientos
involucrados en la perforación vertical.
El presente procedimiento de perforación contiene tres secciones principales:
1. Comenzando el pozo (anillando)
2. Perforando el pozo
3. Limpiando o ensanchando el pozo.
En áreas mineralizadas se encuentran muchos tipos de formaciones. Las formaciones que se
perforan van desde arcilla húmeda hasta taconita sólida. Cada formación, y las partes del pozo
entre cada formación, requieren técnicas de perforación expresamente para ésa formación. Un
pozo perforado a través de caliza fragmentada no se perfora de la misma manera que un hoyo que
se perfora a través de taconita consolidada. Por ésta razón es importante que el operador no solo
se familiarice con los procedimientos básicos de perforación y con la máquina específica con la
cual perfora, sino que también se debe familiarizar con la formación que está siendo perforada.
Para los propósitos de ésta sección del Manual del Operador, se asume que el pozo será perforado
en una formación de roca consolidada. Ésta es quizás la formación más simple para perforar.
Circunstancias especiales se tomarán en consideración en la sección PERFORANDO EN
FORMACIONES DIFÍCILES de éste Manual. También se asume que el operador está familiarizado
con la ubicación y operación de todos los controles en la máquina y que la máquina está en buenas
condiciones.
Durante la presente perforación, el terminal de exhibición del operador debe estar encendido y la
pantalla de exhibición del operador mostrarse en el monitor. Todos los parámetros de perforación
anotados en los siguientes párrafos aparecerán en la pantalla de exhibición del operador.
NOTA: LOS GRÁFICOS DE BARRA EN EL TERMINAL DE LAPANTALLADE EXHIBICIÓN
DEL OPERADOR MUESTRAN LA CONDICIÓN DE CADA UNA DE LAS FUNCIONES.
SI UNA FUNCIÓN OPERA MAS ALLÁ DE SU RANGO NORMAL DE OPERACIÓN,
ESPECIALMENTE PARA LA CORRIENTE DE ROTACIÓN Y LA FUERZA DE
LEVANTE/EMPUJE, EL COLOR DE LOS GRÁFICOS DE BARRA VAA CAMBIAR DE
VERDE HASTAAMARILLO O ROJO CUANDO EL VALOR DEL GRÁFICO SUBA
HASTA ESE RANGO EN PARTICULAR. PARA MÁS DETALLES REFIÉRASEAL
MANUAL DE LAPANTALLADE EXHIBICIÓN DEL OPERADOR.
2-82
Operación Sección
MD6640 Perforadora Electrica Para Pozos De Tronadura
INICIANDO EL POZO (ANILLANDO)
Ya que los primeros pies de un pozo se desarrollan generalmente en material no consolidado, el
procedimiento para perforar a través de este material, será diferente que para el resto del pozo.
Este procedimiento es comúnmente llamado como “anillando” el hoyo.
Para comenzar, o anillar el pozo, proceda de la siguiente manera:
1. Verifique que la llave de herramientas y la llave de desenroscar estén totalmente retraídas.
Despeje la plataforma de perforación de personal y de materiales que no sean necesarios
para el procedimiento de perforación (por ejemplo tambores de aceite, herramientas, brocas
de repuestos, etc.)
2. Colocar el interruptor selector de modo operativo en la posición del PERFORACION. Coloque
el interruptor selector de velocidad de levante/izado en la posición IZADO. Presione el botón
de control ENABLE para la posición ENCENDIDA. Suelte el freno de levante y deje la cuerda
de la herramienta moverse hacia abajo a fin de que el buje de guía esté firmemente sentado
en el hueco en la cubierta de la perforadora. Asegúrese de que las ranuras en el buje se
alineen con las orejetas en la cubierta de la perforadora. Resetear el freno de levante.
3. Gire el switch selector de velocidad de rotación en la posición LENTO. Gire el reóstato de
rotación hacia la derecha hasta que el gráfico de barras de velocidad de rotación en la pantalla
de exhibición del operador indique que la columna de herramientas está girando a
aproximadamente a R.P.M.
4. Baje las cortinas de polvo y encienda contra el sistema de control de polvo. Colocar el interruptor
principal en posición ABRIR para suministrar -- de aire a la broca.
NOTA: MIENTRAS LABROCAESTÁ PASANDOATRAVÉS DEL MATERIAL NO
CONSOLIDADO DE LA PARTE SUPERIOR DE LA FORMACIÓN, LA VELOCIDAD DE
EMPUJE APROPIADA PARA CAUSAR LA PENETRACIÓN DE LA BROCA SE LOGRA
GIRANDO LEVEMENTE EL REÓSTATO DE LEVANTE/EMPUJE HACIALA
DIRECCIÓN DE EMPUJE.
5. Suelte el freno de levante y permita que la broca de perforación contacte el terreno. Verifique
la vibración que proviene de la columna de herramientas. Para reducir la vibración, baje la
velocidad de rotación con el reóstato de rotación. Mantenga la vibración en el mínimo. En la
medida que disminuye la vibración incremente la velocidad de rotación y la velocidad de
empuje mientras monitorea el gráfico de barra de la corriente de rotación y el gráfico de la
presión de aire en el terminal de la pantalla de exhibición del operador.
2-83
Operación Sección
MD6640 Perforadora Electrica Para Pozos De Tronadural
El objetivo es penetrar la formación tan rápido como sea posible sin causar daño a la máquina o
tapar el pozo con detritus. Monitoreando la corriente de rotación y manteniendo la carga en la
porción inferior del gráfico de barras (verde), se evitarán daños al motor de rotación. Para reducir la
carga del motor se logra reduciendo la fuerza de empuje sobre la broca. Reduciendo la fuerza de
empuje, en muchos casos, permitirá cumplir lo anterior. En algunos casos, será necesario incluso
levantar levemente la columna de herramienta para reducir la carga. Monitoreando el gráfico de
barras de la presión de aire, indicará la condición del pozo. Si la penetración es demasiado rápida y
el aire de barrido no es capaz de remover el detritus tan rápido como se está generando, el pozo se
tapará y la presión de aire se elevará. Variando el rango de penetración, se variará la presión de
aire. Mantener la presión de aire en el rango normal de trabajo al incrementar o disminuir el indice
de penetración. Mantenga los niveles de vibración al mínimo, variando la velocidad de rotación y la
fuerza de empuje.
6. Cuando la broca traspase el material fragmentado (aproximadamente 3 a 5 pies [0.9 a 1.5
m]) y penetre el material consolidado bajo éste, la vibración y la carga se reducirán
drásticamente. Cuando esto suceda, el hoyo ha sido anillado y se puede comenzar la
perforación normal.
2-84
Operación Sección
MD6640 Perforadora Electrica Para Pozos De Tronadura
PERFORACIÓN NORMAL
Después que la broca haya atravesado el material no consolidado de la parte superior del pozo, ya
no será necesario reducir la carga en la broca para reducir la vibración y la carga del motor de
rotación. Una penetración más rápida y más fuerza de empuje se necesitará de ahora en adelante
para completar el pozo tan rápido como sea posible, con mínima vibración. Ésta es la condición
normal de perforación para la máquina.
La perforación normal sigue los mismos lineamientos que los de anillar el hoyo. La penetración se
incrementa al máximo, determinada por la carga del motor de rotación, la vibración en la columna
de herramientas y la presión de aire. Al mantener la penetración en o levemente bajo el óptimo, el
pozo puede ser completado en el tiempo más corto posible.
Para iniciar la perforación normal, proceda de la siguiente manera:
1. Cuando se desea perforación normal, es necesario agregar presión a la broca en adición al
peso muerto de la columna de herramientas y de la unidad de rotación/empuje. Esta presión
se obtiene con el motor eléctrico y la caja de engranajes de empuje. Para activar el motor de
empuje, gire el reóstato de levante/empuje en la dirección de EMPUJE, tanto como sea
necesario para una máxima velocidad de perforación y fuerza de empuje. Al girar el control
en la dirección de empuje, se incrementará la presión sobre la broca de acuerdo a la velocidad
de empuje deseada.
Aplique suficiente fuerza de empuje para permitir que los insertos de la broca corten el material
que está siendo perforado en vez de pulverizarlos. Si la fuerza de empuje no fuera suficiente, la
broca cabalgará en la superficie del material que se está perforando y no creará astillas. Esta
condición se puede observar monitoreando el detritus. Si el detritus es material finamente
pulverizado, la fuerza de empuje no es suficiente. Otra causal de material pobre es una broca
desgastada. Si la fuerza de empuje es alta pero el detritus es fino y la penetración lenta, cambie la
broca.
2. Verifique la carga del motor de rotación (corriente) y ajuste la fuerza de empuje para mantener
la barra del gráfico en la porción inferior del gráfico (verde). Está permitido incrementar
momentáneamente la carga hasta el amarillo, pero el trabajo continuo en la porción amarilla
o roja causará daños al motor de rotación.
3. Verifique las vibraciones de la columna de herramientas y de la máquina. Mantenga las
vibraciones en un mínimo variando la velocidad de empuje y la velocidad de rotación. Si
aumenta la vibración, primero reduzca la velocidad de rotación. Si esto no reduce la vibración
a un nivel aceptable, reduzca la velocidad de empuje hasta que la vibración sea aceptable.
NOTA: LAEXCESIVAO PROLONGADAVIBRACIÓN DE LACOLUMNADE HERRAMIENTAS
Y DE LAMÁQUINA, CAUSARÁN EVENTUALES DAÑOSALAMÁQUINA.
2-85
Operación Sección
MD6640 Perforadora Electrica Para Pozos De Tronadural
Monitoree la presión de aire. Mantenga la presión en rangos de trabajo normal para evitar
sobrecalentamiento del compresor. Las presiones arriba del alcance útil normal señalan que el
hueco comienza a taponar con recortes. Detenga el izado devolviendo el reostato del levante/izado
a la posición APAGADA. Instale el freno de levante. Espere un momento y si la presión comienza a
descender, deje el hoyo limpio antes de retornar a perforar. Si la presión no comienza a descender,
será necesario levantar la columna de herramientas para limpiar el pozo. Para hacer esto, suelte el
freno de levante y gire el switch selector de levante/empuje a la posición LENTA y el reóstato de
levante/empuje en la dirección de levante. Levante la columna de herramientas hasta que el hoyo
se limpie. Deje el movimiento de rotación activado ya que esto ayudará a limpiar el pozo. Si nota
que la presión sube lentamente durante la perforación, reduciendo momentáneamente la velocidad
de penetración, puede eliminar la necesidad de suspender el empuje y levantar la columna de
herramientas.
4. Continúe con la perforación normal hasta que el pozo llegue a la profundidad deseada. Puede
ser necesario agregar barras de perforación para completar el pozo. Refiérase a la sección
apropiada en éste Manual para ver los procedimientos necesarios para agregar barras.
La pantalla de despliegue del operador mostrará la profundidad del hoyo en pies.
5. Cuando la profundidad del pozo terminado sea alcanzada, es necesario limpiar o ensanchar
el pozo antes que este quede completado.
FINALIZANDO EL POZO
Cuando la profundidad del hoyo terminado es alcanzada, termina la perforación normal. Ahora es
necesario ensanchar el pozo antes de preparar la perforadora para el próximo pozo. Al ensanchar
el pozo se limpia el detritus que ha caído en el fondo y también se rectifica e incrementa su
diámetro.
En la medida que la broca y la columna de herramientas atraviesan la formación, la broca puede
tender a desviarse levemente. Esta desviación es debida al hecho que el estabilizador no puede
ser exactamente del mismo diámetro que la broca o éste se desgastaría rápidamente y crearía
problemas de operación. El estabilizador tiende a mantener a la broca en su trayectoria, pero no
puede mantener el pozo exactamente recto. Al ensanchar el pozo, éste se rectifica y por lo tanto
se incrementa ligeramente el diámetro. Al ensancharlo también se remueve cualquier detritus que
se haya alojado en él. Este detritus debe ser removido o eventualmente caerán en el fondo del
pozo, reduciendo la profundidad perforada.
Para completar el procedimiento de perforación, el pozo se ensancha de la manera siguiente:
1. Cuando el pozo se ha perforado hasta la profundidad final, mantenga activado el caudal de
aire y el reóstato de rotación en la posición MÍNIMO y su movimiento activado. Retorne el
reóstato de levante/empuje a la posición “0” e instale el freno de levante. Permita que la
columna de herramientas gire y que el aire barra el pozo por un momento. Esto remueve
todo el detritus en suspensión.
2-86
Operación Sección
MD6640 Perforadora Electrica Para Pozos De Tronadura
2. Gire el switch selector de velocidad de levante/empuje a la posición LEVANTE LENTO y el
reóstato de levante/empuje en la dirección LEVANTE mientras simultáneamente suelta el
freno de levante. Levante lentamente la columna de herramientas fuera del pozo. Si resistencia
es encontrada, o si la vibración aumenta, devuelva el reostato de levante./izado a la posición
APAGADAy coloque el freno de levante. Permita que la obstrucción sea removida por la broca
antes de continuar. Si el hoyo está demasiado desviado (lo que indica un estabilizador
desgastado), puede ser necesario repetir esta operación de levante, luego detenerse y permitir
que la broca despeje, tantas veces como sea necesario hasta alcanzar la boca del pozo.
Este procedimiento rectifica el hoyo y permite sacar la columna de herramientas.
3. Cuando se ha sacado la columna de herramientas y el pozo se ha ensanchado, éste deberá
ser limpiado. Al ensanchar el pozo se suelta el detritus que se habían adherido a las paredes.
Este detritus y mucho del generado durante el ensanche, van a caer en el fondo del pozo.
Este relleno puede reducir en forma significativa la profundidad verdadera, de tal manera que
es necesario remover este detritus del pozo. Para hacerlo, suelte el freno de levante y gire
lentamente el reóstato de levante/empuje a la modalidad de empuje.
Deje el aire activado y la columna de herramientas girando a 25-30 R.P.M. Cuando la broca alcanza
el punto donde se han acumulado el detritus del fondo, ésta los forzará fuera del pozo. Cuando se
ha limpiado de detritus del fondo, la broca contactará la formación no perforada del fondo del hoyo
y detendrá su penetración. Cuando se detenga el flujo de detritus saliendo del pozo y la columna
de herramientas deje de penetrar, el hoyo está limpio,
4. Después de limpiar el hoyo, la columna de herramientas se puede levantar hasta la superficie.
Girando el control del reóstato de levante/empuje en la dirección de LEVANTE y el switch
selector de velocidad de levante/empuje en la posición LEVANTE RÁPIDO, se levantará la
columna de herramientas.
FINALIZANDO EL HOYO (SECCIONES MÚLTIPLES DE BARRA)
Ensanchar el pozo con una columna de herramienta de secciones múltiples, es lo mismo que
ensanchar con una columna de sección simple. El procedimiento de ensanche se debe hacer en
etapas, en la medida que las secciones de barra se van retirando.
Mientras se retira la barra de perforación, el detritus desalojado de los costados del pozo así como
aquellos generados por el ensanche, caerán al fondo del pozo. Para limpiar efectivamente el pozo,
debería ser necesario rearmar la columna de perforación y bajarla hasta el fondo. Esto no es
deseable, porque significa pérdidas de tiempo. Un método para eliminar la necesidad de limpiar el
hoyo, es sobreperforar la profundidad y permitir que el detritus llene el hoyo hasta la profundidad
final deseada. La experiencia con éste método mostrará cuánto se debe sobreperforar. Una buena
práctica es sobreperforar 1 o 2 pies (0.3 o 0.6 m) sobre la terminación estimada de la profundidad
deseada. De ésta forma, si la estimación es errada, el hoyo quedará 1 o 2 pies mas profundo. Esto
puede ser fácilmente corregido con unas pocas paladas llenas de detritus devueltas al pozo. Por
el contrario, la subestimación requerirá el rearmar la columna de herramientas y luego limpiar el
hoyo.
2-87
Operación Sección
MD6640 Perforadora Electrica Para Pozos De Tronadural
PERFORANDO FORMACIONES DIFÍCILES
Como propósito explicativo, en los procedimientos de perforación dados en la Sección
PERFORACIÓN de éste manual, se asume que las perforaciones tienen lugar en formaciones
rocosas consistentes y consolidadas. Desafortunadamente, no todas las perforaciones se realizan
en éste tipo de formación. Esta sección del Manual del Operador detallará, en general, algunas
dificultades típicas de perforación encontradas.
La principal causa de perforación difícil se encuentra en los materiales no consolidados o en
materiales húmedos y pegajosos. El material no consolidado produce vibraciones mayores a las
experimentadas en terrenos consolidados y si son suficientemente severas, pueden también hacer
descender la velocidad de barrido del caudal principal de aire. El material húmedo y pegajoso
causa problemas con la limpieza del pozo, ya que el material puede cubrir el pozo y la barra de
perforación, incrementando la presión de aire por sobre el rango de trabajo. El material pegajoso
también puede tapar los orificios de la broca, inutilizar los conos de la broca o compactarse en
pelotas que rehusen ser barridas fuera del pozo. El procedimiento general para perforar en
formaciones difíciles es igual que el procedimiento para perforar en buenas formaciones. El hoyo
es anillado, perforado, ensanchado y limpiado, usando los procedimientos standard de operación.
El monitoreo de la máquina, sin embargo, es crítica cuando se perfora formaciones difíciles.
NOTA: NO MONITOREAR ESTRECHAMENTE LA MÁQUINA Y SUS GRÁFICOS DE BARRAS
COMO SE MUESTRAN EN ELTERMINAL DE LA PANTALLA DE EXHIBICIÓN DEL
OPERADOR, DARÁN COMO RESULTADO DAÑOS A LA MÁQUINA O UNA BARRA
DE PERFORACIÓN ATASCADA.
MATERIALES NO CONSOLIDADOS
Perforar materiales no consolidados puede presentar dos problemas. El primero, y el más severo,
es la vibración obtenida cuando la velocidad de penetración es muy rápida. En la medida que gira
la broca, los conos atraviesan el material y los dientes o insertos no cortan el material que se está
perforando. En cambio, el material no consolidado tiene huecos en él. Cuando la broca pasa a
través de un hueco del material, ésta solo contacta parte del fondo del pozo. En la medida que
cada cono pasa a través del hueco, la columna de herramientas se mueve hacia abajo cuando el
cono cae en el hueco y luego se devuelve hacia arriba cuando el cono toca en firme. Este continuo
movimiento arriba y abajo resulta en cargas de choque que son transmitidas por la broca, a través
de la columna de herramientas, a la máquina.
Para perforar a través de formaciones no consolidadas, es necesario reducir la carga en la broca,
cuando ésta está atravesando los huecos. También es útil aislar la carga de impacto a la columna
de herramientas. Esto se logra, primero, reduciendo la velocidad de empuje. Si al reducir la velocidad
de empuje no se reducen las vibraciones a la máquina hasta un nivel aceptable, puede ser necesario
levantar la broca sobre el hueco y luego bajarla un poco al tiempo que corta los lados del hueco un
poco cada vez. La reducción de la velocidad de rotación también ayudará a reducir las vibraciones
de la columna de herramientas. Este procedimiento es el último que debería intentarse, ya que si
la velocidad de empuje se mantiene alta y se disminuye la velocidad de rotación, la vibración será
igual de severa, solo que en diferente frecuencia.
2-88
Operación Sección
MD6640 Perforadora Electrica Para Pozos De Tronadura
El material no consolidado presenta otro problema debido al hecho que los huecos en el material
pueden permitir que el aire de barrido se escape a través de los costados del pozo en vez de pasar
a lo largo de las barras de perforación y salir por la parte superior del pozo. Ésta pérdida de aire
reduce el volumen de aire disponible para barrer el pozo causando que el detritus caiga al fondo y
sea remolido por la broca. Esto reduce aún más la velocidad de penetración ya que éstos detritus
deben ser molidos por la broca y barridos afuera, o taparán el pozo. El material no consolidado
también puede causar el colapso del pozo. Esto crea problemas debido a la repentina adición de
material dentro del pozo y la resultante pérdida de velocidad de barrido debido al aumento del
diámetro del pozo.
Si el material no consolidado está causando pérdida de volumen de aire de barrido o colapsos en
el pozo, se hace necesario limpiarlo continuamente, ya que el detritus reciclado o el material
colapsado van a tapar el pozo. Monitoree estrechamente tanto la presión de aire de barrido como
el flujo de detritus desde el pozo. Si se está perdiendo aire, la presión de aire permanecerá constante
pero se detendrá el flujo de detritus o decrecerá drásticamente, mientras la penetración no
disminuye. Continúe perforando por unos pocos pies para tratar y lograr pasar la pérdida. Si la
presión de aire de barrido comienza a elevarse, el hoyo se está tapando. Levante inmediatamente
la columna de herramientas hasta que la presión caiga y permita que la columna de perforación
gire por unos momentos para limpiarse a sí misma. Luego baje la columna de herramientas hasta
el fondo del pozo y límpielo. Puede ser necesario remoler el detritus para hacerlos lo suficientemente
pequeño para sellar la filtración y ser barrido fuera del hoyo por un reducido volumen de aire.
Cuando el hoyo esté limpio, repita los procedimientos de subida y bajada cada 2 o 3 pies (0.6 a 0.9
m) para mantenerlo en ese estado.
Si el material tiende a colapsar desde los costados del hoyo, la columna de herramientas puede
comenzar a atascarse rápidamente en el pozo. Si el material colapsado es poco, se fijará entre
los conos de los rodillos y caerá al fondo del pozo. El pozo puede entonces ser limpiador usando
el mismo procedimiento que para un pozo con filtraciones. Si el material colapsado es grande,
será necesario tirar la columna de herramientas fuera del pozo y luego reperforar el material
colapsado.
NOTA: SEA MUY PRECAVIDO CUANDO PERFORE EN FORMACIONES LAS CUALES
TIENDENACOLAPSAR FÁCILMENTE, ESPECIALMENTE SI EL MATERIAL COLAPSA
EN GRANDES BLOQUES. SI EL MATERIAL QUE COLAPSA DENTRO DEL POZO
FUERA MUY GRANDE PARA SER LEVANTADO CON LA UNIDAD DE
ACCIONAMIENTO DE ROTACIÓN O DEMASIADO DURO PARA ROMPERLO CON
LA PARTE SUPERIOR DE LA BROCA, LA COLUMNA DE HERRAMIENTAS TENDRÁ
QUE SER ABANDONADA EN EL POZO.
La experiencia dictará cual procedimiento seguir cuando se encuentre material que tiende a colapsar.
Cuando la formación no le sea familiar, sea siempre precavido. La precaución puede resultar en
menos producción, pero podría ahorrar una gran cantidad de trabajo y una columna de herramientas
completa si ésta se quedara atascada. Siempre limpie el hoyo en forma frecuente y monitoree
constantemente la presión de aire. Si la presión de aire comienza a elevarse, levante la columna
de herramientas inmediatamente, - no espere hasta ver si la presión se va a estabilizar o no. En el
tiempo que se tarda en determinar cual será la presión de aire, el hoyo se atasca. Limpiando el
hoyo a menudo se logran dos cosas.
2-89
Operación Sección
MD6640 Perforadora Electrica Para Pozos De Tronadural
Primero, sacar el material colapsado desde el pozo. Segundo, libera cualquier material
potencialmente peligroso que pueda causar un colapso mientras la columna de herramientas está
siendo levantada. Si el hoyo colapsa mientras se está en la modalidad de levante, hay una mayor
oportunidad de recobrarla desde el derrumbe.
Si el pozo comenzara a atascarse, hay dos maneras de recuperar la columna de herramientas.
Cada método depende del tipo de material con que se ha atascado el pozo. Si el tamaño del
material que está atascando es pequeño (menos de 6 pulgadas cuadradas [15.2 cm2], es posible
moler el material lo suficiente como para que pase entre los lóbulos de la broca y caiga al fondo del
pozo. Esta condición se puede observar si la presión del aire de barrido se eleva sobre el rango
normal de trabajo. El material grande y grueso dejará pasar el aire, mientras que el material fino no
lo hará. También, cuando intente levantar la columna de herramientas fuera del pozo, ésta no
vibrará mayormente debido al pequeño tamaño del material. Material grande causará que la columna
de herramientas sea golpeada cada vez que un lóbulo en la broca choque con el bloque.
Para recuperar la columna de herramientas desde un pozo atascado con material mas fino, levante
la broca hasta que se introduzca dentro del tapón y detenga el levante. Con movimiento rotatorio
girando a aproximadamente 50-60 R.P.M., mantenga alta carga de levante sobre la broca y permita
que la broca trabaje su camino a través del tapón. Monitoree la carga del motor de rotación (corriente)
y reduzca la carga de levante (fuerza), para mantener la carga en la parte baja del gráfico de
barras. Cuando se atraviese el tapón, limpie el pozo y vuelva a perforar. La presión de aire principal
puede o no puede sobrepasar la fijación de la válvula de seguridad y causar sobrecalentamiento
del compresor principal de aire. Si la válvula de seguridad se abre cuando el hoyo está atascado,
continúe intentando liberar la columna de herramientas. La válvula de seguridad se cerrará cuando
se haya removido el tapón. Si el compresor se recalienta y se desconecta, continúe intentando
liberar la columna de herramientas sin el compresor. Permita que el compresor se enfríe durante
algunos minutos y arránquelo nuevamente. Continúe este procedimiento hasta liberar la columna
de herramientas.
Si el material que está tapando el hoyo es grande, será necesario tratar y forzar el material a volver
hacia una posición tal que permita el paso de la broca y luego tratar de reperforar a través del
tapón. El material grande se indica cuando la columna de herramientas experimenta severas
vibraciones cuando se está levantando. Para liberar la columna de herramientas aplique máxima
potencia de levante. Si el tapón no se libera a sí mismo después de unos momentos, baje la
columna unos pocos pies si es posible e inténtelo nuevamente.
Si el tapón no se libera a sí mismo después de repetidos intentos de liberarlo, hay dos opciones
disponibles. Se puede abandonar la columna inmediatamente sin mayores intentos o se puede
hacer intentando perforar a través del tapón usando el extremo superior de la broca. En ambos
casos, el pozo que se está perforando deberá ser abandonado. En el primer caso, el costo de
abandonar la columna de herramientas es conocido, mientras que en el segundo caso se debe
correr el riesgo, ya que tanto la broca como el estabilizador es casi seguro que se tendrán que
botar y no hay garantía que el resto de la columna será recuperada. Si se decide abandonar la
columna de herramientas, intente desacoplar una sección de la barra para recuperar al menos
algo de ella. Si no se puede hacer, baje la columna de herramientas hasta el fondo del hoyo y
luego, utilizando un soplete de combustión, corte la barra de perforación a nivel del terreno. Será
necesario moverse hasta un hoyo existente para retirar el resto de barra desde la unidad de
accionamiento de rotación.
2-90
Operación Sección
MD6640 Perforadora Electrica Para Pozos De Tronadura
PRECAUCIÓN: ANTES DE CORTAR LA BARRA DE PERFORACIÓN, VERIFIQUE
QUE EL COMPRESOR PRINCIPAL DE AIRE ESTÁ APAGADO.
CORTAR LA BARRA CON EL COMPRESOR ENCENDIDO PUEDE
CAUSAR UN INCENDIO O EXPLOSIÓN CUANDO SE
INTRODUZCA ESCORIA CALIENTE EN EL CAUDAL DE AIRE O
PUEDE PROVOCAR QUE MATERIAL CALIENTE EXPLOTE HACIA
EL SOLDADOR.
Si se va a hacer un intento de liberar la columna de herramientas perforando con la parte superior
de la broca, aplique solo fuerza de levante suficiente como para mantener las vibraciones y la
carga del motor de rotación en niveles aceptables. Varíe la presión de levante, cambiando
alternadamente el selector levante/empuje entre la posición levante y neutral. Varíe la velocidad de
rotación para ayudar a reducir las vibraciones. Perforar un gran bloque con la parte superior de la
broca puede ser un proceso largo y es importante prevenir daños al resto de la máquina. Cuando
se libere la columna de herramientas, revise si hay daños en el estabilizador y la broca, así como
en las barras de perforación. Reemplace los componentes y muévase a una nueva posición de
perforación. No intente perforar de nuevo en el mismo hoyo, ya que es casi seguro que esto
causará que la columna de perforación se atasque nuevamente.
FORMACIONES HÚMEDAS O PEGAJOSAS
Perforar en formaciones húmedas y pegajosas presenta tres posible áreas de problemas. Los
tres problemas que se pueden encontrar son, el recubrimiento de la broca y de la barra con
material, aglomeración del material en pedazos demasiado grandes como para ser removidos
con el caudal de aire de barrido y, el colapso del pozo. Se puede presentar cualquiera de éstos
problemas o cualquiera combinación de los tres al mismo tiempo.
Para perforar en formaciones húmedas se siguen los mismos procedimientos que para perforar
en otras formaciones. Sin embargo, al perforar en formaciones húmedas se requiere prestar
especial atención a la presión de aire de barrido y a los niveles de penetración. Las formaciones
húmedas son más susceptibles de atascar el hoyo, pero recuperar la columna de herramientas
del pozo atascado es más fácil que desde materiales no consolidados.
En el caso dónde el material se adhiere a las barras de perforación y reviste las paredes del hoyo,
es necesario ensanchar y limpiar el pozo cada 5 o 10 pies (1.5 a 3.0 m) para remover el material
perjudicial. También es necesario limpiar periódicamente las barras, para remover las costras de
material. Esto se puede lograr sacando la columna de herramientas del pozo, permitiendo que el
material sea escariado por el buje guía. Es importante sin embargo, si se va a usar el buje guía
como elemento de limpieza de la columna de herramientas, mantenerlo en buenas condiciones
de trabajo.
En el caso del material que se ha aglomerado en grandes pedazos, éstos pedazos caen hacia el
fondo del pozo y son reciclados a través de la broca para ser triturados. Si la cantidad de material
reciclado es demasiado grande, se acumulará en el fondo del pozo y restringirá el caudal de aire
principal. Para mantener este material en el mínimo, limpie el pozo periódicamente. Cuando levante
la columna de herramientas, permita que el material sea molido por la broca y caiga al fondo del
pozo antes de iniciar la limpieza.
2-91
Operación Sección
MD6640 Perforadora Electrica Para Pozos De Tronadural
En el caso donde el material se colapsa desde los costados del pozo, trate la formación como
material no consolidado y perfore de acuerdo a los procedimientos detallados en éste manual para
material no consolidado.
Cuando se perfora a través de formaciones difíciles, es importante monitorear constantemente la
máquina y la columna de herramientas. Permitir que ésta se atasque, es un error muy caro y se
puede evitar siguiendo cautelosas prácticas de perforación. Ensanchar y limpiar el hoyo puede
tomar solo unos momentos, pero puede ser la diferencia entre abandonar el pozo y la columna de
herramientas y la exitosa culminación de un pozo terminado.
PERFORACIÓN INCLINADA
NOTA: AL CAMBIAR EL MÁSTILPARAPERFORACIÓN INCLINADAEN MÁQUINAS CON
LONGITUD DE MÁSTIL DE 65 PIÉS O MÁS, LAS BARRAS DE PERFORACIÓN SE
DEBEN ALMACENAR EN LOS PORTABARRAS Y BAJAR EL CABEZAL DE
ROTACIÓNASU POSICIÓN MÁS BAJA.
La perforación angular sigue los mismos procedimientos generales de perforación que en la
perforación vertical. La principal diferencia en el procedimiento de perforación, además del hecho
que el pozo es en un ángulo, es la necesidad de monitorear en forma estrecha la condición de los
diferentes sistemas mientras se perfora en forma inclinada. Las diferencias en los procedimientos
de operación para los diferentes sistemas en la máquina, están limitados al manejo de la columna
de herramientas y de subir y bajar el mástil al apropiado ángulo de perforación.
Cuando se perfora un pozo inclinado, el monitoreo de los indicadores de los sistemas, tal como la
presión de aire de perforación, la carga de rotación y la vibración de la máquina, se hace más
crítico que cuando se perfora en forma vertical. La razón que este monitoreo sea más importante
es el hecho que un pozo en ángulo tenderá a desviarse hacia abajo en la medida que el pozo está
siendo perforado. Esta desviación se debe a que el acero de perforación asume una curvatura
natural en la medida que va extendiendo su paso por el buje guía. Esta curvatura es inevitable y se
empeora en la medida que el ángulo del pozo se acerca a los 25º.
La fuerza de gravedad actúa continuamente sobre la columna de herramientas, provocando que se
curve hacia abajo. Esta curvatura hacia abajo se conoce como la curva de la barra de perforación.
Esta curvatura causará que el hoyo se perfore con una curva gradual en él. Esto causa que la
barra de perforación se contacte con el costado del pozo, incrementando la carga del motor de
rotación. Esto también tiende a inhibir el barrido del pozo ya que el detritus no está fluyendo
verticalmente. El flujo del aire de barrido (y del detritus en suspensión) deben desviarse alrededor
del punto en que la barra de perforación descansa en el costado del pozo. Esto contribuye al
incremento de la presión de aire que se necesita para perforar un pozo inclinado. Las vibraciones
de la columna de herramientas se incrementarán mientras se perfora en ángulo, ya que la columna
descansará en los costados del hoyo en vez que en el fondo.
2-92
Operación Sección
MD6640 Perforadora Electrica Para Pozos De Tronadura
PERFORACIÓN CON CONTROL DE PERFORACIÓN PROGRAMADA. (C.P.P)
La perforación con C.P.P. es similar a la perforación normal en aquello que la máquina debe estar
posicionada, nivelada y programada manualmente por el operador. La presente operación de
perforación estará controlada por el sistema automático. Para arrancar el sistema automático use
la siguiente secuencia de arranque.
1. Asegúrese que el reóstato levante/empuje y el reóstato de rotación estén en la posición “0”.
2. Verifique que la profundidad de perforación deseada, la profundidad de anillado y la profundidad
de la inyección de agua, hayan sido instaladas de acuerdo a los parámetros del C.P.P. indicados
en el terminal de la pantalla de exhibición del operador.
3. Ponga el switch selector de velocidad levante/empuje en la posición EMPUJE.
4. Ponga la modalidad operativa del switch selector de en la posición PERFORAR.
5. Presione el botón ON de control de perforación/propulsión.
6. Colocar el interruptor de Válvula de Aire Principal en la posición ABIERTA.
7. Verifique en el terminal de la pantalla de exhibición del operador que no existen fallas en el
C.P.P. Si existe una falla, ésta debe limpiarse antes que el control C.P.P. pueda ser activado.
8. Con la pantalla de exhibición del operador presente en el terminal de exhibición, presione el
botón reinstalar indicador de profundidad para reinstalar la profundidad del pozo y el indicador
de profundidad de la broca en cero.
9. Ponga el control del freno de levante en la posición SOLTAR.
10. En el terminal de exhibición del operador mostrando la exhibición del operador, presione el
botón F5 del teclado para encender el C.P.P. Luego, sobre la tecla F5 se podrá leer “C.P.P.
ON”.
Después que se haya iniciado el procedimiento de arranque antes mencionado, los controles
automáticos tomarán posesión sobre la perforación real del pozo. La inyección de agua (si así
está equipada) se apagará a la profundidad establecida. Cuando se haya alcanzado la profundidad
total del pozo, tal cual se programó, la columna de herramientas será levantada automáticamente
y cuando la broca se aproxime al borde del pozo, el control detendrá la broca, apagará el aire e
instalará el freno de levante.
Si surgen problemas en las funciones del C.P.P., el sistema tendrá que ser corregido por un
electricista calificado. En la mayoría de los casos, si ocurre un desperfecto en el sistema automático,
éste se puede desconectar y completar la perforación manualmente.
2-93
Operación Sección
MD6640 Perforadora Electrica Para Pozos De Tronadural
PREPARÁNDOSE PARA UN CAMBIO
Cuando el pozo se haya completado y se ha sacado la columna de herramientas a la superficie,
es necesario cambiar la perforadora hasta la próxima ubicación para prepararse a perforar el
próximo pozo. Prepararse para cambiar la perforadora consiste en el apropiado almacenaje de la
columna de herramientas, bajar la máquina hasta el suelo e inspeccionar la máquina y el trazado
de la ruta antes de propulsarla.
Para preparar el cambio de la perforadora, proceda de la siguiente manera:
1. Una vez terminado el pozo actual, levante la columna de herramientas desde el pozo. Si se
está usando múltiples secciones de barra, quite y almacene todas las barras necesarias
hasta sacar la columna completa desde el pozo. Apague el sistema de control de polvo y
levante las cortinas contra polvo.
2. Amordace el estabilizador con la llave de herramientas para prevenir movimientos de la
columna de herramientas durante el desplazamiento.
PRECAUCIÓN: NO SE PROPULSIONE CON LA COLUMNA DE HERRAMIENTAS EN
UNA POSICIÓN TAL QUE SE ATASQUE CONTRA EL SUELO
MIENTRAS SE DESPLAZA. SI LA COLUMNA DE HERRAMIENTAS
GOLPEA EL SUELO MIENTRAS SE DESPLAZA, CAUSARÁ
DAÑOS EN LA MÁQUINA Y EN LA COLUMNA DE
HERRAMIENTAS.
3. Presione el interruptor automático de nivelación a la posición de REPLIEGUE para alzar las
gatas y bajar la máquina. Sujetar el interruptor en la posición de REPLIEGUE hasta que las
gatas estén completamente retractadas. Refiérase a la pantalla de nivelación automática en
el terminal de despliegue del operador para verificar que las cuatro gatas estén completamente
retractadas.
2-94
Operación Sección
MD6640 Perforadora Electrica Para Pozos De Tronadura
NOTA: SI LA MÁQUINAVASER BAJADAMANUALMENTE, REFIÉRASEALOS PASOS 4, 5 Y
6 YA LA PANTALLA DEL TERMINAL DE EXHIBICIÓN DEL OPERADOR DE
NIVELACIÓNAUTOMÁTICA.
4. Usando los controles de nivelación manual de las patas, baje la máquina de forma que
permanezca nivelada pero que esté tocando el suelo. Use los controles de nivelación de las
patas en pares (por ejemplo, ambos controles de un lado o ambos controles de un extremo,
simultáneamente), para reducir las cargas de torsión en la estructura de la máquina.
5. Una vez que la máquina esté tocando el suelo, podrá ser bajada totalmente. Para bajar
totalmente la máquina, primero baje hacia el suelo el lado o el extremo más elevado de la
máquina, luego baje hacia el suelo el lado o el extremo mas bajo. Es importante que la
máquina sea bajada en etapas para minimizar tanto la inclinación como las tensiones de
pandeo instaladas sobre la máquina.
PRECAUCIÓN: MIENTRAS BAJE MANUALMENTE LA MÁQUINAAL PISO, ES
IMPERATIVO QUE SEA MANTENIDA LO MÁS NIVELADA
POSIBLE. PUEDE QUE SEA NECESARIO BAJARLA EN ETAPAS
PARA MANTENERLA LO MAS NIVELADA COMO SEA POSIBLE.
6. Cuando la máquina sea bajada totalmente, retraiga las patas de nivelación hasta su máxima
posición de retracción.
NOTA: CUANDO BAJE MANUALMENTE LAMÁQUINA,ASEGÚRESE QUE LAS PATAS DE
NIVELACIÓN QUEDEN TOTALMENTE RETRAÍDAS ANTES DE PROPULSARLA.
PROPULSAR LA MÁQUINA CON UNA PATAS SIN ESTAR TOTALMENTE RECOGIDA,
CAUSARÁ SERIOS DAÑOS A LAPATAYA LAESTRUCTURA DE LA MÁQUINA.
7. Inspeccione la máquina y la ruta de recorrido como se indica en el tópico PROPULSIÓN en
éste manual. Después de completar la inspección, la máquina estará lista para desplazarse.
2-95
Operación Sección
MD6640 Perforadora Electrica Para Pozos De Tronadural
DETENCIÓN DE LA MÁQUINA
Detener la máquina es necesario cada vez que el operador debe abandonarla, tanto al final del
turno o por algún período de tiempo durante el mismo turno. También es necesario detenerla para
realizar la mayoría de los trabajos de mantención.
Detener la máquina es esencialmente lo inverso que arrancarla. El grado del trabajo de
almacenamiento que debe hacerse está determinado por la cantidad de tiempo en que la máquina
estará detenida. Detenerse por un período corto envuelve poco trabajo extra, mientras que detener
la máquina por períodos largos involucrará esfuerzos considerables.
PROCEDIMIENTOS DE DETENCIÓN
Para detener la máquina, proceda como sigue:
1. Termine el pozo, si hay alguno, que esté actualmente perforando. Si el pozo no es completado
antes de detener la máquina, será necesario abandonarlo y perforar otro en su lugar. No
intente reperforar un pozo que ha sido abandonado sin terminar ya que volver a nivelar y
ubicar la perforadora en la misma y exacta posición es extremadamente difícil.
2. Saque la columna de herramientas del pozo. Si se está usando múltiples secciones de
barra, saque y almacene tantas secciones de barra como sea necesario para sacar la columna
de herramientas completa desde el pozo.
NOTA: NO DETENGA LA MÁQUINA CON LA COLUMNA DE HERRAMIENTAS EN EL POZO.
AL HACERLO PUEDE CAUSAR DAÑOS A LAS BARRAS DE PERFORACIÓN Y
PUEDE SIGNIFICAR ELABANDONO DE LACOLUMNADE HERRAMIENTAS Y DEL
POZO.
3. Determine la cantidad de tiempo que la perforadora va a estar detenida. Refiérase a los
tópicos apropiados de almacenamiento en éste manual para determinar hasta qué punto se
debe desarmar la columna de herramientas. Si es necesario, desarme y almacene la columna
de herramientas en ésta ocasión.
4. Si es posible, baje la unidad de accionamiento de rotación a su posición mas baja e instale
el freno de levante. Si la columna de herramientas no se va a sacar, amordace el estabilizador
con la llave de herramientas e instale el freno de levante.
5. Siguiendo los procedimientos en los tópicos de PREPARACIÓN PARA CAMBIARSE en éste
manual, baje la perforadora hasta el suelo. Ponga las zapatas de las patas de nivelación en
el piso pero no ponga peso sobre ellas.
2-96
Operación Sección
MD6640 Perforadora Electrica Para Pozos De Tronadura
6. Apague el compresor principal de aire. Ponga todos los controles en la posición OFF o
NEUTRAL.
7. Vaya a la sala de máquinas y ponga todos los interruptores en OFF. Si la máquina va ser
detenida por un corto período de tiempo y es necesario mantener las luces encendidas, está
permitido dejar el interruptor de iluminación y las luces encendidas.
8. Inspeccione si la máquina tiene daños evidentes o desgaste. Tome nota de cualquier dificultad
operacional descubierta mientras perforaba y de cualquier problema descubierto durante
ésta inspección. Reporte las dificultades al personal apropiado.
9. Cierre todas las puertas y ventanas firmemente.
2-97
Operación Sección
MD6640 Perforadora Electrica Para Pozos De Tronadural
ALMACENAJE POR CORTO TIEMPO
Si la máquina se va detener por más de tres turnos de ocho horas, pero menos de tres semanas,
se hacen necesarias las precauciones para almacenaje por corto tiempo. Estas precauciones
son necesarias para asegurar que la máquina no se dañe ni se deteriore durante el período de
almacenamiento.
El almacenaje de corto tiempo se preocupa principalmente de poner todos los componentes en
una posición segura y proporcionar lubricación adicional de protección a los componentes
normalmente lubricados.
Para almacenar la máquina por un máximo de tres semanas consecutivas, proceda como sigue:
1. Si no se han realizado previamente, complete todo los procedimientos de detención que se
detallan en la sección DETENCIÓN DE LA MÁQUINA de éste manual. Durante el procedimiento
de detención es necesario sacar y almacenar la columna de herramientas completa. Saque
la broca desde el estabilizador y almacénela en un lugar protegido. Cubra la broca con un
lubricante apropiado para prevenir la oxidación mientras esté almacenada. A medida que
desarme las barras de perforación, limpie y lubrique los hilos de cada uno de sus extremos
antes de almacenarlas en los portabarras.
2. Baje la unidad de rotación/empuje a su posición más baja e instale el freno de levante.
Inspeccione la unidad de rotación/empuje por si tiene daños o desgastes y tome nota de
cualquier problema encontrado. Cubra el motor de rotación y el motor de empuje con un
lienzo o cubierta impermeable. Levante las cortinas contra polvo. Recoja los cilindros de la
llave de tenazas.
3. Revise el nivel de aceite en la unidad de rotación/empuje. Revise las cajas para ver si hay
agua en el aceite. Si hay agua en las cajas, drénelas y rellénelas con el aceite adecuado. Si
no hay agua presente, llene las cajas hasta el nivel apropiado.
4. Opere manualmente el sistema de lubricación y verifique que todos los puntos en el mástil
están recibiendo lubricante. Si el sistema automático de lubricación no está funcionando
apropiadamente, repare o reemplace los componentes que sean necesarios.
5. Baje las patas de nivelación hasta que las zapatas de las patas queden descansando sobre
el suelo, pero sin el peso de la máquina sobre ellas.
6. Inspeccione si el compresor principal de aire tiene evidencias de desgaste o daños. Tome
nota de cualquier daño encontrado.
7. Si el motor del compresor de aire está equipado con calefactores contra condensación,
enciéndalos en éste momento. Si el motor no está equipado con calefactores, solicite que un
electricista calificado instale calefactores o sustitutos convenientes. Cubra el motor con una
tela impermeable o un forro.
8. Cierre con llave todas las puertas de los gabinetes eléctricos.
2-98
Operación Sección
MD6640 Perforadora Electrica Para Pozos De Tronadura
9. En máquinas equipadas con compresores de tornillo, llene el radiador hasta arriba con el
aceite adecuado.
10. Opere manualmente el sistema de lubricación automático para verificar que todos los puntos
de la máquina estén recibiendo lubricante. Repare debidamente el sistema para que lubrique
todos los puntos.
11. Lubrique todos los puntos manuales.
12. Limpie las tolvas de polvo del sistema de control de polvo, si es necesario.
13. Cierre firmemente todas las ventanas y puertas.
ALMACENAJE POR LARGO TIEMPO
El procedimiento de almacenamiento por largo tiempo será necesario cada vez que la máquina se
va a abandonar por un período que exceda las tres semanas. El almacenamiento por largo tiempo
incluye todos los procedimientos necesarios del almacenaje de corto plazo y, dependiendo de la
situación, algunas precauciones adicionales.
Hay dos procedimientos involucrados en el almacenamiento de largo plazo de la perforadora, la
elección de ellos depende de si la máquina puede ser asistida mientras esté almacenada. Si la
máquina puede ser arrancada y la mayoría de la maquinaria operada una vez al mes durante el
período de almacenamiento, se necesita mucho menos trabajo de protección. Si la máquina debe
permanecer sin atención, son necesarias precauciones especiales para prevenir daños a la
maquinaria.
NOTA: SI LA MÁQUINAVAAESTAR SINASISTENCIADURANTE EL PERÍODO DE
ALMACENAMIENTO, LOS PROCEDIMIENTOS NECESARIOS PARAALMACENARLA
APROPIADAMENTE TOMARÁN UN TIEMPO CONSIDERABLE Y RESTAURAR LA
MÁQUINANUEVAMENTE PARAPRODUCCIÓN, TOMARÁAÚN MÁS TIEMPO. NO
EMPLEE LOS PROCEDIMIENTOS DE ALMACENAMIENTO DE LARGO PLAZO SIN
ASISTENCIA, SI NO ESABSOLUTAMENTE NECESARIO.
2-99
Operación Sección
MD6640 Perforadora Electrica Para Pozos De Tronadural
ALMACENAJE POR LARGO TIEMPO, CON ASISTENCIA
El procedimiento de almacenaje por largo tiempo con asistencia, combina el procedimiento de
almacenaje de corto tiempo con los períodos mensuales de arranque y funcionamiento. Para
almacenar la máquina por un largo período de tiempo, es necesario completar los procedimientos
enumerados en los párrafos de ALMACENAJE POR CORTO TIEMPO de éste manual. Luego,
una vez al mes durante el período de almacenamiento, complete todas las inspecciones de arranque
y procedimientos de lubricación enumerados en éste manual y arranque la perforadora. Haga
funcionar todos los trenes de engranajes por10 a 20 minutos para distribuir el aceite sobre los
engranajes y rodamientos. Suba y baje la unidad de rotación/empuje en la longitud total del mástil,
de 4 a 6 veces para distribuir la lubricación en los componentes del mástil y de la unidad de
rotación/empuje. Accione los portabarras 2 a 3 veces. Haga funcionar el compresor por una hora.
Propulsione la perforadora la longitud de si misma por lo menos 6 veces. Después de hacer
funcionar los componentes de la máquina, siga el procedimiento de almacenaje de corto tiempo
una vez más y almacene la máquina por otro mes. Repita este procedimiento cada mes, hasta
que la máquina retorne a servicio.
ALMACENAJE POR LARGO TIEMPO, SIN ASISTENCIA
No está entre los propósitos de éste manual detallar los procedimientos involucrados en el
almacenamiento de largo tiempo de una perforadora. Estos procedimientos involucrarán desarmar
las unidades mayores de la máquina, trabajos que usualmente no son realizados por personal de
operaciones. Refiérase al Manual de Mantenimiento Mecánico para los detalles concernientes al
almacenamiento de largo tiempo de la máquina.
El procedimiento aquí enumerado es una guía con la sola intención de dar una idea general del
esfuerzo involucrado en el apropiado almacenamiento de la máquina. Para almacenar la máquina
sin asistencia por un largo período de tiempo, proceda como sigue:
1. Complete todos los procedimientos de almacenamiento de corto tiempo.
2. Quite los motores de la perforadora y almacénelos en un sitio calefaccionado.
3. Llene completamente las cajas de engranajes de rotación y de empuje con un aceite aprobado.
Ambas cajas se pueden llenadas completamente agregando el aceite por las aberturas de
los respiraderos. Saque toda el agua de las cajas.
4. Suelte los rodillos guía de la estructura de la unidad de rotación/empuje, para proporcionar
un espaciamionado.
5. Cierre y selle completamente todos los gabinetes eléctricos.
2-100
Operación Sección
MD6640 Perforadora Electrica Para Pozos De Tronadura
6. Cierre y selle completamente la cabina del operador.
7. Cierre y selle completamente la sala de máquinas. Selle completamente la unidad del ventilador
del filtro.
8. Drene completamente el sistema de refrigeración del compresor.
9. Propulsione la máquina sobre bloques para prevenir la oxidación de las cadenas de oruga.
Cubra totalmente las cadenas de orugas con una película de aceite antioxidante. Cubra las
cadenas de propulsión con aceite antioxidante.
10. Ponga bloques a las patas de nivelación en la posición totalmente retraída.
11. Engrase manualmente cada punto de lubricación (incluyendo los puntos lubricados
automáticamente).
2-101
Operación Sección
MD6640 Perforadora Electrica Para Pozos De Tronadural
RECUPERACIÓN DE HERRAMIENTAS
Normalmente las herramientas de perforación están siempre, o conectadas a la unidad de
accionamiento de rotación o sujetas por la llave de herramientas. Sin embargo, suelen suceder
errores y las herramientas de perforación pueden caerse al fondo del pozo. La recuperación de
herramientas (o pesca de herramientas) es el procedimiento utilizado para recuperarlas.
Hay dos situaciones donde el procedimiento de recuperación de herramientas es necesario y
cada situación dicta el procedimiento a ser usado. La primera situación es cuando las herramientas
han sido desacopladas y caído por debajo del buje guía. En esta situación es posible recuperar la
columna de herramientas y, si no han habido daños, volver a perforar. La otra situación es cuando
se ha roto la barra de perforación y, o han caído por debajo del buje guía o no pueden ser manejadas
normalmente.
Si las herramientas se han desacoplado y el extremo superior de la columna de herramientas
todavía está por sobre el buje guía, reacople las herramientas como se hubiera hecho normalmente
para una unión normal. Amordace la columna de herramientas con la llave de herramientas para
ayudar a hacer la unión. Cuando las herramientas estén acopladas, saque la columna de
herramientas del pozo, quite la broca y aplique caudal de aire por un momento para limpiar el
interior de las barras de perforación. Limpie y reinstale la broca y vuelva a perforar normalmente.
Si las barras se han desacoplado y el extremo superior de la columna de herramientas queda por
debajo del buje guía pero aún sobre el nivel del terreno, reacople la como se hubiera hecho
normalmente para una unión normal, excepto de tener precaución cuando realice la unión. Se
necesita precaución para realizar la unión ya que la herramienta en el pozo quedará ahora en
ángulo con respecto a las herramientas de la perforadora. En esta situación, es posible cruzar los
hilos de la unión, pero debería ser evitado ya que no solo se dañarán los hilos sino que también
resultará un acople poco confiable. Un método para realinear las herramientas, sería fijar un
dispositivo de tracción a las herramientas en el pozo y centrarlas con bloques (asegúrese que
éstos no caigan dentro del hoyo). Esto permitiría hacer un acople normal sin tener que abandonar
el pozo. Si esto no es posible, las patas de nivelación pueden ser ajustadas para alinear las
herramientas. Asegúrese de que los límites de estabilidad de la máquina no sean excedidos. Será
necesario abandonar el pozo ya que la perforadora no podrá ser reposicionada en la misma
orientación exacta que tenía antes de perder la herramienta. Cuando se haya recuperado las
herramientas, limpie las barras y la broca como se detalló en el primer procedimiento de ésta
sección y vuelva a perforar normalmente
Si las barras se han desacoplado y el extremo superior de la columna de herramientas perdida
queda bajo el nivel del terreno, hay dos métodos de recuperación de las herramientas perdidas.
Un método es intentar hacer la unión usando la barra de perforación que aún queda conectada a la
unidad de accionamiento de rotación. El otro método es utilizar equipo especial (no suministrados
por Caterpillar Global Mining) para recuperar las herramientas.
2-102
Operación Sección
MD6640 Perforadora Electrica Para Pozos De Tronadura
Si la parte superior de la herramienta perdida no se puede alcanzar desde el nivel del terreno, baje
lentamente la columna de herramienta restante hasta que contacte la herramienta en el pozo.
Usando velocidad de rotación muy lenta y bajo torque, intente reacoplar la unión. Si se puede
hacer la unión, levante las herramientas muy lentamente hasta el punto donde la parte superior de
la herramienta recuperada pueda ser amordazada por la llave de herramientas. Reabra la unión e
inspeccione los hilos en ambas secciones de barra. Si es necesario, repare los hilos antes de
continuar. Cuando esté reparada la columna de perforación, saque la broca y limpie ambas para
quitar cualquier suciedad que pudo haber entrado mientras la unión estuvo desacoplada.
Si la unión no pudo ser realizada usando el procedimiento anterior, o si la barra se ha quebrado o
se ha dañado en una extensión tal que no puede ser manejada normalmente, será necesario
utilizar equipamiento y técnicas especiales para continuar perforando o recuperar las herramientas
perdidas. No está dentro de los objetivos de éste manual detallar los procedimientos necesarios
para manejar herramientas quebradas o perdidas y el uso de éstas herramientas especiales
deberían ser descritos por su fabricante.
PRECAUCIÓN: CUANDO REALICE PROCEDIMIENTOS ESPECIALES NO
DETALLADOS EN ÉSTE MANUAL, SIEMPRE SIGA LAS
RECOMENDACIONES DEL FABRICANTE DE LAS
HERRAMIENTAS Y PAUTAS PRUDENTES DE SEGURIDAD. LA
OMISIÓN DE SEGUIR PROCEDIMIENTOS SEGUROS PUEDE
CAUSAR LA MUERTE, EN SERIAS LESIONES AL PERSONAL O
EN SERIOS DAÑOS A LA MÁQUINA.
2-103
Operación Sección
MD6640 Perforadora Electrica Para Pozos De Tronadural
CARTA DE ESTABILIDAD DE PERFORACIÓN
°
Carta de Estabilidad de Perforación - Condiciones Especiales de Propulsion
2-104
Operación Sección
MD6640 Perforadora Electrica Para Pozos De Tronadura
Carta de Estabilidad de Perforación - Condiciones Tipicas de Propulsion
3-1
Lubricación Sección
MD6640 Perforadora Electrica Para Pozos De Tronadura
Sección 3
Lubricación
Recurra siempre a la información de seguridad de la Sección 1 de éste
manual antes de iniciar todo proceso de mantención en esta máquina.
Tabla de Contenidos
PRINCIPIOS DE LUBRICACIÓN...................................................................................................3
Estanque de Auto Lubricacion y Panel de Control ....................................................................... 4
INYECTORES DE LUBRICACIÓN LINCOLN TIPO SL-1 .......................................................9
OPERACIÓN DE LOS INYECTORES DE LUBRICACIÓN.............................................10
VENTAJAS DE LOS INYECTORES ................................................................................ 11
SOLUCIÓN DE PROBLEMAS ..............................................................................................12
LUBRICADOR BIT ......................................................................................................................14
MANTENIMIENTO BOMBA DE FLUJO..................................................................................14
PROCEDIMIENTO DE ALIVIO DE PRESIÓN .................................................................14
AJUSTE DE LA VÁLVULA DE CONTROL DE PRESIÓN ................................................15
AJUSTE DE LA VÁLVULA DE CONTROL DE FLUJO ..........................................................15
Diagramas Esquemáticos de Flujo de la Bomba hidráulica de Transmisión Rotacional ..............15
ACEITE DEL CRANK CASE OILCÁRTER............................................................................16
PROCEDIMIENTO DE DESMONTAJE DE LA BOMBA ........................................................16
Ensambladura de la Bomba Hidráulica de Transmisión Rotacional ............................................18
PROCEDIMIENTO DE MONTAJE DE LA BOMBA................................................................19
Componentes de la Bomba hidráulica de Transmisión Rotacional Flow .....................................20
LOCALIZACIÓN DE AVERÍAS (TROUBLESHOOTING) .....................................................21
Diagrama esquemático hidráulico de la bomba de lubricante .....................................................22
PUNTOS DE LUBRICACIÓN ......................................................................................................23
CAPACIDADES DE LA CAJA DE ENGRANAJES Y DEL RESERVORIO .............................23
LUBRICACIÓN DE PARTES BAJAS .....................................................................................25
LUBRICACIÓN DEL BASTIDOR PRINCIPAL........................................................................26
LUBRICACIÓN DEL MÁSTIL ~ PARTE 1 ....................................................................................27
LUBRICACIÓN DEL MÁSTIL ~ PARTE 2 ..............................................................................28
LUBRICACIÓN DEL MÁSTIL ~ PARTE 3 ..............................................................................29
LIMPIEZA DEL LUBRICANTE ................................................................................................30
SELECCIÓN DE LUBRICANTE ..................................................................................................31
ACSL - LUBRICANTE PARA COMPRESOR DE AIRE (TIPO TORNILLO)...........................32
MPO - ACEITE MULTIPROPÓSITO......................................................................................33
RWRL - LUBRICANTE DE CABLE MOTRIZ DE ACERO ....................................................34
HYDO –ACEITE HIDRÁULICO. ............................................................................................36
FLUIDO HIDRÁULICO SINTÉTICO PAO. .......................................................................37
FLUIDO HIDRÁULICO DE BASE PARAFÍNICA DE PETRÓLEO....................................37
CARTA DE VISCOSIDAD RECOMENDADA vs. TEMPERATURA (OAT) ...................................38
3-2
Lubricación Sección
MD6640 Perforadora Electrica Para Pozos De Tronadura
ESPECIFICACIONES ADICIONALES DE LA LUBRICACIÓN:
EGL – LUBRICANTE DE LA CAJA DE ENGRANAJES CERRADO ................................... (parte)
MPG – GRASA MULTIPROPÓSITO ................................................................................... (parte)
OGL – LUBRICANTE PARA ENGRANAJES ABIERTOS .................................................... (parte)
LISTADO DE LUBRICANTES CERTIFICADOS OGL, MPG, Y EGL................................... (parte)
3-3
Lubricación Sección
MD6640 Perforadora Electrica Para Pozos De Tronadura
Sección 3
Lubricación
PRINCIPIOS DE LUBRICACIÓN
La correcta lubricación de ésta máquina es vital para su exitosa y contínua operación. Aplicar el
lubricante CORRECTO, en la cantidad y sito CORRECTO, como parte de un programa PROBADO
de mantención, es requisito para mantener la máquina operando a un nivel de productividad. La
correcta lubricación dará mejor vida de servicio al componente, con reducción de reparaciones y
detenciones. Al no lubricarse bien, las partes móviles se gastan más rápido y fallan mas temprano.
Los ítems de mayor desgaste de ésta máquina son lubricados por un sistema automático que entrega
lubricante a puntos elegidos, a intervalos de tiempo preseleccionados, durante la operación de la
máquina. Este sistema es descrito con más detalles, más adelante en ésta sección. Es importante
para la operación de éste sistema de lubricación automática, que se familiarice con él y entienda su
operación, para mantenerlo y hacerle el servicio correcto para conservarlo operativo. También es
necesario que inspeccione a intervalos regulares, los puntos de aplicación automática de lubricante,
para asegurarse de que el sistema está realizando su trabajo en forma adecuada.
Algunos componentes, por su ubicación y función, no se pueden cubrir debidamente con el sistema
de lubricación automática. Debe familiarizarse con dichos puntos para atenderlos oportunamente y a
los intervalos establecidos. Un listado de los componentes cubiertos por el sistema de lubricación
automática se incluye más adelante en ésta sección. Las conexiones standard de lubricación usadas
para servicio manual son del tipo hidráulico, de ajuste rápido, con hilos NPT de 1/8” o 1/4”.
Bujes y rodamientos que operan en atmósfera altamente contaminada (polvo, arenisca, etc.) deben
lubricarse hasta que aparezca grasa fresca alrededor de la chumacera o del sello, o salga por la
conexión de purga, si es que está provista con ella.
Sobrellenar un rodamiento anti-fricción, puede causar que gire excesivamente caliente. Después de
lubricar rodamientos anti-fricción, (los que son sellados, como en motores eléctricos, deben usar
grasa para motores eléctricos) quite la conexión de presión o el tapón de alivio cuando exista,
permitiendo que él se purge a sí mismo de cualquier exceso de lubricante, en los primeros 10-15
minutos de operación. Luego, reinstale la conexión o tapón. En un rodamiento, la grasa generalmente
se deteriora gradualmente, no repentinamente. Solo se necesita adicionar pequeñas cantidades a
intervalos regulares para mantener el nivel correcto de lubricante. Lo adecuado es agregar una
pequeña cantidad de grasa cada 600 horas operativas, a no ser que se especifique otra cosa.
Los engranajes abiertos y piñones requieren una película constante de lubricante de alto grado,
especificado para su operación. Inspeccione todos los conjuntos de engranajes abiertos, al menos
una vez al día (cada 24 horas), asegurándose que están cubiertos con OGL.
PRECAUCIÓN: El contacto con o la ingestión de productos de petróleo puede ser
nocivo. El sistema de lubricación automática opera bajo presión.
Antes de abrir cualquier línea de suministro, alivie el sistema y
ésa línea en particular, de cualquier presión residual.
3-4
Lubricación Sección
MD6640 Perforadora Electrica Para Pozos De Tronadura
Estanque de Auto Lubricacion y Panel de Control
3-5
Lubricación Sección
MD6640 Perforadora Electrica Para Pozos De Tronadura
3-6
Lubricación Sección
MD6640 Perforadora Electrica Para Pozos De Tronadura
3-7
Lubricación Sección
MD6640 Perforadora Electrica Para Pozos De Tronadura
3-8
Lubricación Sección
MD6640 Perforadora Electrica Para Pozos De Tronadura
3-9
Lubricación Sección
MD6640 Perforadora Electrica Para Pozos De Tronadura
INYECTORES DE LUBRICACIÓN LINCOLN TIPO SL-1
Estos inyectores instalados en serie, operados a presión y de accionamiento por resorte, se suministran
montados en bancos, en manifolds o individualmente. Cada inyector expele un máximo de .08
pulgadas cúbicas de lubricante por cada ciclo, desde su puerto de salida. Puertos de salida doble en
cada inyector permiten que sean conectados en serie, para aumentar el suministro de lubricante a
un punto común. La cantidad de lubricante para una correcta cobertura de cada punto de ésta
máquina, ha sido cuidadosamente diseñado por nuestros ingenieros. La salida de cada inyector se
puede ajustar, sin embargo, Caterpillar recomienda que los inyectores sean calibrados al comienzo
y usados a su máxima capacidad.
NOTA: Presión de Operación MÁXIMA: 3,500 PSI
Presión de Operación RECOMENDADA: 2,500 PSI
Presión de Operación MÍNIMA: 1,850 PSI
Presión de Recarga MÁXIMA: 600 PSI
PRECAUCIÓN: ¡ENERGÍAALMACENADA! Contacto con o la ingestión de productos
de petróleo puede ser dañosa. Los sistemas de lubricación
automáticos funcionan bajo la presión. Antes de abrir cualquier
línea de abastecimiento de lubricación, alivie el sistema y aquella
línea en particular, de cualquier presión residual.
Para calibrar un inyector a máxima capacidad:
1. Suelte la tuerca de cierre.
2. Gire la tuerca de ajuste hasta dejar un pequeño espacio en la parte
superior del vástago.
3. Oriente la tuerca de ajuste de forma que la abertura quede mirando
hacia el frente del inyector.
4. Apriete la tuerca de cierre.
Para reducir la capacidad de un inyector:
1. Suelte la tuerca de cierre.
2. Gire la tuerca de ajuste a la derecha hasta obtener el rango de
descarga deseado. Ésto fuerza el vástago dentro del cuerpo,
retardando el movimiento del vástago.
3. Apriete la tuerca de cierre.
PRECAUCIÓN: No gire la tuerca de ajustehacia abajo
(la derecha) más de 5 giros
completos desde la calibración de
máxima descaraga. Revise el flujo de
salida del inyectoren ese instante,
asegurándose que aún está
operando. Si no es así, devuelva el
ajuste de la tuerca hasta que el
inyector opere consistentemente.
Revise la operación del inyector
ajustado en 3 o 4 ciclos, luego de
retornar la máquina al trabajo, para
3-10
Lubricación Sección
MD6640 Perforadora Electrica Para Pozos De Tronadura
confirmar que está operando.
OPERACIÓN DE LOS INYECTORES DE LUBRICACIÓN
ETAPA1: El pistón del inyector está en su posición normal o reinstalado. La
cámara de descarga está llena con lubricante del ciclo anterior.
Bajo la presión del lubricante entrante, la válvula de corredera está
cerca de abrir el pasaje en dirección al pistón.
ETAPA2: Cuando la válvula de corredera abre el pasaje, el lubricante es
admitido hacia la parte superior del pistón, forzando el pistón hacia
abajo. El pistón fuerza el lubricante desde la cámara de descarga
a través del puerto de salida hacia su orientación.
ETAPA3: A medida que el pistón completa su recorrido, empuja la válvula
de corredera pasando el pasaje, cortando la más admisión de
lubricante hacia el pasaje. El pistón y la válvula de corredera
quedan en ésta posición hasta que la presión del lubricante
en la línea de suministro es desahogada (aliviada) en la bomba.
ETAPA4: Después que la presión es aliviada, el resorte comprimido mueve
la válvula de corredera a la posición cerrada. Esto abre el puerto
desde la cámara de medición y permite al lubricante ser transferido
desde la parte superior del pistón a la cámara de descarga.
NOTA: Los inyectores se pueden montar individualmente o agrupados
en un manifold en alguna ubicación.
3-11
Lubricación Sección
MD6640 Perforadora Electrica Para Pozos De Tronadura
VENTAJAS DE LOS INYECTORES
3-12
Lubricación Sección
MD6640 Perforadora Electrica Para Pozos De Tronadura
SOLUCIÓN DE PROBLEMAS
CIERRES DE AIRE:
Cuando el sistema no está cebado adecuadamente, el aire a menudo queda atrapado en la bomba,
línea de suministro, inyectores, o líneas de alimentación. Dado que los pozos de aire, con su gran
compresibilidad, proveen una amortiguación contra la rápida elevación de la presión en la línea de
suministro, estos sirven para hacer que el ciclaje del sistema se vuelva lento y errático. En
algunos casos extremos, especialmente cuando la bomba está bloqueada por aire, tornan
inoperable al sistema.
NOTA: Si el tiempo de ciclado de una instalación nueva excede enormemente el tiempo de
ciclado determinado en el planeamiento del sistema, es un indicador de una bolsa de
aire en el sistema.
Cuando la bomba falla al cebar y bombear debido a las bolsas de aire, se deberá abrir el tapón de
ventilación ubicado en, o cerca de la salida de la bomba en todos los modelos Lincoln mientras la
bomba está en funcionamiento y se deje escapar todo el aire. Se recomienda el uso de aceite
como ayuda para el cebado. El aire en las líneas de suministro se expulsa aflojando los tapones
de los tubos en el extremo de cada línea (líneas de suministro principales, etc.) y permitiendo que
generosas cantidades de lubricante escapen llevando consigo el aire atrapado. Las bolsas de
aire en los inyectores se corrigen, en el caso de los inyectores SL-1, al abrir el accesorio de
lubricación y permitiendo que el lubricante y el aire escapen. Las bolsas de aire en la línea de
alimentación pueden ser corregidas aflojando la conexión de la línea de alimentación en el cojinete
de entrada y permitiendo que el lubricante y el aire escapen al tiempo que el sistema se cicla
repetidamente. No afloje ninguna conexión que esté bajo presión.
LÍNEAS DE SUMINISTRO SUCIAS:
Este es un problema de Mantenimiento preventivo y deberá verificarse por completo antes de que
se instale el sistema. Sin embargo, en general se puede rastrear una mala función de los inyectores
o de la válvula de ventilación, desarmando la unidad y examinándola. Puede haber material extraño
en la superficie de las líneas internas de suministro que impedirá un funcionamiento adecuado.
TODOS LOS INYECTORES NO TRABAJAN ADECUADAMENTE.
En un sistema instalado recientemente, las varillas del indicador de uno o más inyectores no se
mueven a la posición de descarga. Como resultado, alguno de los cojinetes no reciben la cantidad
de lubricante calculada.
Aquellas unidades equipadas con un interruptor de presión deberán ajustarse para permitir que se
desarrolle una presión más alta, nivel en el que todos los inyectores descargarán.
3-13
Lubricación Sección
MD6640 Perforadora Electrica Para Pozos De Tronadura
Esas unidades equipadas con un interruptor de presión deben estar ajustada para permitir el
desarrollo de una presión mas alta, a cuál nivel todos los inyectores se descargaran.
3500 PSI máximo para los sistemas alta de presión.
1000 PSI máximo para los sistemas baja de presión.
(Para alargar vida, mantenga presión a un mínimo permisible para la operación correcta del inyector.)
LOS VÁSTAGOS DEL INDICADOR NO VUELVEN A LA NORMALIDAD:
Esta condición podría ser debido a la operación inactiva de todas las asambleas nuevas y después
de algunas operaciones esta rigidez pueda desaparecer.
Sin embargo, podría ser una indicación que, después de desahogarse, la presión residual de la
línea del suministro es demasiado alta para permitir que los inyectores funcionen normalmente.
Esto es debido a una restricción en la línea del suministro que le pone obstaculiza a la presión
rápida de desfogue. Esta condición puede ser el resultado de muchas cosas: Notablemente,
lubricantes, las bajas temperaturas en las cuales los lubricantes se rigidizan, o acoplado con lo
antedicho, o un ciclo de lubricación sumamente corto. Esta condición es usualmente encontrada
cuando el ciclo de lubricación es relativamente corto. En el sistema automático, donde el ciclo
puede estar tan bajo como 3-3/4 minutos, puede ser un problema grande.
CORRECCIONES:
1. El lubricante debe ser chequeado. El uso del sistema centralizado elimina la necesidad (en
la mayoría de los casos) del pesado aditivo de jabón que sólo alarga la línea efectiva de la
aplicación lubricante individual.
2. El lubricante puede ser hecho mas resistente a los cambios físicos con del uso de aditivos
de bajas temperaturas.
3. La salida de lubricante por ciclo puede ser aumentada y el intervalo de lubricación alargado.
4. Asegurarse que el lubricante utilizado cumpla con los requisitos del sistema.
Cuando los sistemas manuales están siendo probados después de la instalación, operaciones
repetidas pueden usar intervalos cortos entre ciclos. Bajo condiciones normales, el completar un
ciclo de un sistema manual será generalmente infrecuente (una vez una hora a lo más), permitiendo
tiempo suficiente para un venteo adecuado.
3-14
Lubricación Sección
MD6640 Perforadora Electrica Para Pozos De Tronadura
LUBRICADOR BIT
El lubricador de la broca está ubicado a la derecha,
en el frente de la máquina, debajo de la caja del
filtro de aire.
MANTENIMIENTO BOMBA DE FLUJO
PRECAUCIÓN: Para reducir el riesgo de graves accidentes y lesiones corporales
serias, incluida la inyección de fluidos, lesiones por componentes
en movimiento, y el salpicado en los ojos o en la piel, siempre
siga el Procedimiento de Alivio de Presión cada vez que UD.
apague la bomba; cuando revise cualquier parte del sistema de
rociado, cuando instale, limpie o cambie boquillas de las válvulas
de distribución o siempre que detenga la distribución.
PROCEDIMIENTO DE ALIVIO DE PRESIÓN
1. Cierre la válvula de cierre a la línea de
abastecimiento.
2. Apague en el panel de control el
suministro de energía a la bomba de
lubricación. Desconectar la fuente de
poder de 24VDC a la válvula solenoide.
3. Alivie la presión en el descargador de
seguridad.
La bomba de Lubricación esta configurada de fabrica a 350 PSI de presión de trabajo del sistema
de ingreso hidráulico, con un nivel de flujo de 2.5 GPM. Mantener la presión hidráulica entre 300-
450 PSI. El máximo nivel de flujo es 7 GPM. Sin embargo, el ajustar a la mínima presión de salida
de la bomba y del fluido de líquido hidráulico, obteniendo los resultados deseados, minimiza el
deterioro de la bomba.
3-15
Lubricación Sección
MD6640 Perforadora Electrica Para Pozos De Tronadura
La presión de la bomba y el nivel de flujo dependerán de las temperaturas de operación. NUNCA
AJUSTE LA PRESIÓN DE LA BOMBA ANTES DE PROCEDIMIENTO DE ARRANQUE
(INICIACIÓN). Para mayor información de la instalación e iniciación, lea los textos del fabricante
incluidos con esta máquina.
AJUSTE DE LA VÁLVULA DE CONTROL DE PRESIÓN
1. Aflojar la tuerca de fijación en la válvula reductora de presión, girándola en sentido contra
reloj.
2. Girar en sentido contra reloj el vástago de la válvula hasta el final. Este ajuste permite fijar la
presión al mínimo, lo que es aproximadamente 170 PSI.
3. Con la bomba detenida por la presión, Girar en sentido del reloj el vástago de la válvula hasta
obtener la presión deseada en el manómetro. NUNCA EXCEDA LOS 450 PSI.
4. Apretar (en el sentido de las manecillas del reloj) la tuerca de fijación hasta lo 20-25 Pies-Lbs.
AJUSTE DE LA VÁLVULA DE CONTROL DE FLUJO
1. Aflojar la tuerca de fijación de la válvula de control de flujo, girándola en el sentido Contra
Reloj.
2. Ajustar el flujo al girar el vástago de la válvula en el sentido del reloj para reducir el flujo y
contra reloj para incrementarlo. La válvula de flujo puede ser girada hasta que esta este
completamente cerrada y hasta un máximo de 2 y media vueltas.
3. Después de ajustar el flujo al nivel deseado, apretar (en el sentido del reloj) la tuerca de
fijación hasta 20-25 Pies-Lbs.
Diagramas Esquemáticos de Flujo de la Bomba hidráulica de Transmisión Rotacional
3-16
Lubricación Sección
MD6640 Perforadora Electrica Para Pozos De Tronadura
PELIGRO: Alivie de presión a la bomba y los conductos de suministro antes de
efectuar mantenciones o reparaciones a la bomba, para reducir el
riesgo de graves accidentes y lesiones corporales serias , incluida la
inyección de fluidos, lesiones por componentes en movimiento, y el
salpicado en los ojos o en la piel.
ACEITE DEL CRANK CASE OILCÁRTER
Revise el aceite del Cárter cada 100 horas de operación.
Cambie el aceite del Cárter cada 500 horas de operación.
Use aceite de motor SAE 10W30 en todas las unidades
excepto el Modelo 85610. El fabricante para el modelo 85610,
recomienda MobilArrow HFAAceite para bajas temperaturas,
cuando se opera a temperatura ambiente de 21 Grados
Celsius (70°F).
El Cárter deberá estar lleno de aceite hasta el centro del
tapón de drenaje ubicado en la parte posterior del Cárter.
PROCEDIMIENTO DE DESMONTAJE DE LA BOMBA
1. Remueva y separe el distribuidor (37) del motor hidráulico (42).
2. Remueva el tapón (45) y drene el aceite del Cárter desde el alojamiento de la bomba (46).
3. Remueva la cubierta del alojamiento (30) y la cubierta de la junta (31).
4. Remueva el anillo de retención (57) y tirar el tapón pala (56), de la tubería del alojamiento
(55).
5. Remueva y separe el motor hidráulico (42) del alojamiento de la bomba (46).
6. Remueva los dos pernos de salida (50) del alojamiento de la bomba (46).
7. Remueva el sub-ensamblaje (1-28), del alojamiento de la bomba (46). Ayuda el empujar
hacia arriba el sub-ensamblaje utilizando una barra de madera o plástico de 75 pulgadas de
Diámetro Externo (D.E) contra el alojamiento base (28).
8. Remover el alojamiento del tubo (55) del alojamiento de la bomba (46) insertando una barra
de 75 pulgadas D.E. a través de los orificios de entrada en la base del alojamiento de la
tubería (55) y desatornillándolo.
9. Remover el rodamiento de bronce (51), el o-ring (52) y la arandela (golilla) (53) del alojamiento
de la tubería (55).
3-17
Lubricación Sección
MD6640 Perforadora Electrica Para Pozos De Tronadura
10. Remover la ensambladura de Crankrod (1-8) desde la bomba, desatornillando los tornillos
(12) y tirando los pernos bujes (13).
11. Remover el alojamiento de la base (28) del tubo reciproco (21).
12. Desatornillar el pasador de anclaje (14) del tubo reciproco (21) y tirar la ensambladura de
embolo (9-20) desde el tubo.
13. Usando una barra de 50 pulgadas de Diámetro Externo, empujar el sello de la copa (22) y el
cilindro de la bomba (24) del tubo reciproco (21).
14 Remover el embolo (20) de la bomba, desde la barra de acoplamiento (17) del embolo. Una
llave para tuercas es necesaria.
15. Desatornillar la barra de acoplamiento (17), desde el tubo del embolo (11) y retirar el sello
de la copa (16), golilla (15) y el pasador de anclaje (14).
16 Desatornillar el tubo del embolo (11), del pasador de salida (9).
17. Para desarmar la Ensambladura del Cárter (1-8), remover los tornillos (1) y los contrapesos
(2).
18. Remover los anillos retenedores (6) y presionar el excéntrico (7) hacia fuera del rodamiento
de bola (8). Asegúrese de soportar el rodamiento de bola (8) en su pista interna.
3-18
Lubricación Sección
MD6640 Perforadora Electrica Para Pozos De Tronadura
Ensambladura de la Bomba Hidráulica de Transmisión Rotacional
3-19
Lubricación Sección
MD6640 Perforadora Electrica Para Pozos De Tronadura
PROCEDIMIENTO DE MONTAJE DE LA BOMBA
1. Cuando la Bomba esta desmontada, se recomienda cambiar todos los sellos y juntas. Para
el reemplazo de componentes y Kits de servicio, vea la planilla de partes, “Bomba hidráulica,
de Transmisión Rotacional”, en el manual de partes para esta maquina.
2. En el proceso de desmontaje, examine los siguientes componentes y reemplace si existe
excesivo desgaste:
• Rodamiento de Bola (8)
• Excéntrico (7)
• Cranck Rod (5)
• Perno de Buje (13)
• Tubo del Embolo (11)
• Embolo de la Bomba, Bola y Resorte (18-20)
• Cilindro de la Bomba (24)
• Alojamiento de la Base y Bola (26 & 28)
• Buje de Bronce Superior (51)
• Alojamiento de Tubería (55)
• Tapón Pala (56)
• Tubo Reciproco (21)
3. El procedimiento de Montaje es el reverso del procedimiento de desmontaje a excepción de
lo siguiente:
4. Instalar partes (22-28) dentro del Tubo Reciproco (21) después que es instalado la
Ensambladura del Embolo (9-20).
5. Instalar la sub-ensambladura de la bomba (1-28) dentro del alojamiento de la bomba (46),
antes de apretar el alojamiento de la tubería (55) en el alojamiento de la bomba (46).Asegúrese
que el tubo reciproco (21) este insertado a través de ambos bujes antes de apretar el
alojamiento del tubo (55).
6. Utilice cerradura roscada de fuerza mediana loctite 242 (o un producto similar) en todas las
conexiones roscadas. Se debe tomar cuidado extremo para evitar que el exceso de
compuesto fluya en áreas críticas tales como ajustes de la separación y chequeo de bola.
Permita un tiempo mínimo de 30 minutos antes de operar la bomba.
3-20
Lubricación Sección
MD6640 Perforadora Electrica Para Pozos De Tronadura
Componentes de la Bomba hidráulica de Transmisión Rotacional Flow
3-21
Lubricación Sección
MD6640 Perforadora Electrica Para Pozos De Tronadura
LOCALIZACIÓN DE AVERÍAS (TROUBLESHOOTING)
Condición Causa Posible Solución
Bomba no funciona Manómetro sin presión (32):
- Línea de abastecimiento cerrada Abrir llave de válvula
cortó válvula.
- Válvula de Solenoide (34) apagada. Corregir falla eléctrica
- Falla Solenoide (35) Remplazar Solenoide (35)
- Válvula de reducción de presión Resetear la válvula de reducción
(38) se fijó en nivel muy bajo de presión.
- Abastecimiento de líquido hidráulico Revisar abastecimiento hidráulico
Insuficiente para presión y fluido adecuado.
Presión que indica manómetro (32):
- Línea salida de liquido cerrada. Revisar línea salida y aclarar obstrucciones
- Válvula control de flujo Reajustar válvula ábrala girándola 3/4.
completamente cerrada.
- Bomba atascada debido a presión Reajustar válvula ábrala girándola 3/4.
de la grasa.
- Bomba deformada o dañada. Desmontar bomba y reparar componente
defectuoso o deformado. Ver proceso
desmontaje y ensamblaje.
Bomba se acelera o corre Nivel bajo de grasa o reserva Rellenar reserva.
irregularmente. vacía.
Placa esta pegada y separada Revisar daños de placa y contenedor.
de la grasa.
Pistón o cheques de la bomba están Desmontar bomba y reparar.
vencidos.
Bomba opera, pero con salida baja Abastecimiento del liquido Revisar abastecimiento hidráulico y
hidráulico insuficiente. ajustar flujo usando válvula (39).
Presión de entrada muy baja Aumentar presión usando válvula (38).
Entrada fallada (25, 26, 27) o Remplazar componentes fallados.
Válvula descarga (18, 19, 20).
Humedad en Tapa de Fábrica (30). Sello taza (16) o Anillo O (48) Revisar sellos y remplazar en caso
gastado. necesario.
Bomba llega a ser ruidosa. Cárter sin aceite. Agregar aceite al cárter. Retirar tapón
de barra (45) de la bomba de alojamiento (46).
Nivel de aceite deberá estar al fondo
de la entrada del tapón de barra. Para modelos
85480, 85481, 85482, 85483 y 85247
Agregar aceite de motor 10W30 hasta
que el cárter esté lleno.
Para modelo 85610, agregar aceite hidráulico
Mobil Arrow HFA hasta llenar cárter.
Pernos de bujes gastados (13) Revisar los bujes y remplazar si es
necesario.
Bomba no genera presión. Material foráneo lo mantiene bajo Desmontar y revisar.
Revisar instalación de pantalla
de ingreso (63) antes de activar
bomba.
3-22
Lubricación Sección
MD6640 Perforadora Electrica Para Pozos De Tronadura
Diagrama esquemático hidráulico de la bomba de lubricante
3-23
Lubricación Sección
MD6640 Perforadora Electrica Para Pozos De Tronadura
PUNTOS DE LUBRICACIÓN
Las gráficas de lubricación en esta sección muestran los puntos principales en la máquina que
va a ser lubricada. Se deberán verificar diariamente los sistemas de lubricación automática para
ver si están operando adecuadamente y que cada punto de lubricación esté recibiendo la cantidad
correcta de lubricante. Los tipos de lubricantes se describen en PARÁMETROS DE LUBRICANTES
en esta sección del manual.
CAPACIDADES DE LA CAJA DE ENGRANAJES Y DEL RESERVORIO
3-24
Lubricación Sección
MD6640 Perforadora Electrica Para Pozos De Tronadura
3-25
Lubricación Sección
MD6640 Perforadora Electrica Para Pozos De Tronadura
La frecuencia de lubricación dada en cada gráfica se propone como guía. Bajo condiciones de
funcionamiento atípicas, algunos puntos pueden requerir lubricación más frecuente o atención
especial. Lubrique la máquina con buen criterio. Si un cojinete muestra signos de problemas,
tales como sobrecalentamiento o ruido inusual, se le debe prestar atención inmediata. Asegúrese
de que el lubricante no esté sucio o sea de un grado equivocado. Si la máquina funciona por más
de un turno por día, todos los operadores deben cooperar para verificar la lubricación. Ningún
punto debe quedar sin lubricación, y ninguno deberá lubricarse por demás. Se recomienda hacer
esto al comienzo de cada turno.
LUBRICACIÓN DE PARTES BAJAS
PUNTO NO. DE PUNTOS TIPO HORAS C/NEC AUTO COMPONENTES
lub lubricados lubr 8 40 160 1000
1 SELLADO/NA BUJES RODILLO INFERIOR
2 SELLADO/NA BUJES DE TAMBOR DE
COMPENSACIÓN
3 4 MPG X X EJE POSTERIOR*
4 2 MPG X X PERNOS DEL EXTREMO DEL EJE
DEL ECUALIZADOR
5 SELLADO/NA BUJE DEL RODILLO SUPERIOR
* Rellenar las cavidades del bastidor de la oruga y del bloque de cojinetes; verificar anualmente.
NOTAS: Las frecuencias mencionadas son para lubricación manual. Cuando esté equipado con un
sistema de lubricación automática las frecuencias están establecidas en la estación de
control de lubricación.
En los sistemas de lubricación automática los inyectores se establecerán totalmente
abiertos al comienzo del funcionamiento de una nueva máquina y luego reajustados como
se requiera. Refiérase a los INYECTORES DE LUBRICANTE en esta sección del manual.
3-26
Lubricación Sección
MD6640 Perforadora Electrica Para Pozos De Tronadura
LUBRICACIÓN DEL BASTIDOR PRINCIPAL
PUNTO NO. DE PUNTOS TIPO HORAS C/NEC AUTO COMPONENTES
lub lubricados lubr 8 40 160 1000
1 12 MPG X X CUBIERTA INFERIOR DEL SOPORTE
NIVELADOR
2 1 MPG X X PERNOS DEL CENTRO DEL EJE
COMPENSADOR
3 2 MPG X X PERNOS DE CIERRE DEL MÁSTIL
4 2 MPG X X PERNOS DELCIERRE DEL
BASTIDOR A
(OPCIONAL)
NOTAS: Las frecuencias mencionadas son para lubricación manual. Cuando esté equipado
con un sistema de lubricación automática las frecuencias están establecidas en la
estación de control de lubricación. En los sistemas de lubricación automática los
inyectores se establecerán totalmente abiertos al comienzo del funcionamiento de una
nueva máquina y luego reajustados como se requiera. Refiérase a los INYECTORES
DE LUBRICANTE en esta sección del manual.
3-27
Lubricación Sección
MD6640 Perforadora Electrica Para Pozos De Tronadura
LUBRICACIÓN DEL MÁSTIL ~ PARTE 1
PUNTO NO. DE PUNTOS TIPO HORAS C/NEC AUTO COMPONENTES
lub lubricados lubr 8 40 160 1000
1 2 MPG X X GUÍAS DE LA LLAVE DEL CILINDRO
2 4 MPG X X CONJUNTO DE COJINETES DE LAVE
3 2 MPG X SUJETADORES DE LALLAVE DEL
CILINDRO
4 6 MPG X BUJES DE LA PALANCA DE LA
CORTINA ANTIPOLVO
5 2 COJINETES DE LA POLEA DEL
CABRESTANTE DE CUERDA
AUXILIAR (SELLADOS)
6 1 RWRL X CUERDADE CABRESTANTEAUXILIAR
7 2 MPG X PERNOS DE SUJECIÓN DE LA
ABRAZADERA DEL MÁSTIL
8 2 MPG X POLEA DE GANCHO (OPCIONAL)
NOTAS: Las frecuencias mencionadas son para lubricación manual. Cuando esté equipado
con un sistema de lubricación automática las frecuencias están establecidas en la
estación de control de lubricación. En los sistemas de lubricación automática los
inyectores se establecerán totalmente abiertos al comienzo del funcionamiento de una
nueva máquina y luego reajustados como se requiera. Refiérase a los INYECTORES
DE LUBRICANTE en esta sección del manual.
3-28
Lubricación Sección
MD6640 Perforadora Electrica Para Pozos De Tronadura
LUBRICACIÓN DEL MÁSTIL ~ PARTE 2
PUNTO NO. DE PUNTOS TIPO HORAS C/NEC AUTO COMPONENTES
lub lubricados lubr 8 40 160 1000
1 1 MPG X X SELLO GIRATORIO DEAIRE
2 1 MPG X X COJINETEDELEJEROTATORIO
SUPERIOR
3 1 MPG X X SELLO ROTATORIO DELEJE
INFERIOR
4 1 MPG X X COJINETE SUPERIOR DELEJE INT.
5 2 MPG X X COJINETE DEL EJE TRANSPORTADOR
6 2 MPG X X CREMALLERA Y PIÑONES
7 1 MPG X AMORTIGUADOR DE CHOQUE
O SELLO DEACOPLE GIRATORIO
8 6 MPG X X RODILLOS GUÍA
9 2 MPG X X COJINETES DEL EJE TRANSPORTADOR
1ER. INT.
10 1 MPG X COJINETES ENGRANAJE INTERNO
11 2 MPG X PERNO DEL PIVOTE DEL BASTIDOR DE
LA RUEDA
12 4 MPG X COJINETE DEL RODILLO DE LA RUEDA
NOTAS: Las frecuencias mencionadas son para lubricación manual. Cuando esté equipado
con un sistema de lubricación automática las frecuencias están establecidas en la
estación de control de lubricación.
En los sistemas de lubricación automática los inyectores se establecerán totalmente
abiertos al comienzo del funcionamiento de una nueva máquina y luego reajustados como
se requiera. Refiérase a los INYECTORES DE LUBRICANTE en esta sección del manual.
3-29
Lubricación Sección
MD6640 Perforadora Electrica Para Pozos De Tronadura
LUBRICACIÓN DEL MÁSTIL ~ PARTE 3
PUNTO NO. DE PUNTOS TIPO HORAS C/NEC AUTO COMPONENTES
lub lubricados lubr 8 40 160 1000
1 MPG X X PIVOTE SUPERIOR DE LA COLUMNA
MANO IZQUIERDA
2 1 MPG X X PIVOTE INFERIOR DE LA COLUMNA
MANO IZQUIERDA
3 1 MPG X X SOPORTE DE TUBO SUPERIOR MANO
DERECHA
4 1 MPG X X SOPORTE DE TU BO INFERIOR MANO
DERECHA
5 1 MPG X PERNO DE SUJECIÓN DE LA COLUMNA
DEL PIVOTEMANO IZQUIERDA
6 1 MPG X PERNO DE SUJECIÓN DE LA COLUMNA
DEL PIVOTEMANO DERECHA
7 1 MPG X X PERNO DE PUERTA SUPERIOR
8 1 MPG X X BUJE DEL MONTAJE DEL PIVOTE
INTERMEDIO
9 1 MPG X X DETECTOR
NOTAS: Las frecuencias mencionadas son para lubricación manual. Cuando esté equipado
con un sistema de lubricación automática las frecuencias están establecidas en la
estación de control de lubricación.
En los sistemas de lubricación automática los inyectores se establecerán totalmente
abiertos al comienzo del funcionamiento de una nueva máquina y luego reajustados como
se requiera. Refiérase a los INYECTORES DE LUBRICANTE en esta sección del manual.
3-30
Lubricación Sección
MD6640 Perforadora Electrica Para Pozos De Tronadura
LIMPIEZA DEL LUBRICANTE
Aún el mejor lubricante es inútil como preventivo de desgaste si se llegado a contaminar por
manejo y almacenamiento descuidado. El fabricante de lubricantes lo envasa en recipientes
herméticos para mantenerlo limpio. Es responsabilidad de la persona que ejecuta la lubricación de
la máquina quien debe asegurarse de que la suciedad no contamine el lubricante.
Siga estos puntos de buena práctica en lubricación:
• Mantenga todo aceite y otros lubricantes en contenedores herméticos.
• Limpie bien las tapas antes de abrir los contenedores.
• Conserve los embudos, latas de aceite, pistolas de engrase, etc. en un lugar limpio y
límpielos antes de usarlos.
• Limpie cada conexión antes de conectar la pistola de lubricante.
• Limpie todas las tapas de llenado de aceite o las cubiertas y su área circundante antes
de quitarlas.
3-31
Lubricación Sección
MD6640 Perforadora Electrica Para Pozos De Tronadura
SELECCIÓN DE LUBRICANTE
La selección de lubricantes debidos para uso en ésta máquina, es crítica para su confiabilidad.
Rodamientos, engranajes, acoples y otras partes de precisión mal lubricados, fallan rápido. Por
esto se recomienda elegir lubricantes según standards de la “American Standards Testing Material”
(ASTM). Éstos se recopilaron en cooperación con grandes proveedores de petróleo para asegurar
al consumidor un suministro exacto segun necesidades específicas, sin considerar su orígen.
Recomendamos advertir a su proveedor de lubricantes con la información siguiente para ayudarlo
en la selección del producto apropiado para cada aplicación en ésta máquina.
La aceptación final de todos los lubricantes suministrados de acuerdo a éstos standards, se basarán
en su satisfactorio rendimiento en la aplicación proyectada y no exime al proveedor de
responsabilidades de rendimiento para productos con sello de calidad.
La operación de ésta máquina en temperaturas extremas (bajo -20°F/-29°C o sobre 110°F/44°C),
necesita lubricación especial. Anote los rangos de temperatura sobre las hojas de especificación
de lubricantes siguientes. Contacte a su proveedor local, a su representante de Caterpillar Global
Mining, o al Departamento de Servicios de su oficina local de Caterpillar Global Mining por
recomendaciones, si necesita información adicional o asesoramiento.
• ALMACENE LOS TAMBORES DE LUBRICANTE DE COSTADO, CON LAABERTURAHACIAARRIBA.
• ALMACENE TODOS LOS LUBRICANTES EN CONTENEDORES BIEN CERRADOS!
• LIMPIE TODAS LAS CUBIERTAS Y ÁREACIRCUNDANTEANTES DEABRIRLOS!
• FILTRE TODO ELACEITEANTES DEAGREGARLOAL SISTEMA!
• USE SOLO LUBRICANTESAPROPIADOS Y LIMPIOS!
• NO MEZCLE TIPOS O MARCAS DE LUBRICANTE!
•Aún los mejores lubricantes son inútiles en prevenir el desgaste, si se han contaminado con
suciedad o agua, producto de un manejo o almacenamiento descuidado.
3-32
Lubricación Sección
MD6640 Perforadora Electrica Para Pozos De Tronadura
ACSL - LUBRICANTE PARA COMPRESOR DE AIRE (TIPO TORNILLO)
ALCANCE: Requerimiento para el rendimiento de la lubricación y recomendaciones para los
lubricantes del Compresor de Aire (tipo Tornillo).
NOTA IMPORTANTE
Estos requerimientos de rendimiento de lubricante para los compresores de aire
tipo tornillo sólo son válidos para los compresores de tornillo A-C de Compressor
Corporation. Si la máquina está equipada con compresores de aire fabricados por
otros proveedores distintos de A-C, debe contactar con el proveedor para que le
entregue la información de mantenimiento para ese equipo específico y a la sección
7 de este manual.
RECOMENDACIONES DE LUBRICANTE:
Se recomiendan los siguientes lubricantes:
1. Si se espera que la temperatura ambiente esté siempre sobre -26°C (-15°F), utilice cualquiera
de los siguientes:
Fluido para Transmisión Automática (ATF) - General Motors Dexron III o Ford Tipo F.
o
Fluido de Hidrocarbono Sintetizado - Mobil Rarus SHC 924.
2. Si se espera que la temperatura ambiente caiga bajo los -40°C (-40°F), use Mobil Rarus
SHC 1024 o Phillips Philesco ISO32 u otro equivalente.
NOTA: Si la temperatura ambiente cae bajo los -26°C (-15°F), podría provocar que el
lubricante se espese en el enfriador de aceite, lo que podría resultar en que la unidad
se detenga luego de un corto período de funcionamiento. Si esto ocurre con
frecuencia y el compresor está siendo lubricado con ATF, es recomendable que se
utilice un lubricante de hidrocarbono sintetizado en vez del ATF.
NOTA: Estos requerimientos de rendimiento son referencias y no una especificación. Por
ello, cumplir estos límites tal como descrito más arriba no releva al proveedor de la
responsabilidad asociada con los productos que son marcas registradas .
3-33
Lubricación Sección
MD6640 Perforadora Electrica Para Pozos De Tronadura
MPO - ACEITE MULTIPROPÓSITO
ALCANCE: Requerimientos de rendimiento lubricante para aceites Multi-Propósito.
APLICACION: La adición de un lubricante al sistema de aire comprimido (no para sistemas
compresores de aire del tipo tornillo - vea la sección ACSL), aceitera manual,
etc.
REQUERIMIENTOS GENERALES:
1. Debe fluir a la temperatura aplicada.
2. Debe contener inhibidor de oxidación.
3. Clasificación de servicio “MS” para Motor oil - API.
RECOMENDACIONES DE VISCOSIDAD:
1. Lubricante para la Línea de Aire
TEMPERATURA AMBIENTE NUMERO SAE
Bajo 10°F 5W
Sobre 10° F 10 W
2. Aceitera Manual - Temperatura y viscosidad adecuada para la aplicación
NOTA: Estos requerimientos de rendimiento son referencias y no una especificación. Por
ello, cumplir estos límites tal como descrito más arriba no releva al proveedor de la
responsabilidad asociada con los productos que son marcas registradas .
3-34
Lubricación Sección
MD6640 Perforadora Electrica Para Pozos De Tronadura
RWRL - LUBRICANTE DE CABLE MOTRIZ DE ACERO
ALCANCE: Requerimientos de rendimiento de lubricación para el cable de levante.
APLICACION: Principalemente para cables de levante o cualquier otro cable motriz donde la
fatiga y el no desgaste son la principal preocupación.
REQUERIMIENTOS GENERALES:
1. Penetrar entre los cables adyacentes de tal forma de lubricarlos y protegerlos contra el
desgaste y para mantener el corazón del cable sin que se seque y se deteriore.
2. Coloque un lubricante entre las poleas y el cable de acero.
3. Debe resistir el lavado por agua.
4. Debe proteger contra la oxidación y corrosión.
5. Debe formar una película no adhesiva de tal forma que no permita la acumulación de polvo y
suciedad sobre los cables.
6. Permanecer flexible y resistir la pérdida a las más bajas temperaturas a las cuales esté
expuesto el cable.
7. Preferiblemente, debiera formar una película transparente levemente coloreada, para que
puedan detectarse rápidamente durante la inspección, el desgaste, corrosión o alambres
cortados.
8. Ser capaz de una fácil aplicación, tanto manualmente y mediante equipos sin necesidad de
calentarlo.
COMPOSICION:
Adecuado para penetrar entre los alambres adyacentes del cable de tal forma de lubricarlos y
también mantener el lubricante en el centro.
3-35
Lubricación Sección
MD6640 Perforadora Electrica Para Pozos De Tronadura
REQUIREMIENTOS ESPECIALES:
1. Debe pasar el Test de Estados Unidos para la Retención del Acero utiliznado un Tester
Timken
2. Prueba Shell E.P. de Cuatro Bolas - (ASTM D-2596)
Indice de pérdida de carga, kg., min.: 40
Carga soldadura kg., min.: 250
3. Desgaste de Cuato Bolas - (ASTM D-2266)
Diámetro de marca de desgaste, mm., max.: 0.60
4. Carga Timken O.K. lbs., min. - (ASTM D-2782): 45
5. Corrosión de Cinta de Cobre - (ASTM D-130): pasa
6. Rangos de Aplicación de Temperatura sugeridos
Debiera haber un lubricante para cada uno de los rangos de temperatura siguentes:
110°F to 30°F
40°F to 9°F
10°F to -50°F
NOTA: Estos requerimientos de rendimiento son referencias y no una especificación. Por
ello, cumplir estos límites tal como descrito más arriba no releva al proveedor de la
responsabilidad asociada con los productos que son marcas registradas.
3-36
Lubricación Sección
MD6640 Perforadora Electrica Para Pozos De Tronadura
HYDO – ACEITE HIDRÁULICO.
Caterpillar recomienda aceite hidráulico apropiado para usar todo el año, en vez de usar solo para
verano o invierno, lo cual puede crear una mezcla de viscosidades so no se logra un drenaje
completo del aceite. Esto puede comprometer la viscosidad deseada del aceite.
La viscosidad standard para la perforadora MD6640 es máximo 3.000 centistokes (CST) en el día
mas frío de arranque inicial y de 10 centistokes mínimo absoluto para el día de máximo calor
durante la operación de la máquina. La viscosidad del aceite óptima a temperaturas normales de
operación es de 30 a 60 centistokes.
Para climas donde raramente las temperaturas ambientales caen demasiado bajo el punto de
congelamiento (25ºF hasta 32ºF), un aceite hidráulico de base de petróleo parafínico con un pequeño
o nulo mejorador de viscosidad (VI) puede ser aceptable.
Para climas donde la temperatura ambiente cae mas bajo de –40ºF en su día más frío y son tan
altas como 104ºF en su día más caluroso, se requiere un fluido VI mayor. Los fluidos de base
parafínica NO DEBERÍAN SER USADOS donde la temperatura ambiente alcanza el congelamiento
o ligeramente bajo el congelamiento. En temperaturas de congelamiento o ligeramente bajo el
congelamiento, la cera de parafina comienza a solidificarse, causando que el fluido tenga una
viscosidad mas espesa que la que implica realmente la curva temperatura-viscosidad.
Adicionalmente, el aditivo VI en aceites de base de petróleo, tiene la habilidad de ser mecánicamente
deformante, haciendo caer la viscosidad. Esto puede resultar en un fluido que puede ser totalmente
inadecuado para usar después que ha estado en servicio por algún tiempo.
Por todas las razones arriba mencionadas, más la preocupación del rango de oxidación e ingestión
de agua que las derivan en sedimentos, Caterpillar recomienda intervalos de drenaje de 2.000
horas cuando se usan aceites hidráulicos de base de petróleo parafínico o de tipo nafténico.
El aceite hidráulico preferido para la MD6640 es un fluido sintético PAO (poli-alfa-eleofino) con un
aditivo VI naturalmente mayor. Como ejemplos podrían ser: 198 paraAceite Tellus T 722 de Shell®,
un rango de 135 hasta 145 para Aceite Mobil® SHC serie 500, 134 para Fluido Hidráulico de Esso/
Exxon® Terrestic SHP 22 o 135 para Aceite SYNCON AW de Conoco®.
La multiplicación por 3 o 4 veces en el costo de los fluidos sintéticos, comparados con los aceites
de petróleo de base parafínica es equiparable por el hecho que el aceite sintético se puede dejar
en el sistema 4 veces más (por ejemplo 8.000 horas) antes de un requerimiento de un intervalo de
drenaje. El ahorro con el uso del aceite sintético es beneficioso porque la frecuencia de intervalos
de drenaje disminuye por un factor de 4. Esto reduce los tiempos de mantención dedicados al
cambio de aceite del sistema y el costo de deshacerse del aceite del sistema a un ¼ de lo que
sería ser con el otro.
Con todo lo anterior en mente, al usar aceite tipo SHC de Shell®, Mobil®, Esso/Exxon® o Conoco®,
puede resultar en considerables ahorros de costos, así sea que la mina esté ubicada en un clima
frío o caliente.
3-37
Lubricación Sección
MD6640 Perforadora Electrica Para Pozos De Tronadura
FLUIDO HIDRÁULICO SINTÉTICO PAO.
El siguiente gráfico de barras muestra los grados de viscosidad recomendados para el aceite
hidráulico SHC en varias temperaturas ambiente. Para temperaturas fuera de estos rangos, pida
el aceite recomendado al Departamento de Servicio de Caterpillar Global Mining.
CARTA DE VISCOSIDAD RECOMENDADA vs. TEMPERATURA (OAT)
FLUIDO HIDRÁULICO DE BASE PARAFÍNICA DE PETRÓLEO.
Los aceites aprobados tendrán típicamente una certificación de especificaciones Denison HF-O.
En general, los aceites cumplirán los siguientes requerimientos mínimos:
1. Viscosidad Máxima = 14.000 SUS (3.000 CST) a la temperatura ambiente mínima esperada
(en el arranque inicial).
PRECAUCIÓN: ARRANCAR CON VISCOSIDADES MAYORES QUE 3.000 CST,
PODRÍAINVALIDAR LAGARANTÍA.
2. Viscosidad Mínima = 65 SUS a la temperatura máxima de operación del sistema hidráulico.
3. Viscosidad Ideal = 100 SUS a temperatura normal de operación del sistema hidráulico.
4. Índice de Viscosidad Mínima = 90
5. Número de Neutralización = 10 o menos, para aceite nuevo
6. Horas de Oxidación al Número de Neutralización 2.0 según D-943 = 1.500 horas mínimo
3-38
Lubricación Sección
MD6640 Perforadora Electrica Para Pozos De Tronadura
7. Demulsibilidad (fácil separación con el agua) según D-1401 = 30 +/- 15 minutos a 3 ml.
máximos de emulsión.
CARTA DE VISCOSIDAD RECOMENDADA vs. TEMPERATURA (OAT)
PRECAUCIÓN: EN GENERAL, EL AGUA NO SE SEPARARÁ DESDE LOS
ACEITES DE MOTOR O DE LOS FLUIDOS DE TRANSMISIÓN
AUTOMÁTICA, POR LO TANTO, ESTOS FLUIDOS NUNCA SON
RECOMENDADOS COMO FLUIDOS PARA SISTEMAS
HIDRÁULICOS.
8. Estabilidad Hidrolítica según D-2619 = Pérdida de peso de Cobre no debe ser mayor que .50
mg/cm2.
El aceite debería contener inhibidores de corrosión y oxidación (R+O) y depresores de espuma.
PRECAUCIÓN: EL USO DE AGUA O BASE DE GLICOL O CUALQUIER OTRO
FLUIDO RESISTENTE AL FUEGO ESTÁ PROHIBIDO YA QUE
OCURRIRÁN SERIOS DAÑOS EN EL SISTEMA HIDRÁULICO, LO
CUAL INVALIDARÁ LA GARANTÍA SOBRE EL SISTEMA
HIDRÁULICO DE LA MÁQUINA.
Obtenga los aceites desde un proveedor reputado. Contacte al Departamento de Servicio de
Caterpillar Global Mining para aprobaciones o recomendaciones de aceites específicos.
3-39
Lubricación Sección
MD6640 Perforadora Electrica Para Pozos De Tronadura
La figura de la página anterior, ilustra los rangos de temperatura aceptables para varios grados de
viscosidad (VG) de aceite, asumiendo un índice de viscosidad de 125.
1. El lado izquierdo de las barras muestra la temperatura ambiente mínima absoluta para
arranques en frío.
2. El lado derecho de las barras muestra la temperatura del aceite máxima absoluta.
3. La temperatura de operación ideal máxima del aceite es una viscosidad de 100 SUS.
NOTA: AL DETERMINAR UNACEITE PARAEL SISTEMAHIDRÁULICO, Caterpillar Global
Mining DISEÑA EL SISTEMA PARA UN ACEITE PARATODO ELAÑO Y PARA USAR
SIN CALEFACTORES. EL SISTEMA HIDRÁULICO ESTÁ FABRICADO PARALA
TEMPERATURAAMBIENTE DEL SITIO DE LA MINA DEL CLIENTE Y LUEGO SE
SELECCIONA EL TIPO CORRECTO DE FLUIDO HIDRÁULICO. PARA
TEMPERATURAS EXTREMADAMENTE FRÍAS, SE USAUN FLUIDO MUY LIVIANO
CON ENFRIADORES DE ACEITE SOBREDIMENSIONADOS PARAACOMODARSE A
ALTAS TEMPERATURAS DE VERANO. CON ESTE PROCEDIMIENTO, LÍMITES DE
VISCOSIDAD TAN BAJOS COMO 30º SOBRE ELAMBIENTE, PUEDEN SER
CUMPLIDOS.
NOTA: ESTOS REQUERIMIENTOS DE RENDIMIENTO SON ESTÁNDAR Y NO UNA
ESPECIFICACIÓN. POR LO TANTO, LOGRAR LOS LÍMITES DESCRITOS
ANTERIORMENTE NO EXIMEN AL PROVEEDOR DE LA RESPONSABILIDAD
ASOCIADA CON LOS PRODUCTOS DE MARCA REGISTRADA.
3-40
Lubricación Sección
MD6640 Perforadora Electrica Para Pozos De Tronadura
4-1
Mantención Preventiva Sección
MD6640 Perforadora Electrica Para Pozos De Tronadura
Sección 4
Mantención Preventiva
Recurra siempre a la información de seguridad de la Sección 1 de éste
manual antes de iniciar todo proceso de mantención en ésta máquina.
Tabla de Contenidos
MANTENCIÓN PREVENTIVA ........................................................................................................3
ELEMENTOS DE UN EFECTIVO PROGRAMA DE MANTENCIÓN .......................................5
PROGRAMAPLANIFICADO DE MANTENCIÓN PREVENTIVA ..............................................5
CONSIDERACIONES GENERALES DE SEGURIDAD ..........................................................6
MANTENCIÓN DURANTE LA OPERACIÓN DE LA MÁQUINA .....................................................6
PRECAUCIONES DURANTE LA MANTENCIÓN ..........................................................................7
MANTENCIÓN PREVENTIVAPARALUBRICACIÓN .....................................................................8
LIMPIEZA DEL LUBRICANTE ..................................................................................................9
FRECUENCIAS DE INSPECCIONES Y MANTENCIONES ........................................................10
PROGRAMAS DE MANTENCIÓN...............................................................................................10
PUNTOS DE INSPECCIÓN DIARIA...................................................................................... 11
INSPECCIÓN A BORDO. ................................................................................................15
INSPECCIONES DESPUÉS
DELARRANQUE INICIAL.................................................................................................21
PAUTAS DE INSPECCIÓN SEMANAL. .................................................................................22
INSPECCIONES A BORDO. ...........................................................................................26
PAUTAS DE INSPECCIÓN MENSUAL. .................................................................................28
PAUTAS DE INSPECCIÓN SEMESTRAL. ............................................................................30
4-2
Mantención Preventiva Sección
MD6640 Perforadora Electrica Para Pozos De Tronadura
4-3
Mantención Preventiva Sección
MD6640 Perforadora Electrica Para Pozos De Tronadura
Sección 4
MANTENCIÓN PREVENTIVA
Esta sección del manual describe aspectos de mantención preventiva tales como inspecciones, ajustes
y tareas repetitivas de rutina en la perferadora eléctrica para Minería. Información relacionada con
técnicas de lubricación, frecuencia y puntos de servicio, también están parcialmente incluídas. Más
amplia y detallada información se puede encontrar en las Secciones 3 y 5 de este manual.
Al final de ésta sección existen programas de mantención reproducibles que pueden ayudar a la
conservación de registros y programaciones de mantención.
INTRODUCCIÓN
Un Programa de Mantención Preventiva es una serie sistemática de operaciones realizadas
periodicamente en el equipo, para prevenir paralizaciones.
Cualquiera paralización REDUCIRÁ la productividad e incrementará los gastos generales. La máquina
es nueva solo en un punto en el tiempo. Desde ese momento, comienza a deteriorarse por el uso y
el envejecimiento. Un programa de mantención bien organizado evitará las costosas e inesperadas
paralizaciones y aumentará la vida de los componentes.
Se debe observar una sistemática aproximación al programa, manteniendo registros detallados de
todos los hallazgos para detectar potentiales áreas de problemas. Se puede ahorrar valioso tiempo
y esfuerzos si los defectos son corregidos antes de que conduzcan a una paralización mayor. Los
registros se deben revisar a menudo y mantenerlos archivados para futuras consultas.
El personal involucrado en el programa debe someterse a un plan de entrenamiento establecido,
para conocer QUÉ revisar y CÓMO solucionar cualquier área potencial de problemas. Cuando el
personal está capacitado para realizar mantenciones de rutina y reparaciones normales de manera
eficiente, se reducen las pérdidas de tiempo y aumenta la productividad de la máquina. Además,
para mantener la máquina en buenas condiciones de trabajo, se debiera mantener a mano los
repuestos necesarios, las herramientas y la información actualizada.
La mantención de equipos es una ciencia y su práctica un arte. Este arte puede ser dividido en 6
tipos de operaciones, que son:
4-4
Mantención Preventiva Sección
MD6640 Perforadora Electrica Para Pozos De Tronadura
La Inspección es quizás la operación más importante. Es necesaria la observación cuidadosa
de todos los componentes del equipo. Las anormalidades leves pueden no interferir con el
rendimienton del equipo PERO aquellas que significan una desviación de lo normal deben
descubrirse tempranamente. Al inspeccionar el (los) componente (s), anote la ubicación, estado
de limpieza, color, etc.
La Limpieza y mantener limpio es esencial para una buena operación. La limpieza periódica
debe ser más frecuente en los componenetes expuestos que en aquellos que están contenidos
en gabinetes. Los componentes, sus conexiones y uniones deberían estar libres de polvo,
corrosión y otras materias extrañas.
La operación del Tacto es la más usada para revisar la maquinaria rotatoria protegida, para
detectar vibraciones debido a partes desgastadas, falta de lubricación, sobrecalentamiento,
etc. La operación del tacto en items eléctricos se debe realizar inmediatamente DESPUES de
haber cortado la energía y que los circuitos queden a tierra. La percepción de excesivo calor
puede indicar una condición de sobrecarga y debería ser corregida de inmediato.
Una operación de Apriete se debería hacer a todas las conexiones que hayan trabajado
sueltas debido a vibraciones, etc. Las partes sueltas son un peligro determinado, debido a que
pueden salirse de su lugar y dañar componentes aledaños. La importancia de un montaje firme
y conexiones bien apretadas no debe sobreestimarse. Reemplace siempre los pernos faltantes
o quebrados con uno de tamaño apropiado, utilizando las herramientas correctas.
Los Ajustes se deberían realizar cuando una inspección indique que es necesario para
mantener las condiciones normales de operación. Los ajustes específicos están contenidos en
la “Sección Ajustes Mecánicos” de este manual, el manual eléctrico o el manual del fabricante
del componente.
La Lubricación se refiere principalmente a la aplicación del LUBRICANTE CORRECTO en la
CANTIDAD CORRECTA, a rodamientos y otras partes rotatorias. También significa la aplicación
de un aceite liviano a las bisagras de una puerta u otras superficies deslizantes. Use solo
lubricantes limpios y apropiados.
La mantención planeada, el sentido común y el buen juicio son menos costosos y más efectivos que
la mantención por crisis. Las acciones tomadas sobre recomendaciones hechas en las siguientes
Listas de Revisión de inspecciones, sugeridas por el Departamento de Mantención, deberían reducir
los costos de reparación y mantención y aumentar la producción.
Reemplazar componentes gastados con repuestos originales Caterpillar Global Mining, sobre bases
planificadas, evitará costosas pérdidas de tiempo y reparaciones de emergencia. El costo de los
repuestos es pequeño cuando se compara con paralizaciones imprevistas cuyo resultado resulta en
excesivas horas de sobretiempo y pérdidas de producción de la máquina.
Cada vez que se señale un problema, el inspector debería explicarlo brevemente en el reporte de
mantención (se sugiere un formato al final de ésta sección), junto con su firma. Luego, una persona
autorizada, debería explicar brevemente su solución. Finalmente, CORRIJA EL PROBLEMA.
4-5
Mantención Preventiva Sección
MD6640 Perforadora Electrica Para Pozos De Tronadura
ELEMENTOS DE UN EFECTIVO PROGRAMA DE MANTENCIÓN
• Programa de Mantención Preventiva.
• Equipo de Trabajo bien Entrenado y Motivado.
• Comunicaciones Efectivas.
• Apropiada Selección y Obtención de Equipamiento.
• Documentación Significativa.
• Cooperación entre los Departamentos de Operaciones y Mantención.
• Soporte de Almacén.
• Buenas Instalaciones de Taller.
PROGRAMA PLANIFICADO DE MANTENCIÓN PREVENTIVA
Económicamente, mantener la productividad y rendimiento de una perferadora para minería de
Caterpillar Global Mining, necesita actividades de mantención e inspección de manera planificada.
Los requierimientos de mano de obra y la ejecución de necesidades de mantención durante las
detenciones programadas, imponen un sistema el cual reconozca los intervalos de inspección
recomendados. Por ejemplo, el balde y el conjunto de la orugas están expuestas a servicio severo y
deberían inspeccionarse en cada período de mantención, mientras que de otros componentes
puede esperarse razonablemente que operen el doble de ese intervalo antes de una inspección.
Alternando la inspección o el servicio de éstos items, se equilibra el tiempo de trabajo y de la mano
de obra.
La mantención e inspección de componentes debería realizarse simultaneamente durante las
detenciones programadas. La historia de prácticas de mantención de máquinas ha mostrado que el
reemplazo de repuestos y reconstrucción de componentes, anticipándose a fallas destructivas, rinde
los más bajos costos operativos. Mantener buenos registros es vital para ayudar a cualquier programa
de mantención preventiva. Recambios tempranos reducen las paradas imprevistas y previene daños
secundarios. La mantención de registros debe hacerse en formatos “fácil de usar” y contener
suficientes detalles para aislar la función. Por ejemplo, el desgaste de los cables de la perferadora y
los dientes del balde, a menudo se relacionan directamente a toneladas de material cargado en vez
de horas operativas. En cambio, el rango de desgaste de ejes de transmisión y rodamientos,
corresponde más a horas operativas. Ya que la vida básica de la máquina se prolonga por miles de
horas operativas, la mantención de registros se puede usar para estimar presupuestos de gastos de
mantención. Esto hace de los registros una muy valiosa herramienta de planificación para la gerencia
de la mina.
Use los programas de mantención de Caterpillar Global Mining aquí incluídos para formular un
programa adecuado a la fuerza de trabajo y al entorno minero. En algunos períodos de tiempo,
inspecciones adicionales o trabajos planificados pueden suplementar las actividades descritas en
éste manual.
4-6
Mantención Preventiva Sección
MD6640 Perforadora Electrica Para Pozos De Tronadura
CONSIDERACIONES GENERALES DE SEGURIDAD
Siempre se debe enfatizar la importancia de la seguridad general en la mantención de una máquina
móvil; las operaciones de excavación pueden envolver una variedad de condiciones peligrosas.
Muchos componentes críticos están sujetos a desgaste y otros deterioros los cuales limitan su vida
útil; haciéndolas reemplazables. Cuando nuevo, todo componente tiene por construcción, una reserva
de resistencia contra factores desconocidos y razonable pérdida de durabilidad contra el desgaste
gradual. No obstante, si se descuida su inspección y ajuse, eventualmente alcanzarán una condición
donde se transformen en un problema potencial. Igualmente, omitir el reemplazo de varios mecanismos
para asegurar el apropiado rendimiento de la máquina, podrían constituir un problema. Estudie éste
manual cuidadosamente para evitar condiciones inseguras. Revise periódicamente el manual para
actualizar el conocimiento de éstos procedimientos. Supervisores, operadores y gente de maintención
deben seguir continuamente prácticas seguras.
MANTENCIÓNDURANTELAOPERACIÓNDELAMÁQUINA
Las exigencias de seguridad dictan que toda máquina en servicio activo sea revisada a intervalos
regulares para ajustar debidamente los mecanismos operativos, el excesivo desgaste de componentes,
la limpieza del sistema y cualquier otro defecto. Las deficiencias durante la operación de la máquina
deberían ser investigadas cuidadosamente. Se debería determinar si existen problemas de seguridad.
La mantención es vital para una operación segura! Debería ser ejecutada sistemáticamente por
personal competente.
Bajo un punto de vista económico, es aconsejable ejecutar tanta mantención como sea posible
realizar en forma segura, mientras la máquina se mantenga operando. Desde luego, hay algunos
procedimientos de mantención, tales como la inspección y reemplazo de dientes de engranajes los
cuales requieren la máquina detenida. Sin embargo, muchas tareas de soporte se pueden manejar
efectivamente en los cambios de turno, cuando la máquina permanecee activada.
Los sistemas de lubricación automática funcionan durante todos los ciclos operacionales de la máquina.
Éstos entregan lubricante premedido, que amplía la vida de desgaste de las unidades de la máquina.
Otras partes de la máquina se pueden lubricar manualmente en forma segura mediante accesorios
para grasa o aceite, diseñados para mantener las manos del operador a distancia segura. Donde
ésto no es posible, la máquina debe ser detenida durante la requerida lubricación.
PRECAUCIÓN: Una faena de reparación o mantención no queda completa hasta que
todas las protecciones, planchas y otros dispositivos de seguridad hayan
sido reinstalados, antes de que el equipo sea reintegrado a la operación.
4-7
Mantención Preventiva Sección
MD6640 Perforadora Electrica Para Pozos De Tronadura
PRECAUCIONESDURANTELAMANTENCIÓN
El operador debe preocuparse de que el equipo de la máquina quede en una posición segura antes que
efectúen reparaciones o ajustes. La máquina no deberá quedar expuesta a caída de rocas o posibles
deslizamiento de terreno. Antes de iniciar una reparación o ajuste, el operador debe:
1. Instalar todos los frenos.
2. Desactivar las funciones de control.
3. Cualquier otra cosa necesaria para prevenir movimientos accidentales de la máquina.
PELIGRO: ALTO VOLTAJE! SI LAENERGÍAES ESENCIALPARALAREPARACIÓN, TAL
COMOUNAPRUEBA,SOLODEBERÍAENERGIZARSECUANDOTODOEL
PERSONALD ESTÉALEJADO DE PELIGROS ELÉCTRICOS O MECÁNICOS.
La energía debería activarse solo durante el período de prueba y no cuando
se esté realizando un trabajo de reparación.
Previo a acometer cualquier trabajo, el personal de mantención debería notificar al operador acerca
de la naturaleza y ubicación del trabajo. Si éste se va a realizar en o cerca de partes en movimiento,
los controles de arranque deberían bloquearse en la posición OFF y rotularse. El bloqueo y rotulado
debería ser retirado solo por el personal de mantención que los instaló, u otro personal autorizado.
Durante todas las fases de mantención, tenga extremo cuidado cuando trabaje cercano a equipos
eléctricos. Nunca trabaje cerca de conexiones expuestas y energizadas con alto voltaje.
Siempre se debe usar equipamiento de protección aprobado, tales como guantes y ganchos o tenazas
aisladas, cuando se maniobren cables eléctricos de alto voltaje.
PELIGRO: Solo electricistas calificados están autorizados para mantener directamente
el equipamiento eléctrico, tales como motores, transformadores e
interruptores.
Al efectuar mantenciones, las posiciones difíciles asumidas y el manejo de componentes pesados, a
menudo aumenta la posibilidad de lesiones. Como medida precautoria, use equipos de manejo
mecánico cada vez que sea posible. El capataz de la mina puede ayudar a trabajos de mantención
más faciles y seguros al proporcionarle material de bloqueo. Los grupos de servicio deben tener
conocimiento básico sobre prácticas de izaje, al usar sus rodillas y piernas antes que sus espaldas.
PELIGRO: La mayoría de los componentes que constituyen la máquina son
pesados y voluminosos. SE DEBE TENER EXTREMO CUIDADO AL
LEVANTAR ESTOS COMPONENTES. EL PERSONAL DEBE ESTAR
CONSCIENTE DEL PESO DE LOS COMPONENTES ANTES DE
INTENTAR LEVANTARLOS YA SEA EN FORMA FORMA MANUAL O
CON UN DISPOSITIVO DE IZAJE. Todas las reglas de seguridad
aplicables se deben seguir cuando use una grúa o dispositivo
de levante. Entérese del rango de carga, altura de izaje y radio de
giro del dispositivo antes de levantar una carga. La omisión de
seguir todas las reglas aplicables de seguridad cuando ejecute una
mantención, pueden resultar en lesiones serias o la muerte.
4-8
Mantención Preventiva Sección
MD6640 Perforadora Electrica Para Pozos De Tronadura
MANTENCIÓN PREVENTIVAPARALUBRICACIÓN
La lubricación puede considerarse la porción más importante de un programa de mantención
preventiva. No permita que nada interfiera con la lubricación de la máquina. La experiencia dictará
como ajustar la cantidad de lubricante a usar en cada serviciose. Sin embargo éste esfuerzo extra
resultará en un suave desempeño de la máquina, con menos desgastes y detenciones.
Es dificil predecir cuánto lubricante se debiera aplicar a un rodamiento específico. Varía cuan fuerte
se está trbajando la máquina, qué grado de desgaste previo tuvo el rodamiento y el grado del
lubricante que está usando. Observe los rodamientos detenidamente para asegurarse que el lubricante
agregado en un servicio, dure suficiente hasta el próximo servicio.
Muchas partes de desgaste requieren que el lubricante se aplique en forma regular y en pequeñas
cantidades, como lo hace el sistema automático de lubricación, en vez de grandes cantidades y
aplicada ocasionalmente. Haga inspecciones regulares a la máquina y verifique os signos de
lubricación imropia, como la acumulación de exceso de lubricante o su descoloración. Asegúrese
que el lubricante no proviene de líneas y/o tuberías rotas o desconectadas. Normalmente, el exceso
de lubricante bombeado en un rodamiento sencillo no es usado. Pero en ciertas áreas donde los
rodamientos pueden acumular suciedad (como en la maquinaria inferior y candados del balde) se
debe agregar lubricante extra para purgar todo el lubricante viejo, el cual pudo haber acumulado
suciedad abrasiva.
A veces, los nuevos bujes suelen sobrecalentarse debido a que están demasiado apretados para
permitir una apropiada distribución del lubricante. Los bujes viejos suelen sobrecalentarse debido a
que están tan gastados que el lubricante no permanece en él hasta el próximo ciclo de sevicio. En el
caso de los nuevos bujes, puede ser necesario lubricarlos mas frecuentemente hasta que se asiente.
Puede ser necesario hacer lo mismo con los bujes viejos, hasta que sean reemplazados. Es mucho
mejor perder un poco de tiempo en un turno entregando un poco de lubricante extra a un punto que
lo necesita, en vez de tratar de trabajarlo hasta el término del turno.
La causa más común de sobrecalentamiento en rodamiento antifricción es el batido del lubricante.
Esto sucede cuando el rodamiento se empaqueta demasiado lleno. Si el lubricante filtra fuera del
rodamiento antifricción, es un signo casi seguro que se agregó demasiado lubricante al rodamiento.
Continúe lubricándolo tan a menudo como antes, pero con menos cantidad.
La Sección 3 de éste manual le proporcionará más detalles e información específica sobre los
lubricantes y su utilización.
4-9
Mantención Preventiva Sección
MD6640 Perforadora Electrica Para Pozos De Tronadura
LIMPIEZA DEL LUBRICANTE
Aún el mejor lubricante es un preventivo inútil de desgaste si se ha contaminado producto de un
descuidado manejo y almacenamiento. El fabricante de lubricantes lo envasa en recipientes herméticos
para mantener su limpieza. Es responsabilidad de la persona que ejecuta la lubricación de la máquina
quien debe asegurarse que la suciedad no contamine el lubricante.
Siga éstos puntos de buenas prácticas de lubricación:
• Mantenga todo el aceite y otros lubricantes en contenedores herméticos.
• Limpie bien las tapas antes de abrir los contenedores.
• Conserve los embudos, latas de aceite, pistolas de engrase, etc., en un lugar limpio y, antes de
utilizarlos, elimine toda suciedad con un paño limpio y libre de hilachas.
• Limpie cada conexión antes de conectar la pistola de lubricante.
• Limpie las tapas o cubiertas de llenado de aceite y su área circundante antes de quitarlas.
Refiérase al tópico “Referentes de Lubricante” en la Seción 3 de éste manual para una explicación
de cada tipo de lubricante usado para el servicio de ésta máquina. Asegúrese que el lubricante no
esté sucio o con viscosidad impropia. Cuando la máquina es operada por más de un turno diario,
todas las cuadrillas deben cooperar en la revisión de la lubricación. Esto para cuidar que ningún
punto de lubricación sea olvidado o sobrelubricado. Usualmente, es mejor hacerlo al inicio de cada
turno. Se suministra Programas de Servicio reproducibles para registrar la información de servicio.
NOTA: Las instrucciones de lubricación proporcionadas por cualquier proveedor de un producto
suministrado por él mismo, tienen prioridad por sobre los procedimientos e intervalos de
lubricación de Caterpillar Global Mining.
CAUTION: Al no ser posible trabajar en la máquina con un arnés de seguridad,
use una “grúa extensible” o “grúa con canastillo” al hacer servicio o
inspecciones en áreas elevadas. Un resbalón o caída puede resultar
en severas lesiones personales o la muerte.
4-10
Mantención Preventiva Sección
MD6640 Perforadora Electrica Para Pozos De Tronadura
FRECUENCIAS DE INSPECCIONES Y MANTENCIONES
El programa de mantención sugerido, está desarrollado para una utilización planificada de 5.000
horas operativas por año. Ésta es una planificación referencial solamente. Las condiciones actuales
del sitio de la mina, las habilidades y hábitos del operador, junto a la calidad de los componentes y
consumibles serán los que finalmente conducirán el programa de inspecciones usadas en la máquina.
Se deberá tener cuidado en evaluar apropiadamente
la proximidad de las mantenciones durante el período
inicial, luego de la puesta en marcha de la máquina.
PROGRAMAS DE MANTENCIÓN
El siguiente programa de mantención está basado en una máquina típica. Ciertas características o
configuraciones pueden ser diferentes en una máquina específica. Este programa de mantención
está orientado a definir los intervalos de los varios y repetitivos requerimientos de mantención. Para
cualquiera ayuda, refiérase a la sección apropiada en éste Manual de Mantención y Operación o
contacte al representante de servicio de Caterpillar Global Mining.
NOTA: Este programa de mantención no debe ser sustituído por la Sección Mantención de
éste manual.
4-11
Mantención Preventiva Sección
MD6640 Perforadora Electrica Para Pozos De Tronadura
INSPECCIÓN DE MANTENCIÓN
PUNTOS DE INSPECCIÓN DIARIA
pmc_6640
MD6640
INSPECCIÓN EXTERNA
1. Compruebe áreas alrededor y debajo
la máquina por signos de escapes de
agua o lubricante. Si solo gotitas de
agua o lubricante son notadas, la fuga
es mínima. Determine la fuente de la
fuga y haga nota de ella en la hoja de
registro. Si un mancomunado de agua
o lubricante es notado, determine la
fuente y tome acción remediadora
inmediatamente.
2. Inspeccione que las cadenas de oruga
por cojincillos quebrados o agrietados,
pernos de cerradura faltantes, pernos
de la pista sueltos, y tensión correcta
de la cadena de oruga.
3. Chequear la caja de engranaje de la
rueda, motor hidráulico y mangueras por
fugas. Chequear el nivel de lubricante
en la caja de engranaje de la rueda
propulsora.
4. Inspeccione el bastidor por grietas y
suciedad o acumulación de hielo.
Compruebe los rodillos y ruedas para la
lubricación apropiada, la operación libre,
y suciedad o acumulación de hielo.
Chequee las abrazaderas y pernos del
eje.
5. Chequee las cortinas de polvo por
rasgones. Asegurarse que las cortinas
no esten congeladas al suelo ni están
cubiertas con recortes.
4-12
Mantención Preventiva Sección
MD6640 Perforadora Electrica Para Pozos De Tronadura
Puntos de Inspección DIARIA (cont.)
pmc_6640
MD6640
PRECAUCIÓN: EL CABLE DE
ALIMENTACION DE LA
MÁQUINA LLEVA UN VOLTAJE
LETAL. MANEJAR EL CABLE
DE UNA MANERAAPROBADA
CON GUANTES DE GOMA
APROBADOS Y GANCHOS O
PINZASAISLADOS.
6. Examinar el cable de alimentación para
una colocación apropiada fuera de la
línea del recorrido del taladro.
Inspeccione el aislamiento para cortes
o abrasión. Cerciorarse de que el cable
es mantenido alejado de agua y rocas
afiladas. Hacer que un electricista
examine el dispositivo del retenedor de
cable y la condición del cable donde
entra en la máquina.
7. Examinar el superficie inferior de la
máquina para saber si hay grietas,
mangueras o alambres sueltos,
acumulación de suciedad o hielo, u otra
deterioración o daños. Si se observan
los alambres sueltos, no tocarlos sino
notificar a un electricista
inmediatamente.
8. Examinar los spuds de nivelación del
gato para saber si hay una apropiada
cubierta de lubricante. Examinar los
pernos rotos o que faltan de nivelación
de los cojines del gato para saber si hay
grietas, o acumulación excesiva de
suciedad.
9. Examinar las abrazaderas del mástil y
los pernos de fijación. Substituir los
componentes perdidos o defectuosos
inmediatamente. Verificar que todos los
pernos de ajuste estén ajustados
correctamente. Chequear todas las
mangueras y cilindros por fugas.
4-13
Mantención Preventiva Sección
MD6640 Perforadora Electrica Para Pozos De Tronadura
Puntos de Inspección DIARIA (cont.)
pmc_6640
MD6640
PRECAUCIÓN: Utilizar una
correa y un acollador de
seguridad para proteger
contra caídas al subir en los
apoyos del mástil o
trabajando en la azotea de la
casa de la maquinaria.
10. Examinar los pernos de bisagra del mástil
para saber si hay retenedores o pernos
sueltos o perdidos. Substituir los
desaparecidos o dañadas
inmediatamente. Comprobar los pernos
para saber si hay la suficiente lubricación
y lubricar en caso necesario.
11. Examinar los cilindros del alzamiento
del mástil para saber si hay pernos o
retenedores sueltos o que faltan,
escapes de aceite, mangueras dañadas
o daño structural. Reparar o substituir
cualesquiera desaparecidos o
componente dañado inmediatamente.
12. Examinar la estructura del mástil para
saber si hay acordes o placas dobladas
o quebradas, piezas rotas o sueltas,
lubricación apropiada del estante o
desgaste excesivo del estante.
Examinar las escalas, las barandillas y
las plataformas para saber si hay piezas
quebradas o que faltan. Reparar o
substituir las piezas quebradas o que
falta inmediatamente.
13. Chequear la manguera de flexión
principal de aire, las líneas de
lubricación, y las líneas eléctricas que
van desde el mástil al mando de rotación/
izado para saber si hay interferencia con
el mástil o desgaste o escapes
excesivos.
4-14
Mantención Preventiva Sección
MD6640 Perforadora Electrica Para Pozos De Tronadura
Puntos de Inspección DIARIA (cont.)
pmc_6640
MD6640
14. Chequar los cables del alojamiento de
seguridad en el mástil. Asegurar de que
los cables y los soportes estén en buena
reparación sin grietas, hardware perdido
o sueltos o que cualquier daño que
podría afectar su efectividad.
15. Comprobar el conducto de filtración del
ventilador del aire de la casa de la
maquinaria para ver que libre de
obstrucciones.
4-15
Mantención Preventiva Sección
MD6640 Perforadora Electrica Para Pozos De Tronadura
Puntos de Inspección DIARIA (cont.)
pmc_6640
MD6640
INSPECCIÓN A BORDO.
1. Inspeccione si las líneas de lubricación
del compresor tienen filtraciones. Corrija
inmediatamente cualquier filtración.
2. Revise la condición del filtro de admisión
del compresor. Reemplace el cartucho
de filtro si la bandera roja es visible en el
indicador de servicio. Vacíe el depósito
de polvo y limpie el elemento de prefiltro.
Inspeccione el alojamiento y los ductos
por si hay daños o filtraciones. Repare
o reemplace los componentes dañados.
3. Revise el nivel de aceite del tanque de
aceite hidráulico. Rellene el tanque al
nivel apropiado como se describe en la
placa de instrucciones sobre el tanque.
4. Revise si hay filtraciones en el sistema
hidráulico. Corrija todas las filtraciones
inmediatamente y limpie todos los
derrames de aceite.
5. Si la máquina esta equipada con un
lubricador de brocas en el sistema
principal de aire, revise que el lubricador
esté lleno.
6. Inspeccione la debida operación de las
estaciones de bombeo de la central de
lubricación automática. Revise el
suministro de lubricante y cambie o
rellene los tambores si es necesario.
4-16
Mantención Preventiva Sección
MD6640 Perforadora Electrica Para Pozos De Tronadura
Puntos de Inspección DIARIA (cont.)
pmc_6640
MD6640
7. Cierre y asegure todas las puertas de
los gabinetes eléctricos.
PRECAUCIÓN: ASUMA QUE
TODOS LOS COMPONENTES
AL INTERIOR DE LOS
GABINETES ELÉCTRICOS
ESTÁN ENERGIZADOS. EL
SERVICIO DE TODOS LOS
COMPONENTES ELÉCTRICOS
DEBE SER REALIZADO SOLO
POR PERSONAL ELÉCTRICO
CALIFICADO.
8. Inspeccione el radiador y el ventilador
del compresor. Revise si hay signos de
deterioro o daños en las mangueras,
válvulas, conexiones, etc. Revise si hay
fugas por las uniones. Revise el panal
del radiador por si hay bloqueos de
polvo, suciedad, hojas, papel, etc., y
limpie según sea necesario.
9. Revise si la pantalla de exhibición del
operador presenta cualquier falla.
10. Examine la limpieza general de la sala
de máquinas. Límpiela de toda suciedad
o desechos.
NOTA: NO UTILICEAIRE COMPRIMIDO
PARALIMPIAR LASALADE
MÁQUINAS. ELAIRE
COMPRIMIDO SOLO MOVERÁ LA
SUCIEDAD DE UN LADO A
OTRO. USE UNAASPIRADORA
PARAQUITAR LASUCIEDAD. LA
FALTADE LIMPIEZAALINTERIOR
DE LA SALA DE MÁQUINAS
CAUSARÁ DAÑOSAMUCHOS
DE LOS COMPONENTES ALLÍ
LOCALIZADOS.
4-17
Mantención Preventiva Sección
MD6640 Perforadora Electrica Para Pozos De Tronadura
Puntos de Inspección DIARIA (cont.)
pmc_6640
MD6640
11. Inspeccione el winche auxiliar y el cable
del winche.
12. Revise el nivel de aceite en la bomba
de la caja de engranajes. Rellene con el
aceite recomendado a su correcto nivel.
13. Revise que todos los controles operen
libremente. Retorne todos los controles
a la posición OFF o INSTALAR.
14. Inspeccione que en la cabina del
operador esté todo limpio y ordenado.
Elimine toda suciedad o desechos de la
cabina. Limpie las ventanas para
permitir máxima visibilidad para una
apropiada operación.
NOTA: NO UTILICEAIRE COMPRIMIDO
PARALIMPIAR LACABINADEL
OPERADOR. EL AIRE
COMPRIMIDO SOLO MOVERÁ LA
SUCIEDAD DE UN LADO A
OTRO. USE UNAASPIRADORA
PARAQUITAR LASUCIEDAD.
15. Verifique la libre operación de las llaves
de herramienta, si tienen partes
quebradas o faltantes, una lubricación
apropiada, fugas de lubricante o
acumulación de polvo. Repare o
reemplace las partes dañadas y limpie
la plataforma de perforación.
4-18
Mantención Preventiva Sección
MD6640 Perforadora Electrica Para Pozos De Tronadura
Puntos de Inspección DIARIA (cont.)
pmc_6640
MD6640
PRECAUCIÓN: AL TRABAJAR
CERCA O BAJO LA UNIDAD
DE ROTACIÓN/EMPUJE,
CUIDE QUE TODOS LOS
CONTROLES DEL OPERADOR
ESTÉN EN OFF Y
ROTULADOS Y QUE EL
FRENO DE LEVANTE ESTÉ
ACCIONADO, PARA
PREVENIR MOVIMIENTOS DE
LA UNIDAD. EN CASO QUE LA
UNIDAD DE ACCIONAMIENTO
DE ROTACIÓN/EMPUJE
CAYERA, PODRÍA OCURRIR
LA MUERTE O LESIONES
GRAVES CUANDO EL
PERSONAL ESTÉ
TRABAJANDO BAJO O
CERCA DE ELLA.
16. Inspeccione si la llave de desconexión
automática opera libremente, si tiene
partes quebradas o faltantes, una
apropiada lubricación, tienen pérdidas
de lubricante o exceso de suciedad
acumulada. Repare o reemplace las
partes que sean necesarias. Asegúrese
que la llave está replegada.
17. Inspeccione si el portabarras tiene
fisuras o partes faltantes, opera
apropiadamente, tiene acumulación de
polvo o pérdidas de lubricante.
Asegúrese que la compuerta superior
esté cerrada y que la unidad está en
posición almacenada.
18. Inspeccione si el buje guía tiene
excesivo desgaste o acumulación de
polvo. Inspeccione también que los
ganchos de retención estén asegurados
e intactos. No opere la máquina sin que
ambos ganchos de retención estén
intactos y firmemente soldados a la
plataforma.
4-19
Mantención Preventiva Sección
MD6640 Perforadora Electrica Para Pozos De Tronadura
Puntos de Inspección DIARIA (cont.)
pmc_6640
MD6640
19. Revise si la columna de herramientas
tiene excesivo desgaste, acumulación
de polvo, barras dobladas y las uniones
apretadas. Los conos de la broca y sus
rodamientos deberían estar en buenas
condiciones. Gire manualmente los
conos para asegurarse que rotan
libremente.
20. Inspeccione si la caja de engranajes de
rotación tiene pérdidas de aceite, líneas
dañadas, acumulación de polvo y otros
daños o partes faltantes. Revise el nivel
de lubricante de la caja de engranajes.
Rellene al nivel recomendado con un
aceite aprobado. Revise si las
admisiones de ventilación del motor de
rotación tienen hojas, papeles, trapos,
etc., bloqueando el flujo de aire.
21. Inspeccione si la unidad de
accionamiento de rotación tiene
desgaste excesivo o acumulación de
polvo. Inspeccione el apropiado ajuste
de los rodillos guías o si tienen mucho
desgaste. Revise si hay pernos sueltos
o faltantes o miembros estructurales
agrietados o torcidos.
22. Inspeccione si la unidad de empuje tiene
desgaste excesivo o acumulación de
polvo. Inspeccione si los piñones de la
cremallera están gastados, bien
lubricados y con los pernos de retención
bien apretados. Inspeccione el
apropiado ajuste de los rodillos guía y si
tienen excesivo desgaste.
4-20
Mantención Preventiva Sección
MD6640 Perforadora Electrica Para Pozos De Tronadura
Puntos de Inspección DIARIA (cont.)
pmc_6640
MD6640
23. Inspeccione si la caja de engranajes de
empuje tiene pérdidas de aceite o
acumulación de polvo y otros daños o
piezas faltantes. Revise el nivel de
lubricante de la caja. Rellene al nivel
recomendado con un lubricante de
engranajes aprobado. Revise las
admisiones de ventilación del motor de
empuje por si hay hojas, papeles, trapos,
etc., bloqueando el flujo de aire.
24. Revise la debida operación del freno de
levante.
25. Revise si el deflector de polvo o
partículas, tiene piezas sueltas o
faltantes, desgaste excesivo o
acumulación de polvo. El deflector
debería estar sellado firmemente
alrededor de la barra de perforación.
26. Si la máquina está equipada con
sistema de supresión de incendios,
realice toda revisión de inspección
aplicable o las inspecciones descritas
en el manual del fabricante.
27. Comprobar el color del desecante del
filtro del suministro de aire del suministro
del colector de polvo a través del mirador.
Si es rosado, cambiar el desecante.
28. Revise el colector de polvo que la
manguera no tiene ninguÌn agujero, los
rasgones, o los rasgones.
4-21
Mantención Preventiva Sección
MD6640 Perforadora Electrica Para Pozos De Tronadura
Puntos de Inspección DIARIA (cont.)
pmc_6640
MD6640
INSPECCIONES DESPUÉS
DELARRANQUE INICIAL
29. Revise todos los frenos por su
apropiado accionamiento y liberación.
30. Escuche si hay evidencias de ruidos
inusuales en la caja de engranajes.
31. Revise todos los rodamientos por si
nota ruidos inusuales o excesivo calor.
32. Al final de cualquier ciclo perforador,
apagar el sistema soplador del colector
de polvo, y pulsar los elementos del
filtro.
33. Durante operación, observar la
desembocadura del colector de polvo
por polvo. Si polvo es aparente,
inspeccionar y reemplazar los
elementos de filtro del colector de polvo.
4-22
Mantención Preventiva Sección
MD6640 Perforadora Electrica Para Pozos De Tronadura
PAUTAS DE INSPECCIÓN SEMANAL.
pmc_6640
MD6640
1. Revise si hay pasadores y retenes de
pasador de la cadena de orugas
faltantes o gastados.
2. Revise si hay zapatas de orugas
quebradas o gastadas.
3. Revise si los tambores y rodillos tienen
fisuras o desgaste y su lubricación.
4. Revise si hay fisuras en las estructuras
de oruga.
5. Revise si hay excesiva acumulación de
suciedades.
6. Revise la debida tensión de las cadenas
(de 1” a 3” de pandeo entre el extremo
de la guía superior y el tambor de
transmisión o rueda tensora).
7. Revise si el tambor de transmisión tiene
fisuras o desgaste.
8. Revise el nivel de aceite de las cajas de
engranajes planetarios de propulsión.
PRECAUCIÓN: CUÍDESE
CUANDO QUITE LOS
TAPONES, ESPECIALMENTE
SI LA UNIDAD ESTÁ
CALIENTE. SE CREA PRESIÓN
EN LA CAJA DE ENGRANAJES
Y CUANDO SE SACA EL
ÚLTIMO HILO DEL TAPÓN,
ÉSTE PUEDE SALTAR CON
ALGUNA FUERZA.
4-23
Mantención Preventiva Sección
MD6640 Perforadora Electrica Para Pozos De Tronadura
Pautas de Inspección SEMANAL. (cont.)
pmc_6640
MD6640
9. Revise la caja de engranajes de
propulsión por si hay fugas en el motor
hidráulico y las líneas hidráulicas.
10. Revise si los pernos del bloque de
rodamientos del eje trasero están
apretados.
11. Revise si el eje ecualizador frontal tiene
desgastes o fisuras.
12. Revise el desgaste y la lubricación de
los pasadores del eje ecualizador.
13. Revise si hay desgastes o daños en las
cortinas contra polvo.Asegúrese que no
estén congeladas al piso.
14. Revise que los brazos de elevación de
la cortina no estén gastados o dañados
y su lubricación.
15. Revise que los cilindros de elevación de
la cortina no estén gastados o dañados
y sin fugas.
16. Revise que los deflectores de polvo no
estén gastados o dañados.
17. Revise visualmente la condición del
cable eléctrico de transmisión.
18. Revise que el portacable no tenga
daños, su desgaste y lubricación.
Lubrique manualmente los dos puntos
de los rodamientos del eje del tambor.
19. Revise la libre operación de los
controles del portacable y si hay fugas
hidráulicas.
20. Revise si las cadenas de transmisión
del portacable tienen desgaste o daños,
su lubricación y ajustes.
4-24
Mantención Preventiva Sección
MD6640 Perforadora Electrica Para Pozos De Tronadura
Pautas de Inspección SEMANAL. (cont.)
pmc_6640
MD6640
21. Revise si las estructuras de las patas
de nivelación tienen fisuras.
22. Revise si las zapatas de las patas de
nivelación tienen quebraduras.
Límpielas de suciedad o rocas.
23. Revise que en las zapatas no hayan
pasadores o retenes de pasador
faltantes o desgastados.
24. Revise la apropiada lubricación de las
patas de elevación.
25. Revise si hay fugas en las patas de
nivelación.
26. Revise si hay fisuras en la estructura
principal.
27. Revise la apropiada operación de la
escalera de acceso.
28. Revise el entorno de la sala de
máquinas y de la cabina del operador
por si tienen daños o fisuras.
29. Revise que todos los sopladores de
ventilación y los radiadores no tengan
obstrucciones.
30. Revise si los ductos y mangueras de la
unidad colectora de polvo tipo seco, no
tengan fugas.
31. Lubrique los rodamientos del eje de
transmisión de la unidad colectora de
polvo tipo seco.
32. Revise que el tanque de agua esté lleno.
4-25
Mantención Preventiva Sección
MD6640 Perforadora Electrica Para Pozos De Tronadura
Pautas de Inspección SEMANAL. (cont.)
pmc_6640
MD6640
33. Revise la condición de los tirantes del
mástil y los pasadores de los tirantes.
34. Revise si los cilindros de cierre y las
líneas de los tirantes del mástil tienen
fugas.
35. Revise que los pasadores y los retenes
de los pasadores de los cilindros de
levante del mástil estén en su lugar.
36. Revise si la estructura del mástil tiene
desgastes, daños o quebraduras.
37. Revise el desgaste, daños y lubricación
de los bastidores del mástil.
38. Revise la escalera del mástil, las
protecciones de seguridad y las
plataformas por si tienen fisuras o
pernos faltantes.
39. Revise la condición del cable del winche.
40. Revise la condición de las poleas de la
punta del mástil.
41. Revise la condición de la porción
superior de los portabarras.
42. Revise la condición de la tubería de aire
del mástil, la manguera principal y las
líneas de lubricación. Revise
visualmente la condición de las líneas
eléctricas.
4-26
Mantención Preventiva Sección
MD6640 Perforadora Electrica Para Pozos De Tronadura
Pautas de Inspección SEMANAL. (cont.)
pmc_6640
MD6640
INSPECCIONES A BORDO.
43. Revise el nivel de aceite de la caja de
engranajes de la bomba de
accionamiento. Agregue aceite si se
necesita.
44. Revise el anclaje del pasador del cilindro
de levante del mástil y los pasadores de
retención.
45. En la plataforma de perforación, revise
el desgaste del buje guía.
46. Revise el desgaste de las llaves de
herramienta, su lubricación y fugas de
aceite.
47. Revise si la porción inferior de los
portabarras tienen desgaste o daños.
48. Revise que las uñas de los bolsillos de
los portabarras trabajen libremente.
49. Revise que las palancas de los
portabarras trabajen libremente.
50. Lubrique los brazos inferiores del
portabarras. Revise los cilindros.
51. Revise el desgaste del amortiguador y
el apriete de los pernos del acoplamiento
giratorio.
52. Revise el nivel de aceite de la caja de
engranajes de la unidad de rotación.
Agregue aceite si es necesario.
53. Revise si la caja de engranajes y la
estructura tienen fisuras o fugas de
aceite.
4-27
Mantención Preventiva Sección
MD6640 Perforadora Electrica Para Pozos De Tronadura
Pautas de Inspección SEMANAL. (cont.)
pmc_6640
MD6640
54. Revise el apropiado ajuste de los rodillos
guía.
55. Revise si la caja de engranajes de
empuje tiene fisuras o fugas de aceite.
56. Revise el nivel de aceite de la caja de
engranajes de empuje. Agregue aceite
si es necesario.
57. Revise la correcta operación del freno
de levante de la caja de engranajes de
empuje.
58. En la sala de maquinas, revise el nivel
del tanque de aceite hidráulico.Agregue
aceite si es necesario.
59. Revise los filtros de aceite. Cámbielos
si es necesario.
60. Revise la tensión de todas las correas
de transmisión.
61. Revise el nivel de aceite del separador
del compresor de tornillos. Agregue
aceite si es necesario.
62. Revise todas las tuberías hidráulicas, de
aire y de lubricación, por si presentan
fugas.
63. Compruebe elementos del filtro del
colector. Reemplace según se necesite.
64. Inspeccionar las manguera de succión
del colector de polvo por obstrucciones.
Inspeccione junturas de la manguera por
integridad.
4-28
Mantención Preventiva Sección
MD6640 Perforadora Electrica Para Pozos De Tronadura
PAUTAS DE INSPECCIÓN MENSUAL.
pmc_6640
MD6640
1. Revise el ajuste de las cadenas de
orugas y ajústelas si es necesario.
2. Posicione la máquina de forma tal que
los rodillos de la oruga y los tambores
de transmisión puedan ser revisados por
un excesivo movimiento, el cual indicaría
desgaste de los bujes.
3. Tome muestras de aceite de la caja de
engranaje de propulsión, para análisis
de aceite.
PRECAUCIÓN: CUÍDESE
CUANDO QUITE LOS
TAPONES, ESPECIALMENTE
SI LA UNIDAD ESTÁ
CALIENTE. SE CREA PRESIÓN
EN LA CAJA DE ENGRANAJES
Y CUANDO SE SACA EL
ÚLTIMO HILO DEL TAPÓN,
ÉSTE PUEDE SALTAR CON
ALGUNA FUERZA.
4. Quite la tapa de inspección de la caja
de engranajes de rotación e inspeccione
los engranajes.
5. Tome muestras de aceite de la caja de
engranaje de rotación, para análisis de
aceite.
6. Revise el ajuste de los rodamientos del
eje de transmisión de la caja de
engranajes de rotación y ajuste si es
necesario.
7. Quite la tapa de inspección de la caja
de engranajes de empuje e inspeccione
los engranajes.
8. Tome muestras de aceite de la caja de
engranaje de empuje, para análisis de
aceite.
4-29
Mantención Preventiva Sección
MD6640 Perforadora Electrica Para Pozos De Tronadura
Pauas De Inspeccion MENSUAL. (cont.)
pmc_6640
MD6640
9. Revise el sello de aire rotatorio y
reemplácelo si es necesario.
10. Tome muestras de aceite hidráulico del
tanque, para análisis de aceite.
11. Revise, limpie o reemplace todos los
filtros de aire.
12. Revise, limpie o reemplace todos los
filtros de aceite.
13. Déle una estrecha mirada a todas las
unidades estructurales, incluyendo la
estructura de orugas, ejes, estructura
principal y mástil. Revise si presentan
fisuras, manifestaciones de fatiga o
pandeo.
14. Preste atención de cualquier deficiencia
encontrada durante inspecciones
anteriores las cuales no requirieron de
acción inmediata.
4-30
Mantención Preventiva Sección
MD6640 Perforadora Electrica Para Pozos De Tronadura
PAUTAS DE INSPECCIÓN SEMESTRAL.
pmc_6640
MD6640
1. Posicione la máquina de forma tal que
un tambor de transmisión y los rodillos
inferiores puedan ser removidos para
una revisión de los bujes.
2. Drene la caja de engranajes de
propulsión y llénela con aceite nuevo.
PRECAUCIÓN: CUÍDESE
CUANDO QUITE LOS
TAPONES, ESPECIALMENTE
SI LA UNIDAD ESTÁ
CALIENTE. SE CREA PRESIÓN
EN LA CAJA DE ENGRANAJES
Y CUANDO SE SACA EL
ÚLTIMO HILO DEL TAPÓN,
ÉSTE PUEDE SALTAR CON
ALGUNA FUERZA.
3. Cuando la caja de engranajes sea
drenada, inspeccione los engranajes,
piñones, rodamientos y sellos.
4. Drene la caja de engranajes de la bomba
de accionamiento y llénela con aceite
nuevo.
5. Drene la caja de engranajes de rotación
y llénela con aceite nuevo.
6. Cuando la caja de engranajes sea
drenada, saque el motor e inspeccione
los engranajes, piñones, rodamientos y
sellos.
7. Drene la caja de engranajes de empuje
y llénela con aceite nuevo.
8. Cuando la caja de engranajes sea
drenada, inspeccione los engranajes,
piñones, rodamientos y sellos.
4-31
Mantención Preventiva Sección
MD6640 Perforadora Electrica Para Pozos De Tronadura
Pautas de Inspección SEMESTRAL. (cont.)
pmc_6640
MD6640
9. Reacondicione con lubricante los
rodamientos de las poleas del winche
de la punta del mástil.
10. Drene el winche auxiliar y llénelo con
aceite nuevo.
11. Drene el depósito de aceite hidráulico y
llénelo con aceite nuevo.
12. Cambie todos los filtros de aceite
hidráulico.
13. Corrija cualquiera deficiencia
encontrada durante inspecciones
anteriores las cuales no requirieron de
una acción inmediata.
14. Limpie todo el entorno de la máquina y
retoque la pintura en cualquier parte de
la perforadora donde falte la pintura y
pueda ocurrir oxidación.
4-32
Mantención Preventiva Sección
MD6640 Perforadora Electrica Para Pozos De Tronadura
5-1
Procedimientos de Servicio Sección
MD6640 Perforadora Electrica Para Pozos De Tronadura
Sección 5
Procedimientos de Servicio
Recurra siempre a la información de seguridad de la Sección 1 de éste
manual antes de iniciar todo proceso de mantención en esta máquina.
Tabla de Contenidos
CADENAS DE ORUGAS ..............................................................................................................5
NIVEL DE ACEITE DE LOS MANDOS FINALES – COMPROBAR ...............................................5
ACEITE DE LOS MANDOS FINALES - CAMBIAR ........................................................................6
AJUSTE DE LACADENA –AJUSTAR...........................................................................................8
MEDICIÓN DE LA TENSIÓN DE CADENA ...................................................................................8
AJUSTE DE LA TENSIÓN DE CADENA ...............................................................................10
APRIETE DE LA CADENA .......................................................................................................... 11
AFLOJAMIENTO DE LA CADENA............................................................................................... 12
AJUSTE DE LA CADENA - INSPECCIONAR .............................................................................. 13
TREN DE RODAJE – COMPROBAR .........................................................................................14
ESPECIFICACIONES DE LUBRICANTE ..................................................................15
Especificaciónes De Lubricación De Caja De Engranajes Planetarios .......................................15
Intervalos De Cambio De Aceite ................................................................................................15
ESTRUCTURAS DE ORUGA .....................................................................................................16
REPARACIÓN .................................................................................................................16
Remoción De La Estructura De Orugas/Entibación ....................................................................17
EJES ........................................................................................................................................... 18
Eje De Igualación - Detalles .......................................................................................................18
REPARACIÓN .................................................................................................................19
ESTRUCTURA PRINCIPAL......................................................................................................... 21
Estructura Principal - Detalles....................................................................................................21
REPARACIÓN .................................................................................................................22
COMPUERTA PARA VER LA BROCA...................................................................................22
Compuerta Para Ver La Broca - Detalles....................................................................................22
ESTRUCTURA “A” DEL MÁSTIL ........................................................................................... 23
REPARACIÓN .................................................................................................................23
GATOS DE NIVELACIÓN ...................................................................................................... 23
Gatos De Nivelación - Detalles...................................................................................................24
REPARACIÓN .................................................................................................................25
SALA DE MÁQUINAS ............................................................................................................ 28
Sala De Máquinas – Vista En Detalle.........................................................................................28
REPARACIÓN ...........................................................................................................................29
VENTILADOR Y FILTRO PARAVENTILACIÓN DE LA SALA ................................................30
Sala De Máquinas – Sistema De Ventilación .............................................................................30
5-2
Procedimientos de Servicio Sección
MD6640 Perforadora Electrica Para Pozos De Tronadura
PASILLOS Y ESCALERAS ................................................................................................... 31
Escalera Abatible De Acceso - Detalles ....................................................................................31
CABINA DE OPERADORES.................................................................................................32
Localización/Montaje De Cabina Del Operador ...........................................................................32
ASIENTO DEL OPERADOR .................................................................................................33
Asiento Del Operador - Ajustes ..................................................................................................33
CONTROLES DEL OPERADOR .........................................................................................34
Controles del Operador ..............................................................................................................34
UNIDAD DEAIREACONDICIONADO CON CALENTADOR ................................................35
Unidad de Calefaccion/Aire Acondicionado de la Cabina del Operador.......................................35
ACCIONAMIENTO DE LA BOMBA HIDRÁULICA ..................................................................36
Accionamiento De La Bomba Hidráulica ....................................................................................36
Caja De Engranajes De Accionamiento De La Bomba Hidráulica –Detalles ...............................37
PORTACABLE ......................................................................................................................40
TENSADO DE CADEMNA ....................................................................................................42
AJUSTES HIDRÁULICOS ............................................................................................... 43
Localizacion de Ajustes Hidraulicos ...........................................................................................44
INSTRUCCIONES DELARRANQUE DEL INICIO DEL MANDO ..................................... 44
LUBRICACIÓN ................................................................................................................ 46
REPARACIÓN .................................................................................................................46
ESTRUCTURA DEL MÁSTIL .......................................................................................................47
Vista General Del Mástil.............................................................................................................47
REPARACIÓN ....................................................................................................................... 48
ESLINGAS DE SEGURIDAD DEL MÁSTIL ........................................................................... 48
Eslinga Superior De Seguridad...................................................................................................48
REPARACIÓN .................................................................................................................49
Eslinga Inferior De Seguridad (Opcional) ....................................................................................49
CAJA DE ENGRANAJES DE ROTACIÓN .............................................................................50
Maquinaria De Rotación/Caja De Engranajes .............................................................................50
AJUSTE DEL EJE DE TRANSMISIÓN ............................................................................51
Ajustes Del Eje De Transmisión .................................................................................................51
Eje Intermedio De La Maquinaria De Rotación............................................................................52
REPARACIÓN .................................................................................................................53
SAQUE EL RETÉN DEL RODAMIENTO SUPERIOR...............................................53
Eje De Transmisión De La Maquinaria De Rotación – Detalles ...................................................56
MOTOR DE ROTACIÓN .......................................................................................................59
Motor De Accionamiento De Rotación – Detalles .......................................................................59
ACOPLAMIENTO GIRATORIO DEAMORTIGUACIÓN ......................................................... 61
Acoplamiento Giratorio De
Amortiguación - Detalles ............................................................................................................61
REPARACIÓN .................................................................................................................62
ESTRUCTURAGUÍADE ROTACIÓN/EMPUJE .................................................................... 63
Estructura Guía De Rotación/Empuje - Detalles .........................................................................63
AJUSTE DE LOS RODILLOS GUÍA ......................................................................................64
Raca de Piñon y Guia Superior de Rodillo - Detalles ..................................................................64
Guia Inferior de Rodillos – Detalles ............................................................................................65
REPARACIÓN .................................................................................................................66
Alineación De Acoplamientos.....................................................................................................68
CAJA DE ENGRANAJES DE EMPUJE ................................................................................. 70
5-3
Procedimientos de Servicio Sección
MD6640 Perforadora Electrica Para Pozos De Tronadura
Maquinaria De Empuje – Vista General ......................................................................................70
REPARACIÓN .................................................................................................................71
Caja De Engranajes Y Base De La Maquinaria De Empuje.........................................................74
Eje Primero Intermedio Y De Carga De La Maquinaria De Empuje .............................................72
Segundo Eje Intermedio De La Maquinaria De Empuje ...............................................................73
Eje De Entrada Maquinaria De Empuje.......................................................................................75
FRENO DE LEVANTE...........................................................................................................78
INSPECCIÓN ..................................................................................................................78
Ajustes Del Desgaste Del Freno ................................................................................................78
Freno De Levante – Detalles ......................................................................................................79
AJUSTE DEL DESGASTE DEL FRENO .........................................................................80
REEMPLAZO DE LOS DISCOS DE FRICCIÓN............................................................. 80
DESMONTAJE DEL CUERPO DEL MAGNETO Y LAARMADURA ................................81
MONTAJE DEL CUERPO DEL MAGNETO Y LAARMADURA ........................................ 81
PORTABARRAS ................................................................................................................... 82
Portabarras Lado Derecho - Detalles..........................................................................................82
Portabarras Lado Izquierdo - Detalles ........................................................................................83
REPARACIÓN .................................................................................................................84
Equipos Variables Del Portabarras ............................................................................................85
LLAVE DE HERRAMIENTAS .................................................................................................86
Llave De Herramientas - Detalles ...............................................................................................86
REPARACIÓN .................................................................................................................87
LLAVE DE DESENROSCAR ................................................................................................88
REPARACIÓN .................................................................................................................88
WINCHEAUXILIAR ................................................................................................................ 90
TIRANTES DEL MÁSTIL........................................................................................................91
Tirantes Del Mástil - Detalles .....................................................................................................91
REPARACIÓN .................................................................................................................92
AJUSTES ........................................................................................................................92
SISTEMA HIDRÁULICO...............................................................................................................93
OPERACIÓN DEL SISTEMA.................................................................................................93
Componentes Hidráulicos – Vista General .................................................................................93
SISTEMA HIDRÁULICO DEL CIRCUITO DE LOS CILINDROS............................................ 94
SISTEMA HIDRÁULICO DEL CIRCUITO DE PROPULSIÓN ................................................95
MANTENCIÓN GENERAL .....................................................................................................95
LIMPIEZA DEL SISTEMA HIDRÁULICO ........................................................................... 95
REQUERIMIENTOS DE ACEITE .............................................................................. 96
CAMBIO DE ACEITE Y FILTROS .............................................................................. 96
PAUTAS DE MANTENCIÓN SEMANAL .....................................................................97
REPARACIONES DEL TANQUE DE ACEITE ....................................................................... 97
PROCEDIMIENTO DE ALIVIO DE PRESIÓN DE LA VÁLVULA DE EQUILIBRIO (O DE
COMPENSACIÓN) DE LOS GATOS DE NIVELACIÓN ........................................................97
GATOS TRASEROS .......................................................................................................98
GATOS DELANTEROS .................................................................................................. 98
INSPECCIÓNANTES DELARRANQUE ...............................................................................99
PRUEBASALSISTEMA HIDRÁULICO ................................................................................ 101
REVISIÓN DE LA PRESIÓN DE CARGA DE LA BOMBA DE PROPULSIÓN..................... 101
REVISIÓN DE LA PRESIÓN DE CONTROL ................................................................ 102
5-4
Procedimientos de Servicio Sección
MD6640 Perforadora Electrica Para Pozos De Tronadura
REVISIÓN DE LAVÁLVULADE HABILITACIÓN DE PROPULSIÓN Y DE SELECCIÓN DE
VELOCIDAD BAJA .............................................................................................................. 102
REVISIÓN DEL CILINDRO DE LOS GATOS EN MODALIDAD MANUAL ........................... 103
REVISIÓN DEL CONTROL DE FLUJO............................................................................... 104
PRUEBA DE DERIVACIÓN DE CILINDROS DE LOS GATOS ........................................... 105
REVISIÓN DE PRESIÓN DE ALIVIO DEL FRENO ............................................................. 106
REVISIÓNALIVIO DE EMERGENCIA DE FRENO DE PROPULSIÓN ............................... 106
REVISIÓN DE LA PRESIÓN DE ALIVIO PRINCIPAL DE LABOMBA PROPULSIÓN ......... 107
REVISIÓN DE LA FUNCIÓN DE LAS ORUGAS ................................................................. 108
REVISIÓN DE LA COMPUERTA PARA VER LA BROCA .................................................... 108
REVISIÓN DE LA ESCALERA DE ACCESO ......................................................................108
REVISIÓN DE LAVÁLVULADE FLUJO PRINCIPAL ........................................................... 108
REVISIÓN DE LAS LLAVES DE DESENROSCAR Y DE HERRAMIENTAS ......................109
CILINDROS DE LA CORTINA CONTRA POLVO ................................................................ 109
DESLIZADERA DEL SELLO DE POLVO ............................................................................ 109
CIERRE DEL MÁSTIL ......................................................................................................... 109
CILINDROS DE CIERRE TIRANTES DEL MÁSTIL ............................................................ 109
CILINDROS DE CIERRE DE ESTRUCTURA “A” ............................................................... 110
REVISIÓN PRESIÓN CONSTANTE DE CIERRE DEL MÁSTIL ......................................... 110
REVISIÓN PRESIÓN CONSTANTE TIRANTES DEL MÁSTIL ............................................ 110
REVISIÓN PRESIÓN CONSTANTE ESTRUCTURA “A” .................................................... 111
SUBIR/BAJAR MÁSTIL ........................................................................................................ 111
WINCHEAUXILIAR .............................................................................................................. 112
REVISIÓN PRESIÓNACCIONAMIENTO LUBRICACIÓN DE CENTRAL HIDRÁULICA...... 113
CHEQUEO DE FUNCIÓN DEL GUARDA DE LA VENTANA - OPCIÓN ............................. 113
REVISIÓN DE LOS GATOS EN LA MODALIDAD NIVELACIÓNAUTOMÁTICA .................. 114
REVISIÓN DE LA POSICIÓN DE PORTABARRAS ............................................................ 115
AJUSTES DE ALIVIO DE PUERTO DE CIERRE DE PORTABARRAS Y CILINDRO DE LA
COMPUERTA...................................................................................................................... 115
REVISIÓN DE LUBRICADOR HILOS DE LA BARRA ......................................................... 116
REVISIÓN DE LA FUNCIÓN DEL POSICIONADOR DE BARRAS ..................................... 116
REVISIÓN DE FUNCIÓN GUÍA CENTRAL .......................................................................... 117
REVISIÓN DE LA LLAVEAUTOMÁTICA DE DESENROSCAR .......................................... 118
CONTROL DE POLVO ............................................................................................................. 118
MANTENCIÓN GENERAL ................................................................................................... 118
PLATAFORMA DE PERFORACIÓN Y CORTINAS DE POLVO ......................................... 118
INYECCIÓN DE AGUA- OPCIÓN ....................................................................................... 118
OPERACIÓN ................................................................................................................. 119
LLENADO DEL TANQUE DE AGUA .............................................................................. 119
ESQUEMÁTICOS - HIDRÁULICO SITUADAS EN EL EXTREMO DE ESTE MANUAL
5-5
Procedimientos de Servicio Sección
MD6640 Perforadora Electrica Para Pozos De Tronadura
SECCIÓN 5
Mantención Mayor
CADENAS DE ORUGAS
Información sobre cadenas
Los sistemas de ajuste de cadenas utilizan aceite o grasa a alta presión a fin de mantener las
cadenas con la tensión apropiada. La grasa o aceite a alta presión proveniente de la válvula de
alivio puede penetrar la piel causando lesiones o la muerte. No se acerque a la válvula de alivio
para ver si tiene fugas de aceite o grasa. Observe el cilindro de ajuste de cadenas o la cadena para
ver si la misma está suelta. Los pasadores y bujes en una unión de pasador de cadena seca
pueden tornarse muy calientes. Es posible que se quemen los dedos si hay más que un breve
contacto con estos componentes.
NIVEL DE ACEITE DE LOS MANDOS FINALES – COMPROBAR
PRECAUCION: El aceite caliente y los componentes calientes pueden causar lesiones
personales. No permita contacto del aceite o de los componentes
calientes con la piel.
1. Coloque uno de los mandos finales de modo que el tapón de drenaje de aceite (2) esté en la
parte inferior.
5-6
Procedimientos de Servicio Sección
MD6640 Perforadora Electrica Para Pozos De Tronadura
Nota: Consulte el Manual de Operación y Mantenimiento, “Información general sobre peligros”
para obtener información sobre la contención de derrames de fluidos.
2. Quite el tapón del nivel de aceite (1).
3. Compruebe el nivel de aceite. El aceite debe estar cerca del fondo de la abertura del tapón de
nivel.
4. Agregue aceite por la abertura del tapón de nivel si es necesario.
Nota: Si el llenado es lento, es posible que el orificio de llenado esté obstruido por el engranaje
planetario. Haga girar el mando final para apartar el engranaje planetario del orificio de
llenado.
Nota: Si se llena excesivamente el mando final, los sellos en el motor de desplazamiento permitirán
la entrada de agua o aceite hidráulico en el mando final. El mando final puede contaminarse.
5. Limpie el tapón del nivel de aceite (1). Inspeccione el sello anular. Reemplace el sello anular si
está desgastado o dañado.
6. Instale el tapón del nivel de aceite (1).
7. Repita el mismo procedimiento para el otro mando final.
ACEITE DE LOS MANDOS FINALES - CAMBIAR
PRECAUCION: El aceite caliente y los componentes calientes pueden causar lesiones
personales. No permita contacto del aceite o de los componentes
calientes con la piel.
DRAIN
1
2
5-7
Procedimientos de Servicio Sección
MD6640 Perforadora Electrica Para Pozos De Tronadura
1. Coloque uno de los mandos finales de modo que el tapón de drenaje de aceite (2) esté en la
parte inferior.
2. Quite el tapón de drenaje (2) y el tapón de nivel (1). Drene el aceite en un recipiente apropiado.
3. Limpie los tapones e inspeccione los sellos anulares. Si se encuentran desgastados o dañados,
reemplace el tapón de drenaje, el tapón de nivel o los sellos anulares.
4. Instale el tapón de drenaje (2).
5. Llene el mando final hasta la parte inferior de la abertura en el tapón de nivel (1). Consulte el
Manual de Operación y Mantenimiento, “Viscosidades de lubricantes” y el Manual de Operación
y Mantenimiento, “capacidades de llenado”.
Nota: Si el llenado es lento, es posible que el orificio de llenado esté obstruido por el engranaje
planetario. Haga girar el mando final para apartar el engranaje planetario del orificio de
llenado.
Nota: Si se llena excesivamente el mando final, los sellos en el motor de desplazamiento permitirán
la entrada de agua o aceite hidráulico en el mando final. El mando final puede contaminarse.
6. Instale el tapón de nivel (1).
7. Realice los pasos 1 a 6 en el otro mando final. Use un recipiente diferente para el aceite para
mantener separadas las muestras de aceite de los mandos finales.
8. Saque todo el aceite que se ha derramado en las superficies.
9. Arranque el motor y haga funcionar los mandos finales en varios ciclos completos.
10. Pare el motor. Compruebe el nivel de aceite.
11. Revise el aceite drenado en busca de virutas o partículas de metal. Si hay partículas o virutas,
consulte a su distribuidor Caterpillar.
12. Deseche el material drenado de forma adecuada. Cumpla con las reglamentaciones locales
para el desecho de los materiales.
5-8
Procedimientos de Servicio Sección
MD6640 Perforadora Electrica Para Pozos De Tronadura
AJUSTE DE LA CADENA –AJUSTAR
PRECAUCION: La grasa a presión que sale de la válvula de alivio puede causar lesiones
graves o fatales. La grasa a presión que sale de la válvula de alivio
puede penetrar la piel y causar lesiones graves o fatales. No observe la
válvula de alivio para ver si escapa grasa. Observe la cadena o el cilindro
ajustador de la cadena para ver si se ha aflojado la cadena. Afloje la
válvula de alivio una vuelta solamente. Si la cadena no se afloja, cierre la
válvula de alivio y consulte a su distribuidor Caterpillar.
ATENCION
Manteniendo el ajuste correcto de las cadenas, se prolonga la duración de los componentes de
mando y de las cadenas.
Nota: Es necesario ajustar la tensión de cadena de acuerdo con las condiciones de operación
actuales. Si el suelo es pesado, utilice la mayor comba possible en las cadenas.
MEDICIÓN DE LA TENSIÓN DE CADENA
1. Opere la máquina en la dirección de las ruedas locas.
5-9
Procedimientos de Servicio Sección
MD6640 Perforadora Electrica Para Pozos De Tronadura
2. Deténgase con un pasador de cadena directamente sobre el rodillo de soporte delantero.
Estacione la máquina y apague el motor.
3. Coloque una regla sobre las garras de la cadena, entre el rodillo de soporte delantero y la rueda
loca. La regla debe ser lo suficientemente larga como para llegar desde el rodillo de soporte
delantero hasta la rueda loca.
Nota: Si la máquina está equipada con tres rodillos de soporte, coloque una regla sobre las cadenas
entre los rodillos de soporte. La regla debe ser lo suficientemente larga como para llegar
de un rodillo de soporte a otro rodillo de soporte.
4. Mida la comba máxima de la cadena. La comba se mide desde el punto más alto de la garra de
la cadena hasta la parte inferior de la regla. Una cadena que esté ajustada correctamente
tendrá una comba de 40,0 a 55,0 mm (1,57 a 2,17 pulg).
5. Si la cadena está demasiado tensa o demasiado floja, ajuste la tensión de cadena según el
procedimiento apropiado que se indica a continuación.
5-10
Procedimientos de Servicio Sección
MD6640 Perforadora Electrica Para Pozos De Tronadura
AJUSTE DE LA TENSIÓN DE CADENA
Ejemplo típico
El tensor de la cadena está ubicado en el bastidor de la cadena.
5-11
Procedimientos de Servicio Sección
MD6640 Perforadora Electrica Para Pozos De Tronadura
APRIETE DE LA CADENA
Limpie la conexión de engrase antes de añadir grasa.
1.Añada grasa a través de la conexión de engrase (1) hasta alcanzar la tensión de cadena correcta.
2. Opere la máquina hacia atrás y hacia adelante para estabilizar la presión.
3. Revise la comba. Ajuste la cadena, según sea necesario.
5-12
Procedimientos de Servicio Sección
MD6640 Perforadora Electrica Para Pozos De Tronadura
AFLOJAMIENTO DE LA CADENA
1. Afloje cuidadosamente la válvula de alivio (2) hasta que la cadena comience a aflojarse. No
afloje la cadena más de una vuelta.
2.Apriete la válvula de alivio (2) a un par de 34 ± 5 N·m (25 ± 4 lb-pie) cuando se logre la tensión de
cadena deseada.
3. Opere la máquina hacia atrás y hacia adelante para estabilizar la presión.
4. Revise la comba. Ajuste la cadena, según sea necesario.
5-13
Procedimientos de Servicio Sección
MD6640 Perforadora Electrica Para Pozos De Tronadura
AJUSTE DE LA CADENA - INSPECCIONAR
Compruebe el ajuste de las cadenas. Observe la cadena para ver si tiene desgaste o acumulación
excesiva de tierra. Si parece que la cadena está demasiado tensa o demasiado floja, vea en el
Manual de Operación y Mantenimiento, “Ajuste de la cadena - Ajustar”.
5-14
Procedimientos de Servicio Sección
MD6640 Perforadora Electrica Para Pozos De Tronadura
TREN DE RODAJE – COMPROBAR
1. Inspeccione los rodillos superiores, los rodillos inferiores y las ruedas guía para ver si tienen
fugas.
2. Inspeccione la superficie de la cadena, de los rodillos superiores, los rodillos inferiores, las
ruedas guía, las zapatas de cadena y las ruedas motrices. Vea si tienen desgaste o pernos
de montaje flojos.
3. Preste atención para ver si oye ruidos anormales mientras se mueve lentamente en una area
amplia.
4. Si encuentra desgaste anormal, ruido o fugas, contacte a su distribuidor Caterpillar.
5-15
Procedimientos de Servicio Sección
MD6640 Perforadora Electrica Para Pozos De Tronadura
ESPECIFICACIONES DE LUBRICANTE
Especificaciónes De Lubricación De Caja De Engranajes Planetarios
1. Los aceites mostrados en la figura superior contienen aditivos tipo fosforosos de extrema
presión. Otros aceites de calidad y propiedades equivalentes se pueden usar con la condición
que contengan aditivos tipo fosforoso de extrema presión.
Intervalos De Cambio DeAceite
5-16
Procedimientos de Servicio Sección
MD6640 Perforadora Electrica Para Pozos De Tronadura
2. La contaminación depende de las condiciones de operación y la temperatura de operación.
Operando a temperaturas de 180º F o superiores para servicio continuo, va requerir cambios
de aceite mas frecuentes.
ESTRUCTURAS DE ORUGA
Inspeccione si las estructuras de oruga tienen fisuras o daños. Preste particular atención a los
puntos de fijación de los ejes y a la pestaña de la plancha inferior. Cualquiera fisura, desgaste o
daño debiera ser reparado inmediatamente.
REPARACIÓN
La reparación de las estructuras de oruga se puede realizar mientras éstas estén instaladas en la
perforadora o pueden ser desmontadas para facilitar su reparación.
Para desmontar las estructuras de oruga desde la máquina, proceda de la siguiente manera:
1. Desconecte todas las líneas hidráulicas y de lubricación conectadas a la estructura de oruga.
Asegúrese que todas las uniones estén limpias y todas las líneas y puertos queden tapadas.
2. Usando los gatos de nivelación de la máquina, levante la máquina lo suficiente para permitir
que sean instalados bloques de madera bajo las cadenas de oruga y queden extendidos de
6 a 8 pies desde la estructura de oruga. El material de bloqueo debería quedar intercalado
para facilitar el deslizamiento de la estructura de orugas fuera de la máquina.
3. Baje lentamente la máquina hasta que no quede peso alguno sobre el eje trasero o el eje de
igualación. Bloquee firmemente la máquina en esa posición.
4. Desde este punto, una o ambas estructuras de oruga pueden ser desmontadas desde la
máquina.
NOTA: Los pasos 5 hasta el 14 describen el procedimiento para desmontar y reinstalar una
estructura de oruga. Si ambas estructuras necesitan ser desmontadas, repita los pasos
5 hasta el 14 para la otra estructura de oruga.
5. Desmonte el retén del eje trasero y las platinas o el collarín de mordaza.
6. Saque la chaveta, el pasador de retención del pasador y el pasador del eje de igualación.
5-17
Procedimientos de Servicio Sección
MD6640 Perforadora Electrica Para Pozos De Tronadura
7. Usando aparejos y vehículo(s) apropiado(s), tire la estructura de oruga recto fuera de la
máquina. Arrástrela hasta una posición donde pueda ser reparada o manejada con
equipamiento de levante.
8. Repare la estructura de oruga y sus componentes según sea necesario.
9. Para reinstalar la estructura de oruga, primero posicione la oruga en línea con el eje trasero
y el de igualación.
10. Lubrique el eje trasero, el calibre del eje, el pasador y los calibres del eje de igualación.
11. Usando aparejos y vehículo(s) apropiado(s), tire la estructura de oruga recto hacia la máquina.
Proceda lentamente cuando fije la oruga al eje trasero. Asegúrese de que la oruga quede
recta cuando esté siendo tirada dentro del eje.
12. Cuando la oruga quede en posición, inserte el pasador del eje de igualación y los pasadores
de retención. Inserte la chaveta del pasador de retención.
13. Instale el retén del eje trasero o collarín de mordaza.
Remoción De La Estructura De Orugas/Entibación
5-18
Procedimientos de Servicio Sección
MD6640 Perforadora Electrica Para Pozos De Tronadura
14. Conecta las líneas hidráulicas y de lubricación.
15. Levante la máquina con los gatos de nivelación justo lo suficiente para quitar la entibación y
luego baje la máquina.
16. Propulsione la máquina para verificar la operación de los componentes de la oruga.
5-19
Procedimientos de Servicio Sección
MD6640 Perforadora Electrica Para Pozos De Tronadura
EJES
Las estructuras de orugas están fijadas a la máquina mediante dos ejes. El eje frontal (eje de
igualación) permite pivotar la parte frontal de las orugas, igualando la carga de la máquina entre las
dos orugas. Cada extremo del eje se fija con pasadores a las estructuras de oruga mientras la
parte central del eje se fija con pasadores a la parte inferior de la estructura principal de la perforadora.
El eje trasero es el eje pivote en el que cuando el frente de las orugas se mueven arriba y abajo
para igualar las cargas al propulsarse sobre terreno irregular, la parte trasera pivota sobre el eje
trasero. Este eje está sólidamente fijado a ambos lados de la estructura principal y no se mueve
durante la operación.
Inspeccione si los ejes y sus puntos de fijación tienen pernos o herrajes sueltos. Inspeccione si los
ejes tienen fisuras o daños. Repare o reemplace los ejes si están gastados o dañados. Inspeccione
los pasadores pivotantes y sus retenes por si están gastados o dañados y reemplácelos si es necesario.
Eje De Igualación - Detalles
5-20
Procedimientos de Servicio Sección
MD6640 Perforadora Electrica Para Pozos De Tronadura
REPARACIÓN
Normalmentelosejesnonecesitaránserreparadosdurantelavidadelamáquina.Sinembargo,accidentes
y desgastes anormales suelen ocurrir, lo que puede hacer necesario la reparación de los ejes.
Debido a la inaccesibilidad de los ejes, su remoción de la máquina será muy probablemente
necesaria.
Para desmontar los ejes desde la máquina:
1. Siguiendo el procedimiento enumerado bajo REPARACIÓN DE ESTRUCTURAS DE
ORUGA, desmonte una oruga desde la máquina. Posicione la oruga para permitir la remoción
de los ejes desde la máquina. Asegúrese que la máquina y la oruga opuesta queden
sólidamente bloqueadas.
2. Para desmontar el eje de igualación, primero desmonte el pasador faltante, luego bloquee
firmemente el eje para permitir la remoción del pasador pivotante.
3. Saque el pasador pivotante del eje. El bloque de rodamiento puede ser desmontado para
facilitar la remoción del pasador.
5-21
Procedimientos de Servicio Sección
MD6640 Perforadora Electrica Para Pozos De Tronadura
4. Retire el eje desde la parte inferior de la perforadora y repárelo o reemplácelo según sea
necesario.
5. Reinstale el eje, primero posicionándolo para permitir la instalación del bloque de rodamiento
y/o el pasador de pivote. Instale el bloque de rodamiento y/o el pasador de pivote.
6. Instale los pasadores de los extremos del eje de igualación y los pasadores de retención.
Instale la estructura de oruga sólo si fue reparado el eje de igualación.
7. Para desmontar el eje trasero, quite el retén del eje o collarín de mordaza faltante.
8. Bloquee firmemente el eje para permitir que éste pueda ser deslizado fuera de la estructura
de oruga.
9. Quite los pernos del bloque de rodamiento que fijan el eje a la estructura principal.
10. Deslice el eje desde la estructura de oruga y sáquelo desde la parte inferior de la perforadora.
11. Repare o reemplace el eje según sea necesario.
12. Posicione el eje para permitir deslizarlo dentro de la estructura de oruga.
13. Lubrique los calibres de rodamiento del eje en la estructura de oruga.
14. Deslice el eje dentro de la estructura de oruga.
15. Alinee el eje con la estructura principal.
16. Instale los bloques de rodamiento y los pernos para fijar el eje a la estructura principal.
17. Instale la oruga según se describe en REPARACIÓN DE ESTRUCTURAS DE ORUGA.
18. Levante levemente la máquina con los gatos de nivelación y quite la entibación remanente.
Baje la máquina hasta el suelo.
5-22
Procedimientos de Servicio Sección
MD6640 Perforadora Electrica Para Pozos De Tronadura
ESTRUCTURAPRINCIPAL
La estructura principal de la perforadora MD6640 consiste básicamente de dos vigas I unidas
entre sí con refuerzos transversales y cubierta en la parte superior con planchas de cubierta.
Inspeccione si la estructura principal de la perforadora tiene desgastes, daños o quebraduras.
Preste especial atención a las siguientes áreas críticas:
Estructura Principal - Detalles
1. Los refuerzos transversales los cuales amarran entre sí las bridas inferiores de las vigas I.
2. Los refuerzos transversales y las planchas de cubierta las cuales amarran entre sí las bridas
superiores de las vigas I.
3. Las áreas de las fijaciones del pasador de cierre del mástil.
4. Las áreas de las fijaciones de los gatos de nivelación.
5. Las áreas donde la estructura “A” del mástil se fija con pasadores a la estructura principal.
6. Las fijaciones de las orejas del cilindro de levante del mástil y el área inmediata alrededor de
dichas orejas en la estructura principal.
5-23
Procedimientos de Servicio Sección
MD6640 Perforadora Electrica Para Pozos De Tronadura
REPARACIÓN
Las quebraduras, desgaste o daños a las áreas críticas mencionadas anteriormente, requieren
reparación inmediata. La urgencia de reparación de otras áreas de la estructura principal está
dictada por el área en la cual debe hacerse la reparación y la severidad del daño. Los daños
menores pueden no requerir atención inmediata, pero todo daño a la estructura principal debería
ser reparada en la primera oportunidad disponible.
La reparación a la estructura principal se limita a reparaciones por sor soldadura. Siga los detalles
de los procedimientos recomendados en el APÉNDICE para completar las reparaciones con
soldadura. Si el daño es severo o aparecen circunstancias inusuales, contacte al Departamento
de Servicio de Caterpillar Global Mining por las recomendaciones específicas.
COMPUERTA PARA VER LA BROCA
La compuerta para ver la broca está montada en la estructura principal en línea con la barra de
perforación y la estación de operación. Cuando la cubierta de la compuerta es bajada, el operador
puede ver la broca cuando se comienza con un nuevo pozo.
Compuerta Para Ver La Broca - Detalles
La estructura debería ser revisada mensualmente por si tiene fisuras en las soldaduras. El cilindro
y las líneas hidráulicas se deben revisar a diario por si presentan filtraciones.
5-24
Procedimientos de Servicio Sección
MD6640 Perforadora Electrica Para Pozos De Tronadura
ESTRUCTURA “A” DEL MÁSTIL
La estructura “A” del mástil es una estructura soldada que se fija con pasadores al mástil y a la
estructura principal y ayuda a soportar al mástil cuando es bajado. Los pasadores de anclaje de la
pierna trasera están operados hidráulicamente.
La estructura debe revisarse mensualmente por si presenta fisuras en las soldaduras, pandeos
estructurales o desgastes. Los cilindros y las líneas hidráulicas se deben revisar a diario.
REPARACIÓN
Cualquiera fisura, desgaste o daño a la estructura “A” debe repararse inmediatamente. Las
reparaciones a la estructura “A” están limitadas a reparaciones por soldadura. Contacte al
representante local de Caterpillar Global Mining para obtener soluciones específicas de reparación
por soldadura.
GATOS DE NIVELACIÓN
Inspeccione si los gatos de nivelación presentan daños estructurales, una apropiada película de
lubricación y apropiada operación. Verifique que todos los pernos estén apretados y que todos los
pasadores estén en su lugar.
Revise si las zapatas de los gatos tienen fisuras o daños. Límpielas de exceso de material. Revise
si los puntales de las patas tienen desgastes o daños y verifique que estén cubiertos con lubricante.
5-25
Procedimientos de Servicio Sección
MD6640 Perforadora Electrica Para Pozos De Tronadura
Gatos De Nivelación - Detalles
La apropiada operación de los gatos impone que no se asienten cuando el peso de la máquina
descansa sobre ellos ni cuando los gatos están en posición de descanso. Para revisarlos, levante
la máquina sobre los gatos de nivelación hasta que la máquina quede totalmente fuera del suelo.
Marque una línea en los puntales a 30 cm bajo el alojamiento del gato. Permita que la máquina
permanezca desactivada por una hora. Mida la distancia entre la línea marcada y el alojamiento de
los gatos. Si los gatos han derivado más de ¼”, él(los) gato(s) y/o los otros componentes hidráulicos
tienen fugas y deberían ser reparados.
5-26
Procedimientos de Servicio Sección
MD6640 Perforadora Electrica Para Pozos De Tronadura
REPARACIÓN
La reparación de los gatos de nivelación se limita a reparar con soldadura algunos componentes
seleccionados y la limpieza de otros. La reparación con soldadura de daños estructurales está
permitida en las camisas y en las zapatas de los gatos. Siga las prácticas de reparación con
soldadura recomendadas en elAPÉNDICE para reparar dichos ítems. Reparaciones con soldadura
en los puntales de las patas no se recomiendan si el daño tiene como causa el pandeo del puntal
o pérdida de calidad cilíndrica. Los puntales deben cambiarse si están doblados o no están
cilíndricos.
La reparación del cilindro hidráulico se limita, en este manual, a su limpieza. La reparación del
cilindro mismo, sigue los procedimientos básicos de reparación de cualquier cilindro hidráulico.
En este manual, la reparación de las camisas de los gatos se limita a la reparación de fisuras o
daños menores. Si ocurriera un daño serio, consulte al Departamento de Servicio de Caterpillar
Global Mining por los detalles de su reparación. Nótese que los pernos que aseguran las camisas
traseras de los gatos a la estructura principal están apretados a un torque de 390 lbs.pie (apriete
al tope) y luego girados ½ vuelta adicional. Refiérase al método de torque “turn-of-the-nut”, mas
adelante en esta sección. Deberían instalarse golillas endurecidas bajo la cabeza del perno y de
las tuercas.
Para desmontar y reinstalar un cilindro hidráulico y un puntal del gato, proceda como sigue:
1. Si se va a trabajar en un gato trasero, baje el gato hasta que la zapata quede a 1” o 2” del
suelo. Levante los otros tres gatos sobre los cuales no se está trabajando hasta su posición
de mayor retracción. Si se va a trabajar en un gato delantero, ambos gatos delanteros se
deben bajar hasta 1” o 2” del suelo. Levante los gatos traseros hasta su posición de mayor
retracción.
2. Detenga la bomba hidráulica y alivie cualquier presión en el sistema soltando el respirador
del depósito. Cuando el aire atrapado en el depósito es aliviado, reaprete el respirador.
3. Desconecte cuidadosamente las líneas hidráulicas principales fijadas a la válvula de
compensación en el cilindro hidráulico.
NOTA: NO ALTERE LAS LÍNEAS QUE VAN DESDE LA VÁLVULA DE COMPENSACIÓN A LA
CAJA ELECTRICA DE CONEXIÓN.
4. Con tapones apropiados, selle los orificios abiertos de las mangueras principales que fueron
desconectadas en el paso 3.
PRECAUCION: Si trabaja en un gato trasero, refiérase a los pasos 5 hasta el 8 y 15
hasta 31. Si trabaja en los gatos delanteros, refiérase a los pasos 9
hasta el 31.
5-27
Procedimientos de Servicio Sección
MD6640 Perforadora Electrica Para Pozos De Tronadura
5. Para la reparación de un gato trasero, con una llave de extremo abierta, saque el terminal
hembra del conector rápido desde el terminal macho que está fijado al puerto PR de la
válvula de compensación. Deje la manguera de ¼” fijada al terminal hembra del conector
rápido.
6. Cuando haya completado el paso 5, desconecte la manguera de ¼” desde la caja eléctrica
de conexión.
PRECAUCION: Mantenga siempre un firme agarre de la manguera mientras el aceite
fluye desde ella. No permita que el flujo de aceite contacte su piel ya que
pueden ocurrir lesiones.
7. Apunte el extremo abierto de la manguera de ¼” hacia una paila vacía de 5 galones y reconecte
la terminal hembra del conector rápido al terminal macho que aún está fijado al puerto PR.
Cuando se abre el conector rápido, un flujo de aceite desde el lado del vástago del cilindro,
saldrá desde la manguera de ¼” hacia la paila. Esto permitirá que la zapata del gato baje por
gravedad hasta el suelo, donde en dicho momento el flujo de aceite se detendrá.
8. Nuevamente saque el terminal hembra del conector rápido con la manguera de ¼” como en
el paso 5 y reconecte la manguera de ¼” en la caja eléctrica de conexión.
9. Para reparación de gato delantero, desacople el conector rápido desde ambos gatos
delanteros usando una llave de extremo abierto de 1 1/4”. El terminal hembra del conector
rápido permanecerá conectado a la válvula.
10. En un solo gato, saque el otro extremo de la manguera con conector rápido desde la caja
eléctrica de conexión en el gato.
11. Ponga el extremo de la manguera, sacado desde la caja eléctrica de conexión, dentro de un
contenedor limpio de 5 galones. (Dos contenedores adicionales de 5 galones se necesitarán
para manejar el aceite desde ambos gatos delanteros.)
PRECAUCION: Mantenga siempre un firme agarre de la manguera mientras el aceite
fluye desde ella. No permita que el flujo de aceite contacte su piel ya que
pueden ocurrir lesiones.
12. Reconecte el conector rápido. Cuando la conexión esté completándose, el aceite comenzará
a salir por el extremo de la manguera al contenedor y la zapata del gato bajará al suelo. Esto
aliviará toda la presión sobre el vástago del pistón y creará un vació en el extremo del alojamiento
del cilindro.
13. Para sacar el aceite desde el otro gato, se necesitará un ayudante. Disponga que el ayudante
se mantenga sujetando la manguera desconectada dentro de un contenedor de 5 galones
mientras Ud. reconecta el conector rápido el otro gato delantero. El aceite desde éste gato
fluirá ahora desde la manguera que está siendo sujetada por el ayudante.
14. Cuando se haya detenido el flujo de aceite y la zapata del gato quede en el suelo, el extremo
suelto de la manguera se puede reconectar a la caja eléctrica de conexión.
5-28
Procedimientos de Servicio Sección
MD6640 Perforadora Electrica Para Pozos De Tronadura
15. Quite el conector macho del conector rápido desde el puerto PR y enrósquelo sin apretar en
el conector hembra. Cubra el extremo abierto con un tapón de protección.
16. Saque la manguera de 3/8” de la válvula de compensación y tape el extremo abierto de la
manguera.
17. Inserte un tapón de acero con copa de anillo “O” SAE-6 en los puertos PR y PH.
18. Quite los pernos de la cubierta de la camisa.
NOTA: Si se va a reparar uno de los gatos delanteros, el soporte del tirante del mástil debe ser
desmontado e instalar un perno de argolla en la tapa para remoción.
19. Quite los pernos que aseguran el retén de la zapata al puntal. Saque la zapata desde el
puntal y retire el retén y el retén partido desde la zapata.
20. Fije un dispositivo de levante apropiado a la oreja de levante o perno de argolla en la tapa de
la camisa y cuidadosamente levante el puntal y el cilindro desde la camisa.
21. Para desmontar el cilindro desde el puntal, saque los tapones de tubería que aseguran el
pasador del pie del puntal y quite el pasador.
22. Deslice el cilindro desde el puntal. Quite la cubierta de la camisa desde el cilindro.
23. Repare o reemplace los componentes según sea necesario.
24. Instale la cubierta de la camisa sobre el cilindro.
NOTA: El vástago del cilindro debe ser retraído totalmente dentro del cuerpo del cilindro. Si no,
usando presión hidráulica, retraiga el cilindro hidráulico a la posición totalmente recogida.
Note que se debe usar presión hidráulica y la presión debe ser ejercida en el puerto vr
antes que las válvulas de compensación permitan que el cilindro se mueva. Use un
aceite similar al que se usa en el sistema hidráulico.
25. Usando un dispositivo de levante apropiado, deslice el cilindro, primero el extremo del cuerpo
del cilindro, dentro del puntal.
26. Alinee los orificios del pasador de la base e inserte el pasador de la base. Asegúrelo con los
tapones de tubería de cabeza cuadrada.
27. Usando un dispositivo de levante apropiado, baje el puntal y el conjunto del cilindro dentro de
la camisa del gato.
5-29
Procedimientos de Servicio Sección
MD6640 Perforadora Electrica Para Pozos De Tronadura
28. Fije la cubierta de la camisa. Note que los pernos de la cubierta de la camisa de gato trasera
deben ser apretados a un torque de 480 lbs.pie. No debe haber revestimiento o lubricación
en los pernos.
29. Instale las conexiones dentro del cilindro hidráulico y fije las mangueras hidráulicas.
30. Posicione la zapata bajo el gato y lentamente baje el puntal dentro de la zapata. Fije la zapata
del gato al puntal usando el retén partido y el retén sólido.Apriete los pernos de retención a un
torque de 280 lbs.pie. (hilo seco).
31. Realice 2 o 3 ciclos del gato para comprobar la operación de la unidad y para remover
cualquier bolsa de aire creada durante el proceso de reparación. El gato se debería extender
y retraer hasta el máximo, sin levantar la máquina.
SALA DE MÁQUINAS
Inspeccione frecuentemente todos los paneles y miembros estructurales de la sala por si tienen
grietas. Incluya un estrecho examen a todas las estructuras y tirantes del techo. Restaure siempre
los miembros estructurales defectuosos a su estado original mediante soldadura de reparación.
Inspeccione periódicamente las bisagras y picaportes de todas las puertas y ventanas para
asegurarse que ellas permanezcan cerradas durante la operación de la máquina. Verifique el
sellado de todas las puertas y ventanas para prevenir la entrada de polvo. Haga un reconocimiento
cuidadoso de todos los pernos sueltos o faltantes. La ausencia de estos sujetadores puede resultar
en excesiva vibración y desgaste de los componentes de la sala. Inspeccione la condición de la
pintura tanto de la superficie interior como exterior de la sala. Reponga toda pintura en cualquier
área donde haya sido dañada o cualquier área donde se hayan hecho reparaciones.
REPARACIÓN
La reparación de la sala de máquinas se limita usualmente a reparar estructuras individuales
dentro de la sala. La reparación con soldadura debería seguir las instrucciones detalladas en el
APÉNDICE. Cualquier procedimiento de reparación debería realizarse teniendo como objetivo la
prevención de entrada de polvo, suciedad o humedad dentro de la sala. Todas las uniones de la
estructura de la sala deben estar adecuadamente selladas y las aberturas en la sala de máquinas
se deben mantener a un mínimo.
El techo de la sala de máquinas es removible, así como los miembros transversales sobre el
compresor de aire. Verifique que los miembros transversales estén debidamente apretados. Verifique
que el techo esté apropiadamente sellado y las mordazas estén aseguradas.
5-30
Procedimientos de Servicio Sección
MD6640 Perforadora Electrica Para Pozos De Tronadura
Sala De Máquinas – Vista En Detalle
5-31
Procedimientos de Servicio Sección
MD6640 Perforadora Electrica Para Pozos De Tronadura
VENTILADOR Y FILTRO PARA VENTILACIÓN DE LASALA
La sala de máquinas está equipada con un ventilador de ventilación y un filtro inercial el cual
proporciona aire de ventilación limpio al compresor principal y a la sala de máquinas. La sala de
máquinas está presurizada ligeramente sobre la presión atmosférica por el ventilador. Esto sirve
para prevenir la entrada de polvo y humedad a la sala de máquinas. El ventilador de ventilación
debería ser operado todo el tiempo en que la máquina está siendo operada. Mantenga cerradas
todo el tiempo las puertas de la sala de máquinas para prevenir la entrada de polvo. La inspección
del ventilador de ventilación no se requiere sino cuando sea necesario repara algún mal
funcionamiento.
Sala De Máquinas – Sistema De Ventilación
El filtro inercial limpia el aire que entra a la sala de máquinas. Este filtro es autolimpiante y no
requiere de rutinas de servicio típicas de otros filtros. La apropiada operación del filtro, sin embargo,
es dependiente de un constante flujo de aire. Restricciones en la admisión, de hojas, trapos y
papeles, disminuirán la efectividad del filtro y del ventilador de ventilación. Una ligera capa de polvo
5-32
Procedimientos de Servicio Sección
MD6640 Perforadora Electrica Para Pozos De Tronadura
en las aspas del filtro es normal y no impedirá la eficiencia del mismo. Para sacar el material que
se ha acumulado en la superficie de las aspas, es necesario desmontar la célula del filtro y limpiar
las aspas con vapor.
PASILLOS Y ESCALERAS
Inspeccione diariamente todos los pasamanos, pasillos, plataformas y escaleras de la máquina.
Verifique que todos los miembros estructurales estén en buenas condiciones y que todas las
fijaciones y soldaduras estén intactas. Repare o reemplace todo componente en forma inmediata,
para asegurar la integridad de las estructuras y asegurar el cumplimiento de las regulaciones de
seguridad.
Escalera Abatible De Acceso - Detalles
Mantenga todos los pasillos, escaleras y escalas libres de materiales los cuales puedan presentar
riesgos de tropiezos o resbalamientos. Mantenga los pasillos libres de herramientas, suministros
u otras obstrucciones. Limpie todo derrame de aceite o grasa inmediatamente.
5-33
Procedimientos de Servicio Sección
MD6640 Perforadora Electrica Para Pozos De Tronadura
CABINA DE OPERADORES
Inspeccione diariamente si la cabina de los operadores presenta fisuras o daños estructurales en
todos sus costados, techo y paneles de piso. Revise la correcta operación y apropiado sellado de
las puertas y ventanas. Mantenga la cabina limpia de todo derrame de aceite, grasa o agua para
ayudar a prevenir resbalamientos.
Localización/Montaje De Cabina Del Operador
5-34
Procedimientos de Servicio Sección
MD6640 Perforadora Electrica Para Pozos De Tronadura
ASIENTO DEL OPERADOR
Cada operador individual puede ajustar el asiento del operador según desee, con respecto a altura,
inclinación y desplazamiento. Lubrique periódicamente todos los rodamientos y puntos de pivote
para mantener movimientos suaves.
Asiento Del Operador - Ajustes
5-35
Procedimientos de Servicio Sección
MD6640 Perforadora Electrica Para Pozos De Tronadura
CONTROLES DEL OPERADOR
Inspeccione diariamente todos los controles del operador para verificar daños o desgastes así
como la correcta operación de los mismos. Repare o reemplace los controles que funcionen mal,
inmediatamente. Limpie todos los letreros y marcadores y mantenga todos los marcadores y
señales en una condición legible, incluyendo las señales de advertencia.
Controles del Operador
5-36
Procedimientos de Servicio Sección
MD6640 Perforadora Electrica Para Pozos De Tronadura
UNIDAD DE AIRE ACONDICIONADO CON CALENTADOR
Inspeccione la apropiada operación, integridad estructural y sellado de la unidad de aire
acondicionado, en el techo de la cabina del operador. Todos los paneles laterales permanentes
deben estar en su lugar y adecuadamente sellados y asegurados.
Unidad de Calefaccion/AireAcondicionado de la Cabina del Operador
5-37
Procedimientos de Servicio Sección
MD6640 Perforadora Electrica Para Pozos De Tronadura
ACCIONAMIENTO DE LA BOMBA HIDRÁULICA
Las bombas del sistema hidráulico están accionadas por el motor del compresor principal de aire
a través de una caja de engranajes. La caja de engranajes está montada en la base del compresor.
El aceite de la caja de engranajes se debe revisar semanalmente y agregarle aceite si se requiere.
Revise diariamente la caja de engranajes por si tiene pérdidas de aceite y repárela según sea
necesario.
Accionamiento De La Bomba Hidráulica
Para desmontar y desarmar la accionamiento de la bomba caja de engranajes, proceda de la
siguiente manera:
1. Ponga la máquina en un área segura para realizar la reparación. Apague y rotule todos los
controles.
5-38
Procedimientos de Servicio Sección
MD6640 Perforadora Electrica Para Pozos De Tronadura
2. Drene el aceite desde la caja de engranajes. Hay aproximadamente 7 lts de aceite en la caja.
3. Quite los pernos de montaje de la bomba y saque las bombas y las empaquetaduras.
4. Separe el acoplamiento de transmisión de la caja de engranajes. Saque los pernos de montaje
de la caja. Saque la caja desde los soportes de montaje. Tome nota del espesor de las
platinas.
5. En una superficie limpia, posicione la bomba de forma tal que las planchas adaptadoras de
la bomba hidráulica queden hacia arriba. Quite los pernos de montaje de las planchas y
levante las planchas adaptadoras desde la caja.
Caja De Engranajes De Accionamiento De La Bomba Hidráulica –Detalles
6. Levante los engranajes de transmisión y sus rodamientos desde la caja de engranajes. Esto
se puede hacer a mano ya que los rodamientos se fijan en forma deslizante a la caja de
engranajes y al hombro del calibre de los adaptadores. Los rodamientos están a presión
contra la maza de los engranajes. Puede ser necesario golpear ligeramente el engranaje
para sacar los rodamientos desde el alojamiento del engranaje de transmisión.
7. Después que los engranajes de transmisión hayan sido desmontados, de vuelta la caja de
engranajes para que el eje de transmisión y el engranaje puedan ser desmontados.
8. Desmonte los pernos de montaje del adaptador del eje y saque el conjunto del adaptador y la
empaquetadura desde la caja de engranajes.
5-39
Procedimientos de Servicio Sección
MD6640 Perforadora Electrica Para Pozos De Tronadura
9. Separe el conjunto del adaptador del eje de transmisión de la siguiente manera:
a. Quite el gran anillo de resorte desde el calibre del adaptador.
b. Quite el anillo de resorte pequeño desde el eje de transmisión y tire el eje desde el
adaptador. Tenga cuidado de no dañar el sello de aceite.
c. Saque el rodamiento desde el adaptador. Quite el sello de aceite desde el adaptador.
10. Limpie e inspeccione todos los componentes. Repare o reemplace todos los componentes
dañados o gastados y rearme en forma opuesta al desmontaje, tomando en cuenta lo
siguiente:
a. Cuando rearme la caja de engranajes, use sellos, empaquetaduras y pernos nuevos.
b. Use Locktite® 262 en todos los pernos y apriételos a un torque de 200 lbs.pie.
c. Cuando instale el acoplamiento de la caja de engranajes, proceda de la siguiente
manera:
1) Verifique que el eje del motor esté centrado.
2) Monte la maza de los acoplamientos en el motor y la caja de engranajes.
3) Monte la caja de engranajes de forma que quede un espacio de .51” entre los
extremos de los ejes.
4) Revise la alineación angular y el desplazamiento horizontal. El máximo
desalineamiento no debe exceder de .002”. Use platinas bajo la base de la caja de
engranajes para corregir la alineación.
5) Apriete los pernos del acoplamiento a un torque de 30 lbs.pie (hilo seco).
5-40
Procedimientos de Servicio Sección
MD6640 Perforadora Electrica Para Pozos De Tronadura
5-41
Procedimientos de Servicio Sección
MD6640 Perforadora Electrica Para Pozos De Tronadura
PORTACABLE
PRECAUCION: El portacable maneja el cable de transmisión durante la propulsión. El
cable transporta un alto voltaje el cual podría provocar serias o fatales
lesiones. Cada vez que se vaya a realizar un trabajo en el portacable, el
cable eléctrico debe desconectarse de su fuente de potencia.
El portacable debe ser revisado diariamente para asegurarse que está trabajando en forma apropiada
y que el cable eléctrico está siendo bobinando y rebobinando desde el carrete en forma correcta.
Revise que el mecanismo de nivelación del bobinado trabaje libremente. Revise que todas las
cadenas de transmisión estén con la tensión correcta y bien lubricadas.
Revise si hay fisuras en todos los componentes estructurales.
5-42
Procedimientos de Servicio Sección
MD6640 Perforadora Electrica Para Pozos De Tronadura
El carrete del cable sólo debería ser alzado usando los puntos de alza provistos demostrado
debajo.
El Piñon que conduce la unidad principal de guía es intercambiable para permitir enrolle de una
gran variedad de cables. Antes de instalar cualquier asegurar que el piñón correcto sea instalado
y que la cadena este tensada apropiadamente, el uso de un piñón incorrecto conducirá un
espaciamiento incorrecto de cable y un potencial de daño al cable o carrete. Refiérase a la
documentación del fabricante para más información.
5-43
Procedimientos de Servicio Sección
MD6640 Perforadora Electrica Para Pozos De Tronadura
TENSADO DE CADEMNA
Todas las cadenas deben ser tensionadas apropiadamente para para asegurar operación uniforme
y prevenir desgaste excesivo de cadena y piñones. Todas los piñones deben estar alineados
apropiadamente para impedir desgaste excesivo en cadena.
La cadena del Motor-Carrete debería tener
0.50-0.75 pulgadas. (1.3-1.9 cm) de afloje
cuando sean tensionadas.
La cadena de Carrete-Codificador debería
tener 0.313-0.625 pulgadas. (0.8-1.6 cm) de
afloje cuando sean tensionadas.
La cadena de Carrete-Reductor debería tener
1.75-2.25 pulgadas. (4.5-5.7 cm) de afloje
cuando sean tensionadas.
La cadena Reductor-Guia debería tener 0.563-
1.13 pulgadas (1.4-2.9 cm) de afloje cuando
sean tensionadas.
5-44
Procedimientos de Servicio Sección
MD6640 Perforadora Electrica Para Pozos De Tronadura
La cadena Guía debería tener 0.50-1.0 pulgadas (1.3-2.5 cm) de afloje cuando sean tensionada.
AJUSTES HIDRÁULICOS
Cuando está debidamente ajustado, el portacable enrollará cable cuando la perforadora se desplace
hacia su fuente de energía. El portacable se detendrá cuando la perforadora esté estacionaria y el
accionamiento del carrete se accionará cuando la perforadora se mueva alejándose de su fuente
de energía, permitiendo que el cable se desenrolle desde el carrete.
PELIGRO: El portacable no se debe usar para tirar el cable eléctrico de transmisión
dentro del carrete. Bobine el cable en el carrete solo cuando la perforadora
se desplace hacia el cable. Intentar tirar 50’ o más de cable tendido en línea
recta hacia el carrete sin mover la máquina hacia el cable, dañará o
posiblemente romperá el cable.
Localizacion de Ajustes Hidraulicos
La tracción de línea del cable es proporcional a la presión de operación. La correcta tracción de
línea es cuando existe suficiente tracción en el cable como para ser enrollado en el carrete pero no
demasiado alta como para producir esfuerzos innecesarios en él.
5-45
Procedimientos de Servicio Sección
MD6640 Perforadora Electrica Para Pozos De Tronadura
La velocidad de línea es dependiente del volumen de aceite hidráulico que fluye a través del sistema.
La velocidad de línea correcta es ligeramente más rápida que la velocidad de recorrido de la
perforadora.
El Jale de Linea al propulsar fuera del carrete del cable está ajustado por la válvula de contrapeso.
El cable jala en el carrete de cable y acumula presión en contra de la válvula de contrapeso. Si el
cable es arrastrado, aminore el ajuste de contrapeso.
INSTRUCCIONES DELARRANQUE DEL INICIO DEL MANDO
1. Eche a andar el motor principal del compresor y deje el sistema de hidráulico correr por 5
minutos para asegurar correcta temperatura de trabajo.
2. Coloque unos manómetros 3000 PSI en el puerto experimental 49 y 50; Ambos localizados
en el distribuidor de 3 tubos - VB4.
AJUSTES de PRESIÓN - FUERZA DEL CARRETE
1. Con el cable del rastro instalado en el carrete de cable, mueva el interruptor del carrete al
carrete a la posición de carrete.
2. Coloque la válvula de seguridad de presión (refiera a VistaA) a 800 PSI. Puerto de testeo 49;
en la estación 3 del distribuidor - VB4.
3. Retornar el interruptor del carrete del cable a la posición neutral.
4. Haga que el operador mueva la máquina hacia el cable dejando el carrete recoja el cable.
5. Si la máquina arrastra el cable, aminore la presión en la válvula de relieve de presión.
6. Si la máquina no puede enrollar el cable, incremente la presión en la válvula de relieve de
presión.
7. Repita Pasos 4 para 6 hasta que la tensión correcta en el carrete de cable sea lograda.
AJUSTE DE FLUJO- VELOCIDAD DEL CARRETE
1. Con el cable de arrastre instalado en el carrete de cable y la presión ajustada.
2. Haga que el operador mueva la máquina hacia el cable dejando que el carrete de cable
recoja el cable.
3. El carrete de cable debería recoger cable ligeramente más rápido que la velocidad de
propulsión de la máquina.
5-46
Procedimientos de Servicio Sección
MD6640 Perforadora Electrica Para Pozos De Tronadura
4. Si el carrete de cable no recoge el cable lo suficientemente rápido, ajuste el control de flujo
mostrado en la Vista A.
5. Una vez que la velocidad del carrete del cable parece determinada, hacer que el operador
deje de propulsar la máquina.
6. Posicionar el interruptor del carrete de cable a la posición de desenrolle, desenrollar el cable
y verificar que la velocidad no es excesiva.
7. Ajuste el control de flujo según sea requerido y verifique el viento en velocidad con la máquina
propulsando en Paso 2.
AJUSTES DEL CONTRAPESO - FUERZA EXTRAIBLE
1. Con el cable del rastro instalado en el carrete, la presión ajustada, y el flujo ajustado.
2. Haque el operador maneje alejándose del cable.
3. El cable ajustado correctamente se desprenderá del carrete sin arrastrar el cable.
4. Si el cable arrastra, bajar el ajuste del contrapeso. Referir a Ver A para localizar.
5. Si el carrete de cable se desenrolla bajo el peso del cable, aumentar el ajuste de la presión
de contrapeso.
Ahora que el carrete del cable está ajustado, operar la máquina y observar la máquina para asegurar
el cable esta siendo situado y enrollado correctamente.
• Si el cable se arrastra cuando la máquina propulsa hacia el cable, reducir el juste de la
presión.
• Si el cable se arrastra cuando la máquina propulsa alejándose de cable, reducir el ajuste del
contrapeso.
• Si el cable no recoge el cable del suelo, aumentar el ajuste de presión.
• Si el cable se desenrolla hacia el suelo cuando la máquina está en descanso, incrementar
el ajuste de contra presión.
• Si el carrete del cable recoge demasiado despacio, aumente el ajuste de flujo.
• Si el carrete del cable funciona demasiado rápido, aminore el ajuste del flujo
5-47
Procedimientos de Servicio Sección
MD6640 Perforadora Electrica Para Pozos De Tronadura
LUBRICACIÓN
Lubrique los rodillos de guía mensualmente usando lubricante MPG. Asegure que los rodillos giren
libremente y todo el hardware del montaje está apretado.
Las cadenas deberían ser lubricadas cada seis meses usando un buen lubricante de la cadena.
Diamond Chain Company’s Chain Lube , el cual es un lubricante del aerosol de tipo de espuma, es
recomendado. Revise la cadena por corrosión y tensión. Reajuste tensión de la cadena según se
necesite.
Engrase los rodamientos principales del carrete y codificador del eje de gata del codificador
semestralmente.
El lubricante recomendable para el reductor del engranaje es Mobil Delvac Synthetic Gear Oil 75W
90 o el equivalente.
REPARACIÓN
La reparación del portacable consistirá principalmente del reemplazo de componentes gastados o
dañados.
5-48
Procedimientos de Servicio Sección
MD6640 Perforadora Electrica Para Pozos De Tronadura
ESTRUCTURA DEL MÁSTIL
El mástil de la perforadora MD6640 es una
estructura fabricada hecha de tubos de acero y
planchas preformadas. La estructura está
formada por cuatro tubos verticales unidos entre
sí por tres costados, con enlaces tubulares. El
cuarto costado está abierto para permitir que la
unidad de transmisión de rotación sea subida y
bajada por toda la longitud del mástil.
Inspeccione diariamente la estructura para
verificar desgaste o daños. Inspeccione la
integridad de todas las escaleras y plataformas
del mástil y por si hay herrajes faltantes.
Inspeccione la apropiada lubricación y cualquier
daño o desgaste de las cremalleras de la parte
externa trasera de los tubos del mástil.
Inspeccione los pasadores de las bisagras del
mástil y la estructura alrededor de los pasadores
para verificar desgastes o daños. Verifique que
las chavetas de los pasadores de las bisagras
estén apretadas y en su lugar. Inspeccione las
fijaciones del cilindro de elevación del mástil por
si están gastadas o dañadas. Lubrique
semanalmente los pasadores con un lubricante
apropiado. Inspeccione los pasadores de cierre
del mástil por si están gastados o dañados.
Verifique que el pasador de cierre de los cilindros
hidráulicos y las líneas hidráulicas no tengan
fugas.
Cada 80 turnos operativos, baje el mástil e
inspeccione cuidadosamente todas las
soldaduras para verificar si tienen grietas o daños.
Limpie las cremalleras sobre la parte externa de
los dos tubos traseros del mástil para verificar
las soldaduras que aseguran las cremalleras a
los tubos.
Vista General Del Mástil
5-49
Procedimientos de Servicio Sección
MD6640 Perforadora Electrica Para Pozos De Tronadura
REPARACIÓN
La reparación de la estructura del mástil se limita a reparar con soldadura las soldaduras agrietadas
o quebradas y del reemplazo de los componentes de la estructura severamente dañados. Contacte
a su representante local de Caterpillar Global Mining para obtener solución sobre reparaciones
específicas con soldadura.
Cundo se reparen estructuras del mástil con soldadura, es importante mantener en mente que la
reparación debería retornar la estructura a su condición original. Todas las soldaduras deberían
quedar uniformes y ninguna hendidura o rebaje debería ser soldada o cubierta. No agregue material
de refuerzo o cambie la geometría de la estructura. Reemplace cualquier componente dañado
con material de la misma reciedumbre y sección transversal.
Para los pasadores de cierre del mástil vea la sección ESTRUCTURA “A” DEL MÁSTIL.
ESLINGAS DE SEGURIDAD DEL MÁSTIL
Las eslingas de seguridad del mástil son usadas para ayudar a prevenir que las barras de perforación
se suelten de la unidad de rotación y caigan fuera de la máquina o sobre la cabina del operador.
Las eslingas deben ser revisadas semanalmente para verificar que todas los tirantes están
debidamente ajustados y todos los pasadores guía estén firmemente en su lugar.
Eslinga Superior De Seguridad
5-50
Procedimientos de Servicio Sección
MD6640 Perforadora Electrica Para Pozos De Tronadura
REPARACIÓN
Eslinga Inferior De Seguridad (Opcional)
La reparación de las eslingas de seguridad consiste principalmente en el reemplazo de
componentes gastados o dañados. Las reparaciones con soldadura deben ser utilizadas para
repara grietas. Contacte e a su representante local de BCaterpillar Global Mining para obtener
solución sobre reparaciones específicas con soldadura.
5-51
Procedimientos de Servicio Sección
MD6640 Perforadora Electrica Para Pozos De Tronadura
CAJA DE ENGRANAJES DE ROTACIÓN
PRECAUCIÓN: La operación o movimiento inesperado de la unidad de empuje y/o de la
caja de engranajes de rotación durante un procedimiento de servicio o
inspección puede causar severas lesiones personales o la muerte. Baje
la unidad de empuje hasta la posición más baja posible o asegúrela en
su posición. Cierre y rotule los controles para prevenir operaciones
inesperadas.
Inspeccione la caja de engranajes de rotación cada turno para ver si tiene herrajes sueltos o
faltantes. Verifique la operación del sistema automático de lubricación o lubrique manualmente
todos los puntos según sea necesario. Revise el nivel de lubricante de la caja de engranajes y
adicione el lubricante apropiado al nivel requerido. Si se ha acumulado agua en la caja de engranajes,
quite el tapón de drenaje y drene totalmente el depósito. Rellene la caja al nivel requerido con un
lubricante aprobado. Revise si la articulación giratoria de aire tiene fugas y repare según sea
necesario.
Maquinaria De Rotación/Caja De Engranajes
5-52
Procedimientos de Servicio Sección
MD6640 Perforadora Electrica Para Pozos De Tronadura
Cada 80 turnos de operación, drene parcialmente la caja de engranajes y quite la tapa de inspección.
Inspeccione el desgaste o daños de los dientes de los engranajes. Revise la precarga del rodamiento
del eje de transmisión de rotación. Si existe alguna holgura en los rodamientos del eje de transmisión,
se hará necesario ajustar la precarga quitando platinas desde el retén inferior.
AJUSTE DEL EJE DE TRANSMISIÓN
El eje de transmisión debe ser ajustado para dar
una precarga sobre los rodamientos de 0.003” a
0.005”. Para ajustar la precarga del rodamiento
proceda de la siguiente manera:
1. Quite los pernos que aseguran el retén
del rodamiento inferior a la caja de
engranajes. Quite las platinas del retén.
NOTA: Las platinas están partidas por la mitad
para facilitar la remoción e instalación.
2. Con las platinas retiradas, reinstale los
pernos y apriételos a un torque de 60 l
bs.pie para asegurar un asiento apropiado
del rodamiento.
3. Quite todos los pernos excepto dos
separados a 180º. Reaprete los dos
pernos a un torque de 50 lbs.pie, en
incrementos de 10 lbs.pie de forma que
el retén permanezca recto a la carcaza.
Gire el eje y revise el torque de los pernos.
4. Mida el espacio entre el retén y la caja de
engranajes en ambos pernos. Obtenga el
promedio del espacio, dividiendo la suma
de las mediciones por 2.
Ajustes Del Eje De Transmisión
1. Alojamiento Rodamiento Inferior 7. Retén de Rodamiento
2. Rodamiento Central 8. Perno de Retención
3. Eje Transmisión de Rotación 9. Sello de Aceite
4. Rodamiento Inferior 10. Espaciador
5. Anillo “O” de Retención 11. Retén del Sello
6. Platinas 12. Perno de Retención
5-53
Procedimientos de Servicio Sección
MD6640 Perforadora Electrica Para Pozos De Tronadura
Eje Intermedio De La Maquinaria De Rotación
1. Tapa Rodamiento Superior 10. Eje Intermedio
2. Perno de la Tapa 11. Rodamiento Inferior
3. Anillo “O” 12. Retén
4. Retén 13. Perno de Retención
5. Perno de Retención 14. Cubierta Inferior
6. Rodamiento Superior 15. Perno de la Tapa
7. Sello de Aceite 16. Anillo “O”
8. Manguito de Sello 17. Caja de Engranajes
9. Engranaje Intermedio
5. El boquete común de menos 0.003" a 0.005" es el espesor total del paquete de calza requerido
para proveer 0.003" a 0.005" de precarga en los rodamientos.
6. Saque los dos pernos remanentes, instale el paquete de platinas requeridas y ponga los
pernos de la tapa. Apriete los pernos a 200 lbs.pie.
5-54
Procedimientos de Servicio Sección
MD6640 Perforadora Electrica Para Pozos De Tronadura
REPARACIÓN
Hay tres áreas en la caja de engranajes donde existen reparaciones posibles. Este tópico solo
dice relación con la reparación de los componentes internos de la unidad. La reparación del motor
de rotación y del acoplamiento giratorio está cubierta bajo tópicos separados.
La reparación de la caja de engranajes está limitada al reemplazo de componentes gastados o
dañados. La unidad puede ser reparada instalada sobre la máquina o puede ser desmontada y
reparada en otra parte. Refiérase al tópico ESTRUCTURA GUÍA DE ROTACIÓN/EMPUJE para
obtener el procedimiento necesario para desmontar el conjunto desde la máquina.
Para reparar la caja de engranajes en o fuera de la máquina, use el siguiente procedimiento:
1. Bloquee la caja de engranajes en forma segura en posición vertical. Desmonte el
motor de rotación desde la caja de engranajes. Refiérase al tópico MOTOR DE
ROTACIÓN. Drene todo el aceite desde la caja de engranajes. Saque el anillo adaptador
del motor. Saque el anillo “O” del motor desde la caja de engranajes.
NOTA: Si la unidad de transmisión se deja en la máquina, bájela hasta la parte más baja del
mástil y hágala descansar en los topes inferiores. Cierre y rotule los controles.
2. Saque la tubería de aire y la empaquetadura desde el alojamiento giratorio.
3. Saque la tapa frontal y la empaquetadura desde la caja de engranajes.
4. Saque la tapa y el anillo “O” de la tapa del rodamiento superior del eje intermedio.
SAQUE EL RETÉN DEL RODAMIENTO SUPERIOR.
5. Inserte un perno con argolla en uno de los orificios con hilo en la parte superior del eje
intermedio. Soporte el eje con aparejos y una grúa.
6. Soporte el engranaje intermedio con bloques de forma que cuando sea desmontado el
eje el engranaje no se caiga.
7. Quite los pernos que aseguran el retén del rodamiento inferior a la caja de engranajes.
Quite el retén del rodamiento. Saque el anillo “O” desde el retén.
8. Baje lentamente el eje intermedio fuera de la caja de engranajes. Saque el rodamiento
inferior, el retén y el espaciador desde el eje. El rodamiento inferior tiene una fijación de
interferencia de .0005” a .0025” al eje.
5-55
Procedimientos de Servicio Sección
MD6640 Perforadora Electrica Para Pozos De Tronadura
NOTA: La pista interna del rodamiento superior tiene una fijación de interferencia de .0006” a
.0017” al eje y puede ser necesaria una ligera fuerza para separarla desde el eje.
9. Posicione el engranaje intermedio para ser desmontado a través de la abertura frontal de la
caja de engranajes.
10. Saque la jaula del rodamiento superior y el sello de aceite desde el calibre superior en la caja
de engranajes.
11. Soporte el eje de transmisión con bloques bajo el acoplamiento giratorio.
12. Quite el alambre de cierre y los pernos que aseguran el alojamiento giratorio a la caja de
engranajes. Saque el alojamiento.
13. Saque los sellos, espaciadores y resortes desde le alojamiento.
14. Saque la tuerca de cierre, golilla de cierre y el espaciador desde la parte superior del eje de
transmisión.
NOTA: LA TUERCA DE CIERRE TIENE HILO IZQUIERDO.
15. Saque los pernos que fijan el retén del rodamiento inferior a la caja de engranajes.
16. Levante lentamente la caja de engranajes hasta que el engranaje del eje vertical quede
descansando en la parte baje de la caja de engranajes. Si el peso del eje vertical no se libera
a sí mismo desde la pista interna del rodamiento superior, se deberá aplicar fuerza adicional
en la parte superior del eje para forzar la pista fuera del eje, en la medida que se levanta la
caja de engranajes. La pista tiene una fijación de interferencia de .0001” a .0021” al eje.
17. Cuando la pista superior es desmontada desde el eje, continúe levantando la caja de
engranajes hasta que se libere del eje. Saque el eje y baje la caja de engranajes de vuelta a
sus bloques.
18. Desmonte la pista interna del rodamiento superior, manguito de sello, espaciador del engranaje
y el engranaje desde la caja de engranajes a través de la abertura frontal.
19. Saque la jaula del rodamiento superior, sello de aceite y anillo “O” desde el alojamiento del
rodamiento superior. Saque la copa superior del rodamiento inferior desde el alojamiento del
rodamiento inferior. La copa tiene una fijación de interferencia de .0004” a .0050” al alojamiento.
NOTA: Los alojamientos superior e inferior del rodamiento están fijados a presión a la caja de
engranajes y deberían ser desmontados solo si están gastados o dañados.
5-56
Procedimientos de Servicio Sección
MD6640 Perforadora Electrica Para Pozos De Tronadura
20. Quite los pernos y saque el collar de mordaza del eje de transmisión.
21. Quite los pernos y saque la mitad inferior del acoplamiento giratorio desde la mitad superior
del acoplamiento.
PRECAUCIÓN: Si en el paso siguiente se va a utilizar un soplete para calentar la mitad
superior del acoplamiento, al usarlo, asegúrese de tomar todas las
precauciones de seguridad. También use equipo de protección cuando
manipule los componentes calientes.
22. Use un soplete para calentar la mitad superior del acoplamiento y separe las dos secciones
desde el eje de transmisión. Saque el anillo “O” desde el eje de transmisión.
23. Deslice el conjunto del retén del rodamiento inferior desde la sección superior del eje y
desármelo de la siguiente manera:
a. Quite el anillo “O” y las platinas.
b. Quite los pernos del retén del sello y el retén.
c. Quite los sellos y el espaciador.
d. Quite la copa del rodamiento inferior desde el retén. La copa tiene una fijación de
interferencia de .0010” a .0050” al retén.
24. Con un extractor de rodamientos, saque la jaula del rodamiento inferior y la jaula superior del
rodamiento inferior desde el eje.
NOTA: La jaula del rodamiento inferior tiene una fijación de interferencia de .0005” a .0025” al eje.
La jaula superior del rodamiento inferior tiene una fijación de interferencia de .0028” a
.0048” al eje.
25. Inspeccione todos los componentes. Repare o reemplace todos los componentes que sean
necesarios.
PRECAUCIÓN: Hay una serie de pasos en el siguiente procedimiento el cual requiere el
calentamiento de ciertos componentes antes de ensamblarlos. Use
adecuado equipo de protección cuando manipule los componentes
calientes.
26. Para rearmar la caja de engranajes, primero limpie todos los componentes cuidadosamente.
Inspeccione todos los calibres y la superficie de los ejes, removiendo cualquiera picadura o
rebaba. Aceite ligeramente todos los componentes. Aplique Locktite®#271 a todos los hilos
limpios al ensamblarlos. Asegúrese de seguir las instrucciones del fabricante cuando use
Locktite.
5-57
Procedimientos de Servicio Sección
MD6640 Perforadora Electrica Para Pozos De Tronadura
27. Instale la copa superior del rodamiento inferior en el alojamiento del rodamiento. Esta copa
tiene una fijación de interferencia al alojamiento y tendrá que ser presionada hacia dentro.
Asegúrese de que la copa quede apretada contra los hombrillos del alojamiento.
28. Instale las jaulas del rodamiento inferior en la sección superior del eje de transmisión. Estas
jaulas tienen una fijación de interferencia y requerirán calentamiento en un baño de aceite a
250ºF antes de ensamblarlas. Asegúrese de que las jaulas queden apretadas contra los
hombrillos del eje.
29. Ensamble el conjunto del retén del rodamiento inferior de la siguiente manera:
a. Instale la copa del rodamiento inferior en el retén. Esta copa tiene una fijación de
interferencia y tendrá que ser presionada hacia dentro. Asegúrese de que la copa
quede apretada contra los hombrillos del retén.
b. Instale los sellos de aceite y el espaciador en el retén. Asegúrese que los labios de los
sellos enfrenten la copa del rodamiento.
c. Instale el retén de sello y los pernos. Apriete y ponga alambre de cierre en los pernos.
d. Instale el anillo “O” en el retén.
30. Instale el conjunto del retén en la sección superior del eje de transmisión. No instale las
platinas en el retén.
31. Instale el anillo “O” al fondo de la sección superior del eje.
32. Caliente la mitad del acoplamiento superior de amortiguación en un horno baño de aceite a
250º - 300ºF máximo. Instale el anillo de la transmisión de rotación en el acoplamiento. Inserte
la mitad del acoplamiento en la mitad del eje de transmisión e instale los anillos de mordaza
y los pernos. Permita que el eje se enfríe hasta temperatura ambiente.
33. Quite los anillos de mordaza e instale la faja superior del sello amortiguador del acoplamiento
giratorio. Reinstale los anillos de mordaza del eje, apriete los pernos y ponga alambre de
cierre. Las mitades en los anillos deberían quedar desplazadas a 90º una de otra.
34. Reinstale las partes faltantes del acoplamiento de amortiguación según el tópico
ACOPLAMIENTO DEAMORTIGUACIÓN.
35. Instale el engranaje de transmisión en la caja de transmisión.Asegúrese de que quede alineado
con el calibre del eje. Levante lentamente la caja de engranajes de forma que el eje pueda
ser posicionado para su instalación.
5-58
Procedimientos de Servicio Sección
MD6640 Perforadora Electrica Para Pozos De Tronadura
Eje De Transmisión De La Maquinaria De Rotación – Detalles
5-59
Procedimientos de Servicio Sección
MD6640 Perforadora Electrica Para Pozos De Tronadura
36. Instale bloques que aseguren el eje de transmisión en posición vertical. Baje lentamente la
caja de engranajes dentro del eje, teniendo cuidado de no dañar los hilos del eje. Puede ser
necesario girar ligeramente el engranaje para alinear las ranuras del engranaje y del eje.
37. Inserte los pernos de retención del retén del rodamiento inferior hasta el tope.
38. Instale el espaciador del engranaje, manguito del sello y el sello de aceite del rodamiento
superior. Asegúrese que los labios del sello queden hacia arriba. Caliente la pista interna del
rodamiento superior en un baño de aceite a 250º F máximo e instálelo rígidamente sobre el
eje contra el manguito. Instale el espaciador del rodamiento, golilla de cierre y tuerca de
cierre y luego apriete firmemente la tuerca de cierre. Permita que la pista se enfríe hasta
temperatura ambiente.
39. Cuando la pista se haya enfriado, saque las tuercas y la golilla de cierre e instale la jaula del
rodamiento superior. Reinstale y apriete la golilla y tuercas de cierre.
40. Precargue el rodamiento inferior de la siguiente manera
a. Apriete los pernos del retén del rodamiento inferior a un torque de 60 lbs.pie para
asegurar el apropiado asentamiento.
b. Quite todos los pernos excepto dos separados a 180º. Reaprete los dos pernos a un
torque de 50 lbs.pie, en incrementos de 10 lbs.pie de forma que el retén permanezca
recto a la caja de engranajes. Gire el eje y revise el torque de los pernos.
c. Mida el espacio entre el retén y la caja de engranajes en ambos pernos. Obtenga el
promedio del espacio, dividiendo la suma de las mediciones por 2.
d. El boquete común de menos 0.003" a 0.005" es el espesor total del paquete de calza
requerido para proveer 0.003" a 0.005" de precarga en los rodamientos.
e. Saque los dos pernos remanentes, instale el paquete de platinas requeridas y ponga
los pernos de la tapa.Apriete los pernos a un torque de 200 lbs.pie y ponga alambre de
cierre.
NOTA: Si las platinas son circulos completos, córtelas por la mitad para facilitar la instalación.
41. Instale los sellos y espaciadores en el alojamiento giratorio. Asegúrese que el labio de los
sellos quede mirando hacia arriba. Instale el anillo “O” en el alojamiento del rodamiento.
42. Instale el alojamiento giratorio y asegúrelo con los pernos. Apriete y ponga alambre de cierre
a los pernos.
5-60
Procedimientos de Servicio Sección
MD6640 Perforadora Electrica Para Pozos De Tronadura
43. Instale el engranaje intermedio y bloquéelo en su lugar. Instale el manguito de sello en la
parte superior del engranaje. Alinee el calibre del engranaje con el calibre del eje.
44. Caliente el rodamiento inferior en un baño de aceite a 250º F máximo e instale el rodamiento
sobre el eje. Asegure el rodamiento con el retén y ponga alambre de cierre a los pernos.
45. Instale el anillo “O” en la tapa inferior. Inserte el conjunto del eje dentro de la caja de engranajes.
Instale la tapa inferior y asegúrela con los pernos de la tapa. Apriételos y ponga alambre de
cierre a los pernos.
46. Instale el sello de aceite superior. Caliente la pista interna del rodamiento superior en un
baño de aceite a 250º F máximo e instálelo sobre el eje. Asegúrese que la pista quede
apretada contra el espaciador, luego asegure la pista con el retén del rodamiento. Apriete los
pernos del retén y ponga alambre de cierre a los pernos. Permita que la pista se enfríe hasta
temperatura ambiente.
47. Instale la jaula del rodamiento superior en la caja de engranajes. Instale el anillo “O” en la
tapa superior e instale la tapa en la caja de engranajes. Apriete los pernos de la tapa y ponga
alambre de cierre a los pernos.
48. Instale el motor según el tópico MOTOR DE ROTACIÓN y llene la caja de engranajes con un
lubricante aprobado. Lubrique todos los puntos de lubricación con un lubricante aprobado.
5-61
Procedimientos de Servicio Sección
MD6640 Perforadora Electrica Para Pozos De Tronadura
MOTOR DE ROTACIÓN
Las instrucciones de inspección, lubricación y mantención para el motor de rotación están descritas
en el Manual del Motor del fabricante. Para desmontar el motor de rotación, proceda de la siguiente
manera:
1. Baje la unidad de transmisión de rotación hasta la parte baja del mástil y hágala descansar
en los topes inferiores.
PRECAUCIÓN: Abra y rotule los interruptores de potencia auxiliar y de control en la sala
de máquinas. No intente desconectar los cables conductores del motor
con éstos interruptores cerrados. Está presente un voltaje peligroso y
es posible la electrocución si estos interruptores se dejan cerrados.
Motor De Accionamiento De Rotación – Detalles
2. Disponga que un electricista identifique y desconecte los cables eléctricos conductores hacia
el motor de rotación. Desmonte el cable desde la caja de conexión en el motor.
3. Desmonte las tuercas de fijación y las golillas.
5-62
Procedimientos de Servicio Sección
MD6640 Perforadora Electrica Para Pozos De Tronadura
4. Utilizando una grúa apropiada y sus aparejos, levante el motor desde la caja de engranajes
de rotación.
5. Repare o reemplace el motor según sea necesario.
6. El piñón del motor está fijado a presión al eje del motor. Refiérase alAPÉNDICE para encontrar
las instrucciones relacionadas con el reemplazo o instalación del piñón del motor.
7. Antes de la instalación del motor, limpie las superficies de montaje tanto de la caja de
engranajes como las del motor.
8. Instale el motor de rotación en el orden inverso al desmontaje. Apriete las tuercas de fijación
usando el método “turn-of-the-nut”.Apriete las tuercas a tope y luego un 1/3 de vuelta adicional.
5-63
Procedimientos de Servicio Sección
MD6640 Perforadora Electrica Para Pozos De Tronadura
ACOPLAMIENTO GIRATORIO DEAMORTIGUACIÓN
El acoplamiento giratorio de amortiguación es un conjunto opcional que reemplaza la mitad inferior
del acoplamiento giratorio standard. El acoplamiento de amortiguación se usa para reducir la
carga de choque transmitida a la unidad de transmisión de rotación.
NOTA: Los ProcedimientosDetallados en este
tópico son para un acoplamiento de
Caterpillar Global Mining. Ya que
acoplamientos fabricados por
compañías diferentes de Caterpillar
Global Mining se pueden surtir con la
máquina, asegúrese de ver que el
acoplamiento amortiguador que se está
reparando es de Caterpillar Global
Mining antes de utilizar el procedimiento
detallado mas abajo.
Inspeccione mensualmente el acoplamiento de
amortiguación para ver si hay pernos sueltos o
faltantes, otros desgastes o daños y si hay fugas
de aire. Cuando los amortiguadores se han
gastado hasta un punto que una precarga de
.0375” no se puede obtener más, los
amortiguadores deben ser reemplazados. Si el
aire de barrido se está escapando desde el
acoplamiento, se deben reemplazar los sellos.
En esa ocasión, revise también el tubo de sello
por si está gastado y reemplácelo si es necesario.
Acoplamiento Giratorio De
Amortiguación - Detalles
5-64
Procedimientos de Servicio Sección
MD6640 Perforadora Electrica Para Pozos De Tronadura
REPARACIÓN
PRECAUCIÓN: La operación o movimiento inesperado de la unidad e empuje y/o de la
caja de engranajes de rotación en un procedimiento de servicio o
inspección puede causar severas lesiones personales o la muerte. Baje
la unidad de empuje hasta la posición más baja posible o asegúrela en
su posición. Cierre y rotule los controles para prevenir operaciones
inesperadas.
La reparación del acoplamiento de amortiguación se limita al reemplazo de componentes dañados
o gastados. El reemplazo de cualquiera de los componentes requerirá desmontar la unidad.
Para desmontar el acoplamiento de amortiguación, proceda de la siguiente manera:
1. Ponga bloques firmemente bajo el acoplamiento de amortiguación y bájelo sobre los bloques.
Apague y rotule todos los controles.
2. Quite el alambre de cierre y las tuercas ranuradas desde los pernos del acoplamiento de
amortiguación. Saque los pernos y las golillas.
3. Asegúrese que la mitad inferior del acoplamiento esté debidamente bloqueado y luego levante
lentamente la maquinaria de rotación hasta que la sección inferior del eje de transmisión
salga de la mitad inferior del acoplamiento de amortiguación. Apague y rotule todos los
controles.
4. Separe el amortiguador superior e inferior, el retén del amortiguador, tubo de sello y sellos
desde la mitad inferior del acoplamiento de amortiguación.
5. Si la sección inferior del eje de transmisión necesita ser desmontada, use el procedimiento
del tópico CAJA DE ENGRANAJES DE ROTACIÓN – REPARACIÓN detallado en los pasos
20 y 22.
6. Limpie e inspeccione todos los componentes del conjunto. Reemplace los componentes
gastados o dañados según sea necesario.
7. Si se ha desmontado, reinstale la sección inferior del eje de transmisión según el tópico
CAJA DE ENGRANAJES DE ROTACIÓN – REPARACIÓN detallado en los pasos 31 y 32.
8. Ensamble el amortiguador superior e inferior, el retén del amortiguador, tubo de sello y sellos
a la sección inferior del acoplamiento.
9. Bloquee firmemente el conjunto en línea con la sección inferior del eje de transmisión. Baje
lentamente la unidad de rotación hasta que el eje quede asentado en el acoplamiento. No
comprima los amortiguadores. Tenga cuidado de no dañar los ellos.
5-65
Procedimientos de Servicio Sección
MD6640 Perforadora Electrica Para Pozos De Tronadura
10. Instale los pernos del acoplamiento, aplique locktite a los hilos y apriete con la mano las
tuercas ranuradas para establecer una altura libre. Refiérase a la carta de precarga de apriete
de tuercas.
11. Apriete las tuercas progresivamente, no más de ½ vuelta cada vez, hasta completar el
apriete. Instale alambre de cierre.
5-66
Procedimientos de Servicio Sección
MD6640 Perforadora Electrica Para Pozos De Tronadura
ESTRUCTURAGUÍADE ROTACIÓN/EMPUJE
Estructura Guía De Rotación/Empuje - Detalles
PRECAUCIÓN: La operación o movimiento inesperado de la unidad de empuje y/o de la
caja de engranajes de rotación en un procedimiento de servicio o
inspección puede causar severas lesiones personales o la muerte. Baje
la unidad de empuje hasta la posición más baja posible o asegúrela en
su posición. Cierre y rotule los controles para prevenir operaciones
inesperadas.
La estructura guía de rotación consiste de dos estructuras que soportan la maquinaria de rotación
y la maquinaria de empuje. La estructura guía también incluye los rodillos guía que se utilizan para
alinear y asegurar la unidad al mástil.
5-67
Procedimientos de Servicio Sección
MD6640 Perforadora Electrica Para Pozos De Tronadura
Inspeccione a diario la estructura guía en forma integral para determinar si hay herrajes sueltos o
faltantes. Inspeccione si los bloques de amortiguación están gastados o dañados y reemplácelos
si es necesario. Inspeccione si los piñones de la cremallera están gastados o dañados. Revise el
ajuste de los rodillos guía y ajústelos si es necesario. Inspeccione la alineación de la estructura
guía al mástil. Revise si las conexiones de la tubería principal de aire tienen fugas. Verifique que los
tacos guía que aseguran la caja de engranajes de rotación estén en su lugar y que las soldaduras
en los tacos estén intactas. Revise la lubricación de los piñones de la cremallera.
AJUSTE DE LOS RODILLOS GUÍA
Los rodillos guía en la estructura guía de rotación/empuje mantienen el ensamblaje alineado al
mástil y los piñones de cremallera en contacto con la cremallera del mástil. En la medida que los
rodillos guía se desgastan, se hace necesario ajustar periódicamente el espacio entre los rodillos
y viga T de montaje del bastidor del mástil. Para ajustar los rodillos guía proceda como sigue:
Raca de Piñon y Guia Superior de Rodillo - Detalles
1. Posicione la unidad de rotación/empuje de forma que los rodillos guía superiores y los piñones
de cremallera queden accesibles. Apague y rotule todos los controles.
2. Usando un gato apropiado o un dispositivo de tiro, tire o empuje el tope del retén del piñón de
cremallera contra el mástil, en ambos costados del mástil. Esto asegura que el juego de los
dientes del piñón es correcto.
NOTA: Siempre mida la distancia desde la cara de la columna “t” del mástil al centro del perno
de montaje del alojamiento del rodamiento. Esta medida se debe usar mas tarde para
determinar si la unidad está paralela al mástil. Esta distancia debería ser aproximadamente
16.785”.
5-68
Procedimientos de Servicio Sección
MD6640 Perforadora Electrica Para Pozos De Tronadura
Guia Inferior de Rodillos – Detalles
3. Quite el perno, tuerca y golilla desde la manilla del pasador excéntrico del rodillo guía superior
frontal. Mueva la manilla hasta que obtenga un espacio de .040” entre el rodillo y la columna
T del mástil. Asegure la manilla con el perno, tuerca y golilla.
4. Saque la tuerca, golilla y perno que asegura la manilla del pasador excéntrico del rodillo guía
inferior trasero. Mueva la manilla hasta posicionar el rodillo contra el mástil, luego mida la
distancia desde la cara del mástil al centro de los pernos de montaje de la caja de engranajes
de rotación. Esta distancia debería ser aproximadamente 16.035”. Si no es así, continúe
moviendo la manilla del pasador hasta alcanzar la medida especificada. Asegure la manilla
con el perno, golilla y tuerca.
5. Con un gato apropiado o un dispositivo de tiro, tire o empuje el tope del rodillo contra el
mástil.
6. Quite el perno, tuerca y golilla desde la manilla del pasador excéntrico del rodillo guía inferior
frontal. Mueve la manija hasta que exista el boquete de 0.06 pulgadas entre el rodillo y la
columna T del mástil.
7. Asegure la manilla con el perno, golilla y tuerca.
5-69
Procedimientos de Servicio Sección
MD6640 Perforadora Electrica Para Pozos De Tronadura
REPARACIÓN
La reparación de la estructura guía de rotación/empuje se limita al reemplazo de los componentes
gastados o dañados. No se recomienda la reparación con soldadura de ninguno de los
componentes. Ya que solo limitadas reparaciones son posibles a la estructura guía cuando está
instalada en la máquina, se asume para los propósitos de este manual, que la unidad completa de
rotación/empuje será desmontada desde la máquina, antes de las reparaciones. Es posible el
reemplazo de los piñones de cremallera y rodillos guía, sin desmontar la estructura guía desde la
máquina. Los procedimientos de reparación de estos componentes están incluidos en las
siguientes instrucciones.
Para desmontar el conjunto de la estructura guía completa con la caja de engranajes de rotación
y la maquinaria de empuje desde la máquina, proceda de la siguiente manera:
1. Baje la unidad de transmisión de rotación hasta su posición más baja y descánsela en los
topes inferiores del mástil. Abra los interruptores de potencia auxiliar y de control y rotule
todos los controles para prevenir una operación no autorizada.
2. Quite la tubería superior de aire desde el alojamiento giratorio y desde el ángulo guía. Bote la
empaquetadura. Use una nueva empaquetadura al rearmar.
3. Desconecte los conductores eléctricos al motor de rotación y de empuje y saque el cable
desde la unidad de transmisión.
4. Desconecte y saque las mangueras de lubricación hacia la unidad de transmisión, si así
está equipada.
5. Utilizando una grúa apropiada y sus aparejos, soporte la unidad completa de rotación/empuje.
6. Saque los pernos de fijación de las manillas de los pasadores excéntricos de los rodillos
guía frontales superior e inferior y gire las manillas para quitar la tensión sobre los rodillos al
mástil.
7. Quite los pernos que aseguran la plancha de desgaste.
8. Quite los pernos que aseguran el rodamiento a los pasadores excéntricos.
NOTA: Para desmontar los pernos de retención puede ser necesario rotar el pasador excéntrico
para tener acceso a los pernos.
9. Soporte el carrete de rodillos superiores y el rodillo frontal inferior y luego, usando las manillas
de los pasadores, tire los pasadores excéntricos frontales superior e inferior desde los rodillos,
alojamientos de rodamiento y estructuras guía.
10. Con la grúa y aparejos instalados en el paso 5, levante la unidad de rotación/empuje desde
el mástil y póngala sobre bloques de madera seguros.
5-70
Procedimientos de Servicio Sección
MD6640 Perforadora Electrica Para Pozos De Tronadura
11. Desmonte completamente los rodillos guía frontales superior e inferior y los pasadores
excéntricos los cuales fueron sacados en los pasos 7 y 8. Los rodamientos tienen una
fijación de interferencia de .0010 a .0030 a los rodillos y se requerirá de un extractor para
desmontarlos.
12. Saque los retenes del piñón del eje de carga y saque los piñones.
13. Refiérase a la figura y saque los pernos del retén del rodillo guía trasero y saque los retenes,
platinas, rodillos y espaciadores desde le pasador. Quite los rodamientos desde los rodillos.
Los rodamientos tiene una fijación de interferencia a los rodillos y se requerirá de un extractor
para desmontarlos.
14. Usando las manillas de los pasadores excéntricos, tire los pasadores excéntricos de los
rodillos guía traseros desde la estructura. Separe las manillas desde los pasadores excéntricos.
15. Separe el acoplamiento del motor de empuje. Saque los pernos de montaje del motor, tacos
guía y platinas. Con una grúa y aparejos apropiados, saque el motor.
16. Saque los dos separadores de la parte superior de la estructura guía. Saque la unidad de
protección de empuje.
17. Saque los pernos que aseguran los alojamientos de rodamiento de los extremos del eje de
carga a la estructura guía. Deslice los alojamientos hacia la caja de engranajes de empuje.
NOTA: El sello de laberinto externo del rodamiento del extremo del eje de carga está fijado a
presión al alojamiento del rodamiento y se requerirá de cierta cantidad de fuerza para
separarlo desde el alojamiento. Saque los sellos de laberinto externos.
18. Saque los pernos de montaje de la caja de engranajes de empuje, tacos guía y platinas. Con
una grúa y aparejos apropiados maniobre la caja de engranajes fuera de la estructura guía y
póngala sobre bloques de madera seguros.
19. Saque los pernos y quite la base desde la unidad de empuje.
20. Verifique que la caja de engranajes de rotación quede bien bloqueada y soportada.
21. Usando una grúa y aparejos apropiados, soporte un costado de la estructura guía.
22. Saque los pernos que aseguran la estructura guía a la caja de engranajes de rotación y
desmonte la estructura guía de la caja de engranajes de rotación.
NOTA: Será necesario desmontar los tacos guía superiores desde la estructura guía con el
objeto de desmontar la estructura guía desde la caja de engranajes de rotación.
5-71
Procedimientos de Servicio Sección
MD6640 Perforadora Electrica Para Pozos De Tronadura
23. Repita los pasos 21 y 22 para la estructura guía opuesta.
24. Limpie e inspeccione todos los componentes y reemplácelos según sea necesario.
25. Rearme las estructuras guía e instálelas sobre la máquina en forma opuesta al desmontaje,
tomando en cuenta lo siguiente:
a. Ubique y ensamble los alojamientos de rodamiento del eje de carga a la estructura
guía. Instale todos los pernos y tacos guía.
b. Ensamble los rodillos guía superiores e inferiores e instálelos a las estructuras guía.
Ponga platinas en los rodillos logrando un asiento de .003” de juego final en los rodillos.
Apriete los pernos de retención a un torque de 55 lbs.pie.
NOTA: Los rodillos frontales superior e inferiores deben ser desmontados cuando la unidad de
rotación/empuje es instalada en el mástil.
c. Instale sueltas las estructuras guía del lado izquierdo y derecho a la caja de engranajes
de rotación de forma que las estructuras guía puedan bascular hacia fuera para permitir
la instalación de la base de empuje.
d. Instale la base de empuje con espigas y pernos de separación. Instale las espigas y
los pernos de separación en la caja de engranajes de rotación y apriete todos los
pernos.
NOTA: Todas las espigas tienen que ser desmontadas después que se hayan instalado los
tacos guía y reemplazarlos por pernos.
Alineación De Acoplamientos
5-72
Procedimientos de Servicio Sección
MD6640 Perforadora Electrica Para Pozos De Tronadura
e. Instale la caja de engranajes de empuje y alíniela centrada con los alojamientos de
rodamiento del eje de carga. Instale las platinas necesarias a la caja para centrar el eje
a los alojamientos. Asegúrese que los retenes de montaje queden sueltos en el eje de
carga cuando instale la caja.
f. Instale los rodamientos en los alojamientos de rodamiento del eje de carga e instale
todos los retenes y piñones de cremallera. Ponga los tacos guía de la caja de engranajes
en su lugar.
g. Instale el motor de empuje y alinee el motor y los acoplamientos de la siguiente manera:
1. Verifique que la armadura del motor está centrada y luego posicione el motor de forma que
quede un espacio de .19” entre los ejes. (Aproximadamente 1.44” entre las caras de las
mazas del acoplamiento).
2. Los acoplamientos deberían quedar alineados entre .002” de desplazamiento horizontal y
.002” de desplazamiento angular. Para encontrar el desalineamiento angular, mida el espacio
(“L”) entre las mazas del acoplamiento a lo largo de su circunferencia. El punto 180º desde la
medida mínima debería quedar entre .002” (.0508 mm).
3. Use platinas bajo la base de montaje del motor para lograr la apropiada alineación.
4. Cuando quede apropiadamente alineado, apriete los pernos de montaje y suelde tacos guía
a la base del motor.
PRECAUCIÓN: En los pasos siguientes, al soldar los tacos guía, asegúrese de seguir
todas las precauciones de seguridad. También use equipamiento de
protección apropiado cuando manipule componentes calientes.
5. Rellene el acoplamiento con lubricante.
h. Ponga la unidad de rotación/empuje abajo e instale todos los tacos guía inferiores.
i. Desmonte los rodillos guía superiores e inferiores frontales e instale la unidad de
rotación/empuje en el mástil. Instale los rodillos guía superiores e inferiores frontales y
ajústelos de acuerdo a lo indicado en el tópico AJUSTE DE LOS RODILLOS GUÍA.
j. Instale la tubería de aire y las líneas de lubricación, Disponga que un electricista
reconecte los motores.
6. Lubrique todos los puntos y verifique la correcta operación de la unidad de rotación/empuje.
5-73
Procedimientos de Servicio Sección
MD6640 Perforadora Electrica Para Pozos De Tronadura
CAJA DE ENGRANAJES DE EMPUJE
PRECAUCIÓN: La operación o movimiento inesperado de la unidad de empuje y/o de la
caja de engranajes de rotación durante un procedimiento de servicio o
inspección puede causar severas lesiones personales o la muerte. Baje
la unidad de empuje hasta la posición más baja posible o asegúrela en
su posición. Cierre y rotule los controles para prevenir operaciones
inesperadas.
Inspeccione la caja de engranajes de empuje cada turno para ver si tiene herrajes sueltos o faltantes.
Revise si la caja de engranajes tiene pérdidas de lubricante y repare según sea necesario. Verifique
la operación del sistema automático de lubricación o lubrique manualmente todos los puntos según
sea necesario. Revise el nivel de lubricante de la caja de engranajes y adicione el lubricante apropiado
al nivel requerido. Si se ha acumulado agua en la caja de engranajes, quite el tapón de drenaje y
drene totalmente el depósito. Rellene la caja al nivel requerido con un lubricante aprobado.
Maquinaria De Empuje – Vista General
5-74
Procedimientos de Servicio Sección
MD6640 Perforadora Electrica Para Pozos De Tronadura
REPARACIÓN
La reparación de la caja de engranajes de empuje está limitada al reemplazo de componentes
gastados o dañados. La unidad puede ser reparada instalada sobre la máquina o puede ser
desmontada y reparada en otra parte. Refiérase al tópico ESTRUCTURA GUÍA DE ROTACIÓN/
EMPUJE para obtener el procedimiento necesario para desmontar el conjunto desde la máquina.
Para reparar la caja de engranajes de empuje, proceda de la siguiente manera:
NOTA: Para este procedimiento consideraremos que la caja de engranajes de empuje ha sido
desmontada desde la máquina según los pasos 17 hasta el 20 del tópico estructura guía
de rotación/empuje – reparación.
PRECAUCIÓN: Asegúrese que la estructura guía de rotación/empuje está asegurada al
mástil mediante un cable o por otros medios, ya que los piñones de
cremallera y los rodillos guía superiores han sido desmontados.
Caja De Engranajes Y Base De La Maquinaria De Empuje
5-75
Procedimientos de Servicio Sección
MD6640 Perforadora Electrica Para Pozos De Tronadura
Eje Primero Intermedio Y De Carga De La Maquinaria De Empuje
1. Eje de Carga 12. Platinas
2. Rodamiento 13. 1er. Engranaje Intermedio
3. Tuerca de Cierre 14. Cuña
4. Golilla de Cierre 15. 1er. Piñón Intermedio
5. Retén de Sello 16. Espaciador del Piñón
6. Anillo “O” 17. Rodamiento
7. Sello de Aceite 18. Espaciador
8. Sello de Laberinto 19. Espaciador
9. Espaciador de Rodamiento 20. Engranaje del Eje de Carga
10. Espaciador de Rodamiento 21. Caja de Engranajes
11. Retén de Rodamiento
1. Saque el espaciador de rodamiento desde los extremos del eje de carga. Use un extractor
para sacar los rodamientos desde los extremos del eje. Los rodamientos tienen una fijación
de interferencia al eje.
2. Deslice los alojamientos de rodamiento desde el eje y separe el sello de laberinto interior
desde el alojamiento.
5-76
Procedimientos de Servicio Sección
MD6640 Perforadora Electrica Para Pozos De Tronadura
3. Si no lo hizo previamente, drene la caja de engranajes.
4. Quite la tapa de rodamiento desde el extremo del piñón del segundo eje intermedio. Saque
los anillos “O” desde la tapa.
Segundo Eje Intermedio De La Maquinaria De Empuje
1. 2º Eje Intermedio 11. Retén de Sello
2. Rodamiento 12. Sello de Aceite
3. Retén de Rodamiento 13. Anillo “O
4. Tapa 14. Acoplamiento de Codificador
5. Anillo “O 15. Pasador de Acoplamiento
6. 2º. Engranaje Intermedio” 16. Codificador
7. Cuña 17.Alojamiento
8. Espaciador del Engranaje 18. Tapa
9. Rodamiento 19. Empaquetadura
10. Retén 20. Caja de Engranajes
5-77
Procedimientos de Servicio Sección
MD6640 Perforadora Electrica Para Pozos De Tronadura
5. Saque la tapa del alojamiento del codificador, empaquetadura y alojamiento desde el extremo
opuesto del segundo eje intermedio.
6. Saque los pasadores de resorte del acoplamiento del codificador, luego destornille y saque
el codificador y el acoplamiento. Saque el retén del soporte del codificador desde la caja de
engranajes. Saque el anillo “O” y el sello de aceite desde el retén.
7. Saque el retén del rodamiento desde cada extremo del eje de carga. Separe el anillo “O”, el
sello de aceite y el sello de laberinto desde cada retén.
8. Saque los pernos de varilla, los pasadores cónicos y los pernos que aseguran la tapa de la
caja de engranajes a la caja de engranajes. Con una grúa, levante la tapa desde la caja de
engranajes.
9. Levante el eje de carga desde la caja de engranajes. Saque el espaciador de rodamiento
desde el extremo largo del eje de carga.
10. Saque la tuerca de retención del rodamiento, golilla de cierre rodamiento y espaciador de
rodamiento desde cada extremo del eje.
11. Deslice el engranaje del eje de carga desde el eje.
12. Saque el retén del rodamiento del 1er. piñón intermedio y las platinas.
13. Presione el conjunto del piñón desde el eje. Los rodamientos tienen una fijación de interferencia
al eje. Saque el espaciador del piñón desde el eje.
14. Separe los rodamientos y espaciador desde el piñón. La copa del rodamiento del extremo de
freno tiene una fijación de interferencia al piñón y se necesitará de un extractor para
desmontarla.
15. El primer engranaje intermedio tiene una fijación de interferencia al piñón y solo se debería
desmontar si es necesario. Si el piñón y el engranaje necesitan ser separados, la conexión
de lubricación debe ser desmontada.
16. Levante el segundo eje intermedio desde la caja de engranajes. Saque el retén del rodamiento
del extremo del piñón y el rodamiento. El rodamiento tiene una fijación de interferencia al eje
y se necesitará de un extractor para desmontarlo.
17. Saque el retén del rodamiento del extremo del codificador y el rodamiento. El rodamiento
tiene una fijación de interferencia al eje y se necesitará de una pequeña fuerza para
desmontarlo.
18. Saque el espaciador del engranaje. El engranaje tiene una fijación de interferencia al eje y se
necesitará de un extractor para desmontarlo. Quite el engranaje y la cuña.
5-78
Procedimientos de Servicio Sección
MD6640 Perforadora Electrica Para Pozos De Tronadura
Eje De Entrada Maquinaria De Empuje
1. Eje Impulsor 14. Rodamiento
2. Rodamiento 15. Espaciador de Rodamiento
3. Alojamiento de Rodamiento 16. Sello de Aceite
4. Empaquetadura 17. Retén de Sello
5. Sello de Aceite 18. Empaquetadura
6. Espaciador 19. Suspensor de Aceite
7. Retén 20. Espaciador de Maza
8. Anillo “O” 21. Maza de Transmisión de Freno
9. Espaciador de Acoplamiento 22. Retén de Maza
10. Acoplamiento 23. Conjunto de Freno
11. Cuña 24. Espaciador de Rodamiento
12. Tuerca 25. Cuña
13. Plancha de Cierre 26. Platinas
19. Saque el alojamiento de freno y los pernos de montaje de la cámara. Deslice le conjunto de
freno desde la maza de transmisión de freno. Desmonte el freno tal como se indica en el
tópico FRENO DE LEVANTE.
5-79
Procedimientos de Servicio Sección
MD6640 Perforadora Electrica Para Pozos De Tronadura
20. Saque los pernos del retén de la maza de transmisión de freno y el retén. Saque la maza,
espaciador de maza y el suspensor de aceite.
21. En el acoplamiento del extremo del eje, saque los pernos del alojamiento del rodamiento.
Deslice el conjunto del eje desde la caja de engranajes. Quite la empaquetadura del
alojamiento.
22. Quite el espaciador y el rodamiento del extremo del eje del lado del freno. El espaciador y el
rodamiento tienen una fijación de interferencia al eje y se necesitará de una pequeña fuerza
para desmontarlos.
23. Use un extractor para desmontar la mitad del acoplamiento desde el extremo del eje.
24. Saque el retén de sello desde el alojamiento del rodamiento. Quite el anillo “O”, sellos de
aceite y espaciador de sello desde el retén.
25. Saque el espaciador de rodamiento y el espaciador del acoplamiento. El acoplamiento y el
rodamiento tienen una fijación de interferencia al eje y se necesitará de una pequeña fuerza
para desmontarlos. Saque el alojamiento y el rodamiento como una unidad y luego sepárelos.
26. Saque el retén de sello desde el lado del freno de la caja de engranajes. Quite la
empaquetadura y el sello de aceite desde el retén.
27. Limpie e inspeccione todos los componentes y repare o reemplace todos los componentes
dañados o gastados. Rearme en forma opuesta al desmontaje, tomando en cuenta lo siguiente:
PRECAUCIÓN: Durante el rearmado de la caja de engranajes de empuje hay ciertos
componentes que deben ser calentados o enfriados con el propósito de
ensamblarlos. Cuando caliente o enfríe un componente tome todas las
precauciones necesarias y use equipamiento de protección apropiado
cuando manipule los componentes calentados o enfriados.
a. Los rodamientos del eje impulsor, los espaciadores de rodamiento y la mitad del
acoplamiento tienen una fijación de interferencia al eje y requerirán ser calentados
para instalarlos.
b. Use compuesto de sellado para hilos en los pernos de retención de la maza del freno,
en los pernos de retención del sello de aceite de rodamiento del extremo del
acoplamiento y en los pernos de montaje del anillo de transmisión de freno.
c. Llene la cavidad entre los sellos con lubricante al ensamblarlos.
5-80
Procedimientos de Servicio Sección
MD6640 Perforadora Electrica Para Pozos De Tronadura
d. El rodamiento del segundo eje intermedio y el engranaje tienen una fijación de
interferencia al eje y requerirán ser calentados para instalarlos.
e. Use compuesto de sellado para hilos en los pernos de cabeza hueca del retén de
rodamiento del extremo del codificador.
f. El primer eje intermedio debe ser ensamblado de la forma siguiente:
1. Instale el espaciador interior del piñón en el eje.
2. Si durante el desmontaje se quitó, reinstale el engranaje en el piñón. El engranaje
tiene fijación de interferencia al piñón y requerirá ser calentado para instalarlo.
Asegúrese de instalar la cuña en el engranaje.
3. Instale la pista externa del rodamiento interno en el piñón. La pista tiene fijación de
interferencia al piñón y requerirá ser enfriada para instalarla. Deslice el conjunto
del piñón sobre el eje de carga hasta el final.
4. Caliente las pistas internas de los rodamientos del piñón e instálelas con espaciador
entre ellas. Luego use un espaciador especial suministrado con las herramientas
para golpear las pistas del rodamiento. Asegure el conjunto con la tuerca de cierre
del rodamiento.
5. Ensamble las pistas externas y retenes faltantes. Instale tres pernos espaciados
en forma equidistante y apriételos con un torque de 50 lbs.pie. Mida el espacio en
los tres orificios sin usar y calcule el promedio. Instale un paquete de platinas igual
al espacio promedio y luego instale y apriete todos los pernos de retención.
6. Saque el espaciador especial e instale el material faltante.
5-81
Procedimientos de Servicio Sección
MD6640 Perforadora Electrica Para Pozos De Tronadura
FRENO DE LEVANTE
PRECAUCIÓN: La operación o movimiento inesperado de la unidad de empuje y/o de la
caja de engranajes de rotación durante un procedimiento de servicio o
inspección puede causar severas lesiones personales o la muerte. Baje
la unidad de empuje hasta la posición más baja posible o asegúrela en
su posición. Cierre y rotule los controles para prevenir operaciones
inesperadas.
El freno de levante es un freno de accionamiento por resortes y de apertura eléctrica.
INSPECCIÓN
Inspeccione periódicamente el desgaste del freno (cada 2.000 horas mínimo) midiendo el intervalo
de aire a través de las ranuras en la jaula. Una indicación del desgaste del freno es una señal de
falla en la apertura del freno. Cuando el intervalo de aire se torna excesivo, el freno no se abrirá.
Cuando el intervalo de aire alcanza .065”, la abertura debería ser ajustada. La operación normal de
la abertura es de .050”. Cuando el paquete de discos de fricción se desgasta a la mitad de su
espesor original, el paquete de discos de fricción debe ser reemplazado.
Ajustes Del Desgaste Del Freno
5-82
Procedimientos de Servicio Sección
MD6640 Perforadora Electrica Para Pozos De Tronadura
Freno De Levante – Detalles
1. Cuerpo del Magneto 10. Varilla de Ajuste
2. Conjunto de Resortes de Presión 11. Calibrador de Relleno
3. Jaula 12. Tuerca de Plancha
4. Anillo “O” de la Jaula 13. Perno de Abertura Manual
5. Armadura 14. Switch Límite
6. Disco Intermedio 15. Soporte de Switch
7. Disco de Fricción 16. Alojamiento
8. Anillo de Ajuste de Desgaste 17. Caja Conduit
9. Maza 18. Bloque Terminal
5-83
Procedimientos de Servicio Sección
MD6640 Perforadora Electrica Para Pozos De Tronadura
AJUSTE DEL DESGASTE DEL FRENO
1. Asegúrese que la maquinaria del mástil esté bloqueada o manualmente cerrada en la posición
más baja ya que el freno necesita ser aliviado para realizar el ajuste.
2. Retire los pernos del alojamiento y el alojamiento del freno teniendo cuidado para mantener
libre de daños los switches ubicados en la circunferencia del alojamiento del arrollamiento.
3. Inserte calibradores de bronce de relleno (.050 suministrados con el freno) dentro del intervalo
de aire en las tres ranuras y alivie el freno eléctricamente o con los pernos de alivio manual.
4. Quite los pernos de cierre desde el anillo de ajuste de desgaste en las ranuras de la jaula.
5. Inserte la varilla de ajuste dentro de uno de los orificios en el anillo de ajuste de desgaste y
gire hacia la izquierda (contra las manillas de reloj) hasta el final de la ranura. Repita hasta
que sienta resistencia.
6. Retire los calibradores y gire el anillo de ajuste al extremo más cercano de la ranura. Saque
la varilla y reinstale los pernos de cierre.
7. Asegúrese de que los switches de abertura del freno estén limpios y actúen libremente.
8. Accione el freno y reinstale el alojamiento. Aplique una capa de sellante de silicona a todas
las juntas exteriores.
REEMPLAZO DE LOS DISCOS DE FRICCIÓN
1. Energize el magneto y amordace la armadura al cuerpo del magneto con cuatro pernos de
apertura manual. Desenergice el magneto y saque los cables conductores.
2. Saque los pernos de montaje de la jaula y el conjunto del cuerpo del magneto y la armadura.
Retroceda levemente el anillo de ajuste de desgaste para lograr espacio para un nuevo
paquete de discos de fricción.
3. El paquete de discos de fricción se puede deslizar ahora desde la maza y la jaula. Note el
orden del paquete de forma que los nuevos componentes puedan ser instalados
correctamente.
4. Reinstale los nuevos discos de fricción en el orden correcto con los discos intermedios, tal
como se muestra en la figura.
5-84
Procedimientos de Servicio Sección
MD6640 Perforadora Electrica Para Pozos De Tronadura
5. Reinstale el conjunto del cuerpo del magneto y la armadura. (Las flechas de metal
estampadas en cada componente deben quedar en línea).
6. Reconecte los cables conductores, energize el freno y saque los cuatro pernos de apertura
manual.
7. Instale el intervalo de aire a .050” según AJUSTE DEL DESGASTE DEL FRENO.
DESMONTAJE DEL CUERPO DEL MAGNETO Y LAARMADURA
1. Ponga el conjunto en compresión con el espaciador.
2. Compresione la armadura contra el cuerpo del magneto y saque los pernos de apertura
manual de la armadura. (se requiere una fuerza de 6.500 lbs de presión).
3. Alivie presión lentamente de la compresión, hasta que la presión de los resortes sea aliviada.
Quite la armadura. La presión del conjunto de los resortes no debería ser removida.
MONTAJE DEL CUERPO DEL MAGNETO Y LAARMADURA
1. Ponga el cuerpo del magneto con el lado de la pestaña hacia arriba sobre el espaciador en
una prensa base.
2. Inserte los conjuntos de resortes de presión e instale la armadura en su lugar teniendo la
seguridad de alinear las flechas en la armadura y en el cuerpo del magneto. Inserte pasadores
temporales en los orificios de los pernos de apertura para alineación.
3. Compresione la armadura contra el cuerpo del magneto (se requiere una fuerza de 6.500
lbs de presión), saque los pasadores temporales e instale cuatro pernos de apertura manual.
Apriete los pernos para sujetar la armadura al cuerpo del magneto. Remueva la compresión
del conjunto.
5-85
Procedimientos de Servicio Sección
MD6640 Perforadora Electrica Para Pozos De Tronadura
PORTABARRAS
Los portabarras en la MD6640 se usan para almacenar las barras de perforación en una posición
desde donde ellas puedan ser fácilmente insertadas en la columna de perforación. Los portabarras
están operados por un cilindro hidráulico los cuales oscilan el soporte a una posición para aceptar
o entregar la barra de perforación.
Inspeccione diariamente los portabarras por si hay herrajes sueltos o faltantes o cualquier desgaste
o daño. Inspeccione si los soportes operan apropiadamente en cada turno. Verifique que la barra
esté firmemente asegurada por la compuerta superior. Revise que los cilindros de operación operen
debidamente y no tengan pérdidas de aceite. Revise si los bujes de los portabarras están gastados
y reemplácelos según sea necesario. Revise la correcta operación de los trinquetes en el bolsillo
del extremo inferior del portabarras. Quite cualquier suciedad, hielo o escombros desde le bolsillo
de la barra y verifique el funcionamiento del sistema de operación de la compuerta si no hay barra
alojada en el soporte. Lubrique todos los puntos con el lubricante requerido.
Portabarras Lado Derecho - Detalles
5-86
Procedimientos de Servicio Sección
MD6640 Perforadora Electrica Para Pozos De Tronadura
Portabarras Lado Izquierdo - Detalles
5-87
Procedimientos de Servicio Sección
MD6640 Perforadora Electrica Para Pozos De Tronadura
REPARACIÓN
No hay componentes de desgaste en los portabarras con la excepción de los bujes. Todos los
componentes mayores del portabarras deberían subsistir a través de la vida total de la máquina.
La reparación de los portabarras está limitada al reemplazo de bujes y golillas de presión.
Para reemplazar los bujes y las golillas de presión, proceda de la siguiente manera:
1. Levante la unidad de accionamiento de rotación hasta su posición más alta e instale el freno
de levante.
2. Desconecte, tape y rotule todas las líneas hidráulicas al portabarras.
3. Asegure el portabarras para prevenir movimientos.
4. Quite los pernos que fijan el brazo pivotante superior al soporte del brazo. Saque el brazo y
luego quite el buje desde el brazo.
5. Quite el retén del buje. Saque la mitad del buje dividido desde el retén del buje.
6. Asegure una grúa y aparejos apropiados al portabarras. Separe y desmonte el cilindro de
posicionamiento del soporte. Con la grúa, levante el portabarras desde la plataforma inferior
del mástil.
7. Saque los bujes y golillas de presión desde la plataforma inferior del mástil y la mitad del buje
dividido desde el bloque de retención del buje.
8. Limpie e inspeccione todos los componentes. Reemplace los componentes gastados o
dañados según sea necesario.
9. Reinstale en forma opuesta al desmontaje, lubrique todos los puntos de lubricación y revise
su apropiada operación.
5-88
Procedimientos de Servicio Sección
MD6640 Perforadora Electrica Para Pozos De Tronadura
Equipos Variables Del Portabarras
5-89
Procedimientos de Servicio Sección
MD6640 Perforadora Electrica Para Pozos De Tronadura
LLAVE DE HERRAMIENTAS
Las llaves de herramienta consisten de la Llave de Herramientas y de la Llave de Desenroscar.
Ellas se usan para amordazar la barra de perforación con el objeto de abrir la unión de barras. Las
llaves de herramienta son dos cilindros hidráulicos construidos especialmente que operan dentro
de una carcasa cuadrada. Un trinquete cargado con resortes engancha una cavidad en la barra de
perforación para prevenir la rotación de la barra.
Llave De Herramientas - Detalles
nspeccione a diario las llaves de herramienta por si tienen herrajes sueltos o faltantes y cualquier
desgaste o daño. Inspeccione en cada turno la correcta operación de las llaves de herramienta.
Inspeccione cada llave y las líneas hidráulicas asociadas por si tienen fugas de aceite y repare
inmediatamente cualquier fuga encontrada. Verifique que los trinquetes estén totalmente extendidos
y asegurados con la barra de espiga. Verifique que las llaves puedan pivotar sobre el pasador
5-90
Procedimientos de Servicio Sección
MD6640 Perforadora Electrica Para Pozos De Tronadura
trasero. Limpie cualquiera acumulación de detritus desde entre las llaves. Verifique que los bloques
de tope estén intactos y en su lugar. Verifique que los bloques de rodamiento del pasador trasero
estén asegurados firmemente a la plataforma de perforación y que los pernos de anclaje de la
varilla del pistón estén apretados. Lubrique el conjunto con un lubricante aprobado, en los intervalos
recomendados.
REPARACIÓN
La reparación de las llaves de herramienta se limita esencialmente al reemplazo de los insertos de
trinquete. El reemplazo de la llave de herramienta completa se realiza sacando las dos líneas
hidráulicas desde la varilla del pistón y luego sacando los cuatro pernos que aseguran los bloques
de rodamiento. La reparación de la llave misma sigue los procedimientos standard de reparación
de los cilindros hidráulicos.
Para reemplazar los insertos de trinquete, proceda de la manera siguiente:
1. Saque la llave de herramientas defectuosa desde la plataforma de perforación sacando las
líneas hidráulicas de entrada a la varilla del pistón y luego sacando los cuatro pernos que
aseguran los bloques de rodamiento a la plataforma de perforación.
2. Utilizando equipamiento apropiado comprima levemente los resortes de trinquete para quitar
presión desde el pasador de retención del trinquete.
3. Utilizando equipamiento apropiado, saque el pasador de retención del trinquete.
PRECAUCIÓN: El trinquete está cargado por resortes. Asegúrese de contener
adecuadamente el trinquete antes de remover el pasador de retención.
La omisión de contener el trinquete resultará en que éste sea proyectado
con fuerza desde el cuerpo del cilindro, causando posiblemente la muerte
o serias lesiones al personal en el área.
4. Alivie totalmente la presión sobre los resortes de trinquete. Cuando la presión quede totalmente
aliviada, saque el trinquete y los resortes de trinquete desde el cuerpo del cilindro.
5. Inspeccione los resortes y el trinquete y reemplace según sea necesario.
6. Lubrique los resortes y el trinquete con un lubricante aprobado y rearme los componentes
en orden opuesto al desmontaje.
5-91
Procedimientos de Servicio Sección
MD6640 Perforadora Electrica Para Pozos De Tronadura
LLAVE DE DESENROSCAR
La llave de desenroscar es usada para abrir la unión de las barras que no se abren utilizando la
unidad de rotación.
Con la barra asegurada con las llaves de herramienta, el switch de la llave de desenroscar se gira
hacia y se sujeta en la posición EXTENDIDA. La llave de desenroscar se extiende, amordaza la
barra y luego gira abriendo la unión de la barra.
REPARACIÓN
La llave de desenroscar debe ser inspeccionada a diario por si tiene desgaste o daños, herrajes
faltantes o sueltos así como la apropiada operación. La reparación de. la llave de desenroscar
está limitada al reemplazo de componentes gastados o dañados.
5-92
Procedimientos de Servicio Sección
MD6640 Perforadora Electrica Para Pozos De Tronadura
AJUSTES
Si los insertos de las mandíbulas no contactan la barra, ajuste la llave de desenroscar de la siguiente
manera:
1. Saque la chaveta de pasador desde el pasador.
2. Saque los anillos divididos desde el montaje de horquilla.
3. Gire el cilindro afuera del montaje de horquilla.
4. Levante el cilindro fuera del pasador de varilla.
5. Destornille el ojal de la varilla una vuelta completa desde la varilla del cilindro.
6. Reinstale el cilindro en el orden inverso, excepto la chaveta del pasador.
7. Revise la operación de la llave. Si los insertos contactan la barra, vaya al paso 8. Si los
insertos no contactan la barra, repita los pasos 2 hasta el 7.
NOTA: Si los insertos del brazo contactan la barra pero los insertos de la mandíbula no lo hacen,
algo está impidiendo mecánicamente el movimiento de la llave. Revise todas las áreas
por si hay interferencias de suciedad, escombros u objetos sueltos
5-93
Procedimientos de Servicio Sección
MD6640 Perforadora Electrica Para Pozos De Tronadura
WINCHEAUXILIAR
El winche auxiliar se usa para levantar las herramientas hacia dentro y afuera de la plataforma de
perforación. El winche consiste de un carrete accionado hidráulicamente en la base del mástil, un
cable con gancho y poleas guía para el cable en la parte superior del mástil.
El nivel de aceite en el winche debe ser revisado mensualmente. Las poleas en la parte superior
del mástil deben ser revisadas cada mes para verificar si tienen desgastes o daños. Una vez al
año, los rodamientos de las poleas deberían ser recargados con lubricante.
Para la reparación del winche hidráulico, refiérase al capítulo SISTEMA HIDRÁULICO de este
manual.
5-94
Procedimientos de Servicio Sección
MD6640 Perforadora Electrica Para Pozos De Tronadura
TIRANTES DEL MÁSTIL
Los tirantes del mástil de la MD6640 son usados para soportar el mástil durante la perforación
inclinada.
Tirantes Del Mástil - Detalles
Inspeccione a diario los tirantes del mástil por si tienen herrajes sueltos o faltantes o cualquier
desgaste o daño. Reemplace cualquier herraje faltante y repare cualquier daño inmediatamente.
Revise diariamente los pasadores superiores de anclaje, golillas y pernos de retención,
asegurándose que los pasadores de retención estén en su lugar. Inspeccione si la estructura de
los tirantes del mástil tiene fisuras u otros daños. Repare la estructura de los tirantes del mástil
con las técnicas de reparación por soldadura indicada en el apéndice. Inspeccione si los pasadores
telescópicos de cierre tienen desgaste. Los cilindros de los pasadores telescópicos de cierre y las
líneas hidráulicas deberían ser revisadas diariamente por si tienen filtraciones. Verifique que las
tuercas de cierre de los pernos de ajuste estén apretadas y que los tirantes del mástil están
apropiadamente ajustados.
5-95
Procedimientos de Servicio Sección
MD6640 Perforadora Electrica Para Pozos De Tronadura
Inspeccione si las camisas y soportes de los tirantes del mástil tienen desgastes y daños o herrajes
sueltos o faltantes. Lubrique todos los pasadores con un lubricante aprobado y en los intervalos
recomendados. Lubrique el perno de ajuste con un aceite inhibidor de oxidación según se requiera.
REPARACIÓN
Los tirantes del mástil, normalmente no son considerados como ítems de desgaste, por lo tanto
ninguna reparación requerida tendrá que ser manejada sobre una base individual.
PRECAUCIÓN: Los tirantes del mástil son componentes críticos, especialmente en
máquinas para perforación inclinada. Consulte al departamento de
servicio de Caterpillar Global Mining antes de intentar reparaciones
mayores o modificaciones.
AJUSTES
Normalmente los tirantes del mástil son ajustados durante el montaje de la máquina y ajustes
posteriores no son necesarios. En circunstancias especiales se puede requerir el reajuste de los
tirantes del mástil a su condición original. Para reajustar los tirantes del mástil proceda de la
siguiente manera:
1. Saque los pasadores telescópicos de cierre desde los tirantes del mástil.
2. Nivele cuidadosamente la máquina. Asegúrese de que las cuatro esquinas de la máquina
tienen la misma elevación y que el mástil está posicionado verticalmente.
3. Suelte las tuercas de cierre de los pernos de ajuste.
4. Gire los pernos de ajuste hasta que los pasadores telescópicos de cierre puedan ser
insertados libremente (aproximadamente 14.25” +/- 2.50” desde la línea central del pasador
del perno de ajuste hasta el extremo del tirante).
5. Apriete los pernos de ajuste en su posición con la tuerca de cierre.
PRECAUCIÓN: Cuando los tirantes del mástil son ajustados, no es necesario variar el
ajuste a menos que sea reemplazado el tirante del mástil. Las dificultades
en insertar los pasadores de los tirantes del mástil, usualmente son
producto de que la máquina no está nivelada o que el mástil no está
vertical. Los ajustes arbitrarios de los tirantes del mástil sin nivelar
cuidadosamente la máquina pueden causar serios daños al mástil y
deberían ser evitados.
NOTA: El ajuste apropiado de los tirantes del mástil se hacen con la máquina nivelada y soportada
sobre los gatos. Se encontrarán dificultades mas tarde, para la remoción o reinstalación
de los pasadores telescópicos de cierre, si la máquina está descansando sobre las
orugas.
5-96
Procedimientos de Servicio Sección
MD6640 Perforadora Electrica Para Pozos De Tronadura
SISTEMA HIDRÁULICO
OPERACIÓN DEL SISTEMA
La siguiente descripción tiene por objeto ayudar al personal de terreno en la comprensión del
sistema hidráulico de la perforadora de pozos de tronadura MD6640 y de su operación. Las
explicaciones consisten de una visión general del sistema y la relación entre los diagramas con
los componentes reales en la perforadora.
La MD6640 tiene dos grandes sistemas hidráulicos separados, aunque no independientes: El
circuito de Propulsión y el circuito de Cilindros.Ambos sistemas aspiran su aceite desde un estanque
común de 108 galones de capacidad. Las bombas para los circuitos están accionadas mediante
una caja de transmisión de engranajes por el motor del compresor principal. La caja de transmisión
de engranajes aumentará, disminuirá o mantendrá la misma relación de velocidad entre la velocidad
del motor y la velocidad de la bomba. El motor del compresor principal determina la relación de
engranajes de la caja de engranajes.
El circuito de propulsión consiste de dos bombas hidráulicas/accionamiento motriz, una para
cada oruga. Adosada a la bomba de propulsión izquierda hay una bomba de engranaje simple la
cual suministra aceite bajo presión a los gatos de nivelación y para los cilindros de levante del
mástil y accionadores. Adosada a la bomba de propulsión derecha hay una bomba de engranajes
de dos etapas. La bomba extrema proporciona presión de control para las bombas de propulsión
así como presión piloto para el levante del mástil, winche auxiliar y las válvulas del portabarras.
Esta bomba también suministra aceite para el accionamiento del cilindro de la compuerta para ver
la broca, los cilindros de la escalera de acceso y para el sistema de lubricación.
Componentes Hidráulicos – Vista General
5-97
Procedimientos de Servicio Sección
MD6640 Perforadora Electrica Para Pozos De Tronadura
El circuito de propulsión incluye los controles de freno para cada oruga. Para propósitos de remolque,
el sistema está equipado con una bomba manual, para alivio manual de los frenos de las orugas.
La bomba al final del eje, en la bomba de engranajes de dos etapas, suministra aceite bajo presión
al resto de los cilindros hidráulicos y accionadores de la máquina.
Si la máquina está equipada con portacable, el sistema hidráulico completo, incluyendo el tanque,
bomba y motor, son parte de la unidad del portacable.
El sistema está totalmente sellado y filtrado con el objeto de mantener el aceite tan limpio como
sea posible.
La caja de engranajes con las bombas, está montada al eje de transmisión trasero del motor del
compresor principal de aire. El tanque, enfriador de aceite y la estructura principal de las válvulas
de distribución, está ubicado en la parte trasera de la sala de máquinas y los variados cilindros
están montados en distintos puntos alrededor de la máquina.
SISTEMA HIDRÁULICO DEL CIRCUITO DE LOS CILINDROS
Los fluidos para este sistema se suministran desde el tanque común de 108 galones. La bomba
de engranaje simple y la bomba de engranajes de dos etapas, suministran aceite a los accionadores
en los siguientes rangos:
2704 R.P.M. @ 60 HZ
Bomba Simple 65 GPM
Bomba final del Eje 17 GPM
Bomba Extrema 18 GPM
2253 R.P.M. @ 50 HZ
Bomba Simple 54 GPM
Bomba final del Eje 14 GPM
Bomba Extrema 15 GPM
La estación múltiple de distribución del conjunto de válvulas contiene válvulas de control para una
variedad de accionadores. Usualmente, las válvulas de control se ensamblarán en grupos – un
grupo para cada accionador. Un grupo típico de válvulas podría incluir una válvula de alivio, una de
retención, una válvula de desconexión rápida para pruebas de presión y una válvula solenoide.
La mayoría de las líneas hidráulicas van desde el distribuidor de válvulas a mamparos y desde allí
a los accionadores. Todo aceite que retorna hacia el tanque pasa a través de filtros de 10 micrones
antes de entrar al tanque.
5-98
Procedimientos de Servicio Sección
MD6640 Perforadora Electrica Para Pozos De Tronadura
SISTEMA HIDRÁULICO DEL CIRCUITO DE PROPULSIÓN
El fluido para el sistema de propulsión también se suministra desde el tanque de 108 galones. La
mayoría de las válvulas de control hidráulico del circuito de propulsión, son módulos apernados
directamente a las bombas. La válvula de presión piloto y las válvulas de freno están separadas de
la bomba. El aceite para cada circuito de control de la bomba es dirigido a través de filtros de 10
micrones equipados con una válvula de derivación de 25 PSID.
La presión piloto es controlada a 1000 PSI sumando los 850 PSI de la válvula de alivio y los 150 PSI
de alivio de sobrecarga.
Las bombas están equipadas con dos conjuntos principales de anulación de alivio/presión referidas
a una válvula de combinación; una para el lado de propulsión adelante y otra para el lado de
propulsión reversa.
La porción de anulación de presión del conjunto se instala a 4500 PSI.
La válvula de anulación de presión previene continuos vaciamientos de flujo excesivo, a presión de
carga, a través de las válvulas principales de alivio. Esto elimina calentamiento innecesario del
aceite y protege de daños al motor y la bomba.
MANTENCIÓN GENERAL
LIMPIEZA DEL SISTEMA HIDRÁULICO
Es extremadamente importante usar el aceite correcto en el sistema. Es igualmente importante
mantener el aceite limpio. Cada vez que un procedimiento de reparación requiere que una conexión
sea abierta o que un componente sea reemplazado, primero limpie el área inmediata alrededor de
la unión y/o del componente a ser reemplazado. Este paso es requerido para asegurar que ningún
contaminante entre a través de las líneas hidráulicas o de los componentes de reemplazo.
Mientras ejecuta la reparación mantenga todo limpio y también mantenga las aberturas cubiertas
o tapadas hasta que sean reconectadas. La contaminación es la causa más común de problemas
en un sistema hidráulico. Esto causa excesivo desgaste de componentes, interfiere con las
aberturas estrecha y obstaculiza la operación normal.
NOTA: Nunca agregue aceite al sistema sacando el respirador del tanque y vaciándolo adentro
a traves del embudo. Aún los tambores nuevos están sucios y pueden causar válvulas
pegadas.
Cuando se agrega aceite hidráulico al sistema, éste siempre debe ser bombeado dentro del sistema.
La línea de descarga de la bomba debería fijarse al acoplamiento rápido en la parte superior del
tanque. Esta conexión asegura que el aceite nuevo pasará a través de los filtros de retorno del
tanque antes de entrar al sistema.
5-99
Procedimientos de Servicio Sección
MD6640 Perforadora Electrica Para Pozos De Tronadura
Si la bomba usada para adicionar el aceite está equipada con un porta filtro y la bomba a sido
usada para otros fluidos, el sistema de la bomba y el porta filtro deben ser purgados del otro fluido
antes de conecta la unidad de bomba al acoplamiento rápido. Esta purga se puede realizar lavando
la bomba y el porta filtro con lo menos un galón del aceite hidráulico especificado.
REQUERIMIENTOS DE ACEITE
Para estándares de aceite hidráulico, refiérase a la Sección 3 de este manual, ACEITE
HIDRÁULICO.
CAMBIO DE ACEITE Y FILTROS
Durante la operación normal, cambie el elemento cuando sea indicado por el indicador de la
condición del filtro con el aceite a temperatura de operación normal y cada vez que el aceite sea
cambiado.
NOTA: Antes de cambiar el elemento, abra el interruptor de circuito para el motor de la bomba
hidráulica. Asegúrese que no hay presión en el sistema para prevenir posibles fugas de
aceite.
La frecuencia de cambio del aceite hidráulico depende del tipo de aceite usado en su máquina.
Este ciclo puede variar desde 2.000 horas para aceites tipo grado estándar de base de petróleo
como el determinado por los estándares de lubricante, hasta 8.000 horas para ciertos aceites de
hidrocarburos sintéticos determinado por los estándares de lubricante. Estas frecuencias de cambio
se pueden acorta o alargar dependiendo de la condición del aceite. Para determinar la condición
de los aceites, se deberían tomar muestras periódicas (ej. cada 200 horas) y ser analizados por
un fabricante reputado. Cuando tome muestras de aceite, nunca tome la muestra desde el sistema
de drenaje del tanque. Si es posible, la muestra debería ser tomada desde un punto cercano al
distribuidor de retorno, justo antes de los filtros de retorno.
PRECAUCIÓN: Para minimizar peligros de incendio, no se permite abrir llamas u otras
fuentes de ignición cuando se cambia aceite.
El agua debe ser drenada una vez al día, desde la base del tanque de aceite hidráulico, luego de un
periodo de detención y cuando el aceite esté frío.
El tanque de aceite hidráulico contiene 108 galones de aceite.
5-100
Procedimientos de Servicio Sección
MD6640 Perforadora Electrica Para Pozos De Tronadura
PAUTAS DE MANTENCIÓN SEMANAL
Revise la correcta operación de todos los componentes del sistema. Las válvulas, cilindros, motores
y bombas deberían operar suavemente, sin vibraciones o trabaduras. Revise el nivel de aceite en
el tanque. El tanque debería estar casi lleno (108 galones) cuando el mástil está horizontal y todos
los otros cilindros están retraídos. Cuando el mástil está horizontal y todos los otros cilindros
están retraídos, el nivel del tanque debería estar ligeramente bajo 7/8.
PRECAUCIÓN: Antes de rellenar fluido en el tanque hidráulico, verifique que los cilindros
del mástil estén extendidos y todos los otros cilindros estén retraídos.
La omisión de cumplir lo anterior (ej. Los cilindros de los gatos extendidos)
llenará en exceso el tanque cuando los cilindros de los gatos sean
retraídos, causando la ruptura del tanque.
PRECAUCIÓN: No opere con bajo nivel de aceite. La operación con bajo nivel de aceite
puede causar cavitación y bolsas de aire. Esto causará operaciones
fallidas y también puede causar daños a los componentes del sistema.
Inspeccione todos los componentes y líneas para asegurarse de que están en buenas condiciones
de operación. Revise si hay cilindros obstruidos o distorsionados. Inspeccione si el sistema tiene
fugas. Si se encuentra una fuga, apriete los tornillos o las conexiones alrededor del área de fuga,
antes de iniciar reparaciones mayores. Si la fuga no se detiene, puede ser necesario entonces
reparar o reemplazar la parte con fugas. Si un anillo “O” está dañado o falta desde el sistema de
tubería hidráulica, revise el juego de anillos “O” Nº 68120749 para obtener anillos “O” de recambio.
REPARACIONES DEL TANQUE DE ACEITE
El tanque de aceite hidráulico tiene un revestimiento epóxico en su parte interna para prevenir
incrustaciones y oxidación.
PRECAUCIÓN: No suelde en el tanque: se dañará el revestimiento.
PROCEDIMIENTO DE ALIVIO DE PRESIÓN DE LA VÁLVULA DE EQUILIBRIO (O DE
COMPENSACIÓN) DE LOS GATOS DE NIVELACIÓN
Si es necesario trabajar en la válvula de equilibrio de los gatos de nivelación por cualquier razón,
alivie la presión en el cilindro, usando el siguiente procedimiento:
1. Posicione la máquina con las orugas en el suelo y los gatos retraídos, de forma que las
zapatas de los gatos queden aproximadamente a una pulgada desde el suelo.
2. Apague la bomba hidráulica y alivie cualquier presión en el sistema destornillando el respirador
del tanque. Cuando el aire atrapado en el tanque se alivie, reapriete inmediatamente el respirador.
5-101
Procedimientos de Servicio Sección
MD6640 Perforadora Electrica Para Pozos De Tronadura
GATOS TRASEROS
1. Desacople el conector rápido usando una llave de extremo abierto de 1¼”. El terminal macho
del conector rápido permanecerá conectado a la válvula.
2. Quite el otro extremo de la manguera con conector rápido desde la caja eléctrica de conexión
sobre el gato.
3. Ponga el extremo de la manguera sacada desde la caja eléctrica de conexión dentro de un
contenedor limpio de cinco galones.
4. Reconecte el conector rápido. Cuando la conexión casi se complete, el aceite saldrá desde
el extremo de la manguera en el contenedor y la zapata del gato caerá al suelo. Esto aliviará
toda la presión sobre el vástago del pistón y creará un vacío en el extremo del alojamiento del
cilindro.
PRECAUCION: Mantenga siempre un firme agarre de la manguera mientras el aceite
fluye desde ella. No permita que el flujo de aceite contacte su piel ya que
pueden ocurrir lesiones.
5. Cuando el flujo de aceite se haya detenido y la zapata del gato esté en el suelo, el extremo
suelto de la manguera puede ser reconectada a la caja eléctrica de conexión.
6. Con la presión totalmente aliviada, ahora se puede trabajar con seguridad en la válvula de
equilibrio o compensación y en el cilindro del gato.
GATOS DELANTEROS
1. Desacople el conector rápido en ambos gatos delanteros usando una llave de extremo abierto
de 1¼”. El terminal macho del conector rápido permanecerá conectado a la válvula.
2. En un solo gato delantero, saque el otro extremo de la manguera con conector rápido desde
la caja eléctrica de conexión sobre el gato.
3. Ponga el extremo de la manguera sacada desde la caja eléctrica de conexión dentro de un
contenedor limpio de cinco galones. (Dos contenedores adicionales de 5 galones se
necesitarán para manejar el aceite desde ambos gatos delanteros.).
PRECAUCION: Mantenga siempre un firme agarre de la manguera mientras el aceite
fluye desde ella. No permita que el flujo de aceite contacte su piel ya que
pueden ocurrir lesiones.
5-102
Procedimientos de Servicio Sección
MD6640 Perforadora Electrica Para Pozos De Tronadura
4. Reconecte el conector rápido. Cuando la conexión esté completándose, el aceite comenzará
a salir por el extremo de la manguera al contenedor y la zapata del gato caerá al suelo. Esto
aliviará toda la presión sobre el vástago del pistón y creará un vació en el extremo del alojamiento
del cilindro.
5. Para sacar el aceite desde el otro gato delantero, se necesitará un ayudante. Disponga que
el ayudante se mantenga sujetando la manguera desconectada dentro de un contenedor de
5 galones mientras Ud. reconecta el conector rápido en el otro gato delantero. El aceite
desde éste gato fluirá ahora desde la manguera que está siendo sujetada por el ayudante.
6. Cuando se haya detenido el flujo de aceite y la zapata del gato quede en el suelo, el extremo
suelto de la manguera se puede reconectar a la caja eléctrica de conexión.
7. Con la presión totalmente aliviada, ahora se puede trabajar con seguridad en la válvula de
equilibrio o compensación y en el cilindro del gato.
INSPECCIÓN ANTES DELARRANQUE
Si los sistemas hidráulicos de la máquina han sido sometidos a una mantención mayor, se deberían
completar las siguientes inspecciones previas antes del arranque inicial de la máquina.
PRECAUCION: Antes de arrancar las bombas, establezca un sendero perimetral seguro
alrededor de la máquina para reducir posibles lesiones al personal de
terreno por una posible operación automática de una escalera de acceso,
las cortinas contra polvo o el portacable.
NOTA: Lea todas las instrucciones antes de iniciar cualquier prueba individual. Inicie cada paso
hasta completarlo o registre la información requerida.
1. Revise que todas las líneas y conexiones están apretadas y la precisión de las instalaciones
de tuberías.
2. Revise visualmente de que no haya puertos abiertos en ninguna válvula.
3. Si las orugas o el mástil han sido desmontados desde la máquina, asegúrese que todos los
puertos han sido cerrados o taponados y todas las líneas sueltas terminan en un conector
rápido o están obturados con una conexión de acero.
NOTA: Tome nota de todos los fabricantes de aceite y tipos de aceite que están siendo usados
en este sistema hidráulico (ej. Conoco syncom aw22).
4. Verifique que el tanque hidráulico está lleno al nivel correcto con el aceite hidráulico requerido.
5-103
Procedimientos de Servicio Sección
MD6640 Perforadora Electrica Para Pozos De Tronadura
5. Revise las instalaciones de tuberías de succión y del tanque por si tienen fugas externas.
6. Con el kit de prueba instale manómetros de presión de 0-1500 PSI para verificar los puertos
14 y 15 a la izquierda y derecha de la salida del filtro de carga de la bomba de propulsión,
respectivamente, como se muestra en la tabla de ubicación de puertos de manómetros al
final de esta sección del manual.
NOTA: Todos los manómetros de presión deben ser calibrados antes de ser usados.
7. Verifique que la caja de engranajes de la bomba de transmisión esté llena con 7 litros de
aceite SAE 80-90W.
8. Revise el correcto sentido de giro del motor de accionamiento de la bomba, estimulando los
botones arranque/parada del compresor principal o del embrague PTO, si es accionada por
motor diesel. La rotación del eje de impulsión de la caja de engranajes de transmisión de la
bomba, es opuesta a la rotación del eje de la bomba.
9. Cuando complete el paso 8, continúe estimulando el motor eléctrico hasta que la presión en
los manómetros en los puertos de prueba 14 y 15 sea de 100 PSI.
10. Cuando se verifique la elevación de presión, arranque las bombas hidráulicas y revise
visualmente si las instalaciones de tuberías tienen fugas.
5-104
Procedimientos de Servicio Sección
MD6640 Perforadora Electrica Para Pozos De Tronadura
PRUEBASAL SISTEMAHIDRÁULICO
El sistema hidráulico está equipado con puertos de prueba con conexiones rápidas para la revisión
de la operación de los sistemas. Los puertos de prueba se muestran en las figuras. Los puertos
de prueba están identificados con números en círculos en las ilustraciones.
Estas pruebas están diseñadas para asegurar que las unidades específicas estén operando
correctamente y si ellas son ajustables, se ajustan a la correcta presión de instalación. Los resultados
de cada una de las siguientes pruebas deberían ser anotadas en un libro de registro, de modo que
en futuras revisiones y en casos de falla de los sistemas, las lecturas de presión puedan ser
comparadas para ayudar a localizar la falla.
NOTA: Para ubicar los puntos de prueba en la máquina, vea la tabla al final de esta sección de
este manual.
PRECAUCION: Antes de unir o desconectar las galgas de presión para probar portales,
asegurarse que las bombas hidráulicas estén apagadas.
REVISIÓN DE LA PRESIÓN DE CARGA DE LA BOMBA DE PROPULSIÓN
NOTA: El ajuste de alivio de la bomba de carga se hace en el lado derecho de la bomba.
1. Con los controles de la bomba en NEUTRO y las bombas en funcionamiento, revise la
presión en el puerto de prueba 14 sobre un manómetro de 1500 PSI. Instale la presión de
alivio de la bomba de carga de la bomba de propulsión del lado izquierdo, lo requerido para
obtener 350 PSI +/- 10 PSI. (Use llave hexagonal de 1 1/16” y destornillador).
2. Con los controles de la bomba en NEUTRO y las bombas en funcionamiento, revise la
presión en el puerto de prueba 15 sobre un manómetro de 1500 PSI. Instale la presión de
alivio de la bomba de carga de la bomba de propulsión del lado derecho, lo requerido para
obtener 350 PSI +/- 10 PSI. (Use llave hexagonal de 1 1/16” y destornillador).
3. Apague las bombas.
5-105
Procedimientos de Servicio Sección
MD6640 Perforadora Electrica Para Pozos De Tronadura
REVISIÓN DE LA PRESIÓN DE CONTROL
1. Con la Válvula de Presión Piloto (VPP) desconectada eléctricamente en la 6ª estación de la
estación 6 del distribuidor, ubicada inmediatamente encima y hacia la parte trasera del estante
de válvula de los gatos y con un manómetro de 1.500 PSI en los puertos de prueba 7 y 17,
arranque las bombas. Registre las presiones en los puertos de prueba 7 y 17 (aprox. 150
PSI). La presión del puerto de prueba 17 debería ser mayor que el puerto 7.
NOTA: Antes de ejecutar el paso 2, caliente el sistema hidráulico de forma que el motor del
enfriador de aceite haya pasado por un ciclo a lo menos.
2. Con los cables del solenoide reconectados para pilotear la válvula de presión (PPV), echar
a andar que las bombas y luego de 10 segundos, con PPV energizados, observar la presión
en puerto experimental 17. Ajustar la válvula de seguridad en la estación 6 según se requiera
para ver: 1000 ± 10 PSI. Los ajustes están orientados a la pared, al frente del solenoide
eléctrico.
3. Registre la presión en el puerto de prueba 7 (aproximadamente 150 PSI).
REVISIÓN DE LA VÁLVULA DE HABILITACIÓN DE PROPULSIÓN Y DE SELECCIÓN DE
VELOCIDAD BAJA
1. Con el switch selector de perforación/propulsión en PROPULSIÓN NORMAL, en propulsión a
bordo, con un manómetro de 1.500 PSI en los puertos de prueba 8 y 18, arranque las bombas y
presione el botón ON de perforación/propulsión. Registre las presiones en los puertos de prueba
8 y 18. El puerto de prueba 18 debería obtener lo mismo que las presiones obtenidas en el paso
2 de la REVISIÓN DE LA PRESIÓN DE CONTROL. La lectura del puerto 8 debería ser cero (0).
2. Con la bomba aún corriendo, primero levante un joystick de propulsión fuera de la posición
RETENCIÓN y luego suéltela. Haga lo mismo con el otro joystick.
NOTA: No es necesario mover el joystick fuera de la posición neutral. Solamente levante el
embrague del joystick hacia arriba para engranar la válvula solenoide de activación de
propulsión (vap).
Al ejecutar el paso 2 motivará que la VAP se energize, lo cual causaría que la presión vaya desde
650 PSI hasta 0 en el puerto de prueba 18 y en el puerto de prueba 8, iría desde 0 hasta 650 PSI.
3. Con un manómetro en el puerto de prueba 9 y las bombas corriendo, gire el Switch Selector
de Propulsión a la velocidad LENTA y registre la presión.
4. La presión en el paso 3 deberían ser de 1000 ± 10 PSI.
5. Con el selector de propulsión en NORMAL, registre la presión en el puerto de prueba 9 (Se
debería leer cero).
5-106
Procedimientos de Servicio Sección
MD6640 Perforadora Electrica Para Pozos De Tronadura
REVISIÓN DEL CILINDRO DE LOS GATOS EN MODALIDAD MANUAL
NOTA: Por ningún motivo se debe permitir el ajuste de la válvula de 3 carretes ni de la válvula de
alivio hasta el final. La válvula de carrete está ubicada en la pared trasera de la sala de
máquinas, hacia la izquierda del tanque hidráulico y ligeramente bajo la parte superior del
tanque. La válvula principal de alivio está cerca del puerto de entrada.
1. Con un manómetro de 7.500 PSI en el puerto de prueba 16 y las bombas corriendo, energize
la nivelación automática en la modalidad RECOGER. Con todos los cilindros totalmente
retraídos, ajuste el alivio de la válvula de 3 carretes a 3.300 PSI exactos en el manómetro.
2. Revise la operación de todos los gatos con el movimiento de la palanca manual (ej. moviendo
el control del gato delantero derecho a EXTENDER, se extiende el gato delantero derecho.
Revise ambas direcciones con los cuatro gatos).
NOTA: REVISE EL NIVEL DE ACEITE HIDRÁULICO Y RELLENE SI ES NECESARIO.
NOTA: Ajuste los controles de flujo de acuerdo a la revisión de control de flujo, antes de continuar
con el paso 3.
3. Devuelva el ajuste de la válvula de alivio 1/8 de vuelta y luego apriete la tuerca de cierre.
4. Instale un manómetro de 1.500 PSI en el puerto de prueba 70, ubicado a la entrada de la de
la válvula de contrapresión, debajo y ligeramente a la izquierda (atrás) de la válvula de tres
carretes.
5. Con el gato delantero derecho extendiéndose manualmente desde la posición RECOGER
totalmente, ajuste el alivio de la contrapresión lo necesario para ver 400 PSI.
6. Con el paso 5 completado, instale un manómetro de 7.500 PSI en el puerto de prueba 16 y
con el gato delantero derecho extendiéndose desde la posición RECOGER totalmente, hacia
el suelo, ajuste la válvula de alivio ubicada a la entrada de la válvula de carrete del gato, en el
estante de los gatos. Ajuste hasta ver 3.200 PSI.
NOTA: NO LLEVE ELAJUSTE HASTAEL FINAL DE NINGUNAVÁLVULADEALIVIO.
7. Revise la operación de todos los gatos con el movimiento de la palanca manual.
8. Instale todas las zapatas de los gatos.
5-107
Procedimientos de Servicio Sección
MD6640 Perforadora Electrica Para Pozos De Tronadura
REVISIÓN DEL CONTROL DE FLUJO
1. Quite la manguera más cercana a la pared desde el 3er. control de flujo (contando de derecha
a izquierda) en el estante de las válvulas de los gatos e instale un tapón de acero -10 ORS en
la manguera abierta.
2. Instale un medidor de flujo Headland de 20 GPM #700-020 (lado de entrada) en el puerto
abierto del control de flujo.
3. Desconecte la manguera que viene desde la válvula de carrete al 7º control de flujo. Instale
un tapón de acero -10 ORS en el puerto abierto del control de flujo.
4. Conecte el lado de salida del medidor de flujo a la manguera recién removida desde el 7º
control de flujo.
5. Con bombas corriendo y con la ayuda de un ayudante, energice gata trasera izquierda, en
cualquier modo LEVANTADO o DETENIDO, para mostrar flujo en el metro. Ajuste regulador
de flujo, según se requiera. Coloque todos los 8 controles de flujo a 15 GPM para máquinas
de 60 Hz así como para las de máquinas 50 Hz funcionando a una velocidad de entrada de
3,000 RPM. Todas las otras máquinas de 50 Hz deben ser ajustadas a 12.5 GPM.
6. Después que se ha probado el primer regulador de flujo, sustituya los restantes reguladores
sin probar dentro de la 3ª posición hasta que los ocho reguladores de flujo hayan sido revisados.
Todos los reguladores de flujo DEBEN terminar en su posición apropiada cuando se complete
la prueba.
NOTA: Durante la calibración de los controles de flujo, así como cada vez que se estén operando
los gatos en la modalidad nivelación manual o automática, los controles de flujo no debieran
manifestar ningún ruido de traqueteo o chillido.
7. Con el paso 6 completado, reinstale las mangueras en los puertos apropiados.
8. Ahora complete la REVISIÓN DEL CILINDRO DE LOS GATOS EN MODALIDAD MANUAL,
comenzando con el paso 3.
5-108
Procedimientos de Servicio Sección
MD6640 Perforadora Electrica Para Pozos De Tronadura
5-109
Procedimientos de Servicio Sección
MD6640 Perforadora Electrica Para Pozos De Tronadura
PRUEBA DE DERIVACIÓN DE CILINDROS DE LOS GATOS
NOTA: Lea los pasos 1 hasta el 5 de esta prueba antes de continuar.
1. Baje todos los gatos al piso de manera que las zapatas de los gatos queden firmemente en
el suelo pero sin levantar la máquina.
NOTA: Si en los pasos 2 y 3 las orugas no están montadas y la máquina está descansando
sobre bloques, solo levante la máquina unas cuantas pulgadas.
2. Extienda manualmente los gatos delanteros izquierdo y derecho simultáneamente para elevar
la parte frontal de la máquina.
3. Extienda manualmente los gatos traseros izquierdo y derecho simultáneamente para elevar
la parte trasera de la máquina.
4. Continúe el levante de la máquina alternando la parte delantera y trasera hasta que las cadenas
de oruga se hayan elevado del suelo por 3 o más pulgadas. Si las orugas no están montadas,
levante la máquina aproximadamente 6 pulgadas fuera de los bloques.
5. Con la máquina aproximadamente nivelada, posicione todos los controles manuales de los
gatos en NEUTRO y revise la derivación de los cilindros de los gatos. La derivación o
desviación no debería exceder 1/8” en 30 minutos.
REVISIÓN DE PRESIÓN DE ALIVIO DEL FRENO
NOTA: Las orugas deben ser montadas a la estructura principal para esta prueba.
1. Con manómetros de 0 - 1.500 PSI en los puertos de prueba 5 y 6 y con la bomba corriendo,
la presión debería ser cercana a cero con las manos fuera de los joysticks de propulsión y
con el switch selector perforación/propulsión en la modalidad PROPULSIÓN NORMAL.
2. Con las bombas aún corriendo, primero levante un joystick de propulsión y luego suéltelo,
luego levante y suelte los otros joysticks de propulsión. En cualquier momento, si cualquiera
o ambos joysticks son totalmente levantados hacia arriba, fuera de la posición RETENCIÓN,
la válvula de activación de propulsión (VAP) se energizará y la presión en los puertos de
prueba 5 y 6 debería ser igual a la presión obtenida en el paso 2 de REVISIÓN DE CONTROL
DE PRESIÓN.
3. Con el selector de perforación/propulsión girado a la modalidad PERFORAR, la presión en
los puertos de prueba 5 y 6 debería ser cero, independiente de dónde estén los joysticks, en
o fuera de la posición RETENCIÓN.
5-110
Procedimientos de Servicio Sección
MD6640 Perforadora Electrica Para Pozos De Tronadura
REVISIÓN ALIVIO DE EMERGENCIA DE FRENO DE PROPULSIÓN
NOTA: Esta prueba debe ser realizada con la bomba apagada.
1. Con manómetros de 0 - 1.500 PSI en los puertos de prueba 5 y 6, la palanca de la válvula de
derivación (ubicada en la superficie del lado izquierdo del alojamiento del gato frontal izquierdo)
girada totalmente hacia la derecha y con la válvula de derivación de la bomba manual CERRADO,
opere manualmente la bomba manual para elevar presión en el manómetro hasta que en el
monitor de la pantalla de exhibición del operador se muestre: FRENO DE PROPULSIÓN DE
REMOLQUEALIVIADO. Registre la presión que motiva que aparezca la lectura en el monitor de
la pantalla de exhibición del operador. (La presión debería ser de 500 PSI).
2. Con el paso 1 completado, continúe operando la bomba hasta que el manómetro muestre 1.000
PSI. Registre la cantidad de caída de presión en 5 minutos (no debería ser más de 500 PSI).
NOTA: Las presiones de los pasos 1 y 2 deberían aparecer también en los manómetros de los
puertos de prueba 5 y 6.
REVISIÓN DE LA PRESIÓN DE ALIVIO PRINCIPAL DE LABOMBA PROPULSIÓN
NOTA: Las orugas deben estar montadas y no debería haber movimiento de las orugas durante
esta prueba.
Las válvulas de alivio principal están en la parte superior de la bomba, cuando están montadas en
la máquina.
1. Con la máquina aún elevada sobre los gatos y con un manómetro de 7.500 PSI en los
puertos de prueba 1 y 2 y con un manómetro de 0 – 1.500 PSI en el puerto de prueba 59,
desconecte la línea de alivio del freno de propulsión en los frenos y tape las mangueras con
un tapón de sello con anillo “O”–6. Deje abierto el puerto en los frenos; no ponga tapas o
tapone las conexiones.
NOTA: Use una llaveAllen de 5 mm y una llave de extremo abierto de ¾” para ajustar las válvulas
de alivio principal.
2. Con las bombas corriendo, energize la válvula de activación de propulsión (VAP). Verifique la
presencia de 600 PSI en el puerto de prueba 59. Opere el control de la oruga izquierda en la
dirección ADELANTE, presionando manualmente la bobina PLV-FWD. Ajuste lo necesario el
alivio para ver 4.500 PSI en el manómetro del puerto de prueba 1.
3. Mantenga el paso 1. Ponga el control de la oruga izquierda en la dirección MARCHAATRÁS
presionando manualmente la bobina PLV-REV. Ajuste lo necesario la presión para ver 4.500
PSI en el manómetro del puerto de prueba 2.
5-111
Procedimientos de Servicio Sección
MD6640 Perforadora Electrica Para Pozos De Tronadura
4. Con la máquina aún elevada sobre los gatos y con un manómetro de 7.500 PSI en los
puertos de prueba 3 y 4, revise las presiones de alivio principal en la bomba de la oruga
derecha.
5. Con las bombas corriendo, opere el control de la oruga derecha en la dirección ADELANTE,
presionando manualmente la bobina PLV-FWD.Ajuste la válvula de alivio principal lo necesario
para ver 4.500 PSI en el manómetro del puerto de prueba 4.
6. Repita el paso 5 pero ponga el control de la oruga derecha en la dirección MARCHAATRÁS
presionando manualmente la bobina PLV-REV. Ajuste lo necesario la presión para ver 4.500
PSI en el manómetro del puerto de prueba 3.
7. Reconecte las mangueras de alivio del freno de propulsión desconectadas en el paso 1.
8. Desactive la válvula de activación de propulsión (VAP).
REVISIÓN DE LA FUNCIÓN DE LAS ORUGAS
NOTA: Revise que las cajas de las orugas hayan sido llenadas con 7 litros de aceite 80w-90w.
1. Con el selector de propulsión en VELOCIDAD BAJA, revise la función de la oruga izquierda
enADELANTE y MARCHAATRÁS. Registre el tiempo para 3 revoluciones de la rueda dentada
de la oruga:
60 HZ debería dar 3 revoluciones en 56 segundos.
50 HZ debería dar 3 revoluciones en 75 segundos.
2. Repita el paso 1 con el selector de propulsión en VELOCIDAD NORMAL. Registre el tiempo
para 10 revoluciones de la rueda dentada de las orugas:
60 HZ debería dar 10 revoluciones en 67 segundos.
50 HZ debería dar 10 revoluciones en 80 segundos.
3. Repita el paso 1 para la oruga derecha.
4. Repita el paso 2 para la oruga derecha.
5-112
Procedimientos de Servicio Sección
MD6640 Perforadora Electrica Para Pozos De Tronadura
REVISIÓN DE LA COMPUERTA PARA VER LA BROCA
Revise la función de la compuerta para ver la broca con el switch en la cabina del operador. La
compuerta debería abrir y cerrar suavemente sin acciones de traqueteo.
REVISIÓN DE LA ESCALERA DE ACCESO
Revise la función de la escalera de acceso con el switch en la cabina del operador. La escalera de
acceso debería abrir y cerrar suavemente sin acciones de traqueteo
REVISIÓN DE LAVÁLVULADE FLUJO PRINCIPAL
1. Con un manómetro de 0 - 1.500 PSI en el puerto de prueba 26 y con la bomba corriendo,
ajuste el alivio de la contrapresión hasta ver 300 PSI.
2. Con un manómetro de 0 - 1.500 PSI en el puerto de prueba 23 y con la bomba corriendo y
todas las válvulas desenergizadas, registre la presión observada.
3. Con un manómetro de 0 - 7.500 PSI en el puerto de prueba 23 y con un manómetro de 0 –
1.500 PSI en el puerto de prueba 26, arranque la bomba y energize la válvula de flujo principal
(VFP) vía función de prueba hidráulica. Ajuste la válvula de alivio de la válvula intercalada
central en la estación 1 para ver 3.000 PSI en el puerto de prueba 23. Registre la presión en
los puertos 23 y 26.
REVISIÓN DE LAS LLAVES DE DESENROSCAR Y DE HERRAMIENTAS
Revise la función de las llaves de desenroscar y la llave de herramienta con los switches en la
cabina del operador.
CILINDROS DE LA CORTINA CONTRA POLVO
1. Revise la función con las posiciones del switch.
NOTA: Después de 3 a 5 ciclos, la operación debería ser suave, sin sacudidas ni rechinar.
2. Ajuste la detención de las puertas.
5-113
Procedimientos de Servicio Sección
MD6640 Perforadora Electrica Para Pozos De Tronadura
DESLIZADERA DEL SELLO DE POLVO
Opérela hacia delante y atrás para revisar su función. Registre la presión observada en el puerto
de prueba 24 en un manómetro de 0 – 7.500 PSI.
CIERRE DEL MÁSTIL
1. Con un manómetro de 0 – 7.500 PSI en el puerto de prueba 21, energize el solenoide del
pestillo de cierre del mástil y revise su función.
2. Ajuste el alivio lo necesario para ver 1.000 PSI.
NOTA: El ajuste es en dirección opuesta a la pared izquierda.
3. Con el manómetro aún en puerto de prueba 21, energize el solenoide para desactivar el
pestillo de cierre del mástil. La presión observada debería ser de 3.000 PSI.
4. Repita los pasos 1 y 2 pero con un manómetro de 0 – 1.500 PSI en el puerto de prueba 21.
CILINDROS DE CIERRE TIRANTES DEL MÁSTIL
1. Con un manómetro de 0 – 7.500 PSI en el puerto de prueba 23, energize el solenoide de
cierre de los tirantes del mástil (VCTM) y revise su función.
2. Ajuste el alivio lo necesario para ver 1.000 PSI mientras el cierre de los tirantes del mástil
(VCTM) está energizado.
3. Energize el solenoide para desactivar el cierre de los tirantes del mástil (VCTM). La presión
observada debería ser de 3.000 PSI.
4. Repita los pasos 1 y 2 pero con un manómetro de 0 – 1.500 PSI en el puerto de prueba 23.
CILINDROS DE CIERRE DE ESTRUCTURA “A”
NOTA: Esta prueba no se debería realizar a no ser que el mástil esté totalmente arriba o salvo
que el mástil esté fuera de la máquina. Los pasadores de los cilindros de cierre del mástil
deben ser extendidos antes de realizar esta prueba.
5-114
Procedimientos de Servicio Sección
MD6640 Perforadora Electrica Para Pozos De Tronadura
1. Con un manómetro de 0 – 7.500 PSI en el puerto de prueba 22, energize el solenoide de
cierre de la estructura “A” (VCEA) y revise su función.
2. Ajuste el alivio lo necesario para ver 1.000 PSI. El ajuste es en dirección opuesta a la pared
izquierda.
3. Energize el solenoide para desactivar el cierre de la estructura “A” (VCEA). La presión
observada en el puerto de prueba 22 debería ser de 3.000 PSI.
4. Repita los pasos 1 y 2 pero con un manómetro de 0 – 1.500 PSI en el puerto de prueba 22.
REVISIÓN PRESIÓN CONSTANTE DE CIERRE DEL MÁSTIL
1. Con un manómetro de 0 – 1.500 PSI en el puerto de prueba 61, arranque la bomba.
2. Gire el switch de cierre del mástil a la posición ABRIR y luego retorne el switch a NEUTRAL.
3. Con el switch en NEUTRAL, la presión en el puerto de prueba 61 debería ser 0.
4. Gire el switch de cierre del mástil a la posición CERRAR y luego retorne el switch a NEUTRAL.
5. Con el switch en NEUTRAL, la presión en el puerto de prueba 61 debería ser la misma que
las presiones obtenidas en el paso 2 de REVISIÓN DE LA PRESIÓN DE CONTROL.
REVISIÓN PRESIÓN CONSTANTE TIRANTES DEL MÁSTIL
1. Con un manómetro de 0 – 1.500 PSI en el puerto de prueba 60, arranque la bomba.
2. Gire el switch de los tirantes del mástil a la posición ABRIR y luego retorne el switch a
NEUTRAL.
3. Con el switch en NEUTRAL, la presión en el puerto de prueba 60 debería ser 0.
4. Gire el switch de los tirantes del mástil a la posición CERRAR y luego retorne el switch a
NEUTRAL.
5. Con el switch en NEUTRAL, la presión en el puerto de prueba 60 debería ser la misma que
las presiones obtenidas en el paso 2 de REVISIÓN DE LA PRESIÓN DE CONTROL.
5-115
Procedimientos de Servicio Sección
MD6640 Perforadora Electrica Para Pozos De Tronadura
REVISIÓN PRESIÓN CONSTANTE ESTRUCTURA “A”
1. Con un manómetro de 0 – 1.500 PSI en el puerto de prueba 65, arranque la bomba.
2. Gire el switch de cierre de la estructura “A” a la posición ABRIR y luego retorne el switch a
NEUTRAL.
3. Con el switch en NEUTRAL, la presión en el puerto de prueba 65 debería ser 600 PSI.
4. Gire el switch de cierre de la estructura “A” a la posición CERRAR y luego retorne el switch
a NEUTRAL.
5. Con el switch en NEUTRAL, la presión en el puerto de prueba 65 debería ser la misma que
las presiones obtenidas en el paso 2 de REVISIÓN DE LA PRESIÓN DE CONTROL.
SUBIR/BAJAR MÁSTIL
NOTA: Este ajuste limita la velocidad máxima de bajada del mástil.
1. Con las bombas apagadas, ajuste el Control de Flujo de Levante ubicado bajo la plataforma
justo adelante del tubo de torque trasero. Suelte los tornillos de ajuste y gire el ajuste totalmente.
2. Con el paso 1 completado, devuelva el ajuste 6 vueltas completas y apriete los tornillos de
ajuste.
3. Instale un manómetro de 0 – 7.500 PSI en el puerto de prueba 16 y proceda de la siguiente
manera:
a. Si el mástil no está montado en la máquina, posicione el selector mástil/winche en
LEVANTAR MÁSTIL y opere el switch maestro en la modalidad SUBIR MÁSTIL. Si los
cilindros están conectados, ambos vástagos del cilindro se deberían extender.
b. Cuando los vástagos se han extendido totalmente, la lectura del manómetro debería
ser 2.500 PSI.
c. Con el switch maestro en la modalidad BAJAR, los cilindros se retraerán. La lectura
del manómetro debería ser entonces 2.500 PSI.
d. Si los cilindros del mástil no están montados, la presión en los pasos 3b y 3c será
vista casi tan pronto como el switch maestro sea movido desde NEUTRAL.
5-116
Procedimientos de Servicio Sección
MD6640 Perforadora Electrica Para Pozos De Tronadura
NOTA: El paso 3 debe hacerse con los gatos instalados firmemente en el suelo.
e. Si el mástil está montado, revise cuidadosamente la función, levantando el mástil 6 a
12 pulgadas fuera del bastidor mientras observa la presión en el manómetro de 0 –
7.500 PSI en el puerto de prueba 16. Si se necesita más de 2.500 PSI para elevar el
mástil desde el bastidor, ajuste el alivio del puerto en el lado de levante lo que sea
necesario.
f. Con el paso 3e completado, posicione cuidadosamente el switch maestro a la modalidad
BAJAR y observe lentamente la aptitud del control.
g. Levante el mástil hasta quedar vertical (con la plataforma nivelada y sobre los gatos).
h. Con un manómetro de 0 – 7.500 PSI en el puerto de prueba 16, observe la presión
requerida para sacar el mástil fuera de la vertical. Ajuste el alivio del puerto de la
modalidad bajar lo necesario para generar suficiente presión.
i. Con el manómetro de 0 – 7.500 PSI aún en el puerto de prueba 16, con el mástil en la
posición vertical y con los pasadores de los tirantes del mástil y de cierre del mástil
empotrados, opere el levante del mástil en subida y bajada para ajustar las válvulas de
alivio del puerto a 200 PSI superior a las presiones observadas en los pasos e y h
respectivamente.
NOTA: Un método alternativo para realizar el paso 31, es desconectar las mangueras en ambos
cilindros de levante del mástil y luego tapar las mangueras con tapones de acero ors.
Con las mangueras tapadas, arranque la bomba y opere el levante del mástil en la
modalidad subida y bajada para ajustar el alivio de los puertos a 200 psi superior a las
observadas en 3e y 3h respectivamente. Cuando los alivios están ajustados, reconecte
las mangueras y revise la función de levante del mástil.
5-117
Procedimientos de Servicio Sección
MD6640 Perforadora Electrica Para Pozos De Tronadura
WINCHEAUXILIAR
Con un manómetro de 0 – 7.500 PSI en el puerto de prueba 16, proceda de la siguiente manera:
NOTA: Si el mástil no está montado, vaya al paso 4.
1. Con el mástil montado y en el bastidor (totalmente abajo), opere el winche sin cable en el
tambor para revisar la función en comparación con la posición del switch maestro.
2. Revise la aptitud para que arranque suavemente en las modalidades SUBIR y BAJAR.
3. Revise las RPM del tambor en las modalidades SUBIR y BAJAR y regístrelas. Las velocidades
del tambor deberían ser: de: 10 revoluciones en 17 segundos (36 RPM).
4. Si el mástil no está montado, ajuste el alivio del puerto de forma que el manómetro de presión
muestre 3.000 PSI en la posición SUBIR cuando mueva el switch maestro fuera de NEUTRAL.
Al mover la palanca de levante totalmente a la posición BAJAR, se mostrará 3.000 PSI en el
manómetro.
NOTA: Si el mástil está montado, el ajuste de alivio del puerto puede ser observado primero
desactivando eléctricamente la válvula de control de activación del winche (vcaw) y luego
proceder según el paso 4.
REVISIÓN PRESIÓNACCIONAMIENTO LUBRICACIÓN DE CENTRAL HIDRÁULICA
NOTA: Los pasos 1 hasta 3 aplican solamente para el sistema de lubricación lincoln con bomba
de lubricación lincoln.
1. Con las bombas corriendo, energizar la válvula solenoide Habilitadora de lubricación (LEV).
2. Ajuste la presión en la válvula fijada al distribuidor de la bomba de lubricación, reduciendo lo
necesario para ver 450 PSI en el manómetro fijado al distribuidor.
3. Con Válvula de Lubricante Habilitada (LEV) energizada y las bombas corriendo, observar
que la bomba de lubricante esté funcionando.
NOTA: Si la grasa no es bombeada durante la prueba, entonces no lleve adelante la prueba del
paso 3 más de lo necesario que para ver que la bomba esté trabajando.
NOTA: No deben haber fugas externas de aceite hidráulico durante la prueba.
5-118
Procedimientos de Servicio Sección
MD6640 Perforadora Electrica Para Pozos De Tronadura
CHEQUEO DE FUNCIÓN DEL GUARDA DE LA VENTANA - OPCIÓN
PRECAUCION: Antes de comenzar la prueba, asegúrese que no hay nada situado sobre
la protección de ventana que pudiera caer causando lesiones al personal
o daños a la máquina. Mantenga al personal lejos del área de la protección
de ventana durante la prueba.
1. Con un manómetro de 0 – 1.500 PSI en el puerto de prueba 75 y con la Válvula de Protección
de Ventana (VPV) desenergizada, energize la Válvula de Aumento de Flujo Principal (VFP)
mediante la función de prueba hidráulica en el terminal de la pantalla de exhibición del operador.
2. Ajuste la presión reduciendo la válvula (la misma válvula fijada al puerto de prueba 75) hasta
ver 900 PSI.
3. Desenergize la Válvula deAumento de Flujo Principal (VFP) y energize la Válvula de Protección
de Ventana (VPV) para revisar la función. Después de 3 o 4 ciclos la protección de ventana
debería funcionar suavemente sin rechinar.
5-119
Procedimientos de Servicio Sección
MD6640 Perforadora Electrica Para Pozos De Tronadura
REVISIÓN DE LOS GATOS EN LAMODALIDAD NIVELACIÓNAUTOMÁTICA
1. Posicione manualmente todos los gatos de modo que queden a mitad de camino entre el
suelo y totalmente arriba.
2. Posicione el switch de autonivelación en la modalidad RECOGER y observe que los cuatro
gatos se recogen simultáneamente.
3. Mantenga el paso 2 hasta que los gatos queden totalmente arriba, en dicho momento, la
pantalla del terminal de exhibición del operador MOSTRARÁ QUE LOS GATOS ESTÁN
TOTALMENTE ARRIBA y que cada uno de los solenoides de recoger en el distribuidor de
control de las válvulas de los gatos, se han apagado. La Válvula de Carga de los Gatos
(VCG) permanecerá energizada tanto como la posición del switch se mantenga en
RECOGER. Cuando el switch de autonivelación se retorna a NEUTRAL, el solenoide de la
válvula (VCG) se apagará.
4. Con todos los gatos totalmente extraídos, posicione el switch de autonivelación hacia extender
y observe que los cuatro gatos se extienden simultáneamente. No extienda los gatos totalmente
hasta el suelo.
NOTA: Si las orugas no están montadas, tenga extremo cuidado durante el paso 5 hasta el paso
6.
5. Con los pasos 3 y 4 completados, active hacia abajo cada gato individualmente y
manualmente revise que el switch de presión al suelo se activa y es mostrado en el terminal
de exhibición de la pantalla del operador.
6. Con el paso 5 completado, repita los pasos 2 y 3.
7. Con el paso 6 completado, posicione el switch de autonivelación hacia EXTENDER y observe
las siguientes acciones de autonivelación, mientras mantiene la posición del switch:
a. Empezando desde totalmente recogido hacia extender, todos los cilindros se
extenderán al mismo tiempo.
b. Cuando cada zapata del cilindro es bajada lo suficiente como para generar presión en
el suelo, detendrá su movimiento, hasta que las indicaciones de presión en el suelo de
los cuatro cilindros son mostradas en el terminal de exhibición del operador.
c. Si la máquina está desnivelada, se nivelará así misma (primero lado a lado, luego
adelante y atrás).
d. La máquina se levantará recto hacia arriba y nivelada en las cuatro patas.
5-120
Procedimientos de Servicio Sección
MD6640 Perforadora Electrica Para Pozos De Tronadura
NOTA: El Paso 5, El Paso 6 y El Paso 7 deben hacerse con extremo cuidado si las orugas no
están montadas en la máquina.
8. Con el paso 7 completado, posicione el switch de autonivelación hacia RECOGER para
revisar la función.
NOTA: Si las orugas están montadas, el paso 8 no se debería realizar a no ser que al menos un
observador esté presente en la parte externa de la máquina.
REVISIÓN DE LA POSICIÓN DE PORTABARRAS
Con un manómetro de 0 – 7.500 PSI en el puerto de prueba 16, con los switches selectores de la
cabina del operador ajustados en la modalidad PERFORAR y en PORTABARRAS/UNIONES,
proceda de la siguiente manera:
1. Levante el joystick izquierdo fuera de su detención, sin dejar la posición NEUTRAL, hasta
que haya pasado un segundo.
NOTA: El paso 1 tiene como intención permitir suficiente tiempo para que el pasador de cierre
del portabarras se desacople del bastidor, antes de que el bastidor le sea permitido
moverse.
2. Con el paso 1 completado, mueva el joystick en su carrera total, primero en una dirección y
luego en la otra. La presión debería incrementarse suavemente con el incremento del
movimiento de la palanca. La presión debería ser de 2.500 PSI al final de la carrera en la
posición ALMACENAR. Ajuste el alivio del puerto lo que sea necesario. La presión debería
ser de 3.200 a 3.300 PSI al final de la carrera en la posición SOBRE EL POZO.
3. Reconfirme con el selector girado hacia las cuatro posiciones.
AJUSTES DE ALIVIO DE PUERTO DE CIERRE DE PORTABARRAS Y CILINDRO DE LA
COMPUERTA
Con el mástil en posición vertical, fije un manómetro de 1.500 PSI al puerto de prueba 52. Con las
bombas corriendo, ajuste la válvula de alivio lo necesario para ver 600 PSI en la estación 3 de la
válvula de 8 estaciones ubicada directamente sobre el winche auxiliar.
5-121
Procedimientos de Servicio Sección
MD6640 Perforadora Electrica Para Pozos De Tronadura
REVISIÓN DE LUBRICADOR HILOS DE LA BARRA
NOTA: La estación 1 del distribuidor de 4 estaciones, está ubicado en la pared del lado derecho
de la sala de máquinas.
1. Con las bombas que funcionan y la Pantalla de la sincronización de la Lubricación
demostrando en el terminal de exhibición del operador, presione F7 para energizar el solenoide
de la Válvula del Lubricador del Hilo de rosca de Pipa (PTLV).
2. Con el paso 1 completo, ajustar reduciendo la válvula en la asamblea de la bomba de
lubricación a 450 PSI en el gauge localizado en la Bomba de grasa.
3. Con el paso 2 completado, presione F7 nuevamente para desenergizar el solenoide de (VLHB).
PRECAUCION: Aconsejar al personal a mantenerse lejos de la descarga de grasa
durante testeo o ajustes.
4. Con las bombas hidráulicas corriendo, presione F8 en el terminal de exhibición del operador
para energizar la Bomba de Lubricación de los Hilos de las Barras y observe la operación de
la bomba.
NOTA: La bomba será calibrada en un tiempo cualquiera entre 1 y 10 segundos con una calibración
inicial ajustada a 2 segundos. La calibración de tiempo se ajusta en la pantalla de regulación
de tiempo en el terminal de exhibición del operador.
REVISIÓN DE LA FUNCIÓN DEL POSICIONADOR DE BARRAS
Revise la función de la siguiente manera:
1. Al posicionar el switch en SOBRE EL POZO, la mordaza permanece abierta hasta que los
cilindros de posición quedan totalmente retraídos, después de dicho tiempo las mordazas
deberían cerrase.
NOTA: La mordaza no debe cerrar hasta después que los cilindros de posición queden totalmente
retraídos.
2. Al posicionar el switch enALMACENAR (ej. moviéndose fuera de Sobre el Pozo), la mordaza
primero se debe abrir, luego los cilindros de posición extenderán la mordaza fuera de la barra
de perforación a la posición ALMACENADO.
NOTA: Los cilindros de posición no se deben mover hasta que la mordaza esté totalmente
abierta.
5-122
Procedimientos de Servicio Sección
MD6640 Perforadora Electrica Para Pozos De Tronadura
REVISIÓN DE FUNCIÓN GUÍA CENTRAL
1. Sujetar un buje un calibre 7,500 PSI testeo el puerto 55.
2. Activar el interruptor de guía central a la posición SOBRE-EL-HOYO.
3. Observe la presión en el puerto 55.
4. Los cilindros de la posición deberían nivelarse en contra del mástil y la abrazadera de cilindro
debería cerrar una vez a 2000 PSI es alcanzado en el puerto experimental 55. Ajustar la
válvula de secuencia para obtener acerca de 2000 PSI en puerto experimental 55 - el carrete
inferior en la estación 1.
5. Active el interruptor de guía central a la posición GUARDAR. La abrazadera debería comenzar
a abrirse y el cilindro posicionador sólo debería comenzar a replegarse una vez que la
abrazadera esté completamente abierta y 2000 PSI es visto en el puerto experimental 55.
Ajuste la válvula de secuencia si es requerido para obtener cerca de 2000 PSI en el puerto
experimental 55 - el segundo carrete en la estación 1.
6. Repetir la operación del guía central para asegurar que la secuencia de operación es correcta
y repetible. Reajuste válvulas de secuencia en el paso 4 o 5 según se requiera.
5-123
Procedimientos de Servicio Sección
MD6640 Perforadora Electrica Para Pozos De Tronadura
REVISIÓN DE LA LLAVE AUTOMÁTICA DE DESENROSCAR
1. Adherir un gauge de calibre 0-3000 PSI para testear el puerto 55 en dos estaciones de
válvula localizadas lateralmente al mástil.
2. Retractar la llave de ruptura completamente.
3. Verificar que 3000 PSI estén en el puerto experimental 55.
Activar el interruptor automático de la llave de ruptura para EXTENDER y después RETRACTAR
para chequear la función correcta.
Refiérase a la documentación del fabricante de equipo original (OEM) para el ajuste de secuencia
de la válvula.
CONTROL DE POLVO
MANTENCIÓN GENERAL
El sistema de control de polvo en la perforadora MD6640 consiste de la plataforma de perforación
y de las cortinas contra polvo, las cuales atrapan el detritus y el polvo en un área bajo la máquina.
Están disponibles dos métodos de control de atrapar el polvo: inyección de agua la cual humedece
el polvo antes de abandonar el pozo de perforación y un sistema tipo-seco el cual arrastra el aire
cargado de polvo a través de elementos de filtro, los cuales separan el polvo del aire.
PLATAFORMA DE PERFORACIÓN Y CORTINAS DE POLVO
Inspeccione diariamente las cortinas contra polvo por rasgaduras u otros daños. Reemplace las
cortinas gastadas o dañadas.
Revise si los cables de levante de las cortinas están rotos o deshilachados. Reemplace los cables
rotos o dañados.
Revise si el sello del deflector de polvo, el cual se fija alrededor de la barra de perforación, está
dañado. Reemplácelo si está dañado.
Revise la apropiada operación del mecanismo de la palanca de levantar las cortinas. Lubrique
todos los pasadores una vez a la semana.
INYECCIÓN DE AGUA - OPCIÓN
La mantención del sistema de inyección de agua consiste principalmente en mantener el tanque
de agua lleno de agua limpia, revisando semanalmente de que la bomba y válvulas estén operando
correctamente y que todas las mangueras y conexiones no tengan fugas.
5-124
Procedimientos de Servicio Sección
MD6640 Perforadora Electrica Para Pozos De Tronadura
OPERACIÓN
Con el switch de modalidad operativa en la posición PERFORAR, el compresor principal operando
y la válvula de mariposa abierta, gire el switch Sistema de Inyección de Agua (SIA) en la consola
del operador a la posición ON. La válvula solenoide Control de Velocidad Bomba deAgua (VCVBA)
se abrirá permitiendo fluido hidráulico hacia el motor de accionamiento de la bomba de agua. Al
mismo tiempo la válvula solenoide Control de Inyección de Agua (VCIA) abrirá la válvula de bola
permitiendo al agua fluir desde el tanque a la bomba. Adicionalmente, las válvulas de bola se
cerrarán.
La cantidad de agua suministrada está gobernada por la velocidad del motor de la bomba. Moviendo
el switch de Control de Velocidad deAgua (CVA) en la consola del operador, a la derecha, aumentará
la cantidad de agua. Totalmente a la derecha, suministrará la máxima cantidad de agua.
Debido a que el agua siempre está disponible en la admisión de la bomba, ésta comenzará a ser
bombeada inmediatamente. El agua fluirá desde la bomba a través de una válvula de control de
flujo de retorno al tanque. Una vez que la presión del agua aumenta sobre 30 PSI (presión de rotura
de válvula de retención) y vence la presión de aire desde la línea de aire del mástil, el agua comenzará
a fluir a la línea de aire del mástil. El agua continuará fluyendo hasta que el sistema de inyección de
agua sea girado a OFF o la válvula principal de mariposa comience a cerrarse.
Cuando el sistema de inyección de agua se corta por cualquiera razón, la válvula se cerrará y las
válvulas se abrirán para drenar el sistema por gravedad.
LLENADO DEL TANQUE DE AGUA
La línea de llenado del tanque de agua incluye una válvula de detención tipo bola y un filtro tipo
canastillo.
Para llenar el tanque de agua, conecte la manguera de suministro de agua a la válvula de bola.
Abra la válvula de bola y llene el tanque. Cuando el tanque está lleno, cierre la válvula de bola y
desconecte la manguera de suministro de agua. Reabra la válvula de bola y permita que el agua
en la línea de llenado y la tubería de alimentación del tanque se drenen. Mientras el agua es drenada,
en su retorno lavará el filtro.
NOTA: En climas de frío extremo se debe tener cuidado de que el filtro no se congele cuando el
agua es drenada desde la línea de llenado y esté lavando el filtro.
Si se debe remover el filtro para limpieza, proceda de la siguiente manera:
1. Suelte los dos pernos manuales en la tapa del filtro.
2. Mueva la tapa aun lado. El filtro de canastillo caerá fuera del alojamiento.
3. Limpie el filtro de canastillo y reinstale dentro del alojamiento.
4. Cierre la tapa y apriete los pernos manuales de la tapa.
6-1
Frenos y Acoplamientos Sección
MD6640 Perforadora Electrica Para Pozos De Tronadura
Sección 6
Frenos y Acoplamientos
Recurra siempre a la información de seguridad de la Sección 1 de éste
manual antes de iniciar todo proceso de mantención en esta máquina.
Tabla de Contenidos
INSTALACIÓN DE LAMAZADEL FRENO. ....................................................................................3
TABLA DE REQUISITOS DE AVANCE DE PRECALENTAMIENTO EN ADAPTADOR DE LA
MAZA ......................................................................................................................................... 4
INSTALACIÓN DELACOPLAMIENTO DEL MOTOR. ...................................................................5
TABLA DE REQUISITOS DE AVANCE DE PRECALENTAMIENTO EN ACOPLAMIENTO DEL
MOTOR ...................................................................................................................................... 6
ALINEACIÓN DELACOPLAMIENTO DEL MOTOR ................................................................6
DESALINEAMIENTO PARALELO .....................................................................................7
REVISIÓN DEL DESALINEAMIENTO PARALELO ..................................................................... 7
DESALINEAMIENTOANGULAR. .......................................................................................8
REVISIÓN DEL DESALINEAMIENTO ANGULAR ...................................................................... 8
EJEMPLO DE DESALINEAMIENTO PARALELO ....................................................................... 9
EJEMPLO DE DESALINEAMIENTO ANGULAR ......................................................................... 9
DESALINEAMIENTO COMBINADO. .....................................................................................10
EJEMPLO DE DESALINEAMIENTO COMBINADO ...................................................................10
6-2
Frenos y Acoplamientos Sección
MD6640 Perforadora Electrica Para Pozos De Tronadura
6-3
Frenos y Acoplamientos Sección
MD6640 Perforadora Electrica Para Pozos De Tronadura
Sección 6
Frenos y Acoplamientos
INSTALACIÓN DE LA MAZA DEL FRENO.
La maza del freno se debe montar en caliente sobre los ejes cónicos del motor con el objeto de
alcanzar la tracción y sujeción requeridas para los valores de torque involucrados. El procedimiento
descrito mas abajo está encaminado a desarrollar la fuerza de fricción suficiente para transmitir el
torque impuesto, sin dependencia de la cuña.
Limpie y prepare el calibre y eje para quitar cualquier deformidad y materias extrañas.
Monte la maza en frío sobre el eje y mida cuidadosamente la posición de la maza con respecto al
eje. Mida desde el extremo del eje hasta el extremo de la maza. La medida obtenida en éste paso
será usada mas adelante.
Saque la maza y precaliéntela hasta que “la diferencia de temperatura estimada” haya sido
alcanzada. Refiérase a la tabla de más adelante.
Ejemplo: Si la temperatura del eje es = 25º C (77º F) y la diferencia de temperatura estimada
entregada en la tabla es 100º C (180º F), la maza se debe calentar a 125º C (257º F)
para ser montada.
PRECAUCION: LA TEMPERATURA DE LA MAZA DEL FRENO NO DEBERÍA
EXCEDER NUNCA DE 190º C (374º F) PARA SU INSTALACIÓN.
PRECAUCION: LA TEMPERATURA DE LOS ELEMENTOS PRECALENTADOS A
MENUDO ALCANZAN TEMPERATURAS QUE PUEDEN SER
EXTREMADAMENTE PELIGROSAS PARA EL CUERPO HUMANO.
TENGA EXTREMO CUIDADO Y SIEMPRE VISTA CON EL
EQUIPO DE SEGURIDAD APROPIADO CUANDO TRABAJE CON
COMPONENTES PRECALENTADOS Y ALREDEDOR DEL
PROCESO.
Antes de la instalación, limpie todo aceite tanto del eje como del calibre de la maza.
Reinstale nuevamente la maza, ahora precalentada, sobre el eje y tenga cuidado de notar la cantidad
de avance (movimiento hacia delante) dentro del eje que haya obtenido. Si la cantidad de avance
no cae dentro de los límites mencionados en la tabla, será necesario sacar la maza y recalentarla
a la temperatura especificada. EN CADAAPLICACIÓN SE DEBE ALCANZAR LA CANTIDAD DE
AVANCEAPROPIADO.
La fijación cónica entre las partes calibradas se deberá revisar durante el ensamblaje con Dykem
o tinte azul, para asegurar un mínimo de 80% de contacto de apoyo.
6-4
Frenos y Acoplamientos Sección
MD6640 Perforadora Electrica Para Pozos De Tronadura
TABLA DE REQUISITOS DE AVANCE DE PRECALENTAMIENTO EN ADAPTADOR DE LA MAZA
NOTA: ESTA TABLA HACE REFERENCIAA MAZAS O CUBOS DE FRENO SOLAMENTE.
LOS DATOS DE AVANCE PARAACOPLAMIENTO DE MOTORES APARECEN EN
UNATABLA SEPARADA, MÁS ADELANTE EN ESTASECCIÓN.
6-5
Frenos y Acoplamientos Sección
MD6640 Perforadora Electrica Para Pozos De Tronadura
INSTALACIÓN DEL ACOPLAMIENTO DEL MOTOR.
Los acoplamientos de motor se deben montar en caliente sobre los ejes cónicos del motor con el
objeto de transmitir los valores de torque involucrados, sin resbalamiento. El procedimiento descrito
más abajo está encaminado a desarrollar la fuerza de fricción suficiente para transmitir el torque
impuesto, sin dependencia de la cuña.
Limpie y prepare el calibre y eje para quitar cualquier deformidad y materias extrañas.
Monte el acoplamiento en frío sobre el eje y mida cuidadosamente la posición del acoplamiento
con respecto al eje, cuidadosamente. Mida desde el extremo del acoplamiento hasta el extremo
del eje. La medida obtenida en este paso será usada mas adelante.
Saque el acoplamiento y precaliéntelo hasta que “la diferencia de temperatura estimada” haya
sido alcanzada. Refiérase a la tabla de más adelante.
Ejemplo: Si la temperatura del eje es = 25º C (77º F) y la diferencia de temperatura estimada
entregada en la tabla es 100º C (180º F), el acoplamiento se debe calentar a 125º C
(257º F) para ser montado.
PRECAUCION: LA TEMPERATURA DEL PIÑÓN O ACOPLAMIENTO DEL FRENO
NUNCA DEBERÍA EXCEDER LOS 190º C (374º F) PARA SU
INSTALACIÓN.
PRECAUCION: LA TEMPERATURA DE LOS ELEMENTOS PRECALENTADOS A
MENUDO ALCANZAN TEMPERATURAS QUE PUEDEN SER
EXTREMADAMENTE PELIGROSAS PARA EL CUERPO HUMANO.
TENGA EXTREMO CUIDADO Y SIEMPRE VISTA CON EL
EQUIPO DE SEGURIDAD APROPIADO CUANDO TRABAJE CON
COMPONENTES PRECALENTADOS Y ALREDEDOR DEL
PROCESO.
Antes de la instalación, limpie todo aceite tanto del eje como del calibre del acoplamiento.
Reinstale nuevamente la maza del acoplamiento, ahora precalentado, sobre el eje y tenga cuidado
de notar la cantidad de avance (movimiento hacia delante) que haya obtenido dentro del eje. Si la
cantidad de avance no cae dentro de los límites mencionados en la tabla, será necesario sacar el
acoplamiento y recalentarlo a la temperatura especificada. EN CADA APLICACIÓN SE DEBE
ALCANZAR LACANTIDAD DEAVANCEAPROPIADO.
La fijación cónica entre las partes calibradas durante el ensamblaje se deberá revisar con Dykem
o tinte azul para asegurar un mínimo de 80% de contacto de apoyo, mediante la comparación del
marcaje obtenido durante la fijación inicial con la fijación real después del ensamblaje.
6-6
Frenos y Acoplamientos Sección
MD6640 Perforadora Electrica Para Pozos De Tronadura
TABLA DE REQUISITOS DE AVANCE DE PRECALENTAMIENTO EN ACOPLAMIENTO DEL MOTOR
ALINEACIÓN DEL ACOPLAMIENTO DEL MOTOR
La alineación final de las unidades de transmisión directa se hace moviendo o insertando lainas en
la unidad de forma que el desalineamiento de la unidad y los ejes de transmisión queden entre las
tolerancias requeridas, indicadas en los planos de disposición general recibidos con su máquina.
El desalineamiento puede ser paralelo, angular o una combinación de ambos. El desalineamiento
puede ocurrir tanto en el plano horizontal como en el vertical. Refiérase a las siguientes ilustraciones
para inducir a los acoplamientos al máximos desalineamiento aceptable.
El siguiente método de alineación de acoplamientos usa un indicador de dial. Las lecturas tomadas
en un modelo de partes a 180º medirán el movimiento en un solo plano. Es importante rotar
ambos ejes para evitar errores producto de las imperfecciones de las superficies del eje o del
acoplamiento.
6-7
Frenos y Acoplamientos Sección
MD6640 Perforadora Electrica Para Pozos De Tronadura
DESALINEAMIENTO PARALELO
REVISIÓN DEL DESALINEAMIENTO PARALELO
1. Monte el indicador en la maza del acoplamiento.
2. Tome lecturas en el plano horizontal en las posiciones a 90º y 270º en la maza mientras gira
los ejes.
3. Corrija el desalineamiento paralelo en el plano horizontal variando la base hacia dentro y
hacia fuera en distancias iguales.
4. Tome lecturas en el plano vertical en las posiciones a 0º y 180º.
5. Corrija el desalineamiento paralelo en el plano vertical agregando o quitando un espesor
igual de lainas en cada base.
6-8
Frenos y Acoplamientos Sección
MD6640 Perforadora Electrica Para Pozos De Tronadura
DESALINEAMIENTO ANGULAR.
REVISIÓN DEL DESALINEAMIENTO ANGULAR
1. Monte el indicador entre las mazas del acoplamiento.
2. Mida el espacio entre las mazas en las posiciones a 90º y 270º.
3. Desvíe la base externa hasta que las caras del acoplamiento queden paralelas en el plano
horizontal.
4. Tome lecturas en el acoplamiento en las posiciones a 0º y 180º.
5. Suba o baje con lainas la base externa para lograr que las caras del acoplamiento queden
paralelas en el plano vertical.
6-9
Frenos y Acoplamientos Sección
MD6640 Perforadora Electrica Para Pozos De Tronadura
EJEMPLO DE DESALINEAMIENTO PARALELO
EJEMPLO DE DESALINEAMIENTO ANGULAR
6-10
Frenos y Acoplamientos Sección
MD6640 Perforadora Electrica Para Pozos De Tronadura
DESALINEAMIENTO COMBINADO.
EJEMPLO DE DESALINEAMIENTO COMBINADO
Esta condición se encuentra a menudo después de haber realizado reparaciones mayores a la
máquina. Para remediar esta condición, resuelva el problema primero desde un aspecto (angular
o paralelo). Cuando termine con uno, realice luego el procedimiento para el otro. Puede requerirse
la duplicación de uno o ambos procesos.
7-1
Sistema de Aire Comprimido Sección
MD6640 Perforadora Electrica Para Pozos De Tronadura
Sección 7
Sistema de Aire Comprimido
Recurra siempre a la información de seguridad en la Sección 1 de éste
manual antes de iniciar todo proceso de mantención sobre ésta máquina.
Tabla de Contenidos
COMPRESOR DEAIRE ................................................................................................................4
Componentes del Control Separador ........................................................................................... 5
FILTRO DE LA TOMA DE AIRE ...............................................................................................6
VÁLVULADE DRENAJE DEACEITE ......................................................................................7
CONTROL VARIABLE DE VOLUMEN - OPCIÓN ...................................................................7
MANTENIMIENTO DEL SEPARADOR ....................................................................................9
PROCESO DE AJUSTE DE HERRAJES DE LA CUBIERTA DEL SEPARADOR ..........10
COMPRESOR DE TORNILLOS GIRATORIOS.................................................................... 11
Ensamblaje del Terminal de Aire del Compresor ........................................................................ 11
SISTEMADEACEITE............................................................................................................13
INICIO Y MODO DE VENTILACION ......................................................................................13
MODO PERFORADOR ........................................................................................................14
OPCION DE VOLUMEN VARIABLE ......................................................................................14
ARRANQUE DEL COMPRESOR .........................................................................................15
MODO DE APAGADO DEL COMPRESOR ..........................................................................16
FALLA DEL COMPRESOR .............................................................................................16
FALLA DEL ENFRIADOR DEL COMPRESOR ...............................................................16
ALARMA DE SOBRECALENTAMIENTO DEL COMPRESOR ........................................16
FALLA EN LATEMPERATURA DELAIRE EN EL COMPRESOR ...................................16
VÁLVULADE CONTROLTERMOSTÁTICA ..........................................................................17
VÁLVULAREGULADORADE IMPULSIÓN............................................................................19
MANÓMETRO DE LATEMPERATURA DELAIRE DE DESCARGA .....................................19
VÁLVULADE SEGURIDAD DEALIVIO..................................................................................20
VÁLVULA DE PURGA DE SOLENOIDE ................................................................................20
ESQUEMÁTICOS -AIRE .................................. SITUADAS EN EL EXTREMO DE ESTE MANUAL
7-2
Sistema de Aire Comprimido Sección
MD6640 Perforadora Electrica Para Pozos De Tronadura
7-3
Sistema de Aire Comprimido Sección
MD6640 Perforadora Electrica Para Pozos De Tronadura
Sección 7
Sistema de Aire Comprimido
El sistema principal de aire provee aire
comprimido para el barrido del pozo durante
la perforación. El aire también limpia y enfría
los rodamientos en la broca. El aire es
comprimido por un compresor de aire con
tornillos giratorios inundados en aceite. El aire
pasa por un filtro y luego entra al compresor.
Dentro de la corriente de aire que pasa a
través de la válvula mariposa usada para
controlar la cantidad de aire en el compresor.
Luego, el aceite es inyectado a la corriente
de aire para lubricar, enfriar y sellar los tornillos
en el terminal de aire. La mezcla de aire/aceite
comprimido deja el terminal de aire e ingresa
al estanque separador. El estanque separador
elimina el aceite de la corriente de aire. El
separador actúa en forma de remolino
combinado con 4 elementos de filtros para
remover el aceite del aire. El aire luego pasa
a través de una válvula mariposa hacia la
tubería de aire del mástil.
Al activar la válvula principal de aire, una
válvula de mariposa en la tubería de aire del
mástil se abre y el aire fluye a través de la
tubería principal de aire hacia la cabeza
giratoria. Un pasaje en el eje giratorio permite
que el aire fluya hacia el tubo perforador, a
través de la broca y hacia fuera del pozo,
transportando para afuera los residuos.
Cuando el compresor es descargado por el operador cambiando el modo a ventilación, la válvula
de mariposa en la entrada del compresor se cierra, la válvula de aire principal se cierra en el tubo
de desagüe, la válvula sopladora se abre dejando entrar aire en el tanque atmosférico y los caballos
de fuerza atraídos desde el motor serán reducidos enormemente.
El mantenimiento general requerido para el sistema de aire principal consiste principalmente en
inspeccionar los componentes del sistema y revisar que estén funcionando apropiadamente y
que todos los líquidos estén en sus niveles apropiados.
7-4
Sistema de Aire Comprimido Sección
MD6640 Perforadora Electrica Para Pozos De Tronadura
COMPRESOR DE AIRE
El ensamblaje del compresor de aire esta compuesto por un terminal de aire, estanque separador y
tubería asociada, válvulas, manómetros y filtros. El Compresor está localizado en el lado derecho
de la máquina al frente del módulo de poder.
7-5
Sistema de Aire Comprimido Sección
MD6640 Perforadora Electrica Para Pozos De Tronadura
Componentes del Control Separador
7-6
Sistema de Aire Comprimido Sección
MD6640 Perforadora Electrica Para Pozos De Tronadura
FILTRO DE LA TOMA DE AIRE
PRECAUCIÓN: Tenga cuidado con el polvo, la suciedad o la caída de un objeto a
la entrada del compresor durante la mantención del filtro.
Esta máquina usa una asamblea filtro de entrada
de aire tipo distribuidor, localizado en la entrada
del compresor de aire.
Si se requiere eliminar el ensamblaje de la toma
de aire, retire los pernos de cabeza 12 hex que
unen la toma de aire con la maquina, luego levante
el ensamblaje de la toma de aire hacia fuera de la
maquina. Retire y reemplace la empaquetadura
montada si se requiere. La reinstalación se realiza
al revés al proceso de eliminar.
Un indicador de obstrucción de la corriente de
aire es localizado en la base del filtro de entrada.
Durante la operación, una corriente a través del
sistema llevará el indicador hacia el componente.
Si el sistema esta apagado e indica que hay una
corriente de aire, presione el botón de reiniciar
para restaurar el indicador.
Cada uno de los tres purificadores de aires
ubicados en la parte superior del distribuidor
consiste de: 1) un filtro pre purificador y 2)
purificador de aire. El filtro pre purificador se debe
inspeccionar frecuentemente y limpiar cuando sea
necesario. El purificador de aire medio también
se deberá inspeccionar en intervalos regulares
(por lo menos cada dos meses) o mas seguido si
las condiciones lo autoriza. El principal purificador
de aire medio se deberá reemplazar anualmente,
al menos que se encuentre una trizura, hoyo o
una rotura mientras se inspecciona.
7-7
Sistema de Aire Comprimido Sección
MD6640 Perforadora Electrica Para Pozos De Tronadura
VÁLVULA DE DRENAJE DE ACEITE
La válvula de drenaje se ubica bajo la estructura principal inmediatamente debajo del estanque
separador. Ocupe esta válvula para drenar el aceite desde el estanque. Mas aun un portal de lleno
rápido con una válvula de chequeo es encontrado en el pasillo externo. La válvula de chequeo es
usada en linea para prevenir un reflujo de aceite.
CONTROL VARIABLE DE VOLUMEN - OPCIÓN
La característica del volumen variable tiene como propósito disminuir la velocidad de barrido, lo
que reducirá o eliminará el esmerilado de la barra de perforación y broca. Como resultado,
aumentará la vida útil de estos componentes. Para disminuir la velocidad de barrido, reduzca la
proporción del flujo de aire o “CFM” del compresor. Rotando el interruptor del control del volumen
variable en el despliegue del operador activará la válvula espiral del lado del aire, reduciendo en
tres pasos (Nivel 1, Nivel 2, Nivel 3 - Entre 100 % y 68 %) la cantidad de aire producido por el
compresor.
Con el “CFM” del compresor reducido, el operador puede inspeccionar el tamaño de las astillas
producidas por la perforación y llevar un control de la vida útil de la broca y herramienta de
perforación. Con esta información se puede determinar el volumen de aire óptimo.
Muchos fabricantes de brocas tienen folletos instructivos disponibles con tablas de presión sobre
las brocas. Estas tablas muestran que presión sobre la broca dependerá del tamaño de los orificios
de las brocas y los “CFM” producidos por el compresor. Una vez que la velocidad de barrido ha
sido determinada, ajuste el interruptor de volumen variable hasta obtener la presión de la broca
deseada.
7-8
Sistema de Aire Comprimido Sección
MD6640 Perforadora Electrica Para Pozos De Tronadura
NOTA: Luego de ajustar el control de volumen variable, especialmente cuando se reduce en una
gran medida el “CFM” del compresor, asegúrese de que la presión del estanque sea
mayor a 30 PSIG mientras se está perforando. Esto evitará una excesiva adherencia de
aceite.
Refiérase a la figura abajo para la ubicación de los componentes del volumen variable.
7-9
Sistema de Aire Comprimido Sección
MD6640 Perforadora Electrica Para Pozos De Tronadura
MANTENIMIENTO DEL SEPARADOR
El estanque separador de aire del compresor contiene 4 cartuchos de filtros de aire. Estos deben
ser cambiados cada 4000 horas o cada vez que haya una diferencia de presión mayor a 10 PSI
entre los filtros o si el compresor empieza a bypass aceite.
Para remplazar los cartuchos del filtro separador:
1. Apagar la máquina.Asegurar que el motor eléctrico y el compresor estén apagados. Descargar
cualquier presión residual en la linea de aire principal y el tanque separador. Chequear el
manómetro de presión en el estanque para verificar.
2. Afloje las tuercas de hex que unen la cubierta del separador con el estanque. Afloje cada
tuerca lo suficiente que permita retirar los pernos atados al estanque y bajados.
3. Con todos los pernos removidos, usar la gata hidráulica en la mano izquierda inferior del
separador de tanques para elevar la cubierta del separador lo suficientemente para despejar
los cartuchos de filtro.
7-10
Sistema de Aire Comprimido Sección
MD6640 Perforadora Electrica Para Pozos De Tronadura
NOTA: Asegúrese de que el sello de la cubierta no esté dañado mientras se retira el sello de la
cubierta.
4. Una vez levantada la cubierta, rótela para afuera.
5. Retire las tuercas de hex y el retenedor de filtro que cubre uno de los cartuchos del filtro.
6. Retire uno de los cartuchos del filtro del estanque separador. Repita para los 3 cartuchos
restantes.
Inspeccione todas las partes. Repare o reemplace si se requiere. Para volver a ensamblar haga
lo contrario al desmontaje. Note lo siguiente:
PROCESO DE AJUSTE DE HERRAJES DE LA CUBIERTA DEL SEPARADOR
Refiérase a la etiqueta ubicada al lado izquierdo del estanque separador. Si la etiqueta no es
legible, use la secuencia a continuación para ajustar.
Comience ajustando todos los 24 pernos por mano. Luego ajuste todos los pernos
en orden. Comience en cualquier perno y continúe en un patrón diametricalmente
opuesto (de la estrella). Incremente el ajuste de los pernos 3 veces de acuerdo a lo
siguiente:
1. Ajuste TODOS los pernos a 30 Ft. Lbs.
2. Ajuste TODOS los pernos a 60 Ft.Lbs.
3. Ajuste TODOS los pernos a 100 Ft.Lbs.
7-11
Sistema de Aire Comprimido Sección
MD6640 Perforadora Electrica Para Pozos De Tronadura
COMPRESOR DE TORNILLOS GIRATORIOS
Ensamblaje del Terminal de Aire del Compresor
7-12
Sistema de Aire Comprimido Sección
MD6640 Perforadora Electrica Para Pozos De Tronadura
El terminal de aire del compresor es de tipo rotatorio de
tornillos gemelos, de una etapa, sumergidos en aceite. El
puerto de succión (admisión) se ubica en la parte superior
del extremo del eje de impulsión (interno) del compresor. El
puerto de descarga se ubica en el extremo de la parte inferior
(externo). El lado de aire es directamente manejado a través
de un acoplador flexible desde el motor eléctrico principal. El
rotor macho del terminal de aire es accionado por un
engranaje montado en un eje de impulsión independiente y
un engranaje apareado sobre el rotor macho. El rotor hembra
es accionado por el rotor macho ya que los rotores están
endentados.
El aire circula a través del sistema comenzando en el filtro de aire de admisión, pasa a través de
la válvula de admisión y adentro del terminal de aire donde es comprimido. A medida que el rotor
macho gira hacia la derecha (por la rotación en el sentido del reloj del eje y engranajes - no
mostrados), acciona el rotor hembra en sentido opuesto. Esta acción hace que el aire sea inducido
a través del puerto de succión llenando completamente los canales abiertos o ranuras entre los
lóbulos espirales (helicoidales) en los rotores macho y hembra. A medida que los rotores siguen
girando, los lóbulos comienzan a interdentarse en la base. Esta endentación hace que las ranuras
espirales se reduzcan, resultando en la compresión del aire atrapado en las ranuras. La compresión
continúa hasta que las ranuras quedan descubiertas por el puerto de descarga. Desde el terminal
de aire, el aire comprimido es descargado a una presión dada dentro del separador aire/aceite.
Durante el proceso de compresión, aceite enfriado es inyectado a el aire atrapado por una bomba
de aceite tipo engranaje, localizado remotamente. El aceite es inyectado por las siguientes razones:
Enfriamiento: El aceite remueve el calor de la compresión para mantener la
temperatura del aire de descarga bajo 225°F.
Sellado: El aceite sella las aberturas internas entre los rotores, cilindro
y extremo de la carcasa de descarga para prevenir pérdida
de volúmenes de aire devolviendose hacia la entrada.
Lubricación: El aceite lubrica los rotores, rodamientos, engranajes y sello
mecánico del eje.
7-13
Sistema de Aire Comprimido Sección
MD6640 Perforadora Electrica Para Pozos De Tronadura
La separación del aceite de el aire, el cual fué inyectado dentro del terminal de aire durante la
compresión, se inicia en el separador. Del 90% al 95% de la separación de aceite se logra por una
disminución de la velocidad del aire, cambios en la dirección del flujo, adecuada regulación y
correcta localización del puerto de entrada. La separación final aire/aceite se obtiene forzando el
flujo a través de los elementos separadores para entregar prácticamente aire libre de aceite a la
salida. El aceite recogido por los elementos separadores es retornado al sistema por la línea de
barrido del compresor. Para prevenir sobrepresión en el tanque, una válvula de alivio de presión de
aire se instala en el flujo de salida o en el lado seco de los elementos del separador.
SISTEMA DE ACEITE
El sistema de aceite consiste de un paquete separado y remoto de motor de bomba eléctrico. La
succión de la bomba arranca aceite desde el fondo del estanque receptor.
El ajuste de presión de esta válvula de relevo para esta bomba es de 180 PSI (para proteger el
enfriador de aceite) y puede ser chequeada en el portal de testeo G9. La presión de la bomba va a
la válvula termostática, ésta desviara el aceite al enfriador de aceite cuando la temperatura alcanza
los 140F (60C) y hacia los filtros compresores, o sera dirigido a los filtros en el compresor si la
temperatura del aceite es de menos de 140F (60C). Los filtros tienen una desviación interna que se
abre a un diferencial de temperatura de 25 PSID, en caso que los filtros estén bloqueados. Construido
en cada filtro es un interruptor indicador de filtro bloqueado el cual dará una visual y una alerta en el
panel de vista.
Mas abajo del sistema de filtros hay unos dispositivos que proveen información retroactiva del
sistema. En el primero esta el Main Compressor Oil Temperature Sender -MCOTS (enviador de
Temperatura de Aceite del Compresor Principal) y el medidor de temperatura T2, localizado en el
montaje de filtro. El rango de operación normal del compresor es de entre 140F a 190F (60 - 87.8C).
El segundo es laAir Compressor Oil Stop Valve -ACOSV (Válvula de detención de aceite del compresor
de aire) operado por solenoide, la cuál; cuando es energizada, envía el aceite a través desde los
filtros hasta los inyectores del compresor. Tercero es el Compressor Oil Pressure Switch -COPS
(Interruptor de presión de aceite del compresor) el cual apagará el compresor si hay una perdida de
presión (La presión puede ser chequeada en el portal de testeo G11). En la conexión de salida
están el Main CompressorAir Temperature Sender -MCATS (enviador de la temperatura de aire del
compresor principal) y el medidor de temperatura T1, los cuales monitorean la descarga de
temperatura desde el estanque receptor.
INICIO Y MODO DE VENTILACION
Iniciar el Air Compressor Oil Circulation Pump (Bomba de circulación de aceite del compresor de
aire), la presión en el puerto de testeo T1 en el distribuidor de control debe ser 100 PSI. La presión
en el puerto de testeo G9, en la bomba será de 110 - 180 PSI.
LaAir Compressor Spiral Valve -ACSV (Válvula espiral del compresor de aire) operada por solenoide
en el distribuidor de control sera DESACTIVADO. Esto envía el aceite a la válvula espiral del
compresor la cuál rota la válvula a MINIMO. Las válvulas de control del volumen variable (si son
equipadas),ACVV1,ACVV2 yACVV3 son todas DESACTIVADAS.
7-14
Sistema de Aire Comprimido Sección
MD6640 Perforadora Electrica Para Pozos De Tronadura
La Air Compressor Intake Valve - ACIV (Válvula de entrada del compresor de aire) operada por
solenoide en el distribuidor de control será DESACTIVADO. ElAceite desdeACSV se comunica con
el ACIV y abre ambas la válvula recirculante (enviando el aire al lado de succión del compresor) y
sujeta la válvula de mariposa de la entrada del compresor cerrada.
La DrillAir Valve -DAV (Válvula de aire de perforadora) operado por solenoide sera DESACTIVADO.
Cuando la DAV es desactivado, la válvula de derribado se abrirá resultando en una presión máxima
de 30 a 50 PSI. La válvula de aire de la perforadora será cerrada.
MODO PERFORADOR
La válvulaACSV será ENERGIZADA, la válvula espiral girará desde MINIMO a MAXIMO
La válvula ACIV será ENERGIZADA; Dejando a la válvula de mariposa que abra y cierre la válvula
recirculante.
La DrillAir Valve (Válvula de aire de perforadora) operada por solenoide será ENERGIZADAcerrando
la válvula de derribado y abriendo la válvula de aire de perforadora enviando aire a la broca de la
perforadora.
La máxima presión del tanque será mantenida a través del Air Pressure Regulating Valve (Válvula
reguladora de presión de aire), cualquier presión operativa mayor que 80 PSI modularán la válvula
de entrada para que mantenga la presión del tanque a 80 PSI.
OPCION DE VOLUMEN VARIABLE
El anteriormente citado Modo de la Perforadora es para volumen de 100 %, la opción variable de
volumen le da al operador el control para 3 salidas diferentes de volumen entre 100 % y 68 %. Las
posiciones de la válvula son como sigue:
NIVEL 1
ACSV - DESACTIVADO
ACIV - ENERGIZADO
Distribuidor de Variable de VolumenACVV1 - ENERGIZADO
Distribuidor de Variable de VolumenACVV2 - DESACTIVADO
Distribuidor de Variable de VolumenACVV3 - DESACTIVADO
NIVEL 2
ACSV - DESACTIVADO
7-15
Sistema de Aire Comprimido Sección
MD6640 Perforadora Electrica Para Pozos De Tronadura
ACIV - ENERGIZADO
Distribuidor de Variable de Volumen ACVV1 - DESACTIVADO
Distribuidor de Variable de VolumenACVV2 - ENERGIZADO
Distribuidor de Variable de VolumenACVV3 - DESACTIVADO
NIVEL 3
ACSV - DESACTIVADO
ACIV-ENERGIZADO
Distribuidor de Variable de VolumenACVV1 - DESACTIVADO
Distribuidor de Variable de VolumenACVV2 - DESACTIVADO
Distribuidor de Variable de VolumenACVV3 - ENERGIZADO
ARRANQUE DEL COMPRESOR
NOTA: Para una lectura exacta, la maquina debe estar nivelada cuando se revisa el nivel de
aceite.
1. ACEITE PARA COMPRESOR – El terminal de aire, separador y enfriador del compresor
deberán ser llenados con el aceite para compresor recomendado.
NOTA: Luego del arranque inicial, el nivel de aceite en el separador caerá debido a que el sistema
de tuberías se rellena con aceite. Aproximadamente 15 minutos después de esta
operación apague el compresor. Permita que la maquina repose durante 10 a 15 minutos
de manera que elimine las burbujas de aire en el aceite. Revise el nivel de aceite en el
manómetro. Si el nivel de aceite esta debajo del vidrio visor, rellene hasta arriba en el
vidrio visor.
PRECAUCIÓN: El sistema contiene aceite caliente bajo presión. Antes de abrir el
tapón de llenado, siempre revise el manómetro de presión y
asegúrese que la presión esté en cero.
2. DRENE LO CONDENSADO –Abra la válvula de drenaje levemente para drenar lo condensado
en un recipiente. Cierre firmemente la válvula cuando aparezca el aceite. Elimine
apropiadamente el aceite y lo condensado.
3. ARRANQUE LAUNIDAD –Arranque el compresor.
4. OBSERVE LA PRESIÓN DE AIRE DE DESCARGA – Durante la operación de perforación, la
válvula de aire principal mantendrá una presión mínima de aproximadamente 30 PSIG en el
receptor. Una presión mayor a este mínimo, será regulado por el tamaño del orificio de la
broca de perforación o por el ajuste de la válvula de control de presión. Durante el ciclo de
carga, la presión de aire de descarga no debe operar sobre la capacidad máxima de la
presión de placa. Sin embargo, presiones altas momentáneas de hasta 85 PSIG son permitidas
(ej. Para destapar los orificios tapados de la broca de perforación).
7-16
Sistema de Aire Comprimido Sección
MD6640 Perforadora Electrica Para Pozos De Tronadura
NOTA: La válvula de seguridad de desahogo del tanque está colocada a 150 PSI y debe ser
reemplazada o reparada cada ves que es abierta.
5. OBSERVE LATEMPERATURADELAIRE DE DESCARGA– La temperatura máxima del aire
de descarga no deberá exceder los 225°F (107ºC).
NOTA: La temperatura limite del aire está fijada en fabrica para apagar la unidad a los 225°F
(107ºC).
6. OBSERVE LA TEMPERATURA DEL INYECTOR DE ACEITE – La temperatura del inyector
de aceite no deberá exceder los 185°F (85ºC).
7. REALICE REVISIONES DE MANTENCIÓN – Refiérase a la sección apropiada de este manual
para ver las revisiones de mantención recomendadas.
8. DESCARGAR EL COMPRESOR - Para descargar el compresor, la válvula de admisión del
compresor de aire (ACIV) es energizada, cerrando la válvula de admisión, válvula de solenoide
de la perforadora de aire (DAV) es desactivado para cerrar la válvula de aire principal. La
presión del aire en el estanque es desangrada usando la válvula derribadora. La presión del
aire en el tanque descenderá a aproximadamente 30 PSI, dependiendo de la calidad del sello
en la válvula de admisión.
NOTA: La temperatura del aire de descarga no deberá exceder los 225o
F (107ºC). La temperatura
del inyector de aceite no deberá exceder los 185o
F (85ºC).
MODO DE APAGADO DEL COMPRESOR
FALLA DEL COMPRESOR
El compresor se apagará si la temperatura del aire está por encima de 212ºF (100 ºC) y la temperatura
del aceite es más que 72ºF (22ºC) menos que la temperatura del aire.
FALLA DEL ENFRIADOR DEL COMPRESOR
El compresor se apagará si la temperatura de aire está por encima de 212ºF (100ºC) y la temperatura
del aceite es dentro 18ºF (-8ºC) de temperatura de aire.
ALARMA DE SOBRECALENTAMIENTO DEL COMPRESOR
Esta falla ocurre cuando la temperatura del aire esta sobre los 212ºF (100o
C).
FALLA EN LA TEMPERATURA DEL AIRE EN EL COMPRESOR
Si la temperatura del aire alcanza los 225ºF (107o
C), el compresor se apagará.
7-17
Sistema de Aire Comprimido Sección
MD6640 Perforadora Electrica Para Pozos De Tronadura
VÁLVULA DE CONTROL TERMOSTÁTICA
La válvula de control termostática (de 3 caminos) controla el flujo de aceite para mantener una
temperatura mínima de 140°F (60°C) en el inyector de aceite.
En el arranque, con la unidad fría, el elemento térmico es abierto a la línea de bypass. El aceite
fluye desde el puerto B al puerto A hacia el compresor, by paseando el puerto C hacia el enfriador.
El elemento viene ajustado de fábrica para abrirse a 140°F (60°C). A medida que el receptor de
aceite comienza a calentarse hasta alcanzar esta temperatura, el elemento termal gradualmente
cierra el puerto B y abre el puerto C. Esto permite que el aceite frió del enfriador del radiador se
mezcle con el aceite bypass. Después que la unidad se ha calentado, la válvula de control
termostática normalmente estará abierta para el puerto C. Esto produce que la temperatura del
inyector de aceite esté sobre los 140°F (60°C). La válvula debería estar completamente abierta a
150°F (66°C) dirigiendo flujo completo al enfriador.
7-18
Sistema de Aire Comprimido Sección
MD6640 Perforadora Electrica Para Pozos De Tronadura
Si el compresor cierra por debajo de las condiciones altas temperaturas de aire, el elemento termal
puede estar atascado en la posición desviación desde el puerto B al puerto A. Permitir que la
unidad se enfríe y entonces vuelva a arrancar el compresor. Compruebe la temperatura de la
manguera desde el puerto C al enfriador. Si la temperatura está por encima de 150°F (66°C) y
dentro de 5°F del puerto A, el elemento está funcionando correctamente. Si la temperatura de la
inyección de aceite continúa aumentando después de los 150°F (65°C) y la temperatura de la
manguera desde el puerto C al enfriador está a menos de 5°F que la temperatura de la manguera
del puertoA, apagar la unidad inmediatamente. Remover, limpiar, testear, y reemplazar el elemento
termostático, si es requerido.
Retire, limpie y pruebe la válvula de control termostática de la siguiente manera:
1. Apague el compresor. Cierre y ponga una etiqueta en los controles del compresor. Si es
posible permita que el sistema se enfríe. Drene el aceite. Alivie la presión de aceite en las
líneas hacia y desde la válvula termostática.
2. Puede que sea necesario retirar la válvula termostática de la maquina para poder separar
los componentes. Sin embargo, esto no es un requisito. Por lo menos desconecte en el
puerto A la manguera de abastecimiento del compresor.
PELIGRO: ENERGÍAALMACENADA! A la temperatura de operación, el liquido
hidráulico esta caliente y presurizado. El líquido hidráulico caliente
puede producir quemaduras. Liquido hidráulico bajo presión puede
causar daños o la muerte si no es liberado en una manera
controlada antes de que las líneas hallan sido desconectadas.
3. Retire los cuatro pernos y golillas de cierre que une el alojamiento del adaptor en el puerto A.
4. Retire el alojamiento del adaptador y el anillo “O”.
5. Retire el ensamblaje del elemento termostático y sello.
6. Limpie el elemento y pruebe lo siguiente:
PRECAUCIÓN: El alojamiento de la válvula y termostato puede que estén caliente.
Ocupe un adecuado equipo protector al manipular cualquier
artículo caliente.
7. Ponga el elemento en agua a 150°F (65°C) y revuelva vigorosamente durante 5 minutos.
Inmediatamente ponga el elemento en el alojamiento. Si el elemento hace un recorrido total,
se puede sentir el asiento del alojamiento contra el alojamiento superior. Si el elemento no
hace su recorrido total y no se sienta, reemplácelo por un nuevo elemento, [fijación de 140°F
(60°C)].
PRECAUCIÓN: El repuesto del elemento deberá igual al original. No lo reemplace
por otra marca.
7-19
Sistema de Aire Comprimido Sección
MD6640 Perforadora Electrica Para Pozos De Tronadura
8. Limpie las superficies internas del alojamiento del adaptador y el alojamiento de la válvula
principal.
9. Lubrique el nuevo anillo O y deslícelo por la parte de arriba del ensamblaje del elemento y
luego en su posición en el elemento.
10. Ponga la nueva empaquetadura del alojamiento en el hueco del alojamiento de la válvula
principal.
11. Inserte el elemento en el alojamiento del adaptador. Instale el alojamiento del adaptador
sobre el elemento.
12. Instale los tornillos del alojamiento y las golillas de cierre y luego aprete. Rellene el sistema
con aceite. Retire el cierre del compresor y reinicie el compresor. Pruebe que no haya
escapes y que la operación sea la apropiada.
VÁLVULA REGULADORA DE IMPULSIÓN
La válvula de admisión en el compresor es una válvula de mariposa con un operador de aire/aceite
cilindro de aceite. La válvula de admisión es cerrada para el arranque del compresor. Esto impide
la entrada de aire en el compresor causando el tornillo que opere en el vacío. Puesto que los
tornillos no comprimen aire, esto reduce el caballo de fuerza requerido para conducir el compresor.
La válvula de admisión se mantiene en la posición cerrada hasta que el operador quieren perforar
un hoyo. El operador colocará el interruptor principal de válvula de aire en la posición abierta; Esto
causará que el cilindro de control de la válvula de la boca de aspiración se retracte abriendo la
válvula de admisión. El aire desembocará hacia el compresor y comenzará a comprimir aire.
La válvula de admisión se usa también para regular la máxima presión del aire en el tanque receptor.
Si la presión del aire en el tanque se vuelve demasiada alta, el regulador de control de aire abrirá y
extenderá el cilindro de control de aire cerrando la válvula de admisión y reduciendo el flujo de aire
en el compresor. Una vez que el hueco se descongestiona y la presión del aire sea reducida en el
tanque, la válvula de admisión regresará a la posición abierta completa.
MANÓMETRO DE LA TEMPERATURA DEL AIRE DE DESCARGA
El manómetro de temperatura es un indicador que lee directamente la temperatura del aire en la
brida de descarga del compresor.
PRECAUCIÓN: En ningún momento se debe exceder los 225°F (107°C).
7-20
Sistema de Aire Comprimido Sección
MD6640 Perforadora Electrica Para Pozos De Tronadura
VÁLVULA DE SEGURIDAD DE ALIVIO
La válvula de seguridad de alivio de presión esta ubicada en el lado del receptor y ajustada para
aliviar la presión en 150 PSIG. Inspecciones periódicas se deben realizar para asegurar su operación
apropiada.
PRECAUCIÓN: Nunca opere la unidad sin un ajuste apropiado de la válvula de
seguridad.
VÁLVULA DE PURGA DE SOLENOIDE
La válvula del purga es instalada en la conexión de salida del aparato receptor y automáticamente
se abrirá y purgara el aparato receptor, el entubado y aire del compresor se detienen cuando el
compresor es detenido. El tiempo de purga es de aproximadamente cinco minutos para reducir la
presión a 0 PSIG.
NOTA: Una purga demasiado rápida podría causar que el aceite se torne espuma y un excesivo
sobrante de aceite pase por el separador de aceite.
8-1
Filtración de Aire Sección
MD6640 Perforadora Electrica Para Pozos De Tronadura
Sección 8
Filtración de Aire
Recurra siempre a la información de seguridad de la Sección 1 de éste
manual antes de iniciar todo proceso de mantención en esta máquina.
Tabla de Contenidos
UNIDAD DE AIRE ACONDICIONADO CON CALENTADOR ........................................................3
DESCRIPCIÓN .......................................................................................................................3
ESPECIFICACIONES .............................................................................................................4
VENTILADORES DE LA SALA DE MÁQUINAS.............................................................................4
INSPECCIÓN ..........................................................................................................................4
LUBRICACIÓN ........................................................................................................................5
8-2
Filtración de Aire Sección
MD6640 Perforadora Electrica Para Pozos De Tronadura
8-3
Filtración de Aire Sección
MD6640 Perforadora Electrica Para Pozos De Tronadura
Sección 8
Calefacción, Ventilación Y Aire Acondicionado
UNIDAD DE AIRE ACONDICIONADO CON CALENTADOR
DESCRIPCIÓN
Las unidades de control de climatización SIGMA, son sistemas de trabajo pesado, diseñados para
ser montados sobre el techo de las cabinas de equipos industriales y de minería.
Estas unidades proporcionarán un rendimiento superior en una variedad de condiciones climáticas
y bajo los ambientes más rigurosos.
8-4
Filtración de Aire Sección
MD6640 Perforadora Electrica Para Pozos De Tronadura
ESPECIFICACIONES
Capacidad Nominal de Enfriamiento 25.000 BTU/hr @ 460 volts/60 Hz.
22.500 BTU/hr @ 380 volts/50 Hz.
Refrigerante HFC 134a - 24 lbs.
VENTILADORES DE LA SALA DE MÁQUINAS
INSPECCIÓN
Revise las aspas por si tienen acumulaciones de grasa y/o suciedad. Límpielas si es necesario.
Las aspas deberían rotar libremente, sin trabarse.
Si se detecta vibraciones, revise lo siguiente:
1. Los rodamientos y la alineación de transmisión.
2. Rectitud del eje.
3. Ruedas o poleas sueltas en el eje.
4. Rodamientos sueltos o gastados.
5. Pernos de montaje sueltos.
6. Motor fuera de balance.
7. Poleas fuera de balance.
8. Tapa de cubierta suelta sobre la rueda.
9. Rueda gastada o corroída.
10. Acumulación de materiales en la rueda.
8-5
Filtración de Aire Sección
MD6640 Perforadora Electrica Para Pozos De Tronadura
11. Fisuras en las aspas y/o en la maza.
12. Aspas de ventilador y maza desgastadas.
LUBRICACIÓN
Todos los rodamientos están prelubricados y sellados en la fábrica. Bajo condiciones de temperatura
normal (-20º F hasta + 150º F), cuando los ventiladores están circulando aire limpio, los rodamientos
se consideran lubricados de por vida y la lubricación adicional es innecesaria.
Si los ventiladores están circulando aire contaminado u operando en temperaturas elevadas, se
requiere una lubricación periódica.
Para temperaturas normales, se usa grasa mineral neutra, de alta calidad. Debe estar libre de
rellenos abrasivos y altamente resistente a la oxidación.
Cuando los ventiladores están operando en temperaturas elevadas (166º F o mayores), se debería
usar una grasa de base de silicona o jabón de litio. Esta grasa de alta temperatura debería tener un
punto de ruptura sobre 350º F.
Use una pistola grasera de baja presión para los rodamientos del ventilador. Es preferible que
tanto la pistola o la conexión tengan desahogo. Para prevenir un relleno excesivo, aplique solo una
pequeña cantidad de grasa.
Esto es especialmente importante cuando se usa una extensa tubería de lubricación y el rodamiento
no puede observarse.
8-6
Filtración de Aire Sección
MD6640 Perforadora Electrica Para Pozos De Tronadura
9-1
Antecedentes de Ingenieria Sección
MD6640 Perforadora Electrica Para Pozos De Tronadura
Sección 9
Antecedentes de Ingenieria
Recurra siempre a la información de seguridad de la Sección 1 de éste
manual antes de iniciar todo proceso de mantención en esta máquina.
Tabla de Contenidos
GRADO DEL TORNILLO (PERNO)..............................................................................................3
APRIETE DE PERNOS ................................................................................................................4
MÉTODO LLAVE DE TORQUE ..............................................................................................4
Tabla 1 - Hilos Lubricados o Laminados o con Golillas Endurecidas ........................................... 4
Tabla 2 - Hilos Secos.................................................................................................................. 4
MÉTODO ROTACIÓN DE LA TUERCA ..................................................................................5
Tabla de Valores de Torque con Apriete a Tope .......................................................................... 5
TORNILLO ROSCADO DE CERRADURA DE ALAMBRE ...........................................................6
Modelos para tornillos de cerradura de alambre .......................................................................... 6
SOLDADURA DE MANTENCIÓN..................................................................................................7
ELECTRODOS DE SOLDADURA .........................................................................................8
SOLDADURA DE REPARACIÓN DE FISURAS .....................................................................9
Preparación de Junturas para la reparación de Fisuras ............................................................... 9
PRECALENTAMIENTO ...................................................................................................10
TÉCNICA PARA SOLDAR ...............................................................................................10
SOLDADURA DE REPARACIÓN DE PARTES QUEBRADAS............................................. 11
EQUIPO DE SOLDADURA Y CORTE........................................................................................12
EQUIPO PARAALIVIAR EL ESTRÉS Y MEDIR LATEMPERATURA ..........................................12
INSPECCIÓN DE ENGRANAJE..................................................................................................14
Defeitos superficiais nos dentes das engrenagens .....................................................................15
CONEXIONES AEROQUIP ORS................................................................................................16
CONEXIONES ORS ..................................................................................................................16
9-2
Antecedentes de Ingenieria Sección
MD6640 Perforadora Electrica Para Pozos De Tronadura
9-3
Antecedentes de Ingenieria Sección
MD6640 Perforadora Electrica Para Pozos De Tronadura
Sección 9
Antecedentes de Ingenieria
GRADO DEL TORNILLO (PERNO)
El grado para clasificar un tornillo (perno) es identificando la marca en su cabeza, como se muestra
a continuación:
La golilla y tuerca deben ser del MISMO GRADO que el tornillo. NUNCASUSTITUYAUN TORNILLO
POR OTRO DE MENOR GRADO DE ACUERDO A LO QUE SE ESPECIFICA.
9-4
Antecedentes de Ingenieria Sección
MD6640 Perforadora Electrica Para Pozos De Tronadura
APRIETE DE PERNOS
MÉTODO LLAVE DE TORQUE
Las tablas siguientes muestran valores de torque para pernos grado 2, 5 y 8, sólo con hilos UNC.
La Tabla 1 lista valores de torque para hilos lubricados o laminados y para uso con golillas
endurecidas. La Tabla 2 lista aquellos para hilos secos.
Los pernos deben apretarse al valor
total especificado, en aumentos,
alternándose de un perno a otro para
asegurar el ajuste de la tracción de las
partes en forma gradual. El apriete
debe progresar en forma sistemática
desde lo más rigido de la unión, hacia
sus bordes libres.
Los pernos con plantilla circular se
deben apretar en forma diametral
entrecruzada, mientras se aplica
aumentos de torque para asegurar la
correcta tracción de las partes.
Tabla 1 - Hilos Lubricados o Laminados o con Golillas Endurecidas
Tabla 2 - Hilos Secos
9-5
Antecedentes de Ingenieria Sección
MD6640 Perforadora Electrica Para Pozos De Tronadura
MÉTODO ROTACIÓN DE LA TUERCA
PRECAUCIÓN: Éste procedimiento de apriete es aplicable solo a pernos grado 5 y
8 con hilos UNC. Para pernos con hilos diferentes a UNC, contacte
al Departamento de Servicio de Bucyrus International.
NOTA: Cuando use éste procedimiento, los hilos del perno y las superficies bajo la cabeza del
perno y la tuerca, deben ser lubricados. Éste procedimiento se aplica solo si la unión y la
superficie bajo la cabeza del perno y tuerca están maquinados para paralelismo.
1. Los pernos deben llevarse a una condición de “apriete a tope” para asegurar que las partes
de la unión tengan buen contacto una con la otra. “Apriete a tope” se define como el apriete
obtenido al torquear un perno al valor indicado en la tabla de ésta página. El apriete a tope
debe progresar sistemáticamente desde la parte más rigida de la unión, hacia sus bordes
libres, mientras se alterna de perno a perno para asegurar tracción gradual y pareja de las
partes. Luego que todos los pernos hayan quedado a tope, a los primeros pernos apretados
en la parte más rígida de la unión, se les debe revisar la correcta retención del torque. Si los
pernos están sueltos por la tracción de la unión, la secuencia de apriete a tope debe repetirse
a todos los pernos de la conexión. Éste procedimiento de revisión y retorqueo debe repetirse
tantas veces como sea necesario hasta que la unión quede totalmente traccionada y todos
los pernos queden con el torque a tope especificado. El apriete de las superficies de contacto
de la junta deben ser luego verificadas utilizando láminas calibradoras.
Tabla de Valores de Torque con Apriete a Tope
2. Luego, las tuercas y pernos se deben aparejar, punzando el centro del extremo del perno y la
tuerca. En pernos de vástago, hermane marcando ambos extremos del perno y las tuercas.A
continuación, los pernos y tuercas deben ser reapretados adicionalmente, con la cantidad
aplicable de rotación de tuerca tal cual se especifica en la Tabla. En ésta porción del apriete
de “rotación de la tuerca”, no es necesario seguir una secuencia perno a perno en particular.
9-6
Antecedentes de Ingenieria Sección
MD6640 Perforadora Electrica Para Pozos De Tronadura
NOTA: La rotación de la tuerca se lee entre la marca punzada en el perno y la marca de la
tuerca. En pernos de vástago, la rotación de la tuerca es el movimiento rotacional
acumulativo entre las marcas punzadas a ambos extremos del perno.
TORNILLO ROSCADO DE CERRADURA DE ALAMBRE
Los tornillos roscados de cerradura de alambre se requieren cuando no es posible una inspección
visual periódica, éstos aseguran cerradura máxima.
Las ilustraciones de abajo muestran los métodos recomendados para variados modelos de tornillos
roscados de hilo hacia la derecha. Para aquellos modelos que no se muestran, ponga las cerraduras
de alambre a los tornillos “en pares”. Para modelos impares, ponga las cerraduras de alambre a
los tornillos en pares a excepción de los tres restantes que juntos deberán tener las cerraduras de
alambres en los tornillos.
Modelos para tornillos de cerradura de alambre
Usar cerradura de alambre medida # 14, hilar el alambre en el roscado de la cabeza del tornillo,
para que la torsión del apretado en el alambre ejerza mayor torsión en la dirección del hilo del
tornillo. (La ilustración muestra como hilar el alambre del roscado hacia la derecha. Revertir el
hilado del alambre cuando se use en diseños hacia la izquierda.)
9-7
Antecedentes de Ingenieria Sección
MD6640 Perforadora Electrica Para Pozos De Tronadura
SOLDADURA DE MANTENCIÓN
Estas recomendaciones de soldadura para reparar se aplican a las principales estructuras de la
maquina. Las características de la maquina con una alta carga cíclica son consideradas en el
diseño y material escogido para la construcción de la maquina. Sin embargo, debido a que se
pueden encontrar condiciones inusuales de operación y aplicar un gran numero de cargas cíclicas
a la maquina, se pueden producir fisuras por fatiga u otras anormalidades. Una temprana detección
de estas condiciones a través de las inspecciones regulares de la maquina ayudan a evitar
problemas o averías de emergencia.
Se realiza una soldura de mantención para reparar aquellos componentes estructurales fisurados
o quebrados. Se requiere prestar atención a una serie de detalles, cumplir cuidadosamente con el
procedimiento de reparación y observar las normas de seguridad locales, estatales y federales
cuando se aplican procesos de calefacción, corte y soldadura para recondicionar partes quebradas.
PRECAUCIÓN: SOLDADURAS Y CORTES TÉRMICOS DE METALES GENERAN
TEMPERATURAS HASTA LOS MILES DE GRADOS DONDE LOS
METALES SE DERRITEN Y VAPORIZAN. No se producirán daños
ni al personal ni a la propiedad si se toman las adecuadas
precauciones en cuanto al calor, gases y humos generados, shocks
eléctricos y radiación. Al calendar y cortar con gas, el manejo y
almacenamiento de gases comprimidos presenta otros peligros al
que se deben proteger para mantener un ambiente de trabajo
seguro.
Las precauciones de seguridad deberán estar conforme a la ultima
edición de ANSI standard Z49.1, Seguridad en Soldaduras y Cortes,
publicado por la Sociedad Americana de Soldaduras.
El reacondicionamiento de estructuras que han fallado requiere atención a una serie de detalles y
la aplicación cuidadosa del procedimiento de reparación. Solo en ciertos casos es necesario
fortalecer las estructuras con una suma de refuerzos.
ADVERTENCIA: El REFORZAMIENTO DE PARTES ESTRUCTURALES SE DEBE
REALIZAR SOLO BAJO RECOMENDACIÓN DE BUCYRUS
INTERNATIONAL, INC. LOS REFORZAMIENTOS APLICADOS
INAPROPIADAMENTE PUEDEN TENER UN EFECTO ADVERSO
EN EL RENDIMIENTO Y VIDA ÚTIL DE LA ESTRUCTURA.
La mejor manera de reparar una parte quebrada es soldar penetrando completamente,
preferiblemente soldando ambas partes, usando un correcto electrodo para soldar y observando
todas las precauciones tales como el precalentamiento. Para soldar la ranura, penetrándola
completamente, se debe tener la base del metal en el suelo con ambos lados parejos para retirar
todas las irregularidades de la superficie. Un proceso alternativo incorpora barras de apoyo para
soldar asegurando un completo penetrado del área a reparar. Asegúrese de tomar las medidas de
seguridad y seguir las normas de regulación federal, estatal y local.
9-8
Antecedentes de Ingenieria Sección
MD6640 Perforadora Electrica Para Pozos De Tronadura
Una completa soldadura de penetración repara condicionado a pulir en vez de agregar refuerzo,
ya que favorece a mantener el diseño original del diseño de flujo de stress hacia las partes
estructurales. Incorporar refuerzo al no formar parte del diseño, puede aumentar la fatiga del
material debido al cambio geométrico en la estructura original.
El soldar para reparar efectivamente partes estructurales de la maquina fisurados, rotos o doblados,
requiere conocimiento de los distintos tipos de acero que se usan, apropiados eléctrodos de
soldadura y el saber como practicar la soldadura. La composición química, propiedades mecánicas
y grosor del acero determinan el electrodo de soldadura que se debe usar y la requerida temperatura
de precalentamiento.
ELECTRODOS DE SOLDADURA
Con la excepción de la pluma, las solduras que reparan las variadas estructuras de la maquina
pueden clasificarse básicamente en dos, electrodos de arco con escudo metal: E7018 y E8018-
C1. Ambos electrodos son bajos en hidrogeno que depositan el metal soldado, con excelentes
propiedades como niveles de fuerza con 70,000 a 80,000 PSI, y propiedades de impacto desde -
20°F a -75°F. Estos son electrodos para todas las posiciones que producen una soldura de alta
calidad para reparar los componentes estructurales de maquinaria pesada.
NOTA: A pesar de que estos electrodos son de una calidad superior, se deben usar con cuidado.
Electrodos bajos en hidrogeno son altamente susceptibles a la humedad una vez retirado
de su envase sellado. Para mantener el hidrogeno bajo y sus propiedades resistentes al
fisurado, se deben almacenar en hornos para electrodos a una temperatura de 250°F
hasta el momento que se vayan a usar. Hornos de vástago pequeños y portables al lado
del soldador son ideales. Siempre deben estar secos los electrodos bajos en hidrogeno
que se vayan a usar.
Las fisuras causadas por hidrogeno son extremadamente finas y ocurren invisiblemente debajo
de la superficie en la zona afectada por el calor en la base del metal, como se muestra. Por lo
tanto, no son detectables al momento de soldar.
Mientras se está soldando se pueden propagar estas
fisuras y causar una falla final de la parte. Es necesario
cumplir estrictamente con una correcta practica de
soldadura en cuanto al manejo, almacenaje y uso de
los electrodos bajos en hidrogeno. Para evitar fisuras
retire de la superficie todo el aceite, grasa o
contaminante y asegúrese de que el acero este seco.
Precaliente a la temperatura requerida. Use solo
electrodos secos que estén en el horno para
electrodos. Después de exponerlo al aire, los
electrodos deben ser devueltos al horno. El tiempo
límite fuera del horno para los electrodos E7018 es
de cuatro horas y para los E8018-C1 dos horas.
9-9
Antecedentes de Ingenieria Sección
MD6640 Perforadora Electrica Para Pozos De Tronadura
SOLDADURA DE REPARACIÓN DE FISURAS
Preparación de Junturas para la reparación de Fisuras
Remueva completamente la fisura con cortando y puliendo. Prepare una ranura V de 45-60°
aproximadamente para volver a soldar. Si se produce una fisura a través del grosor y es posible
hacer una reparación por ambos lados, es preferible realizar una doble preparación en V. Al soldar
por ambos lados, se recomienda siempre un biselado del lado opuesto para una penetración
completa.
Cuando físicamente no es posible biselado del lado opuesto y pulido, se deberá tomar un enfoque
alternativo. Algunas veces es posible biselar para retirar completamente la fisura, luego coloque
una barra de apoyo en el lado inferior para facilitar una soldadura de penetración completa.
NOTA: La barra de apoyo deberá quedar ajustada en el lado inferior de manera que no se produzca
una fisura por pobres condiciones para soldar.
Cuando no es posible colocar una barra de apoyo debido a un limitado acceso al lado inferior, se
recomienda retirar la porción de la placa fallada y soldar una pieza nueva, usando barras de apoyo
en todos los lados para asegurar una soldura de penetración completa.
Una alternativa adicional es biselar, retirar la fisura, luego soldar pequeñas capas alineadas para
cerrar la brecha y preparar una ranura para una soldura de reparación. En este caso, la soldura de
reparación será esencial para una penetración completa, pero no será perfecto en el lado de
inferior. Los otros métodos son preferibles en el orden descrito, es decir, soldar ambos lados,
soldar en contra de una barra de apoyo o reemplazar completamente una sección de la placa
9-10
Antecedentes de Ingenieria Sección
MD6640 Perforadora Electrica Para Pozos De Tronadura
PRECALENTAMIENTO
Al precalentar, aplique ampliamente calor al área general que rodea la zona a reparar. Es preferible
empapar en calor cuando se penetra completamente el grosor total del material, que aplicar
rápidamente una alta temperatura en la superficie. Se recomienda resistencia eléctrica y calefacción
radiante ya que puede quedar operando durante la soldura para mantener una temperatura mínima
de precalentamiento. Precaliente con una temperatura de hasta 400°F, dependiendo de un análisis
del acero, en la mayoría de las condiciones será adecuado para reparaciones mayores. Según se
indicó anteriormente, las temperaturas de precalentamiento son determinadas por el tipo de acero
en la estructura. Las temperaturas deberán ser medidas con los crayones para indicar la
temperatura.
TÉCNICA PARA SOLDAR
El tamaño máximo de un electrodo para una
posición plana es de un 1/4 pulgada, 3/16
pulgada para una posición horizontal y 5/32
pulgadas para una posición vertical y elevada.
Use una textura partida apenas el ancho de la
capa sea suficientemente grande como para
acomodar capas una al lado de la otra. Durante
la soldadura asegúrese de obtener en todos
los pasos soldados una profunda fusión entre
la base metálica y la capa soldada adyacente.
Limpie toda escoria entre los pasos y todos lo
cráteres antes de iniciar el siguiente electrodo.
Inspeccione atentamente por fisuras, cortes
por debajo o capas solapadas, y luego bisele
o pula la falla antes de continuar. Es muy
importante obtener una buena soldadura de
reparación en partes con una alta carga y
especialmente partes con un estrés cíclico o
dinámico.
La presencia de cualquier catalizador de estrés en la superficie de la parte es perjudicial, promueve
la fatiga del material y puede llevar a una futura fisura. Por lo tanto, es esencial que la reparación
terminada sea lisa y este bien combinada con la base metálica. Repare cualquier corte inferior en la
soldadura, pula las capas solapadas y mezcle cualquier muesca o biselado. La mejor condición se
da al pulir y alisar la zona reparada y emparejarla con la superficie de la base metálica. La dirección
final al pulir debe ser idéntica con la dirección en la cual se aplica la carga a la estructura. Refiérase
a la figura.
9-11
Antecedentes de Ingenieria Sección
MD6640 Perforadora Electrica Para Pozos De Tronadura
SOLDADURA DE REPARACIÓN DE PARTES QUEBRADAS
Todas las recomendaciones para reparar las fisuras también se aplican para la reparación de
partes quebradas con algunas modificaciones. Para la reparación, el procedimiento de soldadura
puede que requiera una secuencia específica la que va a depender del tamaño y muestra de la
parte. Estas técnicas incluyen una secuencia de soldura de retroceso, de bloqueo, alternando de
lado a lado, soldando simultáneamente en lados opuestos, etc. Todas estas medidas preventivas
tienen por objeto minimizar el estrés al encogerse y la distorsión posterior o trizuramiento durante la
soldura. El método a seguir deberá ser determinado por un cuidadoso análisis de la situación y
enfocando el problema con sentido común. Un procedimiento que haya resultado exitoso en una
experiencia anterior podría aplicarse en la mayoría de los casos
El uso de placas dobles, refuerzos u otras asistencias utilizadas para fortalecer una estructura
que se ha fisurado durante el servicio, deberá considerarse cuidadosamente antes de decidir la
medida de reparación a ocupar. El material adicional que se agrega para fortalecer, altera la
configuración y geometría de la estructura, posiblemente pronunciando el efecto de fatiga en la
estructura. En muchos casos, aquellos intentos para fortalecer agregando placas solo sirve para
“perseguir la fisura en otra parte”. El flujo de estrés de la estructura ha sido alterado, creando una
zona para concentrar el estrés. Aquellas soldaduras fileteadas que se adjuntan para cruzar una
estructura tensa por ejemplo, son pobres métodos de reparación. Una Buena reparación, hecha
con cuidado y bien mezclada a la base del metal en todos los lados es preferible a refuerzos
adicionales. Cualquier aplicación de refuerzos requiere una cuidadosa consideración con respecto
al efecto general de la estructura durante el servicio, y solo deberá ser realizado después de
consultar a Bucyrus International, Inc.
9-12
Antecedentes de Ingenieria Sección
MD6640 Perforadora Electrica Para Pozos De Tronadura
EQUIPO DE SOLDADURA Y CORTE
A continuación hay una lista del equipo para soldar y cortar necesario para una reparación general
de una soldadura.
MAQUINAS DE SOLDADURA, Arco - 600 amperes (para soldar y Cortar)
SOPLETE OXIGENO ACETYLENO con medidor – largas mangueras de 150'
SOPLETE PARA CALENTAR, Butano (para SOLDURA DE PLUMA)
ACCESORIOS PARA ARCO DE AIRE (para usar con maquinas de soldadura de 600 Amperes)
VÁSTAGOS DE SOLDADURA - E7018, E8018, E11018 - 1/8", 5/32". 3/16", 1/4"
C02 – Grado de Soldadura - 45°F Max. Punto de rocío
OXIGENO – Corte y calentamiento
ACETYLENO
MARTILLO DE SOLDADURA FLUX – Neumático con formones y repuestos
SOPLADORES, Ventilando (para soldadura del compartimiento)
PULIDORES, Accionados por aire y con ruedas
IMPERMEABLES – resistentes al fuego (para protegerse de soldaduras de pluma)
GUANTES DE ASBESTO
GAFAS PARA CORTAR, oscuras
MARCADOR DE ESTEATITA
COMPUESTOANTI-SALPICÓN
VARILLAS MEDICIÓN TEMPERATURA- 200° Y 200°
VARILLAS TEMPERATURA - 200° y 200°
EQUIPO PARA ALIVIAR EL ESTRÉS Y MEDIR LA TEMPERATURA
A continuación se presenta la lista del equipo recomendado para aliviar el estrés después de la
soldadura de reparación.
EQUIPO PARAMEDIR LATEMPERATURA
SPEEDOMAX, “W” Multi punto, Grabador Potenciómetro
REQUERIMIENTO DE PODER - 120 Volts, 60 o 50 Hz.
RANGO- 0 A 1500°F
CALIBRACIÓN- Cable Cromel-Alumel Termo copla. (Alumel = aleación Níquel Aluminio)
RANGO DE PRECISIÓN - 0.3% de lo eléctricamente abarcado
VELOCIDAD DEL GRAFICO - 2" por hora
SELECCIÓN TERMO COPLA – Seis (6) puntos
9-13
Antecedentes de Ingenieria Sección
MD6640 Perforadora Electrica Para Pozos De Tronadura
LUZ FLUORESCENTE
FABRICANTE - Leeds & Northrup Company
CABLE DE EXTENSIÓN TERMO COPLA
CABLES DUPLEX - Cromel-Alumel – Tipo K - 16 AWG Trenzado
LONGITUD – Resistencia total externa para ambos cables incluyendo el Termo copla no deberá
exceder los 2500 Ohms o 410 pies.
RESISTENCIA DEL CABLE – Resistencia nominal, Ohm por pie a 20°C 66°F, - Cromel - Ohms -
Alumel - .0683 Ohms.
AISLAMIENTO DEL CABLE – cada conductor de esmalte, asbestos (par retorcido) trenzado general
de asbestos.
CÓDIGO DEL CABLE -Alumel, cable negativo (Rojo); Cromel, cable positivo (amarillo)
COLOR GENERAL - Amarillo
CATALOGO No. 16-59-17
DESCONEXIÓN POLAR
CROMEL-ALUMEL CONEXIÓN COMPENSADA
Código de color de la GATA(O) (amarillo) - Catalogo No. 040419
Código de color del ENCHUFE (amarillo) - Catalogo No. 040434
ABRAZADERA DEL CABLE - Catalogo No. 072513
ADAPTOR - Catalogo No. 076794
ELEMENTO TERMO COPLA
CROMEL-ALUMEL - Tipo K – Doblado una (1) pulgada despejada.
CABLE POSITIVO CROMEL Código de Color (ninguno)
CABLE NEGATIVO ALUMEL Código de Color (Rojo)
CATALOGO No. 8784-K-1-3-12"-D
1. 588003 Calentadores Kaopak Flex
2. 588004 Kaopak Colector Tipo Serpentina
3. Manto Kaopak 3, 5, o 6 Tamaño de bolsillo según lo necesario para el dimensionado de la
tubería, aliviando el estrés.
Ensamblaje Termo copla, Completo
Catalogo No. 8784-K-1-3-12"-Q
Pellets de calefacción, aumento de Temperatura
Rango: 1500°F 1500°F - 1500°F 1500°F
Exactitud: +/-1%
Estos Pellets de Tempil comenzaran a derretirse a la temperatura especificada.
9-14
Antecedentes de Ingenieria Sección
MD6640 Perforadora Electrica Para Pozos De Tronadura
INSPECCIÓN DE ENGRANAJE
Una parte importante de la mantención de la maquina es la inspección regular de los engranajes.
Esto debe incluir los engranajes y piñones en las maquinas de empuje, rotacional y de propulsión.
Cualquier ruido o vibración inusual indica un desgaste excesivo en los engranajes y piñones.
Normalmente se necesita una pronta revisión antes de que falle completamente.
Es de vital importancia una correcta lubricación para la apropiada operación de engranajes. Siempre
revise que todos los engranajes tengan una lubricación adecuada. Vea la sección de lubricación
en este manual para mayor información de los lubricantes correctos y su aplicación.
Los engranajes tendrán un desgaste normal si no operan con cargas o temperaturas excesivas y
usando lubricantes correctos.
Los engranajes están diseñados para funcionar satisfactoriamente durante toda la vida útil de la
maquina. Si llega a fallar, es por una condición inusual. A pesar del diseño, tamaño o construcción
del engranaje, una correcta lubricación es esencial para asegurar el mínimo desgaste, una operación
silenciosa y un servicio de larga vida. Las formas de los dientes de los engranajes son fabricados
con mucha precisión, sin embargo, siempre habrán irregularidades microscópicas en la superficie
lo que causa una resistencia, fricción. Los engranajes al estar en condiciones mecánicas apropiadas
y con una lubricación correcta, reducen la fricción, el desgaste es prácticamente eliminado y los
engranajes deberían operar eficientemente. Sin embargo, incluso usando un adecuado lubricante
en forma apropiada, ciertas condiciones mecánicas y operativas pueden causar un desgaste y
destrucción de los dientes. Raramente se ven daños como una rotura en los dientes, por lo general
los daños se ven en las superficies de contacto.
Esa falla en la superficie puede rápidamente destruir el contorno original del diente, impidiendo una
operación silenciosa y sin vibraciones. Esta falla se puede atribuir directamente a una sobrecarga,
sobrecalentamiento, descarga, abrasivos, astillas, alineación incorrecta, rodamientos sueltos o
desviación de los ejes o alojamientos.
Muchos términos son ocupados para describir gráficamente la apariencia del daño de la superficie
de un diente. Los términos como picadura, abrasión, ralladura y roturas pueden agrupar todas las
demás irregularidades. Estos tipos de fallas se pueden deber a diferentes causas básicas. Desde
el punto de vista de la lubricación, la causa de la falla es de mayor interés que la apariencia de las
superficies. La clasificación de estas fallas en el diente del engranaje se muestran en la figura.
Los engranajes y piñones pueden mostrar algunas picaduras menores lo que suele ser normal.
Sin embargo, cualquier picadura mayor, rotura o cualquier anormalidad que muestre será necesario
reemplazo.
9-15
Antecedentes de Ingenieria Sección
MD6640 Perforadora Electrica Para Pozos De Tronadura
Defeitos superficiais nos dentes das engrenagens
9-16
Antecedentes de Ingenieria Sección
MD6640 Perforadora Electrica Para Pozos De Tronadura
CONEXIONES AEROQUIP ORS
Las conexiones tipo Aeroquip ORS se usan en el sistema hidráulico de esta maquina.
La conexión ORS tiene una ranura de anillo O maquinada en la cara aplanada macho. Esta cara
aplanada y anillo O se aparean con la otra cara maquinada del conector para formar un sello
virtualmente libre de filtraciones.
El concepto cara-sello permite que los componentes se instalen o reemplacen sin mover los
componentes apareados ni aplicar tensión en el tubo y líneas de manguera. La tuerca giratoria
puede ser retraída para inspeccionar el puesto del sello y ajustar antes de ser ensamblado.
Al usar esta conexión, retire el anillo O (O-Ring) de la cara macho y rellene la ranura con grasa
multi propósito de alta calidad, luego instale el anillo O en la ranura. La grasa también sellará
alrededor del anillo O por mientras se retiene el anillo O en la ranura. La grasa a la vez lubricara
la conexión durante el ensamblaje.
No es necesario una tuerca especial para la conexión, ya que la persona que instala puede “sentir”
cuando la conexión está apretada.
CONEXIONES ORS
10-1
Esquemáticos Sección
MD6640 Perforadora Electrica Para Pozos De Tronadura
Sección 10
Esquemáticos
Recurra siempre a la información de seguridad de la Sección 1 de éste
manual antes de iniciar todo proceso de mantención en esta máquina.
Tabla de Contenidos
ESQUEMÁTICOS .........................................................................................................................1
SIDE VIEW ..............................................................................................................................3
DECK PLAN ............................................................................................................................5
MAIN FRAME HYDRAULIC SCHEMATIC ................................................................................7
MAIN FRAME HYDRAULIC SCHEMATIC (CONT’D) ...............................................................9
MAIN HYDRAULIC ................................................................................................................. 11
JACK HYDRAULIC SCHEMATIC...........................................................................................13
CRAWLER HYDRAULIC SCHEMATIC..................................................................................15
MAST HYDRAULIC SCHEMATIC ..........................................................................................17
HYDRAULIC SOLENOID VALVE & GAGE PORT LOCATION ..............................................19
AIR SCHEMATIC ...................................................................................................................21
AIR SCHEMATIC RECIRCULATE .........................................................................................23
10-2
Esquemáticos Sección
MD6640 Perforadora Electrica Para Pozos De Tronadura
Section 10
ESQUEMÁTICOS
ESQUEMÁTICOS
The following pages contain a series of block diagrams depicting the schematic layout of the hydraulic
systems and air system.
SECCION 10 SCHEMATICS
MD6640 PERFORADORA ELECTRICA PARA POZOS DE TRONADURA
SECCION 10 SCHEMATICS
MD6640 PERFORADORA ELECTRICA PARA POZOS DE TRONADURA
SECCION 10 SCHEMATICS
MD6640 PERFORADORA ELECTRICA PARA POZOS DE TRONADURA
SECCION 10 SCHEMATICS
MD6640 PERFORADORA ELECTRICA PARA POZOS DE TRONADURA
SECCION 10 SCHEMATICS
MD6640 PERFORADORA ELECTRICA PARA POZOS DE TRONADURA
SECCION 10 SCHEMATICS
MD6640 PERFORADORA ELECTRICA PARA POZOS DE TRONADURA
SECCION 10 SCHEMATICS
MD6640 PERFORADORA ELECTRICA PARA POZOS DE TRONADURA
SECCION 10 SCHEMATICS
MD6640 PERFORADORA ELECTRICA PARA POZOS DE TRONADURA
SECCION 10 SCHEMATICS
MD6640 PERFORADORA ELECTRICA PARA POZOS DE TRONADURA
SECCION 10 SCHEMATICS
MD6640 PERFORADORA ELECTRICA PARA POZOS DE TRONADURA
SECCION 10 SCHEMATICS
MD6640 PERFORADORA ELECTRICA PARA POZOS DE TRONADURA
SECCION 10 SCHEMATICS
MD6640 PERFORADORA ELECTRICA PARA POZOS DE TRONADURA
SECCION 10 SCHEMATICS
MD6640 PERFORADORA ELECTRICA PARA POZOS DE TRONADURA
SECCION 10 SCHEMATICS
MD6640 PERFORADORA ELECTRICA PARA POZOS DE TRONADURA
SECCION 10 SCHEMATICS
MD6640 PERFORADORA ELECTRICA PARA POZOS DE TRONADURA
SECCION 10 SCHEMATICS
MD6640 PERFORADORA ELECTRICA PARA POZOS DE TRONADURA
SECCION 10 SCHEMATICS
MD6640 PERFORADORA ELECTRICA PARA POZOS DE TRONADURA
SECCION 10 SCHEMATICS
MD6640 PERFORADORA ELECTRICA PARA POZOS DE TRONADURA
SECCION 10 SCHEMATICS
MD6640 PERFORADORA ELECTRICA PARA POZOS DE TRONADURA
SECCION 10 SCHEMATICS
MD6640 PERFORADORA ELECTRICA PARA POZOS DE TRONADURA
SECCION 10 SCHEMATICS
MD6640 PERFORADORA ELECTRICA PARA POZOS DE TRONADURA
SECCION 10 SCHEMATICS
MD6640 PERFORADORA ELECTRICA PARA POZOS DE TRONADURA
MD6640 Perforadora Electrica Para Pozos De Tronadura
MD6640 Perforadora Electrica Para Pozos De Tronadura
©2014 Caterpillar Derechos Reservados
Cat, Caterpillar, sus logotipos respectivos, el color “Caterpillar Yellow”, la imagen comercial POWER
EDGE, así como la identidad corporativa y del producto utilizados aquí, son marcas comerciales
registradas de Caterpillar y no pueden usarse sin su autorización.
Impreso en EE.UU.

Em026622 es.pdf md 6640

  • 1.
    SAFETY.CAT.COM EM026622-0 August 2016 Serial NumberDR612199 MD6640 Blast Hole Drill Operation and Maintenance Manual
  • 2.
    MD6640 Perforadora ElectricaPara Pozos De Tronadura
  • 3.
    MD6640 Perforadora ElectricaPara Pozos De Tronadura
  • 4.
    MD6640 Perforadora ElectricaPara Pozos De Tronadura
  • 5.
    MD6640 Perforadora ElectricaPara Pozos De Tronadura MD6640 Perforadora Electrica Para Pozos De Tronadura Manual de Operación y Mantenimiento SN: DR612202 – Tabla de Contenidos – Este manual esta dividido en secciones mayores que cubren los varios componentes que requieren servicio y los sistemas de la Perforadora 49HR. Estas secciones y sus contenidos están organizados de la siguiente forma: Sección 1 - INTRODUCCIÓN Sección 2 - OPERACIÓN Sección 3 - LUBRICACIÓN Sección 4 - MANUTENCIÓN PREVENTIVA Sección 5 - PROCEDIMIENTOS DE SERVICIO Sección 6 - FRENOS Y ACOPLAMIENTOS Sección 7 - SISTEMADEAIRE COMPRIMIDO Sección 8 - FILTRACIÓN DE AIRE Seción 9 - ANTECEDENTES DE INGENIERÍA Sección 10 - ESQUEMÁTICOS
  • 6.
    MD6640 Perforadora ElectricaPara Pozos De Tronadura
  • 7.
    MD6640 Perforadora ElectricaPara Pozos De Tronadura PELIGRO NO INTENTE MANTENCIONES MECÁNICAS O ELÉCTRICAS EN ÉSTA MAQUINA SIN UNA TOTAL COMPRENSIÓN DE LA OPERACIÓN Y FUNCIÓN DE CADA COMPONENTE. AQUELLOS COMPONENTES QUE UTILIZAN ENERGÍA ELÉCTRICA, PRESIÓN DE AIRE, PRESIÓN HIDRÁULICA O RESORTES BAJO TENSIÓN O COMPRESIÓN PARA OPERAR, SE DEBEN DESACTIVAR Y AISLAR ANTES DE DESARMARLOS. PELIGRO DEBIDO A LOS PELIGROS INHERENTES A LA OPERACIÓN DE LOS EQUIPOS DE ALTO VOLTAJE, ES NECESARIO UN SISTEMA DE AISLAMIENTO QUE INCLUYA CONDUCTORES A TIERRA EN EL CABLE, UNA RESISTENCIA NEUTRAL A TIERRA JUNTO A RELÉS Y ACCIONAMIENTOS DE CONMUTACION RELACIONADOS. TAMBIÉN SE RECOMIENDA UN SISTEMA DE CONTROL DE CONTINUIDAD A TIERRA. El CABLE DEALIMENTACIÓN debe contener disposición para una conexión a tierra, especialmente donde sea usado 2,300 volts o superior. En la subestación, la línea de energía debe terminar (vea párrafo sobre circuitos a tierra) a tierra adecuada y permanente. En la máquina, la línea de energía debe terminar asegurada mediante una conexión apernada a la estructura de la máquina. Ésto proporciona tierra constante a la máquina y a su equipamiento eléctrico. La omisión de proporcionar una adecuada puesta a tierra, pone en peligro a empleados y al equipo. LA NECESIDAD DE UN CIRCUITO A TIERRA EN LA LÍNEA DE ENERGÍA, ADECUADO PARA LA MÁQUINA, NO DEBE SER SUBESTIMADO. Sin un buen sistema a tierra, subsiste alto voltaje entre la máquina y el terreno. El cable portátil de alimentación y las líneas de energía que suministran energía eléctrica a la máquina deben tener cable a tierra, amplio en capacidad, que corra paralelo a los cables principales en la longitud total desde el transformador a la máquina. Se debe usar un sistema de tierra adecuado en el transformador. Consulte al proveedor local de electricidad para más detalles. PELIGRO ESTE MANUAL ENTREGA INFORMACIÓN Y DATOS PARA LA MANTENCIÓN Y OPERACIÓN DE ÉSTA MÁQUINA. TODO EQUIPO ELÉCTRICO DEBE SER ATENDIDO POR PERSONAL CALIFICADO QUE HAYA SIDO DEBIDAMENTE ENTRENADO PARA TRABAJAR EN SISTEMAS DE ALTO VOLTAJE, ACCIONAMIENTOS AC DE FRECUENCIA VARIABLE, Y/O EN CIRCUITOS DC WARD LEONARD. OMITIR SU CUMPLIMIENTO PODRÍA RESULTAR EN LESIONES PERSONALES O LA MUERTE.
  • 8.
    MD6640 Perforadora ElectricaPara Pozos De Tronadura
  • 9.
    1-1 Introducción Sección MD6640 PerforadoraElectrica Para Pozos De Tronadura Sección 1 Introducción Siempre consulte la información de seguridad de esta sección del manual antes de comenzar con cualquier procedimiento de mantenimiento en esta máquina. Tabla de Contenidos INFORMACIÓN GENERAL ...........................................................................................................3 SEGURIDAD ...........................................................................................................................4 PRECAUCIONES DE SEGURIDAD .......................................................................................5 CONSIDERACIONES PARA PREVENCIÓN DE INCENDIOS................................................9 SEÑALES MANUALES STANDARD PARA CONTROLAR LA OPERACIÓN DE GRÚAS ....10 SEÑALES DEADVERTENCIAY CALCOMANÍAS ......................................................................13 Etiquetas de Energía Almacenada .............................................................................................14 Vista General de la Máquina ......................................................................................................15 MAQUINARIA DE PROPULSIÓN ..........................................................................................16 Vista General de la Máquina De Propulsión................................................................................16 ESTRUCTURAPRINCIPALY PLATAFORMAS .....................................................................17 Vista General De La Estructura Principal ...................................................................................17 SALA DE MÁQUINAS ............................................................................................................18 SALA DE MÁQUINAS................................................................................................................18 SISTEMAS PRINCIPALES DEAIRE .....................................................................................19 COMPRESOR DE AIRE ............................................................................................................19 SISTEMA HIDRÁULICO.........................................................................................................20 CABINA DEL OPERADOR ....................................................................................................21 VISTA GENERAL DE LA CABINA DE LOS OPERADORES .....................................................21 MÁSTIL ..................................................................................................................................22 VISTA GENERAL DEL MÁSTIL Y SU MAQUINARIA ................................................................23 CAJADE ENGRANAJES ROTACIONAL ...............................................................................24 CAJA DE ENGRANAJES EMPUJE .......................................................................................25 ENSAMBLEAJE DE LA COMUNBA DE PERFORACIÓN .....................................................26 TUBERÍA DE PERFORACIÓN LLAVE (TIPO CADENA) ......................................................27 PORTACABLE ......................................................................................................................27 TÍPICAS ESPECÍFICACIONES DE LA MÁQUINA .......................................................................28 PESO GENERAL ESTIMADO DE COMPONENTES .................................................................30
  • 10.
    1-2 Introducción Sección MD6640 PerforadoraElectrica Para Pozos De Tronadura
  • 11.
    1-3 Introducción Sección MD6640 PerforadoraElectrica Para Pozos De Tronadura Sección 1 Introducción INFORMACIÓN GENERAL Este manual está diseñado para ayudar al usuario en la operación y mantención preventiva de ésta máquina. Siguiendo paso a paso estos procedimientos fáciles de entender, el operador y ell personal de mantención pueden ejecutar todas las tareas de manera segura. Es importante recordar que cuando se usa para ésta máquina un procedimiento sistemático y acabado de mantención y servicio, se obtendrá un mínimo de detenciones inesperadas y una operación más confiable. ESTE MANUAL NO ES EL LIBRO DE REPUESTOS y no se puede usar como material de referencia para ordenar repuestos. Un detallado libro de repuestos se ha suministrado separadamente. Lea cuidadosamente las instruccione en él. Todos los repuestos están listados por grupo y/o número de código de producto, con el ítem/número de parte asociado para ÉSTA MÁQUINA ESPECÍFICA. Ordene los repuestos en la cantidad exacta requerida. DERECHA e IZQUIERDA se refieren a ubicaciones de la máquina según sean vistas por el operador sentado en el asiento de la cabina. Establezca el correcto NÚMERO DE SERIE de la máquina cuando escriba o contacte a los departamentos de servicio o de repuestos de la fábrica. Los registros de cada máquina se archivan por número de serie y al proporcionar éste número, el diseño específico y equipamiento original de su máquina es accesado rápidamente por el representante de repuestos de Caterpillar Global Mining. Se pueden hacer adiciones o revisiones periódicas a éste manual. Si Ud. necesitara información adicional o asistencia de servicio de la fábrica, contacte a su representante regional de servicio o a: Caterpillar Global Mining, LLC Mining Products Division 3501 S FM 1417 Denison, TX 75020 Teléfono 903-786-9621 La compañía se reserva el derecho de hacer cambios o incorporar mejoras a sus máquinas en cualquier momento. Esto se hará sin incurrir en obligaciones de instalar dichos cambios en máquinas vendidas previamente. Debido a éste permanente programa de investigación y desarrolo de producto, algunos procedimientos, especificaciones y repuestos pueden ser alterados, en un constante esfuerzo por mejorar nuestras máquinas.
  • 12.
    1-4 Introducción Sección MD6640 PerforadoraElectrica Para Pozos De Tronadura SEGURIDAD Los símbolos de alerta de seguridad mostrados aquí y a través del manual, se usan para llamar la atención hacia instrucciones relativas a su seguridad personal. Lea y siga cuidadosamente éstas instrucciones, y observe todos los gráficos de SEGURIDAD, PELIGRO y PRECAUCIÓN montados en varias áreas de la máquina. Cuide que cualquiera que atienda esta máquina se preocupe de éstos SÍMBOLOS DE SEGURIDAD y sus definiciones. Si es imposible ejecutar en forma segura cualquiera de los procedimientos de mantención y operación, contacte a su representante regional de Caterpillar Global Mining o a la fábrica. Lo siguiente define distinciones entre las instrucciones de seguridad. En todas éstas definiciones se usa la señal de alerta de seguridad. NOTA: Esta palabra de señal denota un ítem de información requerida con relación al equipo. Si no se toma la acción apropiada, puede resultar en pérdidas de tiempo, patrimonio o lesiones menores. PRECAUCIÓN: Esta palabra de señal sirve para hacer presente las prácticas de seguridad o atención directa a prácticas específicas de seguridad que pueden prevenir posibles lesiones si no se adhiere a las precauciones. PELIGRO: Esta palabra de señal denota un inminente riesgo de peligro que puede resultar en muerte, seria lesión personal, o serio daño al equipo si no es reconocida o no se toma una acción apropiada. PELIGRO: Esta palabra de señal denota un inminente riesgo de peligro eléctrico que puede resultar en muerte, seria lesión personal, o serio daño al equipo si no es reconocida o no se toma una acción apropiada. Operar, mantener o dar servicio a ésta máquina es peligroso si no se ejecuta en forma apropiada. Cada persona debe convenserse a si misma y a su empleador, de que está alerta, tiene la destreza necesaria, el conocimiento y las herramientas y los equipos necesarios a mano para la tarea. Es crítico que todos los métodos usados sean seguros y correctos. Hay representantes y especialistas de fábrica disponibles para entregar información adicional o asistencia técnica. El operador debe estar alerta, físicamente sano y libre de la influencia del alcohol, drogas or cualquier medicamento que pueda impedir su visión, audición o reacciones. PRECAUCIÓN: ¡ENERGÍAALMACENADA! Los componentes sobre la máquina son pesados y el retiro de alfileres sin la preparación apropiada y la precaución puede causar daños corporales serios y/o dañar al extremo delantero de la máquina. ¡La Seguridad debe ser siempre lo principal! Consulte a su supervisor cuando la seguridad esté en duda.
  • 13.
    1-5 Introducción Sección MD6640 PerforadoraElectrica Para Pozos De Tronadura PRECAUCIONES DE SEGURIDAD Precauciones Generales: • El empleo de personal calificado de mantención, a través de programas de mantención programada, es la mejor manera de minimizar las detenciones de la máquina y maximizar la productividad del equipo. • Mantenga las manos, pies y vestimenta, lejos de partes en rotación. • Use todo el tiempo, casco, zapatos y lentes protectores de seguridad. • Reponga todos y cada uno de los letreros de seguridad y advertencia cuando estén dañados o hayan sido quitados de la máquina. • Piense antes de actuar. La negligencia es un lujo que el hombre de servicio no se puede permitir. • El excesivo o repetido contacto con sellantes o solventes puede causar irritaciones de la piel. En caso de contactos con la piel, refiérase a la Hoja de Datos de Materiales de Seguridad (HDMS) del compuesto y el método sugerido de limpieza. • Inspeccione los cerrojos de seguridad (fijadores) en todos los ganchos de levante No se arriesgue, la carga puede deslizarse del gancho si no están funcionando apropiadamente. • Si un ítem pesado comienza a caerse, déjelo caer, no trate de sujetarlo. • Mantenga su área de trabajo organizada y limpia. Limpie inmediatamente el aceite o derrames de todo tipo. Mantenga las herramientas y partes fuera del suelo. Elimine las posibilidades de caída, resbalamiento o tropiezo. • Los pisos, pasillos y escaleras deben estar limpios y secos. Después de operaciones de drenaje, asegúrese de limpiar todos los derrames. • Los cables eléctricos y los pisos metálicos mojados son una peligrosa combinación. • Inspeccione regularmente si hay pernos o dispositivos de cierre sueltos y asegúrelos apropiadamente. • Adopte precauciones extremas cuando trabaje cerca de líneas o equipos eléctricos, sean éstos de alto o bajo voltaje. Nunca intente hacer reparaciones eléctricas si Ud. no está calificado.
  • 14.
    1-6 Introducción Sección MD6640 PerforadoraElectrica Para Pozos De Tronadura • Verifique la correcta operación de los switches de límite. • Después de terminado el servicio, asegúrese de que todas las herramientas, componentes o equipamiento de servicio sean retirados de la máquina y asegurados en un área de almacenaje apropiada. • Los Frenos Mecánicos están diseñados solamente para uso como frenaje estático de sujeción. Úselos como frenos para movimiento (dinámicos), solo en situaciones de emergencia. • Use apropiada iluminación interna y externa. • Instale y mantenga una conexión a tierra correcta y sistemas apropiados de protección contra fallas de conexión a tierra. • Realice pruebas funcionales de todos los circuitos de seguridad. • Permita que las inspecciones y mantenciones eléctricas sean ejecutadas solo por eléctricistas calificados. • Tenga una extrema precaución al trabajar alrededor de orificios que se hicieron. Precauciones de Mantención: • No use anillos, reloj de pulsera o prendas de vestir sueltas cuando trabaje en maquinarias. Estos pueden quedar atrapadas en partes en movimiento causándole serias lesiones. • Use siempre una correa de seguridad o arnés cuando exista el peligro de caídas. • Cuente siempre con una segunda persona para vigilar la línea salvavidas cuando trabaje en espacios confinados. • No arranque un motor a puertas cerradas sin contar con adecuados ventiladores extractores en operación. • Nunca utilice las tuberías de aire o de sistemas hidráulicos del equipo como soporte cuando trabaje en la máquina. Desactive o aísle el sistema completo antes de ejecutar mantenciones. • La máquina debería ser estacionada en un terreno nivelado durante todos los servicios al equipo y períodos de detención.
  • 15.
    1-7 Introducción Sección MD6640 PerforadoraElectrica Para Pozos De Tronadura • Las grúas y elevadores deben tener la capacidad suficiente para levantar los componentes pesados (cajas de engranajes, balde, pluma, etc.).Siempre trabaje dentro de las limitaciones del equipo que está utilizando. • Asegúrese de que los ítems pesados están debidamente aparejados y soportados desde grúas o elevadores antes de quitar miembros de soporte desde la máquina. • Utilice líneas guía o cables para minimizar el giro de componentes pesados en suspensión. • Disponga de suficiente personal de servicio cuando quite o instale ítems grandes y pesados, para mantener el control en todo momento. • Use siempre pedestales de seguridad en conjunto con gatos hidráulicos o elevadores. No se confíe en los gatos o elevadores para manejar la carga; ellos podrían fallar. • Al desarmar una maquinaria asegúrese de contar con pedestales de seguridad y entibación adecuada para prevenir volcamiento o rodaje de los componentes. • Al utilizar sopletes de oxiacetileno, use siempre gafas y guantes de soldador. Mantenga un extinguidor de incendios “cargado” a mano. Asegúrese de que los cilindros de acetileno y oxigeno estén separados por defensas metálicas y encadenados al carro. • Donde sea aplicable, utilice extractores para quitar rodamientos, bujes, engranajes, camisas de cilindros, etc. Use martillos, punzones y formones solo cuando sea absolutamente necesario. Asegúrese de usar siempre anteojos de seguridad. • Tenga extremo cuidado al usar aire comprimido para secar piezas. Use pistolas de aire aprobadas, que no excedan 30 PSI (207 kPa), póngase anteojos o gafas de seguridad y disponga defensas apropiadas para proteger a los demás en la zona de trabajo. • Luego de ajustar y/o dar servicio a la máquina, asegúrese de reinstalar rápidamente los dispositivos de seguridad, defensas o blindajes. • Se debe usar todo el tiempo gafas protectoras para los ojos mientras trabaje en el sistema de aire acondicionado. Trabaje en el sistema de aire acondicionado solo en áreas bien ventiladas. • Limpie el exceso de lubricantes alrededor de rodamientos y engranajes. Nunca lubrique partes en movimiento. • Al manipular el cable de transmisión use guantes de goma aprobados y ganchos aislados.
  • 16.
    1-8 Introducción Sección MD6640 PerforadoraElectrica Para Pozos De Tronadura Precauciones de Operación: • Use protectores de oído cuando se exponga a los siguientes niveles de ruido, en exceso a los períodos que se indican: 8 horas a 90 dBa 4 horas a 95 dBa 2 horas a 100 dBa 1 hora a 105 dBa 30 minutos a 110 dBa 15 minutos a 115 dBa • Cuando tenga dudas acerca de nivel de ruido, use protectores de oído. • No intente subirse o bajarse de la máquina cuando esté en operación. Notifique al operador de cualquier intento de abordar o abandonar la máquina. • No mueva u opere la máquina sin conocer la ubicación y el propósito de todo el personal, equipos de prueba o soporte, en o cerca de la máquina. • No permita personal sin autorización a bordo de la máquina mientras esté en operacion. • Use señales audibles para advertir los movimientos de la máquina. Un botón de bocina de señales se suministra para éste propósito. • No se desplace hasta que la ruta de trayecto haya sido limpiada de toda obstrucción. • No impulse la máquina sobre una pendiente mayor que la especificada en los límites de estabilidad mostrados en el CUADRO DE ESTABILIDAD al final de esta sección. • No deje la caja de engranajes de rotación suspendida en el aire al dejar la máquina sin supervisión. • Prevenga que el cable de transmisión sea arrastrado en el piso por largas ditancias o a altas velocidades. • Limite la cantidad de cable que esté siendo tirado por la máquina. Tirar demasiado cable dañará tanto al cable como a la máquina.
  • 17.
    1-9 Introducción Sección MD6640 PerforadoraElectrica Para Pozos De Tronadura CONSIDERACIONES PARA PREVENCIÓN DE INCENDIOS Mantenga siempre a mano un extinguidor de incendios “cargado” y conozca cómo usarlo. Inspeccione y hágale servicio al extinguidor tal cual como se indica en su placa de instrucciones. NO FUME mientras manipule inflamables o estando cercano a baterías. Inspeccione cuidadosamente todas las líneas, tuberías y mangueras.Apriete todas las conexiones a las especificaciones de torque recomendado. Mire la Sección 4 de este manual por las recomendaciones de Mantenimiento Programado y los procedimientos de Inspección Diaria. Repare o reemplace las líneas, tuberías y mangueras sueltas o dañadas, tan pronto sea posible. Asegúrese que todas las abrazaderas, protecciones y defensas queden correctamente reinstaladas para prevenir vibraciones y el roce de partes durante la operación. NO acaree fluidos inflamables, como gasolina o solventes, a bordo de la máquina. NO doble en exceso ni golpee líneas presurizadas o mangueras. NO instale líneas, tuberías o mangueras dobladas o dañadas. Reemplácelas inmediatamente. NO arranque la máquina o mueva ninguno de los controles si una tarjeta de advertencia está fijada a los controles o en al panel de arranque. Mantenga todos los trapos de aseo apropiadamente almacenados. NO los deseche en un montón a bordo de la máquina. Mantenga todos los compartimentos de las armazones estructurales, pasillos y áreas de trabajo, limpias y libres de residuos lubricantes. NUNCA suelde, caliente o ejecute servicios en la máquina, estando solo.
  • 18.
    1-10 Introducción Sección MD6640 PerforadoraElectrica Para Pozos De Tronadura SEÑALES MANUALES STANDARD PARA CONTROLAR LA OPERACIÓN DE GRÚAS Estas señales son provenientes de ANSI-B30.5-1868 y tienen el propósito de proporcionar estandarización a las señalizaciones usadas en la comunicación entre el personal de mantención y el operador de la grúa durante el ciclo de mantención. LEVANTAR Extienda el antebrazo hacia arriba, manteniendo el dedo índice extendido y apuntando arriba, haga pequeños movimientos circulares con la mano. BAJAR Extienda el brazo hacia abajo, manteniendo el dedo índice extendido y apuntando abajo, haga pequeños movimientos circulares con la mano. LEVANTE PRINCIPAL Golpee los nudillos sobre la cabeza hasta que el operador reciba la señal, luego use las señales standard. USE LÍNEA DE WINCHE (Levante Auxiliar) Golpee el codo con la mano abierta hasta que el operador reciba la señal, luego use las señales standard.
  • 19.
    1-11 Introducción Sección MD6640 PerforadoraElectrica Para Pozos De Tronadura LEVANTAR LA PLUMA Extienda totalmente el brazo con los dedos cerrados y el dedo pulgar apuntando hacia arriba. PARAR Extienda totalmente el brazo con los dedos extendidos y la palma de la mano hacia abajo. PARAR EN EMERGENCIA Con el brazo extendido totalmente, con los dedos extendidos y la palma de la mano hacia abajo, mueva rápidamente el brazo a lo largo de un plano horizontal. RECORRIDO Con el brazo extendido hacia delante, con la mano abierta y la muñeca levantada, haga un movimiento de empujar en la dirección del movimiento deseado. ASEGURE TODO Cierre las manos juntas delante del cuerpo. RECORRIDO (ambos carriles) Con ambos puños cerrados delante del cuerpo, haga un movimiento circular en la dirección del movimiento deseado (adelante o atrás), con los dos puños (solo las orugas de la grúa) BAJAR LA PLUMA Extienda totalmente el brazo con los dedos cerrados y el dedo pulgar apuntando hacia abajo. MUEVA LENTAMENTE Mientras da cualquier señal de movimiento, mantenga la otra mano sin moverse delante de la mano de la señal deseada. (Levante lentamente es ejemplo que se muestra).
  • 20.
    1-12 Introducción Sección MD6640 PerforadoraElectrica Para Pozos De Tronadura LEVANTE LA PLUMAY BAJE LA CARGA Extienda el brazo en forma horizontal con los dedos extendidos y el dedo pulgar apuntando hacia arriba, alternadamente abra y cierre los dedos por la duración del movimiento deseado. BAJE LA PLUMAY LEVANTE LA CARGA Extienda el brazo en forma horizontal con los dedos extendidos y el dedo pulgar apuntando hacia abajo, alternadamente abra y cierre los dedos por la duración del movimiento deseado. GIRAR Extienda el brazo horizontalmente con el dedo índice extendidos en la dirección de giro deseada. RECORRIDO (Un solo carril) Use el puño levantado para el lado que permanece inmóvil, haga un movimiento circular delante del pecho en la dirección y lado del movimiento que desea (solo las orugas de la grúa). EXTENDER LA PLUMA (Pluma Telescópica) Ponga ambas manos frente al cuerpo con las palmas hacia arriba, los dedos cerrados y los pulgares extendidos hacia fuera. RECOGER LA PLUMA (Pluma Telescópica) Ponga ambas manos frente al cuerpo con las palmas hacia arriba, los dedos cerrados y los pulgares extendidos hacia dentro. EXTENDER LA PLUMA (Pluma Telescópica) Con los dedos cerrados y el pulgar extendido hacia el cuerpo, use el movimiento de una sola mano para golpear el pecho con el pulgar de la mano. RECOGER LA PLUMA (Pluma Telescópica) Con los dedos cerrados y el pulgar extendido hacia fuera del cuerpo, use el movimiento de una sola mano para golpear el pecho con el talón de la mano.
  • 21.
    1-13 Introducción Sección MD6640 PerforadoraElectrica Para Pozos De Tronadura SEÑALES DE ADVERTENCIA Y CALCOMANÍAS Los letreros presentados mas abajo están montados en la máquina al ser entregada desde Caterpillar Global Mining. Éstos letreros de advertencia de peligro dirigen información a los operadores, personal de mantención o a cualquiera que esté en o cerca de la máquina. La información esta diseñada para ayudar a prevenir situaciones las cuales pueden resultar en lesiones al personal o daños a la máquina.
  • 22.
    1-14 Introducción Sección MD6640 PerforadoraElectrica Para Pozos De Tronadura Etiquetas de Energía Almacenada
  • 23.
    1-15 Introducción Sección MD6640 PerforadoraElectrica Para Pozos De Tronadura Vista General de la Máquina
  • 24.
    1-16 Introducción Sección MD6640 PerforadoraElectrica Para Pozos De Tronadura MAQUINARIA DE PROPULSIÓN El sistema de propulsión de la MD6640 es un sistema de transmisión hidráulico sin cadenas, el cual permite la contrarotación de las orugas por separado. Esta aptitud le proporciona a la máquina la capacidad de girar completamente alrededor de su propia longitud. Cada oruga es manejada por un motor hidráulico y una caja de engranajes planetarios, equipado con un freno de activación por resortes y alivio hidráulico. La máquina tiene la aptitud de propulsarse en dos rangos de velocidad. El rango de velocidad baja se utiliza para maniobras en espacios cerrados mientras que el rango de la velocidad alta, se utiliza para recorridos en áreas abiertas en largas distancias. Rodillo inferior Eje Ecualización Eje Trasero Rodillo superior Tambor de Transmission Tractor de orugas Rueda de tensora Vista General de la Máquina De Propulsión
  • 25.
    1-17 Introducción Sección MD6640 PerforadoraElectrica Para Pozos De Tronadura ESTRUCTURA PRINCIPAL Y PLATAFORMAS La estructura principal de la MD6640 es una construcción del tipo caja soldada, con soportes para el mástil y torres para las patas de extensión, situadas integralmente en una sola pieza. Vista General De La Estructura Principal
  • 26.
    1-18 Introducción Sección MD6640 PerforadoraElectrica Para Pozos De Tronadura SALA DE MÁQUINAS SALA DE MÁQUINAS
  • 27.
    1-19 Introducción Sección MD6640 PerforadoraElectrica Para Pozos De Tronadura SISTEMAS PRINCIPALES DE AIRE El compresor de tornillos está ubicado dentro de la sala de máquinas justo delante de la caja de engranajes de la bomba hidráulica. El compresor de tornillos rotativos es un compresor del tipo hélice doble, de una sola etapa y bañado en aceite, con un rango nominal de 3.000 cfm (84.9 m3/ min, @ 65 psi y una presión máxima de operación de 65 psi. COMPRESOR DE AIRE
  • 28.
    1-20 Introducción Sección MD6640 PerforadoraElectrica Para Pozos De Tronadura SISTEMA HIDRÁULICO La presión hidráulica para la operación de la MD6640 es proporcionada por cuatro bombas separadas. Estas bombas están accionadas por el motor eléctrico ubicado en la sala principal de máquinas, delante del tanque y los filtros hidráulicos. La maquina tiene dos sistemas hidráulicos separados, aunque no totalmente independientes, el circuito CERRADO y el circuito ABIERTO. Ambos se abastecen de fluido desde un mismo tanque.
  • 29.
    1-21 Introducción Sección MD6640 PerforadoraElectrica Para Pozos De Tronadura CABINA DEL OPERADOR La cabina aislada del operador de la MD6640, provee un cercado sellado, confortable del cual el telefonista puede realizar las tareas implicadas con la operación de la máquina. La posición y diseño de este compartimiento han sido estructurados para proveer los ángulos miradores óptimos de accesibilidad inmediata. El asiento del operador es una unidad autosuficiente que incluye el asiento, la suspensión del asiento y base de asamblea giratoria, los controles del operador primario y la monitor de despliegue JLT. La consola auxiliar de control está al alcance para proveerle el acceso a las funciones adicionales de la máquina. La cabina esta provisto de portales duales para la cubierta principal. VISTA GENERAL DE LA CABINA DE LOS OPERADORES
  • 30.
    1-22 Introducción Sección MD6640 PerforadoraElectrica Para Pozos De Tronadura MÁSTIL El mástil es una estructura novelesca de tubos acerados y platos formados. La estructura principal está compuesta de tubos verticales soldados conjuntamente con arriostramiento de atrás. El mástil funciona para proveer el ascenso y el guía para el equipo le hizo falta manejar la función perforadora de la máquina. El mástil es capaz de ser colocado en cualquier incremento de 5o dentro de este alcance operativo de 65 grados a través de 90 grados (vertical). El mástil puede ser levantado y bajado por 2 (dos) cilindros hidráulicos de 9.00 pulgadas (228mm).
  • 31.
    1-23 Introducción Sección MD6640 PerforadoraElectrica Para Pozos De Tronadura VISTA GENERAL DEL MÁSTIL Y SU MAQUINARIA
  • 32.
    1-24 Introducción Sección MD6640 PerforadoraElectrica Para Pozos De Tronadura CAJA DE ENGRANAJES ROTACIONAL
  • 33.
    1-25 Introducción Sección MD6640 PerforadoraElectrica Para Pozos De Tronadura CAJA DE ENGRANAJES EMPUJE
  • 34.
    1-26 Introducción Sección MD6640 PerforadoraElectrica Para Pozos De Tronadura ENSAMBLEAJE DE LA COMUNBA DE PERFORACIÓN
  • 35.
    1-27 Introducción Sección MD6640 PerforadoraElectrica Para Pozos De Tronadura TUBERÍA DE PERFORACIÓN LLAVE (TIPO CADENA) PORTACABLE
  • 36.
    1-28 Introducción Sección MD6640 PerforadoraElectrica Para Pozos De Tronadura TÍPICAS ESPECÍFICACIONES DE LA MÁQUINA Estas especificaciones describen las caracteristicas mecánicas principales de una Perforadora de Barreno MD6640. NOTA: Estas son especificaciones de la máquina típica Diámetro del Pozo 12 ¼” 311 mm Profundidad del Pozo (un solo paso – mástil de 66’) 65.6’ 20 m A Altura Total con mástil de 66’, 20 m 102' 5” 31.22m B Altura al Tope del pasamanos en la Cabina del Operador 18’6” 5.64 C Suelo al Tope de la Plataforma 6’4” 1.93 m D Suelo a la Base de la Pata Extensible Trasera 2’0” 0.65 cm E Suelo al Tope del Techo de la Sala de Máquinas 14’10” 4.52 m F Ancho Total de la Máquina 23’9” 7.24 m F1 Eje Central de la Máquina hasta L. Izquierdo 11’10” 3.61 m F2 Eje Central de la Máquina hasta L. Derecho 11’11” 3.63 m G Eje Central de la Máquina al extremo externo oruga 36” L.I. 10’5” 3.17 m G1 Eje Central de la Máquina al extremo externo oruga 36” L.D. 9’7” 2.92 m H Eje Central de la Máquina al eje Pata Nivelación Trasera L.I. 7’6” 2.29 m H1 Eje Central de la Máquina al eje Pata Nivelación Trasera L.D. 7’3” 2.21 m I Eje Central del Pozo al Eje Central del Eje de Igualación 0’5” 0.12 m J Altura al Tope de Unidad de Presurización Sala de Máquinas 16’6” 5.03 m K Altura al Tope del Portacable 10’1” 3.07 m L Suelo a la Base de la Pata Extensible Delantera 2’1” 0.63 m M Diámetro de las zapatas de las Patas Extensibles 3’8” 1.12 m N Eje Central del Pozo al Eje Central Pata Extensible Trasera 15 ¾” 4.59 m O Longitud Total de las Orugas 24’0” 7.24 m P Eje Central del Pozo a parte Trasera Cabina del Operador 10’2” 3.10 cm Q Distancia entre ejes Patas Extensibles Delantera y Trasera 36’2” 11.02 m R Longitud Total de la Máquina 48’4” 14.73 m S Longitud Total de la Máquina con Portacable 55’8” 16.97 m T Longitud Total de la Máquina con Mástil de 20 m en Descanso 121’3” 36.95 m U Altura Total de la Máquina con Mástil de 20 m en Descanso 31’3” 9.52 m
  • 37.
    1-29 Introducción Sección MD6640 PerforadoraElectrica Para Pozos De Tronadura B C D N A T S R Q O MI H H 1 G G 1 F1 F F2 L J K mdim49HR
  • 38.
    1-30 Introducción Sección MD6640 PerforadoraElectrica Para Pozos De Tronadura PESO GENERAL ESTIMADO DE COMPONENTES PRECAUCIÓN: Estos son pesos estimados solamente. Contacte su representante de Servicios Caterpillar Global Mining para obtener el peso exacto de cada componente antes de que los apareje y levante. Cantidad (Libras de Peso C/U EE.UU.) Partes Bajas Bastidor Oruga Derecha ........................................................... 1 ................ 8,480 Bastidor Oruga Izquierda .......................................................... 1 ................ 8,480 Eje, Ecualizador Frontal Oruga ................................................. 1 ................ 3,370 Eje, Ecualizador Trasero Oruga................................................ 1 ................ 6,480 Tambor, Transmisión Oruga..................................................... 2 ................ 1,160 Caja de Engranajes, Planetaria Propulsión ............................. 2 ................ 2,750 Zapata, Oruga ........................................................................ 110 ................. 240 Motor, Ensamblaje .................................................................... 2 ................... 198 Bastidor/Estructura –A Pata, Bastidor-A Frente ............................................................ 2 ................... 800 Pata, Bastidor-A Trasero .......................................................... 1 ................ 2,900 Cilindro, Cierre Mástil ............................................................... 2 ..................... 15 Pasador, Cierre Bastidor........................................................... 2 ..................... 15 Pasador, Pivote Mástil .............................................................. 2 ..................... 15 Pasador, Bastidor-A .................................................................. 2 ..................... 40 Escalera, Bastidor-A ................................................................. 1 ..................... 80 Estructura Principal Estructura Principal .................................................................. 1 .............. 45,130 Ensamblaje Funda, Gato Trasero Izquierdo.............................. 1 ................ 2,260 Ensamblaje Funda, Gato Trasero Derecho .............................. 1 ................ 5,680 Cilindro, Gato Hidráulico Nivelación ..................................... 4 ................... 845 Pata Extensible ..................................................................... 4 ................... 660 Zapata Pata Extensible ......................................................... 4 ................... 505 Modulo, Unidad de Poder ......................................................... 1 .............. 13,600 Base, Unidad de Poder ............................................................ 1 ................ 1,550 Motor, Modulo Unidad de Poder ............................................ 1 ................ 6,100 Ensamblaje Bomba de Propulsión ....................................... 1 ................... 805 Soporte, Lado Derecho, Bomba Hidráulica ....................... 1 ................... 155 Soporte, Lado Izquierdo, Bomba Hidráulica ...................... 1 ................... 150 Bomba, Engranaje, Tandem, ............................................ 1 ..................... 45 Ensamblaje Bomba, 2 Bomba ......................................... 1 ................... 175 Filtro, Aceite c/ Bypass Válvula ............................................ 1 ................... 605 Terminal del Aire, Ensamblaje ............................................... 1 ................ 4,070 Separador, Ensamblaje Tubería ........................................... 1 ................ 4,275 Deposito, Hidráulica ................................................................. 1 ................... 705 Deposito, Lubricación ............................................................... 1 ................... 460
  • 39.
    1-31 Introducción Sección MD6640 PerforadoraElectrica Para Pozos De Tronadura Cantidad (Libras de Peso C/U EE.UU.) Enfriador aceite, Enfriado por Aire............................................ 1 ................... 570 Defensa, Enfriador Aceite......................................................... 1 ................... 185 Ensamblaje Enfriador............................................................... 1 ................ 4,200 Enfriador, Compresor............................................................... 1 ................ 3,000 MCC. Bajo Voltaje..................................................................... 1 ................... 900 MCC, Principal Compresor ....................................................... 1 ................ 1,080 Gabinete, Empuje ..................................................................... 1 ................ 1,030 Control Panel, Estática Motor DC ............................................. 1 ................... 210 Gabinete, Rotacional ................................................................ 1 ................... 600 Gabinete, PLC .......................................................................... 1 ................... 800 Gabinete, Giratorio-ZROC ........................................................ 1 ................ 1,035 Ensamblaje Pata Nivelación .................................................... 1 ................... 470 Válvula Ensamblaje Nivelación, 4-Carrete Monocuerpo ........... 1 ................... 160 Estructura Cabina Operador .................................................... 1 ................ 8,400 Acondicionador de Aire ............................................................. 1 ................... 930 Compuerta, Vista Broca ............................................................ 1 ................... 225 Cilindro, Compuerta Vista Broca ........................................... 1 ................... 115 Escalera,Acceso ...................................................................... 1 ................... 210 Carrete de Cable ...................................................................... 1 ................ 8,000 Sala de Máquinas Pared, Lado Derecho Sala de Maquinas. ................................. 1 ................ 1,745 Pared, Lado Frontal Sala de Maquinas .................................... 1 ................ 1,040 Pared, Lado Izquierdo Sala de Maquinas ................................. 1 ................ 1,180 Ensamblaje Puerta, Lado Izquierdo .......................................... 1 ................... 135 Cubierta, Hidráulica .................................................................. 1 ................ 1,250 Panel, Techo Central ................................................................ 1 ................... 575 Panel, Techo Trasero ............................................................... 1 ................... 600 Soldadura, Lado Izquierdo Extensión Frontal............................ 1 ................ 8,925 Techo, Removible Sala de Maquinas........................................ 1 ................... 430 Sección Techo, Sala de Maquinas ........................................... 1 ................ 2,030 Compuerta, Techo Unidad Presurización .................................. 1 ................... 345 Recinto, Ventilador Purga Dynavane ........................................ 1 ................... 375
  • 40.
    1-32 Introducción Sección MD6640 PerforadoraElectrica Para Pozos De Tronadura Cantidad (Libras de Peso C/U EE.UU.) Conducto, Unidad Transición Presurización ............................. 1 ................... 275 Conducto, Purga Ventilador Descarga Superior ...................... 1 ..................... 90 Conducto, Purga Ventilador Descarga Inferior ........................ 1 ................... 100 Cubierta, Unidad Presurización ............................................... 1 ................... 120 Filtro, Purga/Aire conducto Aire ................................................ 1 ................ 1,000 Suporte, Ventilador ................................................................... 2 ................... 145 Compuerta, Techo .................................................................... 1 ................... 350 Ventilador y Motor Ventilador..................................................... 1 ................... 220 Tirantes Mástil Tirantes, Mástil ......................................................................... 2 ................ 1,555 Camisa, Izquierdo Soporte ........................................................ 1 ................... 705 Camisa, Derecha Soporte ......................................................... 1 ................... 710 Soporte, Lado Derecha Tirantes Mástil..................................... 1 ................... 865 Soporte, Lado Izquierdo Tirantes Mástil.................................... 1 ................... 860 Brazo de Soporte, Lado Derecho Honda de Seguridad (Inferior) .................................................................... 1 ................... 105 Perno de Argolla ....................................................................... 2 ................... 145 Pasador, de Cierre.................................................................... 2 ..................... 20 Cilindro, Cierre Tirantes ............................................................ 2 ..................... 20 Pasador, Pivote ........................................................................ 8 ..................... 40 Cilindro, Levante Hidráulico Mástil ........................................... 2 ................ 1,350 Ensambladura Mástil Estructura Mástil ...................................................................... 1 .............. 26,000 Soporte, Piñón Empuje ........................................................... 42 .................. 100 Placa, Parte Inferior del Mástil .................................................. 1 ................ 1,995 Caja Engranajes, Empuje ......................................................... 1 ................ 1,170 Eje, Entrada Empuje ............................................................ 1 ..................... 72 Copla, Entrada Empuje ........................................................ 1 ..................... 50 Eje, Segundo Intermedio Empuje.......................................... 1 ................... 145 Engranaje, Segundo Intermedio Empuje............................... 1 ................... 390 Alojamiento, Codificador ....................................................... 1 ..................... 30 Piñón, Primer Intermedio....................................................... 1 ................... 155 Engranaje, Primer Intermedio ............................................... 1 ................... 465 Engranaje, Salida ................................................................. 1 ................... 690 Eje, Primer Intermedio & Expedidor Empuje........................ 1 ................... 710 Freno, Empuje...................................................................... 1 ................... 100 Motor, Levante y Empuje ...................................................... 1 ................ 1,900 Soporte, Caja Engranajes Empuje ........................................ 1 ................ 1,015
  • 41.
    1-33 Introducción Sección MD6640 PerforadoraElectrica Para Pozos De Tronadura Cantidad (Libras de Peso C/U EE.UU.) Caja Engranajes, Rotacional................................................... 1 ................ 2,950 Eje, Intermedio Rotacional .................................................... 1 ..................... 75 Engranaje, Intermedio Rotacional ......................................... 1 ................... 100 Engranaje, Transmisión Rotacional ..................................... 1 ................... 590 Eje Transmisión Rotacional .................................................. 1 ................... 355 Rodamiento, Eje Central ....................................................... 1 ................... 130 Portador, Rodamiento Inferior ............................................... 1 ................... 215 Reten, Rodamiento ............................................................... 1 ................... 210 Alojamiento, Sello Superior ................................................... 1 ..................... 35 Portador, Rodamiento Superior ............................................ 1 ..................... 30 Rodamiento, Eje Inferior ....................................................... 1 ..................... 35 Piñón, Motor Rotacional ....................................................... 1 ..................... 55 Motor, Rotacional.................................................................. 1 ................ 2,550 Acoplamiento, Amortiguador Giratorio Superior ....................... 1 ................. 2500 Estructura Guía (LH)................................................................. 1 ................ 1,130 Estructura Guía (RH) ............................................................... 1 ................ 1,130 Alojamiento, Lado Izquierdo Rodillos Guía Mástil ................. 1 ................... 415 Ensambladura Rodillos Guía, Superior ..................................... 2 ................... 150 Rodillos Guía, Superior......................................................... 4 ..................... 40 Rodillos Guía, Inferior ............................................................... 2 ..................... 45 Extensor, Barra Perforadora ..................................................... 1 ................... 620 Buje, Guía Barra Perforadora ................................................... 1 ................... 310 Llave, Broca, 12.25 .................................................................. 1 ................... 167 Llave, Broca, 10.628 ................................................................ 1 ................... 140 Llave de herramientas .............................................................. 2 ................. 2100 Winche, Transmisión Hidráulica .............................................. 1 ................... 415 Cilindro Hidráulico, Soporte Posición........................................ 2 ..................... 90 Escalera, Mástil ........................................................................ 5 ................... 100 Escalera, Inferior Mástil ............................................................ 1 ..................... 85
  • 42.
    1-34 Introducción Sección MD6640 PerforadoraElectrica Para Pozos De Tronadura
  • 43.
    2-1 Operación Sección MD6640 PerforadoraElectrica Para Pozos De Tronadural Sección 2 Operación Recurra siempre a la información de seguridad de la Sección 1 de éste manual antes de iniciar todo proceso de mantención en esta máquina. Tabla de Contenidos INFORMACION GENERAL ...........................................................................................................5 CONTROLES - LOCALIZACIÓN Y FUNCIONES..............................................................6 CONSOLA DE CONTROL DE LOS OPERADORES ............................................................7 CONSOLA DE CONTROL DE LOS OPERADORES – VISTA GENERAL ................................... 7 CONSOLA CONTROL IZQUIERDO .......................................................................................8 CONSOLA CONTROL IZQUIERDO – VISTA GENERAL ............................................................ 8 BOTÓN PROGRAMADO DE CONTROL DE LA PERFORADORA - OPCIÓN......................9 INTERRUPTOR DEL SELECTOR DE MODO DE OPERACION ..........................................9 INTERRUPTOR SELECTOR DE ALCANCE DE VELOCIDAD DE IZADO / LEVANTE..........9 INTERRUPTOR DEL FRENO DE LEVANTE........................................................................10 INTERRUPTOR DE VALVULADEAIRE PRINCIPAL ............................................................10 BOTÓN DE PRESION DE REAJUSTE DEL INDICADOR DE PROFUNDIDAD ............ 11 DE BOTÓN DE PARADA DE EMERGENCIA ................................................................. 11 INTERRUPTOR DE LA ESCOTILLA MIRADOR DE LA BROCA .................................... 11 JOYSTICK IZQUIERDO (LA FUNCIÓN DUAL) -ORUGAS DE PROPULSION /WINCHE11 INTERRUPTOR SELECTOR DE VELOCIDAD DEL MANDO ROTATIVO ..........................12 REOSTATO DE LEVANTE/IZADO ..................................................................................12 INTERRUPTOR DE CONTROL DE POLVO - OPCIÓN.................................................13 INTERRUPTOR DE LA CORTINA DE POLVO - OPCIÓN..............................................13 CONTROL DE FLUJO DE CONTROL DE POLVO - OPCIÓNAL ..................................13 ATOMIZADORES DEBAJO DE CUBIERTA - OPCIÓNAL...............................................13 CONSOLA CONTROL DERECHA .............................................................................................14 CONSOLA CONTROL DERECHA – VISTA GENERAL..............................................................14 EL INTERRUPTOR DEL POSICIONADOR DE LA TUBERÍA .........................................15 JOYSTICK DERECHO (FUNCIÓN TRIPLE) - ORUGADE PROPULSIÓN /PORTABARRAS / MÁSTIL ..........................................................................................................................15 POTENCIÓMETRO DE VELOCIDAD ROTATIVA .................................................................16 INTERRUPTOR DEL DESLIZADOR DEL SELLO DE POLVO ............................................16 INTERRUPTOR SELECTOR DEL RANGO DE VELOCIODAD DE PROPULSION ............16 INTERRUPTOR DE BOTÓN DE BOCINA ...........................................................................16 INTERRUPTOR DE LALLAVE HERRAMIENTA....................................................................17 INTERRUPTOR DE LA LLAVE DE RUPTURA .....................................................................17 INTERRUPTOR SELECTOR DEL PORTABARRAS ...........................................................17 INTERRUPTOR DEL CARRUSEL DE BROCA ....................................................................17 INTERRUPTORES DE CONTROL DE GATAS DE NIVELACION ........................................18 INTERRUPTORAUTOMÁTICO DE NIVELACION ................................................................18 CONSOLA DE CONTROLAUXILIAR ....................................................................................19 CONSOLA DE CONTROL AUXILIAR ........................................................................................19 LUCES EXTERIORES ....................................................................................................19
  • 44.
    2-2 Operación Sección MD6640 PerforadoraElectrica Para Pozos De Tronadura BOTÓN DE PRESION DE FALLA DEL CABLE DE ARRASTRE....................................20 INTERRUPTOR DESCONGELADOR DEL PISO ..........................................................20 CONTROLES DE CALEFACTOR / VENTILACION / AIRE ACONDICIONADO ..............20 INTERRUPTOR DE ESCALAS DE ABORDAJE ............................................................20 RADIO /CASSETTE ........................................................................................................20 DESPLIEGUE DEL OPERADOR ...............................................................................................21 MONITOR DE DESPLIEGUE DEL OPERADOR ........................................................................21 EL ÁREA DE DESPLIEGUE Y LOS INDICADORES ............................................................21 PANTALLAS DE DESPLIEGUE.............................................................................................22 PANTALLA TITULAR ................................................................................................................22 PANTALLA NIVELADORA .........................................................................................................23 PANTALLA DE ESTADO ...........................................................................................................23 ALARMAS ACTIVAS .................................................................................................................24 PANTALLA DE ESTADO con cinta de Pop-up ...........................................................................24 HISTORIAL DE ALARMA ..........................................................................................................25 AYUDA DE NAVEGACION ........................................................................................................25 DIAGNOSTICOS DEL PLC ........................................................................................................26 CALIBRACIONES y LIMITES ....................................................................................................26 HORAS DE OPERACION ..........................................................................................................27 TESTEOS en TERRENO ...........................................................................................................27 CONTROLES EN LA SALA DE MÁQUINAS..........................................................................28 CENTRO ENCENDIDO ILUMINACIÓN ...........................................................................28 CENTRO ENCENDIDO ILUMINACIÓN ......................................................................................28 CONTROLES UBICADOS EN GABINETE DE ARRANQUE BAJO VOLTAJE......................29 CONTROLES UBICADOS EN GABINETE BAJO VOLTAJE...........................................29 CONTROL UBICADO GABINETE CONTROLADOR PROGRAMABLE...............................30 GABINETE CONTROLADOR PROGRAMABLE TÍPICO ............................................................30 GABINETES CONTROL DE ACCIONAMIENTO DE LEVANTE/EMPUJE Y ROTACIÓN ......30 GABINETES TÍPICOS DE CONTROL DE ACCIONAMIENTO LEVANTE/EMPUJE Y ROTACIÓN 30 CONTROLES MISCELÁNEOS .......................................................................................31 PANEL DE CONTROL LLENADO REMOTO DEPÓSITO HIDRÁULICO .............................31 PANEL DE CONTROL LLENADO REMOTO DEPÓSITO HIDRÁULICO. ...................................31 ESTACIÓN PORTÁTIL DE PROPULSIÓN REMOTA (OPCIONAL) ......................................31 ESTACIÓN PORTÁTIL DE PROPULSIÓN REMOTA. ................................................................31 VERIFICACIONESANTES DELARRANQUE .............................................................................32 INSPECCION EXTERIOR .....................................................................................................32 INSPECCIONES A BORDO ..................................................................................................34 LUBRICATIÓNANTES DE MEPEZAR ..................................................................................38 ARRANQUE ................................................................................................................................38 ARRANQUE DE LA MÁQUINA ..............................................................................................38 REVISIÓN DE MAQUINARIA .................................................................................................39 REINICIO EN COMPONENTES NUEVOS............................................................................39 REINICIO DE UNIDAD DE TRANSMISIÓN DE ROTACIÓN ...........................................40 REINICIO EN CAJADE ENGRANAJES LEVANTE/EMPUJE ..........................................40 REINICIO EN MOTORES ELÉCTRICOS .......................................................................40 OPERACIÓN...............................................................................................................................41
  • 45.
    2-3 Operación Sección MD6640 PerforadoraElectrica Para Pozos De Tronadural PROPULSANDO ..................................................................................................................41 DEFINICIONES ...............................................................................................................41 PROCEDIMIENTOS DE PROPULSIÓN ...............................................................................42 PROPULSIÓN RECTA ...............................................................................................................44 GIRO GRADUAL A LA DERECHA .............................................................................................44 GIRO GRADUAL A LA IZQUIERDA...........................................................................................45 GIRO CONTRARELOJ A LA IZQUIERDA..................................................................................45 ASEGÚRESE HACER GIROS GRADUALES EN INCREMENTOS DE 15º ................................46 PROCEDIMIENTO DE REMOLQUE ....................................................................................47 PROCEDIMIENTO DE REMOLQUE ..........................................................................................47 OPERACIÓN DEL PORTACABLE........................................................................................49 NIVELACIÓN .........................................................................................................................50 LEVANTANDO Y BAJANDO EL MÁSTIL................................................................................51 LEVANTANDO ELMÁSTIL ....................................................................................................52 PANTALLA DE ESTATUS DEL MASTIL ....................................................................................54 BAJANDO EL MÁSTIL ...........................................................................................................54 OPERACIÓN DE LA MAQUINARIA DE EMPUJE ..................................................................56 OPERACIÓN DEL WINCHEAUXILIAR .................................................................................57 OPERACIÓN DEL PORTABARRAS .....................................................................................58 OPERACIÓN DEL PORTABARRAS ..........................................................................................59 MANEJO DE HERRAMIENTAS .............................................................................................62 CARGA Y DESCARGA DE LAS BARRAS ............................................................................62 ENSAMBLAJE DE LA COLUMNA DE PERFORACIÓN ........................................................64 COLUMNADE HERRAMIENTAS ...............................................................................................64 INSTALACIÓN DEL ESTABILIZADOR.......................................................................................65 OPERACIÓN DE LA LLAVE DE DESCONEXIÓN ......................................................................69 DESARME DE LA COLUMNA DE PERFORACIÓN..............................................................71 AGREGANDO BARRA DE PERFORACIÓNADICIONAL ...............................................73 REMOCIÓN DE SECCIONES MÚLTIPLES DE BARRAS DE PERFORACIÓN ............75 PERFORACIÓN INCLINADA.................................................................................................76 EQUIPAMIENTO PARA PERFORACIÓN INCLINADA ...............................................................76 POSICIONADOR DE BARRAS..................................................................................................77 GRÚA GIRATORIA ....................................................................................................................78 OPERACIÓN SISTEMA DE SUPRESIÓN DE POLVO ...................................................79 SISTEMA DE INYECCIÓN DE AGUA .......................................................................................80 PERFORACIÓN ....................................................................................................................81 PERFORACIÓN VERTICAL............................................................................................81 INICIANDO EL POZO (ANILLANDO) ...............................................................................82 PERFORACIÓN NORMAL..........................................................................................................84 FINALIZANDO EL POZO .......................................................................................................85 FINALIZANDO EL HOYO (SECCIONES MÚLTIPLES DE BARRA).................................86 PERFORANDO FORMACIONES DIFÍCILES .......................................................................87 MATERIALES NO CONSOLIDADOS ..............................................................................87 FORMACIONES HÚMEDAS O PEGAJOSAS .......................................................................90 PERFORACIÓN INCLINADA...........................................................................................91 PERFORACIÓN CON CONTROL DE PERFORACIÓN PROGRAMADA. (C.P.P) ..............92 PREPARÁNDOSE PARAUN CAMBIO..................................................................................93
  • 46.
    2-4 Operación Sección MD6640 PerforadoraElectrica Para Pozos De Tronadura DETENCIÓN DE LA MÁQUINA ...................................................................................................95 PROCEDIMIENTOS DE DETENCIÓN .................................................................................95 ALMACENAJE POR CORTO TIEMPO .......................................................................................97 ALMACENAJE POR LARGO TIEMPO ..................................................................................98 ALMACENAJE POR LARGO TIEMPO, CON ASISTENCIA.............................................99 ALMACENAJE POR LARGO TIEMPO, SINASISTENCIA ...............................................99 RECUPERACIÓN DE HERRAMIENTAS .................................................................................. 101 CARTA DE ESTABILIDAD DE PERFORACIÓN ....................................................................... 103 Carta de Estabilidad de Perforación - Condiciones Especiales de Propulsion ........................103 Carta de Estabilidad de Perforación - Condiciones Tipicas de Propulsion ..............................104
  • 47.
    2-5 Operación Sección MD6640 PerforadoraElectrica Para Pozos De Tronadural Sección 2 Operación INFORMACION GENERAL Esta sección del Manual ayudará en la operación de ésta máquina. Proporciona al operador la ubicación y explicación de los controles, instrucciones para la operación de la máquina y ciertas técnicas de maniobras. En todo el contenido de esta sección y en el resto del Manual, el uso de los términos “IZQUIERDA, DERECHA, ADELANTE yATRAS”, se refieren a ubicaciones de la máquina vistas por el operador, sentado en la butaca del operador en la cabina. La operación segura de la máquina minimiza retrasos de producción y daños costosos al equipo. Estudie cuidadosamente y siga todos los procedimientos recomendados en este Manual. Las pautas de seguridad están destinadas a prevenir la ocurrencia de accidentes y se entregan para el interés de todo el personal de la mina. La seguridad total depende del uso del buen juicio y la observancia por todo el grupo de la mina. Vea la Sección 1de éste manual, precauciones específicas de seguridad. OPERACION CERCANAALINEAS ELÉCTRICAS PELIGRO: ¡ALTO VOLTAJE! Las siguientes precauciones deberán ser cumplidas por cualquiera que opere alrededor o cercano a las líneas de distribución eléctrica y líneas de transmisión. Trabajar en la vecindad de líneas eléctricas representa un grave peligro y se debe tomar precauciones especiales. Para los propósitos de este manual estamos considerando que la totalidad de la máquina o su carga, en cualquier posición que pueda alcanzar, esta dentro de la distancia mínima especificada por las regulaciones locales, estatales y federales. Las prácticas de operación segura requieren que Ud. mantenga la máxima distancia posible de los cables y nunca viole los espacios mínimos. Antes de trabajar en la vecindad de líneas de energía, tome siempre las siguientes precauciones: • Siempre contacte a los propietarios de las líneas de energía o el servicio de electricidad más cercano, antes de comenzar a trabajar. • Ud. y el representante del servicio eléctrico deben determinar en conjunto, qué precauciones específicas deben ser tomadas para garantizar la seguridas. • Es responsibilidad del usuario y del servicio eléctrico, velar para que se tomen todas las precauciones necesarias.
  • 48.
    2-6 Operación Sección MD6640 PerforadoraElectrica Para Pozos De Tronadura • Considere a todas las líneas como líneas de energía y trátelas como si estuvieran energizadas, aun cuando se sepa que la energía está cortada y el cable está visiblemente a tierra. • Retarde el ciclo de operación. El tiempo de reacción puede ser demasiado lento y las distancias pueden estar mal estimadas. • Advierta a todo personal en tierra, que se mantenga todo el tiempo alejado de la máquina. • Use a un señalero para que guíe la máquina en espacios estrechos. La única responsibilidad de ésta persona es observar la aproximación de la máquina a las líneas de energía. El señalero debe estar en comunicación directa con el operador y el operador debe prestar estrecha atención a las señales. PELIGRO: ¡ALTO VOLTAJE! Pueden ocurrir la muerte o lesiones si cualquier parte de la máquina entra en la distancia mínima de una línea de potencia energizada, especificada por las regulaciones locales, estatales y federales. CONTROLES - LOCALIZACIÓN Y FUNCIONES Aún cuando exista experiencia previa, el nuevo operador de cualquier máquina, debe familiarizarse con la ubicación y funciones de todos los controles de operación antes de que pueda comenzar a operar la máquina. Ya que en este manual se muestran todos los controles posibles que podrían emplearse en la Perforadora Eléctrica para Pozos de Tronadura MD6640, el operador debería familiarizarse tanto con este manual como con la máquina específica que va a operar. Para el propósito de este manual, los controles de operación han sido divididos en tres grupos, dependiendo de su localización. PRECAUCIÓN: LEA Y FAMILIARÍCESE CON ESTE MANUAL ANTES DE INTENTAR OPERAR CUALQUIER CONTROL DE LA MÁQUINA. PRESTE PARTICULAR ATENCIÓN A LOS PÁRRAFOS DE PRECAUCIÓN Y ADVERTENCIA, ASÍ COMO A LAS REGULACIONES FEDERALES, ESTATALES Y LOCALES O LAS REGULACIONES DE SEGURIDAD DE LA COMPAÑÍA RELATIVA A LA MÁQUINA. OMITIR TENER EL CUIDADO Y EL CONOCIMIENTO DE LOS PELIGROS ASOCIADOS CON LA OPERACIÓN DE LOS CONTROLES, PUEDE SER CAUSA DE MUERTE, LESIONES PERSONALES O SEVEROS DAÑOS A LA MÁQUINA.
  • 49.
    2-7 Operación Sección MD6640 PerforadoraElectrica Para Pozos De Tronadural CONSOLA DE CONTROL DE LOS OPERADORES Las consolas de control del operador están montadas en cada lado del asiento del operador. El monitor de despliegue es en el que fue montado en la consola izquierda, como se muestra. Una consola auxiliar de control está ubicada a la derecha del operador. NOTA: LOS CONTROLES DEL OPERADOR SON TODOS ELÉCTRICOS. LOS INTERRUPTORES, LOS POTENCIÓMETROS Y JOYSTICKS MANEJAN CONTROLES ELÉCTRICOS, CONTROLES ELECTROMECÁNICOS, O VÁLVULAS ACCIONADAS ELECTROHIDRAULICAMENTE EN LA MÁQUINA. CONSOLA DE CONTROL DE LOS OPERADORES – VISTA GENERAL NOTA: LOS PANELES CON CONTROLES QUE SE MUESTRAN EN LAS PÁGINAS SIGUIENTES, SON LOS TÍPICOS DE AQUELLOS QUE PODRÍAN SER INCLUIDOS EN UNA CONSOLA.
  • 50.
    2-8 Operación Sección MD6640 PerforadoraElectrica Para Pozos De Tronadura CONSOLA CONTROL IZQUIERDO CONSOLA CONTROL IZQUIERDO – VISTA GENERAL
  • 51.
    2-9 Operación Sección MD6640 PerforadoraElectrica Para Pozos De Tronadural BOTÓN PROGRAMADO DE CONTROL DE LA PERFORADORA - OPCIÓN El botón programado de control de la perforadora se usa para activar o desactivar el sistema de control programado del taladro en la máquina. INTERRUPTOR DEL SELECTOR DE MODO DE OPERACION Este interruptor de cuatro posiciones es usado para seleccionar uno de tres modos operativos de perforación. PROPULSION - Permite todas las funciones de propulsión al desactivar el winche, el mástil y todas las funciones de izado/levante. PERFORACION - Permite todas las funciones perforadoras al desactivar todas las funciones de propulsión. MASTIL/WINCHE - Habilita todas funciones de mástil y winche mientras que deshabilita todas las funciones de propulsión. REMOTO - Permite que todas las funciones de propulsión sean operadas desde la unidad de control remoto y desactiva los controles de cabina del operador. INTERRUPTOR SELECTOR DE ALCANCE DE VELOCIDAD DE IZADO / LEVANTE Interruptor selector de alcance de velocidad izado/levante controla el alcance de modo operativo y de velocidad del mando de izado/levante cuando se esta en modo de perforación. El interruptor selector del modo operativo debe estar en la posición de PERFORACION para que este selector de velocidad funcione. El interruptor es un interruptor de cuatro posiciones con las siguientes designaciones: IZADO, LEVANTE PUNTO BAJO, LEVANTEALTO, yACOPLAMIENTO/PORTABARRAS. En el ajuste de IZADO, el cual es usado para perforación normal, la fuerza completa del izado es disponible pero al alcance de velocidad para ambos izado y levante se le limita acerca de 25 FPM (7.62 MPM). Los ajustes de LEVANTE BAJO y LEVANTEALTO son usados para elevar la tubería en aceleraciones de altas velocidades. En la posición de LEVANTE BAJO una alta velocidad del cabezal es permitido, pero la velocidad es a permitida a alcanzar un nivel más alto (típicamente acerca de 25 FPM [7.62 MPM]).
  • 52.
    2-10 Operación Sección MD6640 PerforadoraElectrica Para Pozos De Tronadura En la posición de LEVANTE ALTO que a la máxima capacidad principal de velocidad se le permite para ambos levante y el rebajamiento. Típicamente acerca de 75 FPM (22.86 MPM). Como resultado de obtener una velocidad más alta, la capacidad de fuerza de levante a toda velocidad no es tan alta como la obtenible en la posición de LEVANTE BAJO. En la posición del PORTABARRA/ACOPLAMIENTO, el límite de velocidad es reducido a 25 FPM (7.62 MPM) la fuerza de bajada es limitada al cabezal y peso del acero del taladro. Ésta es la posición del interruptor para cualquier operación del pipero. NOTA: LAOPERACIÓN DELPORTABARRAS TAMBIÉN REQUIERE QUE LAASAMBLEA ROTATIVADEL CABEZAL ESTÉ POR ENCIMADE LOS PORTABARRASANTES DE QUE LA OPERACIÓN SEA PERMITIDA. INTERRUPTOR DEL FRENO DE LEVANTE El interruptor del freno de levante es un interruptor de dos posiciones usado para colocar o soltar el freno de levante. Este interruptor debe estar en la posición de LIBERACIÓN antes de que el mando de levante/izado sea permitido a mover la maquinaria del mástil. Colocando el interruptor dentro de la posición DETERMINADA durante la operación de la máquina inmediatamente desactiva operación de mando de levante/izado. Bajo normales condiciones de operación, el reostato de velocidad de levante/izado debería estar ajustada a " APAGADO" antes colocar el freno. NOTA: Aplicarle el freno de levante es una acción de resorte. Después de que el interruptor del FRENO de LEVANTE es revuelto para la posición DETERMINADA, el resorte del freno es des- energizado permitiendo a los resortes el freno a aplicar fuerza a los discos del freno. Al soltar el freno de levante, el resorte del freno es energizado; Condensando las primaveras, cuál lanza al mercado presión en los discos del freno. INTERRUPTOR DE VALVULA DE AIRE PRINCIPAL Este interruptor de dos posiciones es usado para controlar la válvula de mariposa en la línea de descarga del compresor de aire. El interruptor operativo de modo debe estar en la posición del TALADRO (en otros modos se aborta a la posición cerrada). ABRIR -Abre la válvula de mariposa. CERRAR - Cierra la válvula de mariposa y causa que el compresor de aire corra descargado.
  • 53.
    2-11 Operación Sección MD6640 PerforadoraElectrica Para Pozos De Tronadural BOTÓN DE PRESION DE REAJUSTE DEL INDICADOR DE PROFUNDIDAD El botón de presión de reajuste del indicador de profundidad es usado para poner el de profundidad a cero, como se muestra en el monitor de despliegue del operador, cuándo un hoyo es completado y otro debe ser comenzado. DE BOTÓN DE PARADA DE EMERGENCIA El interruptor de botón de parada de emergencia en la consola izquierda de control es un interruptor de botón rojo grande tipo cabeza de hongo. Presionando el botón de parada de emergencia apagara el compresor de aire, sistemas hidráulicos y desconectará todos los controles. También simultáneamente proveerá frenado mecánico inmediato. Este botón sólo debería ser usado en situaciones de emergencia. PRECAUCION: PRESIONAR ESTE BOTÓN CUANDO CUALQUIER MANDO ESTE EN FUNCIONAMIENTO PUEDE DAR COMO RESULTADO DAÑOS COMPONENTES. INTERRUPTOR DE LA ESCOTILLA MIRADOR DE LA BROCA Este interruptor de dos posiciones es usado para mover la escotilla para mirar el cabezal del taladro en el terreno. Mover el interruptor a la posición CERRAR, cerrará la escotilla. Revolver el interruptor para la posición ABRIR, abrirá la escotilla. JOYSTICK IZQUIERDO (LA FUNCIÓN DUAL) -ORUGAS DE PROPULSION /WINCHE NOTA: UN CANDADO NEUTRALES PROVISTO PARAIMPEDIR MOVIMIENTOACCIDENTAL DEL JOYSTICK. EL JOYSTICKAUTOMÁTICAMENTE REGRESAANEUTRAL Y EL CANDADO ES ENGANCHADO EN CUALQUIER MOMENTO QUE EL JOYSTICK ES SOLTADO. PARAHABILITAR EL MOVIMIENTO DEL JOYSTICK,ALZAR EN EL CANDADO (LOCALIZADO DEBAJO DE LA PERILLA DEL JOYSTICK). LA VELOCIDAD DE OPERACIÓNAUMENTAASI COMO LAPOSICIÓN DEL JOYSTICK ES MOVIDA ALEJÁNDOLA DEL NEUTRAL. ORUGA IZQUIERDA de PROPULSION - Usar para controlar la velocidad de propulsión y la dirección de pista izquierda cuando el interruptor MODO DE OPERACION está en la posición de PROPULSION. NOTA: EL FRENO DE PROPULSIÓN DEBE SER SOLTADO, LAS GATAS COMPLETAMENTE RETRACTADAS, LAS ESCALERAS DEABORDAJE ELEVADAS.
  • 54.
    2-12 Operación Sección MD6640 PerforadoraElectrica Para Pozos De Tronadura 1. EMPUJAR el joystick alejándole de usted para propulsar la oruga izquierda hacia adelante. 2. JALAR el joystick hacia usted para propulsar la oruga izquierda en reversa. WINCHE - Usado para controlar el levante/rebajamiento de la velocidad del winche, junto con la dirección de viaje cuando en el MODO de OPERACION está en la posición del MASTIL/WINCHE 1. EMPUJAR el joystick alejándole de usted para levantar o elevar el gancho del winche. 2. JALAR el joystick hacia usted para bajar el gancho del winche. INTERRUPTOR SELECTOR DE VELOCIDAD DEL MANDO ROTATIVO El interruptor selector de velocidad es un interruptor de tres posiciones se encuentra por sobre el reostato rotativo. Este interruptor determina el alcance de velocidad/fuerza de torsión del motor rotativo. En la posición BAJA, el motor tiene la capacidad más alta de fuerza de torsión pero está limitado en la velocidad para acerca de 85-100 RPM en el cabezal. En la posición ALTA, el motor tiene una capacidad más alta (alcance de 110-140 RPM) de velocidad pero la fuerza de torsión del motor será menos (típicamente 68% a 74%). La posición MEDIA provee operaciones entre las posicionesALTAS y BAJAS. El interruptor debería ser ajustado al rango que mas acerca el rango de velocidad de broca deseado. El ajuste BAJO es suficiente para la mayoría de condiciones. Si más velocidad es deseada, seleccione el rango deseado según sea necesario. REOSTATO DE LEVANTE/IZADO El reostato de levante/izado controla la velocidad y dirección del motor de levante-izado para alzar o bajar el mando de la unidad rotativa. Girando el reostato en la dirección de izado desde la posición "0" disminuirá la unidad de mando rotativa. La velocidad máxima está disponible en posición que gira en sentido del reloj completa. Girando el reostato en la dirección del izado desde la posición de "0" aminorará la unidad de mando rotativa. La velocidad máxima está disponible en la posición que giro contrario al reloj. NOTA: El reostato utiliza una escala de referencia y puntero. Cuando el reostato girado, el puntero indica, en la escala de referencia, el porcentaje relativo de velocidad completa esta siendo ajustada.
  • 55.
    2-13 Operación Sección MD6640 PerforadoraElectrica Para Pozos De Tronadural Los paneles con controles como se muestra en las siguientes páginas son típicos de lo que podrían ser incluidos en una consola. INTERRUPTOR DE CONTROL DE POLVO - OPCIÓN El interruptor de colector de polvo es un interruptor de dos posiciones para iniciar el ventilador en la tolva de colector de polvo. Cuando el interruptor está en la posición de apagado, se apagará el colector de polvo del motor del ventilador. INTERRUPTOR DE LA CORTINA DE POLVO - OPCIÓN El interruptor de la cortina de polvo es un interruptor de dos posiciones. Girando el interruptor a la posición LEVANTADAalzará las cortinas de polvo. Girándolo a la posición BAJAbajará las cortinas de polvo. CONTROL DE FLUJO DE CONTROL DE POLVO - OPCIÓNAL Este interruptor no es usado en esta aplicación. ATOMIZADORES DEBAJO DE CUBIERTA - OPCIÓNAL Este interruptor no es usado en esta aplicación.
  • 56.
    2-14 Operación Sección MD6640 PerforadoraElectrica Para Pozos De Tronadura CONSOLA CONTROL DERECHA CONSOLA CONTROL DERECHA – VISTA GENERAL.
  • 57.
    2-15 Operación Sección MD6640 PerforadoraElectrica Para Pozos De Tronadural EL INTERRUPTOR DEL POSICIONADOR DE LA TUBERÍA El interruptor del posicionador de la tubería es un interruptor de tres posiciones de retroceso por muelle. Girar el interruptor a la posición SOBRE HOYO replegará los cilindros de alineación del posicionador. Cuando este completamente replegado este entonces extenderá el posicionador de la mandíbula del para sujetar la tubería del taladro. Girar el interruptor para la posición GUARDAR replegará el cilindro de mandíbula, entonces extenderá los cilindros de alineación del posicionador para la posición guardada. JOYSTICK DERECHO (FUNCIÓN TRIPLE) - ORUGA DE PROPULSIÓN /PORTABARRAS / MÁSTIL NOTA: Un candado neutral es provisto para impedir movimiento accidental del joystick. El candado neutral debe ser soltado para que este joystick de control pueda funcionar. El joystick automáticamente regresa a neutral y el candado es enganchado en cualquier momento que el joystick es soltado. Para permitir movimiento del joystick, elevar el cerrojo localizado debajo de la manija del joystick. La velocidad de operación aumenta cuando el joystick desplazado alejándole de la posición neutral (centro). PROPULSION - Usar para asignar la velocidad y dirección de propulsión para la oruga correcta cuando el interruptor MODO OPERATIVO está en la posición de PROPULSION. NOTA: El freno de propulsión debe ser soltado, las gatas completamente retractadas, las escaleras de abordaje elevadas. 1. EMPUJAR el joystick alijándole de usted para propulsar la oruga hacia adelante. 2. JALAR el joystick hacia usted para propulsar la pista correcta en reversa. PORTABARRAS - Usado para controlar manualmente el sobre-hueco del portabarras y guarda las funciones cuando el interruptor del MODO OPERATIVO está en posición de PERFORACION. 1. EMPUJAR la palanca de mando de usted para extender el portabarras hacia la posición del sobre-hueco. 2. JALAR la palanca de mando hacia usted para retractar el portabarras hacia la posición guardada. MÁSTIL - Usado controlar el izado del mástil y aminorando las funciones cuando el interruptor de MODO OPERATIVO está en la posición del MÁSTIL/PORTABARAS. 1. EMPUJAR el joystick alejado de usted para alzar el mástil. 2. JALAR el joystick para bajar el mástil.
  • 58.
    2-16 Operación Sección MD6640 PerforadoraElectrica Para Pozos De Tronadura POTENCIÓMETRO DE VELOCIDAD ROTATIVA El potenciómetro de velocidad rotativo es usado para controlar la velocidad y la dirección de los mandos de motores rotativos. El interruptor MODO OPERATIVO debe estar en la posición del PERFORACION que este control funcione. NOTA: La velocidad de operación aumenta como la manija del potenciómetro es rotada desde ENCENDIDO hacia MÁXIMUM en cualquier dirección. La máxima velocidad obtenible es determinada por la posición del interruptor del MANDO DE VELOCIDAD ROTATIVA. Girar la manija hacia la derecha desde APAGADO hacia MÁXIMUM para rotar la cuerda de la herramienta hacia la derecha. Girar la manija hacia la izquierda desde APAGADO hacia MÁXIMUM para rotar la cuerda de la herramienta hacia la Izquierda. INTERRUPTOR DEL DESLIZADOR DEL SELLO DE POLVO Éste es un interruptor de tres posiciones de retroceso por muelle el cual es usado para iniciar movimiento del sello de polvo de la cubierta de la perforadora. Girando el interruptor para la posición TRASERA causará que el mecanismo del sello de polvo se mueva hacia la parte de atrás de la máquina. Girando el interruptor para la posición DELANTERA causará que el mecanismo del sello de polvo se mueva hacia el frente de la máquina. Este interruptor es funcional cada vez que las bombas hidráulicas corren, y es sólo usado en máquinas con el paquete de perforación de hoyos de ángulo. INTERRUPTOR SELECTOR DEL RANGO DE VELOCIODAD DE PROPULSION Este interruptor de dos posiciones es usado para ajustar la velocidad de propulsión. En la posición BAJA, lo propulsa está en un alcance de baja velocidad (acerca de 35 % máximum). Esta posición es usada al hacer maniobras en lugares estrechos y en perforaciones con patrones. La posición NORMAL es usada al moverse de un sitio para otro. INTERRUPTOR DE BOTÓN DE BOCINA El interruptor de botón de bocina se usa para sonar la bocina de alarma de la máquina.
  • 59.
    2-17 Operación Sección MD6640 PerforadoraElectrica Para Pozos De Tronadural INTERRUPTOR DE LA LLAVE HERRAMIENTA Este interruptor de tres posiciones, retroceso por muelle a centro -APAGADO se usa para controlar las funciones de la llave herramienta. Girando y sujetando el interruptor en la posición EXTENDIDA causará que la llave herramienta se extienda enganche el tubo de perforación. Girando y sujetando el interruptor en la posición RETRACTADAretractará la llave herramienta, soltando el tubo de perforación. Permitir el interruptor se recoja a la posición del centro APAGADO detiene la moción de la llave herramienta desde cualquier posición en su alcance normal de moción. INTERRUPTOR DE LA LLAVE DE RUPTURA Este interruptor de tres posiciones, retroceso por muelle a centro - APAGADO se usa para la llave de ruptura. El portabarras debe estar en la posición guardada para que este interruptor funcione. Girando y sujetando el interruptor en la posición EXTENDIDA causará que la llave de ruptura se extienda para sujetar el tubo de perforación y rompa la juntura creada. Girando y sujetando el interruptor en la posición de RETRACTADA causará que las mandíbulas de la herramienta abran, suelten el tubo de perforación, y replieguen la llave mecánica. Permitir que el interruptor de resorte regrese a la posición del centro APAGADO detiene la moción de la llave de ruptura desde cualquier posición en su moción o alcance normal. NOTA: La llave mecánica de ruptura debe estar en la posición completamente retractada antes de elevar el tubo de maniobras del brazo. INTERRUPTOR SELECTOR DEL PORTABARRAS El interruptor selector del portabarras es un interruptor de cuatro posiciones usado para decidir cuál portabarras será operada. Para máquinas sin portabarras o con sólo una portabarras, este interruptor no es usado. INTERRUPTOR DEL CARRUSEL DE BROCA Este interruptor no es usado en esta aplicación.
  • 60.
    2-18 Operación Sección MD6640 PerforadoraElectrica Para Pozos De Tronadura INTERRUPTORES DE CONTROL DE GATAS DE NIVELACION Los tres interruptores tensores son usados para manualmente alzar o bajar las gatas de nivelación. INTERRUPTOR AUTOMÁTICO DE NIVELACION El interruptor automático de nivelación es un interruptor de retroceso por muelle de tres posiciones. Presionando el cambio a la posición EXTENDIDA extenderá los cilindros de la gata de nivelación y elevará la máquina. Presionando el interruptor posición RETRACTADA replegará los cilindros y bajará la máquina. Cuando este interruptor es usado, los interruptores tensores manuales de nivelación no son funcionales. NOTA: El interruptor automático de nivelación es un interruptor de retroceso por muelle. El interruptor debe estar sujeto hasta que la acción deseada de las gatas de nivelación haya sido lograda. Soltar el interruptor permitirá que regrese a la posición neutral pero las gatas se quedarán en la posición a la cual fueron movidos.
  • 61.
    2-19 Operación Sección MD6640 PerforadoraElectrica Para Pozos De Tronadural CONSOLA DE CONTROLAUXILIAR CONSOLADE CONTROLAUXILIAR LUCES EXTERIORES El interruptor de dos posiciones se usa ENCENDER y APAGAR las luces exteriores.
  • 62.
    2-20 Operación Sección MD6640 PerforadoraElectrica Para Pozos De Tronadura BOTÓN DE PRESION DE FALLA DEL CABLE DE ARRASTRE El interruptor de botón grande tipo cabeza de hongo se usa para cortar completamente el poder para la máquina completa. Presionando el botón de FALLADE CABLE DEARRASTRE desactivará el poder para la perforadora desde su fuente. PRECAUCION: PRESIONAR ESTE BOTÓN CUANDO CUALQUIER MANDO ESTÁ EN MOVIMIENTO PUEDE DAR COMO RESULTADO DAÑOS A COMPONENTES. INTERRUPTOR DESCONGELADOR DEL PISO El interruptor descongelador del piso es un interruptor de dos posiciones usado para ENCENDER o APAGAR el calefactor. CONTROLES DE CALEFACTOR / VENTILACION / AIRE ACONDICIONADO Los controles acondicionadores de calefactor / ventilación / aire acondicionado (HVAC) consisten en tres controles. El interruptor de control de HVAC selecciona el modo que esta siendo usado y tiene las siguientes posiciones: OFF (apagado) , FAN (ventilador), HEAT (calefactor), y COOL(enfriamiento) Un reostato de temperatura es usado para ajustar temperatura de aire de la cabina. Los controles del interruptor de velocidad del ventilador controlan la circulación de aire. Las tres posiciones son:APAGADO, BAJO yALTO. INTERRUPTOR DE ESCALAS DE ABORDAJE El interruptor de las escalas de abordaje es un interruptor de dos posiciones. Un interruptor similar está localizado en las escaleras. Dependiendo de la posición de las escaleras, el interruptor debe ser movido de su posición presente para la posición opuesta que las escaleras cambien de posición. RADIO /CD PLAYER El radio de AM/FM incluye un toca-CD estéreo.
  • 63.
    2-21 Operación Sección MD6640 PerforadoraElectrica Para Pozos De Tronadural DESPLIEGUE DEL OPERADOR El despliegue del operador provee al operador con interfaz a la máquina y sus áreas funcionales. De este despliegue informativo, el operador puede hacer a los aportes que efectúan operación de la máquina, puede monitorear a los sistemas y hacer ajustes del sistema. A través de esta terminal de despliegue el operador recibirá datos pertinentes de falla para identificar problemas potenciales e impedir daño de la máquina. MONITOR DE DESPLIEGUE DEL OPERADOR Refiérase a un manual separado para más métodos operacionales para el Despliegue del Operador. El monitor de despliegue está montado en un pivote de inclinación en la consola izquierda de control. Los operadores individuales pueden situar la pantalla en cualquier posición deseada. EL ÁREA DE DESPLIEGUE Y LOS INDICADORES El área de despliegue de la pantalla del monitor es el área grande en el centro de la pantalla. Este área es de "toque sensitivo." Toda información será exhibida en esta área en un formato de texto o en la forma de iconos visuales. Los botones e iconos que aparecen en la pantalla responderán a el toque de la pantalla en el área apropiado del icono. Estos iconos y estos botones reaccionarán activando la pantalla, intercambiarán activación o mostrarán información pertinente para el icono. Los interruptores y los botones serán cubiertos de las siguientes páginas debajo del tema de la pantalla en el cual aparecen.
  • 64.
    2-22 Operación Sección MD6640 PerforadoraElectrica Para Pozos De Tronadura Los indicadores en la porción más bajo del área de la pantalla son indicadores y sensores, cuál indica funcionabilidad del despliegue del operador y su interfaz con el controlador PLC de la máquina. No tienen efecto en el uso operacional de la máquina. Todo los controles de la máquina pueden ser encontrados en la Pantalla de toque sensitivo del Panel de Despliegue del Operador o las consolas izquierda y derecha de Control del asiento del operador. PANTALLAS DE DESPLIEGUE La información prevista en el área central de la pantalla titular es especifica para la máquina y lista el número de serie de la máquina y un aviso de derecho de autor referente al control y software de despliegue. PANTALLA TITULAR Los Iconos Principales del Menú aparecen por el fondo de todas las pantallas permitiendo navegación rápida.
  • 65.
    2-23 Operación Sección MD6640 PerforadoraElectrica Para Pozos De Tronadural PANTALLA NIVELADORA La Pantalla de Nivelación provee detalle en el nivel de la máquina y el estado de la gata. PANTALLA DE ESTADO La Pantalla de Estado es la primaria herramienta de información operacional visible para el operador durante el uso diario de esta máquina. Los controles disponibles en esta pantalla proveerán al operador con la información necesitada mirar "a simple vista" el estatus de artículos requeridos para perforar, y hacer cambios en los ajustes de control. La Pantalla de Estatus es más comúnmente usada durante el proceso de perforación.
  • 66.
    2-24 Operación Sección MD6640 PerforadoraElectrica Para Pozos De Tronadura ALARMAS ACTIVAS La pantalla de Alarma Activa proveerá una lista de todas las fallas y alarmas activas que han sido iniciadas en la máquina y no han sido RESETEADAS. Una vez que una alarma o una falla ha sido sentida, estos mensajes permanecerán visibles y NO SERÁN removidos desde esta pantalla hasta que sea RESETEADA. PANTALLA DE ESTADO con cinta de Pop-up Cualquier alarmas nuevas saltarán a la vista automáticamente siempre que un sensor de la máquina detecta una falla recién que ocurra o un mensaje de advertencia.
  • 67.
    2-25 Operación Sección MD6640 PerforadoraElectrica Para Pozos De Tronadural HISTORIAL DE ALARMA La pantalla de Historia deAlarma retiene un registro cronológico de todas las alarmas. Esta pantalla provee información pertinente; codigos de falla, fecha, hora y una descripción breve para cada informe. AYUDA DE NAVEGACION
  • 68.
    2-26 Operación Sección MD6640 PerforadoraElectrica Para Pozos De Tronadura DIAGNOSTICOS DEL PLC Esta pantalla le provee el acceso a las pantallas de datos de localización de fallas del PLC. El estatus de todas las entradas y salidas en cada una de las racas primarias remotas de Entrada/ Salida pueden ser sacadas de esta pantalla presionando los botones nodo en el lado izquierdo del despliegue. CALIBRACIONES y LIMITES La pantalla de Calibración y Límites es usada para colocar la mayoría de límites de la máquina requeridos para controlar los movimientos de la máquina. ADVERTENCIA: Cuando esta pantalla es activa, los límites de la maquinaria del mástil están deshabilitados. Un cuidado extremo debe ser tomado para impedir daño mecánico a la perforadora.
  • 69.
    2-27 Operación Sección MD6640 PerforadoraElectrica Para Pozos De Tronadural HORAS DE OPERACION La pantalla de Horas Operativas / Contador de Falla provee al operador con información sobre el número de fallas que han ocurrido desde el último RESETEO. También provee el total de horas de función. TESTEOS en TERRENO Esta pantalla es usada para testeo a terreno de los subsistemas eléctricos, hidráulicos, y mecánicos. Los testeos en esta pantalla permiten ciertos circuitos protectores que sean circunvalados con propósitos de testeo.
  • 70.
    2-28 Operación Sección MD6640 PerforadoraElectrica Para Pozos De Tronadura CONTROLES EN LA SALA DE MÁQUINAS NOTA: LOS CONTROLES MOSTRADOS EN LAS SIGUIENTES ILUSTRACIONES SON LOS TÍPICOS CONTROLES EN UNA MÁQUINA. DEBIDO A LA VARIEDAD DE CONTROLES QUE PUEDEN SER SUMINISTRADOS PARA LAS NECESIDADES DEL CLIENTE, ASEGÚRESE DE CONOCER BIEN LOS CONTROLES INCLUÍDOS EN LOS GABINETES DE SU MÁQUINA. TODOS LOS CONTROLES SERÁN IDENTIFICADOS CON PLACA DE DESIGNACIÓN. CENTRO ENCENDIDO ILUMINACIÓN La central de encendido de iluminación está ubicada al lado izquierdo de la pared frontal de la sala de máquinas. La central de encendido de iluminación contiene los interruptores para controlar las luces internas y externas además de varias funciones auxiliares. CENTRO ENCENDIDO ILUMINACIÓN Cada interruptor tiene su rótulo para identificar la función particular en cualquier máquina en particular. Los controles son interruptores de circuito operados con palancas de tres posiciones. Moviendo la palanca en la dirección (ON) se cerrará el circuito mientras que moviéndolo en la dirección contraria (OFF) abrirá el circuito. La posición central es la posición de disparo. El interruptor se puede reinstalar moviendo la palanca hacia la posición OFF y luego volverla hacia la posición ON.
  • 71.
    2-29 Operación Sección MD6640 PerforadoraElectrica Para Pozos De Tronadural CONTROLES UBICADOS EN GABINETE DE ARRANQUE BAJO VOLTAJE El gabinete de arranque de bajo voltaje contiene el interruptor del compresor principal. Moviendo el interruptor a la posición ON, se activará el circuito del compresor, permitiendo que se pueda arrancar el compresor. CONTROLES UBICADOS EN GABINETE BAJO VOLTAJE El gabinete de bajo voltaje contiene muchos de los interruptores del equipo auxiliar en la perforadora. Debido a la variedad de los equipos suministrados en una perforadora en particular, en la figura se muestra un listado de controles típicos que pueden aparecer en el gabinete.
  • 72.
    2-30 Operación Sección MD6640 PerforadoraElectrica Para Pozos De Tronadura CONTROL UBICADO GABINETE CONTROLADOR PROGRAMABLE El gabinete controlador programable típico contiene controles como los mostrados en la figura. GABINETE CONTROLADOR PROGRAMABLE TÍPICO GABINETES CONTROL DE ACCIONAMIENTO DE LEVANTE/EMPUJE Y ROTACIÓN Los controles típicos en los gabinetes de accionamiento de levante/empuje y rotación son los mostrados en la figura inferior. GABINETES TÍPICOS DE CONTROL DE ACCIONAMIENTO LEVANTE/EMPUJE Y ROTACIÓN
  • 73.
    2-31 Operación Sección MD6640 PerforadoraElectrica Para Pozos De Tronadural CONTROLES MISCELÁNEOS Localizados alrededor de la máquina hay varios controles misceláneos y monitores que deberían usarse con equipo opcional o que no corresponden a los grupos descritos previamente. PANEL DE CONTROL LLENADO REMOTO DEPÓSITO HIDRÁULICO El panel de control de llenado remoto del depósito de aceite hidráulico se usa para monitorear el depósito cuando está siendo llenado. Las instrucciones para el uso de estos controles están impresas directamente bajo los controles. PANEL DE CONTROL LLENADO REMOTO DEPÓSITO HIDRÁULICO. ESTACIÓN PORTÁTIL DE PROPULSIÓN REMOTA (OPCIONAL) La estación portátil de propulsión remota está ubicada en un recinto cerrado bajo la cabina del operador, al lado derecho de la máquina. Además de almacenar la estación portátil, el recinto aloja un cable de 40’ de longitud y un switch que permite energizar o desenergizar la estación. Otro switch de accionamiento y receptáculo para enchufar, están ubicados en la esquina frontal derecha de la estructura principal de la perforadora. La estación incluye dos joysticks, uno para cada oruga, un botón de parada de emergencia, un selector de velocidad de propulsión y un indicador rojo que se encenderá cuando la estación está energizada. ESTACIÓN PORTÁTIL DE PROPULSIÓN REMOTA.
  • 74.
    2-32 Operación Sección MD6640 PerforadoraElectrica Para Pozos De Tronadura VERIFICACIONES ANTES DEL ARRANQUE Antes de arrancar la perforadora, inspecciónela y asegúrese que está lista para entrar en operación. La omisión de realizar esta revisión de rutina puede resultar en pérdidas de tiempo innecesarias Por ejemplo, una pérdida de aceite inadvertida puede implicar una caja de engranajes seca, lo cual resultaría eventualmente en un excesivo desgaste del engranaje o su destrucción, rodamientos agripados u otros problemas mecánicos. Gastar unos pocos minutos inspeccionando la máquina a menudo da como resultado considerables ahorros de tiempo y aumento en la eficiencia de la máquina. Esta inspección debe realizarse antes de cada turno. INSPECCION EXTERIOR 1. Revise las áreas alrededor y bajo la máquina por señales de pérdidas de agua o lubricante. Si se ven gotas aisladas de agua o aceite, la pérdida es mínima. Determine el origen de la filtración y anótelo en el registro diario. Si se ven manchas de agua o aceite, determine su origen y tome medidas de reparación 16 9 11 10 23 8 54 10 8 16 6 1 7 9 14 13 12 15 2 3 6848 11 1 7 insp6640 DERECHAIZQUIDERA Delante de la maquina Delante de la maquina
  • 75.
    2-33 Operación Sección MD6640 PerforadoraElectrica Para Pozos De Tronadural 2. Inspeccione las cadenas de las orugas por si hay zapatas rotas o con fisuras, retenes de pasadores faltantes, pasadores sueltos, y la tensión apropiada de la cadena. 3. Revise si hay filtraciones en la caja de engranajes de las ruedas motrices, los motores hidráulicos y en las mangueras. Revise el nivel de lubricante de la caja de engranajes de las ruedas motrices. 4. Inspeccione si la estructura de las orugas presenta fisuras o acumulación de suciedad o hielo. Revise si los rodillos y tambores están bien lubricados, operan libremente o tienen acumulación de suciedad o hielo. Examine los pasadores y pernos de fijación de los ejes. 5. Revise si hay rasgaduras en las cortinas contra polvo. Asegúrese que no estén congeladas al piso o cubiertas con desmonte. 6. Inspeccione que el cable eléctrico esté fuera de la trayectoria de la perforadora. Inspeccione si su revestimiento tiene cortes o abrasiones. Asegúrese que se mantenga fuera del agua y de rocas cortantes. Haga que un electricista inspeccione el dispositivo de alivio de esfuerzo y la condición del cable en su entrada a la máquina. PRECAUCIÓN: EL CABLE ELÉCTRICO DE LA MÁQUINA CONDUCE UN VOLTAJE LETAL. MANEJE EL CABLE DE UNA MANERAAPROBADA, CON GUANTES DE GOMA APROBADOS Y GANCHOS Y TENAZAS CON AISLAMIENTO. 7. Inspeccione si la parte inferior de la máquina presenta fisuras, mangueras o cables sueltos, acumulación de suciedad o hielo u otros deterioros o daños. Si nota cables sueltos, no los toque y avise de inmediato a un electricista. 8. Inspeccione que el vástago de las patas de nivelación tenga una cubierta de lubricante apropiada. Inspeccione si las zapatas de las patas tienen fisuras, pasadores rotos o faltantes o excesiva acumulación de suciedad. 9. Inspeccione los tirantes del mástil y sus pasadores de cierre. Reemplace los componentes faltantes o defectuosos en forma inmediata. Verifique que todos los pernos de ajuste estén debidamente apretados. Revise todas las mangueras y cilindros por si tienen filtraciones. PRECAUCIÓN: USE CINTURÓN DE SEGURIDAD CON UNA CUERDA DE FIJACIÓN PARA EVITAR CAÍDAS CUANDO SUBAA LOS TIRANTES DEL MÁSTIL O TRABAJE EN EL TECHO DE LA SALA DE MÁQUINAS. 10. Inspeccione si los pasadores de la articulación del mástil están sueltos o por fijaciones o pernos faltantes. Reemplace las partes dañadas o faltantes inmediatamente. Revise la lubricación de los pasadores y lubríquelos si es necesario.
  • 76.
    2-34 Operación Sección MD6640 PerforadoraElectrica Para Pozos De Tronadura 11. Inspeccione los cilindros de elevación del mástil por pasadores sueltos o chavetas faltantes, pérdidas de aceite, mangueras dañadas o daños estructurales. Repare o reemplace cualquier componente faltante o dañado inmediatamente. 12. Inspeccione si la estructura del mástil tiene planchas, perfiles o travesaños rotos o doblados, componentes quebrados o faltantes, las cremalleras con apropiada lubricación o excesivo desgaste. Inspeccione escaleras, pasamanos y plataformas por quebraduras o partes faltantes. Repárelas o reemplácelas inmediatamente. 13. Revise que la manguera flexible principal, líneas de lubricación y eléctricas que van del mástil a la unidad de accionamiento de rotación/empuje no tenga interferencias en el mástil, excesivo desgaste o filtraciones. 14. Revise la seguridad de los cables fijos del mástil. Asegúrese que los cables y soportes están en buen estado y sin fisuras, herrajes sueltos o faltantes, o cualquier daño que pueda afectar su efectividad. 15. Cada 160 horas, inspeccione las poleas superiores del winche auxiliar. Todos los pasadores, chavetas y herrajes deben ser asegurados. 16. Revise que el ducto del ventilador de aire filtrado de la sala de máquinas esté libre de obstrucciones. 17. Inspeccione mangueras del colector de polvo por integridad. INSPECCIONES A BORDO 1. Inspeccione si las líneas de lubricación del compresor tienen filtraciones. Corrija cualquier filtración inmediatamente. 2. Revise la condición del filtro de admisión del compresor. Reemplace el cartucho de filtro si es visible la señal roja del indicador de servicio. Vacíe el depósito de polvo y limpie el elemento de prefiltro. Inspeccione el alojamiento y ductos por si hay daños o filtraciones. Repare o reemplace los componentes dañados. 3. Revise el nivel de aceite del tanque de aceite hidráulico. Rellene el depósito al nivel apropiado tal cual se describe en la placa de instrucciones en el tanque. 4. Revise si hay filtraciones en el sistema hidráulico. Corrija todas las filtraciones inmediatamente y limpie todos los derrames de aceite.
  • 77.
    2-35 Operación Sección MD6640 PerforadoraElectrica Para Pozos De Tronadural 5. Si la máquina esta equipada con un lubricador de brocas en la línea de aire principal, revise que el lubricador esté lleno.6. Inspeccione que las estaciones de bombeo de la central de lubricación automática operen correctamente. Revise el suministro de lubricante y cambie o rellene los tambores si es necesario. 6. Inspeccionar las estaciones de bombeo automático de lubricación central para la operación correcta. Chequear el suministro de lubricante; Rellenar tanque como necesario. 7. Cierre y asegure todas las puertas de los gabinetes eléctricos. PRECAUCIÓN: ASUMA QUE TODOS LOS COMPONENTES DENTRO DE LOS GABINETES ELÉCTRICOS ESTÁN ENERGIZADOS. EL SERVICIO DE ÉSTOS COMPONENTES ELÉCTRICOS DEBERÍA SER REALIZADO SOLAMENTE POR PERSONAL ELÉCTRICO CALIFICADO. 8. Inspeccione el radiador y el ventilador del compresor. Revise si hay signos de deterioro o daños en las mangueras, válvulas, uniones, etc. Revise si hay fugas por las uniones. Revise el panal del radiador por si hay bloqueos de polvo, suciedad, hojas, papel, etc., y limpie según sea necesario. 9. Revise si la pantalla de exhibición del operador presenta cualquier falla. 10. Examine la limpieza de la sala de máquinas. Límpiela de toda suciedad o desechos.
  • 78.
    2-36 Operación Sección MD6640 PerforadoraElectrica Para Pozos De Tronadura NOTA: NO UTILICEAIRE COMPRIMIDO PARALIMPIAR LASALADE MÁQUINAS. ELAIRE COMPRIMIDO SOLO MOVERÁ LA SUCIEDAD DE UN LADO A OTRO. USE UNA ASPIRADORAPARAQUITAR LASUCIEDAD. LAFALTADE LIMPIEZAAL INTERIOR DE LA SALA DE MÁQUINAS CAUSARÁ DAÑOS A MUCHOS DE LOS COMPONENTESALLÍ LOCALIZADOS. 11. Inspeccione el winche auxiliar y el cable del winche. 12. Revise el nivel de aceite de la caja de engranajes de la bomba, Rellene con el aceite recomendado a su correcto nivel. 13. Revise que todos los controles operen libremente. Retorne todos los controles a la posición de OFF o INSTALADO. 14. Inspeccione que en la cabina del operador esté todo limpio y ordenado. Elimine toda suciedad o desechos de la cabina. Limpie las ventanas para permitir máxima visibilidad para una apropiada operación. NOTA: NO UTILICEAIRE COMPRIMIDO PARALIMPIAR LACABINA DEL OPERADOR. EL AIRE COMPRIMIDO SOLO MOVERÁ LA SUCIEDAD DE UN LADO A OTRO. USE UNAASPIRADORAPARAQUITAR LASUCIEDAD. 15. Inspeccione si las llaves de herramientas operan libremente, si tiene partes quebradas o faltantes, una apropiada lubricación, tienen pérdidas de lubricante o acumulación de polvo. Repare o reemplace las partes dañadas y limpie la plataforma de perforación. PRECAUCIÓN: ANTES DE TRABAJAR CERCA O BAJO LA UNIDAD DE ACCIONAMIENTO DE ROTACIÓN/EMPUJE, ASEGÚRESE QUE TODOS LOS CONTROLES DE OPERACIÓN ESTÉN DESACTIVADOS Y ROTULADOS Y EL FRENO DE LEVANTE INSTALADO PARA PREVENIR MOVIMIENTOS DE LA UNIDAD. PODRÍAN RESULTAR LESIONES PERSONALES GRAVES O LA MUERTE EN CASO QUE LA UNIDAD DE ACCIONAMIENTO DE ROTACIÓN/EMPUJE CAYERA CUANDO EL PERSONAL ESTÉ TRABAJANDO BAJO O CERCA DE ELLA. 16. Inspeccione si la llave de desconexión automática opera libremente, si tiene partes quebradas o faltantes, una apropiada lubricación, tienen pérdidas de lubricante o exceso de suciedad acumulada. Repare o reemplace las partes que sean necesarias. Asegúrese que la llave está replegada. 17. Inspeccione si el portabarras tiene fisuras o partes faltantes, opera apropiadamente, tiene acumulación de polvo o pérdidas de lubricante. Asegúrese que la compuerta superior esté cerrada y que la unidad está en posición almacenada.
  • 79.
    2-37 Operación Sección MD6640 PerforadoraElectrica Para Pozos De Tronadural 18. Inspeccione si el buje guía tiene desgaste excesivo o acumulación de polvo. Inspeccione también que los ganchos de retención estén asegurados e intactos. No opere la máquina sin que ambos ganchos de retención estén intactos y firmemente soldados a la plataforma. 19. Revise si la columna de perforación tiene excesivo desgaste, acumulación de polvo, barras dobladas y las uniones apretadas. Los conos de la broca y sus rodamientos deberían estar en buenas condiciones. Gire manualmente los conos para asegurarse que rotan libremente. 20. Inspeccione si la caja de engranajes de rotación tiene pérdidas de aceite, líneas dañadas, acumulación de polvo y otros daños o partes faltantes. Revise el nivel de aceite de la caja de engranajes. Rellene al nivel apropiado con el aceite recomendado. Revise si las entradas de ventilación del motor de rotación, tienen hojas, papeles, trapos, etc., bloqueando el flujo de aire. 21. Inspeccione si la unidad de rotación tiene desgaste excesivo o acumulación de polvo. Inspeccione si los rodillos guías están bien ajustados o tienen mucho desgaste. Revise si hay pernos sueltos o faltantes o miembros estructurales agrietados o torcidos. 22. Inspeccione si la unidad de empuje tiene desgaste excesivo o acumulación de polvo. Inspeccione si los piñones de cremallera están gastados, bien lubricados y con los pernos de retención bien apretados. Inspeccione el apropiado ajuste de los rodillos guía y si tienen excesivo desgaste. 23. Inspeccione si la caja de engranajes de empuje tiene pérdidas de aceite o acumulación de polvo u otros daños o piezas faltantes. Revise el nivel de lubricante de la caja. Rellene al nivel recomendado con un lubricante de engranajes aprobado. Revise las entradas de la ventilación del motor de empuje por si hay hojas, papeles, trapos, etc., bloqueando el flujo de aire. 24. Revise la debida operación del freno de levante. 25. Revise si el deflector de polvo o partículas tiene piezas sueltas o faltantes, desgaste excesivo o acumulación de polvo. El deflector debería estar sellando firmemente alrededor de la barra de perforación. 26. Si la máquina está equipada con sistema de supresión de incendios, realice una inspección o revisión tal cual lo describa el manual del fabricante. 27. Si la máquina está equipada con un sistema colector de polvo, inspeccione el color del filtro deshidratante. Cambiar desecante si es necesario.
  • 80.
    2-38 Operación Sección MD6640 PerforadoraElectrica Para Pozos De Tronadura LUBRICATIÓN ANTES DE MEPEZAR La Lubricación es un trabajo extremadamente importante. La mayoría de las Perforadoras vienen equipadas con sistemas de lubricación automáticos, que lubrican la mayoría de los puntos necesarios a intervalos regulares. Estos sistemas, aunque sean automáticos, no son a prueba de fallas. Tuberías quebradas, lubricante sucio, y una gran cantidad de otros problemas pueden causar que pierdan lubricación los componentes de desgaste. Por esta razón, es importante que todos los puntos de lubricación sean inspeccionados en cada turno, para ver que estén recibiendo lubricante. Al mismo tiempo, existen varios puntos de lubricación que reciben infrecuentemente lubricación, o que en forma automática esta no sea posible. Estos puntos deberán ser lubricados manualmente. Las Tablas de Lubricación en la Sección 3 de este manual proveen la ubicación y frecuencia de lubricación. ARRANQUE El arranque de la perforadora no es una operación difícil, pero sí muy importante. Una arranque impropio podría causar varias dificultades en la operación y seguridad, así como daños a la máquina. Siguiendo paso a paso el procedimiento de arranque que se muestra a continuación, ayudará a reducir las posibilidades de lesiones accidentales o daños a la máquina. ARRANQUE DE LA MÁQUINA NOTA: LAMÁQUINADEBE SER PUESTAEN MARCHASOLO DESPUÉS QUE SE HAYA COMPLETADO LA INSPECCIÓNANTES DELARRANQUE Y LA LUBRICACIÓN, TAL CUAL SE DETALLAAL INICIO EN ESTA SECCIÓN. 1. Vaya a la cabina del operador y verifique que todos los controles de la consola del operador están en la posición OFF o neutral. Asegúrese que el botón pulsador de PARADA DE EMERGENCIA, esté en la posición levantada. NOTA: EN ALGUNAS MÁQUINAS HAY DOS O MÁS BOTONES DE PARADA DE EMERGENCIA. ASEGÚRESE QUE TODOS ESTOS BOTÓNES ESTÉN EN LA POSICIÓN LEVANTADA. 2. Vaya a la sala de máquinas, al gabinete de arranque de bajo voltaje. Ponga el interruptor principal del compresor en ON. 3. En el gabinete de bajo voltaje, ponga todos los interruptores en la posición ON.
  • 81.
    2-39 Operación Sección MD6640 PerforadoraElectrica Para Pozos De Tronadural 4. En el gabinete controlador programable verifique que el botón de control de cierre esté en la posición SOLTAR. 5. Presione el botón de arranque del compresor de aire en el gabinete controlador programable, para arrancar el compresor principal. NOTA: SI LATEMPERATURAAMBIENTE ES MENOR QUE 32ºF (0ºC), LAMÁQUINA DEBERÁ USAR NORMALMENTE FLUÍDOS ESPECIALES EN EL SISTEMA HIDRÁULICO Y/O CALEFACTORES PARA EL SISTEMA. Cuando la máquina es detenida temporalmente o por un largo período de tiempo, se debería dejar la máquina con energía para mantener la operación de los calefactores. Si se corta la energía al parar la máquina, los fluidos de la máquina deberían calentarse al menos a 32ºf (0º C), antes de intentar arrancar la máquina. REVISIÓN DE MAQUINARIA La siguiente es una lista de puntos y equipos que deberían ser revisados inmediatamente después del arranque de la perforadora, para una debida operación Si no se encuentran dificultades operacionales durante este procedimiento, probablemente ellos no serán advertidos sino hasta el punto cuando algún sistema o componente deje de funcionar, causando serios daños a la máquina. 1. Revise si hay filtraciones en el sistema principal de aire. 2. Verifique que el ventilador del radiador del compresor de aire esté operando correctamente. Revise si el sistema de enfriamiento tiene alguna filtración. 3. Revise si hay filtraciones en el sistema hidráulico. REINICIO EN COMPONENTES NUEVOS Cuando una máquina es nueva, ingresa a servicio después de un largo período de almacenaje o reingresa a servicio después de reparaciones mayores, se deben tomar ciertas precauciones durante el arranque inicial y por un tiempo después del período de arranque. Estas precauciones son indispensables para asegurar que se cumpla la vida de servicio total de los componentes.
  • 82.
    2-40 Operación Sección MD6640 PerforadoraElectrica Para Pozos De Tronadura REINICIO DE UNIDAD DE TRANSMISIÓN DE ROTACIÓN El reinicio de la caja de engranajes de rotación está limitada a trabajar con carga reducida durante las primeras 100 horas de operación y a un cambio total del aceite luego de dicho período. Este período de rodaje solo aplica en casos de cajas de engranajes nuevas o en aquellas cajas donde se han instalado nuevos engranajes. REINICIO EN CAJA DE ENGRANAJES LEVANTE/EMPUJE El reinicio de la caja de engranajes de levante/empuje está limitada a trabajar con carga reducida durante las primeras 100 horas de operación y a un cambio total del aceite luego de dicho período. Este período de rodaje solo aplica en casos de cajas de engranajes nuevas o en aquellas cajas donde se han instalado nuevos engranajes. REINICIO EN MOTORES ELÉCTRICOS El rodaje de los motores de rotación y levante/empuje se limita a trabajar con carga reducida e inspección durante las primeras 8 horas de operación. Este período de rodaje tiene por objeto detectar cualquier problema en los motores antes que se transformen en daños severos, al motor o la máquina. La inspección debería incluir un monitoreo a la temperatura del motor y a escuchar si hay ruidos inusuales que pudieran indicar algún problema. La inspección también debería incluir la verificación de que todos los orificios de ventilación y aberturas de admisión estén limpios.
  • 83.
    2-41 Operación Sección MD6640 PerforadoraElectrica Para Pozos De Tronadural OPERACIÓN La operación de la perforadora MD6640 es, en principio, igual que la operación de cualquiera otra perforadora de pozos para tronadura. Pero por el solo hecho que la máquina opere igual en principio, no significa que ella opere igual en todos sus aspectos. Por esta razón es importante que el operador se familiarice con la máquina particular que está siendo operada. El propósito de esta sección del Manual de los Operadores, es detallar los procedimientos involucrados en la operación de muchos de los componentes mayores y en la preparación para perforar un pozo. El procedimiento real es detallado a continuación en esta sección. Familiarícese con los controles y aprenda a accionarlos a velocidades reducidas. En la medida que la máquina y los ciclos de perforación se le hagan más familiares, incremente las velocidades gradualmente hasta la máxima capacidad de operación de la máquina. La principal razón de operar lentamente al principio, es la seguridad. Operando a toda velocidad significa que las cosas suceden rápidamente, quizás más rápido de lo esperado. Esas operaciones inesperadas de la máquina pueden fácilmente transformarse en un accidente. Para los propósitos de este manual, asumiremos que la perforadora se ha dejado en la condición apropiada de operación. Si este no fuera el caso, complete las revisiones antes del arranque y arranque la máquina usando los procedimientos que se han reseñado. PROPULSANDO DEFINICIONES “Desequilibrio” es una condición de la geometría de las máquinas, la cual puede ocurrir en vehículos que tienen un eje pivotante y un eje fijo. Esta condición se cumple cuando la maquinaria superior bascula sobre el eje pivotante, levantando un lado del eje fijo. “Basculación” es definido como el punto de inminente vuelco. Una máquina puede bascular hacia atrás sin desequilibrarse primero. Bajo toda otra condición, la máquina se desequilibrará antes de bascularse. “Inclinación de Maniobra” es la pendiente en la cual la máquina puede ser propulsada en cualquier dirección, sin desequilibrarse o bascularse.
  • 84.
    2-42 Operación Sección MD6640 PerforadoraElectrica Para Pozos De Tronadura PROCEDIMIENTOS DE PROPULSIÓN Antes de comenzar la operación de propulsión, el operador debería primero inspeccionar si en la ruta de la trayectoria hay grandes piedras, surcos profundos o contornos irregulares. Cuando trabaje en una pendiente, verifique la inclinación y compárela con los límites de la Inclinación de Maniobra permitida (vea APÉNDICE 5). PRECAUCIÓN: NO INTENTE MANIOBRAR O GIRAR LA MÁQUINA EN PENDIENTES QUE EXCEDAN LA INCLINACIÓN DE MANIOBRA PERMITIDA SIN CONSULTAR PRIMERO LA SECCIÓN ESPECIAL DE PROPULSIÓN. LA OMISIÓN DE SEGUIR ESTAS INSTRUCCIONES PODRÍA PROVOCAR EL VUELCO DE LA MÁQUINA, DAÑANDO EL EQUIPO Y RESULTANDO CON POSIBLES LESIONES SERIAS O LA MUERTE. Se debe monitorear la pantalla nivelación/propulsión del terminal de exhibición del operador durante la propulsión, para asegurarse que no sean excedidos los límites permitidos de estabilidad de la máquina. Cuando se ha verificado que la ruta de la trayectoria está en buenas condiciones, la máquina está ahora lista para ser propulsada. NOTA: ESTAMÁQUINASÓLO DEBERÍASER PROPULSADAPOR LARGOS TRECHOS CON EL MÁSTIL CON COMPLETAMENTE BAJADO, COMPLETAMENTE LEVANTADO Y CERRADO, O CERRADO EN UNA FIJACIÓN DE ÁNGULO DE HOYO. Para desplazamientos largos de 1,000 pies (304.8 metros) o más, o si la máquina se va a propulsar en pendientes que se aproximan a los límites de estabilidad permitidos, se debería desarmar la columna de perforación, bajar la unidad de accionamiento de rotación y bajar el mástil. Esto permite lograr la condición más ESTABLE para una máquina contra basculaciones y también reduce los esfuerzos en la estructura del mástil. Por propulsiones de 1,000 pies (304.8 metros) o mas, la temperatura de los componentes del bastidor debe monitoreada. Los rodillos inferiores, rueda tensora y planetarios de propulsión deberían funcionar debajo de los 95 grados C. El motor de propulsión debería funcionar debajo de 90 grados C. Si estos límites de temperaturas son alcanzados, detener la máquina y dejar que los componentes de la oruga a que se enfríen. Note que la propulsión en baja velocidad disminuye la acumulación de calor en estos componentes. Si durante la propulsión con el MASTIL ABAJO y el CABEZAL ABAJO la máquina comienza a desequilibrarse, ésta continuará desequilibrándose hasta que la maquinaria superior contacte el eje pivotante. La máquina alcanzará su equilibrio cuando la maquinaria superior contacte con el eje pivotante y NO SE VOLCARÁ. Con el mástil y el cabezal abajo, el máximo desequilibrio NO causará el volcamiento de la máquina. Para corregir esta situación, el operador debería intentar propulsar la máquina hacia una área mas nivelada del banco.
  • 85.
    2-43 Operación Sección MD6640 PerforadoraElectrica Para Pozos De Tronadural Todos los valores de estabilidad mostrados, están basados en una máquina totalmente cargada (es decir, tanque lleno de agua, cable en el portacable, dotación completa de barras de perforación y con todos los lubricantes y fluidos para la operación) tal como fue originalmente especificada por el Cliente y embarcadas por Caterpillar Global Mining. La perforadora MD6640 es propulsada utilizando los controles de la consola de la cabina del operador o radio controlada desde la estación de propulsión remota fuera de la máquina. 1. Verifique que el freno de levante esté instalado. Verifique que la columna de perforación esté fijada con la llave de herramienta para prevenir que la tubería se mueva durante la operación de propulsión.Además, verifique que la columna de perforación está elevada en una posición que le impida tocar el suelo cuando se está moviendo la máquina. Verifique que las patas de nivelación estén totalmente recogidas y las cortinas contra polvo estén totalmente levantadas. Revise que la escalera de acceso esté levantada. 2. Mover el interruptor selector de modo operativo a PROPULSION o PROPULSION REMOTA. La propulsión remota es radio controlado. 3. Presione el botón ON de control de perforación/propulsión. La pantalla automática nivelación/ propulsión aparecerá en el terminal de exhibición del operador. Si la propulsión se está efectuando desde la estación de propulsión remota, gire la llave del switch de habilitación a la posición HABILITACIÓN. 4. En la consola de control o estación de propulsión remota, gire el switch selector de propulsión a la posición VELOCIDAD LENTA. NOTA: HAY DOS VELOCIDADES DE PROPULSIÓN DISPONIBLES PARA EL OPERADOR, VELOCIDAD LENTA (MAX = 0.44km/h; 0.27mph) Y NORMAL (MAX = 1.45 km/h; 0.9 mph). PARA LOS OPERADORES INEXPERTOS O PARA MANIOBRAR EN LUGARES ESTRECHOS Y EN MALLAS DE PERFORACIÓN, LA INSTALACIÓN VELOCIDAD LENTA PERMITE UN CONTROL MAS RELAJADO DE LA OPERACIÓN. Cuando los operadores se tornan mas experimentados o cuando la máquina se desplaza de un sitio a otro, se usa la velocidad más rápida o NORMAL. 5. Para avanzar recto hacia delante, levante ambos joysticks para destrabarlos y soltar los frenos de propulsión, luego muévalos ambos lentamente hacia delante. La velocidad se incrementa en la medida que las palancas se mueven hacia delante. Para avanzar recto en retroceso, tire ambos joysticks lentamente hacia atrás. La velocidad se incrementa en la medida que las palancas se bajan.
  • 86.
    2-44 Operación Sección MD6640 PerforadoraElectrica Para Pozos De Tronadura PROPULSIÓN RECTA 6. Para hacer un giro gradual a la derecha, deje el joystick de la derecha en neutro y opere el joystick de la izquierda hacia delante. GIRO GRADUAL A LA DERECHA
  • 87.
    2-45 Operación Sección MD6640 PerforadoraElectrica Para Pozos De Tronadural GIRO GRADUAL A LA IZQUIERDA 7. Para hacer un giro gradual a la izquierda, deje el joystick de la izquierda en neutro y opere el joystick de la derecha hacia delante. 8. Los giros graduales se deben hacer en pasos de 15 grados cada uno. Después de girar la máquina un máximo de 15º, se debe avanzar en línea recta cerca de la mitad de la longitud del equipo para liberar las cadenas de oruga de polvo y rocas. Girando la perforadora en incrementos de más de 15º, someterá a las cadenas de oruga a severos esfuerzos. GIRO CONTRARELOJ A LA IZQUIERDA
  • 88.
    2-46 Operación Sección MD6640 PerforadoraElectrica Para Pozos De Tronadura 9. Para hacer una vuelta bien definida de contra-rotación, empujar hacia adelante la izquierda el joystick y jalar el joystick derecho hacia atrás. Para girar a la izquierda, empujar el joystick derecho hacia adelante y jalar el joystick izquierdo hacia atrás. ASEGÚRESE HACER GIROS GRADUALES EN INCREMENTOS DE 15º PRECAUCIÓN: ASEGÚRESE DE QUE EL GIRO SE DETENGA CADA 15 GRADOS Y QUE LA MÁQUINA SE IMPULSE HACIAADELANTE, O HACIA ATRÁS, AL MENOS DIEZ PIES ANTES DE REANUDAR EL GIRO. LOS GIROS GRADUALES EXTENDERÁN AMPLIAMENTE LA VIDA ÚTIL DE SERVICIO DE LOS RIELES. NOTA: AL USAR EL MÉTODO DE CONTRARELOJ PARAGIRAR, DISPONGADE UN AYUDANTE, QUIEN DEBERÁ VIGILAR QUE EL CABLE ELÉCTRICO NO SE ENREDE Y/O NO SE DESCONECTE DESDE EL ENCHUFE PRINCIPAL O DEL PORTACABLE. NOTA: LAHABILIDAD DE LAMÁQUINADE CONTRA-ROTACIÓN ES DEPENDIENTE EN LA SUPERFICIE EN ELCUALLAMÁQUINASE SEDIMENTA. UNASUPERFICIE BLANDA CAUSARÁ QUE LAS ORUGAS CAVEN Y MÁQUINASEATASQUE. NOTA: LOS FRENOS DE PROPULSIÓN SE LIBERAN CADA VEZ QUE SE LEVANTA CUALQUIER JOYSTICK DE SU POSICIÓN MECÁNICA NEUTRAL, LOS FRENOS SE ACTIVAN CADA VEZ QUE LOS JOYSTICKS VUELVENALAPOSICIÓN NEUTRALY SE SUELTAN.
  • 89.
    2-47 Operación Sección MD6640 PerforadoraElectrica Para Pozos De Tronadural PROCEDIMIENTO DE REMOLQUE 1. Asegure la máquina bloqueando las orugas. 2. Asegure la barra de tiro al vehículo de tiro. PROCEDIMIENTO DE REMOLQUE 3. Amarre una cuerda de disparo a la palanca de la válvula de seguridad de remolque. La válvula está montada en la parte delantera izquierda de la caja de la pata. Haga pasar la cuerda por la caja hacia la barra de tiro y asegúrela en el vehículo de tiro. Si durante el remolque se soltara la barra de tiro, o de la perforadora o del vehículo de tiro, la cuerda de disparo soltará la válvula de seguridad accionando los frenos de propulsión de la perforadora. 4. Desconecte la caja de engranajes de la rueda motriz desde el motor de propulsión, de la siguiente forma: a. Asegúrese que los controles de la bomba de propulsión están en la posición neutral. b. Suelte el tornillo de fijación de la palanca de cambio. c. Tire hacia fuera la palanca de cambio para desenganchar el embrague. d. Apriete el tornillo de fijación de la palanca de cambio.
  • 90.
    2-48 Operación Sección MD6640 PerforadoraElectrica Para Pozos De Tronadura 5. Use la bomba manual montada en la caja de la pata delantera derecha. Bombee hasta que el manómetro ubicado cerca de la bomba, indique 650 PSI (4,482 kPa). NOTA: LA PRESIÓN NUNCA DEBE CAER BAJO 500 PSI (3,450 kPa), LOS FRENOS PODRÍAN TRABARSE PRODUCIÉNDOSE FALLAS PREMATURAS EN LOS MISMOS. NOTA: NO REMOLQUE A VELOCIDADES SUPERIORES A 1.45 KP/H (0.9 MPH). PUEDE OCURRIR UN EXCESIVO CALENTAMIENTO EN LACAJA DE ENGRANAJES PLANETARIOS. 6. Cuando se complete el remolque, invierta el proceso anterior. La presión de la bomba manual se puede aliviar girando la válvula de alivio de la bomba.
  • 91.
    2-49 Operación Sección MD6640 PerforadoraElectrica Para Pozos De Tronadural OPERACIÓN DEL PORTACABLE Cuando el switch del portacable está en la posición AUTO, está diseñado para recoger el cable eléctrico en la medida que la perforadora se mueve hacia su fuente de potencia. No está diseñado para arrastrar el cable sobre el suelo. La tracción del cable es proporcional a la presión de operación. La tracción correcta se obtiene cuando hay suficiente tracción en el cable para enrollarlo en el tambor, pero no demasiado grande como para someter el cable a esfuerzos innecesarios. La velocidad del cable es dependiente del volumen de aceite hidráulico circulando a través del sistema. La velocidad correcta del cable es ligeramente más rápida que la velocidad de desplazamiento de la perforadora. Para operar manualmente el portacable, proceda de la siguiente manera: 1. Eche a andar el motor principal del compresor de aire. 2. Para enrollar el cable eléctrico en el tambor, gire el switch del portacable a la posición ENROLLAR. 3. Para desenrollar el cable eléctrico desde el tambor, gire el switch del portacable a la posición DESENROLLAR.
  • 92.
    2-50 Operación Sección MD6640 PerforadoraElectrica Para Pozos De Tronadura NIVELACIÓN Para nivelar la perforadora, proceda como sigue: 1. Posicione la máquina en la ubicación apropiada para perforar el pozo requerido. Verifique que las zapatas de las patas de nivelación reposarán en suelo sólido. Corte, rellene o reposicionese según se requiera para obtener una base sólida. El ángulo máximo para las zapatas de las patas es de 17º. 2. La modalidad operativa del switch selector debe estar en la posición PERFORAR y el motor del compresor principal debe estar energizado. NOTA: NORMALMENTE, LA MÁQUINA SE DEBERÁ NIVELAR USANDO EL SWITCH DE NIVELACIÓNAUTOMÁTICA, PASO 3. PARANIVELACIÓN MANUALUSE LOS PASOS 4AL 7. 3. Para nivelar la máquina automáticamente verifique que la modalidad operativa del switch selector esté en el modo PERFORACIÓN, gire luego el switch de nivelación automática a la posición EXTENDER y manténgalo en dicha posición. La Pantalla Automática Nivelación/ Propulsión aparecerá automáticamente en el monitor de exhibición del operador. Use la pantalla para monitorear que la perforadora está siendo nivelada. Los cilindros de las patas se extenderán, levantarán y nivelarán la máquina. Cuando la máquina esté levantada y nivelada, suelte el switch y éste retornará mediante resorte a la posición OFF o CENTRAL. Este procedimiento puede ser realizado por el operador, sentado ante la consola principal del operador.
  • 93.
    2-51 Operación Sección MD6640 PerforadoraElectrica Para Pozos De Tronadural 4. Para nivelar la máquina manualmente, use los tres interruptores de la gata y la pantalla automática de nivelación en la terminal de despliegue del operador. El operador usa interruptores de control en la consola de mano derecha y observa la pantalla de despliegue del operador. 5. Baje las cuatro patas de nivelación hasta que descansen en el suelo. Luego, comenzando por el lado mas bajo (izquierdo o derecho) de la perforadora, baje lentamente las patas hasta que el peso de la máquina descanse sobre ellas. Durante esta operación las patas de nivelación deben operarse en pares. Esto evita la torsión de la estructura de la perforadora. Cuando el peso de la máquina está descansando sobre las patas de nivelación del costado mas bajo, baje lentamente las patas de nivelación del lado mas alto hasta que el peso de la máquina descanse sobre ellas. La máquina no necesita ser levantada mucho durante esta operación, ya que el propósito solo es hacer descansar el peso de la máquina sobre las patas. PRECAUCIÓN: DURANTE ÉSTE Y LOS SUBSIGUIENTES ROCEDIMIENTOS DE NIVELACIÓN, ES IMPORTANTE QUE LA PERFORADORA QUEDE LO MÁS CERCA POSIBLE DE SU NIVEL. SE DEBE TENER ESPECIAL CUIDADO CUANDO SE TRABAJA EN PLANOS INCLINADOS. 6. Cuando el peso de la máquina esté descansando sobre las patas de nivelación, la máquina puede ser nivelada. Comenzando por el lado mas bajo de la máquina, baje las dos patas de dicho lado para nivelarla en su eje lateral según se observa en el terminal de la pantalla de exhibición del operador. A continuación, cuando la máquina esté nivelada en su eje lateral, opere los controles de nivelación del extremo mas bajo de la máquina para nivelarla en su eje transversal, según se observa en el terminal de la pantalla de exhibición del operador. 7. Cuando la máquina esté nivelada, asegúrese que el peso no descansa sobre las orugas. El método preferido para hacer esto es levantar la máquina hasta que el punto más cercano de los rodillos inferiores a las orugas sea de 2” a 7” (5.1 a 17.8 cm). Esto asegura que la máquina descansa sobre las patas de nivelación mientras mantiene un bajo centro de gravedad. LEVANTANDO Y BAJANDO EL MÁSTIL El mástil en la perforadora MD6640 permanece normalmente en la posición elevada para la mayoría de las situaciones, incluyendo el desplazamiento de un pozo a otro en una malla de perforación. Bajar el mástil es necesario bajo tres condiciones: 1. Los trabajos de mantenimiento no son posibles o demasiado peligrosos para realizarlos con el mástil arriba. 2. Traslados mayores a 1,000 pies (304 m), donde la perforadora será remolcada entre las posiciones, propulsada a gran velocidad o ser cargada sobre un trailer.
  • 94.
    2-52 Operación Sección MD6640 PerforadoraElectrica Para Pozos De Tronadura 3. Cualquier situación donde se encuentre pendientes pronunciadas. Contacte al Departamento de Servicio de Caterpillar Global Mining si está inseguro sobre las limitaciones de propulsión en pendientes. LEVANTANDO EL MÁSTIL PRECAUCIÓN: LEVANTAR O BAJAR EL MÁSTIL ES UNA TAREA PARA DOS PERSONAS. NO INTENTE LEVANTAR O BAJAR EL MÁSTIL SIN LA ASISTENCIA DE UN AYUDANTE FAMILIARIZADO CON LOS PROCEDIMIENTOS INVOLUCRADOS. PRECAUCIÓN: DURANTE EL PROCEDIMIENTO DE ELEVACIÓN DEL MÁSTIL, EL PERSONAL SE DEBE MANTENER ALEJADO DE LA MÁQUINA Y DEL ÁREA INMEDIATAALREDEDOR DE ELLA, ESPECIALMENTE DE LA PARTE DELANTERA DE LA MÁQUINA. NO SE DEBERÁ PERMITIR A NADIE SOBRE EL MÁSTIL, EL TECHO DE LA CABINA DEL OPERADOR O DE LA SALA DE MÁQUINAS MIENTRAS EL MÁSTIL ESTÁ EN EL AIRE. OMITIR LAADOPCIÓN DE ESTAS MEDIDAS PUEDE SIGNIFICARLA MUERTE O SERIAS LESIONES AL PERSONAL GOLPEADO POR EL MÁSTIL, SI SE CAYERA POR ALGUNA RAZÓN. PRECAUCIÓN: CUANDO SE LEVANTA O SE BAJA EL MÁSTIL, EXISTEN LIMITACIONES DE LONGITUD, DIÁMETRO, ESPESOR DE PARED Y NÚMERO DE BARRAS DE PERFORACIÓN QUE PUEDEN SER ALMACENADAS EN LOS PORTABARRAS. REFIÉRASE A LA CARTA DE LIMITACIONES DEL TAMAÑO DE LAS BARRAS INDICADAS EN EL APÉNDICE ANTES DE INTENTAR SUBIR O BAJAR EL MÁSTIL. LA OMISIÓN DE CUMPLIR CON ESTAS LIMITACIONES, SOBRECARGARÁ EL MÁSTIL, EL SOPORTE DEL MÁSTIL Y EL SISTEMA HIDRÁULICO, CAUSANDO LA POSIBLE PÉRDIDA DE CONTROL DEL MÁSTIL 1. Inspeccione el mástil y la maquinaria exterior para asegurarse que todos los cables, líneas mangueras, etc., estén alejados de la máquina durante el proceso de levante, para prevenir daños a la máquina o a los equipos. Revise que los pasadores de los cilindros del mástil, los pasadores de la articulación, así como los pasadores de los tirantes del mástil, estén en su lugar y asegurados.Asegúrese que en el monitor de pantalla de exhibición del operador no se muestre referencias relacionadas con los pasadores de la estructura “A”. Verifique que la modalidad operativa del switch selector esté en el modo PERFORAR.
  • 95.
    2-53 Operación Sección MD6640 PerforadoraElectrica Para Pozos De Tronadural 2. El motor principal del compresor de aire debe ser energizado. Mover el interruptor selector de operación a la posición del MASTIL/WINCHE. Lentamente alce el mástil alzando y lentamente empujando la palanca de mando del mástil, localizada en la consola de control derecha, hacia adelante. Cuando el mástil alcanza un ángulo de 70 grados comenzará a pasar sobre el centro y comenzara a entrar en la posición vertical por sí mismo. Cautela debería ser usada una vez que el mástil ha pasado sobre centro pues la velocidad del mástil aumentará agudamente. PRECAUCIÓN: EL JOYSTICK DEL MÁSTIL SE DEBE MOVER FUERA DE SU POSICIÓN Y RETORNADO A LA POSICIÓN NEUTRAL MUY LENTAMENTE. ARRANQUES Y PARADAS REPENTINAS PUEDEN CAUSAR DAÑOS AL MÁSTIL Y AL SISTEMA HIDRÁULICO. SEA EXTREMADAMENTE PRECAVIDO CUANDO EL MÁSTIL SE ACERCA A LOS 70º, YA QUE CUANDO EL MÁSTIL SOBREPASE SU CENTRO, SOLO UN LEVE MOVIMIENTO DEL JOYSTICK ES NECESARIO PARA INDUCIR MOVIMIENTO EN EL MÁSTIL. NOTA: PRESTE ESPECIALATENCIÓNALAS MANGUERAS, CABLES Y LÍNEAS QUE CORREN ENTRE EL SOPORTE DEL MÁSTIL Y EL MÁSTIL, PARA PREVENIR DAÑOSALAMÁQUINACUANDO ESTÉ SIENDO LEVANTANDO EL MÁSTIL. DISPONGADE UN AYUDANTE MIRANDO DESDE UNA POSICIÓN SEGURAAL LADO IZQUIERDO DE LAMÁQUINA, CUANDO EL MÁSTIL SE ESTÁ ELEVANDO. 3. Una vez que el mástil esté vertical, mover el interruptor de candado del mástil localizado en la pantalla del mástil en el despliegue del operador a la posición del CANDADO para bloquear el mástil en la posición vertical. La loz de los pernos del mástil cerrados en la pantalla de despliegue del operador se iluminarán cuando el mástil está enllavado en posición correcta. Revuelva el interruptor del cerrojo de la abrazadera del mástil para la posición CERRADA para asegurar el mástil y la abrazadera en la posición vertical. NOTA: ALMOVER ELMÁSTILPARAPERFORACIÓN INCLINADA, EN MÁQUINAS CON MÁSTIL DE 65’ DE LONGITUD (19.8 MTS) O MÁS, LA BARRA DE PERFORACIÓN DEBE SER ALMACENADA EN LOS PORTABARRAS Y EL CABEZAL DE ROTACIÓN BAJADO ASU POSICIÓN MÁS BAJA. 4. Si el mástil debe ser establecido para perforación angular mover el interruptor de bloqueo A- Frame a la posición de DESBLOQUEO para soltar el perno del cerrojo de la pierna de la parte delantera de A-Frame y los pernos de la abrazadera de bloqueo. La lectura (Pernos de A-Frame Desenllavados y el Alfiler de la Abrazadera del Mástil Se Desenllavado) aparecerá en la pantalla de estatus del mástil en pantalla de despliegue del operador.
  • 96.
    2-54 Operación Sección MD6640 PerforadoraElectrica Para Pozos De Tronadura PANTALLA DE ESTATUS DEL MASTIL 5. Comprobar que el interruptor selector de modo de operación está todavía en la posición del mástil /winche, entonces alce y jale la palanca de mando del mástil lentamente hacia atrás. Lentamente baje el mástil para el ángulo deseado de perforación, entonces girar el interruptor de candado de la abrazadera del mástil para la posición CERRADA para asegurar el mástil y la abrazadera en la posición deseada. BAJANDO EL MÁSTIL NOTA: REFIÉRASEALAS PRECAUCIONES INDICADASALCOMIENZO DE ELEVACIÓN DEL MÁSTIL. Para bajar el mástil: 1. Anivelar la máquina. 2. Saque las barras de perforación de la unidad de accionamiento de rotación y almacénelas en el portabarras. Saque la broca y el estabilizador desde la máquina. Limpie la plataforma de perforación de toda herramienta y materiales que pudieran caerse durante el procedimiento de bajada del mástil.Asegure el gancho del winche auxiliar.Asegúrese que el cable del winche auxiliar esté asegurado al mástil. Levante las cortinas contra polvo. Baje la unidad rotación/ empuje a su posición más baja.
  • 97.
    2-55 Operación Sección MD6640 PerforadoraElectrica Para Pozos De Tronadural 3. Revise la condición de los pasadores de la articulación del mástil, las orejas y los pasadores de los cilindros. 4. Si la máquina está instalada para perforación inclinada y el mástil está en un ángulo, proceda según el punto 4. Si la máquina está instalada para perforar vertical, proceda según el punto 5. 5. Girar el interruptor del cerrojo de la abrazadera del mástil para la posición de DESBLOQUEO para soltar los alfileres del cerrojo del mástil, entonces alzar el mástil a la posición vertical. Girar el interruptor del cerrojo deA-Frame a la posición del BLOQUEO para bloquear la pierna frontal delA-Frame. La lectura (Pernos Bloqueados delA-Frame) en el despliegue del operador aparecerá cuándo los pernos del A-Frame están en la posición FIJADA. Ahora proceder al paso 5 para bajar el mástil. 6. Si el perno de fijación del mástil y / o el interruptor de la abrazadera de fijación del mástil no ha sido soltado, girarlos interruptores a la posición de DESBLOQUEO para soltar los pernos. La lectura (Pernos de Mástil Desbloqueados y los Pernos de la Abrazadera del Mástil Desbloqueados) será mostrado en el despliegue del operador cuando los pernos son soltados. 7. Lentamente baje el mástil alzando al levantar y después jalar el joystick hacia atrás.Al alejarse el mástil de la posición vertical, su velocidad aumentará. Suavemente reduzca la velocidad de rebajamiento moviendo el joystick hacia neutral. PRECAUCIÓN: EL JOYSTICK SE DEBE MOVER FUERA DE SU POSICIÓN Y RETORNADO A LA POSICIÓN NEUTRAL MUY LENTAMENTE. ARRANQUES Y PARADAS REPENTINAS PUEDEN CAUSAR DAÑOS AL SISTEMA HIDRÁULICO DEL MÁSTIL. SEA EXTREMADAMENTE PRECAVIDO CUANDO EL MÁSTIL SE APROXIME A SUS DESCANSOS, YA QUE SOLO UN LEVE MOVIMIENTO DE LOS CONTROLES ES NECESARIO PARA CAUSAR MOVIMIENTO EN EL MÁSTIL. POSICIONE EL MÁSTIL SUAVEMENTE EN SUS DESCANSOS PARA PREVENIR DAÑOS AL MÁSTIL O A LA SALA DE MÁQUINAS. NOTA: PRESTE ESPECIALATENCIÓNALAS MANGUERAS, LÍNEAS Y CABLES QUE CORREN ENTRE EL SOPORTE DEL MÁSTILY EL MÁSTIL, PARAPREVENIR DAÑOS A LA MÁQUINA CUANDO SE ESTÁ BAJANDO EL MÁSTIL. DISPONGA DE UN AYUDANTE MIRANDO DESDE UNAPOSICIÓN SEGURAALLADO IZQUIERDO DE LA MÁQUINA, CUANDO EL MÁSTIL ESTÁ DESCENDIENDO. NOTA: NO PERMITA QUE EL MÁSTIL, ESPECIALMENTE SI ESTÁ CERCADE LA HORIZONTAL, DESCIENDAMUY RÁPIDAMENTE. SE PUEDEN OCASIONAR DAÑOS SI EL MÁSTIL GOLPEA MUY FUERTE EN SUS DESCANSOS. 8. Cuando el mástil esté descansando en sus descansos, inspeccione el mástil y el soporte del mástil, para verificar que ninguna manguera, líneas o cable, esté enredado o dañado. Repare en forma inmediata cualquier daño encontrado.
  • 98.
    2-56 Operación Sección MD6640 PerforadoraElectrica Para Pozos De Tronadura OPERACIÓN DE LA MAQUINARIA DE EMPUJE El uso de la maquinaria de empuje es necesario durante el manejo de las herramientas y los procedimientos de perforación. La maquinaria de empuje suministra potencia tanto para levantar como para bajar la unidad de rotación/empuje. La energía es proporcionada a la caja de engranajes de empuje mediante un motor eléctrico. Para operar la maquinaria de levante/empuje, proceda de la siguiente manera: 1. Mueva la modalidad operativa del switch selector a la posición PERFORAR. 2. Gire el switch selector de levante/empuje o a: EMPUJE, LEVANTE RÁPIDO, LEVANTE LENTO, o a PORTABARRAS/UNION DE BARRAS. Para este procedimiento ponga el switch en la posición EMPUJE. Para una revisión de cada posición del switch, refiérase al SWITCH SELECTOR DE VELOCIDAD LEVANTE/EMPUJE. 3. Presionar el botón de control de perforación/propulsión a ENCENDIDO. El indicador de control Habilitado saldrá a la vista en la pantalla de despliegue del operador. 4. Girar el interruptor de frenos de levante a la posición de SOLTADO. El indicador del freno del cabezal habilitado aparecerá en pantalla de despliegue del operador. 5. Gire el reóstato levante/empuje en la dirección levante, para elevar la unidad de rotación/ empuje. Cuanto más hacia la derecha se gire el reóstato, más rápido se elevará la unidad. 6. Gire el reóstato de fuerza de empuje en la dirección empuje, para bajar la unidad rotación/ empuje. Cuánto más hacia la izquierda se gire el reóstato, más rápido bajará la unidad. 7. Cuando las operaciones del izado/levante son completas, coloque el reostato de velocidad de levante/izado a la posición APAGADA y entonces gire el interruptor del freno levante para la posición DETERMINADA. PRECAUCIÓN: CADA VEZ QUE EL REOSTATO DE LA VELOCIDAD LEVANTE/ IZADO/ ESTÁ EN LA POSICIÓN APAGADO, EL INTERRUPTOR DEL FRENO DE LEVANTE DEBE ESTAR EN LA POSICIÓN DETERMINADA PARA IMPEDIR LA UNIDAD ROTATIVA/IZADO DE AVANZAR A RASTRAS HACIAABAJO DEBIDO AL PESO DE LA UNIDAD.
  • 99.
    2-57 Operación Sección MD6640 PerforadoraElectrica Para Pozos De Tronadural OPERACIÓN DEL WINCHE AUXILIAR Para operar el winche auxiliar proceda de la manera siguiente: 1. Poner el interruptor selector del modo de operación en la posición de MASTIL/WINCHE. 2. Para alzar la línea auxiliar del winche, alzar y el joystick del winche, localizado en la consola derecha, hacia adelante. Para detener la línea, devolver el joystick a la posición NEUTRAL. 3. Para bajar la línea del winche auxiliar, levante y mueva el joystick hacia atrás. Para detener la línea, regrese el joystick a la posición NEUTRAL.
  • 100.
    2-58 Operación Sección MD6640 PerforadoraElectrica Para Pozos De Tronadura OPERACIÓN DEL PORTABARRAS La máquina puede ser equipada con uno y hasta cuatro portabarras y, dependiendo del número de portabarras instalados, la configuración y la operación de los portabarras será diferente. En máquinas con un portabarras, el soporte estará en un brazo oscilante ubicado en la posición # 1. En máquinas con dos portabarras, los soportes estarán en brazos oscilantes y se ubicarán en las posiciones # 1 y # 4. En máquinas con tres portabarras, dos de ellos quedarán localizados en un carrusel que oscila hacia fuera y luego se rota. Este carrusel aloja los portabarras en las posiciones # 1 y # 2 como se muestran. El tercer portabarras es un soporte oscilante que quedará en la posición # 4. En máquinas con cuatro portabarras, hay dos carruseles giratorios con dos portabarras cada uno. Los carruseles rotan para poder disponer el uso de cada portabarras. El carrusel izquierdo aloja los portabarras # 1 y # 2 y el carrusel derecho los portabarras # 3 y # 4. El método general de operación de los portabarras es el siguiente: 1. Ponga la modalidad operativa del switch selector en la posición PERFORAR. El compresor de aire principal debe ser energizado. 2. Verifique que la modalidad operativa del switch selector esté en la posición PERFORAR y que el switch selector de velocidad de levante/empuje esté en la posición PORTABARRAS/ UNIÓN DE BARRAS. 3. Seleccione el portabarras deseado. 4. Levantar y mover el joystick del portabarras, localizado en la consola izquierda, fuera de neutral para realizar la operación deseada.
  • 101.
    2-59 Operación Sección MD6640 PerforadoraElectrica Para Pozos De Tronadural OPERACIÓN DEL PORTABARRAS
  • 102.
    2-60 Operación Sección MD6640 PerforadoraElectrica Para Pozos De Tronadura La siguiente secuencia especial es requerida para cada configuración de portabarras: 1. Configuración para un portabarras. a. Gire el switch selector de portabarras a la posición #1. b. Opere el portabarras como se describe bajo los procedimientos generales. 2. Configuración para dos portabarras. a. Si se va a operar el primer portabarras, ponga el switch selector en la posición #1 y opere el portabarras como se describe bajo los procedimientos generales. b. Si se va a operar el segundo portabarras, ponga el switch selector en la posición #4 y opere el portabarras como se describe bajo los procedimientos generales. NOTA: TENGA EXTREMO CUIDADO DE ASEGURARSE QUE UN PORTABARRAS ESTÉ FUERA DE LA TRAYECTORIA Y ASEGURADO EN SU LUGAR ANTES DE OPERAR UN SEGUNDO PORTABARRAS. 3. Configuración para tres portabarras. a. El primer y segundo portabarras son parte de un carrusel y requieren de una secuencia especial de operación. El tercer portabarras es un brazo giratorio standard. Para operar el tercer portabarras, ponga el switch selector en la posición #4 y opere el portabarras como se describe bajo los procedimientos generales. b. La configuración de carrusel de los portabarras uno y dos, requiere de una secuencia especial. La posición #1 del switch selector permitirá que cuando el joystick sea tirado hacia atrás, el carrusel con los portabarras sea girado fuera, sobre el orificio del buje guía. Uno de los portabarras quedará sobre el orificio. La posición # 2 del switch selector permitirá que cuando el joystick sea tirado hacia atrás o empujado adelante, el carrusel rote para poder usar el otro portabarras sobre el orificio. Retornando el switch selector a la posición # 1 y moviendo el joystick hacia delante, retornará el carrusel a la posición de almacenaje. c. Debido a la secuencia de operación, las barras deben sacarse primero del portabarras #1 y luego las del portabarras #2. Cuando se retornen las barras a los portabarras, primero retorne la barra al portabarras #2 y luego al portabarras #1. NOTA: TENGA EXTREMO CUIDADO DE ASEGURARSE QUE UN PORTABARRAS ESTÉ FUERA DE LA TRAYECTORIA Y ASEGURADO EN SU LUGAR ANTES DE OPERAR UN SEGUNDO PORTABARRAS.
  • 103.
    2-61 Operación Sección MD6640 PerforadoraElectrica Para Pozos De Tronadural 4. Configuración para cuatro portabarras. a. La configuración para cuatro portabarras consiste en dos carruseles giratorios con dos portabarras en cada carrusel. Los portabarras #1 y #2 en el carrusel izquierdo y los portabarras #3 y #4 en el carrusel derecho trabajan y son secuenciales igual que en el carrusel de la configuración para tres portabarras. Para el portabarras #3 y #4, la posición #4 del switch selector controla la oscilación hacia fuera del carrusel derecho y en la posición #3 controla la rotación del carrusel. b. Debido a la secuencia de operación, las barras deben ser sacadas primero del portabarras #4, luego del portabarras #3. Cuando se retornan las barras a los portabarras, primero se retorna la barra al portabarras #3 y luego al portabarras #4.
  • 104.
    2-62 Operación Sección MD6640 PerforadoraElectrica Para Pozos De Tronadura MANEJO DE HERRAMIENTAS Esta sección en el Manual del Operador de la MD6640, describe los procedimientos necesarios para cargar, descargar, manejar, armar y desarmar las herramientas de perforación. Los procedimientos detallados en esta sección entienden ser tan universalmente aplicables como sea posible. Es imposible, sin embargo, preparar un procedimiento que tome en cuenta cada uno de los posibles opcionales en las máquinas o las herramientas de los vendedores de productos. Por esta razón es importante que el operador no solo se familiarice con estos procedimientos, sino también con ésta máquina y las herramientas particulares que se estén manejando. CARGA Y DESCARGA DE LAS BARRAS Cargar barras en la perforadora se hace necesario cuando la máquina es nueva y aún no las tiene instaladas o cuando las barras han sido sacadas para recambio o para mantenimiento del mástil. El procedimiento en este manual, diferente a otros procedimientos comúnmente usados, requiere que el mástil esté en posición horizontal o hacia abajo para cargar las barras de perforación. Esto es necesario por razones de seguridad. Este procedimiento, que no es él más conveniente en máquinas donde el cambio de barras debe hacerse con el mástil en posición de perforación, es el más eficiente cuando el mástil está en posición de almacenaje. Una apropiada planificación de mantención y requerimientos de producción versus la vida de las barras, permitirá que usando este procedimiento se reducirán las pérdidas de tiempo de la máquina. Para cargar barras en el mástil, proceda de la manera siguiente: 1. Si el mástil está en posición vertical o de perforación, baje el mástil y almacénelo en los descansos del mástil. Refiérase a los párrafos apropiados en este manual, para ver los procedimientos exactos de operación. 2. Obtenga una grúa con capacidad y alcance suficientes para colocar las barras de perforación en los portabarras con el mástil en la posición de almacenaje. La ubicación normal y apropiada de la grúa es en el lado izquierdo de la perforadora, ya que esto permitirá el alcance más cercano y el mayor ángulo de pluma. PRECAUCIÓN: SIGA TODAS LAS MEDIDAS DE SEGURIDAD APLICABLES CUANDO SE TRABAJA CON GRÚAS Y SUS APAREJOS. DEJAR DE CUMPLIR LOS PROCEDIMIENTOS SEGUROS DE TRABAJO PUEDE CAUSAR UN ACCIDENTE Y CONDUCIR A LA POSIBLE MUERTE O LESION DEL PERSONAL
  • 105.
    2-63 Operación Sección MD6640 PerforadoraElectrica Para Pozos De Tronadural 3. Posicione la barra a ser instalada de forma tal que sea accesible para la grúa. La posición normal de la barra de perforación es al lado izquierdo de la máquina, yaciendo en ángulo recto a la máquina. Esto permite que la grúa levante la barra y gire sin excesivos levantes ni descensos de la pluma. La barra puede estar almacenada sobre bloques en el suelo, o sobre un camión o trailer. PRECAUCIÓN: ASEGÚRESE QUE LA BARRA DE PERFORACIÓN ESTÉ BIEN ASEGURADA CONTRA MOVIMIENTOS INDESEADOS O IMPREVISTOS. NO FIJARLAS APROPIADAMENTE PUEDE CAUSAR DESLIZAMIENTOS DE LAS BARRAS Y CAUSAR LA MUERTE O LESIONES GRAVES AL PERSONAL EN EL ÁREA. 4. La compuerta superior permanece abierta cuando el portabarras está vacío,. Esta función está controlada por un switch de límite, ubicado en el bolsillo inferior del portabarras. 5. Usando estrobos apropiados, fije la grúa a la barra de perforación. La barra debería estar estrobada de tal manera que permanezca horizontal mientras se levanta. Amarre cuerdas guías a la barra. Quite los protectores de los hilos, limpie y lubrique los hilos y las pestañas de cada extremo de la barra. Instale una campana de levante en el extremo macho (superior) de la barra de perforación. Levante la barra hacia su posición sobre el mástil. 6. Usando la cuerda guía, guíe la barra hacia el portabarras deseado. Ponga cuñas de bloque entre las barras para permitir retirar los estrobos de la barra. PRECAUCIÓN: ASEGURE LAS BARRAS FIRMEMENTE PARA PREVENIR QUE SE MUEVAN INESPERADAMENTE 7. Saque los estrobos de la barra. Fije un estrobo a la campana de levante en el extremo macho de la barra y levante la barra lo suficiente para retirar los bloques. 8. Deslice la barra hacia la parte baja del portabarras hasta hacerla descansar en el fondo del bolsillo. Deje la barra en el portabarras y retire los estrobos y la campana de levante. 9. Cuando la barra descanse en el fondo del bolsillo, ésta gatillará el switch límite y cerrará la compuerta superior. 10. Repita el mismo procedimiento para las siguientes barras de perforación. 11. Descargar las barras es el procedimiento inverso al usado para cargarlas.
  • 106.
    2-64 Operación Sección MD6640 PerforadoraElectrica Para Pozos De Tronadura ENSAMBLAJE DE LA COLUMNA DE PERFORACIÓN La herramienta de perforación consiste en una o más secciones de barras de perforación, un estabilizador (collar de perforación) y una broca. Al ensamblar la herramienta de perforación, el estabilizador es el primer componente instalado, luego una sección de barras de perforación y por último la broca. Para instalar el estabilizador proceda como sigue: 1. Ponga el estabilizador a ser instalado en una posición que sea accesible a la línea del winche auxiliar. Limpie y lubrique los hilos y las pestañas de cada uno de los extremos del estabilizador. Instale una campana de levante en el extremo macho (superior) del estabilizador y levántelo hasta la plataforma de perforación con la línea del winche auxiliar.Asegure el estabilizador en forma horizontal sobre bloques suficientes para dejarlo a una altura no mayor de 8 a 10 pulgadas sobre la plataforma de perforación. Retire la línea del winche auxiliar. 2. Quite el buje guía desde el orificio de la plataforma de perforación. Ponga el buje guía en el extremo superior del estabilizador con el lado cónico del buje hacia el extremo inferior (caja) del estabilizador. Reenganche la línea del winche auxiliar a la campana de levante. 3. Instale el estabilizador y el buje guía en el orificio de la plataforma de perforación. Asegúrese de que el buje guía quede correctamente asentado. Baje el estabilizador hasta que las ranuras en el estabilizador queden alineadas con la llave de herramientas. Extienda la llave de herramientas para sostener el estabilizador en posición. 4. Retire la línea del winche auxiliar del estabilizador y asegúrela donde no moleste. Saque la campana de levante y guárdela. COLUMNADE HERRAMIENTAS
  • 107.
    2-65 Operación Sección MD6640 PerforadoraElectrica Para Pozos De Tronadural NOTA: EL USO DE ESTABILIZADORES QUE HAYAN SIDO MODIFICADOS O QUE NO PERMITAN QUE SE APLIQUE ESTE PROCEDIMIENTO, DEBEN SER EVITADOS. EL USO DE ESTABILIZADORES FUERA DE ESTÁNDAR HARÁN QUE EL MONTAJE Y DESMONTAJE DE LACOLUMNADE HERRAMIENTAS SEA DIFICIL Y PELIGROSA. INSTALACIÓN DEL ESTABILIZADOR
  • 108.
    2-66 Operación Sección MD6640 PerforadoraElectrica Para Pozos De Tronadura Para instalar una sección simple de barra de perforación, proceda como sigue: 1. Baje la unidad de rotación/empuje hasta que el acoplamiento de barras de la unidad pueda ser alcanzado desde la plataforma de perforación. Instale el freno de levante y oprima el botón OFF de control perforar/propulsión. Limpie los hilos internos del acoplamiento, para remover cualquier suciedad o lubricante viejo. Aplique una capa de compuesto para hilos de barras a los hilos y pestañas del acoplamiento. NOTA: USE SOLO COMPUESTO ESPECIAL PARA HILOS EN LAS BARRAS DE PERFORACIÓN. ESTE COMPUESTO CONTIENE MATERIALES QUE EVITAN ELAGRIPAMIENTO Y DESGASTE DE LOS HILOS BAJO LAS SEVERAS PRESIONES QUE SE PRODUCEN EN DICHO SECTOR. 2. Presione el botón de control HABILITAR y suelte el freno levante. Alce la unidad rotativa / izado a una posición de mástil para despejar el portabarras al venir esta a su posición. 3. Verifique que el motor del compresor principal/ bombas hidráulicas esté operando, el switch selector de la velocidad de levante/empuje esté en la posición PORTABARRAS/UNIÓN DE BARRAS, la modalidad operativa del switch selector en la posición PERFORAR, y que en el terminal de exhibición del operador se indique que el cabezal está alejado del portabarras. Ponga el switch selector del portabarras en la posición # 1. El joystick del portabarras controlará ahora solo el portabarras #1. 4. Levantar y mover el joystick hacia adelante (sobre la POSICION del HOYO) para mover el portabarras sobre el hoyo. Una vez que el portabarras este sobre el hoyo, regresar el joystick a su posición NEUTRAL. 5. Suelte el freno de levante y baje la unidad de rotación/empuje hasta aproximadamente 1 pie (30 cm), sobre el extremo superior de la barra de perforación. Reinstale el freno de levante. 6. Gire el reóstato de rotación hacia la derecha, hasta que el acoplamiento de la unidad de rotación comience a girar a aproximadamente 5 R.P.M., según se muestra en el terminal de la pantalla de exhibición del operador. Suelte el freno de levante y baje cuidadosamente la unidad de accionamiento de rotación hasta que el acoplamiento contacte la barra de perforación. Permita que la unidad de rotación/empuje baje por gravedad, mientras el acoplamiento se enrosca a la barra.
  • 109.
    2-67 Operación Sección MD6640 PerforadoraElectrica Para Pozos De Tronadural 7. Cuando la barra de perforación comience a girar con el acoplamiento giratorio, detenga el movimiento de rotación y revise la unión entre el acoplamiento y la barra. Las pestañas de la barra de perforación y del acoplamiento deben estar unidas. Si hay un espacio entre las pestañas, será necesario apretar la unión un poco más antes de sacar la barra del portabarras. Si las pestañas de la barra y el acoplamiento están en contacto, la unión está acabada. PRECAUCIÓN: LOS HILOS EN LA BARRA DE PERFORACIÓN SON CÓNICOS PARA HACER MÁS FÁCIL EL ARMADO Y DESARMADO DE LAS BARRAS. LOS HILOS ESTÁN DISEÑADOS PARA SOLTARSE DESPUÉS DE UNOS POCOS GIROS DE LA BARRA. LA OMISIÓN DE OBTENER EL CONTACTO ENTRE LAS PESTAÑAS PUEDE RESULTAR EN EL DESACOPLAMIENTO DE LA UNIÓN Y QUE LA BARRA SE CAIGA DE LA UNIDAD DE ROTACIÓN/EMPUJE. No se han tomado medidas para mantener la barra fija en el portabarras mientras la unión se está apretando. Si la unión no se aprieta usando el procedimiento descrito, puede ser necesario aplicar una ligera fuerza de levante a la unidad de rotación/empuje para subirla levemente y quitar la presión desde los hilos de la barra. PRECAUCIÓN: NO LEVANTE LA BARRA DE PERFORACIÓN. LEVANTE LA UNIDAD DE ROTACIÓN/EMPUJE SOLO LO SUFICIENTE COMO PARA ALIVIAR LA PRESIÓN SOBRE LOS HILOS. LEVANTANDO LA UNIDAD LO SUFICIENTE COMO PARA LEVANTAR LA BARRA, NO SOLO APLICARÁ PRESIÓN EN EL OTRO LADO DE LOS HILOS SINO QUE ADEMÁS PUEDE PERMITIR QUE SE ABRA LA PUERTA SUPERIOR DEL PORTABARRAS. SI LA UNIÓN SE DESACOPLARA EN ESE MOMENTO, LA BARRA PUEDE CAERSE DESDE EL PORTABARRAS, CAUSANDO MUERTE, SEVERAS LESIONES O SERIOS DAÑOS A LA MÁQUINA. Si la unión de las barras no se completa aliviando el peso de la unidad de accionamiento sobre los hilos, será necesario inspeccionar y/o reparar los hilos del acoplamiento de rotación y de la barra de perforación. Inspeccione si los hilos tienen superficies ásperas o rebabas y aplíqueles una abundante capa de compuesto para hilos. Los hilos deberían tener una superficie suave, sin rebabas o suciedad que pongan obstáculo al acoplamiento, Las pestañas también deberían estar limpias y suaves y deberían tener compuesto aplicado. Después de limpiar y reparar los hilos trate de realizar nuevamente el acoplamiento. Si no se puede realizar la unión, tanto las barras como el acoplamiento están defectuosos. Reemplace la barra o el acoplamiento según sea necesario. 8. Cuando se haga la unión de la barra con el acoplamiento, la barra queda lista para ser levantada fuera del bolsillo del portabarras. Levante la barra aproximadamente un pié sobre el borde del bolsillo para permitir que el portabarras oscile hacia fuera. Instale el freno de levante.
  • 110.
    2-68 Operación Sección MD6640 PerforadoraElectrica Para Pozos De Tronadura 9. Cuando la barra ha sido levantada fuera del portabarras, gire el portabarras a la posición ALMACENAR al levantar y empujar el joystick hacia delante a la posiciónALMACENAR. NOTA: VERIFIQUE QUE LA COMPUERTA SUPERIOR DEL PORTABARRAS ESTÉ ABIERTA ANTES DE RETRAER EL PORTABARRAS. AL RETRAER EL PORTABARRAS CON LA PUERTA CERRADA CAUSARÁ DAÑOS AL PORTABARRAS. 10. Una vez que el portabarras ha sido almacenado, la barra se debería limpiar usando el aire de barrido. Retire a todo el personal del área y aplique aire de barrido por un instante. Después de limpiar la barra, limpie y lubrique los hilos y las pestañas del extremo inferior de la barra de perforación y del extremo superior del estabilizador. PRECAUCIÓN: ANTES DE TRABAJAR AL REDEDOR DE LA CUERDA DE LA HERRAMIENTA,AJUSTAR EL FRENO DE LEVANTE. PRESIONAR EL BOTÓN DE CONTROL HABILITAR. 11. Suelte el freno de levante y baje la unidad de rotación/empuje hasta que la barra de perforación queda aproximadamente a 30 cm. sobre el extremo superior del estabilizador. Reinstale el freno de levante. 12. Gire el reóstato de rotación hacia la derecha, hasta que la barra de perforación comience a girar a aproximadamente 5 R.P.M. según se muestra en el terminal de la pantalla de exhibición del operador. Suelte el freno de levante y baje cuidadosamente la unidad de rotación hasta que el acoplamiento contacte el estabilizador. Permita que la unidad de rotación continúe bajando por gravedad, mientras la barra de perforación se enrosca al estabilizador. 13. Cuando el estabilizador comience a girar con la barra de perforación, revise la unión entre el estabilizador y la barra. Las pestañas de la barra de perforación y del estabilizador deben estar unidas. Si hay un espacio entre las pestañas, será necesario apretar la unión un poco más antes de soltar el estabilizador. Si las pestañas de la barra y el estabilizador están en contacto, la unión ha sido acabada. La instalación de la broca de perforación es el último paso en la preparación de la columna de perforación. Para instalar la broca, proceda como sigue: 1. Levante el conjunto completo barra de perforación/estabilizador unos 2 a 3 pies (60 a 90 cm.) desde la plataforma de perforación. Ponga el canasto de la broca (proporcionado con la máquina) dentro del orificio que dejó el buje guía en la plataforma de perforación. Retire a todo el personal de la plataforma de perforación y del área inmediata. Active el flujo principal de aire comprimido para eliminar cualquier contaminante de la barra de perforación y del estabilizador.
  • 111.
    2-69 Operación Sección MD6640 PerforadoraElectrica Para Pozos De Tronadural 2. Ponga la broca dentro del canasto de la broca. Cubra los hilos y las pestañas de la broca y del estabilizador con compuesto de hilos de barra de perforación. 3. Gire el reóstato de rotación hacia la derecha, hasta que la columna de herramientas comience a girar a aproximadamente 5 R.P.M. según se muestra en el terminal de la pantalla de exhibición del operador. Suelte el freno de levante y baje lentamente la unidad de rotación/ empuje y la columna de herramientas sobre la broca Baje la unidad de accionamiento en pequeños incrementos hasta que los hilos encastren y el estabilizador comience a enroscarse solo en la broca. Tan pronto como los hilos comiencen a unirse, instale el freno de levante y deje que el estabilizador se atornille solo en la broca. 4. Cuando la unión está apretada, la unidad de rotación se detendrá lentamente y el manómetro de carga de rotación indicará un aumento de carga. En ese momento, gire el reóstato de rotación a la posición NEUTRAL. 5. Después de realizar la unión de la broca con el estabilizador, levante la unidad de rotación para permitir sacar el canasto de broca. Retire el canasto de broca y guárdelo en un lugar seguro. 6. Baje la cadena de herramienta completada para que el buje guía sea asentado en el hoyo de la cubierta de la perforadora. Ajustar el freno de levante y presionar el botón de control de HABILITACION. La cadena de herramienta esta ahora completa para perforación de paso simple o para la primera de múltiples pasadas de perforación. OPERACIÓN DE LA LLAVE DE DESCONEXIÓN PRECAUCIÓN: AL TRABAJAR CON LA LLAVE DE RUPTURA QUE ES IMPORTANTE QUE EL FRENO LEVANTE ESTÉ ENGANCHADO, EL BOTÓN DE CONTROL HABILITADO ES APAGADO PARA PREVENIR OPERACIONES DE CONTROLES DE LEVANTE O ROTACIÓN. EL FRACASADO PARA SEGUIR ESTA PRECAUCIÓN PUEDE CONDUCIR A LOS CONTROLES SIENDO ENERGIZADO MIENTRAS QUE PERSONAL ESTÉ EN EL ÁREA, CONDUCIENDO A LA MUERTE O LESIÓN SERIA DEL PERSONAL. La operación de la llave de desenroscar se aplica cada vez que una unión de barras, excepto en la unión con el acoplamiento giratorio, deba ser abierta. Esto incluye sacar la broca, el estabilizador o separar dos secciones de barras de perforación.
  • 112.
    2-70 Operación Sección MD6640 PerforadoraElectrica Para Pozos De Tronadura Para abrir una unión con la llave de desenroscar, proceda como sigue: 1. Si una acoplador de tubo entre secciones de tubería o entre el estabilizador y la tubería debe ser quebrada, alinear las ranuras en la tubería inferior para ser quebrado con las mandíbulas de la llave de herramienta. Cerrar la llave de herramienta al girar el interruptor de control de la llave de herramienta a la posición de ENGANCE.Asegurar que la herramienta inferior este firmemente asegurada por la llave de herramienta y que las ranuras o planas de la herramienta estén alineadas con la llave de herramienta. PRECAUCIÓN: TODO EL PERSONAL DEBE SER RETIRADO DE LA PLATAFORMA DE PERFORACIÓN CUANDO SE OPERA CON LA LLAVE DE DESENROSCAR. 2. Para abrir la unión, gire y mantenga el switch de la llave de desenroscar en la posición EXTENDER. Las mandíbulas de la llave de desenroscar deberían amordazar la herramienta superior y girarla, mientras la herramienta inferior se mantiene fija con la llave de herramientas. Suelte el switch de la llave de desenroscar. 3. Cuando la unión ha sido abierta, repita el ciclo 2 o 3 veces para soltar suficientemente la unión y para que se le permita a la unidad de rotación terminar el desarmado. 4. Gire y mantenga el switch de la llave de desenroscar en la posición RECOGER, hasta que la llave de desenroscar suelte la parte superior de la barra y se mueva fuera de ella. 5. Utilizando la unidad de rotación, continúe con el desmontaje de la unión. Refiérase a los tópicos apropiados para el exacto procedimiento de operación. PRECAUCIÓN: LA UNIÓN DEBE DESACOPLARSE LIBREMENTE AL USAR LA UNIDAD DE ROTACIÓN. SI LA UNIÓN NO SE SUELTA LIBREMENTE, REPITA EL PROCEDIMIENTO USANDO LA LLAVE DE DESENROSCAR HASTA REALIZARLA. OBSERVE CONSTANTEMENTE LA UNIÓN ENTRE EL ACOPLAMIENTO GIRATORIO Y LA PRIMERA SECCIÓN DE LA BARRA CUANDO TRABAJE EL MOVIMIENTO DE ROTACIÓN EN REVERSA. SI LA UNIÓN COMIENZA A DESACOPLARSE, PARE INMEDIATAMENTE EL MOVIMIENTO DE ROTACIÓN Y REAPRETE LA UNIÓN. SI LA UNIÓN SE DESACOPLA, LA BARRA SE CAERÁ, CAUSANDO POSIBLEMENTE LA MUERTE O SEVERAS LESIONES AL PERSONAL. 6. Si la herramienta inferior es la broca, asegure la broca con el canasto de la broca, tal cual se describe en el párrafo SACAR LA BROCA. Opere la llave de desenroscar como se describe mas arriba, excepto por el hecho que la herramienta inferior (broca) está asegurada por el canasto de broca, no por la llave de herramientas.
  • 113.
    2-71 Operación Sección MD6640 PerforadoraElectrica Para Pozos De Tronadural DESARME DE LA COLUMNA DE PERFORACIÓN La columna de herramientas se desarma en la forma opuesta al ensamble, es decir, se saca primero la broca, luego las barras de perforación y por último el estabilizador. Para sacar la broca de la columna de herramientas, proceda como sigue: 1. Levante la columna de herramientas 2 o 3 pies (60 o 90 cm.) sobre la plataforma de perforación. Instale el canasto de la broca en el orificio de la plataforma de perforación. 2. Usando la llave de desenroscar, abra la unión entre el estabilizador y la broca. Después de abrir la unión, use fuerza de rotación para desarmar la unión. Use una pequeña fuerza de levante para elevar la columna de herramientas fuera de la broca, para facilitar el desarmado. 3. Levante la columna de herramientas 2 o 3 pies (60 o 90 cm.) sobre la plataforma de perforación. Asegure la unidad de rotación/empuje y los controles. Fije una campana de levante a la broca. Fije la línea del winche auxiliar a la campana de levante y saque la broca del canasto de la broca. 4. Después de remover la broca, se puede instalar una nueva broca o retirar el canasto de broca para permitir sacar las barras de perforación. Para sacar las barras de perforación de la unidad de rotación, proceda como sigue: 1. Bajar la cuerda de la herramienta hasta las ranuras o planas en el lado superior del estabilizador estén alineados con la llave de herramienta. Asegurar con abrazaderas el estabilizador en la llave de herramienta. Usar la llave de ruptura para quebrar los acoplamientos entre el estabilizador y el tubo de perforación.Después de romper la juntura, use la unidad rotativa para desensamblar completamente el acoplamiento.Alce la unidad rotativa / izado y la tubería del perforación de 2 a 3 ft (0.6 a 0.9 m). 2. Presione el botón de control HABILITADO a la posición APAGADA y determinar el freno de levante. Vaya a la cubierta de la perforadora y limpie la cavidad del portabarras que sera usado de cualquier suciedad, recortes o cualquier material que interferirá con la entrada de la tubería o la operación de controles del portal del portabarras. Compruebe que los controles del portón están intactos. 3. Limpie y lubrique los hilos y pestañas de la parte inferior de la barra. Esto es para prevenir la corrosión cuando esté alojada en el portabarras. Después de realizar esta función, regrese los controles a condiciones de operación. 4. Después de seleccionar el portabarras a ser usado girando el switch selector de portabarras a #1 o #4, gire el portabarras sobre el orificio central. Luego retorne el joystick a la posición NEUTRAL.
  • 114.
    2-72 Operación Sección MD6640 PerforadoraElectrica Para Pozos De Tronadura 5. Baje lentamente la unidad de rotación/empuje y ponga el extremo inferior de la barra dentro del bolsillo del portabarras. Asegúrese que la barra quede firmemente asentada en el fondo del bolsillo. 6. Gire rápidamente el reóstato de rotación hacia la izquierda (contrareloj) hasta aproximadamente la mitad de la velocidad total. La unión debería abrirse en el acoplamiento giratorio. NOTA: SI LAUNIÓN NO SE ABRE INMEDIATAMENTE, RETORNE EL REÓSTATO DE ROTACIÓN A LA POSICIÓN CERO, PARA REDUCIR LA POSIBILIDAD DE DAÑOS AL MOTOR POR ATASCAMIENTO. 7. Si la unión no se abre, será necesario graduar las ranuras sobre la barra de perforación de forma de permitir que la unidad de rotación tome velocidad antes de detener la barra de perforación. Esto se hace girando la barra de perforación en la dirección adelante hasta que las ranuras de la barra queden casi alineadas con las uñas en el manguito. Esto permite que la barra gire casi media vuelta antes de ser frenado por las uñas. Si la juntura no se quiebra en un segundo intento, la cuerda del taladro necesitará ser reensamblado, un hueco taladrado hacia abajo y entonces usar la llave de ruptura para romper la juntura. 8. Cuando se abra la unión, suba levemente la unidad de rotación/empuje a medida que la unión se va desenroscando. 9. Cuando la unión se desenrosque completamente, la barra caerá en el fondo del bolsillo del portabarras. La puerta superior se cerrará automáticamente alrededor de la barra de perforación. Cuando la unión es completamente desenroscada, levante la unidad de rotación/ empuje hasta una posición que no interfiera con el movimiento del portabarras. Instale el freno de levante. 10. Oscile el portabarras hasta la posición de almacenaje. Para quitar el estabilizador, proceda de la siguiente manera: 1. Con el estabilizador aún amordazado en las llaves de herramientas, instale una campana de levante en la parte superior del estabilizador. Fije la línea del winche auxiliar a la campana de levante y levante el estabilizador y el buje guía desde el orificio de la plataforma de perforación. Bloquee este ensamblaje en posición vertical. 2. Retire la línea del winche auxiliar del estabilizador. Saque el buje guía del estabilizador y reinstale la línea del winche auxiliar al estabilizador. 3. Usando la línea del winche auxiliar, retire el estabilizador desde la perforadora. Reinstale el buje guía en el orificio de la plataforma de perforación.
  • 115.
    2-73 Operación Sección MD6640 PerforadoraElectrica Para Pozos De Tronadural AGREGANDO BARRA DE PERFORACIÓN ADICIONAL La instalación de secciones adicionales de barras de perforación se hace necesario cuando la profundidad del pozo va a ser más grande que el largo total de una sección de barra. La instalación de una segunda o tercera sección de barra, es básicamente el mismo proceso que la instalación de la primera. Se levanta la unidad de rotación/empuje sobree el portabarras, se desplaza un portabarras con barra hasta el centro del orificio, se enrosca el acoplamiento giratorio a la barra, se saca la barra del portabarras y se almacena el portabarras. Para instalar una sección adicional de barra de perforación, proceda de la siguiente manera: 1. Se debería perforar la primera parte del pozo tan profundo como sea posible con la primera sección de barra. El pozo debería ser perforado suficientemente profundo para colocar la unión entre la unidad de rotación y la parte superior de la primera sección de barra de perforación a nivel con las llaves de herramienta. Después de completar esta sección del pozo, apague el caudal de aire principal. 2. Alce la cuerda de la herramienta hasta que las ranuras o planas en la parte superior de la primera sección de tubería estén alineadas con la llave herramienta. Sujete la llave herramienta firmemente alrededor de la tubería de perforacion. 3. Gire rápidamente el reóstato de rotación hacia la izquierda (contrareloj) aproximadamente hasta la mitad de la velocidad total. El acoplamiento giratorio debería girar, abriendo la unión entre la barra y el acoplamiento. NOTA: SI LA UNIÓN NO SE ABRE INMEDIATAMENTE, DEVUELVA EL REÓSTATO DE ROTACIÓN A LA POSICIÓN CERO, PARA REDUCIR LA POSIBILIDAD DE DAÑOS AL MOTOR POR ATASCAMIENTO. 4. Si la juntura no se quiebra, use la llave de ruptura para romper la juntura. 5. Cuando se abra la unión, aplique suficiente potencia de levante para elevar la unidad de rotación/empuje a medida que la unión se va desenroscando. No demasiada potencia como para levantar la llave de herramientas y provocar que ésta pierda su agarre sobre la barra. Cuando la unión está totalmente desacoplada, levante la unidad de rotación/empuje hasta una posición que haga accesibles el acoplamiento desde la plataforma de perforación. Instale el freno de levante, empuje el botón OFF de control de perforar/propulsión para prevenir operaciones. Limpie y lubrique los hilos y pestaña del acoplamiento giratorio. Use un compuesto aprobado para hilos de perforación en los hilos y pestaña. Después de limpiar y lubricar el acoplamiento, levante la unidad de rotación a una posición sobre los portabarras de forma tal que no sea chocado por las barras o el portabarras cuando este oscile para posicionarse sobre el buje central. 6. Posicione el portabarras e instale la nueva sección de barra a la unidad de rotación.
  • 116.
    2-74 Operación Sección MD6640 PerforadoraElectrica Para Pozos De Tronadura 7. Cuando la nueva sección de la barra se fije a la unidad de rotación y el portabarras almacenado, baje la barra hasta que quede cerca de tres pies (90 cm.) sobre la plataforma de perforación. Instale el freno de levante. Ponga una cubierta sobre los hilos de la barra que está sujeta por la llave de herramientas. Retire a todo el personal del área y active el caudal de aire principal para soplar cualquier suciedad desde el interior de la barra acoplada a la unidad de rotación. Después de apagar el caudal de aire, saque la cubierta de la barra inferior, limpie y lubrique los hilos y pestañas, tanto el extremo macho de la barra inferior como los hilos del extremo hembra de la barra superior. 8. Después de limpiar y lubricar los hilos, mueva el reóstato de rotación hasta que la columna gire a aproximadamente 5 R.P.M., como se muestra en el terminal de la pantalla de exhibición del operador. Baje lentamente la unidad de rotación/empuje por gravedad hasta que los hilos lleguen a contactarse. Cuando los hilos comiencen a enroscar las dos barras, intente aminorar la presión sobre los hilos, permitiendo que la unión se cierre de forma suave, mientras sujeta la barra superior en posición con el freno de levante, permita luego que la barra superior descienda ligeramente pero sin que la llave de herramientas pierda el agarre que tiene sobre la barra inferior. Cuando la unión está apretada, detenga el movimiento de rotación. NOTA: ASEGÚRESE DE QUE LAUNIÓN SE HAGAAPROPIADAMENTEANTES DE INTENTAR SOLTAR LAS MORDAZAS DE LA BARRA INFERIOR. SI LA UNIÓN NO ESTUVIERA HECHA APROPIADAMENTE Y FALLA, LA BARRA INFERIOR CAERÁ DENTRO DEL POZO Y SERÁ DIFÍCIL DE RECUPERAR. 9. Desembrague la llave herramienta y repliéguela completamente. La segunda sección de tubería está ahora instalado. Para instalar la tercera sección de barra, siga las instrucciones usadas para instalar la segunda sección, excepto por el hecho que la tercera sección quedará instalada entre el acoplamiento giratorio y la segunda sección de barra.
  • 117.
    2-75 Operación Sección MD6640 PerforadoraElectrica Para Pozos De Tronadural REMOCIÓN DE SECCIONES MÚLTIPLES DE BARRAS DE PERFORACIÓN El desarme de secciones múltiples de columna de perforación es esencialmente lo mismo que desarmar una sección simple. La diferencia está en que en vez de sujetar el estabilizador con la llave de herramientas, será la primera o segunda sección de barra. La columna de herramientas se desarma en el orden opuesto al ensamblaje. Primero, la última sección de barra instalada, seguida por la segunda sección de barra instalada y luego la primera. En cada caso, la sección inferior de la barra es sujetada por la llave de herramientas, mientras la unión es abierta por la llave de desenroscar. La unión es entonces desacoplada por el movimiento de la unidad de rotación y la barra es alojada en el portabarras. El procedimiento se repite tantas veces como se necesite para desarmar todo o parte de la columna de herramientas. NOTA: PARALAOPERACIÓN NORMAL NO ES NECESARIO DESARMAR COMPLETAMENTE LA COLUMNA DE HERRAMIENTAS CUANDO SE PASA DE UN HOYO A OTRO DE LA MALLADE PERFORACIÓN, SIEMPRE QUE NO SEAN EXCEDIDAS LAS LIMITACIONES DE ESTABILIDAD. NO DESARME LA COLUMNA DE HERRAMIENTAS MÁS DE LO NECESARIO.
  • 118.
    2-76 Operación Sección MD6640 PerforadoraElectrica Para Pozos De Tronadura PERFORACIÓN INCLINADA EQUIPAMIENTO PARA PERFORACIÓN INCLINADA
  • 119.
    2-77 Operación Sección MD6640 PerforadoraElectrica Para Pozos De Tronadural Todos los procedimientos de manejo de herramientas se hacen de la misma forma tanto en perforación inclinada como en perforación standard vertical. La única adición al procedimiento es el uso de un posicionador de barras para sujetar la barra de perforación que se va a enroscar en su posición y una estructura “A” con piernas frontales ajustables. También incluye un sello ajustable para las barras, el cual puede se puede mover para alinearse con las barras de perforación. POSICIONADOR DE BARRAS Durante la perforación inclinada la plataforma permanece horizontal proporcionando una superficie horizontal desde donde trabajar, en cambio, la barra de perforación permanece en el ángulo del mástil. Para hacer una unión en la plataforma de perforación, tal como agregar el estabilizador, la broca o barra de perforación o cuando se quitan éstos componentes, es necesario sujetar la barra de perforación en posición para alinearla con otra barra de perforación o con el componente que se está sujetando en la plataforma de perforación. Esa es la función del posicionador de barras. El posicionador de barras se mueve a su posición mediante cilindros hidráulicos. Las mandíbulas del posicionador se abren con un solo cilindro hidráulico.
  • 120.
    2-78 Operación Sección MD6640 PerforadoraElectrica Para Pozos De Tronadura NOTA: NO OPERE LAMAQUINARIADE ROTACIÓN SINOA BAJA VELOCIDAD PARAABRIR O CERRAR UNIONES, MIENTRAS LAS MANDÍBULAS ESTÉN CERRADAS ALREDEDOR DE LA BARRA. OPERANDO LAMAQUINARIA DE ROTACIÓN AALTA VELOCIDAD O PERFORANDO MIENTRAS LAS MANDÍBULAS DEL POSICIONADOR ESTÁN CERRADAS ALREDEDOR DE LA BARRA, DAÑARÁ LAS MANDÍBULAS Y LAS ESTRUCTURAS DEL POSICIONADOR. Para hacer una unión con el posicionador de barras, proceda como en el ensamble de unión normal. Cuando el portabarras ha sido movido a su posición, retraiga el posicionador a su lugar y cierre las mandíbulas alrededor de la barra. Proceda normalmente para hacer la unión. Una vez realizada la unión, abra las mandíbulas del posicionador y luego extiéndalo a la posición de almacenaje. Para abrir una unión, se utiliza tanto el posicionador de barras como la llave de desenroscar. El posicionador de barras se usa para sujetar la barra en posición para ser cargada dentro del portabarras. La llave de desenroscar se usa para abrir la unión. Para abrir una unión, proceda igual que para desacoplar una unión.Antes de separar completamente la unión, amordace la barra con el posicionador de barras. Después de desacoplar la unión, levante la barra de perforación y baje el portabarras, suelte las mandíbulas y extienda el posicionador. Proceda normalmente con el procedimiento para desacoplar una unión. NOTA: EN LOS CASOS DONDE LAMÁQUINAES EQUIPADACON UNAPINZADE CUBIERTA EN LUGAR DE LALLAVE DE RUPTURA, LAGRUADE PLUMADE PINZADE CUBIERA ES DISEÑADAAFIN DE PUEDASER EXTENDIDADESDE 4A7 PIES. PARALA PERFORACIÓN VERTICAL, LAGRÚADEBERÍAESTAR EXTENDIDAALAPOSICIÓN DE 5 PIES. PARAUN ÁNGULO LAPERFORACIÓN DE 25 GRADOS LAGRULLA DEBERÍAESTAR EXTENDIDAPARALAPOSICIÓN DE 6.5 PIES. GRÚA GIRATORIA
  • 121.
    2-79 Operación Sección MD6640 PerforadoraElectrica Para Pozos De Tronadural OPERACIÓN SISTEMA DE SUPRESIÓN DE POLVO La mayoría de las perforadoras MD6640 están equipadas con alguna clase de sistema de supresión de polvo. Este sistema puede ser un filtro tipo seco o un sistema de inyección de agua. El control de polvo se necesita para impedir que el polvo generado por la perforación se escape al medio ambiente. Como equipo standard, todas las máquinas están equipadas con cortinas contra polvo y sello de polvo para barras, para contener el polvo alrededor del hoyo de perforación. El sello de polvo para barras se debe ajustar a la inclinación de la barra cuando se perfore inclinado. Hay dos maneras de suprimir la generación de polvo o prevenir el escape de polvo a la atmósfera. Los dos métodos no se pueden usar al mismo tiempo, ya que no son compatibles entre sí. Un método para suprimir la generación de polvo, es inyectar agua al caudal de aire principal cuando pasa hacia la broca. El agua sirve para aglomerar las partículas de polvo en partículas más grandes, que puedan ser tratadas como detritus. El otro método para suprimir el polvo, es contenerlo en el recinto de las cortinas contra polvo, luego quitarle las partículas más pequeñas y filtrarlas del aire antes que éste retorne a la atmósfera. El filtrado se hace por una unidad de filtro, la que fuerza el aire saturado de polvo a través de filtros donde el polvo es removido. En el sistema de filtros, el polvo debe permanecer seco ya que el material húmedo obstruirá los filtros. NOTA: CUANDO LA MÁQUINA ESTÁ EQUIPADA CON UN SISTEMA DE FILTROS DE POLVO TIPO SECO, ELAIRE PARA LA LIMPIEZA DE LOS FILTROS PROVIENE DEL SISTEMA DE AIRE DE BARRIDO. LA PRESIÓN DELAIRE HACIA EL FILTRO DE POLVO TIPO SECO, DEBE SER MANTENIDO A 40 PSI (276 kPa), PARAASEGURAR UNAAPROPIADALIMPIEZADE LOS ELEMENTOS DE FILTRO.
  • 122.
    2-80 Operación Sección MD6640 PerforadoraElectrica Para Pozos De Tronadura SISTEMA DE INYECCIÓN DE AGUA
  • 123.
    2-81 Operación Sección MD6640 PerforadoraElectrica Para Pozos De Tronadural PERFORACIÓN PERFORACIÓN VERTICAL Cuando una perforadora ha sido inspeccionada y puesta en marcha, posicionada, nivelada y la columna de herramientas ensamblada, está lista para comenzar a perforar. Hay dos métodos de perforación, perforación vertical y perforación inclinada. La perforación vertical es, como lo dice su nombre, perforar un pozo vertical. La perforación inclinada, es perforar el pozo en algún ángulo sobre la vertical (hasta 25 grados). Esta sección del Manual del Operador, detalla los procedimientos involucrados en la perforación vertical. El presente procedimiento de perforación contiene tres secciones principales: 1. Comenzando el pozo (anillando) 2. Perforando el pozo 3. Limpiando o ensanchando el pozo. En áreas mineralizadas se encuentran muchos tipos de formaciones. Las formaciones que se perforan van desde arcilla húmeda hasta taconita sólida. Cada formación, y las partes del pozo entre cada formación, requieren técnicas de perforación expresamente para ésa formación. Un pozo perforado a través de caliza fragmentada no se perfora de la misma manera que un hoyo que se perfora a través de taconita consolidada. Por ésta razón es importante que el operador no solo se familiarice con los procedimientos básicos de perforación y con la máquina específica con la cual perfora, sino que también se debe familiarizar con la formación que está siendo perforada. Para los propósitos de ésta sección del Manual del Operador, se asume que el pozo será perforado en una formación de roca consolidada. Ésta es quizás la formación más simple para perforar. Circunstancias especiales se tomarán en consideración en la sección PERFORANDO EN FORMACIONES DIFÍCILES de éste Manual. También se asume que el operador está familiarizado con la ubicación y operación de todos los controles en la máquina y que la máquina está en buenas condiciones. Durante la presente perforación, el terminal de exhibición del operador debe estar encendido y la pantalla de exhibición del operador mostrarse en el monitor. Todos los parámetros de perforación anotados en los siguientes párrafos aparecerán en la pantalla de exhibición del operador. NOTA: LOS GRÁFICOS DE BARRA EN EL TERMINAL DE LAPANTALLADE EXHIBICIÓN DEL OPERADOR MUESTRAN LA CONDICIÓN DE CADA UNA DE LAS FUNCIONES. SI UNA FUNCIÓN OPERA MAS ALLÁ DE SU RANGO NORMAL DE OPERACIÓN, ESPECIALMENTE PARA LA CORRIENTE DE ROTACIÓN Y LA FUERZA DE LEVANTE/EMPUJE, EL COLOR DE LOS GRÁFICOS DE BARRA VAA CAMBIAR DE VERDE HASTAAMARILLO O ROJO CUANDO EL VALOR DEL GRÁFICO SUBA HASTA ESE RANGO EN PARTICULAR. PARA MÁS DETALLES REFIÉRASEAL MANUAL DE LAPANTALLADE EXHIBICIÓN DEL OPERADOR.
  • 124.
    2-82 Operación Sección MD6640 PerforadoraElectrica Para Pozos De Tronadura INICIANDO EL POZO (ANILLANDO) Ya que los primeros pies de un pozo se desarrollan generalmente en material no consolidado, el procedimiento para perforar a través de este material, será diferente que para el resto del pozo. Este procedimiento es comúnmente llamado como “anillando” el hoyo. Para comenzar, o anillar el pozo, proceda de la siguiente manera: 1. Verifique que la llave de herramientas y la llave de desenroscar estén totalmente retraídas. Despeje la plataforma de perforación de personal y de materiales que no sean necesarios para el procedimiento de perforación (por ejemplo tambores de aceite, herramientas, brocas de repuestos, etc.) 2. Colocar el interruptor selector de modo operativo en la posición del PERFORACION. Coloque el interruptor selector de velocidad de levante/izado en la posición IZADO. Presione el botón de control ENABLE para la posición ENCENDIDA. Suelte el freno de levante y deje la cuerda de la herramienta moverse hacia abajo a fin de que el buje de guía esté firmemente sentado en el hueco en la cubierta de la perforadora. Asegúrese de que las ranuras en el buje se alineen con las orejetas en la cubierta de la perforadora. Resetear el freno de levante. 3. Gire el switch selector de velocidad de rotación en la posición LENTO. Gire el reóstato de rotación hacia la derecha hasta que el gráfico de barras de velocidad de rotación en la pantalla de exhibición del operador indique que la columna de herramientas está girando a aproximadamente a R.P.M. 4. Baje las cortinas de polvo y encienda contra el sistema de control de polvo. Colocar el interruptor principal en posición ABRIR para suministrar -- de aire a la broca. NOTA: MIENTRAS LABROCAESTÁ PASANDOATRAVÉS DEL MATERIAL NO CONSOLIDADO DE LA PARTE SUPERIOR DE LA FORMACIÓN, LA VELOCIDAD DE EMPUJE APROPIADA PARA CAUSAR LA PENETRACIÓN DE LA BROCA SE LOGRA GIRANDO LEVEMENTE EL REÓSTATO DE LEVANTE/EMPUJE HACIALA DIRECCIÓN DE EMPUJE. 5. Suelte el freno de levante y permita que la broca de perforación contacte el terreno. Verifique la vibración que proviene de la columna de herramientas. Para reducir la vibración, baje la velocidad de rotación con el reóstato de rotación. Mantenga la vibración en el mínimo. En la medida que disminuye la vibración incremente la velocidad de rotación y la velocidad de empuje mientras monitorea el gráfico de barra de la corriente de rotación y el gráfico de la presión de aire en el terminal de la pantalla de exhibición del operador.
  • 125.
    2-83 Operación Sección MD6640 PerforadoraElectrica Para Pozos De Tronadural El objetivo es penetrar la formación tan rápido como sea posible sin causar daño a la máquina o tapar el pozo con detritus. Monitoreando la corriente de rotación y manteniendo la carga en la porción inferior del gráfico de barras (verde), se evitarán daños al motor de rotación. Para reducir la carga del motor se logra reduciendo la fuerza de empuje sobre la broca. Reduciendo la fuerza de empuje, en muchos casos, permitirá cumplir lo anterior. En algunos casos, será necesario incluso levantar levemente la columna de herramienta para reducir la carga. Monitoreando el gráfico de barras de la presión de aire, indicará la condición del pozo. Si la penetración es demasiado rápida y el aire de barrido no es capaz de remover el detritus tan rápido como se está generando, el pozo se tapará y la presión de aire se elevará. Variando el rango de penetración, se variará la presión de aire. Mantener la presión de aire en el rango normal de trabajo al incrementar o disminuir el indice de penetración. Mantenga los niveles de vibración al mínimo, variando la velocidad de rotación y la fuerza de empuje. 6. Cuando la broca traspase el material fragmentado (aproximadamente 3 a 5 pies [0.9 a 1.5 m]) y penetre el material consolidado bajo éste, la vibración y la carga se reducirán drásticamente. Cuando esto suceda, el hoyo ha sido anillado y se puede comenzar la perforación normal.
  • 126.
    2-84 Operación Sección MD6640 PerforadoraElectrica Para Pozos De Tronadura PERFORACIÓN NORMAL Después que la broca haya atravesado el material no consolidado de la parte superior del pozo, ya no será necesario reducir la carga en la broca para reducir la vibración y la carga del motor de rotación. Una penetración más rápida y más fuerza de empuje se necesitará de ahora en adelante para completar el pozo tan rápido como sea posible, con mínima vibración. Ésta es la condición normal de perforación para la máquina. La perforación normal sigue los mismos lineamientos que los de anillar el hoyo. La penetración se incrementa al máximo, determinada por la carga del motor de rotación, la vibración en la columna de herramientas y la presión de aire. Al mantener la penetración en o levemente bajo el óptimo, el pozo puede ser completado en el tiempo más corto posible. Para iniciar la perforación normal, proceda de la siguiente manera: 1. Cuando se desea perforación normal, es necesario agregar presión a la broca en adición al peso muerto de la columna de herramientas y de la unidad de rotación/empuje. Esta presión se obtiene con el motor eléctrico y la caja de engranajes de empuje. Para activar el motor de empuje, gire el reóstato de levante/empuje en la dirección de EMPUJE, tanto como sea necesario para una máxima velocidad de perforación y fuerza de empuje. Al girar el control en la dirección de empuje, se incrementará la presión sobre la broca de acuerdo a la velocidad de empuje deseada. Aplique suficiente fuerza de empuje para permitir que los insertos de la broca corten el material que está siendo perforado en vez de pulverizarlos. Si la fuerza de empuje no fuera suficiente, la broca cabalgará en la superficie del material que se está perforando y no creará astillas. Esta condición se puede observar monitoreando el detritus. Si el detritus es material finamente pulverizado, la fuerza de empuje no es suficiente. Otra causal de material pobre es una broca desgastada. Si la fuerza de empuje es alta pero el detritus es fino y la penetración lenta, cambie la broca. 2. Verifique la carga del motor de rotación (corriente) y ajuste la fuerza de empuje para mantener la barra del gráfico en la porción inferior del gráfico (verde). Está permitido incrementar momentáneamente la carga hasta el amarillo, pero el trabajo continuo en la porción amarilla o roja causará daños al motor de rotación. 3. Verifique las vibraciones de la columna de herramientas y de la máquina. Mantenga las vibraciones en un mínimo variando la velocidad de empuje y la velocidad de rotación. Si aumenta la vibración, primero reduzca la velocidad de rotación. Si esto no reduce la vibración a un nivel aceptable, reduzca la velocidad de empuje hasta que la vibración sea aceptable. NOTA: LAEXCESIVAO PROLONGADAVIBRACIÓN DE LACOLUMNADE HERRAMIENTAS Y DE LAMÁQUINA, CAUSARÁN EVENTUALES DAÑOSALAMÁQUINA.
  • 127.
    2-85 Operación Sección MD6640 PerforadoraElectrica Para Pozos De Tronadural Monitoree la presión de aire. Mantenga la presión en rangos de trabajo normal para evitar sobrecalentamiento del compresor. Las presiones arriba del alcance útil normal señalan que el hueco comienza a taponar con recortes. Detenga el izado devolviendo el reostato del levante/izado a la posición APAGADA. Instale el freno de levante. Espere un momento y si la presión comienza a descender, deje el hoyo limpio antes de retornar a perforar. Si la presión no comienza a descender, será necesario levantar la columna de herramientas para limpiar el pozo. Para hacer esto, suelte el freno de levante y gire el switch selector de levante/empuje a la posición LENTA y el reóstato de levante/empuje en la dirección de levante. Levante la columna de herramientas hasta que el hoyo se limpie. Deje el movimiento de rotación activado ya que esto ayudará a limpiar el pozo. Si nota que la presión sube lentamente durante la perforación, reduciendo momentáneamente la velocidad de penetración, puede eliminar la necesidad de suspender el empuje y levantar la columna de herramientas. 4. Continúe con la perforación normal hasta que el pozo llegue a la profundidad deseada. Puede ser necesario agregar barras de perforación para completar el pozo. Refiérase a la sección apropiada en éste Manual para ver los procedimientos necesarios para agregar barras. La pantalla de despliegue del operador mostrará la profundidad del hoyo en pies. 5. Cuando la profundidad del pozo terminado sea alcanzada, es necesario limpiar o ensanchar el pozo antes que este quede completado. FINALIZANDO EL POZO Cuando la profundidad del hoyo terminado es alcanzada, termina la perforación normal. Ahora es necesario ensanchar el pozo antes de preparar la perforadora para el próximo pozo. Al ensanchar el pozo se limpia el detritus que ha caído en el fondo y también se rectifica e incrementa su diámetro. En la medida que la broca y la columna de herramientas atraviesan la formación, la broca puede tender a desviarse levemente. Esta desviación es debida al hecho que el estabilizador no puede ser exactamente del mismo diámetro que la broca o éste se desgastaría rápidamente y crearía problemas de operación. El estabilizador tiende a mantener a la broca en su trayectoria, pero no puede mantener el pozo exactamente recto. Al ensanchar el pozo, éste se rectifica y por lo tanto se incrementa ligeramente el diámetro. Al ensancharlo también se remueve cualquier detritus que se haya alojado en él. Este detritus debe ser removido o eventualmente caerán en el fondo del pozo, reduciendo la profundidad perforada. Para completar el procedimiento de perforación, el pozo se ensancha de la manera siguiente: 1. Cuando el pozo se ha perforado hasta la profundidad final, mantenga activado el caudal de aire y el reóstato de rotación en la posición MÍNIMO y su movimiento activado. Retorne el reóstato de levante/empuje a la posición “0” e instale el freno de levante. Permita que la columna de herramientas gire y que el aire barra el pozo por un momento. Esto remueve todo el detritus en suspensión.
  • 128.
    2-86 Operación Sección MD6640 PerforadoraElectrica Para Pozos De Tronadura 2. Gire el switch selector de velocidad de levante/empuje a la posición LEVANTE LENTO y el reóstato de levante/empuje en la dirección LEVANTE mientras simultáneamente suelta el freno de levante. Levante lentamente la columna de herramientas fuera del pozo. Si resistencia es encontrada, o si la vibración aumenta, devuelva el reostato de levante./izado a la posición APAGADAy coloque el freno de levante. Permita que la obstrucción sea removida por la broca antes de continuar. Si el hoyo está demasiado desviado (lo que indica un estabilizador desgastado), puede ser necesario repetir esta operación de levante, luego detenerse y permitir que la broca despeje, tantas veces como sea necesario hasta alcanzar la boca del pozo. Este procedimiento rectifica el hoyo y permite sacar la columna de herramientas. 3. Cuando se ha sacado la columna de herramientas y el pozo se ha ensanchado, éste deberá ser limpiado. Al ensanchar el pozo se suelta el detritus que se habían adherido a las paredes. Este detritus y mucho del generado durante el ensanche, van a caer en el fondo del pozo. Este relleno puede reducir en forma significativa la profundidad verdadera, de tal manera que es necesario remover este detritus del pozo. Para hacerlo, suelte el freno de levante y gire lentamente el reóstato de levante/empuje a la modalidad de empuje. Deje el aire activado y la columna de herramientas girando a 25-30 R.P.M. Cuando la broca alcanza el punto donde se han acumulado el detritus del fondo, ésta los forzará fuera del pozo. Cuando se ha limpiado de detritus del fondo, la broca contactará la formación no perforada del fondo del hoyo y detendrá su penetración. Cuando se detenga el flujo de detritus saliendo del pozo y la columna de herramientas deje de penetrar, el hoyo está limpio, 4. Después de limpiar el hoyo, la columna de herramientas se puede levantar hasta la superficie. Girando el control del reóstato de levante/empuje en la dirección de LEVANTE y el switch selector de velocidad de levante/empuje en la posición LEVANTE RÁPIDO, se levantará la columna de herramientas. FINALIZANDO EL HOYO (SECCIONES MÚLTIPLES DE BARRA) Ensanchar el pozo con una columna de herramienta de secciones múltiples, es lo mismo que ensanchar con una columna de sección simple. El procedimiento de ensanche se debe hacer en etapas, en la medida que las secciones de barra se van retirando. Mientras se retira la barra de perforación, el detritus desalojado de los costados del pozo así como aquellos generados por el ensanche, caerán al fondo del pozo. Para limpiar efectivamente el pozo, debería ser necesario rearmar la columna de perforación y bajarla hasta el fondo. Esto no es deseable, porque significa pérdidas de tiempo. Un método para eliminar la necesidad de limpiar el hoyo, es sobreperforar la profundidad y permitir que el detritus llene el hoyo hasta la profundidad final deseada. La experiencia con éste método mostrará cuánto se debe sobreperforar. Una buena práctica es sobreperforar 1 o 2 pies (0.3 o 0.6 m) sobre la terminación estimada de la profundidad deseada. De ésta forma, si la estimación es errada, el hoyo quedará 1 o 2 pies mas profundo. Esto puede ser fácilmente corregido con unas pocas paladas llenas de detritus devueltas al pozo. Por el contrario, la subestimación requerirá el rearmar la columna de herramientas y luego limpiar el hoyo.
  • 129.
    2-87 Operación Sección MD6640 PerforadoraElectrica Para Pozos De Tronadural PERFORANDO FORMACIONES DIFÍCILES Como propósito explicativo, en los procedimientos de perforación dados en la Sección PERFORACIÓN de éste manual, se asume que las perforaciones tienen lugar en formaciones rocosas consistentes y consolidadas. Desafortunadamente, no todas las perforaciones se realizan en éste tipo de formación. Esta sección del Manual del Operador detallará, en general, algunas dificultades típicas de perforación encontradas. La principal causa de perforación difícil se encuentra en los materiales no consolidados o en materiales húmedos y pegajosos. El material no consolidado produce vibraciones mayores a las experimentadas en terrenos consolidados y si son suficientemente severas, pueden también hacer descender la velocidad de barrido del caudal principal de aire. El material húmedo y pegajoso causa problemas con la limpieza del pozo, ya que el material puede cubrir el pozo y la barra de perforación, incrementando la presión de aire por sobre el rango de trabajo. El material pegajoso también puede tapar los orificios de la broca, inutilizar los conos de la broca o compactarse en pelotas que rehusen ser barridas fuera del pozo. El procedimiento general para perforar en formaciones difíciles es igual que el procedimiento para perforar en buenas formaciones. El hoyo es anillado, perforado, ensanchado y limpiado, usando los procedimientos standard de operación. El monitoreo de la máquina, sin embargo, es crítica cuando se perfora formaciones difíciles. NOTA: NO MONITOREAR ESTRECHAMENTE LA MÁQUINA Y SUS GRÁFICOS DE BARRAS COMO SE MUESTRAN EN ELTERMINAL DE LA PANTALLA DE EXHIBICIÓN DEL OPERADOR, DARÁN COMO RESULTADO DAÑOS A LA MÁQUINA O UNA BARRA DE PERFORACIÓN ATASCADA. MATERIALES NO CONSOLIDADOS Perforar materiales no consolidados puede presentar dos problemas. El primero, y el más severo, es la vibración obtenida cuando la velocidad de penetración es muy rápida. En la medida que gira la broca, los conos atraviesan el material y los dientes o insertos no cortan el material que se está perforando. En cambio, el material no consolidado tiene huecos en él. Cuando la broca pasa a través de un hueco del material, ésta solo contacta parte del fondo del pozo. En la medida que cada cono pasa a través del hueco, la columna de herramientas se mueve hacia abajo cuando el cono cae en el hueco y luego se devuelve hacia arriba cuando el cono toca en firme. Este continuo movimiento arriba y abajo resulta en cargas de choque que son transmitidas por la broca, a través de la columna de herramientas, a la máquina. Para perforar a través de formaciones no consolidadas, es necesario reducir la carga en la broca, cuando ésta está atravesando los huecos. También es útil aislar la carga de impacto a la columna de herramientas. Esto se logra, primero, reduciendo la velocidad de empuje. Si al reducir la velocidad de empuje no se reducen las vibraciones a la máquina hasta un nivel aceptable, puede ser necesario levantar la broca sobre el hueco y luego bajarla un poco al tiempo que corta los lados del hueco un poco cada vez. La reducción de la velocidad de rotación también ayudará a reducir las vibraciones de la columna de herramientas. Este procedimiento es el último que debería intentarse, ya que si la velocidad de empuje se mantiene alta y se disminuye la velocidad de rotación, la vibración será igual de severa, solo que en diferente frecuencia.
  • 130.
    2-88 Operación Sección MD6640 PerforadoraElectrica Para Pozos De Tronadura El material no consolidado presenta otro problema debido al hecho que los huecos en el material pueden permitir que el aire de barrido se escape a través de los costados del pozo en vez de pasar a lo largo de las barras de perforación y salir por la parte superior del pozo. Ésta pérdida de aire reduce el volumen de aire disponible para barrer el pozo causando que el detritus caiga al fondo y sea remolido por la broca. Esto reduce aún más la velocidad de penetración ya que éstos detritus deben ser molidos por la broca y barridos afuera, o taparán el pozo. El material no consolidado también puede causar el colapso del pozo. Esto crea problemas debido a la repentina adición de material dentro del pozo y la resultante pérdida de velocidad de barrido debido al aumento del diámetro del pozo. Si el material no consolidado está causando pérdida de volumen de aire de barrido o colapsos en el pozo, se hace necesario limpiarlo continuamente, ya que el detritus reciclado o el material colapsado van a tapar el pozo. Monitoree estrechamente tanto la presión de aire de barrido como el flujo de detritus desde el pozo. Si se está perdiendo aire, la presión de aire permanecerá constante pero se detendrá el flujo de detritus o decrecerá drásticamente, mientras la penetración no disminuye. Continúe perforando por unos pocos pies para tratar y lograr pasar la pérdida. Si la presión de aire de barrido comienza a elevarse, el hoyo se está tapando. Levante inmediatamente la columna de herramientas hasta que la presión caiga y permita que la columna de perforación gire por unos momentos para limpiarse a sí misma. Luego baje la columna de herramientas hasta el fondo del pozo y límpielo. Puede ser necesario remoler el detritus para hacerlos lo suficientemente pequeño para sellar la filtración y ser barrido fuera del hoyo por un reducido volumen de aire. Cuando el hoyo esté limpio, repita los procedimientos de subida y bajada cada 2 o 3 pies (0.6 a 0.9 m) para mantenerlo en ese estado. Si el material tiende a colapsar desde los costados del hoyo, la columna de herramientas puede comenzar a atascarse rápidamente en el pozo. Si el material colapsado es poco, se fijará entre los conos de los rodillos y caerá al fondo del pozo. El pozo puede entonces ser limpiador usando el mismo procedimiento que para un pozo con filtraciones. Si el material colapsado es grande, será necesario tirar la columna de herramientas fuera del pozo y luego reperforar el material colapsado. NOTA: SEA MUY PRECAVIDO CUANDO PERFORE EN FORMACIONES LAS CUALES TIENDENACOLAPSAR FÁCILMENTE, ESPECIALMENTE SI EL MATERIAL COLAPSA EN GRANDES BLOQUES. SI EL MATERIAL QUE COLAPSA DENTRO DEL POZO FUERA MUY GRANDE PARA SER LEVANTADO CON LA UNIDAD DE ACCIONAMIENTO DE ROTACIÓN O DEMASIADO DURO PARA ROMPERLO CON LA PARTE SUPERIOR DE LA BROCA, LA COLUMNA DE HERRAMIENTAS TENDRÁ QUE SER ABANDONADA EN EL POZO. La experiencia dictará cual procedimiento seguir cuando se encuentre material que tiende a colapsar. Cuando la formación no le sea familiar, sea siempre precavido. La precaución puede resultar en menos producción, pero podría ahorrar una gran cantidad de trabajo y una columna de herramientas completa si ésta se quedara atascada. Siempre limpie el hoyo en forma frecuente y monitoree constantemente la presión de aire. Si la presión de aire comienza a elevarse, levante la columna de herramientas inmediatamente, - no espere hasta ver si la presión se va a estabilizar o no. En el tiempo que se tarda en determinar cual será la presión de aire, el hoyo se atasca. Limpiando el hoyo a menudo se logran dos cosas.
  • 131.
    2-89 Operación Sección MD6640 PerforadoraElectrica Para Pozos De Tronadural Primero, sacar el material colapsado desde el pozo. Segundo, libera cualquier material potencialmente peligroso que pueda causar un colapso mientras la columna de herramientas está siendo levantada. Si el hoyo colapsa mientras se está en la modalidad de levante, hay una mayor oportunidad de recobrarla desde el derrumbe. Si el pozo comenzara a atascarse, hay dos maneras de recuperar la columna de herramientas. Cada método depende del tipo de material con que se ha atascado el pozo. Si el tamaño del material que está atascando es pequeño (menos de 6 pulgadas cuadradas [15.2 cm2], es posible moler el material lo suficiente como para que pase entre los lóbulos de la broca y caiga al fondo del pozo. Esta condición se puede observar si la presión del aire de barrido se eleva sobre el rango normal de trabajo. El material grande y grueso dejará pasar el aire, mientras que el material fino no lo hará. También, cuando intente levantar la columna de herramientas fuera del pozo, ésta no vibrará mayormente debido al pequeño tamaño del material. Material grande causará que la columna de herramientas sea golpeada cada vez que un lóbulo en la broca choque con el bloque. Para recuperar la columna de herramientas desde un pozo atascado con material mas fino, levante la broca hasta que se introduzca dentro del tapón y detenga el levante. Con movimiento rotatorio girando a aproximadamente 50-60 R.P.M., mantenga alta carga de levante sobre la broca y permita que la broca trabaje su camino a través del tapón. Monitoree la carga del motor de rotación (corriente) y reduzca la carga de levante (fuerza), para mantener la carga en la parte baja del gráfico de barras. Cuando se atraviese el tapón, limpie el pozo y vuelva a perforar. La presión de aire principal puede o no puede sobrepasar la fijación de la válvula de seguridad y causar sobrecalentamiento del compresor principal de aire. Si la válvula de seguridad se abre cuando el hoyo está atascado, continúe intentando liberar la columna de herramientas. La válvula de seguridad se cerrará cuando se haya removido el tapón. Si el compresor se recalienta y se desconecta, continúe intentando liberar la columna de herramientas sin el compresor. Permita que el compresor se enfríe durante algunos minutos y arránquelo nuevamente. Continúe este procedimiento hasta liberar la columna de herramientas. Si el material que está tapando el hoyo es grande, será necesario tratar y forzar el material a volver hacia una posición tal que permita el paso de la broca y luego tratar de reperforar a través del tapón. El material grande se indica cuando la columna de herramientas experimenta severas vibraciones cuando se está levantando. Para liberar la columna de herramientas aplique máxima potencia de levante. Si el tapón no se libera a sí mismo después de unos momentos, baje la columna unos pocos pies si es posible e inténtelo nuevamente. Si el tapón no se libera a sí mismo después de repetidos intentos de liberarlo, hay dos opciones disponibles. Se puede abandonar la columna inmediatamente sin mayores intentos o se puede hacer intentando perforar a través del tapón usando el extremo superior de la broca. En ambos casos, el pozo que se está perforando deberá ser abandonado. En el primer caso, el costo de abandonar la columna de herramientas es conocido, mientras que en el segundo caso se debe correr el riesgo, ya que tanto la broca como el estabilizador es casi seguro que se tendrán que botar y no hay garantía que el resto de la columna será recuperada. Si se decide abandonar la columna de herramientas, intente desacoplar una sección de la barra para recuperar al menos algo de ella. Si no se puede hacer, baje la columna de herramientas hasta el fondo del hoyo y luego, utilizando un soplete de combustión, corte la barra de perforación a nivel del terreno. Será necesario moverse hasta un hoyo existente para retirar el resto de barra desde la unidad de accionamiento de rotación.
  • 132.
    2-90 Operación Sección MD6640 PerforadoraElectrica Para Pozos De Tronadura PRECAUCIÓN: ANTES DE CORTAR LA BARRA DE PERFORACIÓN, VERIFIQUE QUE EL COMPRESOR PRINCIPAL DE AIRE ESTÁ APAGADO. CORTAR LA BARRA CON EL COMPRESOR ENCENDIDO PUEDE CAUSAR UN INCENDIO O EXPLOSIÓN CUANDO SE INTRODUZCA ESCORIA CALIENTE EN EL CAUDAL DE AIRE O PUEDE PROVOCAR QUE MATERIAL CALIENTE EXPLOTE HACIA EL SOLDADOR. Si se va a hacer un intento de liberar la columna de herramientas perforando con la parte superior de la broca, aplique solo fuerza de levante suficiente como para mantener las vibraciones y la carga del motor de rotación en niveles aceptables. Varíe la presión de levante, cambiando alternadamente el selector levante/empuje entre la posición levante y neutral. Varíe la velocidad de rotación para ayudar a reducir las vibraciones. Perforar un gran bloque con la parte superior de la broca puede ser un proceso largo y es importante prevenir daños al resto de la máquina. Cuando se libere la columna de herramientas, revise si hay daños en el estabilizador y la broca, así como en las barras de perforación. Reemplace los componentes y muévase a una nueva posición de perforación. No intente perforar de nuevo en el mismo hoyo, ya que es casi seguro que esto causará que la columna de perforación se atasque nuevamente. FORMACIONES HÚMEDAS O PEGAJOSAS Perforar en formaciones húmedas y pegajosas presenta tres posible áreas de problemas. Los tres problemas que se pueden encontrar son, el recubrimiento de la broca y de la barra con material, aglomeración del material en pedazos demasiado grandes como para ser removidos con el caudal de aire de barrido y, el colapso del pozo. Se puede presentar cualquiera de éstos problemas o cualquiera combinación de los tres al mismo tiempo. Para perforar en formaciones húmedas se siguen los mismos procedimientos que para perforar en otras formaciones. Sin embargo, al perforar en formaciones húmedas se requiere prestar especial atención a la presión de aire de barrido y a los niveles de penetración. Las formaciones húmedas son más susceptibles de atascar el hoyo, pero recuperar la columna de herramientas del pozo atascado es más fácil que desde materiales no consolidados. En el caso dónde el material se adhiere a las barras de perforación y reviste las paredes del hoyo, es necesario ensanchar y limpiar el pozo cada 5 o 10 pies (1.5 a 3.0 m) para remover el material perjudicial. También es necesario limpiar periódicamente las barras, para remover las costras de material. Esto se puede lograr sacando la columna de herramientas del pozo, permitiendo que el material sea escariado por el buje guía. Es importante sin embargo, si se va a usar el buje guía como elemento de limpieza de la columna de herramientas, mantenerlo en buenas condiciones de trabajo. En el caso del material que se ha aglomerado en grandes pedazos, éstos pedazos caen hacia el fondo del pozo y son reciclados a través de la broca para ser triturados. Si la cantidad de material reciclado es demasiado grande, se acumulará en el fondo del pozo y restringirá el caudal de aire principal. Para mantener este material en el mínimo, limpie el pozo periódicamente. Cuando levante la columna de herramientas, permita que el material sea molido por la broca y caiga al fondo del pozo antes de iniciar la limpieza.
  • 133.
    2-91 Operación Sección MD6640 PerforadoraElectrica Para Pozos De Tronadural En el caso donde el material se colapsa desde los costados del pozo, trate la formación como material no consolidado y perfore de acuerdo a los procedimientos detallados en éste manual para material no consolidado. Cuando se perfora a través de formaciones difíciles, es importante monitorear constantemente la máquina y la columna de herramientas. Permitir que ésta se atasque, es un error muy caro y se puede evitar siguiendo cautelosas prácticas de perforación. Ensanchar y limpiar el hoyo puede tomar solo unos momentos, pero puede ser la diferencia entre abandonar el pozo y la columna de herramientas y la exitosa culminación de un pozo terminado. PERFORACIÓN INCLINADA NOTA: AL CAMBIAR EL MÁSTILPARAPERFORACIÓN INCLINADAEN MÁQUINAS CON LONGITUD DE MÁSTIL DE 65 PIÉS O MÁS, LAS BARRAS DE PERFORACIÓN SE DEBEN ALMACENAR EN LOS PORTABARRAS Y BAJAR EL CABEZAL DE ROTACIÓNASU POSICIÓN MÁS BAJA. La perforación angular sigue los mismos procedimientos generales de perforación que en la perforación vertical. La principal diferencia en el procedimiento de perforación, además del hecho que el pozo es en un ángulo, es la necesidad de monitorear en forma estrecha la condición de los diferentes sistemas mientras se perfora en forma inclinada. Las diferencias en los procedimientos de operación para los diferentes sistemas en la máquina, están limitados al manejo de la columna de herramientas y de subir y bajar el mástil al apropiado ángulo de perforación. Cuando se perfora un pozo inclinado, el monitoreo de los indicadores de los sistemas, tal como la presión de aire de perforación, la carga de rotación y la vibración de la máquina, se hace más crítico que cuando se perfora en forma vertical. La razón que este monitoreo sea más importante es el hecho que un pozo en ángulo tenderá a desviarse hacia abajo en la medida que el pozo está siendo perforado. Esta desviación se debe a que el acero de perforación asume una curvatura natural en la medida que va extendiendo su paso por el buje guía. Esta curvatura es inevitable y se empeora en la medida que el ángulo del pozo se acerca a los 25º. La fuerza de gravedad actúa continuamente sobre la columna de herramientas, provocando que se curve hacia abajo. Esta curvatura hacia abajo se conoce como la curva de la barra de perforación. Esta curvatura causará que el hoyo se perfore con una curva gradual en él. Esto causa que la barra de perforación se contacte con el costado del pozo, incrementando la carga del motor de rotación. Esto también tiende a inhibir el barrido del pozo ya que el detritus no está fluyendo verticalmente. El flujo del aire de barrido (y del detritus en suspensión) deben desviarse alrededor del punto en que la barra de perforación descansa en el costado del pozo. Esto contribuye al incremento de la presión de aire que se necesita para perforar un pozo inclinado. Las vibraciones de la columna de herramientas se incrementarán mientras se perfora en ángulo, ya que la columna descansará en los costados del hoyo en vez que en el fondo.
  • 134.
    2-92 Operación Sección MD6640 PerforadoraElectrica Para Pozos De Tronadura PERFORACIÓN CON CONTROL DE PERFORACIÓN PROGRAMADA. (C.P.P) La perforación con C.P.P. es similar a la perforación normal en aquello que la máquina debe estar posicionada, nivelada y programada manualmente por el operador. La presente operación de perforación estará controlada por el sistema automático. Para arrancar el sistema automático use la siguiente secuencia de arranque. 1. Asegúrese que el reóstato levante/empuje y el reóstato de rotación estén en la posición “0”. 2. Verifique que la profundidad de perforación deseada, la profundidad de anillado y la profundidad de la inyección de agua, hayan sido instaladas de acuerdo a los parámetros del C.P.P. indicados en el terminal de la pantalla de exhibición del operador. 3. Ponga el switch selector de velocidad levante/empuje en la posición EMPUJE. 4. Ponga la modalidad operativa del switch selector de en la posición PERFORAR. 5. Presione el botón ON de control de perforación/propulsión. 6. Colocar el interruptor de Válvula de Aire Principal en la posición ABIERTA. 7. Verifique en el terminal de la pantalla de exhibición del operador que no existen fallas en el C.P.P. Si existe una falla, ésta debe limpiarse antes que el control C.P.P. pueda ser activado. 8. Con la pantalla de exhibición del operador presente en el terminal de exhibición, presione el botón reinstalar indicador de profundidad para reinstalar la profundidad del pozo y el indicador de profundidad de la broca en cero. 9. Ponga el control del freno de levante en la posición SOLTAR. 10. En el terminal de exhibición del operador mostrando la exhibición del operador, presione el botón F5 del teclado para encender el C.P.P. Luego, sobre la tecla F5 se podrá leer “C.P.P. ON”. Después que se haya iniciado el procedimiento de arranque antes mencionado, los controles automáticos tomarán posesión sobre la perforación real del pozo. La inyección de agua (si así está equipada) se apagará a la profundidad establecida. Cuando se haya alcanzado la profundidad total del pozo, tal cual se programó, la columna de herramientas será levantada automáticamente y cuando la broca se aproxime al borde del pozo, el control detendrá la broca, apagará el aire e instalará el freno de levante. Si surgen problemas en las funciones del C.P.P., el sistema tendrá que ser corregido por un electricista calificado. En la mayoría de los casos, si ocurre un desperfecto en el sistema automático, éste se puede desconectar y completar la perforación manualmente.
  • 135.
    2-93 Operación Sección MD6640 PerforadoraElectrica Para Pozos De Tronadural PREPARÁNDOSE PARA UN CAMBIO Cuando el pozo se haya completado y se ha sacado la columna de herramientas a la superficie, es necesario cambiar la perforadora hasta la próxima ubicación para prepararse a perforar el próximo pozo. Prepararse para cambiar la perforadora consiste en el apropiado almacenaje de la columna de herramientas, bajar la máquina hasta el suelo e inspeccionar la máquina y el trazado de la ruta antes de propulsarla. Para preparar el cambio de la perforadora, proceda de la siguiente manera: 1. Una vez terminado el pozo actual, levante la columna de herramientas desde el pozo. Si se está usando múltiples secciones de barra, quite y almacene todas las barras necesarias hasta sacar la columna completa desde el pozo. Apague el sistema de control de polvo y levante las cortinas contra polvo. 2. Amordace el estabilizador con la llave de herramientas para prevenir movimientos de la columna de herramientas durante el desplazamiento. PRECAUCIÓN: NO SE PROPULSIONE CON LA COLUMNA DE HERRAMIENTAS EN UNA POSICIÓN TAL QUE SE ATASQUE CONTRA EL SUELO MIENTRAS SE DESPLAZA. SI LA COLUMNA DE HERRAMIENTAS GOLPEA EL SUELO MIENTRAS SE DESPLAZA, CAUSARÁ DAÑOS EN LA MÁQUINA Y EN LA COLUMNA DE HERRAMIENTAS. 3. Presione el interruptor automático de nivelación a la posición de REPLIEGUE para alzar las gatas y bajar la máquina. Sujetar el interruptor en la posición de REPLIEGUE hasta que las gatas estén completamente retractadas. Refiérase a la pantalla de nivelación automática en el terminal de despliegue del operador para verificar que las cuatro gatas estén completamente retractadas.
  • 136.
    2-94 Operación Sección MD6640 PerforadoraElectrica Para Pozos De Tronadura NOTA: SI LA MÁQUINAVASER BAJADAMANUALMENTE, REFIÉRASEALOS PASOS 4, 5 Y 6 YA LA PANTALLA DEL TERMINAL DE EXHIBICIÓN DEL OPERADOR DE NIVELACIÓNAUTOMÁTICA. 4. Usando los controles de nivelación manual de las patas, baje la máquina de forma que permanezca nivelada pero que esté tocando el suelo. Use los controles de nivelación de las patas en pares (por ejemplo, ambos controles de un lado o ambos controles de un extremo, simultáneamente), para reducir las cargas de torsión en la estructura de la máquina. 5. Una vez que la máquina esté tocando el suelo, podrá ser bajada totalmente. Para bajar totalmente la máquina, primero baje hacia el suelo el lado o el extremo más elevado de la máquina, luego baje hacia el suelo el lado o el extremo mas bajo. Es importante que la máquina sea bajada en etapas para minimizar tanto la inclinación como las tensiones de pandeo instaladas sobre la máquina. PRECAUCIÓN: MIENTRAS BAJE MANUALMENTE LA MÁQUINAAL PISO, ES IMPERATIVO QUE SEA MANTENIDA LO MÁS NIVELADA POSIBLE. PUEDE QUE SEA NECESARIO BAJARLA EN ETAPAS PARA MANTENERLA LO MAS NIVELADA COMO SEA POSIBLE. 6. Cuando la máquina sea bajada totalmente, retraiga las patas de nivelación hasta su máxima posición de retracción. NOTA: CUANDO BAJE MANUALMENTE LAMÁQUINA,ASEGÚRESE QUE LAS PATAS DE NIVELACIÓN QUEDEN TOTALMENTE RETRAÍDAS ANTES DE PROPULSARLA. PROPULSAR LA MÁQUINA CON UNA PATAS SIN ESTAR TOTALMENTE RECOGIDA, CAUSARÁ SERIOS DAÑOS A LAPATAYA LAESTRUCTURA DE LA MÁQUINA. 7. Inspeccione la máquina y la ruta de recorrido como se indica en el tópico PROPULSIÓN en éste manual. Después de completar la inspección, la máquina estará lista para desplazarse.
  • 137.
    2-95 Operación Sección MD6640 PerforadoraElectrica Para Pozos De Tronadural DETENCIÓN DE LA MÁQUINA Detener la máquina es necesario cada vez que el operador debe abandonarla, tanto al final del turno o por algún período de tiempo durante el mismo turno. También es necesario detenerla para realizar la mayoría de los trabajos de mantención. Detener la máquina es esencialmente lo inverso que arrancarla. El grado del trabajo de almacenamiento que debe hacerse está determinado por la cantidad de tiempo en que la máquina estará detenida. Detenerse por un período corto envuelve poco trabajo extra, mientras que detener la máquina por períodos largos involucrará esfuerzos considerables. PROCEDIMIENTOS DE DETENCIÓN Para detener la máquina, proceda como sigue: 1. Termine el pozo, si hay alguno, que esté actualmente perforando. Si el pozo no es completado antes de detener la máquina, será necesario abandonarlo y perforar otro en su lugar. No intente reperforar un pozo que ha sido abandonado sin terminar ya que volver a nivelar y ubicar la perforadora en la misma y exacta posición es extremadamente difícil. 2. Saque la columna de herramientas del pozo. Si se está usando múltiples secciones de barra, saque y almacene tantas secciones de barra como sea necesario para sacar la columna de herramientas completa desde el pozo. NOTA: NO DETENGA LA MÁQUINA CON LA COLUMNA DE HERRAMIENTAS EN EL POZO. AL HACERLO PUEDE CAUSAR DAÑOS A LAS BARRAS DE PERFORACIÓN Y PUEDE SIGNIFICAR ELABANDONO DE LACOLUMNADE HERRAMIENTAS Y DEL POZO. 3. Determine la cantidad de tiempo que la perforadora va a estar detenida. Refiérase a los tópicos apropiados de almacenamiento en éste manual para determinar hasta qué punto se debe desarmar la columna de herramientas. Si es necesario, desarme y almacene la columna de herramientas en ésta ocasión. 4. Si es posible, baje la unidad de accionamiento de rotación a su posición mas baja e instale el freno de levante. Si la columna de herramientas no se va a sacar, amordace el estabilizador con la llave de herramientas e instale el freno de levante. 5. Siguiendo los procedimientos en los tópicos de PREPARACIÓN PARA CAMBIARSE en éste manual, baje la perforadora hasta el suelo. Ponga las zapatas de las patas de nivelación en el piso pero no ponga peso sobre ellas.
  • 138.
    2-96 Operación Sección MD6640 PerforadoraElectrica Para Pozos De Tronadura 6. Apague el compresor principal de aire. Ponga todos los controles en la posición OFF o NEUTRAL. 7. Vaya a la sala de máquinas y ponga todos los interruptores en OFF. Si la máquina va ser detenida por un corto período de tiempo y es necesario mantener las luces encendidas, está permitido dejar el interruptor de iluminación y las luces encendidas. 8. Inspeccione si la máquina tiene daños evidentes o desgaste. Tome nota de cualquier dificultad operacional descubierta mientras perforaba y de cualquier problema descubierto durante ésta inspección. Reporte las dificultades al personal apropiado. 9. Cierre todas las puertas y ventanas firmemente.
  • 139.
    2-97 Operación Sección MD6640 PerforadoraElectrica Para Pozos De Tronadural ALMACENAJE POR CORTO TIEMPO Si la máquina se va detener por más de tres turnos de ocho horas, pero menos de tres semanas, se hacen necesarias las precauciones para almacenaje por corto tiempo. Estas precauciones son necesarias para asegurar que la máquina no se dañe ni se deteriore durante el período de almacenamiento. El almacenaje de corto tiempo se preocupa principalmente de poner todos los componentes en una posición segura y proporcionar lubricación adicional de protección a los componentes normalmente lubricados. Para almacenar la máquina por un máximo de tres semanas consecutivas, proceda como sigue: 1. Si no se han realizado previamente, complete todo los procedimientos de detención que se detallan en la sección DETENCIÓN DE LA MÁQUINA de éste manual. Durante el procedimiento de detención es necesario sacar y almacenar la columna de herramientas completa. Saque la broca desde el estabilizador y almacénela en un lugar protegido. Cubra la broca con un lubricante apropiado para prevenir la oxidación mientras esté almacenada. A medida que desarme las barras de perforación, limpie y lubrique los hilos de cada uno de sus extremos antes de almacenarlas en los portabarras. 2. Baje la unidad de rotación/empuje a su posición más baja e instale el freno de levante. Inspeccione la unidad de rotación/empuje por si tiene daños o desgastes y tome nota de cualquier problema encontrado. Cubra el motor de rotación y el motor de empuje con un lienzo o cubierta impermeable. Levante las cortinas contra polvo. Recoja los cilindros de la llave de tenazas. 3. Revise el nivel de aceite en la unidad de rotación/empuje. Revise las cajas para ver si hay agua en el aceite. Si hay agua en las cajas, drénelas y rellénelas con el aceite adecuado. Si no hay agua presente, llene las cajas hasta el nivel apropiado. 4. Opere manualmente el sistema de lubricación y verifique que todos los puntos en el mástil están recibiendo lubricante. Si el sistema automático de lubricación no está funcionando apropiadamente, repare o reemplace los componentes que sean necesarios. 5. Baje las patas de nivelación hasta que las zapatas de las patas queden descansando sobre el suelo, pero sin el peso de la máquina sobre ellas. 6. Inspeccione si el compresor principal de aire tiene evidencias de desgaste o daños. Tome nota de cualquier daño encontrado. 7. Si el motor del compresor de aire está equipado con calefactores contra condensación, enciéndalos en éste momento. Si el motor no está equipado con calefactores, solicite que un electricista calificado instale calefactores o sustitutos convenientes. Cubra el motor con una tela impermeable o un forro. 8. Cierre con llave todas las puertas de los gabinetes eléctricos.
  • 140.
    2-98 Operación Sección MD6640 PerforadoraElectrica Para Pozos De Tronadura 9. En máquinas equipadas con compresores de tornillo, llene el radiador hasta arriba con el aceite adecuado. 10. Opere manualmente el sistema de lubricación automático para verificar que todos los puntos de la máquina estén recibiendo lubricante. Repare debidamente el sistema para que lubrique todos los puntos. 11. Lubrique todos los puntos manuales. 12. Limpie las tolvas de polvo del sistema de control de polvo, si es necesario. 13. Cierre firmemente todas las ventanas y puertas. ALMACENAJE POR LARGO TIEMPO El procedimiento de almacenamiento por largo tiempo será necesario cada vez que la máquina se va a abandonar por un período que exceda las tres semanas. El almacenamiento por largo tiempo incluye todos los procedimientos necesarios del almacenaje de corto plazo y, dependiendo de la situación, algunas precauciones adicionales. Hay dos procedimientos involucrados en el almacenamiento de largo plazo de la perforadora, la elección de ellos depende de si la máquina puede ser asistida mientras esté almacenada. Si la máquina puede ser arrancada y la mayoría de la maquinaria operada una vez al mes durante el período de almacenamiento, se necesita mucho menos trabajo de protección. Si la máquina debe permanecer sin atención, son necesarias precauciones especiales para prevenir daños a la maquinaria. NOTA: SI LA MÁQUINAVAAESTAR SINASISTENCIADURANTE EL PERÍODO DE ALMACENAMIENTO, LOS PROCEDIMIENTOS NECESARIOS PARAALMACENARLA APROPIADAMENTE TOMARÁN UN TIEMPO CONSIDERABLE Y RESTAURAR LA MÁQUINANUEVAMENTE PARAPRODUCCIÓN, TOMARÁAÚN MÁS TIEMPO. NO EMPLEE LOS PROCEDIMIENTOS DE ALMACENAMIENTO DE LARGO PLAZO SIN ASISTENCIA, SI NO ESABSOLUTAMENTE NECESARIO.
  • 141.
    2-99 Operación Sección MD6640 PerforadoraElectrica Para Pozos De Tronadural ALMACENAJE POR LARGO TIEMPO, CON ASISTENCIA El procedimiento de almacenaje por largo tiempo con asistencia, combina el procedimiento de almacenaje de corto tiempo con los períodos mensuales de arranque y funcionamiento. Para almacenar la máquina por un largo período de tiempo, es necesario completar los procedimientos enumerados en los párrafos de ALMACENAJE POR CORTO TIEMPO de éste manual. Luego, una vez al mes durante el período de almacenamiento, complete todas las inspecciones de arranque y procedimientos de lubricación enumerados en éste manual y arranque la perforadora. Haga funcionar todos los trenes de engranajes por10 a 20 minutos para distribuir el aceite sobre los engranajes y rodamientos. Suba y baje la unidad de rotación/empuje en la longitud total del mástil, de 4 a 6 veces para distribuir la lubricación en los componentes del mástil y de la unidad de rotación/empuje. Accione los portabarras 2 a 3 veces. Haga funcionar el compresor por una hora. Propulsione la perforadora la longitud de si misma por lo menos 6 veces. Después de hacer funcionar los componentes de la máquina, siga el procedimiento de almacenaje de corto tiempo una vez más y almacene la máquina por otro mes. Repita este procedimiento cada mes, hasta que la máquina retorne a servicio. ALMACENAJE POR LARGO TIEMPO, SIN ASISTENCIA No está entre los propósitos de éste manual detallar los procedimientos involucrados en el almacenamiento de largo tiempo de una perforadora. Estos procedimientos involucrarán desarmar las unidades mayores de la máquina, trabajos que usualmente no son realizados por personal de operaciones. Refiérase al Manual de Mantenimiento Mecánico para los detalles concernientes al almacenamiento de largo tiempo de la máquina. El procedimiento aquí enumerado es una guía con la sola intención de dar una idea general del esfuerzo involucrado en el apropiado almacenamiento de la máquina. Para almacenar la máquina sin asistencia por un largo período de tiempo, proceda como sigue: 1. Complete todos los procedimientos de almacenamiento de corto tiempo. 2. Quite los motores de la perforadora y almacénelos en un sitio calefaccionado. 3. Llene completamente las cajas de engranajes de rotación y de empuje con un aceite aprobado. Ambas cajas se pueden llenadas completamente agregando el aceite por las aberturas de los respiraderos. Saque toda el agua de las cajas. 4. Suelte los rodillos guía de la estructura de la unidad de rotación/empuje, para proporcionar un espaciamionado. 5. Cierre y selle completamente todos los gabinetes eléctricos.
  • 142.
    2-100 Operación Sección MD6640 PerforadoraElectrica Para Pozos De Tronadura 6. Cierre y selle completamente la cabina del operador. 7. Cierre y selle completamente la sala de máquinas. Selle completamente la unidad del ventilador del filtro. 8. Drene completamente el sistema de refrigeración del compresor. 9. Propulsione la máquina sobre bloques para prevenir la oxidación de las cadenas de oruga. Cubra totalmente las cadenas de orugas con una película de aceite antioxidante. Cubra las cadenas de propulsión con aceite antioxidante. 10. Ponga bloques a las patas de nivelación en la posición totalmente retraída. 11. Engrase manualmente cada punto de lubricación (incluyendo los puntos lubricados automáticamente).
  • 143.
    2-101 Operación Sección MD6640 PerforadoraElectrica Para Pozos De Tronadural RECUPERACIÓN DE HERRAMIENTAS Normalmente las herramientas de perforación están siempre, o conectadas a la unidad de accionamiento de rotación o sujetas por la llave de herramientas. Sin embargo, suelen suceder errores y las herramientas de perforación pueden caerse al fondo del pozo. La recuperación de herramientas (o pesca de herramientas) es el procedimiento utilizado para recuperarlas. Hay dos situaciones donde el procedimiento de recuperación de herramientas es necesario y cada situación dicta el procedimiento a ser usado. La primera situación es cuando las herramientas han sido desacopladas y caído por debajo del buje guía. En esta situación es posible recuperar la columna de herramientas y, si no han habido daños, volver a perforar. La otra situación es cuando se ha roto la barra de perforación y, o han caído por debajo del buje guía o no pueden ser manejadas normalmente. Si las herramientas se han desacoplado y el extremo superior de la columna de herramientas todavía está por sobre el buje guía, reacople las herramientas como se hubiera hecho normalmente para una unión normal. Amordace la columna de herramientas con la llave de herramientas para ayudar a hacer la unión. Cuando las herramientas estén acopladas, saque la columna de herramientas del pozo, quite la broca y aplique caudal de aire por un momento para limpiar el interior de las barras de perforación. Limpie y reinstale la broca y vuelva a perforar normalmente. Si las barras se han desacoplado y el extremo superior de la columna de herramientas queda por debajo del buje guía pero aún sobre el nivel del terreno, reacople la como se hubiera hecho normalmente para una unión normal, excepto de tener precaución cuando realice la unión. Se necesita precaución para realizar la unión ya que la herramienta en el pozo quedará ahora en ángulo con respecto a las herramientas de la perforadora. En esta situación, es posible cruzar los hilos de la unión, pero debería ser evitado ya que no solo se dañarán los hilos sino que también resultará un acople poco confiable. Un método para realinear las herramientas, sería fijar un dispositivo de tracción a las herramientas en el pozo y centrarlas con bloques (asegúrese que éstos no caigan dentro del hoyo). Esto permitiría hacer un acople normal sin tener que abandonar el pozo. Si esto no es posible, las patas de nivelación pueden ser ajustadas para alinear las herramientas. Asegúrese de que los límites de estabilidad de la máquina no sean excedidos. Será necesario abandonar el pozo ya que la perforadora no podrá ser reposicionada en la misma orientación exacta que tenía antes de perder la herramienta. Cuando se haya recuperado las herramientas, limpie las barras y la broca como se detalló en el primer procedimiento de ésta sección y vuelva a perforar normalmente Si las barras se han desacoplado y el extremo superior de la columna de herramientas perdida queda bajo el nivel del terreno, hay dos métodos de recuperación de las herramientas perdidas. Un método es intentar hacer la unión usando la barra de perforación que aún queda conectada a la unidad de accionamiento de rotación. El otro método es utilizar equipo especial (no suministrados por Caterpillar Global Mining) para recuperar las herramientas.
  • 144.
    2-102 Operación Sección MD6640 PerforadoraElectrica Para Pozos De Tronadura Si la parte superior de la herramienta perdida no se puede alcanzar desde el nivel del terreno, baje lentamente la columna de herramienta restante hasta que contacte la herramienta en el pozo. Usando velocidad de rotación muy lenta y bajo torque, intente reacoplar la unión. Si se puede hacer la unión, levante las herramientas muy lentamente hasta el punto donde la parte superior de la herramienta recuperada pueda ser amordazada por la llave de herramientas. Reabra la unión e inspeccione los hilos en ambas secciones de barra. Si es necesario, repare los hilos antes de continuar. Cuando esté reparada la columna de perforación, saque la broca y limpie ambas para quitar cualquier suciedad que pudo haber entrado mientras la unión estuvo desacoplada. Si la unión no pudo ser realizada usando el procedimiento anterior, o si la barra se ha quebrado o se ha dañado en una extensión tal que no puede ser manejada normalmente, será necesario utilizar equipamiento y técnicas especiales para continuar perforando o recuperar las herramientas perdidas. No está dentro de los objetivos de éste manual detallar los procedimientos necesarios para manejar herramientas quebradas o perdidas y el uso de éstas herramientas especiales deberían ser descritos por su fabricante. PRECAUCIÓN: CUANDO REALICE PROCEDIMIENTOS ESPECIALES NO DETALLADOS EN ÉSTE MANUAL, SIEMPRE SIGA LAS RECOMENDACIONES DEL FABRICANTE DE LAS HERRAMIENTAS Y PAUTAS PRUDENTES DE SEGURIDAD. LA OMISIÓN DE SEGUIR PROCEDIMIENTOS SEGUROS PUEDE CAUSAR LA MUERTE, EN SERIAS LESIONES AL PERSONAL O EN SERIOS DAÑOS A LA MÁQUINA.
  • 145.
    2-103 Operación Sección MD6640 PerforadoraElectrica Para Pozos De Tronadural CARTA DE ESTABILIDAD DE PERFORACIÓN ° Carta de Estabilidad de Perforación - Condiciones Especiales de Propulsion
  • 146.
    2-104 Operación Sección MD6640 PerforadoraElectrica Para Pozos De Tronadura Carta de Estabilidad de Perforación - Condiciones Tipicas de Propulsion
  • 147.
    3-1 Lubricación Sección MD6640 PerforadoraElectrica Para Pozos De Tronadura Sección 3 Lubricación Recurra siempre a la información de seguridad de la Sección 1 de éste manual antes de iniciar todo proceso de mantención en esta máquina. Tabla de Contenidos PRINCIPIOS DE LUBRICACIÓN...................................................................................................3 Estanque de Auto Lubricacion y Panel de Control ....................................................................... 4 INYECTORES DE LUBRICACIÓN LINCOLN TIPO SL-1 .......................................................9 OPERACIÓN DE LOS INYECTORES DE LUBRICACIÓN.............................................10 VENTAJAS DE LOS INYECTORES ................................................................................ 11 SOLUCIÓN DE PROBLEMAS ..............................................................................................12 LUBRICADOR BIT ......................................................................................................................14 MANTENIMIENTO BOMBA DE FLUJO..................................................................................14 PROCEDIMIENTO DE ALIVIO DE PRESIÓN .................................................................14 AJUSTE DE LA VÁLVULA DE CONTROL DE PRESIÓN ................................................15 AJUSTE DE LA VÁLVULA DE CONTROL DE FLUJO ..........................................................15 Diagramas Esquemáticos de Flujo de la Bomba hidráulica de Transmisión Rotacional ..............15 ACEITE DEL CRANK CASE OILCÁRTER............................................................................16 PROCEDIMIENTO DE DESMONTAJE DE LA BOMBA ........................................................16 Ensambladura de la Bomba Hidráulica de Transmisión Rotacional ............................................18 PROCEDIMIENTO DE MONTAJE DE LA BOMBA................................................................19 Componentes de la Bomba hidráulica de Transmisión Rotacional Flow .....................................20 LOCALIZACIÓN DE AVERÍAS (TROUBLESHOOTING) .....................................................21 Diagrama esquemático hidráulico de la bomba de lubricante .....................................................22 PUNTOS DE LUBRICACIÓN ......................................................................................................23 CAPACIDADES DE LA CAJA DE ENGRANAJES Y DEL RESERVORIO .............................23 LUBRICACIÓN DE PARTES BAJAS .....................................................................................25 LUBRICACIÓN DEL BASTIDOR PRINCIPAL........................................................................26 LUBRICACIÓN DEL MÁSTIL ~ PARTE 1 ....................................................................................27 LUBRICACIÓN DEL MÁSTIL ~ PARTE 2 ..............................................................................28 LUBRICACIÓN DEL MÁSTIL ~ PARTE 3 ..............................................................................29 LIMPIEZA DEL LUBRICANTE ................................................................................................30 SELECCIÓN DE LUBRICANTE ..................................................................................................31 ACSL - LUBRICANTE PARA COMPRESOR DE AIRE (TIPO TORNILLO)...........................32 MPO - ACEITE MULTIPROPÓSITO......................................................................................33 RWRL - LUBRICANTE DE CABLE MOTRIZ DE ACERO ....................................................34 HYDO –ACEITE HIDRÁULICO. ............................................................................................36 FLUIDO HIDRÁULICO SINTÉTICO PAO. .......................................................................37 FLUIDO HIDRÁULICO DE BASE PARAFÍNICA DE PETRÓLEO....................................37 CARTA DE VISCOSIDAD RECOMENDADA vs. TEMPERATURA (OAT) ...................................38
  • 148.
    3-2 Lubricación Sección MD6640 PerforadoraElectrica Para Pozos De Tronadura ESPECIFICACIONES ADICIONALES DE LA LUBRICACIÓN: EGL – LUBRICANTE DE LA CAJA DE ENGRANAJES CERRADO ................................... (parte) MPG – GRASA MULTIPROPÓSITO ................................................................................... (parte) OGL – LUBRICANTE PARA ENGRANAJES ABIERTOS .................................................... (parte) LISTADO DE LUBRICANTES CERTIFICADOS OGL, MPG, Y EGL................................... (parte)
  • 149.
    3-3 Lubricación Sección MD6640 PerforadoraElectrica Para Pozos De Tronadura Sección 3 Lubricación PRINCIPIOS DE LUBRICACIÓN La correcta lubricación de ésta máquina es vital para su exitosa y contínua operación. Aplicar el lubricante CORRECTO, en la cantidad y sito CORRECTO, como parte de un programa PROBADO de mantención, es requisito para mantener la máquina operando a un nivel de productividad. La correcta lubricación dará mejor vida de servicio al componente, con reducción de reparaciones y detenciones. Al no lubricarse bien, las partes móviles se gastan más rápido y fallan mas temprano. Los ítems de mayor desgaste de ésta máquina son lubricados por un sistema automático que entrega lubricante a puntos elegidos, a intervalos de tiempo preseleccionados, durante la operación de la máquina. Este sistema es descrito con más detalles, más adelante en ésta sección. Es importante para la operación de éste sistema de lubricación automática, que se familiarice con él y entienda su operación, para mantenerlo y hacerle el servicio correcto para conservarlo operativo. También es necesario que inspeccione a intervalos regulares, los puntos de aplicación automática de lubricante, para asegurarse de que el sistema está realizando su trabajo en forma adecuada. Algunos componentes, por su ubicación y función, no se pueden cubrir debidamente con el sistema de lubricación automática. Debe familiarizarse con dichos puntos para atenderlos oportunamente y a los intervalos establecidos. Un listado de los componentes cubiertos por el sistema de lubricación automática se incluye más adelante en ésta sección. Las conexiones standard de lubricación usadas para servicio manual son del tipo hidráulico, de ajuste rápido, con hilos NPT de 1/8” o 1/4”. Bujes y rodamientos que operan en atmósfera altamente contaminada (polvo, arenisca, etc.) deben lubricarse hasta que aparezca grasa fresca alrededor de la chumacera o del sello, o salga por la conexión de purga, si es que está provista con ella. Sobrellenar un rodamiento anti-fricción, puede causar que gire excesivamente caliente. Después de lubricar rodamientos anti-fricción, (los que son sellados, como en motores eléctricos, deben usar grasa para motores eléctricos) quite la conexión de presión o el tapón de alivio cuando exista, permitiendo que él se purge a sí mismo de cualquier exceso de lubricante, en los primeros 10-15 minutos de operación. Luego, reinstale la conexión o tapón. En un rodamiento, la grasa generalmente se deteriora gradualmente, no repentinamente. Solo se necesita adicionar pequeñas cantidades a intervalos regulares para mantener el nivel correcto de lubricante. Lo adecuado es agregar una pequeña cantidad de grasa cada 600 horas operativas, a no ser que se especifique otra cosa. Los engranajes abiertos y piñones requieren una película constante de lubricante de alto grado, especificado para su operación. Inspeccione todos los conjuntos de engranajes abiertos, al menos una vez al día (cada 24 horas), asegurándose que están cubiertos con OGL. PRECAUCIÓN: El contacto con o la ingestión de productos de petróleo puede ser nocivo. El sistema de lubricación automática opera bajo presión. Antes de abrir cualquier línea de suministro, alivie el sistema y ésa línea en particular, de cualquier presión residual.
  • 150.
    3-4 Lubricación Sección MD6640 PerforadoraElectrica Para Pozos De Tronadura Estanque de Auto Lubricacion y Panel de Control
  • 151.
    3-5 Lubricación Sección MD6640 PerforadoraElectrica Para Pozos De Tronadura
  • 152.
    3-6 Lubricación Sección MD6640 PerforadoraElectrica Para Pozos De Tronadura
  • 153.
    3-7 Lubricación Sección MD6640 PerforadoraElectrica Para Pozos De Tronadura
  • 154.
    3-8 Lubricación Sección MD6640 PerforadoraElectrica Para Pozos De Tronadura
  • 155.
    3-9 Lubricación Sección MD6640 PerforadoraElectrica Para Pozos De Tronadura INYECTORES DE LUBRICACIÓN LINCOLN TIPO SL-1 Estos inyectores instalados en serie, operados a presión y de accionamiento por resorte, se suministran montados en bancos, en manifolds o individualmente. Cada inyector expele un máximo de .08 pulgadas cúbicas de lubricante por cada ciclo, desde su puerto de salida. Puertos de salida doble en cada inyector permiten que sean conectados en serie, para aumentar el suministro de lubricante a un punto común. La cantidad de lubricante para una correcta cobertura de cada punto de ésta máquina, ha sido cuidadosamente diseñado por nuestros ingenieros. La salida de cada inyector se puede ajustar, sin embargo, Caterpillar recomienda que los inyectores sean calibrados al comienzo y usados a su máxima capacidad. NOTA: Presión de Operación MÁXIMA: 3,500 PSI Presión de Operación RECOMENDADA: 2,500 PSI Presión de Operación MÍNIMA: 1,850 PSI Presión de Recarga MÁXIMA: 600 PSI PRECAUCIÓN: ¡ENERGÍAALMACENADA! Contacto con o la ingestión de productos de petróleo puede ser dañosa. Los sistemas de lubricación automáticos funcionan bajo la presión. Antes de abrir cualquier línea de abastecimiento de lubricación, alivie el sistema y aquella línea en particular, de cualquier presión residual. Para calibrar un inyector a máxima capacidad: 1. Suelte la tuerca de cierre. 2. Gire la tuerca de ajuste hasta dejar un pequeño espacio en la parte superior del vástago. 3. Oriente la tuerca de ajuste de forma que la abertura quede mirando hacia el frente del inyector. 4. Apriete la tuerca de cierre. Para reducir la capacidad de un inyector: 1. Suelte la tuerca de cierre. 2. Gire la tuerca de ajuste a la derecha hasta obtener el rango de descarga deseado. Ésto fuerza el vástago dentro del cuerpo, retardando el movimiento del vástago. 3. Apriete la tuerca de cierre. PRECAUCIÓN: No gire la tuerca de ajustehacia abajo (la derecha) más de 5 giros completos desde la calibración de máxima descaraga. Revise el flujo de salida del inyectoren ese instante, asegurándose que aún está operando. Si no es así, devuelva el ajuste de la tuerca hasta que el inyector opere consistentemente. Revise la operación del inyector ajustado en 3 o 4 ciclos, luego de retornar la máquina al trabajo, para
  • 156.
    3-10 Lubricación Sección MD6640 PerforadoraElectrica Para Pozos De Tronadura confirmar que está operando. OPERACIÓN DE LOS INYECTORES DE LUBRICACIÓN ETAPA1: El pistón del inyector está en su posición normal o reinstalado. La cámara de descarga está llena con lubricante del ciclo anterior. Bajo la presión del lubricante entrante, la válvula de corredera está cerca de abrir el pasaje en dirección al pistón. ETAPA2: Cuando la válvula de corredera abre el pasaje, el lubricante es admitido hacia la parte superior del pistón, forzando el pistón hacia abajo. El pistón fuerza el lubricante desde la cámara de descarga a través del puerto de salida hacia su orientación. ETAPA3: A medida que el pistón completa su recorrido, empuja la válvula de corredera pasando el pasaje, cortando la más admisión de lubricante hacia el pasaje. El pistón y la válvula de corredera quedan en ésta posición hasta que la presión del lubricante en la línea de suministro es desahogada (aliviada) en la bomba. ETAPA4: Después que la presión es aliviada, el resorte comprimido mueve la válvula de corredera a la posición cerrada. Esto abre el puerto desde la cámara de medición y permite al lubricante ser transferido desde la parte superior del pistón a la cámara de descarga. NOTA: Los inyectores se pueden montar individualmente o agrupados en un manifold en alguna ubicación.
  • 157.
    3-11 Lubricación Sección MD6640 PerforadoraElectrica Para Pozos De Tronadura VENTAJAS DE LOS INYECTORES
  • 158.
    3-12 Lubricación Sección MD6640 PerforadoraElectrica Para Pozos De Tronadura SOLUCIÓN DE PROBLEMAS CIERRES DE AIRE: Cuando el sistema no está cebado adecuadamente, el aire a menudo queda atrapado en la bomba, línea de suministro, inyectores, o líneas de alimentación. Dado que los pozos de aire, con su gran compresibilidad, proveen una amortiguación contra la rápida elevación de la presión en la línea de suministro, estos sirven para hacer que el ciclaje del sistema se vuelva lento y errático. En algunos casos extremos, especialmente cuando la bomba está bloqueada por aire, tornan inoperable al sistema. NOTA: Si el tiempo de ciclado de una instalación nueva excede enormemente el tiempo de ciclado determinado en el planeamiento del sistema, es un indicador de una bolsa de aire en el sistema. Cuando la bomba falla al cebar y bombear debido a las bolsas de aire, se deberá abrir el tapón de ventilación ubicado en, o cerca de la salida de la bomba en todos los modelos Lincoln mientras la bomba está en funcionamiento y se deje escapar todo el aire. Se recomienda el uso de aceite como ayuda para el cebado. El aire en las líneas de suministro se expulsa aflojando los tapones de los tubos en el extremo de cada línea (líneas de suministro principales, etc.) y permitiendo que generosas cantidades de lubricante escapen llevando consigo el aire atrapado. Las bolsas de aire en los inyectores se corrigen, en el caso de los inyectores SL-1, al abrir el accesorio de lubricación y permitiendo que el lubricante y el aire escapen. Las bolsas de aire en la línea de alimentación pueden ser corregidas aflojando la conexión de la línea de alimentación en el cojinete de entrada y permitiendo que el lubricante y el aire escapen al tiempo que el sistema se cicla repetidamente. No afloje ninguna conexión que esté bajo presión. LÍNEAS DE SUMINISTRO SUCIAS: Este es un problema de Mantenimiento preventivo y deberá verificarse por completo antes de que se instale el sistema. Sin embargo, en general se puede rastrear una mala función de los inyectores o de la válvula de ventilación, desarmando la unidad y examinándola. Puede haber material extraño en la superficie de las líneas internas de suministro que impedirá un funcionamiento adecuado. TODOS LOS INYECTORES NO TRABAJAN ADECUADAMENTE. En un sistema instalado recientemente, las varillas del indicador de uno o más inyectores no se mueven a la posición de descarga. Como resultado, alguno de los cojinetes no reciben la cantidad de lubricante calculada. Aquellas unidades equipadas con un interruptor de presión deberán ajustarse para permitir que se desarrolle una presión más alta, nivel en el que todos los inyectores descargarán.
  • 159.
    3-13 Lubricación Sección MD6640 PerforadoraElectrica Para Pozos De Tronadura Esas unidades equipadas con un interruptor de presión deben estar ajustada para permitir el desarrollo de una presión mas alta, a cuál nivel todos los inyectores se descargaran. 3500 PSI máximo para los sistemas alta de presión. 1000 PSI máximo para los sistemas baja de presión. (Para alargar vida, mantenga presión a un mínimo permisible para la operación correcta del inyector.) LOS VÁSTAGOS DEL INDICADOR NO VUELVEN A LA NORMALIDAD: Esta condición podría ser debido a la operación inactiva de todas las asambleas nuevas y después de algunas operaciones esta rigidez pueda desaparecer. Sin embargo, podría ser una indicación que, después de desahogarse, la presión residual de la línea del suministro es demasiado alta para permitir que los inyectores funcionen normalmente. Esto es debido a una restricción en la línea del suministro que le pone obstaculiza a la presión rápida de desfogue. Esta condición puede ser el resultado de muchas cosas: Notablemente, lubricantes, las bajas temperaturas en las cuales los lubricantes se rigidizan, o acoplado con lo antedicho, o un ciclo de lubricación sumamente corto. Esta condición es usualmente encontrada cuando el ciclo de lubricación es relativamente corto. En el sistema automático, donde el ciclo puede estar tan bajo como 3-3/4 minutos, puede ser un problema grande. CORRECCIONES: 1. El lubricante debe ser chequeado. El uso del sistema centralizado elimina la necesidad (en la mayoría de los casos) del pesado aditivo de jabón que sólo alarga la línea efectiva de la aplicación lubricante individual. 2. El lubricante puede ser hecho mas resistente a los cambios físicos con del uso de aditivos de bajas temperaturas. 3. La salida de lubricante por ciclo puede ser aumentada y el intervalo de lubricación alargado. 4. Asegurarse que el lubricante utilizado cumpla con los requisitos del sistema. Cuando los sistemas manuales están siendo probados después de la instalación, operaciones repetidas pueden usar intervalos cortos entre ciclos. Bajo condiciones normales, el completar un ciclo de un sistema manual será generalmente infrecuente (una vez una hora a lo más), permitiendo tiempo suficiente para un venteo adecuado.
  • 160.
    3-14 Lubricación Sección MD6640 PerforadoraElectrica Para Pozos De Tronadura LUBRICADOR BIT El lubricador de la broca está ubicado a la derecha, en el frente de la máquina, debajo de la caja del filtro de aire. MANTENIMIENTO BOMBA DE FLUJO PRECAUCIÓN: Para reducir el riesgo de graves accidentes y lesiones corporales serias, incluida la inyección de fluidos, lesiones por componentes en movimiento, y el salpicado en los ojos o en la piel, siempre siga el Procedimiento de Alivio de Presión cada vez que UD. apague la bomba; cuando revise cualquier parte del sistema de rociado, cuando instale, limpie o cambie boquillas de las válvulas de distribución o siempre que detenga la distribución. PROCEDIMIENTO DE ALIVIO DE PRESIÓN 1. Cierre la válvula de cierre a la línea de abastecimiento. 2. Apague en el panel de control el suministro de energía a la bomba de lubricación. Desconectar la fuente de poder de 24VDC a la válvula solenoide. 3. Alivie la presión en el descargador de seguridad. La bomba de Lubricación esta configurada de fabrica a 350 PSI de presión de trabajo del sistema de ingreso hidráulico, con un nivel de flujo de 2.5 GPM. Mantener la presión hidráulica entre 300- 450 PSI. El máximo nivel de flujo es 7 GPM. Sin embargo, el ajustar a la mínima presión de salida de la bomba y del fluido de líquido hidráulico, obteniendo los resultados deseados, minimiza el deterioro de la bomba.
  • 161.
    3-15 Lubricación Sección MD6640 PerforadoraElectrica Para Pozos De Tronadura La presión de la bomba y el nivel de flujo dependerán de las temperaturas de operación. NUNCA AJUSTE LA PRESIÓN DE LA BOMBA ANTES DE PROCEDIMIENTO DE ARRANQUE (INICIACIÓN). Para mayor información de la instalación e iniciación, lea los textos del fabricante incluidos con esta máquina. AJUSTE DE LA VÁLVULA DE CONTROL DE PRESIÓN 1. Aflojar la tuerca de fijación en la válvula reductora de presión, girándola en sentido contra reloj. 2. Girar en sentido contra reloj el vástago de la válvula hasta el final. Este ajuste permite fijar la presión al mínimo, lo que es aproximadamente 170 PSI. 3. Con la bomba detenida por la presión, Girar en sentido del reloj el vástago de la válvula hasta obtener la presión deseada en el manómetro. NUNCA EXCEDA LOS 450 PSI. 4. Apretar (en el sentido de las manecillas del reloj) la tuerca de fijación hasta lo 20-25 Pies-Lbs. AJUSTE DE LA VÁLVULA DE CONTROL DE FLUJO 1. Aflojar la tuerca de fijación de la válvula de control de flujo, girándola en el sentido Contra Reloj. 2. Ajustar el flujo al girar el vástago de la válvula en el sentido del reloj para reducir el flujo y contra reloj para incrementarlo. La válvula de flujo puede ser girada hasta que esta este completamente cerrada y hasta un máximo de 2 y media vueltas. 3. Después de ajustar el flujo al nivel deseado, apretar (en el sentido del reloj) la tuerca de fijación hasta 20-25 Pies-Lbs. Diagramas Esquemáticos de Flujo de la Bomba hidráulica de Transmisión Rotacional
  • 162.
    3-16 Lubricación Sección MD6640 PerforadoraElectrica Para Pozos De Tronadura PELIGRO: Alivie de presión a la bomba y los conductos de suministro antes de efectuar mantenciones o reparaciones a la bomba, para reducir el riesgo de graves accidentes y lesiones corporales serias , incluida la inyección de fluidos, lesiones por componentes en movimiento, y el salpicado en los ojos o en la piel. ACEITE DEL CRANK CASE OILCÁRTER Revise el aceite del Cárter cada 100 horas de operación. Cambie el aceite del Cárter cada 500 horas de operación. Use aceite de motor SAE 10W30 en todas las unidades excepto el Modelo 85610. El fabricante para el modelo 85610, recomienda MobilArrow HFAAceite para bajas temperaturas, cuando se opera a temperatura ambiente de 21 Grados Celsius (70°F). El Cárter deberá estar lleno de aceite hasta el centro del tapón de drenaje ubicado en la parte posterior del Cárter. PROCEDIMIENTO DE DESMONTAJE DE LA BOMBA 1. Remueva y separe el distribuidor (37) del motor hidráulico (42). 2. Remueva el tapón (45) y drene el aceite del Cárter desde el alojamiento de la bomba (46). 3. Remueva la cubierta del alojamiento (30) y la cubierta de la junta (31). 4. Remueva el anillo de retención (57) y tirar el tapón pala (56), de la tubería del alojamiento (55). 5. Remueva y separe el motor hidráulico (42) del alojamiento de la bomba (46). 6. Remueva los dos pernos de salida (50) del alojamiento de la bomba (46). 7. Remueva el sub-ensamblaje (1-28), del alojamiento de la bomba (46). Ayuda el empujar hacia arriba el sub-ensamblaje utilizando una barra de madera o plástico de 75 pulgadas de Diámetro Externo (D.E) contra el alojamiento base (28). 8. Remover el alojamiento del tubo (55) del alojamiento de la bomba (46) insertando una barra de 75 pulgadas D.E. a través de los orificios de entrada en la base del alojamiento de la tubería (55) y desatornillándolo. 9. Remover el rodamiento de bronce (51), el o-ring (52) y la arandela (golilla) (53) del alojamiento de la tubería (55).
  • 163.
    3-17 Lubricación Sección MD6640 PerforadoraElectrica Para Pozos De Tronadura 10. Remover la ensambladura de Crankrod (1-8) desde la bomba, desatornillando los tornillos (12) y tirando los pernos bujes (13). 11. Remover el alojamiento de la base (28) del tubo reciproco (21). 12. Desatornillar el pasador de anclaje (14) del tubo reciproco (21) y tirar la ensambladura de embolo (9-20) desde el tubo. 13. Usando una barra de 50 pulgadas de Diámetro Externo, empujar el sello de la copa (22) y el cilindro de la bomba (24) del tubo reciproco (21). 14 Remover el embolo (20) de la bomba, desde la barra de acoplamiento (17) del embolo. Una llave para tuercas es necesaria. 15. Desatornillar la barra de acoplamiento (17), desde el tubo del embolo (11) y retirar el sello de la copa (16), golilla (15) y el pasador de anclaje (14). 16 Desatornillar el tubo del embolo (11), del pasador de salida (9). 17. Para desarmar la Ensambladura del Cárter (1-8), remover los tornillos (1) y los contrapesos (2). 18. Remover los anillos retenedores (6) y presionar el excéntrico (7) hacia fuera del rodamiento de bola (8). Asegúrese de soportar el rodamiento de bola (8) en su pista interna.
  • 164.
    3-18 Lubricación Sección MD6640 PerforadoraElectrica Para Pozos De Tronadura Ensambladura de la Bomba Hidráulica de Transmisión Rotacional
  • 165.
    3-19 Lubricación Sección MD6640 PerforadoraElectrica Para Pozos De Tronadura PROCEDIMIENTO DE MONTAJE DE LA BOMBA 1. Cuando la Bomba esta desmontada, se recomienda cambiar todos los sellos y juntas. Para el reemplazo de componentes y Kits de servicio, vea la planilla de partes, “Bomba hidráulica, de Transmisión Rotacional”, en el manual de partes para esta maquina. 2. En el proceso de desmontaje, examine los siguientes componentes y reemplace si existe excesivo desgaste: • Rodamiento de Bola (8) • Excéntrico (7) • Cranck Rod (5) • Perno de Buje (13) • Tubo del Embolo (11) • Embolo de la Bomba, Bola y Resorte (18-20) • Cilindro de la Bomba (24) • Alojamiento de la Base y Bola (26 & 28) • Buje de Bronce Superior (51) • Alojamiento de Tubería (55) • Tapón Pala (56) • Tubo Reciproco (21) 3. El procedimiento de Montaje es el reverso del procedimiento de desmontaje a excepción de lo siguiente: 4. Instalar partes (22-28) dentro del Tubo Reciproco (21) después que es instalado la Ensambladura del Embolo (9-20). 5. Instalar la sub-ensambladura de la bomba (1-28) dentro del alojamiento de la bomba (46), antes de apretar el alojamiento de la tubería (55) en el alojamiento de la bomba (46).Asegúrese que el tubo reciproco (21) este insertado a través de ambos bujes antes de apretar el alojamiento del tubo (55). 6. Utilice cerradura roscada de fuerza mediana loctite 242 (o un producto similar) en todas las conexiones roscadas. Se debe tomar cuidado extremo para evitar que el exceso de compuesto fluya en áreas críticas tales como ajustes de la separación y chequeo de bola. Permita un tiempo mínimo de 30 minutos antes de operar la bomba.
  • 166.
    3-20 Lubricación Sección MD6640 PerforadoraElectrica Para Pozos De Tronadura Componentes de la Bomba hidráulica de Transmisión Rotacional Flow
  • 167.
    3-21 Lubricación Sección MD6640 PerforadoraElectrica Para Pozos De Tronadura LOCALIZACIÓN DE AVERÍAS (TROUBLESHOOTING) Condición Causa Posible Solución Bomba no funciona Manómetro sin presión (32): - Línea de abastecimiento cerrada Abrir llave de válvula cortó válvula. - Válvula de Solenoide (34) apagada. Corregir falla eléctrica - Falla Solenoide (35) Remplazar Solenoide (35) - Válvula de reducción de presión Resetear la válvula de reducción (38) se fijó en nivel muy bajo de presión. - Abastecimiento de líquido hidráulico Revisar abastecimiento hidráulico Insuficiente para presión y fluido adecuado. Presión que indica manómetro (32): - Línea salida de liquido cerrada. Revisar línea salida y aclarar obstrucciones - Válvula control de flujo Reajustar válvula ábrala girándola 3/4. completamente cerrada. - Bomba atascada debido a presión Reajustar válvula ábrala girándola 3/4. de la grasa. - Bomba deformada o dañada. Desmontar bomba y reparar componente defectuoso o deformado. Ver proceso desmontaje y ensamblaje. Bomba se acelera o corre Nivel bajo de grasa o reserva Rellenar reserva. irregularmente. vacía. Placa esta pegada y separada Revisar daños de placa y contenedor. de la grasa. Pistón o cheques de la bomba están Desmontar bomba y reparar. vencidos. Bomba opera, pero con salida baja Abastecimiento del liquido Revisar abastecimiento hidráulico y hidráulico insuficiente. ajustar flujo usando válvula (39). Presión de entrada muy baja Aumentar presión usando válvula (38). Entrada fallada (25, 26, 27) o Remplazar componentes fallados. Válvula descarga (18, 19, 20). Humedad en Tapa de Fábrica (30). Sello taza (16) o Anillo O (48) Revisar sellos y remplazar en caso gastado. necesario. Bomba llega a ser ruidosa. Cárter sin aceite. Agregar aceite al cárter. Retirar tapón de barra (45) de la bomba de alojamiento (46). Nivel de aceite deberá estar al fondo de la entrada del tapón de barra. Para modelos 85480, 85481, 85482, 85483 y 85247 Agregar aceite de motor 10W30 hasta que el cárter esté lleno. Para modelo 85610, agregar aceite hidráulico Mobil Arrow HFA hasta llenar cárter. Pernos de bujes gastados (13) Revisar los bujes y remplazar si es necesario. Bomba no genera presión. Material foráneo lo mantiene bajo Desmontar y revisar. Revisar instalación de pantalla de ingreso (63) antes de activar bomba.
  • 168.
    3-22 Lubricación Sección MD6640 PerforadoraElectrica Para Pozos De Tronadura Diagrama esquemático hidráulico de la bomba de lubricante
  • 169.
    3-23 Lubricación Sección MD6640 PerforadoraElectrica Para Pozos De Tronadura PUNTOS DE LUBRICACIÓN Las gráficas de lubricación en esta sección muestran los puntos principales en la máquina que va a ser lubricada. Se deberán verificar diariamente los sistemas de lubricación automática para ver si están operando adecuadamente y que cada punto de lubricación esté recibiendo la cantidad correcta de lubricante. Los tipos de lubricantes se describen en PARÁMETROS DE LUBRICANTES en esta sección del manual. CAPACIDADES DE LA CAJA DE ENGRANAJES Y DEL RESERVORIO
  • 170.
    3-24 Lubricación Sección MD6640 PerforadoraElectrica Para Pozos De Tronadura
  • 171.
    3-25 Lubricación Sección MD6640 PerforadoraElectrica Para Pozos De Tronadura La frecuencia de lubricación dada en cada gráfica se propone como guía. Bajo condiciones de funcionamiento atípicas, algunos puntos pueden requerir lubricación más frecuente o atención especial. Lubrique la máquina con buen criterio. Si un cojinete muestra signos de problemas, tales como sobrecalentamiento o ruido inusual, se le debe prestar atención inmediata. Asegúrese de que el lubricante no esté sucio o sea de un grado equivocado. Si la máquina funciona por más de un turno por día, todos los operadores deben cooperar para verificar la lubricación. Ningún punto debe quedar sin lubricación, y ninguno deberá lubricarse por demás. Se recomienda hacer esto al comienzo de cada turno. LUBRICACIÓN DE PARTES BAJAS PUNTO NO. DE PUNTOS TIPO HORAS C/NEC AUTO COMPONENTES lub lubricados lubr 8 40 160 1000 1 SELLADO/NA BUJES RODILLO INFERIOR 2 SELLADO/NA BUJES DE TAMBOR DE COMPENSACIÓN 3 4 MPG X X EJE POSTERIOR* 4 2 MPG X X PERNOS DEL EXTREMO DEL EJE DEL ECUALIZADOR 5 SELLADO/NA BUJE DEL RODILLO SUPERIOR * Rellenar las cavidades del bastidor de la oruga y del bloque de cojinetes; verificar anualmente. NOTAS: Las frecuencias mencionadas son para lubricación manual. Cuando esté equipado con un sistema de lubricación automática las frecuencias están establecidas en la estación de control de lubricación. En los sistemas de lubricación automática los inyectores se establecerán totalmente abiertos al comienzo del funcionamiento de una nueva máquina y luego reajustados como se requiera. Refiérase a los INYECTORES DE LUBRICANTE en esta sección del manual.
  • 172.
    3-26 Lubricación Sección MD6640 PerforadoraElectrica Para Pozos De Tronadura LUBRICACIÓN DEL BASTIDOR PRINCIPAL PUNTO NO. DE PUNTOS TIPO HORAS C/NEC AUTO COMPONENTES lub lubricados lubr 8 40 160 1000 1 12 MPG X X CUBIERTA INFERIOR DEL SOPORTE NIVELADOR 2 1 MPG X X PERNOS DEL CENTRO DEL EJE COMPENSADOR 3 2 MPG X X PERNOS DE CIERRE DEL MÁSTIL 4 2 MPG X X PERNOS DELCIERRE DEL BASTIDOR A (OPCIONAL) NOTAS: Las frecuencias mencionadas son para lubricación manual. Cuando esté equipado con un sistema de lubricación automática las frecuencias están establecidas en la estación de control de lubricación. En los sistemas de lubricación automática los inyectores se establecerán totalmente abiertos al comienzo del funcionamiento de una nueva máquina y luego reajustados como se requiera. Refiérase a los INYECTORES DE LUBRICANTE en esta sección del manual.
  • 173.
    3-27 Lubricación Sección MD6640 PerforadoraElectrica Para Pozos De Tronadura LUBRICACIÓN DEL MÁSTIL ~ PARTE 1 PUNTO NO. DE PUNTOS TIPO HORAS C/NEC AUTO COMPONENTES lub lubricados lubr 8 40 160 1000 1 2 MPG X X GUÍAS DE LA LLAVE DEL CILINDRO 2 4 MPG X X CONJUNTO DE COJINETES DE LAVE 3 2 MPG X SUJETADORES DE LALLAVE DEL CILINDRO 4 6 MPG X BUJES DE LA PALANCA DE LA CORTINA ANTIPOLVO 5 2 COJINETES DE LA POLEA DEL CABRESTANTE DE CUERDA AUXILIAR (SELLADOS) 6 1 RWRL X CUERDADE CABRESTANTEAUXILIAR 7 2 MPG X PERNOS DE SUJECIÓN DE LA ABRAZADERA DEL MÁSTIL 8 2 MPG X POLEA DE GANCHO (OPCIONAL) NOTAS: Las frecuencias mencionadas son para lubricación manual. Cuando esté equipado con un sistema de lubricación automática las frecuencias están establecidas en la estación de control de lubricación. En los sistemas de lubricación automática los inyectores se establecerán totalmente abiertos al comienzo del funcionamiento de una nueva máquina y luego reajustados como se requiera. Refiérase a los INYECTORES DE LUBRICANTE en esta sección del manual.
  • 174.
    3-28 Lubricación Sección MD6640 PerforadoraElectrica Para Pozos De Tronadura LUBRICACIÓN DEL MÁSTIL ~ PARTE 2 PUNTO NO. DE PUNTOS TIPO HORAS C/NEC AUTO COMPONENTES lub lubricados lubr 8 40 160 1000 1 1 MPG X X SELLO GIRATORIO DEAIRE 2 1 MPG X X COJINETEDELEJEROTATORIO SUPERIOR 3 1 MPG X X SELLO ROTATORIO DELEJE INFERIOR 4 1 MPG X X COJINETE SUPERIOR DELEJE INT. 5 2 MPG X X COJINETE DEL EJE TRANSPORTADOR 6 2 MPG X X CREMALLERA Y PIÑONES 7 1 MPG X AMORTIGUADOR DE CHOQUE O SELLO DEACOPLE GIRATORIO 8 6 MPG X X RODILLOS GUÍA 9 2 MPG X X COJINETES DEL EJE TRANSPORTADOR 1ER. INT. 10 1 MPG X COJINETES ENGRANAJE INTERNO 11 2 MPG X PERNO DEL PIVOTE DEL BASTIDOR DE LA RUEDA 12 4 MPG X COJINETE DEL RODILLO DE LA RUEDA NOTAS: Las frecuencias mencionadas son para lubricación manual. Cuando esté equipado con un sistema de lubricación automática las frecuencias están establecidas en la estación de control de lubricación. En los sistemas de lubricación automática los inyectores se establecerán totalmente abiertos al comienzo del funcionamiento de una nueva máquina y luego reajustados como se requiera. Refiérase a los INYECTORES DE LUBRICANTE en esta sección del manual.
  • 175.
    3-29 Lubricación Sección MD6640 PerforadoraElectrica Para Pozos De Tronadura LUBRICACIÓN DEL MÁSTIL ~ PARTE 3 PUNTO NO. DE PUNTOS TIPO HORAS C/NEC AUTO COMPONENTES lub lubricados lubr 8 40 160 1000 1 MPG X X PIVOTE SUPERIOR DE LA COLUMNA MANO IZQUIERDA 2 1 MPG X X PIVOTE INFERIOR DE LA COLUMNA MANO IZQUIERDA 3 1 MPG X X SOPORTE DE TUBO SUPERIOR MANO DERECHA 4 1 MPG X X SOPORTE DE TU BO INFERIOR MANO DERECHA 5 1 MPG X PERNO DE SUJECIÓN DE LA COLUMNA DEL PIVOTEMANO IZQUIERDA 6 1 MPG X PERNO DE SUJECIÓN DE LA COLUMNA DEL PIVOTEMANO DERECHA 7 1 MPG X X PERNO DE PUERTA SUPERIOR 8 1 MPG X X BUJE DEL MONTAJE DEL PIVOTE INTERMEDIO 9 1 MPG X X DETECTOR NOTAS: Las frecuencias mencionadas son para lubricación manual. Cuando esté equipado con un sistema de lubricación automática las frecuencias están establecidas en la estación de control de lubricación. En los sistemas de lubricación automática los inyectores se establecerán totalmente abiertos al comienzo del funcionamiento de una nueva máquina y luego reajustados como se requiera. Refiérase a los INYECTORES DE LUBRICANTE en esta sección del manual.
  • 176.
    3-30 Lubricación Sección MD6640 PerforadoraElectrica Para Pozos De Tronadura LIMPIEZA DEL LUBRICANTE Aún el mejor lubricante es inútil como preventivo de desgaste si se llegado a contaminar por manejo y almacenamiento descuidado. El fabricante de lubricantes lo envasa en recipientes herméticos para mantenerlo limpio. Es responsabilidad de la persona que ejecuta la lubricación de la máquina quien debe asegurarse de que la suciedad no contamine el lubricante. Siga estos puntos de buena práctica en lubricación: • Mantenga todo aceite y otros lubricantes en contenedores herméticos. • Limpie bien las tapas antes de abrir los contenedores. • Conserve los embudos, latas de aceite, pistolas de engrase, etc. en un lugar limpio y límpielos antes de usarlos. • Limpie cada conexión antes de conectar la pistola de lubricante. • Limpie todas las tapas de llenado de aceite o las cubiertas y su área circundante antes de quitarlas.
  • 177.
    3-31 Lubricación Sección MD6640 PerforadoraElectrica Para Pozos De Tronadura SELECCIÓN DE LUBRICANTE La selección de lubricantes debidos para uso en ésta máquina, es crítica para su confiabilidad. Rodamientos, engranajes, acoples y otras partes de precisión mal lubricados, fallan rápido. Por esto se recomienda elegir lubricantes según standards de la “American Standards Testing Material” (ASTM). Éstos se recopilaron en cooperación con grandes proveedores de petróleo para asegurar al consumidor un suministro exacto segun necesidades específicas, sin considerar su orígen. Recomendamos advertir a su proveedor de lubricantes con la información siguiente para ayudarlo en la selección del producto apropiado para cada aplicación en ésta máquina. La aceptación final de todos los lubricantes suministrados de acuerdo a éstos standards, se basarán en su satisfactorio rendimiento en la aplicación proyectada y no exime al proveedor de responsabilidades de rendimiento para productos con sello de calidad. La operación de ésta máquina en temperaturas extremas (bajo -20°F/-29°C o sobre 110°F/44°C), necesita lubricación especial. Anote los rangos de temperatura sobre las hojas de especificación de lubricantes siguientes. Contacte a su proveedor local, a su representante de Caterpillar Global Mining, o al Departamento de Servicios de su oficina local de Caterpillar Global Mining por recomendaciones, si necesita información adicional o asesoramiento. • ALMACENE LOS TAMBORES DE LUBRICANTE DE COSTADO, CON LAABERTURAHACIAARRIBA. • ALMACENE TODOS LOS LUBRICANTES EN CONTENEDORES BIEN CERRADOS! • LIMPIE TODAS LAS CUBIERTAS Y ÁREACIRCUNDANTEANTES DEABRIRLOS! • FILTRE TODO ELACEITEANTES DEAGREGARLOAL SISTEMA! • USE SOLO LUBRICANTESAPROPIADOS Y LIMPIOS! • NO MEZCLE TIPOS O MARCAS DE LUBRICANTE! •Aún los mejores lubricantes son inútiles en prevenir el desgaste, si se han contaminado con suciedad o agua, producto de un manejo o almacenamiento descuidado.
  • 178.
    3-32 Lubricación Sección MD6640 PerforadoraElectrica Para Pozos De Tronadura ACSL - LUBRICANTE PARA COMPRESOR DE AIRE (TIPO TORNILLO) ALCANCE: Requerimiento para el rendimiento de la lubricación y recomendaciones para los lubricantes del Compresor de Aire (tipo Tornillo). NOTA IMPORTANTE Estos requerimientos de rendimiento de lubricante para los compresores de aire tipo tornillo sólo son válidos para los compresores de tornillo A-C de Compressor Corporation. Si la máquina está equipada con compresores de aire fabricados por otros proveedores distintos de A-C, debe contactar con el proveedor para que le entregue la información de mantenimiento para ese equipo específico y a la sección 7 de este manual. RECOMENDACIONES DE LUBRICANTE: Se recomiendan los siguientes lubricantes: 1. Si se espera que la temperatura ambiente esté siempre sobre -26°C (-15°F), utilice cualquiera de los siguientes: Fluido para Transmisión Automática (ATF) - General Motors Dexron III o Ford Tipo F. o Fluido de Hidrocarbono Sintetizado - Mobil Rarus SHC 924. 2. Si se espera que la temperatura ambiente caiga bajo los -40°C (-40°F), use Mobil Rarus SHC 1024 o Phillips Philesco ISO32 u otro equivalente. NOTA: Si la temperatura ambiente cae bajo los -26°C (-15°F), podría provocar que el lubricante se espese en el enfriador de aceite, lo que podría resultar en que la unidad se detenga luego de un corto período de funcionamiento. Si esto ocurre con frecuencia y el compresor está siendo lubricado con ATF, es recomendable que se utilice un lubricante de hidrocarbono sintetizado en vez del ATF. NOTA: Estos requerimientos de rendimiento son referencias y no una especificación. Por ello, cumplir estos límites tal como descrito más arriba no releva al proveedor de la responsabilidad asociada con los productos que son marcas registradas .
  • 179.
    3-33 Lubricación Sección MD6640 PerforadoraElectrica Para Pozos De Tronadura MPO - ACEITE MULTIPROPÓSITO ALCANCE: Requerimientos de rendimiento lubricante para aceites Multi-Propósito. APLICACION: La adición de un lubricante al sistema de aire comprimido (no para sistemas compresores de aire del tipo tornillo - vea la sección ACSL), aceitera manual, etc. REQUERIMIENTOS GENERALES: 1. Debe fluir a la temperatura aplicada. 2. Debe contener inhibidor de oxidación. 3. Clasificación de servicio “MS” para Motor oil - API. RECOMENDACIONES DE VISCOSIDAD: 1. Lubricante para la Línea de Aire TEMPERATURA AMBIENTE NUMERO SAE Bajo 10°F 5W Sobre 10° F 10 W 2. Aceitera Manual - Temperatura y viscosidad adecuada para la aplicación NOTA: Estos requerimientos de rendimiento son referencias y no una especificación. Por ello, cumplir estos límites tal como descrito más arriba no releva al proveedor de la responsabilidad asociada con los productos que son marcas registradas .
  • 180.
    3-34 Lubricación Sección MD6640 PerforadoraElectrica Para Pozos De Tronadura RWRL - LUBRICANTE DE CABLE MOTRIZ DE ACERO ALCANCE: Requerimientos de rendimiento de lubricación para el cable de levante. APLICACION: Principalemente para cables de levante o cualquier otro cable motriz donde la fatiga y el no desgaste son la principal preocupación. REQUERIMIENTOS GENERALES: 1. Penetrar entre los cables adyacentes de tal forma de lubricarlos y protegerlos contra el desgaste y para mantener el corazón del cable sin que se seque y se deteriore. 2. Coloque un lubricante entre las poleas y el cable de acero. 3. Debe resistir el lavado por agua. 4. Debe proteger contra la oxidación y corrosión. 5. Debe formar una película no adhesiva de tal forma que no permita la acumulación de polvo y suciedad sobre los cables. 6. Permanecer flexible y resistir la pérdida a las más bajas temperaturas a las cuales esté expuesto el cable. 7. Preferiblemente, debiera formar una película transparente levemente coloreada, para que puedan detectarse rápidamente durante la inspección, el desgaste, corrosión o alambres cortados. 8. Ser capaz de una fácil aplicación, tanto manualmente y mediante equipos sin necesidad de calentarlo. COMPOSICION: Adecuado para penetrar entre los alambres adyacentes del cable de tal forma de lubricarlos y también mantener el lubricante en el centro.
  • 181.
    3-35 Lubricación Sección MD6640 PerforadoraElectrica Para Pozos De Tronadura REQUIREMIENTOS ESPECIALES: 1. Debe pasar el Test de Estados Unidos para la Retención del Acero utiliznado un Tester Timken 2. Prueba Shell E.P. de Cuatro Bolas - (ASTM D-2596) Indice de pérdida de carga, kg., min.: 40 Carga soldadura kg., min.: 250 3. Desgaste de Cuato Bolas - (ASTM D-2266) Diámetro de marca de desgaste, mm., max.: 0.60 4. Carga Timken O.K. lbs., min. - (ASTM D-2782): 45 5. Corrosión de Cinta de Cobre - (ASTM D-130): pasa 6. Rangos de Aplicación de Temperatura sugeridos Debiera haber un lubricante para cada uno de los rangos de temperatura siguentes: 110°F to 30°F 40°F to 9°F 10°F to -50°F NOTA: Estos requerimientos de rendimiento son referencias y no una especificación. Por ello, cumplir estos límites tal como descrito más arriba no releva al proveedor de la responsabilidad asociada con los productos que son marcas registradas.
  • 182.
    3-36 Lubricación Sección MD6640 PerforadoraElectrica Para Pozos De Tronadura HYDO – ACEITE HIDRÁULICO. Caterpillar recomienda aceite hidráulico apropiado para usar todo el año, en vez de usar solo para verano o invierno, lo cual puede crear una mezcla de viscosidades so no se logra un drenaje completo del aceite. Esto puede comprometer la viscosidad deseada del aceite. La viscosidad standard para la perforadora MD6640 es máximo 3.000 centistokes (CST) en el día mas frío de arranque inicial y de 10 centistokes mínimo absoluto para el día de máximo calor durante la operación de la máquina. La viscosidad del aceite óptima a temperaturas normales de operación es de 30 a 60 centistokes. Para climas donde raramente las temperaturas ambientales caen demasiado bajo el punto de congelamiento (25ºF hasta 32ºF), un aceite hidráulico de base de petróleo parafínico con un pequeño o nulo mejorador de viscosidad (VI) puede ser aceptable. Para climas donde la temperatura ambiente cae mas bajo de –40ºF en su día más frío y son tan altas como 104ºF en su día más caluroso, se requiere un fluido VI mayor. Los fluidos de base parafínica NO DEBERÍAN SER USADOS donde la temperatura ambiente alcanza el congelamiento o ligeramente bajo el congelamiento. En temperaturas de congelamiento o ligeramente bajo el congelamiento, la cera de parafina comienza a solidificarse, causando que el fluido tenga una viscosidad mas espesa que la que implica realmente la curva temperatura-viscosidad. Adicionalmente, el aditivo VI en aceites de base de petróleo, tiene la habilidad de ser mecánicamente deformante, haciendo caer la viscosidad. Esto puede resultar en un fluido que puede ser totalmente inadecuado para usar después que ha estado en servicio por algún tiempo. Por todas las razones arriba mencionadas, más la preocupación del rango de oxidación e ingestión de agua que las derivan en sedimentos, Caterpillar recomienda intervalos de drenaje de 2.000 horas cuando se usan aceites hidráulicos de base de petróleo parafínico o de tipo nafténico. El aceite hidráulico preferido para la MD6640 es un fluido sintético PAO (poli-alfa-eleofino) con un aditivo VI naturalmente mayor. Como ejemplos podrían ser: 198 paraAceite Tellus T 722 de Shell®, un rango de 135 hasta 145 para Aceite Mobil® SHC serie 500, 134 para Fluido Hidráulico de Esso/ Exxon® Terrestic SHP 22 o 135 para Aceite SYNCON AW de Conoco®. La multiplicación por 3 o 4 veces en el costo de los fluidos sintéticos, comparados con los aceites de petróleo de base parafínica es equiparable por el hecho que el aceite sintético se puede dejar en el sistema 4 veces más (por ejemplo 8.000 horas) antes de un requerimiento de un intervalo de drenaje. El ahorro con el uso del aceite sintético es beneficioso porque la frecuencia de intervalos de drenaje disminuye por un factor de 4. Esto reduce los tiempos de mantención dedicados al cambio de aceite del sistema y el costo de deshacerse del aceite del sistema a un ¼ de lo que sería ser con el otro. Con todo lo anterior en mente, al usar aceite tipo SHC de Shell®, Mobil®, Esso/Exxon® o Conoco®, puede resultar en considerables ahorros de costos, así sea que la mina esté ubicada en un clima frío o caliente.
  • 183.
    3-37 Lubricación Sección MD6640 PerforadoraElectrica Para Pozos De Tronadura FLUIDO HIDRÁULICO SINTÉTICO PAO. El siguiente gráfico de barras muestra los grados de viscosidad recomendados para el aceite hidráulico SHC en varias temperaturas ambiente. Para temperaturas fuera de estos rangos, pida el aceite recomendado al Departamento de Servicio de Caterpillar Global Mining. CARTA DE VISCOSIDAD RECOMENDADA vs. TEMPERATURA (OAT) FLUIDO HIDRÁULICO DE BASE PARAFÍNICA DE PETRÓLEO. Los aceites aprobados tendrán típicamente una certificación de especificaciones Denison HF-O. En general, los aceites cumplirán los siguientes requerimientos mínimos: 1. Viscosidad Máxima = 14.000 SUS (3.000 CST) a la temperatura ambiente mínima esperada (en el arranque inicial). PRECAUCIÓN: ARRANCAR CON VISCOSIDADES MAYORES QUE 3.000 CST, PODRÍAINVALIDAR LAGARANTÍA. 2. Viscosidad Mínima = 65 SUS a la temperatura máxima de operación del sistema hidráulico. 3. Viscosidad Ideal = 100 SUS a temperatura normal de operación del sistema hidráulico. 4. Índice de Viscosidad Mínima = 90 5. Número de Neutralización = 10 o menos, para aceite nuevo 6. Horas de Oxidación al Número de Neutralización 2.0 según D-943 = 1.500 horas mínimo
  • 184.
    3-38 Lubricación Sección MD6640 PerforadoraElectrica Para Pozos De Tronadura 7. Demulsibilidad (fácil separación con el agua) según D-1401 = 30 +/- 15 minutos a 3 ml. máximos de emulsión. CARTA DE VISCOSIDAD RECOMENDADA vs. TEMPERATURA (OAT) PRECAUCIÓN: EN GENERAL, EL AGUA NO SE SEPARARÁ DESDE LOS ACEITES DE MOTOR O DE LOS FLUIDOS DE TRANSMISIÓN AUTOMÁTICA, POR LO TANTO, ESTOS FLUIDOS NUNCA SON RECOMENDADOS COMO FLUIDOS PARA SISTEMAS HIDRÁULICOS. 8. Estabilidad Hidrolítica según D-2619 = Pérdida de peso de Cobre no debe ser mayor que .50 mg/cm2. El aceite debería contener inhibidores de corrosión y oxidación (R+O) y depresores de espuma. PRECAUCIÓN: EL USO DE AGUA O BASE DE GLICOL O CUALQUIER OTRO FLUIDO RESISTENTE AL FUEGO ESTÁ PROHIBIDO YA QUE OCURRIRÁN SERIOS DAÑOS EN EL SISTEMA HIDRÁULICO, LO CUAL INVALIDARÁ LA GARANTÍA SOBRE EL SISTEMA HIDRÁULICO DE LA MÁQUINA. Obtenga los aceites desde un proveedor reputado. Contacte al Departamento de Servicio de Caterpillar Global Mining para aprobaciones o recomendaciones de aceites específicos.
  • 185.
    3-39 Lubricación Sección MD6640 PerforadoraElectrica Para Pozos De Tronadura La figura de la página anterior, ilustra los rangos de temperatura aceptables para varios grados de viscosidad (VG) de aceite, asumiendo un índice de viscosidad de 125. 1. El lado izquierdo de las barras muestra la temperatura ambiente mínima absoluta para arranques en frío. 2. El lado derecho de las barras muestra la temperatura del aceite máxima absoluta. 3. La temperatura de operación ideal máxima del aceite es una viscosidad de 100 SUS. NOTA: AL DETERMINAR UNACEITE PARAEL SISTEMAHIDRÁULICO, Caterpillar Global Mining DISEÑA EL SISTEMA PARA UN ACEITE PARATODO ELAÑO Y PARA USAR SIN CALEFACTORES. EL SISTEMA HIDRÁULICO ESTÁ FABRICADO PARALA TEMPERATURAAMBIENTE DEL SITIO DE LA MINA DEL CLIENTE Y LUEGO SE SELECCIONA EL TIPO CORRECTO DE FLUIDO HIDRÁULICO. PARA TEMPERATURAS EXTREMADAMENTE FRÍAS, SE USAUN FLUIDO MUY LIVIANO CON ENFRIADORES DE ACEITE SOBREDIMENSIONADOS PARAACOMODARSE A ALTAS TEMPERATURAS DE VERANO. CON ESTE PROCEDIMIENTO, LÍMITES DE VISCOSIDAD TAN BAJOS COMO 30º SOBRE ELAMBIENTE, PUEDEN SER CUMPLIDOS. NOTA: ESTOS REQUERIMIENTOS DE RENDIMIENTO SON ESTÁNDAR Y NO UNA ESPECIFICACIÓN. POR LO TANTO, LOGRAR LOS LÍMITES DESCRITOS ANTERIORMENTE NO EXIMEN AL PROVEEDOR DE LA RESPONSABILIDAD ASOCIADA CON LOS PRODUCTOS DE MARCA REGISTRADA.
  • 186.
    3-40 Lubricación Sección MD6640 PerforadoraElectrica Para Pozos De Tronadura
  • 187.
    4-1 Mantención Preventiva Sección MD6640Perforadora Electrica Para Pozos De Tronadura Sección 4 Mantención Preventiva Recurra siempre a la información de seguridad de la Sección 1 de éste manual antes de iniciar todo proceso de mantención en ésta máquina. Tabla de Contenidos MANTENCIÓN PREVENTIVA ........................................................................................................3 ELEMENTOS DE UN EFECTIVO PROGRAMA DE MANTENCIÓN .......................................5 PROGRAMAPLANIFICADO DE MANTENCIÓN PREVENTIVA ..............................................5 CONSIDERACIONES GENERALES DE SEGURIDAD ..........................................................6 MANTENCIÓN DURANTE LA OPERACIÓN DE LA MÁQUINA .....................................................6 PRECAUCIONES DURANTE LA MANTENCIÓN ..........................................................................7 MANTENCIÓN PREVENTIVAPARALUBRICACIÓN .....................................................................8 LIMPIEZA DEL LUBRICANTE ..................................................................................................9 FRECUENCIAS DE INSPECCIONES Y MANTENCIONES ........................................................10 PROGRAMAS DE MANTENCIÓN...............................................................................................10 PUNTOS DE INSPECCIÓN DIARIA...................................................................................... 11 INSPECCIÓN A BORDO. ................................................................................................15 INSPECCIONES DESPUÉS DELARRANQUE INICIAL.................................................................................................21 PAUTAS DE INSPECCIÓN SEMANAL. .................................................................................22 INSPECCIONES A BORDO. ...........................................................................................26 PAUTAS DE INSPECCIÓN MENSUAL. .................................................................................28 PAUTAS DE INSPECCIÓN SEMESTRAL. ............................................................................30
  • 188.
    4-2 Mantención Preventiva Sección MD6640Perforadora Electrica Para Pozos De Tronadura
  • 189.
    4-3 Mantención Preventiva Sección MD6640Perforadora Electrica Para Pozos De Tronadura Sección 4 MANTENCIÓN PREVENTIVA Esta sección del manual describe aspectos de mantención preventiva tales como inspecciones, ajustes y tareas repetitivas de rutina en la perferadora eléctrica para Minería. Información relacionada con técnicas de lubricación, frecuencia y puntos de servicio, también están parcialmente incluídas. Más amplia y detallada información se puede encontrar en las Secciones 3 y 5 de este manual. Al final de ésta sección existen programas de mantención reproducibles que pueden ayudar a la conservación de registros y programaciones de mantención. INTRODUCCIÓN Un Programa de Mantención Preventiva es una serie sistemática de operaciones realizadas periodicamente en el equipo, para prevenir paralizaciones. Cualquiera paralización REDUCIRÁ la productividad e incrementará los gastos generales. La máquina es nueva solo en un punto en el tiempo. Desde ese momento, comienza a deteriorarse por el uso y el envejecimiento. Un programa de mantención bien organizado evitará las costosas e inesperadas paralizaciones y aumentará la vida de los componentes. Se debe observar una sistemática aproximación al programa, manteniendo registros detallados de todos los hallazgos para detectar potentiales áreas de problemas. Se puede ahorrar valioso tiempo y esfuerzos si los defectos son corregidos antes de que conduzcan a una paralización mayor. Los registros se deben revisar a menudo y mantenerlos archivados para futuras consultas. El personal involucrado en el programa debe someterse a un plan de entrenamiento establecido, para conocer QUÉ revisar y CÓMO solucionar cualquier área potencial de problemas. Cuando el personal está capacitado para realizar mantenciones de rutina y reparaciones normales de manera eficiente, se reducen las pérdidas de tiempo y aumenta la productividad de la máquina. Además, para mantener la máquina en buenas condiciones de trabajo, se debiera mantener a mano los repuestos necesarios, las herramientas y la información actualizada. La mantención de equipos es una ciencia y su práctica un arte. Este arte puede ser dividido en 6 tipos de operaciones, que son:
  • 190.
    4-4 Mantención Preventiva Sección MD6640Perforadora Electrica Para Pozos De Tronadura La Inspección es quizás la operación más importante. Es necesaria la observación cuidadosa de todos los componentes del equipo. Las anormalidades leves pueden no interferir con el rendimienton del equipo PERO aquellas que significan una desviación de lo normal deben descubrirse tempranamente. Al inspeccionar el (los) componente (s), anote la ubicación, estado de limpieza, color, etc. La Limpieza y mantener limpio es esencial para una buena operación. La limpieza periódica debe ser más frecuente en los componenetes expuestos que en aquellos que están contenidos en gabinetes. Los componentes, sus conexiones y uniones deberían estar libres de polvo, corrosión y otras materias extrañas. La operación del Tacto es la más usada para revisar la maquinaria rotatoria protegida, para detectar vibraciones debido a partes desgastadas, falta de lubricación, sobrecalentamiento, etc. La operación del tacto en items eléctricos se debe realizar inmediatamente DESPUES de haber cortado la energía y que los circuitos queden a tierra. La percepción de excesivo calor puede indicar una condición de sobrecarga y debería ser corregida de inmediato. Una operación de Apriete se debería hacer a todas las conexiones que hayan trabajado sueltas debido a vibraciones, etc. Las partes sueltas son un peligro determinado, debido a que pueden salirse de su lugar y dañar componentes aledaños. La importancia de un montaje firme y conexiones bien apretadas no debe sobreestimarse. Reemplace siempre los pernos faltantes o quebrados con uno de tamaño apropiado, utilizando las herramientas correctas. Los Ajustes se deberían realizar cuando una inspección indique que es necesario para mantener las condiciones normales de operación. Los ajustes específicos están contenidos en la “Sección Ajustes Mecánicos” de este manual, el manual eléctrico o el manual del fabricante del componente. La Lubricación se refiere principalmente a la aplicación del LUBRICANTE CORRECTO en la CANTIDAD CORRECTA, a rodamientos y otras partes rotatorias. También significa la aplicación de un aceite liviano a las bisagras de una puerta u otras superficies deslizantes. Use solo lubricantes limpios y apropiados. La mantención planeada, el sentido común y el buen juicio son menos costosos y más efectivos que la mantención por crisis. Las acciones tomadas sobre recomendaciones hechas en las siguientes Listas de Revisión de inspecciones, sugeridas por el Departamento de Mantención, deberían reducir los costos de reparación y mantención y aumentar la producción. Reemplazar componentes gastados con repuestos originales Caterpillar Global Mining, sobre bases planificadas, evitará costosas pérdidas de tiempo y reparaciones de emergencia. El costo de los repuestos es pequeño cuando se compara con paralizaciones imprevistas cuyo resultado resulta en excesivas horas de sobretiempo y pérdidas de producción de la máquina. Cada vez que se señale un problema, el inspector debería explicarlo brevemente en el reporte de mantención (se sugiere un formato al final de ésta sección), junto con su firma. Luego, una persona autorizada, debería explicar brevemente su solución. Finalmente, CORRIJA EL PROBLEMA.
  • 191.
    4-5 Mantención Preventiva Sección MD6640Perforadora Electrica Para Pozos De Tronadura ELEMENTOS DE UN EFECTIVO PROGRAMA DE MANTENCIÓN • Programa de Mantención Preventiva. • Equipo de Trabajo bien Entrenado y Motivado. • Comunicaciones Efectivas. • Apropiada Selección y Obtención de Equipamiento. • Documentación Significativa. • Cooperación entre los Departamentos de Operaciones y Mantención. • Soporte de Almacén. • Buenas Instalaciones de Taller. PROGRAMA PLANIFICADO DE MANTENCIÓN PREVENTIVA Económicamente, mantener la productividad y rendimiento de una perferadora para minería de Caterpillar Global Mining, necesita actividades de mantención e inspección de manera planificada. Los requierimientos de mano de obra y la ejecución de necesidades de mantención durante las detenciones programadas, imponen un sistema el cual reconozca los intervalos de inspección recomendados. Por ejemplo, el balde y el conjunto de la orugas están expuestas a servicio severo y deberían inspeccionarse en cada período de mantención, mientras que de otros componentes puede esperarse razonablemente que operen el doble de ese intervalo antes de una inspección. Alternando la inspección o el servicio de éstos items, se equilibra el tiempo de trabajo y de la mano de obra. La mantención e inspección de componentes debería realizarse simultaneamente durante las detenciones programadas. La historia de prácticas de mantención de máquinas ha mostrado que el reemplazo de repuestos y reconstrucción de componentes, anticipándose a fallas destructivas, rinde los más bajos costos operativos. Mantener buenos registros es vital para ayudar a cualquier programa de mantención preventiva. Recambios tempranos reducen las paradas imprevistas y previene daños secundarios. La mantención de registros debe hacerse en formatos “fácil de usar” y contener suficientes detalles para aislar la función. Por ejemplo, el desgaste de los cables de la perferadora y los dientes del balde, a menudo se relacionan directamente a toneladas de material cargado en vez de horas operativas. En cambio, el rango de desgaste de ejes de transmisión y rodamientos, corresponde más a horas operativas. Ya que la vida básica de la máquina se prolonga por miles de horas operativas, la mantención de registros se puede usar para estimar presupuestos de gastos de mantención. Esto hace de los registros una muy valiosa herramienta de planificación para la gerencia de la mina. Use los programas de mantención de Caterpillar Global Mining aquí incluídos para formular un programa adecuado a la fuerza de trabajo y al entorno minero. En algunos períodos de tiempo, inspecciones adicionales o trabajos planificados pueden suplementar las actividades descritas en éste manual.
  • 192.
    4-6 Mantención Preventiva Sección MD6640Perforadora Electrica Para Pozos De Tronadura CONSIDERACIONES GENERALES DE SEGURIDAD Siempre se debe enfatizar la importancia de la seguridad general en la mantención de una máquina móvil; las operaciones de excavación pueden envolver una variedad de condiciones peligrosas. Muchos componentes críticos están sujetos a desgaste y otros deterioros los cuales limitan su vida útil; haciéndolas reemplazables. Cuando nuevo, todo componente tiene por construcción, una reserva de resistencia contra factores desconocidos y razonable pérdida de durabilidad contra el desgaste gradual. No obstante, si se descuida su inspección y ajuse, eventualmente alcanzarán una condición donde se transformen en un problema potencial. Igualmente, omitir el reemplazo de varios mecanismos para asegurar el apropiado rendimiento de la máquina, podrían constituir un problema. Estudie éste manual cuidadosamente para evitar condiciones inseguras. Revise periódicamente el manual para actualizar el conocimiento de éstos procedimientos. Supervisores, operadores y gente de maintención deben seguir continuamente prácticas seguras. MANTENCIÓNDURANTELAOPERACIÓNDELAMÁQUINA Las exigencias de seguridad dictan que toda máquina en servicio activo sea revisada a intervalos regulares para ajustar debidamente los mecanismos operativos, el excesivo desgaste de componentes, la limpieza del sistema y cualquier otro defecto. Las deficiencias durante la operación de la máquina deberían ser investigadas cuidadosamente. Se debería determinar si existen problemas de seguridad. La mantención es vital para una operación segura! Debería ser ejecutada sistemáticamente por personal competente. Bajo un punto de vista económico, es aconsejable ejecutar tanta mantención como sea posible realizar en forma segura, mientras la máquina se mantenga operando. Desde luego, hay algunos procedimientos de mantención, tales como la inspección y reemplazo de dientes de engranajes los cuales requieren la máquina detenida. Sin embargo, muchas tareas de soporte se pueden manejar efectivamente en los cambios de turno, cuando la máquina permanecee activada. Los sistemas de lubricación automática funcionan durante todos los ciclos operacionales de la máquina. Éstos entregan lubricante premedido, que amplía la vida de desgaste de las unidades de la máquina. Otras partes de la máquina se pueden lubricar manualmente en forma segura mediante accesorios para grasa o aceite, diseñados para mantener las manos del operador a distancia segura. Donde ésto no es posible, la máquina debe ser detenida durante la requerida lubricación. PRECAUCIÓN: Una faena de reparación o mantención no queda completa hasta que todas las protecciones, planchas y otros dispositivos de seguridad hayan sido reinstalados, antes de que el equipo sea reintegrado a la operación.
  • 193.
    4-7 Mantención Preventiva Sección MD6640Perforadora Electrica Para Pozos De Tronadura PRECAUCIONESDURANTELAMANTENCIÓN El operador debe preocuparse de que el equipo de la máquina quede en una posición segura antes que efectúen reparaciones o ajustes. La máquina no deberá quedar expuesta a caída de rocas o posibles deslizamiento de terreno. Antes de iniciar una reparación o ajuste, el operador debe: 1. Instalar todos los frenos. 2. Desactivar las funciones de control. 3. Cualquier otra cosa necesaria para prevenir movimientos accidentales de la máquina. PELIGRO: ALTO VOLTAJE! SI LAENERGÍAES ESENCIALPARALAREPARACIÓN, TAL COMOUNAPRUEBA,SOLODEBERÍAENERGIZARSECUANDOTODOEL PERSONALD ESTÉALEJADO DE PELIGROS ELÉCTRICOS O MECÁNICOS. La energía debería activarse solo durante el período de prueba y no cuando se esté realizando un trabajo de reparación. Previo a acometer cualquier trabajo, el personal de mantención debería notificar al operador acerca de la naturaleza y ubicación del trabajo. Si éste se va a realizar en o cerca de partes en movimiento, los controles de arranque deberían bloquearse en la posición OFF y rotularse. El bloqueo y rotulado debería ser retirado solo por el personal de mantención que los instaló, u otro personal autorizado. Durante todas las fases de mantención, tenga extremo cuidado cuando trabaje cercano a equipos eléctricos. Nunca trabaje cerca de conexiones expuestas y energizadas con alto voltaje. Siempre se debe usar equipamiento de protección aprobado, tales como guantes y ganchos o tenazas aisladas, cuando se maniobren cables eléctricos de alto voltaje. PELIGRO: Solo electricistas calificados están autorizados para mantener directamente el equipamiento eléctrico, tales como motores, transformadores e interruptores. Al efectuar mantenciones, las posiciones difíciles asumidas y el manejo de componentes pesados, a menudo aumenta la posibilidad de lesiones. Como medida precautoria, use equipos de manejo mecánico cada vez que sea posible. El capataz de la mina puede ayudar a trabajos de mantención más faciles y seguros al proporcionarle material de bloqueo. Los grupos de servicio deben tener conocimiento básico sobre prácticas de izaje, al usar sus rodillas y piernas antes que sus espaldas. PELIGRO: La mayoría de los componentes que constituyen la máquina son pesados y voluminosos. SE DEBE TENER EXTREMO CUIDADO AL LEVANTAR ESTOS COMPONENTES. EL PERSONAL DEBE ESTAR CONSCIENTE DEL PESO DE LOS COMPONENTES ANTES DE INTENTAR LEVANTARLOS YA SEA EN FORMA FORMA MANUAL O CON UN DISPOSITIVO DE IZAJE. Todas las reglas de seguridad aplicables se deben seguir cuando use una grúa o dispositivo de levante. Entérese del rango de carga, altura de izaje y radio de giro del dispositivo antes de levantar una carga. La omisión de seguir todas las reglas aplicables de seguridad cuando ejecute una mantención, pueden resultar en lesiones serias o la muerte.
  • 194.
    4-8 Mantención Preventiva Sección MD6640Perforadora Electrica Para Pozos De Tronadura MANTENCIÓN PREVENTIVAPARALUBRICACIÓN La lubricación puede considerarse la porción más importante de un programa de mantención preventiva. No permita que nada interfiera con la lubricación de la máquina. La experiencia dictará como ajustar la cantidad de lubricante a usar en cada serviciose. Sin embargo éste esfuerzo extra resultará en un suave desempeño de la máquina, con menos desgastes y detenciones. Es dificil predecir cuánto lubricante se debiera aplicar a un rodamiento específico. Varía cuan fuerte se está trbajando la máquina, qué grado de desgaste previo tuvo el rodamiento y el grado del lubricante que está usando. Observe los rodamientos detenidamente para asegurarse que el lubricante agregado en un servicio, dure suficiente hasta el próximo servicio. Muchas partes de desgaste requieren que el lubricante se aplique en forma regular y en pequeñas cantidades, como lo hace el sistema automático de lubricación, en vez de grandes cantidades y aplicada ocasionalmente. Haga inspecciones regulares a la máquina y verifique os signos de lubricación imropia, como la acumulación de exceso de lubricante o su descoloración. Asegúrese que el lubricante no proviene de líneas y/o tuberías rotas o desconectadas. Normalmente, el exceso de lubricante bombeado en un rodamiento sencillo no es usado. Pero en ciertas áreas donde los rodamientos pueden acumular suciedad (como en la maquinaria inferior y candados del balde) se debe agregar lubricante extra para purgar todo el lubricante viejo, el cual pudo haber acumulado suciedad abrasiva. A veces, los nuevos bujes suelen sobrecalentarse debido a que están demasiado apretados para permitir una apropiada distribución del lubricante. Los bujes viejos suelen sobrecalentarse debido a que están tan gastados que el lubricante no permanece en él hasta el próximo ciclo de sevicio. En el caso de los nuevos bujes, puede ser necesario lubricarlos mas frecuentemente hasta que se asiente. Puede ser necesario hacer lo mismo con los bujes viejos, hasta que sean reemplazados. Es mucho mejor perder un poco de tiempo en un turno entregando un poco de lubricante extra a un punto que lo necesita, en vez de tratar de trabajarlo hasta el término del turno. La causa más común de sobrecalentamiento en rodamiento antifricción es el batido del lubricante. Esto sucede cuando el rodamiento se empaqueta demasiado lleno. Si el lubricante filtra fuera del rodamiento antifricción, es un signo casi seguro que se agregó demasiado lubricante al rodamiento. Continúe lubricándolo tan a menudo como antes, pero con menos cantidad. La Sección 3 de éste manual le proporcionará más detalles e información específica sobre los lubricantes y su utilización.
  • 195.
    4-9 Mantención Preventiva Sección MD6640Perforadora Electrica Para Pozos De Tronadura LIMPIEZA DEL LUBRICANTE Aún el mejor lubricante es un preventivo inútil de desgaste si se ha contaminado producto de un descuidado manejo y almacenamiento. El fabricante de lubricantes lo envasa en recipientes herméticos para mantener su limpieza. Es responsabilidad de la persona que ejecuta la lubricación de la máquina quien debe asegurarse que la suciedad no contamine el lubricante. Siga éstos puntos de buenas prácticas de lubricación: • Mantenga todo el aceite y otros lubricantes en contenedores herméticos. • Limpie bien las tapas antes de abrir los contenedores. • Conserve los embudos, latas de aceite, pistolas de engrase, etc., en un lugar limpio y, antes de utilizarlos, elimine toda suciedad con un paño limpio y libre de hilachas. • Limpie cada conexión antes de conectar la pistola de lubricante. • Limpie las tapas o cubiertas de llenado de aceite y su área circundante antes de quitarlas. Refiérase al tópico “Referentes de Lubricante” en la Seción 3 de éste manual para una explicación de cada tipo de lubricante usado para el servicio de ésta máquina. Asegúrese que el lubricante no esté sucio o con viscosidad impropia. Cuando la máquina es operada por más de un turno diario, todas las cuadrillas deben cooperar en la revisión de la lubricación. Esto para cuidar que ningún punto de lubricación sea olvidado o sobrelubricado. Usualmente, es mejor hacerlo al inicio de cada turno. Se suministra Programas de Servicio reproducibles para registrar la información de servicio. NOTA: Las instrucciones de lubricación proporcionadas por cualquier proveedor de un producto suministrado por él mismo, tienen prioridad por sobre los procedimientos e intervalos de lubricación de Caterpillar Global Mining. CAUTION: Al no ser posible trabajar en la máquina con un arnés de seguridad, use una “grúa extensible” o “grúa con canastillo” al hacer servicio o inspecciones en áreas elevadas. Un resbalón o caída puede resultar en severas lesiones personales o la muerte.
  • 196.
    4-10 Mantención Preventiva Sección MD6640Perforadora Electrica Para Pozos De Tronadura FRECUENCIAS DE INSPECCIONES Y MANTENCIONES El programa de mantención sugerido, está desarrollado para una utilización planificada de 5.000 horas operativas por año. Ésta es una planificación referencial solamente. Las condiciones actuales del sitio de la mina, las habilidades y hábitos del operador, junto a la calidad de los componentes y consumibles serán los que finalmente conducirán el programa de inspecciones usadas en la máquina. Se deberá tener cuidado en evaluar apropiadamente la proximidad de las mantenciones durante el período inicial, luego de la puesta en marcha de la máquina. PROGRAMAS DE MANTENCIÓN El siguiente programa de mantención está basado en una máquina típica. Ciertas características o configuraciones pueden ser diferentes en una máquina específica. Este programa de mantención está orientado a definir los intervalos de los varios y repetitivos requerimientos de mantención. Para cualquiera ayuda, refiérase a la sección apropiada en éste Manual de Mantención y Operación o contacte al representante de servicio de Caterpillar Global Mining. NOTA: Este programa de mantención no debe ser sustituído por la Sección Mantención de éste manual.
  • 197.
    4-11 Mantención Preventiva Sección MD6640Perforadora Electrica Para Pozos De Tronadura INSPECCIÓN DE MANTENCIÓN PUNTOS DE INSPECCIÓN DIARIA pmc_6640 MD6640 INSPECCIÓN EXTERNA 1. Compruebe áreas alrededor y debajo la máquina por signos de escapes de agua o lubricante. Si solo gotitas de agua o lubricante son notadas, la fuga es mínima. Determine la fuente de la fuga y haga nota de ella en la hoja de registro. Si un mancomunado de agua o lubricante es notado, determine la fuente y tome acción remediadora inmediatamente. 2. Inspeccione que las cadenas de oruga por cojincillos quebrados o agrietados, pernos de cerradura faltantes, pernos de la pista sueltos, y tensión correcta de la cadena de oruga. 3. Chequear la caja de engranaje de la rueda, motor hidráulico y mangueras por fugas. Chequear el nivel de lubricante en la caja de engranaje de la rueda propulsora. 4. Inspeccione el bastidor por grietas y suciedad o acumulación de hielo. Compruebe los rodillos y ruedas para la lubricación apropiada, la operación libre, y suciedad o acumulación de hielo. Chequee las abrazaderas y pernos del eje. 5. Chequee las cortinas de polvo por rasgones. Asegurarse que las cortinas no esten congeladas al suelo ni están cubiertas con recortes.
  • 198.
    4-12 Mantención Preventiva Sección MD6640Perforadora Electrica Para Pozos De Tronadura Puntos de Inspección DIARIA (cont.) pmc_6640 MD6640 PRECAUCIÓN: EL CABLE DE ALIMENTACION DE LA MÁQUINA LLEVA UN VOLTAJE LETAL. MANEJAR EL CABLE DE UNA MANERAAPROBADA CON GUANTES DE GOMA APROBADOS Y GANCHOS O PINZASAISLADOS. 6. Examinar el cable de alimentación para una colocación apropiada fuera de la línea del recorrido del taladro. Inspeccione el aislamiento para cortes o abrasión. Cerciorarse de que el cable es mantenido alejado de agua y rocas afiladas. Hacer que un electricista examine el dispositivo del retenedor de cable y la condición del cable donde entra en la máquina. 7. Examinar el superficie inferior de la máquina para saber si hay grietas, mangueras o alambres sueltos, acumulación de suciedad o hielo, u otra deterioración o daños. Si se observan los alambres sueltos, no tocarlos sino notificar a un electricista inmediatamente. 8. Examinar los spuds de nivelación del gato para saber si hay una apropiada cubierta de lubricante. Examinar los pernos rotos o que faltan de nivelación de los cojines del gato para saber si hay grietas, o acumulación excesiva de suciedad. 9. Examinar las abrazaderas del mástil y los pernos de fijación. Substituir los componentes perdidos o defectuosos inmediatamente. Verificar que todos los pernos de ajuste estén ajustados correctamente. Chequear todas las mangueras y cilindros por fugas.
  • 199.
    4-13 Mantención Preventiva Sección MD6640Perforadora Electrica Para Pozos De Tronadura Puntos de Inspección DIARIA (cont.) pmc_6640 MD6640 PRECAUCIÓN: Utilizar una correa y un acollador de seguridad para proteger contra caídas al subir en los apoyos del mástil o trabajando en la azotea de la casa de la maquinaria. 10. Examinar los pernos de bisagra del mástil para saber si hay retenedores o pernos sueltos o perdidos. Substituir los desaparecidos o dañadas inmediatamente. Comprobar los pernos para saber si hay la suficiente lubricación y lubricar en caso necesario. 11. Examinar los cilindros del alzamiento del mástil para saber si hay pernos o retenedores sueltos o que faltan, escapes de aceite, mangueras dañadas o daño structural. Reparar o substituir cualesquiera desaparecidos o componente dañado inmediatamente. 12. Examinar la estructura del mástil para saber si hay acordes o placas dobladas o quebradas, piezas rotas o sueltas, lubricación apropiada del estante o desgaste excesivo del estante. Examinar las escalas, las barandillas y las plataformas para saber si hay piezas quebradas o que faltan. Reparar o substituir las piezas quebradas o que falta inmediatamente. 13. Chequear la manguera de flexión principal de aire, las líneas de lubricación, y las líneas eléctricas que van desde el mástil al mando de rotación/ izado para saber si hay interferencia con el mástil o desgaste o escapes excesivos.
  • 200.
    4-14 Mantención Preventiva Sección MD6640Perforadora Electrica Para Pozos De Tronadura Puntos de Inspección DIARIA (cont.) pmc_6640 MD6640 14. Chequar los cables del alojamiento de seguridad en el mástil. Asegurar de que los cables y los soportes estén en buena reparación sin grietas, hardware perdido o sueltos o que cualquier daño que podría afectar su efectividad. 15. Comprobar el conducto de filtración del ventilador del aire de la casa de la maquinaria para ver que libre de obstrucciones.
  • 201.
    4-15 Mantención Preventiva Sección MD6640Perforadora Electrica Para Pozos De Tronadura Puntos de Inspección DIARIA (cont.) pmc_6640 MD6640 INSPECCIÓN A BORDO. 1. Inspeccione si las líneas de lubricación del compresor tienen filtraciones. Corrija inmediatamente cualquier filtración. 2. Revise la condición del filtro de admisión del compresor. Reemplace el cartucho de filtro si la bandera roja es visible en el indicador de servicio. Vacíe el depósito de polvo y limpie el elemento de prefiltro. Inspeccione el alojamiento y los ductos por si hay daños o filtraciones. Repare o reemplace los componentes dañados. 3. Revise el nivel de aceite del tanque de aceite hidráulico. Rellene el tanque al nivel apropiado como se describe en la placa de instrucciones sobre el tanque. 4. Revise si hay filtraciones en el sistema hidráulico. Corrija todas las filtraciones inmediatamente y limpie todos los derrames de aceite. 5. Si la máquina esta equipada con un lubricador de brocas en el sistema principal de aire, revise que el lubricador esté lleno. 6. Inspeccione la debida operación de las estaciones de bombeo de la central de lubricación automática. Revise el suministro de lubricante y cambie o rellene los tambores si es necesario.
  • 202.
    4-16 Mantención Preventiva Sección MD6640Perforadora Electrica Para Pozos De Tronadura Puntos de Inspección DIARIA (cont.) pmc_6640 MD6640 7. Cierre y asegure todas las puertas de los gabinetes eléctricos. PRECAUCIÓN: ASUMA QUE TODOS LOS COMPONENTES AL INTERIOR DE LOS GABINETES ELÉCTRICOS ESTÁN ENERGIZADOS. EL SERVICIO DE TODOS LOS COMPONENTES ELÉCTRICOS DEBE SER REALIZADO SOLO POR PERSONAL ELÉCTRICO CALIFICADO. 8. Inspeccione el radiador y el ventilador del compresor. Revise si hay signos de deterioro o daños en las mangueras, válvulas, conexiones, etc. Revise si hay fugas por las uniones. Revise el panal del radiador por si hay bloqueos de polvo, suciedad, hojas, papel, etc., y limpie según sea necesario. 9. Revise si la pantalla de exhibición del operador presenta cualquier falla. 10. Examine la limpieza general de la sala de máquinas. Límpiela de toda suciedad o desechos. NOTA: NO UTILICEAIRE COMPRIMIDO PARALIMPIAR LASALADE MÁQUINAS. ELAIRE COMPRIMIDO SOLO MOVERÁ LA SUCIEDAD DE UN LADO A OTRO. USE UNAASPIRADORA PARAQUITAR LASUCIEDAD. LA FALTADE LIMPIEZAALINTERIOR DE LA SALA DE MÁQUINAS CAUSARÁ DAÑOSAMUCHOS DE LOS COMPONENTES ALLÍ LOCALIZADOS.
  • 203.
    4-17 Mantención Preventiva Sección MD6640Perforadora Electrica Para Pozos De Tronadura Puntos de Inspección DIARIA (cont.) pmc_6640 MD6640 11. Inspeccione el winche auxiliar y el cable del winche. 12. Revise el nivel de aceite en la bomba de la caja de engranajes. Rellene con el aceite recomendado a su correcto nivel. 13. Revise que todos los controles operen libremente. Retorne todos los controles a la posición OFF o INSTALAR. 14. Inspeccione que en la cabina del operador esté todo limpio y ordenado. Elimine toda suciedad o desechos de la cabina. Limpie las ventanas para permitir máxima visibilidad para una apropiada operación. NOTA: NO UTILICEAIRE COMPRIMIDO PARALIMPIAR LACABINADEL OPERADOR. EL AIRE COMPRIMIDO SOLO MOVERÁ LA SUCIEDAD DE UN LADO A OTRO. USE UNAASPIRADORA PARAQUITAR LASUCIEDAD. 15. Verifique la libre operación de las llaves de herramienta, si tienen partes quebradas o faltantes, una lubricación apropiada, fugas de lubricante o acumulación de polvo. Repare o reemplace las partes dañadas y limpie la plataforma de perforación.
  • 204.
    4-18 Mantención Preventiva Sección MD6640Perforadora Electrica Para Pozos De Tronadura Puntos de Inspección DIARIA (cont.) pmc_6640 MD6640 PRECAUCIÓN: AL TRABAJAR CERCA O BAJO LA UNIDAD DE ROTACIÓN/EMPUJE, CUIDE QUE TODOS LOS CONTROLES DEL OPERADOR ESTÉN EN OFF Y ROTULADOS Y QUE EL FRENO DE LEVANTE ESTÉ ACCIONADO, PARA PREVENIR MOVIMIENTOS DE LA UNIDAD. EN CASO QUE LA UNIDAD DE ACCIONAMIENTO DE ROTACIÓN/EMPUJE CAYERA, PODRÍA OCURRIR LA MUERTE O LESIONES GRAVES CUANDO EL PERSONAL ESTÉ TRABAJANDO BAJO O CERCA DE ELLA. 16. Inspeccione si la llave de desconexión automática opera libremente, si tiene partes quebradas o faltantes, una apropiada lubricación, tienen pérdidas de lubricante o exceso de suciedad acumulada. Repare o reemplace las partes que sean necesarias. Asegúrese que la llave está replegada. 17. Inspeccione si el portabarras tiene fisuras o partes faltantes, opera apropiadamente, tiene acumulación de polvo o pérdidas de lubricante. Asegúrese que la compuerta superior esté cerrada y que la unidad está en posición almacenada. 18. Inspeccione si el buje guía tiene excesivo desgaste o acumulación de polvo. Inspeccione también que los ganchos de retención estén asegurados e intactos. No opere la máquina sin que ambos ganchos de retención estén intactos y firmemente soldados a la plataforma.
  • 205.
    4-19 Mantención Preventiva Sección MD6640Perforadora Electrica Para Pozos De Tronadura Puntos de Inspección DIARIA (cont.) pmc_6640 MD6640 19. Revise si la columna de herramientas tiene excesivo desgaste, acumulación de polvo, barras dobladas y las uniones apretadas. Los conos de la broca y sus rodamientos deberían estar en buenas condiciones. Gire manualmente los conos para asegurarse que rotan libremente. 20. Inspeccione si la caja de engranajes de rotación tiene pérdidas de aceite, líneas dañadas, acumulación de polvo y otros daños o partes faltantes. Revise el nivel de lubricante de la caja de engranajes. Rellene al nivel recomendado con un aceite aprobado. Revise si las admisiones de ventilación del motor de rotación tienen hojas, papeles, trapos, etc., bloqueando el flujo de aire. 21. Inspeccione si la unidad de accionamiento de rotación tiene desgaste excesivo o acumulación de polvo. Inspeccione el apropiado ajuste de los rodillos guías o si tienen mucho desgaste. Revise si hay pernos sueltos o faltantes o miembros estructurales agrietados o torcidos. 22. Inspeccione si la unidad de empuje tiene desgaste excesivo o acumulación de polvo. Inspeccione si los piñones de la cremallera están gastados, bien lubricados y con los pernos de retención bien apretados. Inspeccione el apropiado ajuste de los rodillos guía y si tienen excesivo desgaste.
  • 206.
    4-20 Mantención Preventiva Sección MD6640Perforadora Electrica Para Pozos De Tronadura Puntos de Inspección DIARIA (cont.) pmc_6640 MD6640 23. Inspeccione si la caja de engranajes de empuje tiene pérdidas de aceite o acumulación de polvo y otros daños o piezas faltantes. Revise el nivel de lubricante de la caja. Rellene al nivel recomendado con un lubricante de engranajes aprobado. Revise las admisiones de ventilación del motor de empuje por si hay hojas, papeles, trapos, etc., bloqueando el flujo de aire. 24. Revise la debida operación del freno de levante. 25. Revise si el deflector de polvo o partículas, tiene piezas sueltas o faltantes, desgaste excesivo o acumulación de polvo. El deflector debería estar sellado firmemente alrededor de la barra de perforación. 26. Si la máquina está equipada con sistema de supresión de incendios, realice toda revisión de inspección aplicable o las inspecciones descritas en el manual del fabricante. 27. Comprobar el color del desecante del filtro del suministro de aire del suministro del colector de polvo a través del mirador. Si es rosado, cambiar el desecante. 28. Revise el colector de polvo que la manguera no tiene ninguÌn agujero, los rasgones, o los rasgones.
  • 207.
    4-21 Mantención Preventiva Sección MD6640Perforadora Electrica Para Pozos De Tronadura Puntos de Inspección DIARIA (cont.) pmc_6640 MD6640 INSPECCIONES DESPUÉS DELARRANQUE INICIAL 29. Revise todos los frenos por su apropiado accionamiento y liberación. 30. Escuche si hay evidencias de ruidos inusuales en la caja de engranajes. 31. Revise todos los rodamientos por si nota ruidos inusuales o excesivo calor. 32. Al final de cualquier ciclo perforador, apagar el sistema soplador del colector de polvo, y pulsar los elementos del filtro. 33. Durante operación, observar la desembocadura del colector de polvo por polvo. Si polvo es aparente, inspeccionar y reemplazar los elementos de filtro del colector de polvo.
  • 208.
    4-22 Mantención Preventiva Sección MD6640Perforadora Electrica Para Pozos De Tronadura PAUTAS DE INSPECCIÓN SEMANAL. pmc_6640 MD6640 1. Revise si hay pasadores y retenes de pasador de la cadena de orugas faltantes o gastados. 2. Revise si hay zapatas de orugas quebradas o gastadas. 3. Revise si los tambores y rodillos tienen fisuras o desgaste y su lubricación. 4. Revise si hay fisuras en las estructuras de oruga. 5. Revise si hay excesiva acumulación de suciedades. 6. Revise la debida tensión de las cadenas (de 1” a 3” de pandeo entre el extremo de la guía superior y el tambor de transmisión o rueda tensora). 7. Revise si el tambor de transmisión tiene fisuras o desgaste. 8. Revise el nivel de aceite de las cajas de engranajes planetarios de propulsión. PRECAUCIÓN: CUÍDESE CUANDO QUITE LOS TAPONES, ESPECIALMENTE SI LA UNIDAD ESTÁ CALIENTE. SE CREA PRESIÓN EN LA CAJA DE ENGRANAJES Y CUANDO SE SACA EL ÚLTIMO HILO DEL TAPÓN, ÉSTE PUEDE SALTAR CON ALGUNA FUERZA.
  • 209.
    4-23 Mantención Preventiva Sección MD6640Perforadora Electrica Para Pozos De Tronadura Pautas de Inspección SEMANAL. (cont.) pmc_6640 MD6640 9. Revise la caja de engranajes de propulsión por si hay fugas en el motor hidráulico y las líneas hidráulicas. 10. Revise si los pernos del bloque de rodamientos del eje trasero están apretados. 11. Revise si el eje ecualizador frontal tiene desgastes o fisuras. 12. Revise el desgaste y la lubricación de los pasadores del eje ecualizador. 13. Revise si hay desgastes o daños en las cortinas contra polvo.Asegúrese que no estén congeladas al piso. 14. Revise que los brazos de elevación de la cortina no estén gastados o dañados y su lubricación. 15. Revise que los cilindros de elevación de la cortina no estén gastados o dañados y sin fugas. 16. Revise que los deflectores de polvo no estén gastados o dañados. 17. Revise visualmente la condición del cable eléctrico de transmisión. 18. Revise que el portacable no tenga daños, su desgaste y lubricación. Lubrique manualmente los dos puntos de los rodamientos del eje del tambor. 19. Revise la libre operación de los controles del portacable y si hay fugas hidráulicas. 20. Revise si las cadenas de transmisión del portacable tienen desgaste o daños, su lubricación y ajustes.
  • 210.
    4-24 Mantención Preventiva Sección MD6640Perforadora Electrica Para Pozos De Tronadura Pautas de Inspección SEMANAL. (cont.) pmc_6640 MD6640 21. Revise si las estructuras de las patas de nivelación tienen fisuras. 22. Revise si las zapatas de las patas de nivelación tienen quebraduras. Límpielas de suciedad o rocas. 23. Revise que en las zapatas no hayan pasadores o retenes de pasador faltantes o desgastados. 24. Revise la apropiada lubricación de las patas de elevación. 25. Revise si hay fugas en las patas de nivelación. 26. Revise si hay fisuras en la estructura principal. 27. Revise la apropiada operación de la escalera de acceso. 28. Revise el entorno de la sala de máquinas y de la cabina del operador por si tienen daños o fisuras. 29. Revise que todos los sopladores de ventilación y los radiadores no tengan obstrucciones. 30. Revise si los ductos y mangueras de la unidad colectora de polvo tipo seco, no tengan fugas. 31. Lubrique los rodamientos del eje de transmisión de la unidad colectora de polvo tipo seco. 32. Revise que el tanque de agua esté lleno.
  • 211.
    4-25 Mantención Preventiva Sección MD6640Perforadora Electrica Para Pozos De Tronadura Pautas de Inspección SEMANAL. (cont.) pmc_6640 MD6640 33. Revise la condición de los tirantes del mástil y los pasadores de los tirantes. 34. Revise si los cilindros de cierre y las líneas de los tirantes del mástil tienen fugas. 35. Revise que los pasadores y los retenes de los pasadores de los cilindros de levante del mástil estén en su lugar. 36. Revise si la estructura del mástil tiene desgastes, daños o quebraduras. 37. Revise el desgaste, daños y lubricación de los bastidores del mástil. 38. Revise la escalera del mástil, las protecciones de seguridad y las plataformas por si tienen fisuras o pernos faltantes. 39. Revise la condición del cable del winche. 40. Revise la condición de las poleas de la punta del mástil. 41. Revise la condición de la porción superior de los portabarras. 42. Revise la condición de la tubería de aire del mástil, la manguera principal y las líneas de lubricación. Revise visualmente la condición de las líneas eléctricas.
  • 212.
    4-26 Mantención Preventiva Sección MD6640Perforadora Electrica Para Pozos De Tronadura Pautas de Inspección SEMANAL. (cont.) pmc_6640 MD6640 INSPECCIONES A BORDO. 43. Revise el nivel de aceite de la caja de engranajes de la bomba de accionamiento. Agregue aceite si se necesita. 44. Revise el anclaje del pasador del cilindro de levante del mástil y los pasadores de retención. 45. En la plataforma de perforación, revise el desgaste del buje guía. 46. Revise el desgaste de las llaves de herramienta, su lubricación y fugas de aceite. 47. Revise si la porción inferior de los portabarras tienen desgaste o daños. 48. Revise que las uñas de los bolsillos de los portabarras trabajen libremente. 49. Revise que las palancas de los portabarras trabajen libremente. 50. Lubrique los brazos inferiores del portabarras. Revise los cilindros. 51. Revise el desgaste del amortiguador y el apriete de los pernos del acoplamiento giratorio. 52. Revise el nivel de aceite de la caja de engranajes de la unidad de rotación. Agregue aceite si es necesario. 53. Revise si la caja de engranajes y la estructura tienen fisuras o fugas de aceite.
  • 213.
    4-27 Mantención Preventiva Sección MD6640Perforadora Electrica Para Pozos De Tronadura Pautas de Inspección SEMANAL. (cont.) pmc_6640 MD6640 54. Revise el apropiado ajuste de los rodillos guía. 55. Revise si la caja de engranajes de empuje tiene fisuras o fugas de aceite. 56. Revise el nivel de aceite de la caja de engranajes de empuje. Agregue aceite si es necesario. 57. Revise la correcta operación del freno de levante de la caja de engranajes de empuje. 58. En la sala de maquinas, revise el nivel del tanque de aceite hidráulico.Agregue aceite si es necesario. 59. Revise los filtros de aceite. Cámbielos si es necesario. 60. Revise la tensión de todas las correas de transmisión. 61. Revise el nivel de aceite del separador del compresor de tornillos. Agregue aceite si es necesario. 62. Revise todas las tuberías hidráulicas, de aire y de lubricación, por si presentan fugas. 63. Compruebe elementos del filtro del colector. Reemplace según se necesite. 64. Inspeccionar las manguera de succión del colector de polvo por obstrucciones. Inspeccione junturas de la manguera por integridad.
  • 214.
    4-28 Mantención Preventiva Sección MD6640Perforadora Electrica Para Pozos De Tronadura PAUTAS DE INSPECCIÓN MENSUAL. pmc_6640 MD6640 1. Revise el ajuste de las cadenas de orugas y ajústelas si es necesario. 2. Posicione la máquina de forma tal que los rodillos de la oruga y los tambores de transmisión puedan ser revisados por un excesivo movimiento, el cual indicaría desgaste de los bujes. 3. Tome muestras de aceite de la caja de engranaje de propulsión, para análisis de aceite. PRECAUCIÓN: CUÍDESE CUANDO QUITE LOS TAPONES, ESPECIALMENTE SI LA UNIDAD ESTÁ CALIENTE. SE CREA PRESIÓN EN LA CAJA DE ENGRANAJES Y CUANDO SE SACA EL ÚLTIMO HILO DEL TAPÓN, ÉSTE PUEDE SALTAR CON ALGUNA FUERZA. 4. Quite la tapa de inspección de la caja de engranajes de rotación e inspeccione los engranajes. 5. Tome muestras de aceite de la caja de engranaje de rotación, para análisis de aceite. 6. Revise el ajuste de los rodamientos del eje de transmisión de la caja de engranajes de rotación y ajuste si es necesario. 7. Quite la tapa de inspección de la caja de engranajes de empuje e inspeccione los engranajes. 8. Tome muestras de aceite de la caja de engranaje de empuje, para análisis de aceite.
  • 215.
    4-29 Mantención Preventiva Sección MD6640Perforadora Electrica Para Pozos De Tronadura Pauas De Inspeccion MENSUAL. (cont.) pmc_6640 MD6640 9. Revise el sello de aire rotatorio y reemplácelo si es necesario. 10. Tome muestras de aceite hidráulico del tanque, para análisis de aceite. 11. Revise, limpie o reemplace todos los filtros de aire. 12. Revise, limpie o reemplace todos los filtros de aceite. 13. Déle una estrecha mirada a todas las unidades estructurales, incluyendo la estructura de orugas, ejes, estructura principal y mástil. Revise si presentan fisuras, manifestaciones de fatiga o pandeo. 14. Preste atención de cualquier deficiencia encontrada durante inspecciones anteriores las cuales no requirieron de acción inmediata.
  • 216.
    4-30 Mantención Preventiva Sección MD6640Perforadora Electrica Para Pozos De Tronadura PAUTAS DE INSPECCIÓN SEMESTRAL. pmc_6640 MD6640 1. Posicione la máquina de forma tal que un tambor de transmisión y los rodillos inferiores puedan ser removidos para una revisión de los bujes. 2. Drene la caja de engranajes de propulsión y llénela con aceite nuevo. PRECAUCIÓN: CUÍDESE CUANDO QUITE LOS TAPONES, ESPECIALMENTE SI LA UNIDAD ESTÁ CALIENTE. SE CREA PRESIÓN EN LA CAJA DE ENGRANAJES Y CUANDO SE SACA EL ÚLTIMO HILO DEL TAPÓN, ÉSTE PUEDE SALTAR CON ALGUNA FUERZA. 3. Cuando la caja de engranajes sea drenada, inspeccione los engranajes, piñones, rodamientos y sellos. 4. Drene la caja de engranajes de la bomba de accionamiento y llénela con aceite nuevo. 5. Drene la caja de engranajes de rotación y llénela con aceite nuevo. 6. Cuando la caja de engranajes sea drenada, saque el motor e inspeccione los engranajes, piñones, rodamientos y sellos. 7. Drene la caja de engranajes de empuje y llénela con aceite nuevo. 8. Cuando la caja de engranajes sea drenada, inspeccione los engranajes, piñones, rodamientos y sellos.
  • 217.
    4-31 Mantención Preventiva Sección MD6640Perforadora Electrica Para Pozos De Tronadura Pautas de Inspección SEMESTRAL. (cont.) pmc_6640 MD6640 9. Reacondicione con lubricante los rodamientos de las poleas del winche de la punta del mástil. 10. Drene el winche auxiliar y llénelo con aceite nuevo. 11. Drene el depósito de aceite hidráulico y llénelo con aceite nuevo. 12. Cambie todos los filtros de aceite hidráulico. 13. Corrija cualquiera deficiencia encontrada durante inspecciones anteriores las cuales no requirieron de una acción inmediata. 14. Limpie todo el entorno de la máquina y retoque la pintura en cualquier parte de la perforadora donde falte la pintura y pueda ocurrir oxidación.
  • 218.
    4-32 Mantención Preventiva Sección MD6640Perforadora Electrica Para Pozos De Tronadura
  • 219.
    5-1 Procedimientos de ServicioSección MD6640 Perforadora Electrica Para Pozos De Tronadura Sección 5 Procedimientos de Servicio Recurra siempre a la información de seguridad de la Sección 1 de éste manual antes de iniciar todo proceso de mantención en esta máquina. Tabla de Contenidos CADENAS DE ORUGAS ..............................................................................................................5 NIVEL DE ACEITE DE LOS MANDOS FINALES – COMPROBAR ...............................................5 ACEITE DE LOS MANDOS FINALES - CAMBIAR ........................................................................6 AJUSTE DE LACADENA –AJUSTAR...........................................................................................8 MEDICIÓN DE LA TENSIÓN DE CADENA ...................................................................................8 AJUSTE DE LA TENSIÓN DE CADENA ...............................................................................10 APRIETE DE LA CADENA .......................................................................................................... 11 AFLOJAMIENTO DE LA CADENA............................................................................................... 12 AJUSTE DE LA CADENA - INSPECCIONAR .............................................................................. 13 TREN DE RODAJE – COMPROBAR .........................................................................................14 ESPECIFICACIONES DE LUBRICANTE ..................................................................15 Especificaciónes De Lubricación De Caja De Engranajes Planetarios .......................................15 Intervalos De Cambio De Aceite ................................................................................................15 ESTRUCTURAS DE ORUGA .....................................................................................................16 REPARACIÓN .................................................................................................................16 Remoción De La Estructura De Orugas/Entibación ....................................................................17 EJES ........................................................................................................................................... 18 Eje De Igualación - Detalles .......................................................................................................18 REPARACIÓN .................................................................................................................19 ESTRUCTURA PRINCIPAL......................................................................................................... 21 Estructura Principal - Detalles....................................................................................................21 REPARACIÓN .................................................................................................................22 COMPUERTA PARA VER LA BROCA...................................................................................22 Compuerta Para Ver La Broca - Detalles....................................................................................22 ESTRUCTURA “A” DEL MÁSTIL ........................................................................................... 23 REPARACIÓN .................................................................................................................23 GATOS DE NIVELACIÓN ...................................................................................................... 23 Gatos De Nivelación - Detalles...................................................................................................24 REPARACIÓN .................................................................................................................25 SALA DE MÁQUINAS ............................................................................................................ 28 Sala De Máquinas – Vista En Detalle.........................................................................................28 REPARACIÓN ...........................................................................................................................29 VENTILADOR Y FILTRO PARAVENTILACIÓN DE LA SALA ................................................30 Sala De Máquinas – Sistema De Ventilación .............................................................................30
  • 220.
    5-2 Procedimientos de ServicioSección MD6640 Perforadora Electrica Para Pozos De Tronadura PASILLOS Y ESCALERAS ................................................................................................... 31 Escalera Abatible De Acceso - Detalles ....................................................................................31 CABINA DE OPERADORES.................................................................................................32 Localización/Montaje De Cabina Del Operador ...........................................................................32 ASIENTO DEL OPERADOR .................................................................................................33 Asiento Del Operador - Ajustes ..................................................................................................33 CONTROLES DEL OPERADOR .........................................................................................34 Controles del Operador ..............................................................................................................34 UNIDAD DEAIREACONDICIONADO CON CALENTADOR ................................................35 Unidad de Calefaccion/Aire Acondicionado de la Cabina del Operador.......................................35 ACCIONAMIENTO DE LA BOMBA HIDRÁULICA ..................................................................36 Accionamiento De La Bomba Hidráulica ....................................................................................36 Caja De Engranajes De Accionamiento De La Bomba Hidráulica –Detalles ...............................37 PORTACABLE ......................................................................................................................40 TENSADO DE CADEMNA ....................................................................................................42 AJUSTES HIDRÁULICOS ............................................................................................... 43 Localizacion de Ajustes Hidraulicos ...........................................................................................44 INSTRUCCIONES DELARRANQUE DEL INICIO DEL MANDO ..................................... 44 LUBRICACIÓN ................................................................................................................ 46 REPARACIÓN .................................................................................................................46 ESTRUCTURA DEL MÁSTIL .......................................................................................................47 Vista General Del Mástil.............................................................................................................47 REPARACIÓN ....................................................................................................................... 48 ESLINGAS DE SEGURIDAD DEL MÁSTIL ........................................................................... 48 Eslinga Superior De Seguridad...................................................................................................48 REPARACIÓN .................................................................................................................49 Eslinga Inferior De Seguridad (Opcional) ....................................................................................49 CAJA DE ENGRANAJES DE ROTACIÓN .............................................................................50 Maquinaria De Rotación/Caja De Engranajes .............................................................................50 AJUSTE DEL EJE DE TRANSMISIÓN ............................................................................51 Ajustes Del Eje De Transmisión .................................................................................................51 Eje Intermedio De La Maquinaria De Rotación............................................................................52 REPARACIÓN .................................................................................................................53 SAQUE EL RETÉN DEL RODAMIENTO SUPERIOR...............................................53 Eje De Transmisión De La Maquinaria De Rotación – Detalles ...................................................56 MOTOR DE ROTACIÓN .......................................................................................................59 Motor De Accionamiento De Rotación – Detalles .......................................................................59 ACOPLAMIENTO GIRATORIO DEAMORTIGUACIÓN ......................................................... 61 Acoplamiento Giratorio De Amortiguación - Detalles ............................................................................................................61 REPARACIÓN .................................................................................................................62 ESTRUCTURAGUÍADE ROTACIÓN/EMPUJE .................................................................... 63 Estructura Guía De Rotación/Empuje - Detalles .........................................................................63 AJUSTE DE LOS RODILLOS GUÍA ......................................................................................64 Raca de Piñon y Guia Superior de Rodillo - Detalles ..................................................................64 Guia Inferior de Rodillos – Detalles ............................................................................................65 REPARACIÓN .................................................................................................................66 Alineación De Acoplamientos.....................................................................................................68 CAJA DE ENGRANAJES DE EMPUJE ................................................................................. 70
  • 221.
    5-3 Procedimientos de ServicioSección MD6640 Perforadora Electrica Para Pozos De Tronadura Maquinaria De Empuje – Vista General ......................................................................................70 REPARACIÓN .................................................................................................................71 Caja De Engranajes Y Base De La Maquinaria De Empuje.........................................................74 Eje Primero Intermedio Y De Carga De La Maquinaria De Empuje .............................................72 Segundo Eje Intermedio De La Maquinaria De Empuje ...............................................................73 Eje De Entrada Maquinaria De Empuje.......................................................................................75 FRENO DE LEVANTE...........................................................................................................78 INSPECCIÓN ..................................................................................................................78 Ajustes Del Desgaste Del Freno ................................................................................................78 Freno De Levante – Detalles ......................................................................................................79 AJUSTE DEL DESGASTE DEL FRENO .........................................................................80 REEMPLAZO DE LOS DISCOS DE FRICCIÓN............................................................. 80 DESMONTAJE DEL CUERPO DEL MAGNETO Y LAARMADURA ................................81 MONTAJE DEL CUERPO DEL MAGNETO Y LAARMADURA ........................................ 81 PORTABARRAS ................................................................................................................... 82 Portabarras Lado Derecho - Detalles..........................................................................................82 Portabarras Lado Izquierdo - Detalles ........................................................................................83 REPARACIÓN .................................................................................................................84 Equipos Variables Del Portabarras ............................................................................................85 LLAVE DE HERRAMIENTAS .................................................................................................86 Llave De Herramientas - Detalles ...............................................................................................86 REPARACIÓN .................................................................................................................87 LLAVE DE DESENROSCAR ................................................................................................88 REPARACIÓN .................................................................................................................88 WINCHEAUXILIAR ................................................................................................................ 90 TIRANTES DEL MÁSTIL........................................................................................................91 Tirantes Del Mástil - Detalles .....................................................................................................91 REPARACIÓN .................................................................................................................92 AJUSTES ........................................................................................................................92 SISTEMA HIDRÁULICO...............................................................................................................93 OPERACIÓN DEL SISTEMA.................................................................................................93 Componentes Hidráulicos – Vista General .................................................................................93 SISTEMA HIDRÁULICO DEL CIRCUITO DE LOS CILINDROS............................................ 94 SISTEMA HIDRÁULICO DEL CIRCUITO DE PROPULSIÓN ................................................95 MANTENCIÓN GENERAL .....................................................................................................95 LIMPIEZA DEL SISTEMA HIDRÁULICO ........................................................................... 95 REQUERIMIENTOS DE ACEITE .............................................................................. 96 CAMBIO DE ACEITE Y FILTROS .............................................................................. 96 PAUTAS DE MANTENCIÓN SEMANAL .....................................................................97 REPARACIONES DEL TANQUE DE ACEITE ....................................................................... 97 PROCEDIMIENTO DE ALIVIO DE PRESIÓN DE LA VÁLVULA DE EQUILIBRIO (O DE COMPENSACIÓN) DE LOS GATOS DE NIVELACIÓN ........................................................97 GATOS TRASEROS .......................................................................................................98 GATOS DELANTEROS .................................................................................................. 98 INSPECCIÓNANTES DELARRANQUE ...............................................................................99 PRUEBASALSISTEMA HIDRÁULICO ................................................................................ 101 REVISIÓN DE LA PRESIÓN DE CARGA DE LA BOMBA DE PROPULSIÓN..................... 101 REVISIÓN DE LA PRESIÓN DE CONTROL ................................................................ 102
  • 222.
    5-4 Procedimientos de ServicioSección MD6640 Perforadora Electrica Para Pozos De Tronadura REVISIÓN DE LAVÁLVULADE HABILITACIÓN DE PROPULSIÓN Y DE SELECCIÓN DE VELOCIDAD BAJA .............................................................................................................. 102 REVISIÓN DEL CILINDRO DE LOS GATOS EN MODALIDAD MANUAL ........................... 103 REVISIÓN DEL CONTROL DE FLUJO............................................................................... 104 PRUEBA DE DERIVACIÓN DE CILINDROS DE LOS GATOS ........................................... 105 REVISIÓN DE PRESIÓN DE ALIVIO DEL FRENO ............................................................. 106 REVISIÓNALIVIO DE EMERGENCIA DE FRENO DE PROPULSIÓN ............................... 106 REVISIÓN DE LA PRESIÓN DE ALIVIO PRINCIPAL DE LABOMBA PROPULSIÓN ......... 107 REVISIÓN DE LA FUNCIÓN DE LAS ORUGAS ................................................................. 108 REVISIÓN DE LA COMPUERTA PARA VER LA BROCA .................................................... 108 REVISIÓN DE LA ESCALERA DE ACCESO ......................................................................108 REVISIÓN DE LAVÁLVULADE FLUJO PRINCIPAL ........................................................... 108 REVISIÓN DE LAS LLAVES DE DESENROSCAR Y DE HERRAMIENTAS ......................109 CILINDROS DE LA CORTINA CONTRA POLVO ................................................................ 109 DESLIZADERA DEL SELLO DE POLVO ............................................................................ 109 CIERRE DEL MÁSTIL ......................................................................................................... 109 CILINDROS DE CIERRE TIRANTES DEL MÁSTIL ............................................................ 109 CILINDROS DE CIERRE DE ESTRUCTURA “A” ............................................................... 110 REVISIÓN PRESIÓN CONSTANTE DE CIERRE DEL MÁSTIL ......................................... 110 REVISIÓN PRESIÓN CONSTANTE TIRANTES DEL MÁSTIL ............................................ 110 REVISIÓN PRESIÓN CONSTANTE ESTRUCTURA “A” .................................................... 111 SUBIR/BAJAR MÁSTIL ........................................................................................................ 111 WINCHEAUXILIAR .............................................................................................................. 112 REVISIÓN PRESIÓNACCIONAMIENTO LUBRICACIÓN DE CENTRAL HIDRÁULICA...... 113 CHEQUEO DE FUNCIÓN DEL GUARDA DE LA VENTANA - OPCIÓN ............................. 113 REVISIÓN DE LOS GATOS EN LA MODALIDAD NIVELACIÓNAUTOMÁTICA .................. 114 REVISIÓN DE LA POSICIÓN DE PORTABARRAS ............................................................ 115 AJUSTES DE ALIVIO DE PUERTO DE CIERRE DE PORTABARRAS Y CILINDRO DE LA COMPUERTA...................................................................................................................... 115 REVISIÓN DE LUBRICADOR HILOS DE LA BARRA ......................................................... 116 REVISIÓN DE LA FUNCIÓN DEL POSICIONADOR DE BARRAS ..................................... 116 REVISIÓN DE FUNCIÓN GUÍA CENTRAL .......................................................................... 117 REVISIÓN DE LA LLAVEAUTOMÁTICA DE DESENROSCAR .......................................... 118 CONTROL DE POLVO ............................................................................................................. 118 MANTENCIÓN GENERAL ................................................................................................... 118 PLATAFORMA DE PERFORACIÓN Y CORTINAS DE POLVO ......................................... 118 INYECCIÓN DE AGUA- OPCIÓN ....................................................................................... 118 OPERACIÓN ................................................................................................................. 119 LLENADO DEL TANQUE DE AGUA .............................................................................. 119 ESQUEMÁTICOS - HIDRÁULICO SITUADAS EN EL EXTREMO DE ESTE MANUAL
  • 223.
    5-5 Procedimientos de ServicioSección MD6640 Perforadora Electrica Para Pozos De Tronadura SECCIÓN 5 Mantención Mayor CADENAS DE ORUGAS Información sobre cadenas Los sistemas de ajuste de cadenas utilizan aceite o grasa a alta presión a fin de mantener las cadenas con la tensión apropiada. La grasa o aceite a alta presión proveniente de la válvula de alivio puede penetrar la piel causando lesiones o la muerte. No se acerque a la válvula de alivio para ver si tiene fugas de aceite o grasa. Observe el cilindro de ajuste de cadenas o la cadena para ver si la misma está suelta. Los pasadores y bujes en una unión de pasador de cadena seca pueden tornarse muy calientes. Es posible que se quemen los dedos si hay más que un breve contacto con estos componentes. NIVEL DE ACEITE DE LOS MANDOS FINALES – COMPROBAR PRECAUCION: El aceite caliente y los componentes calientes pueden causar lesiones personales. No permita contacto del aceite o de los componentes calientes con la piel. 1. Coloque uno de los mandos finales de modo que el tapón de drenaje de aceite (2) esté en la parte inferior.
  • 224.
    5-6 Procedimientos de ServicioSección MD6640 Perforadora Electrica Para Pozos De Tronadura Nota: Consulte el Manual de Operación y Mantenimiento, “Información general sobre peligros” para obtener información sobre la contención de derrames de fluidos. 2. Quite el tapón del nivel de aceite (1). 3. Compruebe el nivel de aceite. El aceite debe estar cerca del fondo de la abertura del tapón de nivel. 4. Agregue aceite por la abertura del tapón de nivel si es necesario. Nota: Si el llenado es lento, es posible que el orificio de llenado esté obstruido por el engranaje planetario. Haga girar el mando final para apartar el engranaje planetario del orificio de llenado. Nota: Si se llena excesivamente el mando final, los sellos en el motor de desplazamiento permitirán la entrada de agua o aceite hidráulico en el mando final. El mando final puede contaminarse. 5. Limpie el tapón del nivel de aceite (1). Inspeccione el sello anular. Reemplace el sello anular si está desgastado o dañado. 6. Instale el tapón del nivel de aceite (1). 7. Repita el mismo procedimiento para el otro mando final. ACEITE DE LOS MANDOS FINALES - CAMBIAR PRECAUCION: El aceite caliente y los componentes calientes pueden causar lesiones personales. No permita contacto del aceite o de los componentes calientes con la piel. DRAIN 1 2
  • 225.
    5-7 Procedimientos de ServicioSección MD6640 Perforadora Electrica Para Pozos De Tronadura 1. Coloque uno de los mandos finales de modo que el tapón de drenaje de aceite (2) esté en la parte inferior. 2. Quite el tapón de drenaje (2) y el tapón de nivel (1). Drene el aceite en un recipiente apropiado. 3. Limpie los tapones e inspeccione los sellos anulares. Si se encuentran desgastados o dañados, reemplace el tapón de drenaje, el tapón de nivel o los sellos anulares. 4. Instale el tapón de drenaje (2). 5. Llene el mando final hasta la parte inferior de la abertura en el tapón de nivel (1). Consulte el Manual de Operación y Mantenimiento, “Viscosidades de lubricantes” y el Manual de Operación y Mantenimiento, “capacidades de llenado”. Nota: Si el llenado es lento, es posible que el orificio de llenado esté obstruido por el engranaje planetario. Haga girar el mando final para apartar el engranaje planetario del orificio de llenado. Nota: Si se llena excesivamente el mando final, los sellos en el motor de desplazamiento permitirán la entrada de agua o aceite hidráulico en el mando final. El mando final puede contaminarse. 6. Instale el tapón de nivel (1). 7. Realice los pasos 1 a 6 en el otro mando final. Use un recipiente diferente para el aceite para mantener separadas las muestras de aceite de los mandos finales. 8. Saque todo el aceite que se ha derramado en las superficies. 9. Arranque el motor y haga funcionar los mandos finales en varios ciclos completos. 10. Pare el motor. Compruebe el nivel de aceite. 11. Revise el aceite drenado en busca de virutas o partículas de metal. Si hay partículas o virutas, consulte a su distribuidor Caterpillar. 12. Deseche el material drenado de forma adecuada. Cumpla con las reglamentaciones locales para el desecho de los materiales.
  • 226.
    5-8 Procedimientos de ServicioSección MD6640 Perforadora Electrica Para Pozos De Tronadura AJUSTE DE LA CADENA –AJUSTAR PRECAUCION: La grasa a presión que sale de la válvula de alivio puede causar lesiones graves o fatales. La grasa a presión que sale de la válvula de alivio puede penetrar la piel y causar lesiones graves o fatales. No observe la válvula de alivio para ver si escapa grasa. Observe la cadena o el cilindro ajustador de la cadena para ver si se ha aflojado la cadena. Afloje la válvula de alivio una vuelta solamente. Si la cadena no se afloja, cierre la válvula de alivio y consulte a su distribuidor Caterpillar. ATENCION Manteniendo el ajuste correcto de las cadenas, se prolonga la duración de los componentes de mando y de las cadenas. Nota: Es necesario ajustar la tensión de cadena de acuerdo con las condiciones de operación actuales. Si el suelo es pesado, utilice la mayor comba possible en las cadenas. MEDICIÓN DE LA TENSIÓN DE CADENA 1. Opere la máquina en la dirección de las ruedas locas.
  • 227.
    5-9 Procedimientos de ServicioSección MD6640 Perforadora Electrica Para Pozos De Tronadura 2. Deténgase con un pasador de cadena directamente sobre el rodillo de soporte delantero. Estacione la máquina y apague el motor. 3. Coloque una regla sobre las garras de la cadena, entre el rodillo de soporte delantero y la rueda loca. La regla debe ser lo suficientemente larga como para llegar desde el rodillo de soporte delantero hasta la rueda loca. Nota: Si la máquina está equipada con tres rodillos de soporte, coloque una regla sobre las cadenas entre los rodillos de soporte. La regla debe ser lo suficientemente larga como para llegar de un rodillo de soporte a otro rodillo de soporte. 4. Mida la comba máxima de la cadena. La comba se mide desde el punto más alto de la garra de la cadena hasta la parte inferior de la regla. Una cadena que esté ajustada correctamente tendrá una comba de 40,0 a 55,0 mm (1,57 a 2,17 pulg). 5. Si la cadena está demasiado tensa o demasiado floja, ajuste la tensión de cadena según el procedimiento apropiado que se indica a continuación.
  • 228.
    5-10 Procedimientos de ServicioSección MD6640 Perforadora Electrica Para Pozos De Tronadura AJUSTE DE LA TENSIÓN DE CADENA Ejemplo típico El tensor de la cadena está ubicado en el bastidor de la cadena.
  • 229.
    5-11 Procedimientos de ServicioSección MD6640 Perforadora Electrica Para Pozos De Tronadura APRIETE DE LA CADENA Limpie la conexión de engrase antes de añadir grasa. 1.Añada grasa a través de la conexión de engrase (1) hasta alcanzar la tensión de cadena correcta. 2. Opere la máquina hacia atrás y hacia adelante para estabilizar la presión. 3. Revise la comba. Ajuste la cadena, según sea necesario.
  • 230.
    5-12 Procedimientos de ServicioSección MD6640 Perforadora Electrica Para Pozos De Tronadura AFLOJAMIENTO DE LA CADENA 1. Afloje cuidadosamente la válvula de alivio (2) hasta que la cadena comience a aflojarse. No afloje la cadena más de una vuelta. 2.Apriete la válvula de alivio (2) a un par de 34 ± 5 N·m (25 ± 4 lb-pie) cuando se logre la tensión de cadena deseada. 3. Opere la máquina hacia atrás y hacia adelante para estabilizar la presión. 4. Revise la comba. Ajuste la cadena, según sea necesario.
  • 231.
    5-13 Procedimientos de ServicioSección MD6640 Perforadora Electrica Para Pozos De Tronadura AJUSTE DE LA CADENA - INSPECCIONAR Compruebe el ajuste de las cadenas. Observe la cadena para ver si tiene desgaste o acumulación excesiva de tierra. Si parece que la cadena está demasiado tensa o demasiado floja, vea en el Manual de Operación y Mantenimiento, “Ajuste de la cadena - Ajustar”.
  • 232.
    5-14 Procedimientos de ServicioSección MD6640 Perforadora Electrica Para Pozos De Tronadura TREN DE RODAJE – COMPROBAR 1. Inspeccione los rodillos superiores, los rodillos inferiores y las ruedas guía para ver si tienen fugas. 2. Inspeccione la superficie de la cadena, de los rodillos superiores, los rodillos inferiores, las ruedas guía, las zapatas de cadena y las ruedas motrices. Vea si tienen desgaste o pernos de montaje flojos. 3. Preste atención para ver si oye ruidos anormales mientras se mueve lentamente en una area amplia. 4. Si encuentra desgaste anormal, ruido o fugas, contacte a su distribuidor Caterpillar.
  • 233.
    5-15 Procedimientos de ServicioSección MD6640 Perforadora Electrica Para Pozos De Tronadura ESPECIFICACIONES DE LUBRICANTE Especificaciónes De Lubricación De Caja De Engranajes Planetarios 1. Los aceites mostrados en la figura superior contienen aditivos tipo fosforosos de extrema presión. Otros aceites de calidad y propiedades equivalentes se pueden usar con la condición que contengan aditivos tipo fosforoso de extrema presión. Intervalos De Cambio DeAceite
  • 234.
    5-16 Procedimientos de ServicioSección MD6640 Perforadora Electrica Para Pozos De Tronadura 2. La contaminación depende de las condiciones de operación y la temperatura de operación. Operando a temperaturas de 180º F o superiores para servicio continuo, va requerir cambios de aceite mas frecuentes. ESTRUCTURAS DE ORUGA Inspeccione si las estructuras de oruga tienen fisuras o daños. Preste particular atención a los puntos de fijación de los ejes y a la pestaña de la plancha inferior. Cualquiera fisura, desgaste o daño debiera ser reparado inmediatamente. REPARACIÓN La reparación de las estructuras de oruga se puede realizar mientras éstas estén instaladas en la perforadora o pueden ser desmontadas para facilitar su reparación. Para desmontar las estructuras de oruga desde la máquina, proceda de la siguiente manera: 1. Desconecte todas las líneas hidráulicas y de lubricación conectadas a la estructura de oruga. Asegúrese que todas las uniones estén limpias y todas las líneas y puertos queden tapadas. 2. Usando los gatos de nivelación de la máquina, levante la máquina lo suficiente para permitir que sean instalados bloques de madera bajo las cadenas de oruga y queden extendidos de 6 a 8 pies desde la estructura de oruga. El material de bloqueo debería quedar intercalado para facilitar el deslizamiento de la estructura de orugas fuera de la máquina. 3. Baje lentamente la máquina hasta que no quede peso alguno sobre el eje trasero o el eje de igualación. Bloquee firmemente la máquina en esa posición. 4. Desde este punto, una o ambas estructuras de oruga pueden ser desmontadas desde la máquina. NOTA: Los pasos 5 hasta el 14 describen el procedimiento para desmontar y reinstalar una estructura de oruga. Si ambas estructuras necesitan ser desmontadas, repita los pasos 5 hasta el 14 para la otra estructura de oruga. 5. Desmonte el retén del eje trasero y las platinas o el collarín de mordaza. 6. Saque la chaveta, el pasador de retención del pasador y el pasador del eje de igualación.
  • 235.
    5-17 Procedimientos de ServicioSección MD6640 Perforadora Electrica Para Pozos De Tronadura 7. Usando aparejos y vehículo(s) apropiado(s), tire la estructura de oruga recto fuera de la máquina. Arrástrela hasta una posición donde pueda ser reparada o manejada con equipamiento de levante. 8. Repare la estructura de oruga y sus componentes según sea necesario. 9. Para reinstalar la estructura de oruga, primero posicione la oruga en línea con el eje trasero y el de igualación. 10. Lubrique el eje trasero, el calibre del eje, el pasador y los calibres del eje de igualación. 11. Usando aparejos y vehículo(s) apropiado(s), tire la estructura de oruga recto hacia la máquina. Proceda lentamente cuando fije la oruga al eje trasero. Asegúrese de que la oruga quede recta cuando esté siendo tirada dentro del eje. 12. Cuando la oruga quede en posición, inserte el pasador del eje de igualación y los pasadores de retención. Inserte la chaveta del pasador de retención. 13. Instale el retén del eje trasero o collarín de mordaza. Remoción De La Estructura De Orugas/Entibación
  • 236.
    5-18 Procedimientos de ServicioSección MD6640 Perforadora Electrica Para Pozos De Tronadura 14. Conecta las líneas hidráulicas y de lubricación. 15. Levante la máquina con los gatos de nivelación justo lo suficiente para quitar la entibación y luego baje la máquina. 16. Propulsione la máquina para verificar la operación de los componentes de la oruga.
  • 237.
    5-19 Procedimientos de ServicioSección MD6640 Perforadora Electrica Para Pozos De Tronadura EJES Las estructuras de orugas están fijadas a la máquina mediante dos ejes. El eje frontal (eje de igualación) permite pivotar la parte frontal de las orugas, igualando la carga de la máquina entre las dos orugas. Cada extremo del eje se fija con pasadores a las estructuras de oruga mientras la parte central del eje se fija con pasadores a la parte inferior de la estructura principal de la perforadora. El eje trasero es el eje pivote en el que cuando el frente de las orugas se mueven arriba y abajo para igualar las cargas al propulsarse sobre terreno irregular, la parte trasera pivota sobre el eje trasero. Este eje está sólidamente fijado a ambos lados de la estructura principal y no se mueve durante la operación. Inspeccione si los ejes y sus puntos de fijación tienen pernos o herrajes sueltos. Inspeccione si los ejes tienen fisuras o daños. Repare o reemplace los ejes si están gastados o dañados. Inspeccione los pasadores pivotantes y sus retenes por si están gastados o dañados y reemplácelos si es necesario. Eje De Igualación - Detalles
  • 238.
    5-20 Procedimientos de ServicioSección MD6640 Perforadora Electrica Para Pozos De Tronadura REPARACIÓN Normalmentelosejesnonecesitaránserreparadosdurantelavidadelamáquina.Sinembargo,accidentes y desgastes anormales suelen ocurrir, lo que puede hacer necesario la reparación de los ejes. Debido a la inaccesibilidad de los ejes, su remoción de la máquina será muy probablemente necesaria. Para desmontar los ejes desde la máquina: 1. Siguiendo el procedimiento enumerado bajo REPARACIÓN DE ESTRUCTURAS DE ORUGA, desmonte una oruga desde la máquina. Posicione la oruga para permitir la remoción de los ejes desde la máquina. Asegúrese que la máquina y la oruga opuesta queden sólidamente bloqueadas. 2. Para desmontar el eje de igualación, primero desmonte el pasador faltante, luego bloquee firmemente el eje para permitir la remoción del pasador pivotante. 3. Saque el pasador pivotante del eje. El bloque de rodamiento puede ser desmontado para facilitar la remoción del pasador.
  • 239.
    5-21 Procedimientos de ServicioSección MD6640 Perforadora Electrica Para Pozos De Tronadura 4. Retire el eje desde la parte inferior de la perforadora y repárelo o reemplácelo según sea necesario. 5. Reinstale el eje, primero posicionándolo para permitir la instalación del bloque de rodamiento y/o el pasador de pivote. Instale el bloque de rodamiento y/o el pasador de pivote. 6. Instale los pasadores de los extremos del eje de igualación y los pasadores de retención. Instale la estructura de oruga sólo si fue reparado el eje de igualación. 7. Para desmontar el eje trasero, quite el retén del eje o collarín de mordaza faltante. 8. Bloquee firmemente el eje para permitir que éste pueda ser deslizado fuera de la estructura de oruga. 9. Quite los pernos del bloque de rodamiento que fijan el eje a la estructura principal. 10. Deslice el eje desde la estructura de oruga y sáquelo desde la parte inferior de la perforadora. 11. Repare o reemplace el eje según sea necesario. 12. Posicione el eje para permitir deslizarlo dentro de la estructura de oruga. 13. Lubrique los calibres de rodamiento del eje en la estructura de oruga. 14. Deslice el eje dentro de la estructura de oruga. 15. Alinee el eje con la estructura principal. 16. Instale los bloques de rodamiento y los pernos para fijar el eje a la estructura principal. 17. Instale la oruga según se describe en REPARACIÓN DE ESTRUCTURAS DE ORUGA. 18. Levante levemente la máquina con los gatos de nivelación y quite la entibación remanente. Baje la máquina hasta el suelo.
  • 240.
    5-22 Procedimientos de ServicioSección MD6640 Perforadora Electrica Para Pozos De Tronadura ESTRUCTURAPRINCIPAL La estructura principal de la perforadora MD6640 consiste básicamente de dos vigas I unidas entre sí con refuerzos transversales y cubierta en la parte superior con planchas de cubierta. Inspeccione si la estructura principal de la perforadora tiene desgastes, daños o quebraduras. Preste especial atención a las siguientes áreas críticas: Estructura Principal - Detalles 1. Los refuerzos transversales los cuales amarran entre sí las bridas inferiores de las vigas I. 2. Los refuerzos transversales y las planchas de cubierta las cuales amarran entre sí las bridas superiores de las vigas I. 3. Las áreas de las fijaciones del pasador de cierre del mástil. 4. Las áreas de las fijaciones de los gatos de nivelación. 5. Las áreas donde la estructura “A” del mástil se fija con pasadores a la estructura principal. 6. Las fijaciones de las orejas del cilindro de levante del mástil y el área inmediata alrededor de dichas orejas en la estructura principal.
  • 241.
    5-23 Procedimientos de ServicioSección MD6640 Perforadora Electrica Para Pozos De Tronadura REPARACIÓN Las quebraduras, desgaste o daños a las áreas críticas mencionadas anteriormente, requieren reparación inmediata. La urgencia de reparación de otras áreas de la estructura principal está dictada por el área en la cual debe hacerse la reparación y la severidad del daño. Los daños menores pueden no requerir atención inmediata, pero todo daño a la estructura principal debería ser reparada en la primera oportunidad disponible. La reparación a la estructura principal se limita a reparaciones por sor soldadura. Siga los detalles de los procedimientos recomendados en el APÉNDICE para completar las reparaciones con soldadura. Si el daño es severo o aparecen circunstancias inusuales, contacte al Departamento de Servicio de Caterpillar Global Mining por las recomendaciones específicas. COMPUERTA PARA VER LA BROCA La compuerta para ver la broca está montada en la estructura principal en línea con la barra de perforación y la estación de operación. Cuando la cubierta de la compuerta es bajada, el operador puede ver la broca cuando se comienza con un nuevo pozo. Compuerta Para Ver La Broca - Detalles La estructura debería ser revisada mensualmente por si tiene fisuras en las soldaduras. El cilindro y las líneas hidráulicas se deben revisar a diario por si presentan filtraciones.
  • 242.
    5-24 Procedimientos de ServicioSección MD6640 Perforadora Electrica Para Pozos De Tronadura ESTRUCTURA “A” DEL MÁSTIL La estructura “A” del mástil es una estructura soldada que se fija con pasadores al mástil y a la estructura principal y ayuda a soportar al mástil cuando es bajado. Los pasadores de anclaje de la pierna trasera están operados hidráulicamente. La estructura debe revisarse mensualmente por si presenta fisuras en las soldaduras, pandeos estructurales o desgastes. Los cilindros y las líneas hidráulicas se deben revisar a diario. REPARACIÓN Cualquiera fisura, desgaste o daño a la estructura “A” debe repararse inmediatamente. Las reparaciones a la estructura “A” están limitadas a reparaciones por soldadura. Contacte al representante local de Caterpillar Global Mining para obtener soluciones específicas de reparación por soldadura. GATOS DE NIVELACIÓN Inspeccione si los gatos de nivelación presentan daños estructurales, una apropiada película de lubricación y apropiada operación. Verifique que todos los pernos estén apretados y que todos los pasadores estén en su lugar. Revise si las zapatas de los gatos tienen fisuras o daños. Límpielas de exceso de material. Revise si los puntales de las patas tienen desgastes o daños y verifique que estén cubiertos con lubricante.
  • 243.
    5-25 Procedimientos de ServicioSección MD6640 Perforadora Electrica Para Pozos De Tronadura Gatos De Nivelación - Detalles La apropiada operación de los gatos impone que no se asienten cuando el peso de la máquina descansa sobre ellos ni cuando los gatos están en posición de descanso. Para revisarlos, levante la máquina sobre los gatos de nivelación hasta que la máquina quede totalmente fuera del suelo. Marque una línea en los puntales a 30 cm bajo el alojamiento del gato. Permita que la máquina permanezca desactivada por una hora. Mida la distancia entre la línea marcada y el alojamiento de los gatos. Si los gatos han derivado más de ¼”, él(los) gato(s) y/o los otros componentes hidráulicos tienen fugas y deberían ser reparados.
  • 244.
    5-26 Procedimientos de ServicioSección MD6640 Perforadora Electrica Para Pozos De Tronadura REPARACIÓN La reparación de los gatos de nivelación se limita a reparar con soldadura algunos componentes seleccionados y la limpieza de otros. La reparación con soldadura de daños estructurales está permitida en las camisas y en las zapatas de los gatos. Siga las prácticas de reparación con soldadura recomendadas en elAPÉNDICE para reparar dichos ítems. Reparaciones con soldadura en los puntales de las patas no se recomiendan si el daño tiene como causa el pandeo del puntal o pérdida de calidad cilíndrica. Los puntales deben cambiarse si están doblados o no están cilíndricos. La reparación del cilindro hidráulico se limita, en este manual, a su limpieza. La reparación del cilindro mismo, sigue los procedimientos básicos de reparación de cualquier cilindro hidráulico. En este manual, la reparación de las camisas de los gatos se limita a la reparación de fisuras o daños menores. Si ocurriera un daño serio, consulte al Departamento de Servicio de Caterpillar Global Mining por los detalles de su reparación. Nótese que los pernos que aseguran las camisas traseras de los gatos a la estructura principal están apretados a un torque de 390 lbs.pie (apriete al tope) y luego girados ½ vuelta adicional. Refiérase al método de torque “turn-of-the-nut”, mas adelante en esta sección. Deberían instalarse golillas endurecidas bajo la cabeza del perno y de las tuercas. Para desmontar y reinstalar un cilindro hidráulico y un puntal del gato, proceda como sigue: 1. Si se va a trabajar en un gato trasero, baje el gato hasta que la zapata quede a 1” o 2” del suelo. Levante los otros tres gatos sobre los cuales no se está trabajando hasta su posición de mayor retracción. Si se va a trabajar en un gato delantero, ambos gatos delanteros se deben bajar hasta 1” o 2” del suelo. Levante los gatos traseros hasta su posición de mayor retracción. 2. Detenga la bomba hidráulica y alivie cualquier presión en el sistema soltando el respirador del depósito. Cuando el aire atrapado en el depósito es aliviado, reaprete el respirador. 3. Desconecte cuidadosamente las líneas hidráulicas principales fijadas a la válvula de compensación en el cilindro hidráulico. NOTA: NO ALTERE LAS LÍNEAS QUE VAN DESDE LA VÁLVULA DE COMPENSACIÓN A LA CAJA ELECTRICA DE CONEXIÓN. 4. Con tapones apropiados, selle los orificios abiertos de las mangueras principales que fueron desconectadas en el paso 3. PRECAUCION: Si trabaja en un gato trasero, refiérase a los pasos 5 hasta el 8 y 15 hasta 31. Si trabaja en los gatos delanteros, refiérase a los pasos 9 hasta el 31.
  • 245.
    5-27 Procedimientos de ServicioSección MD6640 Perforadora Electrica Para Pozos De Tronadura 5. Para la reparación de un gato trasero, con una llave de extremo abierta, saque el terminal hembra del conector rápido desde el terminal macho que está fijado al puerto PR de la válvula de compensación. Deje la manguera de ¼” fijada al terminal hembra del conector rápido. 6. Cuando haya completado el paso 5, desconecte la manguera de ¼” desde la caja eléctrica de conexión. PRECAUCION: Mantenga siempre un firme agarre de la manguera mientras el aceite fluye desde ella. No permita que el flujo de aceite contacte su piel ya que pueden ocurrir lesiones. 7. Apunte el extremo abierto de la manguera de ¼” hacia una paila vacía de 5 galones y reconecte la terminal hembra del conector rápido al terminal macho que aún está fijado al puerto PR. Cuando se abre el conector rápido, un flujo de aceite desde el lado del vástago del cilindro, saldrá desde la manguera de ¼” hacia la paila. Esto permitirá que la zapata del gato baje por gravedad hasta el suelo, donde en dicho momento el flujo de aceite se detendrá. 8. Nuevamente saque el terminal hembra del conector rápido con la manguera de ¼” como en el paso 5 y reconecte la manguera de ¼” en la caja eléctrica de conexión. 9. Para reparación de gato delantero, desacople el conector rápido desde ambos gatos delanteros usando una llave de extremo abierto de 1 1/4”. El terminal hembra del conector rápido permanecerá conectado a la válvula. 10. En un solo gato, saque el otro extremo de la manguera con conector rápido desde la caja eléctrica de conexión en el gato. 11. Ponga el extremo de la manguera, sacado desde la caja eléctrica de conexión, dentro de un contenedor limpio de 5 galones. (Dos contenedores adicionales de 5 galones se necesitarán para manejar el aceite desde ambos gatos delanteros.) PRECAUCION: Mantenga siempre un firme agarre de la manguera mientras el aceite fluye desde ella. No permita que el flujo de aceite contacte su piel ya que pueden ocurrir lesiones. 12. Reconecte el conector rápido. Cuando la conexión esté completándose, el aceite comenzará a salir por el extremo de la manguera al contenedor y la zapata del gato bajará al suelo. Esto aliviará toda la presión sobre el vástago del pistón y creará un vació en el extremo del alojamiento del cilindro. 13. Para sacar el aceite desde el otro gato, se necesitará un ayudante. Disponga que el ayudante se mantenga sujetando la manguera desconectada dentro de un contenedor de 5 galones mientras Ud. reconecta el conector rápido el otro gato delantero. El aceite desde éste gato fluirá ahora desde la manguera que está siendo sujetada por el ayudante. 14. Cuando se haya detenido el flujo de aceite y la zapata del gato quede en el suelo, el extremo suelto de la manguera se puede reconectar a la caja eléctrica de conexión.
  • 246.
    5-28 Procedimientos de ServicioSección MD6640 Perforadora Electrica Para Pozos De Tronadura 15. Quite el conector macho del conector rápido desde el puerto PR y enrósquelo sin apretar en el conector hembra. Cubra el extremo abierto con un tapón de protección. 16. Saque la manguera de 3/8” de la válvula de compensación y tape el extremo abierto de la manguera. 17. Inserte un tapón de acero con copa de anillo “O” SAE-6 en los puertos PR y PH. 18. Quite los pernos de la cubierta de la camisa. NOTA: Si se va a reparar uno de los gatos delanteros, el soporte del tirante del mástil debe ser desmontado e instalar un perno de argolla en la tapa para remoción. 19. Quite los pernos que aseguran el retén de la zapata al puntal. Saque la zapata desde el puntal y retire el retén y el retén partido desde la zapata. 20. Fije un dispositivo de levante apropiado a la oreja de levante o perno de argolla en la tapa de la camisa y cuidadosamente levante el puntal y el cilindro desde la camisa. 21. Para desmontar el cilindro desde el puntal, saque los tapones de tubería que aseguran el pasador del pie del puntal y quite el pasador. 22. Deslice el cilindro desde el puntal. Quite la cubierta de la camisa desde el cilindro. 23. Repare o reemplace los componentes según sea necesario. 24. Instale la cubierta de la camisa sobre el cilindro. NOTA: El vástago del cilindro debe ser retraído totalmente dentro del cuerpo del cilindro. Si no, usando presión hidráulica, retraiga el cilindro hidráulico a la posición totalmente recogida. Note que se debe usar presión hidráulica y la presión debe ser ejercida en el puerto vr antes que las válvulas de compensación permitan que el cilindro se mueva. Use un aceite similar al que se usa en el sistema hidráulico. 25. Usando un dispositivo de levante apropiado, deslice el cilindro, primero el extremo del cuerpo del cilindro, dentro del puntal. 26. Alinee los orificios del pasador de la base e inserte el pasador de la base. Asegúrelo con los tapones de tubería de cabeza cuadrada. 27. Usando un dispositivo de levante apropiado, baje el puntal y el conjunto del cilindro dentro de la camisa del gato.
  • 247.
    5-29 Procedimientos de ServicioSección MD6640 Perforadora Electrica Para Pozos De Tronadura 28. Fije la cubierta de la camisa. Note que los pernos de la cubierta de la camisa de gato trasera deben ser apretados a un torque de 480 lbs.pie. No debe haber revestimiento o lubricación en los pernos. 29. Instale las conexiones dentro del cilindro hidráulico y fije las mangueras hidráulicas. 30. Posicione la zapata bajo el gato y lentamente baje el puntal dentro de la zapata. Fije la zapata del gato al puntal usando el retén partido y el retén sólido.Apriete los pernos de retención a un torque de 280 lbs.pie. (hilo seco). 31. Realice 2 o 3 ciclos del gato para comprobar la operación de la unidad y para remover cualquier bolsa de aire creada durante el proceso de reparación. El gato se debería extender y retraer hasta el máximo, sin levantar la máquina. SALA DE MÁQUINAS Inspeccione frecuentemente todos los paneles y miembros estructurales de la sala por si tienen grietas. Incluya un estrecho examen a todas las estructuras y tirantes del techo. Restaure siempre los miembros estructurales defectuosos a su estado original mediante soldadura de reparación. Inspeccione periódicamente las bisagras y picaportes de todas las puertas y ventanas para asegurarse que ellas permanezcan cerradas durante la operación de la máquina. Verifique el sellado de todas las puertas y ventanas para prevenir la entrada de polvo. Haga un reconocimiento cuidadoso de todos los pernos sueltos o faltantes. La ausencia de estos sujetadores puede resultar en excesiva vibración y desgaste de los componentes de la sala. Inspeccione la condición de la pintura tanto de la superficie interior como exterior de la sala. Reponga toda pintura en cualquier área donde haya sido dañada o cualquier área donde se hayan hecho reparaciones. REPARACIÓN La reparación de la sala de máquinas se limita usualmente a reparar estructuras individuales dentro de la sala. La reparación con soldadura debería seguir las instrucciones detalladas en el APÉNDICE. Cualquier procedimiento de reparación debería realizarse teniendo como objetivo la prevención de entrada de polvo, suciedad o humedad dentro de la sala. Todas las uniones de la estructura de la sala deben estar adecuadamente selladas y las aberturas en la sala de máquinas se deben mantener a un mínimo. El techo de la sala de máquinas es removible, así como los miembros transversales sobre el compresor de aire. Verifique que los miembros transversales estén debidamente apretados. Verifique que el techo esté apropiadamente sellado y las mordazas estén aseguradas.
  • 248.
    5-30 Procedimientos de ServicioSección MD6640 Perforadora Electrica Para Pozos De Tronadura Sala De Máquinas – Vista En Detalle
  • 249.
    5-31 Procedimientos de ServicioSección MD6640 Perforadora Electrica Para Pozos De Tronadura VENTILADOR Y FILTRO PARA VENTILACIÓN DE LASALA La sala de máquinas está equipada con un ventilador de ventilación y un filtro inercial el cual proporciona aire de ventilación limpio al compresor principal y a la sala de máquinas. La sala de máquinas está presurizada ligeramente sobre la presión atmosférica por el ventilador. Esto sirve para prevenir la entrada de polvo y humedad a la sala de máquinas. El ventilador de ventilación debería ser operado todo el tiempo en que la máquina está siendo operada. Mantenga cerradas todo el tiempo las puertas de la sala de máquinas para prevenir la entrada de polvo. La inspección del ventilador de ventilación no se requiere sino cuando sea necesario repara algún mal funcionamiento. Sala De Máquinas – Sistema De Ventilación El filtro inercial limpia el aire que entra a la sala de máquinas. Este filtro es autolimpiante y no requiere de rutinas de servicio típicas de otros filtros. La apropiada operación del filtro, sin embargo, es dependiente de un constante flujo de aire. Restricciones en la admisión, de hojas, trapos y papeles, disminuirán la efectividad del filtro y del ventilador de ventilación. Una ligera capa de polvo
  • 250.
    5-32 Procedimientos de ServicioSección MD6640 Perforadora Electrica Para Pozos De Tronadura en las aspas del filtro es normal y no impedirá la eficiencia del mismo. Para sacar el material que se ha acumulado en la superficie de las aspas, es necesario desmontar la célula del filtro y limpiar las aspas con vapor. PASILLOS Y ESCALERAS Inspeccione diariamente todos los pasamanos, pasillos, plataformas y escaleras de la máquina. Verifique que todos los miembros estructurales estén en buenas condiciones y que todas las fijaciones y soldaduras estén intactas. Repare o reemplace todo componente en forma inmediata, para asegurar la integridad de las estructuras y asegurar el cumplimiento de las regulaciones de seguridad. Escalera Abatible De Acceso - Detalles Mantenga todos los pasillos, escaleras y escalas libres de materiales los cuales puedan presentar riesgos de tropiezos o resbalamientos. Mantenga los pasillos libres de herramientas, suministros u otras obstrucciones. Limpie todo derrame de aceite o grasa inmediatamente.
  • 251.
    5-33 Procedimientos de ServicioSección MD6640 Perforadora Electrica Para Pozos De Tronadura CABINA DE OPERADORES Inspeccione diariamente si la cabina de los operadores presenta fisuras o daños estructurales en todos sus costados, techo y paneles de piso. Revise la correcta operación y apropiado sellado de las puertas y ventanas. Mantenga la cabina limpia de todo derrame de aceite, grasa o agua para ayudar a prevenir resbalamientos. Localización/Montaje De Cabina Del Operador
  • 252.
    5-34 Procedimientos de ServicioSección MD6640 Perforadora Electrica Para Pozos De Tronadura ASIENTO DEL OPERADOR Cada operador individual puede ajustar el asiento del operador según desee, con respecto a altura, inclinación y desplazamiento. Lubrique periódicamente todos los rodamientos y puntos de pivote para mantener movimientos suaves. Asiento Del Operador - Ajustes
  • 253.
    5-35 Procedimientos de ServicioSección MD6640 Perforadora Electrica Para Pozos De Tronadura CONTROLES DEL OPERADOR Inspeccione diariamente todos los controles del operador para verificar daños o desgastes así como la correcta operación de los mismos. Repare o reemplace los controles que funcionen mal, inmediatamente. Limpie todos los letreros y marcadores y mantenga todos los marcadores y señales en una condición legible, incluyendo las señales de advertencia. Controles del Operador
  • 254.
    5-36 Procedimientos de ServicioSección MD6640 Perforadora Electrica Para Pozos De Tronadura UNIDAD DE AIRE ACONDICIONADO CON CALENTADOR Inspeccione la apropiada operación, integridad estructural y sellado de la unidad de aire acondicionado, en el techo de la cabina del operador. Todos los paneles laterales permanentes deben estar en su lugar y adecuadamente sellados y asegurados. Unidad de Calefaccion/AireAcondicionado de la Cabina del Operador
  • 255.
    5-37 Procedimientos de ServicioSección MD6640 Perforadora Electrica Para Pozos De Tronadura ACCIONAMIENTO DE LA BOMBA HIDRÁULICA Las bombas del sistema hidráulico están accionadas por el motor del compresor principal de aire a través de una caja de engranajes. La caja de engranajes está montada en la base del compresor. El aceite de la caja de engranajes se debe revisar semanalmente y agregarle aceite si se requiere. Revise diariamente la caja de engranajes por si tiene pérdidas de aceite y repárela según sea necesario. Accionamiento De La Bomba Hidráulica Para desmontar y desarmar la accionamiento de la bomba caja de engranajes, proceda de la siguiente manera: 1. Ponga la máquina en un área segura para realizar la reparación. Apague y rotule todos los controles.
  • 256.
    5-38 Procedimientos de ServicioSección MD6640 Perforadora Electrica Para Pozos De Tronadura 2. Drene el aceite desde la caja de engranajes. Hay aproximadamente 7 lts de aceite en la caja. 3. Quite los pernos de montaje de la bomba y saque las bombas y las empaquetaduras. 4. Separe el acoplamiento de transmisión de la caja de engranajes. Saque los pernos de montaje de la caja. Saque la caja desde los soportes de montaje. Tome nota del espesor de las platinas. 5. En una superficie limpia, posicione la bomba de forma tal que las planchas adaptadoras de la bomba hidráulica queden hacia arriba. Quite los pernos de montaje de las planchas y levante las planchas adaptadoras desde la caja. Caja De Engranajes De Accionamiento De La Bomba Hidráulica –Detalles 6. Levante los engranajes de transmisión y sus rodamientos desde la caja de engranajes. Esto se puede hacer a mano ya que los rodamientos se fijan en forma deslizante a la caja de engranajes y al hombro del calibre de los adaptadores. Los rodamientos están a presión contra la maza de los engranajes. Puede ser necesario golpear ligeramente el engranaje para sacar los rodamientos desde el alojamiento del engranaje de transmisión. 7. Después que los engranajes de transmisión hayan sido desmontados, de vuelta la caja de engranajes para que el eje de transmisión y el engranaje puedan ser desmontados. 8. Desmonte los pernos de montaje del adaptador del eje y saque el conjunto del adaptador y la empaquetadura desde la caja de engranajes.
  • 257.
    5-39 Procedimientos de ServicioSección MD6640 Perforadora Electrica Para Pozos De Tronadura 9. Separe el conjunto del adaptador del eje de transmisión de la siguiente manera: a. Quite el gran anillo de resorte desde el calibre del adaptador. b. Quite el anillo de resorte pequeño desde el eje de transmisión y tire el eje desde el adaptador. Tenga cuidado de no dañar el sello de aceite. c. Saque el rodamiento desde el adaptador. Quite el sello de aceite desde el adaptador. 10. Limpie e inspeccione todos los componentes. Repare o reemplace todos los componentes dañados o gastados y rearme en forma opuesta al desmontaje, tomando en cuenta lo siguiente: a. Cuando rearme la caja de engranajes, use sellos, empaquetaduras y pernos nuevos. b. Use Locktite® 262 en todos los pernos y apriételos a un torque de 200 lbs.pie. c. Cuando instale el acoplamiento de la caja de engranajes, proceda de la siguiente manera: 1) Verifique que el eje del motor esté centrado. 2) Monte la maza de los acoplamientos en el motor y la caja de engranajes. 3) Monte la caja de engranajes de forma que quede un espacio de .51” entre los extremos de los ejes. 4) Revise la alineación angular y el desplazamiento horizontal. El máximo desalineamiento no debe exceder de .002”. Use platinas bajo la base de la caja de engranajes para corregir la alineación. 5) Apriete los pernos del acoplamiento a un torque de 30 lbs.pie (hilo seco).
  • 258.
    5-40 Procedimientos de ServicioSección MD6640 Perforadora Electrica Para Pozos De Tronadura
  • 259.
    5-41 Procedimientos de ServicioSección MD6640 Perforadora Electrica Para Pozos De Tronadura PORTACABLE PRECAUCION: El portacable maneja el cable de transmisión durante la propulsión. El cable transporta un alto voltaje el cual podría provocar serias o fatales lesiones. Cada vez que se vaya a realizar un trabajo en el portacable, el cable eléctrico debe desconectarse de su fuente de potencia. El portacable debe ser revisado diariamente para asegurarse que está trabajando en forma apropiada y que el cable eléctrico está siendo bobinando y rebobinando desde el carrete en forma correcta. Revise que el mecanismo de nivelación del bobinado trabaje libremente. Revise que todas las cadenas de transmisión estén con la tensión correcta y bien lubricadas. Revise si hay fisuras en todos los componentes estructurales.
  • 260.
    5-42 Procedimientos de ServicioSección MD6640 Perforadora Electrica Para Pozos De Tronadura El carrete del cable sólo debería ser alzado usando los puntos de alza provistos demostrado debajo. El Piñon que conduce la unidad principal de guía es intercambiable para permitir enrolle de una gran variedad de cables. Antes de instalar cualquier asegurar que el piñón correcto sea instalado y que la cadena este tensada apropiadamente, el uso de un piñón incorrecto conducirá un espaciamiento incorrecto de cable y un potencial de daño al cable o carrete. Refiérase a la documentación del fabricante para más información.
  • 261.
    5-43 Procedimientos de ServicioSección MD6640 Perforadora Electrica Para Pozos De Tronadura TENSADO DE CADEMNA Todas las cadenas deben ser tensionadas apropiadamente para para asegurar operación uniforme y prevenir desgaste excesivo de cadena y piñones. Todas los piñones deben estar alineados apropiadamente para impedir desgaste excesivo en cadena. La cadena del Motor-Carrete debería tener 0.50-0.75 pulgadas. (1.3-1.9 cm) de afloje cuando sean tensionadas. La cadena de Carrete-Codificador debería tener 0.313-0.625 pulgadas. (0.8-1.6 cm) de afloje cuando sean tensionadas. La cadena de Carrete-Reductor debería tener 1.75-2.25 pulgadas. (4.5-5.7 cm) de afloje cuando sean tensionadas. La cadena Reductor-Guia debería tener 0.563- 1.13 pulgadas (1.4-2.9 cm) de afloje cuando sean tensionadas.
  • 262.
    5-44 Procedimientos de ServicioSección MD6640 Perforadora Electrica Para Pozos De Tronadura La cadena Guía debería tener 0.50-1.0 pulgadas (1.3-2.5 cm) de afloje cuando sean tensionada. AJUSTES HIDRÁULICOS Cuando está debidamente ajustado, el portacable enrollará cable cuando la perforadora se desplace hacia su fuente de energía. El portacable se detendrá cuando la perforadora esté estacionaria y el accionamiento del carrete se accionará cuando la perforadora se mueva alejándose de su fuente de energía, permitiendo que el cable se desenrolle desde el carrete. PELIGRO: El portacable no se debe usar para tirar el cable eléctrico de transmisión dentro del carrete. Bobine el cable en el carrete solo cuando la perforadora se desplace hacia el cable. Intentar tirar 50’ o más de cable tendido en línea recta hacia el carrete sin mover la máquina hacia el cable, dañará o posiblemente romperá el cable. Localizacion de Ajustes Hidraulicos La tracción de línea del cable es proporcional a la presión de operación. La correcta tracción de línea es cuando existe suficiente tracción en el cable como para ser enrollado en el carrete pero no demasiado alta como para producir esfuerzos innecesarios en él.
  • 263.
    5-45 Procedimientos de ServicioSección MD6640 Perforadora Electrica Para Pozos De Tronadura La velocidad de línea es dependiente del volumen de aceite hidráulico que fluye a través del sistema. La velocidad de línea correcta es ligeramente más rápida que la velocidad de recorrido de la perforadora. El Jale de Linea al propulsar fuera del carrete del cable está ajustado por la válvula de contrapeso. El cable jala en el carrete de cable y acumula presión en contra de la válvula de contrapeso. Si el cable es arrastrado, aminore el ajuste de contrapeso. INSTRUCCIONES DELARRANQUE DEL INICIO DEL MANDO 1. Eche a andar el motor principal del compresor y deje el sistema de hidráulico correr por 5 minutos para asegurar correcta temperatura de trabajo. 2. Coloque unos manómetros 3000 PSI en el puerto experimental 49 y 50; Ambos localizados en el distribuidor de 3 tubos - VB4. AJUSTES de PRESIÓN - FUERZA DEL CARRETE 1. Con el cable del rastro instalado en el carrete de cable, mueva el interruptor del carrete al carrete a la posición de carrete. 2. Coloque la válvula de seguridad de presión (refiera a VistaA) a 800 PSI. Puerto de testeo 49; en la estación 3 del distribuidor - VB4. 3. Retornar el interruptor del carrete del cable a la posición neutral. 4. Haga que el operador mueva la máquina hacia el cable dejando el carrete recoja el cable. 5. Si la máquina arrastra el cable, aminore la presión en la válvula de relieve de presión. 6. Si la máquina no puede enrollar el cable, incremente la presión en la válvula de relieve de presión. 7. Repita Pasos 4 para 6 hasta que la tensión correcta en el carrete de cable sea lograda. AJUSTE DE FLUJO- VELOCIDAD DEL CARRETE 1. Con el cable de arrastre instalado en el carrete de cable y la presión ajustada. 2. Haga que el operador mueva la máquina hacia el cable dejando que el carrete de cable recoja el cable. 3. El carrete de cable debería recoger cable ligeramente más rápido que la velocidad de propulsión de la máquina.
  • 264.
    5-46 Procedimientos de ServicioSección MD6640 Perforadora Electrica Para Pozos De Tronadura 4. Si el carrete de cable no recoge el cable lo suficientemente rápido, ajuste el control de flujo mostrado en la Vista A. 5. Una vez que la velocidad del carrete del cable parece determinada, hacer que el operador deje de propulsar la máquina. 6. Posicionar el interruptor del carrete de cable a la posición de desenrolle, desenrollar el cable y verificar que la velocidad no es excesiva. 7. Ajuste el control de flujo según sea requerido y verifique el viento en velocidad con la máquina propulsando en Paso 2. AJUSTES DEL CONTRAPESO - FUERZA EXTRAIBLE 1. Con el cable del rastro instalado en el carrete, la presión ajustada, y el flujo ajustado. 2. Haque el operador maneje alejándose del cable. 3. El cable ajustado correctamente se desprenderá del carrete sin arrastrar el cable. 4. Si el cable arrastra, bajar el ajuste del contrapeso. Referir a Ver A para localizar. 5. Si el carrete de cable se desenrolla bajo el peso del cable, aumentar el ajuste de la presión de contrapeso. Ahora que el carrete del cable está ajustado, operar la máquina y observar la máquina para asegurar el cable esta siendo situado y enrollado correctamente. • Si el cable se arrastra cuando la máquina propulsa hacia el cable, reducir el juste de la presión. • Si el cable se arrastra cuando la máquina propulsa alejándose de cable, reducir el ajuste del contrapeso. • Si el cable no recoge el cable del suelo, aumentar el ajuste de presión. • Si el cable se desenrolla hacia el suelo cuando la máquina está en descanso, incrementar el ajuste de contra presión. • Si el carrete del cable recoge demasiado despacio, aumente el ajuste de flujo. • Si el carrete del cable funciona demasiado rápido, aminore el ajuste del flujo
  • 265.
    5-47 Procedimientos de ServicioSección MD6640 Perforadora Electrica Para Pozos De Tronadura LUBRICACIÓN Lubrique los rodillos de guía mensualmente usando lubricante MPG. Asegure que los rodillos giren libremente y todo el hardware del montaje está apretado. Las cadenas deberían ser lubricadas cada seis meses usando un buen lubricante de la cadena. Diamond Chain Company’s Chain Lube , el cual es un lubricante del aerosol de tipo de espuma, es recomendado. Revise la cadena por corrosión y tensión. Reajuste tensión de la cadena según se necesite. Engrase los rodamientos principales del carrete y codificador del eje de gata del codificador semestralmente. El lubricante recomendable para el reductor del engranaje es Mobil Delvac Synthetic Gear Oil 75W 90 o el equivalente. REPARACIÓN La reparación del portacable consistirá principalmente del reemplazo de componentes gastados o dañados.
  • 266.
    5-48 Procedimientos de ServicioSección MD6640 Perforadora Electrica Para Pozos De Tronadura ESTRUCTURA DEL MÁSTIL El mástil de la perforadora MD6640 es una estructura fabricada hecha de tubos de acero y planchas preformadas. La estructura está formada por cuatro tubos verticales unidos entre sí por tres costados, con enlaces tubulares. El cuarto costado está abierto para permitir que la unidad de transmisión de rotación sea subida y bajada por toda la longitud del mástil. Inspeccione diariamente la estructura para verificar desgaste o daños. Inspeccione la integridad de todas las escaleras y plataformas del mástil y por si hay herrajes faltantes. Inspeccione la apropiada lubricación y cualquier daño o desgaste de las cremalleras de la parte externa trasera de los tubos del mástil. Inspeccione los pasadores de las bisagras del mástil y la estructura alrededor de los pasadores para verificar desgastes o daños. Verifique que las chavetas de los pasadores de las bisagras estén apretadas y en su lugar. Inspeccione las fijaciones del cilindro de elevación del mástil por si están gastadas o dañadas. Lubrique semanalmente los pasadores con un lubricante apropiado. Inspeccione los pasadores de cierre del mástil por si están gastados o dañados. Verifique que el pasador de cierre de los cilindros hidráulicos y las líneas hidráulicas no tengan fugas. Cada 80 turnos operativos, baje el mástil e inspeccione cuidadosamente todas las soldaduras para verificar si tienen grietas o daños. Limpie las cremalleras sobre la parte externa de los dos tubos traseros del mástil para verificar las soldaduras que aseguran las cremalleras a los tubos. Vista General Del Mástil
  • 267.
    5-49 Procedimientos de ServicioSección MD6640 Perforadora Electrica Para Pozos De Tronadura REPARACIÓN La reparación de la estructura del mástil se limita a reparar con soldadura las soldaduras agrietadas o quebradas y del reemplazo de los componentes de la estructura severamente dañados. Contacte a su representante local de Caterpillar Global Mining para obtener solución sobre reparaciones específicas con soldadura. Cundo se reparen estructuras del mástil con soldadura, es importante mantener en mente que la reparación debería retornar la estructura a su condición original. Todas las soldaduras deberían quedar uniformes y ninguna hendidura o rebaje debería ser soldada o cubierta. No agregue material de refuerzo o cambie la geometría de la estructura. Reemplace cualquier componente dañado con material de la misma reciedumbre y sección transversal. Para los pasadores de cierre del mástil vea la sección ESTRUCTURA “A” DEL MÁSTIL. ESLINGAS DE SEGURIDAD DEL MÁSTIL Las eslingas de seguridad del mástil son usadas para ayudar a prevenir que las barras de perforación se suelten de la unidad de rotación y caigan fuera de la máquina o sobre la cabina del operador. Las eslingas deben ser revisadas semanalmente para verificar que todas los tirantes están debidamente ajustados y todos los pasadores guía estén firmemente en su lugar. Eslinga Superior De Seguridad
  • 268.
    5-50 Procedimientos de ServicioSección MD6640 Perforadora Electrica Para Pozos De Tronadura REPARACIÓN Eslinga Inferior De Seguridad (Opcional) La reparación de las eslingas de seguridad consiste principalmente en el reemplazo de componentes gastados o dañados. Las reparaciones con soldadura deben ser utilizadas para repara grietas. Contacte e a su representante local de BCaterpillar Global Mining para obtener solución sobre reparaciones específicas con soldadura.
  • 269.
    5-51 Procedimientos de ServicioSección MD6640 Perforadora Electrica Para Pozos De Tronadura CAJA DE ENGRANAJES DE ROTACIÓN PRECAUCIÓN: La operación o movimiento inesperado de la unidad de empuje y/o de la caja de engranajes de rotación durante un procedimiento de servicio o inspección puede causar severas lesiones personales o la muerte. Baje la unidad de empuje hasta la posición más baja posible o asegúrela en su posición. Cierre y rotule los controles para prevenir operaciones inesperadas. Inspeccione la caja de engranajes de rotación cada turno para ver si tiene herrajes sueltos o faltantes. Verifique la operación del sistema automático de lubricación o lubrique manualmente todos los puntos según sea necesario. Revise el nivel de lubricante de la caja de engranajes y adicione el lubricante apropiado al nivel requerido. Si se ha acumulado agua en la caja de engranajes, quite el tapón de drenaje y drene totalmente el depósito. Rellene la caja al nivel requerido con un lubricante aprobado. Revise si la articulación giratoria de aire tiene fugas y repare según sea necesario. Maquinaria De Rotación/Caja De Engranajes
  • 270.
    5-52 Procedimientos de ServicioSección MD6640 Perforadora Electrica Para Pozos De Tronadura Cada 80 turnos de operación, drene parcialmente la caja de engranajes y quite la tapa de inspección. Inspeccione el desgaste o daños de los dientes de los engranajes. Revise la precarga del rodamiento del eje de transmisión de rotación. Si existe alguna holgura en los rodamientos del eje de transmisión, se hará necesario ajustar la precarga quitando platinas desde el retén inferior. AJUSTE DEL EJE DE TRANSMISIÓN El eje de transmisión debe ser ajustado para dar una precarga sobre los rodamientos de 0.003” a 0.005”. Para ajustar la precarga del rodamiento proceda de la siguiente manera: 1. Quite los pernos que aseguran el retén del rodamiento inferior a la caja de engranajes. Quite las platinas del retén. NOTA: Las platinas están partidas por la mitad para facilitar la remoción e instalación. 2. Con las platinas retiradas, reinstale los pernos y apriételos a un torque de 60 l bs.pie para asegurar un asiento apropiado del rodamiento. 3. Quite todos los pernos excepto dos separados a 180º. Reaprete los dos pernos a un torque de 50 lbs.pie, en incrementos de 10 lbs.pie de forma que el retén permanezca recto a la carcaza. Gire el eje y revise el torque de los pernos. 4. Mida el espacio entre el retén y la caja de engranajes en ambos pernos. Obtenga el promedio del espacio, dividiendo la suma de las mediciones por 2. Ajustes Del Eje De Transmisión 1. Alojamiento Rodamiento Inferior 7. Retén de Rodamiento 2. Rodamiento Central 8. Perno de Retención 3. Eje Transmisión de Rotación 9. Sello de Aceite 4. Rodamiento Inferior 10. Espaciador 5. Anillo “O” de Retención 11. Retén del Sello 6. Platinas 12. Perno de Retención
  • 271.
    5-53 Procedimientos de ServicioSección MD6640 Perforadora Electrica Para Pozos De Tronadura Eje Intermedio De La Maquinaria De Rotación 1. Tapa Rodamiento Superior 10. Eje Intermedio 2. Perno de la Tapa 11. Rodamiento Inferior 3. Anillo “O” 12. Retén 4. Retén 13. Perno de Retención 5. Perno de Retención 14. Cubierta Inferior 6. Rodamiento Superior 15. Perno de la Tapa 7. Sello de Aceite 16. Anillo “O” 8. Manguito de Sello 17. Caja de Engranajes 9. Engranaje Intermedio 5. El boquete común de menos 0.003" a 0.005" es el espesor total del paquete de calza requerido para proveer 0.003" a 0.005" de precarga en los rodamientos. 6. Saque los dos pernos remanentes, instale el paquete de platinas requeridas y ponga los pernos de la tapa. Apriete los pernos a 200 lbs.pie.
  • 272.
    5-54 Procedimientos de ServicioSección MD6640 Perforadora Electrica Para Pozos De Tronadura REPARACIÓN Hay tres áreas en la caja de engranajes donde existen reparaciones posibles. Este tópico solo dice relación con la reparación de los componentes internos de la unidad. La reparación del motor de rotación y del acoplamiento giratorio está cubierta bajo tópicos separados. La reparación de la caja de engranajes está limitada al reemplazo de componentes gastados o dañados. La unidad puede ser reparada instalada sobre la máquina o puede ser desmontada y reparada en otra parte. Refiérase al tópico ESTRUCTURA GUÍA DE ROTACIÓN/EMPUJE para obtener el procedimiento necesario para desmontar el conjunto desde la máquina. Para reparar la caja de engranajes en o fuera de la máquina, use el siguiente procedimiento: 1. Bloquee la caja de engranajes en forma segura en posición vertical. Desmonte el motor de rotación desde la caja de engranajes. Refiérase al tópico MOTOR DE ROTACIÓN. Drene todo el aceite desde la caja de engranajes. Saque el anillo adaptador del motor. Saque el anillo “O” del motor desde la caja de engranajes. NOTA: Si la unidad de transmisión se deja en la máquina, bájela hasta la parte más baja del mástil y hágala descansar en los topes inferiores. Cierre y rotule los controles. 2. Saque la tubería de aire y la empaquetadura desde el alojamiento giratorio. 3. Saque la tapa frontal y la empaquetadura desde la caja de engranajes. 4. Saque la tapa y el anillo “O” de la tapa del rodamiento superior del eje intermedio. SAQUE EL RETÉN DEL RODAMIENTO SUPERIOR. 5. Inserte un perno con argolla en uno de los orificios con hilo en la parte superior del eje intermedio. Soporte el eje con aparejos y una grúa. 6. Soporte el engranaje intermedio con bloques de forma que cuando sea desmontado el eje el engranaje no se caiga. 7. Quite los pernos que aseguran el retén del rodamiento inferior a la caja de engranajes. Quite el retén del rodamiento. Saque el anillo “O” desde el retén. 8. Baje lentamente el eje intermedio fuera de la caja de engranajes. Saque el rodamiento inferior, el retén y el espaciador desde el eje. El rodamiento inferior tiene una fijación de interferencia de .0005” a .0025” al eje.
  • 273.
    5-55 Procedimientos de ServicioSección MD6640 Perforadora Electrica Para Pozos De Tronadura NOTA: La pista interna del rodamiento superior tiene una fijación de interferencia de .0006” a .0017” al eje y puede ser necesaria una ligera fuerza para separarla desde el eje. 9. Posicione el engranaje intermedio para ser desmontado a través de la abertura frontal de la caja de engranajes. 10. Saque la jaula del rodamiento superior y el sello de aceite desde el calibre superior en la caja de engranajes. 11. Soporte el eje de transmisión con bloques bajo el acoplamiento giratorio. 12. Quite el alambre de cierre y los pernos que aseguran el alojamiento giratorio a la caja de engranajes. Saque el alojamiento. 13. Saque los sellos, espaciadores y resortes desde le alojamiento. 14. Saque la tuerca de cierre, golilla de cierre y el espaciador desde la parte superior del eje de transmisión. NOTA: LA TUERCA DE CIERRE TIENE HILO IZQUIERDO. 15. Saque los pernos que fijan el retén del rodamiento inferior a la caja de engranajes. 16. Levante lentamente la caja de engranajes hasta que el engranaje del eje vertical quede descansando en la parte baje de la caja de engranajes. Si el peso del eje vertical no se libera a sí mismo desde la pista interna del rodamiento superior, se deberá aplicar fuerza adicional en la parte superior del eje para forzar la pista fuera del eje, en la medida que se levanta la caja de engranajes. La pista tiene una fijación de interferencia de .0001” a .0021” al eje. 17. Cuando la pista superior es desmontada desde el eje, continúe levantando la caja de engranajes hasta que se libere del eje. Saque el eje y baje la caja de engranajes de vuelta a sus bloques. 18. Desmonte la pista interna del rodamiento superior, manguito de sello, espaciador del engranaje y el engranaje desde la caja de engranajes a través de la abertura frontal. 19. Saque la jaula del rodamiento superior, sello de aceite y anillo “O” desde el alojamiento del rodamiento superior. Saque la copa superior del rodamiento inferior desde el alojamiento del rodamiento inferior. La copa tiene una fijación de interferencia de .0004” a .0050” al alojamiento. NOTA: Los alojamientos superior e inferior del rodamiento están fijados a presión a la caja de engranajes y deberían ser desmontados solo si están gastados o dañados.
  • 274.
    5-56 Procedimientos de ServicioSección MD6640 Perforadora Electrica Para Pozos De Tronadura 20. Quite los pernos y saque el collar de mordaza del eje de transmisión. 21. Quite los pernos y saque la mitad inferior del acoplamiento giratorio desde la mitad superior del acoplamiento. PRECAUCIÓN: Si en el paso siguiente se va a utilizar un soplete para calentar la mitad superior del acoplamiento, al usarlo, asegúrese de tomar todas las precauciones de seguridad. También use equipo de protección cuando manipule los componentes calientes. 22. Use un soplete para calentar la mitad superior del acoplamiento y separe las dos secciones desde el eje de transmisión. Saque el anillo “O” desde el eje de transmisión. 23. Deslice el conjunto del retén del rodamiento inferior desde la sección superior del eje y desármelo de la siguiente manera: a. Quite el anillo “O” y las platinas. b. Quite los pernos del retén del sello y el retén. c. Quite los sellos y el espaciador. d. Quite la copa del rodamiento inferior desde el retén. La copa tiene una fijación de interferencia de .0010” a .0050” al retén. 24. Con un extractor de rodamientos, saque la jaula del rodamiento inferior y la jaula superior del rodamiento inferior desde el eje. NOTA: La jaula del rodamiento inferior tiene una fijación de interferencia de .0005” a .0025” al eje. La jaula superior del rodamiento inferior tiene una fijación de interferencia de .0028” a .0048” al eje. 25. Inspeccione todos los componentes. Repare o reemplace todos los componentes que sean necesarios. PRECAUCIÓN: Hay una serie de pasos en el siguiente procedimiento el cual requiere el calentamiento de ciertos componentes antes de ensamblarlos. Use adecuado equipo de protección cuando manipule los componentes calientes. 26. Para rearmar la caja de engranajes, primero limpie todos los componentes cuidadosamente. Inspeccione todos los calibres y la superficie de los ejes, removiendo cualquiera picadura o rebaba. Aceite ligeramente todos los componentes. Aplique Locktite®#271 a todos los hilos limpios al ensamblarlos. Asegúrese de seguir las instrucciones del fabricante cuando use Locktite.
  • 275.
    5-57 Procedimientos de ServicioSección MD6640 Perforadora Electrica Para Pozos De Tronadura 27. Instale la copa superior del rodamiento inferior en el alojamiento del rodamiento. Esta copa tiene una fijación de interferencia al alojamiento y tendrá que ser presionada hacia dentro. Asegúrese de que la copa quede apretada contra los hombrillos del alojamiento. 28. Instale las jaulas del rodamiento inferior en la sección superior del eje de transmisión. Estas jaulas tienen una fijación de interferencia y requerirán calentamiento en un baño de aceite a 250ºF antes de ensamblarlas. Asegúrese de que las jaulas queden apretadas contra los hombrillos del eje. 29. Ensamble el conjunto del retén del rodamiento inferior de la siguiente manera: a. Instale la copa del rodamiento inferior en el retén. Esta copa tiene una fijación de interferencia y tendrá que ser presionada hacia dentro. Asegúrese de que la copa quede apretada contra los hombrillos del retén. b. Instale los sellos de aceite y el espaciador en el retén. Asegúrese que los labios de los sellos enfrenten la copa del rodamiento. c. Instale el retén de sello y los pernos. Apriete y ponga alambre de cierre en los pernos. d. Instale el anillo “O” en el retén. 30. Instale el conjunto del retén en la sección superior del eje de transmisión. No instale las platinas en el retén. 31. Instale el anillo “O” al fondo de la sección superior del eje. 32. Caliente la mitad del acoplamiento superior de amortiguación en un horno baño de aceite a 250º - 300ºF máximo. Instale el anillo de la transmisión de rotación en el acoplamiento. Inserte la mitad del acoplamiento en la mitad del eje de transmisión e instale los anillos de mordaza y los pernos. Permita que el eje se enfríe hasta temperatura ambiente. 33. Quite los anillos de mordaza e instale la faja superior del sello amortiguador del acoplamiento giratorio. Reinstale los anillos de mordaza del eje, apriete los pernos y ponga alambre de cierre. Las mitades en los anillos deberían quedar desplazadas a 90º una de otra. 34. Reinstale las partes faltantes del acoplamiento de amortiguación según el tópico ACOPLAMIENTO DEAMORTIGUACIÓN. 35. Instale el engranaje de transmisión en la caja de transmisión.Asegúrese de que quede alineado con el calibre del eje. Levante lentamente la caja de engranajes de forma que el eje pueda ser posicionado para su instalación.
  • 276.
    5-58 Procedimientos de ServicioSección MD6640 Perforadora Electrica Para Pozos De Tronadura Eje De Transmisión De La Maquinaria De Rotación – Detalles
  • 277.
    5-59 Procedimientos de ServicioSección MD6640 Perforadora Electrica Para Pozos De Tronadura 36. Instale bloques que aseguren el eje de transmisión en posición vertical. Baje lentamente la caja de engranajes dentro del eje, teniendo cuidado de no dañar los hilos del eje. Puede ser necesario girar ligeramente el engranaje para alinear las ranuras del engranaje y del eje. 37. Inserte los pernos de retención del retén del rodamiento inferior hasta el tope. 38. Instale el espaciador del engranaje, manguito del sello y el sello de aceite del rodamiento superior. Asegúrese que los labios del sello queden hacia arriba. Caliente la pista interna del rodamiento superior en un baño de aceite a 250º F máximo e instálelo rígidamente sobre el eje contra el manguito. Instale el espaciador del rodamiento, golilla de cierre y tuerca de cierre y luego apriete firmemente la tuerca de cierre. Permita que la pista se enfríe hasta temperatura ambiente. 39. Cuando la pista se haya enfriado, saque las tuercas y la golilla de cierre e instale la jaula del rodamiento superior. Reinstale y apriete la golilla y tuercas de cierre. 40. Precargue el rodamiento inferior de la siguiente manera a. Apriete los pernos del retén del rodamiento inferior a un torque de 60 lbs.pie para asegurar el apropiado asentamiento. b. Quite todos los pernos excepto dos separados a 180º. Reaprete los dos pernos a un torque de 50 lbs.pie, en incrementos de 10 lbs.pie de forma que el retén permanezca recto a la caja de engranajes. Gire el eje y revise el torque de los pernos. c. Mida el espacio entre el retén y la caja de engranajes en ambos pernos. Obtenga el promedio del espacio, dividiendo la suma de las mediciones por 2. d. El boquete común de menos 0.003" a 0.005" es el espesor total del paquete de calza requerido para proveer 0.003" a 0.005" de precarga en los rodamientos. e. Saque los dos pernos remanentes, instale el paquete de platinas requeridas y ponga los pernos de la tapa.Apriete los pernos a un torque de 200 lbs.pie y ponga alambre de cierre. NOTA: Si las platinas son circulos completos, córtelas por la mitad para facilitar la instalación. 41. Instale los sellos y espaciadores en el alojamiento giratorio. Asegúrese que el labio de los sellos quede mirando hacia arriba. Instale el anillo “O” en el alojamiento del rodamiento. 42. Instale el alojamiento giratorio y asegúrelo con los pernos. Apriete y ponga alambre de cierre a los pernos.
  • 278.
    5-60 Procedimientos de ServicioSección MD6640 Perforadora Electrica Para Pozos De Tronadura 43. Instale el engranaje intermedio y bloquéelo en su lugar. Instale el manguito de sello en la parte superior del engranaje. Alinee el calibre del engranaje con el calibre del eje. 44. Caliente el rodamiento inferior en un baño de aceite a 250º F máximo e instale el rodamiento sobre el eje. Asegure el rodamiento con el retén y ponga alambre de cierre a los pernos. 45. Instale el anillo “O” en la tapa inferior. Inserte el conjunto del eje dentro de la caja de engranajes. Instale la tapa inferior y asegúrela con los pernos de la tapa. Apriételos y ponga alambre de cierre a los pernos. 46. Instale el sello de aceite superior. Caliente la pista interna del rodamiento superior en un baño de aceite a 250º F máximo e instálelo sobre el eje. Asegúrese que la pista quede apretada contra el espaciador, luego asegure la pista con el retén del rodamiento. Apriete los pernos del retén y ponga alambre de cierre a los pernos. Permita que la pista se enfríe hasta temperatura ambiente. 47. Instale la jaula del rodamiento superior en la caja de engranajes. Instale el anillo “O” en la tapa superior e instale la tapa en la caja de engranajes. Apriete los pernos de la tapa y ponga alambre de cierre a los pernos. 48. Instale el motor según el tópico MOTOR DE ROTACIÓN y llene la caja de engranajes con un lubricante aprobado. Lubrique todos los puntos de lubricación con un lubricante aprobado.
  • 279.
    5-61 Procedimientos de ServicioSección MD6640 Perforadora Electrica Para Pozos De Tronadura MOTOR DE ROTACIÓN Las instrucciones de inspección, lubricación y mantención para el motor de rotación están descritas en el Manual del Motor del fabricante. Para desmontar el motor de rotación, proceda de la siguiente manera: 1. Baje la unidad de transmisión de rotación hasta la parte baja del mástil y hágala descansar en los topes inferiores. PRECAUCIÓN: Abra y rotule los interruptores de potencia auxiliar y de control en la sala de máquinas. No intente desconectar los cables conductores del motor con éstos interruptores cerrados. Está presente un voltaje peligroso y es posible la electrocución si estos interruptores se dejan cerrados. Motor De Accionamiento De Rotación – Detalles 2. Disponga que un electricista identifique y desconecte los cables eléctricos conductores hacia el motor de rotación. Desmonte el cable desde la caja de conexión en el motor. 3. Desmonte las tuercas de fijación y las golillas.
  • 280.
    5-62 Procedimientos de ServicioSección MD6640 Perforadora Electrica Para Pozos De Tronadura 4. Utilizando una grúa apropiada y sus aparejos, levante el motor desde la caja de engranajes de rotación. 5. Repare o reemplace el motor según sea necesario. 6. El piñón del motor está fijado a presión al eje del motor. Refiérase alAPÉNDICE para encontrar las instrucciones relacionadas con el reemplazo o instalación del piñón del motor. 7. Antes de la instalación del motor, limpie las superficies de montaje tanto de la caja de engranajes como las del motor. 8. Instale el motor de rotación en el orden inverso al desmontaje. Apriete las tuercas de fijación usando el método “turn-of-the-nut”.Apriete las tuercas a tope y luego un 1/3 de vuelta adicional.
  • 281.
    5-63 Procedimientos de ServicioSección MD6640 Perforadora Electrica Para Pozos De Tronadura ACOPLAMIENTO GIRATORIO DEAMORTIGUACIÓN El acoplamiento giratorio de amortiguación es un conjunto opcional que reemplaza la mitad inferior del acoplamiento giratorio standard. El acoplamiento de amortiguación se usa para reducir la carga de choque transmitida a la unidad de transmisión de rotación. NOTA: Los ProcedimientosDetallados en este tópico son para un acoplamiento de Caterpillar Global Mining. Ya que acoplamientos fabricados por compañías diferentes de Caterpillar Global Mining se pueden surtir con la máquina, asegúrese de ver que el acoplamiento amortiguador que se está reparando es de Caterpillar Global Mining antes de utilizar el procedimiento detallado mas abajo. Inspeccione mensualmente el acoplamiento de amortiguación para ver si hay pernos sueltos o faltantes, otros desgastes o daños y si hay fugas de aire. Cuando los amortiguadores se han gastado hasta un punto que una precarga de .0375” no se puede obtener más, los amortiguadores deben ser reemplazados. Si el aire de barrido se está escapando desde el acoplamiento, se deben reemplazar los sellos. En esa ocasión, revise también el tubo de sello por si está gastado y reemplácelo si es necesario. Acoplamiento Giratorio De Amortiguación - Detalles
  • 282.
    5-64 Procedimientos de ServicioSección MD6640 Perforadora Electrica Para Pozos De Tronadura REPARACIÓN PRECAUCIÓN: La operación o movimiento inesperado de la unidad e empuje y/o de la caja de engranajes de rotación en un procedimiento de servicio o inspección puede causar severas lesiones personales o la muerte. Baje la unidad de empuje hasta la posición más baja posible o asegúrela en su posición. Cierre y rotule los controles para prevenir operaciones inesperadas. La reparación del acoplamiento de amortiguación se limita al reemplazo de componentes dañados o gastados. El reemplazo de cualquiera de los componentes requerirá desmontar la unidad. Para desmontar el acoplamiento de amortiguación, proceda de la siguiente manera: 1. Ponga bloques firmemente bajo el acoplamiento de amortiguación y bájelo sobre los bloques. Apague y rotule todos los controles. 2. Quite el alambre de cierre y las tuercas ranuradas desde los pernos del acoplamiento de amortiguación. Saque los pernos y las golillas. 3. Asegúrese que la mitad inferior del acoplamiento esté debidamente bloqueado y luego levante lentamente la maquinaria de rotación hasta que la sección inferior del eje de transmisión salga de la mitad inferior del acoplamiento de amortiguación. Apague y rotule todos los controles. 4. Separe el amortiguador superior e inferior, el retén del amortiguador, tubo de sello y sellos desde la mitad inferior del acoplamiento de amortiguación. 5. Si la sección inferior del eje de transmisión necesita ser desmontada, use el procedimiento del tópico CAJA DE ENGRANAJES DE ROTACIÓN – REPARACIÓN detallado en los pasos 20 y 22. 6. Limpie e inspeccione todos los componentes del conjunto. Reemplace los componentes gastados o dañados según sea necesario. 7. Si se ha desmontado, reinstale la sección inferior del eje de transmisión según el tópico CAJA DE ENGRANAJES DE ROTACIÓN – REPARACIÓN detallado en los pasos 31 y 32. 8. Ensamble el amortiguador superior e inferior, el retén del amortiguador, tubo de sello y sellos a la sección inferior del acoplamiento. 9. Bloquee firmemente el conjunto en línea con la sección inferior del eje de transmisión. Baje lentamente la unidad de rotación hasta que el eje quede asentado en el acoplamiento. No comprima los amortiguadores. Tenga cuidado de no dañar los ellos.
  • 283.
    5-65 Procedimientos de ServicioSección MD6640 Perforadora Electrica Para Pozos De Tronadura 10. Instale los pernos del acoplamiento, aplique locktite a los hilos y apriete con la mano las tuercas ranuradas para establecer una altura libre. Refiérase a la carta de precarga de apriete de tuercas. 11. Apriete las tuercas progresivamente, no más de ½ vuelta cada vez, hasta completar el apriete. Instale alambre de cierre.
  • 284.
    5-66 Procedimientos de ServicioSección MD6640 Perforadora Electrica Para Pozos De Tronadura ESTRUCTURAGUÍADE ROTACIÓN/EMPUJE Estructura Guía De Rotación/Empuje - Detalles PRECAUCIÓN: La operación o movimiento inesperado de la unidad de empuje y/o de la caja de engranajes de rotación en un procedimiento de servicio o inspección puede causar severas lesiones personales o la muerte. Baje la unidad de empuje hasta la posición más baja posible o asegúrela en su posición. Cierre y rotule los controles para prevenir operaciones inesperadas. La estructura guía de rotación consiste de dos estructuras que soportan la maquinaria de rotación y la maquinaria de empuje. La estructura guía también incluye los rodillos guía que se utilizan para alinear y asegurar la unidad al mástil.
  • 285.
    5-67 Procedimientos de ServicioSección MD6640 Perforadora Electrica Para Pozos De Tronadura Inspeccione a diario la estructura guía en forma integral para determinar si hay herrajes sueltos o faltantes. Inspeccione si los bloques de amortiguación están gastados o dañados y reemplácelos si es necesario. Inspeccione si los piñones de la cremallera están gastados o dañados. Revise el ajuste de los rodillos guía y ajústelos si es necesario. Inspeccione la alineación de la estructura guía al mástil. Revise si las conexiones de la tubería principal de aire tienen fugas. Verifique que los tacos guía que aseguran la caja de engranajes de rotación estén en su lugar y que las soldaduras en los tacos estén intactas. Revise la lubricación de los piñones de la cremallera. AJUSTE DE LOS RODILLOS GUÍA Los rodillos guía en la estructura guía de rotación/empuje mantienen el ensamblaje alineado al mástil y los piñones de cremallera en contacto con la cremallera del mástil. En la medida que los rodillos guía se desgastan, se hace necesario ajustar periódicamente el espacio entre los rodillos y viga T de montaje del bastidor del mástil. Para ajustar los rodillos guía proceda como sigue: Raca de Piñon y Guia Superior de Rodillo - Detalles 1. Posicione la unidad de rotación/empuje de forma que los rodillos guía superiores y los piñones de cremallera queden accesibles. Apague y rotule todos los controles. 2. Usando un gato apropiado o un dispositivo de tiro, tire o empuje el tope del retén del piñón de cremallera contra el mástil, en ambos costados del mástil. Esto asegura que el juego de los dientes del piñón es correcto. NOTA: Siempre mida la distancia desde la cara de la columna “t” del mástil al centro del perno de montaje del alojamiento del rodamiento. Esta medida se debe usar mas tarde para determinar si la unidad está paralela al mástil. Esta distancia debería ser aproximadamente 16.785”.
  • 286.
    5-68 Procedimientos de ServicioSección MD6640 Perforadora Electrica Para Pozos De Tronadura Guia Inferior de Rodillos – Detalles 3. Quite el perno, tuerca y golilla desde la manilla del pasador excéntrico del rodillo guía superior frontal. Mueva la manilla hasta que obtenga un espacio de .040” entre el rodillo y la columna T del mástil. Asegure la manilla con el perno, tuerca y golilla. 4. Saque la tuerca, golilla y perno que asegura la manilla del pasador excéntrico del rodillo guía inferior trasero. Mueva la manilla hasta posicionar el rodillo contra el mástil, luego mida la distancia desde la cara del mástil al centro de los pernos de montaje de la caja de engranajes de rotación. Esta distancia debería ser aproximadamente 16.035”. Si no es así, continúe moviendo la manilla del pasador hasta alcanzar la medida especificada. Asegure la manilla con el perno, golilla y tuerca. 5. Con un gato apropiado o un dispositivo de tiro, tire o empuje el tope del rodillo contra el mástil. 6. Quite el perno, tuerca y golilla desde la manilla del pasador excéntrico del rodillo guía inferior frontal. Mueve la manija hasta que exista el boquete de 0.06 pulgadas entre el rodillo y la columna T del mástil. 7. Asegure la manilla con el perno, golilla y tuerca.
  • 287.
    5-69 Procedimientos de ServicioSección MD6640 Perforadora Electrica Para Pozos De Tronadura REPARACIÓN La reparación de la estructura guía de rotación/empuje se limita al reemplazo de los componentes gastados o dañados. No se recomienda la reparación con soldadura de ninguno de los componentes. Ya que solo limitadas reparaciones son posibles a la estructura guía cuando está instalada en la máquina, se asume para los propósitos de este manual, que la unidad completa de rotación/empuje será desmontada desde la máquina, antes de las reparaciones. Es posible el reemplazo de los piñones de cremallera y rodillos guía, sin desmontar la estructura guía desde la máquina. Los procedimientos de reparación de estos componentes están incluidos en las siguientes instrucciones. Para desmontar el conjunto de la estructura guía completa con la caja de engranajes de rotación y la maquinaria de empuje desde la máquina, proceda de la siguiente manera: 1. Baje la unidad de transmisión de rotación hasta su posición más baja y descánsela en los topes inferiores del mástil. Abra los interruptores de potencia auxiliar y de control y rotule todos los controles para prevenir una operación no autorizada. 2. Quite la tubería superior de aire desde el alojamiento giratorio y desde el ángulo guía. Bote la empaquetadura. Use una nueva empaquetadura al rearmar. 3. Desconecte los conductores eléctricos al motor de rotación y de empuje y saque el cable desde la unidad de transmisión. 4. Desconecte y saque las mangueras de lubricación hacia la unidad de transmisión, si así está equipada. 5. Utilizando una grúa apropiada y sus aparejos, soporte la unidad completa de rotación/empuje. 6. Saque los pernos de fijación de las manillas de los pasadores excéntricos de los rodillos guía frontales superior e inferior y gire las manillas para quitar la tensión sobre los rodillos al mástil. 7. Quite los pernos que aseguran la plancha de desgaste. 8. Quite los pernos que aseguran el rodamiento a los pasadores excéntricos. NOTA: Para desmontar los pernos de retención puede ser necesario rotar el pasador excéntrico para tener acceso a los pernos. 9. Soporte el carrete de rodillos superiores y el rodillo frontal inferior y luego, usando las manillas de los pasadores, tire los pasadores excéntricos frontales superior e inferior desde los rodillos, alojamientos de rodamiento y estructuras guía. 10. Con la grúa y aparejos instalados en el paso 5, levante la unidad de rotación/empuje desde el mástil y póngala sobre bloques de madera seguros.
  • 288.
    5-70 Procedimientos de ServicioSección MD6640 Perforadora Electrica Para Pozos De Tronadura 11. Desmonte completamente los rodillos guía frontales superior e inferior y los pasadores excéntricos los cuales fueron sacados en los pasos 7 y 8. Los rodamientos tienen una fijación de interferencia de .0010 a .0030 a los rodillos y se requerirá de un extractor para desmontarlos. 12. Saque los retenes del piñón del eje de carga y saque los piñones. 13. Refiérase a la figura y saque los pernos del retén del rodillo guía trasero y saque los retenes, platinas, rodillos y espaciadores desde le pasador. Quite los rodamientos desde los rodillos. Los rodamientos tiene una fijación de interferencia a los rodillos y se requerirá de un extractor para desmontarlos. 14. Usando las manillas de los pasadores excéntricos, tire los pasadores excéntricos de los rodillos guía traseros desde la estructura. Separe las manillas desde los pasadores excéntricos. 15. Separe el acoplamiento del motor de empuje. Saque los pernos de montaje del motor, tacos guía y platinas. Con una grúa y aparejos apropiados, saque el motor. 16. Saque los dos separadores de la parte superior de la estructura guía. Saque la unidad de protección de empuje. 17. Saque los pernos que aseguran los alojamientos de rodamiento de los extremos del eje de carga a la estructura guía. Deslice los alojamientos hacia la caja de engranajes de empuje. NOTA: El sello de laberinto externo del rodamiento del extremo del eje de carga está fijado a presión al alojamiento del rodamiento y se requerirá de cierta cantidad de fuerza para separarlo desde el alojamiento. Saque los sellos de laberinto externos. 18. Saque los pernos de montaje de la caja de engranajes de empuje, tacos guía y platinas. Con una grúa y aparejos apropiados maniobre la caja de engranajes fuera de la estructura guía y póngala sobre bloques de madera seguros. 19. Saque los pernos y quite la base desde la unidad de empuje. 20. Verifique que la caja de engranajes de rotación quede bien bloqueada y soportada. 21. Usando una grúa y aparejos apropiados, soporte un costado de la estructura guía. 22. Saque los pernos que aseguran la estructura guía a la caja de engranajes de rotación y desmonte la estructura guía de la caja de engranajes de rotación. NOTA: Será necesario desmontar los tacos guía superiores desde la estructura guía con el objeto de desmontar la estructura guía desde la caja de engranajes de rotación.
  • 289.
    5-71 Procedimientos de ServicioSección MD6640 Perforadora Electrica Para Pozos De Tronadura 23. Repita los pasos 21 y 22 para la estructura guía opuesta. 24. Limpie e inspeccione todos los componentes y reemplácelos según sea necesario. 25. Rearme las estructuras guía e instálelas sobre la máquina en forma opuesta al desmontaje, tomando en cuenta lo siguiente: a. Ubique y ensamble los alojamientos de rodamiento del eje de carga a la estructura guía. Instale todos los pernos y tacos guía. b. Ensamble los rodillos guía superiores e inferiores e instálelos a las estructuras guía. Ponga platinas en los rodillos logrando un asiento de .003” de juego final en los rodillos. Apriete los pernos de retención a un torque de 55 lbs.pie. NOTA: Los rodillos frontales superior e inferiores deben ser desmontados cuando la unidad de rotación/empuje es instalada en el mástil. c. Instale sueltas las estructuras guía del lado izquierdo y derecho a la caja de engranajes de rotación de forma que las estructuras guía puedan bascular hacia fuera para permitir la instalación de la base de empuje. d. Instale la base de empuje con espigas y pernos de separación. Instale las espigas y los pernos de separación en la caja de engranajes de rotación y apriete todos los pernos. NOTA: Todas las espigas tienen que ser desmontadas después que se hayan instalado los tacos guía y reemplazarlos por pernos. Alineación De Acoplamientos
  • 290.
    5-72 Procedimientos de ServicioSección MD6640 Perforadora Electrica Para Pozos De Tronadura e. Instale la caja de engranajes de empuje y alíniela centrada con los alojamientos de rodamiento del eje de carga. Instale las platinas necesarias a la caja para centrar el eje a los alojamientos. Asegúrese que los retenes de montaje queden sueltos en el eje de carga cuando instale la caja. f. Instale los rodamientos en los alojamientos de rodamiento del eje de carga e instale todos los retenes y piñones de cremallera. Ponga los tacos guía de la caja de engranajes en su lugar. g. Instale el motor de empuje y alinee el motor y los acoplamientos de la siguiente manera: 1. Verifique que la armadura del motor está centrada y luego posicione el motor de forma que quede un espacio de .19” entre los ejes. (Aproximadamente 1.44” entre las caras de las mazas del acoplamiento). 2. Los acoplamientos deberían quedar alineados entre .002” de desplazamiento horizontal y .002” de desplazamiento angular. Para encontrar el desalineamiento angular, mida el espacio (“L”) entre las mazas del acoplamiento a lo largo de su circunferencia. El punto 180º desde la medida mínima debería quedar entre .002” (.0508 mm). 3. Use platinas bajo la base de montaje del motor para lograr la apropiada alineación. 4. Cuando quede apropiadamente alineado, apriete los pernos de montaje y suelde tacos guía a la base del motor. PRECAUCIÓN: En los pasos siguientes, al soldar los tacos guía, asegúrese de seguir todas las precauciones de seguridad. También use equipamiento de protección apropiado cuando manipule componentes calientes. 5. Rellene el acoplamiento con lubricante. h. Ponga la unidad de rotación/empuje abajo e instale todos los tacos guía inferiores. i. Desmonte los rodillos guía superiores e inferiores frontales e instale la unidad de rotación/empuje en el mástil. Instale los rodillos guía superiores e inferiores frontales y ajústelos de acuerdo a lo indicado en el tópico AJUSTE DE LOS RODILLOS GUÍA. j. Instale la tubería de aire y las líneas de lubricación, Disponga que un electricista reconecte los motores. 6. Lubrique todos los puntos y verifique la correcta operación de la unidad de rotación/empuje.
  • 291.
    5-73 Procedimientos de ServicioSección MD6640 Perforadora Electrica Para Pozos De Tronadura CAJA DE ENGRANAJES DE EMPUJE PRECAUCIÓN: La operación o movimiento inesperado de la unidad de empuje y/o de la caja de engranajes de rotación durante un procedimiento de servicio o inspección puede causar severas lesiones personales o la muerte. Baje la unidad de empuje hasta la posición más baja posible o asegúrela en su posición. Cierre y rotule los controles para prevenir operaciones inesperadas. Inspeccione la caja de engranajes de empuje cada turno para ver si tiene herrajes sueltos o faltantes. Revise si la caja de engranajes tiene pérdidas de lubricante y repare según sea necesario. Verifique la operación del sistema automático de lubricación o lubrique manualmente todos los puntos según sea necesario. Revise el nivel de lubricante de la caja de engranajes y adicione el lubricante apropiado al nivel requerido. Si se ha acumulado agua en la caja de engranajes, quite el tapón de drenaje y drene totalmente el depósito. Rellene la caja al nivel requerido con un lubricante aprobado. Maquinaria De Empuje – Vista General
  • 292.
    5-74 Procedimientos de ServicioSección MD6640 Perforadora Electrica Para Pozos De Tronadura REPARACIÓN La reparación de la caja de engranajes de empuje está limitada al reemplazo de componentes gastados o dañados. La unidad puede ser reparada instalada sobre la máquina o puede ser desmontada y reparada en otra parte. Refiérase al tópico ESTRUCTURA GUÍA DE ROTACIÓN/ EMPUJE para obtener el procedimiento necesario para desmontar el conjunto desde la máquina. Para reparar la caja de engranajes de empuje, proceda de la siguiente manera: NOTA: Para este procedimiento consideraremos que la caja de engranajes de empuje ha sido desmontada desde la máquina según los pasos 17 hasta el 20 del tópico estructura guía de rotación/empuje – reparación. PRECAUCIÓN: Asegúrese que la estructura guía de rotación/empuje está asegurada al mástil mediante un cable o por otros medios, ya que los piñones de cremallera y los rodillos guía superiores han sido desmontados. Caja De Engranajes Y Base De La Maquinaria De Empuje
  • 293.
    5-75 Procedimientos de ServicioSección MD6640 Perforadora Electrica Para Pozos De Tronadura Eje Primero Intermedio Y De Carga De La Maquinaria De Empuje 1. Eje de Carga 12. Platinas 2. Rodamiento 13. 1er. Engranaje Intermedio 3. Tuerca de Cierre 14. Cuña 4. Golilla de Cierre 15. 1er. Piñón Intermedio 5. Retén de Sello 16. Espaciador del Piñón 6. Anillo “O” 17. Rodamiento 7. Sello de Aceite 18. Espaciador 8. Sello de Laberinto 19. Espaciador 9. Espaciador de Rodamiento 20. Engranaje del Eje de Carga 10. Espaciador de Rodamiento 21. Caja de Engranajes 11. Retén de Rodamiento 1. Saque el espaciador de rodamiento desde los extremos del eje de carga. Use un extractor para sacar los rodamientos desde los extremos del eje. Los rodamientos tienen una fijación de interferencia al eje. 2. Deslice los alojamientos de rodamiento desde el eje y separe el sello de laberinto interior desde el alojamiento.
  • 294.
    5-76 Procedimientos de ServicioSección MD6640 Perforadora Electrica Para Pozos De Tronadura 3. Si no lo hizo previamente, drene la caja de engranajes. 4. Quite la tapa de rodamiento desde el extremo del piñón del segundo eje intermedio. Saque los anillos “O” desde la tapa. Segundo Eje Intermedio De La Maquinaria De Empuje 1. 2º Eje Intermedio 11. Retén de Sello 2. Rodamiento 12. Sello de Aceite 3. Retén de Rodamiento 13. Anillo “O 4. Tapa 14. Acoplamiento de Codificador 5. Anillo “O 15. Pasador de Acoplamiento 6. 2º. Engranaje Intermedio” 16. Codificador 7. Cuña 17.Alojamiento 8. Espaciador del Engranaje 18. Tapa 9. Rodamiento 19. Empaquetadura 10. Retén 20. Caja de Engranajes
  • 295.
    5-77 Procedimientos de ServicioSección MD6640 Perforadora Electrica Para Pozos De Tronadura 5. Saque la tapa del alojamiento del codificador, empaquetadura y alojamiento desde el extremo opuesto del segundo eje intermedio. 6. Saque los pasadores de resorte del acoplamiento del codificador, luego destornille y saque el codificador y el acoplamiento. Saque el retén del soporte del codificador desde la caja de engranajes. Saque el anillo “O” y el sello de aceite desde el retén. 7. Saque el retén del rodamiento desde cada extremo del eje de carga. Separe el anillo “O”, el sello de aceite y el sello de laberinto desde cada retén. 8. Saque los pernos de varilla, los pasadores cónicos y los pernos que aseguran la tapa de la caja de engranajes a la caja de engranajes. Con una grúa, levante la tapa desde la caja de engranajes. 9. Levante el eje de carga desde la caja de engranajes. Saque el espaciador de rodamiento desde el extremo largo del eje de carga. 10. Saque la tuerca de retención del rodamiento, golilla de cierre rodamiento y espaciador de rodamiento desde cada extremo del eje. 11. Deslice el engranaje del eje de carga desde el eje. 12. Saque el retén del rodamiento del 1er. piñón intermedio y las platinas. 13. Presione el conjunto del piñón desde el eje. Los rodamientos tienen una fijación de interferencia al eje. Saque el espaciador del piñón desde el eje. 14. Separe los rodamientos y espaciador desde el piñón. La copa del rodamiento del extremo de freno tiene una fijación de interferencia al piñón y se necesitará de un extractor para desmontarla. 15. El primer engranaje intermedio tiene una fijación de interferencia al piñón y solo se debería desmontar si es necesario. Si el piñón y el engranaje necesitan ser separados, la conexión de lubricación debe ser desmontada. 16. Levante el segundo eje intermedio desde la caja de engranajes. Saque el retén del rodamiento del extremo del piñón y el rodamiento. El rodamiento tiene una fijación de interferencia al eje y se necesitará de un extractor para desmontarlo. 17. Saque el retén del rodamiento del extremo del codificador y el rodamiento. El rodamiento tiene una fijación de interferencia al eje y se necesitará de una pequeña fuerza para desmontarlo. 18. Saque el espaciador del engranaje. El engranaje tiene una fijación de interferencia al eje y se necesitará de un extractor para desmontarlo. Quite el engranaje y la cuña.
  • 296.
    5-78 Procedimientos de ServicioSección MD6640 Perforadora Electrica Para Pozos De Tronadura Eje De Entrada Maquinaria De Empuje 1. Eje Impulsor 14. Rodamiento 2. Rodamiento 15. Espaciador de Rodamiento 3. Alojamiento de Rodamiento 16. Sello de Aceite 4. Empaquetadura 17. Retén de Sello 5. Sello de Aceite 18. Empaquetadura 6. Espaciador 19. Suspensor de Aceite 7. Retén 20. Espaciador de Maza 8. Anillo “O” 21. Maza de Transmisión de Freno 9. Espaciador de Acoplamiento 22. Retén de Maza 10. Acoplamiento 23. Conjunto de Freno 11. Cuña 24. Espaciador de Rodamiento 12. Tuerca 25. Cuña 13. Plancha de Cierre 26. Platinas 19. Saque el alojamiento de freno y los pernos de montaje de la cámara. Deslice le conjunto de freno desde la maza de transmisión de freno. Desmonte el freno tal como se indica en el tópico FRENO DE LEVANTE.
  • 297.
    5-79 Procedimientos de ServicioSección MD6640 Perforadora Electrica Para Pozos De Tronadura 20. Saque los pernos del retén de la maza de transmisión de freno y el retén. Saque la maza, espaciador de maza y el suspensor de aceite. 21. En el acoplamiento del extremo del eje, saque los pernos del alojamiento del rodamiento. Deslice el conjunto del eje desde la caja de engranajes. Quite la empaquetadura del alojamiento. 22. Quite el espaciador y el rodamiento del extremo del eje del lado del freno. El espaciador y el rodamiento tienen una fijación de interferencia al eje y se necesitará de una pequeña fuerza para desmontarlos. 23. Use un extractor para desmontar la mitad del acoplamiento desde el extremo del eje. 24. Saque el retén de sello desde el alojamiento del rodamiento. Quite el anillo “O”, sellos de aceite y espaciador de sello desde el retén. 25. Saque el espaciador de rodamiento y el espaciador del acoplamiento. El acoplamiento y el rodamiento tienen una fijación de interferencia al eje y se necesitará de una pequeña fuerza para desmontarlos. Saque el alojamiento y el rodamiento como una unidad y luego sepárelos. 26. Saque el retén de sello desde el lado del freno de la caja de engranajes. Quite la empaquetadura y el sello de aceite desde el retén. 27. Limpie e inspeccione todos los componentes y repare o reemplace todos los componentes dañados o gastados. Rearme en forma opuesta al desmontaje, tomando en cuenta lo siguiente: PRECAUCIÓN: Durante el rearmado de la caja de engranajes de empuje hay ciertos componentes que deben ser calentados o enfriados con el propósito de ensamblarlos. Cuando caliente o enfríe un componente tome todas las precauciones necesarias y use equipamiento de protección apropiado cuando manipule los componentes calentados o enfriados. a. Los rodamientos del eje impulsor, los espaciadores de rodamiento y la mitad del acoplamiento tienen una fijación de interferencia al eje y requerirán ser calentados para instalarlos. b. Use compuesto de sellado para hilos en los pernos de retención de la maza del freno, en los pernos de retención del sello de aceite de rodamiento del extremo del acoplamiento y en los pernos de montaje del anillo de transmisión de freno. c. Llene la cavidad entre los sellos con lubricante al ensamblarlos.
  • 298.
    5-80 Procedimientos de ServicioSección MD6640 Perforadora Electrica Para Pozos De Tronadura d. El rodamiento del segundo eje intermedio y el engranaje tienen una fijación de interferencia al eje y requerirán ser calentados para instalarlos. e. Use compuesto de sellado para hilos en los pernos de cabeza hueca del retén de rodamiento del extremo del codificador. f. El primer eje intermedio debe ser ensamblado de la forma siguiente: 1. Instale el espaciador interior del piñón en el eje. 2. Si durante el desmontaje se quitó, reinstale el engranaje en el piñón. El engranaje tiene fijación de interferencia al piñón y requerirá ser calentado para instalarlo. Asegúrese de instalar la cuña en el engranaje. 3. Instale la pista externa del rodamiento interno en el piñón. La pista tiene fijación de interferencia al piñón y requerirá ser enfriada para instalarla. Deslice el conjunto del piñón sobre el eje de carga hasta el final. 4. Caliente las pistas internas de los rodamientos del piñón e instálelas con espaciador entre ellas. Luego use un espaciador especial suministrado con las herramientas para golpear las pistas del rodamiento. Asegure el conjunto con la tuerca de cierre del rodamiento. 5. Ensamble las pistas externas y retenes faltantes. Instale tres pernos espaciados en forma equidistante y apriételos con un torque de 50 lbs.pie. Mida el espacio en los tres orificios sin usar y calcule el promedio. Instale un paquete de platinas igual al espacio promedio y luego instale y apriete todos los pernos de retención. 6. Saque el espaciador especial e instale el material faltante.
  • 299.
    5-81 Procedimientos de ServicioSección MD6640 Perforadora Electrica Para Pozos De Tronadura FRENO DE LEVANTE PRECAUCIÓN: La operación o movimiento inesperado de la unidad de empuje y/o de la caja de engranajes de rotación durante un procedimiento de servicio o inspección puede causar severas lesiones personales o la muerte. Baje la unidad de empuje hasta la posición más baja posible o asegúrela en su posición. Cierre y rotule los controles para prevenir operaciones inesperadas. El freno de levante es un freno de accionamiento por resortes y de apertura eléctrica. INSPECCIÓN Inspeccione periódicamente el desgaste del freno (cada 2.000 horas mínimo) midiendo el intervalo de aire a través de las ranuras en la jaula. Una indicación del desgaste del freno es una señal de falla en la apertura del freno. Cuando el intervalo de aire se torna excesivo, el freno no se abrirá. Cuando el intervalo de aire alcanza .065”, la abertura debería ser ajustada. La operación normal de la abertura es de .050”. Cuando el paquete de discos de fricción se desgasta a la mitad de su espesor original, el paquete de discos de fricción debe ser reemplazado. Ajustes Del Desgaste Del Freno
  • 300.
    5-82 Procedimientos de ServicioSección MD6640 Perforadora Electrica Para Pozos De Tronadura Freno De Levante – Detalles 1. Cuerpo del Magneto 10. Varilla de Ajuste 2. Conjunto de Resortes de Presión 11. Calibrador de Relleno 3. Jaula 12. Tuerca de Plancha 4. Anillo “O” de la Jaula 13. Perno de Abertura Manual 5. Armadura 14. Switch Límite 6. Disco Intermedio 15. Soporte de Switch 7. Disco de Fricción 16. Alojamiento 8. Anillo de Ajuste de Desgaste 17. Caja Conduit 9. Maza 18. Bloque Terminal
  • 301.
    5-83 Procedimientos de ServicioSección MD6640 Perforadora Electrica Para Pozos De Tronadura AJUSTE DEL DESGASTE DEL FRENO 1. Asegúrese que la maquinaria del mástil esté bloqueada o manualmente cerrada en la posición más baja ya que el freno necesita ser aliviado para realizar el ajuste. 2. Retire los pernos del alojamiento y el alojamiento del freno teniendo cuidado para mantener libre de daños los switches ubicados en la circunferencia del alojamiento del arrollamiento. 3. Inserte calibradores de bronce de relleno (.050 suministrados con el freno) dentro del intervalo de aire en las tres ranuras y alivie el freno eléctricamente o con los pernos de alivio manual. 4. Quite los pernos de cierre desde el anillo de ajuste de desgaste en las ranuras de la jaula. 5. Inserte la varilla de ajuste dentro de uno de los orificios en el anillo de ajuste de desgaste y gire hacia la izquierda (contra las manillas de reloj) hasta el final de la ranura. Repita hasta que sienta resistencia. 6. Retire los calibradores y gire el anillo de ajuste al extremo más cercano de la ranura. Saque la varilla y reinstale los pernos de cierre. 7. Asegúrese de que los switches de abertura del freno estén limpios y actúen libremente. 8. Accione el freno y reinstale el alojamiento. Aplique una capa de sellante de silicona a todas las juntas exteriores. REEMPLAZO DE LOS DISCOS DE FRICCIÓN 1. Energize el magneto y amordace la armadura al cuerpo del magneto con cuatro pernos de apertura manual. Desenergice el magneto y saque los cables conductores. 2. Saque los pernos de montaje de la jaula y el conjunto del cuerpo del magneto y la armadura. Retroceda levemente el anillo de ajuste de desgaste para lograr espacio para un nuevo paquete de discos de fricción. 3. El paquete de discos de fricción se puede deslizar ahora desde la maza y la jaula. Note el orden del paquete de forma que los nuevos componentes puedan ser instalados correctamente. 4. Reinstale los nuevos discos de fricción en el orden correcto con los discos intermedios, tal como se muestra en la figura.
  • 302.
    5-84 Procedimientos de ServicioSección MD6640 Perforadora Electrica Para Pozos De Tronadura 5. Reinstale el conjunto del cuerpo del magneto y la armadura. (Las flechas de metal estampadas en cada componente deben quedar en línea). 6. Reconecte los cables conductores, energize el freno y saque los cuatro pernos de apertura manual. 7. Instale el intervalo de aire a .050” según AJUSTE DEL DESGASTE DEL FRENO. DESMONTAJE DEL CUERPO DEL MAGNETO Y LAARMADURA 1. Ponga el conjunto en compresión con el espaciador. 2. Compresione la armadura contra el cuerpo del magneto y saque los pernos de apertura manual de la armadura. (se requiere una fuerza de 6.500 lbs de presión). 3. Alivie presión lentamente de la compresión, hasta que la presión de los resortes sea aliviada. Quite la armadura. La presión del conjunto de los resortes no debería ser removida. MONTAJE DEL CUERPO DEL MAGNETO Y LAARMADURA 1. Ponga el cuerpo del magneto con el lado de la pestaña hacia arriba sobre el espaciador en una prensa base. 2. Inserte los conjuntos de resortes de presión e instale la armadura en su lugar teniendo la seguridad de alinear las flechas en la armadura y en el cuerpo del magneto. Inserte pasadores temporales en los orificios de los pernos de apertura para alineación. 3. Compresione la armadura contra el cuerpo del magneto (se requiere una fuerza de 6.500 lbs de presión), saque los pasadores temporales e instale cuatro pernos de apertura manual. Apriete los pernos para sujetar la armadura al cuerpo del magneto. Remueva la compresión del conjunto.
  • 303.
    5-85 Procedimientos de ServicioSección MD6640 Perforadora Electrica Para Pozos De Tronadura PORTABARRAS Los portabarras en la MD6640 se usan para almacenar las barras de perforación en una posición desde donde ellas puedan ser fácilmente insertadas en la columna de perforación. Los portabarras están operados por un cilindro hidráulico los cuales oscilan el soporte a una posición para aceptar o entregar la barra de perforación. Inspeccione diariamente los portabarras por si hay herrajes sueltos o faltantes o cualquier desgaste o daño. Inspeccione si los soportes operan apropiadamente en cada turno. Verifique que la barra esté firmemente asegurada por la compuerta superior. Revise que los cilindros de operación operen debidamente y no tengan pérdidas de aceite. Revise si los bujes de los portabarras están gastados y reemplácelos según sea necesario. Revise la correcta operación de los trinquetes en el bolsillo del extremo inferior del portabarras. Quite cualquier suciedad, hielo o escombros desde le bolsillo de la barra y verifique el funcionamiento del sistema de operación de la compuerta si no hay barra alojada en el soporte. Lubrique todos los puntos con el lubricante requerido. Portabarras Lado Derecho - Detalles
  • 304.
    5-86 Procedimientos de ServicioSección MD6640 Perforadora Electrica Para Pozos De Tronadura Portabarras Lado Izquierdo - Detalles
  • 305.
    5-87 Procedimientos de ServicioSección MD6640 Perforadora Electrica Para Pozos De Tronadura REPARACIÓN No hay componentes de desgaste en los portabarras con la excepción de los bujes. Todos los componentes mayores del portabarras deberían subsistir a través de la vida total de la máquina. La reparación de los portabarras está limitada al reemplazo de bujes y golillas de presión. Para reemplazar los bujes y las golillas de presión, proceda de la siguiente manera: 1. Levante la unidad de accionamiento de rotación hasta su posición más alta e instale el freno de levante. 2. Desconecte, tape y rotule todas las líneas hidráulicas al portabarras. 3. Asegure el portabarras para prevenir movimientos. 4. Quite los pernos que fijan el brazo pivotante superior al soporte del brazo. Saque el brazo y luego quite el buje desde el brazo. 5. Quite el retén del buje. Saque la mitad del buje dividido desde el retén del buje. 6. Asegure una grúa y aparejos apropiados al portabarras. Separe y desmonte el cilindro de posicionamiento del soporte. Con la grúa, levante el portabarras desde la plataforma inferior del mástil. 7. Saque los bujes y golillas de presión desde la plataforma inferior del mástil y la mitad del buje dividido desde el bloque de retención del buje. 8. Limpie e inspeccione todos los componentes. Reemplace los componentes gastados o dañados según sea necesario. 9. Reinstale en forma opuesta al desmontaje, lubrique todos los puntos de lubricación y revise su apropiada operación.
  • 306.
    5-88 Procedimientos de ServicioSección MD6640 Perforadora Electrica Para Pozos De Tronadura Equipos Variables Del Portabarras
  • 307.
    5-89 Procedimientos de ServicioSección MD6640 Perforadora Electrica Para Pozos De Tronadura LLAVE DE HERRAMIENTAS Las llaves de herramienta consisten de la Llave de Herramientas y de la Llave de Desenroscar. Ellas se usan para amordazar la barra de perforación con el objeto de abrir la unión de barras. Las llaves de herramienta son dos cilindros hidráulicos construidos especialmente que operan dentro de una carcasa cuadrada. Un trinquete cargado con resortes engancha una cavidad en la barra de perforación para prevenir la rotación de la barra. Llave De Herramientas - Detalles nspeccione a diario las llaves de herramienta por si tienen herrajes sueltos o faltantes y cualquier desgaste o daño. Inspeccione en cada turno la correcta operación de las llaves de herramienta. Inspeccione cada llave y las líneas hidráulicas asociadas por si tienen fugas de aceite y repare inmediatamente cualquier fuga encontrada. Verifique que los trinquetes estén totalmente extendidos y asegurados con la barra de espiga. Verifique que las llaves puedan pivotar sobre el pasador
  • 308.
    5-90 Procedimientos de ServicioSección MD6640 Perforadora Electrica Para Pozos De Tronadura trasero. Limpie cualquiera acumulación de detritus desde entre las llaves. Verifique que los bloques de tope estén intactos y en su lugar. Verifique que los bloques de rodamiento del pasador trasero estén asegurados firmemente a la plataforma de perforación y que los pernos de anclaje de la varilla del pistón estén apretados. Lubrique el conjunto con un lubricante aprobado, en los intervalos recomendados. REPARACIÓN La reparación de las llaves de herramienta se limita esencialmente al reemplazo de los insertos de trinquete. El reemplazo de la llave de herramienta completa se realiza sacando las dos líneas hidráulicas desde la varilla del pistón y luego sacando los cuatro pernos que aseguran los bloques de rodamiento. La reparación de la llave misma sigue los procedimientos standard de reparación de los cilindros hidráulicos. Para reemplazar los insertos de trinquete, proceda de la manera siguiente: 1. Saque la llave de herramientas defectuosa desde la plataforma de perforación sacando las líneas hidráulicas de entrada a la varilla del pistón y luego sacando los cuatro pernos que aseguran los bloques de rodamiento a la plataforma de perforación. 2. Utilizando equipamiento apropiado comprima levemente los resortes de trinquete para quitar presión desde el pasador de retención del trinquete. 3. Utilizando equipamiento apropiado, saque el pasador de retención del trinquete. PRECAUCIÓN: El trinquete está cargado por resortes. Asegúrese de contener adecuadamente el trinquete antes de remover el pasador de retención. La omisión de contener el trinquete resultará en que éste sea proyectado con fuerza desde el cuerpo del cilindro, causando posiblemente la muerte o serias lesiones al personal en el área. 4. Alivie totalmente la presión sobre los resortes de trinquete. Cuando la presión quede totalmente aliviada, saque el trinquete y los resortes de trinquete desde el cuerpo del cilindro. 5. Inspeccione los resortes y el trinquete y reemplace según sea necesario. 6. Lubrique los resortes y el trinquete con un lubricante aprobado y rearme los componentes en orden opuesto al desmontaje.
  • 309.
    5-91 Procedimientos de ServicioSección MD6640 Perforadora Electrica Para Pozos De Tronadura LLAVE DE DESENROSCAR La llave de desenroscar es usada para abrir la unión de las barras que no se abren utilizando la unidad de rotación. Con la barra asegurada con las llaves de herramienta, el switch de la llave de desenroscar se gira hacia y se sujeta en la posición EXTENDIDA. La llave de desenroscar se extiende, amordaza la barra y luego gira abriendo la unión de la barra. REPARACIÓN La llave de desenroscar debe ser inspeccionada a diario por si tiene desgaste o daños, herrajes faltantes o sueltos así como la apropiada operación. La reparación de. la llave de desenroscar está limitada al reemplazo de componentes gastados o dañados.
  • 310.
    5-92 Procedimientos de ServicioSección MD6640 Perforadora Electrica Para Pozos De Tronadura AJUSTES Si los insertos de las mandíbulas no contactan la barra, ajuste la llave de desenroscar de la siguiente manera: 1. Saque la chaveta de pasador desde el pasador. 2. Saque los anillos divididos desde el montaje de horquilla. 3. Gire el cilindro afuera del montaje de horquilla. 4. Levante el cilindro fuera del pasador de varilla. 5. Destornille el ojal de la varilla una vuelta completa desde la varilla del cilindro. 6. Reinstale el cilindro en el orden inverso, excepto la chaveta del pasador. 7. Revise la operación de la llave. Si los insertos contactan la barra, vaya al paso 8. Si los insertos no contactan la barra, repita los pasos 2 hasta el 7. NOTA: Si los insertos del brazo contactan la barra pero los insertos de la mandíbula no lo hacen, algo está impidiendo mecánicamente el movimiento de la llave. Revise todas las áreas por si hay interferencias de suciedad, escombros u objetos sueltos
  • 311.
    5-93 Procedimientos de ServicioSección MD6640 Perforadora Electrica Para Pozos De Tronadura WINCHEAUXILIAR El winche auxiliar se usa para levantar las herramientas hacia dentro y afuera de la plataforma de perforación. El winche consiste de un carrete accionado hidráulicamente en la base del mástil, un cable con gancho y poleas guía para el cable en la parte superior del mástil. El nivel de aceite en el winche debe ser revisado mensualmente. Las poleas en la parte superior del mástil deben ser revisadas cada mes para verificar si tienen desgastes o daños. Una vez al año, los rodamientos de las poleas deberían ser recargados con lubricante. Para la reparación del winche hidráulico, refiérase al capítulo SISTEMA HIDRÁULICO de este manual.
  • 312.
    5-94 Procedimientos de ServicioSección MD6640 Perforadora Electrica Para Pozos De Tronadura TIRANTES DEL MÁSTIL Los tirantes del mástil de la MD6640 son usados para soportar el mástil durante la perforación inclinada. Tirantes Del Mástil - Detalles Inspeccione a diario los tirantes del mástil por si tienen herrajes sueltos o faltantes o cualquier desgaste o daño. Reemplace cualquier herraje faltante y repare cualquier daño inmediatamente. Revise diariamente los pasadores superiores de anclaje, golillas y pernos de retención, asegurándose que los pasadores de retención estén en su lugar. Inspeccione si la estructura de los tirantes del mástil tiene fisuras u otros daños. Repare la estructura de los tirantes del mástil con las técnicas de reparación por soldadura indicada en el apéndice. Inspeccione si los pasadores telescópicos de cierre tienen desgaste. Los cilindros de los pasadores telescópicos de cierre y las líneas hidráulicas deberían ser revisadas diariamente por si tienen filtraciones. Verifique que las tuercas de cierre de los pernos de ajuste estén apretadas y que los tirantes del mástil están apropiadamente ajustados.
  • 313.
    5-95 Procedimientos de ServicioSección MD6640 Perforadora Electrica Para Pozos De Tronadura Inspeccione si las camisas y soportes de los tirantes del mástil tienen desgastes y daños o herrajes sueltos o faltantes. Lubrique todos los pasadores con un lubricante aprobado y en los intervalos recomendados. Lubrique el perno de ajuste con un aceite inhibidor de oxidación según se requiera. REPARACIÓN Los tirantes del mástil, normalmente no son considerados como ítems de desgaste, por lo tanto ninguna reparación requerida tendrá que ser manejada sobre una base individual. PRECAUCIÓN: Los tirantes del mástil son componentes críticos, especialmente en máquinas para perforación inclinada. Consulte al departamento de servicio de Caterpillar Global Mining antes de intentar reparaciones mayores o modificaciones. AJUSTES Normalmente los tirantes del mástil son ajustados durante el montaje de la máquina y ajustes posteriores no son necesarios. En circunstancias especiales se puede requerir el reajuste de los tirantes del mástil a su condición original. Para reajustar los tirantes del mástil proceda de la siguiente manera: 1. Saque los pasadores telescópicos de cierre desde los tirantes del mástil. 2. Nivele cuidadosamente la máquina. Asegúrese de que las cuatro esquinas de la máquina tienen la misma elevación y que el mástil está posicionado verticalmente. 3. Suelte las tuercas de cierre de los pernos de ajuste. 4. Gire los pernos de ajuste hasta que los pasadores telescópicos de cierre puedan ser insertados libremente (aproximadamente 14.25” +/- 2.50” desde la línea central del pasador del perno de ajuste hasta el extremo del tirante). 5. Apriete los pernos de ajuste en su posición con la tuerca de cierre. PRECAUCIÓN: Cuando los tirantes del mástil son ajustados, no es necesario variar el ajuste a menos que sea reemplazado el tirante del mástil. Las dificultades en insertar los pasadores de los tirantes del mástil, usualmente son producto de que la máquina no está nivelada o que el mástil no está vertical. Los ajustes arbitrarios de los tirantes del mástil sin nivelar cuidadosamente la máquina pueden causar serios daños al mástil y deberían ser evitados. NOTA: El ajuste apropiado de los tirantes del mástil se hacen con la máquina nivelada y soportada sobre los gatos. Se encontrarán dificultades mas tarde, para la remoción o reinstalación de los pasadores telescópicos de cierre, si la máquina está descansando sobre las orugas.
  • 314.
    5-96 Procedimientos de ServicioSección MD6640 Perforadora Electrica Para Pozos De Tronadura SISTEMA HIDRÁULICO OPERACIÓN DEL SISTEMA La siguiente descripción tiene por objeto ayudar al personal de terreno en la comprensión del sistema hidráulico de la perforadora de pozos de tronadura MD6640 y de su operación. Las explicaciones consisten de una visión general del sistema y la relación entre los diagramas con los componentes reales en la perforadora. La MD6640 tiene dos grandes sistemas hidráulicos separados, aunque no independientes: El circuito de Propulsión y el circuito de Cilindros.Ambos sistemas aspiran su aceite desde un estanque común de 108 galones de capacidad. Las bombas para los circuitos están accionadas mediante una caja de transmisión de engranajes por el motor del compresor principal. La caja de transmisión de engranajes aumentará, disminuirá o mantendrá la misma relación de velocidad entre la velocidad del motor y la velocidad de la bomba. El motor del compresor principal determina la relación de engranajes de la caja de engranajes. El circuito de propulsión consiste de dos bombas hidráulicas/accionamiento motriz, una para cada oruga. Adosada a la bomba de propulsión izquierda hay una bomba de engranaje simple la cual suministra aceite bajo presión a los gatos de nivelación y para los cilindros de levante del mástil y accionadores. Adosada a la bomba de propulsión derecha hay una bomba de engranajes de dos etapas. La bomba extrema proporciona presión de control para las bombas de propulsión así como presión piloto para el levante del mástil, winche auxiliar y las válvulas del portabarras. Esta bomba también suministra aceite para el accionamiento del cilindro de la compuerta para ver la broca, los cilindros de la escalera de acceso y para el sistema de lubricación. Componentes Hidráulicos – Vista General
  • 315.
    5-97 Procedimientos de ServicioSección MD6640 Perforadora Electrica Para Pozos De Tronadura El circuito de propulsión incluye los controles de freno para cada oruga. Para propósitos de remolque, el sistema está equipado con una bomba manual, para alivio manual de los frenos de las orugas. La bomba al final del eje, en la bomba de engranajes de dos etapas, suministra aceite bajo presión al resto de los cilindros hidráulicos y accionadores de la máquina. Si la máquina está equipada con portacable, el sistema hidráulico completo, incluyendo el tanque, bomba y motor, son parte de la unidad del portacable. El sistema está totalmente sellado y filtrado con el objeto de mantener el aceite tan limpio como sea posible. La caja de engranajes con las bombas, está montada al eje de transmisión trasero del motor del compresor principal de aire. El tanque, enfriador de aceite y la estructura principal de las válvulas de distribución, está ubicado en la parte trasera de la sala de máquinas y los variados cilindros están montados en distintos puntos alrededor de la máquina. SISTEMA HIDRÁULICO DEL CIRCUITO DE LOS CILINDROS Los fluidos para este sistema se suministran desde el tanque común de 108 galones. La bomba de engranaje simple y la bomba de engranajes de dos etapas, suministran aceite a los accionadores en los siguientes rangos: 2704 R.P.M. @ 60 HZ Bomba Simple 65 GPM Bomba final del Eje 17 GPM Bomba Extrema 18 GPM 2253 R.P.M. @ 50 HZ Bomba Simple 54 GPM Bomba final del Eje 14 GPM Bomba Extrema 15 GPM La estación múltiple de distribución del conjunto de válvulas contiene válvulas de control para una variedad de accionadores. Usualmente, las válvulas de control se ensamblarán en grupos – un grupo para cada accionador. Un grupo típico de válvulas podría incluir una válvula de alivio, una de retención, una válvula de desconexión rápida para pruebas de presión y una válvula solenoide. La mayoría de las líneas hidráulicas van desde el distribuidor de válvulas a mamparos y desde allí a los accionadores. Todo aceite que retorna hacia el tanque pasa a través de filtros de 10 micrones antes de entrar al tanque.
  • 316.
    5-98 Procedimientos de ServicioSección MD6640 Perforadora Electrica Para Pozos De Tronadura SISTEMA HIDRÁULICO DEL CIRCUITO DE PROPULSIÓN El fluido para el sistema de propulsión también se suministra desde el tanque de 108 galones. La mayoría de las válvulas de control hidráulico del circuito de propulsión, son módulos apernados directamente a las bombas. La válvula de presión piloto y las válvulas de freno están separadas de la bomba. El aceite para cada circuito de control de la bomba es dirigido a través de filtros de 10 micrones equipados con una válvula de derivación de 25 PSID. La presión piloto es controlada a 1000 PSI sumando los 850 PSI de la válvula de alivio y los 150 PSI de alivio de sobrecarga. Las bombas están equipadas con dos conjuntos principales de anulación de alivio/presión referidas a una válvula de combinación; una para el lado de propulsión adelante y otra para el lado de propulsión reversa. La porción de anulación de presión del conjunto se instala a 4500 PSI. La válvula de anulación de presión previene continuos vaciamientos de flujo excesivo, a presión de carga, a través de las válvulas principales de alivio. Esto elimina calentamiento innecesario del aceite y protege de daños al motor y la bomba. MANTENCIÓN GENERAL LIMPIEZA DEL SISTEMA HIDRÁULICO Es extremadamente importante usar el aceite correcto en el sistema. Es igualmente importante mantener el aceite limpio. Cada vez que un procedimiento de reparación requiere que una conexión sea abierta o que un componente sea reemplazado, primero limpie el área inmediata alrededor de la unión y/o del componente a ser reemplazado. Este paso es requerido para asegurar que ningún contaminante entre a través de las líneas hidráulicas o de los componentes de reemplazo. Mientras ejecuta la reparación mantenga todo limpio y también mantenga las aberturas cubiertas o tapadas hasta que sean reconectadas. La contaminación es la causa más común de problemas en un sistema hidráulico. Esto causa excesivo desgaste de componentes, interfiere con las aberturas estrecha y obstaculiza la operación normal. NOTA: Nunca agregue aceite al sistema sacando el respirador del tanque y vaciándolo adentro a traves del embudo. Aún los tambores nuevos están sucios y pueden causar válvulas pegadas. Cuando se agrega aceite hidráulico al sistema, éste siempre debe ser bombeado dentro del sistema. La línea de descarga de la bomba debería fijarse al acoplamiento rápido en la parte superior del tanque. Esta conexión asegura que el aceite nuevo pasará a través de los filtros de retorno del tanque antes de entrar al sistema.
  • 317.
    5-99 Procedimientos de ServicioSección MD6640 Perforadora Electrica Para Pozos De Tronadura Si la bomba usada para adicionar el aceite está equipada con un porta filtro y la bomba a sido usada para otros fluidos, el sistema de la bomba y el porta filtro deben ser purgados del otro fluido antes de conecta la unidad de bomba al acoplamiento rápido. Esta purga se puede realizar lavando la bomba y el porta filtro con lo menos un galón del aceite hidráulico especificado. REQUERIMIENTOS DE ACEITE Para estándares de aceite hidráulico, refiérase a la Sección 3 de este manual, ACEITE HIDRÁULICO. CAMBIO DE ACEITE Y FILTROS Durante la operación normal, cambie el elemento cuando sea indicado por el indicador de la condición del filtro con el aceite a temperatura de operación normal y cada vez que el aceite sea cambiado. NOTA: Antes de cambiar el elemento, abra el interruptor de circuito para el motor de la bomba hidráulica. Asegúrese que no hay presión en el sistema para prevenir posibles fugas de aceite. La frecuencia de cambio del aceite hidráulico depende del tipo de aceite usado en su máquina. Este ciclo puede variar desde 2.000 horas para aceites tipo grado estándar de base de petróleo como el determinado por los estándares de lubricante, hasta 8.000 horas para ciertos aceites de hidrocarburos sintéticos determinado por los estándares de lubricante. Estas frecuencias de cambio se pueden acorta o alargar dependiendo de la condición del aceite. Para determinar la condición de los aceites, se deberían tomar muestras periódicas (ej. cada 200 horas) y ser analizados por un fabricante reputado. Cuando tome muestras de aceite, nunca tome la muestra desde el sistema de drenaje del tanque. Si es posible, la muestra debería ser tomada desde un punto cercano al distribuidor de retorno, justo antes de los filtros de retorno. PRECAUCIÓN: Para minimizar peligros de incendio, no se permite abrir llamas u otras fuentes de ignición cuando se cambia aceite. El agua debe ser drenada una vez al día, desde la base del tanque de aceite hidráulico, luego de un periodo de detención y cuando el aceite esté frío. El tanque de aceite hidráulico contiene 108 galones de aceite.
  • 318.
    5-100 Procedimientos de ServicioSección MD6640 Perforadora Electrica Para Pozos De Tronadura PAUTAS DE MANTENCIÓN SEMANAL Revise la correcta operación de todos los componentes del sistema. Las válvulas, cilindros, motores y bombas deberían operar suavemente, sin vibraciones o trabaduras. Revise el nivel de aceite en el tanque. El tanque debería estar casi lleno (108 galones) cuando el mástil está horizontal y todos los otros cilindros están retraídos. Cuando el mástil está horizontal y todos los otros cilindros están retraídos, el nivel del tanque debería estar ligeramente bajo 7/8. PRECAUCIÓN: Antes de rellenar fluido en el tanque hidráulico, verifique que los cilindros del mástil estén extendidos y todos los otros cilindros estén retraídos. La omisión de cumplir lo anterior (ej. Los cilindros de los gatos extendidos) llenará en exceso el tanque cuando los cilindros de los gatos sean retraídos, causando la ruptura del tanque. PRECAUCIÓN: No opere con bajo nivel de aceite. La operación con bajo nivel de aceite puede causar cavitación y bolsas de aire. Esto causará operaciones fallidas y también puede causar daños a los componentes del sistema. Inspeccione todos los componentes y líneas para asegurarse de que están en buenas condiciones de operación. Revise si hay cilindros obstruidos o distorsionados. Inspeccione si el sistema tiene fugas. Si se encuentra una fuga, apriete los tornillos o las conexiones alrededor del área de fuga, antes de iniciar reparaciones mayores. Si la fuga no se detiene, puede ser necesario entonces reparar o reemplazar la parte con fugas. Si un anillo “O” está dañado o falta desde el sistema de tubería hidráulica, revise el juego de anillos “O” Nº 68120749 para obtener anillos “O” de recambio. REPARACIONES DEL TANQUE DE ACEITE El tanque de aceite hidráulico tiene un revestimiento epóxico en su parte interna para prevenir incrustaciones y oxidación. PRECAUCIÓN: No suelde en el tanque: se dañará el revestimiento. PROCEDIMIENTO DE ALIVIO DE PRESIÓN DE LA VÁLVULA DE EQUILIBRIO (O DE COMPENSACIÓN) DE LOS GATOS DE NIVELACIÓN Si es necesario trabajar en la válvula de equilibrio de los gatos de nivelación por cualquier razón, alivie la presión en el cilindro, usando el siguiente procedimiento: 1. Posicione la máquina con las orugas en el suelo y los gatos retraídos, de forma que las zapatas de los gatos queden aproximadamente a una pulgada desde el suelo. 2. Apague la bomba hidráulica y alivie cualquier presión en el sistema destornillando el respirador del tanque. Cuando el aire atrapado en el tanque se alivie, reapriete inmediatamente el respirador.
  • 319.
    5-101 Procedimientos de ServicioSección MD6640 Perforadora Electrica Para Pozos De Tronadura GATOS TRASEROS 1. Desacople el conector rápido usando una llave de extremo abierto de 1¼”. El terminal macho del conector rápido permanecerá conectado a la válvula. 2. Quite el otro extremo de la manguera con conector rápido desde la caja eléctrica de conexión sobre el gato. 3. Ponga el extremo de la manguera sacada desde la caja eléctrica de conexión dentro de un contenedor limpio de cinco galones. 4. Reconecte el conector rápido. Cuando la conexión casi se complete, el aceite saldrá desde el extremo de la manguera en el contenedor y la zapata del gato caerá al suelo. Esto aliviará toda la presión sobre el vástago del pistón y creará un vacío en el extremo del alojamiento del cilindro. PRECAUCION: Mantenga siempre un firme agarre de la manguera mientras el aceite fluye desde ella. No permita que el flujo de aceite contacte su piel ya que pueden ocurrir lesiones. 5. Cuando el flujo de aceite se haya detenido y la zapata del gato esté en el suelo, el extremo suelto de la manguera puede ser reconectada a la caja eléctrica de conexión. 6. Con la presión totalmente aliviada, ahora se puede trabajar con seguridad en la válvula de equilibrio o compensación y en el cilindro del gato. GATOS DELANTEROS 1. Desacople el conector rápido en ambos gatos delanteros usando una llave de extremo abierto de 1¼”. El terminal macho del conector rápido permanecerá conectado a la válvula. 2. En un solo gato delantero, saque el otro extremo de la manguera con conector rápido desde la caja eléctrica de conexión sobre el gato. 3. Ponga el extremo de la manguera sacada desde la caja eléctrica de conexión dentro de un contenedor limpio de cinco galones. (Dos contenedores adicionales de 5 galones se necesitarán para manejar el aceite desde ambos gatos delanteros.). PRECAUCION: Mantenga siempre un firme agarre de la manguera mientras el aceite fluye desde ella. No permita que el flujo de aceite contacte su piel ya que pueden ocurrir lesiones.
  • 320.
    5-102 Procedimientos de ServicioSección MD6640 Perforadora Electrica Para Pozos De Tronadura 4. Reconecte el conector rápido. Cuando la conexión esté completándose, el aceite comenzará a salir por el extremo de la manguera al contenedor y la zapata del gato caerá al suelo. Esto aliviará toda la presión sobre el vástago del pistón y creará un vació en el extremo del alojamiento del cilindro. 5. Para sacar el aceite desde el otro gato delantero, se necesitará un ayudante. Disponga que el ayudante se mantenga sujetando la manguera desconectada dentro de un contenedor de 5 galones mientras Ud. reconecta el conector rápido en el otro gato delantero. El aceite desde éste gato fluirá ahora desde la manguera que está siendo sujetada por el ayudante. 6. Cuando se haya detenido el flujo de aceite y la zapata del gato quede en el suelo, el extremo suelto de la manguera se puede reconectar a la caja eléctrica de conexión. 7. Con la presión totalmente aliviada, ahora se puede trabajar con seguridad en la válvula de equilibrio o compensación y en el cilindro del gato. INSPECCIÓN ANTES DELARRANQUE Si los sistemas hidráulicos de la máquina han sido sometidos a una mantención mayor, se deberían completar las siguientes inspecciones previas antes del arranque inicial de la máquina. PRECAUCION: Antes de arrancar las bombas, establezca un sendero perimetral seguro alrededor de la máquina para reducir posibles lesiones al personal de terreno por una posible operación automática de una escalera de acceso, las cortinas contra polvo o el portacable. NOTA: Lea todas las instrucciones antes de iniciar cualquier prueba individual. Inicie cada paso hasta completarlo o registre la información requerida. 1. Revise que todas las líneas y conexiones están apretadas y la precisión de las instalaciones de tuberías. 2. Revise visualmente de que no haya puertos abiertos en ninguna válvula. 3. Si las orugas o el mástil han sido desmontados desde la máquina, asegúrese que todos los puertos han sido cerrados o taponados y todas las líneas sueltas terminan en un conector rápido o están obturados con una conexión de acero. NOTA: Tome nota de todos los fabricantes de aceite y tipos de aceite que están siendo usados en este sistema hidráulico (ej. Conoco syncom aw22). 4. Verifique que el tanque hidráulico está lleno al nivel correcto con el aceite hidráulico requerido.
  • 321.
    5-103 Procedimientos de ServicioSección MD6640 Perforadora Electrica Para Pozos De Tronadura 5. Revise las instalaciones de tuberías de succión y del tanque por si tienen fugas externas. 6. Con el kit de prueba instale manómetros de presión de 0-1500 PSI para verificar los puertos 14 y 15 a la izquierda y derecha de la salida del filtro de carga de la bomba de propulsión, respectivamente, como se muestra en la tabla de ubicación de puertos de manómetros al final de esta sección del manual. NOTA: Todos los manómetros de presión deben ser calibrados antes de ser usados. 7. Verifique que la caja de engranajes de la bomba de transmisión esté llena con 7 litros de aceite SAE 80-90W. 8. Revise el correcto sentido de giro del motor de accionamiento de la bomba, estimulando los botones arranque/parada del compresor principal o del embrague PTO, si es accionada por motor diesel. La rotación del eje de impulsión de la caja de engranajes de transmisión de la bomba, es opuesta a la rotación del eje de la bomba. 9. Cuando complete el paso 8, continúe estimulando el motor eléctrico hasta que la presión en los manómetros en los puertos de prueba 14 y 15 sea de 100 PSI. 10. Cuando se verifique la elevación de presión, arranque las bombas hidráulicas y revise visualmente si las instalaciones de tuberías tienen fugas.
  • 322.
    5-104 Procedimientos de ServicioSección MD6640 Perforadora Electrica Para Pozos De Tronadura PRUEBASAL SISTEMAHIDRÁULICO El sistema hidráulico está equipado con puertos de prueba con conexiones rápidas para la revisión de la operación de los sistemas. Los puertos de prueba se muestran en las figuras. Los puertos de prueba están identificados con números en círculos en las ilustraciones. Estas pruebas están diseñadas para asegurar que las unidades específicas estén operando correctamente y si ellas son ajustables, se ajustan a la correcta presión de instalación. Los resultados de cada una de las siguientes pruebas deberían ser anotadas en un libro de registro, de modo que en futuras revisiones y en casos de falla de los sistemas, las lecturas de presión puedan ser comparadas para ayudar a localizar la falla. NOTA: Para ubicar los puntos de prueba en la máquina, vea la tabla al final de esta sección de este manual. PRECAUCION: Antes de unir o desconectar las galgas de presión para probar portales, asegurarse que las bombas hidráulicas estén apagadas. REVISIÓN DE LA PRESIÓN DE CARGA DE LA BOMBA DE PROPULSIÓN NOTA: El ajuste de alivio de la bomba de carga se hace en el lado derecho de la bomba. 1. Con los controles de la bomba en NEUTRO y las bombas en funcionamiento, revise la presión en el puerto de prueba 14 sobre un manómetro de 1500 PSI. Instale la presión de alivio de la bomba de carga de la bomba de propulsión del lado izquierdo, lo requerido para obtener 350 PSI +/- 10 PSI. (Use llave hexagonal de 1 1/16” y destornillador). 2. Con los controles de la bomba en NEUTRO y las bombas en funcionamiento, revise la presión en el puerto de prueba 15 sobre un manómetro de 1500 PSI. Instale la presión de alivio de la bomba de carga de la bomba de propulsión del lado derecho, lo requerido para obtener 350 PSI +/- 10 PSI. (Use llave hexagonal de 1 1/16” y destornillador). 3. Apague las bombas.
  • 323.
    5-105 Procedimientos de ServicioSección MD6640 Perforadora Electrica Para Pozos De Tronadura REVISIÓN DE LA PRESIÓN DE CONTROL 1. Con la Válvula de Presión Piloto (VPP) desconectada eléctricamente en la 6ª estación de la estación 6 del distribuidor, ubicada inmediatamente encima y hacia la parte trasera del estante de válvula de los gatos y con un manómetro de 1.500 PSI en los puertos de prueba 7 y 17, arranque las bombas. Registre las presiones en los puertos de prueba 7 y 17 (aprox. 150 PSI). La presión del puerto de prueba 17 debería ser mayor que el puerto 7. NOTA: Antes de ejecutar el paso 2, caliente el sistema hidráulico de forma que el motor del enfriador de aceite haya pasado por un ciclo a lo menos. 2. Con los cables del solenoide reconectados para pilotear la válvula de presión (PPV), echar a andar que las bombas y luego de 10 segundos, con PPV energizados, observar la presión en puerto experimental 17. Ajustar la válvula de seguridad en la estación 6 según se requiera para ver: 1000 ± 10 PSI. Los ajustes están orientados a la pared, al frente del solenoide eléctrico. 3. Registre la presión en el puerto de prueba 7 (aproximadamente 150 PSI). REVISIÓN DE LA VÁLVULA DE HABILITACIÓN DE PROPULSIÓN Y DE SELECCIÓN DE VELOCIDAD BAJA 1. Con el switch selector de perforación/propulsión en PROPULSIÓN NORMAL, en propulsión a bordo, con un manómetro de 1.500 PSI en los puertos de prueba 8 y 18, arranque las bombas y presione el botón ON de perforación/propulsión. Registre las presiones en los puertos de prueba 8 y 18. El puerto de prueba 18 debería obtener lo mismo que las presiones obtenidas en el paso 2 de la REVISIÓN DE LA PRESIÓN DE CONTROL. La lectura del puerto 8 debería ser cero (0). 2. Con la bomba aún corriendo, primero levante un joystick de propulsión fuera de la posición RETENCIÓN y luego suéltela. Haga lo mismo con el otro joystick. NOTA: No es necesario mover el joystick fuera de la posición neutral. Solamente levante el embrague del joystick hacia arriba para engranar la válvula solenoide de activación de propulsión (vap). Al ejecutar el paso 2 motivará que la VAP se energize, lo cual causaría que la presión vaya desde 650 PSI hasta 0 en el puerto de prueba 18 y en el puerto de prueba 8, iría desde 0 hasta 650 PSI. 3. Con un manómetro en el puerto de prueba 9 y las bombas corriendo, gire el Switch Selector de Propulsión a la velocidad LENTA y registre la presión. 4. La presión en el paso 3 deberían ser de 1000 ± 10 PSI. 5. Con el selector de propulsión en NORMAL, registre la presión en el puerto de prueba 9 (Se debería leer cero).
  • 324.
    5-106 Procedimientos de ServicioSección MD6640 Perforadora Electrica Para Pozos De Tronadura REVISIÓN DEL CILINDRO DE LOS GATOS EN MODALIDAD MANUAL NOTA: Por ningún motivo se debe permitir el ajuste de la válvula de 3 carretes ni de la válvula de alivio hasta el final. La válvula de carrete está ubicada en la pared trasera de la sala de máquinas, hacia la izquierda del tanque hidráulico y ligeramente bajo la parte superior del tanque. La válvula principal de alivio está cerca del puerto de entrada. 1. Con un manómetro de 7.500 PSI en el puerto de prueba 16 y las bombas corriendo, energize la nivelación automática en la modalidad RECOGER. Con todos los cilindros totalmente retraídos, ajuste el alivio de la válvula de 3 carretes a 3.300 PSI exactos en el manómetro. 2. Revise la operación de todos los gatos con el movimiento de la palanca manual (ej. moviendo el control del gato delantero derecho a EXTENDER, se extiende el gato delantero derecho. Revise ambas direcciones con los cuatro gatos). NOTA: REVISE EL NIVEL DE ACEITE HIDRÁULICO Y RELLENE SI ES NECESARIO. NOTA: Ajuste los controles de flujo de acuerdo a la revisión de control de flujo, antes de continuar con el paso 3. 3. Devuelva el ajuste de la válvula de alivio 1/8 de vuelta y luego apriete la tuerca de cierre. 4. Instale un manómetro de 1.500 PSI en el puerto de prueba 70, ubicado a la entrada de la de la válvula de contrapresión, debajo y ligeramente a la izquierda (atrás) de la válvula de tres carretes. 5. Con el gato delantero derecho extendiéndose manualmente desde la posición RECOGER totalmente, ajuste el alivio de la contrapresión lo necesario para ver 400 PSI. 6. Con el paso 5 completado, instale un manómetro de 7.500 PSI en el puerto de prueba 16 y con el gato delantero derecho extendiéndose desde la posición RECOGER totalmente, hacia el suelo, ajuste la válvula de alivio ubicada a la entrada de la válvula de carrete del gato, en el estante de los gatos. Ajuste hasta ver 3.200 PSI. NOTA: NO LLEVE ELAJUSTE HASTAEL FINAL DE NINGUNAVÁLVULADEALIVIO. 7. Revise la operación de todos los gatos con el movimiento de la palanca manual. 8. Instale todas las zapatas de los gatos.
  • 325.
    5-107 Procedimientos de ServicioSección MD6640 Perforadora Electrica Para Pozos De Tronadura REVISIÓN DEL CONTROL DE FLUJO 1. Quite la manguera más cercana a la pared desde el 3er. control de flujo (contando de derecha a izquierda) en el estante de las válvulas de los gatos e instale un tapón de acero -10 ORS en la manguera abierta. 2. Instale un medidor de flujo Headland de 20 GPM #700-020 (lado de entrada) en el puerto abierto del control de flujo. 3. Desconecte la manguera que viene desde la válvula de carrete al 7º control de flujo. Instale un tapón de acero -10 ORS en el puerto abierto del control de flujo. 4. Conecte el lado de salida del medidor de flujo a la manguera recién removida desde el 7º control de flujo. 5. Con bombas corriendo y con la ayuda de un ayudante, energice gata trasera izquierda, en cualquier modo LEVANTADO o DETENIDO, para mostrar flujo en el metro. Ajuste regulador de flujo, según se requiera. Coloque todos los 8 controles de flujo a 15 GPM para máquinas de 60 Hz así como para las de máquinas 50 Hz funcionando a una velocidad de entrada de 3,000 RPM. Todas las otras máquinas de 50 Hz deben ser ajustadas a 12.5 GPM. 6. Después que se ha probado el primer regulador de flujo, sustituya los restantes reguladores sin probar dentro de la 3ª posición hasta que los ocho reguladores de flujo hayan sido revisados. Todos los reguladores de flujo DEBEN terminar en su posición apropiada cuando se complete la prueba. NOTA: Durante la calibración de los controles de flujo, así como cada vez que se estén operando los gatos en la modalidad nivelación manual o automática, los controles de flujo no debieran manifestar ningún ruido de traqueteo o chillido. 7. Con el paso 6 completado, reinstale las mangueras en los puertos apropiados. 8. Ahora complete la REVISIÓN DEL CILINDRO DE LOS GATOS EN MODALIDAD MANUAL, comenzando con el paso 3.
  • 326.
    5-108 Procedimientos de ServicioSección MD6640 Perforadora Electrica Para Pozos De Tronadura
  • 327.
    5-109 Procedimientos de ServicioSección MD6640 Perforadora Electrica Para Pozos De Tronadura PRUEBA DE DERIVACIÓN DE CILINDROS DE LOS GATOS NOTA: Lea los pasos 1 hasta el 5 de esta prueba antes de continuar. 1. Baje todos los gatos al piso de manera que las zapatas de los gatos queden firmemente en el suelo pero sin levantar la máquina. NOTA: Si en los pasos 2 y 3 las orugas no están montadas y la máquina está descansando sobre bloques, solo levante la máquina unas cuantas pulgadas. 2. Extienda manualmente los gatos delanteros izquierdo y derecho simultáneamente para elevar la parte frontal de la máquina. 3. Extienda manualmente los gatos traseros izquierdo y derecho simultáneamente para elevar la parte trasera de la máquina. 4. Continúe el levante de la máquina alternando la parte delantera y trasera hasta que las cadenas de oruga se hayan elevado del suelo por 3 o más pulgadas. Si las orugas no están montadas, levante la máquina aproximadamente 6 pulgadas fuera de los bloques. 5. Con la máquina aproximadamente nivelada, posicione todos los controles manuales de los gatos en NEUTRO y revise la derivación de los cilindros de los gatos. La derivación o desviación no debería exceder 1/8” en 30 minutos. REVISIÓN DE PRESIÓN DE ALIVIO DEL FRENO NOTA: Las orugas deben ser montadas a la estructura principal para esta prueba. 1. Con manómetros de 0 - 1.500 PSI en los puertos de prueba 5 y 6 y con la bomba corriendo, la presión debería ser cercana a cero con las manos fuera de los joysticks de propulsión y con el switch selector perforación/propulsión en la modalidad PROPULSIÓN NORMAL. 2. Con las bombas aún corriendo, primero levante un joystick de propulsión y luego suéltelo, luego levante y suelte los otros joysticks de propulsión. En cualquier momento, si cualquiera o ambos joysticks son totalmente levantados hacia arriba, fuera de la posición RETENCIÓN, la válvula de activación de propulsión (VAP) se energizará y la presión en los puertos de prueba 5 y 6 debería ser igual a la presión obtenida en el paso 2 de REVISIÓN DE CONTROL DE PRESIÓN. 3. Con el selector de perforación/propulsión girado a la modalidad PERFORAR, la presión en los puertos de prueba 5 y 6 debería ser cero, independiente de dónde estén los joysticks, en o fuera de la posición RETENCIÓN.
  • 328.
    5-110 Procedimientos de ServicioSección MD6640 Perforadora Electrica Para Pozos De Tronadura REVISIÓN ALIVIO DE EMERGENCIA DE FRENO DE PROPULSIÓN NOTA: Esta prueba debe ser realizada con la bomba apagada. 1. Con manómetros de 0 - 1.500 PSI en los puertos de prueba 5 y 6, la palanca de la válvula de derivación (ubicada en la superficie del lado izquierdo del alojamiento del gato frontal izquierdo) girada totalmente hacia la derecha y con la válvula de derivación de la bomba manual CERRADO, opere manualmente la bomba manual para elevar presión en el manómetro hasta que en el monitor de la pantalla de exhibición del operador se muestre: FRENO DE PROPULSIÓN DE REMOLQUEALIVIADO. Registre la presión que motiva que aparezca la lectura en el monitor de la pantalla de exhibición del operador. (La presión debería ser de 500 PSI). 2. Con el paso 1 completado, continúe operando la bomba hasta que el manómetro muestre 1.000 PSI. Registre la cantidad de caída de presión en 5 minutos (no debería ser más de 500 PSI). NOTA: Las presiones de los pasos 1 y 2 deberían aparecer también en los manómetros de los puertos de prueba 5 y 6. REVISIÓN DE LA PRESIÓN DE ALIVIO PRINCIPAL DE LABOMBA PROPULSIÓN NOTA: Las orugas deben estar montadas y no debería haber movimiento de las orugas durante esta prueba. Las válvulas de alivio principal están en la parte superior de la bomba, cuando están montadas en la máquina. 1. Con la máquina aún elevada sobre los gatos y con un manómetro de 7.500 PSI en los puertos de prueba 1 y 2 y con un manómetro de 0 – 1.500 PSI en el puerto de prueba 59, desconecte la línea de alivio del freno de propulsión en los frenos y tape las mangueras con un tapón de sello con anillo “O”–6. Deje abierto el puerto en los frenos; no ponga tapas o tapone las conexiones. NOTA: Use una llaveAllen de 5 mm y una llave de extremo abierto de ¾” para ajustar las válvulas de alivio principal. 2. Con las bombas corriendo, energize la válvula de activación de propulsión (VAP). Verifique la presencia de 600 PSI en el puerto de prueba 59. Opere el control de la oruga izquierda en la dirección ADELANTE, presionando manualmente la bobina PLV-FWD. Ajuste lo necesario el alivio para ver 4.500 PSI en el manómetro del puerto de prueba 1. 3. Mantenga el paso 1. Ponga el control de la oruga izquierda en la dirección MARCHAATRÁS presionando manualmente la bobina PLV-REV. Ajuste lo necesario la presión para ver 4.500 PSI en el manómetro del puerto de prueba 2.
  • 329.
    5-111 Procedimientos de ServicioSección MD6640 Perforadora Electrica Para Pozos De Tronadura 4. Con la máquina aún elevada sobre los gatos y con un manómetro de 7.500 PSI en los puertos de prueba 3 y 4, revise las presiones de alivio principal en la bomba de la oruga derecha. 5. Con las bombas corriendo, opere el control de la oruga derecha en la dirección ADELANTE, presionando manualmente la bobina PLV-FWD.Ajuste la válvula de alivio principal lo necesario para ver 4.500 PSI en el manómetro del puerto de prueba 4. 6. Repita el paso 5 pero ponga el control de la oruga derecha en la dirección MARCHAATRÁS presionando manualmente la bobina PLV-REV. Ajuste lo necesario la presión para ver 4.500 PSI en el manómetro del puerto de prueba 3. 7. Reconecte las mangueras de alivio del freno de propulsión desconectadas en el paso 1. 8. Desactive la válvula de activación de propulsión (VAP). REVISIÓN DE LA FUNCIÓN DE LAS ORUGAS NOTA: Revise que las cajas de las orugas hayan sido llenadas con 7 litros de aceite 80w-90w. 1. Con el selector de propulsión en VELOCIDAD BAJA, revise la función de la oruga izquierda enADELANTE y MARCHAATRÁS. Registre el tiempo para 3 revoluciones de la rueda dentada de la oruga: 60 HZ debería dar 3 revoluciones en 56 segundos. 50 HZ debería dar 3 revoluciones en 75 segundos. 2. Repita el paso 1 con el selector de propulsión en VELOCIDAD NORMAL. Registre el tiempo para 10 revoluciones de la rueda dentada de las orugas: 60 HZ debería dar 10 revoluciones en 67 segundos. 50 HZ debería dar 10 revoluciones en 80 segundos. 3. Repita el paso 1 para la oruga derecha. 4. Repita el paso 2 para la oruga derecha.
  • 330.
    5-112 Procedimientos de ServicioSección MD6640 Perforadora Electrica Para Pozos De Tronadura REVISIÓN DE LA COMPUERTA PARA VER LA BROCA Revise la función de la compuerta para ver la broca con el switch en la cabina del operador. La compuerta debería abrir y cerrar suavemente sin acciones de traqueteo. REVISIÓN DE LA ESCALERA DE ACCESO Revise la función de la escalera de acceso con el switch en la cabina del operador. La escalera de acceso debería abrir y cerrar suavemente sin acciones de traqueteo REVISIÓN DE LAVÁLVULADE FLUJO PRINCIPAL 1. Con un manómetro de 0 - 1.500 PSI en el puerto de prueba 26 y con la bomba corriendo, ajuste el alivio de la contrapresión hasta ver 300 PSI. 2. Con un manómetro de 0 - 1.500 PSI en el puerto de prueba 23 y con la bomba corriendo y todas las válvulas desenergizadas, registre la presión observada. 3. Con un manómetro de 0 - 7.500 PSI en el puerto de prueba 23 y con un manómetro de 0 – 1.500 PSI en el puerto de prueba 26, arranque la bomba y energize la válvula de flujo principal (VFP) vía función de prueba hidráulica. Ajuste la válvula de alivio de la válvula intercalada central en la estación 1 para ver 3.000 PSI en el puerto de prueba 23. Registre la presión en los puertos 23 y 26. REVISIÓN DE LAS LLAVES DE DESENROSCAR Y DE HERRAMIENTAS Revise la función de las llaves de desenroscar y la llave de herramienta con los switches en la cabina del operador. CILINDROS DE LA CORTINA CONTRA POLVO 1. Revise la función con las posiciones del switch. NOTA: Después de 3 a 5 ciclos, la operación debería ser suave, sin sacudidas ni rechinar. 2. Ajuste la detención de las puertas.
  • 331.
    5-113 Procedimientos de ServicioSección MD6640 Perforadora Electrica Para Pozos De Tronadura DESLIZADERA DEL SELLO DE POLVO Opérela hacia delante y atrás para revisar su función. Registre la presión observada en el puerto de prueba 24 en un manómetro de 0 – 7.500 PSI. CIERRE DEL MÁSTIL 1. Con un manómetro de 0 – 7.500 PSI en el puerto de prueba 21, energize el solenoide del pestillo de cierre del mástil y revise su función. 2. Ajuste el alivio lo necesario para ver 1.000 PSI. NOTA: El ajuste es en dirección opuesta a la pared izquierda. 3. Con el manómetro aún en puerto de prueba 21, energize el solenoide para desactivar el pestillo de cierre del mástil. La presión observada debería ser de 3.000 PSI. 4. Repita los pasos 1 y 2 pero con un manómetro de 0 – 1.500 PSI en el puerto de prueba 21. CILINDROS DE CIERRE TIRANTES DEL MÁSTIL 1. Con un manómetro de 0 – 7.500 PSI en el puerto de prueba 23, energize el solenoide de cierre de los tirantes del mástil (VCTM) y revise su función. 2. Ajuste el alivio lo necesario para ver 1.000 PSI mientras el cierre de los tirantes del mástil (VCTM) está energizado. 3. Energize el solenoide para desactivar el cierre de los tirantes del mástil (VCTM). La presión observada debería ser de 3.000 PSI. 4. Repita los pasos 1 y 2 pero con un manómetro de 0 – 1.500 PSI en el puerto de prueba 23. CILINDROS DE CIERRE DE ESTRUCTURA “A” NOTA: Esta prueba no se debería realizar a no ser que el mástil esté totalmente arriba o salvo que el mástil esté fuera de la máquina. Los pasadores de los cilindros de cierre del mástil deben ser extendidos antes de realizar esta prueba.
  • 332.
    5-114 Procedimientos de ServicioSección MD6640 Perforadora Electrica Para Pozos De Tronadura 1. Con un manómetro de 0 – 7.500 PSI en el puerto de prueba 22, energize el solenoide de cierre de la estructura “A” (VCEA) y revise su función. 2. Ajuste el alivio lo necesario para ver 1.000 PSI. El ajuste es en dirección opuesta a la pared izquierda. 3. Energize el solenoide para desactivar el cierre de la estructura “A” (VCEA). La presión observada en el puerto de prueba 22 debería ser de 3.000 PSI. 4. Repita los pasos 1 y 2 pero con un manómetro de 0 – 1.500 PSI en el puerto de prueba 22. REVISIÓN PRESIÓN CONSTANTE DE CIERRE DEL MÁSTIL 1. Con un manómetro de 0 – 1.500 PSI en el puerto de prueba 61, arranque la bomba. 2. Gire el switch de cierre del mástil a la posición ABRIR y luego retorne el switch a NEUTRAL. 3. Con el switch en NEUTRAL, la presión en el puerto de prueba 61 debería ser 0. 4. Gire el switch de cierre del mástil a la posición CERRAR y luego retorne el switch a NEUTRAL. 5. Con el switch en NEUTRAL, la presión en el puerto de prueba 61 debería ser la misma que las presiones obtenidas en el paso 2 de REVISIÓN DE LA PRESIÓN DE CONTROL. REVISIÓN PRESIÓN CONSTANTE TIRANTES DEL MÁSTIL 1. Con un manómetro de 0 – 1.500 PSI en el puerto de prueba 60, arranque la bomba. 2. Gire el switch de los tirantes del mástil a la posición ABRIR y luego retorne el switch a NEUTRAL. 3. Con el switch en NEUTRAL, la presión en el puerto de prueba 60 debería ser 0. 4. Gire el switch de los tirantes del mástil a la posición CERRAR y luego retorne el switch a NEUTRAL. 5. Con el switch en NEUTRAL, la presión en el puerto de prueba 60 debería ser la misma que las presiones obtenidas en el paso 2 de REVISIÓN DE LA PRESIÓN DE CONTROL.
  • 333.
    5-115 Procedimientos de ServicioSección MD6640 Perforadora Electrica Para Pozos De Tronadura REVISIÓN PRESIÓN CONSTANTE ESTRUCTURA “A” 1. Con un manómetro de 0 – 1.500 PSI en el puerto de prueba 65, arranque la bomba. 2. Gire el switch de cierre de la estructura “A” a la posición ABRIR y luego retorne el switch a NEUTRAL. 3. Con el switch en NEUTRAL, la presión en el puerto de prueba 65 debería ser 600 PSI. 4. Gire el switch de cierre de la estructura “A” a la posición CERRAR y luego retorne el switch a NEUTRAL. 5. Con el switch en NEUTRAL, la presión en el puerto de prueba 65 debería ser la misma que las presiones obtenidas en el paso 2 de REVISIÓN DE LA PRESIÓN DE CONTROL. SUBIR/BAJAR MÁSTIL NOTA: Este ajuste limita la velocidad máxima de bajada del mástil. 1. Con las bombas apagadas, ajuste el Control de Flujo de Levante ubicado bajo la plataforma justo adelante del tubo de torque trasero. Suelte los tornillos de ajuste y gire el ajuste totalmente. 2. Con el paso 1 completado, devuelva el ajuste 6 vueltas completas y apriete los tornillos de ajuste. 3. Instale un manómetro de 0 – 7.500 PSI en el puerto de prueba 16 y proceda de la siguiente manera: a. Si el mástil no está montado en la máquina, posicione el selector mástil/winche en LEVANTAR MÁSTIL y opere el switch maestro en la modalidad SUBIR MÁSTIL. Si los cilindros están conectados, ambos vástagos del cilindro se deberían extender. b. Cuando los vástagos se han extendido totalmente, la lectura del manómetro debería ser 2.500 PSI. c. Con el switch maestro en la modalidad BAJAR, los cilindros se retraerán. La lectura del manómetro debería ser entonces 2.500 PSI. d. Si los cilindros del mástil no están montados, la presión en los pasos 3b y 3c será vista casi tan pronto como el switch maestro sea movido desde NEUTRAL.
  • 334.
    5-116 Procedimientos de ServicioSección MD6640 Perforadora Electrica Para Pozos De Tronadura NOTA: El paso 3 debe hacerse con los gatos instalados firmemente en el suelo. e. Si el mástil está montado, revise cuidadosamente la función, levantando el mástil 6 a 12 pulgadas fuera del bastidor mientras observa la presión en el manómetro de 0 – 7.500 PSI en el puerto de prueba 16. Si se necesita más de 2.500 PSI para elevar el mástil desde el bastidor, ajuste el alivio del puerto en el lado de levante lo que sea necesario. f. Con el paso 3e completado, posicione cuidadosamente el switch maestro a la modalidad BAJAR y observe lentamente la aptitud del control. g. Levante el mástil hasta quedar vertical (con la plataforma nivelada y sobre los gatos). h. Con un manómetro de 0 – 7.500 PSI en el puerto de prueba 16, observe la presión requerida para sacar el mástil fuera de la vertical. Ajuste el alivio del puerto de la modalidad bajar lo necesario para generar suficiente presión. i. Con el manómetro de 0 – 7.500 PSI aún en el puerto de prueba 16, con el mástil en la posición vertical y con los pasadores de los tirantes del mástil y de cierre del mástil empotrados, opere el levante del mástil en subida y bajada para ajustar las válvulas de alivio del puerto a 200 PSI superior a las presiones observadas en los pasos e y h respectivamente. NOTA: Un método alternativo para realizar el paso 31, es desconectar las mangueras en ambos cilindros de levante del mástil y luego tapar las mangueras con tapones de acero ors. Con las mangueras tapadas, arranque la bomba y opere el levante del mástil en la modalidad subida y bajada para ajustar el alivio de los puertos a 200 psi superior a las observadas en 3e y 3h respectivamente. Cuando los alivios están ajustados, reconecte las mangueras y revise la función de levante del mástil.
  • 335.
    5-117 Procedimientos de ServicioSección MD6640 Perforadora Electrica Para Pozos De Tronadura WINCHEAUXILIAR Con un manómetro de 0 – 7.500 PSI en el puerto de prueba 16, proceda de la siguiente manera: NOTA: Si el mástil no está montado, vaya al paso 4. 1. Con el mástil montado y en el bastidor (totalmente abajo), opere el winche sin cable en el tambor para revisar la función en comparación con la posición del switch maestro. 2. Revise la aptitud para que arranque suavemente en las modalidades SUBIR y BAJAR. 3. Revise las RPM del tambor en las modalidades SUBIR y BAJAR y regístrelas. Las velocidades del tambor deberían ser: de: 10 revoluciones en 17 segundos (36 RPM). 4. Si el mástil no está montado, ajuste el alivio del puerto de forma que el manómetro de presión muestre 3.000 PSI en la posición SUBIR cuando mueva el switch maestro fuera de NEUTRAL. Al mover la palanca de levante totalmente a la posición BAJAR, se mostrará 3.000 PSI en el manómetro. NOTA: Si el mástil está montado, el ajuste de alivio del puerto puede ser observado primero desactivando eléctricamente la válvula de control de activación del winche (vcaw) y luego proceder según el paso 4. REVISIÓN PRESIÓNACCIONAMIENTO LUBRICACIÓN DE CENTRAL HIDRÁULICA NOTA: Los pasos 1 hasta 3 aplican solamente para el sistema de lubricación lincoln con bomba de lubricación lincoln. 1. Con las bombas corriendo, energizar la válvula solenoide Habilitadora de lubricación (LEV). 2. Ajuste la presión en la válvula fijada al distribuidor de la bomba de lubricación, reduciendo lo necesario para ver 450 PSI en el manómetro fijado al distribuidor. 3. Con Válvula de Lubricante Habilitada (LEV) energizada y las bombas corriendo, observar que la bomba de lubricante esté funcionando. NOTA: Si la grasa no es bombeada durante la prueba, entonces no lleve adelante la prueba del paso 3 más de lo necesario que para ver que la bomba esté trabajando. NOTA: No deben haber fugas externas de aceite hidráulico durante la prueba.
  • 336.
    5-118 Procedimientos de ServicioSección MD6640 Perforadora Electrica Para Pozos De Tronadura CHEQUEO DE FUNCIÓN DEL GUARDA DE LA VENTANA - OPCIÓN PRECAUCION: Antes de comenzar la prueba, asegúrese que no hay nada situado sobre la protección de ventana que pudiera caer causando lesiones al personal o daños a la máquina. Mantenga al personal lejos del área de la protección de ventana durante la prueba. 1. Con un manómetro de 0 – 1.500 PSI en el puerto de prueba 75 y con la Válvula de Protección de Ventana (VPV) desenergizada, energize la Válvula de Aumento de Flujo Principal (VFP) mediante la función de prueba hidráulica en el terminal de la pantalla de exhibición del operador. 2. Ajuste la presión reduciendo la válvula (la misma válvula fijada al puerto de prueba 75) hasta ver 900 PSI. 3. Desenergize la Válvula deAumento de Flujo Principal (VFP) y energize la Válvula de Protección de Ventana (VPV) para revisar la función. Después de 3 o 4 ciclos la protección de ventana debería funcionar suavemente sin rechinar.
  • 337.
    5-119 Procedimientos de ServicioSección MD6640 Perforadora Electrica Para Pozos De Tronadura REVISIÓN DE LOS GATOS EN LAMODALIDAD NIVELACIÓNAUTOMÁTICA 1. Posicione manualmente todos los gatos de modo que queden a mitad de camino entre el suelo y totalmente arriba. 2. Posicione el switch de autonivelación en la modalidad RECOGER y observe que los cuatro gatos se recogen simultáneamente. 3. Mantenga el paso 2 hasta que los gatos queden totalmente arriba, en dicho momento, la pantalla del terminal de exhibición del operador MOSTRARÁ QUE LOS GATOS ESTÁN TOTALMENTE ARRIBA y que cada uno de los solenoides de recoger en el distribuidor de control de las válvulas de los gatos, se han apagado. La Válvula de Carga de los Gatos (VCG) permanecerá energizada tanto como la posición del switch se mantenga en RECOGER. Cuando el switch de autonivelación se retorna a NEUTRAL, el solenoide de la válvula (VCG) se apagará. 4. Con todos los gatos totalmente extraídos, posicione el switch de autonivelación hacia extender y observe que los cuatro gatos se extienden simultáneamente. No extienda los gatos totalmente hasta el suelo. NOTA: Si las orugas no están montadas, tenga extremo cuidado durante el paso 5 hasta el paso 6. 5. Con los pasos 3 y 4 completados, active hacia abajo cada gato individualmente y manualmente revise que el switch de presión al suelo se activa y es mostrado en el terminal de exhibición de la pantalla del operador. 6. Con el paso 5 completado, repita los pasos 2 y 3. 7. Con el paso 6 completado, posicione el switch de autonivelación hacia EXTENDER y observe las siguientes acciones de autonivelación, mientras mantiene la posición del switch: a. Empezando desde totalmente recogido hacia extender, todos los cilindros se extenderán al mismo tiempo. b. Cuando cada zapata del cilindro es bajada lo suficiente como para generar presión en el suelo, detendrá su movimiento, hasta que las indicaciones de presión en el suelo de los cuatro cilindros son mostradas en el terminal de exhibición del operador. c. Si la máquina está desnivelada, se nivelará así misma (primero lado a lado, luego adelante y atrás). d. La máquina se levantará recto hacia arriba y nivelada en las cuatro patas.
  • 338.
    5-120 Procedimientos de ServicioSección MD6640 Perforadora Electrica Para Pozos De Tronadura NOTA: El Paso 5, El Paso 6 y El Paso 7 deben hacerse con extremo cuidado si las orugas no están montadas en la máquina. 8. Con el paso 7 completado, posicione el switch de autonivelación hacia RECOGER para revisar la función. NOTA: Si las orugas están montadas, el paso 8 no se debería realizar a no ser que al menos un observador esté presente en la parte externa de la máquina. REVISIÓN DE LA POSICIÓN DE PORTABARRAS Con un manómetro de 0 – 7.500 PSI en el puerto de prueba 16, con los switches selectores de la cabina del operador ajustados en la modalidad PERFORAR y en PORTABARRAS/UNIONES, proceda de la siguiente manera: 1. Levante el joystick izquierdo fuera de su detención, sin dejar la posición NEUTRAL, hasta que haya pasado un segundo. NOTA: El paso 1 tiene como intención permitir suficiente tiempo para que el pasador de cierre del portabarras se desacople del bastidor, antes de que el bastidor le sea permitido moverse. 2. Con el paso 1 completado, mueva el joystick en su carrera total, primero en una dirección y luego en la otra. La presión debería incrementarse suavemente con el incremento del movimiento de la palanca. La presión debería ser de 2.500 PSI al final de la carrera en la posición ALMACENAR. Ajuste el alivio del puerto lo que sea necesario. La presión debería ser de 3.200 a 3.300 PSI al final de la carrera en la posición SOBRE EL POZO. 3. Reconfirme con el selector girado hacia las cuatro posiciones. AJUSTES DE ALIVIO DE PUERTO DE CIERRE DE PORTABARRAS Y CILINDRO DE LA COMPUERTA Con el mástil en posición vertical, fije un manómetro de 1.500 PSI al puerto de prueba 52. Con las bombas corriendo, ajuste la válvula de alivio lo necesario para ver 600 PSI en la estación 3 de la válvula de 8 estaciones ubicada directamente sobre el winche auxiliar.
  • 339.
    5-121 Procedimientos de ServicioSección MD6640 Perforadora Electrica Para Pozos De Tronadura REVISIÓN DE LUBRICADOR HILOS DE LA BARRA NOTA: La estación 1 del distribuidor de 4 estaciones, está ubicado en la pared del lado derecho de la sala de máquinas. 1. Con las bombas que funcionan y la Pantalla de la sincronización de la Lubricación demostrando en el terminal de exhibición del operador, presione F7 para energizar el solenoide de la Válvula del Lubricador del Hilo de rosca de Pipa (PTLV). 2. Con el paso 1 completo, ajustar reduciendo la válvula en la asamblea de la bomba de lubricación a 450 PSI en el gauge localizado en la Bomba de grasa. 3. Con el paso 2 completado, presione F7 nuevamente para desenergizar el solenoide de (VLHB). PRECAUCION: Aconsejar al personal a mantenerse lejos de la descarga de grasa durante testeo o ajustes. 4. Con las bombas hidráulicas corriendo, presione F8 en el terminal de exhibición del operador para energizar la Bomba de Lubricación de los Hilos de las Barras y observe la operación de la bomba. NOTA: La bomba será calibrada en un tiempo cualquiera entre 1 y 10 segundos con una calibración inicial ajustada a 2 segundos. La calibración de tiempo se ajusta en la pantalla de regulación de tiempo en el terminal de exhibición del operador. REVISIÓN DE LA FUNCIÓN DEL POSICIONADOR DE BARRAS Revise la función de la siguiente manera: 1. Al posicionar el switch en SOBRE EL POZO, la mordaza permanece abierta hasta que los cilindros de posición quedan totalmente retraídos, después de dicho tiempo las mordazas deberían cerrase. NOTA: La mordaza no debe cerrar hasta después que los cilindros de posición queden totalmente retraídos. 2. Al posicionar el switch enALMACENAR (ej. moviéndose fuera de Sobre el Pozo), la mordaza primero se debe abrir, luego los cilindros de posición extenderán la mordaza fuera de la barra de perforación a la posición ALMACENADO. NOTA: Los cilindros de posición no se deben mover hasta que la mordaza esté totalmente abierta.
  • 340.
    5-122 Procedimientos de ServicioSección MD6640 Perforadora Electrica Para Pozos De Tronadura REVISIÓN DE FUNCIÓN GUÍA CENTRAL 1. Sujetar un buje un calibre 7,500 PSI testeo el puerto 55. 2. Activar el interruptor de guía central a la posición SOBRE-EL-HOYO. 3. Observe la presión en el puerto 55. 4. Los cilindros de la posición deberían nivelarse en contra del mástil y la abrazadera de cilindro debería cerrar una vez a 2000 PSI es alcanzado en el puerto experimental 55. Ajustar la válvula de secuencia para obtener acerca de 2000 PSI en puerto experimental 55 - el carrete inferior en la estación 1. 5. Active el interruptor de guía central a la posición GUARDAR. La abrazadera debería comenzar a abrirse y el cilindro posicionador sólo debería comenzar a replegarse una vez que la abrazadera esté completamente abierta y 2000 PSI es visto en el puerto experimental 55. Ajuste la válvula de secuencia si es requerido para obtener cerca de 2000 PSI en el puerto experimental 55 - el segundo carrete en la estación 1. 6. Repetir la operación del guía central para asegurar que la secuencia de operación es correcta y repetible. Reajuste válvulas de secuencia en el paso 4 o 5 según se requiera.
  • 341.
    5-123 Procedimientos de ServicioSección MD6640 Perforadora Electrica Para Pozos De Tronadura REVISIÓN DE LA LLAVE AUTOMÁTICA DE DESENROSCAR 1. Adherir un gauge de calibre 0-3000 PSI para testear el puerto 55 en dos estaciones de válvula localizadas lateralmente al mástil. 2. Retractar la llave de ruptura completamente. 3. Verificar que 3000 PSI estén en el puerto experimental 55. Activar el interruptor automático de la llave de ruptura para EXTENDER y después RETRACTAR para chequear la función correcta. Refiérase a la documentación del fabricante de equipo original (OEM) para el ajuste de secuencia de la válvula. CONTROL DE POLVO MANTENCIÓN GENERAL El sistema de control de polvo en la perforadora MD6640 consiste de la plataforma de perforación y de las cortinas contra polvo, las cuales atrapan el detritus y el polvo en un área bajo la máquina. Están disponibles dos métodos de control de atrapar el polvo: inyección de agua la cual humedece el polvo antes de abandonar el pozo de perforación y un sistema tipo-seco el cual arrastra el aire cargado de polvo a través de elementos de filtro, los cuales separan el polvo del aire. PLATAFORMA DE PERFORACIÓN Y CORTINAS DE POLVO Inspeccione diariamente las cortinas contra polvo por rasgaduras u otros daños. Reemplace las cortinas gastadas o dañadas. Revise si los cables de levante de las cortinas están rotos o deshilachados. Reemplace los cables rotos o dañados. Revise si el sello del deflector de polvo, el cual se fija alrededor de la barra de perforación, está dañado. Reemplácelo si está dañado. Revise la apropiada operación del mecanismo de la palanca de levantar las cortinas. Lubrique todos los pasadores una vez a la semana. INYECCIÓN DE AGUA - OPCIÓN La mantención del sistema de inyección de agua consiste principalmente en mantener el tanque de agua lleno de agua limpia, revisando semanalmente de que la bomba y válvulas estén operando correctamente y que todas las mangueras y conexiones no tengan fugas.
  • 342.
    5-124 Procedimientos de ServicioSección MD6640 Perforadora Electrica Para Pozos De Tronadura OPERACIÓN Con el switch de modalidad operativa en la posición PERFORAR, el compresor principal operando y la válvula de mariposa abierta, gire el switch Sistema de Inyección de Agua (SIA) en la consola del operador a la posición ON. La válvula solenoide Control de Velocidad Bomba deAgua (VCVBA) se abrirá permitiendo fluido hidráulico hacia el motor de accionamiento de la bomba de agua. Al mismo tiempo la válvula solenoide Control de Inyección de Agua (VCIA) abrirá la válvula de bola permitiendo al agua fluir desde el tanque a la bomba. Adicionalmente, las válvulas de bola se cerrarán. La cantidad de agua suministrada está gobernada por la velocidad del motor de la bomba. Moviendo el switch de Control de Velocidad deAgua (CVA) en la consola del operador, a la derecha, aumentará la cantidad de agua. Totalmente a la derecha, suministrará la máxima cantidad de agua. Debido a que el agua siempre está disponible en la admisión de la bomba, ésta comenzará a ser bombeada inmediatamente. El agua fluirá desde la bomba a través de una válvula de control de flujo de retorno al tanque. Una vez que la presión del agua aumenta sobre 30 PSI (presión de rotura de válvula de retención) y vence la presión de aire desde la línea de aire del mástil, el agua comenzará a fluir a la línea de aire del mástil. El agua continuará fluyendo hasta que el sistema de inyección de agua sea girado a OFF o la válvula principal de mariposa comience a cerrarse. Cuando el sistema de inyección de agua se corta por cualquiera razón, la válvula se cerrará y las válvulas se abrirán para drenar el sistema por gravedad. LLENADO DEL TANQUE DE AGUA La línea de llenado del tanque de agua incluye una válvula de detención tipo bola y un filtro tipo canastillo. Para llenar el tanque de agua, conecte la manguera de suministro de agua a la válvula de bola. Abra la válvula de bola y llene el tanque. Cuando el tanque está lleno, cierre la válvula de bola y desconecte la manguera de suministro de agua. Reabra la válvula de bola y permita que el agua en la línea de llenado y la tubería de alimentación del tanque se drenen. Mientras el agua es drenada, en su retorno lavará el filtro. NOTA: En climas de frío extremo se debe tener cuidado de que el filtro no se congele cuando el agua es drenada desde la línea de llenado y esté lavando el filtro. Si se debe remover el filtro para limpieza, proceda de la siguiente manera: 1. Suelte los dos pernos manuales en la tapa del filtro. 2. Mueva la tapa aun lado. El filtro de canastillo caerá fuera del alojamiento. 3. Limpie el filtro de canastillo y reinstale dentro del alojamiento. 4. Cierre la tapa y apriete los pernos manuales de la tapa.
  • 343.
    6-1 Frenos y AcoplamientosSección MD6640 Perforadora Electrica Para Pozos De Tronadura Sección 6 Frenos y Acoplamientos Recurra siempre a la información de seguridad de la Sección 1 de éste manual antes de iniciar todo proceso de mantención en esta máquina. Tabla de Contenidos INSTALACIÓN DE LAMAZADEL FRENO. ....................................................................................3 TABLA DE REQUISITOS DE AVANCE DE PRECALENTAMIENTO EN ADAPTADOR DE LA MAZA ......................................................................................................................................... 4 INSTALACIÓN DELACOPLAMIENTO DEL MOTOR. ...................................................................5 TABLA DE REQUISITOS DE AVANCE DE PRECALENTAMIENTO EN ACOPLAMIENTO DEL MOTOR ...................................................................................................................................... 6 ALINEACIÓN DELACOPLAMIENTO DEL MOTOR ................................................................6 DESALINEAMIENTO PARALELO .....................................................................................7 REVISIÓN DEL DESALINEAMIENTO PARALELO ..................................................................... 7 DESALINEAMIENTOANGULAR. .......................................................................................8 REVISIÓN DEL DESALINEAMIENTO ANGULAR ...................................................................... 8 EJEMPLO DE DESALINEAMIENTO PARALELO ....................................................................... 9 EJEMPLO DE DESALINEAMIENTO ANGULAR ......................................................................... 9 DESALINEAMIENTO COMBINADO. .....................................................................................10 EJEMPLO DE DESALINEAMIENTO COMBINADO ...................................................................10
  • 344.
    6-2 Frenos y AcoplamientosSección MD6640 Perforadora Electrica Para Pozos De Tronadura
  • 345.
    6-3 Frenos y AcoplamientosSección MD6640 Perforadora Electrica Para Pozos De Tronadura Sección 6 Frenos y Acoplamientos INSTALACIÓN DE LA MAZA DEL FRENO. La maza del freno se debe montar en caliente sobre los ejes cónicos del motor con el objeto de alcanzar la tracción y sujeción requeridas para los valores de torque involucrados. El procedimiento descrito mas abajo está encaminado a desarrollar la fuerza de fricción suficiente para transmitir el torque impuesto, sin dependencia de la cuña. Limpie y prepare el calibre y eje para quitar cualquier deformidad y materias extrañas. Monte la maza en frío sobre el eje y mida cuidadosamente la posición de la maza con respecto al eje. Mida desde el extremo del eje hasta el extremo de la maza. La medida obtenida en éste paso será usada mas adelante. Saque la maza y precaliéntela hasta que “la diferencia de temperatura estimada” haya sido alcanzada. Refiérase a la tabla de más adelante. Ejemplo: Si la temperatura del eje es = 25º C (77º F) y la diferencia de temperatura estimada entregada en la tabla es 100º C (180º F), la maza se debe calentar a 125º C (257º F) para ser montada. PRECAUCION: LA TEMPERATURA DE LA MAZA DEL FRENO NO DEBERÍA EXCEDER NUNCA DE 190º C (374º F) PARA SU INSTALACIÓN. PRECAUCION: LA TEMPERATURA DE LOS ELEMENTOS PRECALENTADOS A MENUDO ALCANZAN TEMPERATURAS QUE PUEDEN SER EXTREMADAMENTE PELIGROSAS PARA EL CUERPO HUMANO. TENGA EXTREMO CUIDADO Y SIEMPRE VISTA CON EL EQUIPO DE SEGURIDAD APROPIADO CUANDO TRABAJE CON COMPONENTES PRECALENTADOS Y ALREDEDOR DEL PROCESO. Antes de la instalación, limpie todo aceite tanto del eje como del calibre de la maza. Reinstale nuevamente la maza, ahora precalentada, sobre el eje y tenga cuidado de notar la cantidad de avance (movimiento hacia delante) dentro del eje que haya obtenido. Si la cantidad de avance no cae dentro de los límites mencionados en la tabla, será necesario sacar la maza y recalentarla a la temperatura especificada. EN CADAAPLICACIÓN SE DEBE ALCANZAR LA CANTIDAD DE AVANCEAPROPIADO. La fijación cónica entre las partes calibradas se deberá revisar durante el ensamblaje con Dykem o tinte azul, para asegurar un mínimo de 80% de contacto de apoyo.
  • 346.
    6-4 Frenos y AcoplamientosSección MD6640 Perforadora Electrica Para Pozos De Tronadura TABLA DE REQUISITOS DE AVANCE DE PRECALENTAMIENTO EN ADAPTADOR DE LA MAZA NOTA: ESTA TABLA HACE REFERENCIAA MAZAS O CUBOS DE FRENO SOLAMENTE. LOS DATOS DE AVANCE PARAACOPLAMIENTO DE MOTORES APARECEN EN UNATABLA SEPARADA, MÁS ADELANTE EN ESTASECCIÓN.
  • 347.
    6-5 Frenos y AcoplamientosSección MD6640 Perforadora Electrica Para Pozos De Tronadura INSTALACIÓN DEL ACOPLAMIENTO DEL MOTOR. Los acoplamientos de motor se deben montar en caliente sobre los ejes cónicos del motor con el objeto de transmitir los valores de torque involucrados, sin resbalamiento. El procedimiento descrito más abajo está encaminado a desarrollar la fuerza de fricción suficiente para transmitir el torque impuesto, sin dependencia de la cuña. Limpie y prepare el calibre y eje para quitar cualquier deformidad y materias extrañas. Monte el acoplamiento en frío sobre el eje y mida cuidadosamente la posición del acoplamiento con respecto al eje, cuidadosamente. Mida desde el extremo del acoplamiento hasta el extremo del eje. La medida obtenida en este paso será usada mas adelante. Saque el acoplamiento y precaliéntelo hasta que “la diferencia de temperatura estimada” haya sido alcanzada. Refiérase a la tabla de más adelante. Ejemplo: Si la temperatura del eje es = 25º C (77º F) y la diferencia de temperatura estimada entregada en la tabla es 100º C (180º F), el acoplamiento se debe calentar a 125º C (257º F) para ser montado. PRECAUCION: LA TEMPERATURA DEL PIÑÓN O ACOPLAMIENTO DEL FRENO NUNCA DEBERÍA EXCEDER LOS 190º C (374º F) PARA SU INSTALACIÓN. PRECAUCION: LA TEMPERATURA DE LOS ELEMENTOS PRECALENTADOS A MENUDO ALCANZAN TEMPERATURAS QUE PUEDEN SER EXTREMADAMENTE PELIGROSAS PARA EL CUERPO HUMANO. TENGA EXTREMO CUIDADO Y SIEMPRE VISTA CON EL EQUIPO DE SEGURIDAD APROPIADO CUANDO TRABAJE CON COMPONENTES PRECALENTADOS Y ALREDEDOR DEL PROCESO. Antes de la instalación, limpie todo aceite tanto del eje como del calibre del acoplamiento. Reinstale nuevamente la maza del acoplamiento, ahora precalentado, sobre el eje y tenga cuidado de notar la cantidad de avance (movimiento hacia delante) que haya obtenido dentro del eje. Si la cantidad de avance no cae dentro de los límites mencionados en la tabla, será necesario sacar el acoplamiento y recalentarlo a la temperatura especificada. EN CADA APLICACIÓN SE DEBE ALCANZAR LACANTIDAD DEAVANCEAPROPIADO. La fijación cónica entre las partes calibradas durante el ensamblaje se deberá revisar con Dykem o tinte azul para asegurar un mínimo de 80% de contacto de apoyo, mediante la comparación del marcaje obtenido durante la fijación inicial con la fijación real después del ensamblaje.
  • 348.
    6-6 Frenos y AcoplamientosSección MD6640 Perforadora Electrica Para Pozos De Tronadura TABLA DE REQUISITOS DE AVANCE DE PRECALENTAMIENTO EN ACOPLAMIENTO DEL MOTOR ALINEACIÓN DEL ACOPLAMIENTO DEL MOTOR La alineación final de las unidades de transmisión directa se hace moviendo o insertando lainas en la unidad de forma que el desalineamiento de la unidad y los ejes de transmisión queden entre las tolerancias requeridas, indicadas en los planos de disposición general recibidos con su máquina. El desalineamiento puede ser paralelo, angular o una combinación de ambos. El desalineamiento puede ocurrir tanto en el plano horizontal como en el vertical. Refiérase a las siguientes ilustraciones para inducir a los acoplamientos al máximos desalineamiento aceptable. El siguiente método de alineación de acoplamientos usa un indicador de dial. Las lecturas tomadas en un modelo de partes a 180º medirán el movimiento en un solo plano. Es importante rotar ambos ejes para evitar errores producto de las imperfecciones de las superficies del eje o del acoplamiento.
  • 349.
    6-7 Frenos y AcoplamientosSección MD6640 Perforadora Electrica Para Pozos De Tronadura DESALINEAMIENTO PARALELO REVISIÓN DEL DESALINEAMIENTO PARALELO 1. Monte el indicador en la maza del acoplamiento. 2. Tome lecturas en el plano horizontal en las posiciones a 90º y 270º en la maza mientras gira los ejes. 3. Corrija el desalineamiento paralelo en el plano horizontal variando la base hacia dentro y hacia fuera en distancias iguales. 4. Tome lecturas en el plano vertical en las posiciones a 0º y 180º. 5. Corrija el desalineamiento paralelo en el plano vertical agregando o quitando un espesor igual de lainas en cada base.
  • 350.
    6-8 Frenos y AcoplamientosSección MD6640 Perforadora Electrica Para Pozos De Tronadura DESALINEAMIENTO ANGULAR. REVISIÓN DEL DESALINEAMIENTO ANGULAR 1. Monte el indicador entre las mazas del acoplamiento. 2. Mida el espacio entre las mazas en las posiciones a 90º y 270º. 3. Desvíe la base externa hasta que las caras del acoplamiento queden paralelas en el plano horizontal. 4. Tome lecturas en el acoplamiento en las posiciones a 0º y 180º. 5. Suba o baje con lainas la base externa para lograr que las caras del acoplamiento queden paralelas en el plano vertical.
  • 351.
    6-9 Frenos y AcoplamientosSección MD6640 Perforadora Electrica Para Pozos De Tronadura EJEMPLO DE DESALINEAMIENTO PARALELO EJEMPLO DE DESALINEAMIENTO ANGULAR
  • 352.
    6-10 Frenos y AcoplamientosSección MD6640 Perforadora Electrica Para Pozos De Tronadura DESALINEAMIENTO COMBINADO. EJEMPLO DE DESALINEAMIENTO COMBINADO Esta condición se encuentra a menudo después de haber realizado reparaciones mayores a la máquina. Para remediar esta condición, resuelva el problema primero desde un aspecto (angular o paralelo). Cuando termine con uno, realice luego el procedimiento para el otro. Puede requerirse la duplicación de uno o ambos procesos.
  • 353.
    7-1 Sistema de AireComprimido Sección MD6640 Perforadora Electrica Para Pozos De Tronadura Sección 7 Sistema de Aire Comprimido Recurra siempre a la información de seguridad en la Sección 1 de éste manual antes de iniciar todo proceso de mantención sobre ésta máquina. Tabla de Contenidos COMPRESOR DEAIRE ................................................................................................................4 Componentes del Control Separador ........................................................................................... 5 FILTRO DE LA TOMA DE AIRE ...............................................................................................6 VÁLVULADE DRENAJE DEACEITE ......................................................................................7 CONTROL VARIABLE DE VOLUMEN - OPCIÓN ...................................................................7 MANTENIMIENTO DEL SEPARADOR ....................................................................................9 PROCESO DE AJUSTE DE HERRAJES DE LA CUBIERTA DEL SEPARADOR ..........10 COMPRESOR DE TORNILLOS GIRATORIOS.................................................................... 11 Ensamblaje del Terminal de Aire del Compresor ........................................................................ 11 SISTEMADEACEITE............................................................................................................13 INICIO Y MODO DE VENTILACION ......................................................................................13 MODO PERFORADOR ........................................................................................................14 OPCION DE VOLUMEN VARIABLE ......................................................................................14 ARRANQUE DEL COMPRESOR .........................................................................................15 MODO DE APAGADO DEL COMPRESOR ..........................................................................16 FALLA DEL COMPRESOR .............................................................................................16 FALLA DEL ENFRIADOR DEL COMPRESOR ...............................................................16 ALARMA DE SOBRECALENTAMIENTO DEL COMPRESOR ........................................16 FALLA EN LATEMPERATURA DELAIRE EN EL COMPRESOR ...................................16 VÁLVULADE CONTROLTERMOSTÁTICA ..........................................................................17 VÁLVULAREGULADORADE IMPULSIÓN............................................................................19 MANÓMETRO DE LATEMPERATURA DELAIRE DE DESCARGA .....................................19 VÁLVULADE SEGURIDAD DEALIVIO..................................................................................20 VÁLVULA DE PURGA DE SOLENOIDE ................................................................................20 ESQUEMÁTICOS -AIRE .................................. SITUADAS EN EL EXTREMO DE ESTE MANUAL
  • 354.
    7-2 Sistema de AireComprimido Sección MD6640 Perforadora Electrica Para Pozos De Tronadura
  • 355.
    7-3 Sistema de AireComprimido Sección MD6640 Perforadora Electrica Para Pozos De Tronadura Sección 7 Sistema de Aire Comprimido El sistema principal de aire provee aire comprimido para el barrido del pozo durante la perforación. El aire también limpia y enfría los rodamientos en la broca. El aire es comprimido por un compresor de aire con tornillos giratorios inundados en aceite. El aire pasa por un filtro y luego entra al compresor. Dentro de la corriente de aire que pasa a través de la válvula mariposa usada para controlar la cantidad de aire en el compresor. Luego, el aceite es inyectado a la corriente de aire para lubricar, enfriar y sellar los tornillos en el terminal de aire. La mezcla de aire/aceite comprimido deja el terminal de aire e ingresa al estanque separador. El estanque separador elimina el aceite de la corriente de aire. El separador actúa en forma de remolino combinado con 4 elementos de filtros para remover el aceite del aire. El aire luego pasa a través de una válvula mariposa hacia la tubería de aire del mástil. Al activar la válvula principal de aire, una válvula de mariposa en la tubería de aire del mástil se abre y el aire fluye a través de la tubería principal de aire hacia la cabeza giratoria. Un pasaje en el eje giratorio permite que el aire fluya hacia el tubo perforador, a través de la broca y hacia fuera del pozo, transportando para afuera los residuos. Cuando el compresor es descargado por el operador cambiando el modo a ventilación, la válvula de mariposa en la entrada del compresor se cierra, la válvula de aire principal se cierra en el tubo de desagüe, la válvula sopladora se abre dejando entrar aire en el tanque atmosférico y los caballos de fuerza atraídos desde el motor serán reducidos enormemente. El mantenimiento general requerido para el sistema de aire principal consiste principalmente en inspeccionar los componentes del sistema y revisar que estén funcionando apropiadamente y que todos los líquidos estén en sus niveles apropiados.
  • 356.
    7-4 Sistema de AireComprimido Sección MD6640 Perforadora Electrica Para Pozos De Tronadura COMPRESOR DE AIRE El ensamblaje del compresor de aire esta compuesto por un terminal de aire, estanque separador y tubería asociada, válvulas, manómetros y filtros. El Compresor está localizado en el lado derecho de la máquina al frente del módulo de poder.
  • 357.
    7-5 Sistema de AireComprimido Sección MD6640 Perforadora Electrica Para Pozos De Tronadura Componentes del Control Separador
  • 358.
    7-6 Sistema de AireComprimido Sección MD6640 Perforadora Electrica Para Pozos De Tronadura FILTRO DE LA TOMA DE AIRE PRECAUCIÓN: Tenga cuidado con el polvo, la suciedad o la caída de un objeto a la entrada del compresor durante la mantención del filtro. Esta máquina usa una asamblea filtro de entrada de aire tipo distribuidor, localizado en la entrada del compresor de aire. Si se requiere eliminar el ensamblaje de la toma de aire, retire los pernos de cabeza 12 hex que unen la toma de aire con la maquina, luego levante el ensamblaje de la toma de aire hacia fuera de la maquina. Retire y reemplace la empaquetadura montada si se requiere. La reinstalación se realiza al revés al proceso de eliminar. Un indicador de obstrucción de la corriente de aire es localizado en la base del filtro de entrada. Durante la operación, una corriente a través del sistema llevará el indicador hacia el componente. Si el sistema esta apagado e indica que hay una corriente de aire, presione el botón de reiniciar para restaurar el indicador. Cada uno de los tres purificadores de aires ubicados en la parte superior del distribuidor consiste de: 1) un filtro pre purificador y 2) purificador de aire. El filtro pre purificador se debe inspeccionar frecuentemente y limpiar cuando sea necesario. El purificador de aire medio también se deberá inspeccionar en intervalos regulares (por lo menos cada dos meses) o mas seguido si las condiciones lo autoriza. El principal purificador de aire medio se deberá reemplazar anualmente, al menos que se encuentre una trizura, hoyo o una rotura mientras se inspecciona.
  • 359.
    7-7 Sistema de AireComprimido Sección MD6640 Perforadora Electrica Para Pozos De Tronadura VÁLVULA DE DRENAJE DE ACEITE La válvula de drenaje se ubica bajo la estructura principal inmediatamente debajo del estanque separador. Ocupe esta válvula para drenar el aceite desde el estanque. Mas aun un portal de lleno rápido con una válvula de chequeo es encontrado en el pasillo externo. La válvula de chequeo es usada en linea para prevenir un reflujo de aceite. CONTROL VARIABLE DE VOLUMEN - OPCIÓN La característica del volumen variable tiene como propósito disminuir la velocidad de barrido, lo que reducirá o eliminará el esmerilado de la barra de perforación y broca. Como resultado, aumentará la vida útil de estos componentes. Para disminuir la velocidad de barrido, reduzca la proporción del flujo de aire o “CFM” del compresor. Rotando el interruptor del control del volumen variable en el despliegue del operador activará la válvula espiral del lado del aire, reduciendo en tres pasos (Nivel 1, Nivel 2, Nivel 3 - Entre 100 % y 68 %) la cantidad de aire producido por el compresor. Con el “CFM” del compresor reducido, el operador puede inspeccionar el tamaño de las astillas producidas por la perforación y llevar un control de la vida útil de la broca y herramienta de perforación. Con esta información se puede determinar el volumen de aire óptimo. Muchos fabricantes de brocas tienen folletos instructivos disponibles con tablas de presión sobre las brocas. Estas tablas muestran que presión sobre la broca dependerá del tamaño de los orificios de las brocas y los “CFM” producidos por el compresor. Una vez que la velocidad de barrido ha sido determinada, ajuste el interruptor de volumen variable hasta obtener la presión de la broca deseada.
  • 360.
    7-8 Sistema de AireComprimido Sección MD6640 Perforadora Electrica Para Pozos De Tronadura NOTA: Luego de ajustar el control de volumen variable, especialmente cuando se reduce en una gran medida el “CFM” del compresor, asegúrese de que la presión del estanque sea mayor a 30 PSIG mientras se está perforando. Esto evitará una excesiva adherencia de aceite. Refiérase a la figura abajo para la ubicación de los componentes del volumen variable.
  • 361.
    7-9 Sistema de AireComprimido Sección MD6640 Perforadora Electrica Para Pozos De Tronadura MANTENIMIENTO DEL SEPARADOR El estanque separador de aire del compresor contiene 4 cartuchos de filtros de aire. Estos deben ser cambiados cada 4000 horas o cada vez que haya una diferencia de presión mayor a 10 PSI entre los filtros o si el compresor empieza a bypass aceite. Para remplazar los cartuchos del filtro separador: 1. Apagar la máquina.Asegurar que el motor eléctrico y el compresor estén apagados. Descargar cualquier presión residual en la linea de aire principal y el tanque separador. Chequear el manómetro de presión en el estanque para verificar. 2. Afloje las tuercas de hex que unen la cubierta del separador con el estanque. Afloje cada tuerca lo suficiente que permita retirar los pernos atados al estanque y bajados. 3. Con todos los pernos removidos, usar la gata hidráulica en la mano izquierda inferior del separador de tanques para elevar la cubierta del separador lo suficientemente para despejar los cartuchos de filtro.
  • 362.
    7-10 Sistema de AireComprimido Sección MD6640 Perforadora Electrica Para Pozos De Tronadura NOTA: Asegúrese de que el sello de la cubierta no esté dañado mientras se retira el sello de la cubierta. 4. Una vez levantada la cubierta, rótela para afuera. 5. Retire las tuercas de hex y el retenedor de filtro que cubre uno de los cartuchos del filtro. 6. Retire uno de los cartuchos del filtro del estanque separador. Repita para los 3 cartuchos restantes. Inspeccione todas las partes. Repare o reemplace si se requiere. Para volver a ensamblar haga lo contrario al desmontaje. Note lo siguiente: PROCESO DE AJUSTE DE HERRAJES DE LA CUBIERTA DEL SEPARADOR Refiérase a la etiqueta ubicada al lado izquierdo del estanque separador. Si la etiqueta no es legible, use la secuencia a continuación para ajustar. Comience ajustando todos los 24 pernos por mano. Luego ajuste todos los pernos en orden. Comience en cualquier perno y continúe en un patrón diametricalmente opuesto (de la estrella). Incremente el ajuste de los pernos 3 veces de acuerdo a lo siguiente: 1. Ajuste TODOS los pernos a 30 Ft. Lbs. 2. Ajuste TODOS los pernos a 60 Ft.Lbs. 3. Ajuste TODOS los pernos a 100 Ft.Lbs.
  • 363.
    7-11 Sistema de AireComprimido Sección MD6640 Perforadora Electrica Para Pozos De Tronadura COMPRESOR DE TORNILLOS GIRATORIOS Ensamblaje del Terminal de Aire del Compresor
  • 364.
    7-12 Sistema de AireComprimido Sección MD6640 Perforadora Electrica Para Pozos De Tronadura El terminal de aire del compresor es de tipo rotatorio de tornillos gemelos, de una etapa, sumergidos en aceite. El puerto de succión (admisión) se ubica en la parte superior del extremo del eje de impulsión (interno) del compresor. El puerto de descarga se ubica en el extremo de la parte inferior (externo). El lado de aire es directamente manejado a través de un acoplador flexible desde el motor eléctrico principal. El rotor macho del terminal de aire es accionado por un engranaje montado en un eje de impulsión independiente y un engranaje apareado sobre el rotor macho. El rotor hembra es accionado por el rotor macho ya que los rotores están endentados. El aire circula a través del sistema comenzando en el filtro de aire de admisión, pasa a través de la válvula de admisión y adentro del terminal de aire donde es comprimido. A medida que el rotor macho gira hacia la derecha (por la rotación en el sentido del reloj del eje y engranajes - no mostrados), acciona el rotor hembra en sentido opuesto. Esta acción hace que el aire sea inducido a través del puerto de succión llenando completamente los canales abiertos o ranuras entre los lóbulos espirales (helicoidales) en los rotores macho y hembra. A medida que los rotores siguen girando, los lóbulos comienzan a interdentarse en la base. Esta endentación hace que las ranuras espirales se reduzcan, resultando en la compresión del aire atrapado en las ranuras. La compresión continúa hasta que las ranuras quedan descubiertas por el puerto de descarga. Desde el terminal de aire, el aire comprimido es descargado a una presión dada dentro del separador aire/aceite. Durante el proceso de compresión, aceite enfriado es inyectado a el aire atrapado por una bomba de aceite tipo engranaje, localizado remotamente. El aceite es inyectado por las siguientes razones: Enfriamiento: El aceite remueve el calor de la compresión para mantener la temperatura del aire de descarga bajo 225°F. Sellado: El aceite sella las aberturas internas entre los rotores, cilindro y extremo de la carcasa de descarga para prevenir pérdida de volúmenes de aire devolviendose hacia la entrada. Lubricación: El aceite lubrica los rotores, rodamientos, engranajes y sello mecánico del eje.
  • 365.
    7-13 Sistema de AireComprimido Sección MD6640 Perforadora Electrica Para Pozos De Tronadura La separación del aceite de el aire, el cual fué inyectado dentro del terminal de aire durante la compresión, se inicia en el separador. Del 90% al 95% de la separación de aceite se logra por una disminución de la velocidad del aire, cambios en la dirección del flujo, adecuada regulación y correcta localización del puerto de entrada. La separación final aire/aceite se obtiene forzando el flujo a través de los elementos separadores para entregar prácticamente aire libre de aceite a la salida. El aceite recogido por los elementos separadores es retornado al sistema por la línea de barrido del compresor. Para prevenir sobrepresión en el tanque, una válvula de alivio de presión de aire se instala en el flujo de salida o en el lado seco de los elementos del separador. SISTEMA DE ACEITE El sistema de aceite consiste de un paquete separado y remoto de motor de bomba eléctrico. La succión de la bomba arranca aceite desde el fondo del estanque receptor. El ajuste de presión de esta válvula de relevo para esta bomba es de 180 PSI (para proteger el enfriador de aceite) y puede ser chequeada en el portal de testeo G9. La presión de la bomba va a la válvula termostática, ésta desviara el aceite al enfriador de aceite cuando la temperatura alcanza los 140F (60C) y hacia los filtros compresores, o sera dirigido a los filtros en el compresor si la temperatura del aceite es de menos de 140F (60C). Los filtros tienen una desviación interna que se abre a un diferencial de temperatura de 25 PSID, en caso que los filtros estén bloqueados. Construido en cada filtro es un interruptor indicador de filtro bloqueado el cual dará una visual y una alerta en el panel de vista. Mas abajo del sistema de filtros hay unos dispositivos que proveen información retroactiva del sistema. En el primero esta el Main Compressor Oil Temperature Sender -MCOTS (enviador de Temperatura de Aceite del Compresor Principal) y el medidor de temperatura T2, localizado en el montaje de filtro. El rango de operación normal del compresor es de entre 140F a 190F (60 - 87.8C). El segundo es laAir Compressor Oil Stop Valve -ACOSV (Válvula de detención de aceite del compresor de aire) operado por solenoide, la cuál; cuando es energizada, envía el aceite a través desde los filtros hasta los inyectores del compresor. Tercero es el Compressor Oil Pressure Switch -COPS (Interruptor de presión de aceite del compresor) el cual apagará el compresor si hay una perdida de presión (La presión puede ser chequeada en el portal de testeo G11). En la conexión de salida están el Main CompressorAir Temperature Sender -MCATS (enviador de la temperatura de aire del compresor principal) y el medidor de temperatura T1, los cuales monitorean la descarga de temperatura desde el estanque receptor. INICIO Y MODO DE VENTILACION Iniciar el Air Compressor Oil Circulation Pump (Bomba de circulación de aceite del compresor de aire), la presión en el puerto de testeo T1 en el distribuidor de control debe ser 100 PSI. La presión en el puerto de testeo G9, en la bomba será de 110 - 180 PSI. LaAir Compressor Spiral Valve -ACSV (Válvula espiral del compresor de aire) operada por solenoide en el distribuidor de control sera DESACTIVADO. Esto envía el aceite a la válvula espiral del compresor la cuál rota la válvula a MINIMO. Las válvulas de control del volumen variable (si son equipadas),ACVV1,ACVV2 yACVV3 son todas DESACTIVADAS.
  • 366.
    7-14 Sistema de AireComprimido Sección MD6640 Perforadora Electrica Para Pozos De Tronadura La Air Compressor Intake Valve - ACIV (Válvula de entrada del compresor de aire) operada por solenoide en el distribuidor de control será DESACTIVADO. ElAceite desdeACSV se comunica con el ACIV y abre ambas la válvula recirculante (enviando el aire al lado de succión del compresor) y sujeta la válvula de mariposa de la entrada del compresor cerrada. La DrillAir Valve -DAV (Válvula de aire de perforadora) operado por solenoide sera DESACTIVADO. Cuando la DAV es desactivado, la válvula de derribado se abrirá resultando en una presión máxima de 30 a 50 PSI. La válvula de aire de la perforadora será cerrada. MODO PERFORADOR La válvulaACSV será ENERGIZADA, la válvula espiral girará desde MINIMO a MAXIMO La válvula ACIV será ENERGIZADA; Dejando a la válvula de mariposa que abra y cierre la válvula recirculante. La DrillAir Valve (Válvula de aire de perforadora) operada por solenoide será ENERGIZADAcerrando la válvula de derribado y abriendo la válvula de aire de perforadora enviando aire a la broca de la perforadora. La máxima presión del tanque será mantenida a través del Air Pressure Regulating Valve (Válvula reguladora de presión de aire), cualquier presión operativa mayor que 80 PSI modularán la válvula de entrada para que mantenga la presión del tanque a 80 PSI. OPCION DE VOLUMEN VARIABLE El anteriormente citado Modo de la Perforadora es para volumen de 100 %, la opción variable de volumen le da al operador el control para 3 salidas diferentes de volumen entre 100 % y 68 %. Las posiciones de la válvula son como sigue: NIVEL 1 ACSV - DESACTIVADO ACIV - ENERGIZADO Distribuidor de Variable de VolumenACVV1 - ENERGIZADO Distribuidor de Variable de VolumenACVV2 - DESACTIVADO Distribuidor de Variable de VolumenACVV3 - DESACTIVADO NIVEL 2 ACSV - DESACTIVADO
  • 367.
    7-15 Sistema de AireComprimido Sección MD6640 Perforadora Electrica Para Pozos De Tronadura ACIV - ENERGIZADO Distribuidor de Variable de Volumen ACVV1 - DESACTIVADO Distribuidor de Variable de VolumenACVV2 - ENERGIZADO Distribuidor de Variable de VolumenACVV3 - DESACTIVADO NIVEL 3 ACSV - DESACTIVADO ACIV-ENERGIZADO Distribuidor de Variable de VolumenACVV1 - DESACTIVADO Distribuidor de Variable de VolumenACVV2 - DESACTIVADO Distribuidor de Variable de VolumenACVV3 - ENERGIZADO ARRANQUE DEL COMPRESOR NOTA: Para una lectura exacta, la maquina debe estar nivelada cuando se revisa el nivel de aceite. 1. ACEITE PARA COMPRESOR – El terminal de aire, separador y enfriador del compresor deberán ser llenados con el aceite para compresor recomendado. NOTA: Luego del arranque inicial, el nivel de aceite en el separador caerá debido a que el sistema de tuberías se rellena con aceite. Aproximadamente 15 minutos después de esta operación apague el compresor. Permita que la maquina repose durante 10 a 15 minutos de manera que elimine las burbujas de aire en el aceite. Revise el nivel de aceite en el manómetro. Si el nivel de aceite esta debajo del vidrio visor, rellene hasta arriba en el vidrio visor. PRECAUCIÓN: El sistema contiene aceite caliente bajo presión. Antes de abrir el tapón de llenado, siempre revise el manómetro de presión y asegúrese que la presión esté en cero. 2. DRENE LO CONDENSADO –Abra la válvula de drenaje levemente para drenar lo condensado en un recipiente. Cierre firmemente la válvula cuando aparezca el aceite. Elimine apropiadamente el aceite y lo condensado. 3. ARRANQUE LAUNIDAD –Arranque el compresor. 4. OBSERVE LA PRESIÓN DE AIRE DE DESCARGA – Durante la operación de perforación, la válvula de aire principal mantendrá una presión mínima de aproximadamente 30 PSIG en el receptor. Una presión mayor a este mínimo, será regulado por el tamaño del orificio de la broca de perforación o por el ajuste de la válvula de control de presión. Durante el ciclo de carga, la presión de aire de descarga no debe operar sobre la capacidad máxima de la presión de placa. Sin embargo, presiones altas momentáneas de hasta 85 PSIG son permitidas (ej. Para destapar los orificios tapados de la broca de perforación).
  • 368.
    7-16 Sistema de AireComprimido Sección MD6640 Perforadora Electrica Para Pozos De Tronadura NOTA: La válvula de seguridad de desahogo del tanque está colocada a 150 PSI y debe ser reemplazada o reparada cada ves que es abierta. 5. OBSERVE LATEMPERATURADELAIRE DE DESCARGA– La temperatura máxima del aire de descarga no deberá exceder los 225°F (107ºC). NOTA: La temperatura limite del aire está fijada en fabrica para apagar la unidad a los 225°F (107ºC). 6. OBSERVE LA TEMPERATURA DEL INYECTOR DE ACEITE – La temperatura del inyector de aceite no deberá exceder los 185°F (85ºC). 7. REALICE REVISIONES DE MANTENCIÓN – Refiérase a la sección apropiada de este manual para ver las revisiones de mantención recomendadas. 8. DESCARGAR EL COMPRESOR - Para descargar el compresor, la válvula de admisión del compresor de aire (ACIV) es energizada, cerrando la válvula de admisión, válvula de solenoide de la perforadora de aire (DAV) es desactivado para cerrar la válvula de aire principal. La presión del aire en el estanque es desangrada usando la válvula derribadora. La presión del aire en el tanque descenderá a aproximadamente 30 PSI, dependiendo de la calidad del sello en la válvula de admisión. NOTA: La temperatura del aire de descarga no deberá exceder los 225o F (107ºC). La temperatura del inyector de aceite no deberá exceder los 185o F (85ºC). MODO DE APAGADO DEL COMPRESOR FALLA DEL COMPRESOR El compresor se apagará si la temperatura del aire está por encima de 212ºF (100 ºC) y la temperatura del aceite es más que 72ºF (22ºC) menos que la temperatura del aire. FALLA DEL ENFRIADOR DEL COMPRESOR El compresor se apagará si la temperatura de aire está por encima de 212ºF (100ºC) y la temperatura del aceite es dentro 18ºF (-8ºC) de temperatura de aire. ALARMA DE SOBRECALENTAMIENTO DEL COMPRESOR Esta falla ocurre cuando la temperatura del aire esta sobre los 212ºF (100o C). FALLA EN LA TEMPERATURA DEL AIRE EN EL COMPRESOR Si la temperatura del aire alcanza los 225ºF (107o C), el compresor se apagará.
  • 369.
    7-17 Sistema de AireComprimido Sección MD6640 Perforadora Electrica Para Pozos De Tronadura VÁLVULA DE CONTROL TERMOSTÁTICA La válvula de control termostática (de 3 caminos) controla el flujo de aceite para mantener una temperatura mínima de 140°F (60°C) en el inyector de aceite. En el arranque, con la unidad fría, el elemento térmico es abierto a la línea de bypass. El aceite fluye desde el puerto B al puerto A hacia el compresor, by paseando el puerto C hacia el enfriador. El elemento viene ajustado de fábrica para abrirse a 140°F (60°C). A medida que el receptor de aceite comienza a calentarse hasta alcanzar esta temperatura, el elemento termal gradualmente cierra el puerto B y abre el puerto C. Esto permite que el aceite frió del enfriador del radiador se mezcle con el aceite bypass. Después que la unidad se ha calentado, la válvula de control termostática normalmente estará abierta para el puerto C. Esto produce que la temperatura del inyector de aceite esté sobre los 140°F (60°C). La válvula debería estar completamente abierta a 150°F (66°C) dirigiendo flujo completo al enfriador.
  • 370.
    7-18 Sistema de AireComprimido Sección MD6640 Perforadora Electrica Para Pozos De Tronadura Si el compresor cierra por debajo de las condiciones altas temperaturas de aire, el elemento termal puede estar atascado en la posición desviación desde el puerto B al puerto A. Permitir que la unidad se enfríe y entonces vuelva a arrancar el compresor. Compruebe la temperatura de la manguera desde el puerto C al enfriador. Si la temperatura está por encima de 150°F (66°C) y dentro de 5°F del puerto A, el elemento está funcionando correctamente. Si la temperatura de la inyección de aceite continúa aumentando después de los 150°F (65°C) y la temperatura de la manguera desde el puerto C al enfriador está a menos de 5°F que la temperatura de la manguera del puertoA, apagar la unidad inmediatamente. Remover, limpiar, testear, y reemplazar el elemento termostático, si es requerido. Retire, limpie y pruebe la válvula de control termostática de la siguiente manera: 1. Apague el compresor. Cierre y ponga una etiqueta en los controles del compresor. Si es posible permita que el sistema se enfríe. Drene el aceite. Alivie la presión de aceite en las líneas hacia y desde la válvula termostática. 2. Puede que sea necesario retirar la válvula termostática de la maquina para poder separar los componentes. Sin embargo, esto no es un requisito. Por lo menos desconecte en el puerto A la manguera de abastecimiento del compresor. PELIGRO: ENERGÍAALMACENADA! A la temperatura de operación, el liquido hidráulico esta caliente y presurizado. El líquido hidráulico caliente puede producir quemaduras. Liquido hidráulico bajo presión puede causar daños o la muerte si no es liberado en una manera controlada antes de que las líneas hallan sido desconectadas. 3. Retire los cuatro pernos y golillas de cierre que une el alojamiento del adaptor en el puerto A. 4. Retire el alojamiento del adaptador y el anillo “O”. 5. Retire el ensamblaje del elemento termostático y sello. 6. Limpie el elemento y pruebe lo siguiente: PRECAUCIÓN: El alojamiento de la válvula y termostato puede que estén caliente. Ocupe un adecuado equipo protector al manipular cualquier artículo caliente. 7. Ponga el elemento en agua a 150°F (65°C) y revuelva vigorosamente durante 5 minutos. Inmediatamente ponga el elemento en el alojamiento. Si el elemento hace un recorrido total, se puede sentir el asiento del alojamiento contra el alojamiento superior. Si el elemento no hace su recorrido total y no se sienta, reemplácelo por un nuevo elemento, [fijación de 140°F (60°C)]. PRECAUCIÓN: El repuesto del elemento deberá igual al original. No lo reemplace por otra marca.
  • 371.
    7-19 Sistema de AireComprimido Sección MD6640 Perforadora Electrica Para Pozos De Tronadura 8. Limpie las superficies internas del alojamiento del adaptador y el alojamiento de la válvula principal. 9. Lubrique el nuevo anillo O y deslícelo por la parte de arriba del ensamblaje del elemento y luego en su posición en el elemento. 10. Ponga la nueva empaquetadura del alojamiento en el hueco del alojamiento de la válvula principal. 11. Inserte el elemento en el alojamiento del adaptador. Instale el alojamiento del adaptador sobre el elemento. 12. Instale los tornillos del alojamiento y las golillas de cierre y luego aprete. Rellene el sistema con aceite. Retire el cierre del compresor y reinicie el compresor. Pruebe que no haya escapes y que la operación sea la apropiada. VÁLVULA REGULADORA DE IMPULSIÓN La válvula de admisión en el compresor es una válvula de mariposa con un operador de aire/aceite cilindro de aceite. La válvula de admisión es cerrada para el arranque del compresor. Esto impide la entrada de aire en el compresor causando el tornillo que opere en el vacío. Puesto que los tornillos no comprimen aire, esto reduce el caballo de fuerza requerido para conducir el compresor. La válvula de admisión se mantiene en la posición cerrada hasta que el operador quieren perforar un hoyo. El operador colocará el interruptor principal de válvula de aire en la posición abierta; Esto causará que el cilindro de control de la válvula de la boca de aspiración se retracte abriendo la válvula de admisión. El aire desembocará hacia el compresor y comenzará a comprimir aire. La válvula de admisión se usa también para regular la máxima presión del aire en el tanque receptor. Si la presión del aire en el tanque se vuelve demasiada alta, el regulador de control de aire abrirá y extenderá el cilindro de control de aire cerrando la válvula de admisión y reduciendo el flujo de aire en el compresor. Una vez que el hueco se descongestiona y la presión del aire sea reducida en el tanque, la válvula de admisión regresará a la posición abierta completa. MANÓMETRO DE LA TEMPERATURA DEL AIRE DE DESCARGA El manómetro de temperatura es un indicador que lee directamente la temperatura del aire en la brida de descarga del compresor. PRECAUCIÓN: En ningún momento se debe exceder los 225°F (107°C).
  • 372.
    7-20 Sistema de AireComprimido Sección MD6640 Perforadora Electrica Para Pozos De Tronadura VÁLVULA DE SEGURIDAD DE ALIVIO La válvula de seguridad de alivio de presión esta ubicada en el lado del receptor y ajustada para aliviar la presión en 150 PSIG. Inspecciones periódicas se deben realizar para asegurar su operación apropiada. PRECAUCIÓN: Nunca opere la unidad sin un ajuste apropiado de la válvula de seguridad. VÁLVULA DE PURGA DE SOLENOIDE La válvula del purga es instalada en la conexión de salida del aparato receptor y automáticamente se abrirá y purgara el aparato receptor, el entubado y aire del compresor se detienen cuando el compresor es detenido. El tiempo de purga es de aproximadamente cinco minutos para reducir la presión a 0 PSIG. NOTA: Una purga demasiado rápida podría causar que el aceite se torne espuma y un excesivo sobrante de aceite pase por el separador de aceite.
  • 373.
    8-1 Filtración de AireSección MD6640 Perforadora Electrica Para Pozos De Tronadura Sección 8 Filtración de Aire Recurra siempre a la información de seguridad de la Sección 1 de éste manual antes de iniciar todo proceso de mantención en esta máquina. Tabla de Contenidos UNIDAD DE AIRE ACONDICIONADO CON CALENTADOR ........................................................3 DESCRIPCIÓN .......................................................................................................................3 ESPECIFICACIONES .............................................................................................................4 VENTILADORES DE LA SALA DE MÁQUINAS.............................................................................4 INSPECCIÓN ..........................................................................................................................4 LUBRICACIÓN ........................................................................................................................5
  • 374.
    8-2 Filtración de AireSección MD6640 Perforadora Electrica Para Pozos De Tronadura
  • 375.
    8-3 Filtración de AireSección MD6640 Perforadora Electrica Para Pozos De Tronadura Sección 8 Calefacción, Ventilación Y Aire Acondicionado UNIDAD DE AIRE ACONDICIONADO CON CALENTADOR DESCRIPCIÓN Las unidades de control de climatización SIGMA, son sistemas de trabajo pesado, diseñados para ser montados sobre el techo de las cabinas de equipos industriales y de minería. Estas unidades proporcionarán un rendimiento superior en una variedad de condiciones climáticas y bajo los ambientes más rigurosos.
  • 376.
    8-4 Filtración de AireSección MD6640 Perforadora Electrica Para Pozos De Tronadura ESPECIFICACIONES Capacidad Nominal de Enfriamiento 25.000 BTU/hr @ 460 volts/60 Hz. 22.500 BTU/hr @ 380 volts/50 Hz. Refrigerante HFC 134a - 24 lbs. VENTILADORES DE LA SALA DE MÁQUINAS INSPECCIÓN Revise las aspas por si tienen acumulaciones de grasa y/o suciedad. Límpielas si es necesario. Las aspas deberían rotar libremente, sin trabarse. Si se detecta vibraciones, revise lo siguiente: 1. Los rodamientos y la alineación de transmisión. 2. Rectitud del eje. 3. Ruedas o poleas sueltas en el eje. 4. Rodamientos sueltos o gastados. 5. Pernos de montaje sueltos. 6. Motor fuera de balance. 7. Poleas fuera de balance. 8. Tapa de cubierta suelta sobre la rueda. 9. Rueda gastada o corroída. 10. Acumulación de materiales en la rueda.
  • 377.
    8-5 Filtración de AireSección MD6640 Perforadora Electrica Para Pozos De Tronadura 11. Fisuras en las aspas y/o en la maza. 12. Aspas de ventilador y maza desgastadas. LUBRICACIÓN Todos los rodamientos están prelubricados y sellados en la fábrica. Bajo condiciones de temperatura normal (-20º F hasta + 150º F), cuando los ventiladores están circulando aire limpio, los rodamientos se consideran lubricados de por vida y la lubricación adicional es innecesaria. Si los ventiladores están circulando aire contaminado u operando en temperaturas elevadas, se requiere una lubricación periódica. Para temperaturas normales, se usa grasa mineral neutra, de alta calidad. Debe estar libre de rellenos abrasivos y altamente resistente a la oxidación. Cuando los ventiladores están operando en temperaturas elevadas (166º F o mayores), se debería usar una grasa de base de silicona o jabón de litio. Esta grasa de alta temperatura debería tener un punto de ruptura sobre 350º F. Use una pistola grasera de baja presión para los rodamientos del ventilador. Es preferible que tanto la pistola o la conexión tengan desahogo. Para prevenir un relleno excesivo, aplique solo una pequeña cantidad de grasa. Esto es especialmente importante cuando se usa una extensa tubería de lubricación y el rodamiento no puede observarse.
  • 378.
    8-6 Filtración de AireSección MD6640 Perforadora Electrica Para Pozos De Tronadura
  • 379.
    9-1 Antecedentes de IngenieriaSección MD6640 Perforadora Electrica Para Pozos De Tronadura Sección 9 Antecedentes de Ingenieria Recurra siempre a la información de seguridad de la Sección 1 de éste manual antes de iniciar todo proceso de mantención en esta máquina. Tabla de Contenidos GRADO DEL TORNILLO (PERNO)..............................................................................................3 APRIETE DE PERNOS ................................................................................................................4 MÉTODO LLAVE DE TORQUE ..............................................................................................4 Tabla 1 - Hilos Lubricados o Laminados o con Golillas Endurecidas ........................................... 4 Tabla 2 - Hilos Secos.................................................................................................................. 4 MÉTODO ROTACIÓN DE LA TUERCA ..................................................................................5 Tabla de Valores de Torque con Apriete a Tope .......................................................................... 5 TORNILLO ROSCADO DE CERRADURA DE ALAMBRE ...........................................................6 Modelos para tornillos de cerradura de alambre .......................................................................... 6 SOLDADURA DE MANTENCIÓN..................................................................................................7 ELECTRODOS DE SOLDADURA .........................................................................................8 SOLDADURA DE REPARACIÓN DE FISURAS .....................................................................9 Preparación de Junturas para la reparación de Fisuras ............................................................... 9 PRECALENTAMIENTO ...................................................................................................10 TÉCNICA PARA SOLDAR ...............................................................................................10 SOLDADURA DE REPARACIÓN DE PARTES QUEBRADAS............................................. 11 EQUIPO DE SOLDADURA Y CORTE........................................................................................12 EQUIPO PARAALIVIAR EL ESTRÉS Y MEDIR LATEMPERATURA ..........................................12 INSPECCIÓN DE ENGRANAJE..................................................................................................14 Defeitos superficiais nos dentes das engrenagens .....................................................................15 CONEXIONES AEROQUIP ORS................................................................................................16 CONEXIONES ORS ..................................................................................................................16
  • 380.
    9-2 Antecedentes de IngenieriaSección MD6640 Perforadora Electrica Para Pozos De Tronadura
  • 381.
    9-3 Antecedentes de IngenieriaSección MD6640 Perforadora Electrica Para Pozos De Tronadura Sección 9 Antecedentes de Ingenieria GRADO DEL TORNILLO (PERNO) El grado para clasificar un tornillo (perno) es identificando la marca en su cabeza, como se muestra a continuación: La golilla y tuerca deben ser del MISMO GRADO que el tornillo. NUNCASUSTITUYAUN TORNILLO POR OTRO DE MENOR GRADO DE ACUERDO A LO QUE SE ESPECIFICA.
  • 382.
    9-4 Antecedentes de IngenieriaSección MD6640 Perforadora Electrica Para Pozos De Tronadura APRIETE DE PERNOS MÉTODO LLAVE DE TORQUE Las tablas siguientes muestran valores de torque para pernos grado 2, 5 y 8, sólo con hilos UNC. La Tabla 1 lista valores de torque para hilos lubricados o laminados y para uso con golillas endurecidas. La Tabla 2 lista aquellos para hilos secos. Los pernos deben apretarse al valor total especificado, en aumentos, alternándose de un perno a otro para asegurar el ajuste de la tracción de las partes en forma gradual. El apriete debe progresar en forma sistemática desde lo más rigido de la unión, hacia sus bordes libres. Los pernos con plantilla circular se deben apretar en forma diametral entrecruzada, mientras se aplica aumentos de torque para asegurar la correcta tracción de las partes. Tabla 1 - Hilos Lubricados o Laminados o con Golillas Endurecidas Tabla 2 - Hilos Secos
  • 383.
    9-5 Antecedentes de IngenieriaSección MD6640 Perforadora Electrica Para Pozos De Tronadura MÉTODO ROTACIÓN DE LA TUERCA PRECAUCIÓN: Éste procedimiento de apriete es aplicable solo a pernos grado 5 y 8 con hilos UNC. Para pernos con hilos diferentes a UNC, contacte al Departamento de Servicio de Bucyrus International. NOTA: Cuando use éste procedimiento, los hilos del perno y las superficies bajo la cabeza del perno y la tuerca, deben ser lubricados. Éste procedimiento se aplica solo si la unión y la superficie bajo la cabeza del perno y tuerca están maquinados para paralelismo. 1. Los pernos deben llevarse a una condición de “apriete a tope” para asegurar que las partes de la unión tengan buen contacto una con la otra. “Apriete a tope” se define como el apriete obtenido al torquear un perno al valor indicado en la tabla de ésta página. El apriete a tope debe progresar sistemáticamente desde la parte más rigida de la unión, hacia sus bordes libres, mientras se alterna de perno a perno para asegurar tracción gradual y pareja de las partes. Luego que todos los pernos hayan quedado a tope, a los primeros pernos apretados en la parte más rígida de la unión, se les debe revisar la correcta retención del torque. Si los pernos están sueltos por la tracción de la unión, la secuencia de apriete a tope debe repetirse a todos los pernos de la conexión. Éste procedimiento de revisión y retorqueo debe repetirse tantas veces como sea necesario hasta que la unión quede totalmente traccionada y todos los pernos queden con el torque a tope especificado. El apriete de las superficies de contacto de la junta deben ser luego verificadas utilizando láminas calibradoras. Tabla de Valores de Torque con Apriete a Tope 2. Luego, las tuercas y pernos se deben aparejar, punzando el centro del extremo del perno y la tuerca. En pernos de vástago, hermane marcando ambos extremos del perno y las tuercas.A continuación, los pernos y tuercas deben ser reapretados adicionalmente, con la cantidad aplicable de rotación de tuerca tal cual se especifica en la Tabla. En ésta porción del apriete de “rotación de la tuerca”, no es necesario seguir una secuencia perno a perno en particular.
  • 384.
    9-6 Antecedentes de IngenieriaSección MD6640 Perforadora Electrica Para Pozos De Tronadura NOTA: La rotación de la tuerca se lee entre la marca punzada en el perno y la marca de la tuerca. En pernos de vástago, la rotación de la tuerca es el movimiento rotacional acumulativo entre las marcas punzadas a ambos extremos del perno. TORNILLO ROSCADO DE CERRADURA DE ALAMBRE Los tornillos roscados de cerradura de alambre se requieren cuando no es posible una inspección visual periódica, éstos aseguran cerradura máxima. Las ilustraciones de abajo muestran los métodos recomendados para variados modelos de tornillos roscados de hilo hacia la derecha. Para aquellos modelos que no se muestran, ponga las cerraduras de alambre a los tornillos “en pares”. Para modelos impares, ponga las cerraduras de alambre a los tornillos en pares a excepción de los tres restantes que juntos deberán tener las cerraduras de alambres en los tornillos. Modelos para tornillos de cerradura de alambre Usar cerradura de alambre medida # 14, hilar el alambre en el roscado de la cabeza del tornillo, para que la torsión del apretado en el alambre ejerza mayor torsión en la dirección del hilo del tornillo. (La ilustración muestra como hilar el alambre del roscado hacia la derecha. Revertir el hilado del alambre cuando se use en diseños hacia la izquierda.)
  • 385.
    9-7 Antecedentes de IngenieriaSección MD6640 Perforadora Electrica Para Pozos De Tronadura SOLDADURA DE MANTENCIÓN Estas recomendaciones de soldadura para reparar se aplican a las principales estructuras de la maquina. Las características de la maquina con una alta carga cíclica son consideradas en el diseño y material escogido para la construcción de la maquina. Sin embargo, debido a que se pueden encontrar condiciones inusuales de operación y aplicar un gran numero de cargas cíclicas a la maquina, se pueden producir fisuras por fatiga u otras anormalidades. Una temprana detección de estas condiciones a través de las inspecciones regulares de la maquina ayudan a evitar problemas o averías de emergencia. Se realiza una soldura de mantención para reparar aquellos componentes estructurales fisurados o quebrados. Se requiere prestar atención a una serie de detalles, cumplir cuidadosamente con el procedimiento de reparación y observar las normas de seguridad locales, estatales y federales cuando se aplican procesos de calefacción, corte y soldadura para recondicionar partes quebradas. PRECAUCIÓN: SOLDADURAS Y CORTES TÉRMICOS DE METALES GENERAN TEMPERATURAS HASTA LOS MILES DE GRADOS DONDE LOS METALES SE DERRITEN Y VAPORIZAN. No se producirán daños ni al personal ni a la propiedad si se toman las adecuadas precauciones en cuanto al calor, gases y humos generados, shocks eléctricos y radiación. Al calendar y cortar con gas, el manejo y almacenamiento de gases comprimidos presenta otros peligros al que se deben proteger para mantener un ambiente de trabajo seguro. Las precauciones de seguridad deberán estar conforme a la ultima edición de ANSI standard Z49.1, Seguridad en Soldaduras y Cortes, publicado por la Sociedad Americana de Soldaduras. El reacondicionamiento de estructuras que han fallado requiere atención a una serie de detalles y la aplicación cuidadosa del procedimiento de reparación. Solo en ciertos casos es necesario fortalecer las estructuras con una suma de refuerzos. ADVERTENCIA: El REFORZAMIENTO DE PARTES ESTRUCTURALES SE DEBE REALIZAR SOLO BAJO RECOMENDACIÓN DE BUCYRUS INTERNATIONAL, INC. LOS REFORZAMIENTOS APLICADOS INAPROPIADAMENTE PUEDEN TENER UN EFECTO ADVERSO EN EL RENDIMIENTO Y VIDA ÚTIL DE LA ESTRUCTURA. La mejor manera de reparar una parte quebrada es soldar penetrando completamente, preferiblemente soldando ambas partes, usando un correcto electrodo para soldar y observando todas las precauciones tales como el precalentamiento. Para soldar la ranura, penetrándola completamente, se debe tener la base del metal en el suelo con ambos lados parejos para retirar todas las irregularidades de la superficie. Un proceso alternativo incorpora barras de apoyo para soldar asegurando un completo penetrado del área a reparar. Asegúrese de tomar las medidas de seguridad y seguir las normas de regulación federal, estatal y local.
  • 386.
    9-8 Antecedentes de IngenieriaSección MD6640 Perforadora Electrica Para Pozos De Tronadura Una completa soldadura de penetración repara condicionado a pulir en vez de agregar refuerzo, ya que favorece a mantener el diseño original del diseño de flujo de stress hacia las partes estructurales. Incorporar refuerzo al no formar parte del diseño, puede aumentar la fatiga del material debido al cambio geométrico en la estructura original. El soldar para reparar efectivamente partes estructurales de la maquina fisurados, rotos o doblados, requiere conocimiento de los distintos tipos de acero que se usan, apropiados eléctrodos de soldadura y el saber como practicar la soldadura. La composición química, propiedades mecánicas y grosor del acero determinan el electrodo de soldadura que se debe usar y la requerida temperatura de precalentamiento. ELECTRODOS DE SOLDADURA Con la excepción de la pluma, las solduras que reparan las variadas estructuras de la maquina pueden clasificarse básicamente en dos, electrodos de arco con escudo metal: E7018 y E8018- C1. Ambos electrodos son bajos en hidrogeno que depositan el metal soldado, con excelentes propiedades como niveles de fuerza con 70,000 a 80,000 PSI, y propiedades de impacto desde - 20°F a -75°F. Estos son electrodos para todas las posiciones que producen una soldura de alta calidad para reparar los componentes estructurales de maquinaria pesada. NOTA: A pesar de que estos electrodos son de una calidad superior, se deben usar con cuidado. Electrodos bajos en hidrogeno son altamente susceptibles a la humedad una vez retirado de su envase sellado. Para mantener el hidrogeno bajo y sus propiedades resistentes al fisurado, se deben almacenar en hornos para electrodos a una temperatura de 250°F hasta el momento que se vayan a usar. Hornos de vástago pequeños y portables al lado del soldador son ideales. Siempre deben estar secos los electrodos bajos en hidrogeno que se vayan a usar. Las fisuras causadas por hidrogeno son extremadamente finas y ocurren invisiblemente debajo de la superficie en la zona afectada por el calor en la base del metal, como se muestra. Por lo tanto, no son detectables al momento de soldar. Mientras se está soldando se pueden propagar estas fisuras y causar una falla final de la parte. Es necesario cumplir estrictamente con una correcta practica de soldadura en cuanto al manejo, almacenaje y uso de los electrodos bajos en hidrogeno. Para evitar fisuras retire de la superficie todo el aceite, grasa o contaminante y asegúrese de que el acero este seco. Precaliente a la temperatura requerida. Use solo electrodos secos que estén en el horno para electrodos. Después de exponerlo al aire, los electrodos deben ser devueltos al horno. El tiempo límite fuera del horno para los electrodos E7018 es de cuatro horas y para los E8018-C1 dos horas.
  • 387.
    9-9 Antecedentes de IngenieriaSección MD6640 Perforadora Electrica Para Pozos De Tronadura SOLDADURA DE REPARACIÓN DE FISURAS Preparación de Junturas para la reparación de Fisuras Remueva completamente la fisura con cortando y puliendo. Prepare una ranura V de 45-60° aproximadamente para volver a soldar. Si se produce una fisura a través del grosor y es posible hacer una reparación por ambos lados, es preferible realizar una doble preparación en V. Al soldar por ambos lados, se recomienda siempre un biselado del lado opuesto para una penetración completa. Cuando físicamente no es posible biselado del lado opuesto y pulido, se deberá tomar un enfoque alternativo. Algunas veces es posible biselar para retirar completamente la fisura, luego coloque una barra de apoyo en el lado inferior para facilitar una soldadura de penetración completa. NOTA: La barra de apoyo deberá quedar ajustada en el lado inferior de manera que no se produzca una fisura por pobres condiciones para soldar. Cuando no es posible colocar una barra de apoyo debido a un limitado acceso al lado inferior, se recomienda retirar la porción de la placa fallada y soldar una pieza nueva, usando barras de apoyo en todos los lados para asegurar una soldura de penetración completa. Una alternativa adicional es biselar, retirar la fisura, luego soldar pequeñas capas alineadas para cerrar la brecha y preparar una ranura para una soldura de reparación. En este caso, la soldura de reparación será esencial para una penetración completa, pero no será perfecto en el lado de inferior. Los otros métodos son preferibles en el orden descrito, es decir, soldar ambos lados, soldar en contra de una barra de apoyo o reemplazar completamente una sección de la placa
  • 388.
    9-10 Antecedentes de IngenieriaSección MD6640 Perforadora Electrica Para Pozos De Tronadura PRECALENTAMIENTO Al precalentar, aplique ampliamente calor al área general que rodea la zona a reparar. Es preferible empapar en calor cuando se penetra completamente el grosor total del material, que aplicar rápidamente una alta temperatura en la superficie. Se recomienda resistencia eléctrica y calefacción radiante ya que puede quedar operando durante la soldura para mantener una temperatura mínima de precalentamiento. Precaliente con una temperatura de hasta 400°F, dependiendo de un análisis del acero, en la mayoría de las condiciones será adecuado para reparaciones mayores. Según se indicó anteriormente, las temperaturas de precalentamiento son determinadas por el tipo de acero en la estructura. Las temperaturas deberán ser medidas con los crayones para indicar la temperatura. TÉCNICA PARA SOLDAR El tamaño máximo de un electrodo para una posición plana es de un 1/4 pulgada, 3/16 pulgada para una posición horizontal y 5/32 pulgadas para una posición vertical y elevada. Use una textura partida apenas el ancho de la capa sea suficientemente grande como para acomodar capas una al lado de la otra. Durante la soldadura asegúrese de obtener en todos los pasos soldados una profunda fusión entre la base metálica y la capa soldada adyacente. Limpie toda escoria entre los pasos y todos lo cráteres antes de iniciar el siguiente electrodo. Inspeccione atentamente por fisuras, cortes por debajo o capas solapadas, y luego bisele o pula la falla antes de continuar. Es muy importante obtener una buena soldadura de reparación en partes con una alta carga y especialmente partes con un estrés cíclico o dinámico. La presencia de cualquier catalizador de estrés en la superficie de la parte es perjudicial, promueve la fatiga del material y puede llevar a una futura fisura. Por lo tanto, es esencial que la reparación terminada sea lisa y este bien combinada con la base metálica. Repare cualquier corte inferior en la soldadura, pula las capas solapadas y mezcle cualquier muesca o biselado. La mejor condición se da al pulir y alisar la zona reparada y emparejarla con la superficie de la base metálica. La dirección final al pulir debe ser idéntica con la dirección en la cual se aplica la carga a la estructura. Refiérase a la figura.
  • 389.
    9-11 Antecedentes de IngenieriaSección MD6640 Perforadora Electrica Para Pozos De Tronadura SOLDADURA DE REPARACIÓN DE PARTES QUEBRADAS Todas las recomendaciones para reparar las fisuras también se aplican para la reparación de partes quebradas con algunas modificaciones. Para la reparación, el procedimiento de soldadura puede que requiera una secuencia específica la que va a depender del tamaño y muestra de la parte. Estas técnicas incluyen una secuencia de soldura de retroceso, de bloqueo, alternando de lado a lado, soldando simultáneamente en lados opuestos, etc. Todas estas medidas preventivas tienen por objeto minimizar el estrés al encogerse y la distorsión posterior o trizuramiento durante la soldura. El método a seguir deberá ser determinado por un cuidadoso análisis de la situación y enfocando el problema con sentido común. Un procedimiento que haya resultado exitoso en una experiencia anterior podría aplicarse en la mayoría de los casos El uso de placas dobles, refuerzos u otras asistencias utilizadas para fortalecer una estructura que se ha fisurado durante el servicio, deberá considerarse cuidadosamente antes de decidir la medida de reparación a ocupar. El material adicional que se agrega para fortalecer, altera la configuración y geometría de la estructura, posiblemente pronunciando el efecto de fatiga en la estructura. En muchos casos, aquellos intentos para fortalecer agregando placas solo sirve para “perseguir la fisura en otra parte”. El flujo de estrés de la estructura ha sido alterado, creando una zona para concentrar el estrés. Aquellas soldaduras fileteadas que se adjuntan para cruzar una estructura tensa por ejemplo, son pobres métodos de reparación. Una Buena reparación, hecha con cuidado y bien mezclada a la base del metal en todos los lados es preferible a refuerzos adicionales. Cualquier aplicación de refuerzos requiere una cuidadosa consideración con respecto al efecto general de la estructura durante el servicio, y solo deberá ser realizado después de consultar a Bucyrus International, Inc.
  • 390.
    9-12 Antecedentes de IngenieriaSección MD6640 Perforadora Electrica Para Pozos De Tronadura EQUIPO DE SOLDADURA Y CORTE A continuación hay una lista del equipo para soldar y cortar necesario para una reparación general de una soldadura. MAQUINAS DE SOLDADURA, Arco - 600 amperes (para soldar y Cortar) SOPLETE OXIGENO ACETYLENO con medidor – largas mangueras de 150' SOPLETE PARA CALENTAR, Butano (para SOLDURA DE PLUMA) ACCESORIOS PARA ARCO DE AIRE (para usar con maquinas de soldadura de 600 Amperes) VÁSTAGOS DE SOLDADURA - E7018, E8018, E11018 - 1/8", 5/32". 3/16", 1/4" C02 – Grado de Soldadura - 45°F Max. Punto de rocío OXIGENO – Corte y calentamiento ACETYLENO MARTILLO DE SOLDADURA FLUX – Neumático con formones y repuestos SOPLADORES, Ventilando (para soldadura del compartimiento) PULIDORES, Accionados por aire y con ruedas IMPERMEABLES – resistentes al fuego (para protegerse de soldaduras de pluma) GUANTES DE ASBESTO GAFAS PARA CORTAR, oscuras MARCADOR DE ESTEATITA COMPUESTOANTI-SALPICÓN VARILLAS MEDICIÓN TEMPERATURA- 200° Y 200° VARILLAS TEMPERATURA - 200° y 200° EQUIPO PARA ALIVIAR EL ESTRÉS Y MEDIR LA TEMPERATURA A continuación se presenta la lista del equipo recomendado para aliviar el estrés después de la soldadura de reparación. EQUIPO PARAMEDIR LATEMPERATURA SPEEDOMAX, “W” Multi punto, Grabador Potenciómetro REQUERIMIENTO DE PODER - 120 Volts, 60 o 50 Hz. RANGO- 0 A 1500°F CALIBRACIÓN- Cable Cromel-Alumel Termo copla. (Alumel = aleación Níquel Aluminio) RANGO DE PRECISIÓN - 0.3% de lo eléctricamente abarcado VELOCIDAD DEL GRAFICO - 2" por hora SELECCIÓN TERMO COPLA – Seis (6) puntos
  • 391.
    9-13 Antecedentes de IngenieriaSección MD6640 Perforadora Electrica Para Pozos De Tronadura LUZ FLUORESCENTE FABRICANTE - Leeds & Northrup Company CABLE DE EXTENSIÓN TERMO COPLA CABLES DUPLEX - Cromel-Alumel – Tipo K - 16 AWG Trenzado LONGITUD – Resistencia total externa para ambos cables incluyendo el Termo copla no deberá exceder los 2500 Ohms o 410 pies. RESISTENCIA DEL CABLE – Resistencia nominal, Ohm por pie a 20°C 66°F, - Cromel - Ohms - Alumel - .0683 Ohms. AISLAMIENTO DEL CABLE – cada conductor de esmalte, asbestos (par retorcido) trenzado general de asbestos. CÓDIGO DEL CABLE -Alumel, cable negativo (Rojo); Cromel, cable positivo (amarillo) COLOR GENERAL - Amarillo CATALOGO No. 16-59-17 DESCONEXIÓN POLAR CROMEL-ALUMEL CONEXIÓN COMPENSADA Código de color de la GATA(O) (amarillo) - Catalogo No. 040419 Código de color del ENCHUFE (amarillo) - Catalogo No. 040434 ABRAZADERA DEL CABLE - Catalogo No. 072513 ADAPTOR - Catalogo No. 076794 ELEMENTO TERMO COPLA CROMEL-ALUMEL - Tipo K – Doblado una (1) pulgada despejada. CABLE POSITIVO CROMEL Código de Color (ninguno) CABLE NEGATIVO ALUMEL Código de Color (Rojo) CATALOGO No. 8784-K-1-3-12"-D 1. 588003 Calentadores Kaopak Flex 2. 588004 Kaopak Colector Tipo Serpentina 3. Manto Kaopak 3, 5, o 6 Tamaño de bolsillo según lo necesario para el dimensionado de la tubería, aliviando el estrés. Ensamblaje Termo copla, Completo Catalogo No. 8784-K-1-3-12"-Q Pellets de calefacción, aumento de Temperatura Rango: 1500°F 1500°F - 1500°F 1500°F Exactitud: +/-1% Estos Pellets de Tempil comenzaran a derretirse a la temperatura especificada.
  • 392.
    9-14 Antecedentes de IngenieriaSección MD6640 Perforadora Electrica Para Pozos De Tronadura INSPECCIÓN DE ENGRANAJE Una parte importante de la mantención de la maquina es la inspección regular de los engranajes. Esto debe incluir los engranajes y piñones en las maquinas de empuje, rotacional y de propulsión. Cualquier ruido o vibración inusual indica un desgaste excesivo en los engranajes y piñones. Normalmente se necesita una pronta revisión antes de que falle completamente. Es de vital importancia una correcta lubricación para la apropiada operación de engranajes. Siempre revise que todos los engranajes tengan una lubricación adecuada. Vea la sección de lubricación en este manual para mayor información de los lubricantes correctos y su aplicación. Los engranajes tendrán un desgaste normal si no operan con cargas o temperaturas excesivas y usando lubricantes correctos. Los engranajes están diseñados para funcionar satisfactoriamente durante toda la vida útil de la maquina. Si llega a fallar, es por una condición inusual. A pesar del diseño, tamaño o construcción del engranaje, una correcta lubricación es esencial para asegurar el mínimo desgaste, una operación silenciosa y un servicio de larga vida. Las formas de los dientes de los engranajes son fabricados con mucha precisión, sin embargo, siempre habrán irregularidades microscópicas en la superficie lo que causa una resistencia, fricción. Los engranajes al estar en condiciones mecánicas apropiadas y con una lubricación correcta, reducen la fricción, el desgaste es prácticamente eliminado y los engranajes deberían operar eficientemente. Sin embargo, incluso usando un adecuado lubricante en forma apropiada, ciertas condiciones mecánicas y operativas pueden causar un desgaste y destrucción de los dientes. Raramente se ven daños como una rotura en los dientes, por lo general los daños se ven en las superficies de contacto. Esa falla en la superficie puede rápidamente destruir el contorno original del diente, impidiendo una operación silenciosa y sin vibraciones. Esta falla se puede atribuir directamente a una sobrecarga, sobrecalentamiento, descarga, abrasivos, astillas, alineación incorrecta, rodamientos sueltos o desviación de los ejes o alojamientos. Muchos términos son ocupados para describir gráficamente la apariencia del daño de la superficie de un diente. Los términos como picadura, abrasión, ralladura y roturas pueden agrupar todas las demás irregularidades. Estos tipos de fallas se pueden deber a diferentes causas básicas. Desde el punto de vista de la lubricación, la causa de la falla es de mayor interés que la apariencia de las superficies. La clasificación de estas fallas en el diente del engranaje se muestran en la figura. Los engranajes y piñones pueden mostrar algunas picaduras menores lo que suele ser normal. Sin embargo, cualquier picadura mayor, rotura o cualquier anormalidad que muestre será necesario reemplazo.
  • 393.
    9-15 Antecedentes de IngenieriaSección MD6640 Perforadora Electrica Para Pozos De Tronadura Defeitos superficiais nos dentes das engrenagens
  • 394.
    9-16 Antecedentes de IngenieriaSección MD6640 Perforadora Electrica Para Pozos De Tronadura CONEXIONES AEROQUIP ORS Las conexiones tipo Aeroquip ORS se usan en el sistema hidráulico de esta maquina. La conexión ORS tiene una ranura de anillo O maquinada en la cara aplanada macho. Esta cara aplanada y anillo O se aparean con la otra cara maquinada del conector para formar un sello virtualmente libre de filtraciones. El concepto cara-sello permite que los componentes se instalen o reemplacen sin mover los componentes apareados ni aplicar tensión en el tubo y líneas de manguera. La tuerca giratoria puede ser retraída para inspeccionar el puesto del sello y ajustar antes de ser ensamblado. Al usar esta conexión, retire el anillo O (O-Ring) de la cara macho y rellene la ranura con grasa multi propósito de alta calidad, luego instale el anillo O en la ranura. La grasa también sellará alrededor del anillo O por mientras se retiene el anillo O en la ranura. La grasa a la vez lubricara la conexión durante el ensamblaje. No es necesario una tuerca especial para la conexión, ya que la persona que instala puede “sentir” cuando la conexión está apretada. CONEXIONES ORS
  • 395.
    10-1 Esquemáticos Sección MD6640 PerforadoraElectrica Para Pozos De Tronadura Sección 10 Esquemáticos Recurra siempre a la información de seguridad de la Sección 1 de éste manual antes de iniciar todo proceso de mantención en esta máquina. Tabla de Contenidos ESQUEMÁTICOS .........................................................................................................................1 SIDE VIEW ..............................................................................................................................3 DECK PLAN ............................................................................................................................5 MAIN FRAME HYDRAULIC SCHEMATIC ................................................................................7 MAIN FRAME HYDRAULIC SCHEMATIC (CONT’D) ...............................................................9 MAIN HYDRAULIC ................................................................................................................. 11 JACK HYDRAULIC SCHEMATIC...........................................................................................13 CRAWLER HYDRAULIC SCHEMATIC..................................................................................15 MAST HYDRAULIC SCHEMATIC ..........................................................................................17 HYDRAULIC SOLENOID VALVE & GAGE PORT LOCATION ..............................................19 AIR SCHEMATIC ...................................................................................................................21 AIR SCHEMATIC RECIRCULATE .........................................................................................23
  • 396.
    10-2 Esquemáticos Sección MD6640 PerforadoraElectrica Para Pozos De Tronadura Section 10 ESQUEMÁTICOS ESQUEMÁTICOS The following pages contain a series of block diagrams depicting the schematic layout of the hydraulic systems and air system.
  • 397.
    SECCION 10 SCHEMATICS MD6640PERFORADORA ELECTRICA PARA POZOS DE TRONADURA
  • 398.
    SECCION 10 SCHEMATICS MD6640PERFORADORA ELECTRICA PARA POZOS DE TRONADURA
  • 399.
    SECCION 10 SCHEMATICS MD6640PERFORADORA ELECTRICA PARA POZOS DE TRONADURA
  • 400.
    SECCION 10 SCHEMATICS MD6640PERFORADORA ELECTRICA PARA POZOS DE TRONADURA
  • 401.
    SECCION 10 SCHEMATICS MD6640PERFORADORA ELECTRICA PARA POZOS DE TRONADURA
  • 402.
    SECCION 10 SCHEMATICS MD6640PERFORADORA ELECTRICA PARA POZOS DE TRONADURA
  • 403.
    SECCION 10 SCHEMATICS MD6640PERFORADORA ELECTRICA PARA POZOS DE TRONADURA
  • 404.
    SECCION 10 SCHEMATICS MD6640PERFORADORA ELECTRICA PARA POZOS DE TRONADURA
  • 405.
    SECCION 10 SCHEMATICS MD6640PERFORADORA ELECTRICA PARA POZOS DE TRONADURA
  • 406.
    SECCION 10 SCHEMATICS MD6640PERFORADORA ELECTRICA PARA POZOS DE TRONADURA
  • 407.
    SECCION 10 SCHEMATICS MD6640PERFORADORA ELECTRICA PARA POZOS DE TRONADURA
  • 408.
    SECCION 10 SCHEMATICS MD6640PERFORADORA ELECTRICA PARA POZOS DE TRONADURA
  • 409.
    SECCION 10 SCHEMATICS MD6640PERFORADORA ELECTRICA PARA POZOS DE TRONADURA
  • 410.
    SECCION 10 SCHEMATICS MD6640PERFORADORA ELECTRICA PARA POZOS DE TRONADURA
  • 411.
    SECCION 10 SCHEMATICS MD6640PERFORADORA ELECTRICA PARA POZOS DE TRONADURA
  • 412.
    SECCION 10 SCHEMATICS MD6640PERFORADORA ELECTRICA PARA POZOS DE TRONADURA
  • 413.
    SECCION 10 SCHEMATICS MD6640PERFORADORA ELECTRICA PARA POZOS DE TRONADURA
  • 414.
    SECCION 10 SCHEMATICS MD6640PERFORADORA ELECTRICA PARA POZOS DE TRONADURA
  • 415.
    SECCION 10 SCHEMATICS MD6640PERFORADORA ELECTRICA PARA POZOS DE TRONADURA
  • 416.
    SECCION 10 SCHEMATICS MD6640PERFORADORA ELECTRICA PARA POZOS DE TRONADURA
  • 417.
    SECCION 10 SCHEMATICS MD6640PERFORADORA ELECTRICA PARA POZOS DE TRONADURA
  • 418.
    SECCION 10 SCHEMATICS MD6640PERFORADORA ELECTRICA PARA POZOS DE TRONADURA
  • 419.
    MD6640 Perforadora ElectricaPara Pozos De Tronadura
  • 420.
    MD6640 Perforadora ElectricaPara Pozos De Tronadura ©2014 Caterpillar Derechos Reservados Cat, Caterpillar, sus logotipos respectivos, el color “Caterpillar Yellow”, la imagen comercial POWER EDGE, así como la identidad corporativa y del producto utilizados aquí, son marcas comerciales registradas de Caterpillar y no pueden usarse sin su autorización. Impreso en EE.UU.