0




              NORMAS DE ACOMETIDAS

           CUARTOS DE TRANSFORMADORES

              Y SISTEMAS DE MEDICIÓN

         PARA EL SUMINISTRO DE ELECTRICIDAD
NORMAS
                    NATSIM
                EDICIÓN AÑO 2012
1




                                                           INDICE

                                                                                                                           Página No.


1. DISPOSICIONES GENERALES.......................................................................... 7

     1.1       Objeto.............................................................................................................   7
     1.2       Alcance...........................................................................................................    7
     1.3       Reformas........................................................................................................      7
     1.4       Área de Aplicación.........................................................................................           7
     1.5       Obligaciones del Consumidor……………………………...........................                                                     8
     1.6       Límite de Responsabilidad………………………………………………….                                                                         8
     1.7       Idoneidad Profesional.....................................................................................            8
     1.8       Uso de la Electricidad.....................................................................................           8
     1.9       Facilidades en Propiedad Privada...................................................................                   8


2. SERVICIOS.............................................................................................................. 9

     2.1       Condiciones de Servicio.................................................................................              9
     2.2       Oficinas de Atención a Consumidores...........................................................                        9
     2.3       Disponibilidad de Servicio............................................................................                10
               2.3.1. Solicitud para Servicio Eléctrico.......................................................                       10
               2.3.2. Servicio Eléctrico Definitivo.............................................................                     10
               2.3.3. Servicio Eléctrico Ocasional..............................................................                     10
               2.3.4. Incrementos de Carga.........................................................................                  11
     2.4       Clases de Servicios.........................................................................................          11
               2.4.1. Baja Tensión.......................................................................................            11
               2.4.2 Media Tensión....................................................................................               11
               2.4.3 Alta Tensión.......................................................................................             12
     2.5       Control Posterior y Límite de Responsabilidad............................................                             12
     2.6       Uso no autorizado de Energía Eléctrica........................................................                        12
     2.7       Información sobre Corrientes de Falla o Cortocircuito..................................                               12


3. TERMINOLOGÍA.................................................................................................. 12

     3.1       Acometida......................................................................................................       13
     3.2       Acometida en Baja Tensión..........................................................................                   13
     3.3       Acometida en Media Tensión......................................................................                      13
     3.4       Acometida Monofásica..................................................................................                13
     3.5       Acometida Trifásica.......................................................................................            13
2


    3.6       Acometida Individual....................................................................................             13
    3.7       Acometida Colectiva.....................................................................................             13
    3.8       Acometida Provisional...................................................................................             13
    3.9       Ampacidad......................................................................................................      13
    3.10      Base (socket).................................................................................................       13
    3.11      Conductores de Señal.....................................................................................            14
    3.12      Consumidor....................................................................................................       14
    3.13      Disyuntor........................................................................................................    14
    3.14      Electrodo de Puesta a Tierra..........................................................................               14
    3.15      Empresa (Distribuidora)................................................................................              14
    3.16      Factor de Potencia.........................................................................................          14
    3.17      Zona de Servicio............................................................................................         14
    3.18      Interruptor.......................................................................................................   14
    3.19      Medidor..........................................................................................................    14
    3.20      Medidor para Medición directa Auto-contenido.........................................                                15
    3.21      Medidor para Medición Indirecta...................................................................                   15
    3.22      Medidor de Servicios Generales…………………………………………….                                                                     15
    3.23      Medidor de Consumo General……………………………………………...                                                                       15
    3.24      Medidor Controlador......................................................................................            15
    3.25      Medidor Controlador de Circuito…………………………………………...                                                                   15
    3.26      Servicio Eléctrico...........................................................................................        15
    3.27      Tablero General de Medidores.......................................................................                  15
    3.28      Punto de Entrega……………………………………………………………                                                                              16
    3.29      Reversible…………………………………………………………………...                                                                               16
    3.30      Reglamento de Suministro………………………………………………….                                                                         16


4. ACOMETIDAS........................................................................................................ 16

    4.1       Requisitos Generales......................................................................................           16
              4.1.1   Número de Acometidas Permitidas..................................................                            16
              4.1.2   Suministro e Instalación de Conductores de Acometida..................                                       16
              4.1.3   Conexiones y Empalmes en los Conductores de Acometida...........                                             16
              4.1.4   Canalización para los Conductores de Acometida...........................                                    17
              4.1.5   Tubería de Entrada de Acometida....................................................                          17
              4.1.6   Curvatura de las Tuberías de Acometida.........................................                              17
              4.1.7   Diámetro Mínimo de las Tuberías de Acometida...........................                                      17
              4.1.8   Conductores en las Tuberías de Acometida.....................................                                17
    4.2       Acometidas Aéreas en Baja Tensión..............................................................                      18
              4.2.1   Aislamiento de los Conductores de Acometida...............................                                   18
              4.2.2   Tamaño Mínimo de los Conductores de Acometida........................                                        18
              4.2.3   Ubicación de la Tubería de Entrada de Acometida..........................                                    18
              4.2.4   Altura de los Conductores de Acometida.........................................                              18
              4.2.5   Punto de Fijación de los Conductores de Acometida.......................                                     18
              4.2.6   Medios de Fijación de los Conductores de Acometida....................                                       19
              4.2.7   Reversible en la Entrada de Acometida...........................................                             19
    4.3       Acometidas Subterráneas en Baja Tensión....................................................                          19
              4.3.1   Aislamiento de los Conductores de Acometida...............................                                   19
              4.3.2   Calibre Mínimo de los Conductores de Acometida........................                                       19
              4.3.3   Trayectorias de las Acometidas........................................................                       19
3


               4.3.4        Suministro e Instalación de las Tuberías.......................................... 20
               4.3.5        Protección mecánica………………………………………………. 20


5. DISYUNTORES.....................................................................................................                 20

     5.1       Disyuntor Principal.........................................................................................         20
     5.2       Ubicación........................................................................................................    20
     5.3       Disposición de los Disyuntores Parciales.......................................................                      20
     5.4       Ampacidad......................................................................................................      20
     5.5       Posición de operación.....................................................................................           21
     5.6       Protección Mecánica......................................................................................            21
     5.7       Desconexión...................................................................................................       21
     5.8       Conexiones.....................................................................................................      21


6. MEDIDORES Y SUS BASES (SOCKETS)........................................................... 21

     6.1       Suministro de la Base (socket).......................................................................                21
     6.2       Tipos de Bases (socket)..................................................................................            21
     6.3       Ubicación de la Base (socket)........................................................................                23
     6.4       Conexión de la Base (socket).........................................................................                23
     6.5       Suministro del Equipo de Medición...............................................................                     23
     6.6       Tipos de Medidores........................................................................................           23
     6.7       Ubicación del Medidor Individual...............................................................                      24
               6.7.1 Edificaciones Nuevas..........................................................................                 24
               6.7.2 Edificaciones Existentes (con servicio eléctrico previo)......................                                 24
     6.8       Altura del Módulo Individual de Medidores..................................................                          25
     6.9       Colocación de Sellos......................................................................................           25


7. MEDICIÓN.............................................................................................................            25
   7.1 Medición en Baja Tensión..............................................................................                       25
       7.1.1 Cargas con Protección de hasta 70 amperios......................................                                       25
       7.1.2 Cargas con Protección de hasta 175 amperios...................................                                         25
       7.1.3 Cargas con Protección de hasta 1000 amperios................................                                           25
       7.1.4 Métodos de Instalación de Medición en Baja Tensión........................                                             25
   7.2 Medición en Media Tensión...........................................................................                         25
       7.2.1 Ubicación del Equipo de Medición de Media Tensión en Postes......                                                      26
       7.2.2 Ubicación del Equipo de Medición de Media Tensión en Cuartos....                                                       26


8. MEDIDOR CONTROLADOR............................................................................... 26

     8.1       Función...........................................................................................................   27
     8.2       Criterios de Instalación...................................................................................          27
     8.3       Ubicación........................................................................................................    27
     8.4       Características................................................................................................      27
     8.5       Clases de Medición........................................................................................           27
               8.5.1    Medidor Controlador en Baja Tensión (hasta 600 voltios)..............                                       27
4


                8.5.2        Medidor Controlador en Media Tensión (13.8 kV)....................... 27
                8.5.3        Suministro de Equipos..................................................................... 28



9. MÓDULO DE SEGURIDAD PARA TRANSFORMADORES DE MEDICIÓN EN                                                                           28
     BAJA TENSIÓN.................................................................................................................

     9.1        Características Generales...............................................................................             28
     9.2        Características Constructivas.........................................................................               28
     9.3        Ubicación........................................................................................................    29
     9.4        Suministro......................................................................................................     29


10. MÓDULO INDIVIDUAL PARA MEDIDORES                                                                          29
    AUTOCONTENIDOS...........................................................................................

       10.1  Características Generales.............................................................................                  29
       10.2  Características Constructivas.......................................................................                    29
            10.2.1 Módulo para Medidor Monofásico CL-100.....................................                                        29
            10.2.2 Módulo para Medidor Monofásico CL-200.....................................                                        30
            10.2.3 Módulo para Medidores Trifásicos CL-100 y CL-200....................                                              30
       10.3 Suministro....................................................................................................           31


11. MÓDULO INDIVIDUAL PARA MEDIDORES DE MEDICIÓN                                                                         31
    INDIRECTA...........................................................................................................

       11.1       Características Generales............................................................................. 31
       11.2       Características Constructivas....................................................................... 31
       11.3       Suministro.................................................................................................... 32



12. TABLERO DE MEDIDORES.............................................................................. 32

       12.1         Generalidades............................................................................................        32
       12.2         Instalación..................................................................................................    32
       12.3         Ubicación...................................................................................................     32
       12.4         Rotulación..................................................................................................     33
       12.5         Características Constructivas.....................................................................               33
       12.6         Altura de Montaje......................................................................................          33
       12.7         Distancias Mínimas Eléctricas...................................................................                 34
       12.8         Barras de Distribución...............................................................................            34
       12.9         Puesta a Tierra...........................................................................................       34
       12.10        Número de Tableros..................................................................................             35
       12.11        Tubería de Entrada y Salida.......................................................................               35


13. PUESTA A TIERRA............................................................................................. 35
5




      13.1       Generalidades............................................................................................      35
      13.2       Electrodos..................................................................................................   36
      13.3       Conductores...............................................................................................     36
      13.4       Trayectoria.................................................................................................   36
      13.5       Conexión....................................................................................................   36
      13.6       Resistencia.................................................................................................   37


14. CUARTOS PARA TRANSFORMADORES...................................................... 37

      14.1       Requerimientos..........................................................................................       37
      14.2       Ubicación...................................................................................................   37
      14.3       Características Constructivas.....................................................................             38
      14.4       Mantenimiento...........................................................................................       39
      14.5       Ductos de Entrada a Cuartos de Transformadores....................................                             40
      14.6       Centros de Distribución de Carga..............................................................                 40


15. TRANSFORMADORES....................................................................................... 40

      15.1     Protección de Transformadores en Media Tensión...................................... 42
               15.1.1 Cajas Fusibles................................................................................ 42
               15.1.2 Celdas de Media Tensión............................................................... 42

16. ACOMETIDA EN MEDIA TENSIÓN................................................................ 42

      16.1      Acometidas Aéreas....................................................................................           42
      16.2      Acometidas Subterráneas...........................................................................              43
      16.3      Características de las Canalizaciones........................................................                   43
               16.3.1 Trayectoria.....................................................................................          43
               16.3.2 Cajas de Paso.................................................................................            43
               16.3.3 Zanjas.............................................................................................       44
               16.3.4 Disposición de Ductos...................................................................                  44
               16.3.5 Recubrimientos..............................................................................              44


17. CONSIDERACIONES ADICIONALES.............................                                                                    44

      17.1      Generadores de Emergencia......................................................................                 44
      17.2      Factor de Potencia......................................................................................        45
      17.3      Motores y Artefactos.................................................................................           45
      17.4      Cargas Fluctuantes.....................................................................................         45
      17.5      Computadoras y otros Equipos Electrónicos Sensibles.............................                                46
      17.6      Rótulos y Anuncios Publicitarios..............................................................                  46
      17.7      Protección para Motores Polifásicos.........................................................                    46
      17.8      Distancias de Seguridad………………………………………………….                                                                     46
6


                              ANEXOS

ANEXO 1                                                                49
Procedimiento para aprobación de Proyectos Eléctricos
Tabla 1                                                            50
Intensidad máxima permanente admisible de conductores aislados……..
Ref. Tabla 310-16 (NEC)
Tabla 2                                                          51
Número máximo de conductores y cables de aparatos en ductos………..
Ref. Tabla C 8 (NEC)
Tabla 3                                                          52
Número máximo de conductores y cables de aparatos en ductos………..
Ref. Tabla C8 (NEC)
Tabla 4                                                               53
Intensidad a plena carga de los motores de corriente continua en Amp…
Ref. Tabla 430-147 (NEC)
Tabla 5                                                             54
Intensidad a plena carga (en Amp.) motores monofásicos de corriente
alterna……………………………………………………………………
Ref. Tabla 430-148 (NEC)
Tabla 6                                                                 55
Intensidad a plena carga de motores trifásicos de corriente alterna……..
Ref. Tabla 430-150 (NEC)
Tabla 7                                             56
Sección mínima de conductor de tierra………………………………….
Ref. Tabla 250-95 (NEC)
Tabla 8                                                         57
Tabla de conversión de intensidades de motores monofásicos………….
Ref. Tabla 430-151A (NEC)
Tabla 9                                                 58
Tabla de conversión de motores polifásicos……………………………..
Ref. Tabla 430-151B (NEC)
Tabla 10                                                               59
Intensidad máxima admisible o de disparo de dispositivos de protección
Ref. Tabla 430-152 (NEC)
Tabla 11                                                         60
Dimensiones de transformadores monofásicos de distribución………….
Tabla 12                                                         61
Dimensiones de transformadores trifásicos de distribución……………..
Tabla 13                                                         62
Dimensiones de transformadores monofásicos de distribución tipo
Padmounted……………………………………………………………...
Tabla 14                                                         63
Dimensiones de transformadores trifásicos de distribución tipo
Padmounted……………………………………………………………...
Tabla 15                                                         64
Cálculo de la potencia de batería de condensadores……………………..
Tabla 16                                                         65
Ampacidad de barras de cobre…………………………………………...
7




NORMAS DE ACOMETIDAS, CUARTOS DE TRANSFORMADORES Y SISTEMAS
       DE MEDICIÓN PARA EL SUMINISTRO DE ELECTRICIDAD


   DISPOSICIONES GENERALES

1.1    Objeto

El presente documento tiene por objeto establecer normas y disposiciones para el diseño y la
instalación de acometidas de servicio eléctrico, así como para la construcción de módulos de
medición individuales, tableros de medidores, cuartos de transformación, montaje de
transformadores monofásicos y/o trifásicos tanto convencionales como Padmounted para
inmuebles de tipo residencial, comercial, industrial y otros servicios.

1.2     Alcance

Estas Normas y disposiciones se aplicarán a todos los elementos y dispositivos de
conducción, transformación, medición, protección, control, cuartos de transformación y
demás elementos de los circuitos que transportan la energía eléctrica desde las redes del
Distribuidor.

Las Normas son de uso general y obligatorio. En caso de presentarse situaciones no
contenidas o no contempladas en éstas, serán sometidas a consideración del Distribuidor.

El Distribuidor no estará obligado a suministrar servicio de energía eléctrica cuando se
incumplan las disposiciones de las presentes Normas.

Las Normas de Acometidas, Cuartos de Transformación y Sistemas de Medición para el
Suministro de Electricidad (NATSIM) fueron elaboradas para dar cumplimiento a lo
establecido en el Art. 18 del Reglamento Sustitutivo del Reglamento de Suministro de
Electricidad.

1.3    Reformas

El NATSIM será revisado y actualizado de acuerdo con los avances tecnológicos y las
disposiciones del CONELEC.

1.4    Área de Aplicación

Las Normas contenidas en el NATSIM son de aplicación obligatoria en el área de concesión
del Distribuidor de suministro de electricidad y deberán cumplirse en todas las instalaciones
nuevas, ampliaciones y/o modificaciones de las instalaciones existentes. Debido a las
condiciones especiales de la infraestructura de las viviendas de los sectores urbanos
8


marginales de la ciudad de Guayaquil, cuando se diseñen los proyectos integrales de redes,
iluminación y medidores del programa del Fondo de Electrificación Rural y Urbano Marginal
(FERUM), financiados por el presupuesto del estado, se consideraran excepciones a esta
norma en la acometida y sistemas de medición.

1.5    Obligaciones del Consumidor.

El consumidor cumplirá con las obligaciones que establece la Constitución de la República
del Ecuador, la Ley Orgánica de Defensa del Consumidor, la Ley del Régimen del Sector
Eléctrico, Las Normas del NATSIM, las regulaciones dictadas por el CONELEC, Las
Ordenanzas Municipales, las obligaciones establecidas en el contrato de Suministro del
servicio de electricidad y todas las leyes y Reglamentos que rigen al sector eléctrico.

1.6    Límite de Responsabilidad

No será responsabilidad del Distribuidor, los daños y perjuicios a personas, propiedades del
consumidor o de terceros, causados por instalaciones eléctricas interiores defectuosas o por el
mal funcionamiento de equipos o dispositivos instalados en el predio del cliente. Tampoco
será obligación del Distribuidor verificar las instalaciones eléctricas interiores, ni los equipos
o dispositivos instalados en el predio.

Estas Normas se consideran como un conjunto de requisitos mínimos y por consiguiente, no
liberan al proyectista, ejecutor o dueño de la instalación de sus respectivas responsabilidades
de carácter civil, técnico o de cualquier otra índole, que provengan de leyes o reglamentos
nacionales o locales.

1.7    Idoneidad Profesional

Para dar cumplimiento a lo establecido en la Ley de Ejercicio Profesional de la Ingeniería,
todo trabajo técnico privativo de un Ingeniero Eléctrico deberá llevar obligatoriamente la
firma de responsabilidad del Ingeniero Eléctrico, activo y en ejercicio de sus derechos
certificados por el SENESCYT.

1.8    Uso de la Electricidad

El Distribuidor no será responsable por los daños a personas o propiedades del Consumidor o
terceros causados por el mal uso o una incorrecta aplicación de la electricidad, en equipos o
dispositivos instalados en el predio del cliente.

1.9    Facilidades en Propiedad Privada

Cuando se requiera instalar equipos del Distribuidor en los predios del cliente, los
propietarios deberán concederle, sin costo al Distribuidor, los derechos perpetuos y la
liberación de gravámenes de las áreas requeridas según las necesidades técnicas de acuerdo a
cada caso, incluyendo los derechos a la facilidad de ingreso y egreso al predio, para mantener
las adecuadas provisiones de servicio eléctrico. La forma y el contenido de la cesión de tales
derechos sobre el predio deberán ser aceptados y aprobados por el Representante Legal del
Distribuidor.
9


2.0      SERVICIOS

Este artículo contiene información sobre cómo obtener servicio eléctrico y las Normas
básicas que deberán ser cumplidas para garantizar condiciones de seguridad y calidad del
servicio, consecuentemente el Distribuidor se reserva el derecho de negar el servicio eléctrico
a cualquier instalación que no cumpla con estas Normas.

2.1      Condiciones de Servicio

El Distribuidor asume la responsabilidad de prestar servicio a los consumidores ubicados en
su área de concesión, de acuerdo a las normas establecidas en el Reglamento vigente de
Suministro, así como también el mantener el suministro de energía y la atención al
Consumidor, dentro de los límites de calidad previstos en las regulaciones correspondientes
que expide el CONELEC.

2.2      Oficinas de Atención a Consumidores

La información relativa a estas Normas o contratación de nuevos servicios eléctricos o
cambios en el servicio eléctrico actual; puede ser obtenida en las direcciones y teléfonos que
se señalan a continuación:


OFICINA                       DIRECCION                                     TELEFONO             FAX

Matriz                        Cdla. La Garzota Sect.3 Mz.47                   2628600            2628451

Agencia California            C.C: California – Bloque L – Local 13      2628285 – 2628295
                              Carretero a Daule Km 11 1-2 (Frente a            3801900
                              PECA)                                     Ext. 4102; 4103; 4104;
                                                                              4105; 4106
Agencia Sur                   El Oro y Eloy Alfaro                             3801900
                                                                        Ext. 5050; 5067; 5068
Agencia San Eduardo           Prolongación Portete                             2628600
                                                                               Ext. 4084
Agencia Norte                 Av. Dr. Emilio Romero                            3801900
                              Menéndez y la Primera
Alumbrado Público             Ciud. Los Ceibos Junto al Teatro Centro         2001171            2000957
                              de Arte
Emergencias–Call Center       Av. Dr. Emilio Romero                           3802000
                              Menéndez y la Primera                           3801900
Sección Redes                 Av. Dr. Emilio Romero                           3801900
                              Menéndez y la Primera                           Ext. 5024
Dpto. Medidores               Av. Dr. Emilio Romero                           3801900
                              Menéndez y la Primera                           Ext. 4932
Sección Estudios Eléctricos   Av. Dr. Emilio Romero                           3801900
                              Menéndez y la Primera                           Ext. 5113
Sección      Diseño       y   Av. Dr. Emilio Romero                           3801900
Presupuesto                   Menéndez y la Primera                           Ext. 4933
Consultas y Proyectos         Av. Dr. Emilio Romero                           3801900
                              Menéndez y la Primera                     Ext. 5153-5154-5155
Obras    Municipales      y   Av. Dr. Emilio Romero                           3801900
Fundaciones                   Menéndez y la Primera                           Ext. 4933
Urbanizaciones y Redes        Av. Dr. Emilio Romero                           3801900
                              Menéndez y la Primera                           Ext. 4963



2.3       Disponibilidad del Servicio
10


Previo a proyectar, diseñar, construir e instalar o de proceder a la adquisición de equipos
eléctricos, el Consumidor consultará con el Distribuidor acerca de la clase de servicio que se
le podrá suministrar.

El Distribuidor no será responsable por la información proporcionada verbalmente referente a
los tipos de servicios disponibles en una dirección específica, a menos que tal información
sea confirmada por escrito por un representante autorizado del Distribuidor.

2.3.1 Solicitud para Servicio Eléctrico

Las solicitudes deberán ser realizadas por el consumidor personalmente o a través de una
comunicación dirigida al Distribuidor.

Las solicitudes de servicio de tipo residencial, comercial e industrial, cuya carga conectada
sea mayor a 15 kW, serán atendidas por el Distribuidor solamente cuando el diseño y la
instalación interior hayan sido realizados bajo la firma de responsabilidad de un Ingeniero
Eléctrico en el ejercicio de sus derechos. En este caso el Distribuidor exigirá la presentación
de un proyecto eléctrico. Para conocer el procedimiento de aprobación de proyectos, el
interesado deberá referirse al anexo número 1.

El Distribuidor sólo suministrará servicio eléctrico definitivo a inmuebles o predios con
autorización de la Muy Ilustre Municipalidad de Guayaquil.

2.3.2 Servicio Eléctrico Definitivo

Es el servicio eléctrico suministrado por el Distribuidor dentro de su área de concesión,
previo a la presentación del permiso municipal de inspección final y al pago del depósito en
garantía por el consumo de energía, así como de los cargos requeridos por inspección y
aportación a las mejoras de la red de distribución. Cuando se trate de cambios o
modificaciones de un servicio existente, se deberá considerar un ajuste en el depósito en
garantía, además de los otros cargos mencionados. En cualquier caso, se aplicará la tarifa
correspondiente aprobada por el CONELEC.

2.3.3   Servicio Eléctrico Ocasional

Es el servicio eléctrico suministrado por el Distribuidor dentro de su área de concesión, a
ferias, circos, actos públicos u otros que no requieran de un uso continuo o por períodos
suficientemente largos que justifiquen la instalación de un servicio definitivo.

El Distribuidor suministrará servicio eléctrico ocasional en los casos que, luego de un análisis
técnico ceñido a la presente Norma, sea posible el suministro de dicho servicio. Se aplicarán
los cargos, aportaciones, depósitos y tarifas, mencionadas en el numeral anterior.

Para este servicio se podrá instalar un medidor provisional para el registro del consumo y
facturación de la energía utilizada.

Cuando se apruebe el proyecto eléctrico de una obra, se verificará que la misma cuente con
un servicio eléctrico, cuyo consumo se registre a través de un medidor provisional de
construcción, y en caso de no tenerlo, en la misma solicitud se autorizará la contratación del
servicio mencionado.
11




2.3.4 Incrementos de Carga

El suministro de servicio por parte del Distribuidor normalmente suple el requerimiento de
las instalaciones iniciales del Consumidor. Cuando se contemple la instalación de cargas
adicionales, por parte del Consumidor, este deberá notificar con la debida anticipación al
Distribuidor para cubrir estos requerimientos. El Consumidor no deberá realizar aumentos de
carga a menos que el Distribuidor le haya notificado que puede suplir satisfactoriamente la
carga eléctrica adicional.

2.4   Clases de Servicios

El servicio eléctrico se suministrará en forma de corriente alterna, monofásico o trifásico
sólidamente aterrizado, con una frecuencia nominal de 60 ciclos por segundo. Los voltajes
de servicio, listados a continuación, están disponibles dependiendo de la localización del
Consumidor y la naturaleza de la carga. Las tensiones se clasifican en: baja, media y alta. El
Distribuidor en condiciones normales mantendrá la regulación de la tensión dentro de los
límites establecidos por el CONELEC.

2.4.1 Baja Tensión

Sistema Monofásico

120 Voltios – 2 hilos monofásicos. Este servicio se suministra para demandas hasta 3 kW.
120/240 Voltios - 3 hilos monofásico. Este servicio se suministra para demandas hasta 30
kW.
120/208 Voltios - 3 hilos monofásico. Este servicio se suministra para demandas hasta 30 kW
en los sectores donde se disponga de un sistema trifásico a 120/208 V, de lo contrario será
necesario instalar un banco de transformadores particular.

Sistema Trifásico

120/240 Voltios - triángulo 4 hilos trifásico con neutro solidamente aterrizado. Este servicio
se suministra para cargas trifásicas mayores a 4 kW siempre que la demanda total del
inmueble no sea mayor a 30 kW.
120/208 Voltios - estrella 4 hilos trifásico con neutro solidamente aterrizado. Este servicio se
suministra para condiciones similares a las descritas en el literal anterior y en los sectores
donde se disponga de este servicio. Las cargas monofásicas deben ser balanceadas entre las
fases.

2.4.2 Media Tensión

El Distribuidor suministrará el servicio eléctrico a nivel de media tensión en los siguientes
casos, independientemente si la medición se encuentra en el lado primario o secundario del
transformador:

a) Sistema Monofásico a 13,800/√3 voltios

Este servicio se suministrará al voltaje indicado, cuando la demanda del predio sea mayor a
30 kW y menor a 90 kW y su capacidad total instalada no exceda de 100 kVA monofásico.
12




b) Sistema Trifásico a 13,800 voltios.

Este servicio se suministrará al voltaje indicado, cuando la demanda trifásica del predio sea
mayor a 30 kW y menor a 1,000 kW.

Nota: Cuando un abonado requiera un servicio con medición en baja tensión y con voltaje
diferente a: 120/208V, 127/220V o 120/240V, consultará con el Distribuidor la factibilidad
del suministro.

2.4.3 Alta Tensión

Sistema Trifásico a 69,000 voltios.

Este servicio se suministrará al voltaje indicado, cuando la demanda del consumidor sea
mayor a 1,000 kW, para cuyo efecto el interesado deberá instalar una subestación de poder de
su propiedad.

2.5   Control Posterior y Límite de Responsabilidad

El Distribuidor, después de concedido el servicio, podrá realizar inspecciones a las
acometidas, equipos de medición, tableros o armarios para medidores, cámaras de
transformación e instalaciones interiores, y en caso de existir anomalías o disconformidades
con el proyecto previamente aprobado, procederá a negar o a suspender el servicio hasta que
se realicen las correcciones necesarias.

2.6    Uso no autorizado de Energía Eléctrica

Se prohíbe remover, relocalizar, utilizar fraudulentamente cualquier método, dispositivo o
mecanismo clandestino o no, para alterar los sistemas de medición o aparatos de: control,
medida o registro de energía eléctrica, o efectuaren conexiones directas no autorizadas por el
distribuidor, destruyeren, perforaren o manipularen las acometidas, en perjuicio de la
Distribuidora. El incumplimiento de esta disposición será considerado como infracción y
ocasionará la aplicación directa de multas de acuerdo al contrato de suministro, sin perjuicio
de iniciar las acciones legales pertinentes con la aplicación de la ley de Régimen del Sector
Eléctrico, relacionado a delitos y sanciones y la aplicación del Código Penal.

2.7   Información sobre Corrientes de Falla o Cortocircuito

En caso de requerirse información relacionada sobre las corrientes de falla o cortocircuito, el
Consumidor podrá obtenerla en la Sección de Estudios Eléctricos del Departamento de
Ingeniería.


3.    TERMINOLOGIA

3.1   Acometida
13


Es un conjunto de conductores y equipos utilizados para suministrar la energía eléctrica,
desde el sistema de distribución de media y baja tensión del Distribuidor hasta las
instalaciones del Consumidor.

3.2    Acometida en Baja Tensión

Es la que se conecta a una red de baja tensión con un voltaje hasta 600 V.

3.3    Acometida en Media Tensión

Es la que se conecta a una red de distribución sobre 600 voltios y hasta 15 kV y
comprende los conductores de alimentación con sus accesorios, desde dicha red hasta los
bornes del transformador o hasta el equipo de medición en media tensión, en caso de existir.

3.4     Acometida Monofásica

Es aquella que arranca desde la red del Distribuidor con uno o dos conductores activos y uno
conectado al neutro o tierra de referencia del sistema.

3.5    Acometida Trifásica

Es aquella que arranca desde la red del Distribuidor con tres conductores activos y uno
conectado al neutro o tierra de referencia del sistema.

3.6     Acometida Individual

Es aquella que da servicio a un solo Consumidor y comprende la línea de alimentación con
sus accesorios, desde la red de distribución hasta el punto de entrega de la energía.

3.7    Acometida Colectiva

Sirve a dos o más Consumidores en un mismo inmueble y comprende la línea de
alimentación con sus accesorios, desde la conexión a la red secundaria de distribución hasta
el punto de entrega de la energía.

3.8    Acometida Provisional

Es aquella que se instala para suministrar servicio eléctrico durante corto tiempo, como
sucede en las construcciones o servicios ocasionales.

3.9    Ampacidad

Es la máxima corriente en amperios que un conductor o equipo puede transportar
continuamente, bajo condiciones específicas de uso, sin exceder su límite de temperatura.

3.10   Base (socket)

Es el elemento sobre el cual se realiza el montaje del medidor (tipo socket)

3.11   Conductores de Señal
14




Es un cable de control concéntrico con chaqueta externa de policloruro de vinilo (PVC),
conformado por 8 conductores de cobre # 12 AWG, aislados individualmente con PVC, y que
interconecta las borneras de control de los transformadores de corriente (TC) y de los
transformadores de potencial (TP) con los medidores para medición indirecta.

3.12   Consumidor

Es una persona natural o jurídica que recibe el servicio eléctrico debidamente autorizado por
el Distribuidor dentro de su área de concesión. Incluye al Consumidor Final, al autoproductor
y al Gran Consumidor.

3.13   Disyuntor

Se entiende por disyuntor al interruptor provisto de dispositivos para la desconexión
automática en caso de sobrecarga o cortocircuito en la respectiva instalación.

3.14   Electrodo de Puesta a Tierra

Es un dispositivo cuya función es asegurar un buen contacto con el terreno circundante, que
se conecta mediante un conductor al objeto, equipo, instalación o circuito que requiera
conexión a tierra.

3.15   El Distribuidor

Es la Empresa eléctrica que asume la obligación de prestar el servicio público de suministro
de electricidad a los consumidores, dentro de su área de concesión.

3.16   Factor de Potencia

Es un indicador del correcto aprovechamiento de la energía eléctrica y se la define como la
relación entre la potencia activa (kW) y la potencia aparente (kVA).

3.17   Zona de Servicio

Es la superficie circular que tenga como radio 200m a partir de los transformadores,
existentes en los sistemas de distribución.

3.18   Interruptor

Es un dispositivo que interrumpe la alimentación a un circuito. Su capacidad está dada en
amperios y puede interrumpir el circuito con la carga a la tensión nominal para la que fue
diseñado.

3.19   Medidor

Es un equipo electro–mecánico o electrónico que registra el consumo de energía y otros
parámetros eléctricos requeridos por el Distribuidor y el Consumidor.

3.20   Medidor para Medición directa Auto-contenido
15




Es un equipo electro-mecánico o electrónico que registra el consumo de energía, demanda y
otros parámetros eléctricos requeridos por el Distribuidor y el Consumidor. Para su
funcionamiento, utiliza directamente las señales de corriente y voltaje, y no requiere
transformadores de medición.

3.21   Medidor para Medición Indirecta

Es un equipo electrónico que registra el consumo de energía, demanda y otros parámetros
eléctricos requeridos por el Distribuidor y el Consumidor. Para su funcionamiento utiliza
señales de control provenientes desde los transformadores de medición.

3.22   Medidor de Servicios Generales

Es el medidor que registra el consumo de energía en un predio o inmueble, de las áreas y
equipos eléctricos de uso comunitario, de los diferentes usuarios.

3.23   Medidor de Consumo general

Es el medidor que realiza la medición integral de la potencia y la energía entregada por el
Distribuidor a un predio o inmueble en el que existan múltiples usuarios del servicio eléctrico
con medidores individuales, pero que no cuenten con medidor o medidores de servicios
generales.

El Distribuidor facturará a la administración del edificio la diferencia entre el valor de los
kWh registrados en el Medidor de Consumo General y la sumatoria de los kWh registrados
por los múltiples medidores instalados.

3.24   Medidor Controlador

Es el medidor que registra la energía total entregada a un predio o inmueble, en cuyo interior
se ha instalado un conjunto de medidores.

Por razones estrictamente técnicas este medidor será considerado como un medidor de
Consumo General.

3.25 Medidor Controlador de Circuito

Es aquel que realiza la medición integral de la potencia y la energía entregada por el
Distribuidor a un circuito secundario en el que existen múltiples usuarios del servicio
eléctrico.

3.26   Servicio Eléctrico

Es el servicio de energía eléctrica que suministra el Distribuidor a los Consumidores, desde
sus redes de distribución de baja, media y alta tensión, amparado en el contrato de suministro.

3.27   Tablero General de Medidores
16


Es un armario que contiene los equipos de medición y protección de un determinado predio,
cuyo diseño debe ser aprobado por el Distribuidor.

3.28   Punto de entrega

        Se entenderá como tal, el lado de la carga del sistema de medición, es decir los
terminales de carga del medidor en los sistemas de medición directa y el lado secundario de
los transformadores de corriente en los sistemas de medición indirecta, independientes de
donde estén ubicados los transformadores de tensión.

3.29    Reversible

Es el dispositivo mecánico que instalado al inicio de las tuberías en su parte aérea impide el
ingreso de agua al interior de las mismas.

3.30    Reglamento de Suministro

Es el reglamento Sustitutivo del Reglamento de Suministro del Servicio de Electricidad,
expedido mediante Decreto Ejecutivo 796, del 10 de noviembre del 2005, publicado en el
Registro Oficial Nº 150 del 22 de noviembre del 2005.


4.      ACOMETIDAS

4.1    Requisitos Generales

Las acometidas son aéreas o subterráneas. En los sectores donde el sistema de distribución
es subterráneo, las acometidas también deberán serlo y para la construcción de su
canalización los conductores deberán obtener la respectiva autorización de la Municipalidad
de Guayaquil y poner en conocimiento de las otras empresas de servicios básicos los trabajos
a realizarse con al menos 72 horas de anticipación, previo al inicio de la excavación.

4.1.1 Número de Acometidas Permitidas

Cualquier inmueble o predio será servido solamente por una acometida.

4.1.2 Suministro e Instalación de Conductores de Acometida

Los conductores para acometidas serán suministrados e instalados por el Distribuidor previo
la contratación del servicio eléctrico en la Sección Servicio al Cliente.

La conexión de los conductores de acometida con las líneas de distribución de baja, media y
alta tensión, será realizada única y exclusivamente por el personal autorizado por el
Distribuidor.

4.1.3 Conexiones y Empalmes en los Conductores de Acometida

No se instalará una acometida a través de un solar o inmueble ajenos a la instalación que se
está efectuando.
17


No se permitirá conexión o empalme en los conductores de acometida. La ejecución de estas
instalaciones será considerada como una infracción, que será sancionada según se estipula en
el Contrato de Suministro de Servicio Eléctrico.

4.1.4 Canalización para los Conductores de Acometida

La canalización para los conductores de acometida se construirá con tubería metálica rígida
aprobada para uso eléctrico en toda su trayectoria.

En canalizaciones de acometidas de media tensión podrá emplearse tubería plástica tipo
pesada, con recubrimiento de hormigón, exceptuándose aquella que baja junto al poste de
arranque de acometida y el tramo que ingresa al predio hasta el sitio de medición, cuarto de
transformación, o centro de carga.

4.1.5 Tubería de Entrada de Acometida

La tubería de acometida entrará sin ninguna derivación, desde el exterior del inmueble
directamente al medidor, al tablero general de medidores o al cuarto de transformación.

4.1.6 Curvatura de las Tuberías de Acometida

Las tuberías para acometidas no tendrán más curvas que el equivalente a 2 ángulos rectos
(180 grados); cuando sea necesario hacer más de 2 curvas, éstas se evitarán construyendo
cajas de revisión, cuyas dimensiones permitirán el paso adecuado de los conductores
exclusivamente de la acometida.

Las curvas en las tuberías se harán de modo que éstas conserven su sección circular; los
radios de las curvas no serán menores que 6 veces el diámetro nominal de la tubería.

4.1.7 Diámetro Mínimo de las Tuberías de Acometida

El diámetro interior mínimo para las tuberías de acometida en baja tensión será:



Acometidas monofásicas hasta 70 amperios:             1 1/4”              32mm
Acometidas monofásicas hasta 150 amperios:              2”                50mm
Acometidas trifásicas hasta 70 amperios:                2”                50mm
Acometidas trifásicas hasta 125 amperios:              2 ½”               63mm

Para acometidas en media tensión con dos conductores (incluyendo el neutro), el diámetro
interior de la tubería de entrada de acometida será de 3” (75mm); para acometidas en media
tensión de más de dos conductores, el diámetro de la tubería será de 4” (100mm) La tubería
que contiene los conductores de señal será de 1 ¼” (32mm) de diámetro.

4.1.8   Conductores en las Tuberías de Acometida

Sólo se permitirá instalar en las tuberías de acometida eléctrica los conductores que
correspondan a la acometida y los de puesta a tierra.
18




4.2   ACOMETIDAS AÉREAS EN BAJA TENSIÓN

4.2.1 Aislamiento de los Conductores de Acometida

Los conductores de acometida tendrán una cubierta aislante tipo TTU, THW o similares que
resista la exposición a la intemperie y otras condiciones. El conductor del neutro aterrizado
de la acometida podrá ser desnudo o aislado.

4.2.2 Tamaño Mínimo de los Conductores de Acometida

Los conductores de acometida tendrán una capacidad de transporte de corriente que esté de
acuerdo con la demanda máxima a servir, sin que haya un aumento de temperatura perjudicial
para el aislamiento de los mismos y tendrán la resistencia mecánica adecuada.

En todo caso, el tamaño mínimo de los conductores de acometida será:

           Acometida Aérea                    Conductores Mínimos

2 conductores                 Duplex, ASC, No. 6 AWG
3 conductores                 Triplex, ASC o ACSR, No. 4 AWG
4 conductores                  Cuadruplex, ASC o ACSR No. 4 AWG
2 conductores                 2 # 6 AWG tipo anti hurto
3 conductores                 2 # 6 + 1 # 6 AWG tipo anti hurto

4.2.3 Ubicación de la Tubería de Entrada de Acometida

El extremo de la tubería de entrada de acometida en un inmueble estará ubicado del lado del
poste de distribución más cercano al inmueble. No se permitirá que la acometida cruce
predios o propiedades contiguas. Ver figura 1.

4.2.4 Altura de los Conductores de Acometida

Por razones de seguridad, las acometidas tendrán las siguientes separaciones mínimas con
relación al piso o calzada:

Si los conductores del secundario del sector pasan por la acera opuesta, la separación mínima
de seguridad será de 5.50 metros con relación a la calle. Ver figuras 2 y 3.

Si los conductores del secundario pasan por la misma acera, la separación mínima de
seguridad será de 3 metros con relación al piso terminado. Ver figura 4.

Los conductores de entrada de acometida tendrán una separación horizontal mínima de 0.90
m. con relación a ventanas, puertas, balcones y escaleras o cualquier localización similar que
permita el acceso o la aproximación de personas a los conductores.

4.2.5 Punto de Fijación de los Conductores de Acometida

El punto de fijación de los conductores de acometida estará en el cerramiento frontal, en un
pilarete, o en la fachada del inmueble de no existir dicho cerramiento. En todos los casos, el
19


punto de fijación estará a una altura mínima de 3.00 metros sobre el suelo y permitirá el
cumplimiento del numeral 4.2.4 en cuanto a separaciones mínimas. Ver figuras 2, 3, 4, 6, 7,
8 y 13.

Cuando se necesite un poste para alcanzar la altura exigida, éste deberá ser de hormigón,
metal, o madera, según el caso, de tal forma que resista los esfuerzos impuestos por la
acometida. Ver figuras 3 y 8.

El punto de fijación deberá ser siempre accesible desde una escalera apoyada en el suelo.

4.2.6 Medios de Fijación de los Conductores de Acometida

Se usarán abrazaderas, tuercas de ojo, ganchos soportes, pernos de ojo, aisladores de
garrucha, amarras preformadas y aisladores tripa de pato.

Los conductores de acometida se instalarán con la ayuda de un cable mensajero hasta el
punto de fijación. Cuando se utilicen cables trenzados (cable Multiplex), el cable mensajero
será el mismo conductor neutro. Ver figuras 2, 3, 6, 7,8 y 9.

4.2.7 Reversible en la Entrada de Acometida

La tubería de entrada de acometida estará provista de un reversible para evitar el ingreso de
aguas lluvias, a través del cual los conductores de distintas fases pasarán por huecos
diferentes de la boquilla.

Dicho reversible se ubicará aproximadamente a 20 centímetros por encima o debajo del
punto de fijación de la acometida. Ver figuras 2, 3, 6, 7, 8, 14 y 15.


4.3    ACOMETIDAS SUBTERRÁNEAS EN BAJA TENSIÓN

4.3.1 Aislamiento de los Conductores de Acometida

Los conductores de acometidas subterráneas serán cables monoconductores con aislamiento
tipo TTU, RHW, THW o equivalentes.

El calibre de los conductores será determinado por la demanda.

4.3.2 Calibre Mínimo de los Conductores de Acometida

Para acometidas subterráneas, el calibre mínimo será: # 4 AWG Cu TTU

4.3.3 Trayectorias de las Acometidas

Para acometidas subterráneas provenientes de un sistema de distribución subterráneo, la
acometida partirá de una caja de revisión, interceptando la canalización subterránea del
secundario del sector. Dicha caja se ubicará de tal forma que la canalización de entrada de
acometida se construya con un tramo recto a 90°, hasta llegar al sitio de medición. Ver figura
10.
20


Para acometidas subterráneas provenientes de un poste del sistema de distribución aéreo, se
construirá una caja de revisión al pie del poste de arranque de la acometida y las que sean
necesarias hasta ubicarse frente al sitio de medición e ingresar al predio con un tramo recto a
90°. Ver figuras 11 y 12.

4.3.4    Suministro e Instalación de las Tuberías

Cuando un abonado solicite acometida subterránea, suministrará e instalará por su cuenta
toda la tubería metálica que se requiera, desde el sistema de distribución hasta el medidor o
tablero de medidores. El diámetro mínimo permitido será de 2”.

4.3.5    Protección Mecánica

Los conductores de acometidas subterráneas se protegerán contra daños físicos instalándolos
en tubería metálica rígida, aprobada para uso eléctrico. Si la acometida se deriva desde un
poste, la tubería partirá desde una altura de 6 metros y bajará a una caja de paso de hormigón
simple de 0.6x0.6x0.6m. construida junto al poste, desde la cual continuará hasta llegar al
medidor o tablero de medidores y rematará con una tuerca corona. Ver figuras 11 y 12.


5.       DISYUNTORES

5.1      Disyuntor Principal

Todo inmueble con servicio eléctrico incluirá en su instalación de acometida un disyuntor
principal que servirá de medio de desconexión y protección de los conductores activos de la
instalación interna del inmueble cuando existan sobrecargas o cortocircuitos.

5.2     Ubicación

El disyuntor principal se instalará en un lugar de fácil acceso e inmediatamente a la salida
del medidor. Cuando se trate de un tablero de medidores, el disyuntor principal se ubicará
preferiblemente en el compartimiento de las barras de distribución.

El disyuntor principal no puede ser instalado a más de 10m desde los bornes secundarios del
transformador.

5.3     Disposición de los Disyuntores Parciales

En inmuebles que requieran la instalación de un tablero de más de un medidor, los
disyuntores parciales se instalarán junto a cada medidor en su módulo correspondiente.

5.4     Ampacidad

El disyuntor principal tendrá una ampacidad no menor que la correspondiente a la demanda
máxima de la carga instalada y no mayor del 125% de la ampacidad permisible del conductor
utilizado. La capacidad interruptora del disyuntor deberá ser mayor o igual que la máxima
corriente de cortocircuito en sus terminales.
21


Los disyuntores principales utilizados en las acometidas en baja tensión tendrán una
ampacidad mínima de 30 amperios.

Cuando la ampacidad permisible de un conductor no corresponda a la ampacidad
normalizada de un disyuntor no regulable, se utilizará un disyuntor con la ampacidad
inmediata superior.

Los disyuntores regulables se los graduará a un valor no mayor del 125% de la ampacidad
de corriente permisible de los conductores.

5.5    Posición de operación

Los disyuntores mostrarán claramente sus posiciones de cierre y apertura. Por razones
estrictas de seguridad la alimentación de corriente se conectará a los terminales del lado de
entrada (ON), y los conductores que van hacia la carga en los terminales del lado de salida
(OFF).

5.6    Protección Mecánica

Los disyuntores estarán protegidos por una caja metálica o de policarbonato o acrílico con
tapa, que permita su operación manual.

5.7    Desconexión

El disyuntor desconectará simultáneamente todos los conductores activos. El conductor del
neutro no tendrá ningún medio de desconexión.

5.8    Conexiones

Los conductores activos serán conectados a los disyuntores mediante dispositivos de presión,
compresión, grapas u otros medios equivalentes, los mismos que serán suministrados e
instalados por el Consumidor.


6.     MEDIDORES Y SUS BASES (SOCKETS)

6.1   Suministro de la Base (socket)

Los medidores tipo socket serán instalados en una base que será suministrada e instalada por
el Consumidor dentro del módulo correspondiente, junto con su disyuntor de protección.

La base (socket) deberá contar reglamentariamente con un dispositivo que permita la
colocación de sellos de seguridad numerados, que instalará el Distribuidor para prevenir el
acceso al equipo de medición por personas no autorizadas.

6.2   Tipos de Bases (socket)

       Los diferentes tipos de bases socket que utiliza la Empresa son los siguientes:

Base (socket) monofásica de 100 amperios para 120/240 voltios, 4 terminales.
22




Base (socket) monofásica de 100 amperios, 120/208 voltios, 5 terminales.

Base (socket) monofásica de 200 amperios para 120/240 voltios, 4 terminales.

Base (socket) monofásica de 200 amperios para 120/208 voltios, 5 terminales.

Base (socket) monofásica de 20 amperios para medición con transformadores de corriente, 5
terminales.

Base (socket) monofásica de 20 amperios para medición con transformadores de corriente, 6
terminales.

Base (socket) trifásica de 100 amperios, 7 terminales.

Base (socket) trifásica de 200 amperios, 7 terminales.

Base (socket) trifásica de 20 amperios para medición con transformadores de corriente, 13
terminales.




                          FABRICANTES Y TIPOS ACEPTADOS POR EL DISTRIBUIDOR

                                            TIPO DE
                DESCRIPCIÓN                SERVICIO    FABRICANTE


        Socket, 1F, CL-20, 5 terminales      1F- 3H    General Electric
                                             >175 A    Milbank
                                                       Anchor/Thomas&Betts

        Socket, 1F, CL-20, 6 terminales      1F- 3H    General Electric
                                             >175 A    Milbank
                                                       Anchor/Thomas&Betts

        Socket, 3F, CL-20, 13 terminales     3F- 4H    General Electric
                                             >175 A    Milbank
                                                       Anchor/Thomas&Betts

        Socket, 1F, CL-100, 4&5            1F- 2H y 3H General Electric
        terminales                            <70 A    Milbank
                                                       Anchor/Thomas&Betts

        Socket, 3F, CL-100, 7                3F- 4H    General Electric
        terminales                           <70 A     Milbank
                                                       Anchor/Thomas&Betts

        Socket, 1F, CL-200, 4&5             1F- 3H     General Electric
        terminales                          >70 A y    Milbank
                                            <175A      Anchor/Thomas&Betts

        Socket, 3F, CL-200, 7               3F- 4H     General Electric
        terminales                          >70 A y    Milbank
                                            <175A      Anchor/Thomas&Betts
23


Se aceptará cualquier otra base aprobada mediante informe técnico del laboratorio del
Departamento de Medidores de la Distribuidora.

6.3   Ubicación de la Base ( socket )

La base (socket) para el medidor, contenida dentro del módulo de medición, se instalará
vertical y horizontalmente nivelada, con el propósito de que el medidor registre con
precisión.

No se permitirá la instalación de la base (socket) en ambientes de elevada humedad,
temperatura o vibraciones, tales como: cuartos de bombas, cuartos para calderos o cuartos
para generadores, que puedan afectar el mecanismo u operación del medidor.

6.4   Conexión de la Base (Socket)

No más de un conductor debe ser conectado a cada uno de los terminales eléctricos de las
bases (sockets), no debiéndose utilizar dichos terminales para efectuar conexiones a otros
circuitos.

Las bases (sockets) para servicio 1F 120/208V deberán disponer de un quinto terminal
ubicado horizontalmente en el lado izquierdo, el mismo que deberá ser conectado al sistema
de neutro puesta a tierra.

En las bases (sockets) para servicio 1F-3F; 120/240V la línea de fuerza de la acometida
deberá conectarse en el terminal derecho de la base (socket).

6.5    Suministro del Equipo de Medición

Los equipos de medición en baja y media tensión serán suministrados e instalados por el
Distribuidor y serán de su propiedad, además será responsable por el mantenimiento de los
mismos.

El equipo de medición en alta tensión y en media tensión en cabina, por las particulares
características de sus instrumentos y accesorios, será suministrado por el Consumidor,
cuando el Distribuidor así lo requiera. Las especificaciones y características técnicas del
equipo, así como sus accesorios serán determinadas por el Distribuidor y aceptadas previas
pruebas técnicas.

Los transformadores de instrumentos para la medición no serán utilizados para ningún otro
fin.

6.6   Tipos de Medidores

Los diferentes tipos de medidores que utiliza el Distribuidor son los siguientes:

Medidores electromecánicos y electrónicos sólo con registro de energía activa:

Medidor socket monofásico, auto-contenido, 2 hilos CL-100, forma 1S, “SO”
Medidor socket monofásico auto-contenido, 3 hilos CL-100, forma 2S, “SI”
Medidor socket monofásico, auto-contenido, 3 hilos CL-200, forma 2S, “SL”
24


Medidor socket monofásico network, auto-contenido, 3 hilos, Y, CL-100, forma 12S, “SIY”
Medidor socket monofásico network, auto-contenido, 3 hilos, Y, CL-200, forma 12S “SLY”

Medidores electrónicos con registros de energía activa, reactiva, demanda y Tiempo de Uso
(TOU):

Medidor socket monofásico, auto-contenido, 3 hilos CL-200, forma 2S, “EL”
Medidor socket monofásico network, auto-contenido, 3 hilos, Y, CL-200, forma 12S,
“ELY”,
Medidor socket monofásico, para uso con transformadores de medida, 2 hilos CL-20, forma
3S, “EB5”
Medidor socket monofásico, para uso con transformadores de medida, 3 hilos CL-20,
forma 4S, “EB6”
Medidor socket polifásico, auto-contenido, 4 hilos, Y o D, CL-200, poli voltaje, forma 16S,
“EZLV ”
Medidor socket polifásico, para uso con transformadores de medida, 4 hilos, Y o D, CL-20,
poli voltaje, forma 9S, “EZAV”.

Nota: La Distribuidora utilizará de acuerdo a sus programas de modernización, cualquiera de
los medidores electrónicos anteriormente descritos, equipados con tarjeta de comunicación
de Radio Frecuencia (RF) o con cualquier otro equipo de transmisión de datos.

6.7   Ubicación del Medidor Individual

El medidor se ubicará en un lugar de fácil y libre acceso para el personal del Distribuidor y lo
más cerca posible del punto de conexión al sistema de distribución, de acuerdo a los
siguientes casos:

6.7.1 Edificaciones Nuevas

El medidor individual deberá instalarse en el cerramiento frontal del inmueble o en un
pilarete ubicado en el lindero frontal del solar. Ver figuras 2, 3, 4, 9, 13, 14 y 15.

El medidor podrá instalarse en la fachada frontal o en el cerramiento lateral del inmueble
siempre y cuando no exista cerramiento frontal, ni se prevea su construcción a futuro, y
además se disponga de libre acceso al sitio donde se proyecta instalar el medidor. Ver figuras
5, 6, 7 y 8.

Si la medición es indirecta, el medidor se instalará en el cerramiento frontal del inmueble o
en una de las paredes del lado exterior del cuarto de transformación de tal manera que su
ubicación tenga fácil y libre acceso desde la vía pública y esté de acuerdo con el proyecto
previamente aprobado por el Distribuidor. Ver figuras 28, 29 y 30.

6.7.2 Edificaciones Existentes (con servicio eléctrico previo)

En caso de servicios existentes, el Distribuidor podrá exigir la reubicación del medidor
individual al cerramiento frontal, a la fachada frontal en caso de no haber cerramiento, o
excepcionalmente al cerramiento lateral, cuando permita la fácil toma de lectura y el libre
acceso desde la vía pública por parte del personal del Distribuidor.
25


6.8      Altura del Módulo Individual de Medidores

La altura a la que se colocará el módulo individual de medidores permitirá que el eje del
medidor se encuentre entre 1.80m y 2.00m con respecto al piso terminado. Ver figuras 2, 3,
4, 6, 7, 11, 12, 14 y 15.

6.9     Colocación de Sellos

El medidor se instalará en la base (socket), y será sellado por el personal del Distribuidor. La
ruptura de un sello de seguridad instalado por el Distribuidor será considerada como una
infracción, que será sancionada según se estipula en el Contrato de Suministro del Servicio
Eléctrico.


7.       MEDICIÓN

En este capítulo se resumen los métodos más comunes de medición utilizados por el
Distribuidor, con el propósito de registrar la energía suministrada al Consumidor.

7.1      Medición en Baja Tensión

La medición en baja tensión se aplicará para demandas de hasta 300 kilovatios.


7.1.1    Cargas con Protección hasta 70 amperios

Cuando la carga de un Consumidor requiera de la protección de un disyuntor hasta 70
amperios, la medición se hará por medio de un medidor auto-contenido clase 100, tipo
socket.

7.1.2    Cargas con Protección hasta 175 amperios

Cuando la carga de un Consumidor requiera la protección de un disyuntor de ampacidad
mayor de 70 amperios y hasta 175 amperios, la medición se hará por medio de un medidor
auto-contenido clase 200, tipo socket.

7.1.3     Cargas con Protección hasta 1000 amperios

Cuando la carga de un Consumidor requiera de la protección de un disyuntor de ampacidad
mayor de 175 amperios y hasta 1,000 amperios, la medición se hará utilizando medidores
clase 20, tipo socket con transformadores de corriente.

7.1.4     Métodos de Instalación de Medición en Baja Tensión

La medición en baja tensión se efectuará en forma directa utilizando medidores auto-
contenidos tipo socket y en forma indirecta utilizando transformadores de medición. Ver
figuras 28 y 29.


7.2     Medición en Media Tensión
26




La medición en media tensión se efectuará cuando las demandas sean superiores a 300
kilovatios e inferiores a 1,000 kilovatios.

El equipo de medición será instalado en un poste que contenga las líneas primarias aéreas de
distribución, o en cuartos de transformadores, previa aprobación del Distribuidor, para lo cual
se utilizará transformadores de potencial y de corriente, además del medidor adecuado. Ver
figuras 16, 17, 18, 19 y 30.

Se instalará un equipo de medición en media tensión para demandas menores a 300 kilovatios
o mayores a 1,000 kilovatios, por razones técnicas y por disposición del Distribuidor.

7.2.1   Ubicación del Equipo de Medición de Media Tensión en Postes

Los postes que soporten el equipo de medición de media tensión contendrán también el
módulo individual para medición indirecta, el cual deberá instalarse a una altura entre 1.80 m
y 2.00 m con respecto al piso, protegido contra las aguas lluvias por medio de una cubierta o
techo.

Cuando la alimentación en media tensión se la realice por medio de un primario particular, el
equipo de medición se instalará en el primer poste ubicado dentro del predio, el mismo que se
colocará a una distancia máxima de 7 metros, medidos desde la línea de cerramiento y se
preverá una estructura de doble retención en dicho poste. Ver figura 19.

La estructura metálica de soporte con el equipo de medición (TC+TP) será suministrada e
instalada por el Distribuidor.

El medio de protección y seccionamiento, es decir, las cajas porta-fusible de la acometida en
media tensión o primario particular, deberá estar instalado en un poste en la vía pública, lo
más cercano al predio, de tal forma que pueda ser libremente operado por el personal del
Distribuidor.

7.2.2 Ubicación del Equipo de Medición de Media Tensión en Cuartos

En los cuartos de transformadores que contengan equipos de medición en media tensión, el
módulo individual del medidor deberá instalarse en el lado exterior de una de sus paredes y a
una distancia tal, que el recorrido lineal de la trayectoria de la canalización de los
conductores de señal del equipo de medición no exceda de 10 metros. Ver figura 30.

El equipo de medición (TC+TP) será suministrado por el Distribuidor. La estructura metálica
de soporte será instalada por el consumidor.

El medio de protección y seccionamiento, es decir, la caja porta-fusible de la acometida en
media tensión o primario particular, deberá estar instalado en un poste en la vía pública, lo
más cercano al predio, de tal forma que pueda ser libremente operado por el personal del
Distribuidor.


8.      MEDIDOR CONTROLADOR
27


8.1     Función

El medidor Controlador es aquel que realiza la medición integral de la potencia y la energía
entregada por el Distribuidor a una Urbanización, a un edificio, o a un conjunto de edificios
ubicados en un predio y en el que existan múltiples usuarios del servicio eléctrico, asociados
a su vez con otros medidores individuales.

Cuando la diferencia entre el valor de los kWh registrados en el Medidor Controlador y la
sumatoria de los kWh registrados por los múltiples medidores instalados, no corresponda con
el valor establecido previamente para las pérdidas de energía del (o los) transformador(es), el
Distribuidor procederá de manera inmediata a la revisión de la situación presentada.

8.2     Criterios de Instalación

Se instalarán Medidores Controladores en todos aquellos predios en los cuales se cumplan las
siguientes condiciones:

Que el número de medidores requeridos en un tablero o en varios de éstos sea mayor a 10, y

Que la capacidad de transformación de la subestación sea mayor o igual a 50 kVA.

8.3     Ubicación

Los Medidores Controladores se instalarán en el lado primario o secundario de la
subestación eléctrica que da servicio al predio, en un lugar de fácil y libre acceso para el
personal del Distribuidor y a una altura entre 1.80 m y 2.00 m con respecto al piso
terminado.

En caso de existir un conjunto de edificios con múltiples usuarios, además del Controlador, la
Empresa exigirá la instalación de Subcontroladores en cada uno de los edificios.

Según la ubicación del Medidor Controlador, éste podrá registrar o no la energía
autoconsumida por la subestación (pérdidas de transformación).

8.4     Características

El Medidor Controlador deberá ser electrónico con registro de demanda, monofásico o
trifásico, para usarse con transformadores de medición.

8.5      Clases de Medición:

8.5.1    Medidor Controlador en Baja Tensión (Hasta 600 voltios)

El Medidor Controlador será instalado en el lado de baja tensión de la subestación cuando la
capacidad de transformación sea de hasta 300 kVA.

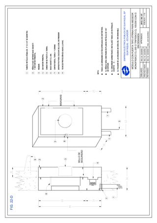
El Medidor será instalado en el lado exterior del cuarto de transformación dentro de un
módulo metálico individual de: 70x40x25 cm. Ver Figuras 24, 28 y 29.

8.5.2    Medidor Controlador en Media Tensión (13.8 kV)
28




El Medidor Controlador será instalado en el lado de media tensión (13.8 kV) cuando la
capacidad de transformación de la subestación sea superior a los 300 kVA.

El Medidor será instalado en el lado exterior del cuarto eléctrico o de transformación, dentro
de un módulo metálico individual de 70x40x25cm. Ver figura 24 y 30.

8.5.3   Suministro de Equipos

Cuando se instale el Medidor Controlador en baja o media tensión, el Distribuidor
suministrará los equipos relacionados con la medición, incluyendo el medidor respectivo.

Cuando el Controlador sea en baja tensión, el Consumidor deberá suministrar e instalar los
siguientes elementos:

La canalización para los conductores de señal.
El módulo individual para el medidor con la base (socket) incluida.
El módulo de seguridad para transformadores de medición, el cual será suministrado por el
Distribuidor.

Cuando el Controlador sea en media tensión, el Consumidor deberá suministrar e instalar los
elementos mencionados en los literales a) y b), así como la estructura metálica de soporte de
los transformadores de medición dentro del cuarto de transformación. En caso que en la obra
se haya previsto la instalación de un grupo de celdas, el consumidor podrá suministrar una
celda de medición con sus elementos incluidos, de acuerdo a lo especificado en el proyecto
aprobado por el Distribuidor.


9    MÓDULO DE SEGURIDAD PARA TRANSFORMADORES DE MEDICIÓN
EN BAJA TENSIÓN.

9.1     Características Generales

Estos módulos se los utilizará como medio de soporte y protección de los transformadores de
medición y sus conexiones, se los instalará en el lado de baja tensión de los transformadores
de distribución, tanto en instalaciones nuevas como en instalaciones con servicio eléctrico
previo.

9.2     Características Constructivas

Los módulos para transformadores de medición serán fabricados en material plástico
poliestireno en color claro, de 50x35x24cm. para los sistemas monofásicos, de tal manera que
permitan la instalación de dos transformadores de medición con una relación máxima de
400:5. Para sistemas trifásicos los módulos serán de 50x50x25cm., de tal modo que permitan
la instalación de tres transformadores de medición con una relación máxima de 800:5.

Para la entrada y salida de los conductores de sistemas monofásicos y trifásicos, los módulos
llevarán tres y cuatro orificios de 2” de diámetro en su extremo superior e inferior
respectivamente. Por cada orificio pasarán los conductores de fase, y el neutro pasará por el
29


orificio central en sistemas monofásicos y por el extremo derecho para sistemas trifásicos. Se
permitirá utilizar hasta 3 conductores por fase.

Se dispone de dos tipos de módulos, uno para servicios nuevos y otro para servicios
existentes. Para servicios nuevos se ha diseñado el módulo con una tapa superior provista de
un dispositivo para la colocación de un sello de seguridad del Distribuidor. Este módulo será
instalado por el Consumidor. Para instalaciones con servicio eléctrico previo, el módulo será
instalado por personal del Distribuidor, por lo que se lo ha diseñado de tal forma que permita
su instalación sin la necesidad de interrumpir el servicio al Consumidor. Estará conformado
por dos tapas que se unirán mediante pernos y tuercas ubicadas en sus esquinas opuestas,
dichas tuercas estarán provistas de un sistema que permita la colocación de sellos de
seguridad del Distribuidor.

En una de las paredes laterales del módulo se instalará un conector plástico con abrazadera de
1 ¼” de diámetro para sujetar los conductores de señal al módulo. Ver figuras 20, 20-A, 20-
B y 20-C.

9.3    Ubicación

El módulo de seguridad de los transformadores de medición se fijará sobre la parrilla porta-
conductores o sobre la pared interior del cuarto de transformación, y su fijación será mediante
pernos. Cuando dicho módulo se lo fije sobre la pared, la parte superior del mismo deberá
quedar a una altura no mayor a 2.0 m. desde el nivel del piso. Ver figuras 28, 29 y 33.

9.4    Suministro

El módulo de seguridad de los transformadores de medición para servicios nuevos será
suministrado por el Distribuidor, y su montaje será responsabilidad del contratista eléctrico.
Para servicios existentes, el Distribuidor suministrará e instalará el módulo de seguridad
correspondiente, cuando el caso lo amerite.


10.    MÓDULO INDIVIDUAL PARA MEDIDORES AUTO-CONTENIDOS.

10.1   Características Generales

El módulo individual de medición contendrá el medidor necesario monofásico o trifásico
para la medición de energía en forma directa.

10.2   Características Constructivas

El módulo será construido en Policarbonato o en plancha metálica de 1.5mm. (1/16”) de
espesor y estará protegido con pintura anticorrosiva y pintado al horno. En caso de que el
módulo se encuentre a la intemperie, expuesto a las aguas lluvias, se deberá adecuar una
cubierta, techo, o alero para su protección.

10.2.1 Módulo para Medidor Monofásico CL-100

El módulo será construido tipo vitrina con dimensiones 40x30x20cm. de alto, ancho y
profundidad respectivamente y se construirá en un solo cuerpo dividido en dos
30


compartimientos, uno para alojar la base socket con dimensiones 30x30 cm. y el otro en su
parte inferior para alojar el disyuntor principal de 10x30cm.

La puerta que da acceso a la base (socket) contará con dos bisagras encontradas, soldadas en
su lado derecho, llevará un elemento (orejas) para la colocación del sello de seguridad del
Distribuidor y un visor de vidrio que permita la lectura del medidor. Ver figura 21.

Como alternativa, dicho módulo podrá construirse con dos tapas, en cuyo caso sus
dimensiones serán de 40x30x10cm., aseguradas con cuatro tornillos y contará con un orificio
que permita que el medidor sobresalga del módulo, para facilitar la colocación del zuncho en
la base (socket) CL-100 con el sello de seguridad del Distribuidor. Ver figura 21-A.

El módulo dispondrá de dos orificios de 1¼” de diámetro, uno en la parte superior y otro en
la parte inferior, que se conectarán mediante tuerca y contratuerca metálica con una tubería
metálica rígida de 1¼” de diámetro para entrada y salida de conductores.

10.2.2 Módulo para Medidor Monofásico CL-200

El módulo será construido tipo vitrina con dimensiones 70x30x30cm. de alto, ancho y
profundidad respectivamente y se construirá en un solo cuerpo dividido en dos
compartimientos, uno para alojar la base socket con dimensiones 50x30 cm. y el otro en su
parte inferior para alojar el disyuntor principal de 20x30cm.

La puerta que da acceso a la base (socket) llevará dos bisagras encontradas, soldadas en su
lado derecho, así como un elemento (orejas) para la colocación del sello de seguridad del
Distribuidor y dispondrá de un visor de vidrio cuando se trate de un medidor monofásico
CL-200 sin demanda, que permita la lectura del medidor o de un orificio cuando se trate de
un medidor monofásico CL-200 con demanda, para permitir que el medidor sobresalga 1cm.
fuera del módulo para facilitar la operación del reposicionador de la demanda y el cambio de
su sello de seguridad. Ver figuras 22 y 22-A.

Como alternativa, el módulo para el medidor podrá construirse con dos tapas de dimensiones
70x30x15cm., asegurada con cuatro tornillos, con una perforación que permita colocar la tapa
de la base (socket) CL-200 con el sello de seguridad del Distribuidor. Ver figuras 22-B y 22-
C.

El módulo en referencia llevará dos orificios de 2” ó 2 ½” de diámetro, uno en la parte
superior y otro en la parte inferior para acometidas aéreas, o los dos en la parte inferior para
acometidas subterráneas, los cuales se conectarán mediante tuerca y contratuerca metálica
con la tubería metálica rígida de 2” o 2 ½” de diámetro para entrada y salida de conductores.
Para acometidas subterráneas ver figura 22-D.

10.2.3 Módulo para Medidores Trifásicos CL-100 y CL-200

El módulo será construido tipo vitrina con dimensiones 80x40x30cm. de alto, ancho y
profundidad respectivamente y se construirá en un solo cuerpo dividido en dos
compartimientos, uno para alojar la base socket con dimensiones 60x40 cm. y el otro en su
parte inferior para alojar el disyuntor principal de 20x40cm.
31


La puerta de acceso a la base (socket) llevará dos bisagras encontradas, soldadas en su lado
derecho, así como un elemento (orejas) para la colocación del sello de seguridad del
Distribuidor y dispondrá de un orificio que permita que los medidores trifásicos CL-100 o
CL-200 sobresalgan 1cm. fuera del módulo para facilitar la operación del reposicionador de
la demanda y el cambio del sello de seguridad. Ver figuras 23 y 23-A.

El módulo en referencia llevará dos orificios de 2” ó 2 ½” de diámetro, uno en la parte
superior y otro en la parte inferior para acometidas aéreas, o los dos en la parte inferior para
acometidas subterráneas, los cuales se conectarán mediante tuerca y contratuerca metálica
con la tubería metálica rígida de 2” o 2 ½” de diámetro para entrada y salida de conductores.
Si la trayectoria de éstos es subterránea, la distribución de las tuberías en el módulo
individual se efectuará conforme a la fig. 22-D.

Los módulos especificados en los numerales 10.2.1, 10.2.2 y 10.2.3 dispondrán además, de
un orificio de ½” de diámetro en su parte inferior que se conectará mediante conector y tuerca
con una tubería de ½” de diámetro que contendrá el sistema de puesta a tierra del módulo y
el neutro de la base socket del medidor. Ver Figuras 21, 22 y 23.

10.3    Suministro

El módulo individual para medidores del tipo directo incluyendo la base (socket) monofásica
o trifásica, y el disyuntor principal de protección, serán suministrados por el Consumidor.

El Distribuidor suministrará e instalará el medidor posterior a la contratación del servicio
eléctrico.


11.    MÓDULO INDIVIDUAL PARA MEDIDORES DE MEDICIÓN INDIRECTA

11.1    Características Generales

El módulo de medición contendrá una base (socket) monofásica o trifásica clase 20 y una
bornera (switch) de prueba para medición de energía en forma indirecta.

11.2    Características Constructivas

El módulo será construido en Policarbonato o en plancha metálica de 1.5mm (1/16”) de
espesor y estará protegido con pintura anticorrosiva y pintada al horno. En caso de que el
módulo se encuentre a la intemperie, expuesto a las aguas lluvias, se deberá adecuar una
cubierta, techo, o alero para su protección.

El módulo será de 70x40x25cm de alto, ancho y profundidad respectivamente y se construirá
de un solo cuerpo con una tapa con 4 tornillos, que llevará dos elementos (orejas) para la
colocación de sellos de seguridad de la Empresa. Dispondrá de un orificio de 1 ¼” de
diámetro que se conectará mediante tuerca y contratuerca metálica con la tubería metálica
rígida de 1 ¼” de diámetro que transportan los conductores de señal al medidor.

La base socket y la bornera switch se fijarán en un fondo falso del módulo, en donde también
se instalará un terminal tipo talón para conexión del neutro del equipo de medición a tierra.
Ver figura 24.
32




11.3    Suministro

El módulo individual para medidores de medición indirecta incluyendo la base (socket), será
suministrado por el Consumidor.

El Distribuidor suministrará e instalará el medidor y la bornera (switch de prueba), posterior a
la contratación del servicio eléctrico.


12.    TABLEROS DE MEDIDORES

12.1   Generalidades

Todo inmueble que requiera más de un equipo de medición tendrá un tablero general en el
que estarán agrupados el disyuntor principal, los medidores, las barras de distribución y los
disyuntores de protección de los conductores activos que salgan de dicho tablero. El diseño
de los tableros de medidores es obligación del proyectista eléctrico de la obra y deberá regirse
a las presentes Normas.

12.2   Instalación

El propietario del inmueble o el Consumidor suministrará e instalará el tablero para
medidores con todos sus equipos y accesorios como son: disyuntores, bases (socket), barras
de cobre, terminales, coronas, contratuercas, cableado interno, etc.

Los disyuntores y conexiones de medidores monofásicos en tableros estarán diseñados para
sistema trifilar, para medidores trifásicos se diseñarán para sistema de cuatro hilos. La
sección mínima de los conductores en general será del # 10 AWG cobre aislado, para
disyuntores de 30A.

Todos los equipos de medición y protección se instalarán en la parte delantera del tablero, no
permitiéndose instalarlos en las superficies laterales, así como tampoco otros accesorios, tales
como: interruptores de luces, interruptores horarios, tomacorrientes, timbres, etc.

12.3   Ubicación

El tablero para medidores se ubicará en el cerramiento o fachada frontal, cerramiento lateral,
en la entrada principal del inmueble o en el hall, con fácil y libre acceso, en ambientes libres
de: materiales combustibles, elevada humedad y temperatura o vibraciones, que puedan
afectar el funcionamiento de los equipos de medición.

Cuando el espacio disponible en las áreas arriba indicadas no permita la instalación del
tablero de medidores, éste será instalado de manera exclusiva en un cuarto de dimensiones
apropiadas y que sea de fácil y libre acceso.

Se evitará instalar tableros en las paredes de las escaleras u otros lugares que no ofrezcan las
seguridades necesarias.
33


El tablero se podrá montar sobrepuesto, empotrado, o auto soportado sobre el piso. En
general, deberá permitir el acceso a las conexiones por el lado en que se encuentren
instalados los medidores.

Las caras de los tableros que contengan medidores deberán tener una separación mínima de
1.00 m. con respecto a las paredes del cuarto que lo alberga. Las dimensiones de las puertas
deberán ser de las medidas adecuadas que permitan abatirse libremente.

12.4   Rotulación

Todo tablero y cada uno de sus módulos serán rotulados por el Consumidor para indicar la
instalación a la cual sirve.

La rotulación deberá hacerse sobre las tapas o puertas metálicas, con pintura durable y letras
de molde.

En la puerta o tapa exterior del compartimiento de barras y protección principal se colocará
una placa metálica sobrepuesta de 10x20cm, con letras en bajo relieve indicando el nivel de
voltaje del inmueble y el tipo de conexión.

12.5   Características Constructivas

El tablero para medidores será metálico, en forma de armario, construido de planchas de 1.5
milímetros (1/16”) de espesor mínimo y estará protegido con pintura anticorrosiva y pintada
al horno. El uso de tableros de Policarbonato estará permitido posterior a la aprobación por
parte del Distribuidor.

El tablero estará formado por varias secciones modulares, llevará cubiertas por todos sus
lados y sólo será desmontable en su parte delantera, dispondrá de puertas abisagradas, tapa
en la sección del disyuntor principal y barras de distribución, así como en la sección
correspondiente a los medidores y disyuntores, la cual estará provista de visores de vidrio
transparente que permitan la toma de lectura de los medidores desde el exterior.

El compartimiento de barras de distribución y disyuntor principal tendrá dos tapas
atornilladas y estarán provistas de dos dispositivos (orejas) para colocar los sellos de
seguridad del Distribuidor, ver Figuras 25, 26 y 27. La tapa correspondiente al disyuntor
principal tendrá una perforación que permita su operación. Para los mantenimientos
preventivos o correctivos del disyuntor principal y barras de distribución se deberá coordinar
con el Distribuidor para el retiro y reposición de los sellos de seguridad.

El diseño y la construcción del tablero asegurarán su rigidez y resistencia mecánica.

El disyuntor general podrá instalarse en una sección independiente de las barras de
distribución debido a requerimientos técnicos especiales y deberá ser aprobado por el
Distribuidor.

12.6   Altura de Montaje
34


Los tableros de medidores instalados dentro del inmueble o en cuartos exclusivos, en su
parte superior alcanzarán una altura máxima de 2.20 metros y en su parte inferior una altura
mínima de 40 centímetros.

La altura de montaje para tableros pequeños, de hasta 6 medidores, tipo vitrina en
cerramientos y fachadas frontales, será de 1.20 metros medidos desde la parte inferior al piso,
con una tolerancia de +/- 20 centímetros, y su parte superior no excederá los 2.20 metros de
altura.

No se permitirá la instalación de Tableros de Medidores sobre puertas.

12.7   Distancias Mínimas Eléctricas

El camino de contorno entre las partes activas de los equipos y las paredes de soportes
interiores y puertas metálicas será de por lo menos 3 centímetros.

La distancia mínima de arco entre las partes activas de los aparatos y las partes metálicas del
tablero será de 1 centímetro.

El tablero tendrá dimensiones interiores suficientes para permitir el cierre de sus puertas,
cuando los disyuntores estén en posición cerrada o abierta.

12.8   Barras de Distribución

Las barras estarán calculadas para no incrementar su temperatura más de 30ºC, a plena carga
sobre la temperatura ambiente.

Las barras serán de cobre de un espesor mínimo de 3 milímetros (1/8”), y un ancho mínimo
de 12.7 milímetros (1/2”), y estarán apoyadas sobre aisladores adecuados de 2.5 centímetros
de espesor mínimo.

La longitud de las barras se determinará de tal manera, que cada derivación de la misma
comprenda un mínimo de 3 centímetros, considerándose además, el espacio necesario para
aisladores y terminales de alimentación.


                      AMPACIDAD DE BARRAS DE COBRE
         Dimensiones (Pulgadas)                Amperios

                 1/8”x1/2”                                          153
                 1/4”x1 ½”                                          560
                  1/4”x3”                                           990
                  1/4”x6”                                          1,750


La barra del neutro estará conectada sólidamente a tierra.

12.9   Puesta a Tierra
35


Cada tablero para medidores será conectado a tierra en la sección correspondiente a las barras
de distribución, debiendo utilizarse electrodos de puesta a tierra.

12.10 Número de Tableros

El máximo de medidores individuales permitido en un tablero de medidores será de 60.

Todo inmueble de hasta 6 pisos tendrá un solo tablero de medidores; inmuebles de más de 6
pisos podrán tener más de un tablero de medidores ubicados lo más cerca al banco de
transformadores que lo alimenta. En este último caso, el Distribuidor determinará el número
de tableros que podrá tener el inmueble.

Cuando se instalen dos o más tableros de medidores en el mismo edificio, los conductores de
alimentación provenientes desde un transformador o banco de transformadores llegarán
primero a un tablero de distribución general, que contendrá un disyuntor principal, barras de
distribución y un disyuntor parcial de protección para cada uno de los alimentadores de los
diferentes tableros de medidores.

El tablero de distribución general deberá estar ubicado en un ambiente contiguo al cuarto de
transformadores, con dimensiones apropiadas y con fácil acceso.

Cuando se trate de un edificio con bancos de transformadores en diferentes pisos, se deberán
instalar los tableros de medidores en cuartos exclusivos, en el mismo nivel, o en el nivel
inmediato superior o inferior, y en general lo más cercano posible del cuarto de los
transformadores que los alimentan.

12.11 Tubería de Entrada y Salida

Las tuberías de entrada que se acoplen al tablero serán metálicas rígidas eléctricas, y deberán
llevar sus respectivos accesorios como: coronas, contratuercas y uniones metálicas que
permitan tener una buena continuidad eléctrica.

Las tuberías de salida que se acoplen al tablero podrán ser metálicas rígidas eléctricas, EMT,
PVC y deberán llevar sus respectivos accesorios como: coronas, contratuercas, conectores y
uniones.


13.    PUESTA A TIERRA

13.1   Generalidades

Deberán conectarse a tierra los neutros de los transformadores o los bancos de
transformadores cuando las conexiones del diseño así lo requieran. Los circuitos que deben
tener conexión a tierra son los siguientes:

Circuito monofásico de dos conductores para servicio a 120 voltios.

Circuito monofásico de tres conductores para servicios de 120/240 y 120/208 voltios.

Circuito trifásico de cuatro conductores conexión en estrella para servicios a 120/208 voltios.
36




Circuito trifásico de cuatro conductores conexión delta para servicios a 120/240 voltios.

Asimismo, deberán conectarse a tierra los pararrayos, los tanques y gabinetes de
transformadores, las tuberías metálicas de acometida, las cajas metálicas de derivación, los
tableros de medidores, y en general todas las cubiertas metálicas que contengan equipos
eléctricos.

No deberá conectarse el sistema de puesta a tierra a tuberías que se utilizan para transportar
gas o cualquier otro tipo de combustible.

13.2    Electrodos

Los electrodos de puesta a tierra serán varillas de cobre o Cooperweld con las siguientes
dimensiones mínimas, de 5/8” de diámetro y con una longitud de 6 pies. Ver figuras 14 y 15.


13.3    Conductores

El conductor de puesta a tierra será de cobre, sólido o cableado, desnudo o aislado. Su
sección mínima estará de acuerdo con la sección del conductor mayor de la acometida o
alimentador en la siguiente relación:

No. 8 AWG para conductor de acometida hasta No. 2 AWG.

No. 6 AWG para conductor de acometida desde 1 AWG hasta 1/0 AWG.

No. 4 AWG para conductores de acometida desde 2/0 AWG hasta 3/0 AWG.

No. 2 AWG para conductor de acometida desde 4/0 AWG hasta 350 MCM.

No. 1/0 AWG para conductor de acometida desde 400 MCM hasta 600 MCM.

No. 2/0 AWG para conductor de acometida desde 650 MCM hasta 1,100 MCM.

En inmuebles de interés social y viviendas suburbanas, la sección mínima del conductor de
puesta a tierra será No. 8 AWG, cobre.

13.4   Trayectoria

El conductor de puesta a tierra se podrá instalar directamente en paredes, estructuras o postes;
si estuviera expuesto a daños mecánicos, se lo protegerá con un tubo metálico. Ver figuras
14, 15 y 16.


13.5    Conexión

El conductor de puesta a tierra se conectará al electrodo utilizando abrazaderas, conectores o
soldaduras exotérmicas. En los tableros de medidores, la conexión a tierra de la barra del
37


neutro se hará mediante terminales, que se utilizarán exclusivamente para este fin. Ver
figuras 25, 26 y 27.

13.6   Resistencia

La resistencia eléctrica del sistema de puesta a tierra deberá ser inferior a 20 ohmios para
inmuebles con demandas de hasta 250 kVA y de 10 ohmios para inmuebles con demandas
superiores a 250 kVA y menores a 1,000 kW; si fuera mayor, deberán utilizarse un sistema de
puesta a tierra adecuado que permita cumplir con el valor indicado en el diseño.


   CUARTOS PARA TRANSFORMADORES

14.1   Requerimientos

Si la demanda total de cualquier inmueble excede a 30 kW el proyectista, constructor o
propietario habilitará un cuarto destinado a alojar exclusivamente un transformador o banco
de transformadores particulares. También será responsable de proveer sus respectivos
equipos de protección y accesorios.

Por razones de seguridad, los cuartos de transformadores son de acceso restringido a personal
calificado y no podrán ser utilizados para ningún otro fin que el de albergar a los
transformadores. En caso de que se requiera como protección una celda de media tensión,
ésta podrá ser ubicada en un ambiente adyacente, pero separado por una pared de
mampostería, del cuarto de transformadores.

Cuando sea necesario realizar trabajos de mantenimiento dentro del cuarto de
transformadores, en el que se encuentren instalados equipos de medición y/o distribución de
esta Empresa, el Ingeniero Eléctrico a cargo de dichos trabajos, deberá solicitar con al menos
48 horas de anticipación y por escrito al Departamento de Operación del Sistema la
autorización correspondiente.

En aquellas urbanizaciones cuyas redes de distribución hayan sido diseñadas para dar
servicio en media tensión a inmuebles a construirse, El Distribuidor exigirá el suministro del
transformador por parte del Consumidor, aún cuando su demanda sea menor a 30 kW.

14.2   Ubicación

El cuarto de transformadores estará ubicado a nivel de la planta baja del inmueble, en un sitio
con fácil y libre acceso desde la vía pública, de manera que permita al personal del
Distribuidor realizar inspecciones o reparaciones de emergencia a los transformadores.

Cuando por razones técnicas el cuarto de transformadores no pueda ubicarse a nivel de planta
baja, éste podrá ser adecuado en el nivel inmediato superior y cumplirá con las disposiciones
del párrafo anterior, en lo referente a su acceso.

En los edificios donde se requiera la habilitación de más de un cuarto de transformadores,
éstos deberán ubicarse de la siguiente manera: el cuarto eléctrico que aloja la protección
principal del inmueble en la planta baja y los cuartos restantes de acuerdo a las necesidades
eléctricas de la obra, previendo que todos tengan fácil y libre acceso a través de corredores,
38


parqueos y sirvan sólo para alojar a los transformadores de distribución, su equipo de
protección y conductores de salida. En caso de que el cuarto de transformadores esté ubicado
en áreas donde haya movimiento vehicular se deberá instalar una barrera de protección, cuyos
detalles deberán ser aprobados por el Distribuidor.

Por razones de seguridad, no se permitirá la ubicación total, ni parcial, de cuartos eléctricos o
cuartos de transformadores sobre losas de cisternas, ni junto a depósitos de combustibles.

14.3   Características Constructivas

El cuarto de transformadores será construido con paredes de hormigón o de mampostería y
columnas de hormigón armado. Los cuartos, por razones de seguridad, deberán tener una
losa superior de hormigón, ubicada a una altura libre mínima de 2.5 m. diseñada para
soportar una carga máxima de acuerdo a su utilización. Ver figuras 28, 29 y 30.

Para evitar la corrosión de la base de los transformadores, se deberá construir sobre el piso
una base de hormigón de por lo menos 10cm. de espesor, diseñada para soportar los
transformadores.

El cuarto deberá tener ventilación adecuada para mantener en su interior una temperatura
que no exceda de 40 C, disipando el calor del transformador a plena carga, sin ocasionar la
disminución de la capacidad nominal del mismo.

Las aberturas de ventilación deberán situarse en las paredes laterales, cerca del techo y
estarán cubiertas de rejas permanentes, bloques ornamentales, o persianas resistentes
colocadas de forma que sea imposible introducir objetos que alcancen o caigan sobre los
transformadores. El área mínima, sumadas todas las aberturas de ventilación, será de 3
pulgadas cuadradas por cada kVA del transformador instalado.

La puerta de entrada tendrá dimensiones mínimas de 2.00 metros de alto por 1.00 metro de
ancho, construida en plancha metálica de 1/16” de espesor, con abatimiento hacia el exterior
y con una resistencia al fuego de mínimo 3 horas, de acuerdo a lo que señala el numeral
450.43 del NEC (Código Eléctrico Nacional). Dicha puerta deberá contar con un dispositivo
adecuado para la instalación de un sello de seguridad por parte del Distribuidor.

Dentro del cuarto de transformadores y junto a su puerta de acceso se instalará un punto de
luz (aplique) y un tomacorriente de 120 voltios, los cuales serán alimentados desde el panel
de servicios generales.

El área mínima, rectangular y libre de los cuartos de transformadores, será de acuerdo a la
siguiente tabla:




                   DIMENSIONES                              CAPACIDAD
                   DEL CUARTO                            TRANSFORMADORES
                                                           MONOFASICOS

                       2.0 x 2.0m                              Hasta 75 kVA
39


                                                   (1 solo transformador monofásico)

                      2.0 x 2.5m                                 100 kVA
                                                   (1 sólo transformador monofásico)

                      3.0 x 2.5m                            Hasta 150 kVA
                                                    (Banco de 2 o 3 transformadores)

                      4.0 x 3.0m                           Hasta 300 kVA
                                                     (Banco de 3 transformadores)

                      5.0 x 3.5m                           Hasta 750 kVA
                                                     (Banco de 3 transformadores)

                      6.0 x 3.5m                           Hasta 1,000 kVA
                                                      (Banco de 3 transformadores

                   DIMENSIONES                          CAPACIDAD
                   DEL CUARTO                    TRANSFORMADOR TRIFÁSICO

                      2.5 x 2.5m                             Hasta 100 kVA
                                                    (1 sólo transformador Trifásico)

                      3.0 x 2.5m                             Hasta 150 kVA
                                                    (1 sólo transformador Trifásico)

                      3.0 x 3.0m                             Hasta 300 kVA
                                                    (1 sólo transformador Trifásico)

                      3.5 x 3.5m                             Hasta 750 kVA
                                                    (1 sólo transformador Trifásico)

                      4.0 x 4.0m                            Hasta 1,000 kVA
                                                    (1 sólo transformador Trifásico)


Cuando el banco de transformadores tenga una capacidad mayor a 1,000 kVA y el
Distribuidor decida suministrar servicio en media tensión, las dimensiones del cuarto serán
previamente definidas por éste.

14.4    Mantenimiento

Una vez suministrado el servicio definitivo, los cuartos de transformadores serán sellados
por el Distribuidor en la puerta de ingreso a dicho cuarto.

Cuando sea necesario realizar trabajos particulares de mantenimiento dentro de estos cuartos,
con 48 horas de anticipación como mínimo, se deberá obtener la autorización del
Distribuidor en el Departamento de Operación del Sistema. Concluidos los trabajos, el cliente
informará al Distribuidor, para proceder a la reposición inmediata de los sellos de seguridad.
40


14.5   Ductos de Entrada a Cuartos de Transformadores

La canalización que ingresa a un cuarto de transformadores se construirá empleando ductos y
codos de tubería metálica rígida, aprobada para uso eléctrico con un diámetro mínimo de 3”
para sistemas monofásicos, y de 4” para sistemas trifásicos.

El número de ductos dependerá de la infraestructura eléctrica del edificio y de la necesidad
del Distribuidor para la creación de centros de carga en el sector.

14.6   Centros de Distribución de Carga

Cuando luego del análisis técnico respectivo sea necesario crear un Centro de Distribución de
Carga, para instalar equipos de media tensión en el edificio que solicite el suministro del
servicio eléctrico, el Distribuidor exigirá la habilitación de un cuarto para su uso exclusivo,
el mismo que estará ubicado a nivel de planta baja con facilidades de acceso desde la vía
pública, cuyas dimensiones y número de ductos a incorporarse al diseño de la obra serán
determinados por el Distribuidor.

La construcción de los cuartos destinados para este fin y el suministro e instalación de los
ductos correrá a cargo del dueño de la obra.

Como caso excepcional el Distribuidor podrá compartir el Centro de Distribución de Carga
con el cuarto de transformadores del edificio, pero las dimensiones del mismo serán
determinadas por el Distribuidor.

En los casos de los proyectos de la regeneración urbana de la ciudad de Guayaquil, debido a
que las edificaciones existentes tienen una infraestructura antigua que dificulta obtener áreas
adecuadas para cuartos de transformadores y centros de distribución de carga, se consideraran
condiciones especiales.


15.    TRANSFORMADORES

El Distribuidor suministrará e instalará sus transformadores en su sistema de distribución,
para Consumidores con una demanda de hasta 30 kW, siempre que no se encuentren ubicados
en urbanizaciones o lotizaciones donde existan situaciones especiales como las mencionadas
en el numeral 14.1. Si la demanda excede de 30 kW, el Consumidor suministrará e instalará
sus propios transformadores dentro de un cuarto habilitado para el efecto, cuya capacidad,
voltajes de primario, secundario y tipo de conexión se especificará en el diagrama unifilar del
proyecto eléctrico que se presentará al Distribuidor para su aprobación.

Si se prevé la instalación de un sólo transformador monofásico, éste será máximo de 100
kVA y podrá ser del tipo convencional o auto protegido; pero si se considera la instalación
de un banco de transformadores, cada unidad monofásica que lo conforma será del tipo
convencional y apropiado para ser utilizado en un sistema eléctrico de 13,800Y/7,977 voltios
en el lado primario y 120/240 voltios en el lado secundario, con derivaciones de 2.5 %
arriba y abajo de su voltaje nominal.

En los casos cuando la conexión del banco de transformadores sea estrella aterrizada en el
lado del secundario, la capacidad de los 3 transformadores será obligatoriamente la misma.
41




Cuando se considere el uso de transformadores tipo Padmounted, deberá ubicárselo en un
espacio comprendido entre la línea del cerramiento frontal y la línea de construcción del
inmueble, con una separación mínima para operación de 1.5 m. desde la parte frontal del
transformador y a 0.5m desde las partes lateral y posterior del transformador, respecto a las
paredes más cercanas. En caso de que se instale el transformador en un área donde haya
movimiento vehicular, se deberá colocar una barrera de protección, cuyos detalles deberán
ser aprobados por el Distribuidor. Cuando no exista cerramiento frontal el transformador será
instalado a una distancia mínima de 0.50m de la línea de fábrica. Los tableros de medidores,
módulo con disyuntor principal, tableros de distribución, deberán instalarse a una separación
mínima de 1.00 m respecto a las partes lateral y posterior del padmounted, a fin de contar con
un área de trabajo adecuada frente a estos equipos.

El transformador Padmounted se montará sobre una base de hormigón mínima de 15 cm.
respecto al nivel del piso terminado; debajo del compartimiento de primario y secundario se
construirá una caja de paso de hormigón, con una abertura que se ajuste a las dimensiones
del mismo y de 80cm. de profundidad. En dicho compartimiento se acoplarán las tuberías de
entrada de primario y de salida del secundario. Estas tuberías serán del tipo metálico rígido
para uso eléctrico. Ver figura 31.

Los transformadores Padmounted monofásicos tendrán un voltaje en el lado primario
apropiados para ser utilizado en un sistema eléctrico de 13,800Y/7,977 voltios y en el lado
secundario 120/240 voltios con derivaciones de 2.5 % arriba y abajo de su voltaje nominal.

En los casos cuando se requiera instalar un transformador particular Padmounted para
funcionar en un sistema de distribución eléctrico subterráneo tipo malla o anillo, el mismo
deberá contar con dispositivos de seccionamiento en la entrada y salida del primario. Además
dispondrá de una protección interior en el lado del primario con fusible tipo bay-o-net. En el
interior del lado secundario del transformador no se requiere protección tipo breaker debido a
que se instalará el disyuntor principal en el tablero de medidores o en un módulo metálico
cercano.

Cuando se trate de un servicio individual o de un controlador de edificio, el módulo para
medición indirecta descrito en el numeral 11, se instalará en el lado exterior del
cerramiento, en tanto que el módulo para el disyuntor general se instalará cerca del
transformador, esto es, en el cerramiento lateral del inmueble o en el lado interior del
cerramiento frontal. Los transformadores de corrientes TC serán ubicados en el interior del
transformador padmounted fijados a los conductores de baja tensión mediante un sistema de
pletinas y pernos de rosca corrida. Ver figura 31-A.

Todos los transformadores monofásicos a instalarse cumplirán con la Norma Técnica
Ecuatoriana INEN 2114:2004 y los transformadores trifásicos con la Norma Técnica
Ecuatoriana INEN 2115:2004.

Cuando la demanda sea mayor a 1.000 kW y el Distribuidor suministre el servicio a un nivel
de tensión de 69 kV, el Consumidor instalará la subestación de reducción a esta tensión,
cuyas características técnicas, detalles constructivos y de montaje serán puestos a
consideración del Distribuidor para su análisis respectivo.
42


15.1   Protección de Transformadores en Media Tensión

15.1.1 Cajas Fusibles

     Los transformadores de media tensión se instalarán con el equipo mínimo necesario para
su protección y seccionamiento en el lado primario, consistente en una caja fusible de 100
amperios 15 kV y un pararrayo de 10 kV en cada una de las fases de alimentación, los cuales
se instalarán en el poste de arranque si la red de distribución es aérea, y si la red es
subterránea el alimentador arrancará desde un módulo “ropero” con fusibles tipo NX ubicado
en el centro de carga del Distribuidor. En casos excepcionales cuando el alimentador
subterráneo arranca desde un módulo de pared pre-moldeado, particularmente el usuario
instalará en el interior del cuarto de transformadores un juego de cajas portafusibles que
permita el uso de fusibles silenciosos similares al tipo NXD marca Cooper.

El equipo de protección será suministrado por el Consumidor, previa aprobación del
Distribuidor.

15.1.2 Celdas de Media Tensión

a) Si se considera la instalación de un transformador trifásico o banco de transformadores,
cuya capacidad de transformación sea mayor a 500 kVA, se deberá prever la instalación, de
un interruptor automático para operación con carga o un seccionador fusible para operación
simultánea de las tres fases bajo carga. Este equipo será suministrado por el Consumidor,
previa aprobación del Distribuidor. Su ubicación podrá ser en un ambiente adyacente del
cuarto de transformadores pero separado por una pared de mampostería.

b) Si se considera la instalación de más de un banco de transformadores para el edificio o
industria, se deberá instalar un interruptor automático principal para operación con carga o
seccionadores fusibles para accionamiento simultáneo de las tres fases bajo carga, un juego
de barras de alimentación en media tensión y como protección individual para cada
transformador, un interruptor automático o seccionadores fusibles similares al principal.


16.    ACOMETIDA EN MEDIA TENSIÓN

El transformador será conectado al sistema de distribución mediante líneas de acometida
suministradas e instaladas por el Distribuidor. El Consumidor deberá instalar toda la tubería
que se requiera y adecuar las obras civiles por su propia cuenta.

16.1   Acometidas Aéreas

Sólo se aceptarán acometidas aéreas en media tensión, en aquellos sectores donde las calles
no estén pavimentadas o existan en ellas zanjas para drenajes y las aceras no hayan sido
construidas.

Cuando se instale este tipo de acometida se deberá utilizar un cable tensor acerado de 3/8” de
diámetro como mensajero, el mismo que se fijará a un poste de hormigón junto al cuarto de
transformación o en la fachada del inmueble.
43


Para la entrada de los conductores de acometida se utilizará tubería metálica rígida para uso
eléctrico de 3” de diámetro en acometidas con dos conductores (incluyendo el neutro) y de 4”
de diámetro en acometidas de más de dos conductores. El extremo de la tubería de entrada de
acometida estará ubicado del lado del poste de distribución más cercano al inmueble y
rematará con el respectivo reversible.

Las acometidas aéreas que cruzan la calzada tendrán una altura mínima de 6m. Ver figura 33-
A

16.2     Acometidas Subterráneas

Una acometida en media tensión normalmente será subterránea y cumplirá con las
características del numeral anterior en lo referente a la tubería de entrada de los conductores
de acometida. Ver figura 33.

16.3     Características de las Canalizaciones

Las canalizaciones subterráneas requieren, previo a iniciar el proceso de excavación, la
autorización del Distribuidor, Municipalidad y otras empresas de servicios básicos, la misma
que deberá ser solicitada con una anticipación de al menos 72 horas. Las canalizaciones en
aceras y cruces de calles estarán conformadas mínimos por 2 ductos de 110mm. (4”) de
diámetro cada uno, de material PVC para uso eléctrico y que cumpla con las Normas INEN
1869 y 2227; sin embargo, en los lugares donde el Distribuidor por razones técnicas lo
requiera, podrá exigir un número mayor de ductos. Por seguridad y por tratarse de
alimentadores de media tensión (13.8 kV) se instalarán con recubrimiento de hormigón de
acuerdo al figura 34.

La canalización de entrada de acometida en media tensión que se instale junto al poste y las
que ingresan al cuarto de transformadores se construirán utilizando tubería metálica rígida
aprobada para uso eléctrico. Similares características tendrán las canalizaciones que se
deriven desde el cuarto eléctrico que contiene la protección principal del inmueble a los
diferentes cuartos de transformadores del mismo. En inmuebles o centros comerciales donde
se requiera alimentar a cuartos de transformación en forma subterránea por aceras dentro del
predio y sea necesaria la utilización de varias cajas de paso, estas podrán ser unidas con
ductos PVC de presión con recubrimiento de hormigón.

16.3.1    Trayectoria

 La trayectoria de la canalización estará conformada por tramos rectos, debiéndose prever la
construcción de cajas de paso en los puntos donde se cambie de dirección, se intercepte la
canalización existente y al pie del poste donde el primario subterráneo o acometida se
incorpore a la red aérea del sistema. La longitud máxima entre cajas de paso será de 30m.

16.3.2    Cajas de paso

Las cajas de paso o revisión se construirán de hormigón simple o de hormigón armado con
varillas de hierro negro de 3/8” espaciadas 15cm. en ambos sentidos de acuerdo a su
ubicación, ya sea en la acera o en la calle respectivamente. Las dimensiones interiores de la
caja no podrán ser menores a 80x80x80cm.
44


Aquellas cajas que se construyan en las aceras para el cruce de calles deberán dimensionarse
con una profundidad de 100cm. Las cajas en sistemas de media tensión tendrán dimensiones
de 160x80x100cm., con tapa doble, cuando el calibre del alimentador sea igual o mayor a
2/0 AWG y cambie de dirección su recorrido.

Las tapas de las cajas de paso se construirán de hormigón armado, en las aceras con ángulo
de 2”x ¼”reforzado con varilla de hierro negro de ½” espaciadas cada 15cm en ambos
sentidos y en la calle con ángulo de 5”x ¼” reforzado con varilla de hierro negro de
½”espaciadas cada 15cm en ambos sentidos. Dichas tapas estarán provistas de dos
agarraderas que permitan su remoción. Ver figura 34-A. Como alternativa se podrán
construir cajas y tapas de resistencia igual o superior a las descritas anteriormente.

16.3.3    Zanjas

La excavación de la zanja para la canalización tendrá una profundidad de por lo menos 50cm.
por debajo de la del banco de ductos requeridos, en cruce de calle y de 30cm. en aceras, con
una amplitud de 15cm. a cada lado del referido banco. El relleno en su parte inferior se
realizará con material pétreo, compactándolo y nivelándolo en capas de 10cm. Ver figura 34.

16.3.4    Disposición de Ductos

La tubería se colocará en la zanja con una separación de 10cm. entre tubos, en sentido
vertical y 5cm. en sentido horizontal. En caso de requerirse uno o dos ductos, se mantendrá la
disposición del nivel inferior. Ver figura 34.

16.3.5 Recubrimientos

El espesor de las capas de hormigón, medido desde el nivel superior de la calle o acera hasta
la cara superior del primer nivel de tubos, no será menor a 25cm y 15cm. respectivamente.
El espesor de las capas de hormigón medido desde la cara inferior del tubo más profundo
hasta la superficie del terreno compactado no será inferior a 10cm. en ambos casos, y cuando
el terreno sea demasiado flojo (fangoso) deberá colocarse en la parte superior de los ductos
una malla de armadura metálica con varillas de hierro corrugado de 3/8” y resistencia a la
tracción de 1,200 kg/cm², espaciadas cada 15 cm en ambos sentidos.

El hormigón a emplearse tendrá una resistencia a la compresión simple de f’c=210 kg/cm² a
los 28 días en las aceras y de f’c=240 kg/cm² a los 28 días en las calles.


17.      CONSIDERACIONES ADICIONALES

17.1     Generadores de Emergencia

Ninguna fuente de electricidad debe ser conectada a las instalaciones del Consumidor sin el
respectivo equipo de transferencia manual o automático, de tal forma que evite la
realimentación al sistema de distribución de la Empresa.

En caso de requerirse la instalación de equipos de generación, se necesita la aprobación
previa por parte del Distribuidor. Estos equipos no podrán estar ubicados dentro del cuarto de
transformadores del inmueble.
45




La energía proveniente desde el sistema de emergencia en ningún caso deberá ser registrada
por el medidor del usuario otorgado por el Distribuidor.

17.2   Factor de Potencia

El factor de potencia acumulado mensual del sistema eléctrico integral del Consumidor
deberá tener un valor no menor al establecido en el Reglamento de Suministro del Servicio de
Electricidad cuyo valor actual es 0.92 en retraso, caso contrario el Distribuidor, a más de
incluir en las facturas del Consumidor los recargos por consumo de energía reactiva
señalados en el Reglamento de Tarifas, le notificará tal condición.

Cuando el Consumidor requiera instalar capacitores con el propósito de corregir el factor de
potencia, estos no podrán estar ubicados dentro del cuarto de transformación.

17.3   Motores y Artefactos

Los motores monofásicos de más de 1 hp y los artefactos con una demanda igual o superior a
3 kW, serán necesariamente alimentados a una tensión nominal de 208 voltios o superior, y
los motores de potencia mayor a 5 hp serán obligatoriamente trifásicos.

Los motores monofásicos de menos de 1 hp que tengan la dualidad para funcionar con
voltajes a 120 ó 240V deberán ser conectados a 240V.

Los motores de más de 5 hp deberán operar de tal forma que su corriente de arranque no
exceda al triplo de la nominal a plena carga, o estar provista de un arrancador para conseguir
el mismo fin.

Donde se utilicen motores, la capacidad del disyuntor principal estará dada por la corriente
de régimen o de disparo del dispositivo protector de la derivación del motor de mayor
potencia, más la suma de las corrientes a plena carga de los demás motores y otros artefactos
eléctricos.

Todo motor deberá tener una placa de características en la que se indique el nombre del
fabricante, el número de fases, la clase de corriente, la potencia, la velocidad, la tensión, la
corriente a plena carga y la frecuencia nominal.

17.4 Cargas Fluctuantes

Soldadoras, aparatos de rayos X, hornos de arco, compresores, transmisores de radio y otros
equipos que originen distorsiones armónicas y consumos intermitentes de energía, serán
sujetos a consideración individual para determinar el tipo de servicio que será suministrado
por la Empresa, antes de su instalación.

El Distribuidor podrá suspender el servicio a los Consumidores cuyas instalaciones
produzcan perturbaciones en el sistema de distribución que excedan los límites legalmente
permitidos, hasta que se eliminen las causas de dichas perturbaciones.
46


Dependiendo de la capacidad y características de la carga fluctuante, la Empresa podrá exigir
la instalación de un transformador, filtros de armónicas y equipos exclusivos para su
alimentación, a costo del cliente.

17.5 Computadoras y otros Equipos Electrónicos Sensibles

En caso de producirse fluctuaciones menores de voltaje y desconexiones momentáneas del
servicio, que pueden afectar el funcionamiento de equipos sensibles, será necesaria la
instalación de equipos particulares adicionales para una operación satisfactoria.

17.6   Rótulos y Anuncios Publicitarios

Las distancias de seguridad entre los rótulos y anuncios publicitarios respecto a las redes
aéreas eléctricas del Distribuidor serán de acuerdo a la Regulación CONELEC – 002/10.

17.7   Protección para Motores Polifásicos

Se recomienda que todos los motores polifásicos estén debidamente protegidos con un
dispositivo automático o un medio de desconexión, que impida el funcionamiento
monofásico, la inversión de fases y a bajo voltaje del mismo, para prevenir los daños que
puedan resultar en los motores. Esta es una protección adicional de los elementos protectores
contra sobrecarga o sobrecorriente.

17.8   Distancias de Seguridad

Las mínimas distancias de seguridad entre las fachadas de los edificios, otras instalaciones y
las redes aéreas eléctricas de la Distribuidora serán de acuerdo a la Regulación CONELEC
002/10:

Las distancias verticales y horizontales, para conductores desnudos en reposo (sin
desplazamiento del viento), se muestra en la Tabla siguiente.
47


                                                            Tabla
                            Distancias mínimas de seguridad de conductores a edificaciones y otras
                                                        instalaciones.
                                                    Distancias en metros
                                                                                                                                          Partes Rígidas
                                                                                                                      Partes Rígidas
                                                                                                                                           Energizadas
                               DISTANCIAS MINIMAS DE SEGURIDAD Hr                                      Conductores     Energizadas
                                                                                        Conductores                                       No protegidas
                                                                                                       750 V-22 kV.   No protegidas
                                                                                         0 a 750 V.                                       de 750V-22kV,
                                                                                                                      de 0 V-750 V.


                                                                                             m               m               m                   M

                                               Horizontal a paredes,
                                                 ventanas y áreas                         1.7(A, B)      2.3 (A, B)      1.5 (A)               2.0 (A)
                                               accesibles a personas


                                               Vertical arriba o abajo
                                               de techos y áreas no                          3.2            3.8              3.0                 3.6
                                               accesibles a personas
                  Edificios




                               Vertical arriba o abajo de techos y áreas accesibles a
                                                                                             3.5            4.1              3.4                 4.0
                                personas y vehículos, además de vehículos pesados.



                                                 Vertical arriba de
                                                techos accesibles al
                                               tránsito de vehículos                         5.0            5.6              4.9                 5.5
                                                     pesados.

                                                    Horizontal                            1.7 (A,,B)     2.3 (A,,C)        1.5 (A)             2.0 (A)

                                               Vertical arriba o abajo
      Anuncios, chimeneas




                                                 de cornisas y otras
                                                superficies sobre las                        3.5            4.1              3.4                 4.0
                                                   cuales pueden
                                                 caminar personas


                                               Vertical arriba o abajo
                                                de otras partes de                         1.8 (A)          2.3              1.7                2.45
                                                 tales instalaciones




Para los casos siguientes, se podrán aceptar las distancias que se señala:
1
    Las distancias se aplican bajo las siguientes condiciones:

Para tensiones entre superiores a 22 kV hasta 470 kV , la distancia de los conductores especificada en la Tabla de arriba, deberá incrementarse
0.01 m por cada kV en exceso de 22 kV; es decir: D = Dtabla + (0.01*(V-22))
Para tensiones mayores de 50 kV, la distancia adicional del inciso anterior deberá aumentarse (3%) por cada 300 m de altura, a partir de los
1,000 m sobre el nivel del mar; es decir: D = Dtabla + (0.01*(V-22))*1.0n , con n=3 para 1,300, n=6 para 1,600…
En los circuitos de corriente continua, se deben aplicar las mismas distancias establecidas para los circuitos de corriente alterna, tomando como
referencia e éstos los voltajes nominales máximos entre la fase y el neutro.

Transición entre distancia horizontal y vertical:

La distancia de seguridad horizontal (H) predomina, sobre el nivel del techo o el punto superior de una instalación al punto donde la diagonal se
iguala a los requerimientos de distancia de seguridad vertical (V). De forma similar, la distancia de seguridad horizontal predomina por encima o
por debajo de las proyecciones de los edificios, anuncios u otras instalaciones al punto donde la diagonal se iguala a los requerimientos de la
distancia de seguridad vertical. De este punto la distancia de seguridad de transición debe ser igual a la distancia de seguridad vertical, como se
ilustra en la figura A.
48


                                             Figura A
                       Transición entre distancia Horizontal H y Vertical V




                                             Figura B
                              Distancias de Seguridad a Edificaciones




Donde:

HR.- Distancia Mínima de seguridad horizontal requerida cuando el conductor esta en reposo.

HW.- Distancia Mínima de seguridad horizontal requerida cuando el conductor es desplazado, hacia la
edificación, por el viento.
49


                                          ANEXO 1

    PROCEDIMIENTO PARA APROBACIÓN DE PROYECTOS ELÉCTRICOS

El Ing. Eléctrico responsable deberá solicitar por escrito a la Sección de Servicio al Cliente la
aprobación del proyecto Eléctrico, para lo cual adjuntará mínimo 3 juegos completos del
mismo, debidamente sellados y firmados.

Además indicará en la solicitud, el número del Código Catastral Municipal del Solar donde se
construirá el inmueble.

El proyecto eléctrico presentado en la Sección de Servicio al Cliente será remitido para su
revisión y aprobación a la Sección Diseño cuando la demanda total sea menor o igual a 30
kW, a la Sección Diseño y Presupuesto área de Consultas y Proyectos cuando la demanda
total sea mayor a 30 kW y menor o igual a 1,000 kW y a la Sección Estudios Eléctricos
cuando la demanda total sea mayor a 1,000 kW.

El proyecto eléctrico para demandas totales hasta 1,000 kW contendrá lo siguiente:

Ubicación Geográfica del inmueble.
Plano de implantación general de la obra, incluyendo ubicación del o los cuartos para
transformadores y recorrido de las canalizaciones para los alimentadores de media y baja
tensión.
Diagrama unifilar general que contendrá la acometida principal, transformadores, tableros de
medidores, alimentadores en baja tensión y paneles de distribución.
Para obras de más de un piso, incluir el diagrama unifilar general en alzado que contendrá la
acometida principal, transformadores, tableros de medidores, alimentadores en baja tensión y
paneles de distribución.
Planillas de paneles y circuitos derivados.
Detalles de los cuartos de transformadores.
Detalles de los cuartos de generadores de emergencia.
Detalle de conexión y capacidad de los transformadores.
Especificaciones técnicas del generador de emergencia.
Detalles de ubicación, diseño y montaje de los tableros de medidores.
Estudio de las demandas parciales por panel de distribución, por usuario y de la demanda
total del proyecto.
Memoria Técnica descriptiva del proyecto, incluyendo las características técnicas de los
equipos eléctricos a instalarse.
Cualquier otra información que el Distribuidor considere conveniente.

Aprobado el proyecto, se devolverán al cliente un informe técnico con dos juegos completos
con los respectivos sellos de aprobación.

La aprobación otorgada por el Distribuidor mantendrá su vigencia de hasta dos años, siempre
y cuando no se modifiquen las características del mismo o la reglamentación que sirvió para
su aprobación. Vencido este plazo, deberá ser actualizado.

Si por motivos de construcción fuera necesario modificar el proyecto, el mismo deberá ser
actualizado y presentado al Distribuidor para su nueva aprobación.
50



                                                        TABLA 1
                    Tabla 310-16. Intensidad máxima permanente admisible de conductores
                  aislados para 0 a 2,000 Voltios nominales y 60 C a 90 C (140 F a 194 F)
                  No más de tres conductores en tensión en una canalización, cable o tierra
                   (directamente enterrados), para temperatura de ambiente de 30 C (86F)
  Sección                        Temperatura nominal del conductor (véase Cuadro 310-13)                                  Sección
                    60 C            75 C        90 C          60 C         75 C          90 C
                   (140 F)          (167 F)      (194 F)        (140 F)       (167 F)        (194 F)
                    Tipos            Tipos        Tipos          Tipos         Tipos          Tipos
                     TW*          FEPW*RH*,     TBS,SA,           TW*          RH*,         TBS,SA,
                     UF*            RHW*,       SIS, FEP*         UF*         RHW*,            SIS,
                                    THHW*       FEPB*,NI                     THHW*           THHN*,
                                    THW*,         RHH*,                       THW*,         THHW*,
                                   THWN*,        RHW-2,                      THWN*,         THW-2*,
   AWG/                                                                                                                    AWG/
                                    XHHW*,       THHN*,                      XHHW*,         THWN-2*
   MCM                                                                                                                     MCM
                                     USE*,       THHW*,                        USE*           RHH*,
                                      ZW*        THW-2*,                                     RHW-2
                                                THWN-2*                                   USE-2,XHH,
                                               USE-2, XHH,                                   XHHW*
                                                 XHHW*                                      XHHW-2,
                                                XHHW-2,                                       ZW-2
                                                  ZW-2
                                     Cobre                    Aluminio o Aluminio recubierto de cobre
      18              ...              ...          14             ...           ...            ...                           ...
      16              ...              ...          18             ...           ...            ...                           ...
      14             20*              20*           25             ...           ...            ...                           ...
      12             25*              25*          30*            20*           20*            25*                           12
      10              30              35*          40*             25           30*            35*                           10
       8              40               50           55             30            40             45                            8
       6              55               65           75             40            50             60                            6
       4              70               85           95             55            65             75                            4
       3              85              100          110             65            75             85                            3
       2              95              115          130             75            90            100                            2
       1             110              130          150             85           100            115                            1
     1/0             125              150          170            100           120            135                           1/0
     2/0             145              175          195            115           135            150                           2/0
     3/0             165              200          225            130           155            175                           3/0
     4/0             195              230          260            150           180            205                           4/0
     250             215              255          290            170           205            230                           250
     300             240              285          320            190           230            255                           300
     350             260              310          350            210           250            280                           350
     400             280              335          380            225           270            305                           400
     500             320              380          430            260           310            350                           500
     600             355              420          475            285           340            385                           600
     700             385              460          520            310           375            420                           700
     750             400              475          535            320           385            435                           750
     800             410              490          555            330           395            450                           800
     900             435              520          585            355           425            480                           900
    1000             455             5454          615            375           445            500                          1000
    1250             495              590          665            405           485            545                          1250
    1500             520              625          705            435           520            585                          1500
    1750             545              650          735            455           545            615                          1750
    2000             560              665          750            470           560            630                          2000
                                               FACTORES DE CORRECCION
Temperatura                                                                                                             Temperatura
 Ambiente
                    Para temperaturas ambientes distintas de 30 C (86 F), multiplicar las anteriores                   Ambiente
   en C                     intensidades por el correspondiente factor de los siguientes                                  en F
    21-25            1.08             1.05              1.04             1.08              1.05             1.04           70-77
    26-30            1.00             1.00              1.00             1.00              1.00             1.00           78-86
    31-35            0.91             0.94              0.96             0.91              0.94             0.96           87-95
    36-40            0.82             0.88              0.91             0.82              0.88             0.91          96-104
    41-45            0.71             0.82              0.87             0.71              0.82             0.87          105-113
    46-50            0.58             0.75              0.82             0.58              0.75             0.82          114-122
    51-55            0.41             0.67              0.76             0.41              0.67             0.76          123-131
    56-60             ...             0.58              0.71              ...              0.58             0.71          132-140
    61-70             ...             0.33              0.58              ...              0.35             0.58          141-158
    71-80             ...              ....             0.41              ...               ...             0.41          159-176
* Si no se permite otra cosa específicamente en otro lugar de este Código, la protección contra sobreintensidad de los conductores
marcados con un asterisco (*), no debe superar los 15 Amperios para el número 14; 20 Amperios para el número 12 y 30 Amperios para el
número 10, todos de cobre; o 15 Amperios para el número 12 y 25 Amperios para el número 10 de aluminio y aluminio recubierto de cobre,
una vez aplicados todos los factores de corrección por la temperatura ambiente y el número de conductores.
51


                                              TABLA 2
                  Tabla C8. Número máximo de conductores y cables de aparatos en ductos
                              metálicos rígidos (según la Tabla 1, Capítulo 9)
                 Calibre del                  SECCIÓN COMERCIAL EN PULGADAS
    Letras       conductor
     tipo          AWG/
                                ½     ¾       1    11/4     11/2   2    21/2    3    31/2    4     5         6
                   MCM

      TW             14         9     15     25     44      59     98   140    216   288    370   581       839
                     12         7     12     19     33      45     75   107    165   221    284   446       644
                     10         5      9     14     25      34     56   80     123   164    212   332       480
                      8         3      5      8     14      19     31   44     68    91     118   185       267
 RHH*, RHW *,        14         6     10     17     29      39     65   93     143   191    246   387       558
    RHW-2,
    THHW
 THW, THW-2          12         5      8     13     23      32     52   75     115   154    198   311       448
 RHH*, RHW*,         10         3      6     10     18      25     41   58     90    120    154   242       350
   RHW-2*,
 THHW, THW
 RHH*, RHW*,          8         1      4      6     11      15     24   35     54    72     92    145       209
   RHW-2*,            6         1      3      5     8       11     18   27     41    55     71    111       160
 THHW, THW,           4         1      1      3     6        8     14   20     31    41     53    83        120
    THW-2,            3         1      1      3     5        7     12   17     26    35     45    71        103
    RHH*,             2         1      1      2     4        6     10   14     22    30     38    60        87
    RHW*,             1         1      1      1     3        4     7    10     15    21     27    42        61
   RHW-2*,           1/0               1      1     2        3     6     8     13    18     23    36        52
  TW, THW,           2/0               1      1     2        3     5     7     11    15     19    31        44
    THHW,            3/0               1      1     1        2     4     6      9    13     16    26        37
    THW-2            4/0                      1     1        1     3     5      8    10     14    21        31
                     250                      1     1        1     3     4      6     8     11    17        25
                     300                      1     1        1     2     3      5     7      9    15        22
                     350                            1        1     1     3      5     6      8    13        19
                     400                            1        1     1     3      4     6      7    12        17
                     500                            1        1     1     2      3     5      6    10        14
                     600                            1        1     1     1      3     4      5     8        12
                     700                                     1     1     1      2     3      4     7        10
                     750                                     1     1     1      2     3      4     7        10
                     800                                     1     1     1      2     3      4     6         9
                     900                                     1     1     1      1     3      4     6         8
                    1.000                                          1     1      1     2      3     5         8
                    1.250                                          1     1      1     1      2     4         6
                    1.500                                          1     1      1     1      2     3         5
                    1.750                                                1      1     1      1     3         4
                    2.000                                                1      1     1      1     3         4

* Los cables RHH, RHW y RHW-2, sin recubrimiento externo.
52


                                        TABLA 3
       Tabla C8. (Continuación) Número máximo de conductores y cables de aparatos en ductos
                                       metálicos rígidos (según la Tabla 1, Capítulo 9)


               Calibre del                  SECCIÓN COMERCIAL EN PULGADAS
   Letras      conductor
    tipo         AWG/
                 MCM
                             ½    ¾     1    11/4   11/2   2     21/2   3     31/2   4     5          6

THHN,              14        13   22   36    63     85     140   200    309   412    531   833       1.202
THWN,              12        9    16   26    46     62     102   146    225   301    387   608       877
THWN-2             10        6    10   17    29     39     64    92     142   189    244   383       552
                    8        3    6     9    16     22     37    53     82    109    140   221       318
                    6        2    4     7    12     16     27    38     59    79     101   159       230
                    4        1    2     4     7     10     17    23     36    48     62    98        141
                    3        1    1     3     6      8     14    20     31    41     53    83        120
                    2        1    1     3     5      7     11    17     26    34     44    70        100
                    1        1    1     1     4      5     8     12     19    25     33    51         74
                   1/0       1    1     1     3      4     7     10     16    21     27    43         63
                   2/0            1     1     2      3     6      8     13    18     23    36         52
                   3/0            1     1     1      3     5      7     11    15     19    30         43
                   4/0            1     1     1      2     4      6      9    12     16    25         36
                   250                  1     1      1     3      5      7    10     13    20         29
                   300                  1     1      1     3      4      6     8     11    17         25
                   350                  1     1      1     2      3      5     7     10    15         22
                   400                  1     1      1     2      3      5     7      8    13         20
                   500                        1      1     1      2      4     5      7    11         16
                   600                        1      1     1      1      3     4      6     9         13
                   700                        1      1     1      1      3     4      5     8         11
                   750                               1     1      1      3     4      5     7         11
                   800                               1     1      1      2     3      4     7         10
                   900                               1     1      1      2     3      4     6         9
                  1.000                              1     1      1      1     3      4     6         8
FEP,               14        12   22   35    61     83     136   194    300   400    515   808       1.166
FEPB,              12        9    16   26    44     60     99    142    219   292    376   590       851
PFA,               10        6    11   18    32     43     71    102    157   209    269   423       610
PFAH,               8        3    6    10    18     25     41    58     90    120    154   242       350
TFE                 6        2    4     7    13     17     29    41     64    85     110   172       249
                    4        1    3     5     9     12     20    29     44    59     77    120       174
                    3        1    2     4     7     10     17    24     37    50     64    100       145
                    2        1    1     3     6      8     14    20     31    41     53    83        120
PFA, PFAH,
TFE                 1        1    1     2     4      6     9     14     21    28     37    57         83
53


                                                    TABLA 4
                      Tabla 430-147 Intensidad a plena carga de los motores
                               de corriente continua en Amperios.

  Los siguientes valores de intensidad a plena carga* son para motores que giran a la velocidad mínima.
                                            Tensión nominal en el inducido*
     HP
                 90 Voltios     120 Voltios 180 Voltios 240 Voltios 500 Voltios 550 Voltios
     1/4             4.0             3.1                2.0       1.6
     1/3             5.2             4.1                2.6       2.0
     1/2             6.8             5.4                3.4       2.7
     3/4             9.6             7.6                4.8       3.8
      1              12.2            9.5                6.1       4.7
     11/2                            13.2               8.3       6.6
      2                               17                10.8      8.5
      3                               25                16       12.2
      5                               40                27        20
     71/2                             58                          29            13.6            12.2
     10                               76                          38             18              16
     15                                                           55             27              24
     20                                                           72             34              31
     25                                                           89             43              38
     30                                                          106             51              46
     40                                                          140             67              61
     50                                                          173             83              75
     60                                                          206             99              90
     75                                                          255             123            111
     100                                                         341             164            148
     125                                                         425             205            185
     150                                                         506             256            222
     200                                                         675             330            294
* Estos valores son promedios para corriente continua
54


                                           TABLA 5
                   Tabla 430-148. Intensidad a plena carga (en amperios),
                         motores monofásicos de corriente alterna


      Los siguientes valores de intensidad a plena carga corresponden a motores que funcionan
a velocidad normal y con par normal. Los motores construidos especialmente para baja velocidad
o alto par pueden tener intensidades mayores. Los motores de varias velocidades tendrán
intensidades que variarán con la velocidad, en cuyo caso se deberán utilizar las intensidades
nominales que indique su placa de características.
      Las tensiones son las nominales de los motores. Las intensidades son las permitidas para
instalaciones a 110-220 voltios y 220-240 voltios.

       HP             115 voltios        200 voltios        208 voltios        230 voltios

       1/6                4.4                2.5                2.4                2.2
       1/4                5.8                3.3                3.2                2.9
       1/3                7.2                4.1                4.0                3.6
       1/2                9.8                5.6                5.4                4.9
       3/4               13.8                7.9                7.6                6.9

        1                 16                 9.2                8.8                 8
      11/2                20                11.5                11                 10
        2                 24                13.8               13.2                12
        3                 34                19.6               18.7                17

        5                 56                32.2               30.8                28
      7 1/2               80                 46                 44                 40
       10                 100               57.5                55                 50
55


                                                     TABLA 6

          Tabla 430-150. Intensidad a plena carga de motores trifásicos de corriente alterna
    Los siguientes valores de intensidad a plena carga corresponden a motores que funcionan a las
velocidades normales de motores con correas y a motores con par normal. Los motores construidos
especialmente para baja velocidad (1.200 rpm o menos) o alto par, pueden necesitar intensidades de
funcionamiento mayores. Los motores de varias velocidades tendrán intensidades que variarán con la
velocidad, en cuyo caso se deberán utilizar las intensidades nominales que indique su placa de
características.
   Las tensiones son las nominales de los motores. Las intensidades son las permitidas para
instalaciones a 110-120 Voltios, 220-240 Voltios, 440-480 Voltios y 550-600 Voltios.
                                                                          Factor de potencia unitario*
                  Motores de inducción de jaula de ardilla
                                                                             para motores de tipo
                        y rotor bobinado (Amperios)
                                                                             síncrono (Amperios)
           115       200       208       230       460        575       2300      230       460       575       2300
  HP      Voltios   Voltios   Voltios   Voltios   Voltios    Voltios   Voltios   Voltios   Voltios   Voltios   Voltios

  1/2       4.4       2.5       2.4        2.2       1.1       0.9
  3/4       6.4       3.7       3.5        3.2       1.6       1.3
   1        8.4       4.8       4.6        4.2       2.1       1.7
 1 1/2      12.0      6.9       6.6        6.0       3.0       2.4
   2        13.6      7.8       7.5        6.8       3.4       2.7
   3                  11.0      10.6       9.6       4.8       3.9
   5                  17.5      16.7      15.2       7.6       6.1
  7.5                 25.3      24.2       22        11         9
   10                 32.2      30.8       28        14        11
   15                 48.3      46.2       42        21        17
   20                 62.1      59.4       54        27        22
   25                 78.2      74.8       68        34        27                  53        26        21
   30                  92        88        80        40        32                  63        32        26
   40                 120       114       104        52        41                  83        41        33
   50                  15       143       130        65        52                 104        52        42
   60                 177       169       154        77        62        16       123        61        49        12
   75                 221       211       192        96        77        20       155        78        62        15
  100                 285       273       248       124        99        26       202        101       81        20
  125                 359       343       312       156       125        31       253        126       101       25
  150                 414       396       360       180       144        37       302        151       121       30
  200                 552       528       480       240       192        49       400        201       161       40
  250                                               302       242        60
  300                                               361       289        72
  350                                               414       336        83
  400                                               477       382        95
  450                                               515       412       103
  500                                               590       472       118
* Para factores de potencia del 90 y el 80 por 100, las cifras anteriores se deben multiplicar respectivamente por 1.1
y 1.25.
56


                                                        TABLA 7
              Tabla 250-95. Sección mínima de los conductores de tierra de equipos
                                  para canalizaciones y equipos


                                                                                             Sección
  Intensidad o posición máxima del dispositivo
automático de protección contra sobreintensidad
en el circuito antes de los equipos, conductores,                                                   Cable de aluminio
                                                                         Cable de cobre               o de aluminio
                  etc. (Amperios)                                        n. AWG/MCM               revestido de cobre*
                                                                                                      n. AWG/MCM

                                 15                                               14                           12
                                 20                                               12                           10
                                 30                                               10                            8

                                 40                                               10                            8
                                 60                                               10                            8
                                100                                                8                            6

                                200                                                6                            4
                                300                                                4                            2
                                400                                                3                            1

                                500                                                2                           1/0
                                600                                                1                           2/0
                                800                                               1/0                          1/0

                               1,000                                              2/0                          4/0
                               1,200                                              3/0                      250 MCM
                               1,600                                              4/0                      350 MCM

                               2,000                                          250 MCM                      400 MCM
                               2,500                                          350 MCM                      600 MCM
                               3,000                                          400 MCM                      600 MCM

                               4,000                                          500 MCM                      800 MCM
                               5,000                                          700 MCM                    1,200 MCM
                               6,000                                          800 MCM                    1,200 MCM

  Véase limitaciones a la instalación en la Sección 250-92(a).
  Nota: Para cumplir con lo establecido en la Sección 250-51, los conductores de tierra de los equipos podrían ser de mayor sección
que lo especificado en este cuadro.
57


                                    TABLA 8
 Tabla 430-151A. Tabla de conversión de intensidades de motores monofásicos
   con rotor frenado para elegir el medio de desconexión y los controladores,
                  según la potencia en hp y la tensión nominal




                   Intensidad máxima de motores monofásicos con rotor frenado
hp nominales                              (Amperios)
                      115 Voltios           208 Voltios           230 Voltios

     ½                    58.5                  32.5                 29.4
     ¾                    82.8                  45.8                 41.4
     1                    96                    53                    48
    11/2                  120                   66                    60
     2                    144                   80                    72
     3                    204                   113                   102
     5                    336                   186                   168
    71/2                  480                   265                   240
    10                    600                   352                   300
58


                                                         TABLA 9

                 Tabla 430-151B. Tabla de conversión de motores polifásicos
         De tipo B, C, D y E para elegir el medio de desconexión y los controladores,
                  según la potencia en hp y la tensión nominal y la letra tipo

  Para usar sólo con las secciones 430-110, 440-12, 440-41 y 455-8(c).




                          Intensidad máxima del motor con rotor frenado (Amperios)
   hp                          Motores bifásicos y trifásicos de tipo B, C, D y E
nominales
             115 Voltios     200 Voltios       208 Voltios       230 Voltios       460 Voltios       575 Voltios

            B, C, D   E      B, C, D    E      B, C, D    E      B, C, D    E      B, C, D    E      B, C, D    E
   ½          40      40      23        23     22.1      22.1     20        20      10        10       8        8
   ¾          50      50     28.8      28.8    27.6      27.6     25        25     12.5      12,5     10        10
   1          60      60     34.5      34.5     33        33      30        30      15        15      12        12
  11/2        80      80      46        46      44        44      40        40      20        20      16        16
   2         100      100    57.5      57.5     55        55      50        50      25        25      20        20
   3                         73.6       84      71        81      64        73      32       36.5    25.6      29.2
   5                         105.8     140      102      135      92       122      46        61     36.8      48.8
  71/2                        146      210      140      202      127      183     63.5      91.5    50.8      73.2
   10                        186.3     259      179      249      162      225      81       113     64.8       90
   15                         267      388      257      373      232      337      116      169      93       135
   20                         334      516      321      497      290      449      145      225      116      180
   25                         420      646      404      621      365      562      183      281      146      225
   30                         500      775      481      745      435      674      218      337      174      270
   40                         667      948      641      911      580      824      290      412      232      330
   50                         834      1,185    802      1,139    725      1,030    363      515      290      412
   60                        1,001     1,421    962      1.367    870      1,236    435      618      348      494
   75                        1,248     1,777   1,200     1,708   1,085     1,545    543      773      434      618
  100                        1,668     2,154   1,603     2,071   1,450     1,873    725      937      580      749
  125                        2,087     2,692   2,007     2,589   1,815     2,341    908      1,171    726      936
  150                        2,496     3,230   2,400     3,106   2,170     2,809   1,085     1,405    868      1,124
  200                        3,335     4,307   3,207     4,141   2,900     3,745   1,450     1,873   1,160     1,498
  250                                                                              1,825     2,344   1,460     1,875
  300                                                                              2,200     2,809   1,760     2,247
  350                                                                              2,550     3,277   2,040     2,622
  400                                                                              2,900     3,745   2,320     2,996
  450                                                                              3,250     4,214   2,600     3,371
  500                                                                              3,625     4,682   2,900     3,746
59



                                                         TABLA 10
            Tabla 430-152. Intensidad máxima admisible o de disparo de los dispositivos
             de protección de los circuitos derivados de motores contra cortocircuitos
                                           y fallas a tierra


                                           Intensidad máxima de motores monofásicos con rotor frenado
                                                                  (Amperios)


           Tipo de motor                                             Fusible               Interruptor           Interruptor
                                                Fusible
                                                                   con retardo             automático            automático
                                                  sin
                                                                     de dos                de disparo             de tiempo
                                               retardo**
                                                                  componentes             instantáneo              Inverso*


 Monofásico                                        300                   175                    800                    250

 Polifásico de c.a. sin rotor
 Bobinado
 De jaula de ardilla:
 Todos menos los de tipo E                         300                   175                    800                    250
 Los de tipo E                                     300                   175                   1.100                   250
              #
 Síncronos                                         300                   175                    800                    250

 Con rotor bobinado                                150                   150                    800                    150

 De c.a. (Tensión constante)                       150                   150                    250                    150


Para las excepciones a los valores especificados, véanse las Secciones 430-52 a 430-54.
* Los valores de la última columna también cubren las intensidades de los interruptores automáticos de tipo inverso
y no ajustables, que pueden estar modificados en la Sección 430-52.
** Los valores de esta columna son para fusibles de Clase CC con retardo.
# Los motores síncronos de bajo par y baja velocidad (450 rpm o menos, normalmente), como los utilizados con
compresores alternativos, bombas, etc. que arrancan sin carga, no requieren que la intensidad de los fusibles o interrup-
tores automáticos sea mayor del 200 por 100 de la intensidad a plena carga.
60


                           TABLA 11
                  Dimensiones de transformadores
                    monofásicos de distribución
                        (tipo convencional)

        Capacidad        Marca          Dimensiones*
           kVA          Ejemplo       A       B       C
                       MARCA 1       87      43       52
            10         MARCA 2       85      45       55
                       MARCA 3       89      38       57
                       MARCA 1       87      43       52
            15         MARCA 2       85      45       55
                       MARCA 3       89      38       57
                       MARCA 1       97      50       59
            25         MARCA 2       90      50       60
                       MARCA 3       99      44       62
    B                  MARCA 1       102     55       64
           37.5        MARCA 2       105     55       65
                       MARCA 3       117     49       67
                       MARCA 1       102     55       64
C           50         MARCA 2       120     55       65
                       MARCA 3       118     53       71
                       MARCA 1       117     60       74
            75         MARCA 2       120     60       80
                       MARCA 3       118     89       83
                       MARCA 1       117     67       84
    A      100         MARCA 2       120     80       80
                       MARCA 3       118     96       88
                       MARCA 1       127     70       84
           167         MARCA 2       125     90       95
                       MARCA 3       129     106      90
                       MARCA 1       135     89       79
           250         MARCA 2       135     107      90
                       MARCA 1       135     109      92
           333         MARCA 2       135     110     100
        * DIMENSIONES EN CENTIMETROS, INCLUYEN RADIADORES
61



                            TABLA 12

                   Dimensiones de transformadores
                      trifásicos de distribución


        Capacidad         Marca          Dimensiones*
           kVA           Ejemplo        A       B      C
                         MARCA 1        86      86     49
            50           MARCA 2       122      87     71
                         MARCA 3       104      91     56
                         MARCA 1        88      95     56
            75           MARCA 2       125      90     76
                         MARCA 3       112      99     68
                         MARCA 1        88      99     58
            100
                         MARCA 2       125      93     91
           112.5         MARCA 1       113     109     72
            125          MARCA 1       132     93     97
                         MARCA 1       97      114    71
            150
                         MARCA 2       116     113    92
            160          MARCA 1       140     95     97
B           200
                         MARCA 1
                         MARCA 2
                                       107
                                       145
                                               118
                                               95
                                                      72
                                                      112
            225          MARCA 1       120     126    92
                         MARCA 1       110     120    75
            250
                         MARCA 2       148     101    98
                         MARCA 1       114     128     78
            300          MARCA 2       152     103    106
                         MARCA 3       125     127     95
    A       400          MARCA 1       127     141    99
                         MARCA 1       131     151     95
            500          MARCA 2       165     117    115
                         MARCA 3       133     141    102
            630          MARCA 1       146     162    133
                         MARCA 1       136     163    114
C           750
                         MARCA 2       172     126    135
            800          MARCA 1       150     183    140
                         MARCA 1       150     167    116
           1000          MARCA 2       186     133    130
                         MARCA 3       157     188    141

        * DIMENSIONES EN CENTIMETROS, INCLUYEN RADIADORES
62



                                            TABLA 13

                                  Dimensiones de transformadores
                                    monofásicos de distribución
                                         tipo Padmounted

                      Capacidad          Marca             Dimensiones*
                         kVA            Ejemplo           A     B         C
                                                TIPO 1    69    71        93
                                    MARCA 1
                                                TIPO 2    69    73        93
                                                TIPO 1
                         25         MARCA 2
                                                TIPO 2    75    70        84
                                                TIPO 1
                                    MARCA 3
                                                TIPO 2    63    76        82
                  A                             TIPO 1    69    71        98
                                    MARCA 1
                                                TIPO 2    69    73        93
                                                TIPO 1
                                    MARCA 2
                                                TIPO 2    71    76        85
B             C         37.5                    TIPO 1
                                    MARCA 3
                                                TIPO 2    64    85    83
                                                TIPO 1    69    71    100
                                    MARCA 1
                                                TIPO 2    69    73    100
                                                TIPO 1
                         50         MARCA 2
                                                TIPO 2    71    76        85
                                                TIPO 1
                                    MARCA 3
                                                TIPO 2    68    85    85
                                                TIPO 1    77    71    105
    T ipo 1                         MARCA 1
                                                TIPO 2    77    73    105
                                                TIPO 1
                         75         MARCA 2
                                                TIPO 2    80    81        89
                                                TIPO 1
                                    MARCA 3
                                                TIPO 2    76    92    95
                                                TIPO 1    77    71    110
                                    MARCA 1
    T ipo 2                                     TIPO 2    77    73    110
                                                TIPO 1
                         100        MARCA 2
                                                Tipo 2    80    81    108
                                                Tipo 1
                                    MARCA 3
                                                Tipo 2    81    97        95
                      * DIMENSIONES EN CENTIMETROS, INCLUYEN RADIADORES
                      Tipo 1: CONFIGURACIÓN TIPO RADIAL
                      Tipo 2: CONFIGURACIÓN TIPO MALLA
63


                                                   TABLA 14


                                             Dimensiones de transformadores
                                                trifásicos de distribución
                                                       Padmounted


                                   Capacidad         Marca            Dimensiones*
                                      kVA           Ejemplo          A       B      C
                                                           Tipo 1   114     111    106
                                                MARCA 1
                                                           Tipo 2   119    1131    106
                                                           Tipo 1
                                       75       MARCA 2
                                                           Tipo 2   120    120     102
                                                           Tipo 1   131    118     91
                                                MARCA 3
                                                           Tipo 2   135    159     91
                                                           Tipo 1   114    118     108
                                                MARCA 1
                                                           Tipo 2   119    131     108
                                                           Tipo 1
                                     112.5      MARCA 2
                                                           Tipo 2   120    120     104
                                                           Tipo 1   131    118     95
                                                MARCA 3
                                                           Tipo 2   135    159     95
                                                           Tipo 1   114    113     112
                                                MARCA 1
                                                           Tipo 2   119    133     112
A                                     150       MARCA 2
                                                           Tipo 1
                                                           Tipo 2   120    120     107
                                                           Tipo 1   131    118     95
                                                MARCA 3
                                                           Tipo 2   135    159     95
    B                          C                           Tipo 1   123    121     116
                                                MARCA 1
                                                           Tipo 2   123    141     116
                                                           Tipo 1
                                      225       MARCA 2
                                                           Tipo 2   125    130     126
                                                           Tipo 1   131    118     126
                                                MARCA 3
                                                           Tipo 2   135    159     126
                                                           Tipo 1   123    121     116
        Frente vi o (Tipo 1)
                v                               MARCA 1
                                                           Tipo 2   123    141     169
                                                           Tipo 1
                                      300       MARCA 2
                                                           Tipo 2   125    130     129
                                                           Tipo 1   131    118     139
                                                MARCA 3
                                                           Tipo 2   135    159     139
    Frente muerto (Tipo 2)                                 Tipo 1   133    141     122
                                                MARCA 1
                                                           Tipo 2   133    141     122
                                                           Tipo 1
                                      500       MARCA 2
                                                           Tipo 2   160    140     131
                                                           Tipo 1   139    118     147
                                                MARCA 3
                                                           Tipo 2   139    159     147
                                                           Tipo 1
                                      750        MARCA 1
                                                           Tipo 2   170    208     147
                                                           Tipo 1
                                                 MARCA 1
                                                           Tipo 2   180    210     160
                                     1,000                 Tipo 1   150    190     150
                                                MARCA 2
                                                           Tipo 2   150    210     150

                                   * DIMENSIONES EN CENTIMETROS, INCLUYEN RADIADORES
64


                                                        TABLA 15
                            Cálculo de la potencia de la batería de condensadores

A partir de la potencia en kW y del cos  de la instalación
La tabla nos da en función del cos  de la instalación antes y después de la compensación, un coeficiente a multiplicar por la
potencia activa para encontrar la potencia de la batería de condensadores a instalar.
  Antes de la Potencia del condensador en kVAR a instalarse por kW de carga para elevar el factor de potencia
compensación (cos ) o la tg  a:
tg  n cos  tg      0.75     0.59 0.48    0.46   0.43     0.40   0.36   0.33    0.29     0.25    0.20    0.14            0.00
                cos     0.8     0.86    0.9     0.91    0.92    0.93    0.94    0.95    0.96    0.97    0.98    0.99       1
 2.29    0.40           1.541   1.698   1.807   1.836   1.865   1.896   1.928   1.963   2.000   2.041   2.088   2.149     2.291
 2.22    0.41           1.475   1.631   1.740   1.769   1.799   1.829   1.862   1.896   1.933   1.974   2.022   2.082     2.225
 2.16    0.42           1.411   1.567   1.676   1.705   1.735   1.766   1.798   1.832   1.869   1.910   1.958   2.018     2.161
 2.10    0.43           1.350   1.506   1.615   1.644   1.674   1.704   1.737   1.771   1.808   1.849   1.897   1.957     2.100
 2.04    0.44           1.291   1.448   1.557   1.585   1.615   1.646   1.678   1.712   1.749   1.790   1.838   1.898     2.041
 1.98    0.45           1.235   1.391   1.500   1.529   1.559   1.589   1.622   1.656   1.693   1.734   1.781   1.842     1.985
 1.93    0.46           1.180   1.337   1.446   1.475   1.504   1.535   1.567   1.602   1.639   1.680   1.727   1.788     1.930
 1.88    0.47           1.128   1.285   1.394   1.422   1.452   1.483   1.515   1.549   1.586   1.627   1.675   1.736     1.878
 1.83    0.48           1.078   1.234   1.343   1.372   1.402   1.432   1.465   1.499   1.536   1.577   1.625   1.685     1.828
 1.78    0.49           1.029   1.186   1.295   1.323   1.353   1.384   1.416   1.450   1.487   1.528   1.576   1.637     1.779
 1.73    0.50           0.982   1.139   1.248   1.276   1.306   1.337   1.369   1.403   1.440   1.481   1.529   1.590     1.732
 1.69    0.51           0.937   1.093   1.202   1.231   1.261   1.291   1.324   1.358   1.395   1.436   1.484   1.544     1.687
 1.64    0.52           0.893   1.049   1.158   1.187   1.217   1.247   1.280   1.314   1.351   1.392   1.440   1.500     1.643
 1.60    0.53           0.850   1.007   1.116   1.144   1.174   1.205   1.237   1.271   1.308   1.349   1.397   1.458     1.600
 1.56    0.54           0.809   0.965   1.074   1.103   1.133   1.163   1.196   1.230   1.267   1.308   1.356   1.416     1.559
 1.52    0.55           0.768   0.925   1.034   1.063   1.092   1.123   1.156   1.190   1.227   1.268   1.315   1.376     1.518
 1.48    0.56           0.729   0.886   0.995   1.024   1.053   1.084   1.116   1.151   1.188   1.229   1.276   1.337     1.479
 1.44    0.57           0.691   0.848   0.957   0.986   1.015   1.046   1.079   1.113   1.150   1.191   1.238   1.299     1.441
 1.40    0.58           0.655   0.811   0.920   0.949   0.979   1.009   1.042   1.076   1.113   1.154   1.201   1.262     1.405
 1.37    0.59           0.618   0.775   0.884   0.913   0.942   0.973   1.006   1.040   1.077   1.118   1.165   1.226     1.368
 1.33    0.60           0.583   0.740   0.849   0.878   0.907   0.938   0.970   1.005   1.042   1.083   1.130   1.191     1.333
 1.30    0.61           0.549   0.706   0.815   0.843   0.873   0.904   0.936   0.970   1.007   1.048   1.096   1.157     1.299
 1.27    0.62           0.515   0.672   0.781   0.810   0.839   0.870   0.903   0.937   0.974   1.015   1.062   1.123     1.265
 1.23    0.63           0.483   0.639   0.748   0.777   0.807   0.837   0.870   0.904   0.941   0.982   1.030   1.090     1.233
 1.20    0.64           0.451   0.607   0.716   0.745   0.775   0.805   0.838   0.872   0.909   0.950   0.998   1.058     1.201
 1.17    0.65           0.419   0.576   0.685   0.714   0.743   0.774   0.806   0.840   0.877   0.919   0.966   1.027     1.169
 1.14    0.66           0.388   0.545   0.654   0.683   0.712   0.743   0.775   0.810   0.847   0.888   0.935   0.996     1.138
 1.11    0.67           0.358   0.515   0.624   0.652   0.682   0.713   0.745   0.779   0.816   0.857   0.905   0.966     1.108
 1.08    0.68           0.328   0.485   0.594   0.623   0.652   0.683   0.715   0.750   0.787   0.828   0.875   0.936     1.078
 1.05    0.69           0.299   0.456   0.565   0.593   0.623   0.654   0.686   0.720   0.757   0.798   0.846   0.907     1.049
 1.02    0.70           0.270   0.427   0.536   0.565   0.594   0.625   0.657   0.692   0.729   0.770   0.817   0.878     1.020
 0.99    0.71           0.242   0.398   0.508   0.536   0.566   0.597   0.629   0.663   0.700   0.741   0.789   0.849     0.992
 0.96    0.72           0.214   0.370   0.480   0.508   0.538   0.569   0.601   0.635   0.672   0.713   0.761   0.821     0.964
 0.94    0.73           0.186   0.343   0.452   0.481   0.510   0.541   0.573   0.608   0.645   0.686   0.733   0.794     0.936
 0.91    0.74           0.159   0.316   0.425   0.453   0.483   0.514   0.546   0.580   0.617   0.658   0.706   0.766     0.909
 0.88    0.75           0.132   0.289   0.398   0.426   0.456   0.487   0.519   0.553   0.590   0.631   0.679   0.739     0.882
 0.86    0.76           0.105   0.262   0.371   0.400   0.429   0.460   0.492   0.526   0.563   0.605   0.652   0.713     0.855
 0.83    0.77           0.079   0.235   0.344   0.373   0.403   0.433   0.466   0.500   0.537   0.578   0.626   0.686     0.829
 0.80    0.78           0.052   0.209   0.318   0.347   0.376   0.407   0.439   0.474   0.511   0.552   0.599   0.660     0.802
 0.78    0.79           0.026   0.183   0.292   0.320   0.350   0.381   0.413   0.447   0.484   0.525   0.573   0.634     0.776
 0.75    0.80                   0.157   0.266   0.294   0.324   0.355   0.387   0.421   0.458   0.499   0.547   0.608     0.750
 0.72    0.81                   0.131   0.240   0.268   0.298   0.329   0.361   0.395   0.432   0.473   0.521   0.581     0.724
 0.70    0.82                   0.105   0.214   0.242   0.272   0.303   0.335   0.369   0.406   0.447   0.495   0.556     0.698
 0.67    0.83                   0.079   0.188   0.216   0.246   0.277   0.309   0.343   0.380   0.421   0.469   0.530     0.672
 0.65    0.84                   0.053   0.162   0.190   0.220   0.251   0.283   0.317   0.354   0.395   0.443   0.503     0.646
 0.62    0.85                   0.026   0.135   0.164   0.194   0.225   0.257   0.291   0.328   0.369   0.417   0.477     0.620
 0.59    0.86                           0.109   0.138   0.167   0.198   0.230   0.265   0.302   0.343   0.390   0.451     0.593
 0.57    0.87                           0.082   0.111   0.141   0.172   0.204   0.238   0.275   0.316   0.364   0.424     0.567
 0.54    0.88                           0.055   0.084   0.114   0.145   0.177   0.211   0.248   0.289   0.337   0.397     0.540
 0.51    0.89                           0.028   0.057   0.086   0.117   0.149   0.184   0.221   0.262   0.309   0.370     0.512
 0.48    0.90                                   0.029   0.058   0.089   0.121   0.156   0.193   0.234   0.281   0.342     0.484
ejemplo: cálculo de la potencia en kW de la instalación, 500 kW
cos  existente en la instalación: cos  = 0,75 o sea tg  = 0,88
cos  deseado: cos  = 0,93 o sea tg  = 0,40
Qc = 500 x 0,487 = 240 kVAR cualquiera que sea el valor nominal de la tensión de la instalación
65


                                                               TABLA 16
                                                    Ampacidad de barras de cobre


                          Area            Peso           DC                   30 C                       50 C                       65 C
Dimensiones,
                              MCM                   Resistencia    Efecto Skin   60 Hz    Efecto Skin   60 Hz    Efecto Skin   60 Hz
      in.          In.2      circular     lb / ft    a 20 C            A      Ampacidad*      A      Ampacidad*      A      Ampacidad*
                                mil                   - / ft        70 C      Amp.        90 C      Amp.       105 C      Amp.
1/16 x 1/2       0.0313        39.8       0.121        264             1.00       103         1.00       136        1.00        157
1/16 x 3/4       0.0469        59.7       0.181        175            1.00        145        1.00        193        1.00        225
1/16 x 1         0.0625        79.6       0.241        132             1.00       187         1.00       250        1.00        228
1/16 x 1 1/2     0.0938        119        0.362        87.7            1.00       270         1.00       355        1.00        410
1/16 x 2         0.1250        159        0.483        65.8           1.01        345        1.01        460        1.01        530

 1/8 x 1/2        0.0625         79.6     0.241         132            1.00           153          1.00            205         1.00            235
 1/8 x 3/4        0.0938         119      0.362         87.7           1.00           215          1.00            285         1.00            325
 1/8 x 1          0.1250         159      0.483         65.8           1.01           270          1.01            360         1.01            415
 1/8 x 1 1/2      0.1875         239      0.726         43.8           1.01           385          1.01            510         1.01            590
 1/8 x 2          0.2500         318      0.966         32.9           1.02           495          1.02            660         1.02            760
 1/8 x 2 1/2      0.3125         398       1.21         26.4           1.02           600          1.02            800         1.02            920
 1/8 x 3          0.3750         477       1.45         21.9           1.03           710          1.03            940         1.03           1,100
 1/8 x 3 1/2      0.4375         557       1.69         18.8           1.04           810          1.03           1,100        1.03           1,250
 1/8 x 4          0.5000         637       1.93         16.5           1.04           910          1.04           1,200        1.04           1,400

 3/16 x 1/2       0.0938         119      0.362         87.7           1.00            195         1.00            260         1.00            300
 3/16 x 3/4       0.1406         179      0.545         58.4           1.01            270         1.01            360         1.01            415
 3/16 x 1         0.1875         239      0.726         43.6           1.01            340         1.01            455         1.01            520
 3/16 x 1 1/2     0.2813         358       1.09         29.3           1.02            430         1.02            630         1.02            730
 3/16 x 2         0.3750         477       1.45         21.9           1.03            610         1.03            810         1.03            940
 3/16 x 2 1/2     0.4688         597       1.81         17.5           1.04            740         1.04            980         1.03           1,150
 3/16 x 3         0.5625         716       2.17         14.6           1.05            870         1.05           1,150        1.04           1,350
 3/16 x 3 1/2     0.6563         836       2.53         12.5           1.07            990         1.06           1,300        1.06           1,500
 3/16 x 4         0.7500         955       2.90         11.0           1.09           1,100        1.08           1,450        1.07           1,700

 1/4 x 1/2        0.1250          159     0.483         65.8           1.01            240         1.01            315         1.01            360
 1/4 x 3/4        0.1875          239     0.726         43.8           1.01            320         1.01            425         1.01            490
 1/4 x 1          0.2500          318     0.966         32.9           1.02            400         1.02            530         1.02            620
 1/4 x 1 1/2      0.3750          477     1.449         21.9           1.03            560         1.03            740         1.03            860
 1/4 x 2          0.5000          637      1.93         16.5           1.04            710         1.04            940         1.04           1,100
 1/4 x 2 1/2      0.6250          796      2.41         13.2           1.06            850         1.06           1,150        1.06           1,300
 1/4 x 3          0.7500          955      2.90         11.0           1.08            990         1.08           1,300        1.07           1,550
 1/4 x 3 1/2      0.8750         1,114     3.38         9.40           1.10           1,150        1.09           1,500        1.09           1,750
 1/4 x 4           1.00          1,273     3.86         8.23           1.12           1,250        1.11           1,700        1.11           1,950
 1/4 x 5           1.25          1,592     4.83         6.58           1.16           1,500        1.15           2,000        1.14           2,350
 1/4 x 6           1.50          1,910     5.80         5.49           1.18           1,750        1.17           2,350        1.17           2,700
 1/4 x 8           2.00          2,546     7.73         4.11           1.23           2,250        1.22           3,000        1.21           3,450
 1/4 x 10          2.50          3,183     9.66         3.29           1.27           2,700        1.26           3,600        1.25           4,200
 1/4 x 12          3.00          3,820     11.6         2.74           1.31           3,150        1.30           4,200        1.28           4,900
 3/8 x 3/4        0.281           358     1.09          29.3           1.02            415         1.02            550         1.02            630
 3/8 x 1          0.375           477     1.45          21.9           1.03            510         1.03            680         1.03            790
 3/8 x 1 1/2      0.562           716     2.17          14.6           1.05            710         1.04            940         1.04           1,100
 3/8 x 2          0.750           955     2.9           11.0           1.08            880         1.08           1,150        1.07           1,350
 3/8 x 2 1/2      0.937          1,194    3.62          8.77           1.12           1,050        1.10           1,400        1.09           1,600
 3/8 x 3           1.12          1,432    4.35          7.35           1.15           1,200        1.14           1,600        1.13           1,850
 3/8 x 3 1/2       1.31          1,671    5.06          6.28           1.18           1,350        1.16           1,800        1.15           2,100
 3/8 x 4           1.50          1,910     5.8          5.49           1.20           1,500        1.19           2,000        1.18           2,350
 3/8 x 5           1.87          2,387    7.26          4.38           1.24           1,800        1.23           2,400        1.22           2,800
 3/8 x 6           2.25          2,865    8.69          3.66           1.27           2,100        1.26           2,800        1.24           3,250
 3/8 x 8           3.00          3,820    11.6          2.74           1.33           2,650        1.31           3,550        1.30           4,100
 3/8 x 10          3.75          4,775    14.5          2.19           1.38           3,200        1.36           4,300        1.35           4,900
 3/8 x 12          4.50          5,730    17.4          1.83           1.42           3,700        1.40           5,000        1.38           5,800
 1/2 x 1           0.50           637     1.93          16.5          1.04             620         1.04            820         1.04            940
 1/2 x 1 1/2       0.75           955     2.90          11.0          1.08             830         1.03           1100         1.07           1,250
 1/2 x 2           1.00          1,273    3.86          8.23          1.12            1,000        1.11           1350         1.10           1,550
 1/2 x 2 1/2       1.25          1,592    4.83          6.58          1.16            1,200        1.15           1600         1.14           1,850
 1/2 x 3           1.50          1,910    5.3           5.49          1.20            1,400        1.19           1850         1.18           2,150
 1/2 x 3 1/2       1.75          2,228    6.75          4.70          1.24            1,550        1.22           2,100        1.21           2,400
 1/2 x 4           2.00          2,546    7.72          4.11          1.26            1,700        1.25           2,300        1.24           2,650
 1/2 x 5           2.50          3,183    9.66          3.32          1.32            2,050        1.30           2,750        1.29           3,150
 1/2 x 6           3.00          3,820    11.6          2.74          1.36            2,400        1.34           3,150        1.33           3,650
 1/2 x 8           4.00          5,093    15.5          2.06          1.42            3,100        1.40           4,000        1.39           4,600
 1/2 x 10          5.00          6,366    19.3          1.65          1.47            3,500        1.45           4,200        1.44           5,500
 1/2 x 12          6.00          7,639    23.2          1.37          1.52            4,200        1.51           5,000        1.50           6,400
 3/4 x 4           3.00      3,820        11.6          2.74           1.42           2,050        1.40           2,750        1.38           3,150
 3/4 x 5           3.75      4,775        14.5         2.19            1.45           2,400        1.46           3,250        1.44           3,750
 3/4 x 6           4.50      5,730        17.4          1.83           1.52           2,800        1.50           3,750        1.48           4,300
 3/4 x 8           6.00      7,639        23.2          1.37           1.30           3,500        1.58           4,700        1.56           5,400
 3/4 x 10          7.50      9,549        29.0         1.10            1.67           4,200        1.64           5,600        1.62           6,500
 3/4 x 12          9.00      11,459       34.8         0.914           1.72           4,900        1.69           6,500        1.67           7,500



* Aplicable a condiciones típicas de servicio (Interior, 40 C de temperatura de ambiente), y libre de influencias magnéticas externas.
POSTE
                                                         ACERA




                                                                        2
                                                                                        2




                    CERRAMIENTO
                                                                            1   ACERA




SITUACIÓN           CORRECTA

SITUACIÓN           INCORRECTA
SITUACIÓN           INCORRECTA
SITUACIÓN           CORRECTA


  NOTAS:

                                                                                               EMPRESA ELÉCTRICA PÚBLICA DE GUAYAQUIL, EP
  1   SITIO DE MEDICIÓN EN EL CERRAMIENTO.
                                                             INMUEBLE                                      GUAYAQUIL - ECUADOR

  2   CONDUCTORES DE ACOMETIDA QUE SERÁN SUMINISTRADOS
      E INSTALADOS POR EL DISTRIBUIDOR.                                                                ACOMETIDA
                                                                                            UBICACIÓN DE ENTRADA DE ACOMETIDA

                                                                                 DIBUJADO      ING. C. GÓMEZ      APROBADO         2012 / 04 / 07
                                                                                 PROYECTADO    ING. C. GÓMEZ                       ESCALA:     S/E
                                                                                 REVISADO      ING. M. CEDEÑO   ING. JOE SAVERIO
1       REVERSIBLE

                                                 2      TUERCA DE OJO PARA FIJACIÓN DE RETENIDA
                                                                                                                      1 1/4" PARA MEDIDOR MONOFÁSICO CLASE 100                                                           1
                                                 3      TUBERÍA METÁLICA RÍGIDA GALVANIZADA DE DIÁMETRO:
                                                                                                                      2" ò 2 1/2" PARA MEDIDOR MONOFÁSICO CLASE 200
                                                 4      RETENIDA DE FIJACIÓN DE ACOMETIDA

                                                 5      MÓDULO DE MEDICIÓN QUE CONTIENE LA BASE (SOCKET) Y EL DISYUNTOR PRINCIPAL
                                                                                                                                                                                                          7              3
                                                        SOBRE DIMENSIONES DEL MÓDULO VER NOTA ADJUNTA.

                                                 6      MEDIDOR
                                                                                                                                                                      DETALLE DEL SITIO
                                                                                                                                                                        DE MEDICIÓN
                                                 7      CONDUCTORES DE ACOMETIDA AÉREA                                                                                   ESCALA 1:100
                                                 8      DISYUNTOR PRINCIPAL

                                                 9      CONDUCTOR DE PUESTA A TIERRA                                                                                      10
                                                10 TECHO DE PROTECCIÓN DE AGUAS LLUVIAS

                                                                                                                      2


                                                                                                                      1                                                                                                      5
                                    7
                                                                                               4                                                                                             6




                                                                                                                 POSTE A SER
                                                                                                                 INSTALADO POR EL
                                                                                                                 CONSUMIDOR

                                                                                                                                               VIVIENDA                                 8




                                               MÍNIMO
                                                                                            10




                                               5.5 m
                                                                                                                  CERRAMIENTO

                                                                                                                                                                                                     9




                                                                                                   1.8 m
                                                                                                                  9

                                                                                       ACERA                              JARDÍN
                                                                     CALLE
                                                                                                           HACIA EL PANEL DE DISTRIBUCIÓN


NOTAS:                                                                                                     ELECTRODO DE
                                                                                                           PUESTA A TIERRA
                                                                                                                                                                         EMPRESA ELÉCTRICA PÚBLICA DE GUAYAQUIL, EP
·   EL CONSUMIDOR SUMINISTRARÁ E INSTALARÁ TODOS LOS MATERIALES EXCEPTO 4 , 6 , Y                  7
    QUE LOS SUMINISTRARÁ E INSTALARÁ EL DISTRIBUIDOR                                                                                                                                    GUAYAQUIL - ECUADOR

·   LAS DIMENSIONES ESTAN EXPRESADAS EN METROS
                                                                                                                                                                    ACOMETIDA EN SECTOR RESIDENCIAL
·   DIMENSIONES DEL MÓDULO DE MEDICIÓN:                                                                                                                   SEPARACIÓN DE LOS CONDUCTORES CON RELACIÓN AL SUELO
    VER NUMERAL 10.2.1 Y FIGURAS 21 Y 21-A SI LA MEDICIÓN ES CL-100
    NUMERAL 10.2.2 Y FIGURAS 22, 22-A, 22-B, 22-C, 22-D SI LA MEDICIÓN ES CL-200                                                                          DIBUJADO         ARQ. J. BRIONES         APROBADO         2012 / 04 / 07
·   EL DISYUNTOR PRINCIPAL SERÁ INSTALADO PARA SER ACCIONADO DESDE EL LADO INTERIOR DEL                                                                   PROYECTADO       ARQ. J. BRIONES                          ESCALA 1:75
    CERRAMIENTO O DESDE EL LADO EXTERIOR DEL MISMO.                                                                                                       REVISADO         ING. M. CEDEÑO        ING. JOE SAVERIO
1    REVERSIBLE
                                                                                                                                    1 1/4" PARA MEDIDOR MONOFÁSICO CLASE 100
                                                              2    TUBERÍA METÁLICA RÍGIDA GALVANIZADA DE DIÁMETRO:
                                                                                                                                    2" ò 2 1/2" PARA MEDIDOR MONOFÁSICO CLASE 200                                    1
                                                              3    RETENIDA DE FIJACIÓN DE ACOMETIDA

                                                              4    MÓDULO DE MEDICIÓN QUE CONTIENE LA BASE (SOCKET) Y EL DISYUNTOR PRINCIPAL
                                                                   SOBRE DIMENSIONES DEL MÓDULO VER NOTA ADJUNTA.                                                                                       6             2
                                                              5    MEDIDOR

                                                              6    CONDUCTORES DE ACOMETIDA AÉREA

                                                              7    DISYUNTOR PRINCIPAL

                                                              8    CONDUCTOR DE PUESTA A TIERRA                                                                     9
                                                              9    TECHO DE PROTECCIÓN DE AGUAS LLUVIAS




                                                                                                                                                                                                                          4
              6
                                                                          3                                                                                                                 5




                                                           POSTE DE HORMIGÓN A SER
                                                           INSTALADO POR EL CONSUMIDOR


                                                                                                                                                                                            7
                                                                                                                                9




                                            5.5 m MÍNIMO
                                                                                                                               CERRAMIENTO




                                                                                                       3m
                                                                                                            1.8 m
                                                                                                                           8                                                                       8
                                                                                              ACERA                              JARDÍN
                                                           CALLE                                                    HACIA EL PANEL DE DISTRIBUCIÓN
                                                                                                                                                                                  DETALLE DEL SITIO
                                                                                                                                                                                    DE MEDICIÓN
                                                                                                                    ELECTRODO DE
                                                                                                                                                                                         ESCALA 1:100
                                                                                                                    PUESTA A TIERRA
NOTAS:

·   EL CONSUMIDOR SUMINISTRARÁ E INSTALARÁ TODOS LOS MATERIALES EXCEPTO 3 , 5 , Y             6                                                                          EMPRESA ELÉCTRICA PÚBLICA DE GUAYAQUIL, EP
    QUE LOS SUMINISTRARÁ E INSTALARÁ EL DISTRIBUIDOR                                                                                                                                GUAYAQUIL - ECUADOR
·   LAS DIMENSIONES ESTAN EXPRESADAS EN METROS
                                                                                                                                                               ACOMETIDA EN SECTOR RESIDENCIAL
·   DIMENSIONES DEL MÓDULO DE MEDICIÓN:
                                                                                                                                                     SEPARACIÓN DE LOS CONDUCTORES CON RELACIÓN AL SUELO
    VER NUMERAL 10.2.1 Y FIGURAS 21 Y 21-A SI LA MEDICIÓN ES CL-100
    NUMERAL 10.2.2 Y FIGURAS 22, 22-A, 22-B, 22-C, 22-D SI LA MEDICIÓN ES CL-200
                                                                                                                                                     DIBUJADO        ARQ. J. BRIONES            APROBADO     2012 / 04 / 07
·   EL DISYUNTOR PRINCIPAL SERÁ INSTALADO PARA SER ACCIONADO DESDE EL LADO INTERIOR DEL                                                              PROYECTADO      ARQ. J. BRIONES                         ESCALA 1:75
    CERRAMIENTO O DESDE EL LADO EXTERIOR DEL MISMO.
                                                                                                                                                     REVISADO           ING. M. CEDEÑO    ING. JOE SAVERIO
1    REVERSIBLE
                                                                                                                          1 1/4" PARA MEDIDOR MONOFÁSICO CLASE 100                                             1
                                                           2    TUBERÍA METÁLICA RÍGIDA GALVANIZADA DE DIÁMETRO:
                                                                                                                          2" ó 2 1/2" PARA MEDIDOR MONOFÁSICO CLASE 200
                                                           3    MÓDULO DE MEDICIÓN QUE CONTIENE LA BASE (SOCKET) Y EL DISYUNTOR PRINCIPAL
                                                                SOBRE DIMENSIONES DEL MÓDULO VER NOTA ADJUNTA.
                                                                                                                                                                                                 5             2
                                                           4    MEDIDOR

                                                           5    CONDUCTORES DE ACOMETIDA AÉREA

                                                           6    DISYUNTOR PRINCIPAL

                                                           7    CONDUCTOR DE PUESTA A TIERRA

                                                           8    TECHO DE PROTECCIÓN DE AGUAS LLUVIAS


                                                                                                                                                                8




                                                                       5
                                                                                                                                                                                                                   3

                                                                                                                                                                                     4



                                                               8

                                                                                                                                                    DETALLE DEL SITIO
                                                                            CERRAMIENTO                                                               DE MEDICIÓN                6




                                              3 m MÍNIMO
                                                                                                                                                         ESCALA 1:100




                                                               1.8 m
                                                                                 7


                                                                                     JARDÍN
         CALLE
                                                                           HACIA EL PANEL DE DISTRIBUCIÓN
                                                                                                                                                                                            7
                                                                           ELECTRODO DE
                                                                           PUESTA A TIERRA

NOTAS:

·   EL CONSUMIDOR SUMINISTRARÁ E INSTALARÁ TODOS LOS MATERIALES EXCEPTO 4 , 5 ,
    QUE LOS SUMINISTRARÁ E INSTALARA EL DISTRIBUIDOR
                                                                                                                                                                          EMPRESA ELÉCTRICA PÚBLICA DE GUAYAQUIL, EP
                                                                                                                                                                                         GUAYAQUIL - ECUADOR
·   LAS DIMENSIONES ESTÁN EXPRESADAS EN METROS

·   DIMENSIONES DEL MÓDULO DE MEDICIÓN:                                                                                                                           ACOMETIDA EN SECTOR RESIDENCIAL
    VER NUMERAL 10.2.1 Y FIGURAS 21 Y 21-A SI LA MEDICIÓN ES CL-100                                                                                     SEPARACIÓN DE LOS CONDUCTORES CON RELACIÓN AL SUELO
    NUMERAL 10.2.2 Y FIGURAS 22, 22-A, 22-B, 22-C, 22-D SI LA MEDICIÓN ES CL-200
                                                                                                                                                        DIBUJADO          ARQ. J. BRIONES       APROBADO       2012 / 04 / 07
·   EL DISYUNTOR PRINCIPAL SERÁ INSTALADO PARA SER ACCIONADO DESDE EL LADO INTERIOR DEL
    CERRAMIENTO O DESDE EL LADO EXTERIOR DEL MISMO.                                                                                                     PROYECTADO        ARQ. J. BRIONES                      ESCALA 1:75
                                                                                                                                                        REVISADO          ING. M. CEDEÑO    ING. JOE SAVERIO
1   REVERSIBLE
                                                                                                                   DETALLE DEL SITIO
                          2   TUERCA DE OJO PARA FIJACIÓN DE RETENIDA
                                                                                                                     DE MEDICIÓN
                          3   TUBERÍA METÁLICA RÍGIDA GALVANIZADA DE 1 1/4 " DE DIÁMETRO
                                                                                                                                  1
                          4   CONDUCTORES DE ACOMETIDA AÉREA

                          5   DISYUNTOR PRINCIPAL

                          6   CONDUCTOR DE PUESTA A TIERRA

                          7   BASE (SOCKET) CL-100 MONOFÁSICA
                                                                                                                                         3
                          8   PLANCHA DE MADERA DE 40X30X2 CM PARA FIJACIÓN DE BASE SOCKET



          4



                                        1



     2                                      3

                                                8
                                                         VIVIENDA
                                                                                                                                               8
                                                    7

                                            5




           3m
                                        6                                                                                                          7




                  1.8 m
                                                                                                                                                   5




                                ELECTRODO DE
                                PUESTA A TIERRA


NOTAS:

·   EL CONSUMIDOR SUMINISTRARÁ E INSTALARÁ TODOS LOS MATERIALES EXCEPTO           4   Y    EL MEDIDOR
    QUE LOS SUMINISTRARÁ E INSTALARÁ EL DISTRIBUIDOR
                                                                                                                       EMPRESA ELÉCTRICA PÚBLICA DE GUAYAQUIL, EP
·   LAS DIMENSIONES ESTÁN EXPRESADAS EN METROS                                                                                     GUAYAQUIL - ECUADOR


                                                                                                                     ACOMETIDA Y SITIO DE MEDICIÓN PARA
                                                                                                                           SERVICIO OCASIONAL

                                                                                                        DIBUJADO       ARQ. J. BRIONES         APROBADO         2012 / 04 / 07
                                                                                                        PROYECTADO     ARQ. J. BRIONES                          ESCALA S/E
                                                                                                        REVISADO       ING. M. CEDEÑO        ING. JOE SAVERIO
1    REVERSIBLE

                                                     2    TUERCA DE OJO PARA FIJACIÓN DE RETENIDA

                                                     3    TUBERÍA METÁLICA RÍGIDA GALVANIZADA DE 1 1/4 " DE DIÁMETRO                       DETALLE DEL SITIO
                                                     4    MEDIDOR                                                                            DE MEDICIÓN

                                                     5    CONDUCTORES DE ACOMETIDA AÉREA

                                                     6    CAJA METÁLICA QUE CONTIENE EL DISYUNTOR PRINCIPAL                                                1
                                                     7    CONDUCTOR DE PUESTA A TIERRA

                                                     8    BASE (SOCKET) CL - 100 MONOFÁSICA
                                                                                                                           5
                                         5

                                                                                                                                                                3




                                2
                                                          VIVIENDA
                                                                                                                                                               8
                                                                                                                           4

                                                                                                                                                                    6




                                    3m
                                             1.8 m
                                                                                                                                                                    7
CALLE

                                                         ELECTRODO DE
                                                         PUESTA A TIERRA




        NOTAS:

        ·   EL CONSUMIDOR SUMINISTRARÁ E INSTALARÁ TODOS LOS MATERIALES EXCEPTO        4 , Y   5
            QUE LOS SUMINISTRARÁ E INSTALARÁ EL DISTRIBUIDOR
        ·   LAS DIMENSIONES ESTÁN EXPRESADAS EN METROS
                                                                                                                                     EMPRESA ELÉCTRICA PÚBLICA DE GUAYAQUIL, EP
                                                                                                                                                 GUAYAQUIL - ECUADOR

                                                                                                                                    ACOMETIDAS EN ZONAS SUBURBANAS
                                                                                                                                      Y DE BAJO CONSUMO ELÉCTRICO

                                                                                                                       DIBUJADO      ARQ. J. BRIONES     APROBADO         2012 / 04 / 07
                                                                                                                       PROYECTADO    ARQ. J. BRIONES                      ESCALA 1:75
                                                                                                                       REVISADO      ING. M. CEDEÑO    ING. JOE SAVERIO
1   REVERSIBLE

                                            2   TUERCA DE OJO PARA FIJACIÓN DE RETENIDA

                                            3   TUBERÍA METÁLICA RÍGIDA GALVANIZADA DE 1 1/4 " DE DIÁMETRO
                                                                                                                                                               DETALLE DEL SITIO
                                            4   RETENIDA DE FIJACIÓN DE ACOMETIDA                                                                                DE MEDICIÓN
                                            5   MEDIDOR

                                            6   CONDUCTORES DE ACOMETIDA AÉREA
                                                                                                                                                                           1
                                            7   CAJA METÁLICA QUE CONTIENE EL DISYUNTOR PRINCIPAL

                                            8   CONDUCTOR DE PUESTA A TIERRA
                         6
                                            9   BASE (SOCKET) CL - 100 MONOFÁSICA                                                            6
                                                                                        2


                                                                                                                                                                                   3


                                                                                        4



                                                                                                             VIVIENDA
                                                                                                                                                                                    9




                                                                          6m
                                                                                                                                                 5
                                                                                                                                                                                        7




                             5.5 m MÍNIMO
                                                                                                1.8 m                                                                                   8




                                                                                    ACERA
                                            CALLE


                                                                                         ELECTRODO DE
                                                                                         PUESTA A TIERRA                             EMPRESA ELÉCTRICA PÚBLICA DE GUAYAQUIL, EP
                                                                                                                                                     GUAYAQUIL - ECUADOR

NOTAS:
                                                                                                                                   ACOMETIDAS EN ZONAS SUBURBANAS
·   EL CONSUMIDOR SUMINISTRARÁ E INSTALARÁ TODOS LOS MATERIALES EXCEPTO 4 , 5 , Y           6                                        Y DE BAJO CONSUMO ELÉCTRICO
    QUE LOS SUMINISTRARÁ E INSTALARÁ EL DISTRIBUIDOR
                                                                                                                        DIBUJADO     ARQ. J. BRIONES      APROBADO             2012 / 04 / 07
·   LAS DIMENSIONES ESTÁN EXPRESADAS EN METROS
                                                                                                                        PROYECTADO   ARQ. J. BRIONES                       ESCALA 1:75
                                                                                                                        REVISADO     ING. M. CEDEÑO     ING. JOE SAVERIO
1   REVERSIBLE

                                     2    TUBERÍA METÁLICA RÍGIDA GALVANIZADA DE 1 1/4 " DE DIÁMETRO

                                     3    RETENIDA DE FIJACIÓN DE ACOMETIDA                                                                                      DETALLE DEL SITIO
                                     4    MEDIDOR                                                                                                                  DE MEDICIÓN

                                     5    CONDUCTORES DE ACOMETIDA AÉREA

                                     6    CAJA METÁLICA QUE CONTIENE EL DISYUNTOR PRINCIPAL                                                                                       1
                                     7    CONDUCTOR DE PUESTA A TIERRA

                                     8    BASE (SOCKET) CL - 100 MONOFÁSICA

                                                                                                                                                5


                                                                                                                                                                                      2
5
                                                                 3




                                                                                                                                                                                      8
                                         POSTE DE HORMIGÓN O MADERA A SER                                            VIVIENDA
                                         INSTALADO POR EL CONSUMIDOR                                                                           4




                      5.5 m MÍNIMO
                                                                                                                                                                                              6




                                                                                                MÍNIMO
                                                                                                3 m.
                                                                                                                                                                                          7
                                                                                                         1.8 m




                                                                                        ACERA
                                                CALLE

                                                                                              ELECTRODO DE
                                                                                              PUESTA A TIERRA
                                                                                                                                             EMPRESA ELÉCTRICA PÚBLICA DE GUAYAQUIL, EP
                                                                                                                                                         GUAYAQUIL - ECUADOR
    NOTAS:

    ·   EL CONSUMIDOR SUMINISTRARÁ E INSTALARÁ TODOS LOS MATERIALES EXCEPTO 3 , 4 , Y                            5                         ACOMETIDAS EN ZONAS SUBURBANAS
        QUE LOS SUMINISTRARÁ E INSTALARÁ EL DISTRIBUIDOR                                                                                     Y DE BAJO CONSUMO ELÉCTRICO
    ·   LAS DIMENSIONES ESTÀN EXPRESADAS EN METROS
                                                                                                                                DIBUJADO     ARQ. J. BRIONES     APROBADO             2012 / 04 / 07
                                                                                                                                PROYECTADO   ARQ. J. BRIONES                          ESCALA 1:75
                                                                                                                                REVISADO     ING. M. CEDEÑO    ING. JOE SAVERIO
1        REVERSIBLE
                                                                                                                                                                     1 1/4" PARA MEDIDOR MONOFÁSICO CLASE 100
                                                                                                  2       TUBERÍA METÁLICA RÍGIDA GALVANIZADA DE DIÁMETRO:
                                                                                                                                                                      2" o' 2 1/2" PARA MEDIDOR MONOFÁSICO CLASE 200
                                                                                                  3       RETENIDA DE FIJACIÓN DE ACOMETIDA

                                                                                                  4       MÓDULO DE MEDICIÓN QUE CONTIENE LA BASE (SOCKET) MONOFÁSICA
                                                                                                          SOBRE DIMENSIONES DEL MÓDULO VER NOTA ADJUNTA

                                                                                                  5       MEDIDOR
                                                                                                                                                                                                DETALLE DEL SITIO
                                                                                                  6       CONDUCTORES DE ACOMETIDA AÉREA                                                          DE MEDICIÓN
                                                                                                  7       DISYUNTOR PRINCIPAL
                                   CONDUCTORES DE ACOMETIDA         6
                                                                                                  8       CONDUCTOR DE PUESTA A TIERRA
                                                                                                                                                                                               CONDUCTORES DE
                                                                                                  9       TECHO DE PROTECCIÓN DE AGUAS LLUVIAS                                             ALIMENTACIÓN PARTICULAR


                                                                                                                   CONDUCTORES DE
                                                                        3                                      ALIMENTACIÓN PARTICULAR

                                                                                                                                                                                                                      1
                                                                                                                                                                                       6



                                                                        1
                                                                                                                                                                                            2
                                                                                               ELEMENTO DE
                                                                                                FIJACIÓN
                                                                                                                                                       VIVIENDA
                                                                        2                                                                                                                                            ELEMENTO DE
                                                                                                                                                                                                                       FIJACIÓN
POSTE DEL DISTRIBUIDOR                                                                                                                            PANEL DE




                                     5.5 m MÍNIMO
                                                                        9                                                                         DISTRIBUCIÓN

                                                                                                                                                                                       9
                                                                                                                            3 m MÍNIMO
                                                                                                                                                                                       4




                                                                                  1.8 m
                                                                                                                                                                                   5
                                                                                                          8

                                                    CALLE
                                                                                                                                                                                           7
                                                                                          ELECTRODO DE
                                                                                          PUESTA A TIERRA
                                                                                                                                                                                                                          8




    NOTAS:                                                                                                                                                       EMPRESA ELÉCTRICA PÚBLICA DE GUAYAQUIL, EP
                                                                                                                                                                             GUAYAQUIL - ECUADOR
   ·   EL CONSUMIDOR SUMINISTRARÁ E INSTALARÁ TODOS LOS MATERIALES EXCEPTO 3 , 5 , Y                  6
       QUE LOS SUMINISTRARÁ E INSTALARA EL DISTRIBUIDOR
                                                                                                                                                        ACOMETIDA EN SECTOR RESIDENCIAL
   ·   LAS DIMENSIONES ESTÁN EXPRESADAS EN METROS                                                                                             SEPARACIÓN DE LOS CONDUCTORES CON RELACIÓN AL SUELO
   ·   DIMENSIONES DEL MÓDULO DE MEDICIÓN:
                                                                                                                                              DIBUJADO           ARQ. J. BRIONES           APROBADO              2012 / 04 / 07
       VER NUMERAL 10.2.1 Y FIGURAS 21 Y 21-A SI LA MEDICIÓN ES CL-100
       NUMERAL 10.2.2 Y FIGURAS 22, 22-A, 22-B, 22-C, 22-D SI LA MEDICIÓN ES CL-200                                                           PROYECTADO         ARQ. J. BRIONES                                 ESCALA 1:75
                                                                                                                                              REVISADO           ING. M. CEDEÑO        ING. JOE SAVERIO
ACERA




                         2           1



CERRAMIENTO

                                 3       ACERA
                             4




                                           NOTAS:




                                                       EMPRESA ELÉCTRICA PÚBLICA DE GUAYAQUIL, EP
                                                                   GUAYAQUIL - ECUADOR
              INMUEBLE



                                          DIBUJADO     ING. C. GÓMEZ      APROBADO
                                          PROYECTADO   ING. C. GÓMEZ                       ESCALA:   S/E
                                          REVISADO     ING. M. CEDEÑO   ING. JOE SAVERIO
DETALLE DEL SITIO
                                                                                                                                                                                                               DE MEDICIÓN
                                                               1   REVERSIBLE
                                                                                                                                                                                                                     ESCALA 1:100
                                                                                                                                   1 1/4" PARA MEDIDOR MONOFÁSICO CLASE 100
                                                               2   TUBERÍA METÁLICA RÍGIDA GALVANIZADA DE DIÁMETRO:
                                                                                                                                   2" o' 2 1/2" PARA MEDIDOR MONOFÁSICO CLASE 200
                                                               3   MÓDULO DE MEDICIÓN QUE CONTIENE LA BASE (SOCKET) MONOFÁSICA
                                                                   VER FIG.21 SI LA MEDICIÓN ES CL-100 Y FIG.22 SI LA MEDICIÓN ES CL-200

                                                               4   MEDIDOR
                                             5                                                                                                                                                          8
              1                                                5   CONDUCTORES DE ACOMETIDA

                                                               6   DISYUNTOR PRINCIPAL

                                                               7   CONDUCTOR DE PUESTA A TIERRA

                                                               8   TECHO DE PROTECCIÓN DE AGUAS LLUVIAS
                                     2

                                                                                                                                                                                                             3
                            MEDIO DE FIJACIÓN

                                                                                                                                                                                                                 4
                                                                                                                                   8




                                                                                                                                                            CERRAMIENTO                                     6
                                                                                                                                         180cm
                             CAJA DE PASO DE HORMIGÓN
                             DE 60x60x60cm




5cm
                                                                                                                   5cm
                                                                                                                                                                  7
                                                                                                                                  ACERA                                                                         2
                                                                                        CALLE
                                                                                                                                                         HACIA EL PANEL DE DISTRIBUCIÓN




       60cm
                                                                                                                  60cm
                                                                                                                                                        ELECTRODO DE
                                                                                                                                                        PUESTA A TIERRA
                                                                                                                                                                                                                         7




10cm
                                                                                                                   10cm

              10cm   60cm   10cm                                   TUBERIA METÁLICA RÍGIDA                                10cm    60cm           10cm
                                                                   PARA USO ELÉCTRICO


                             NOTAS:

                             ·     EL CONSUMIDOR SUMINISTRARÁ E INSTALARÁ TODOS LOS MATERIALES EXCEPTO 4                  Y   5                                                 EMPRESA ELÉCTRICA PÚBLICA DE GUAYAQUIL, EP
                                   QUE LOS SUMINISTRARÁ E INSTALARÁ EL DISTRIBUIDOR
                                                                                                                                                                                           GUAYAQUIL - ECUADOR
                             ·     LAS DIMENSIONES ESTÁN EXPRESADAS EN CENTÍMETROS

                             ·     DIMENSIONES DEL MÓDULO DE MEDICIÓN:                                                                                            IDENTIFICACIÓN DE LA ACOMETIDA SUBTERRÁNEA
                                   VER NUMERAL 10.2.1 Y FIGURAS 21, 21-A, SI LA MEDICIÓN ES CL-100                                                              PROVENIENTE DE UN SISTEMA DE DISTRIBUCIÓN AÉREO
                                   NUMERAL 10.2.2 Y FIGURAS 22, 22-A, 22-B, 22-C, 22-D SI LA MEDICIÓN ES CL-200
                                                                                                                                                             DIBUJADO          ARQ. J. BRIONES     APROBADO                  2012 / 04 / 07
                             ·     EL DISYUNTOR PRINCIPAL SERÁ INSTALADO PARA SER ACCIONADO DESDE EL LADO INTERIOR DEL                                                         ARQ. J. BRIONES                               ESCALA 1:75
                                                                                                                                                             PROYECTADO
                                   CERRAMIENTO O DESDE EL LADO EXTERIOR DEL MISMO.
                                                                                                                                                             REVISADO          ING. M. CEDEÑO    ING. JOE SAVERIO
DETALLE DEL SITIO
                                                                                                                                                                                             DE MEDICIÓN
                                                                                                                                                                                               ESCALA 1:100




                                                                                                                                                                                       9




                                                                                                     3


                    6                                                                                    1                                                                             4

                                                                                                                                                                                   5
                                                                                                            2


                                                                                                    MEDIO DE FIJACIÓN




                                                                                                                                                                                           7
                                                                                                9



                                                                                                                              CERRAMIENTO
                                                                                                                                                                                       2




                                                                                                         180 cm
                                                                                                                         8




                                                                                5 cm
                                                                                                ACERA                                                                                              8
                                                        CALLE
                                                                                                                     HACIA EL PANEL DE DISTRIBUCIÓN




                                                                                        60 cm
                                                                                                                     ELECTRODO DE
                                                                                                                     PUESTA A TIERRA




                                                                                10 cm
NOTAS:                                                                              10 cm       60 cm        10 cm

·   EL CONSUMIDOR SUMINISTRARÁ E INSTALARÁ TODOS LOS MATERIALES                                                                                               EMPRESA ELÉCTRICA PÚBLICA DE GUAYAQUIL, EP
    EXCEPTO 3 , 5 , Y 6 QUE LOS SUMINISTRARÁ E INSTALARÁ EL DISTRIBUIDOR                                                                                                  GUAYAQUIL - ECUADOR
·   LAS DIMENSIONES ESTÁN EXPRESADAS EN CENTÍMETROS

·   DIMENSIONES DEL MÓDULO DE MEDICIÓN:                                                                                                                 IDENTIFICACIÓN DE LA ACOMETIDA SUBTERRÁNEA
    VER NUMERAL 10.2.1 Y FIGURAS 21 Y 21-A SI LA MEDICIÓN ES CL-100                                                                                   PROVENIENTE DE UN SISTEMA DE DISTRIBUCIÓN AÉREA
    NUMERAL 10.2.2 Y FIGURAS 22, 22-A, 22-B, 22-C, 22-D SI LA MEDICIÓN CL-200
                                                                                                                                                 DIBUJADO     ARQ. J. BRIONES     APROBADO
·   EL DISYUNTOR PRINCIPAL SERÁ INSTALADO PARA SER ACCIONADO DESDE EL LADO INTERIOR DEL                                                          PROYECTADO   ARQ. J. BRIONES                          ESCALA 1:75
    CERRAMIENTO O DESDE EL LADO EXTERIOR DEL MISMO.
                                                                                                                                                 REVISADO     ING. M. CEDEÑO    ING. JOE SAVERIO
1    REVERSIBLE DE 2" O 2 1/2" DE DIÁMETRO

                                                                                                2    TUERCA DE OJO PARA FIJACIÓN DE LA ACOMETIDA

                                        7            INDUSTRIA SIN CERCA PERIMETRAL             3    TUBERÍA METÁLICA RÍGIDA GALVANIZADA DE 2" O 2 1/2" DE DIÁMETRO
                                                                                                4    CABLE MENSAJERO GALVANIZADO CON ALMA DE ACERO DE 1/4" DE DIÁMETRO

                                                                                                5    MÓDULO DE MEDICIÓN
                                                                               2
                                                                                                6    MEDIDOR

                                                                                                7    CONDUCTORES DE ACOMETIDA AEREA
                                                                               1
                                                                                                8    DISYUNTOR PRINCIPAL
                                                           3
                                                                                                9    CONDUCTOR DE PUESTA A TIERRA
                                                                 5
                                                           6                                    10   BASE CL-100/CL-200
                                                                              10
                                                                                                11   TECHO DE PROTECCIÓN DE AGUAS LLUVIAS
                                                                               8

                                                                                           NOTAS:
                                                                               9




                                                                 1.8 m
                                                                                           ·   EL CONSUMIDOR SUMINISTRARÁ E INSTALARÁ TODOS LOS MATERIALES EXCEPTO           6    Y   7
                                                                                               QUE LOS SUMINISTRARÁ E INSTALARÁ EL DISTRIBUIDOR
        ACERA
CALLE                                                                                      ·   LAS DIMENSIONES ESTÁN EXPRESADAS EN METROS

                                                                         ELECTRODO DE      ·   DIMENSIONES DEL MÓDULO DE MEDICIÓN:
                                                                         PUESTA A TIERRA
                                                                                               EN MEDICIONES MONOFÁSICAS VER DETALLE DEL MÓDULO EN LA FIG # 22 Y DESDE LA 22-A HASTA LA 22-C
                                                                                               EN MEDICIONES TRIFÁSICAS VER DETALLE DEL MÓDULO EN LAS FIG # 23 Y 23-A




                        7
                                                     INDUSTRIA CON CERCA PERIMETRAL


                                    1


                                 3



                                 CERRAMIENTO


                5              11

                                 10
        6                                                                                                                                    EMPRESA ELÉCTRICA PÚBLICA DE GUAYAQUIL, EP
                                     8                                                                                                                   GUAYAQUIL - ECUADOR
                                 9




                1.8 m
                                                                                                                             MEDICIONES INDUSTRIALES MONOFÁSICA O TRIFÁSICA
                                                                                                                                              EN BAJA TENSIÓN CLASE 200
        ACERA                               RETIRO
CALLE
                                                                                                                           DIBUJADO          ARQ. J. BRIONES     APROBADO                 2012 / 04 / 07
                            HACIA EL PANEL DE DISTRIBUCIÓN
                            ELECTRODO DE                                                                                   PROYECTADO        ARQ. J. BRIONES                              ESCALA 1:100
                            PUESTA A TIERRA
                                                                                                                           REVISADO          ING. M. CEDEÑO    ING. JOE SAVERIO
PARARRAYO 10kV




                    CAJA FUSIBLE                                                                                                                   CAJA FUSIBLE
                      100A-15kV                                                                                                                      100A-15kV




                                                                                                                                              TRANSFORMADORES
                                                                                                                                              DE MEDICIÓN




     CONDUCTORES                                                                                                                              CONDUCTORES
     DE ACOMETIDA                                                                                                                             DE ACOMETIDA




                                 TUBERÍA MET. RIG. 4"
                                 PARA ACOMETIDA




                                                                                                                                                      TUBERÍA MET. RIG. 1 1/4"
                                                                                                                                                      PARA CONDUCTORES DE
                                                                                                                                                      SEÑAL DE LA MEDlClÓN

                                                                                                                                                                                     CONDUCTOR DE
                                                                                                                                                                                     PUESTA A TlERRA

                         TECHO DE PROTECCIÓN                                                                                                    TECHO DE PROTECCIÓN
                         DE AGUAS LLUVIAS                                                                                                       DE AGUAS LLUVIAS




                                                                                          650
                                                                                                                                                                                            ABRAZADERA PARA
                                                                                                                                                                                            SUJEClÓN DEL MÓDULO
                                                         MÓDULO PARA MEDIDOR
                                                             70X40X25




                                                         TUBERÍA EMT DE 1/2" PARA




                                                                                    180
                                                         PUESTA A TIERRA



                                                                                                                                                  VISTA LATERAL
                                                                          CALLE

                                                          CONECTOR                                                                                                       EMPRESA ELÉCTRICA PÚBLICA DE GUAYAQUIL, EP
                                                                          NOTAS:




                            80
CAJA DE REVISIÓN 80X80X80                                                 EL CONSUMIDOR SUMINISTRARÁ E INSTALARÁ LA TUBERÍA DE ACOMETIDA Y
                                                                                                                                                                                     GUAYAQUIL - ECUADOR
                                                        ELECTRODO DE      EL MÓDULO DE MEDICIÓN CON LA TUBERÍA DE CONTROL DE 1 1/4"
                                                        PUESTA A TIERRA
                                                                          EL MEDIDOR, LOS CONDUCTORES DE SEÑAL, EL SWITCH DE PRUEBA,                             MEDICIÓN EN MEDIA TENSIÓN EN POSTE
                                                                          LOS TRANSFORMADORES DE CORRIENTE Y DE POTENCIAL, SERAN
                                        80                                                                                                                      CON CRUCETA CENTRADA Y REMATE DE LINEA
                                                                          SUMINISTRADOS E INSTALADOS POR EL DISTRIBUIDOR.

                                                                          EL CONSUMIDOR SUMINISTRARÁ COMO PROTECCIÓN DE SOBRECORRIENTE TRES
                                                                          CAJAS FUSIBLE 100A-15kV Y COMO PROTECCIÓN DE SOBRETENSION TRES             DIBUJADO             ING. C. GÓMEZ         APROBADO          2012 / 04 / 07
                                                                          PARARRAYOS 10kV.
                                                 VISTA FRONTAL                                                                                       PROYECTADO           ING. C. GÓMEZ                           ESCALA:     S/E
                                                                          TODAS LAS DIMENSIONES ESTÁN EXPRESADAS EN CENTíMETROS Y PULGADAS.
                                                                                                                                                     REVlSADO             ING. M. CEDEÑO     ING. JOE SAVERIO
PARARRAYO 10kV




                                                                                                                        CAJA FUSIBLE
                                                                                                                          100-15kV




                                                                                                                          TRANSFORMADORES
                                                                                                                          DE MEDICIÓN




                               TUBERIA MET. RIG. 1 1/4"
                               PARA CONDUCTORES DE
                               SEÑAL DE LA MEDlClÓN




                                                                                                                           TUBERÍA MET. RIG. 1 1/4"
                                                                                                                           PARA CONDUCTORES DE
                                                                                                                           SEÑAL DE LA MEDlClÓN

                                                                                                                                                         CONDUCTOR DE
                                                                                                                                                         PUESTA A TlERRA

     TECHO DE PROTECCIÓN                                                                                              TECHO DE PROTECCIÓN
     DE AGUAS LLUVIAS                                                                                                 DE AGUAS LLUVIAS


                                                                                                                                                                ABRAZADERA PARA
                                                                                                                                                                SUJEClÓN DEL MÓDULO
                               MÓDULO PARA MEDIDOR
                                   70X40X25




                               TUBERÍA EMT DE 1/2" PARA




                                                           180
                               PUESTA A TIERRA



                                                                                                                            VISTA LATERAL

                                 CONECTOR                                                                                                     EMPRESA ELÉCTRICA PÚBLICA DE GUAYAQUIL, EP
                                                  NOTAS:
ELECTRODO DE PUESTA A TIERRA                      EL CONSUMIDOR SUMINISTRARÁ E INSTALARÁ LA TUBERIA DE ACOMETIDA Y
                                                                                                                                                         GUAYAQUIL - ECUADOR
                                                  EL MÓDULO DE MEDICIÓN CON LA TUBERÍA DE CONTROL DE 1 1/4"

                                                  EL MEDIDOR, LOS CONDUCTORES DE SEÑAL, EL SWITCH DE PRUEBA,                        MEDICIÓN EN MEDIA TENSIÓN EN POSTE CON
                                                  LOS TRANSFORMADORES DE CORRIENTE Y DE POTENCIAL, SERÁN
                                                  SUMINISTRADOS E INSTALADOS POR EL DISTRIBUIDOR.
                                                                                                                                ESTRUCTURA DE DOBLE REMATE EN LINEA PRIMARIA
                   VISTA FRONTAL
                                                  EL CONSUMIDOR SUMINISTRARÁ COMO PROTECCIÓN DE SOBRECORRIENTE TRES
                                                  CAJAS FUSIBLE 100A-15kV Y COMO PROTECCIÓN DE SOBRETENSION TRES          DIBUJADO            ING. C. GÓMEZ         APROBADO          2012 / 04 / 07
                                                  PARARRAYOS 10kV.
                                                                                                                          PROYECTADO          ING. C. GÓMEZ                           ESCALA: S/E
                                                  TODAS LAS DIMENSIONES ESTÁN EXPRESADAS EN CENTÍMETROS Y PULGADAS.
                                                                                                                          REVlSADO            ING. M. CEDEÑO       ING. JOE SAVERIO
4

                5
        3




    2                               1      MÓDULO PARA TRANSFORMADORES DE CORRIENTE

                                    2      TAPA ATORNILLABLE CON DISPOSITIVO PARA
                                           SELLO DEL DISTRIBUIDOR

                                    3      SOPORTE DE ALUMINIO ENDURECIDO PARA LOS TC


                                    4      TRANSFORMADORES DE CORRIENTE


                                    5      CONECTOR PARA TOMA DE TIERRA


                                           DIMENSIONES EN MILíMETROS.


1


                                 EMPRESA ELÉCTRICA PÚBLICA DE GUAYAQUIL, EP
                                         GUAYAQUIL - ECUADOR

                      MÓDULO DE SEGURIDAD PARA TRANSFORMADORES DE
                      CORRIENTE EN MEDICIONES INDIRECTAS TRIFÁSICAS
                         EN BAJA TENSIÓN PARA NUEVOS SERVICIOS
                    DIBUJADO     ING. M. CEDEÑO     APROBADO            2012 / 04 / 07
                    PROYECTADO   ING. M. CEDEÑO                         ESCALA
                    REVISADO     ING. M. CEDEÑO   ING. JOE SAVERIO
3




                5




            4
                                     1      MÓDULO PARA TRANSFORMADORES DE CORRIENTE
    2
                                    2       TAPA ATORNILLABLE CON DISPOSITIVO PARA
                                            SELLO DEL DISTRIBUIDOR

                                     3      SOPORTE DE ALUMINIO ENDURECIDO PARA LOS TC


                                     4      TRANSFORMADORES DE CORRIENTE


                                     5      CONECTOR PARA TOMA DE TIERRA


                                            DIMENSIONES EN MILíMETROS.


1



                                 EMPRESA ELÉCTRICA PÚBLICA DE GUAYAQUIL, EP
                                          GUAYAQUIL - ECUADOR

                      MÓDULO DE SEGURIDAD PARA TRANSFORMADORES DE
                      CORRIENTE EN MEDICIONES INDIRECTAS MONOFÁSICAS
                         EN BAJA TENSIÓN PARA NUEVOS SERVICIOS
                    DIBUJADO      ING. M. CEDEÑO     APROBADO            2012 / 04 / 07
                    PROYECTADO    ING. M. CEDEÑO                         ESCALA
                    REVISADO      ING. M. CEDEÑO   ING. JOE SAVERIO
4

            5
    3




2                                1      MÓDULO PARA TRANSFORMADORES DE CORRIENTE

                                2       TAPA ATORNILLABLE CON DISPOSITIVO PARA
                                        SELLO DEL DISTRIBUIDOR

                                 3      SOPORTE DE ALUMINIO ENDURECIDO PARA LOS TC


                                 4      TRANSFORMADORES DE CORRIENTE


                                 5      CONECTOR PARA TOMA DE TIERRA


                                        DIMENSIONES EN MILíMETROS.


1



                              EMPRESA ELÉCTRICA PÚBLICA DE GUAYAQUIL, EP
                                        GUAYAQUIL - ECUADOR

                  MÓDULO DE SEGURIDAD PARA TRANSFORMADORES DE CORRIENTE
                  EN MEDICIONES INDIRECTAS TRIFÁSICAS EN BAJA TENSIÓN PARA
                         INMUEBLES CON SERVICIO ELÉCTRICO PREVIO

                DIBUJADO      ING. M. CEDEÑO     APROBADO            2012 / 04 / 07
                PROYECTADO    ING. M. CEDEÑO                         ESCALA
                REVISADO      ING. M. CEDEÑO   ING. JOE SAVERIO
3




            5




    4
2                                1      MÓDULO PARA TRANSFORMADORES DE CORRIENTE

                                2       TAPA ATORNILLABLE CON DISPOSITIVO PARA
                                        SELLO DEL DISTRIBUIDOR

                                 3      SOPORTE DE ALUMINIO ENDURECIDO PARA LOS TC


                                 4      TRANSFORMADORES DE CORRIENTE


                                 5      CONECTOR PARA TOMA DE TIERRA


                                        DIMENSIONES EN MILíMETROS.


1



                             EMPRESA ELÉCTRICA PÚBLICA DE GUAYAQUIL, EP
                                      GUAYAQUIL - ECUADOR

                  MÓDULO DE SEGURIDAD PARA TRANSFORMADORES DE CORRIENTE
                  EN MEDICIONES INDIRECTAS MONOFÁSICAS EN BAJA TENSIÓN
                         EN INMUEBLES CON SERVICIO ELÉCTRICO PREVIO

                DIBUJADO      ING. M. CEDEÑO     APROBADO            2012 / 04 / 07
                PROYECTADO    ING. M. CEDEÑO                         ESCALA
                REVISADO      ING. M. CEDEÑO   ING. JOE SAVERIO
Reversible




                                                    Tubería metálica
                                                    rígida de 1 1/4"                                         Collar metálico de 6 1/2"




                           3.00 m
                                                                                                                                                 Contratuerca, tuerca y corona

                                                                                                                                                  Caja metálica con plancha de 1/16"


                                                       Base monofásica
                                                       clase 100                                                                                 Medidor clase 100
                                                                      Disyuntor principal




                                    30 cm
                                                                      de 30 A - 1P                           Collar metálico de 6 1/2"           Sello de seguridad




                           50 cm
                                                                        Puerta de protección con cerradura




                                    20 cm
                                                                        Tomacorriente doble
                                            30 cm
                                                                        de 120 V
                                                                                                                                         10 cm

                                                     Poste de hormigón del Distribuidor


                                                     Tubería EMT de 1 1/4"
                                                     para el conductor de puesta a tierra




Altura de montaje 2.00 m
                                                                                                                                                                                       EMPRESA ELÉCTRICA PÚBLICA DE GUAYAQUIL, EP
                                                                                                                                                                                                GUAYAQUIL - ECUADOR
                                               Varilla de puesta a tierra
                                               de 5/8" X 6'
                                                                                                                                                                                          TABLERO PARA UN MEDIDOR
                                                                                                                                                                                 INSTALADO EN POSTE DEL DISTRIBUIDOR
                                                                                                                                                                 DIBUJADO              ING. M. CEDEÑO     APROBADO         2012 / 04 / 07
                                                                                                                                                                 PROYECTADO            ING. M. CEDEÑO                      ESCALA: S/E
                                                                                                                                                                 REVISADO              ING. M. CEDEÑO   ING. JOE SAVERIO
1




                                1


        8

        2

                                        2

                        3



             3


            SELLO DE
            SEGURIDAD




    4




7                           1

1


                                    5
                                                         EMPRESA ELÉCTRICA PÚBLICA DE GUAYAQUIL, EP
                                                                    GUAYAQUIL - ECUADOR


                                                          MÓDULO CON TAPA PARA MEDIDOR
                                                          MONOFÁSICO CL-200 SIN DEMANDA
                                            DIBUJADO     ING. M. CEDEÑO     APROBADO         2012 / 04 / 07
                                            PROYECTADO   ING. M. CEDEÑO                      ESCALA 1:10
                                            REVISADO     ING. M. CEDEÑO   ING. JOE SAVERIO
9

            2
                                        2
    6



                    3

                                    BISAGRAS

            3       8




        SELLO DE
        SEGURIDAD




        4



7                               1
                        1
1

                            5

                                                            EMPRESA ELÉCTRICA PÚBLICA DE GUAYAQUIL, EP
                                                                  GUAYAQUIL - ECUADOR

                                                     MÓDULO CON PUERTA TIPO VITRINA PARA MEDIDOR
                                                     MONOFÁSICO CL-200 O TRIFÁSICO CL 100/200 CON O
                                                                    SIN DEMANDA
                                               DIBUJADO     ING. M. CEDEÑO     APROBADO         2012 / 04 / 07
                                               PROYECTADO   ING. M. CEDEÑO                      ESCALA 1:10
                                               REVISADO     ING. M. CEDEÑO   ING. JOE SAVERIO
1




                    9           3



          2
    7                                     2
    6




                                        BISAGRAS

          3             8




        SELLO DE
        SEGURIDAD




           4




7                           1

1                                                                EMPRESA ELÉCTRICA PÚBLICA DE GUAYAQUIL, EP
                                                                             GUAYAQUIL - ECUADOR

                                                              MÓDULO CON PUERTA TIPO VITRINA PARA
                                    5                           MEDIDOR TRIFÁSICO CL-100/CL-200

                                                   DIBUJADO      ING. C. GÓMEZ      APROBADO         2012 / 04 / 07
                                                   PROYECTADO    ING. C. GÓMEZ                       ESCALA:     S/E
                                                   REVISADO      ING. M. CEDENO   ING. JOE SAVERIO
1




                        9           3



               2
    7                                         2
    6




                                            BISAGRAS

               3            8




            SELLO DE
            SEGURIDAD

        4




7                               1

                                                                     EMPRESA ELÉCTRICA PÚBLICA DE GUAYAQUIL, EP
1
                                                                                GUAYAQUIL - ECUADOR

                                                                  MÓDULO CON PUERTA TIPO VITRINA PARA
                                        5                           MEDIDOR TRIFÁSICO CL-100/CL-200

                                                       DIBUJADO     ING. C. GÓMEZ       APROBADO         2012 / 04 / 07
                                                       PROYECTADO   ING. C. GÓMEZ                        ESCALA:     S/E
                                                       REVISADO      ING. M. CEDENO   ING. JOE SAVERIO
1   FONDO FALSO PLANCHA DE 1/16".               NOTA:

2   BASE SOCKET CL20 DE 5, 6 ó 13 TERMINALES.   ·   TODAS LAS DIMENSIONES ESTÁN EXPRESADAS EN
                                                    CENTíMETROS.
3   SWITCH DE PRUEBA.
                                                ·   EL MÓDULO SERA CONSTRUIDO EN PLANCHA METÁLICA DE
4   PUERTA ABISAGRADA.                              1/16" DE ESPESOR.

5   MÓDULO QUE CONTIENE BASE SOCKET             ·   EL CONSUMIDOR SUMINISTRARÁ E INSTALARÁ TODOS LOS
    SWITCH DE PRUEBA.                               MATERIALES EXCEPTO EL MEDIDOR Y SWITCH DE PRUEBA.                EMPRESA ELÉCTRICA PÚBLICA DE GUAYAQUIL, EP
                                                                                                                              GUAYAQUIL - ECUADOR
6   TERMINAL DE PUESTA A TIERRA.


                                                                                                                       MÓDULO CON PUERTA TIPO VITRINA
                                                                                                                       EN MEDICIONES INDIRECTAS 1F Ó 3F
                                                                                                        DIBUJADO     ING. C. GÓMEZ      APROBADO         2012 / 04 / 07
                                                                                                        PROYECTADO   ING. C. GÓMEZ                       ESCALA: S/E
                                                                                                        REVISADO     ING. M. CEDEÑO   ING. JOE SAVERIO
12




                                                                                                                                                                12




                                                                                                                                                                12




                                                                                            NOTA:
                                                                                            TODAS LAS DIMENSIONES ESTÁN EXPRESADAS EN CENTíMETROS.
                                                                                            EL TABLERO DE MEDIDORES SERÁ CONSTRUIDO EN PLANCHA DE 1/16".
1 TABLERO DE MEDIDORES TIPO VITRINA.       7 BARRA DE NEUTRO.
                                                                                            EL CONSUMIDOR SUMINISTRARÁ E INSTALARÁ TODOS LOS MATERIALES EXCEPTO LOS MEDIDORES.

2 BASE SOCKET 1F CL-100.                   8 DISYUNTOR INDIVIDUAL.
                                                                                                                        EMPRESA ELÉCTRICA PÚBLICA DE GUAYAQUIL, EP
3 BASE SOCKET 1F CL-200.                   9 ELECTRODO DE PUESTA A TIERRA.                                                         GUAYAQUIL - ECUADOR
4 DISYUNTOR PRINCIPAL.                     10 TAPA METÁLICA DE PROTECCIÓN.

5 PUERTA ABISAGRADA CON VISOR DE VIDRIO.   11 DISPOSITIVO PARA COLOCAR SELLO DE SEGURIDAD


6 BARRAS DE DISTRIBUCIÓN.                  12 BISAGRA CON PASADOR
                                                                                                          DIBUJADO        ING. M. CEDEÑO     APROBADO          2012 / 04 / 07
                                              TIPO NO REMOVIBLE.
                                                                                                          PROYECTADO      ING. M. CEDEÑO                       ESCALA
                                                                                                          REVISADO        ING. M. CEDEÑO    ING. JOE SAVERIO
1 TABLERO DE MEDIDORES TIPO VITRINA.       7 BARRA DE NEUTRO.                               NOTA :
                                                                                            TODAS LAS DIMENSIONES ESTÁN EXPRESADAS EN CENTÍMETROS.
2 BASE SOCKET 1F CL-100.                   8 DISYUNTOR INDIVIDUAL.
                                                                                            EL TABLERO DE MEDIDORES SERÁ CONSTRUIDO EN PLANCHA DE 1/16".
                                                                                            EL CONSUMIDOR SUMINISTRARÁ E INSTALARÁ TODOS LOS MATERIALES EXCEPTO LOS MEDIDORES.
3 BASE SOCKET 1F CL-200.                   9 ELECTRODO DE PUESTA A TIERRA.


4 DISYUNTOR PRINCIPAL HASTA 70A-2P         10 TAPA METÁLICA DE PROTECCIÓN.

5 PUERTA ABISAGRADA CON VISOR DE VIDRIO.   11 DISPOSITIVO PARA COLOCAR SELLO DE SEGURIDAD

                                                                                                                     EMPRESA ELÉCTRICA PÚBLICA DE GUAYAQUIL, EP
6 BARRAS DE DISTRIBUCIÓN.
                                                                                                                                   GUAYAQUIL - ECUADOR

                                                                                                                            TABLERO DE 2 MEDIDORES
                                                                                                                            MONOFÁSICOS

                                                                                                       DIBUJADO         ING. M. CEDEÑO      APROBADO         2012 / 04 / 07

                                                                                                       PROYECTADO       ING. M. CEDEÑO                       ESCALA :
                                                                                                       REVlSADO         ING. M. CEDEÑO    ING. JOE SAVERIO
RESERVA




1 TABLERO DE MEDIDORES TIPO VITRINA.       7 BARRA DE NEUTRO.                               NOTA :
                                                                                            TODAS LAS DIMENSIONES ESTÁN EXPRESADAS EN CENTÍMETROS.
2 BASE SOCKET 1F CL-100.                   8 DISYUNTOR INDIVIDUAL.
                                                                                            EL TABLERO DE MEDIDORES SERÁ CONSTRUIDO EN PLANCHA DE 1/16".
                                                                                            EL CONSUMIDOR SUMINISTRARÁ E INSTALARÁ TODOS LOS MATERIALES EXCEPTO LOS MEDIDORES.
3 BASE SOCKET 1F CL-200.                   9 ELECTRODO DE PUESTA A TIERRA.

4 DISYUNTOR PRINCIPAL.                     10 TAPA METÁLICA DE PROTECCIÓN.

5 PUERTA ABISAGRADA CON VISOR DE VIDRIO.   11 DISPOSITIVO PARA COLOCAR SELLO DE SEGURIDAD

                                                                                                                     EMPRESA ELÉCTRICA PÚBLICA DE GUAYAQUIL, EP
6 BARRAS DE DISTRIBUCIÓN.
                                                                                                                                   GUAYAQUIL - ECUADOR

                                                                                                                            TABLERO DE 3 MEDIDORES
                                                                                                                            MONOFÁSICOS

                                                                                                       DIBUJADO         ING. M. CEDEÑO      APROBADO         2012 / 04 / 07

                                                                                                       PROYECTADO       ING. M. CEDEÑO                       ESCALA :
                                                                                                       REVlSADO         ING. M. CEDEÑO    ING. JOE SAVERIO
NOTA :
                                                                                                           TODAS LAS DIMENSIONES ESTÁN EXPRESADAS EN CENTÍMETROS.
                                                                                                           EL TABLERO DE MEDIDORES SERÁ CONSTRUIDO EN PLANCHA DE 1/16".
1 TABLERO DE MEDIDORES TIPO VITRINA.       7 BARRAS DE DISTRIBUCIÓN.              13 BISAGRA CON PASADOR   EL CONSUMIDOR SUMINISTRARÁ E INSTALARÁ TODOS LOS MATERIALES EXCEPTO LOS MEDIDORES.
                                                                                     TIPO NO REMOVIBLE.
2 BASE SOCKET 1F CL-100.                   8 BARRA DE NEUTRO.
                                                                                                                                       EMPRESA ELÉCTRICA PÚBLICA DE GUAYAQUIL, EP
3 BASE SOCKET 1F CL-200.                   9 DISYUNTOR INDIVIDUAL.
                                                                                                                                                    GUAYAQUIL - ECUADOR
4 BASE SOCKET 3F CL-100 o CL-200.          10 ELECTRODO DE PUESTA A TIERRA.

                                           11 TAPA METÁLICA DE PROTECCIÓN.
                                                                                                                                            TABLERO DE MEDIDORES
5 DISYUNTOR PRINCIPAL.
                                                                                                                                           MONOFÁSICOS Y TRIFÁSICOS
6 PUERTA ABISAGRADA CON VISOR DE VIDRIO.   12 DISPOSITIVO PARA COLOCAR SELLO DE SEGURIDAD
                                                                                                                      DIBUJADO         ING. MANUEL CEDEÑO    APROBADO          2012 / 04 / 07
                                                                                                                      PROYECTADO       ING. MANUEL CEDEÑO                      ESCALA :
                                                                                                                      REVlSADO         ING. MANUEL CEDEÑO   ING. JOE SAVERIO
NOTA :
                                                                                                                  TODAS LAS DIMENSIONES ESTÁN EXPRESADAS EN CENTÍMETROS.
                                                                                                                  EL TABLERO DE MEDIDORES SERÁ CONSTRUIDO EN PLANCHA DE 1/16".
                                                                                                                  EL CONSUMIDOR SUMINISTRARÁ E INSTALARÁ TODOS LOS MATERIALES EXCEPTO LOS MEDIDORES,
1 TABLERO DE MEDIDORES TIPO VITRINA.   8 DISYUNTOR PRINCIPAL.                            15 BISAGRA CON PASADOR
                                                                                                                  TRANSFORMADORES DE CORRIENTE Y SWITCH DE PRUEBA.
                                                                                            TIPO NO REMOVIBLE.
2 BASE SOCKET 1F CL-100.                9 PUERTA ABISAGRADA CON VISOR DE VIDRIO.

3 BASE SOCKET 1F CL-200.               10 DISPOSITIVO PARA COLOCAR SELLO DE SEGURIDAD.

4 BASE SOCKET 3F CL-100 o CL-200.      11 BARRAS DE DISTRIBUCIÓN.

5 BASE SOCKET 3F CL-20.                12 BARRA DE NEUTRO.
                                                                                                                                               EMPRESA ELÉCTRICA PÚBLICA DE GUAYAQUIL, EP
6 TRANSFORMADOR DE CORRIENTE.          13 ELECTRODO DE PUESTA A TIERRA.                                                                              GUAYAQUIL - ECUADOR
7 SWITCH DE PRUEBA.                    14 TAPA METALICA DE PROTECCIÓN.
                                                                                                                                                  TABLERO DE MEDIDORES
                                                                                                                                               MONOFÁSICOS Y TRIFÁSICOS

                                                                                                                               DIBUJADO        ING. M. CEDEÑO       APROBADO         2012 / 04 / 07
                                                                                                                               PROYECTADO      ING. M. CEDEÑO                        ESCALA :
                                                                                                                               REVlSADO        ING. M. CEDEÑO     ING. JOE SAVERIO
LOSA DE HORMIGÓN ARMADO                                                                      LOSA DE HORMIGÓN ARMADO


                                                                                                                                                                                LUMINARIA




                                                                       MÓDULO DE
                                                                       SEGURIDAD
                                                                                                                                                               MÓDULO DE
                                                                       DE TC
                                                                                                                                                               SEGURIDAD
                                                                                                                                                               DE TC




                250 cm
                                                                                                                            250 cm
                                                                                                                                                                               180 cm DEL EJE DEL
TUBERÍA METÀLICA                                                                                        TUBERÍA METÀLICA                                                       MEDIDOR AL PISO
RÌGIDA DE 4"                                                                                            RÌGIDA DE 4"
PARA LA ACOMETIDA                                                                                       PARA LA ACOMETIDA




                         150 cm
                                                                                                                                                               50 cm


  ELECTRODO DE                                                                                                                                     ELECTRODO DE
 PUESTA A TIERRA                                                                                                                                  PUESTA A TIERRA




                                                   300 cm
                                                                                                                        NOTAS:
                                                                                                                        EL CONSUMIDOR SUMINISTRARÁ E INSTALARÁ TODOS LOS MATERIALES Y EQUIPOS
                                                                                                                        EXCEPTO EL MEDIDOR, LOS CONDUCTORES DE SEÑAL Y LOS DE ACOMETIDA,
                                                                                                                        LOS MISMOS QUE SERÁN SUMINISTRADOS E INSTALADOS POR EL DISTRIBUIDOR

                                                                                                                        LOS TRANSFORMADORES DE CORRIENTE, MÓDULO DE SEGURIDAD DE LOS TC
                                                                                                                        SERÁN SUMINISTRADOS POR EL DISTRIBUIDOR E INSTALADOS POR EL CONSUMIDOR.

                                                                                                                        EL CONSUMIDOR SUMINISTRARÁ COMO PROTECCIÓN DE SOBRECORRIENTE TRES
                                                                                                                        CAJAS FUSIBLE 100A-15kV Y COMO PROTECCIÓN DE SOBRETENSION TRES
                                                                                                                        PARARRAYOS 10kV.
                                                                                                                        TODAS LAS DIMENSIONES ESTAN EXPRESADAS EN CENTíMETROS Y PULGADAS.




                    250 cm
                                                                                        TABLERO DE
                                                                                        DISTRIBUCIÓN
                                                                   MÓDULO DE
                                                                   SEGURIDAD
                                                                   DE TC
                                               TUBERÍA METÁLICA RÍGIDA DE 11/4"
                                               DE DIAM. PARA CONDUCTORES DE
                                               SEÑAL DE LA MEDICIÓN                                                                                     EMPRESA ELÉCTRICA PÚBLICA DE GUAYAQUIL, EP
                                                                                                                                                                         GUAYAQUIL - ECUADOR




                                    100
                                    200
                                                            LUMINARIA
                                                                                  MÓDULO PARA MEDIDOR
                                                       TOMACORRIENTE 120V             70 x 40 x 25 cm                                                     CUARTO PARA TRANSFORMADORES HASTA
                                                   DISPOSITIVO PARA COLOCAR
                                                                                                                                                          150 kVA CON MEDICIÓN EN BAJA TENSION
                                                   SELLO DEL DISTRIBUIDOR

                                                                                                                                            DIBUJADO         ING. J. SAVERIO       APROBADO         2012 / 04 / 07
                                  100 cm
                                                                                                                                            PROYECTADO       ING. J. SAVERIO                        ESCALA: 1:50
                                                                                                                                            REVlSADO         ING. J. SAVERIO      ING. J. SAVERIO
LOSA DE HORMIGÓN ARMADO                                                                    LOSA DE HORMIGÓN ARMADO


                                                                                                                                                                                  LUMINARIA




                                                                             MÓDULO DE




                     250 cm
                                                                                                                              250 cm
                                                                             SEGURIDAD
                                                                             DE TC                                                                               MÓDULO DE
                                                                                                                                                                 SEGURIDAD
                                                                                                                                                                                 180 cm DEL EJE DEL
TUBERÍA METÁLICA                                                                                          TUBERÍA METÁLICA                                                       MEDIDOR AL PISO
                                                                                                                                                                 DE TC
RÍGIDA DE 4"                                                                                              RÍGIDA DE 4"
PARA LA ACOMETIDA                                                                                         PARA LA ACOMETIDA




                             150 cm
                                                                                                                                                                 50 cm


          ELECTRODO DE                                                                                                                               ELECTRODO DE
         PUESTA A TIERRA                                                                                                                            PUESTA A TIERRA




                                                        300 cm
                                                                                                                          NOTAS:
                                                                                                                          EL CONSUMIDOR SUMINISTRARÁ E INSTALARÁ TODOS LOS MATERIALES Y EQUIPOS
                                                                                                                          EXCEPTO EL MEDIDOR, LOS CONDUCTORES DE SEÑAL Y LOS DE ACOMETIDA,
                                                                                                                          LOS MISMOS QUE SERÁN SUMINISTRADOS E INSTALADOS POR EL DISTRIBUIDOR

                                                                                                                          LOS TRANSFORMADORES DE CORRIENTE, MÓDULO DE SEGURIDAD DE LOS TC
                                                                                                                          SERÁN SUMINISTRADOS POR EL DISTRIBUIDOR E INSTALADOS POR EL CONSUMIDOR.

                                                                                                                          EL CONSUMIDOR SUMINISTRARÁ COMO PROTECCIÓN DE SOBRECORRIENTE TRES
                                                                                                                          CAJAS FUSIBLE 100A-15kV Y COMO PROTECCIÓN DE SOBRETENSION TRES
                                                                                                                          PARARRAYOS 10kV.
                                                                                                                          TODAS LAS DIMENSIONES ESTAN EXPRESADAS EN CENTíMETROS Y PULGADAS.




                    250 cm
                                                                                          TABLERO DE
                                                                                          DISTRIBUCIÓN
                                                                MÓDULO DE
                                                                SEGURIDAD
                                                                DE TC
                                               TUBERÍA METÁLICA RÍGIDA DE 11/4"
                                               DE DIAM. PARA CONDUCTORES DE
                                               SEÑAL DE LA MEDICIÓN                                                                                        EMPRESA ELÉCTRICA PÚBLICA DE GUAYAQUIL, EP
                                                                                                                                                                     GUAYAQUIL - ECUADOR




                                        100
                                        200
                                                                  LUMINARIA
                                                                                    MÓDULO PARA MEDIDOR
                                                             TOMACORRIENTE 120V         70 x 40 x 25 cm                                                     CUARTO PARA TRANSFORMADORES HASTA
                                                         DISPOSITIVO PARA COLOCAR
                                                                                                                                                            150 kVA CON MEDICIÓN EN BAJA TENSIÓN
                                                         SELLO DEL DISTRIBUIDOR

                                                                                                                                              DIBUJADO         ING. J. SAVERIO       APROBADO         2012 / 04 / 07
                                      100 cm
                                                                                                                                              PROYECTADO       ING. J. SAVERIO                        ESCALA:     1:50
                                                                                                                                              REVlSADO         ING. J. SAVERIO     ING. J. SAVERIO
LOSA DE HORMIGÓN ARMADO
                                                                      500 cm                                                                                                                                                                  LUMINARIA



                                                                                                                                                                                                                  PUERTA CORREDIZA

                                                                                                                                                                                                                                               CELDA DE 15 KV




    70 x 40 x 25 cm
                                                                                                                                                270 cm




MÓDULO PARA MEDIDOR
                                                                                                                                                         150 cm




                      350 cm
                                                                                                                                                                   ELECTRODO DE
                                                                                                                                                                  PUESTA A TIERRA




                                                                                                                     TABLERO DE
                                                                                                                     DISTRIBUCIÓN
                               DISPOSITIVO PARA COLOCAR                                                                                                               LOSA DE HORMIGÓN ARMADO
                               SELLO DEL DISTRIBUIDOR               LUMINARIA
                                                                                PUERTA CORREDIZA



                                                                                                                                                                          TUBERÍA METÁLICA RÍGIDA DE 11/4"
                                                                                                                          MÓDULO PARA MEDIDOR                             DE DIAM. PARA CONDUCTORES DE
                                                                                                                                                                          SEÑAL DE LA MEDICIÓN
                                                                                                                             70 x 40 x 25 cm
                                                                                CELDA DE 15 KV




                                                            INTERRUPTOR
                                                                    TOMACORRIENTE 120V
                                                                                                                                    180 cm DEL EJE DEL




                                            160
                                            200
                                                                                                                                    MEDIDOR AL PISO
                                                                                                                                                                                                                                                                               TABLERO DE
                                                                                                                                                                                                                                                                               DISTRIBUCIÓN




                                                                                                                                                                                                                                                          150 cm




                                                                      LUMINARIA                                            TUBERÍA METÀLICA
                                                                                                                           RÌGIDA DE 4"
                                                                                                                           PARA LA ACOMETIDA




                                                                                                                                          ELECTRODO DE
                                          160 cm
                                                                                                                                         PUESTA A TIERRA


                                                   NOTAS:
                                                                                                                                                                                                             EMPRESA ELÉCTRICA PÚBLICA DE GUAYAQUIL, EP
                                                    EL CONSUMIDOR SUMINISTRARÁ E INSTALARÁ TODOS LOS MATERIALES Y EQUIPOS
                                                    EXCEPTO EL MEDIDOR, LOS CONDUCTORES DE SEÑAL Y LOS DE ACOMETIDA,                                                                                                   GUAYAQUIL - ECUADOR
                                                    LOS MISMOS QUE SERÁN SUMINISTRADOS E INSTALADOS POR EL DISTRIBUIDOR

                                                    LOS TRANSFORMADORES DE CORRIENTE, MÓDULO DE SEGURIDAD DE LOS TC
                                                    SERÁN SUMINISTRADOS POR EL DISTRIBUIDOR E INSTALADOS POR EL CONSUMIDOR.                                                                                    CUARTO PARA TRANSFORMADORES HASTA
                                                                                                                                                                                                               750 kVA CON MEDICIÓN EN MEDIA TENSIÓN
                                                    EL CONSUMIDOR SUMINISTRARÁ COMO PROTECCIÓN DE SOBRECORRIENTE TRES
                                                    CAJAS FUSIBLE 100A-15kV Y COMO PROTECCIÓN DE SOBRETENSIÓN TRES
                                                    PARARRAYOS 10kV.                                                                                                                                             ING J. SAVERIO
                                                                                                                                                                                                  DIBUJADO                            APROBADO                     2012 / 04 / 07
                                                    TODAS LAS DIMENSIONES ESTAN EXPRESADAS EN CENTÍMETROS Y PULGADAS.                                                                                            ING J. SAVERIO                                    ESCALA:     1:50
                                                                                                                                                                                                  PROYECTADO
                                                                                                                                                                                                  REVlSADO       ING J. SAVERIO      ING J. SAVERIO
5




                                                5




                  1                                             1




                                       6                                             6
                                                                             2
                                                    4

                                       2                                         4
              3


                                                                    3




                                           7            1                                        7
1   BASE DE HORMIGÓN PARA UN
    TRANSFORMADOR PADMOUNTED.

2   CAJA DE PASO DE HORMIGÓN.


3   TUBERÍA METÁLICA RÍGIDA DE
    ENTRADA DE ACOMETIDA 4".
                                                            5
4   TUBERÍA METÁLICA RÍGIDA HACIA EL
    TABLERO DE MEDIDORES.

5   TRANSFORMADOR PADMOUNTED.


6   CONDUCTOR DE PUESTA A TIERRA.                                                        EMPRESA ELÉCTRICA PÚBLICA DE GUAYAQUIL, EP
                                                                                                     GUAYAQUIL - ECUADOR
7   ELECTRODO DE PUESTA A
    TIERRA.
    NOTAS :
                                                                                            DETALLE DE MONTAJE
                                                                                 DE UN TRANSFORMADOR PADMOUNTED
    LAS DIMENSIONES DE LA BASE CORRESPONDEN A
    UN TRANSFORMADOR 1F DE 75 KVA
                                                                        DIBUJADO          ING. M. CEDEÑO     APROBADO        2012 / 04 / 07
    DIMENSIONES EN CENTÍMETROS.                                         PROYECTADO        ING. M. CEDEÑO                     ESCALA S/E
                                                                        REVISADO          ING. M. CEDEÑO    ING. M. CEDEÑO
5




                                                     5
                             TC                                                          TC


                             TC                                                               TC




                  1                                                          1




                                                                                          2

                  8                                      4

                                                                                              4
                                       6
                                                                                                  6
              3
                                       2
                                                                                 3




                                           7                 1                                               7
1   BASE DE HORMIGÓN PARA UN
    TRANSFORMADOR PADMOUNTED.

2   CAJA DE PASO DE HORMIGÓN.


3   TUBERÍA METÁLICA RÍGIDA DE
    ENTRADA DE ACOMETIDA 4".
                                                                 5
4   TUBERÍA METÁLICA RÍGIDA HACIA EL
    TABLERO DE MEDIDORES.

5   TRANSFORMADOR PADMOUNTED.

6   CONDUCTOR DE PUESTA A TIERRA.
                                                                                                      EMPRESA ELÉCTRICA PÚBLICA DE GUAYAQUIL, EP
7   ELECTRODO DE PUESTA A
    TIERRA.                                                                                                      GUAYAQUIL - ECUADOR
8   TUBERIA METÁLICA RÍGIDA DE 1 1/4" PARA
    CONDUCTORES DE SEÑAL DE LA MEDICIÓN.
                                                                                                  DETALLE DE INSTALACIÓN DE 2 TC DENTRO
    NOTAS :
                                                                     TC TC                        DE UN TRANSFORMADOR PADMOUNTED 1F
    LAS DIMENSIONES DE LA BASE CORRESPONDEN A
    UN TRANSFORMADOR 1F DE 75 KVA
    LOS TC SERAN FIJADOS A LOS CONDUCTORES DE BAJA
                                                                                     DIBUJADO         ING. M. CEDEÑO     APROBADO         2012 / 04 / 07
    TENSIÓN MEDIANTE ABRAZADERAS.                                                    PROYECTADO       ING. M. CEDEÑO                      ESCALA S/E
    DIMENSIONES EN CENTÍMETROS.                                                      REVISADO         ING. M. CEDEÑO   ING. JOE SAVERIO
CERRAMIENTO
                                                                                                                              LATERAL




                                  MEDIDOR

                                                                 3
                                      SELLO DEL
                                                                                                                                                                                                       FACHADA
                                      DISTRIBUIDOR
                                                                                                                                                                                                       FRONTAL



                                                                      2


                                                                                                                                                           2




                            5
                                                                                                                                                               AL T.D.G.
                                                                                                         CERRAMIENTO
                                                                                                           FRONTAL


                                                                                                                                                 M                                                                     m.
                                                                                                                                                     IN                                                             ,50
                                                                                                                                                          IM                                                      O0
                                                                                                                                                               O                                             IM
                                                                                                                                                                   0,                                   MI N
                                                                                                                                                                        50
1   MÓDULO DE MEDICIÓN                                           5   TUB. METAL. RIG. DE 1 1/4" PARA CONDUCTORES                                                           m
                                                                                                                                                                            .
    PLANCHA DE 1/16".                                                DE SEÑAL DE LA MEDICIÓN.

                                                                 6   TRANSFORMADOR TIPO PAD-MOUNTED.
2   MÓDULO PARA EL DISYUNTOR PRINCIPAL.
                                                                 7   CONDUCTORES DE BAJA TENSIÓN.                                                                       m.
                                                                                                                                                                     ,50
3   DISPOSITIVO PARA COLOCAR SELLO DEL DISTRIBUIDOR                                                                                                   IM           O1
                                                                                                                                                 MI N
4   TRANSF. DE CORRIENTE UBICADOS DENTRO DEL PADMOUNTED                                                                AC
                                                                                                                            ER
                                                                                                                              A
                        NOTA:

                        TODAS LAS DIMENSIONES ESTAN EXPRESADAS EN CENTÍMETROS.

                        EL MÓDULO DE MEDICIÓN, EL DE LOS TRANSFORMADORES DE CORRIENTE Y DISYUNTOR
                        PRINCIPAL SERAN CONSTRUIDOS EN PLANCHA METALICA DE 1/16" DE ESPESOR.                                                                        EMPRESA ELÉCTRICA PÚBLICA DE GUAYAQUIL, EP
                        EL CONSUMIDOR SUMINISTRARÁ E INSTALARÁ TODOS LOS MATERIALES, EXCEPTO                                                                                    GUAYAQUIL - ECUADOR
                        EL MEDIDOR Y EL SWITCH DE PRUEBA, LOS TRANSFORMADORES DE CORRIENTE
                        SERAN SUMINISTRADOS POR EL DISTRIBUIDOR E INSTALADOS POR EL CONSUMIDOR.                                               MÓDULO CON PUERTA TIPO VITRINA PARA
                                                                                                                                             MEDICIÓN INDIRECTA CON TRANSFORMADOR
                        EL MÓDULO DE MEDICIÓN ES SIMILAR AL MOSTRADO EN LA FIG 24.                                                                 PADMOUNTED EN RESIDENCIA
                                                                                                                                      DIBUJADO                     ING. C. GÓMEZ      APROBADO         2012 / 04 / 07
                                                                                                                                      PROYECTADO                   ING. C. GÓMEZ                       ESCALA:        S/E
                                                                                                                                      REVISADO                     ING. M. CEDEÑO   ING. JOE SAVERIO
30
                                                                                                                            50
                                                       CONDUCTORES
                                                       DE ACOMETIDA




                                                                                                                                                                                                               TUBERÍA METÀLICA
                                                                                                                                               250 cm                                                          RÌGIDA DE 4"
                                                                                                                                                                                                               PARA LA ACOMETIDA




                                                                        TUBERÍA MET. RIG. 4"
                                                                        PARA ACOMETIDA


                                                                                                                                                                                                         200
                                                                                                                                                                                                         100
                                                                                                                                                                                                                           100 cm




                                                       LUMINARIA

                                                                                                                                                                                                                      DISPOSITIVO PARA COLOCAR
                                                                                                                                                                                                                      SELLO DEL DISTRIBUIDOR.




                                                                                                                                     300 cm



                                                                                                                      650
                                          MÓDULO DE
                                          SEGURIDAD
                                          DE TC
                                                                                                                                                                                 SEÑAL DE LA MEDICIÓN




250 cm
                                                                                                TUBERÍA EMT DE 1/2"
                                                                                                                                                              DE TC




                                                      180 cm DEL EJE DEL                        PARA CONDUCTOR DE                                                                                              MÓDULO PARA MEDIDOR
                                                      MEDIDOR AL PISO                           PUESTA A TIERRA                                                                                                    70 x 40 x 25 cm
                                                                                                                                                                       DE DIAM. PARA CONDUCTORES DE



                                                                                                                                                          SEGURIDAD
                                                                                                                                                          MÓDULO DE
                                                                                                                                                                      TUBERÍA METÁLICA RÍGIDA DE 11/4"




                                                                                                                                 A
                                                                                                                                                                                                                                    A




                                          50 cm
                                                                                                                                              TABLERO DE
                              ELECTRODO DE                                                        CONECTOR                                    DISTRUBUCIÓN
                                                                                                                 CALLE




                                                                   80
                             PUESTA A TIERRA
                                                                                                 ELECTRODO DE PUESTA A TIERRA

         TUBERÍA METÀLICA
         RÌGIDA DE 4"
         PARA LA ACOMETIDA

                                                                               80
                                                                                                                                                         EMPRESA ELÉCTRICA PÚBLICA DE GUAYAQUIL, EP
                                                         NOTAS:                                                                                                      GUAYAQUIL - ECUADOR
                                                         EL CONSUMIDOR SUMINISTRARÁ E INSTALARÁ TODOS LOS MATERIALES Y EQUIPOS
                                                         EXCEPTO EL MEDIDOR, LOS CONDUCTORES DE SEÑAL Y LOS DE ACOMETIDA,
                                                         LOS MISMOS QUE SERÁN SUMINISTRADOS E INSTALADOS POR EL DISTRIBUIDOR                                 ACOMETIDA SUBTERRÁNEA EN MEDIA
                                                         LOS TRANSFORMADORES DE CORRIENTE, MÓDULO DE SEGURIDAD DE LOS TC                                     TENSIÓN CON MEDICIÓN EN BAJA TENSIÓN
                                                         SERÁN SUMINISTRADOS POR EL DISTRIBUIDOR E INSTALADOS POR EL CONSUMIDOR.

                                                         EL CONSUMIDOR SUMINISTRARÁ COMO PROTECCIÓN DE SOBRECORRIENTE TRES                    DIBUJADO            ING. J. SAVERIO                                    APROBADO           2012 / 04 / 07
                                                         CAJAS FUSIBLE 100A-15kV Y COMO PROTECCIÓN DE SOBRETENSIÓN TRES
                                                         PARARRAYOS 10kV.                                                                     PROYECTADO          ING. J. SAVERIO                                                       ESCALA:     S/E
                                                         TODAS LAS DIMENSIONES ESTAN EXPRESADAS EN CENTÍMETROS Y PULGADAS.                    REVlSADO            ING. J. SAVERIO                                   ING. J. SAVERIO
15
HORMIGÓN SIMPLE fc=240 kg/cm2                                         5
                                                          PAVIMENTO                                                                             D
                                                                                                                                               10
                                                                                  HORMIGÓN SIMPLE fc=210 kg/cm2
                                                                      20                                                                        D
                                                                                                                                               10
                                DUCTO PVC TIPO PRESIÓN                D
                                                                      10
                                                                                                                                                30
                                                                           TERRENO COMPACTADO Y NIVELADO
                                DUCTO PVC TIPO PRESIÓN                D
                                                                      10

                                                                                                                  15     D   5   D   15
                      TERRENO COMPACTADO Y NIVELADO                   50




                                                                                                                                               25
                                                                      5
                                                          PAVIMENTO
                                                                                                                                               10
                                                                                  HORMIGÓN SIMPLE fc=210 kg/cm2
                                                                                                                                                D
                                      TERRENO COMPACTADO Y NIVELADO   30
HORMIGÓN SIMPLE fc=240 kg/cm2                                                                                                                  10

                                                                      10
                                                                                                                                                30
                                                                           TERRENO COMPACTADO Y NIVELADO
                                DUCTO PVC TIPO PRESIÓN                D
                                                                      10

                                                                                                                  15     D   5   D   15
                      TERRENO COMPACTADO Y NIVELADO                   50



                                                                                                                  EMPRESA ELÉCTRICA PÚBLICA DE GUAYAQUIL, EP
                                                                                                                                     GUAYAQUIL - ECUADOR

                                                                                                                         DISPOSICIÓN DE DUCTOS EN
        LAS DIMENSIONES ESTÁN DADAS EN CENTíMETROS Y PULGADAS                                                            ACERAS Y CRUCES DE CALLE

        D = DIÁMETRO DE LAS TUBERÍAS 4" O 6"                                                       DIBUJADO            ING. J. SAVERIO      APROBADO         2012 / 04 / 07
                                                                                                   PROYECTADO          ING. J. SAVERIO                       ESCALA
                                                                                                   REVISADO            ING. J. SAVERIO    ING. JOE SAVERIO
5
                                                                                               1
                                  10

                                  15

                                  15
                                                                                           3
 90
                                  15

                                  15

                                  15                                                           2
                                                                                                                         80                                  80
                                                                                                                                         5                               5
                                  10
                         10                                                                    10
                                       5

                                               5                                       5            5
           85    5                                 10   15   15    15   15   15   10
            90


      5              5

5
                              4

                                                                                                    100

                                                                                                               5



 80                       5




                                           1       TAPA CON ÁNGULO METÁLICO:
                                                                                                    10
                                                   EN ACERAS 2" X 1/4"
                                                   EN CRUCE DE CALLES 5" X 1/4"
                                           2       AGARRADERA PARA REMOCIÓN.
10                                                                                                                                    160
                                                   VARILLA DE HIERRO:                                     10                                                              10
                                           3
                                                   EN ACERAS 1/2"
           80                                      EN CRUCE DE CALLES 5/8"
      10         10
                                           4       HORMIGÓN SIMPLE EN ACERAS.
                                                                                                                                EMPRESA ELÉCTRICA PÚBLICA DE GUAYAQUIL, EP
                                                   HORMIGÓN ARMADO EN CRUCE DE CALLES.
                                                                                                                                             GUAYAQUIL - ECUADOR
                                           5       DUCTOS.
                                       NOTA: EN CRUCE DE CALLES, LAS CAJAS DE PASO TENDRÁN UNA
                                             PROFUNDIDAD DE 100cm.
                                                                                                                              CONSTRUCCIÓN DE LAS CAJAS DE PASO
                                                   LAS DIMENSIONES ESTÁN EXPRESADAS EN CENTIMETROS.
                                                                                                                   DIBUJADO     ING. C. GÓMEZ       APROBADO         2012 / 04 / 07
                                                                                                                   PROYECTADO   ING. C. GÓMEZ                        ESCALA: 1 : 20
                                                                                                                   REVISADO      ING. M. CEDEÑO   ING. JOE SAVERIO
2.30m




                           3.80m
                                                        1.70m




                   3.20m
          VEREDA                                            VEREDA
CALZADA                            CALZADA




                                                                EMPRESA ELÉCTRICA PÚBLICA DE GUAYAQUIL, EP
                                                                             GUAYAQUIL - ECUADOR

                                                   DISTANCIAS DE SEGURIDAD ENTRE EDIFICIOS Y
                                                   LINEAS AÉREAS DE MEDIA Y BAJA TENSIÓN SIN
                                                                  AISLAMIENTO
                                             DIBUJADO           ING. J. SAVERIO     APROBADO         2012 / 04 / 07
                                             PROYECTADO         ING. J. SAVERIO                      ESCALA:     S/E
                                             REVISADO           ING. J. SAVERIO   ING. JOE SAVERIO
0.1 m
                                                                                          1.14 m
                                                                                                                                                 1.4 m




           1.4 m.
                                                                                                                            1.5 m




                                1.5 m
                                                       2.2 m
                                                                          2.2 m




             1.5 m
                                                                                                                            1.5 m


                     2.77m




                                        4.27m
                                                                                                                                      2.77m
                                                                  2.77m

                                                                                                         19 m




19 m
                                                19 m
                      VEREDA                                              VEREDA                                                     VEREDA
       CALZADA                                          CALZADA                                                 CALZADA



                                                                                  2.4 m




                                2.4 m
                                                                                                                                         2.4 m




                                                                                                                   EMPRESA ELÉCTRICA PÚBLICA DE GUAYAQUIL, EP
                                                                                                                                    GUAYAQUIL - ECUADOR

                                                                                                        DISTANCIAS DE SEGURIDAD ENTRE EDIFICIOS Y
                                                                                                      LÍNEAS AÉREAS DE ALTA TENSIÓN SIN AISLAMIENTO

                                                                                                   DIBUJADO        ING. J. SAVERIO         APROBADO        2012 / 04 / 07
                                                                                                   PROYECTADO      ING. J. SAVERIO                         ESCALA:     S/E
                                                                                                   REVISADO        ING. J. SAVERIO      ING. JOE SAVERIO
66

Natsim 2012

  • 1.
    0 NORMAS DE ACOMETIDAS CUARTOS DE TRANSFORMADORES Y SISTEMAS DE MEDICIÓN PARA EL SUMINISTRO DE ELECTRICIDAD NORMAS NATSIM EDICIÓN AÑO 2012
  • 2.
    1 INDICE Página No. 1. DISPOSICIONES GENERALES.......................................................................... 7 1.1 Objeto............................................................................................................. 7 1.2 Alcance........................................................................................................... 7 1.3 Reformas........................................................................................................ 7 1.4 Área de Aplicación......................................................................................... 7 1.5 Obligaciones del Consumidor……………………………........................... 8 1.6 Límite de Responsabilidad…………………………………………………. 8 1.7 Idoneidad Profesional..................................................................................... 8 1.8 Uso de la Electricidad..................................................................................... 8 1.9 Facilidades en Propiedad Privada................................................................... 8 2. SERVICIOS.............................................................................................................. 9 2.1 Condiciones de Servicio................................................................................. 9 2.2 Oficinas de Atención a Consumidores........................................................... 9 2.3 Disponibilidad de Servicio............................................................................ 10 2.3.1. Solicitud para Servicio Eléctrico....................................................... 10 2.3.2. Servicio Eléctrico Definitivo............................................................. 10 2.3.3. Servicio Eléctrico Ocasional.............................................................. 10 2.3.4. Incrementos de Carga......................................................................... 11 2.4 Clases de Servicios......................................................................................... 11 2.4.1. Baja Tensión....................................................................................... 11 2.4.2 Media Tensión.................................................................................... 11 2.4.3 Alta Tensión....................................................................................... 12 2.5 Control Posterior y Límite de Responsabilidad............................................ 12 2.6 Uso no autorizado de Energía Eléctrica........................................................ 12 2.7 Información sobre Corrientes de Falla o Cortocircuito.................................. 12 3. TERMINOLOGÍA.................................................................................................. 12 3.1 Acometida...................................................................................................... 13 3.2 Acometida en Baja Tensión.......................................................................... 13 3.3 Acometida en Media Tensión...................................................................... 13 3.4 Acometida Monofásica.................................................................................. 13 3.5 Acometida Trifásica....................................................................................... 13
  • 3.
    2 3.6 Acometida Individual.................................................................................... 13 3.7 Acometida Colectiva..................................................................................... 13 3.8 Acometida Provisional................................................................................... 13 3.9 Ampacidad...................................................................................................... 13 3.10 Base (socket)................................................................................................. 13 3.11 Conductores de Señal..................................................................................... 14 3.12 Consumidor.................................................................................................... 14 3.13 Disyuntor........................................................................................................ 14 3.14 Electrodo de Puesta a Tierra.......................................................................... 14 3.15 Empresa (Distribuidora)................................................................................ 14 3.16 Factor de Potencia......................................................................................... 14 3.17 Zona de Servicio............................................................................................ 14 3.18 Interruptor....................................................................................................... 14 3.19 Medidor.......................................................................................................... 14 3.20 Medidor para Medición directa Auto-contenido......................................... 15 3.21 Medidor para Medición Indirecta................................................................... 15 3.22 Medidor de Servicios Generales……………………………………………. 15 3.23 Medidor de Consumo General……………………………………………... 15 3.24 Medidor Controlador...................................................................................... 15 3.25 Medidor Controlador de Circuito…………………………………………... 15 3.26 Servicio Eléctrico........................................................................................... 15 3.27 Tablero General de Medidores....................................................................... 15 3.28 Punto de Entrega…………………………………………………………… 16 3.29 Reversible…………………………………………………………………... 16 3.30 Reglamento de Suministro…………………………………………………. 16 4. ACOMETIDAS........................................................................................................ 16 4.1 Requisitos Generales...................................................................................... 16 4.1.1 Número de Acometidas Permitidas.................................................. 16 4.1.2 Suministro e Instalación de Conductores de Acometida.................. 16 4.1.3 Conexiones y Empalmes en los Conductores de Acometida........... 16 4.1.4 Canalización para los Conductores de Acometida........................... 17 4.1.5 Tubería de Entrada de Acometida.................................................... 17 4.1.6 Curvatura de las Tuberías de Acometida......................................... 17 4.1.7 Diámetro Mínimo de las Tuberías de Acometida........................... 17 4.1.8 Conductores en las Tuberías de Acometida..................................... 17 4.2 Acometidas Aéreas en Baja Tensión.............................................................. 18 4.2.1 Aislamiento de los Conductores de Acometida............................... 18 4.2.2 Tamaño Mínimo de los Conductores de Acometida........................ 18 4.2.3 Ubicación de la Tubería de Entrada de Acometida.......................... 18 4.2.4 Altura de los Conductores de Acometida......................................... 18 4.2.5 Punto de Fijación de los Conductores de Acometida....................... 18 4.2.6 Medios de Fijación de los Conductores de Acometida.................... 19 4.2.7 Reversible en la Entrada de Acometida........................................... 19 4.3 Acometidas Subterráneas en Baja Tensión.................................................... 19 4.3.1 Aislamiento de los Conductores de Acometida............................... 19 4.3.2 Calibre Mínimo de los Conductores de Acometida........................ 19 4.3.3 Trayectorias de las Acometidas........................................................ 19
  • 4.
    3 4.3.4 Suministro e Instalación de las Tuberías.......................................... 20 4.3.5 Protección mecánica………………………………………………. 20 5. DISYUNTORES..................................................................................................... 20 5.1 Disyuntor Principal......................................................................................... 20 5.2 Ubicación........................................................................................................ 20 5.3 Disposición de los Disyuntores Parciales....................................................... 20 5.4 Ampacidad...................................................................................................... 20 5.5 Posición de operación..................................................................................... 21 5.6 Protección Mecánica...................................................................................... 21 5.7 Desconexión................................................................................................... 21 5.8 Conexiones..................................................................................................... 21 6. MEDIDORES Y SUS BASES (SOCKETS)........................................................... 21 6.1 Suministro de la Base (socket)....................................................................... 21 6.2 Tipos de Bases (socket).................................................................................. 21 6.3 Ubicación de la Base (socket)........................................................................ 23 6.4 Conexión de la Base (socket)......................................................................... 23 6.5 Suministro del Equipo de Medición............................................................... 23 6.6 Tipos de Medidores........................................................................................ 23 6.7 Ubicación del Medidor Individual............................................................... 24 6.7.1 Edificaciones Nuevas.......................................................................... 24 6.7.2 Edificaciones Existentes (con servicio eléctrico previo)...................... 24 6.8 Altura del Módulo Individual de Medidores.................................................. 25 6.9 Colocación de Sellos...................................................................................... 25 7. MEDICIÓN............................................................................................................. 25 7.1 Medición en Baja Tensión.............................................................................. 25 7.1.1 Cargas con Protección de hasta 70 amperios...................................... 25 7.1.2 Cargas con Protección de hasta 175 amperios................................... 25 7.1.3 Cargas con Protección de hasta 1000 amperios................................ 25 7.1.4 Métodos de Instalación de Medición en Baja Tensión........................ 25 7.2 Medición en Media Tensión........................................................................... 25 7.2.1 Ubicación del Equipo de Medición de Media Tensión en Postes...... 26 7.2.2 Ubicación del Equipo de Medición de Media Tensión en Cuartos.... 26 8. MEDIDOR CONTROLADOR............................................................................... 26 8.1 Función........................................................................................................... 27 8.2 Criterios de Instalación................................................................................... 27 8.3 Ubicación........................................................................................................ 27 8.4 Características................................................................................................ 27 8.5 Clases de Medición........................................................................................ 27 8.5.1 Medidor Controlador en Baja Tensión (hasta 600 voltios).............. 27
  • 5.
    4 8.5.2 Medidor Controlador en Media Tensión (13.8 kV)....................... 27 8.5.3 Suministro de Equipos..................................................................... 28 9. MÓDULO DE SEGURIDAD PARA TRANSFORMADORES DE MEDICIÓN EN 28 BAJA TENSIÓN................................................................................................................. 9.1 Características Generales............................................................................... 28 9.2 Características Constructivas......................................................................... 28 9.3 Ubicación........................................................................................................ 29 9.4 Suministro...................................................................................................... 29 10. MÓDULO INDIVIDUAL PARA MEDIDORES 29 AUTOCONTENIDOS........................................................................................... 10.1 Características Generales............................................................................. 29 10.2 Características Constructivas....................................................................... 29 10.2.1 Módulo para Medidor Monofásico CL-100..................................... 29 10.2.2 Módulo para Medidor Monofásico CL-200..................................... 30 10.2.3 Módulo para Medidores Trifásicos CL-100 y CL-200.................... 30 10.3 Suministro.................................................................................................... 31 11. MÓDULO INDIVIDUAL PARA MEDIDORES DE MEDICIÓN 31 INDIRECTA........................................................................................................... 11.1 Características Generales............................................................................. 31 11.2 Características Constructivas....................................................................... 31 11.3 Suministro.................................................................................................... 32 12. TABLERO DE MEDIDORES.............................................................................. 32 12.1 Generalidades............................................................................................ 32 12.2 Instalación.................................................................................................. 32 12.3 Ubicación................................................................................................... 32 12.4 Rotulación.................................................................................................. 33 12.5 Características Constructivas..................................................................... 33 12.6 Altura de Montaje...................................................................................... 33 12.7 Distancias Mínimas Eléctricas................................................................... 34 12.8 Barras de Distribución............................................................................... 34 12.9 Puesta a Tierra........................................................................................... 34 12.10 Número de Tableros.................................................................................. 35 12.11 Tubería de Entrada y Salida....................................................................... 35 13. PUESTA A TIERRA............................................................................................. 35
  • 6.
    5 13.1 Generalidades............................................................................................ 35 13.2 Electrodos.................................................................................................. 36 13.3 Conductores............................................................................................... 36 13.4 Trayectoria................................................................................................. 36 13.5 Conexión.................................................................................................... 36 13.6 Resistencia................................................................................................. 37 14. CUARTOS PARA TRANSFORMADORES...................................................... 37 14.1 Requerimientos.......................................................................................... 37 14.2 Ubicación................................................................................................... 37 14.3 Características Constructivas..................................................................... 38 14.4 Mantenimiento........................................................................................... 39 14.5 Ductos de Entrada a Cuartos de Transformadores.................................... 40 14.6 Centros de Distribución de Carga.............................................................. 40 15. TRANSFORMADORES....................................................................................... 40 15.1 Protección de Transformadores en Media Tensión...................................... 42 15.1.1 Cajas Fusibles................................................................................ 42 15.1.2 Celdas de Media Tensión............................................................... 42 16. ACOMETIDA EN MEDIA TENSIÓN................................................................ 42 16.1 Acometidas Aéreas.................................................................................... 42 16.2 Acometidas Subterráneas........................................................................... 43 16.3 Características de las Canalizaciones........................................................ 43 16.3.1 Trayectoria..................................................................................... 43 16.3.2 Cajas de Paso................................................................................. 43 16.3.3 Zanjas............................................................................................. 44 16.3.4 Disposición de Ductos................................................................... 44 16.3.5 Recubrimientos.............................................................................. 44 17. CONSIDERACIONES ADICIONALES............................. 44 17.1 Generadores de Emergencia...................................................................... 44 17.2 Factor de Potencia...................................................................................... 45 17.3 Motores y Artefactos................................................................................. 45 17.4 Cargas Fluctuantes..................................................................................... 45 17.5 Computadoras y otros Equipos Electrónicos Sensibles............................. 46 17.6 Rótulos y Anuncios Publicitarios.............................................................. 46 17.7 Protección para Motores Polifásicos......................................................... 46 17.8 Distancias de Seguridad…………………………………………………. 46
  • 7.
    6 ANEXOS ANEXO 1 49 Procedimiento para aprobación de Proyectos Eléctricos Tabla 1 50 Intensidad máxima permanente admisible de conductores aislados…….. Ref. Tabla 310-16 (NEC) Tabla 2 51 Número máximo de conductores y cables de aparatos en ductos……….. Ref. Tabla C 8 (NEC) Tabla 3 52 Número máximo de conductores y cables de aparatos en ductos……….. Ref. Tabla C8 (NEC) Tabla 4 53 Intensidad a plena carga de los motores de corriente continua en Amp… Ref. Tabla 430-147 (NEC) Tabla 5 54 Intensidad a plena carga (en Amp.) motores monofásicos de corriente alterna…………………………………………………………………… Ref. Tabla 430-148 (NEC) Tabla 6 55 Intensidad a plena carga de motores trifásicos de corriente alterna…….. Ref. Tabla 430-150 (NEC) Tabla 7 56 Sección mínima de conductor de tierra…………………………………. Ref. Tabla 250-95 (NEC) Tabla 8 57 Tabla de conversión de intensidades de motores monofásicos…………. Ref. Tabla 430-151A (NEC) Tabla 9 58 Tabla de conversión de motores polifásicos…………………………….. Ref. Tabla 430-151B (NEC) Tabla 10 59 Intensidad máxima admisible o de disparo de dispositivos de protección Ref. Tabla 430-152 (NEC) Tabla 11 60 Dimensiones de transformadores monofásicos de distribución…………. Tabla 12 61 Dimensiones de transformadores trifásicos de distribución…………….. Tabla 13 62 Dimensiones de transformadores monofásicos de distribución tipo Padmounted……………………………………………………………... Tabla 14 63 Dimensiones de transformadores trifásicos de distribución tipo Padmounted……………………………………………………………... Tabla 15 64 Cálculo de la potencia de batería de condensadores…………………….. Tabla 16 65 Ampacidad de barras de cobre…………………………………………...
  • 8.
    7 NORMAS DE ACOMETIDAS,CUARTOS DE TRANSFORMADORES Y SISTEMAS DE MEDICIÓN PARA EL SUMINISTRO DE ELECTRICIDAD DISPOSICIONES GENERALES 1.1 Objeto El presente documento tiene por objeto establecer normas y disposiciones para el diseño y la instalación de acometidas de servicio eléctrico, así como para la construcción de módulos de medición individuales, tableros de medidores, cuartos de transformación, montaje de transformadores monofásicos y/o trifásicos tanto convencionales como Padmounted para inmuebles de tipo residencial, comercial, industrial y otros servicios. 1.2 Alcance Estas Normas y disposiciones se aplicarán a todos los elementos y dispositivos de conducción, transformación, medición, protección, control, cuartos de transformación y demás elementos de los circuitos que transportan la energía eléctrica desde las redes del Distribuidor. Las Normas son de uso general y obligatorio. En caso de presentarse situaciones no contenidas o no contempladas en éstas, serán sometidas a consideración del Distribuidor. El Distribuidor no estará obligado a suministrar servicio de energía eléctrica cuando se incumplan las disposiciones de las presentes Normas. Las Normas de Acometidas, Cuartos de Transformación y Sistemas de Medición para el Suministro de Electricidad (NATSIM) fueron elaboradas para dar cumplimiento a lo establecido en el Art. 18 del Reglamento Sustitutivo del Reglamento de Suministro de Electricidad. 1.3 Reformas El NATSIM será revisado y actualizado de acuerdo con los avances tecnológicos y las disposiciones del CONELEC. 1.4 Área de Aplicación Las Normas contenidas en el NATSIM son de aplicación obligatoria en el área de concesión del Distribuidor de suministro de electricidad y deberán cumplirse en todas las instalaciones nuevas, ampliaciones y/o modificaciones de las instalaciones existentes. Debido a las condiciones especiales de la infraestructura de las viviendas de los sectores urbanos
  • 9.
    8 marginales de laciudad de Guayaquil, cuando se diseñen los proyectos integrales de redes, iluminación y medidores del programa del Fondo de Electrificación Rural y Urbano Marginal (FERUM), financiados por el presupuesto del estado, se consideraran excepciones a esta norma en la acometida y sistemas de medición. 1.5 Obligaciones del Consumidor. El consumidor cumplirá con las obligaciones que establece la Constitución de la República del Ecuador, la Ley Orgánica de Defensa del Consumidor, la Ley del Régimen del Sector Eléctrico, Las Normas del NATSIM, las regulaciones dictadas por el CONELEC, Las Ordenanzas Municipales, las obligaciones establecidas en el contrato de Suministro del servicio de electricidad y todas las leyes y Reglamentos que rigen al sector eléctrico. 1.6 Límite de Responsabilidad No será responsabilidad del Distribuidor, los daños y perjuicios a personas, propiedades del consumidor o de terceros, causados por instalaciones eléctricas interiores defectuosas o por el mal funcionamiento de equipos o dispositivos instalados en el predio del cliente. Tampoco será obligación del Distribuidor verificar las instalaciones eléctricas interiores, ni los equipos o dispositivos instalados en el predio. Estas Normas se consideran como un conjunto de requisitos mínimos y por consiguiente, no liberan al proyectista, ejecutor o dueño de la instalación de sus respectivas responsabilidades de carácter civil, técnico o de cualquier otra índole, que provengan de leyes o reglamentos nacionales o locales. 1.7 Idoneidad Profesional Para dar cumplimiento a lo establecido en la Ley de Ejercicio Profesional de la Ingeniería, todo trabajo técnico privativo de un Ingeniero Eléctrico deberá llevar obligatoriamente la firma de responsabilidad del Ingeniero Eléctrico, activo y en ejercicio de sus derechos certificados por el SENESCYT. 1.8 Uso de la Electricidad El Distribuidor no será responsable por los daños a personas o propiedades del Consumidor o terceros causados por el mal uso o una incorrecta aplicación de la electricidad, en equipos o dispositivos instalados en el predio del cliente. 1.9 Facilidades en Propiedad Privada Cuando se requiera instalar equipos del Distribuidor en los predios del cliente, los propietarios deberán concederle, sin costo al Distribuidor, los derechos perpetuos y la liberación de gravámenes de las áreas requeridas según las necesidades técnicas de acuerdo a cada caso, incluyendo los derechos a la facilidad de ingreso y egreso al predio, para mantener las adecuadas provisiones de servicio eléctrico. La forma y el contenido de la cesión de tales derechos sobre el predio deberán ser aceptados y aprobados por el Representante Legal del Distribuidor.
  • 10.
    9 2.0 SERVICIOS Este artículo contiene información sobre cómo obtener servicio eléctrico y las Normas básicas que deberán ser cumplidas para garantizar condiciones de seguridad y calidad del servicio, consecuentemente el Distribuidor se reserva el derecho de negar el servicio eléctrico a cualquier instalación que no cumpla con estas Normas. 2.1 Condiciones de Servicio El Distribuidor asume la responsabilidad de prestar servicio a los consumidores ubicados en su área de concesión, de acuerdo a las normas establecidas en el Reglamento vigente de Suministro, así como también el mantener el suministro de energía y la atención al Consumidor, dentro de los límites de calidad previstos en las regulaciones correspondientes que expide el CONELEC. 2.2 Oficinas de Atención a Consumidores La información relativa a estas Normas o contratación de nuevos servicios eléctricos o cambios en el servicio eléctrico actual; puede ser obtenida en las direcciones y teléfonos que se señalan a continuación: OFICINA DIRECCION TELEFONO FAX Matriz Cdla. La Garzota Sect.3 Mz.47 2628600 2628451 Agencia California C.C: California – Bloque L – Local 13 2628285 – 2628295 Carretero a Daule Km 11 1-2 (Frente a 3801900 PECA) Ext. 4102; 4103; 4104; 4105; 4106 Agencia Sur El Oro y Eloy Alfaro 3801900 Ext. 5050; 5067; 5068 Agencia San Eduardo Prolongación Portete 2628600 Ext. 4084 Agencia Norte Av. Dr. Emilio Romero 3801900 Menéndez y la Primera Alumbrado Público Ciud. Los Ceibos Junto al Teatro Centro 2001171 2000957 de Arte Emergencias–Call Center Av. Dr. Emilio Romero 3802000 Menéndez y la Primera 3801900 Sección Redes Av. Dr. Emilio Romero 3801900 Menéndez y la Primera Ext. 5024 Dpto. Medidores Av. Dr. Emilio Romero 3801900 Menéndez y la Primera Ext. 4932 Sección Estudios Eléctricos Av. Dr. Emilio Romero 3801900 Menéndez y la Primera Ext. 5113 Sección Diseño y Av. Dr. Emilio Romero 3801900 Presupuesto Menéndez y la Primera Ext. 4933 Consultas y Proyectos Av. Dr. Emilio Romero 3801900 Menéndez y la Primera Ext. 5153-5154-5155 Obras Municipales y Av. Dr. Emilio Romero 3801900 Fundaciones Menéndez y la Primera Ext. 4933 Urbanizaciones y Redes Av. Dr. Emilio Romero 3801900 Menéndez y la Primera Ext. 4963 2.3 Disponibilidad del Servicio
  • 11.
    10 Previo a proyectar,diseñar, construir e instalar o de proceder a la adquisición de equipos eléctricos, el Consumidor consultará con el Distribuidor acerca de la clase de servicio que se le podrá suministrar. El Distribuidor no será responsable por la información proporcionada verbalmente referente a los tipos de servicios disponibles en una dirección específica, a menos que tal información sea confirmada por escrito por un representante autorizado del Distribuidor. 2.3.1 Solicitud para Servicio Eléctrico Las solicitudes deberán ser realizadas por el consumidor personalmente o a través de una comunicación dirigida al Distribuidor. Las solicitudes de servicio de tipo residencial, comercial e industrial, cuya carga conectada sea mayor a 15 kW, serán atendidas por el Distribuidor solamente cuando el diseño y la instalación interior hayan sido realizados bajo la firma de responsabilidad de un Ingeniero Eléctrico en el ejercicio de sus derechos. En este caso el Distribuidor exigirá la presentación de un proyecto eléctrico. Para conocer el procedimiento de aprobación de proyectos, el interesado deberá referirse al anexo número 1. El Distribuidor sólo suministrará servicio eléctrico definitivo a inmuebles o predios con autorización de la Muy Ilustre Municipalidad de Guayaquil. 2.3.2 Servicio Eléctrico Definitivo Es el servicio eléctrico suministrado por el Distribuidor dentro de su área de concesión, previo a la presentación del permiso municipal de inspección final y al pago del depósito en garantía por el consumo de energía, así como de los cargos requeridos por inspección y aportación a las mejoras de la red de distribución. Cuando se trate de cambios o modificaciones de un servicio existente, se deberá considerar un ajuste en el depósito en garantía, además de los otros cargos mencionados. En cualquier caso, se aplicará la tarifa correspondiente aprobada por el CONELEC. 2.3.3 Servicio Eléctrico Ocasional Es el servicio eléctrico suministrado por el Distribuidor dentro de su área de concesión, a ferias, circos, actos públicos u otros que no requieran de un uso continuo o por períodos suficientemente largos que justifiquen la instalación de un servicio definitivo. El Distribuidor suministrará servicio eléctrico ocasional en los casos que, luego de un análisis técnico ceñido a la presente Norma, sea posible el suministro de dicho servicio. Se aplicarán los cargos, aportaciones, depósitos y tarifas, mencionadas en el numeral anterior. Para este servicio se podrá instalar un medidor provisional para el registro del consumo y facturación de la energía utilizada. Cuando se apruebe el proyecto eléctrico de una obra, se verificará que la misma cuente con un servicio eléctrico, cuyo consumo se registre a través de un medidor provisional de construcción, y en caso de no tenerlo, en la misma solicitud se autorizará la contratación del servicio mencionado.
  • 12.
    11 2.3.4 Incrementos deCarga El suministro de servicio por parte del Distribuidor normalmente suple el requerimiento de las instalaciones iniciales del Consumidor. Cuando se contemple la instalación de cargas adicionales, por parte del Consumidor, este deberá notificar con la debida anticipación al Distribuidor para cubrir estos requerimientos. El Consumidor no deberá realizar aumentos de carga a menos que el Distribuidor le haya notificado que puede suplir satisfactoriamente la carga eléctrica adicional. 2.4 Clases de Servicios El servicio eléctrico se suministrará en forma de corriente alterna, monofásico o trifásico sólidamente aterrizado, con una frecuencia nominal de 60 ciclos por segundo. Los voltajes de servicio, listados a continuación, están disponibles dependiendo de la localización del Consumidor y la naturaleza de la carga. Las tensiones se clasifican en: baja, media y alta. El Distribuidor en condiciones normales mantendrá la regulación de la tensión dentro de los límites establecidos por el CONELEC. 2.4.1 Baja Tensión Sistema Monofásico 120 Voltios – 2 hilos monofásicos. Este servicio se suministra para demandas hasta 3 kW. 120/240 Voltios - 3 hilos monofásico. Este servicio se suministra para demandas hasta 30 kW. 120/208 Voltios - 3 hilos monofásico. Este servicio se suministra para demandas hasta 30 kW en los sectores donde se disponga de un sistema trifásico a 120/208 V, de lo contrario será necesario instalar un banco de transformadores particular. Sistema Trifásico 120/240 Voltios - triángulo 4 hilos trifásico con neutro solidamente aterrizado. Este servicio se suministra para cargas trifásicas mayores a 4 kW siempre que la demanda total del inmueble no sea mayor a 30 kW. 120/208 Voltios - estrella 4 hilos trifásico con neutro solidamente aterrizado. Este servicio se suministra para condiciones similares a las descritas en el literal anterior y en los sectores donde se disponga de este servicio. Las cargas monofásicas deben ser balanceadas entre las fases. 2.4.2 Media Tensión El Distribuidor suministrará el servicio eléctrico a nivel de media tensión en los siguientes casos, independientemente si la medición se encuentra en el lado primario o secundario del transformador: a) Sistema Monofásico a 13,800/√3 voltios Este servicio se suministrará al voltaje indicado, cuando la demanda del predio sea mayor a 30 kW y menor a 90 kW y su capacidad total instalada no exceda de 100 kVA monofásico.
  • 13.
    12 b) Sistema Trifásicoa 13,800 voltios. Este servicio se suministrará al voltaje indicado, cuando la demanda trifásica del predio sea mayor a 30 kW y menor a 1,000 kW. Nota: Cuando un abonado requiera un servicio con medición en baja tensión y con voltaje diferente a: 120/208V, 127/220V o 120/240V, consultará con el Distribuidor la factibilidad del suministro. 2.4.3 Alta Tensión Sistema Trifásico a 69,000 voltios. Este servicio se suministrará al voltaje indicado, cuando la demanda del consumidor sea mayor a 1,000 kW, para cuyo efecto el interesado deberá instalar una subestación de poder de su propiedad. 2.5 Control Posterior y Límite de Responsabilidad El Distribuidor, después de concedido el servicio, podrá realizar inspecciones a las acometidas, equipos de medición, tableros o armarios para medidores, cámaras de transformación e instalaciones interiores, y en caso de existir anomalías o disconformidades con el proyecto previamente aprobado, procederá a negar o a suspender el servicio hasta que se realicen las correcciones necesarias. 2.6 Uso no autorizado de Energía Eléctrica Se prohíbe remover, relocalizar, utilizar fraudulentamente cualquier método, dispositivo o mecanismo clandestino o no, para alterar los sistemas de medición o aparatos de: control, medida o registro de energía eléctrica, o efectuaren conexiones directas no autorizadas por el distribuidor, destruyeren, perforaren o manipularen las acometidas, en perjuicio de la Distribuidora. El incumplimiento de esta disposición será considerado como infracción y ocasionará la aplicación directa de multas de acuerdo al contrato de suministro, sin perjuicio de iniciar las acciones legales pertinentes con la aplicación de la ley de Régimen del Sector Eléctrico, relacionado a delitos y sanciones y la aplicación del Código Penal. 2.7 Información sobre Corrientes de Falla o Cortocircuito En caso de requerirse información relacionada sobre las corrientes de falla o cortocircuito, el Consumidor podrá obtenerla en la Sección de Estudios Eléctricos del Departamento de Ingeniería. 3. TERMINOLOGIA 3.1 Acometida
  • 14.
    13 Es un conjuntode conductores y equipos utilizados para suministrar la energía eléctrica, desde el sistema de distribución de media y baja tensión del Distribuidor hasta las instalaciones del Consumidor. 3.2 Acometida en Baja Tensión Es la que se conecta a una red de baja tensión con un voltaje hasta 600 V. 3.3 Acometida en Media Tensión Es la que se conecta a una red de distribución sobre 600 voltios y hasta 15 kV y comprende los conductores de alimentación con sus accesorios, desde dicha red hasta los bornes del transformador o hasta el equipo de medición en media tensión, en caso de existir. 3.4 Acometida Monofásica Es aquella que arranca desde la red del Distribuidor con uno o dos conductores activos y uno conectado al neutro o tierra de referencia del sistema. 3.5 Acometida Trifásica Es aquella que arranca desde la red del Distribuidor con tres conductores activos y uno conectado al neutro o tierra de referencia del sistema. 3.6 Acometida Individual Es aquella que da servicio a un solo Consumidor y comprende la línea de alimentación con sus accesorios, desde la red de distribución hasta el punto de entrega de la energía. 3.7 Acometida Colectiva Sirve a dos o más Consumidores en un mismo inmueble y comprende la línea de alimentación con sus accesorios, desde la conexión a la red secundaria de distribución hasta el punto de entrega de la energía. 3.8 Acometida Provisional Es aquella que se instala para suministrar servicio eléctrico durante corto tiempo, como sucede en las construcciones o servicios ocasionales. 3.9 Ampacidad Es la máxima corriente en amperios que un conductor o equipo puede transportar continuamente, bajo condiciones específicas de uso, sin exceder su límite de temperatura. 3.10 Base (socket) Es el elemento sobre el cual se realiza el montaje del medidor (tipo socket) 3.11 Conductores de Señal
  • 15.
    14 Es un cablede control concéntrico con chaqueta externa de policloruro de vinilo (PVC), conformado por 8 conductores de cobre # 12 AWG, aislados individualmente con PVC, y que interconecta las borneras de control de los transformadores de corriente (TC) y de los transformadores de potencial (TP) con los medidores para medición indirecta. 3.12 Consumidor Es una persona natural o jurídica que recibe el servicio eléctrico debidamente autorizado por el Distribuidor dentro de su área de concesión. Incluye al Consumidor Final, al autoproductor y al Gran Consumidor. 3.13 Disyuntor Se entiende por disyuntor al interruptor provisto de dispositivos para la desconexión automática en caso de sobrecarga o cortocircuito en la respectiva instalación. 3.14 Electrodo de Puesta a Tierra Es un dispositivo cuya función es asegurar un buen contacto con el terreno circundante, que se conecta mediante un conductor al objeto, equipo, instalación o circuito que requiera conexión a tierra. 3.15 El Distribuidor Es la Empresa eléctrica que asume la obligación de prestar el servicio público de suministro de electricidad a los consumidores, dentro de su área de concesión. 3.16 Factor de Potencia Es un indicador del correcto aprovechamiento de la energía eléctrica y se la define como la relación entre la potencia activa (kW) y la potencia aparente (kVA). 3.17 Zona de Servicio Es la superficie circular que tenga como radio 200m a partir de los transformadores, existentes en los sistemas de distribución. 3.18 Interruptor Es un dispositivo que interrumpe la alimentación a un circuito. Su capacidad está dada en amperios y puede interrumpir el circuito con la carga a la tensión nominal para la que fue diseñado. 3.19 Medidor Es un equipo electro–mecánico o electrónico que registra el consumo de energía y otros parámetros eléctricos requeridos por el Distribuidor y el Consumidor. 3.20 Medidor para Medición directa Auto-contenido
  • 16.
    15 Es un equipoelectro-mecánico o electrónico que registra el consumo de energía, demanda y otros parámetros eléctricos requeridos por el Distribuidor y el Consumidor. Para su funcionamiento, utiliza directamente las señales de corriente y voltaje, y no requiere transformadores de medición. 3.21 Medidor para Medición Indirecta Es un equipo electrónico que registra el consumo de energía, demanda y otros parámetros eléctricos requeridos por el Distribuidor y el Consumidor. Para su funcionamiento utiliza señales de control provenientes desde los transformadores de medición. 3.22 Medidor de Servicios Generales Es el medidor que registra el consumo de energía en un predio o inmueble, de las áreas y equipos eléctricos de uso comunitario, de los diferentes usuarios. 3.23 Medidor de Consumo general Es el medidor que realiza la medición integral de la potencia y la energía entregada por el Distribuidor a un predio o inmueble en el que existan múltiples usuarios del servicio eléctrico con medidores individuales, pero que no cuenten con medidor o medidores de servicios generales. El Distribuidor facturará a la administración del edificio la diferencia entre el valor de los kWh registrados en el Medidor de Consumo General y la sumatoria de los kWh registrados por los múltiples medidores instalados. 3.24 Medidor Controlador Es el medidor que registra la energía total entregada a un predio o inmueble, en cuyo interior se ha instalado un conjunto de medidores. Por razones estrictamente técnicas este medidor será considerado como un medidor de Consumo General. 3.25 Medidor Controlador de Circuito Es aquel que realiza la medición integral de la potencia y la energía entregada por el Distribuidor a un circuito secundario en el que existen múltiples usuarios del servicio eléctrico. 3.26 Servicio Eléctrico Es el servicio de energía eléctrica que suministra el Distribuidor a los Consumidores, desde sus redes de distribución de baja, media y alta tensión, amparado en el contrato de suministro. 3.27 Tablero General de Medidores
  • 17.
    16 Es un armarioque contiene los equipos de medición y protección de un determinado predio, cuyo diseño debe ser aprobado por el Distribuidor. 3.28 Punto de entrega Se entenderá como tal, el lado de la carga del sistema de medición, es decir los terminales de carga del medidor en los sistemas de medición directa y el lado secundario de los transformadores de corriente en los sistemas de medición indirecta, independientes de donde estén ubicados los transformadores de tensión. 3.29 Reversible Es el dispositivo mecánico que instalado al inicio de las tuberías en su parte aérea impide el ingreso de agua al interior de las mismas. 3.30 Reglamento de Suministro Es el reglamento Sustitutivo del Reglamento de Suministro del Servicio de Electricidad, expedido mediante Decreto Ejecutivo 796, del 10 de noviembre del 2005, publicado en el Registro Oficial Nº 150 del 22 de noviembre del 2005. 4. ACOMETIDAS 4.1 Requisitos Generales Las acometidas son aéreas o subterráneas. En los sectores donde el sistema de distribución es subterráneo, las acometidas también deberán serlo y para la construcción de su canalización los conductores deberán obtener la respectiva autorización de la Municipalidad de Guayaquil y poner en conocimiento de las otras empresas de servicios básicos los trabajos a realizarse con al menos 72 horas de anticipación, previo al inicio de la excavación. 4.1.1 Número de Acometidas Permitidas Cualquier inmueble o predio será servido solamente por una acometida. 4.1.2 Suministro e Instalación de Conductores de Acometida Los conductores para acometidas serán suministrados e instalados por el Distribuidor previo la contratación del servicio eléctrico en la Sección Servicio al Cliente. La conexión de los conductores de acometida con las líneas de distribución de baja, media y alta tensión, será realizada única y exclusivamente por el personal autorizado por el Distribuidor. 4.1.3 Conexiones y Empalmes en los Conductores de Acometida No se instalará una acometida a través de un solar o inmueble ajenos a la instalación que se está efectuando.
  • 18.
    17 No se permitiráconexión o empalme en los conductores de acometida. La ejecución de estas instalaciones será considerada como una infracción, que será sancionada según se estipula en el Contrato de Suministro de Servicio Eléctrico. 4.1.4 Canalización para los Conductores de Acometida La canalización para los conductores de acometida se construirá con tubería metálica rígida aprobada para uso eléctrico en toda su trayectoria. En canalizaciones de acometidas de media tensión podrá emplearse tubería plástica tipo pesada, con recubrimiento de hormigón, exceptuándose aquella que baja junto al poste de arranque de acometida y el tramo que ingresa al predio hasta el sitio de medición, cuarto de transformación, o centro de carga. 4.1.5 Tubería de Entrada de Acometida La tubería de acometida entrará sin ninguna derivación, desde el exterior del inmueble directamente al medidor, al tablero general de medidores o al cuarto de transformación. 4.1.6 Curvatura de las Tuberías de Acometida Las tuberías para acometidas no tendrán más curvas que el equivalente a 2 ángulos rectos (180 grados); cuando sea necesario hacer más de 2 curvas, éstas se evitarán construyendo cajas de revisión, cuyas dimensiones permitirán el paso adecuado de los conductores exclusivamente de la acometida. Las curvas en las tuberías se harán de modo que éstas conserven su sección circular; los radios de las curvas no serán menores que 6 veces el diámetro nominal de la tubería. 4.1.7 Diámetro Mínimo de las Tuberías de Acometida El diámetro interior mínimo para las tuberías de acometida en baja tensión será: Acometidas monofásicas hasta 70 amperios: 1 1/4” 32mm Acometidas monofásicas hasta 150 amperios: 2” 50mm Acometidas trifásicas hasta 70 amperios: 2” 50mm Acometidas trifásicas hasta 125 amperios: 2 ½” 63mm Para acometidas en media tensión con dos conductores (incluyendo el neutro), el diámetro interior de la tubería de entrada de acometida será de 3” (75mm); para acometidas en media tensión de más de dos conductores, el diámetro de la tubería será de 4” (100mm) La tubería que contiene los conductores de señal será de 1 ¼” (32mm) de diámetro. 4.1.8 Conductores en las Tuberías de Acometida Sólo se permitirá instalar en las tuberías de acometida eléctrica los conductores que correspondan a la acometida y los de puesta a tierra.
  • 19.
    18 4.2 ACOMETIDAS AÉREAS EN BAJA TENSIÓN 4.2.1 Aislamiento de los Conductores de Acometida Los conductores de acometida tendrán una cubierta aislante tipo TTU, THW o similares que resista la exposición a la intemperie y otras condiciones. El conductor del neutro aterrizado de la acometida podrá ser desnudo o aislado. 4.2.2 Tamaño Mínimo de los Conductores de Acometida Los conductores de acometida tendrán una capacidad de transporte de corriente que esté de acuerdo con la demanda máxima a servir, sin que haya un aumento de temperatura perjudicial para el aislamiento de los mismos y tendrán la resistencia mecánica adecuada. En todo caso, el tamaño mínimo de los conductores de acometida será: Acometida Aérea Conductores Mínimos 2 conductores Duplex, ASC, No. 6 AWG 3 conductores Triplex, ASC o ACSR, No. 4 AWG 4 conductores Cuadruplex, ASC o ACSR No. 4 AWG 2 conductores 2 # 6 AWG tipo anti hurto 3 conductores 2 # 6 + 1 # 6 AWG tipo anti hurto 4.2.3 Ubicación de la Tubería de Entrada de Acometida El extremo de la tubería de entrada de acometida en un inmueble estará ubicado del lado del poste de distribución más cercano al inmueble. No se permitirá que la acometida cruce predios o propiedades contiguas. Ver figura 1. 4.2.4 Altura de los Conductores de Acometida Por razones de seguridad, las acometidas tendrán las siguientes separaciones mínimas con relación al piso o calzada: Si los conductores del secundario del sector pasan por la acera opuesta, la separación mínima de seguridad será de 5.50 metros con relación a la calle. Ver figuras 2 y 3. Si los conductores del secundario pasan por la misma acera, la separación mínima de seguridad será de 3 metros con relación al piso terminado. Ver figura 4. Los conductores de entrada de acometida tendrán una separación horizontal mínima de 0.90 m. con relación a ventanas, puertas, balcones y escaleras o cualquier localización similar que permita el acceso o la aproximación de personas a los conductores. 4.2.5 Punto de Fijación de los Conductores de Acometida El punto de fijación de los conductores de acometida estará en el cerramiento frontal, en un pilarete, o en la fachada del inmueble de no existir dicho cerramiento. En todos los casos, el
  • 20.
    19 punto de fijaciónestará a una altura mínima de 3.00 metros sobre el suelo y permitirá el cumplimiento del numeral 4.2.4 en cuanto a separaciones mínimas. Ver figuras 2, 3, 4, 6, 7, 8 y 13. Cuando se necesite un poste para alcanzar la altura exigida, éste deberá ser de hormigón, metal, o madera, según el caso, de tal forma que resista los esfuerzos impuestos por la acometida. Ver figuras 3 y 8. El punto de fijación deberá ser siempre accesible desde una escalera apoyada en el suelo. 4.2.6 Medios de Fijación de los Conductores de Acometida Se usarán abrazaderas, tuercas de ojo, ganchos soportes, pernos de ojo, aisladores de garrucha, amarras preformadas y aisladores tripa de pato. Los conductores de acometida se instalarán con la ayuda de un cable mensajero hasta el punto de fijación. Cuando se utilicen cables trenzados (cable Multiplex), el cable mensajero será el mismo conductor neutro. Ver figuras 2, 3, 6, 7,8 y 9. 4.2.7 Reversible en la Entrada de Acometida La tubería de entrada de acometida estará provista de un reversible para evitar el ingreso de aguas lluvias, a través del cual los conductores de distintas fases pasarán por huecos diferentes de la boquilla. Dicho reversible se ubicará aproximadamente a 20 centímetros por encima o debajo del punto de fijación de la acometida. Ver figuras 2, 3, 6, 7, 8, 14 y 15. 4.3 ACOMETIDAS SUBTERRÁNEAS EN BAJA TENSIÓN 4.3.1 Aislamiento de los Conductores de Acometida Los conductores de acometidas subterráneas serán cables monoconductores con aislamiento tipo TTU, RHW, THW o equivalentes. El calibre de los conductores será determinado por la demanda. 4.3.2 Calibre Mínimo de los Conductores de Acometida Para acometidas subterráneas, el calibre mínimo será: # 4 AWG Cu TTU 4.3.3 Trayectorias de las Acometidas Para acometidas subterráneas provenientes de un sistema de distribución subterráneo, la acometida partirá de una caja de revisión, interceptando la canalización subterránea del secundario del sector. Dicha caja se ubicará de tal forma que la canalización de entrada de acometida se construya con un tramo recto a 90°, hasta llegar al sitio de medición. Ver figura 10.
  • 21.
    20 Para acometidas subterráneasprovenientes de un poste del sistema de distribución aéreo, se construirá una caja de revisión al pie del poste de arranque de la acometida y las que sean necesarias hasta ubicarse frente al sitio de medición e ingresar al predio con un tramo recto a 90°. Ver figuras 11 y 12. 4.3.4 Suministro e Instalación de las Tuberías Cuando un abonado solicite acometida subterránea, suministrará e instalará por su cuenta toda la tubería metálica que se requiera, desde el sistema de distribución hasta el medidor o tablero de medidores. El diámetro mínimo permitido será de 2”. 4.3.5 Protección Mecánica Los conductores de acometidas subterráneas se protegerán contra daños físicos instalándolos en tubería metálica rígida, aprobada para uso eléctrico. Si la acometida se deriva desde un poste, la tubería partirá desde una altura de 6 metros y bajará a una caja de paso de hormigón simple de 0.6x0.6x0.6m. construida junto al poste, desde la cual continuará hasta llegar al medidor o tablero de medidores y rematará con una tuerca corona. Ver figuras 11 y 12. 5. DISYUNTORES 5.1 Disyuntor Principal Todo inmueble con servicio eléctrico incluirá en su instalación de acometida un disyuntor principal que servirá de medio de desconexión y protección de los conductores activos de la instalación interna del inmueble cuando existan sobrecargas o cortocircuitos. 5.2 Ubicación El disyuntor principal se instalará en un lugar de fácil acceso e inmediatamente a la salida del medidor. Cuando se trate de un tablero de medidores, el disyuntor principal se ubicará preferiblemente en el compartimiento de las barras de distribución. El disyuntor principal no puede ser instalado a más de 10m desde los bornes secundarios del transformador. 5.3 Disposición de los Disyuntores Parciales En inmuebles que requieran la instalación de un tablero de más de un medidor, los disyuntores parciales se instalarán junto a cada medidor en su módulo correspondiente. 5.4 Ampacidad El disyuntor principal tendrá una ampacidad no menor que la correspondiente a la demanda máxima de la carga instalada y no mayor del 125% de la ampacidad permisible del conductor utilizado. La capacidad interruptora del disyuntor deberá ser mayor o igual que la máxima corriente de cortocircuito en sus terminales.
  • 22.
    21 Los disyuntores principalesutilizados en las acometidas en baja tensión tendrán una ampacidad mínima de 30 amperios. Cuando la ampacidad permisible de un conductor no corresponda a la ampacidad normalizada de un disyuntor no regulable, se utilizará un disyuntor con la ampacidad inmediata superior. Los disyuntores regulables se los graduará a un valor no mayor del 125% de la ampacidad de corriente permisible de los conductores. 5.5 Posición de operación Los disyuntores mostrarán claramente sus posiciones de cierre y apertura. Por razones estrictas de seguridad la alimentación de corriente se conectará a los terminales del lado de entrada (ON), y los conductores que van hacia la carga en los terminales del lado de salida (OFF). 5.6 Protección Mecánica Los disyuntores estarán protegidos por una caja metálica o de policarbonato o acrílico con tapa, que permita su operación manual. 5.7 Desconexión El disyuntor desconectará simultáneamente todos los conductores activos. El conductor del neutro no tendrá ningún medio de desconexión. 5.8 Conexiones Los conductores activos serán conectados a los disyuntores mediante dispositivos de presión, compresión, grapas u otros medios equivalentes, los mismos que serán suministrados e instalados por el Consumidor. 6. MEDIDORES Y SUS BASES (SOCKETS) 6.1 Suministro de la Base (socket) Los medidores tipo socket serán instalados en una base que será suministrada e instalada por el Consumidor dentro del módulo correspondiente, junto con su disyuntor de protección. La base (socket) deberá contar reglamentariamente con un dispositivo que permita la colocación de sellos de seguridad numerados, que instalará el Distribuidor para prevenir el acceso al equipo de medición por personas no autorizadas. 6.2 Tipos de Bases (socket) Los diferentes tipos de bases socket que utiliza la Empresa son los siguientes: Base (socket) monofásica de 100 amperios para 120/240 voltios, 4 terminales.
  • 23.
    22 Base (socket) monofásicade 100 amperios, 120/208 voltios, 5 terminales. Base (socket) monofásica de 200 amperios para 120/240 voltios, 4 terminales. Base (socket) monofásica de 200 amperios para 120/208 voltios, 5 terminales. Base (socket) monofásica de 20 amperios para medición con transformadores de corriente, 5 terminales. Base (socket) monofásica de 20 amperios para medición con transformadores de corriente, 6 terminales. Base (socket) trifásica de 100 amperios, 7 terminales. Base (socket) trifásica de 200 amperios, 7 terminales. Base (socket) trifásica de 20 amperios para medición con transformadores de corriente, 13 terminales. FABRICANTES Y TIPOS ACEPTADOS POR EL DISTRIBUIDOR TIPO DE DESCRIPCIÓN SERVICIO FABRICANTE Socket, 1F, CL-20, 5 terminales 1F- 3H General Electric >175 A Milbank Anchor/Thomas&Betts Socket, 1F, CL-20, 6 terminales 1F- 3H General Electric >175 A Milbank Anchor/Thomas&Betts Socket, 3F, CL-20, 13 terminales 3F- 4H General Electric >175 A Milbank Anchor/Thomas&Betts Socket, 1F, CL-100, 4&5 1F- 2H y 3H General Electric terminales <70 A Milbank Anchor/Thomas&Betts Socket, 3F, CL-100, 7 3F- 4H General Electric terminales <70 A Milbank Anchor/Thomas&Betts Socket, 1F, CL-200, 4&5 1F- 3H General Electric terminales >70 A y Milbank <175A Anchor/Thomas&Betts Socket, 3F, CL-200, 7 3F- 4H General Electric terminales >70 A y Milbank <175A Anchor/Thomas&Betts
  • 24.
    23 Se aceptará cualquierotra base aprobada mediante informe técnico del laboratorio del Departamento de Medidores de la Distribuidora. 6.3 Ubicación de la Base ( socket ) La base (socket) para el medidor, contenida dentro del módulo de medición, se instalará vertical y horizontalmente nivelada, con el propósito de que el medidor registre con precisión. No se permitirá la instalación de la base (socket) en ambientes de elevada humedad, temperatura o vibraciones, tales como: cuartos de bombas, cuartos para calderos o cuartos para generadores, que puedan afectar el mecanismo u operación del medidor. 6.4 Conexión de la Base (Socket) No más de un conductor debe ser conectado a cada uno de los terminales eléctricos de las bases (sockets), no debiéndose utilizar dichos terminales para efectuar conexiones a otros circuitos. Las bases (sockets) para servicio 1F 120/208V deberán disponer de un quinto terminal ubicado horizontalmente en el lado izquierdo, el mismo que deberá ser conectado al sistema de neutro puesta a tierra. En las bases (sockets) para servicio 1F-3F; 120/240V la línea de fuerza de la acometida deberá conectarse en el terminal derecho de la base (socket). 6.5 Suministro del Equipo de Medición Los equipos de medición en baja y media tensión serán suministrados e instalados por el Distribuidor y serán de su propiedad, además será responsable por el mantenimiento de los mismos. El equipo de medición en alta tensión y en media tensión en cabina, por las particulares características de sus instrumentos y accesorios, será suministrado por el Consumidor, cuando el Distribuidor así lo requiera. Las especificaciones y características técnicas del equipo, así como sus accesorios serán determinadas por el Distribuidor y aceptadas previas pruebas técnicas. Los transformadores de instrumentos para la medición no serán utilizados para ningún otro fin. 6.6 Tipos de Medidores Los diferentes tipos de medidores que utiliza el Distribuidor son los siguientes: Medidores electromecánicos y electrónicos sólo con registro de energía activa: Medidor socket monofásico, auto-contenido, 2 hilos CL-100, forma 1S, “SO” Medidor socket monofásico auto-contenido, 3 hilos CL-100, forma 2S, “SI” Medidor socket monofásico, auto-contenido, 3 hilos CL-200, forma 2S, “SL”
  • 25.
    24 Medidor socket monofásiconetwork, auto-contenido, 3 hilos, Y, CL-100, forma 12S, “SIY” Medidor socket monofásico network, auto-contenido, 3 hilos, Y, CL-200, forma 12S “SLY” Medidores electrónicos con registros de energía activa, reactiva, demanda y Tiempo de Uso (TOU): Medidor socket monofásico, auto-contenido, 3 hilos CL-200, forma 2S, “EL” Medidor socket monofásico network, auto-contenido, 3 hilos, Y, CL-200, forma 12S, “ELY”, Medidor socket monofásico, para uso con transformadores de medida, 2 hilos CL-20, forma 3S, “EB5” Medidor socket monofásico, para uso con transformadores de medida, 3 hilos CL-20, forma 4S, “EB6” Medidor socket polifásico, auto-contenido, 4 hilos, Y o D, CL-200, poli voltaje, forma 16S, “EZLV ” Medidor socket polifásico, para uso con transformadores de medida, 4 hilos, Y o D, CL-20, poli voltaje, forma 9S, “EZAV”. Nota: La Distribuidora utilizará de acuerdo a sus programas de modernización, cualquiera de los medidores electrónicos anteriormente descritos, equipados con tarjeta de comunicación de Radio Frecuencia (RF) o con cualquier otro equipo de transmisión de datos. 6.7 Ubicación del Medidor Individual El medidor se ubicará en un lugar de fácil y libre acceso para el personal del Distribuidor y lo más cerca posible del punto de conexión al sistema de distribución, de acuerdo a los siguientes casos: 6.7.1 Edificaciones Nuevas El medidor individual deberá instalarse en el cerramiento frontal del inmueble o en un pilarete ubicado en el lindero frontal del solar. Ver figuras 2, 3, 4, 9, 13, 14 y 15. El medidor podrá instalarse en la fachada frontal o en el cerramiento lateral del inmueble siempre y cuando no exista cerramiento frontal, ni se prevea su construcción a futuro, y además se disponga de libre acceso al sitio donde se proyecta instalar el medidor. Ver figuras 5, 6, 7 y 8. Si la medición es indirecta, el medidor se instalará en el cerramiento frontal del inmueble o en una de las paredes del lado exterior del cuarto de transformación de tal manera que su ubicación tenga fácil y libre acceso desde la vía pública y esté de acuerdo con el proyecto previamente aprobado por el Distribuidor. Ver figuras 28, 29 y 30. 6.7.2 Edificaciones Existentes (con servicio eléctrico previo) En caso de servicios existentes, el Distribuidor podrá exigir la reubicación del medidor individual al cerramiento frontal, a la fachada frontal en caso de no haber cerramiento, o excepcionalmente al cerramiento lateral, cuando permita la fácil toma de lectura y el libre acceso desde la vía pública por parte del personal del Distribuidor.
  • 26.
    25 6.8 Altura del Módulo Individual de Medidores La altura a la que se colocará el módulo individual de medidores permitirá que el eje del medidor se encuentre entre 1.80m y 2.00m con respecto al piso terminado. Ver figuras 2, 3, 4, 6, 7, 11, 12, 14 y 15. 6.9 Colocación de Sellos El medidor se instalará en la base (socket), y será sellado por el personal del Distribuidor. La ruptura de un sello de seguridad instalado por el Distribuidor será considerada como una infracción, que será sancionada según se estipula en el Contrato de Suministro del Servicio Eléctrico. 7. MEDICIÓN En este capítulo se resumen los métodos más comunes de medición utilizados por el Distribuidor, con el propósito de registrar la energía suministrada al Consumidor. 7.1 Medición en Baja Tensión La medición en baja tensión se aplicará para demandas de hasta 300 kilovatios. 7.1.1 Cargas con Protección hasta 70 amperios Cuando la carga de un Consumidor requiera de la protección de un disyuntor hasta 70 amperios, la medición se hará por medio de un medidor auto-contenido clase 100, tipo socket. 7.1.2 Cargas con Protección hasta 175 amperios Cuando la carga de un Consumidor requiera la protección de un disyuntor de ampacidad mayor de 70 amperios y hasta 175 amperios, la medición se hará por medio de un medidor auto-contenido clase 200, tipo socket. 7.1.3 Cargas con Protección hasta 1000 amperios Cuando la carga de un Consumidor requiera de la protección de un disyuntor de ampacidad mayor de 175 amperios y hasta 1,000 amperios, la medición se hará utilizando medidores clase 20, tipo socket con transformadores de corriente. 7.1.4 Métodos de Instalación de Medición en Baja Tensión La medición en baja tensión se efectuará en forma directa utilizando medidores auto- contenidos tipo socket y en forma indirecta utilizando transformadores de medición. Ver figuras 28 y 29. 7.2 Medición en Media Tensión
  • 27.
    26 La medición enmedia tensión se efectuará cuando las demandas sean superiores a 300 kilovatios e inferiores a 1,000 kilovatios. El equipo de medición será instalado en un poste que contenga las líneas primarias aéreas de distribución, o en cuartos de transformadores, previa aprobación del Distribuidor, para lo cual se utilizará transformadores de potencial y de corriente, además del medidor adecuado. Ver figuras 16, 17, 18, 19 y 30. Se instalará un equipo de medición en media tensión para demandas menores a 300 kilovatios o mayores a 1,000 kilovatios, por razones técnicas y por disposición del Distribuidor. 7.2.1 Ubicación del Equipo de Medición de Media Tensión en Postes Los postes que soporten el equipo de medición de media tensión contendrán también el módulo individual para medición indirecta, el cual deberá instalarse a una altura entre 1.80 m y 2.00 m con respecto al piso, protegido contra las aguas lluvias por medio de una cubierta o techo. Cuando la alimentación en media tensión se la realice por medio de un primario particular, el equipo de medición se instalará en el primer poste ubicado dentro del predio, el mismo que se colocará a una distancia máxima de 7 metros, medidos desde la línea de cerramiento y se preverá una estructura de doble retención en dicho poste. Ver figura 19. La estructura metálica de soporte con el equipo de medición (TC+TP) será suministrada e instalada por el Distribuidor. El medio de protección y seccionamiento, es decir, las cajas porta-fusible de la acometida en media tensión o primario particular, deberá estar instalado en un poste en la vía pública, lo más cercano al predio, de tal forma que pueda ser libremente operado por el personal del Distribuidor. 7.2.2 Ubicación del Equipo de Medición de Media Tensión en Cuartos En los cuartos de transformadores que contengan equipos de medición en media tensión, el módulo individual del medidor deberá instalarse en el lado exterior de una de sus paredes y a una distancia tal, que el recorrido lineal de la trayectoria de la canalización de los conductores de señal del equipo de medición no exceda de 10 metros. Ver figura 30. El equipo de medición (TC+TP) será suministrado por el Distribuidor. La estructura metálica de soporte será instalada por el consumidor. El medio de protección y seccionamiento, es decir, la caja porta-fusible de la acometida en media tensión o primario particular, deberá estar instalado en un poste en la vía pública, lo más cercano al predio, de tal forma que pueda ser libremente operado por el personal del Distribuidor. 8. MEDIDOR CONTROLADOR
  • 28.
    27 8.1 Función El medidor Controlador es aquel que realiza la medición integral de la potencia y la energía entregada por el Distribuidor a una Urbanización, a un edificio, o a un conjunto de edificios ubicados en un predio y en el que existan múltiples usuarios del servicio eléctrico, asociados a su vez con otros medidores individuales. Cuando la diferencia entre el valor de los kWh registrados en el Medidor Controlador y la sumatoria de los kWh registrados por los múltiples medidores instalados, no corresponda con el valor establecido previamente para las pérdidas de energía del (o los) transformador(es), el Distribuidor procederá de manera inmediata a la revisión de la situación presentada. 8.2 Criterios de Instalación Se instalarán Medidores Controladores en todos aquellos predios en los cuales se cumplan las siguientes condiciones: Que el número de medidores requeridos en un tablero o en varios de éstos sea mayor a 10, y Que la capacidad de transformación de la subestación sea mayor o igual a 50 kVA. 8.3 Ubicación Los Medidores Controladores se instalarán en el lado primario o secundario de la subestación eléctrica que da servicio al predio, en un lugar de fácil y libre acceso para el personal del Distribuidor y a una altura entre 1.80 m y 2.00 m con respecto al piso terminado. En caso de existir un conjunto de edificios con múltiples usuarios, además del Controlador, la Empresa exigirá la instalación de Subcontroladores en cada uno de los edificios. Según la ubicación del Medidor Controlador, éste podrá registrar o no la energía autoconsumida por la subestación (pérdidas de transformación). 8.4 Características El Medidor Controlador deberá ser electrónico con registro de demanda, monofásico o trifásico, para usarse con transformadores de medición. 8.5 Clases de Medición: 8.5.1 Medidor Controlador en Baja Tensión (Hasta 600 voltios) El Medidor Controlador será instalado en el lado de baja tensión de la subestación cuando la capacidad de transformación sea de hasta 300 kVA. El Medidor será instalado en el lado exterior del cuarto de transformación dentro de un módulo metálico individual de: 70x40x25 cm. Ver Figuras 24, 28 y 29. 8.5.2 Medidor Controlador en Media Tensión (13.8 kV)
  • 29.
    28 El Medidor Controladorserá instalado en el lado de media tensión (13.8 kV) cuando la capacidad de transformación de la subestación sea superior a los 300 kVA. El Medidor será instalado en el lado exterior del cuarto eléctrico o de transformación, dentro de un módulo metálico individual de 70x40x25cm. Ver figura 24 y 30. 8.5.3 Suministro de Equipos Cuando se instale el Medidor Controlador en baja o media tensión, el Distribuidor suministrará los equipos relacionados con la medición, incluyendo el medidor respectivo. Cuando el Controlador sea en baja tensión, el Consumidor deberá suministrar e instalar los siguientes elementos: La canalización para los conductores de señal. El módulo individual para el medidor con la base (socket) incluida. El módulo de seguridad para transformadores de medición, el cual será suministrado por el Distribuidor. Cuando el Controlador sea en media tensión, el Consumidor deberá suministrar e instalar los elementos mencionados en los literales a) y b), así como la estructura metálica de soporte de los transformadores de medición dentro del cuarto de transformación. En caso que en la obra se haya previsto la instalación de un grupo de celdas, el consumidor podrá suministrar una celda de medición con sus elementos incluidos, de acuerdo a lo especificado en el proyecto aprobado por el Distribuidor. 9 MÓDULO DE SEGURIDAD PARA TRANSFORMADORES DE MEDICIÓN EN BAJA TENSIÓN. 9.1 Características Generales Estos módulos se los utilizará como medio de soporte y protección de los transformadores de medición y sus conexiones, se los instalará en el lado de baja tensión de los transformadores de distribución, tanto en instalaciones nuevas como en instalaciones con servicio eléctrico previo. 9.2 Características Constructivas Los módulos para transformadores de medición serán fabricados en material plástico poliestireno en color claro, de 50x35x24cm. para los sistemas monofásicos, de tal manera que permitan la instalación de dos transformadores de medición con una relación máxima de 400:5. Para sistemas trifásicos los módulos serán de 50x50x25cm., de tal modo que permitan la instalación de tres transformadores de medición con una relación máxima de 800:5. Para la entrada y salida de los conductores de sistemas monofásicos y trifásicos, los módulos llevarán tres y cuatro orificios de 2” de diámetro en su extremo superior e inferior respectivamente. Por cada orificio pasarán los conductores de fase, y el neutro pasará por el
  • 30.
    29 orificio central ensistemas monofásicos y por el extremo derecho para sistemas trifásicos. Se permitirá utilizar hasta 3 conductores por fase. Se dispone de dos tipos de módulos, uno para servicios nuevos y otro para servicios existentes. Para servicios nuevos se ha diseñado el módulo con una tapa superior provista de un dispositivo para la colocación de un sello de seguridad del Distribuidor. Este módulo será instalado por el Consumidor. Para instalaciones con servicio eléctrico previo, el módulo será instalado por personal del Distribuidor, por lo que se lo ha diseñado de tal forma que permita su instalación sin la necesidad de interrumpir el servicio al Consumidor. Estará conformado por dos tapas que se unirán mediante pernos y tuercas ubicadas en sus esquinas opuestas, dichas tuercas estarán provistas de un sistema que permita la colocación de sellos de seguridad del Distribuidor. En una de las paredes laterales del módulo se instalará un conector plástico con abrazadera de 1 ¼” de diámetro para sujetar los conductores de señal al módulo. Ver figuras 20, 20-A, 20- B y 20-C. 9.3 Ubicación El módulo de seguridad de los transformadores de medición se fijará sobre la parrilla porta- conductores o sobre la pared interior del cuarto de transformación, y su fijación será mediante pernos. Cuando dicho módulo se lo fije sobre la pared, la parte superior del mismo deberá quedar a una altura no mayor a 2.0 m. desde el nivel del piso. Ver figuras 28, 29 y 33. 9.4 Suministro El módulo de seguridad de los transformadores de medición para servicios nuevos será suministrado por el Distribuidor, y su montaje será responsabilidad del contratista eléctrico. Para servicios existentes, el Distribuidor suministrará e instalará el módulo de seguridad correspondiente, cuando el caso lo amerite. 10. MÓDULO INDIVIDUAL PARA MEDIDORES AUTO-CONTENIDOS. 10.1 Características Generales El módulo individual de medición contendrá el medidor necesario monofásico o trifásico para la medición de energía en forma directa. 10.2 Características Constructivas El módulo será construido en Policarbonato o en plancha metálica de 1.5mm. (1/16”) de espesor y estará protegido con pintura anticorrosiva y pintado al horno. En caso de que el módulo se encuentre a la intemperie, expuesto a las aguas lluvias, se deberá adecuar una cubierta, techo, o alero para su protección. 10.2.1 Módulo para Medidor Monofásico CL-100 El módulo será construido tipo vitrina con dimensiones 40x30x20cm. de alto, ancho y profundidad respectivamente y se construirá en un solo cuerpo dividido en dos
  • 31.
    30 compartimientos, uno paraalojar la base socket con dimensiones 30x30 cm. y el otro en su parte inferior para alojar el disyuntor principal de 10x30cm. La puerta que da acceso a la base (socket) contará con dos bisagras encontradas, soldadas en su lado derecho, llevará un elemento (orejas) para la colocación del sello de seguridad del Distribuidor y un visor de vidrio que permita la lectura del medidor. Ver figura 21. Como alternativa, dicho módulo podrá construirse con dos tapas, en cuyo caso sus dimensiones serán de 40x30x10cm., aseguradas con cuatro tornillos y contará con un orificio que permita que el medidor sobresalga del módulo, para facilitar la colocación del zuncho en la base (socket) CL-100 con el sello de seguridad del Distribuidor. Ver figura 21-A. El módulo dispondrá de dos orificios de 1¼” de diámetro, uno en la parte superior y otro en la parte inferior, que se conectarán mediante tuerca y contratuerca metálica con una tubería metálica rígida de 1¼” de diámetro para entrada y salida de conductores. 10.2.2 Módulo para Medidor Monofásico CL-200 El módulo será construido tipo vitrina con dimensiones 70x30x30cm. de alto, ancho y profundidad respectivamente y se construirá en un solo cuerpo dividido en dos compartimientos, uno para alojar la base socket con dimensiones 50x30 cm. y el otro en su parte inferior para alojar el disyuntor principal de 20x30cm. La puerta que da acceso a la base (socket) llevará dos bisagras encontradas, soldadas en su lado derecho, así como un elemento (orejas) para la colocación del sello de seguridad del Distribuidor y dispondrá de un visor de vidrio cuando se trate de un medidor monofásico CL-200 sin demanda, que permita la lectura del medidor o de un orificio cuando se trate de un medidor monofásico CL-200 con demanda, para permitir que el medidor sobresalga 1cm. fuera del módulo para facilitar la operación del reposicionador de la demanda y el cambio de su sello de seguridad. Ver figuras 22 y 22-A. Como alternativa, el módulo para el medidor podrá construirse con dos tapas de dimensiones 70x30x15cm., asegurada con cuatro tornillos, con una perforación que permita colocar la tapa de la base (socket) CL-200 con el sello de seguridad del Distribuidor. Ver figuras 22-B y 22- C. El módulo en referencia llevará dos orificios de 2” ó 2 ½” de diámetro, uno en la parte superior y otro en la parte inferior para acometidas aéreas, o los dos en la parte inferior para acometidas subterráneas, los cuales se conectarán mediante tuerca y contratuerca metálica con la tubería metálica rígida de 2” o 2 ½” de diámetro para entrada y salida de conductores. Para acometidas subterráneas ver figura 22-D. 10.2.3 Módulo para Medidores Trifásicos CL-100 y CL-200 El módulo será construido tipo vitrina con dimensiones 80x40x30cm. de alto, ancho y profundidad respectivamente y se construirá en un solo cuerpo dividido en dos compartimientos, uno para alojar la base socket con dimensiones 60x40 cm. y el otro en su parte inferior para alojar el disyuntor principal de 20x40cm.
  • 32.
    31 La puerta deacceso a la base (socket) llevará dos bisagras encontradas, soldadas en su lado derecho, así como un elemento (orejas) para la colocación del sello de seguridad del Distribuidor y dispondrá de un orificio que permita que los medidores trifásicos CL-100 o CL-200 sobresalgan 1cm. fuera del módulo para facilitar la operación del reposicionador de la demanda y el cambio del sello de seguridad. Ver figuras 23 y 23-A. El módulo en referencia llevará dos orificios de 2” ó 2 ½” de diámetro, uno en la parte superior y otro en la parte inferior para acometidas aéreas, o los dos en la parte inferior para acometidas subterráneas, los cuales se conectarán mediante tuerca y contratuerca metálica con la tubería metálica rígida de 2” o 2 ½” de diámetro para entrada y salida de conductores. Si la trayectoria de éstos es subterránea, la distribución de las tuberías en el módulo individual se efectuará conforme a la fig. 22-D. Los módulos especificados en los numerales 10.2.1, 10.2.2 y 10.2.3 dispondrán además, de un orificio de ½” de diámetro en su parte inferior que se conectará mediante conector y tuerca con una tubería de ½” de diámetro que contendrá el sistema de puesta a tierra del módulo y el neutro de la base socket del medidor. Ver Figuras 21, 22 y 23. 10.3 Suministro El módulo individual para medidores del tipo directo incluyendo la base (socket) monofásica o trifásica, y el disyuntor principal de protección, serán suministrados por el Consumidor. El Distribuidor suministrará e instalará el medidor posterior a la contratación del servicio eléctrico. 11. MÓDULO INDIVIDUAL PARA MEDIDORES DE MEDICIÓN INDIRECTA 11.1 Características Generales El módulo de medición contendrá una base (socket) monofásica o trifásica clase 20 y una bornera (switch) de prueba para medición de energía en forma indirecta. 11.2 Características Constructivas El módulo será construido en Policarbonato o en plancha metálica de 1.5mm (1/16”) de espesor y estará protegido con pintura anticorrosiva y pintada al horno. En caso de que el módulo se encuentre a la intemperie, expuesto a las aguas lluvias, se deberá adecuar una cubierta, techo, o alero para su protección. El módulo será de 70x40x25cm de alto, ancho y profundidad respectivamente y se construirá de un solo cuerpo con una tapa con 4 tornillos, que llevará dos elementos (orejas) para la colocación de sellos de seguridad de la Empresa. Dispondrá de un orificio de 1 ¼” de diámetro que se conectará mediante tuerca y contratuerca metálica con la tubería metálica rígida de 1 ¼” de diámetro que transportan los conductores de señal al medidor. La base socket y la bornera switch se fijarán en un fondo falso del módulo, en donde también se instalará un terminal tipo talón para conexión del neutro del equipo de medición a tierra. Ver figura 24.
  • 33.
    32 11.3 Suministro El módulo individual para medidores de medición indirecta incluyendo la base (socket), será suministrado por el Consumidor. El Distribuidor suministrará e instalará el medidor y la bornera (switch de prueba), posterior a la contratación del servicio eléctrico. 12. TABLEROS DE MEDIDORES 12.1 Generalidades Todo inmueble que requiera más de un equipo de medición tendrá un tablero general en el que estarán agrupados el disyuntor principal, los medidores, las barras de distribución y los disyuntores de protección de los conductores activos que salgan de dicho tablero. El diseño de los tableros de medidores es obligación del proyectista eléctrico de la obra y deberá regirse a las presentes Normas. 12.2 Instalación El propietario del inmueble o el Consumidor suministrará e instalará el tablero para medidores con todos sus equipos y accesorios como son: disyuntores, bases (socket), barras de cobre, terminales, coronas, contratuercas, cableado interno, etc. Los disyuntores y conexiones de medidores monofásicos en tableros estarán diseñados para sistema trifilar, para medidores trifásicos se diseñarán para sistema de cuatro hilos. La sección mínima de los conductores en general será del # 10 AWG cobre aislado, para disyuntores de 30A. Todos los equipos de medición y protección se instalarán en la parte delantera del tablero, no permitiéndose instalarlos en las superficies laterales, así como tampoco otros accesorios, tales como: interruptores de luces, interruptores horarios, tomacorrientes, timbres, etc. 12.3 Ubicación El tablero para medidores se ubicará en el cerramiento o fachada frontal, cerramiento lateral, en la entrada principal del inmueble o en el hall, con fácil y libre acceso, en ambientes libres de: materiales combustibles, elevada humedad y temperatura o vibraciones, que puedan afectar el funcionamiento de los equipos de medición. Cuando el espacio disponible en las áreas arriba indicadas no permita la instalación del tablero de medidores, éste será instalado de manera exclusiva en un cuarto de dimensiones apropiadas y que sea de fácil y libre acceso. Se evitará instalar tableros en las paredes de las escaleras u otros lugares que no ofrezcan las seguridades necesarias.
  • 34.
    33 El tablero sepodrá montar sobrepuesto, empotrado, o auto soportado sobre el piso. En general, deberá permitir el acceso a las conexiones por el lado en que se encuentren instalados los medidores. Las caras de los tableros que contengan medidores deberán tener una separación mínima de 1.00 m. con respecto a las paredes del cuarto que lo alberga. Las dimensiones de las puertas deberán ser de las medidas adecuadas que permitan abatirse libremente. 12.4 Rotulación Todo tablero y cada uno de sus módulos serán rotulados por el Consumidor para indicar la instalación a la cual sirve. La rotulación deberá hacerse sobre las tapas o puertas metálicas, con pintura durable y letras de molde. En la puerta o tapa exterior del compartimiento de barras y protección principal se colocará una placa metálica sobrepuesta de 10x20cm, con letras en bajo relieve indicando el nivel de voltaje del inmueble y el tipo de conexión. 12.5 Características Constructivas El tablero para medidores será metálico, en forma de armario, construido de planchas de 1.5 milímetros (1/16”) de espesor mínimo y estará protegido con pintura anticorrosiva y pintada al horno. El uso de tableros de Policarbonato estará permitido posterior a la aprobación por parte del Distribuidor. El tablero estará formado por varias secciones modulares, llevará cubiertas por todos sus lados y sólo será desmontable en su parte delantera, dispondrá de puertas abisagradas, tapa en la sección del disyuntor principal y barras de distribución, así como en la sección correspondiente a los medidores y disyuntores, la cual estará provista de visores de vidrio transparente que permitan la toma de lectura de los medidores desde el exterior. El compartimiento de barras de distribución y disyuntor principal tendrá dos tapas atornilladas y estarán provistas de dos dispositivos (orejas) para colocar los sellos de seguridad del Distribuidor, ver Figuras 25, 26 y 27. La tapa correspondiente al disyuntor principal tendrá una perforación que permita su operación. Para los mantenimientos preventivos o correctivos del disyuntor principal y barras de distribución se deberá coordinar con el Distribuidor para el retiro y reposición de los sellos de seguridad. El diseño y la construcción del tablero asegurarán su rigidez y resistencia mecánica. El disyuntor general podrá instalarse en una sección independiente de las barras de distribución debido a requerimientos técnicos especiales y deberá ser aprobado por el Distribuidor. 12.6 Altura de Montaje
  • 35.
    34 Los tableros demedidores instalados dentro del inmueble o en cuartos exclusivos, en su parte superior alcanzarán una altura máxima de 2.20 metros y en su parte inferior una altura mínima de 40 centímetros. La altura de montaje para tableros pequeños, de hasta 6 medidores, tipo vitrina en cerramientos y fachadas frontales, será de 1.20 metros medidos desde la parte inferior al piso, con una tolerancia de +/- 20 centímetros, y su parte superior no excederá los 2.20 metros de altura. No se permitirá la instalación de Tableros de Medidores sobre puertas. 12.7 Distancias Mínimas Eléctricas El camino de contorno entre las partes activas de los equipos y las paredes de soportes interiores y puertas metálicas será de por lo menos 3 centímetros. La distancia mínima de arco entre las partes activas de los aparatos y las partes metálicas del tablero será de 1 centímetro. El tablero tendrá dimensiones interiores suficientes para permitir el cierre de sus puertas, cuando los disyuntores estén en posición cerrada o abierta. 12.8 Barras de Distribución Las barras estarán calculadas para no incrementar su temperatura más de 30ºC, a plena carga sobre la temperatura ambiente. Las barras serán de cobre de un espesor mínimo de 3 milímetros (1/8”), y un ancho mínimo de 12.7 milímetros (1/2”), y estarán apoyadas sobre aisladores adecuados de 2.5 centímetros de espesor mínimo. La longitud de las barras se determinará de tal manera, que cada derivación de la misma comprenda un mínimo de 3 centímetros, considerándose además, el espacio necesario para aisladores y terminales de alimentación. AMPACIDAD DE BARRAS DE COBRE Dimensiones (Pulgadas) Amperios 1/8”x1/2” 153 1/4”x1 ½” 560 1/4”x3” 990 1/4”x6” 1,750 La barra del neutro estará conectada sólidamente a tierra. 12.9 Puesta a Tierra
  • 36.
    35 Cada tablero paramedidores será conectado a tierra en la sección correspondiente a las barras de distribución, debiendo utilizarse electrodos de puesta a tierra. 12.10 Número de Tableros El máximo de medidores individuales permitido en un tablero de medidores será de 60. Todo inmueble de hasta 6 pisos tendrá un solo tablero de medidores; inmuebles de más de 6 pisos podrán tener más de un tablero de medidores ubicados lo más cerca al banco de transformadores que lo alimenta. En este último caso, el Distribuidor determinará el número de tableros que podrá tener el inmueble. Cuando se instalen dos o más tableros de medidores en el mismo edificio, los conductores de alimentación provenientes desde un transformador o banco de transformadores llegarán primero a un tablero de distribución general, que contendrá un disyuntor principal, barras de distribución y un disyuntor parcial de protección para cada uno de los alimentadores de los diferentes tableros de medidores. El tablero de distribución general deberá estar ubicado en un ambiente contiguo al cuarto de transformadores, con dimensiones apropiadas y con fácil acceso. Cuando se trate de un edificio con bancos de transformadores en diferentes pisos, se deberán instalar los tableros de medidores en cuartos exclusivos, en el mismo nivel, o en el nivel inmediato superior o inferior, y en general lo más cercano posible del cuarto de los transformadores que los alimentan. 12.11 Tubería de Entrada y Salida Las tuberías de entrada que se acoplen al tablero serán metálicas rígidas eléctricas, y deberán llevar sus respectivos accesorios como: coronas, contratuercas y uniones metálicas que permitan tener una buena continuidad eléctrica. Las tuberías de salida que se acoplen al tablero podrán ser metálicas rígidas eléctricas, EMT, PVC y deberán llevar sus respectivos accesorios como: coronas, contratuercas, conectores y uniones. 13. PUESTA A TIERRA 13.1 Generalidades Deberán conectarse a tierra los neutros de los transformadores o los bancos de transformadores cuando las conexiones del diseño así lo requieran. Los circuitos que deben tener conexión a tierra son los siguientes: Circuito monofásico de dos conductores para servicio a 120 voltios. Circuito monofásico de tres conductores para servicios de 120/240 y 120/208 voltios. Circuito trifásico de cuatro conductores conexión en estrella para servicios a 120/208 voltios.
  • 37.
    36 Circuito trifásico decuatro conductores conexión delta para servicios a 120/240 voltios. Asimismo, deberán conectarse a tierra los pararrayos, los tanques y gabinetes de transformadores, las tuberías metálicas de acometida, las cajas metálicas de derivación, los tableros de medidores, y en general todas las cubiertas metálicas que contengan equipos eléctricos. No deberá conectarse el sistema de puesta a tierra a tuberías que se utilizan para transportar gas o cualquier otro tipo de combustible. 13.2 Electrodos Los electrodos de puesta a tierra serán varillas de cobre o Cooperweld con las siguientes dimensiones mínimas, de 5/8” de diámetro y con una longitud de 6 pies. Ver figuras 14 y 15. 13.3 Conductores El conductor de puesta a tierra será de cobre, sólido o cableado, desnudo o aislado. Su sección mínima estará de acuerdo con la sección del conductor mayor de la acometida o alimentador en la siguiente relación: No. 8 AWG para conductor de acometida hasta No. 2 AWG. No. 6 AWG para conductor de acometida desde 1 AWG hasta 1/0 AWG. No. 4 AWG para conductores de acometida desde 2/0 AWG hasta 3/0 AWG. No. 2 AWG para conductor de acometida desde 4/0 AWG hasta 350 MCM. No. 1/0 AWG para conductor de acometida desde 400 MCM hasta 600 MCM. No. 2/0 AWG para conductor de acometida desde 650 MCM hasta 1,100 MCM. En inmuebles de interés social y viviendas suburbanas, la sección mínima del conductor de puesta a tierra será No. 8 AWG, cobre. 13.4 Trayectoria El conductor de puesta a tierra se podrá instalar directamente en paredes, estructuras o postes; si estuviera expuesto a daños mecánicos, se lo protegerá con un tubo metálico. Ver figuras 14, 15 y 16. 13.5 Conexión El conductor de puesta a tierra se conectará al electrodo utilizando abrazaderas, conectores o soldaduras exotérmicas. En los tableros de medidores, la conexión a tierra de la barra del
  • 38.
    37 neutro se harámediante terminales, que se utilizarán exclusivamente para este fin. Ver figuras 25, 26 y 27. 13.6 Resistencia La resistencia eléctrica del sistema de puesta a tierra deberá ser inferior a 20 ohmios para inmuebles con demandas de hasta 250 kVA y de 10 ohmios para inmuebles con demandas superiores a 250 kVA y menores a 1,000 kW; si fuera mayor, deberán utilizarse un sistema de puesta a tierra adecuado que permita cumplir con el valor indicado en el diseño. CUARTOS PARA TRANSFORMADORES 14.1 Requerimientos Si la demanda total de cualquier inmueble excede a 30 kW el proyectista, constructor o propietario habilitará un cuarto destinado a alojar exclusivamente un transformador o banco de transformadores particulares. También será responsable de proveer sus respectivos equipos de protección y accesorios. Por razones de seguridad, los cuartos de transformadores son de acceso restringido a personal calificado y no podrán ser utilizados para ningún otro fin que el de albergar a los transformadores. En caso de que se requiera como protección una celda de media tensión, ésta podrá ser ubicada en un ambiente adyacente, pero separado por una pared de mampostería, del cuarto de transformadores. Cuando sea necesario realizar trabajos de mantenimiento dentro del cuarto de transformadores, en el que se encuentren instalados equipos de medición y/o distribución de esta Empresa, el Ingeniero Eléctrico a cargo de dichos trabajos, deberá solicitar con al menos 48 horas de anticipación y por escrito al Departamento de Operación del Sistema la autorización correspondiente. En aquellas urbanizaciones cuyas redes de distribución hayan sido diseñadas para dar servicio en media tensión a inmuebles a construirse, El Distribuidor exigirá el suministro del transformador por parte del Consumidor, aún cuando su demanda sea menor a 30 kW. 14.2 Ubicación El cuarto de transformadores estará ubicado a nivel de la planta baja del inmueble, en un sitio con fácil y libre acceso desde la vía pública, de manera que permita al personal del Distribuidor realizar inspecciones o reparaciones de emergencia a los transformadores. Cuando por razones técnicas el cuarto de transformadores no pueda ubicarse a nivel de planta baja, éste podrá ser adecuado en el nivel inmediato superior y cumplirá con las disposiciones del párrafo anterior, en lo referente a su acceso. En los edificios donde se requiera la habilitación de más de un cuarto de transformadores, éstos deberán ubicarse de la siguiente manera: el cuarto eléctrico que aloja la protección principal del inmueble en la planta baja y los cuartos restantes de acuerdo a las necesidades eléctricas de la obra, previendo que todos tengan fácil y libre acceso a través de corredores,
  • 39.
    38 parqueos y sirvansólo para alojar a los transformadores de distribución, su equipo de protección y conductores de salida. En caso de que el cuarto de transformadores esté ubicado en áreas donde haya movimiento vehicular se deberá instalar una barrera de protección, cuyos detalles deberán ser aprobados por el Distribuidor. Por razones de seguridad, no se permitirá la ubicación total, ni parcial, de cuartos eléctricos o cuartos de transformadores sobre losas de cisternas, ni junto a depósitos de combustibles. 14.3 Características Constructivas El cuarto de transformadores será construido con paredes de hormigón o de mampostería y columnas de hormigón armado. Los cuartos, por razones de seguridad, deberán tener una losa superior de hormigón, ubicada a una altura libre mínima de 2.5 m. diseñada para soportar una carga máxima de acuerdo a su utilización. Ver figuras 28, 29 y 30. Para evitar la corrosión de la base de los transformadores, se deberá construir sobre el piso una base de hormigón de por lo menos 10cm. de espesor, diseñada para soportar los transformadores. El cuarto deberá tener ventilación adecuada para mantener en su interior una temperatura que no exceda de 40 C, disipando el calor del transformador a plena carga, sin ocasionar la disminución de la capacidad nominal del mismo. Las aberturas de ventilación deberán situarse en las paredes laterales, cerca del techo y estarán cubiertas de rejas permanentes, bloques ornamentales, o persianas resistentes colocadas de forma que sea imposible introducir objetos que alcancen o caigan sobre los transformadores. El área mínima, sumadas todas las aberturas de ventilación, será de 3 pulgadas cuadradas por cada kVA del transformador instalado. La puerta de entrada tendrá dimensiones mínimas de 2.00 metros de alto por 1.00 metro de ancho, construida en plancha metálica de 1/16” de espesor, con abatimiento hacia el exterior y con una resistencia al fuego de mínimo 3 horas, de acuerdo a lo que señala el numeral 450.43 del NEC (Código Eléctrico Nacional). Dicha puerta deberá contar con un dispositivo adecuado para la instalación de un sello de seguridad por parte del Distribuidor. Dentro del cuarto de transformadores y junto a su puerta de acceso se instalará un punto de luz (aplique) y un tomacorriente de 120 voltios, los cuales serán alimentados desde el panel de servicios generales. El área mínima, rectangular y libre de los cuartos de transformadores, será de acuerdo a la siguiente tabla: DIMENSIONES CAPACIDAD DEL CUARTO TRANSFORMADORES MONOFASICOS 2.0 x 2.0m Hasta 75 kVA
  • 40.
    39 (1 solo transformador monofásico) 2.0 x 2.5m 100 kVA (1 sólo transformador monofásico) 3.0 x 2.5m Hasta 150 kVA (Banco de 2 o 3 transformadores) 4.0 x 3.0m Hasta 300 kVA (Banco de 3 transformadores) 5.0 x 3.5m Hasta 750 kVA (Banco de 3 transformadores) 6.0 x 3.5m Hasta 1,000 kVA (Banco de 3 transformadores DIMENSIONES CAPACIDAD DEL CUARTO TRANSFORMADOR TRIFÁSICO 2.5 x 2.5m Hasta 100 kVA (1 sólo transformador Trifásico) 3.0 x 2.5m Hasta 150 kVA (1 sólo transformador Trifásico) 3.0 x 3.0m Hasta 300 kVA (1 sólo transformador Trifásico) 3.5 x 3.5m Hasta 750 kVA (1 sólo transformador Trifásico) 4.0 x 4.0m Hasta 1,000 kVA (1 sólo transformador Trifásico) Cuando el banco de transformadores tenga una capacidad mayor a 1,000 kVA y el Distribuidor decida suministrar servicio en media tensión, las dimensiones del cuarto serán previamente definidas por éste. 14.4 Mantenimiento Una vez suministrado el servicio definitivo, los cuartos de transformadores serán sellados por el Distribuidor en la puerta de ingreso a dicho cuarto. Cuando sea necesario realizar trabajos particulares de mantenimiento dentro de estos cuartos, con 48 horas de anticipación como mínimo, se deberá obtener la autorización del Distribuidor en el Departamento de Operación del Sistema. Concluidos los trabajos, el cliente informará al Distribuidor, para proceder a la reposición inmediata de los sellos de seguridad.
  • 41.
    40 14.5 Ductos de Entrada a Cuartos de Transformadores La canalización que ingresa a un cuarto de transformadores se construirá empleando ductos y codos de tubería metálica rígida, aprobada para uso eléctrico con un diámetro mínimo de 3” para sistemas monofásicos, y de 4” para sistemas trifásicos. El número de ductos dependerá de la infraestructura eléctrica del edificio y de la necesidad del Distribuidor para la creación de centros de carga en el sector. 14.6 Centros de Distribución de Carga Cuando luego del análisis técnico respectivo sea necesario crear un Centro de Distribución de Carga, para instalar equipos de media tensión en el edificio que solicite el suministro del servicio eléctrico, el Distribuidor exigirá la habilitación de un cuarto para su uso exclusivo, el mismo que estará ubicado a nivel de planta baja con facilidades de acceso desde la vía pública, cuyas dimensiones y número de ductos a incorporarse al diseño de la obra serán determinados por el Distribuidor. La construcción de los cuartos destinados para este fin y el suministro e instalación de los ductos correrá a cargo del dueño de la obra. Como caso excepcional el Distribuidor podrá compartir el Centro de Distribución de Carga con el cuarto de transformadores del edificio, pero las dimensiones del mismo serán determinadas por el Distribuidor. En los casos de los proyectos de la regeneración urbana de la ciudad de Guayaquil, debido a que las edificaciones existentes tienen una infraestructura antigua que dificulta obtener áreas adecuadas para cuartos de transformadores y centros de distribución de carga, se consideraran condiciones especiales. 15. TRANSFORMADORES El Distribuidor suministrará e instalará sus transformadores en su sistema de distribución, para Consumidores con una demanda de hasta 30 kW, siempre que no se encuentren ubicados en urbanizaciones o lotizaciones donde existan situaciones especiales como las mencionadas en el numeral 14.1. Si la demanda excede de 30 kW, el Consumidor suministrará e instalará sus propios transformadores dentro de un cuarto habilitado para el efecto, cuya capacidad, voltajes de primario, secundario y tipo de conexión se especificará en el diagrama unifilar del proyecto eléctrico que se presentará al Distribuidor para su aprobación. Si se prevé la instalación de un sólo transformador monofásico, éste será máximo de 100 kVA y podrá ser del tipo convencional o auto protegido; pero si se considera la instalación de un banco de transformadores, cada unidad monofásica que lo conforma será del tipo convencional y apropiado para ser utilizado en un sistema eléctrico de 13,800Y/7,977 voltios en el lado primario y 120/240 voltios en el lado secundario, con derivaciones de 2.5 % arriba y abajo de su voltaje nominal. En los casos cuando la conexión del banco de transformadores sea estrella aterrizada en el lado del secundario, la capacidad de los 3 transformadores será obligatoriamente la misma.
  • 42.
    41 Cuando se considereel uso de transformadores tipo Padmounted, deberá ubicárselo en un espacio comprendido entre la línea del cerramiento frontal y la línea de construcción del inmueble, con una separación mínima para operación de 1.5 m. desde la parte frontal del transformador y a 0.5m desde las partes lateral y posterior del transformador, respecto a las paredes más cercanas. En caso de que se instale el transformador en un área donde haya movimiento vehicular, se deberá colocar una barrera de protección, cuyos detalles deberán ser aprobados por el Distribuidor. Cuando no exista cerramiento frontal el transformador será instalado a una distancia mínima de 0.50m de la línea de fábrica. Los tableros de medidores, módulo con disyuntor principal, tableros de distribución, deberán instalarse a una separación mínima de 1.00 m respecto a las partes lateral y posterior del padmounted, a fin de contar con un área de trabajo adecuada frente a estos equipos. El transformador Padmounted se montará sobre una base de hormigón mínima de 15 cm. respecto al nivel del piso terminado; debajo del compartimiento de primario y secundario se construirá una caja de paso de hormigón, con una abertura que se ajuste a las dimensiones del mismo y de 80cm. de profundidad. En dicho compartimiento se acoplarán las tuberías de entrada de primario y de salida del secundario. Estas tuberías serán del tipo metálico rígido para uso eléctrico. Ver figura 31. Los transformadores Padmounted monofásicos tendrán un voltaje en el lado primario apropiados para ser utilizado en un sistema eléctrico de 13,800Y/7,977 voltios y en el lado secundario 120/240 voltios con derivaciones de 2.5 % arriba y abajo de su voltaje nominal. En los casos cuando se requiera instalar un transformador particular Padmounted para funcionar en un sistema de distribución eléctrico subterráneo tipo malla o anillo, el mismo deberá contar con dispositivos de seccionamiento en la entrada y salida del primario. Además dispondrá de una protección interior en el lado del primario con fusible tipo bay-o-net. En el interior del lado secundario del transformador no se requiere protección tipo breaker debido a que se instalará el disyuntor principal en el tablero de medidores o en un módulo metálico cercano. Cuando se trate de un servicio individual o de un controlador de edificio, el módulo para medición indirecta descrito en el numeral 11, se instalará en el lado exterior del cerramiento, en tanto que el módulo para el disyuntor general se instalará cerca del transformador, esto es, en el cerramiento lateral del inmueble o en el lado interior del cerramiento frontal. Los transformadores de corrientes TC serán ubicados en el interior del transformador padmounted fijados a los conductores de baja tensión mediante un sistema de pletinas y pernos de rosca corrida. Ver figura 31-A. Todos los transformadores monofásicos a instalarse cumplirán con la Norma Técnica Ecuatoriana INEN 2114:2004 y los transformadores trifásicos con la Norma Técnica Ecuatoriana INEN 2115:2004. Cuando la demanda sea mayor a 1.000 kW y el Distribuidor suministre el servicio a un nivel de tensión de 69 kV, el Consumidor instalará la subestación de reducción a esta tensión, cuyas características técnicas, detalles constructivos y de montaje serán puestos a consideración del Distribuidor para su análisis respectivo.
  • 43.
    42 15.1 Protección de Transformadores en Media Tensión 15.1.1 Cajas Fusibles Los transformadores de media tensión se instalarán con el equipo mínimo necesario para su protección y seccionamiento en el lado primario, consistente en una caja fusible de 100 amperios 15 kV y un pararrayo de 10 kV en cada una de las fases de alimentación, los cuales se instalarán en el poste de arranque si la red de distribución es aérea, y si la red es subterránea el alimentador arrancará desde un módulo “ropero” con fusibles tipo NX ubicado en el centro de carga del Distribuidor. En casos excepcionales cuando el alimentador subterráneo arranca desde un módulo de pared pre-moldeado, particularmente el usuario instalará en el interior del cuarto de transformadores un juego de cajas portafusibles que permita el uso de fusibles silenciosos similares al tipo NXD marca Cooper. El equipo de protección será suministrado por el Consumidor, previa aprobación del Distribuidor. 15.1.2 Celdas de Media Tensión a) Si se considera la instalación de un transformador trifásico o banco de transformadores, cuya capacidad de transformación sea mayor a 500 kVA, se deberá prever la instalación, de un interruptor automático para operación con carga o un seccionador fusible para operación simultánea de las tres fases bajo carga. Este equipo será suministrado por el Consumidor, previa aprobación del Distribuidor. Su ubicación podrá ser en un ambiente adyacente del cuarto de transformadores pero separado por una pared de mampostería. b) Si se considera la instalación de más de un banco de transformadores para el edificio o industria, se deberá instalar un interruptor automático principal para operación con carga o seccionadores fusibles para accionamiento simultáneo de las tres fases bajo carga, un juego de barras de alimentación en media tensión y como protección individual para cada transformador, un interruptor automático o seccionadores fusibles similares al principal. 16. ACOMETIDA EN MEDIA TENSIÓN El transformador será conectado al sistema de distribución mediante líneas de acometida suministradas e instaladas por el Distribuidor. El Consumidor deberá instalar toda la tubería que se requiera y adecuar las obras civiles por su propia cuenta. 16.1 Acometidas Aéreas Sólo se aceptarán acometidas aéreas en media tensión, en aquellos sectores donde las calles no estén pavimentadas o existan en ellas zanjas para drenajes y las aceras no hayan sido construidas. Cuando se instale este tipo de acometida se deberá utilizar un cable tensor acerado de 3/8” de diámetro como mensajero, el mismo que se fijará a un poste de hormigón junto al cuarto de transformación o en la fachada del inmueble.
  • 44.
    43 Para la entradade los conductores de acometida se utilizará tubería metálica rígida para uso eléctrico de 3” de diámetro en acometidas con dos conductores (incluyendo el neutro) y de 4” de diámetro en acometidas de más de dos conductores. El extremo de la tubería de entrada de acometida estará ubicado del lado del poste de distribución más cercano al inmueble y rematará con el respectivo reversible. Las acometidas aéreas que cruzan la calzada tendrán una altura mínima de 6m. Ver figura 33- A 16.2 Acometidas Subterráneas Una acometida en media tensión normalmente será subterránea y cumplirá con las características del numeral anterior en lo referente a la tubería de entrada de los conductores de acometida. Ver figura 33. 16.3 Características de las Canalizaciones Las canalizaciones subterráneas requieren, previo a iniciar el proceso de excavación, la autorización del Distribuidor, Municipalidad y otras empresas de servicios básicos, la misma que deberá ser solicitada con una anticipación de al menos 72 horas. Las canalizaciones en aceras y cruces de calles estarán conformadas mínimos por 2 ductos de 110mm. (4”) de diámetro cada uno, de material PVC para uso eléctrico y que cumpla con las Normas INEN 1869 y 2227; sin embargo, en los lugares donde el Distribuidor por razones técnicas lo requiera, podrá exigir un número mayor de ductos. Por seguridad y por tratarse de alimentadores de media tensión (13.8 kV) se instalarán con recubrimiento de hormigón de acuerdo al figura 34. La canalización de entrada de acometida en media tensión que se instale junto al poste y las que ingresan al cuarto de transformadores se construirán utilizando tubería metálica rígida aprobada para uso eléctrico. Similares características tendrán las canalizaciones que se deriven desde el cuarto eléctrico que contiene la protección principal del inmueble a los diferentes cuartos de transformadores del mismo. En inmuebles o centros comerciales donde se requiera alimentar a cuartos de transformación en forma subterránea por aceras dentro del predio y sea necesaria la utilización de varias cajas de paso, estas podrán ser unidas con ductos PVC de presión con recubrimiento de hormigón. 16.3.1 Trayectoria La trayectoria de la canalización estará conformada por tramos rectos, debiéndose prever la construcción de cajas de paso en los puntos donde se cambie de dirección, se intercepte la canalización existente y al pie del poste donde el primario subterráneo o acometida se incorpore a la red aérea del sistema. La longitud máxima entre cajas de paso será de 30m. 16.3.2 Cajas de paso Las cajas de paso o revisión se construirán de hormigón simple o de hormigón armado con varillas de hierro negro de 3/8” espaciadas 15cm. en ambos sentidos de acuerdo a su ubicación, ya sea en la acera o en la calle respectivamente. Las dimensiones interiores de la caja no podrán ser menores a 80x80x80cm.
  • 45.
    44 Aquellas cajas quese construyan en las aceras para el cruce de calles deberán dimensionarse con una profundidad de 100cm. Las cajas en sistemas de media tensión tendrán dimensiones de 160x80x100cm., con tapa doble, cuando el calibre del alimentador sea igual o mayor a 2/0 AWG y cambie de dirección su recorrido. Las tapas de las cajas de paso se construirán de hormigón armado, en las aceras con ángulo de 2”x ¼”reforzado con varilla de hierro negro de ½” espaciadas cada 15cm en ambos sentidos y en la calle con ángulo de 5”x ¼” reforzado con varilla de hierro negro de ½”espaciadas cada 15cm en ambos sentidos. Dichas tapas estarán provistas de dos agarraderas que permitan su remoción. Ver figura 34-A. Como alternativa se podrán construir cajas y tapas de resistencia igual o superior a las descritas anteriormente. 16.3.3 Zanjas La excavación de la zanja para la canalización tendrá una profundidad de por lo menos 50cm. por debajo de la del banco de ductos requeridos, en cruce de calle y de 30cm. en aceras, con una amplitud de 15cm. a cada lado del referido banco. El relleno en su parte inferior se realizará con material pétreo, compactándolo y nivelándolo en capas de 10cm. Ver figura 34. 16.3.4 Disposición de Ductos La tubería se colocará en la zanja con una separación de 10cm. entre tubos, en sentido vertical y 5cm. en sentido horizontal. En caso de requerirse uno o dos ductos, se mantendrá la disposición del nivel inferior. Ver figura 34. 16.3.5 Recubrimientos El espesor de las capas de hormigón, medido desde el nivel superior de la calle o acera hasta la cara superior del primer nivel de tubos, no será menor a 25cm y 15cm. respectivamente. El espesor de las capas de hormigón medido desde la cara inferior del tubo más profundo hasta la superficie del terreno compactado no será inferior a 10cm. en ambos casos, y cuando el terreno sea demasiado flojo (fangoso) deberá colocarse en la parte superior de los ductos una malla de armadura metálica con varillas de hierro corrugado de 3/8” y resistencia a la tracción de 1,200 kg/cm², espaciadas cada 15 cm en ambos sentidos. El hormigón a emplearse tendrá una resistencia a la compresión simple de f’c=210 kg/cm² a los 28 días en las aceras y de f’c=240 kg/cm² a los 28 días en las calles. 17. CONSIDERACIONES ADICIONALES 17.1 Generadores de Emergencia Ninguna fuente de electricidad debe ser conectada a las instalaciones del Consumidor sin el respectivo equipo de transferencia manual o automático, de tal forma que evite la realimentación al sistema de distribución de la Empresa. En caso de requerirse la instalación de equipos de generación, se necesita la aprobación previa por parte del Distribuidor. Estos equipos no podrán estar ubicados dentro del cuarto de transformadores del inmueble.
  • 46.
    45 La energía provenientedesde el sistema de emergencia en ningún caso deberá ser registrada por el medidor del usuario otorgado por el Distribuidor. 17.2 Factor de Potencia El factor de potencia acumulado mensual del sistema eléctrico integral del Consumidor deberá tener un valor no menor al establecido en el Reglamento de Suministro del Servicio de Electricidad cuyo valor actual es 0.92 en retraso, caso contrario el Distribuidor, a más de incluir en las facturas del Consumidor los recargos por consumo de energía reactiva señalados en el Reglamento de Tarifas, le notificará tal condición. Cuando el Consumidor requiera instalar capacitores con el propósito de corregir el factor de potencia, estos no podrán estar ubicados dentro del cuarto de transformación. 17.3 Motores y Artefactos Los motores monofásicos de más de 1 hp y los artefactos con una demanda igual o superior a 3 kW, serán necesariamente alimentados a una tensión nominal de 208 voltios o superior, y los motores de potencia mayor a 5 hp serán obligatoriamente trifásicos. Los motores monofásicos de menos de 1 hp que tengan la dualidad para funcionar con voltajes a 120 ó 240V deberán ser conectados a 240V. Los motores de más de 5 hp deberán operar de tal forma que su corriente de arranque no exceda al triplo de la nominal a plena carga, o estar provista de un arrancador para conseguir el mismo fin. Donde se utilicen motores, la capacidad del disyuntor principal estará dada por la corriente de régimen o de disparo del dispositivo protector de la derivación del motor de mayor potencia, más la suma de las corrientes a plena carga de los demás motores y otros artefactos eléctricos. Todo motor deberá tener una placa de características en la que se indique el nombre del fabricante, el número de fases, la clase de corriente, la potencia, la velocidad, la tensión, la corriente a plena carga y la frecuencia nominal. 17.4 Cargas Fluctuantes Soldadoras, aparatos de rayos X, hornos de arco, compresores, transmisores de radio y otros equipos que originen distorsiones armónicas y consumos intermitentes de energía, serán sujetos a consideración individual para determinar el tipo de servicio que será suministrado por la Empresa, antes de su instalación. El Distribuidor podrá suspender el servicio a los Consumidores cuyas instalaciones produzcan perturbaciones en el sistema de distribución que excedan los límites legalmente permitidos, hasta que se eliminen las causas de dichas perturbaciones.
  • 47.
    46 Dependiendo de lacapacidad y características de la carga fluctuante, la Empresa podrá exigir la instalación de un transformador, filtros de armónicas y equipos exclusivos para su alimentación, a costo del cliente. 17.5 Computadoras y otros Equipos Electrónicos Sensibles En caso de producirse fluctuaciones menores de voltaje y desconexiones momentáneas del servicio, que pueden afectar el funcionamiento de equipos sensibles, será necesaria la instalación de equipos particulares adicionales para una operación satisfactoria. 17.6 Rótulos y Anuncios Publicitarios Las distancias de seguridad entre los rótulos y anuncios publicitarios respecto a las redes aéreas eléctricas del Distribuidor serán de acuerdo a la Regulación CONELEC – 002/10. 17.7 Protección para Motores Polifásicos Se recomienda que todos los motores polifásicos estén debidamente protegidos con un dispositivo automático o un medio de desconexión, que impida el funcionamiento monofásico, la inversión de fases y a bajo voltaje del mismo, para prevenir los daños que puedan resultar en los motores. Esta es una protección adicional de los elementos protectores contra sobrecarga o sobrecorriente. 17.8 Distancias de Seguridad Las mínimas distancias de seguridad entre las fachadas de los edificios, otras instalaciones y las redes aéreas eléctricas de la Distribuidora serán de acuerdo a la Regulación CONELEC 002/10: Las distancias verticales y horizontales, para conductores desnudos en reposo (sin desplazamiento del viento), se muestra en la Tabla siguiente.
  • 48.
    47 Tabla Distancias mínimas de seguridad de conductores a edificaciones y otras instalaciones. Distancias en metros Partes Rígidas Partes Rígidas Energizadas DISTANCIAS MINIMAS DE SEGURIDAD Hr Conductores Energizadas Conductores No protegidas 750 V-22 kV. No protegidas 0 a 750 V. de 750V-22kV, de 0 V-750 V. m m m M Horizontal a paredes, ventanas y áreas 1.7(A, B) 2.3 (A, B) 1.5 (A) 2.0 (A) accesibles a personas Vertical arriba o abajo de techos y áreas no 3.2 3.8 3.0 3.6 accesibles a personas Edificios Vertical arriba o abajo de techos y áreas accesibles a 3.5 4.1 3.4 4.0 personas y vehículos, además de vehículos pesados. Vertical arriba de techos accesibles al tránsito de vehículos 5.0 5.6 4.9 5.5 pesados. Horizontal 1.7 (A,,B) 2.3 (A,,C) 1.5 (A) 2.0 (A) Vertical arriba o abajo Anuncios, chimeneas de cornisas y otras superficies sobre las 3.5 4.1 3.4 4.0 cuales pueden caminar personas Vertical arriba o abajo de otras partes de 1.8 (A) 2.3 1.7 2.45 tales instalaciones Para los casos siguientes, se podrán aceptar las distancias que se señala: 1 Las distancias se aplican bajo las siguientes condiciones: Para tensiones entre superiores a 22 kV hasta 470 kV , la distancia de los conductores especificada en la Tabla de arriba, deberá incrementarse 0.01 m por cada kV en exceso de 22 kV; es decir: D = Dtabla + (0.01*(V-22)) Para tensiones mayores de 50 kV, la distancia adicional del inciso anterior deberá aumentarse (3%) por cada 300 m de altura, a partir de los 1,000 m sobre el nivel del mar; es decir: D = Dtabla + (0.01*(V-22))*1.0n , con n=3 para 1,300, n=6 para 1,600… En los circuitos de corriente continua, se deben aplicar las mismas distancias establecidas para los circuitos de corriente alterna, tomando como referencia e éstos los voltajes nominales máximos entre la fase y el neutro. Transición entre distancia horizontal y vertical: La distancia de seguridad horizontal (H) predomina, sobre el nivel del techo o el punto superior de una instalación al punto donde la diagonal se iguala a los requerimientos de distancia de seguridad vertical (V). De forma similar, la distancia de seguridad horizontal predomina por encima o por debajo de las proyecciones de los edificios, anuncios u otras instalaciones al punto donde la diagonal se iguala a los requerimientos de la distancia de seguridad vertical. De este punto la distancia de seguridad de transición debe ser igual a la distancia de seguridad vertical, como se ilustra en la figura A.
  • 49.
    48 Figura A Transición entre distancia Horizontal H y Vertical V Figura B Distancias de Seguridad a Edificaciones Donde: HR.- Distancia Mínima de seguridad horizontal requerida cuando el conductor esta en reposo. HW.- Distancia Mínima de seguridad horizontal requerida cuando el conductor es desplazado, hacia la edificación, por el viento.
  • 50.
    49 ANEXO 1 PROCEDIMIENTO PARA APROBACIÓN DE PROYECTOS ELÉCTRICOS El Ing. Eléctrico responsable deberá solicitar por escrito a la Sección de Servicio al Cliente la aprobación del proyecto Eléctrico, para lo cual adjuntará mínimo 3 juegos completos del mismo, debidamente sellados y firmados. Además indicará en la solicitud, el número del Código Catastral Municipal del Solar donde se construirá el inmueble. El proyecto eléctrico presentado en la Sección de Servicio al Cliente será remitido para su revisión y aprobación a la Sección Diseño cuando la demanda total sea menor o igual a 30 kW, a la Sección Diseño y Presupuesto área de Consultas y Proyectos cuando la demanda total sea mayor a 30 kW y menor o igual a 1,000 kW y a la Sección Estudios Eléctricos cuando la demanda total sea mayor a 1,000 kW. El proyecto eléctrico para demandas totales hasta 1,000 kW contendrá lo siguiente: Ubicación Geográfica del inmueble. Plano de implantación general de la obra, incluyendo ubicación del o los cuartos para transformadores y recorrido de las canalizaciones para los alimentadores de media y baja tensión. Diagrama unifilar general que contendrá la acometida principal, transformadores, tableros de medidores, alimentadores en baja tensión y paneles de distribución. Para obras de más de un piso, incluir el diagrama unifilar general en alzado que contendrá la acometida principal, transformadores, tableros de medidores, alimentadores en baja tensión y paneles de distribución. Planillas de paneles y circuitos derivados. Detalles de los cuartos de transformadores. Detalles de los cuartos de generadores de emergencia. Detalle de conexión y capacidad de los transformadores. Especificaciones técnicas del generador de emergencia. Detalles de ubicación, diseño y montaje de los tableros de medidores. Estudio de las demandas parciales por panel de distribución, por usuario y de la demanda total del proyecto. Memoria Técnica descriptiva del proyecto, incluyendo las características técnicas de los equipos eléctricos a instalarse. Cualquier otra información que el Distribuidor considere conveniente. Aprobado el proyecto, se devolverán al cliente un informe técnico con dos juegos completos con los respectivos sellos de aprobación. La aprobación otorgada por el Distribuidor mantendrá su vigencia de hasta dos años, siempre y cuando no se modifiquen las características del mismo o la reglamentación que sirvió para su aprobación. Vencido este plazo, deberá ser actualizado. Si por motivos de construcción fuera necesario modificar el proyecto, el mismo deberá ser actualizado y presentado al Distribuidor para su nueva aprobación.
  • 51.
    50 TABLA 1 Tabla 310-16. Intensidad máxima permanente admisible de conductores aislados para 0 a 2,000 Voltios nominales y 60 C a 90 C (140 F a 194 F) No más de tres conductores en tensión en una canalización, cable o tierra (directamente enterrados), para temperatura de ambiente de 30 C (86F) Sección Temperatura nominal del conductor (véase Cuadro 310-13) Sección 60 C 75 C 90 C 60 C 75 C 90 C (140 F) (167 F) (194 F) (140 F) (167 F) (194 F) Tipos Tipos Tipos Tipos Tipos Tipos TW* FEPW*RH*, TBS,SA, TW* RH*, TBS,SA, UF* RHW*, SIS, FEP* UF* RHW*, SIS, THHW* FEPB*,NI THHW* THHN*, THW*, RHH*, THW*, THHW*, THWN*, RHW-2, THWN*, THW-2*, AWG/ AWG/ XHHW*, THHN*, XHHW*, THWN-2* MCM MCM USE*, THHW*, USE* RHH*, ZW* THW-2*, RHW-2 THWN-2* USE-2,XHH, USE-2, XHH, XHHW* XHHW* XHHW-2, XHHW-2, ZW-2 ZW-2 Cobre Aluminio o Aluminio recubierto de cobre 18 ... ... 14 ... ... ... ... 16 ... ... 18 ... ... ... ... 14 20* 20* 25 ... ... ... ... 12 25* 25* 30* 20* 20* 25* 12 10 30 35* 40* 25 30* 35* 10 8 40 50 55 30 40 45 8 6 55 65 75 40 50 60 6 4 70 85 95 55 65 75 4 3 85 100 110 65 75 85 3 2 95 115 130 75 90 100 2 1 110 130 150 85 100 115 1 1/0 125 150 170 100 120 135 1/0 2/0 145 175 195 115 135 150 2/0 3/0 165 200 225 130 155 175 3/0 4/0 195 230 260 150 180 205 4/0 250 215 255 290 170 205 230 250 300 240 285 320 190 230 255 300 350 260 310 350 210 250 280 350 400 280 335 380 225 270 305 400 500 320 380 430 260 310 350 500 600 355 420 475 285 340 385 600 700 385 460 520 310 375 420 700 750 400 475 535 320 385 435 750 800 410 490 555 330 395 450 800 900 435 520 585 355 425 480 900 1000 455 5454 615 375 445 500 1000 1250 495 590 665 405 485 545 1250 1500 520 625 705 435 520 585 1500 1750 545 650 735 455 545 615 1750 2000 560 665 750 470 560 630 2000 FACTORES DE CORRECCION Temperatura Temperatura Ambiente Para temperaturas ambientes distintas de 30 C (86 F), multiplicar las anteriores Ambiente en C intensidades por el correspondiente factor de los siguientes en F 21-25 1.08 1.05 1.04 1.08 1.05 1.04 70-77 26-30 1.00 1.00 1.00 1.00 1.00 1.00 78-86 31-35 0.91 0.94 0.96 0.91 0.94 0.96 87-95 36-40 0.82 0.88 0.91 0.82 0.88 0.91 96-104 41-45 0.71 0.82 0.87 0.71 0.82 0.87 105-113 46-50 0.58 0.75 0.82 0.58 0.75 0.82 114-122 51-55 0.41 0.67 0.76 0.41 0.67 0.76 123-131 56-60 ... 0.58 0.71 ... 0.58 0.71 132-140 61-70 ... 0.33 0.58 ... 0.35 0.58 141-158 71-80 ... .... 0.41 ... ... 0.41 159-176 * Si no se permite otra cosa específicamente en otro lugar de este Código, la protección contra sobreintensidad de los conductores marcados con un asterisco (*), no debe superar los 15 Amperios para el número 14; 20 Amperios para el número 12 y 30 Amperios para el número 10, todos de cobre; o 15 Amperios para el número 12 y 25 Amperios para el número 10 de aluminio y aluminio recubierto de cobre, una vez aplicados todos los factores de corrección por la temperatura ambiente y el número de conductores.
  • 52.
    51 TABLA 2 Tabla C8. Número máximo de conductores y cables de aparatos en ductos metálicos rígidos (según la Tabla 1, Capítulo 9) Calibre del SECCIÓN COMERCIAL EN PULGADAS Letras conductor tipo AWG/ ½ ¾ 1 11/4 11/2 2 21/2 3 31/2 4 5 6 MCM TW 14 9 15 25 44 59 98 140 216 288 370 581 839 12 7 12 19 33 45 75 107 165 221 284 446 644 10 5 9 14 25 34 56 80 123 164 212 332 480 8 3 5 8 14 19 31 44 68 91 118 185 267 RHH*, RHW *, 14 6 10 17 29 39 65 93 143 191 246 387 558 RHW-2, THHW THW, THW-2 12 5 8 13 23 32 52 75 115 154 198 311 448 RHH*, RHW*, 10 3 6 10 18 25 41 58 90 120 154 242 350 RHW-2*, THHW, THW RHH*, RHW*, 8 1 4 6 11 15 24 35 54 72 92 145 209 RHW-2*, 6 1 3 5 8 11 18 27 41 55 71 111 160 THHW, THW, 4 1 1 3 6 8 14 20 31 41 53 83 120 THW-2, 3 1 1 3 5 7 12 17 26 35 45 71 103 RHH*, 2 1 1 2 4 6 10 14 22 30 38 60 87 RHW*, 1 1 1 1 3 4 7 10 15 21 27 42 61 RHW-2*, 1/0 1 1 2 3 6 8 13 18 23 36 52 TW, THW, 2/0 1 1 2 3 5 7 11 15 19 31 44 THHW, 3/0 1 1 1 2 4 6 9 13 16 26 37 THW-2 4/0 1 1 1 3 5 8 10 14 21 31 250 1 1 1 3 4 6 8 11 17 25 300 1 1 1 2 3 5 7 9 15 22 350 1 1 1 3 5 6 8 13 19 400 1 1 1 3 4 6 7 12 17 500 1 1 1 2 3 5 6 10 14 600 1 1 1 1 3 4 5 8 12 700 1 1 1 2 3 4 7 10 750 1 1 1 2 3 4 7 10 800 1 1 1 2 3 4 6 9 900 1 1 1 1 3 4 6 8 1.000 1 1 1 2 3 5 8 1.250 1 1 1 1 2 4 6 1.500 1 1 1 1 2 3 5 1.750 1 1 1 1 3 4 2.000 1 1 1 1 3 4 * Los cables RHH, RHW y RHW-2, sin recubrimiento externo.
  • 53.
    52 TABLA 3 Tabla C8. (Continuación) Número máximo de conductores y cables de aparatos en ductos metálicos rígidos (según la Tabla 1, Capítulo 9) Calibre del SECCIÓN COMERCIAL EN PULGADAS Letras conductor tipo AWG/ MCM ½ ¾ 1 11/4 11/2 2 21/2 3 31/2 4 5 6 THHN, 14 13 22 36 63 85 140 200 309 412 531 833 1.202 THWN, 12 9 16 26 46 62 102 146 225 301 387 608 877 THWN-2 10 6 10 17 29 39 64 92 142 189 244 383 552 8 3 6 9 16 22 37 53 82 109 140 221 318 6 2 4 7 12 16 27 38 59 79 101 159 230 4 1 2 4 7 10 17 23 36 48 62 98 141 3 1 1 3 6 8 14 20 31 41 53 83 120 2 1 1 3 5 7 11 17 26 34 44 70 100 1 1 1 1 4 5 8 12 19 25 33 51 74 1/0 1 1 1 3 4 7 10 16 21 27 43 63 2/0 1 1 2 3 6 8 13 18 23 36 52 3/0 1 1 1 3 5 7 11 15 19 30 43 4/0 1 1 1 2 4 6 9 12 16 25 36 250 1 1 1 3 5 7 10 13 20 29 300 1 1 1 3 4 6 8 11 17 25 350 1 1 1 2 3 5 7 10 15 22 400 1 1 1 2 3 5 7 8 13 20 500 1 1 1 2 4 5 7 11 16 600 1 1 1 1 3 4 6 9 13 700 1 1 1 1 3 4 5 8 11 750 1 1 1 3 4 5 7 11 800 1 1 1 2 3 4 7 10 900 1 1 1 2 3 4 6 9 1.000 1 1 1 1 3 4 6 8 FEP, 14 12 22 35 61 83 136 194 300 400 515 808 1.166 FEPB, 12 9 16 26 44 60 99 142 219 292 376 590 851 PFA, 10 6 11 18 32 43 71 102 157 209 269 423 610 PFAH, 8 3 6 10 18 25 41 58 90 120 154 242 350 TFE 6 2 4 7 13 17 29 41 64 85 110 172 249 4 1 3 5 9 12 20 29 44 59 77 120 174 3 1 2 4 7 10 17 24 37 50 64 100 145 2 1 1 3 6 8 14 20 31 41 53 83 120 PFA, PFAH, TFE 1 1 1 2 4 6 9 14 21 28 37 57 83
  • 54.
    53 TABLA 4 Tabla 430-147 Intensidad a plena carga de los motores de corriente continua en Amperios. Los siguientes valores de intensidad a plena carga* son para motores que giran a la velocidad mínima. Tensión nominal en el inducido* HP 90 Voltios 120 Voltios 180 Voltios 240 Voltios 500 Voltios 550 Voltios 1/4 4.0 3.1 2.0 1.6 1/3 5.2 4.1 2.6 2.0 1/2 6.8 5.4 3.4 2.7 3/4 9.6 7.6 4.8 3.8 1 12.2 9.5 6.1 4.7 11/2 13.2 8.3 6.6 2 17 10.8 8.5 3 25 16 12.2 5 40 27 20 71/2 58 29 13.6 12.2 10 76 38 18 16 15 55 27 24 20 72 34 31 25 89 43 38 30 106 51 46 40 140 67 61 50 173 83 75 60 206 99 90 75 255 123 111 100 341 164 148 125 425 205 185 150 506 256 222 200 675 330 294 * Estos valores son promedios para corriente continua
  • 55.
    54 TABLA 5 Tabla 430-148. Intensidad a plena carga (en amperios), motores monofásicos de corriente alterna Los siguientes valores de intensidad a plena carga corresponden a motores que funcionan a velocidad normal y con par normal. Los motores construidos especialmente para baja velocidad o alto par pueden tener intensidades mayores. Los motores de varias velocidades tendrán intensidades que variarán con la velocidad, en cuyo caso se deberán utilizar las intensidades nominales que indique su placa de características. Las tensiones son las nominales de los motores. Las intensidades son las permitidas para instalaciones a 110-220 voltios y 220-240 voltios. HP 115 voltios 200 voltios 208 voltios 230 voltios 1/6 4.4 2.5 2.4 2.2 1/4 5.8 3.3 3.2 2.9 1/3 7.2 4.1 4.0 3.6 1/2 9.8 5.6 5.4 4.9 3/4 13.8 7.9 7.6 6.9 1 16 9.2 8.8 8 11/2 20 11.5 11 10 2 24 13.8 13.2 12 3 34 19.6 18.7 17 5 56 32.2 30.8 28 7 1/2 80 46 44 40 10 100 57.5 55 50
  • 56.
    55 TABLA 6 Tabla 430-150. Intensidad a plena carga de motores trifásicos de corriente alterna Los siguientes valores de intensidad a plena carga corresponden a motores que funcionan a las velocidades normales de motores con correas y a motores con par normal. Los motores construidos especialmente para baja velocidad (1.200 rpm o menos) o alto par, pueden necesitar intensidades de funcionamiento mayores. Los motores de varias velocidades tendrán intensidades que variarán con la velocidad, en cuyo caso se deberán utilizar las intensidades nominales que indique su placa de características. Las tensiones son las nominales de los motores. Las intensidades son las permitidas para instalaciones a 110-120 Voltios, 220-240 Voltios, 440-480 Voltios y 550-600 Voltios. Factor de potencia unitario* Motores de inducción de jaula de ardilla para motores de tipo y rotor bobinado (Amperios) síncrono (Amperios) 115 200 208 230 460 575 2300 230 460 575 2300 HP Voltios Voltios Voltios Voltios Voltios Voltios Voltios Voltios Voltios Voltios Voltios 1/2 4.4 2.5 2.4 2.2 1.1 0.9 3/4 6.4 3.7 3.5 3.2 1.6 1.3 1 8.4 4.8 4.6 4.2 2.1 1.7 1 1/2 12.0 6.9 6.6 6.0 3.0 2.4 2 13.6 7.8 7.5 6.8 3.4 2.7 3 11.0 10.6 9.6 4.8 3.9 5 17.5 16.7 15.2 7.6 6.1 7.5 25.3 24.2 22 11 9 10 32.2 30.8 28 14 11 15 48.3 46.2 42 21 17 20 62.1 59.4 54 27 22 25 78.2 74.8 68 34 27 53 26 21 30 92 88 80 40 32 63 32 26 40 120 114 104 52 41 83 41 33 50 15 143 130 65 52 104 52 42 60 177 169 154 77 62 16 123 61 49 12 75 221 211 192 96 77 20 155 78 62 15 100 285 273 248 124 99 26 202 101 81 20 125 359 343 312 156 125 31 253 126 101 25 150 414 396 360 180 144 37 302 151 121 30 200 552 528 480 240 192 49 400 201 161 40 250 302 242 60 300 361 289 72 350 414 336 83 400 477 382 95 450 515 412 103 500 590 472 118 * Para factores de potencia del 90 y el 80 por 100, las cifras anteriores se deben multiplicar respectivamente por 1.1 y 1.25.
  • 57.
    56 TABLA 7 Tabla 250-95. Sección mínima de los conductores de tierra de equipos para canalizaciones y equipos Sección Intensidad o posición máxima del dispositivo automático de protección contra sobreintensidad en el circuito antes de los equipos, conductores, Cable de aluminio Cable de cobre o de aluminio etc. (Amperios) n. AWG/MCM revestido de cobre* n. AWG/MCM 15 14 12 20 12 10 30 10 8 40 10 8 60 10 8 100 8 6 200 6 4 300 4 2 400 3 1 500 2 1/0 600 1 2/0 800 1/0 1/0 1,000 2/0 4/0 1,200 3/0 250 MCM 1,600 4/0 350 MCM 2,000 250 MCM 400 MCM 2,500 350 MCM 600 MCM 3,000 400 MCM 600 MCM 4,000 500 MCM 800 MCM 5,000 700 MCM 1,200 MCM 6,000 800 MCM 1,200 MCM Véase limitaciones a la instalación en la Sección 250-92(a). Nota: Para cumplir con lo establecido en la Sección 250-51, los conductores de tierra de los equipos podrían ser de mayor sección que lo especificado en este cuadro.
  • 58.
    57 TABLA 8 Tabla 430-151A. Tabla de conversión de intensidades de motores monofásicos con rotor frenado para elegir el medio de desconexión y los controladores, según la potencia en hp y la tensión nominal Intensidad máxima de motores monofásicos con rotor frenado hp nominales (Amperios) 115 Voltios 208 Voltios 230 Voltios ½ 58.5 32.5 29.4 ¾ 82.8 45.8 41.4 1 96 53 48 11/2 120 66 60 2 144 80 72 3 204 113 102 5 336 186 168 71/2 480 265 240 10 600 352 300
  • 59.
    58 TABLA 9 Tabla 430-151B. Tabla de conversión de motores polifásicos De tipo B, C, D y E para elegir el medio de desconexión y los controladores, según la potencia en hp y la tensión nominal y la letra tipo Para usar sólo con las secciones 430-110, 440-12, 440-41 y 455-8(c). Intensidad máxima del motor con rotor frenado (Amperios) hp Motores bifásicos y trifásicos de tipo B, C, D y E nominales 115 Voltios 200 Voltios 208 Voltios 230 Voltios 460 Voltios 575 Voltios B, C, D E B, C, D E B, C, D E B, C, D E B, C, D E B, C, D E ½ 40 40 23 23 22.1 22.1 20 20 10 10 8 8 ¾ 50 50 28.8 28.8 27.6 27.6 25 25 12.5 12,5 10 10 1 60 60 34.5 34.5 33 33 30 30 15 15 12 12 11/2 80 80 46 46 44 44 40 40 20 20 16 16 2 100 100 57.5 57.5 55 55 50 50 25 25 20 20 3 73.6 84 71 81 64 73 32 36.5 25.6 29.2 5 105.8 140 102 135 92 122 46 61 36.8 48.8 71/2 146 210 140 202 127 183 63.5 91.5 50.8 73.2 10 186.3 259 179 249 162 225 81 113 64.8 90 15 267 388 257 373 232 337 116 169 93 135 20 334 516 321 497 290 449 145 225 116 180 25 420 646 404 621 365 562 183 281 146 225 30 500 775 481 745 435 674 218 337 174 270 40 667 948 641 911 580 824 290 412 232 330 50 834 1,185 802 1,139 725 1,030 363 515 290 412 60 1,001 1,421 962 1.367 870 1,236 435 618 348 494 75 1,248 1,777 1,200 1,708 1,085 1,545 543 773 434 618 100 1,668 2,154 1,603 2,071 1,450 1,873 725 937 580 749 125 2,087 2,692 2,007 2,589 1,815 2,341 908 1,171 726 936 150 2,496 3,230 2,400 3,106 2,170 2,809 1,085 1,405 868 1,124 200 3,335 4,307 3,207 4,141 2,900 3,745 1,450 1,873 1,160 1,498 250 1,825 2,344 1,460 1,875 300 2,200 2,809 1,760 2,247 350 2,550 3,277 2,040 2,622 400 2,900 3,745 2,320 2,996 450 3,250 4,214 2,600 3,371 500 3,625 4,682 2,900 3,746
  • 60.
    59 TABLA 10 Tabla 430-152. Intensidad máxima admisible o de disparo de los dispositivos de protección de los circuitos derivados de motores contra cortocircuitos y fallas a tierra Intensidad máxima de motores monofásicos con rotor frenado (Amperios) Tipo de motor Fusible Interruptor Interruptor Fusible con retardo automático automático sin de dos de disparo de tiempo retardo** componentes instantáneo Inverso* Monofásico 300 175 800 250 Polifásico de c.a. sin rotor Bobinado De jaula de ardilla: Todos menos los de tipo E 300 175 800 250 Los de tipo E 300 175 1.100 250 # Síncronos 300 175 800 250 Con rotor bobinado 150 150 800 150 De c.a. (Tensión constante) 150 150 250 150 Para las excepciones a los valores especificados, véanse las Secciones 430-52 a 430-54. * Los valores de la última columna también cubren las intensidades de los interruptores automáticos de tipo inverso y no ajustables, que pueden estar modificados en la Sección 430-52. ** Los valores de esta columna son para fusibles de Clase CC con retardo. # Los motores síncronos de bajo par y baja velocidad (450 rpm o menos, normalmente), como los utilizados con compresores alternativos, bombas, etc. que arrancan sin carga, no requieren que la intensidad de los fusibles o interrup- tores automáticos sea mayor del 200 por 100 de la intensidad a plena carga.
  • 61.
    60 TABLA 11 Dimensiones de transformadores monofásicos de distribución (tipo convencional) Capacidad Marca Dimensiones* kVA Ejemplo A B C MARCA 1 87 43 52 10 MARCA 2 85 45 55 MARCA 3 89 38 57 MARCA 1 87 43 52 15 MARCA 2 85 45 55 MARCA 3 89 38 57 MARCA 1 97 50 59 25 MARCA 2 90 50 60 MARCA 3 99 44 62 B MARCA 1 102 55 64 37.5 MARCA 2 105 55 65 MARCA 3 117 49 67 MARCA 1 102 55 64 C 50 MARCA 2 120 55 65 MARCA 3 118 53 71 MARCA 1 117 60 74 75 MARCA 2 120 60 80 MARCA 3 118 89 83 MARCA 1 117 67 84 A 100 MARCA 2 120 80 80 MARCA 3 118 96 88 MARCA 1 127 70 84 167 MARCA 2 125 90 95 MARCA 3 129 106 90 MARCA 1 135 89 79 250 MARCA 2 135 107 90 MARCA 1 135 109 92 333 MARCA 2 135 110 100 * DIMENSIONES EN CENTIMETROS, INCLUYEN RADIADORES
  • 62.
    61 TABLA 12 Dimensiones de transformadores trifásicos de distribución Capacidad Marca Dimensiones* kVA Ejemplo A B C MARCA 1 86 86 49 50 MARCA 2 122 87 71 MARCA 3 104 91 56 MARCA 1 88 95 56 75 MARCA 2 125 90 76 MARCA 3 112 99 68 MARCA 1 88 99 58 100 MARCA 2 125 93 91 112.5 MARCA 1 113 109 72 125 MARCA 1 132 93 97 MARCA 1 97 114 71 150 MARCA 2 116 113 92 160 MARCA 1 140 95 97 B 200 MARCA 1 MARCA 2 107 145 118 95 72 112 225 MARCA 1 120 126 92 MARCA 1 110 120 75 250 MARCA 2 148 101 98 MARCA 1 114 128 78 300 MARCA 2 152 103 106 MARCA 3 125 127 95 A 400 MARCA 1 127 141 99 MARCA 1 131 151 95 500 MARCA 2 165 117 115 MARCA 3 133 141 102 630 MARCA 1 146 162 133 MARCA 1 136 163 114 C 750 MARCA 2 172 126 135 800 MARCA 1 150 183 140 MARCA 1 150 167 116 1000 MARCA 2 186 133 130 MARCA 3 157 188 141 * DIMENSIONES EN CENTIMETROS, INCLUYEN RADIADORES
  • 63.
    62 TABLA 13 Dimensiones de transformadores monofásicos de distribución tipo Padmounted Capacidad Marca Dimensiones* kVA Ejemplo A B C TIPO 1 69 71 93 MARCA 1 TIPO 2 69 73 93 TIPO 1 25 MARCA 2 TIPO 2 75 70 84 TIPO 1 MARCA 3 TIPO 2 63 76 82 A TIPO 1 69 71 98 MARCA 1 TIPO 2 69 73 93 TIPO 1 MARCA 2 TIPO 2 71 76 85 B C 37.5 TIPO 1 MARCA 3 TIPO 2 64 85 83 TIPO 1 69 71 100 MARCA 1 TIPO 2 69 73 100 TIPO 1 50 MARCA 2 TIPO 2 71 76 85 TIPO 1 MARCA 3 TIPO 2 68 85 85 TIPO 1 77 71 105 T ipo 1 MARCA 1 TIPO 2 77 73 105 TIPO 1 75 MARCA 2 TIPO 2 80 81 89 TIPO 1 MARCA 3 TIPO 2 76 92 95 TIPO 1 77 71 110 MARCA 1 T ipo 2 TIPO 2 77 73 110 TIPO 1 100 MARCA 2 Tipo 2 80 81 108 Tipo 1 MARCA 3 Tipo 2 81 97 95 * DIMENSIONES EN CENTIMETROS, INCLUYEN RADIADORES Tipo 1: CONFIGURACIÓN TIPO RADIAL Tipo 2: CONFIGURACIÓN TIPO MALLA
  • 64.
    63 TABLA 14 Dimensiones de transformadores trifásicos de distribución Padmounted Capacidad Marca Dimensiones* kVA Ejemplo A B C Tipo 1 114 111 106 MARCA 1 Tipo 2 119 1131 106 Tipo 1 75 MARCA 2 Tipo 2 120 120 102 Tipo 1 131 118 91 MARCA 3 Tipo 2 135 159 91 Tipo 1 114 118 108 MARCA 1 Tipo 2 119 131 108 Tipo 1 112.5 MARCA 2 Tipo 2 120 120 104 Tipo 1 131 118 95 MARCA 3 Tipo 2 135 159 95 Tipo 1 114 113 112 MARCA 1 Tipo 2 119 133 112 A 150 MARCA 2 Tipo 1 Tipo 2 120 120 107 Tipo 1 131 118 95 MARCA 3 Tipo 2 135 159 95 B C Tipo 1 123 121 116 MARCA 1 Tipo 2 123 141 116 Tipo 1 225 MARCA 2 Tipo 2 125 130 126 Tipo 1 131 118 126 MARCA 3 Tipo 2 135 159 126 Tipo 1 123 121 116 Frente vi o (Tipo 1) v MARCA 1 Tipo 2 123 141 169 Tipo 1 300 MARCA 2 Tipo 2 125 130 129 Tipo 1 131 118 139 MARCA 3 Tipo 2 135 159 139 Frente muerto (Tipo 2) Tipo 1 133 141 122 MARCA 1 Tipo 2 133 141 122 Tipo 1 500 MARCA 2 Tipo 2 160 140 131 Tipo 1 139 118 147 MARCA 3 Tipo 2 139 159 147 Tipo 1 750 MARCA 1 Tipo 2 170 208 147 Tipo 1 MARCA 1 Tipo 2 180 210 160 1,000 Tipo 1 150 190 150 MARCA 2 Tipo 2 150 210 150 * DIMENSIONES EN CENTIMETROS, INCLUYEN RADIADORES
  • 65.
    64 TABLA 15 Cálculo de la potencia de la batería de condensadores A partir de la potencia en kW y del cos  de la instalación La tabla nos da en función del cos  de la instalación antes y después de la compensación, un coeficiente a multiplicar por la potencia activa para encontrar la potencia de la batería de condensadores a instalar. Antes de la Potencia del condensador en kVAR a instalarse por kW de carga para elevar el factor de potencia compensación (cos ) o la tg  a: tg  n cos  tg  0.75 0.59 0.48 0.46 0.43 0.40 0.36 0.33 0.29 0.25 0.20 0.14 0.00 cos  0.8 0.86 0.9 0.91 0.92 0.93 0.94 0.95 0.96 0.97 0.98 0.99 1 2.29 0.40 1.541 1.698 1.807 1.836 1.865 1.896 1.928 1.963 2.000 2.041 2.088 2.149 2.291 2.22 0.41 1.475 1.631 1.740 1.769 1.799 1.829 1.862 1.896 1.933 1.974 2.022 2.082 2.225 2.16 0.42 1.411 1.567 1.676 1.705 1.735 1.766 1.798 1.832 1.869 1.910 1.958 2.018 2.161 2.10 0.43 1.350 1.506 1.615 1.644 1.674 1.704 1.737 1.771 1.808 1.849 1.897 1.957 2.100 2.04 0.44 1.291 1.448 1.557 1.585 1.615 1.646 1.678 1.712 1.749 1.790 1.838 1.898 2.041 1.98 0.45 1.235 1.391 1.500 1.529 1.559 1.589 1.622 1.656 1.693 1.734 1.781 1.842 1.985 1.93 0.46 1.180 1.337 1.446 1.475 1.504 1.535 1.567 1.602 1.639 1.680 1.727 1.788 1.930 1.88 0.47 1.128 1.285 1.394 1.422 1.452 1.483 1.515 1.549 1.586 1.627 1.675 1.736 1.878 1.83 0.48 1.078 1.234 1.343 1.372 1.402 1.432 1.465 1.499 1.536 1.577 1.625 1.685 1.828 1.78 0.49 1.029 1.186 1.295 1.323 1.353 1.384 1.416 1.450 1.487 1.528 1.576 1.637 1.779 1.73 0.50 0.982 1.139 1.248 1.276 1.306 1.337 1.369 1.403 1.440 1.481 1.529 1.590 1.732 1.69 0.51 0.937 1.093 1.202 1.231 1.261 1.291 1.324 1.358 1.395 1.436 1.484 1.544 1.687 1.64 0.52 0.893 1.049 1.158 1.187 1.217 1.247 1.280 1.314 1.351 1.392 1.440 1.500 1.643 1.60 0.53 0.850 1.007 1.116 1.144 1.174 1.205 1.237 1.271 1.308 1.349 1.397 1.458 1.600 1.56 0.54 0.809 0.965 1.074 1.103 1.133 1.163 1.196 1.230 1.267 1.308 1.356 1.416 1.559 1.52 0.55 0.768 0.925 1.034 1.063 1.092 1.123 1.156 1.190 1.227 1.268 1.315 1.376 1.518 1.48 0.56 0.729 0.886 0.995 1.024 1.053 1.084 1.116 1.151 1.188 1.229 1.276 1.337 1.479 1.44 0.57 0.691 0.848 0.957 0.986 1.015 1.046 1.079 1.113 1.150 1.191 1.238 1.299 1.441 1.40 0.58 0.655 0.811 0.920 0.949 0.979 1.009 1.042 1.076 1.113 1.154 1.201 1.262 1.405 1.37 0.59 0.618 0.775 0.884 0.913 0.942 0.973 1.006 1.040 1.077 1.118 1.165 1.226 1.368 1.33 0.60 0.583 0.740 0.849 0.878 0.907 0.938 0.970 1.005 1.042 1.083 1.130 1.191 1.333 1.30 0.61 0.549 0.706 0.815 0.843 0.873 0.904 0.936 0.970 1.007 1.048 1.096 1.157 1.299 1.27 0.62 0.515 0.672 0.781 0.810 0.839 0.870 0.903 0.937 0.974 1.015 1.062 1.123 1.265 1.23 0.63 0.483 0.639 0.748 0.777 0.807 0.837 0.870 0.904 0.941 0.982 1.030 1.090 1.233 1.20 0.64 0.451 0.607 0.716 0.745 0.775 0.805 0.838 0.872 0.909 0.950 0.998 1.058 1.201 1.17 0.65 0.419 0.576 0.685 0.714 0.743 0.774 0.806 0.840 0.877 0.919 0.966 1.027 1.169 1.14 0.66 0.388 0.545 0.654 0.683 0.712 0.743 0.775 0.810 0.847 0.888 0.935 0.996 1.138 1.11 0.67 0.358 0.515 0.624 0.652 0.682 0.713 0.745 0.779 0.816 0.857 0.905 0.966 1.108 1.08 0.68 0.328 0.485 0.594 0.623 0.652 0.683 0.715 0.750 0.787 0.828 0.875 0.936 1.078 1.05 0.69 0.299 0.456 0.565 0.593 0.623 0.654 0.686 0.720 0.757 0.798 0.846 0.907 1.049 1.02 0.70 0.270 0.427 0.536 0.565 0.594 0.625 0.657 0.692 0.729 0.770 0.817 0.878 1.020 0.99 0.71 0.242 0.398 0.508 0.536 0.566 0.597 0.629 0.663 0.700 0.741 0.789 0.849 0.992 0.96 0.72 0.214 0.370 0.480 0.508 0.538 0.569 0.601 0.635 0.672 0.713 0.761 0.821 0.964 0.94 0.73 0.186 0.343 0.452 0.481 0.510 0.541 0.573 0.608 0.645 0.686 0.733 0.794 0.936 0.91 0.74 0.159 0.316 0.425 0.453 0.483 0.514 0.546 0.580 0.617 0.658 0.706 0.766 0.909 0.88 0.75 0.132 0.289 0.398 0.426 0.456 0.487 0.519 0.553 0.590 0.631 0.679 0.739 0.882 0.86 0.76 0.105 0.262 0.371 0.400 0.429 0.460 0.492 0.526 0.563 0.605 0.652 0.713 0.855 0.83 0.77 0.079 0.235 0.344 0.373 0.403 0.433 0.466 0.500 0.537 0.578 0.626 0.686 0.829 0.80 0.78 0.052 0.209 0.318 0.347 0.376 0.407 0.439 0.474 0.511 0.552 0.599 0.660 0.802 0.78 0.79 0.026 0.183 0.292 0.320 0.350 0.381 0.413 0.447 0.484 0.525 0.573 0.634 0.776 0.75 0.80 0.157 0.266 0.294 0.324 0.355 0.387 0.421 0.458 0.499 0.547 0.608 0.750 0.72 0.81 0.131 0.240 0.268 0.298 0.329 0.361 0.395 0.432 0.473 0.521 0.581 0.724 0.70 0.82 0.105 0.214 0.242 0.272 0.303 0.335 0.369 0.406 0.447 0.495 0.556 0.698 0.67 0.83 0.079 0.188 0.216 0.246 0.277 0.309 0.343 0.380 0.421 0.469 0.530 0.672 0.65 0.84 0.053 0.162 0.190 0.220 0.251 0.283 0.317 0.354 0.395 0.443 0.503 0.646 0.62 0.85 0.026 0.135 0.164 0.194 0.225 0.257 0.291 0.328 0.369 0.417 0.477 0.620 0.59 0.86 0.109 0.138 0.167 0.198 0.230 0.265 0.302 0.343 0.390 0.451 0.593 0.57 0.87 0.082 0.111 0.141 0.172 0.204 0.238 0.275 0.316 0.364 0.424 0.567 0.54 0.88 0.055 0.084 0.114 0.145 0.177 0.211 0.248 0.289 0.337 0.397 0.540 0.51 0.89 0.028 0.057 0.086 0.117 0.149 0.184 0.221 0.262 0.309 0.370 0.512 0.48 0.90 0.029 0.058 0.089 0.121 0.156 0.193 0.234 0.281 0.342 0.484 ejemplo: cálculo de la potencia en kW de la instalación, 500 kW cos  existente en la instalación: cos  = 0,75 o sea tg  = 0,88 cos  deseado: cos  = 0,93 o sea tg  = 0,40 Qc = 500 x 0,487 = 240 kVAR cualquiera que sea el valor nominal de la tensión de la instalación
  • 66.
    65 TABLA 16 Ampacidad de barras de cobre Area Peso DC 30 C 50 C 65 C Dimensiones, MCM Resistencia Efecto Skin 60 Hz Efecto Skin 60 Hz Efecto Skin 60 Hz in. In.2 circular lb / ft a 20 C A Ampacidad* A Ampacidad* A Ampacidad* mil - / ft 70 C Amp. 90 C Amp. 105 C Amp. 1/16 x 1/2 0.0313 39.8 0.121 264 1.00 103 1.00 136 1.00 157 1/16 x 3/4 0.0469 59.7 0.181 175 1.00 145 1.00 193 1.00 225 1/16 x 1 0.0625 79.6 0.241 132 1.00 187 1.00 250 1.00 228 1/16 x 1 1/2 0.0938 119 0.362 87.7 1.00 270 1.00 355 1.00 410 1/16 x 2 0.1250 159 0.483 65.8 1.01 345 1.01 460 1.01 530 1/8 x 1/2 0.0625 79.6 0.241 132 1.00 153 1.00 205 1.00 235 1/8 x 3/4 0.0938 119 0.362 87.7 1.00 215 1.00 285 1.00 325 1/8 x 1 0.1250 159 0.483 65.8 1.01 270 1.01 360 1.01 415 1/8 x 1 1/2 0.1875 239 0.726 43.8 1.01 385 1.01 510 1.01 590 1/8 x 2 0.2500 318 0.966 32.9 1.02 495 1.02 660 1.02 760 1/8 x 2 1/2 0.3125 398 1.21 26.4 1.02 600 1.02 800 1.02 920 1/8 x 3 0.3750 477 1.45 21.9 1.03 710 1.03 940 1.03 1,100 1/8 x 3 1/2 0.4375 557 1.69 18.8 1.04 810 1.03 1,100 1.03 1,250 1/8 x 4 0.5000 637 1.93 16.5 1.04 910 1.04 1,200 1.04 1,400 3/16 x 1/2 0.0938 119 0.362 87.7 1.00 195 1.00 260 1.00 300 3/16 x 3/4 0.1406 179 0.545 58.4 1.01 270 1.01 360 1.01 415 3/16 x 1 0.1875 239 0.726 43.6 1.01 340 1.01 455 1.01 520 3/16 x 1 1/2 0.2813 358 1.09 29.3 1.02 430 1.02 630 1.02 730 3/16 x 2 0.3750 477 1.45 21.9 1.03 610 1.03 810 1.03 940 3/16 x 2 1/2 0.4688 597 1.81 17.5 1.04 740 1.04 980 1.03 1,150 3/16 x 3 0.5625 716 2.17 14.6 1.05 870 1.05 1,150 1.04 1,350 3/16 x 3 1/2 0.6563 836 2.53 12.5 1.07 990 1.06 1,300 1.06 1,500 3/16 x 4 0.7500 955 2.90 11.0 1.09 1,100 1.08 1,450 1.07 1,700 1/4 x 1/2 0.1250 159 0.483 65.8 1.01 240 1.01 315 1.01 360 1/4 x 3/4 0.1875 239 0.726 43.8 1.01 320 1.01 425 1.01 490 1/4 x 1 0.2500 318 0.966 32.9 1.02 400 1.02 530 1.02 620 1/4 x 1 1/2 0.3750 477 1.449 21.9 1.03 560 1.03 740 1.03 860 1/4 x 2 0.5000 637 1.93 16.5 1.04 710 1.04 940 1.04 1,100 1/4 x 2 1/2 0.6250 796 2.41 13.2 1.06 850 1.06 1,150 1.06 1,300 1/4 x 3 0.7500 955 2.90 11.0 1.08 990 1.08 1,300 1.07 1,550 1/4 x 3 1/2 0.8750 1,114 3.38 9.40 1.10 1,150 1.09 1,500 1.09 1,750 1/4 x 4 1.00 1,273 3.86 8.23 1.12 1,250 1.11 1,700 1.11 1,950 1/4 x 5 1.25 1,592 4.83 6.58 1.16 1,500 1.15 2,000 1.14 2,350 1/4 x 6 1.50 1,910 5.80 5.49 1.18 1,750 1.17 2,350 1.17 2,700 1/4 x 8 2.00 2,546 7.73 4.11 1.23 2,250 1.22 3,000 1.21 3,450 1/4 x 10 2.50 3,183 9.66 3.29 1.27 2,700 1.26 3,600 1.25 4,200 1/4 x 12 3.00 3,820 11.6 2.74 1.31 3,150 1.30 4,200 1.28 4,900 3/8 x 3/4 0.281 358 1.09 29.3 1.02 415 1.02 550 1.02 630 3/8 x 1 0.375 477 1.45 21.9 1.03 510 1.03 680 1.03 790 3/8 x 1 1/2 0.562 716 2.17 14.6 1.05 710 1.04 940 1.04 1,100 3/8 x 2 0.750 955 2.9 11.0 1.08 880 1.08 1,150 1.07 1,350 3/8 x 2 1/2 0.937 1,194 3.62 8.77 1.12 1,050 1.10 1,400 1.09 1,600 3/8 x 3 1.12 1,432 4.35 7.35 1.15 1,200 1.14 1,600 1.13 1,850 3/8 x 3 1/2 1.31 1,671 5.06 6.28 1.18 1,350 1.16 1,800 1.15 2,100 3/8 x 4 1.50 1,910 5.8 5.49 1.20 1,500 1.19 2,000 1.18 2,350 3/8 x 5 1.87 2,387 7.26 4.38 1.24 1,800 1.23 2,400 1.22 2,800 3/8 x 6 2.25 2,865 8.69 3.66 1.27 2,100 1.26 2,800 1.24 3,250 3/8 x 8 3.00 3,820 11.6 2.74 1.33 2,650 1.31 3,550 1.30 4,100 3/8 x 10 3.75 4,775 14.5 2.19 1.38 3,200 1.36 4,300 1.35 4,900 3/8 x 12 4.50 5,730 17.4 1.83 1.42 3,700 1.40 5,000 1.38 5,800 1/2 x 1 0.50 637 1.93 16.5 1.04 620 1.04 820 1.04 940 1/2 x 1 1/2 0.75 955 2.90 11.0 1.08 830 1.03 1100 1.07 1,250 1/2 x 2 1.00 1,273 3.86 8.23 1.12 1,000 1.11 1350 1.10 1,550 1/2 x 2 1/2 1.25 1,592 4.83 6.58 1.16 1,200 1.15 1600 1.14 1,850 1/2 x 3 1.50 1,910 5.3 5.49 1.20 1,400 1.19 1850 1.18 2,150 1/2 x 3 1/2 1.75 2,228 6.75 4.70 1.24 1,550 1.22 2,100 1.21 2,400 1/2 x 4 2.00 2,546 7.72 4.11 1.26 1,700 1.25 2,300 1.24 2,650 1/2 x 5 2.50 3,183 9.66 3.32 1.32 2,050 1.30 2,750 1.29 3,150 1/2 x 6 3.00 3,820 11.6 2.74 1.36 2,400 1.34 3,150 1.33 3,650 1/2 x 8 4.00 5,093 15.5 2.06 1.42 3,100 1.40 4,000 1.39 4,600 1/2 x 10 5.00 6,366 19.3 1.65 1.47 3,500 1.45 4,200 1.44 5,500 1/2 x 12 6.00 7,639 23.2 1.37 1.52 4,200 1.51 5,000 1.50 6,400 3/4 x 4 3.00 3,820 11.6 2.74 1.42 2,050 1.40 2,750 1.38 3,150 3/4 x 5 3.75 4,775 14.5 2.19 1.45 2,400 1.46 3,250 1.44 3,750 3/4 x 6 4.50 5,730 17.4 1.83 1.52 2,800 1.50 3,750 1.48 4,300 3/4 x 8 6.00 7,639 23.2 1.37 1.30 3,500 1.58 4,700 1.56 5,400 3/4 x 10 7.50 9,549 29.0 1.10 1.67 4,200 1.64 5,600 1.62 6,500 3/4 x 12 9.00 11,459 34.8 0.914 1.72 4,900 1.69 6,500 1.67 7,500 * Aplicable a condiciones típicas de servicio (Interior, 40 C de temperatura de ambiente), y libre de influencias magnéticas externas.
  • 67.
    POSTE ACERA 2 2 CERRAMIENTO 1 ACERA SITUACIÓN CORRECTA SITUACIÓN INCORRECTA SITUACIÓN INCORRECTA SITUACIÓN CORRECTA NOTAS: EMPRESA ELÉCTRICA PÚBLICA DE GUAYAQUIL, EP 1 SITIO DE MEDICIÓN EN EL CERRAMIENTO. INMUEBLE GUAYAQUIL - ECUADOR 2 CONDUCTORES DE ACOMETIDA QUE SERÁN SUMINISTRADOS E INSTALADOS POR EL DISTRIBUIDOR. ACOMETIDA UBICACIÓN DE ENTRADA DE ACOMETIDA DIBUJADO ING. C. GÓMEZ APROBADO 2012 / 04 / 07 PROYECTADO ING. C. GÓMEZ ESCALA: S/E REVISADO ING. M. CEDEÑO ING. JOE SAVERIO
  • 68.
    1 REVERSIBLE 2 TUERCA DE OJO PARA FIJACIÓN DE RETENIDA 1 1/4" PARA MEDIDOR MONOFÁSICO CLASE 100 1 3 TUBERÍA METÁLICA RÍGIDA GALVANIZADA DE DIÁMETRO: 2" ò 2 1/2" PARA MEDIDOR MONOFÁSICO CLASE 200 4 RETENIDA DE FIJACIÓN DE ACOMETIDA 5 MÓDULO DE MEDICIÓN QUE CONTIENE LA BASE (SOCKET) Y EL DISYUNTOR PRINCIPAL 7 3 SOBRE DIMENSIONES DEL MÓDULO VER NOTA ADJUNTA. 6 MEDIDOR DETALLE DEL SITIO DE MEDICIÓN 7 CONDUCTORES DE ACOMETIDA AÉREA ESCALA 1:100 8 DISYUNTOR PRINCIPAL 9 CONDUCTOR DE PUESTA A TIERRA 10 10 TECHO DE PROTECCIÓN DE AGUAS LLUVIAS 2 1 5 7 4 6 POSTE A SER INSTALADO POR EL CONSUMIDOR VIVIENDA 8 MÍNIMO 10 5.5 m CERRAMIENTO 9 1.8 m 9 ACERA JARDÍN CALLE HACIA EL PANEL DE DISTRIBUCIÓN NOTAS: ELECTRODO DE PUESTA A TIERRA EMPRESA ELÉCTRICA PÚBLICA DE GUAYAQUIL, EP · EL CONSUMIDOR SUMINISTRARÁ E INSTALARÁ TODOS LOS MATERIALES EXCEPTO 4 , 6 , Y 7 QUE LOS SUMINISTRARÁ E INSTALARÁ EL DISTRIBUIDOR GUAYAQUIL - ECUADOR · LAS DIMENSIONES ESTAN EXPRESADAS EN METROS ACOMETIDA EN SECTOR RESIDENCIAL · DIMENSIONES DEL MÓDULO DE MEDICIÓN: SEPARACIÓN DE LOS CONDUCTORES CON RELACIÓN AL SUELO VER NUMERAL 10.2.1 Y FIGURAS 21 Y 21-A SI LA MEDICIÓN ES CL-100 NUMERAL 10.2.2 Y FIGURAS 22, 22-A, 22-B, 22-C, 22-D SI LA MEDICIÓN ES CL-200 DIBUJADO ARQ. J. BRIONES APROBADO 2012 / 04 / 07 · EL DISYUNTOR PRINCIPAL SERÁ INSTALADO PARA SER ACCIONADO DESDE EL LADO INTERIOR DEL PROYECTADO ARQ. J. BRIONES ESCALA 1:75 CERRAMIENTO O DESDE EL LADO EXTERIOR DEL MISMO. REVISADO ING. M. CEDEÑO ING. JOE SAVERIO
  • 69.
    1 REVERSIBLE 1 1/4" PARA MEDIDOR MONOFÁSICO CLASE 100 2 TUBERÍA METÁLICA RÍGIDA GALVANIZADA DE DIÁMETRO: 2" ò 2 1/2" PARA MEDIDOR MONOFÁSICO CLASE 200 1 3 RETENIDA DE FIJACIÓN DE ACOMETIDA 4 MÓDULO DE MEDICIÓN QUE CONTIENE LA BASE (SOCKET) Y EL DISYUNTOR PRINCIPAL SOBRE DIMENSIONES DEL MÓDULO VER NOTA ADJUNTA. 6 2 5 MEDIDOR 6 CONDUCTORES DE ACOMETIDA AÉREA 7 DISYUNTOR PRINCIPAL 8 CONDUCTOR DE PUESTA A TIERRA 9 9 TECHO DE PROTECCIÓN DE AGUAS LLUVIAS 4 6 3 5 POSTE DE HORMIGÓN A SER INSTALADO POR EL CONSUMIDOR 7 9 5.5 m MÍNIMO CERRAMIENTO 3m 1.8 m 8 8 ACERA JARDÍN CALLE HACIA EL PANEL DE DISTRIBUCIÓN DETALLE DEL SITIO DE MEDICIÓN ELECTRODO DE ESCALA 1:100 PUESTA A TIERRA NOTAS: · EL CONSUMIDOR SUMINISTRARÁ E INSTALARÁ TODOS LOS MATERIALES EXCEPTO 3 , 5 , Y 6 EMPRESA ELÉCTRICA PÚBLICA DE GUAYAQUIL, EP QUE LOS SUMINISTRARÁ E INSTALARÁ EL DISTRIBUIDOR GUAYAQUIL - ECUADOR · LAS DIMENSIONES ESTAN EXPRESADAS EN METROS ACOMETIDA EN SECTOR RESIDENCIAL · DIMENSIONES DEL MÓDULO DE MEDICIÓN: SEPARACIÓN DE LOS CONDUCTORES CON RELACIÓN AL SUELO VER NUMERAL 10.2.1 Y FIGURAS 21 Y 21-A SI LA MEDICIÓN ES CL-100 NUMERAL 10.2.2 Y FIGURAS 22, 22-A, 22-B, 22-C, 22-D SI LA MEDICIÓN ES CL-200 DIBUJADO ARQ. J. BRIONES APROBADO 2012 / 04 / 07 · EL DISYUNTOR PRINCIPAL SERÁ INSTALADO PARA SER ACCIONADO DESDE EL LADO INTERIOR DEL PROYECTADO ARQ. J. BRIONES ESCALA 1:75 CERRAMIENTO O DESDE EL LADO EXTERIOR DEL MISMO. REVISADO ING. M. CEDEÑO ING. JOE SAVERIO
  • 70.
    1 REVERSIBLE 1 1/4" PARA MEDIDOR MONOFÁSICO CLASE 100 1 2 TUBERÍA METÁLICA RÍGIDA GALVANIZADA DE DIÁMETRO: 2" ó 2 1/2" PARA MEDIDOR MONOFÁSICO CLASE 200 3 MÓDULO DE MEDICIÓN QUE CONTIENE LA BASE (SOCKET) Y EL DISYUNTOR PRINCIPAL SOBRE DIMENSIONES DEL MÓDULO VER NOTA ADJUNTA. 5 2 4 MEDIDOR 5 CONDUCTORES DE ACOMETIDA AÉREA 6 DISYUNTOR PRINCIPAL 7 CONDUCTOR DE PUESTA A TIERRA 8 TECHO DE PROTECCIÓN DE AGUAS LLUVIAS 8 5 3 4 8 DETALLE DEL SITIO CERRAMIENTO DE MEDICIÓN 6 3 m MÍNIMO ESCALA 1:100 1.8 m 7 JARDÍN CALLE HACIA EL PANEL DE DISTRIBUCIÓN 7 ELECTRODO DE PUESTA A TIERRA NOTAS: · EL CONSUMIDOR SUMINISTRARÁ E INSTALARÁ TODOS LOS MATERIALES EXCEPTO 4 , 5 , QUE LOS SUMINISTRARÁ E INSTALARA EL DISTRIBUIDOR EMPRESA ELÉCTRICA PÚBLICA DE GUAYAQUIL, EP GUAYAQUIL - ECUADOR · LAS DIMENSIONES ESTÁN EXPRESADAS EN METROS · DIMENSIONES DEL MÓDULO DE MEDICIÓN: ACOMETIDA EN SECTOR RESIDENCIAL VER NUMERAL 10.2.1 Y FIGURAS 21 Y 21-A SI LA MEDICIÓN ES CL-100 SEPARACIÓN DE LOS CONDUCTORES CON RELACIÓN AL SUELO NUMERAL 10.2.2 Y FIGURAS 22, 22-A, 22-B, 22-C, 22-D SI LA MEDICIÓN ES CL-200 DIBUJADO ARQ. J. BRIONES APROBADO 2012 / 04 / 07 · EL DISYUNTOR PRINCIPAL SERÁ INSTALADO PARA SER ACCIONADO DESDE EL LADO INTERIOR DEL CERRAMIENTO O DESDE EL LADO EXTERIOR DEL MISMO. PROYECTADO ARQ. J. BRIONES ESCALA 1:75 REVISADO ING. M. CEDEÑO ING. JOE SAVERIO
  • 71.
    1 REVERSIBLE DETALLE DEL SITIO 2 TUERCA DE OJO PARA FIJACIÓN DE RETENIDA DE MEDICIÓN 3 TUBERÍA METÁLICA RÍGIDA GALVANIZADA DE 1 1/4 " DE DIÁMETRO 1 4 CONDUCTORES DE ACOMETIDA AÉREA 5 DISYUNTOR PRINCIPAL 6 CONDUCTOR DE PUESTA A TIERRA 7 BASE (SOCKET) CL-100 MONOFÁSICA 3 8 PLANCHA DE MADERA DE 40X30X2 CM PARA FIJACIÓN DE BASE SOCKET 4 1 2 3 8 VIVIENDA 8 7 5 3m 6 7 1.8 m 5 ELECTRODO DE PUESTA A TIERRA NOTAS: · EL CONSUMIDOR SUMINISTRARÁ E INSTALARÁ TODOS LOS MATERIALES EXCEPTO 4 Y EL MEDIDOR QUE LOS SUMINISTRARÁ E INSTALARÁ EL DISTRIBUIDOR EMPRESA ELÉCTRICA PÚBLICA DE GUAYAQUIL, EP · LAS DIMENSIONES ESTÁN EXPRESADAS EN METROS GUAYAQUIL - ECUADOR ACOMETIDA Y SITIO DE MEDICIÓN PARA SERVICIO OCASIONAL DIBUJADO ARQ. J. BRIONES APROBADO 2012 / 04 / 07 PROYECTADO ARQ. J. BRIONES ESCALA S/E REVISADO ING. M. CEDEÑO ING. JOE SAVERIO
  • 72.
    1 REVERSIBLE 2 TUERCA DE OJO PARA FIJACIÓN DE RETENIDA 3 TUBERÍA METÁLICA RÍGIDA GALVANIZADA DE 1 1/4 " DE DIÁMETRO DETALLE DEL SITIO 4 MEDIDOR DE MEDICIÓN 5 CONDUCTORES DE ACOMETIDA AÉREA 6 CAJA METÁLICA QUE CONTIENE EL DISYUNTOR PRINCIPAL 1 7 CONDUCTOR DE PUESTA A TIERRA 8 BASE (SOCKET) CL - 100 MONOFÁSICA 5 5 3 2 VIVIENDA 8 4 6 3m 1.8 m 7 CALLE ELECTRODO DE PUESTA A TIERRA NOTAS: · EL CONSUMIDOR SUMINISTRARÁ E INSTALARÁ TODOS LOS MATERIALES EXCEPTO 4 , Y 5 QUE LOS SUMINISTRARÁ E INSTALARÁ EL DISTRIBUIDOR · LAS DIMENSIONES ESTÁN EXPRESADAS EN METROS EMPRESA ELÉCTRICA PÚBLICA DE GUAYAQUIL, EP GUAYAQUIL - ECUADOR ACOMETIDAS EN ZONAS SUBURBANAS Y DE BAJO CONSUMO ELÉCTRICO DIBUJADO ARQ. J. BRIONES APROBADO 2012 / 04 / 07 PROYECTADO ARQ. J. BRIONES ESCALA 1:75 REVISADO ING. M. CEDEÑO ING. JOE SAVERIO
  • 73.
    1 REVERSIBLE 2 TUERCA DE OJO PARA FIJACIÓN DE RETENIDA 3 TUBERÍA METÁLICA RÍGIDA GALVANIZADA DE 1 1/4 " DE DIÁMETRO DETALLE DEL SITIO 4 RETENIDA DE FIJACIÓN DE ACOMETIDA DE MEDICIÓN 5 MEDIDOR 6 CONDUCTORES DE ACOMETIDA AÉREA 1 7 CAJA METÁLICA QUE CONTIENE EL DISYUNTOR PRINCIPAL 8 CONDUCTOR DE PUESTA A TIERRA 6 9 BASE (SOCKET) CL - 100 MONOFÁSICA 6 2 3 4 VIVIENDA 9 6m 5 7 5.5 m MÍNIMO 1.8 m 8 ACERA CALLE ELECTRODO DE PUESTA A TIERRA EMPRESA ELÉCTRICA PÚBLICA DE GUAYAQUIL, EP GUAYAQUIL - ECUADOR NOTAS: ACOMETIDAS EN ZONAS SUBURBANAS · EL CONSUMIDOR SUMINISTRARÁ E INSTALARÁ TODOS LOS MATERIALES EXCEPTO 4 , 5 , Y 6 Y DE BAJO CONSUMO ELÉCTRICO QUE LOS SUMINISTRARÁ E INSTALARÁ EL DISTRIBUIDOR DIBUJADO ARQ. J. BRIONES APROBADO 2012 / 04 / 07 · LAS DIMENSIONES ESTÁN EXPRESADAS EN METROS PROYECTADO ARQ. J. BRIONES ESCALA 1:75 REVISADO ING. M. CEDEÑO ING. JOE SAVERIO
  • 74.
    1 REVERSIBLE 2 TUBERÍA METÁLICA RÍGIDA GALVANIZADA DE 1 1/4 " DE DIÁMETRO 3 RETENIDA DE FIJACIÓN DE ACOMETIDA DETALLE DEL SITIO 4 MEDIDOR DE MEDICIÓN 5 CONDUCTORES DE ACOMETIDA AÉREA 6 CAJA METÁLICA QUE CONTIENE EL DISYUNTOR PRINCIPAL 1 7 CONDUCTOR DE PUESTA A TIERRA 8 BASE (SOCKET) CL - 100 MONOFÁSICA 5 2 5 3 8 POSTE DE HORMIGÓN O MADERA A SER VIVIENDA INSTALADO POR EL CONSUMIDOR 4 5.5 m MÍNIMO 6 MÍNIMO 3 m. 7 1.8 m ACERA CALLE ELECTRODO DE PUESTA A TIERRA EMPRESA ELÉCTRICA PÚBLICA DE GUAYAQUIL, EP GUAYAQUIL - ECUADOR NOTAS: · EL CONSUMIDOR SUMINISTRARÁ E INSTALARÁ TODOS LOS MATERIALES EXCEPTO 3 , 4 , Y 5 ACOMETIDAS EN ZONAS SUBURBANAS QUE LOS SUMINISTRARÁ E INSTALARÁ EL DISTRIBUIDOR Y DE BAJO CONSUMO ELÉCTRICO · LAS DIMENSIONES ESTÀN EXPRESADAS EN METROS DIBUJADO ARQ. J. BRIONES APROBADO 2012 / 04 / 07 PROYECTADO ARQ. J. BRIONES ESCALA 1:75 REVISADO ING. M. CEDEÑO ING. JOE SAVERIO
  • 75.
    1 REVERSIBLE 1 1/4" PARA MEDIDOR MONOFÁSICO CLASE 100 2 TUBERÍA METÁLICA RÍGIDA GALVANIZADA DE DIÁMETRO: 2" o' 2 1/2" PARA MEDIDOR MONOFÁSICO CLASE 200 3 RETENIDA DE FIJACIÓN DE ACOMETIDA 4 MÓDULO DE MEDICIÓN QUE CONTIENE LA BASE (SOCKET) MONOFÁSICA SOBRE DIMENSIONES DEL MÓDULO VER NOTA ADJUNTA 5 MEDIDOR DETALLE DEL SITIO 6 CONDUCTORES DE ACOMETIDA AÉREA DE MEDICIÓN 7 DISYUNTOR PRINCIPAL CONDUCTORES DE ACOMETIDA 6 8 CONDUCTOR DE PUESTA A TIERRA CONDUCTORES DE 9 TECHO DE PROTECCIÓN DE AGUAS LLUVIAS ALIMENTACIÓN PARTICULAR CONDUCTORES DE 3 ALIMENTACIÓN PARTICULAR 1 6 1 2 ELEMENTO DE FIJACIÓN VIVIENDA 2 ELEMENTO DE FIJACIÓN POSTE DEL DISTRIBUIDOR PANEL DE 5.5 m MÍNIMO 9 DISTRIBUCIÓN 9 3 m MÍNIMO 4 1.8 m 5 8 CALLE 7 ELECTRODO DE PUESTA A TIERRA 8 NOTAS: EMPRESA ELÉCTRICA PÚBLICA DE GUAYAQUIL, EP GUAYAQUIL - ECUADOR · EL CONSUMIDOR SUMINISTRARÁ E INSTALARÁ TODOS LOS MATERIALES EXCEPTO 3 , 5 , Y 6 QUE LOS SUMINISTRARÁ E INSTALARA EL DISTRIBUIDOR ACOMETIDA EN SECTOR RESIDENCIAL · LAS DIMENSIONES ESTÁN EXPRESADAS EN METROS SEPARACIÓN DE LOS CONDUCTORES CON RELACIÓN AL SUELO · DIMENSIONES DEL MÓDULO DE MEDICIÓN: DIBUJADO ARQ. J. BRIONES APROBADO 2012 / 04 / 07 VER NUMERAL 10.2.1 Y FIGURAS 21 Y 21-A SI LA MEDICIÓN ES CL-100 NUMERAL 10.2.2 Y FIGURAS 22, 22-A, 22-B, 22-C, 22-D SI LA MEDICIÓN ES CL-200 PROYECTADO ARQ. J. BRIONES ESCALA 1:75 REVISADO ING. M. CEDEÑO ING. JOE SAVERIO
  • 76.
    ACERA 2 1 CERRAMIENTO 3 ACERA 4 NOTAS: EMPRESA ELÉCTRICA PÚBLICA DE GUAYAQUIL, EP GUAYAQUIL - ECUADOR INMUEBLE DIBUJADO ING. C. GÓMEZ APROBADO PROYECTADO ING. C. GÓMEZ ESCALA: S/E REVISADO ING. M. CEDEÑO ING. JOE SAVERIO
  • 77.
    DETALLE DEL SITIO DE MEDICIÓN 1 REVERSIBLE ESCALA 1:100 1 1/4" PARA MEDIDOR MONOFÁSICO CLASE 100 2 TUBERÍA METÁLICA RÍGIDA GALVANIZADA DE DIÁMETRO: 2" o' 2 1/2" PARA MEDIDOR MONOFÁSICO CLASE 200 3 MÓDULO DE MEDICIÓN QUE CONTIENE LA BASE (SOCKET) MONOFÁSICA VER FIG.21 SI LA MEDICIÓN ES CL-100 Y FIG.22 SI LA MEDICIÓN ES CL-200 4 MEDIDOR 5 8 1 5 CONDUCTORES DE ACOMETIDA 6 DISYUNTOR PRINCIPAL 7 CONDUCTOR DE PUESTA A TIERRA 8 TECHO DE PROTECCIÓN DE AGUAS LLUVIAS 2 3 MEDIO DE FIJACIÓN 4 8 CERRAMIENTO 6 180cm CAJA DE PASO DE HORMIGÓN DE 60x60x60cm 5cm 5cm 7 ACERA 2 CALLE HACIA EL PANEL DE DISTRIBUCIÓN 60cm 60cm ELECTRODO DE PUESTA A TIERRA 7 10cm 10cm 10cm 60cm 10cm TUBERIA METÁLICA RÍGIDA 10cm 60cm 10cm PARA USO ELÉCTRICO NOTAS: · EL CONSUMIDOR SUMINISTRARÁ E INSTALARÁ TODOS LOS MATERIALES EXCEPTO 4 Y 5 EMPRESA ELÉCTRICA PÚBLICA DE GUAYAQUIL, EP QUE LOS SUMINISTRARÁ E INSTALARÁ EL DISTRIBUIDOR GUAYAQUIL - ECUADOR · LAS DIMENSIONES ESTÁN EXPRESADAS EN CENTÍMETROS · DIMENSIONES DEL MÓDULO DE MEDICIÓN: IDENTIFICACIÓN DE LA ACOMETIDA SUBTERRÁNEA VER NUMERAL 10.2.1 Y FIGURAS 21, 21-A, SI LA MEDICIÓN ES CL-100 PROVENIENTE DE UN SISTEMA DE DISTRIBUCIÓN AÉREO NUMERAL 10.2.2 Y FIGURAS 22, 22-A, 22-B, 22-C, 22-D SI LA MEDICIÓN ES CL-200 DIBUJADO ARQ. J. BRIONES APROBADO 2012 / 04 / 07 · EL DISYUNTOR PRINCIPAL SERÁ INSTALADO PARA SER ACCIONADO DESDE EL LADO INTERIOR DEL ARQ. J. BRIONES ESCALA 1:75 PROYECTADO CERRAMIENTO O DESDE EL LADO EXTERIOR DEL MISMO. REVISADO ING. M. CEDEÑO ING. JOE SAVERIO
  • 78.
    DETALLE DEL SITIO DE MEDICIÓN ESCALA 1:100 9 3 6 1 4 5 2 MEDIO DE FIJACIÓN 7 9 CERRAMIENTO 2 180 cm 8 5 cm ACERA 8 CALLE HACIA EL PANEL DE DISTRIBUCIÓN 60 cm ELECTRODO DE PUESTA A TIERRA 10 cm NOTAS: 10 cm 60 cm 10 cm · EL CONSUMIDOR SUMINISTRARÁ E INSTALARÁ TODOS LOS MATERIALES EMPRESA ELÉCTRICA PÚBLICA DE GUAYAQUIL, EP EXCEPTO 3 , 5 , Y 6 QUE LOS SUMINISTRARÁ E INSTALARÁ EL DISTRIBUIDOR GUAYAQUIL - ECUADOR · LAS DIMENSIONES ESTÁN EXPRESADAS EN CENTÍMETROS · DIMENSIONES DEL MÓDULO DE MEDICIÓN: IDENTIFICACIÓN DE LA ACOMETIDA SUBTERRÁNEA VER NUMERAL 10.2.1 Y FIGURAS 21 Y 21-A SI LA MEDICIÓN ES CL-100 PROVENIENTE DE UN SISTEMA DE DISTRIBUCIÓN AÉREA NUMERAL 10.2.2 Y FIGURAS 22, 22-A, 22-B, 22-C, 22-D SI LA MEDICIÓN CL-200 DIBUJADO ARQ. J. BRIONES APROBADO · EL DISYUNTOR PRINCIPAL SERÁ INSTALADO PARA SER ACCIONADO DESDE EL LADO INTERIOR DEL PROYECTADO ARQ. J. BRIONES ESCALA 1:75 CERRAMIENTO O DESDE EL LADO EXTERIOR DEL MISMO. REVISADO ING. M. CEDEÑO ING. JOE SAVERIO
  • 79.
    1 REVERSIBLE DE 2" O 2 1/2" DE DIÁMETRO 2 TUERCA DE OJO PARA FIJACIÓN DE LA ACOMETIDA 7 INDUSTRIA SIN CERCA PERIMETRAL 3 TUBERÍA METÁLICA RÍGIDA GALVANIZADA DE 2" O 2 1/2" DE DIÁMETRO 4 CABLE MENSAJERO GALVANIZADO CON ALMA DE ACERO DE 1/4" DE DIÁMETRO 5 MÓDULO DE MEDICIÓN 2 6 MEDIDOR 7 CONDUCTORES DE ACOMETIDA AEREA 1 8 DISYUNTOR PRINCIPAL 3 9 CONDUCTOR DE PUESTA A TIERRA 5 6 10 BASE CL-100/CL-200 10 11 TECHO DE PROTECCIÓN DE AGUAS LLUVIAS 8 NOTAS: 9 1.8 m · EL CONSUMIDOR SUMINISTRARÁ E INSTALARÁ TODOS LOS MATERIALES EXCEPTO 6 Y 7 QUE LOS SUMINISTRARÁ E INSTALARÁ EL DISTRIBUIDOR ACERA CALLE · LAS DIMENSIONES ESTÁN EXPRESADAS EN METROS ELECTRODO DE · DIMENSIONES DEL MÓDULO DE MEDICIÓN: PUESTA A TIERRA EN MEDICIONES MONOFÁSICAS VER DETALLE DEL MÓDULO EN LA FIG # 22 Y DESDE LA 22-A HASTA LA 22-C EN MEDICIONES TRIFÁSICAS VER DETALLE DEL MÓDULO EN LAS FIG # 23 Y 23-A 7 INDUSTRIA CON CERCA PERIMETRAL 1 3 CERRAMIENTO 5 11 10 6 EMPRESA ELÉCTRICA PÚBLICA DE GUAYAQUIL, EP 8 GUAYAQUIL - ECUADOR 9 1.8 m MEDICIONES INDUSTRIALES MONOFÁSICA O TRIFÁSICA EN BAJA TENSIÓN CLASE 200 ACERA RETIRO CALLE DIBUJADO ARQ. J. BRIONES APROBADO 2012 / 04 / 07 HACIA EL PANEL DE DISTRIBUCIÓN ELECTRODO DE PROYECTADO ARQ. J. BRIONES ESCALA 1:100 PUESTA A TIERRA REVISADO ING. M. CEDEÑO ING. JOE SAVERIO
  • 84.
    PARARRAYO 10kV CAJA FUSIBLE CAJA FUSIBLE 100A-15kV 100A-15kV TRANSFORMADORES DE MEDICIÓN CONDUCTORES CONDUCTORES DE ACOMETIDA DE ACOMETIDA TUBERÍA MET. RIG. 4" PARA ACOMETIDA TUBERÍA MET. RIG. 1 1/4" PARA CONDUCTORES DE SEÑAL DE LA MEDlClÓN CONDUCTOR DE PUESTA A TlERRA TECHO DE PROTECCIÓN TECHO DE PROTECCIÓN DE AGUAS LLUVIAS DE AGUAS LLUVIAS 650 ABRAZADERA PARA SUJEClÓN DEL MÓDULO MÓDULO PARA MEDIDOR 70X40X25 TUBERÍA EMT DE 1/2" PARA 180 PUESTA A TIERRA VISTA LATERAL CALLE CONECTOR EMPRESA ELÉCTRICA PÚBLICA DE GUAYAQUIL, EP NOTAS: 80 CAJA DE REVISIÓN 80X80X80 EL CONSUMIDOR SUMINISTRARÁ E INSTALARÁ LA TUBERÍA DE ACOMETIDA Y GUAYAQUIL - ECUADOR ELECTRODO DE EL MÓDULO DE MEDICIÓN CON LA TUBERÍA DE CONTROL DE 1 1/4" PUESTA A TIERRA EL MEDIDOR, LOS CONDUCTORES DE SEÑAL, EL SWITCH DE PRUEBA, MEDICIÓN EN MEDIA TENSIÓN EN POSTE LOS TRANSFORMADORES DE CORRIENTE Y DE POTENCIAL, SERAN 80 CON CRUCETA CENTRADA Y REMATE DE LINEA SUMINISTRADOS E INSTALADOS POR EL DISTRIBUIDOR. EL CONSUMIDOR SUMINISTRARÁ COMO PROTECCIÓN DE SOBRECORRIENTE TRES CAJAS FUSIBLE 100A-15kV Y COMO PROTECCIÓN DE SOBRETENSION TRES DIBUJADO ING. C. GÓMEZ APROBADO 2012 / 04 / 07 PARARRAYOS 10kV. VISTA FRONTAL PROYECTADO ING. C. GÓMEZ ESCALA: S/E TODAS LAS DIMENSIONES ESTÁN EXPRESADAS EN CENTíMETROS Y PULGADAS. REVlSADO ING. M. CEDEÑO ING. JOE SAVERIO
  • 85.
    PARARRAYO 10kV CAJA FUSIBLE 100-15kV TRANSFORMADORES DE MEDICIÓN TUBERIA MET. RIG. 1 1/4" PARA CONDUCTORES DE SEÑAL DE LA MEDlClÓN TUBERÍA MET. RIG. 1 1/4" PARA CONDUCTORES DE SEÑAL DE LA MEDlClÓN CONDUCTOR DE PUESTA A TlERRA TECHO DE PROTECCIÓN TECHO DE PROTECCIÓN DE AGUAS LLUVIAS DE AGUAS LLUVIAS ABRAZADERA PARA SUJEClÓN DEL MÓDULO MÓDULO PARA MEDIDOR 70X40X25 TUBERÍA EMT DE 1/2" PARA 180 PUESTA A TIERRA VISTA LATERAL CONECTOR EMPRESA ELÉCTRICA PÚBLICA DE GUAYAQUIL, EP NOTAS: ELECTRODO DE PUESTA A TIERRA EL CONSUMIDOR SUMINISTRARÁ E INSTALARÁ LA TUBERIA DE ACOMETIDA Y GUAYAQUIL - ECUADOR EL MÓDULO DE MEDICIÓN CON LA TUBERÍA DE CONTROL DE 1 1/4" EL MEDIDOR, LOS CONDUCTORES DE SEÑAL, EL SWITCH DE PRUEBA, MEDICIÓN EN MEDIA TENSIÓN EN POSTE CON LOS TRANSFORMADORES DE CORRIENTE Y DE POTENCIAL, SERÁN SUMINISTRADOS E INSTALADOS POR EL DISTRIBUIDOR. ESTRUCTURA DE DOBLE REMATE EN LINEA PRIMARIA VISTA FRONTAL EL CONSUMIDOR SUMINISTRARÁ COMO PROTECCIÓN DE SOBRECORRIENTE TRES CAJAS FUSIBLE 100A-15kV Y COMO PROTECCIÓN DE SOBRETENSION TRES DIBUJADO ING. C. GÓMEZ APROBADO 2012 / 04 / 07 PARARRAYOS 10kV. PROYECTADO ING. C. GÓMEZ ESCALA: S/E TODAS LAS DIMENSIONES ESTÁN EXPRESADAS EN CENTÍMETROS Y PULGADAS. REVlSADO ING. M. CEDEÑO ING. JOE SAVERIO
  • 86.
    4 5 3 2 1 MÓDULO PARA TRANSFORMADORES DE CORRIENTE 2 TAPA ATORNILLABLE CON DISPOSITIVO PARA SELLO DEL DISTRIBUIDOR 3 SOPORTE DE ALUMINIO ENDURECIDO PARA LOS TC 4 TRANSFORMADORES DE CORRIENTE 5 CONECTOR PARA TOMA DE TIERRA DIMENSIONES EN MILíMETROS. 1 EMPRESA ELÉCTRICA PÚBLICA DE GUAYAQUIL, EP GUAYAQUIL - ECUADOR MÓDULO DE SEGURIDAD PARA TRANSFORMADORES DE CORRIENTE EN MEDICIONES INDIRECTAS TRIFÁSICAS EN BAJA TENSIÓN PARA NUEVOS SERVICIOS DIBUJADO ING. M. CEDEÑO APROBADO 2012 / 04 / 07 PROYECTADO ING. M. CEDEÑO ESCALA REVISADO ING. M. CEDEÑO ING. JOE SAVERIO
  • 87.
    3 5 4 1 MÓDULO PARA TRANSFORMADORES DE CORRIENTE 2 2 TAPA ATORNILLABLE CON DISPOSITIVO PARA SELLO DEL DISTRIBUIDOR 3 SOPORTE DE ALUMINIO ENDURECIDO PARA LOS TC 4 TRANSFORMADORES DE CORRIENTE 5 CONECTOR PARA TOMA DE TIERRA DIMENSIONES EN MILíMETROS. 1 EMPRESA ELÉCTRICA PÚBLICA DE GUAYAQUIL, EP GUAYAQUIL - ECUADOR MÓDULO DE SEGURIDAD PARA TRANSFORMADORES DE CORRIENTE EN MEDICIONES INDIRECTAS MONOFÁSICAS EN BAJA TENSIÓN PARA NUEVOS SERVICIOS DIBUJADO ING. M. CEDEÑO APROBADO 2012 / 04 / 07 PROYECTADO ING. M. CEDEÑO ESCALA REVISADO ING. M. CEDEÑO ING. JOE SAVERIO
  • 88.
    4 5 3 2 1 MÓDULO PARA TRANSFORMADORES DE CORRIENTE 2 TAPA ATORNILLABLE CON DISPOSITIVO PARA SELLO DEL DISTRIBUIDOR 3 SOPORTE DE ALUMINIO ENDURECIDO PARA LOS TC 4 TRANSFORMADORES DE CORRIENTE 5 CONECTOR PARA TOMA DE TIERRA DIMENSIONES EN MILíMETROS. 1 EMPRESA ELÉCTRICA PÚBLICA DE GUAYAQUIL, EP GUAYAQUIL - ECUADOR MÓDULO DE SEGURIDAD PARA TRANSFORMADORES DE CORRIENTE EN MEDICIONES INDIRECTAS TRIFÁSICAS EN BAJA TENSIÓN PARA INMUEBLES CON SERVICIO ELÉCTRICO PREVIO DIBUJADO ING. M. CEDEÑO APROBADO 2012 / 04 / 07 PROYECTADO ING. M. CEDEÑO ESCALA REVISADO ING. M. CEDEÑO ING. JOE SAVERIO
  • 89.
    3 5 4 2 1 MÓDULO PARA TRANSFORMADORES DE CORRIENTE 2 TAPA ATORNILLABLE CON DISPOSITIVO PARA SELLO DEL DISTRIBUIDOR 3 SOPORTE DE ALUMINIO ENDURECIDO PARA LOS TC 4 TRANSFORMADORES DE CORRIENTE 5 CONECTOR PARA TOMA DE TIERRA DIMENSIONES EN MILíMETROS. 1 EMPRESA ELÉCTRICA PÚBLICA DE GUAYAQUIL, EP GUAYAQUIL - ECUADOR MÓDULO DE SEGURIDAD PARA TRANSFORMADORES DE CORRIENTE EN MEDICIONES INDIRECTAS MONOFÁSICAS EN BAJA TENSIÓN EN INMUEBLES CON SERVICIO ELÉCTRICO PREVIO DIBUJADO ING. M. CEDEÑO APROBADO 2012 / 04 / 07 PROYECTADO ING. M. CEDEÑO ESCALA REVISADO ING. M. CEDEÑO ING. JOE SAVERIO
  • 92.
    Reversible Tubería metálica rígida de 1 1/4" Collar metálico de 6 1/2" 3.00 m Contratuerca, tuerca y corona Caja metálica con plancha de 1/16" Base monofásica clase 100 Medidor clase 100 Disyuntor principal 30 cm de 30 A - 1P Collar metálico de 6 1/2" Sello de seguridad 50 cm Puerta de protección con cerradura 20 cm Tomacorriente doble 30 cm de 120 V 10 cm Poste de hormigón del Distribuidor Tubería EMT de 1 1/4" para el conductor de puesta a tierra Altura de montaje 2.00 m EMPRESA ELÉCTRICA PÚBLICA DE GUAYAQUIL, EP GUAYAQUIL - ECUADOR Varilla de puesta a tierra de 5/8" X 6' TABLERO PARA UN MEDIDOR INSTALADO EN POSTE DEL DISTRIBUIDOR DIBUJADO ING. M. CEDEÑO APROBADO 2012 / 04 / 07 PROYECTADO ING. M. CEDEÑO ESCALA: S/E REVISADO ING. M. CEDEÑO ING. JOE SAVERIO
  • 96.
    1 1 8 2 2 3 3 SELLO DE SEGURIDAD 4 7 1 1 5 EMPRESA ELÉCTRICA PÚBLICA DE GUAYAQUIL, EP GUAYAQUIL - ECUADOR MÓDULO CON TAPA PARA MEDIDOR MONOFÁSICO CL-200 SIN DEMANDA DIBUJADO ING. M. CEDEÑO APROBADO 2012 / 04 / 07 PROYECTADO ING. M. CEDEÑO ESCALA 1:10 REVISADO ING. M. CEDEÑO ING. JOE SAVERIO
  • 97.
    9 2 2 6 3 BISAGRAS 3 8 SELLO DE SEGURIDAD 4 7 1 1 1 5 EMPRESA ELÉCTRICA PÚBLICA DE GUAYAQUIL, EP GUAYAQUIL - ECUADOR MÓDULO CON PUERTA TIPO VITRINA PARA MEDIDOR MONOFÁSICO CL-200 O TRIFÁSICO CL 100/200 CON O SIN DEMANDA DIBUJADO ING. M. CEDEÑO APROBADO 2012 / 04 / 07 PROYECTADO ING. M. CEDEÑO ESCALA 1:10 REVISADO ING. M. CEDEÑO ING. JOE SAVERIO
  • 98.
    1 9 3 2 7 2 6 BISAGRAS 3 8 SELLO DE SEGURIDAD 4 7 1 1 EMPRESA ELÉCTRICA PÚBLICA DE GUAYAQUIL, EP GUAYAQUIL - ECUADOR MÓDULO CON PUERTA TIPO VITRINA PARA 5 MEDIDOR TRIFÁSICO CL-100/CL-200 DIBUJADO ING. C. GÓMEZ APROBADO 2012 / 04 / 07 PROYECTADO ING. C. GÓMEZ ESCALA: S/E REVISADO ING. M. CEDENO ING. JOE SAVERIO
  • 99.
    1 9 3 2 7 2 6 BISAGRAS 3 8 SELLO DE SEGURIDAD 4 7 1 EMPRESA ELÉCTRICA PÚBLICA DE GUAYAQUIL, EP 1 GUAYAQUIL - ECUADOR MÓDULO CON PUERTA TIPO VITRINA PARA 5 MEDIDOR TRIFÁSICO CL-100/CL-200 DIBUJADO ING. C. GÓMEZ APROBADO 2012 / 04 / 07 PROYECTADO ING. C. GÓMEZ ESCALA: S/E REVISADO ING. M. CEDENO ING. JOE SAVERIO
  • 100.
    1 FONDO FALSO PLANCHA DE 1/16". NOTA: 2 BASE SOCKET CL20 DE 5, 6 ó 13 TERMINALES. · TODAS LAS DIMENSIONES ESTÁN EXPRESADAS EN CENTíMETROS. 3 SWITCH DE PRUEBA. · EL MÓDULO SERA CONSTRUIDO EN PLANCHA METÁLICA DE 4 PUERTA ABISAGRADA. 1/16" DE ESPESOR. 5 MÓDULO QUE CONTIENE BASE SOCKET · EL CONSUMIDOR SUMINISTRARÁ E INSTALARÁ TODOS LOS SWITCH DE PRUEBA. MATERIALES EXCEPTO EL MEDIDOR Y SWITCH DE PRUEBA. EMPRESA ELÉCTRICA PÚBLICA DE GUAYAQUIL, EP GUAYAQUIL - ECUADOR 6 TERMINAL DE PUESTA A TIERRA. MÓDULO CON PUERTA TIPO VITRINA EN MEDICIONES INDIRECTAS 1F Ó 3F DIBUJADO ING. C. GÓMEZ APROBADO 2012 / 04 / 07 PROYECTADO ING. C. GÓMEZ ESCALA: S/E REVISADO ING. M. CEDEÑO ING. JOE SAVERIO
  • 101.
    12 12 12 NOTA: TODAS LAS DIMENSIONES ESTÁN EXPRESADAS EN CENTíMETROS. EL TABLERO DE MEDIDORES SERÁ CONSTRUIDO EN PLANCHA DE 1/16". 1 TABLERO DE MEDIDORES TIPO VITRINA. 7 BARRA DE NEUTRO. EL CONSUMIDOR SUMINISTRARÁ E INSTALARÁ TODOS LOS MATERIALES EXCEPTO LOS MEDIDORES. 2 BASE SOCKET 1F CL-100. 8 DISYUNTOR INDIVIDUAL. EMPRESA ELÉCTRICA PÚBLICA DE GUAYAQUIL, EP 3 BASE SOCKET 1F CL-200. 9 ELECTRODO DE PUESTA A TIERRA. GUAYAQUIL - ECUADOR 4 DISYUNTOR PRINCIPAL. 10 TAPA METÁLICA DE PROTECCIÓN. 5 PUERTA ABISAGRADA CON VISOR DE VIDRIO. 11 DISPOSITIVO PARA COLOCAR SELLO DE SEGURIDAD 6 BARRAS DE DISTRIBUCIÓN. 12 BISAGRA CON PASADOR DIBUJADO ING. M. CEDEÑO APROBADO 2012 / 04 / 07 TIPO NO REMOVIBLE. PROYECTADO ING. M. CEDEÑO ESCALA REVISADO ING. M. CEDEÑO ING. JOE SAVERIO
  • 102.
    1 TABLERO DEMEDIDORES TIPO VITRINA. 7 BARRA DE NEUTRO. NOTA : TODAS LAS DIMENSIONES ESTÁN EXPRESADAS EN CENTÍMETROS. 2 BASE SOCKET 1F CL-100. 8 DISYUNTOR INDIVIDUAL. EL TABLERO DE MEDIDORES SERÁ CONSTRUIDO EN PLANCHA DE 1/16". EL CONSUMIDOR SUMINISTRARÁ E INSTALARÁ TODOS LOS MATERIALES EXCEPTO LOS MEDIDORES. 3 BASE SOCKET 1F CL-200. 9 ELECTRODO DE PUESTA A TIERRA. 4 DISYUNTOR PRINCIPAL HASTA 70A-2P 10 TAPA METÁLICA DE PROTECCIÓN. 5 PUERTA ABISAGRADA CON VISOR DE VIDRIO. 11 DISPOSITIVO PARA COLOCAR SELLO DE SEGURIDAD EMPRESA ELÉCTRICA PÚBLICA DE GUAYAQUIL, EP 6 BARRAS DE DISTRIBUCIÓN. GUAYAQUIL - ECUADOR TABLERO DE 2 MEDIDORES MONOFÁSICOS DIBUJADO ING. M. CEDEÑO APROBADO 2012 / 04 / 07 PROYECTADO ING. M. CEDEÑO ESCALA : REVlSADO ING. M. CEDEÑO ING. JOE SAVERIO
  • 103.
    RESERVA 1 TABLERO DEMEDIDORES TIPO VITRINA. 7 BARRA DE NEUTRO. NOTA : TODAS LAS DIMENSIONES ESTÁN EXPRESADAS EN CENTÍMETROS. 2 BASE SOCKET 1F CL-100. 8 DISYUNTOR INDIVIDUAL. EL TABLERO DE MEDIDORES SERÁ CONSTRUIDO EN PLANCHA DE 1/16". EL CONSUMIDOR SUMINISTRARÁ E INSTALARÁ TODOS LOS MATERIALES EXCEPTO LOS MEDIDORES. 3 BASE SOCKET 1F CL-200. 9 ELECTRODO DE PUESTA A TIERRA. 4 DISYUNTOR PRINCIPAL. 10 TAPA METÁLICA DE PROTECCIÓN. 5 PUERTA ABISAGRADA CON VISOR DE VIDRIO. 11 DISPOSITIVO PARA COLOCAR SELLO DE SEGURIDAD EMPRESA ELÉCTRICA PÚBLICA DE GUAYAQUIL, EP 6 BARRAS DE DISTRIBUCIÓN. GUAYAQUIL - ECUADOR TABLERO DE 3 MEDIDORES MONOFÁSICOS DIBUJADO ING. M. CEDEÑO APROBADO 2012 / 04 / 07 PROYECTADO ING. M. CEDEÑO ESCALA : REVlSADO ING. M. CEDEÑO ING. JOE SAVERIO
  • 104.
    NOTA : TODAS LAS DIMENSIONES ESTÁN EXPRESADAS EN CENTÍMETROS. EL TABLERO DE MEDIDORES SERÁ CONSTRUIDO EN PLANCHA DE 1/16". 1 TABLERO DE MEDIDORES TIPO VITRINA. 7 BARRAS DE DISTRIBUCIÓN. 13 BISAGRA CON PASADOR EL CONSUMIDOR SUMINISTRARÁ E INSTALARÁ TODOS LOS MATERIALES EXCEPTO LOS MEDIDORES. TIPO NO REMOVIBLE. 2 BASE SOCKET 1F CL-100. 8 BARRA DE NEUTRO. EMPRESA ELÉCTRICA PÚBLICA DE GUAYAQUIL, EP 3 BASE SOCKET 1F CL-200. 9 DISYUNTOR INDIVIDUAL. GUAYAQUIL - ECUADOR 4 BASE SOCKET 3F CL-100 o CL-200. 10 ELECTRODO DE PUESTA A TIERRA. 11 TAPA METÁLICA DE PROTECCIÓN. TABLERO DE MEDIDORES 5 DISYUNTOR PRINCIPAL. MONOFÁSICOS Y TRIFÁSICOS 6 PUERTA ABISAGRADA CON VISOR DE VIDRIO. 12 DISPOSITIVO PARA COLOCAR SELLO DE SEGURIDAD DIBUJADO ING. MANUEL CEDEÑO APROBADO 2012 / 04 / 07 PROYECTADO ING. MANUEL CEDEÑO ESCALA : REVlSADO ING. MANUEL CEDEÑO ING. JOE SAVERIO
  • 105.
    NOTA : TODAS LAS DIMENSIONES ESTÁN EXPRESADAS EN CENTÍMETROS. EL TABLERO DE MEDIDORES SERÁ CONSTRUIDO EN PLANCHA DE 1/16". EL CONSUMIDOR SUMINISTRARÁ E INSTALARÁ TODOS LOS MATERIALES EXCEPTO LOS MEDIDORES, 1 TABLERO DE MEDIDORES TIPO VITRINA. 8 DISYUNTOR PRINCIPAL. 15 BISAGRA CON PASADOR TRANSFORMADORES DE CORRIENTE Y SWITCH DE PRUEBA. TIPO NO REMOVIBLE. 2 BASE SOCKET 1F CL-100. 9 PUERTA ABISAGRADA CON VISOR DE VIDRIO. 3 BASE SOCKET 1F CL-200. 10 DISPOSITIVO PARA COLOCAR SELLO DE SEGURIDAD. 4 BASE SOCKET 3F CL-100 o CL-200. 11 BARRAS DE DISTRIBUCIÓN. 5 BASE SOCKET 3F CL-20. 12 BARRA DE NEUTRO. EMPRESA ELÉCTRICA PÚBLICA DE GUAYAQUIL, EP 6 TRANSFORMADOR DE CORRIENTE. 13 ELECTRODO DE PUESTA A TIERRA. GUAYAQUIL - ECUADOR 7 SWITCH DE PRUEBA. 14 TAPA METALICA DE PROTECCIÓN. TABLERO DE MEDIDORES MONOFÁSICOS Y TRIFÁSICOS DIBUJADO ING. M. CEDEÑO APROBADO 2012 / 04 / 07 PROYECTADO ING. M. CEDEÑO ESCALA : REVlSADO ING. M. CEDEÑO ING. JOE SAVERIO
  • 106.
    LOSA DE HORMIGÓNARMADO LOSA DE HORMIGÓN ARMADO LUMINARIA MÓDULO DE SEGURIDAD MÓDULO DE DE TC SEGURIDAD DE TC 250 cm 250 cm 180 cm DEL EJE DEL TUBERÍA METÀLICA TUBERÍA METÀLICA MEDIDOR AL PISO RÌGIDA DE 4" RÌGIDA DE 4" PARA LA ACOMETIDA PARA LA ACOMETIDA 150 cm 50 cm ELECTRODO DE ELECTRODO DE PUESTA A TIERRA PUESTA A TIERRA 300 cm NOTAS: EL CONSUMIDOR SUMINISTRARÁ E INSTALARÁ TODOS LOS MATERIALES Y EQUIPOS EXCEPTO EL MEDIDOR, LOS CONDUCTORES DE SEÑAL Y LOS DE ACOMETIDA, LOS MISMOS QUE SERÁN SUMINISTRADOS E INSTALADOS POR EL DISTRIBUIDOR LOS TRANSFORMADORES DE CORRIENTE, MÓDULO DE SEGURIDAD DE LOS TC SERÁN SUMINISTRADOS POR EL DISTRIBUIDOR E INSTALADOS POR EL CONSUMIDOR. EL CONSUMIDOR SUMINISTRARÁ COMO PROTECCIÓN DE SOBRECORRIENTE TRES CAJAS FUSIBLE 100A-15kV Y COMO PROTECCIÓN DE SOBRETENSION TRES PARARRAYOS 10kV. TODAS LAS DIMENSIONES ESTAN EXPRESADAS EN CENTíMETROS Y PULGADAS. 250 cm TABLERO DE DISTRIBUCIÓN MÓDULO DE SEGURIDAD DE TC TUBERÍA METÁLICA RÍGIDA DE 11/4" DE DIAM. PARA CONDUCTORES DE SEÑAL DE LA MEDICIÓN EMPRESA ELÉCTRICA PÚBLICA DE GUAYAQUIL, EP GUAYAQUIL - ECUADOR 100 200 LUMINARIA MÓDULO PARA MEDIDOR TOMACORRIENTE 120V 70 x 40 x 25 cm CUARTO PARA TRANSFORMADORES HASTA DISPOSITIVO PARA COLOCAR 150 kVA CON MEDICIÓN EN BAJA TENSION SELLO DEL DISTRIBUIDOR DIBUJADO ING. J. SAVERIO APROBADO 2012 / 04 / 07 100 cm PROYECTADO ING. J. SAVERIO ESCALA: 1:50 REVlSADO ING. J. SAVERIO ING. J. SAVERIO
  • 107.
    LOSA DE HORMIGÓNARMADO LOSA DE HORMIGÓN ARMADO LUMINARIA MÓDULO DE 250 cm 250 cm SEGURIDAD DE TC MÓDULO DE SEGURIDAD 180 cm DEL EJE DEL TUBERÍA METÁLICA TUBERÍA METÁLICA MEDIDOR AL PISO DE TC RÍGIDA DE 4" RÍGIDA DE 4" PARA LA ACOMETIDA PARA LA ACOMETIDA 150 cm 50 cm ELECTRODO DE ELECTRODO DE PUESTA A TIERRA PUESTA A TIERRA 300 cm NOTAS: EL CONSUMIDOR SUMINISTRARÁ E INSTALARÁ TODOS LOS MATERIALES Y EQUIPOS EXCEPTO EL MEDIDOR, LOS CONDUCTORES DE SEÑAL Y LOS DE ACOMETIDA, LOS MISMOS QUE SERÁN SUMINISTRADOS E INSTALADOS POR EL DISTRIBUIDOR LOS TRANSFORMADORES DE CORRIENTE, MÓDULO DE SEGURIDAD DE LOS TC SERÁN SUMINISTRADOS POR EL DISTRIBUIDOR E INSTALADOS POR EL CONSUMIDOR. EL CONSUMIDOR SUMINISTRARÁ COMO PROTECCIÓN DE SOBRECORRIENTE TRES CAJAS FUSIBLE 100A-15kV Y COMO PROTECCIÓN DE SOBRETENSION TRES PARARRAYOS 10kV. TODAS LAS DIMENSIONES ESTAN EXPRESADAS EN CENTíMETROS Y PULGADAS. 250 cm TABLERO DE DISTRIBUCIÓN MÓDULO DE SEGURIDAD DE TC TUBERÍA METÁLICA RÍGIDA DE 11/4" DE DIAM. PARA CONDUCTORES DE SEÑAL DE LA MEDICIÓN EMPRESA ELÉCTRICA PÚBLICA DE GUAYAQUIL, EP GUAYAQUIL - ECUADOR 100 200 LUMINARIA MÓDULO PARA MEDIDOR TOMACORRIENTE 120V 70 x 40 x 25 cm CUARTO PARA TRANSFORMADORES HASTA DISPOSITIVO PARA COLOCAR 150 kVA CON MEDICIÓN EN BAJA TENSIÓN SELLO DEL DISTRIBUIDOR DIBUJADO ING. J. SAVERIO APROBADO 2012 / 04 / 07 100 cm PROYECTADO ING. J. SAVERIO ESCALA: 1:50 REVlSADO ING. J. SAVERIO ING. J. SAVERIO
  • 108.
    LOSA DE HORMIGÓNARMADO 500 cm LUMINARIA PUERTA CORREDIZA CELDA DE 15 KV 70 x 40 x 25 cm 270 cm MÓDULO PARA MEDIDOR 150 cm 350 cm ELECTRODO DE PUESTA A TIERRA TABLERO DE DISTRIBUCIÓN DISPOSITIVO PARA COLOCAR LOSA DE HORMIGÓN ARMADO SELLO DEL DISTRIBUIDOR LUMINARIA PUERTA CORREDIZA TUBERÍA METÁLICA RÍGIDA DE 11/4" MÓDULO PARA MEDIDOR DE DIAM. PARA CONDUCTORES DE SEÑAL DE LA MEDICIÓN 70 x 40 x 25 cm CELDA DE 15 KV INTERRUPTOR TOMACORRIENTE 120V 180 cm DEL EJE DEL 160 200 MEDIDOR AL PISO TABLERO DE DISTRIBUCIÓN 150 cm LUMINARIA TUBERÍA METÀLICA RÌGIDA DE 4" PARA LA ACOMETIDA ELECTRODO DE 160 cm PUESTA A TIERRA NOTAS: EMPRESA ELÉCTRICA PÚBLICA DE GUAYAQUIL, EP EL CONSUMIDOR SUMINISTRARÁ E INSTALARÁ TODOS LOS MATERIALES Y EQUIPOS EXCEPTO EL MEDIDOR, LOS CONDUCTORES DE SEÑAL Y LOS DE ACOMETIDA, GUAYAQUIL - ECUADOR LOS MISMOS QUE SERÁN SUMINISTRADOS E INSTALADOS POR EL DISTRIBUIDOR LOS TRANSFORMADORES DE CORRIENTE, MÓDULO DE SEGURIDAD DE LOS TC SERÁN SUMINISTRADOS POR EL DISTRIBUIDOR E INSTALADOS POR EL CONSUMIDOR. CUARTO PARA TRANSFORMADORES HASTA 750 kVA CON MEDICIÓN EN MEDIA TENSIÓN EL CONSUMIDOR SUMINISTRARÁ COMO PROTECCIÓN DE SOBRECORRIENTE TRES CAJAS FUSIBLE 100A-15kV Y COMO PROTECCIÓN DE SOBRETENSIÓN TRES PARARRAYOS 10kV. ING J. SAVERIO DIBUJADO APROBADO 2012 / 04 / 07 TODAS LAS DIMENSIONES ESTAN EXPRESADAS EN CENTÍMETROS Y PULGADAS. ING J. SAVERIO ESCALA: 1:50 PROYECTADO REVlSADO ING J. SAVERIO ING J. SAVERIO
  • 109.
    5 5 1 1 6 6 2 4 2 4 3 3 7 1 7 1 BASE DE HORMIGÓN PARA UN TRANSFORMADOR PADMOUNTED. 2 CAJA DE PASO DE HORMIGÓN. 3 TUBERÍA METÁLICA RÍGIDA DE ENTRADA DE ACOMETIDA 4". 5 4 TUBERÍA METÁLICA RÍGIDA HACIA EL TABLERO DE MEDIDORES. 5 TRANSFORMADOR PADMOUNTED. 6 CONDUCTOR DE PUESTA A TIERRA. EMPRESA ELÉCTRICA PÚBLICA DE GUAYAQUIL, EP GUAYAQUIL - ECUADOR 7 ELECTRODO DE PUESTA A TIERRA. NOTAS : DETALLE DE MONTAJE DE UN TRANSFORMADOR PADMOUNTED LAS DIMENSIONES DE LA BASE CORRESPONDEN A UN TRANSFORMADOR 1F DE 75 KVA DIBUJADO ING. M. CEDEÑO APROBADO 2012 / 04 / 07 DIMENSIONES EN CENTÍMETROS. PROYECTADO ING. M. CEDEÑO ESCALA S/E REVISADO ING. M. CEDEÑO ING. M. CEDEÑO
  • 110.
    5 5 TC TC TC TC 1 1 2 8 4 4 6 6 3 2 3 7 1 7 1 BASE DE HORMIGÓN PARA UN TRANSFORMADOR PADMOUNTED. 2 CAJA DE PASO DE HORMIGÓN. 3 TUBERÍA METÁLICA RÍGIDA DE ENTRADA DE ACOMETIDA 4". 5 4 TUBERÍA METÁLICA RÍGIDA HACIA EL TABLERO DE MEDIDORES. 5 TRANSFORMADOR PADMOUNTED. 6 CONDUCTOR DE PUESTA A TIERRA. EMPRESA ELÉCTRICA PÚBLICA DE GUAYAQUIL, EP 7 ELECTRODO DE PUESTA A TIERRA. GUAYAQUIL - ECUADOR 8 TUBERIA METÁLICA RÍGIDA DE 1 1/4" PARA CONDUCTORES DE SEÑAL DE LA MEDICIÓN. DETALLE DE INSTALACIÓN DE 2 TC DENTRO NOTAS : TC TC DE UN TRANSFORMADOR PADMOUNTED 1F LAS DIMENSIONES DE LA BASE CORRESPONDEN A UN TRANSFORMADOR 1F DE 75 KVA LOS TC SERAN FIJADOS A LOS CONDUCTORES DE BAJA DIBUJADO ING. M. CEDEÑO APROBADO 2012 / 04 / 07 TENSIÓN MEDIANTE ABRAZADERAS. PROYECTADO ING. M. CEDEÑO ESCALA S/E DIMENSIONES EN CENTÍMETROS. REVISADO ING. M. CEDEÑO ING. JOE SAVERIO
  • 111.
    CERRAMIENTO LATERAL MEDIDOR 3 SELLO DEL FACHADA DISTRIBUIDOR FRONTAL 2 2 5 AL T.D.G. CERRAMIENTO FRONTAL M m. IN ,50 IM O0 O IM 0, MI N 50 1 MÓDULO DE MEDICIÓN 5 TUB. METAL. RIG. DE 1 1/4" PARA CONDUCTORES m . PLANCHA DE 1/16". DE SEÑAL DE LA MEDICIÓN. 6 TRANSFORMADOR TIPO PAD-MOUNTED. 2 MÓDULO PARA EL DISYUNTOR PRINCIPAL. 7 CONDUCTORES DE BAJA TENSIÓN. m. ,50 3 DISPOSITIVO PARA COLOCAR SELLO DEL DISTRIBUIDOR IM O1 MI N 4 TRANSF. DE CORRIENTE UBICADOS DENTRO DEL PADMOUNTED AC ER A NOTA: TODAS LAS DIMENSIONES ESTAN EXPRESADAS EN CENTÍMETROS. EL MÓDULO DE MEDICIÓN, EL DE LOS TRANSFORMADORES DE CORRIENTE Y DISYUNTOR PRINCIPAL SERAN CONSTRUIDOS EN PLANCHA METALICA DE 1/16" DE ESPESOR. EMPRESA ELÉCTRICA PÚBLICA DE GUAYAQUIL, EP EL CONSUMIDOR SUMINISTRARÁ E INSTALARÁ TODOS LOS MATERIALES, EXCEPTO GUAYAQUIL - ECUADOR EL MEDIDOR Y EL SWITCH DE PRUEBA, LOS TRANSFORMADORES DE CORRIENTE SERAN SUMINISTRADOS POR EL DISTRIBUIDOR E INSTALADOS POR EL CONSUMIDOR. MÓDULO CON PUERTA TIPO VITRINA PARA MEDICIÓN INDIRECTA CON TRANSFORMADOR EL MÓDULO DE MEDICIÓN ES SIMILAR AL MOSTRADO EN LA FIG 24. PADMOUNTED EN RESIDENCIA DIBUJADO ING. C. GÓMEZ APROBADO 2012 / 04 / 07 PROYECTADO ING. C. GÓMEZ ESCALA: S/E REVISADO ING. M. CEDEÑO ING. JOE SAVERIO
  • 112.
    30 50 CONDUCTORES DE ACOMETIDA TUBERÍA METÀLICA 250 cm RÌGIDA DE 4" PARA LA ACOMETIDA TUBERÍA MET. RIG. 4" PARA ACOMETIDA 200 100 100 cm LUMINARIA DISPOSITIVO PARA COLOCAR SELLO DEL DISTRIBUIDOR. 300 cm 650 MÓDULO DE SEGURIDAD DE TC SEÑAL DE LA MEDICIÓN 250 cm TUBERÍA EMT DE 1/2" DE TC 180 cm DEL EJE DEL PARA CONDUCTOR DE MÓDULO PARA MEDIDOR MEDIDOR AL PISO PUESTA A TIERRA 70 x 40 x 25 cm DE DIAM. PARA CONDUCTORES DE SEGURIDAD MÓDULO DE TUBERÍA METÁLICA RÍGIDA DE 11/4" A A 50 cm TABLERO DE ELECTRODO DE CONECTOR DISTRUBUCIÓN CALLE 80 PUESTA A TIERRA ELECTRODO DE PUESTA A TIERRA TUBERÍA METÀLICA RÌGIDA DE 4" PARA LA ACOMETIDA 80 EMPRESA ELÉCTRICA PÚBLICA DE GUAYAQUIL, EP NOTAS: GUAYAQUIL - ECUADOR EL CONSUMIDOR SUMINISTRARÁ E INSTALARÁ TODOS LOS MATERIALES Y EQUIPOS EXCEPTO EL MEDIDOR, LOS CONDUCTORES DE SEÑAL Y LOS DE ACOMETIDA, LOS MISMOS QUE SERÁN SUMINISTRADOS E INSTALADOS POR EL DISTRIBUIDOR ACOMETIDA SUBTERRÁNEA EN MEDIA LOS TRANSFORMADORES DE CORRIENTE, MÓDULO DE SEGURIDAD DE LOS TC TENSIÓN CON MEDICIÓN EN BAJA TENSIÓN SERÁN SUMINISTRADOS POR EL DISTRIBUIDOR E INSTALADOS POR EL CONSUMIDOR. EL CONSUMIDOR SUMINISTRARÁ COMO PROTECCIÓN DE SOBRECORRIENTE TRES DIBUJADO ING. J. SAVERIO APROBADO 2012 / 04 / 07 CAJAS FUSIBLE 100A-15kV Y COMO PROTECCIÓN DE SOBRETENSIÓN TRES PARARRAYOS 10kV. PROYECTADO ING. J. SAVERIO ESCALA: S/E TODAS LAS DIMENSIONES ESTAN EXPRESADAS EN CENTÍMETROS Y PULGADAS. REVlSADO ING. J. SAVERIO ING. J. SAVERIO
  • 114.
    15 HORMIGÓN SIMPLE fc=240kg/cm2 5 PAVIMENTO D 10 HORMIGÓN SIMPLE fc=210 kg/cm2 20 D 10 DUCTO PVC TIPO PRESIÓN D 10 30 TERRENO COMPACTADO Y NIVELADO DUCTO PVC TIPO PRESIÓN D 10 15 D 5 D 15 TERRENO COMPACTADO Y NIVELADO 50 25 5 PAVIMENTO 10 HORMIGÓN SIMPLE fc=210 kg/cm2 D TERRENO COMPACTADO Y NIVELADO 30 HORMIGÓN SIMPLE fc=240 kg/cm2 10 10 30 TERRENO COMPACTADO Y NIVELADO DUCTO PVC TIPO PRESIÓN D 10 15 D 5 D 15 TERRENO COMPACTADO Y NIVELADO 50 EMPRESA ELÉCTRICA PÚBLICA DE GUAYAQUIL, EP GUAYAQUIL - ECUADOR DISPOSICIÓN DE DUCTOS EN LAS DIMENSIONES ESTÁN DADAS EN CENTíMETROS Y PULGADAS ACERAS Y CRUCES DE CALLE D = DIÁMETRO DE LAS TUBERÍAS 4" O 6" DIBUJADO ING. J. SAVERIO APROBADO 2012 / 04 / 07 PROYECTADO ING. J. SAVERIO ESCALA REVISADO ING. J. SAVERIO ING. JOE SAVERIO
  • 115.
    5 1 10 15 15 3 90 15 15 15 2 80 80 5 5 10 10 10 5 5 5 5 85 5 10 15 15 15 15 15 10 90 5 5 5 4 100 5 80 5 1 TAPA CON ÁNGULO METÁLICO: 10 EN ACERAS 2" X 1/4" EN CRUCE DE CALLES 5" X 1/4" 2 AGARRADERA PARA REMOCIÓN. 10 160 VARILLA DE HIERRO: 10 10 3 EN ACERAS 1/2" 80 EN CRUCE DE CALLES 5/8" 10 10 4 HORMIGÓN SIMPLE EN ACERAS. EMPRESA ELÉCTRICA PÚBLICA DE GUAYAQUIL, EP HORMIGÓN ARMADO EN CRUCE DE CALLES. GUAYAQUIL - ECUADOR 5 DUCTOS. NOTA: EN CRUCE DE CALLES, LAS CAJAS DE PASO TENDRÁN UNA PROFUNDIDAD DE 100cm. CONSTRUCCIÓN DE LAS CAJAS DE PASO LAS DIMENSIONES ESTÁN EXPRESADAS EN CENTIMETROS. DIBUJADO ING. C. GÓMEZ APROBADO 2012 / 04 / 07 PROYECTADO ING. C. GÓMEZ ESCALA: 1 : 20 REVISADO ING. M. CEDEÑO ING. JOE SAVERIO
  • 116.
    2.30m 3.80m 1.70m 3.20m VEREDA VEREDA CALZADA CALZADA EMPRESA ELÉCTRICA PÚBLICA DE GUAYAQUIL, EP GUAYAQUIL - ECUADOR DISTANCIAS DE SEGURIDAD ENTRE EDIFICIOS Y LINEAS AÉREAS DE MEDIA Y BAJA TENSIÓN SIN AISLAMIENTO DIBUJADO ING. J. SAVERIO APROBADO 2012 / 04 / 07 PROYECTADO ING. J. SAVERIO ESCALA: S/E REVISADO ING. J. SAVERIO ING. JOE SAVERIO
  • 117.
    0.1 m 1.14 m 1.4 m 1.4 m. 1.5 m 1.5 m 2.2 m 2.2 m 1.5 m 1.5 m 2.77m 4.27m 2.77m 2.77m 19 m 19 m 19 m VEREDA VEREDA VEREDA CALZADA CALZADA CALZADA 2.4 m 2.4 m 2.4 m EMPRESA ELÉCTRICA PÚBLICA DE GUAYAQUIL, EP GUAYAQUIL - ECUADOR DISTANCIAS DE SEGURIDAD ENTRE EDIFICIOS Y LÍNEAS AÉREAS DE ALTA TENSIÓN SIN AISLAMIENTO DIBUJADO ING. J. SAVERIO APROBADO 2012 / 04 / 07 PROYECTADO ING. J. SAVERIO ESCALA: S/E REVISADO ING. J. SAVERIO ING. JOE SAVERIO
  • 118.